EX-10 2 ctmx-ex10_1.htm EX-10.1 EX-10

Exhibit 10.1

 

SUBLEASE

THIS SUBLEASE (this “Sublease”) is dated for reference purposes as of March 24, 2023, and is made by and between CytomX Therapeutics, Inc., a Delaware corporation (“Sublessor”), and Atomic AI, Inc., a Delaware corporation (“Sublessee”). Sublessor and Sublessee hereby agree as follows:

1.
Recitals: This Sublease is made with reference to the fact that HCP Oyster Point Ill LLC, as landlord (“Master Lessor”), and Sublessor, as tenant, entered into that certain lease, dated as of December 10, 2015 (the “Master Lease”), with respect to premises consisting of approximately 76,173 rentable square feet (“RSF”) of space, located on the third and fourth floors (the “Premises”) of a building being constructed at 151 Oyster Point Boulevard, South San Francisco, California (the “Building”). A copy of the Master Lease is attached hereto as Exhibit A.

2.
Premises:
A.
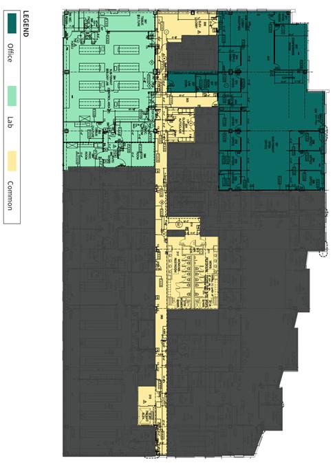
Subleased Premises. Sublessor hereby subleases to Sublessee, and Sublessee hereby subleases from Sublessor, a portion of the Premises consisting of approximately 14,432 RSF of space consisting of a portion of the third floor identified as the “office” and “lab” areas on Exhibit B attached hereto (hereinafter, the “Subleased Premises”). Sublessor and Sublessee acknowledge that Master Lessor has a one-time right to remeasure the Premises as described in Section 1.2 of the Master Lease. If Master Lessor exercises such right and the square footage of the Premises and/or Building are different from those set forth in the Master Lease, the square footage of the Subleased Premises and the related amounts and percentages set forth herein shall be correspondingly adjusted (including the Base Rent) as provided in Section 1.2 of the Master Lease, as incorporated herein. Sublessor and Sublessee hereby acknowledge and agree that the rentable square footage of the Subleased Premises shall not increase by more than one percent (1%) from the rentable square footage stated herein as a result of the remeasurement by Master Lessor pursuant to Section 1.2 of the Master Lease.
B.
Shared Areas. In connection with its use of the Subleased Premises, and subject to Sublessor’s reasonable rules and regulations, Sublessee shall have the non-exclusive right to use (i) its pro rata share based on the square footage of the Subleased Premises to the square footage of the Premises (“Pro Rata Share”) of the portions of the first floor chemical storage area, service yard and penthouse (“Zone 2”) serving the Premises (except that Sublessee’s Pro Rata Share of Zone 2 shall be determined based on the square footage of the Subleased Premises to the square footage of the portion of the Premises located on the third floor), on the terms set forth in the Master Lease, as incorporated herein and (ii) those certain areas marked as “common” on Exhibit B attached hereto, including, without limitation, Sublessor’s glass wash/autoclave facility adjacent to the Subleased Premises, subject to Sublessor’s reasonable scheduling requirements, the freight elevator at the Premises and the vivarium (the “Shared Areas”). Sublessee shall also have the non-exclusive right to use the Common Areas (as defined in the Master Lease) of the Building and Project in accordance with the terms and conditions of the Master Lease.

3.
Term:
A.
The term (the “Term”) of this Sublease shall be for the period commencing on the later to occur of (i) March 22, 2023, (ii) Sublessor’s completion of a door and wall installation separating the Premises from the Subleased Premises in accordance with applicable law and the applicable terms and conditions of the Master Lease, (iii) Sublessor’s delivery of possession of the Subleased Premises to Sublessee in vacant, broom cleaned condition and otherwise in the condition described in Paragraph 7 below and with Sublessor having performed all of the obligations in clauses (i) through (iii) of Section 5.3.3 of the Master Lease with respect to the Subleased Premises and (iv) receipt of Master Lessor’s written consent to this Sublease in the form required in Paragraph 19 below (such date, the “Sublease Commencement Date”) through September 30, 2026 (the “Expiration Date”), unless this Sublease is sooner terminated pursuant to its terms or the Master Lease is sooner terminated pursuant to its terms.
B.
Early Access. To the extent permitted under the Master Lease and so long as such access does not interfere with Master Lessor’s or Sublessor’s work in the Premises or the Building, Sublessor shall permit Sublessee to enter the

Subleased Premises prior to the Commencement Date solely for the purpose of preparing the Subleased Premises for occupancy and not for the purpose of conducting business therein, provided (i) Master Lessor’s consent to this Sublease has been received, (ii) Sublessee has delivered to Sublessor the Security Deposit and the initial Base Rent as required under Paragraph 4 and (iii) Sublessee has delivered to Sublessor evidence of all insurance required under this Sublease.

4.
Rent:
A.
Base Rent. Commencing on the Commencement Date, Sublessee shall pay to Sublessor the following amounts as monthly rent for the Subleased Premises the “Base Rent”):

Month

Monthly Base Rent per RSF

Total Monthly Base Rent

Total Annual Rent

Months 1 – 12

$7.50

$108,240.00

$1,298,880.00

Months 13 – 24

$7.76

$111,992.32

$1,343,907.94

Months 25 – 36

$8.03

$115,888.96

$1,390,667.52

Months 37 – Expiration Date

$8.31

$119,929.92

   $839,509.44

Base Rent and Additional Rent, as defined in Paragraph 4.B below, with the exception of the initial Base Rent as provided in Paragraph 4.C below, shall be paid on or before the first (1st) day of each month. Base Rent and Additional Rent shall be payable without notice or demand and without any deduction, offset, or abatement, in lawful money of the United States of America. Base Rent and Additional Rent shall be paid directly to Sublessor at the applicable address set forth below Sublessor’s signature to this Sublease or such other address as may be designated in writing by Sublessor. Base Rent and Additional Rent for any period during the Term hereof which is for less than one (1) month of the Term shall be a pro rata portion of the monthly installment based on a thirty (30) day month. If an increase in Base Rent becomes effective on a date other than the first day of a calendar month, the Base Rent for that month shall be the sum of the two applicable rates, each prorated for the portion of the month during which the rate is in effect.

B.
Additional Rent. Sublessee shall also pay to Sublessor Sublessee’s Pro Rata Share of any amounts payable by Sublessor to Master Lessor as “Direct Expenses” (as defined in Section 4.2.2 of the Master Lease) and costs of utilities under Section 6.2 of the Master Lease, as incorporated herein, with respect to the Subleased Premises shall be paid by Sublessee hereunder as and when such amounts are due under the Master Lease, as incorporated herein. Sublessee shall be entitled to its Pro Rata Share of all credits, if any, given by Master Lessor to Sublessor for Sublessor’s overpayment of such expenses. Sublessee shall also pay Sublessor its Pro Rata Share, within thirty (30) days of request by Sublessor, of Sublessor’s actual and reasonable cost of maintaining and operating the autoclave/glass wash facility and in performing any repairs or providing other services to the Shared Areas (such as maintenance of any systems therein but excluding any capital improvements or expenditure), and shall pay the entire cost of such amounts to the extent due to the misuse or excess use or negligence, willful misconduct or violation of this Sublease by Sublessee or its agent, employee, or contractor. All such amounts shall be deemed additional rent (“Additional Rent”). Base Rent and Additional Rent hereinafter collectively shall be referred to as “Rent.” Notwithstanding anything to the contrary in the Sublease, Sublessee shall not be required to pay any Rent or perform any obligation that is required as a result of a default by Sublessor of any of its obligations under the Master Lease (except to the extent such default was due to the negligence, willful misconduct or violation of this Sublease by Sublessee) or the misuse, negligence or willful misconduct of Sublessor or its agents, contractors or invitees or the violation of law by Sublessor.
C.
Payment of Initial Base Rent. Upon execution hereof by Sublessee and assuming the Sublease Commencement Date occurs before April 1, 2023, Sublessee shall pay to Sublessor the appropriate Initial Base Rent for the month of March calculated on the pro rata portion of the monthly installment using a thirty (30) day month.

5.
Security Deposit:
A.
Upon execution hereof by Sublessee, Sublessee shall provide a cash security deposit equal to Four Hundred Thirty-Two Thousand Nine Hundred Sixty Dollars ($432,960) (the “Security Deposit”), in cash, as security for the performance by Sublessee of the terms and conditions of this Sublease. If Sublessee fails to pay Rent or other charges due

hereunder or otherwise defaults with respect to any provision of this Sublease beyond any applicable notice and cure period, then Sublessor may draw upon, use, apply or retain all or any portion of the Security Deposit for the payment of any Rent or other charge in default, for the payment of any other sum which Sublessor has become obligated to pay by reason of Sublessee’s default, or to compensate Sublessor for any loss or damage which Sublessor has suffered thereby. If Sublessor so uses or applies all or any portion of the Security Deposit, then Sublessee, within ten (10) days after demand therefor, shall deposit cash with Sublessor in the amount required to restore the Security Deposit to the full amount stated above. Upon the expiration of this Sublease, Sublessor shall return to Sublessee so much of the Security Deposit as has not been applied by Sublessor pursuant to this paragraph, or which is not otherwise required to cure Sublessee’s defaults. Notwithstanding anything to the contrary contained herein, the amount of the Security Deposit required hereunder will be reduced to Two Hundred Sixteen Thousand Four Hundred Eighty Dollars ($216,480), for the first sixty (60) days following the Commencement Date provided that Sublessee shall provide the Letter of Credit or a cash Security Deposit equal to the full amount prior to the expiration of such sixty (60) day period. If Sublessee elects to provide a Letter of Credit, Sublessor shall return the Security Deposit to Sublessee within ten (10) days of delivery of the Letter of Credit.

 

B.
In lieu of the cash Security Deposit described above, the Security Deposit may be in the form of an irrevocable letter of credit (the “Letter of Credit”) in an amount equal to Four Hundred Thirty-Two Thousand Nine Hundred Sixty Dollars ($432,960), issued to Sublessor, as beneficiary, in form and substance reasonably satisfactory to Sublessor, by a bank reasonably approved by Sublessor, in which case, the Letter of Credit shall serve as the Security Deposit under this Sublease. Sublessee shall maintain the Letter of Credit for the entire Term, provided that Sublessee may at any time substitute a cash Security Deposit for the Letter of Credit, and upon such substitution, Sublessor shall return the Letter of Credit to Sublessee. The Letter of Credit shall provide that it will be automatically renewed until thirty (30) days after the Expiration Date unless the issuer provides Sublessor with written notice of non-renewal at the notice address herein at least sixty (60) days prior to the expiration thereof. If, not later than thirty (30) days prior to the expiration of the Letter of Credit, Sublessee fails to furnish Sublessor with a replacement Letter of Credit pursuant to this section, Sublessor shall have the right to draw the full amount of the Letter of Credit, and shall hold the proceeds of the Letter of Credit as a cash Security Deposit pursuant to Paragraph 5.A above. Except as set forth in the preceding sentence, Sublessor shall only draw upon the Letter of Credit following an Event of Default and only to the extent required to cure an Event of Default. If Sublessor draws upon the Letter of Credit (i) solely due to Sublessee’s failure to renew the Letter of Credit at least thirty (30) days before its expiration, such failure to renew shall not constitute a default hereunder and (ii) Sublessee shall at any time thereafter be entitled to provide Sublessor with a replacement Letter of Credit that satisfies the requirements hereunder, at which time Sublessor shall return the cash proceeds of the original Letter of Credit drawn by Sublessor. If Sublessor improperly draws upon the Letter of Credit or misapplies the Letter of Credit proceeds, Sublessee shall have the right to offset such amounts against rent.

6.
Holdover: In the event that Sublessee does not surrender the Subleased Premises by the Expiration Date in accordance with the terms of this Sublease, Sublessee shall indemnify, defend, protect and hold harmless Sublessor from and against all loss and liability resulting from Sublessee’s delay in surrendering the Subleased Premises and pay Sublessor holdover rent with respect to the Subleased Premises as provided in Section 16 of the Master Lease, as incorporated herein.

7.
Conditions of the Subleased Premise; Repairs: Sublessor shall deliver the Subleased Premises in broom-clean condition and with all Building systems, including but not limited to, HVAC, plumbing, roof/roof membrane, emergency generator, and electrical systems in good working condition and repair. Sublessee shall otherwise accept the premises in as-is condition, subject to Paragraph 3.A above. The parties acknowledge and agree that Sublessor has made no representations or warranties with respect to the condition of the Subleased Premises. Except as provided in this Sublease, Sublessor shall have no obligation whatsoever to make or pay the cost of any alterations, improvements or repairs to the Subleased Premises, including, without limitation, any improvement or repair required to comply with any law. Master Lessor shall be solely responsible for performance of any repairs required to be performed by Master Lessor under the terms of the Master Lease. Sublessor shall, however, upon written request by Sublessee, use Sublessor’s reasonable efforts (without requiring Sublessor to spend more than a nominal sum) to obtain Master Lessor’s performance. Sublessor shall continue to repair and maintain in good condition and working order (i) the Shared Areas and equipment and fixtures located therein, including, without limitation, the autoclave/glass wash facility, (ii) the security system serving the Premises and Subleased Premises and (iii) any other systems serving the Premises and the Subleased Premises in common (except for Landlord Repair Obligations). Sublessor shall further be responsible for the repair and maintenance

obligations of “Tenant” under the Master Lease with respect to the Subleased Premises, except to the extent the same result from the misuse or excess use or negligence, willful misconduct or violation of this Sublease by Sublessee, and, subject to Paragraph 4.B above, Sublessee shall reimburse Sublessor for the actual and reasonable cost thereof (except for any capital improvements) upon not less than thirty (30) days prior written request from Sublessor accompanied by reasonably detailed invoices and supporting documentation for such costs.

8.
Assignment and Subletting. Sublessee may not assign this Sublease, sublet the Subleased Premises, transfer any interest of Sublessee therein or permit any use of the Subleased Premises by another party (collectively, “Transfer”), without the prior written consent of Sublessor and Master Lessor (to the extent required under the Master Lease), which consent of Sublessor shall not be unreasonably withheld, conditioned or delayed (unless Master Lessor withholds its consent); provided, however, Sublessor’s consent shall not be required for a transfer as described in the first sentence of Section 14.8 of the Master Lease, as incorporated herein. Any Transfer shall be subject to the terms of Section 14 of the Master Lease, as incorporated herein.

9.
Use: Sublessee may use the Subleased Premises only for the following uses: all uses permitted under the Master Lease, including, without limitation, general office, laboratory, research and development, engineering, lab scale manufacturing activities and vivarium uses and related uses and other lawful uses reasonably related to or incidental to such specified uses, all consistent with first class life sciences projects in South San Francisco, California and further in compliance with, and subject to, applicable laws and the terms of the Master Lease and this Sublease. Sublessee shall not use, store, transport or dispose of any Hazardous Materials (as defined in the Master Lease) in or about the Premises except as permitted pursuant to the terms and conditions of Section 5.3 of the Master Lease, as incorporated herein. Sublessee shall comply with all reasonable rules and regulations promulgated from time to time by Sublessor and Master Lessor.

10.
Delivery and Acceptance: If Sublessor fails to deliver possession of the Subleased Premises to Sublessee on or before the date set forth in Paragraph 3.A hereof for any reason whatsoever, then this Sublease shall not be void or voidable, nor shall Sublessor be liable to Sublessee for any loss or damage; provided, however, that in such event, Rent shall abate until Sublessor delivers possession of the Subleased Premises to Sublessee and causes the Sublease Commencement Date to occur. In addition, the provisions of the last sentence of Section 2.1 of the Master Lease, as incorporated herein, shall apply (but the applicable deadline dates shall not be extended by any “Tenant Delay” under the Master Lease except to the extent caused by an act or omission by Sublessee). If the Subleased Premises are not delivered in good condition and in compliance with all laws as set forth in the last two sentences of Section 1.1.1 of the Master Lease incorporated herein, upon written request by Sublessee, Sublessor shall use commercially reasonable efforts to cause Master Lessor to correct the same at no cost to Sublessee (through Direct Expenses or otherwise).

11.
Improvements: No alteration or improvements shall be made to the Subleased Premises, except in accordance with the Master Lease, and with the prior written consent of both Master Lessor and Sublessor. Sublessor’s consent shall not be unreasonably withheld, conditioned or delayed, but the consent of Sublessor may be withheld if Master Lessor’s consent is not obtained.

12.
Insurance: Waiver of Subrogation: Sublessee shall obtain and keep in full force and effect, at Sublessee’s sole cost and expense, during the Term, the insurance required under Section 10 of the Master Lease. Sublessee shall name Master Lessor and Sublessor as additional insureds under its liability insurance policy. The release and waiver of subrogation set forth in Section 10.5 of the Master Lease, as incorporated herein, shall be binding on the parties.

13.
Default; Remedies: Sublessee shall be in material default of its obligations under this Sublease if Sublessee commits any act or omission which constitutes an event of default under the Master Lease, which has not been cured after delivery of written notice and passage of any applicable grace period provided in the Master Lease as modified, if at all, by the provisions of this Sublease. In the event of any default by Sublessee, Sublessor shall have all remedies provided pursuant to Section 19.2 of the Master Lease and by applicable law.

14.
Surrender: Prior to expiration of this Sublease, Sublessee shall remove all of its trade fixtures and shall surrender the Subleased Premises to Sublessor in good condition, with any clean-up required under the Master Lease with respect to Hazardous Materials (as defined in the Master Lease) caused by Sublessee completed, reasonable wear and tear, casualty and condemnation excepted. If the Subleased Premises are not so surrendered, then Sublessee shall be liable to Sublessor for all costs incurred by Sublessor in returning the Subleased Premises to the required condition.

15.
Dual Representation; Broker: Sublessor and Sublessee each represent to the other that they have dealt with no real estate brokers, finders, agents or salespersons other than CBRE and that Chris Jacobs and Matt Jacobs of CBRE represent the Sublessor while Damon Schor of CBRE represents the Sublessee, respectively in the Sublease transaction and therefore CBRE is acting as a dual agent. Sublessee and Sublessor hereby confirm that each party was timely advised of the dual representation, consents to the same, and do not expect CBRE to disclose to either party the confidential information of the other. Both parties agree to hold the other party harmless and shall indemnify and defend the other against from and against all claims for brokerage commissions, finder’s fees or other compensation made by any other agent, broker, salesperson or finder as a consequence of such party’s actions or dealings with such agent, broker, salesperson, or finder.

16.
Notices: Unless at least five (5) days’ prior written notice is given in the manner set forth in this paragraph, the address of each party for all purposes connected with this Sublease shall be the applicable address set forth below its signature at the end of this Sublease. All notices, demands or communications in connection with this Sublease shall be (a) personally delivered; or (b) properly addressed and (i) submitted to an overnight courier service, charges prepaid, or (ii) deposited in the mail (certified, return receipt requested, and postage prepaid). Notices shall be deemed delivered upon receipt, if personally delivered, one (1) business day after being submitted to an overnight courier service and three (3) business days after mailing, if mailed as set forth above. All notices given to Master Lessor under the Master Lease shall be considered received only when delivered in accordance with the Master Lease.

17.
Miscellaneous: Sublessor has not had an inspection of the Premises performed by a Certified Access Specialist as described in California Civil Code § 1938.

18.
Other Sublease Terms:
A.
Incorporation By Reference. Except as set forth below, the terms and conditions of this Sublease shall include all of the terms of the Master Lease and such terms are incorporated into this Sublease as if fully set forth herein, except that: (i) each reference in such incorporated sections to “Lease” shall be deemed a reference to “Sublease”; (ii) each reference to the “Premises”, “Lease Term” and “Base Rent” shall be deemed a reference to the “Subleased Premises”, “Term” and Base Rent under this Sublease, respectively; (iii) each reference to “Landlord” and “Tenant” shall be deemed a reference to “Sublessor” and “Sublessee”, respectively, except as otherwise expressly set forth herein; (iv) with respect to work, services, repairs, restoration, insurance, indemnities (except for the indemnity by Sublessor pursuant to the second to last sentence of Section 10.1 of the Master Lease, incorporated herein), representations, warranties or the performance of any other obligation of Master Lessor under the Master Lease, the sole obligation of Sublessor shall be to request the same in writing from Master Lessor as and when requested to do so by Sublessee, and to use Sublessor’s reasonable efforts (without requiring Sublessor to spend more than a nominal sum) to obtain Master Lessor’s performance; (v) with respect to any obligation of Sublessee to be performed under this Sublease, wherever the Master Lease grants to Sublessor a specified number of days to perform its obligations under the Master Lease, except as otherwise provided herein, Sublessee shall have three (3) fewer days to perform the obligation, including, without limitation, curing any defaults, or one-half the time period permitted under the Master Lease (rounding up for partial days), which ever allows Sublessee the greater amount of time; (vi) with respect to any approval required to be obtained from the “Landlord” under the Master Lease, such consent must be obtained from both Master Lessor and Sublessor, and the approval of Sublessor may be withheld if Master Lessor’s consent is not obtained; (vii) in any case where the “Landlord” reserves or is granted the right to manage, supervise, control, repair, alter, regulate the use of, enter or use the Premises or any areas beneath, above or adjacent thereto, perform any actions or cure any failures, such reservation or right shall be deemed to be for the benefit of both Master Lessor and Sublessor; (viii) in any case where “Tenant” is to indemnify, release or waive claims against “Landlord”, such indemnity, release or waiver shall be deemed to run from

Sublessee to both Master Lessor and Sublessor; (ix) in any case where “Tenant” is to execute and deliver certain documents or notices to “Landlord”, such obligation shall be deemed to run from Sublessee to both Master Lessor and Sublessor, (x) all payments shall be made to Sublessor; and (xi) Sublessee shall pay all consent and review fees set forth in the Master Lease (with respect to a further subleasing of the Subleased Premises, an assignment of the Sublease or alterations constructed by Sublessee) to Master Lessor only, subject to any caps.

Notwithstanding the foregoing, (a) the following provisions of the Master Lease shall not be incorporated herein: Summary of Basic Lease Information (except for item 2.1), Sections 1.1.1(the first two sentences only), 1.1.2 (the first sentence only), 1.3,2.1, 2.2, 4.1.2, 4.6, 5.3.1.4.3 (except with respect to the indemnity for Hazardous Materials Released by Sublessor and the nonliability provisions with respect to Hazardous Materials that exist in, on or about the Project as of the date hereof or Hazardous Materials Released by Master Lessor or any “Landlord Parties” under the Master Lease), 6.2(the last sentence only), 7.3, 10.7, 10.8, 14.4, 18(first and third sentences only), 21, 23.1 (subpart (iv) and the second to last sentence only), 29.18 and 29.24 and Exhibits B(except Section 9, as to which Sublessee may only use its Pro Rata Share as designated by Sublessor) and G-H; (b) references in the following provisions to “Landlord” shall mean Master Lessor only: Sections 1.1.1(the last sentence only), 1.1.2(iv), 1.1.3, 1.2 (except the last sentence), 4.2.3, 4.2.4, 4.3, 5.2, 6.1(the first sentence only), 6.5 (the first two sentences only), 6.6(the first two sentences only), 7.2, 8.4 (the last reference in the first sentence only), 10.2, 11.1 (the second and third sentences only), 11.2 (except the last reference), 13 (the first sentence only), 23.1 (subpart (1) and the last sentence only), 28,29.13 (the first sentence only), 29.26 (the first sentence only) and 29.29.1; (c) references in the following provisions to “Landlord” shall mean Master Lessor and Sublessor: Sections 4.5, 5.3.1.2-4, 5.3.2,6.4, 8.5 (the last sentence only); 10.4, 17, 24(the third sentence only) and 26.2; (d) the last two (2) references to “Landlord” in the second sentence of Section 10.1 of the Master Lease shall mean Master Lessor or Sublessor; (e) references to the “Permitted Use” shall mean the use permitted under Section 9 above; (f) the number of parking spaces in Section 9 of the Summary of Basic Lease Information (as referenced in Section 28 of the Master Lease) shall be 42; (g) Tenant’s Share shall mean 9.84% as to the Building and 18.95% as to the Premises; (h) subject to Master Lessor’s approval, Sublessor agrees that Atomic AI and Atomic AI, Inc. are not Objectionable Names; and (i) in Section 14.3, Sublessee shall pay Sublessor the entire premium payable to Master Lessor under the Master Lease, plus fifty percent (50%) of any remaining Transfer Premium.

B.
Assumption of Obligations. This Sublease is and at all times shall be subject and subordinate to the Master Lease and the rights of Master Lessor thereunder. Sublessee hereby expressly assumes and agrees: (i) to comply with all provisions of the Master Lease which are incorporated hereunder; and (ii) to perform all the obligations on the part of the “Tenant” to be performed under the terms of the Master Lease during the Term of this Sublease which are incorporated hereunder. In the event the Master Lease is terminated for any reason whatsoever, this Sublease shall terminate simultaneously with such termination without any liability of Sublessor to Sublessee. Notwithstanding the foregoing, Sublessor shall not, without Sublessee’s prior written consent, terminate the Master Lease (except as set forth in Paragraph 20 below or if Master Lessor agrees to allow Sublessee to continue to occupy the Subleased Premises for the remaining Term on the terms of this Sublease), commit any acts that would entitle Master Lessor to terminate the Master Lease, or amend or waive any provisions of the Master Lease or make any elections, exercise any right or remedy or give any consent or approval under the Master Lease in each case that would adversely affect Sublessee’s use or occupancy of the Subleased Premises or increase Sublessee’s liability hereunder. In the event of a conflict between the provisions of this Sublease and the Master Lease, as between Sublessor and Sublessee, the provisions of this Sublease shall control. In the event of a conflict between the express provisions of this Sublease and the provisions of the Master Lease, as incorporated herein, the express provisions of this Sublease shall prevail.

19.
Conditions Precedent: This Sublease and Sublessor’s and Sublessee’s obligations hereunder are conditioned upon the written consent of Master Lessor. Unless waived by Sublessee in writing (which waiver shall be deemed to have been made upon Sublessee’s and Sublessor’s execution of Master Lessor’s consent form), such consent shall provide that (i) Sublessee shall be permitted to use the Hazardous Materials specifically listed on the Environmental Questionnaire completed by Sublessee as attached hereto as Exhibit D (as the same may be updated from time to time as permitted in Section 5.3 of the Master Lease), (ii) the terms of Section 10.5 of the Master Lease (Mutual Waiver of Subrogation) shall also apply as between Master Lessor and Sublessee, (iii) the terms of Section 14.8 of the Master Lease shall also apply to Sublessee such that an assignment or subletting of the Subleased Premises to a Permitted Transferee of Sublessee shall not be deemed a Transfer under the Master Lease so long as the conditions set forth in Section 14.8 of the Master Lease, as incorporated herein, are satisfied, (iv) Sublessee shall have the signage rights described in Section 23.1(i)-(iii) of the Master Lease and Atomic AI and Atomic AI, Inc. are not Objectionable Names. If Sublessor fails to obtain Master Lessor’s consent within thirty (30) days after execution of this Sublease by Sublessor, then Sublessor or Sublessee may terminate this Sublease by giving the other party written notice thereof, and Sublessor shall return to Sublessee its

payment of the initial Base Rent paid by Sublessee pursuant to Paragraph 4.C hereof and the Security Deposit. Sublessor shall pay all consent and review fees set forth in the Master Lease for Master Lessor’s consent to the subletting hereunder.

20.
Termination; Recapture: Notwithstanding anything to the contrary herein, Sublessee acknowledges that, under the Master Lease, both Master Lessor and Sublessor have certain termination and recapture rights, including, without limitation, in Sections 11, 13 and 14 (Master Lessor only). Nothing herein shall prohibit Master Lessor or Sublessor from exercising any such rights and neither Master Lessor nor Sublessor shall have any liability to Sublessee as a result thereof. In the event Master Lessor or Sublessor exercise any such termination or recapture rights, this Sublease shall terminate without any liability to Master Lessor or Sublessor.

21.
Parking, and Signage. Sublessee shall have the right to park in 36 parking spaces in the on-site parking lot and garage that serves the Building as provided in Section 28 of the Master Lease, as incorporated herein. Subject to Master Lessor’s and Sublessor’s consent (with Sublessor’s consent not to be unreasonably withheld, conditioned or delayed), and provided that the same violate any applicable regulations governing signage on the property, including the City of South San Francisco, Sublessee shall have the signage rights described in Section 23.1(i)-(iii) of the Master Lease, as incorporated herein. Furthermore, Sublessee may, at its sole cost and expense, install its signs in the third-floor lobby and directional signage in the building lobby. Additionally, Sublessee shall have the right to install a reception kiosk in the third-floor lobby.

22.
Furniture, Fixtures and Equipment: Sublessee shall have the right to use the existing furnishings and equipment within the Subleased Premises, as such furniture and other equipment and their quantities are enumerated and listed on Exhibit C.I attached hereto (the “At No Cost Furniture and Equipment”), at no additional cost through the Term. Sublessee shall be responsible for removing and storing any unwanted said At No Cost Furniture and Equipment. The At No Cost Furniture and Equipment is provided in its “AS IS, WHERE IS” condition, without representation or warranty whatsoever. Sublessee shall insure the At No Cost Furniture and Equipment under the property insurance policy required under the Master Lease, as incorporated herein, and pay all taxes with respect to the At No Cost Furniture and Equipment. Sublessee shall maintain the At No Cost Furniture and Equipment in good condition and repair, reasonable wear and tear excepted, and shall be responsible for any loss or damage to the same occurring during the Term. Sublessee shall surrender the At No Cost Furniture and Equipment to Sublessor upon the termination of this Sublease in the same condition as exists as of the Commencement Date, reasonable wear and tear excepted.

23.
HVAC, Janitorial and Other Operational Services: Sublessee acknowledges that HVAC service is not separately zoned to the Subleased Premises. Subject to Section 6.3 of the Master Lease, as incorporated herein, HVAC shall be provided (a) to the vivarium on a 24/7 basis and to the remainder of the Subleased Premises during normal business hours as reasonably determined by Sublessor, at levels reasonably determined by Sublessor to be normal for vivarium use in the vivarium and for office or laboratory use, as applicable, in the office and laboratory areas, and (b) at Sublessee’s sole cost and upon reasonable advance notice to Sublessor, at such other times as Sublessee may request. Sublessee acknowledges that HVAC service outside of normal business hours it requests may include service to portions of the Premises outside the Subleased Premises and Sublessee shall be responsible for the full cost of all such service. Sublessor shall provide janitorial services to the Premises (including, without limitation, the Subleased Premises) as required under Section 6.1 of the Master Lease (at least five nights per week), and Sublessee shall pay to Sublessor as Additional Rent Sublessee’s Pro Rata Share of the cost thereof in accordance with Paragraph 4.B above. Sublessee shall be responsible for any unique operational services that it elects to utilize at the Subleased Premises, such as telecommunications, environmental, health and safety monitoring, shipping and receiving.

24.
Sublessor Representations: Sublessor represents and warrants that (a) the Master Lease is in full force and effect, and there exists under the Master Lease no default beyond applicable notice and cure periods by either Sublessor, or to Sublessor’s knowledge, Master Lessor, nor, to Sublessor’s knowledge, has there occurred any event which, with the giving of notice or passage of time or both, could constitute such a default, and (b) the copy of the Master Lease attached hereto as Exhibit A is a true, correct and complete copy of the Master Lease.


25.
Access: Sublessee shall have access to the Subleased Premises twenty-four (24) hours a day, seven (7) days a week to the extent Sublessor is permitted such access under the Master Lease to the Premises.

26.
Confidentiality: Sublessor and Sublessee agree that the terms and conditions of this Sublease are sensitive and confidential information of the parties and agree not to disclose any terms of the Sublease or any information related to the Sublease to any third party unless both parties have agreed to such disclosure, if required by laws and regulations, any judicial proceeding and/or if such disclosure is required for the performance of the obligations of a party under this Sublease; provided, that, both parties may disclose this Sublease to its agents, employees, contractors, brokers, financial advisors and actual and potential lenders, investors, subtenants, sub-subtenants, assignees and purchasers.


 

 


IN WITNESS WHEREOF, the parties have executed this Sublease as of the day and year first above written.

SUBLESSOR:

SUBLESSEE:

CYTOMX THERAPEUTICS, INC.,

ATOMIC AI, INC.

a Delaware corporation

a Delaware corporation

By:

/s/ Lloyd Rowland

By:

/s/ Raphael Townshend

Name

:Lloyd Rowland

Name:

Raphael Townshend

Its:

General Counsel

Its:

CEO

Address for Notices:

Address for Notices:

151 Oyster Point Boulevard, Suite 400

329 Oyster Point Boulevard, 3rd floor

South San Francisco, California 94080

South San Francisco, California 94080

Attention: General Counsel

Attention: Raphael Townshend

Address for Payments:

151 Oyster Point Boulevard

South San Francisco, California 94080

Attention: Accounts Receivable

 



 

EXHIBIT A

Master Lease


 

 


EXHIBIT B

Floor Plan

[See attached]

 


img13886920_0.jpg 

 

 


 

 


 

EXHIBIT C

 

I.
Furniture and Equipment Provided at No Additional Cost

Office Furniture

68 standing desks

107 office chairs

4 small circle office tables

3 long conference tables

78 under desk filing cabinets

6 tall filing cabinets

5 large filing drawers

Lab Furniture/Equipment

1 Ice Maker Machine

1 Flammables Cabinet

1 -20 freezer

2 -30 freezers

2 4c deli fridge

1 large portable incubator

1 water bath

2 Fume Hoods

9 lab tables

21 lab stools

Yosemite

3 large TV

Intel NUC PC (GPU enhanced)

DSP

iPad (Room controller)

iPad (Room scheduler)

Joshua Tree

1 large TV


Intel NUC PC

iPad (Room controller)

iPad (Room scheduler)

IP Room

1 large TV

Intel NUC PC

iPad (Room controller)

Monitors

53

Desk monitor arms

46

Kitchen

Large TV

The items in the IDF and in the ceiling grid are:

9 Meraki MR53 wireless access points
2 Meraki MS350-48FP 48 port network switches
1 APC SRT3000RMXLT-NC UPS
2 APC AP8858NA3 PDUs

3 Chatsworth racks with cable management


 

 


EXHIBIT D

Environmental Questionnaire