EX-10.1 2 exhibit101-fourthamendme.htm EX-10.1 exhibit101-fourthamendme
Exhibit 10.1 FOURTH AMENDMENT TO LEASE THIS FOURTH AMENDMENT TO LEASE (the "Fourth Amendment") is entered on May 4, 2023 (the "Reference Date"), by and between 1900 ATRIUM ASSOCIATES, LP, a Delaware limited partnership ("Landlord"), and LIFE360, INC., a Delaware corporation ("Tenant"), whose address for purposes of this Fourth Amendment is 1900 S. Norfolk Street, Suite 310, San Mateo, California. RECITALS This Fourth Amendment is made with reference to the following facts and objectives: A. Landlord and Tenant entered into an Office Lease agreement dated as of September 12, 2019 (the “Original Lease”), which was modified by that First Amendment to Lease dated August 18, 2020 (the “First Amendment”), and modified by that Second Amendment to Lease dated January 10 2022 (the “Second Amendment”), and modified by that Third Amendment to Lease dated January 23, 2023 (the “Third Amendment”), and as assigned by that Landlord Consent to Assignment of Lease and Agreement dated April 1, 2023 (the “Assignment”), pursuant to which Tenant leases from Landlord and Landlord leases to Tenant approximately sixteen thousand seven hundred thirty-eight (16,738) rentable square feet (“rsf”) of space located on the Third (3rd) floor of that building in Suite 310 (the “Existing Premises”) located at 1900 South Norfolk Street, San Mateo, California (the "Building"), all as more particularly described in the Lease (as defined below). The Original Lease, as amended by the First Amendment, the Second Amendment, and the Third Amendment is collectively referred to herein as the “Lease”. All terms defined in the Lease when used herein shall have the meanings ascribed to such terms in the Lease unless expressly superseded by the terms of this Fourth Amendment. B. The Term of the Lease is presently set to expire on October 31, 2023. C. Landlord and Tenant desire to amend the Lease to, among other things, redefine the definition of Tenant, extend the Term for an additional period of thirty-seven (37) months, (ii) delete a portion of the Existing Premises and provide for Tenant’s surrender to Landlord of such portion of the Existing Premises, (iii) adjust the Monthly Base Rent, (iv) adjust Tenant’s Proportionate Share of Taxes and Operating Expenses, (v) add an option to extend the Term, and (iii) modify the Lease in certain other respects, all on the terms and conditions set forth herein. AGREEMENT NOW, therefore, in consideration of the mutual covenants and promises set forth in this Fourth Amendment, the receipt and sufficiency of which is hereby acknowledged, Landlord and Tenant do hereby agree as follows: 1. CERTAIN DEFINED TERMS. The following defined terms when used in this Fourth Amendment shall have the following meaning: a. The "Deleted Premises" means that portion of the Existing Premises containing 9,348 rentable square feet and shown outlined on the attached Exhibit A-1. b. The "Remaining Premises" means that portion of the Existing Premises containing 7,390 rentable square feet known as Suite 310 and shown outlined on the attached Exhibit A-2. 2. EFFECTIVE DATE. November 1, 2023 (the “Fourth Amendment Effective Date”).


 
2 3. EXTENSION OF TERM. The Term of the Lease is hereby extended for an additional thirty-seven (37) months (the "Extended Term") commencing on November 1, 2023 and ending on November 30, 2026 (the "Third Amendment Expiration Date"); provided that the Term with respect to the Deleted Premises shall terminate as provided in Section 6(a) below. During the Extended Term, all of the terms, covenants and conditions of the Lease shall be applicable, except as set forth herein. 4. BASE RENT; REMAINING PREMISES. During the Extended Term, Tenant shall pay Base Rent for the Remaining Premises as follows: For the Period Monthly Base Rent *November 1, 2023 through October 31, 2024 $31,408 November 1, 2024 through October 31, 2025 $32,350 November 1, 2025 through November 30, 2026 $33,321 *Notwithstanding anything to the contrary contained herein and provided that no default by Tenant occurs under the Lease, as amended hereby, beyond any applicable notice and cure period, Landlord hereby agrees that Tenant shall not be required to pay Base Rent for the Remaining Premises during the period commencing on November 1, 2023 and ending on November 30, 2023 (the "Abatement Period"). The total amount of Base Rent abated for the Remaining Premises during the Abatement Period shall not exceed $31,408. During the Abatement Period, Tenant shall still be responsible for the payment of all of its other monetary obligations under the Lease, as amended hereby, except as otherwise expressly set forth in this Fourth Amendment. In the event of a default by Tenant under the terms of the Lease, as amended hereby, that results in termination of the Lease in accordance with the provisions of Article 15 of the Original Lease, then as a part of the recovery set forth in said Article 15, Landlord shall be entitled to the immediate recovery, as of the day prior to such termination, of the Base Rent that was abated under the provisions of this Section 4. 5. ADDITIONAL RENT; REMAINING PREMISES. Tenant’s obligation to pay Tenant’s Percentage Share of Building Taxes and Building Operating Expenses with respect to the Remaining Premises shall remain as provided in the Lease, except that effective as of November 1, 2023, Tenant’s Percentage Share shall mean 4.51% with respect to the Remaining Premises (7,390 rsf / 164,013 rsf). 6. PARTIAL DELETION OF EXISTING PREMISES. a. Partial Deletion. The Lease shall terminate with respect to Deleted Premises effective 11:59 p.m. on the date that is the Substantial Completion Date (as defined below) for the Remaining Premises (the "Deletion Date"). b. Rent for Deleted Premises. Prior to November 1, 2023, Tenant shall continue to pay Base Rent for the Deleted Premises in the amount set forth in the Lease. Effective as of November 1, 2023 and continuing until the Deletion Date, Tenant shall pay (i) Base Rent for the Deleted Premises in the amount of $104,195 per month, and (ii) Tenant’s Percentage Share of Building Taxes and Building Operating Expenses with respect to the Deleted Premises in the manner set forth in the Lease. c. Surrender of Deleted Premises. On the Deletion Date, Tenant shall surrender the Deleted Premises to Landlord vacant and broom clean, with all trade fixtures, furniture, office equipment, and other equipment and personal property removed therefrom, and otherwise in the condition required by the Lease (with the same force and effect as if the Deletion Date were the expiration date under the Lease as respects the Deleted Premises). Tenant acknowledges that time is of the essence with respect to Tenant’s obligation to surrender the Deleted Premises to Landlord on or prior to the Deletion Date in the condition required above. Tenant’s failure to timely so surrender the Deleted Premises shall constitute a breach of and a default under the Lease (and no notice, grace or cure


 
3 period shall be applicable thereto), and a holdover of the Deleted Premises without Landlord’s consent for purposes of Article 14 of the Original Lease (and Tenant's obligation to pay Base Rent and Tenant's Percentage Share of Property Taxes and Operating Expenses and other amounts due with respect thereto pursuant to the Lease and said Article 14 shall continue during such holdover period). In addition, if the Deleted Premises shall not have been surrendered to Landlord in the condition required above, Landlord may, at its option and at Tenant’s expense, perform any or all work as shall be required to put the Deleted Premises in the condition required above (the "Restoration Work"). Landlord’s costs of the Restoration Work shall be reimbursed by Tenant within thirty (30) days after Tenant’s written demand, and Tenant’s failure to make such reimbursement when due shall constitute a breach of and a default under the Lease. d. Release. The later of the Deletion Date or the date on which Tenant shall surrender the Deleted Premises to Landlord in the condition required by this Section 6 (or, if applicable, such later date as Landlord shall complete the Restoration Work) is referred to herein as the "Surrender Date." Effective as of the Surrender Date, Tenant shall be released from its obligations thereafter arising under the Lease with respect to the Deleted Premises. Notwithstanding the foregoing, however, Tenant shall remain liable for its obligations with regard to the Deleted Premises that arise prior to the Surrender Date, and Tenant’s indemnification obligations under the Lease shall survive the deletion of the Deleted Premises from the Lease with regard to any events which occur prior to the Surrender Date. 7. CONDITION OF REMAINING PREMISES. Landlord shall deliver the Remaining Premises to Tenant with the Landlord Work (as such terms are defined in the Work Letter attached hereto as Exhibit B (the "Work Letter") completed. Except as set forth in this Section 7 and the Work Letter, Landlord shall have no obligation to make or pay for any alterations, additions, improvement or renovations in or to the Remaining Premises and Tenant shall continue to occupy the same in their as- is condition. 8. SECURITY DEPOSIT. Landlord and Tenant hereby acknowledge that Landlord presently holds a cash deposit in the amount of Two Hundred Thousand, Three Hundred Twenty-Four ($200,324) Dollars (the "Deposit"). The Deposit shall continue to be held by Landlord as security for the performance by Tenant of all of the provisions of the Lease, as amended hereby. Following an event of default by Tenant under the Lease, Landlord may use, apply or retain all or any portion of the Deposit for the payment of any rent or other charge in default, or the payment of any other sum to which Landlord may become obligated by Tenant's default, or to compensate Landlord for any loss or damage which Landlord may suffer thereby. If Landlord so uses or applies all or any portion of the Deposit, then within five (5) days after demand therefor Tenant shall deposit cash with Landlord in an amount sufficient to restore the Deposit to the full amount thereof, and Tenant's failure to do so shall be a material breach of the Lease. Landlord shall not be required to keep the Deposit separate from its general accounts. If Tenant performs all of Tenant's obligations hereunder, the Deposit, or so much thereof as has not theretofore been applied by Landlord, shall be returned, without payment of interest for its use, to Tenant (or, at Landlord's option, to the last assignee, if any, of Tenant's interest hereunder) at the expiration of the Term, and within thirty (30) days after Tenant has vacated the Remaining Premises. No trust relationship is created herein between Landlord and Tenant with respect to the Deposit. Landlord shall be entitled to commingle the Security Deposit with its other funds. Tenant and Landlord acknowledge and agree that their rights and remedies with respect to the Security Deposit shall be as provided in this Lease, and each of Landlord and Tenant hereby waive Section 1950.7 of the California Civil Code and any and all other similar statutes now existing or hereafter enacted.


 
4 9. OPTION TO RENEW. Subject to the provisions of this Section 9, Tenant shall have one (1) option ("Option") to extend the Term for a period of three (3) years (the "Option Term"). At the end of the Option Term, there shall be no other right to renew and the Lease shall terminate. a. Exercise of Option. Tenant shall exercise the Option, if at all, by giving Landlord an irrevocable written exercise notice not more than twelve (12) months and not less than nine (9) months prior to the expiration of the Extended Term, as defined herein. Notwithstanding the foregoing, Tenant shall not have the right to exercise the Option if (i) Tenant is in default under the Lease, as amended hereby, beyond any notice or cure period, at the time of the purported Option exercise, or (ii) Tenant or a Permitted Transferee, is not in occupancy of the entire Remaining Premises at the time the Option is exercised. The Option Term shall be upon all of the terms and conditions of the Lease, as amended hereby, except that the monthly Base Rent for such Option Term shall be in accordance with Section 9(b) below. Upon commencement of the Option Term, all references herein to the "Term" of the Lease, as amended hereby, shall be deemed to include the Option Term. Unless expressly mentioned and approved in the written consent of Landlord provided for by in the Lease, the option rights of Tenant under this Section 9 are personal to the original Tenant signing this Amendment (the "Original Tenant") and may not be assigned or transferred by Tenant. b. Base Rent. Base Rent for the Option Term (the "Option Term Base Rent"), in addition to other charges in additional rent due under the terms of the Lease, as amended hereby, shall be equal to one hundred percent (100%) of the Fair Market Rental of the Remaining Premises. The term "Fair Market Rental" for the purpose of this Section 9, shall mean and refer to the rate being charged by Landlord and other landlords at the time of exercise of the Option for non-renewal, non-expansion, then-current, comparable non-sublease, non-encumbered, non-equity space ("Comparable Space") in the Building and in other institutional quality office buildings in the vicinity of the Building ("Comparable Buildings"), similarly improved or if not similarly improved, adjusted to take into account any difference between the terms and conditions of the Lease, as amended hereby, and the terms and conditions of the leases for the Comparable Space including, without limitation, the value of the improvements in place, available tenant improvement allowances, free rent being offered, the floor level on which the premises are located, the length of the term, the extent of services to be provided to the premises, the date of lease execution and commencement, and any other material terms or conditions affecting the value thereof. The Fair Market Rental shall be mutually agreed upon by Landlord and Tenant in writing within thirty (30) days after Tenant exercises the Option. If Landlord and Tenant are unable to agree upon the Fair Market Rental within said thirty (30) day period, then the Fair Market Rental shall be established by appraisal in accordance with the procedures set forth in Section 9(c) below. c. Arbitration of Fair Market Rental. If Fair Market Rental is to be determined by appraisal, then, commencing nine (9) months prior to the start of the Option Term, Landlord and Tenant shall each appoint, as an appraiser, an independent real estate broker with at least five (5) years of experience in leasing office space for Comparable Buildings, and give notice of such appointment to the other. If either Landlord or Tenant shall fail timely to appoint an appraiser, the appointed appraiser shall select the second appraiser within ten (10) days after the failure of Landlord or Tenant, as the case may be, to appoint. Such appraisers shall, within fifteen (15) days after the appointment of the last of them to be appointed, complete their determinations of Fair Market Rental based on the criteria described above and submit their appraisal reports to Landlord and Tenant. If the valuations vary by five percent (5%) or less of the higher value, the Fair Market Rental shall be the average of the two valuations. If the valuations vary by more than five percent (5%) of the higher value, the two appraisers shall, within ten (10) days after submission of the last appraisal report, appoint a third appraiser who shall be similarly qualified and independent. If the two appraisers shall be unable to agree timely on the selection of a third appraiser, then either appraiser, on behalf of both, may request such appointment by the presiding judge of the Superior Court of California for the City and County


 
5 of San Mateo. The third appraiser independently shall, within thirty (30) days after his or her appointment, select the determination of Fair Market Rental that is determined by either Landlord's appraiser or Tenant's appraiser which such third appraiser believes is closest to the actual Fair Market Rental, and shall not make any "compromise" determination. Landlord and Tenant shall each pay the fees of their respective appraisers, or the appraiser selected on their behalf in the event Landlord or Tenant shall fail to timely appoint, as provided above. The fees of the third appraiser, if there be one, shall be paid one-half by Landlord and one-half by Tenant. 10. BROKERS. Landlord and Tenant hereby warrant to each other that they have had no dealings with any real estate broker or agent in connection with the negotiation of this Fourth Amendment other than Cushman & Wakefield, on behalf of Landlord (“Landlord’s Broker”), and that they know of no other real estate broker or agent who is entitled to a commission in connection with this Fourth Amendment. Except for Landlord’s Broker, the parties agree to indemnify and defend the other party against and hold the other party harmless from any and all claims, demands, losses, liabilities, lawsuits, judgments, costs and expenses (including without limitation reasonable attorneys' fees) with respect to any leasing commission or equivalent compensation alleged to be owing on account of any dealings with any real estate broker or agent (other than the Brokers) occurring by, through, or under the indemnifying party. The terms of this Section 10 shall survive the expiration or earlier termination of the Lease, as amended. 11. REPRESENTATIONS and WARRANTIES OF TENANT. As a material inducement to Landlord to enter into this Fourth Amendment, Tenant represents and warrants to Landlord that, as of the date of this Fourth Amendment: a. No Defaults. To the best of its knowledge, the Lease is in full force and effect. There are no defaults by Landlord or Tenant under the Lease, and no circumstance has occurred which, but for the expiration of an applicable grace period, would constitute an event of default by Landlord or Tenant under the Lease. Tenant has no defenses or rights of offset under the Lease. b. Authority. Tenant has full right, power and authority to enter into this Fourth Amendment, and has obtained all necessary consents and resolutions from its directors required under the documents governing its affairs in order to consummate this transaction, and the persons executing this Fourth Amendment have been duly authorized to do so. The Fourth Amendment and the Lease are binding obligations of Tenant, enforceable in accordance with their terms. c. No Assignments. Tenant is the sole lawful Tenant under the Lease, and Tenant has not sublet, assigned or otherwise transferred any of the right, title or interest of Tenant under the Lease or arising from its use or occupancy of the Existing Premises, and no other person, partnership, corporation or other entity has any right, title or interest in the Lease or the Existing Premises, or the right to occupy or use all or any part of the Existing Premises. 12. AMENDMENT TO LEASE. This Fourth Amendment is and shall constitute an amendment to the Lease and shall be effective as of the date of this Fourth Amendment. Except as modified hereby, all of the terms and conditions of the Lease shall remain in full force and effect. 13. EFFECTIVENESS OF LEASE. Except as expressly provided herein, nothing in this Fourth Amendment shall be deemed to waive or modify any of the provisions of the Lease, or any amendment or addendum thereto. In the event of any conflict between the Lease, this Fourth Amendment, or any other amendment or addendum thereof, the document later in time shall prevail. Except as amended herein, the Lease shall remain in full force and effect. 14. SUCCESSORS and ASSIGNS. This Fourth Amendment shall be binding upon and shall inure to the


 
6 benefit of the heirs, executors, administrators, successors and assigns of Landlord and Tenant. 15. COUNTERPARTS. This Fourth Amendment may be executed in any number of counterparts, each of which shall be deemed to be an original, and all of which counterparts, when taken together, shall be deemed to constitute one and the same instrument. Landlord and Tenant agree that electronic signatures (e.g. DocuSign or similar electronic signature technology) may be used in place of original signatures on this Lease All parties to this Fourth Amendment intend to be bound by the signatures on the electronic or e-mailed document, are aware that the other party or parties will rely on the electronic or e-mailed signatures, and hereby waive any defenses to the enforcement of the terms of this Fourth Amendment based on the form of signature. Copies of such executed counterparts may be delivered by the parties hereunder by electronic means, including by electronic mail transmission to the number or address provided by each such party for such delivery, and, upon confirmation of receipt of such delivery, such electronic copies shall have the same effect as the delivery of counterparts bearing original ink signatures of the parties hereto. The parties further agree that after execution this Fourth Amendment, it may be maintained in electronic form and that such electronic record shall be valid and effective to bind the party so signing as a paper copy bearing such party’s hand-written signature. IN WITNESS WHEREOF, the parties hereto have executed this Fourth Amendment as of the date herein below written. LANDLORD: TENANT: 1900 ATRIUM ASSOCIATES, LP, LIFE360, INC., a Delaware limited liability company a Delaware corporation By: SEAGATE ATRIUM GP, LLC By: /s/ Russell Burke a Delaware limited liability company Name: Its: general partner Its: By: /s/ Dennis P. Fisco Name: Dennis P. Fisco Its: Managing Member Russell Burke CFO


 
7 EXHIBIT A-1 Plan Not To Scale [End of Exhibit A-1]


 
8 EXHIBIT A-2 Plan Not To Scale [End of Exhibit A-2]


 
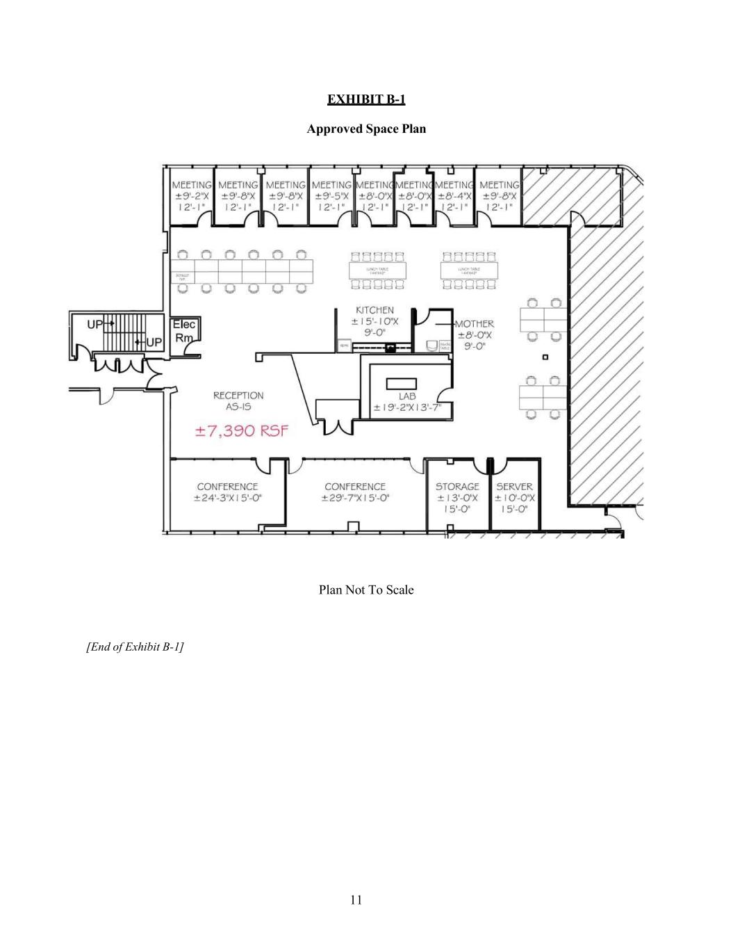
9 EXHIBIT B Work Letter The purpose of this Work Letter is to set forth the respective responsibilities of Landlord and Tenant with respect to the design and construction of the alterations, additions and improvements to the Remaining Premises identified on the space plan attached to this Fourth Amendment as Exhibit B-1. Such alterations, additions and improvements to the Remaining Premises are referred to in this Work Letter as the "Landlord Work." 1. Design and Approval of Landlord Work. Prior to the execution of the Fourth Amendment, Landlord and Tenant have approved the space plan attached to this Fourth Amendment as Exhibit B-1 (the "Approved Space Plan"). The Landlord Work to be done to the Remaining Premises shall generally include: (i) demising the Remaining Premises, (ii) creating a kitchenette, (iii) creating a Storage Room, (iv) creating a Server Room, (v) creating a Mother’s Room, and (vi) providing touch-up paint where needed, all as generally depicted on the attached plan attached hereto as Exhibit B-1. 2. Construction of Landlord’s Work. Following execution of the Fourth Amendment, Landlord shall engage a general contractor selected by Landlord to perform the Landlord Work substantially as shown on the Approved Space Plan, excepting only minor variations (i.e., variations which are not inconsistent with the intent of the Approved Space Plan) as Landlord may deem advisable and any Change Orders (as hereinafter defined) approved by Landlord. The Landlord Work shall be performed subject to the mutually agreed upon floorplan and finishes selected. 3. Substantial Completion. For purposes of the Amendment, the "Substantial Completion Date" shall mean the date that Landlord, its architect or construction manager determines that the Landlord Work has been completed, except for (a) finishing details, decorative items, minor omissions, mechanical adjustments, and similar items of the type customarily found on an architectural punch-list, the correction or completion of which will not substantially interfere with Tenant's occupancy and use of the Remaining Premises, and (b) any trade fixtures, workstations, telecommunications or built-in furniture or equipment to be installed by Tenant. Landlord shall notify Tenant of the Substantial Completion Date and, promptly thereafter, Landlord and Tenant shall set a mutually convenient time for Tenant, Landlord and the General Contractor to inspect the Remaining Premises and the Landlord Work. Upon completion of the inspection, Tenant shall acknowledge in writing that the Substantial Completion Date has occurred by executing a commencement date confirmation letter. In the event Tenant fails to inspect the Landlord Work within two (2) business days after Landlord's notice to Tenant of the Substantial Completion Date, or in the event Tenant fails to return a commencement date confirmation letter to Landlord within five (5) business days after Tenant's inspection, the Substantial Completion Date shall be deemed to have occurred on the date determined by Landlord and Tenant shall be bound by Landlord's statements regarding the matters contained in Landlord's commencement date memorandum. Further, Tenant's acceptance of possession of the Remaining Premises shall conclusively evidence its agreement that the Remaining Premises is in the condition required hereunder, except for punch-list items specified above. Landlord shall use commercially reasonable efforts to complete the punch-list items within thirty (30) days after the Substantial Completion Date; however, Landlord shall have no liability to Tenant for losses, costs or damages resulting from or attributable to delays in the completion by Landlord of punch-list items. Tenant shall cooperate with Landlord to facilitate completion of any punch-list items as quickly as possible. 4. Responsibility for Construction Costs. Landlord will perform the Landlord Work, except that all costs attributable to Change Orders requested or approved by Tenant shall be payable by Tenant. Tenant agrees that Landlord may condition its consent to any Change Orders on Tenant's payment to Landlord of the increased cost of the Landlord Work, if any, as a result thereof prior to commencing such


 
10 Change Orders. Any delay resulting from Tenant's failure to timely pay such amounts shall be a Tenant Delay. 5. Change Orders. Landlord will not unreasonably withhold its approval of (a) any request by Tenant to amend or change the Approved Space Plan, or (b) any change or amendment to the Approved Plans that may be necessary to obtain any permits, or which may be required by city officials or inspectors to comply with code rulings or interpretations (any of the foregoing, a "Change Order"), provided such Change Order does not diminish the quality of construction of the Landlord Work. Without limiting the generality of the foregoing, however, Tenant acknowledges that it shall not be unreasonable for Landlord to withhold consent to any Change Order if any one or more of the following situations exist: (1) the proposed Change Order will adversely affect the exterior appearance of the Building; or (2) the proposed Change Order may impair the structural strength of the Building, adversely affect any Building systems or materially adversely affect the value of the Building; or (3) the proposed Change Order would trigger the necessity under applicable laws or otherwise for work to be performed outside the Remaining Premises; or (4) the specifications for the proposed Change Order are not consistent with, or would detract from, the first-class character or image of the Building. No material changes or modifications to the Approved Space Plan shall be made unless by written Change Order signed by Landlord and Tenant. Tenant shall pay all costs attributable to Change Orders, including, without limitation, any project management charges incurred by Landlord as a result of such Change Order and any costs incurred by Landlord in reviewing proposed Change Orders. 6. Tenant Delay. To the extent any delay in the Substantial Completion Date is caused by or is attributable to (a) any Change Order request by Tenant to amend or change the Approved Space Plan, (b) Tenant's request for materials, components, finishes or installations which are not readily available within industry-standard lead times (for instance, items which must be custom-made or specially ordered), to the extent such items require time to procure beyond that taken for standard items, (c) Tenant's failure to comply with the deadlines for delivery to Landlord of the Space Plans or modifications thereto, or (d) any act, neglect, failure or omission of Tenant or any of Tenant's agents, which interferes with Landlord's ability to perform the Landlord Work, such delay shall constitute a "Tenant Delay"; and, notwithstanding anything to the contrary set forth in the Amendment or in this Work Letter and regardless of the actual Substantial Completion Date hereunder, the Substantial Completion Date and the Expansion Commencement Date shall be deemed to be the date the Substantial Completion Date and Commencement Date, respectively, would have occurred if no Tenant Delay(s) had occurred. Tenant shall be responsible for and shall pay any costs and expenses incurred by Landlord in connection with, or as a consequence of, any Tenant Delay, as well as any increases in the cost of construction of the Tenant Improvements attributable to Tenant Delay. 7. Ownership of Tenant Improvements. The Landlord Work shall be deemed, effective upon installation, to be a part of the Remaining Premises and the Building and shall be deemed to be the property of Landlord (subject to Tenant's right to use the same during the Extended Term), and shall be surrendered at the expiration or earlier termination of the Extended Term, unless Landlord shall have conditioned its approval of any Change Order on Tenant's agreement to remove any items thereof, in which event, prior to the expiration or termination of the Extended Term, the specified items shall be removed at Tenant's expense, any damage caused by such removal shall be repaired, and the Remaining Premises shall be restored to their condition existing prior to the installation of the items in question, normal wear and tear excepted. The removal, repair and restoration described above shall, at Landlord's sole election, be performed either by Tenant or by Landlord; and if such work shall be performed by Landlord, Tenant shall pay to Landlord, within twenty (20) days following Landlord's demand, the reasonable cost and expense of such work. [End of Exhibit B]


 
11 EXHIBIT B-1 Approved Space Plan Plan Not To Scale [End of Exhibit B-1]