EX-10.2 2 ex102_bi-watchfactoryxviri.htm EX-10.2 Document

Exhibit 10.2


SECOND AMENDMENT TO LEASE


This SECOND AMENDMENT TO LEASE (this "Amendment") is made as of the 13th day of April, 2022 (the “Effective Date”) by and between WATCH CITY VENTURES MT LLC, a Massachusetts limited liability company, having an address at c/o Berkeley Investments, Inc., 125 High Street, Suite 531, Boston, Massachusetts 02110 (“Landlord”), and VIRIDIAN THERAPEUTICS, INC., a Delaware corporation, having an address at 221 Crescent Street, , Suite 401, Waltham, Massachusetts 02453 (“Tenant”), as successor in interest to Viridian, LLC, a Massachusetts limited liability company (“Viridian LLC”).

REFERENCE is made to a certain Lease, dated January 13, 2020 by and between Landlord and Viridian LLC as Tenant’s predecessor in interest, pursuant to that certain Assignment and Consent Agreement entered into between the Landlord, Tenant and Viridian, LLC, dated September 27, 2020, as amended by that certain First Amendment to Lease dated July 6, 2021 by and between Landlord and Tenant (as amended, the “Lease”) for certain premises consisting of (a) approximately 1,087 rentable square feet on the first (1st) floor of Buildings #17, as shown as Suite 102B on the plan attached to the Lease as Exhibit A-1 (the “Suite 102 Premises”), and (b) approximately 3,284 rentable square feet on the fourth (4th) floor of Buildings #5A, as shown as Suite 401 on the plan attached to the Lease as Exhibit A-1 (the “Suite 401 Premises”).

WHEREAS, pursuant to the terms and conditions of the Lease, the term of the Lease with respect to the Suite 102 Premises is scheduled to expire as of February 28, 2023, as defined in Article 1 of the Lease as the “Suite 102 Termination Date (“S102TD”)”.

WHEREAS, pursuant to the terms and conditions of the Lease, the term of the Lease with respect to the Suit 401 Premises is scheduled to expire as of December 31, 2024, as defined in Article 1 of the Lease as the “Suite 401 Termination Date (“S401TD”)”.

WHEREAS, Tenant has requested to lease additional space in the Buildings within the Watch Factory Complex;

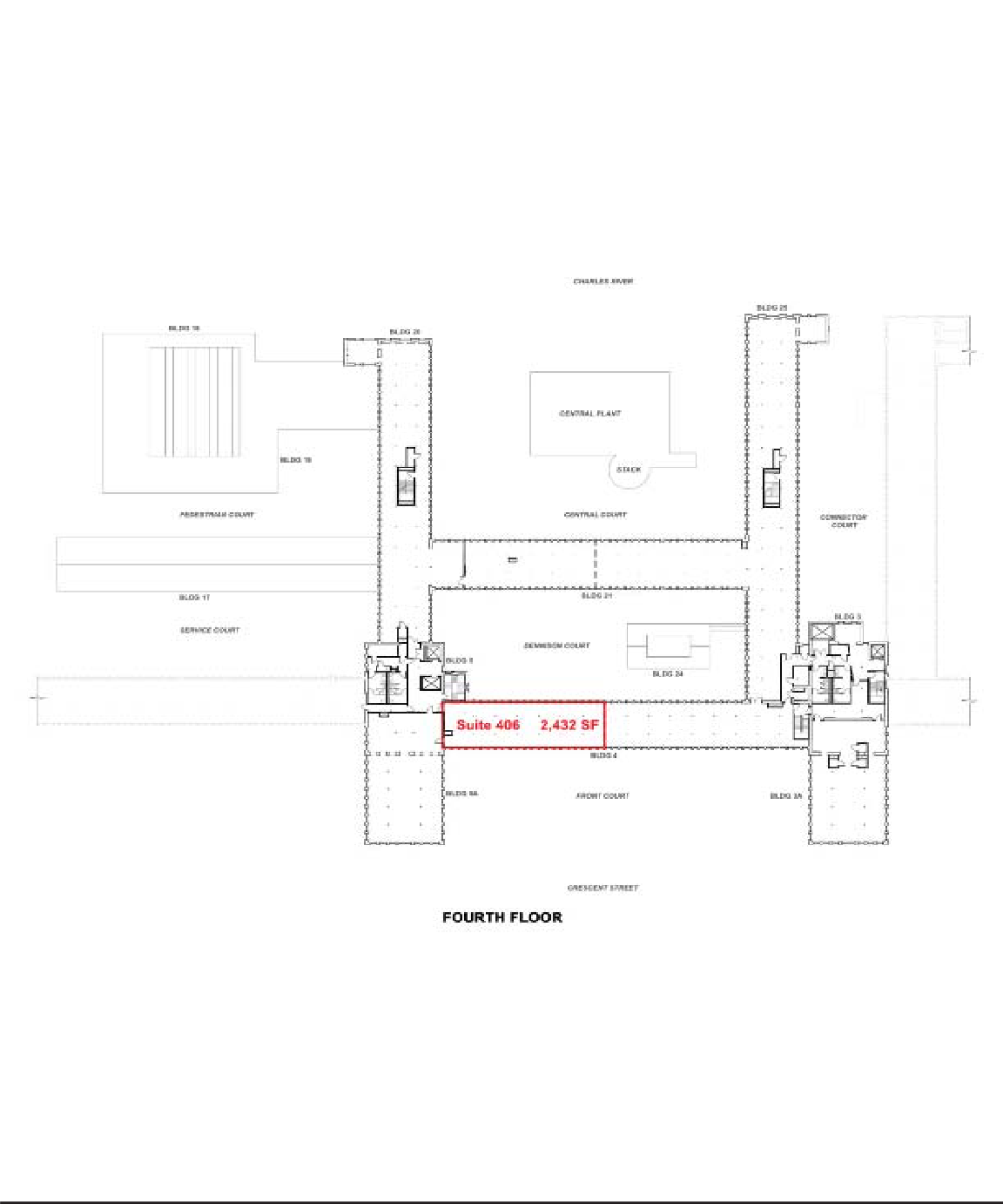
WHEREAS, Landlord has agreed to lease to Tenant, and Tenant has agreed to lease from Landlord an additional approximately 2,432 rentable square feet on the fourth (4th) floor of Buildings #4, as shown as Suite 406 on the plan attached hereto as Exhibit A (the “Suite 406 Premises”);

WHEREAS, Landlord and Tenant have agreed to (i) extend the term of the Lease with respect to the Suite 401 Premises, to be coterminous with the term of the Lease with respect to the Suite 406 Premises as set forth below, and (ii) terminate the term of the Lease with respect to the Suite 102 Premises as of the date which is seven (7) days after the delivery of the Suite 406 Premises as set forth below; and

WHEREAS, upon delivery of the Suite 406 Premises, the Premises under the Lease shall be deemed to collectively refer to the Suite 102 Premises, the Suite 401 Premises and the Suite 406 Premises, and upon the Suite 102 Termination Date (as amended below by this Amendment), the Premises shall be deemed to refer to the Suite 401 Premises and the Suite 406 Premises only.

WHEREAS, Tenant has agreed, except with respect to the completion of Landlord’s Suite 406 Premises Work, as further detailed herein and in accordance with this Amendment, to accept the Suite 406 Premises in its then current “as is” condition.






WHEREAS, Landlord and Tenant desire to amend the Lease to (i) amend the Premises to include the Suite 406 Premises, (ii) provide for the completion of Landlord’s Suite 406 Premises Work as provided herein, (iii) adjust the Base Rent, (iv) amend the Operating Costs Base Year with respect to the Suite 406 Premises; (v) amend the Tax Expenses Base Year with respect to the Suite 406 Premises, (vi) adjust the number of parking spaces available to Tenant, (vii) adjust Tenant’s Proportionate Share, and (viii) extend the term of the Lease with respect to the Suite 401 Premises and the Suite 406 Premises only, all in accordance with the terms and provisions as hereinafter set forth.

NOW, THEREFORE, in consideration of Tenant's agreement to pay additional Base Rent as hereinafter set forth, for other good and valuable consideration, the receipt and sufficiency of which are hereby acknowledged, and for the mutual promises hereinafter set forth, Landlord and Tenant agree to amend the Lease, effective as of the Effective Date, as follows:

1.Capitalized terms used herein and not otherwise defined shall have the meaning ascribed thereto in the Lease.

2.The following definitions shall be added to Article 1 (Definitions) of the Lease:

Suite 406 Premises Commencement Date (“S406PCD”):    The Suite 406 Premises Delivery Date. See Section 2.1.2 below.

Suite 406 Premises Rent Commencement Date (“S406PRCD”): The Suite 406 Premises Commencement Date.

Suite 406 Premises: Approximately 2,432 rentable square feet on the fourth (4th) floor of Buildings #4, as shown as Suite 406 on the plan attached hereto as Exhibit A

Suite 406 Premises Base Rent:

Period
RSF Paying Rent On
Base Rent
Yearly Base Rent
Monthly Base Rent
S406PRCD – End of
Lease Year 1

2,432

$41.00/RSF

$99,712.00

$8,309.33
Lease Year 2
2,432$42.00/RSF$102,144.00$8,512.00
Lease Year 3
2,432$43.00/RSF$104,576.00$8,714.67
Lease Year 4
(through S406TD)
2,432$44.00/RSF$107,008.00$8,917.33

Suite 406 Termination Date (“S406TD”): The last day of the forty-eighth (48th) consecutive full calendar month following the Suite 406 Premises Rent Commencement Date occurs.

Suite 406 Premises Term: The period commencing on the Suite 406 Premises Commencement Date and ending at 11:59 P.M. on the Suite 406 Termination Date, unless sooner terminated or extended as provided in this Lease.

3.The first sentence of the definition of “Additional Rent” appearing is Article 1 (Definitions) of the
Lease is hereby deleted and replaced with the following:








(a) with respect to the Suite 102 Premises, Tenant’s Proportionate Share (as defined below) of the cost of any (i) reasonable and customary operating expenses for the Buildings, the Common Areas and the Property (as defined below) as reasonably determined by Landlord (including, without limitation, gas, heat, air conditioning, electricity, water, sewer, cleaning, trash collection, snow removal and sanding, and insurance, as applicable) (the “Operating Expenses”) in excess of the Operating Expenses for Calendar Year 2020; and (ii) real estate taxes for the Property (as defined below) and the Buildings in excess of the real estate taxes imposed against the Property and the Buildings for Fiscal Year 2020 (July 1, 2019 – June 30, 2020); (b) with respect to the Suite 401 Premises, Tenant’s Proportionate Share (as defined below) of the cost of any (i) Operating Expenses in excess of the Operating Expenses for Calendar Year 2021; and (ii) real estate taxes for the Property (as defined below) and the Buildings in excess of the real estate taxes imposed against the Property and the Buildings for Fiscal Year 2022 (July 1, 2021 – June 30, 2022); and (c) with respect to the Suite 406 Premises, Tenant’s Proportionate Share (as defined below) of the cost of any (i) Operating Expenses in excess of the Operating Expenses for Calendar Year 2022; and (ii) real estate taxes for the Property (as defined below) and the Buildings in excess of the real estate taxes imposed against the Property and the Buildings for Fiscal Year 2023 (July 1, 2022 – June 30, 2023).”

4.The following definitions set forth in Article 1 (Definitions) of the Lease shall be deleted in their entirety and replaced as follows:

Suite 102 Termination Date (“S102TD”): The date which is seven (7) days after the Suite 406 Premises Commencement Date.

Suite 401 Premises Base Rent:

Period
RSF Paying Rent On
Base Rent
Yearly Base
 Rent
Monthly Base
 Rent
S401PCD – S401PRCD
3,284$0.00/RSF$0.00$0.00
S401PRCD – End of
Lease Year 1

3,284

$39.75/RSF

$130,539.00

$10,878.25
Lease Year 2
3,284$40.75/RSF$133,823.00$11,151.92
Lease Year 3
3,284$41.75/RSF$137,107.00$11,425.58
Lease Year 4
3,284$42.75/RSF$140,391.00$11,699.25
Lease Year 5 (through S401TD)
3,284$43.75/RSF$143,675.00$11,972.92

Suite 401 Termination Date (“S401TD”): The Suite 406 Termination Date, such that the term hereunder for the Suite 401 Premises is coterminous with the term hereunder for the Suite 406 Premises.

Suite 401 Premises Term: The period commencing on the Suite 401 Premises Commencement Date (as set forth in the First Amendment to Lease) and ending at 11:59 P.M. on the Suite 406 Termination Date, unless sooner terminated or extended as provided in this Lease.

Lease Year: With respect to the Suite 102 Premises, the first “Lease Year” shall be the period commencing on the Commencement Date and ending on the last day of the calendar month in which the first anniversary of the Rent Commencement Date occurs if the Rent Commencement Date is other than the first day of a calendar month. If the Rent Commencement Date is the first








day of a calendar month, then the first “Lease Year” with respect to the Suite 102 Premises shall be the period commencing on the Commencement Date and ending on the day (last of the calendar month) immediately prior to the first (1st) anniversary of the Rent Commencement Date. With respect to the Suite 401 Premises, the first “Lease Year” shall be the period commencing on the Suite 401 Premises Commencement Date and ending on the last day of the calendar month in which the first anniversary of the Suite 401 Premises Rent Commencement Date occurs if the Suite 401 Premises Rent Commencement Date is other than the first day of a calendar month. If the Suite 401 Premises Rent Commencement Date is the first day of a calendar month, then the first “Lease Year” with respect to the Suite 401 Premises shall be the period commencing on the Suite 401 Premises Commencement Date and ending on the day (last of the calendar month) immediately prior to the first (1st) anniversary of the Suite 401 Premises Rent Commencement Date. With respect to the Suite 406 Premises, the first “Lease Year” shall be the period commencing on the Suite 406 Premises Commencement Date and ending on the last day of the calendar month in which the first anniversary of the Suite 406 Premises Rent Commencement Date occurs if the Suite 406 Premises Rent Commencement Date is other than the first day of a calendar month. If the Suite 406 Premises Rent Commencement Date is the first day of a calendar month, then the first “Lease Year” with respect to the Suite 406 Premises shall be the period commencing on the Suite 406 Premises Commencement Date and ending on the day (last of the calendar month) immediately prior to the first (1st) anniversary of the Suite 406 Premises Rent Commencement Date. In either case of the Suite 102 Premises, the Suite 401 Premises or the Suite 406 Premises, each succeeding twelve (12) month period thereafter, as the case may be, shall be a Lease Year, with the final Lease Year of the Suite 102 Premises ending on the Suite 102 Termination Date, the final Lease Year of the Suite 401 Premises ending on the Suite 401 Termination Date, and the final Lease Year of the Suite 406 Premises ending on the Suite 406 Termination Date, respectively.


Parking: From and after the Suite 406 Premises Commencement Date, Tenant shall have the non-exclusive right, in common with Landlord and others, to use and occupy during the remainder of the Term up to nineteen (19) parking spaces in the parking lots serving the Buildings as shown on Exhibit A-2, attached hereto, (“Parking Facilities”), at no additional fee or cost, but subject to the reasonable rules and regulations established by Landlord from time to time of uniform application to all users, and of which Tenant has received prior notice. Landlord reserves the right in its sole discretion, from time to time, to modify, reconfigure, or relocate the Parking Facilities within reasonable proximity to the Parking Facilities as shown on Exhibit A-2 attached hereto.

Security Deposit: $38,375.00. See Article 12 hereof.

Tenant’s Proportionate Share: (a) with respect to the Suite 102 Premises during the Suite 102 Premises Term, Sixty-Seven One Hundredths percent (0.67%), (b) with respect to the Suite 401 Premises during the Suite 401 Premises Term, Two and Three One Hundredths percent (2.03%), and (c) with respect to the Suite 406 Premises during the Suite 406 Premises Term, One and Fifty One Hundredths percent (1.50%), which percentages have been determined by dividing the total number of rentable square feet in the Suite 102 Premises, the Suite 401 Premises and the Suite 406 Premises, respectively, by the Total Building Rentable Square Footage (161,790) and multiplying the resulting quotient by one hundred (100).

Term: (a) with respect to the Suite 102 Premises, the period commencing on the Commencement Date and ending at 11:59 p.m. on the Suite 102 Termination Date, (b) with respect to the Suite 401 Premises, the period commencing on the Suite 401 Premises Commencement Date and ending at 11:59 p.m. on the Suite 401 Premises Termination Date, and (c) with respect to the








Suite 406 Premises, the period commencing on the Suite 406 Premises Commencement Date and ending at 11:59 p.m. on the Suite 406 Premises Termination Date.

5.The following shall be added as new Section 2.1.2:

2.1.2 Suite 406 Premises: Landlord hereby leases to Tenant the Suite 406 Premises for the Suite 406 Premises Term subject to the terms and conditions set forth herein. For the purposes of this Lease, the “Suite 406 Premises Delivery Date” shall be deemed to have occurred on the earlier to occur of (a) the date when Landlord has Substantially Completed Landlord's Suite 406 Premises Work (as such terms are defined below) and made the Suite 406 Premises available to Tenant pursuant to the terms of Section 2.2.2, or (b) the date Tenant commences business operations in the Suite 406 Premises prior to the completion of Landlord’s Suite 406 Premises Work, as determined by Tenant in its sole discretion. Tenant acknowledges that the Suite 406 Premises are currently occupied by another tenant of Landlord’s and Landlord’s obligations under this Lease with respect to the delivery of the Suite 406 Premises are expressly contingent upon such tenant vacating the Suite 406 Premises in accordance with the terms of its lease. In no event shall Landlord be liable to Tenant for any claims, damages, loss, costs or expenses in the event Landlord is unable to deliver the Suite 406 Premises to Tenant on or before any particular date and the Suite 406 Premises Delivery Date and the Suite 406 Premises Commencement Date shall be extended accordingly until Landlord shall be able to deliver the Suite 406 Premises to Tenant in the condition required hereunder. In the event the Suite 406 Delivery Date is delayed as a result of a Tenant Delay, the Suite 406 Premises Delivery Date and the Suite 406 Premises Commencement Date (for purposes of calculating the Suite 406 Premises Rent Commencement Date) shall be deemed to have occurred on the date Landlord would have completed Landlord’s Suite 406 Premises Work, but for such Tenant Delay. "Substantially Completed" shall mean that Landlord's Suite 406 Premises Work has been completed with the exception of minor items or work, and adjustment of equipment and fixtures, which can be completed without materially interfering with, or delaying completion of any work by Tenant during any Early Access Period or Tenant's use of the Suite 406 Premises (i.e., so-called "punch list" items). Landlord shall complete such punchlist items and other items of Landlord’s Suite 406 Premises Work within forty-five (45) days of the Suite 406 Premises Delivery Date and shall not materially interfere with Tenant's use of the Suite 406 Premises.

6.The following shall be added as new Section 2.2.2:

2.2.2 Landlord’s Suite 406 Premises Work; Acceptance of Suite 406 Premises. Tenant acknowledges and agrees that, subject to the foregoing conditions, Tenant is accepting the Suite 406 Premises in its “as is” condition except that (i) Landlord shall make the Suite 406 Premises available to Tenant free of other tenants, free of any personal property and in broom clean condition; and (ii) Landlord shall not be obligated to construct any improvements on behalf of Tenant, except with respect to the completion of Landlord’s Suite 406 Premises Work (defined below) in accordance with this Section 2.2.2. It is specifically understood and agreed that, except with respect to the completion of Landlord’s Suite 406 Premises Work in accordance with this Section 2.2.2, Landlord has no obligation and has made no promises to alter, remodel, improve, renovate, repair or decorate the Suite 406 Premises, or any part thereof, or to provide any allowance for such purposes, and that no representations respecting the condition of the Suite 406 Premises have been made by Landlord to Tenant (except as otherwise specifically set forth herein). Subject to delays due to Force Majeure and Tenant Delays (as defined above, except that any reference to Landlord’s Work in the definition of Tenant Delays shall be deemed to be references to Landlord’s Suite 406 Premises Work as the context so requires), Landlord shall perform at Landlord’s sole cost and expense, subject to Landlord’s Suite 406 Premises Work Cost Cap (defined below), certain improvements to the Suite 406 Premises pursuant to a mutually agreeable space plan and scope of








work to be developed between Landlord and Tenant following the full execution and delivery of this Amendment (the “Landlord’s Suite 406 Premises Work”). Notwithstanding anything contained in the final description of Landlord’s Suite 406 Premises Work, (a) in no event shall Landlord’s cost to complete Landlord’s Suite 406 Premises Work exceed Twenty Nine Thousand One Hundred Eighty Four and No/100 Dollars ($29,184.00) (“Landlord’s Suite 406 Premises Work Cost Cap”) and (b) Tenant acknowledges and agrees that the cost and installation of any furniture, equipment, fixtures, appliances, wiring and cabling for Tenant’s data and telecommunications systems and equipment, and any supplemental cooling required by Tenant, shall be the sole responsibility of Tenant in accordance with the terms of this Lease. In addition, and notwithstanding the final description of Landlord’s Suite 406 Premises Work, Landlord and Tenant acknowledge and agree that any estimates and breakdown of the cost to complete Landlord’s Suite 406 Premises Work provided in connection with the development of mutually agreeable plans for Landlord’s Suite 406 Premises Work shall only be estimates of the final cost to complete Landlord’s Suite 406 Premises Work and the breakdown of such costs, and shall have no effect on Landlord’s Suite 406 Premises Work Cost Cap.

Landlord's Suite 406 Premises Work shall be done at Landlord's sole cost and expense, subject to the Landlord’s Suite 406 Premises Work Cost Cap. Any cost and expenses with respect to Landlord’s Suite 406 Premises Work in excess of the Landlord’s Suite 406 Premises Work Cost Cap, plus any increase in costs and expenses caused by changes to the description of Landlord’s Suite 406 Premises Work as a result of any request by Tenant, subject to Landlord’s approval (such approval not to be unreasonably withheld, conditioned or delayed), shall be borne solely by Tenant and paid to Landlord, as Additional Rent, within thirty (30) days of receipt of Landlord’s invoice therefor.

Landlord agrees to diligently prosecute Landlord’s Suite 406 Premises Work to completion and, subject to delays due to Force Majeure and Tenant Delays, to cause Landlord’s Suite 406 Premises Work to be Substantially Completed by the Suite 406 Premises Commencement Date. Landlord's Suite 406 Premises Work shall be performed in a first class, good and workmanlike manner, using only new materials, in accordance with the standards of the Building, if any, and in accordance and in compliance with all applicable laws and regulations.

7.Section 2.6 of the Lease is hereby deleted in its entirety and replaced with the following:

2.6. Extension Option. Provided that (i) there exists no default under this Lease, (ii) this Lease is still in full force and effect, and (iii) Tenant is occupying one hundred percent (100%) of the Suite 401 Premises and the Suite 406 Premises, Tenant shall have the option to extend the Term solely with respect to the Suite 401 Premises and the Suite 406 Premises, collectively, for one (1) extended term (the “Extended Term”), having a length of three (3) years. Tenant shall exercise such option by giving Landlord written notice, not sooner than twelve (12) months and not later than nine (9) months prior to the expiration of the Term, it being agreed that time shall be of the essence with respect to the giving of such notice. The rent for the first Lease Year of Extended Term shall be equal to the Prevailing Market Rate (as hereinafter defined); provided however in no event shall the Base Rent for the Extended Term be less than the Base Rent for the final Lease Year of the Term with respect to either the Suite 401 Premises or the Suite 406 Premises, whichever is greater.

"Prevailing Market Rate" for the Premises shall mean the rental that Landlord would be able to obtain from a third party desiring to lease the Premises for the Extended Term taking into account the age of the Building, the size, location and floor levels of the Premises, the quality of construction of the Building and the Premises, the services provided under the terms of this Lease, the rental then being obtained for new leases of space comparable to the Premises in the locality of the








Building, and all other factors that would be relevant to a third party desiring to lease the Premises for the Extended Term in determining the rental such party would be willing to pay therefor, including free rent, tenant improvement allowances, leasing commissions and signing bonuses. Prevailing Market Rate shall be determined based on new rentals for similar space with standard tenant improvement allowances and standard leasing commissions. No later than one hundred twenty (120) days prior to commencement of the Extended Term, Landlord shall notify Tenant of Landlord's determination of the Prevailing Market Rate to be used to calculate the annual rent for the Extended Term. If Tenant wishes to dispute Landlord's determination, Tenant shall give notice to Landlord of Tenant's intent to submit the matter to the appraisal process described below within twenty (20) days after receipt of notice of Landlord's determination. If Tenant so elects, then within fifteen (15) days after the date of Tenant's notice of its election to submit the matter to the appraisal process, each party, at its cost, shall engage a real estate appraiser or commercial real estate broker (together “appraisers”) to act on its behalf in determining the Prevailing Market Rate for the Premises for the Extended Term. The appraisers shall have at least five (5) years’ commercial experience in the metropolitan area in which the Buildings are located. If a party does not appoint an appraiser within fifteen (15) days after the other party has given notice of the name of its appraiser, the single appraiser appointed shall be the sole appraiser and shall set the Prevailing Market Rate for the Premises for the Extended Term. If the two appraisers are appointed by the parties as stated in this Section 2.6, such appraisers shall meet promptly and attempt to set the Prevailing Market Rate for the Premises for the Extended Term. If such appraisers are unable to agree within thirty (30) days after appointment of the second appraiser, if the lower appraisal is ninety percent (90%) or more of the higher appraisal, then fifty percent (50%) of the difference shall be added to the lower appraisal and that total shall be the Prevailing Market Rate. If the lower appraisal is less than ninety percent (90%) of the higher appraisal, the appraisers shall elect a third appraiser meeting the qualifications stated in this paragraph within ten (10) days after the last date the two appraisers are given to set the Prevailing Market Rate for the Premises. The cost of the third appraiser shall be apportioned equally between Landlord and Tenant. Within thirty (30) days after the selection of the third appraiser, the third appraiser shall render a separate appraisal. The rental values and terms arrived at by the three appraisers shall be averaged, and the resulting average shall be deemed the Prevailing Market Rate for the Premises for the Extended Term. However, in the event that the Prevailing Market Rate arrived at in any of the appraisals is more than ten percent (10%) higher or lower than the middle appraised Prevailing Market Rate, such high or low appraisal or appraisals shall be discarded and the remaining two appraised values shall be averaged, if there are two, or the remaining one appraised value shall be used, if there is one. If either by agreement of the parties or by appraisal the Prevailing Market Rate is not finally determined by the commencement of the Extended Term, then Tenant shall make monthly payments of Base Rent at the rate equal to the mathematical average of the rate designated by Landlord and the rate proposed by Tenant’s appraiser, until such time as the Prevailing Market Rate is finally determined by agreement of the parties or by an appraiser. If the monthly Prevailing Market Rate as finally determined for the Extended Term exceeds the monthly amount previously paid by Tenant for the Extended Term, Tenant shall forthwith pay the difference to Landlord for each of the months Tenant paid the lesser amount within thirty (30) days of the determination of the Prevailing Market Rate. If the monthly Prevailing Market Rate as finally determined for the Extended Term is less than the monthly amount previously paid by Tenant for the Extended Term, Landlord shall forthwith pay the difference to Tenant for each of the months Tenant paid the greater amount within thirty (30) days of the determination of the Prevailing Market Rate.

8.Section 2.7 of the Lease is hereby deleted in its entirety.

9.Section 3.1 of the Lease is hereby deleted in its entirety and shall be replaced by the following:








3.1. Base Rent and Additional Rent. From and after (i) the Rent Commencement Date with respect to the Suite 102 Premises, (ii) the date which is two (2) months after the Suite 401 Premises Commencement Date (the “Suite 401 Premises Rent Commencement Date”) with respect to the Suite 401 Premises, and (iii) the Suite 406 Premises Rent Commencement Date with respect to the Suite 406 Premises, Tenant agrees to pay the Base Rent, with respect to the Suite 102 Premises, the Suite 401 Premises Base Rent, with respect to the Suite 401 Premises, the Suite 406 Premises Base Rent, with respect to the Suite 406 Premises, and the Additional Rent in lawful money of the United States in advance on the first day of each and every calendar month during the Term of this Lease, at the Payment Address or at such other place as Landlord may from time to time designate by notice. Tenant’s first installment of Suite 406 Premises Base Rent and any increased Security Deposit shall be due and payable within thirty (30) days from full execution and delivery of this Amendment. Landlord may, from time to time, (but not more frequently than once for each calendar year) provide Tenant with an estimate of the Additional Rent for the coming year and such estimated Additional Rent shall be payable by Tenant to Landlord in accordance with the provisions of the preceding sentence in 12 equal monthly installments. The Base Rent, Suite 401 Premises Base Rent, the Suite 406 Premises Base Rent, and Additional Rent for any partial month shall be prorated on the basis of a 30 day month.

10.Section 12.1 of the Lease is hereby amended by deleting the first sentence thereof and replacing it with the following:

“Within thirty (30) days of the date of this Amendment, Tenant shall deposit with Landlord, either in the form of an irrevocable letter of credit or cash, such form being in Tenant’s sole discretion, the sum specified in the Lease Summary Sheet as the “Security Deposit”.

11.Exhibit A-1.2 attached hereto showing the Suite 406 Premises shall be added as new
Exhibit A-1.2 of the Lease.

12.Tenant and Landlord each represent and warrant to the other that it has not directly or indirectly dealt, with respect to the leasing of office space in the Building, including without limitation, the Suite 406 Premises, with any broker or had its attention called to the Premises, Suite 406 Premises or other space to let in the Building by anyone other than Newmark. Landlord assumes sole responsibility for compensating such brokers. Notwithstanding the foregoing, if Tenant fails to take occupancy of the Suite 406 Premises, due to Tenant’s fault, Tenant shall reimburse Landlord for any amounts that Landlord has or will pay to any brokers.

13.From and after the date hereof until the Suite 102 Termination Date, all references appearing in the Lease to the Premises shall be amended and read hereafter to be references to the Suite 102 Premises, the Suite 401 Premises and the Suite 406 Premises, unless specifically set forth in this Amendment to the contrary. From and after the Suite 102 Termination Date, all references in the Lease to the Premises shall be amended and read thereafter to be references to the Suite 401 Premises and the Suite 406 Premises.

14.All references appearing in the Lease to the Rent shall be amended and read hereafter to include, without limitation, the Suite 406 Premises Base Rent.

15.The Lease is hereby ratified and confirmed and, as modified by this Amendment, shall remain in full force and effect.

16.All references appearing in the Lease and in any related instruments shall be amended and read hereafter to be references to the Lease as amended by this Amendment.








17.This Amendment shall have the effect of an agreement under seal and shall be binding upon and inure to the benefit of the parties hereto and their respective heirs, executors, administrators, successors and assigns.

18.Except as otherwise specifically provided herein, all of the terms and conditions of the Lease, including without limitation, Tenant’s obligation to yield up and surrender the Suite 102 Premises in accordance with Sections 2.8, 4.7 and 13.8 of the Lease, shall remain in full force and effect for the extended Lease term and this Amendment is effective as of the date first set forth above.


[Remainder of Page Intentionally Blank. Signatures on the Following Page.]






EXECUTED under seal as of the date first set forth above.

LANDLORD:    WATCH CITY VENTURES MT LLC,
a Massachusetts limited liability company

image_0.jpgBy: Berkeley Watch MM LLC, its Managing Member


By:         Name: Young Park     Its: Authorized Signatory        
(hereunto duly authorized)


TENANT:    VIRIDIAN THERAPEUTICS, INC.,
image_1.jpga Delaware corporation


By:    



image_4.jpgName:

Jonathan Violin
Title:    President & CEO    


image_3.jpgBy:    
image_4.jpgName:

Kristian Humer
Title:    Chief Financial & Business Officer



Final



EXHIBIT A-1.2

PLAN SHOWING SUITE 406 PREMISES
image_5.jpg