EX-10.1 2 exhibit101_watchfactoryvir.htm EX-10.1 Document

Exhibit 10.1

FOURTH AMENDMENT TO LEASE

This FOURTH AMENDMENT TO LEASE (this "Amendment") is made as of the 8th day of April, 2024 (the “Effective Date”) by and between WATCH CITY VENTURES MT LLC, a Massachusetts limited liability company, having an address at c/o Berkeley Investments, Inc., 125 High Street, Suite 531, Boston, Massachusetts 02110 (“Landlord”), and VIRIDIAN THERAPEUTICS, INC., a Delaware corporation, having an address at 221 Crescent Street, Suite 401, Waltham, Massachusetts 02453 (“Tenant”), as successor in interest to Viridian, LLC, a Massachusetts limited liability company (“Viridian LLC”).
REFERENCE is made to a certain Lease, dated January 13, 2020 by and between Landlord and Viridian LLC as Tenant’s predecessor in interest, pursuant to that certain Assignment and Consent Agreement entered into between the Landlord, Tenant and Viridian, LLC, dated September 27, 2020, as amended by that certain First Amendment to Lease dated July 6, 2021, as further amended by that certain Second Amendment to Lease dated April 13, 2022, and as further amended by that certain Third Amendment to Lease dated July 29, 2022 (as amended, the “Lease”) for certain premises consisting of (a) approximately 1,087 rentable square feet on the first (1st) floor of Building #17, as shown as Suite 102B on the plan attached to the Lease as Exhibit A-1 (the “Suite 102 Premises”), (b) approximately 3,284 rentable square feet on the fourth (4th) floor of Building #5A, as shown as Suite 401 on the plan attached to the Lease as Exhibit A-1 (the “Suite 401 Premises”), (c) approximately 2,432 rentable square feet on the fourth (4th) floor of Buildings #4, as shown as Suite 406 on the plan attached to the Lease as Exhibit A-1.2 (the “Suite 406 Premises”), (d) approximately 2,737 rentable square feet located on the first (1st) floor of Building #4, and shown as Suite 110 on the plan attached to the Lease as Exhibit A-1.3 (the “Suite 110 Premises”), and (e) approximately 2,503 rentable square feet located on the first (1st) floor of Building #4, and shown as Suite #111 on the plan attached to the Lease as Exhibit A-1.3 (the “Suite 111 Premises” and together with the Suite 102 Premises, the Suite 401 Premises, the Suite 406 Premises and the Suite 110 Premises, collectively, the “Original Premises”).

WHEREAS, Tenant has requested to consolidate and relocate to different space in the Buildings;

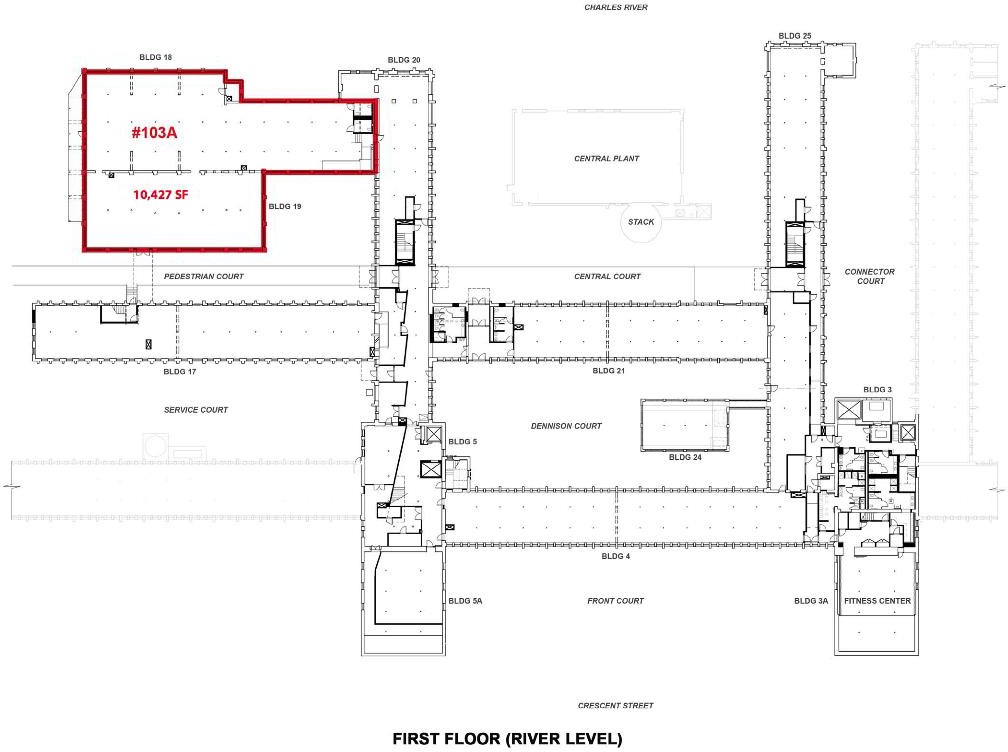
WHEREAS, Landlord has agreed to lease to Tenant and Tenant has agreed to lease from Landlord approximately 10,427 rentable square feet on the first (1st) floor of Buildings #18 and #19, as shown as Suite 103A on the plan attached hereto as Exhibit A-1.4 (the “New Premises” or the “Suite 103A Premises”);
WHEREAS, upon the earlier to occur of (a) the date which is fourteen (14) days after substantial completion of Tenant’s New Premises Work (defined below), and (b) the date which is one hundred fifty (150) days from and after the Effective Date of this Amendment (the “New Premises Rent Commencement Date”), Tenant shall surrender the Original Premises to Landlord, all in accordance with the terms of this Amendment;

WHEREAS, Tenant has agreed to accept the Suite 103A Premises in its current “as is” condition, and Landlord has agreed to provide a tenant improvement allowance as set forth below;

WHEREAS, Landlord and Tenant have agreed to extend the Termination Date of the Lease until the last day of the sixtieth (60th) consecutive calendar month following the New Premises Rent Commencement Date and to provide Tenant with one (1) 3-year extension option, all in accordance with the terms of this Amendment; and

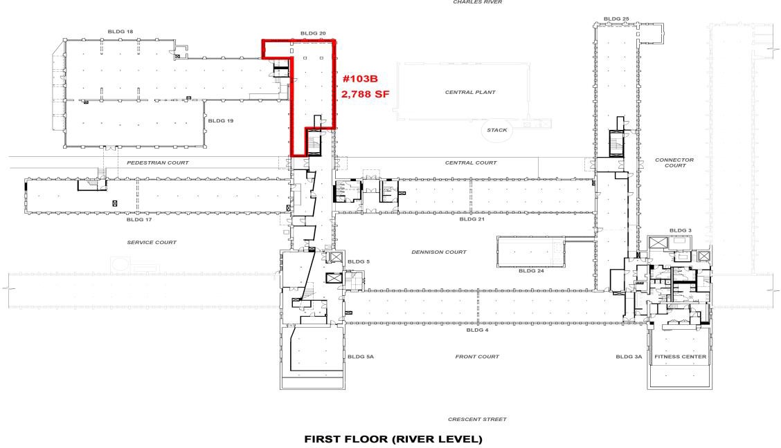
WHEREAS, Tenant has requested and Landlord has agreed to grant to Tenant an ongoing right of first refusal solely with respect to space adjacent to the Suite 103A Premises, consisting of approximately 2,788 rentable square feet on the first (1st) floor of Building #20, as shown as Suite 103B



on the plan attached hereto as Exhibit A-1.4 (the “ROFR Expansion Premises” or the “Suite 103B Premises”) in accordance with the terms of this Amendment; and

WHEREAS, Landlord and Tenant desire to amend the Lease to (i) replace the Original Premises with the New Premises, (ii) provide for a tenant improvement allowance for the construction of improvements to the Suite 103A Premises to be performed by Tenant, (iii) adjust the Base Rent, (iv) amend the Operating Costs Base Year; (v) amend the Tax Expenses Base Year, (vi) adjust the number of parking spaces available to Tenant, (vii) adjust Tenant’s Proportionate Share, (viii) extend the term of the Lease, (ix) provide Tenant with one (1) 3-year extension option, and (x) provide Tenant with an ongoing right of first refusal with respect to the Suite 103B Premises, all in accordance with the terms and provisions as hereinafter set forth.
NOW, THEREFORE, in consideration of Tenant's agreement to pay additional Base Rent as hereinafter set forth, for other good and valuable consideration, the receipt and sufficiency of which are hereby acknowledged, and for the mutual promises hereinafter set forth, Landlord and Tenant agree to amend the Lease, effective as of the Effective Date, as follows:

1.Capitalized terms used herein and not otherwise defined shall have the meaning ascribed thereto in the Lease.

2.The following definitions shall be added to Article 1 (Definitions) of the Lease:
Suite 103A Premises: approximately 10,427 rentable square feet on the first (1st) floor of Buildings #18 and #19, as shown as Suite 103A on the plan attached hereto as Exhibit A-1.4.

Suite 103A Premises Commencement Date (“S103APCD”): The Suite 103A Premises Delivery Date. See Section 2.1.4 below.
Suite 103A Premises Rent Commencement Date (“S103APRCD”): The earlier to occur of (a) the date that is fourteen (14) days after the date Tenant substantially completes Tenant’s improvements with respect to the Suite 103A Premises, or the earlier of Tenant commencing business operations in the Suite 103A Premises prior to the completion of Tenant’s Work with respect to the Suite 103A Premises, in Tenant’s sole discretion, or (b) the date which is one hundred fifty (150) days after the Suite 103A Premises Delivery Date.

Suite 103A Premises Base Rent:

Period
RSF Paying Rent On
Base Rent
Yearly Base Rent
Monthly Base Rent
S103APRCD – End of
Lease Year 1
10,427
$44.00/RSF
$458,788.00
$38,232.33
Lease Year 2
10,427
$45.00/RSF
$469,215.00
$39,101.25
Lease Year 3
10,427
$46.00/RSF
$479,642.00
$39,970.17
Lease Year 4
10,427
$47.00/RSF
$490,069.00
$40,839.08
Lease Year 5
10,427
$48.00/RSF
$500,496.00
$41,708.00
(through S103ATD)
Suite 103A Termination Date (“S103ATD”): The last day of the sixtieth (60th) consecutive full calendar month following the Suite 103A Premises Rent Commencement Date.
Suite 103A Premises Term: The period commencing on the Suite 103A Premises Commencement Date and ending at 11:59 P.M. on the Suite 103A Termination Date, unless sooner terminated or extended as provided in this Lease.




Original Premises Surrender Date: The Suite 103A Premises Rent Commencement Date.

3.The first sentence of the definition of “Additional Rent” appearing in Article 1 (Definitions) of the Lease is hereby deleted and replaced with the following:

(a) with respect to the Suite 102 Premises, Tenant’s Proportionate Share (as defined below) of the cost of any (i) reasonable and customary operating expenses for the Buildings, the Common Areas and the Property (as defined below) as reasonably determined by Landlord (including, without limitation, gas, heat, air conditioning, electricity, water, sewer, cleaning, trash collection, snow removal and sanding, and insurance, as applicable) (the “Operating Expenses”) in excess of the Operating Expenses for Calendar Year 2020; and (ii) real estate taxes for the Property (as defined below) and the Buildings in excess of the real estate taxes imposed against the Property and the Buildings for Fiscal Year 2020 (July 1, 2019 – June 30, 2020); (b) with respect to the Suite 401 Premises, Tenant’s Proportionate Share (as defined below) of the cost of any (i) Operating Expenses in excess of the Operating Expenses for Calendar Year 2021; and (ii) real estate taxes for the Property (as defined below) and the Buildings in excess of the real estate taxes imposed against the Property and the Buildings for Fiscal Year 2022 (July 1, 2021 – June 30, 2022); (c) with respect to the Suite 110/111 Premises and the Suite 406 Premises, Tenant’s Proportionate Share (as defined below) of the cost of any (i) Operating Expenses in excess of the Operating Expenses for Calendar Year 2022; and (ii) real estate taxes for the Property (as defined below) and the Buildings in excess of the real estate taxes imposed against the Property and the Buildings for Fiscal Year 2023 (July 1, 2022 – June 30, 2023); and (d) with respect to the Suite 103A Premises, Tenant’s Proportionate Share (as defined below) of the cost of any (i) Operating Expenses in excess of the Operating Expenses for Calendar Year 2024; and (ii) real estate taxes for the Property (as defined below) and the Buildings in excess of the real estate taxes imposed against the Property and the Buildings for Fiscal Year 2024 (July 1, 2023 – June 30, 2024).”

4.The following definitions set forth in Article 1 (Definitions) of the Lease shall be deleted in their entirety and replaced as follows:
Suite 102 Termination Date (“S102TD”): The Original Premises Surrender Date.

Suite 401 Termination Date (“S401TD”): The Original Premises Surrender Date.

Suite 406 Termination Date (“S406TD”): The Original Premises Surrender Date.

Suite 110/111 Termination Date (“S110/111TD”): The Original Premises Surrender Date
Lease Year: With respect to the Suite 102 Premises, the first “Lease Year” shall be the period commencing on the Commencement Date and ending on the last day of the calendar month in which the first anniversary of the Rent Commencement Date occurs if the Rent Commencement Date is other than the first day of a calendar month. If the Rent Commencement Date is the first day of a calendar month, then the first “Lease Year” with respect to the Suite 102 Premises shall be the period commencing on the Commencement Date and ending on the day (last of the calendar month) immediately prior to the first (1st) anniversary of the Rent Commencement Date. With respect to the Suite 401 Premises, the first “Lease Year” shall be the period commencing on the Suite 401 Premises Commencement Date and ending on the last day of the calendar month in which the first anniversary of the Suite 401 Premises Rent Commencement Date occurs if the Suite 401 Premises Rent Commencement Date is other than the first day of a calendar month. If the Suite 401 Premises Rent Commencement Date is the first day of a calendar month, then the first “Lease Year” with respect to the Suite 401 Premises shall be the period commencing on the Suite 401 Premises Commencement Date and ending on the day (last of the calendar month) immediately prior to the first (1st) anniversary of the Suite 401 Premises Rent Commencement Date. With respect to the Suite 406 Premises, the first “Lease Year” shall be the period commencing on the Suite 406 Premises Commencement Date and



ending on the last day of the calendar month in which the first anniversary of the Suite 406 Premises Rent Commencement Date occurs if the Suite 406 Premises Rent Commencement Date is other than the first day of a calendar month. If the Suite 406 Premises Rent Commencement Date is the first day of a calendar month, then the first “Lease Year” with respect to the Suite 406 Premises shall be the period commencing on the Suite 406 Premises Commencement Date and ending on the day (last of the calendar month) immediately prior to the first (1st) anniversary of the Suite 406 Premises Rent Commencement Date. With respect to the Suite 110/111 Premises, the first “Lease Year” shall be the period commencing on the Suite 110/111 Premises Commencement Date and ending on the last day of the calendar month in which the first anniversary of the Suite 110/111 Premises Rent Commencement Date occurs if the Suite 110/111 Premises Rent Commencement Date is other than the first day of a calendar month. If the Suite 110/111 Premises Rent Commencement Date is the first day of a calendar month, then the first “Lease Year” with respect to the Suite 110/111 Premises shall be the period commencing on the Suite 110/111 Premises Commencement Date and ending on the day (last of the calendar month) immediately prior to the first (1st) anniversary of the Suite 110/111 Premises Rent Commencement Date. With respect to the Suite 103A Premises, the first “Lease Year” shall be the period commencing on the Suite 103A Premises Commencement Date and ending on the last day of the calendar month in which the first anniversary of the Suite 103A Premises Rent Commencement Date occurs if the Suite 103A Premises Rent Commencement Date is other than the first day of a calendar month. If the Suite 103A Premises Rent Commencement Date is the first day of a calendar month, then the first “Lease Year” with respect to the Suite 103A Premises shall be the period commencing on the Suite 103A Premises Commencement Date and ending on the day (last of the calendar month) immediately prior to the first (1st) anniversary of the Suite 103A Premises Rent Commencement Date. In either case of the Suite 102 Premises, the Suite 110/111 Premises, the Suite 401 Premises, the Suite 406 Premises or the Suite 103A Premises, each succeeding twelve (12) month period thereafter, as the case may be, shall be a Lease Year, with the final Lease Year of each of the Suite 102 Premises, the Suite 110/111Premises, the Suite 401 Premises, and the Suite 406 Premises, all ending on the Original Premises Surrender Date, and with the final Lease Year of the 103A Premises ending on the Suite 103A Termination Date.

Parking: From and after the date hereof, Tenant shall have the non-exclusive right, in common with Landlord and others, to use and occupy during the remainder of the Term up to thirty- six (36) parking spaces in the parking lots serving the Buildings as shown on Exhibit A-2, attached hereto, (“Parking Facilities”), and from and after the Original Premises Surrender Date, Tenant shall have the non-exclusive right, in common with Landlord and others, to use and occupy during the remainder of the Term, up to thirty-five (35) parking spaces in the Parking Facilities, all at no additional fee or cost, but subject to the reasonable rules and regulations established by Landlord from time to time of uniform application to all users, and of which Tenant has received prior notice. Landlord reserves the right in its sole discretion, from time to time, to modify, reconfigure, or relocate the Parking Facilities within reasonable proximity to the Parking Facilities as shown on Exhibit A-2 attached hereto.

Tenant’s Proportionate Share: (a) with respect to the Suite 102 Premises during the Suite 102 Premises Term, Sixty-Seven One Hundredths percent (0.67%), (b) with respect to the Suite 110/111 Premises during the Suite 110/111 Premises Term, Three and Twenty-Four One Hundredths percent (3.24%), (c) with respect to the Suite 401 Premises during the Suite 401 Premises Term, Two and Three One Hundredths percent (2.03%), (d) with respect to the Suite 406 Premises during the Suite 406 Premises Term, One and Fifty One Hundredths percent (1.50%), and (e) with respect to the Suite 103A Premises during the Suite 103A Premises Term, Six and Forty- Four One Hundredths percent (6.44%), which percentages have been determined by dividing the total number of rentable square feet in the Suite 102 Premises, Suite 110/111 Premises, the Suite 401 Premises, the Suite 406 Premises, and the Suite 103A Premises respectively, by the Total Building Rentable Square Footage (161,790) and multiplying the resulting quotient by one hundred (100).




Term: (a) with respect to the Suite 102 Premises, the period commencing on the Commencement Date and ending at 11:59 p.m. on the Original Premises Surrender Date, (b) with respect to the Suite 110/111 Premises, the period commencing on the Suite 110/111 Premises Commencement Date and ending at 11:59 p.m. on the Original Premises Surrender Date, (c) with respect to the Suite 401 Premises, the period commencing on the Suite 401 Premises Commencement Date and ending at 11:59 p.m. on the Original Premises Surrender Date, (d) with respect to the Suite 406 Premises, the period commencing on the Suite 406 Premises Commencement Date and ending at 11:59 p.m. on the Original Premises Surrender Date and (e) with respect to the Suite 103A Premises, the period commencing on the Suite 103A Premises Commencement Date and ending at 11:59 p.m. on the Suite 103A Termination Date.
5.The following shall be added as new Section 2.1.4:

2.1.4 Suite 103A Premises: Landlord hereby leases to Tenant the Suite 103A Premises for the Suite 103A Premises Term, subject to the terms and conditions set forth herein. For the purposes of this Lease, the “Suite 103A Premises Delivery Date” shall be deemed to have occurred on the later to occur of (a) the full execution and delivery of this Amendment, and (b) the date Landlord has made the Suite 103A Premises available to Tenant.

6.The following shall be added as new Section 2.2.4:
2.2.4 Acceptance of Suite 103A Premises. Tenant acknowledges and agrees that Tenant is accepting the Suite 103A Premises in its “as is” condition and Landlord shall not be obligated to construct any improvements on behalf of Tenant; provided however, Landlord shall deliver the Suite 103A Premises to Tenant free of other occupants and personal property and in broom clean condition. Landlord has no obligation and has made no promises to alter, remodel, improve, renovate, repair or decorate the Suite 103A Premises, the Building, or any part thereof, or to provide any allowance for such purposes except as set forth in Paragraph 10 of this Amendment below, and that no representations respecting the condition of the Suite 103A Premises or the Building have been made by Landlord to Tenant (except as otherwise specifically set forth herein).

7.Section 2.6 of the Lease is hereby deleted in its entirety and replaced with the following:

2.6. Extension Option. Provided that (i) there exists no default under this Lease, and (ii) this Lease is still in full force and effect, Tenant shall have the option to extend the Term of this Lease for one (1) extended term (the “Extended Term”), having a length of three (3) years. Tenant shall exercise such option by giving Landlord written notice, not sooner than twelve (12) months and not later than nine (9) months prior to the expiration of the Term, it being agreed that time shall be of the essence with respect to the giving of such notice. The rent for the first Lease Year of Extended Term shall be equal to the Prevailing Market Rate (as hereinafter defined); provided however in no event shall the Base Rent (on a per square rentable square foot basis) for the Extended Term be less than the Base Rent for the final Lease Year of the Term.

"Prevailing Market Rate" for the Suite 103A Premises shall mean the rental that Landlord would be able to obtain from a third party desiring to lease the Suite 103A Premises for the Extended Term taking into account the age of the Building, the size, location and floor levels of the Suite 103A Premises, the quality of construction of the Building and the Suite 103A Premises, the services provided under the terms of this Lease, the rental then being obtained for new leases of space comparable to the Suite 103A Premises in the locality of the Building, and all other factors that would be relevant to a third party desiring to lease the Suite 103A Premises for the Extended Term in determining the rental such party would be willing to pay therefor, including free rent, tenant improvement allowances, leasing commissions and signing bonuses. Prevailing Market Rate shall be determined based on new rentals for similar space with standard tenant improvement allowances and standard leasing commissions. No later than one hundred twenty (120) days prior to commencement of the Extended Term, Landlord shall notify Tenant of



Landlord's determination of the Prevailing Market Rate to be used to calculate the annual rent for the Extended Term. If Tenant wishes to dispute Landlord's determination, Tenant shall give notice to Landlord of Tenant's intent to submit the matter to the appraisal process described below within twenty (20) days after receipt of notice of Landlord's determination. If Tenant so elects, then within fifteen (15) days after the date of Tenant's notice of its election to submit the matter to the appraisal process, each party, at its cost, shall engage a real estate appraiser or commercial real estate broker (together “appraisers”) to act on its behalf in determining the Prevailing Market Rate for the Suite 103A Premises for the Extended Term. The appraisers shall have at least five (5) years’ commercial experience in the metropolitan area in which the Buildings are located. If a party does not appoint an appraiser within fifteen (15) days after the other party has given notice of the name of its appraiser, the single appraiser appointed shall be the sole appraiser and shall set the Prevailing Market Rate for the Suite 103A Premises for the Extended Term. If the two appraisers are appointed by the parties as stated in this Section 2.6, such appraisers shall meet promptly and attempt to set the Prevailing Market Rate for the Suite 103A Premises for the Extended Term. If such appraisers are unable to agree within thirty (30) days after appointment of the second appraiser, if the lower appraisal is ninety percent (90%) or more of the higher appraisal, then fifty percent (50%) of the difference shall be added to the lower appraisal and that total shall be the Prevailing Market Rate. If the lower appraisal is less than ninety percent (90%) of the higher appraisal, the appraisers shall elect a third appraiser meeting the qualifications stated in this paragraph within ten (10) days after the last date the two appraisers are given to set the Prevailing Market Rate for the Suite 103A Premises. The cost of the third appraiser shall be apportioned equally between Landlord and Tenant. Within thirty (30) days after the selection of the third appraiser, the third appraiser shall render a separate appraisal. The rental values and terms arrived at by the three appraisers shall be averaged, and the resulting average shall be deemed the Prevailing Market Rate for the Suite 103A Premises for the Extended Term. However, in the event that the Prevailing Market Rate arrived at in any of the appraisals is more than ten percent (10%) higher or lower than the middle appraised Prevailing Market Rate, such high or low appraisal or appraisals shall be discarded and the remaining two appraised values shall be averaged, if there are two, or the remaining one appraised value shall be used, if there is one. If either by agreement of the parties or by appraisal the Prevailing Market Rate is not finally determined by the commencement of the Extended Term, then Tenant shall make monthly payments of Base Rent at the rate equal to the mathematical average of the rate designated by Landlord and the rate proposed by Tenant’s appraiser, until such time as the Prevailing Market Rate is finally determined by agreement of the parties or by an appraiser. If the monthly Prevailing Market Rate as finally determined for the Extended Term exceeds the monthly amount previously paid by Tenant for the Extended Term, Tenant shall forthwith pay the difference to Landlord for each of the months Tenant paid the lesser amount within thirty (30) days of the determination of the Prevailing Market Rate. If the monthly Prevailing Market Rate as finally determined for the Extended Term is less than the monthly amount previously paid by Tenant for the Extended Term, Landlord shall forthwith pay the difference to Tenant for each of the months Tenant paid the greater amount within thirty (30) days of the determination of the Prevailing Market Rate.

8.The following shall be added as new Section 2.7:

2.7. Expansion; Right of First Refusal. Tenant shall have an ongoing right (which shall be a right held by Tenant each time the ROFR Expansion Premises (as such term is defined below) becomes available during the Term, strictly in accordance with this Section 2.7, and subject to the rights of any of Landlord’s other existing tenants in the Buildings, to lease approximately 2,788 rentable square feet on the first (1st) floor of Building #20, directly adjacent to the Suite 103A Premises, and as shown as Suite 103B on the plan attached hereto as Exhibit A-1.4 (the “ROFR Expansion Premises”) on the following terms and conditions: (i) Landlord shall notify Tenant in writing that Landlord has received a signed offer to lease the ROFR Expansion Premises which Landlord is prepared to accept and the basic terms and conditions of such offer (“Landlord’s ROFR Notice”); (ii) Tenant shall be entitled to lease the ROFR Expansion Premises upon the same terms and conditions as contained in Landlord’s ROFR Notice; (iii) there



shall remain not less than twenty-four (24) months remaining in the unexpired initial Term of this Lease, or if there shall remain less than twenty-four (24) months remaining in the initial Term of this Lease, Landlord’s ROFR Notice shall include Landlord’s determination of Prevailing Market Rate (for the existing Suite 103A Premises) in accordance with Section 2.6 above and Tenant’s election to lease the ROFR Expansion Premises shall be conditioned upon Tenant exercising its option to extend the Term of this Lease for the Extended Term, pursuant to Section 2.6 hereof; (iv) Tenant shall have ten (10) business days from receipt of Landlord's ROFR Notice, time being of the essence, to notify Landlord in writing that Tenant elects to lease the ROFR Expansion Premises on such terms and conditions as are set forth in Landlord’s ROFR Notice, and otherwise as set forth herein, or that Tenant disputes Landlord’s calculation of Prevailing Market Rate, in which case Landlord and Tenant shall proceed with the appraisal procedure set forth in Section 2.6 above, and Tenant's failure to so timely notify Landlord shall be deemed a waiver of the right to lease the ROFR Expansion Premises in accordance with this Section 2.7 and Landlord shall be entitled to lease the ROFR Expansion Premises free and clear of any rights of Tenant; provided however, if Landlord subsequently reduces the economic terms set forth in Landlord’s ROFR Notice by 10% or more, Landlord shall again offer the ROFR Expansion Premises to Tenant pursuant to the terms of this Section 2.7; (v) the ROFR Expansion Premises shall be leased in its then "as is" condition except as set forth in Landlord’s ROFR Notice; and (vi) within ten (10) business days of Tenant’s receipt from Landlord of an amendment to this Lease solely reflecting Tenant's exercise of its option for the ROFR Expansion Premises and reflecting the modification of only the applicable terms of the Lease which relate to Tenant’s exercise of its option for the ROFR Expansion Premises including, without limitation, the Base Rent and Additional Rent, time being of the essence, Tenant shall execute such amendment and return same to Landlord. Tenant’s failure to timely comply with any of the above conditions, time being of the essence, shall be deemed Tenant’s waiver of the rights contained in this Section 2.7 to lease the ROFR Expansion Premises. At Landlord's option, Tenant's exercise of its option for the ROFR Expansion Premises shall be effective only if, at the time of Tenant's notice and through the date on which Landlord is to deliver the ROFR Expansion Premises to Tenant, there is no default under this Lease, or condition which would be a default with the passage of time and/or the giving of notice. Notwithstanding anything contained in this Section 2.7 to the contrary, (i) Tenant’s right to lease the ROFR Expansion Premises, or any portion thereof, shall expire on the date which is nine (9) months prior to the expiration of the initial Term, unless Tenant has exercised its right to extend the Term of this Lease for the Extended Term in accordance with Section 2.6 hereof, (ii) in the event Tenant has exercised its right to extend the Term of this Lease for the Extended Term in accordance with Section 2.6 hereof, Tenant’s right to lease the ROFR Expansion Premises, or any portion thereof, shall expire on the date which is twenty four
(24) months prior to the expiration of the Extended Term.

9.Section 3.1 of the Lease is hereby deleted in its entirety and shall be replaced by the following:

3.1. Base Rent and Additional Rent. From and after (i) the Rent Commencement Date with respect to the Suite 102 Premises, (ii) the date which is two (2) months after the Suite 401 Premises Commencement Date (the “Suite 401 Premises Rent Commencement Date”) with respect to the Suite 401 Premises, (iii) the Suite 406 Premises Rent Commencement Date with respect to the Suite 406 Premises, (iv) the Suite 110/111 Premises Rent Commencement Date with respect to the Suite 110/111 Premises, and (v) the Suite 103A Premises Rent Commencement Date with respect to the Suite 103A Premises, Tenant agrees to pay the Base Rent, with respect to the Suite 102 Premises, the Suite 401 Premises Base Rent, with respect to the Suite 401 Premises, the Suite 406 Premises Base Rent, with respect to the Suite 406 Premises, the Suite 110/111 Premises Base Rent, with respect to the Suite 110/111 Premises, the Suite 103A Base Rent, with respect to the Suite 103A Premises, and the Additional Rent in lawful money of the United States in advance on the first day of each and every calendar month during the Term of this Lease, at the Payment Address or at such other place as Landlord may from time to time designate by notice. Tenant’s payment of any increased Security Deposit shall be due and payable within thirty (30) days from full execution and delivery of this Amendment. Landlord may, from time to time, (but not more frequently than once for each calendar year) provide Tenant with an



estimate of the Additional Rent for the coming year and such estimated Additional Rent shall be payable by Tenant to Landlord in accordance with the provisions of the preceding sentence in 12 equal monthly installments. The Base Rent, Suite 401 Premises Base Rent, the Suite 406 Premises Base Rent, the Suite 110/111 Premises Base Rent, the Suite 103A Premises Base Rent, and Additional Rent for any partial month shall be prorated on the basis of a 30 day month.

10.Suite 103A Tenant Improvement Allowance. Tenant shall be entitled to a tenant improvement allowance of up to One Hundred Four Thousand Two Hundred Seventy and No/100 Dollars ($104,270.00) (the "Suite 103A Tenant Improvement Allowance"). The Suite 103A Tenant Improvement Allowance shall be used by Tenant for hard construction costs incurred in connection with approved Alterations as described in, and in accordance with, Section 4.3, including, without limitation, soundproofing and cabling and wiring costs, but specifically excluding, architectural, design, consulting and engineering costs, furnishings, furniture, equipment (other than equipment used in connection with soundproofing efforts), moving costs, and other so-called “soft” costs. Up to fifty percent (50%) of the Suite 103A Tenant Improvement Allowance shall be payable directly to Tenant within thirty (30) days of submission to Landlord of (i) invoices from Tenant’s contractor(s) performing such work; (ii) lien waivers from Tenant's contractors indicating payment for all services and materials relating to such improvements and to the Suite 103A Premises; and (iii) such other documents as Landlord may reasonably request. Tenant shall not be permitted to submit more than one (1) such request per calendar month for reimbursement from the Suite 103A Tenant Improvement Allowance. The remaining unpaid balance of the Suite 103A Tenant Improvement Allowance shall be paid directly to Tenant within thirty (30) days after the commencement of the third (3rd) Lease Year of the Suite 103A Premises Term; provided there remains no uncured Tenant default under this Lease and Tenant delivers to Landlord the documents set forth in clauses (i) through (iii) above. Any costs incurred by Tenant to complete such Alterations in excess of the Suite 103A Tenant Improvement Allowance shall be borne solely by Tenant and Tenant shall pay the cost therefor in accordance with the provisions of Section 4.3.
11.Surrender of Original Premises. On or prior to the Original Premises Surrender Date, Tenant shall peaceably quit and surrender to Landlord the Original Premises in accordance with the provisions of this Lease, including, without limitation, Section 4.7 and Section 13.8 of the Lease, as if the Original Premises Surrender Date was the date originally scheduled for the expiration of the term under the Lease with respect to the Original Premises. Landlord acknowledges that Tenant shall not be required to remove any alterations or additions to the Original Premises, and Tenant may leave any existing furniture in the Original Premises; provided, at Landlord’s request, Tenant shall deliver to Landlord a suitable bill of sale with respect to such furniture duly executed by Tenant. In the event Tenant fails to peaceably quit and surrender to Landlord the Original Premises in accordance with the terms hereof, Landlord shall have all rights and remedies under the Lease with respect to a hold over tenant as well as all other rights and remedies at law and in equity.

12.Section 13.2 Signage. In addition to the signage rights set forth in Section 13.2, Tenant shall have the right to install signage to be attached to the Building exterior in the location of the current Scipher sign, with the size and design of such Building exterior signage subject to Landlord’s prior written review and approval, not to be unreasonably withheld, conditioned or delayed. Landlord’s approval of Tenant’s exterior signage shall not constitute an opinion or agreement by Landlord that the same are in compliance with all Laws, nor shall such approval impose any present or future liability on Landlord or waive any of Landlord’s rights hereunder or under the Lease. Landlord shall ensure that the current Scipher sign is removed as soon as reasonably possible following the Effective Date. Tenant shall be liable for the cost of the fabrication and installation of such signage as well as obtaining all necessary permits, authorizations and approvals in connection with the installation of any such signage, including, without limitation any Historic Commission and National Park Service approvals. Tenant shall be responsible for complying with all Laws in connection with the installation and maintenance of such signage. All of the terms and provisions of Section 13.2 of the Lease (as modified hereby) shall also apply to any such Building exterior signage.

13.Exhibit A-1.4 attached hereto showing the Suite 103A Premises and the Suite 103B Premises shall be added as new Exhibit A-1.4 of the Lease.




14.Tenant and Landlord each represent and warrant to the other that it has not directly or indirectly dealt, with respect to the leasing of office space in the Building, including without limitation, the Suite 103A Premises, with any broker or had its attention called to the Premises, Suite 103A Premises or other space to let in the Building by anyone other than Newmark. Landlord assumes sole responsibility for compensating such brokers. Notwithstanding the foregoing, if Tenant fails to take occupancy of the Suite 103A Premises, due to Tenant’s fault, Tenant shall reimburse Landlord for any amounts that Landlord has or will pay to any brokers.

15.From and after the S103APCD, all references appearing in the Lease to the Premises shall be amended and read hereafter to be references to the Original Premises and the Suite 103A Premises, unless specifically set forth in this Amendment to the contrary. From and after the Original Premises Surrender Date, all references appearing in the Lease to the Premises shall be amended and read thereafter to be references only to the Suite 103A Premises.
16.From and after the S103APCD, all references appearing in the Lease to the Rent shall be amended and read hereafter to include, without limitation, the Suite 103A Premises Base Rent; and from and after the Original Premises Surrender Date, subject to Tenant’s compliance with Paragraph 11 above, all references appearing in the Lease to the Rent shall be amended and read thereafter to mean, the Suite 103A Premises Base Rent.

17.The Lease is hereby ratified and confirmed and, as modified by this Amendment, shall remain in full force and effect.

18.All references appearing in the Lease and in any related instruments shall be amended and read hereafter to be references to the Lease as amended by this Amendment.
19.This Amendment shall have the effect of an agreement under seal and shall be binding upon and inure to the benefit of the parties hereto and their respective heirs, executors, administrators, successors and assigns.

20.Except as otherwise specifically provided herein, all of the terms and conditions of the Lease shall remain in full force and effect for the extended Lease term and this Amendment is effective as of the date first set forth above.
21.This Amendment may be executed in multiple counterparts, each of which shall be deemed an original, and all of which shall constitute one and the same agreement. This Amendment (and any further amendments to the Lease and any other instruments relating to the transactions contemplated hereby, other than any instruments to be recorded, witnessed and/or notarized) may be electronically signed by the parties by the use of DocuSign, which will be treated as an original copy as though ink-signed by officers or other duly authorized representatives of such party. Ink-signed or electronically signed executed copies hereof may be delivered by telecopier or email and upon receipt will be deemed originals and binding upon the parties hereto.

[Remainder of Page Intentionally Blank. Signatures on the Following Page.]

















EXECUTED under seal as of the date first set forth above.

LANDLORD:    WATCH CITY VENTURES MT LLC,
a Massachusetts limited liability company

By: Berkeley Watch MM LLC, its Managing Member


By: /s/ Young Park    
Name: Young Park
Its: Authorized signatory

(hereunto duly authorized)



TENANT:    VIRIDIAN THERAPEUTICS, INC.,
a Delaware corporation


By: /s/ Steve Mahoney    
Name: Steve Mahoney
Title: CEO


By: /s/ Jennifer Tousignant    
Name: Jennifer Tousignant
Title: Secretary



































EXHIBIT A-1.4

PLAN SHOWING SUITE 103A PREMISES

image2a.jpg



PLAN SHOWING SUITE 103B PREMISES (ROFO EXPANSION PREMISES)
image3a.jpg