EX-10.1 2 exhibit101_bi-watchfactory.htm EX-10.1 Document
Exhibit 10.1
FIFTH AMENDMENT TO LEASE


    This FIFTH AMENDMENT TO LEASE (this "Amendment") is made as of the 19th of September, 2024 (the “Effective Date”) by and between WATCH CITY VENTURES MT LLC, a Massachusetts limited liability company, having an address at c/o Berkeley Investments, Inc., 125 High Street, Suite 531, Boston, Massachusetts 02110 (“Landlord”), and VIRIDIAN THERAPEUTICS, INC., a Delaware corporation, having an address at 221 Crescent Street, Suite 401, Waltham, Massachusetts 02453 (“Tenant”), as successor in interest to Viridian, LLC, a Massachusetts limited liability company (“Viridian LLC”).

    REFERENCE is made to a certain Lease, dated January 13, 2020 by and between Landlord and Viridian LLC as Tenant’s predecessor in interest, pursuant to that certain Assignment and Consent Agreement entered into between the Landlord, Tenant and Viridian, LLC, dated September 27, 2020, as amended by that certain First Amendment to Lease dated July 6, 2021, as further amended by that certain Second Amendment to Lease dated April 13, 2022, as further amended by that certain Third Amendment to Lease dated July 29, 2022, and as further amended by that certain Fourth Amendment to Lease dated April 8, 2024 (the “Fourth Amendment’) (as amended, the “Lease”) for certain premises consisting of approximately 10,427 rentable square feet on the first (1st) floor of Buildings #18 and #19, as shown as Suite 103A on the plan attached to the Lease as Exhibit A-1.4 (the “Suite 103A Premises” or the “Original Premises”).

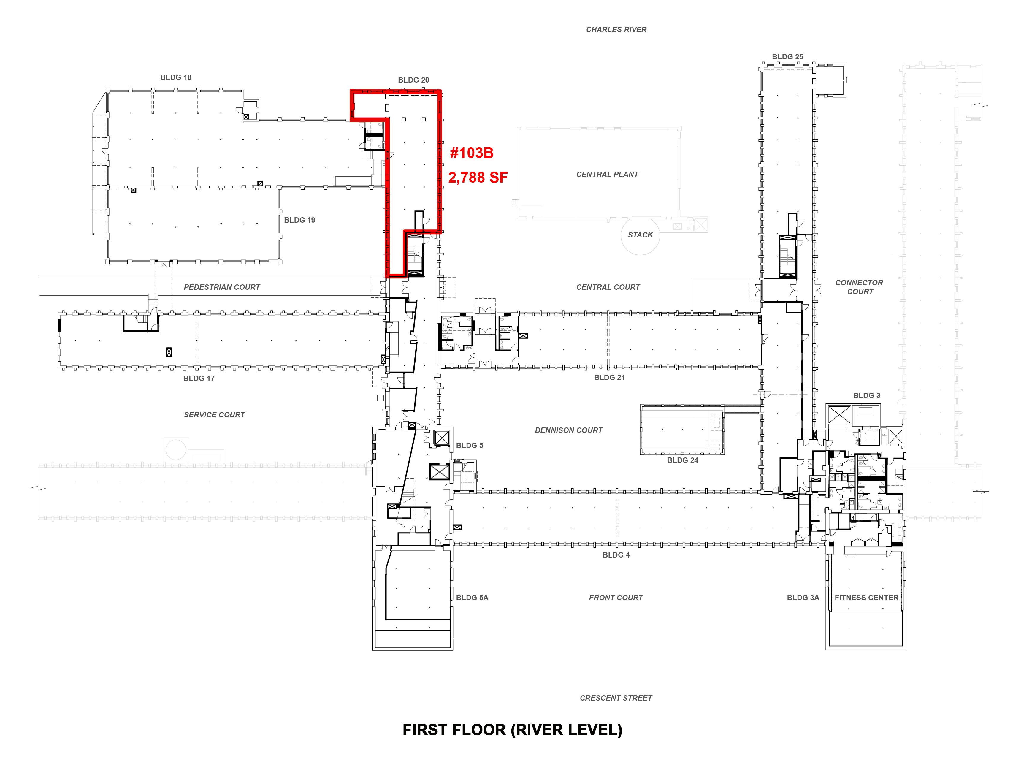
WHEREAS, Tenant desires to exercise its right of first refusal to lease an additional approximately 2,788 rentable square feet on the first (1st) floor of Building #20, as shown as Suite 103B on the plan attached hereto as Exhibit A-1.5 (the “New Premises” or the “Suite 103B Premises”);

    WHEREAS, Landlord and Tenant acknowledge that nothing contained in this Amendment shall be deemed to modify any of the terms and conditions of the Fourth Amendment with respect to (a) Tenant’s lease and occupancy of the Suite 103A Premises, (b) the New Premises Rent Commencement Date (as that term is defined in the Fourth Amendment) with respect to the Suite 103A Premises, (c) the payment of Suite 103A Premises Base Rent, (d) Landlord’s payment of the Suite 103A Tenant Improvement Allowance, or (e) Tenant’s surrender of the Original Premises (as defined in the Fourth Amendment collectively as the Suite 102 Premises, the Suite 401 Premises, the Suite 406 Premises, the Suite 110 Premises, and the Suite 111 Premises) on the Original Premises Surrender Date (as defined in the Fourth Amendment), it being the intent of Landlord and Tenant that Tenant is simply exercising its right of first refusal with respect to the Suite 103B Premises as set forth in the Fourth Amendment;

WHEREAS, the rent commencement date for the Suite 103B Premises shall be the later to occur of (a) delivery of the Suite 103B Premises to Tenant, and (b) September 1, 2024 (the “New Premises Rent Commencement Date”);

WHEREAS, Tenant has agreed to accept the Suite 103B Premises in its current “as is” condition, and Landlord shall not be obligated to construct any improvements on behalf of Tenant or to alter, remodel, improve, renovate, repair or decorate the Suite 103B Premises, the Building, or any part thereof, or to provide any allowance for such purposes;

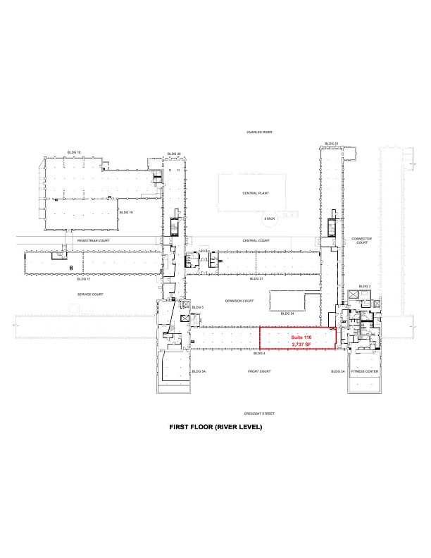
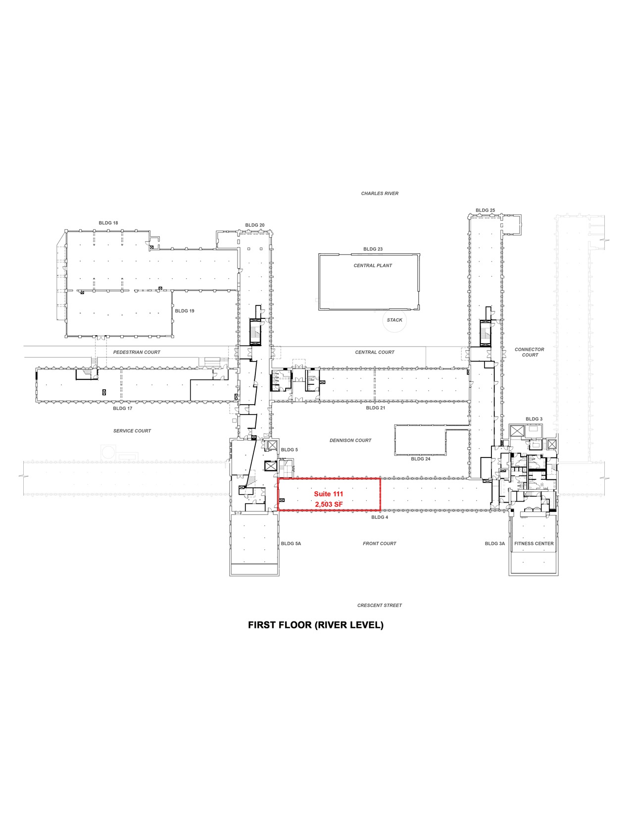
WHEREAS, Tenant has requested and Landlord has agreed to grant to Tenant a one-time right of first refusal solely with respect to space, consisting of (a) approximately 2,737 rentable square feet located on the first (1st) floor of Building #4 (the “Suite 110 Premises”), and (b) approximately 2,503



rentable square feet located on the first (1st) floor of Building #4 (the “Suite 111 Premises”), all as shown on the plan attached hereto as Exhibit A-1.6 (the “ROFR Expansion Premises”) in accordance with the terms of this Amendment; and

    WHEREAS, Landlord and Tenant desire to amend the Lease to (i) add the New Premises to the Premises, (ii) adjust the Base Rent, (iii) adjust the number of parking spaces available to Tenant, (iv) adjust Tenant’s Proportionate Share, and (v) provide Tenant with an ongoing right of first refusal with respect to the ROFR Expansion Premises, all in accordance with the terms and provisions as hereinafter set forth.

    NOW, THEREFORE, in consideration of Tenant's agreement to pay additional Base Rent as hereinafter set forth, for other good and valuable consideration, the receipt and sufficiency of which are hereby acknowledged, and for the mutual promises hereinafter set forth, Landlord and Tenant agree to amend the Lease, effective as of the Effective Date, as follows:

1.    Capitalized terms used herein and not otherwise defined shall have the meaning ascribed thereto in the Lease.

2.    The following definitions shall be added to Article 1 (Definitions) of the Lease:

Suite 103B Premises: approximately 2,788 rentable square feet on the first (1st) floor of Building #20, as shown as Suite 103B on the plan attached hereto as Exhibit A-1.5.

Suite 103B Premises Commencement Date (“S103BPCD”): The Suite 103B Premises Delivery Date. See Section 2.1.5 below.

Suite 103B Premises Rent Commencement Date (“S103BPRCD”): The later to occur of (a) the Suite 103B Premises Delivery Date, or (b) September 1, 2024.

Suite 103B Premises Base Rent:

PeriodRSF Paying Rent OnBase Rent
Yearly Base
 Rent
Monthly Base
 Rent
S103BPRCD – End of Lease Year 1

2,788

$44.00/RSF

$122,672.00

$10,222.67
Lease Year 22,788$45.00/RSF$125,460.00$10.455.00
Lease Year 32,788$46.00/RSF$128,248.00$10,687.33
Lease Year 42,788$47.00/RSF$131,036.00$10,919.67
Lease Year 5
(through S103ATD)
2,788$48.00/RSF$133,824.00$11,152.00

Suite 103A Termination Date (“S103ATD”): The last day of the sixtieth (60th) consecutive full calendar month following the Suite 103A Premises Rent Commencement Date.

    -2-


Suite 103B Premises Term: The period commencing on the Suite 103B Premises Commencement Date and ending at 11:59 P.M. on the Suite 103A Termination Date, unless sooner terminated or extended as provided in this Lease.

3.    The first sentence of the definition of “Additional Rent” appearing in Article 1 (Definitions) of the Lease is hereby deleted and replaced with the following:

(a) with respect to the Suite 102 Premises, Tenant’s Proportionate Share (as defined below) of the cost of any (i) reasonable and customary operating expenses for the Buildings, the Common Areas and the Property (as defined below) as reasonably determined by Landlord (including, without limitation, gas, heat, air conditioning, electricity, water, sewer, cleaning, trash collection, snow removal and sanding, and insurance, as applicable) (the “Operating Expenses”) in excess of the Operating Expenses for Calendar Year 2020; and (ii) real estate taxes for the Property (as defined below) and the Buildings in excess of the real estate taxes imposed against the Property and the Buildings for Fiscal Year 2020 (July 1, 2019 – June 30, 2020); (b) with respect to the Suite 401 Premises, Tenant’s Proportionate Share (as defined below) of the cost of any (i) Operating Expenses in excess of the Operating Expenses for Calendar Year 2021; and (ii) real estate taxes for the Property (as defined below) and the Buildings in excess of the real estate taxes imposed against the Property and the Buildings for Fiscal Year 2022 (July 1, 2021 – June 30, 2022); (c) with respect to the Suite 110/111 Premises and the Suite 406 Premises, Tenant’s Proportionate Share (as defined below) of the cost of any (i) Operating Expenses in excess of the Operating Expenses for Calendar Year 2022; and (ii) real estate taxes for the Property (as defined below) and the Buildings in excess of the real estate taxes imposed against the Property and the Buildings for Fiscal Year 2023 (July 1, 2022 – June 30, 2023); (d) with respect to the Suite 103A Premises and the Suite 103B Premises, Tenant’s Proportionate Share (as defined below) of the cost of any (i) Operating Expenses in excess of the Operating Expenses for Calendar Year 2024; and (ii) real estate taxes for the Property (as defined below) and the Buildings in excess of the real estate taxes imposed against the Property and the Buildings for Fiscal Year 2024 (July 1, 2023 – June 30, 2024).”

4.    The following definitions set forth in Article 1 (Definitions) of the Lease shall be deleted in their entirety and replaced as follows:

Lease Year: With respect to the Suite 102 Premises, the first “Lease Year” shall be the period commencing on the Commencement Date and ending on the last day of the calendar month in which the first anniversary of the Rent Commencement Date occurs if the Rent Commencement Date is other than the first day of a calendar month. If the Rent Commencement Date is the first day of a calendar month, then the first “Lease Year” with respect to the Suite 102 Premises shall be the period commencing on the Commencement Date and ending on the day (last of the calendar month) immediately prior to the first (1st) anniversary of the Rent Commencement Date. With respect to the Suite 401 Premises, the first “Lease Year” shall be the period commencing on the Suite 401 Premises Commencement Date and ending on the last day of the calendar month in which the first anniversary of the Suite 401 Premises Rent Commencement Date occurs if the Suite 401 Premises Rent Commencement Date is other than the first day of a calendar month. If the Suite 401 Premises Rent Commencement Date is the first day of a calendar month, then the first “Lease Year” with respect to the Suite 401 Premises shall be the period commencing on the Suite 401 Premises Commencement Date and ending on the day (last of the calendar month) immediately prior to the first (1st) anniversary of the Suite 401 Premises Rent Commencement Date. With respect to the Suite 406 Premises, the first “Lease
    -3-


Year” shall be the period commencing on the Suite 406 Premises Commencement Date and ending on the last day of the calendar month in which the first anniversary of the Suite 406 Premises Rent Commencement Date occurs if the Suite 406 Premises Rent Commencement Date is other than the first day of a calendar month. If the Suite 406 Premises Rent Commencement Date is the first day of a calendar month, then the first “Lease Year” with respect to the Suite 406 Premises shall be the period commencing on the Suite 406 Premises Commencement Date and ending on the day (last of the calendar month) immediately prior to the first (1st) anniversary of the Suite 406 Premises Rent Commencement Date. With respect to the Suite 110/111 Premises, the first “Lease Year” shall be the period commencing on the Suite 110/111 Premises Commencement Date and ending on the last day of the calendar month in which the first anniversary of the Suite 110/111 Premises Rent Commencement Date occurs if the Suite 110/111 Premises Rent Commencement Date is other than the first day of a calendar month. If the Suite 110/111 Premises Rent Commencement Date is the first day of a calendar month, then the first “Lease Year” with respect to the Suite 110/111 Premises shall be the period commencing on the Suite 110/111 Premises Commencement Date and ending on the day (last of the calendar month) immediately prior to the first (1st) anniversary of the Suite 110/111 Premises Rent Commencement Date. With respect to the Suite 103A Premises, the first “Lease Year” shall be the period commencing on the Suite 103A Premises Commencement Date and ending on the last day of the calendar month in which the first anniversary of the Suite 103A Premises Rent Commencement Date occurs if the Suite 103A Premises Rent Commencement Date is other than the first day of a calendar month. If the Suite 103A Premises Rent Commencement Date is the first day of a calendar month, then the first “Lease Year” with respect to the Suite 103A Premises shall be the period commencing on the Suite 103A Premises Commencement Date and ending on the day (last of the calendar month) immediately prior to the first (1st) anniversary of the Suite 103A Premises Rent Commencement Date. With respect to the Suite 103B Premises, the first “Lease Year” shall be the period commencing on the Suite 103B Premises Commencement Date and ending on the last day of the calendar month in which the first anniversary of the Suite 103A Premises Rent Commencement Date occurs if the Suite 103A Premises Rent Commencement Date is other than the first day of a calendar month. If the Suite 103A Premises Rent Commencement Date is the first day of a calendar month, then the first “Lease Year” with respect to the Suite 103B Premises shall be the period commencing on the Suite 103B Premises Commencement Date and ending on the day (last of the calendar month) immediately prior to the first (1st) anniversary of the Suite 103A Premises Rent Commencement Date, it being the intention of the parties that the first “Lease Year” with respect to both the Suite 103A Premises and the Suite 103B Premises, be co-terminus. In either case of the Suite 102 Premises, the Suite 110/111 Premises, the Suite 401 Premises, the Suite 406 Premises, the Suite 103A Premises or the Suite 103B Premises, each succeeding twelve (12) month period thereafter, as the case may be, shall be a Lease Year, with the final Lease Year of each of the Suite 102 Premises, the Suite 110/111Premises, the Suite 401 Premises, and the Suite 406 Premises, all ending on the Original Premises Surrender Date (as defined in the Fourth Amendment), and with the final Lease Year of the Suite 103A Premises and the Suite 103B Premises ending on the Suite 103A Termination Date.

Parking: From and after the date hereof, Tenant shall have the non-exclusive right, in common with Landlord and others, to use and occupy during the remainder of the Term up to thirty-six (36) parking spaces in the parking lots serving the Buildings as shown on Exhibit A-2, attached hereto, (“Parking Facilities”), and from and after the Original Premises Surrender Date, Tenant shall have the non-exclusive right, in common with Landlord and others, to use and
    -4-


occupy during the remainder of the Term, up to forty-four (44) parking spaces in the Parking Facilities, all at no additional fee or cost, but subject to the reasonable rules and regulations established by Landlord from time to time of uniform application to all users, and of which Tenant has received prior notice. Landlord reserves the right in its sole discretion, from time to time, to modify, reconfigure, or relocate the Parking Facilities within reasonable proximity to the Parking Facilities as shown on Exhibit A-2 attached hereto.

Tenant’s Proportionate Share: (a) with respect to the Suite 102 Premises during the Suite 102 Premises Term, Sixty-Seven One Hundredths percent (0.67%), (b) with respect to the Suite 110/111 Premises during the Suite 110/111 Premises Term, Three and Twenty-Four One Hundredths percent (3.24%), (c) with respect to the Suite 401 Premises during the Suite 401 Premises Term, Two and Three One Hundredths percent (2.03%), (d) with respect to the Suite 406 Premises during the Suite 406 Premises Term, One and Fifty One Hundredths percent (1.50%), (e) with respect to the Suite 103A Premises during the Suite 103A Premises Term, Six and Forty-Four One Hundredths percent (6.44%), and (f) with respect to the Suite 103B Premises during the Suite 103B Premises Term, One and Seventy-Two One Hundredths percent (1.72%),which percentages have been determined by dividing the total number of rentable square feet in the Suite 102 Premises, Suite 110/111 Premises, the Suite 401 Premises, the Suite 406 Premises, and the Suite 103A Premises respectively, by the Total Building Rentable Square Footage (161,790) and multiplying the resulting quotient by one hundred (100).

Term: (a) with respect to the Suite 102 Premises, the period commencing on the Commencement Date and ending at 11:59 p.m. on the Original Premises Surrender Date, (b) with respect to the Suite 110/111 Premises, the period commencing on the Suite 110/111 Premises Commencement Date and ending at 11:59 p.m. on the Original Premises Surrender Date, (c) with respect to the Suite 401 Premises, the period commencing on the Suite 401 Premises Commencement Date and ending at 11:59 p.m. on the Original Premises Surrender Date, (d) with respect to the Suite 406 Premises, the period commencing on the Suite 406 Premises Commencement Date and ending at 11:59 p.m. on the Original Premises Surrender Date, (e) with respect to the Suite 103A Premises, the period commencing on the Suite 103A Premises Commencement Date and ending at 11:59 p.m. on the Suite 103A Termination Date, and (f) with respect to the Suite 103B Premises, the period commencing on the Suite 103B Premises Commencement Date and ending at 11:59 p.m. on the Suite 103A Termination Date, it being the intention of the parties that the Term with respect to the Suite 103 A Premises and the Suite 103B Premises be co-terminus.

5.    The following shall be added as new Section 2.1.5:

2.1.5    Suite 103B Premises: Landlord hereby leases to Tenant the Suite 103B Premises for the Suite 103B Premises Term, subject to the terms and conditions set forth herein. For the purposes of this Lease, the “Suite 103B Premises Delivery Date” shall be deemed to have occurred on the later to occur of (a) the full execution and delivery of this Amendment, and (b) the date Landlord has made the Suite 103B Premises available to Tenant.

6.    The following shall be added as new Section 2.2.5:

2.2.5    Acceptance of Suite 103B Premises. Tenant acknowledges and agrees that Tenant is accepting the Suite 103B Premises in its “as is” condition and Landlord shall not be obligated to construct any improvements on behalf of Tenant; provided however, Landlord shall deliver the
    -5-


Suite 103B Premises to Tenant free of other occupants and personal property and in broom clean condition. Landlord has no obligation and has made no promises to alter, remodel, improve, renovate, repair or decorate the Suite 103B Premises, the Building, or any part thereof, or to provide any allowance for such purposes, and that no representations respecting the condition of the Suite 103B Premises or the Building have been made by Landlord to Tenant (except as otherwise specifically set forth herein). In no event shall Tenant be permitted to any portion of the Suite 103A Tenant Improvement Allowance (as defined in the Fourth Amendment) toward any Suite 103B Alterations.

7.    Section 2.7 shall be deleted in its entirety and replaced with the following:

2.7. Expansion; Right of First Refusal. Tenant shall have a one-time right (which shall be a one-time right held by Tenant, with respect to each respective suite comprising the ROFR Expansion Premises, only with respect to the first time each respective suite comprising the ROFR Expansion Premises becomes available during the Term, strictly in accordance with this Section 2.7, and subject to the rights of any of Landlord’s other existing tenants in the Buildings, to lease (a) (a) approximately 2,737 rentable square feet located on the first (1st) floor of Building #4 (the “Suite 110 Premises”), and (b) approximately 2,503 rentable square feet located on the first (1st) floor of Building #4 (the “Suite 111 Premises”), and as shown on the plan attached hereto as Exhibit A-1.6 (each suite individually and collectively, the “ROFR Expansion Premises”) on the following terms and conditions: (i) Landlord shall notify Tenant in writing that Landlord has received a signed offer to lease the ROFR Expansion Premises which Landlord is prepared to accept and the basic terms and conditions of such offer (“Landlord’s ROFR Notice”); (ii) Tenant shall be entitled to lease the ROFR Expansion Premises upon the same terms and conditions as contained in Landlord’s ROFR Notice; (iii) there shall remain not less than twenty-four (24) months remaining in the unexpired initial Term of this Lease, or if there shall remain less than twenty-four (24) months remaining in the initial Term of this Lease, Landlord’s ROFR Notice shall include Landlord’s determination of Prevailing Market Rate (for the then existing Premises) in accordance with Section 2.6 above and Tenant’s election to lease the ROFR Expansion Premises shall be conditioned upon Tenant exercising its option to extend the Term of this Lease for the Extended Term, pursuant to Section 2.6 hereof; (iv) Tenant shall have ten (10) business days from receipt of Landlord's ROFR Notice, time being of the essence, to notify Landlord in writing that Tenant elects to lease the ROFR Expansion Premises on such terms and conditions as are set forth in Landlord’s ROFR Notice, and otherwise as set forth herein, or that Tenant disputes Landlord’s calculation of Prevailing Market Rate, in which case Landlord and Tenant shall proceed with the appraisal procedure set forth in Section 2.6 above, and Tenant's failure to so timely notify Landlord shall be deemed a waiver of the right to lease the ROFR Expansion Premises in accordance with this Section 2.7 and Landlord shall be entitled to lease the ROFR Expansion Premises (or such applicable portion of the ROFR Expansion Premises included in Landlord’s ROFR Notice) free and clear of any rights of Tenant; provided however, if Landlord subsequently reduces the economic terms set forth in Landlord’s ROFR Notice by 10% or more, Landlord shall again offer the ROFR Expansion Premises to Tenant pursuant to the terms of this Section 2.7; (v) the ROFR Expansion Premises shall be leased in its then "as is" condition except as set forth in Landlord’s ROFR Notice; and (vi) within ten (10) business days of Tenant’s receipt from Landlord of an amendment to this Lease solely reflecting Tenant's exercise of its option for the ROFR Expansion Premises and reflecting the modification of only the applicable terms of the Lease which relate to Tenant’s exercise of its option for the ROFR Expansion Premises including, without limitation, the Base Rent and Additional Rent, time being of the essence, Tenant shall execute such amendment and return same to Landlord.
    -6-


Tenant’s failure to timely comply with any of the above conditions, time being of the essence, shall be deemed Tenant’s waiver of the rights contained in this Section 2.7 to lease such portion of the ROFR Expansion Premises included in Landlord’s ROFR Notice), and thereafter Tenant shall have no further rights with respect to such portion of the ROFR Expansion Premises included in Landlord’s ROFR Notice. At Landlord's option, Tenant's exercise of its option for the ROFR Expansion Premises shall be effective only if, at the time of Tenant's notice and through the date on which Landlord is to deliver the ROFR Expansion Premises to Tenant, there is no default under this Lease, or condition which would be a default with the passage of time and/or the giving of notice. Notwithstanding anything contained in this Section 2.7 to the contrary, (i) Tenant’s right to lease the ROFR Expansion Premises, or any portion thereof, shall expire on the date which is nine (9) months prior to the expiration of the initial Term, unless Tenant has exercised its right to extend the Term of this Lease for the Extended Term in accordance with Section 2.6 hereof, (ii) in the event Tenant has exercised its right to extend the Term of this Lease for the Extended Term in accordance with Section 2.6 hereof, Tenant’s right to lease the ROFR Expansion Premises, or any portion thereof, shall expire on the date which is twenty four (24) months prior to the expiration of the Extended Term. Upon Tenant’s waiver or deemed waiver of its rights to lease any portion of the ROFR Expansion Premises, such portion shall be deemed removed from the ROFR Expansion Premises and Tenant shall have no further rights under this Section 2.7 with respect to such portion of ROFR Expansion Premises so removed.

8.    Section 3.1 of the Lease is hereby deleted in its entirety and shall be replaced by the following:

3.1. Base Rent and Additional Rent. From and after (i) the Rent Commencement Date with respect to the Suite 102 Premises, (ii) the date which is two (2) months after the Suite 401 Premises Commencement Date (the “Suite 401 Premises Rent Commencement Date”) with respect to the Suite 401 Premises, (iii) the Suite 406 Premises Rent Commencement Date with respect to the Suite 406 Premises, (iv) the Suite 110/111 Premises Rent Commencement Date with respect to the Suite 110/111 Premises, (v) the Suite 103A Premises Rent Commencement Date with respect to the Suite 103A Premises, and (vi) the Suite 103B Premises Rent Commencement Date with respect to the Suite 103B Premises, Tenant agrees to pay the Base Rent, with respect to the Suite 102 Premises, the Suite 401 Premises Base Rent, with respect to the Suite 401 Premises, the Suite 406 Premises Base Rent, with respect to the Suite 406 Premises, the Suite 110/111 Premises Base Rent, with respect to the Suite 110/111 Premises, the Suite 103A Base Rent, with respect to the Suite 103A Premises, the Suite 103B Base Rent, with respect to the Suite 103B Premises, and the Additional Rent in lawful money of the United States in advance on the first day of each and every calendar month during the Term of this Lease, at the Payment Address or at such other place as Landlord may from time to time designate by notice. Tenant’s payment of any increased Security Deposit shall be due and payable within thirty (30) days from full execution and delivery of this Amendment. Landlord may, from time to time, (but not more frequently than once for each calendar year) provide Tenant with an estimate of the Additional Rent for the coming year and such estimated Additional Rent shall be payable by Tenant to Landlord in accordance with the provisions of the preceding sentence in 12 equal monthly installments. The Base Rent, Suite 401 Premises Base Rent, the Suite 406 Premises Base Rent, the Suite 110/111 Premises Base Rent, the Suite 103A Premises Base Rent, the Suite 103B Premises Base Rent, and Additional Rent for any partial month shall be prorated on the basis of a 30 day month.

9.    Exhibit A-1.5 attached hereto showing the Suite 103B Premises shall be added as new Exhibit A-1.5 of the Lease.
    -7-



10.    Exhibit A-1.6 attached hereto showing the ROFR Expansion Premises shall be added as new Exhibit A-1.6 of the Lease.

11.    Tenant and Landlord each represent and warrant to the other that it has not directly or indirectly dealt, with respect to the leasing of office space in the Building, including without limitation, the Suite 103B Premises, with any broker or had its attention called to the Premises, Suite 103B Premises or other space to let in the Building by anyone other than Newmark. Landlord assumes sole responsibility for compensating such brokers. Notwithstanding the foregoing, if Tenant fails to take occupancy of the Suite 103B Premises, due to Tenant’s fault, Tenant shall reimburse Landlord for any amounts that Landlord has or will pay to any brokers.

12.    From and after the S103BPCD, all references appearing in the Lease to the Premises shall be amended and read hereafter to be references to the Original Premises (as defined in the Fourth Amendment), the Suite 103A Premises, and the Suite 103B Premises, unless specifically set forth in this Amendment to the contrary. From and after the Original Premises Surrender Date (as defined in the Fourth Amendment), all references appearing in the Lease to the Premises shall be amended and read thereafter to be references only to the Suite 103A Premises and the Suite 103B Premises.

13.    From and after the S103BPCD, all references appearing in the Lease to the Rent shall be amended and read hereafter to include, without limitation, the Suite 103B Premises Base Rent.

14.    The Lease is hereby ratified and confirmed and, as modified by this Amendment, shall remain in full force and effect.

15.    All references appearing in the Lease and in any related instruments shall be amended and read hereafter to be references to the Lease as amended by this Amendment.

16.    This Amendment shall have the effect of an agreement under seal and shall be binding upon and inure to the benefit of the parties hereto and their respective heirs, executors, administrators, successors and assigns.

17.    Except as otherwise specifically provided herein, all of the terms and conditions of the Lease shall remain in full force and effect for the extended Lease term and this Amendment is effective as of the date first set forth above.

18.    This Amendment may be executed in multiple counterparts, each of which shall be deemed an original, and all of which shall constitute one and the same agreement. This Amendment (and any further amendments to the Lease and any other instruments relating to the transactions contemplated hereby, other than any instruments to be recorded, witnessed and/or notarized) may be electronically signed by the parties by the use of DocuSign, which will be treated as an original copy as though ink-signed by officers or other duly authorized representatives of such party. Ink-signed or electronically signed executed copies hereof may be delivered by telecopier or email and upon receipt will be deemed originals and binding upon the parties hereto.

[Remainder of Page Intentionally Blank. Signatures on the Following Page.]

    -8-


EXECUTED under seal as of the date first set forth above.

LANDLORD:    WATCH CITY VENTURES MT LLC,
    a Massachusetts limited liability company

    By: Berkeley Watch MM LLC, its Managing Member


By: /s/ Young Park                
Name:    Young Park                
Its: Authorized signatory                
(hereunto duly authorized)



TENANT:    VIRIDIAN THERAPEUTICS, INC.,
    a Delaware corporation


By: /s/ Tom Beetham            
Name: Tom Beetham
Title: COO




    -9-



EXHIBIT A-1.5

PLAN SHOWING SUITE 103B PREMISES
image_0.jpg





EXHIBIT A-1.6

PLAN SHOWING ROFR EXPANSION PREMISES


image_1.jpg
    -2-


image_2.jpg
    -3-