EX-10.2 3 ex1022025-09x06bixwatchfac.htm EX-10.2 Document
Exhibit 10.2
Final
SIXTH AMENDMENT TO LEASE


    This SIXTH AMENDMENT TO LEASE (this "Amendment") is made as of the 8th day of September, 2025 (the “Effective Date”) by and between WATCH CITY VENTURES MT LLC, a Massachusetts limited liability company, having an address at c/o Berkeley Investments, Inc., 125 High Street, Suite 531, Boston, Massachusetts 02110 (“Landlord”), and VIRIDIAN THERAPEUTICS, INC., a Delaware corporation, having an address at 221 Crescent Street, Suite 103A, Waltham, Massachusetts 02453 (“Tenant”), as successor in interest to Viridian, LLC, a Massachusetts limited liability company (“Viridian LLC”).

    REFERENCE is made to a certain Lease, dated January 13, 2020 by and between Landlord and Viridian LLC as Tenant’s predecessor in interest, pursuant to that certain Assignment and Consent Agreement entered into between the Landlord, Tenant and Viridian, LLC, dated September 27, 2020, as amended by that certain First Amendment to Lease dated July 6, 2021, as further amended by that certain Second Amendment to Lease dated April 13, 2022, as further amended by that certain Third Amendment to Lease dated July 29, 2022, as further amended by that certain Fourth Amendment to Lease dated April ___, 2024, and as further amended by that certain Fifth Amendment to Lease dated September 19, 2024 (as amended, the “Lease”) for certain premises consisting of (a) approximately 10,427 rentable square feet on the first (1st) floor of Buildings #18 and #19, as shown as Suite 103A on the plan attached to the Lease as Exhibit A-1.4, and (b) approximately 2,788 rentable square feet on the first (1st) floor of Building #20, as shown as Suite 103B on the plan attached to the Lease as Exhibit A-1.5 (the “Original Premises”).

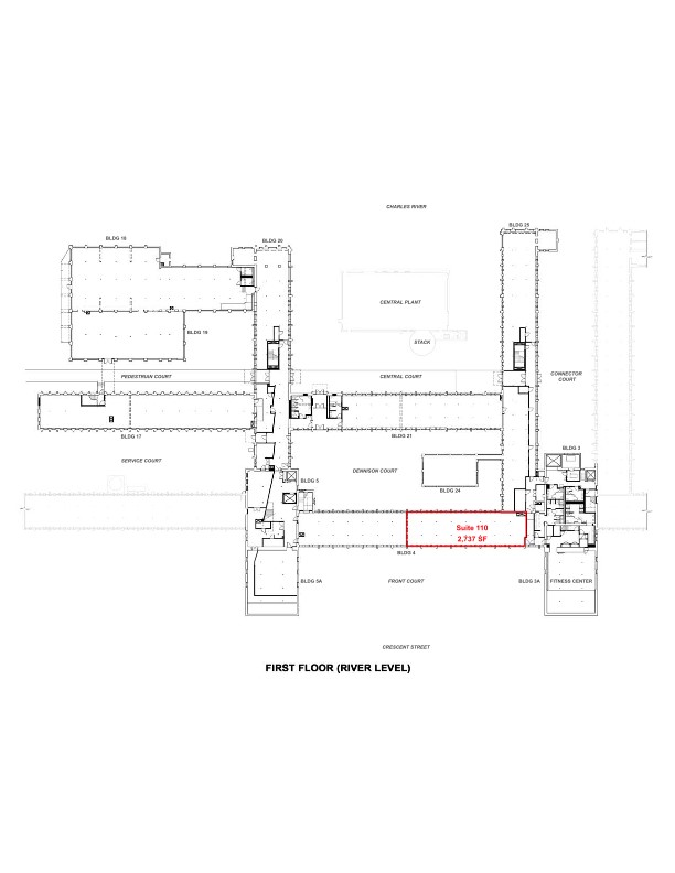
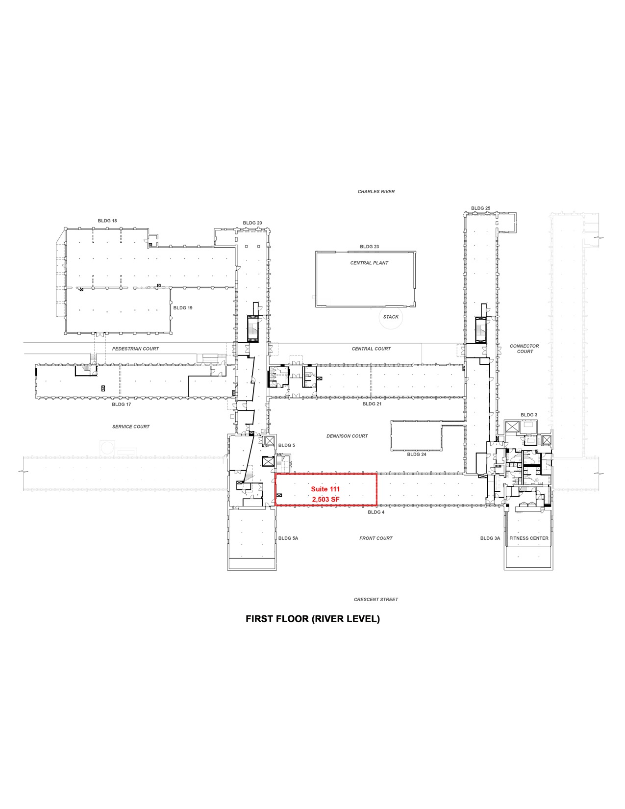
WHEREAS, Tenant desires to exercise its right of first refusal to lease an additional approximately 5,240 rentable square feet consisting of (a) approximately 2,737 rentable square feet located on the first (1st) floor of Building #4 , and shown as Suite 110 on the plan attached hereto as Exhibit A-1.7 (the “Suite 110 Premises”), and (b) approximately 2,503 rentable square feet located on the first (1st) floor of Building #4, and shown as Suite #111 on the plan attached hereto as Exhibit A-1.7 (the “Suite 111 Premises” and together with the Suit 110 Premises, sometimes referred to herein as the “New Premises”);

    WHEREAS, the rent commencement date for the New Premises shall be the later to occur of (a) delivery of the New Premises to Tenant, and (b) September 15, 2025 (the “New Premises Rent Commencement Date”);

WHEREAS, Tenant has agreed to accept the Suite 110 Premises and the Suite 111 Premises in its current “as is” condition, and Landlord shall not be obligated to construct any improvements on behalf of Tenant or to alter, remodel, improve, renovate, repair or decorate the Suite 110 Premises, the Suite 111 Premises, the Building, or any part thereof, or to provide any allowance for such purposes;

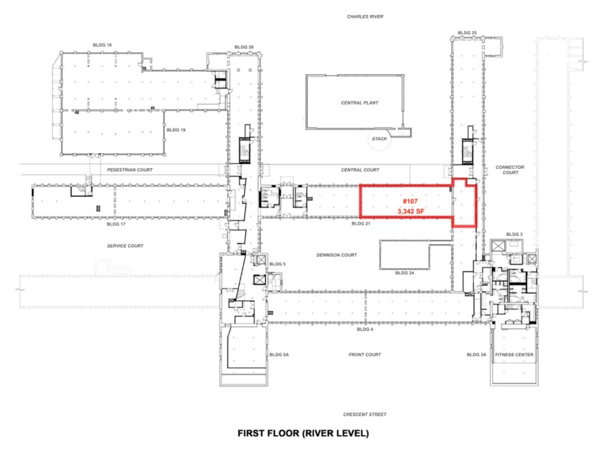
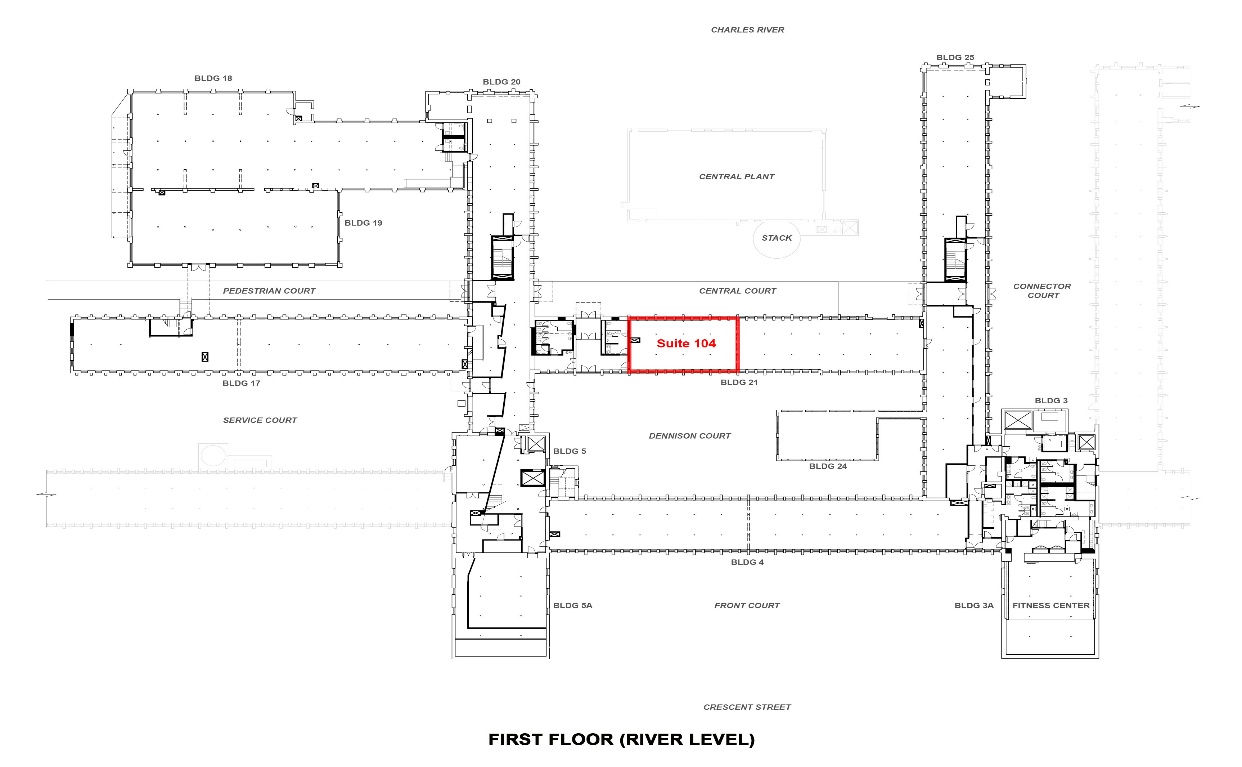
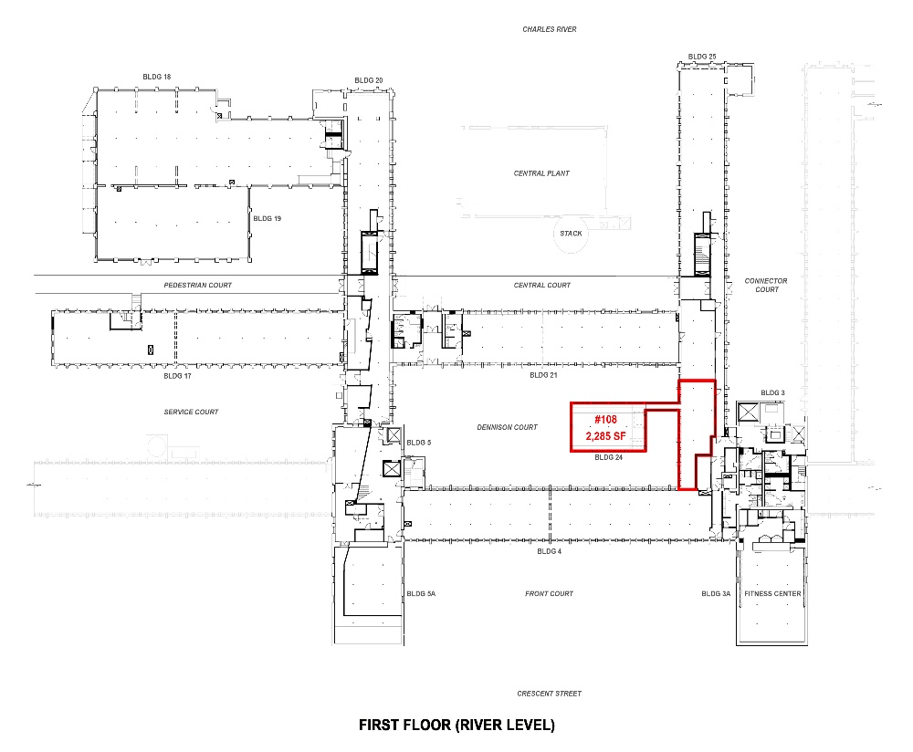
WHEREAS, Tenant has requested and Landlord has agreed to grant to Tenant an ongoing right of first refusal solely with respect to space, consisting of approximately 7,035 rentable square feet consisting of (a) approximately 1,408 rentable square feet located on the first (1st) floor of Building #21 (the “Suite 104 Premises”), (b) approximately 3,342 rentable square feet located on the first (1st) floor of Buildings #21 and #25 (the “Suite 107 Premises”), and (c) approximately 2,285 rentable square feet located on the first (1st) floor of Buildings #24 and 25 (the “Suite 108 Premises”), all as shown on the plan attached hereto as Exhibit A-1.8 (the “ROFR Expansion Premises”), subject to the rights of the current tenant, Earnix, Inc. (and any affiliate and successors or assigns of any of them) to renew or extend



its lease with respect to all or any portion of the ROFR Expansion Premises, and further subject to the pre-existing expansion rights of Devoted Health (and any affiliate and successor or assigns of any of them) to lease all or any portion of the ROFR Expansion Premises, and further subject to the pre-existing rights of any other tenants or occupants at the Watch Factory complex, and all in accordance with the terms of this Amendment; and

    WHEREAS, Landlord and Tenant desire to amend the Lease to (i) add the New Premises to the Premises, (ii) adjust the Base Rent, (iii) adjust the number of parking spaces available to Tenant, (iv) adjust Tenant’s Proportionate Share, and (v) provide Tenant with an ongoing right of first refusal with respect to the ROFR Expansion Premises, all in accordance with the terms and provisions as hereinafter set forth.

    NOW, THEREFORE, in consideration of Tenant's agreement to pay additional Base Rent as hereinafter set forth, for other good and valuable consideration, the receipt and sufficiency of which are hereby acknowledged, and for the mutual promises hereinafter set forth, Landlord and Tenant agree to amend the Lease, effective as of the Effective Date, as follows:

1.    Capitalized terms used herein and not otherwise defined shall have the meaning ascribed thereto in the Lease.

2.    The following definitions shall be added to Article 1 (Definitions) of the Lease:

Suite 110 Premises: approximately 2,737 rentable square feet located on the first (1st) floor of Building #4, and shown as Suite 110 on the plan attached hereto as Exhibit A-1.7.

Suite 110 Premises Commencement Date (“S110PCD”): The Suite 110 Premises Delivery Date. See Section 2.1.6 below.

Suite 110 Premises Rent Commencement Date (“S110PRCD”): The later to occur of (a) the Suite 110 Premises Delivery Date, or (b) September 15, 2025.

Suite 110 Premises Base Rent:


PeriodRSF Paying Rent OnBase Rent
Yearly Base
 Rent
Monthly Base
 Rent
S110PRCD – 7/31/2026$2,737$41.00/RSF$112,217.00$9,351.42
8/1/2026 – 7/31/2027$2,737$42.00/RSF$114,954.00$9,579.50
8/1/2027 – 7/31/2028$2,737$43.00/RSF$117,691.00$9,807.58
8/1/2028 – 7/31/2029$2,737$44.00/RSF$120,428.00$10,035.67

Suite 110 Premises Term: The period commencing on the Suite 110 Premises Commencement Date and ending at 11:59 P.M. on the Termination Date, unless sooner terminated or extended as provided in this Lease.

2025-09-06 BI-WatchFactory Viridian 6thAmend V5LFinal.doc    -2-


Suite 111 Premises: approximately 2,503 rentable square feet located on the first (1st) floor of Building #4, and shown as Suite #111 on the plan attached hereto as Exhibit A-1.7.

Suite 111 Premises Commencement Date (“S111PCD”): The Suite 111 Premises Delivery Date. See Section 2.1.7 below.

Suite 111 Premises Rent Commencement Date (“S111PRCD”): The later to occur of (a) the Suite 111 Premises Delivery Date, or (b) September 15, 2025.



Suite 111 Premises Base Rent:


PeriodRSF Paying Rent OnBase Rent
Yearly Base
 Rent
Monthly Base
 Rent
S111PRCD – 7/31/2026$2,503$41.00/RSF$102,623.00$8,551.92
8/1/2026 – 7/31/2027$2,503$42.00/RSF$105,126.00$8,760.50
8/1/2027 – 7/31/2028$2,503$43.00/RSF$107,629.00$8,969.08
8/1/2028 – 7/31/2029$2,503$44.00/RSF$110,132.00$9,177.67

Suite 111 Premises Term: The period commencing on the Suite 111 Premises Commencement Date and ending at 11:59 P.M. on the Termination Date, unless sooner terminated or extended as provided in this Lease.

Termination Date: July 31, 2029.

3.    The first sentence of the definition of “Additional Rent” appearing in Article 1 (Definitions) of the Lease is hereby deleted and replaced with the following:

(a) with respect to the Suite 103A Premises and the Suite 103B Premises, Tenant’s Proportionate Share (as defined below) of the cost of any (i) reasonable and customary operating expenses for the Buildings, the Common Areas and the Property (as defined below) as reasonably determined by Landlord (including, without limitation, gas, heat, air conditioning, electricity, water, sewer, cleaning, trash collection, snow removal and sanding, and insurance, as applicable) (the “Operating Expenses”) in excess of the Operating Expenses for Calendar Year 2024; and (ii) real estate taxes for the Property (as defined below) and the Buildings in excess of the real estate taxes imposed against the Property and the Buildings for Fiscal Year 2024 (July 1, 2023 – June 30, 2024); and (b) with respect to the Suite 110 Premises and the Suite 111 Premises, Tenant’s Proportionate Share (as defined below) of the cost of any (i) Operating Expenses in excess of the Operating Expenses for Calendar Year 2026; and (ii) real estate taxes for the Property (as defined below) and the Buildings in excess of the real estate taxes imposed against the Property and the Buildings for Fiscal Year 2026 (July 1, 2025 – June 30, 2026).”

4.    The following definitions set forth in Article 1 (Definitions) of the Lease shall be deleted in their entirety and replaced as follows:
2025-09-06 BI-WatchFactory Viridian 6thAmend V5LFinal.doc    -3-



Lease Year: With respect to the Suite 103A Premises, the first “Lease Year” shall be the period commencing on the Suite 103A Premises Commencement Date and ending on the last day of the calendar month in which the first anniversary of the Suite 103A Premises Rent Commencement Date occurs if the Suite 103A Premises Rent Commencement Date is other than the first day of a calendar month. If the Suite 103A Premises Rent Commencement Date is the first day of a calendar month, then the first “Lease Year” with respect to the Suite 103A Premises shall be the period commencing on the Suite 103A Premises Commencement Date and ending on the day (last of the calendar month) immediately prior to the first (1st) anniversary of the Suite 103A Premises Rent Commencement Date. With respect to the Suite 103B Premises, the first “Lease Year” shall be the period commencing on the Suite 103B Premises Commencement Date and ending on the last day of the calendar month in which the first anniversary of the Suite 103B Premises Rent Commencement Date occurs if the Suite 103B Premises Rent Commencement Date is other than the first day of a calendar month. If the Suite 103B Premises Rent Commencement Date is the first day of a calendar month, then the first “Lease Year” with respect to the Suite 103B Premises shall be the period commencing on the Suite 103B Premises Commencement Date and ending on the day (last of the calendar month) immediately prior to the first (1st) anniversary of the Suite 103B Premises Rent Commencement Date. With respect to the Suite 110 Premises, the first “Lease Year” shall be the period commencing on the Suite 110 Premises Commencement Date and ending on July 31, 2026. With respect to the Suite 111 Premises, the first “Lease Year” shall be the period commencing on the Suite 111 Premises Commencement Date and ending on July 31, 2026, it being the intention of the parties that the first “Lease Year” with respect to both the Suite 110 Premises and the Suite 111 Premises, be co-terminus. In either case of the Suite 103A Premises, the Suite 103B Premises, the Suite 110 Premises, or the Suite 111 Premises, each succeeding twelve (12) month period thereafter, as the case may be, shall be a Lease Year, with the final Lease Year of each of the Suite 103A Premises, the Suite 103B Premises, the Suite 110 Premises, or the Suite 111 Premises, all ending on the Termination Date.

Parking: From and after the date hereof, Tenant shall have the non-exclusive right, in common with Landlord and others, to use and occupy during the remainder of the Term up to sixty-one (61) parking spaces in the parking lots serving the Buildings as shown on Exhibit A-2, attached hereto, (“Parking Facilities”), all at no additional fee or cost, but subject to the reasonable rules and regulations established by Landlord from time to time of uniform application to all users, and of which Tenant has received prior notice. Landlord reserves the right in its sole discretion, from time to time, to modify, reconfigure, or relocate the Parking Facilities within reasonable proximity to the Parking Facilities as shown on Exhibit A-2 attached hereto.

Tenant’s Proportionate Share: (a) with respect to the Suite 103A Premises during the Suite 103A Premises Term, Six and Forty-Four One Hundredths percent (6.44%), (b) with respect to the Suite 103B Premises during the Suite 103B Premises Term, One and Seventy-Two One Hundredths percent (1.72%), (c) with respect to the Suite 110 Premises during the Suite 110 Premises Term, One and Sixty-Nine One Hundredths percent (1.69%), and (d) with respect to the Suite 111 Premises during the Suite 111 Premises Term, One and Fifty-Five One Hundredths percent (1.55%),which percentages have been determined by dividing the total number of rentable square feet in the Suite 103A Premises, Suite 103B Premises, the Suite 110 Premises, and the Suite 111 Premises respectively, by the Total Building Rentable Square Footage (161,790) and multiplying the resulting quotient by one hundred (100).
2025-09-06 BI-WatchFactory Viridian 6thAmend V5LFinal.doc    -4-



Term: (a) with respect to the Suite 103A Premises, the period commencing on the Suite 103A Premises Commencement Date and ending at 11:59 p.m. on the Termination Date, (b) with respect to the Suite 103B Premises, the period commencing on the Suite 103B Premises Commencement Date and ending at 11:59 p.m. on the Termination Date, (c) with respect to the Suite 110 Premises, the period commencing on the Suite 110 Premises Commencement Date and ending at 11:59 p.m. on the Termination Date, and (d) with respect to the Suite 111 Premises, the period commencing on the Suite 111 Premises Commencement Date and ending at 11:59 p.m. on the Termination Date, it being the intention of the parties that the Term with respect to the Suite 103A Premises, the Suite 103B Premises, the Suite 110 Premises, and the Suite 111 Premises, be co-terminus.

5.    The following shall be added as new Section 2.1.6 and new Section 2.1.7:

2.1.6    Suite 110 Premises: Landlord hereby leases to Tenant the Suite 110 Premises for the Suite 110 Premises Term, subject to the terms and conditions set forth herein. For the purposes of this Lease, the “Suite 110 Premises Delivery Date” shall be deemed to have occurred on the later to occur of (a) the full execution and delivery of this Amendment, and (b) the date Landlord has made the Suite 110 Premises available to Tenant.

2.1.7    Suite 111 Premises: Landlord hereby leases to Tenant the Suite 111 Premises for the Suite 111 Premises Term, subject to the terms and conditions set forth herein. For the purposes of this Lease, the “Suite 111 Premises Delivery Date” shall be deemed to have occurred on the later to occur of (a) the full execution and delivery of this Amendment, and (b) the date Landlord has made the Suite 111 Premises available to Tenant.

6.    The following shall be added as new Section 2.2.6 and new Section 2.2.7:

2.2.6    Acceptance of Suite 110 Premises. Tenant acknowledges and agrees that Tenant is accepting the Suite 110 Premises in its “as is” condition and Landlord shall not be obligated to construct any improvements on behalf of Tenant; provided however, Landlord shall deliver the Suite 110 Premises to Tenant free of other occupants and personal property and in broom clean condition with all systems serving the Building and Suite 110 Premises in good working condition. Landlord has no obligation and has made no promises to alter, remodel, improve, renovate, repair or decorate the Suite 110 Premises, the Building, or any part thereof, or to provide any allowance for such purposes, and that no representations respecting the condition of the Suite 110 Premises or the Building have been made by Landlord to Tenant (except as otherwise specifically set forth herein). Notwithstanding the foregoing, Landlord and Tenant shall reasonably agree on a date from and after the Suite 110 Premises Commencement Date by which Landlord shall remove any existing furniture located with the Suite 110 Premises.

2.2.7    Acceptance of Suite 111 Premises. Tenant acknowledges and agrees that Tenant is accepting the Suite 111 Premises in its “as is” condition and Landlord shall not be obligated to construct any improvements on behalf of Tenant; provided however, Landlord shall deliver the Suite 111 Premises to Tenant free of other occupants and personal property and in broom clean condition with all systems serving the Building and Suite 111 Premises in good working condition. Landlord has no obligation and has made no promises to alter, remodel, improve, renovate, repair or decorate the Suite 111 Premises, the Building, or any part thereof, or to provide any allowance for such purposes, and that no representations respecting the condition of
2025-09-06 BI-WatchFactory Viridian 6thAmend V5LFinal.doc    -5-


the Suite 111 Premises or the Building have been made by Landlord to Tenant (except as otherwise specifically set forth herein). Notwithstanding the foregoing, Landlord and Tenant shall reasonably agree on a date from and after the Suite 111 Premises Commencement Date by which Landlord shall remove any existing furniture located with the Suite 111 Premises.


7.    Section 2.7 shall be deleted in its entirety and replaced with the following:

2.7. Expansion; Right of First Refusal. Tenant shall have an on-going right, strictly in accordance with this Section 2.7, and subject to the rights of any of Landlord’s other existing tenants in the Buildings, including without limitation, Earnix, Inc. (and any affiliate and successors or assigns of any of them) to renew or extend its existing lease (with or without Landlord’s consent) with respect to all or any portion of the ROFR Expansion Premises, and further subject to the pre-existing expansion rights of Devoted Health (and any affiliate and successor or assigns of any of them) to lease all or any portion of the ROFR Expansion Premises, to the to lease (a) approximately 1,408 rentable square feet located on the first (1st) floor of Building #21 (the “Suite 104 Premises”), (b) approximately 3,342 rentable square feet located on the first (1st) floor of Buildings #21 and #25 (the “Suite 107 Premises”), and (c) approximately 2,285 rentable square feet located on the first (1st) floor of Buildings #24 and 25 (the “Suite 108 Premises”), and as shown on the plan attached hereto as Exhibit A-1.8 (each suite individually and collectively, the “ROFR Expansion Premises”) on the following terms and conditions: (i) Landlord shall notify Tenant in writing that Landlord has received a signed offer to lease the ROFR Expansion Premises which Landlord is prepared to accept and the basic terms and conditions of such offer (“Landlord’s ROFR Notice”); (ii) Tenant shall be entitled to lease the ROFR Expansion Premises upon the same terms and conditions as contained in Landlord’s ROFR Notice; (iii) there shall remain not less than twenty-four (24) months remaining in the unexpired initial Term of this Lease, or if there shall remain less than twenty-four (24) months remaining in the initial Term of this Lease, Landlord’s ROFR Notice shall include Landlord’s determination of Prevailing Market Rate (for the then existing Premises) in accordance with Section 2.6 above and Tenant’s election to lease the ROFR Expansion Premises shall be conditioned upon Tenant exercising its option to extend the Term of this Lease for the Extended Term, pursuant to Section 2.6 hereof; (iv) Tenant shall have ten (10) business days from receipt of Landlord's ROFR Notice, time being of the essence, to notify Landlord in writing that Tenant elects to lease the ROFR Expansion Premises on such terms and conditions as are set forth in Landlord’s ROFR Notice, and otherwise as set forth herein, or that Tenant disputes Landlord’s calculation of Prevailing Market Rate, in which case Landlord and Tenant shall proceed with the appraisal procedure set forth in Section 2.6 above, and Tenant's failure to so timely notify Landlord shall be deemed a waiver of the right to lease the ROFR Expansion Premises in accordance with this Section 2.7 and Landlord shall be entitled to lease the ROFR Expansion Premises (or such applicable portion of the ROFR Expansion Premises included in Landlord’s ROFR Notice) free and clear of any rights of Tenant; provided however, if Landlord subsequently reduces the economic terms set forth in Landlord’s ROFR Notice by 10% or more, Landlord shall again offer the ROFR Expansion Premises to Tenant pursuant to the terms of this Section 2.7; (v) the ROFR Expansion Premises shall be leased in its then "as is" condition except as set forth in Landlord’s ROFR Notice; (vi) Tenant may utilize any furniture located within the ROFR Expansion Premises until Tenant provides Landlord with a one-time written notice to Landlord within sixty (60) days of taking possession of the ROFR Expansion Premises, of Tenant’s election to have Landlord remove such existing furniture, in which event Landlord shall promptly remove such furniture from the ROFR Expansion Premises at Landlord’s sole cost and expense,
2025-09-06 BI-WatchFactory Viridian 6thAmend V5LFinal.doc    -6-


and (vii) within ten (10) business days of Tenant’s receipt from Landlord of an amendment to this Lease solely reflecting Tenant's exercise of its option for the ROFR Expansion Premises and reflecting the modification of only the applicable terms of the Lease which relate to Tenant’s exercise of its option for the ROFR Expansion Premises including, without limitation, the Base Rent and Additional Rent, time being of the essence, Tenant shall execute such amendment and return same to Landlord. Tenant’s failure to timely comply with any of the above conditions, time being of the essence, shall be deemed Tenant’s waiver of the rights contained in this Section 2.7 to lease such portion of the ROFR Expansion Premises included in Landlord’s ROFR Notice), and thereafter Tenant shall have no further rights with respect to such portion of the ROFR Expansion Premises included in Landlord’s ROFR Notice. At Landlord's option, Tenant's exercise of its option for the ROFR Expansion Premises shall be effective only if, at the time of Tenant's notice and through the date on which Landlord is to deliver the ROFR Expansion Premises to Tenant, there is no default under this Lease, or condition which would be a default with the passage of time and/or the giving of notice. Notwithstanding anything contained in this Section 2.7 to the contrary, (i) Tenant’s right to lease the ROFR Expansion Premises, or any portion thereof, shall expire on the date which is nine (9) months prior to the expiration of the initial Term, unless Tenant has exercised its right to extend the Term of this Lease for the Extended Term in accordance with Section 2.6 hereof, (ii) in the event Tenant has exercised its right to extend the Term of this Lease for the Extended Term in accordance with Section 2.6 hereof, Tenant’s right to lease the ROFR Expansion Premises, or any portion thereof, shall expire on the date which is twenty four (24) months prior to the expiration of the Extended Term. Upon Tenant’s waiver or deemed waiver of its rights to lease any portion of the ROFR Expansion Premises, such portion shall be deemed removed from the ROFR Expansion Premises and Tenant shall have no further rights under this Section 2.7 with respect to such portion of ROFR Expansion Premises so removed.

8.    Section 3.1 of the Lease is hereby deleted in its entirety and shall be replaced by the following:

3.1. Base Rent and Additional Rent. From and after (i) the Suite 103A Premises Rent Commencement Date with respect to the Suite 103A Premises, (ii) the Suite 103B Premises Rent Commencement Date with respect to the Suite 103B Premises, (iii) the Suite 110 Premises Rent Commencement Date with respect to the Suite 110 Premises, and (iv) the Suite 111 Premises Rent Commencement Date with respect to the Suite 111 Premises, Tenant agrees to pay the Suite 103A Base Rent, with respect to the Suite 103A Premises, the Suite 103B Base Rent, with respect to the Suite 103B Premises, the Suite 110 Base Rent, with respect to the Suite 110 Premises, the Suite 111 Base Rent, with respect to the Suite 111 Premises, and the Additional Rent in lawful money of the United States in advance on the first day of each and every calendar month during the Term of this Lease, at the Payment Address or at such other place as Landlord may from time to time designate by notice. Landlord may, from time to time, (but not more frequently than once for each calendar year) provide Tenant with an estimate of the Additional Rent for the coming year and such estimated Additional Rent shall be payable by Tenant to Landlord in accordance with the provisions of the preceding sentence in 12 equal monthly installments. The Suite 103A Premises Base Rent, the Suite 103B Premises Base Rent, the Suite 110 Premises Base Rent, the Suite 111 Premises Base Rent, and Additional Rent for any partial month shall be prorated on the basis of a 30 day month.

9.    Exhibit A-1.7 attached hereto showing the Suite 110 Premises and the Suite 111 Premises shall be added as new Exhibit A-1.7 of the Lease.

2025-09-06 BI-WatchFactory Viridian 6thAmend V5LFinal.doc    -7-


10.    Exhibit A-1.8 attached hereto showing the ROFR Expansion Premises shall be added as new Exhibit A-1.8 of the Lease.

11.    Tenant and Landlord each represent and warrant to the other that it has not directly or indirectly dealt, with respect to the leasing of office space in the Building, including without limitation, the Suite 110 Premises, and the Suite 111 Premises with any broker or had its attention called to the Premises, Suite 110 Premises, the Suite 111 Premises or other space to let in the Building by anyone other than Newmark. Landlord assumes sole responsibility for compensating such brokers. Notwithstanding the foregoing, if Tenant fails to take occupancy of either the Suite 110 Premises of the Suite 111 Premises, due to Tenant’s fault, Tenant shall reimburse Landlord for any amounts that Landlord has or will pay to any brokers.

12.    From and after the S110PCD, all references appearing in the Lease to the Premises shall be amended and read hereafter to be references to the Original Premises, the Suite 110 Premises, and the Suite 111 Premises, unless specifically set forth in this Amendment to the contrary.

13.    From and after the S110PCD, all references appearing in the Lease to the Rent shall be amended and read hereafter to include, without limitation, the Suite 110 Premises Base Rent.

14.    From and after the S111PCD, all references appearing in the Lease to the Rent shall be amended and read hereafter to include, without limitation, the Suite 111 Premises Base Rent.

15.    The Lease is hereby ratified and confirmed and, as modified by this Amendment, shall remain in full force and effect.

16.    All references appearing in the Lease and in any related instruments shall be amended and read hereafter to be references to the Lease as amended by this Amendment.

17.    This Amendment shall have the effect of an agreement under seal and shall be binding upon and inure to the benefit of the parties hereto and their respective heirs, executors, administrators, successors and assigns.

18.    Except as otherwise specifically provided herein, all of the terms and conditions of the Lease shall remain in full force and effect for the extended Lease term and this Amendment is effective as of the date first set forth above.

19.    This Amendment may be executed in multiple counterparts, each of which shall be deemed an original, and all of which shall constitute one and the same agreement. This Amendment (and any further amendments to the Lease and any other instruments relating to the transactions contemplated hereby, other than any instruments to be recorded, witnessed and/or notarized) may be electronically signed by the parties by the use of DocuSign, which will be treated as an original copy as though ink-signed by officers or other duly authorized representatives of such party. Ink-signed or electronically signed executed copies hereof may be delivered by telecopier or email and upon receipt will be deemed originals and binding upon the parties hereto.

[Remainder of Page Intentionally Blank. Signatures on the Following Page.]

2025-09-06 BI-WatchFactory Viridian 6thAmend V5LFinal.doc    -8-


EXECUTED under seal as of the date first set forth above.

LANDLORD:    WATCH CITY VENTURES MT LLC,
    a Massachusetts limited liability company

    By: Berkeley Watch MM LLC, its Managing Member


By:    /s/ Young Park                    
Name:    Young Park                     
Its:    Authorized Signatory                
(hereunto duly authorized)



TENANT:    VIRIDIAN THERAPEUTICS, INC.,
    a Delaware corporation


By:     /s/ Steve Mahoney        
Name: Steve Mahoney
Title: CEO


By:    /s/ Jennifer Tousignant        
Name: Jennifer Tousignant
Title: Secretary


2025-09-06 BI-WatchFactory Viridian 6thAmend V5LFinal.doc    -9-

Final

EXHIBIT A-1.7
PLAN SHOWING SUITE 110 PREMISES and SUITE 111 PREMISES
exa-17firstfloorriverlevela.jpg



image_1a.jpg
2025-09-06 BI-WatchFactory Viridian 6thAmend V5LFinal.doc    2



EXHIBIT A-1.8

PLAN SHOWING ROFR EXPANSION PREMISES

Suite 104, Suite 107 and Suite 108
image_2a.jpg
2025-09-06 BI-WatchFactory Viridian 6thAmend V5LFinal.doc    3


exa-18suite107a.jpg
image_4a.jpg

2025-09-06 BI-WatchFactory Viridian 6thAmend V5LFinal.doc    4