EX-10.2 3 sum-ex102leasexsummitthera.htm EX-10.2 Document

LEASE AGREEMENT

by and between

BRICKELL KEY CENTRE, LLC

(“Landlord”)

and

SUMMIT THERAPEUTICS INC.

(“Tenant”)

dated

    , 2024

for

Suite Number 1000 containing approximately 9,425 rentable square feet Brickell Key Centre II
601 Brickell Key Drive, Miami, Florida 33131





TABLE OF CONTENTS
SECTION 1:    Terms & Definitions    1
SECTION 2:    Premises    3
SECTION 3:    Authorized Use    3
SECTION 4:    Term    3
SECTION 5:    Rental Payment.    4
SECTION 6:    Rent    4
SECTION 7:    Operating Expenses and Taxes    4
SECTION 8:    Letter of Credit    7
SECTION 9:    Tenant Improvements    8
SECTION 10: Maintenance and Repair    8
SECTION 11: Services    9
SECTION 12: Electrical Usage    9
SECTION 13: Communication Lines    9
SECTION 14: Prohibited Use    10
SECTION 15: Legal Requirements; Project Rules    10
SECTION 16: Alterations, Additions, and Improvements    10
SECTION 17: Tenant’s Equipment    11
SECTION 18: Taxes and Tenants Property    11
SECTION 19: Access    12
SECTION 20: Tenant’s Insurance    12
SECTION 21: Intentionally Deleted    12
SECTION 22: Waiver of Subrogation; Mutual Waiver of Liability    12
SECTION 23: Casualty    13
SECTION 24: Condemnation    13
SECTION 25: Waiver of Claims    14
SECTION 26: Indemnity    14
SECTION 27: Non-Waiver    14
SECTION 28: Quiet Possession    14
SECTION 29: Notices    14
SECTION 30: Landlord’s Failure to Perform    15
SECTION 31: Tenant’s Failure to Perform    15
SECTION 32: Default    15
SECTION 33: Surrender    16



SECTION 34: Holding Over    16
SECTION 35: Removal of Tenant’s Property    16
SECTION 36: Landlord’s Lien    17
SECTION 37: Intentionally Omitted    17
SECTION 38: Assignment and Subletting    17
SECTION 39: Merger of Estates.    18
SECTION 40: Limitation of Liability    18
SECTION 41: Subordination    18
SECTION 42: Legal Interpretation    19
SECTION 43: Use of Names and Signage    19
SECTION 44: Relocation    19
SECTION 45: Brokerage Fees    19
SECTION 46: Successors and Assigns    20
SECTION 47: Force Majeure    20
SECTION 48: Parking    20
SECTION 49: Rooftop Antenna    20
SECTION 50: Attorneys’ Fees    20
SECTION 51: Tenant Certification    20
SECTION 52: Memorandum of Lease    21
SECTION 53: Financial Statements    21
SECTION 54: Intentionally Omitted    21
SECTION 55: Radon Gas    21
SECTION 56: Governing Law    21
SECTION 57: Entire Agreement    21
SECTION 58: Multiple Counterparts; Electronic Signature    21
SECTION 59: No Liens    21


EXHIBITS:

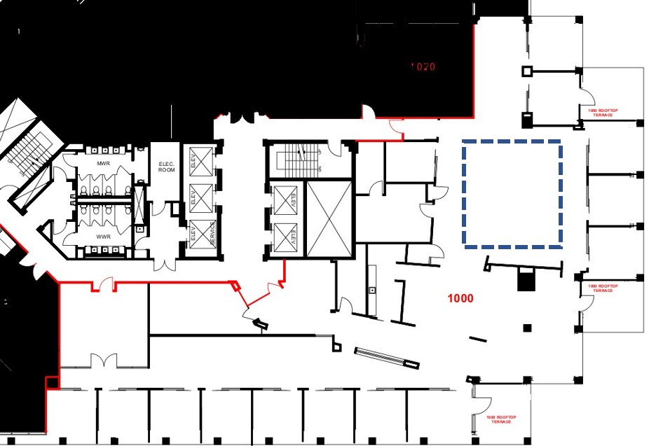
EXHIBIT A:    Floor Plan of Premises EXHIBIT B:    Cleaning and Janitorial Services
EXHIBIT C:    Rules and Regulations of Building



EXHIBIT D:    Work Letter

EXHIBIT E:    Certificate Confirming Lease Dates and Base Rent EXHIBIT F:    Supplemental HVAC Equipment



LEASE AGREEMENT

This LEASE AGREEMENT (“Lease”) is entered into as of     , 2024 (the “Effective Date”), by and between BRICKELL KEY CENTRE, LLC, a Delaware limited liability company (“Landlord”), and SUMMIT THERAPEUTICS INC., a Delaware corporation (“Tenant”). In consideration of the mutual covenants set forth herein, Landlord and Tenant agree as follows:

1.Terms and Definitions. The following definitions and terms apply to this Lease (other words are defined elsewhere in the text of this Lease):

(a)Tenant’s Current Address”: 2882 Sand Hill Road, Suite 106, Menlo Park, CA.

(b)Premises”: Suite 1000 in the Brickell Key Centre II building (the “Building”) located on land with an address of 601 Brickell Key Drive, Miami, Florida 33131 (the “Land”).

(c)Rentable Area of Premises”: 9,425 rentable square feet (“RSF”).

(d)Rentable Area of Building”: 225,283 RSF.

(e)Pro-rata Share”: Tenant’s pro-rata share is 4.18%, which is determined by dividing the Rentable Area of Premises by the Rentable Area of Building.

(f)Term”: a period of approximately sixty-four (64) months beginning on the Commencement Date and expiring at 6 o’clock PM local time on the Expiration Date.

(g)Lease Year”: each successive twelve (12) month period throughout the Term; provided that the first Lease Year shall commence on the Commencement Date and expire (i) on the last day of the month preceding the first anniversary of the Commencement Date, if the Commencement Date occurs on the first day of the month; or (ii) on the last day of the month in which the first anniversary of the Commencement Date occurs, if the Commencement Date occurs on a day other than the first day of the month; each subsequent Lease Year shall commence on the day following the expiration of the previous Lease Year; and, the last Lease Year shall expire upon the expiration of the Term.

(h)Commencement Date”: Subject to and upon the terms and conditions set forth herein, the Commencement Date of this Lease shall be the earlier of (i) the date Tenant takes possession of all or any portion of the Premises for the purpose of conducting Tenant’s business therein; (ii) the fifteenth (15th) day following the substantial completion of Landlord’s Work (as such term is hereinafter defined); or (iii) February 1, 2024.

(i)Expiration Date”: The last day of the sixty-fourth (64th) full calendar month following the Commencement Date.

(j)Base Rent”: the amounts specified in the chart below, to be paid by Tenant according to the provisions hereof:
Base Rent
Suite 1000
9,425 RSF

Period
Base Rent per RSF*
Monthly Base Rent Amount*
Commencement Date –
Month 12

$95.00

$74,614.58
1


Months 13 – 24
$97.85
$76,853.02
Months 25 – 36
$100.79
$79,162.15
Months 37 – 48
$103.81
$81,534.10
Months 49 – 60
$106.92
$83,976.75
Months 61 – 64
$110.13
$86,497.94
* Plus applicable State sales tax.

Provided that no Default, defined below, exists at the time of the abatement provided below, Tenant’s monthly installments of Base Rent shall be abated for the entire Premises for the four (4) month period commencing upon (i) December 1, 2024 and expiring on December 31, 2024, (ii) December 1, 2025 and expiring on December 31, 2025, (iii) December 1, 2026 and expiring on December 31, 2026, and (iv) December 1, 2027 and expiring on December 31, 2027, as each such installment becomes due, for a total abatement of Base Rent during such period in the amount of $312,163.85 (collectively the “Abated Base Rent”). The principal amount of the Abated Base Rent shall be amortized evenly over the Term. So long as no uncured Default, defined below, occurs under this Lease, then upon Landlord’s receipt of the final monthly installment of Rent, defined below, Tenant shall have no liability to Landlord for the repayment of any portion of the Abated Base Rent. In the event of an uncured Default, then in addition to all of Landlord’s other remedies available under the Lease, Tenant shall also become immediately liable to Landlord for the unamortized portion of the Abated Base Rent existing as of the date of such uncured Default. Provided, however, that if Landlord elects to exercise its rights under Section 32 of this Lease to accelerate the entire amount of all Rent and other charges due from Tenant for the balance of the Term (in accordance with the terms of such Section), and Landlord obtains a judgment for, or is paid by Tenant, the entire amount of such accelerated sum, then such judgment for or payment of such accelerated sum shall preclude a separate recovery by Landlord under the foregoing terms of this Section of such unamortized portion of the Abated Base Rent and any interest thereon.

(k)Base Year”: Calendar year 2024.

(l)Tenant Improvements”: the improvements to be made to the Premises by Tenant in accordance with the work letter attached hereto as Exhibit D (the “Work Letter”).

(m)Letter of Credit Amount”: $300,000.00

(n)Guarantor”: None.

(o)Parking Spaces”: Available, parking in the Building’s Parking Facility at a ratio of 2.6 parking spaces per one thousand (1,000) rentable square feet of the Premises (the “Parking Ratio”), on an unreserved basis in common with other tenants of the Building, in locations as determined by Landlord, at the current rate of $160.00 per unreserved space, per month, plus applicable sales tax and surcharges, with such rate subject to increase from time to time as determined by Landlord. As a part of the aforementioned Parking Ratio, Tenant shall have the right to lease up to two (2) reserved parking spaces within the Parking Facility, in locations reasonably determined by Landlord, at the current rate of $280.00 per reserved space, per month, plus applicable sales tax and surcharges, with such rate subject to increase from time to time as determined by Landlord.

(p)Tenant’s Broker” is: EWM.

(q)Landlord’s Broker” is: CBRE, Inc.

(r)Laws” shall mean any and all laws, ordinances, rules, regulations and building and other codes of any governmental or quasi-governmental entity or authority (“Governmental Authority”) applicable to the subject matter hereof, including, without limitation, all Laws relating to disabilities, health, safety or the environment.
2



(s)Project”: shall mean the Building, Land, the adjacent land and building commonly known as Brickell Key Centre I located at 501 Brickell Key Drive, Miami, Florida, any areas designated by
Landlord from time to time for the common use of all tenants and occupants of the Building (“Common Areas”), including, but not limited to, the parking facility for the Building designated by Landlord from time to time (the “Parking Facility”), walkways, greenspace, plaza and common areas, and related equipment, fixtures and improvements, as the same may be now located or hereafter erected, located or placed thereon.

(t)Building Standard”: The quantity and quality of materials, finishes and workmanship from time to time specified by Landlord for use throughout the Building. “Above Standard” means all improvements, fixtures, materials, finishes and workmanship which exceed Building Standard in terms of quantity or quality (or both), including but not limited to Supplemental HVAC Equipment, defined below; water heaters, instant hot faucets, garbage disposals, dishwashers, stoves, microwaves, refrigerators, ice machines, coffee machines, washing machines, dryers or other appliances; and sinks, sink fixtures, sink drain lines, appliance drain lines, water source plumbing, ground fault interrupters, dedicated outlets or other similar plumbing and/or electrical fixtures or items.

(u)Building Systems”: The mechanical, electrical, plumbing, sanitary, sprinkler, heating, ventilation and air conditioning (“HVAC”), security, life-safety, elevator and other service systems or facilities of the Building up to the point of connection of localized distribution to the Premises.

2.Premises. Subject to and in accordance with the provisions hereof, Landlord leases to Tenant and Tenant leases from Landlord the Premises as designated on Exhibit A. Tenant agrees that, except as expressly stated herein and in the Work Letter, if any, attached to this Lease, no representations or warranties relating to the condition of the Project or the Premises and no promises to alter, repair or improve the Premises have been made by Landlord. Except as otherwise expressly provided in this Lease or any Work Letter attached hereto, Tenant agrees to accept the Premises in their current “AS IS, WHERE IS” condition and acknowledges that LANDLORD MAKES NO WARRANTIES, EXPRESSED OR IMPLIED, INCLUDING, BUT NOT LIMITED TO, IMPLIED WARRANTIES OF MERCHANTABILITY, HABITABILITY AND/OR FITNESS FOR A PARTICULAR PURPOSE, IN CONNECTION WITH THE PREMISES OR THE LANDLORD’S WORK. Upon Tenant’s taking possession for the purposes of conducting business, the Premises, including all Landlord’s Work, shall be deemed accepted by Tenant. Tenant shall also have the non-exclusive right, subject to the terms hereof, to use the Common Areas of the Project. Tenant acknowledges that the Project is or may become an integrated commercial real estate project including the Building, the Land and other buildings, Common Areas and land. Landlord reserves the right, in its sole discretion, at any time and from time to time, to include the Building within a project and/or to expand and/or reduce the amount of Land and/or improvements of which the Building, the Common Areas, or Project consists; to alter, relocate, reconfigure and/or reduce the Common Areas; to temporarily suspend access to portions of the Common Areas, as long as the Premises remain reasonably accessible; and to make all changes, alterations, additions, improvements, repairs or replacements to the Building and Building systems, including changing the arrangement or location of entrances or passageways, doors and doorways, corridors, elevators, stairs, toilets or other Common Areas (collectively, “Restorative Work”), as Landlord reasonably deems necessary, and to take all materials into the Premises required for the performance of such Restorative Work. Landlord shall use commercially reasonable efforts to minimize interference with Tenant's use and occupancy of the Premises during the performance of such Restorative Work. There shall be no Rent abatement or allowance to Tenant for a diminution of rental value, no actual or constructive eviction of Tenant, in whole or in part, no relief from any of Tenant's other obligations under this Lease, and no liability on the part of Landlord by reason of inconvenience, annoyance or injury to business arising from Landlord altering, relocating, reconfiguring, and/or reducing the Common Areas, and/or performing any Restorative Work.

3.Authorized Use. Tenant shall use the Premises solely for general business office purposes, consistent with the uses of office buildings (the “Authorized Use”), and for no other purpose.

3


4.Term. This Lease shall constitute a legally binding and enforceable agreement between Landlord and Tenant as of the Effective Date. The Term of this Lease is stated in Section 1(f), and the Commencement Date shall be determined as provided in Section 1(h). Landlord and Tenant shall confirm the Commencement Date and Expiration Date in writing within thirty (30) days after the actual Commencement Date pursuant to the form certificate attached as Exhibit E.

5.Rental Payment. Commencing on the Commencement Date, Tenant agrees to pay Rent (defined below) in monthly installments on or before the first day of each calendar month during the Term, in lawful money of the United States of America via wire to Landlord’s wire instructions as set forth below or to the following address or to such other address as Landlord may designate from time to time in writing: Brickell Key Centre, LLC, c/o Masaveu & C/O Management Real Estate US LLC, P.O. Box 531828, Atlanta, Georgia 30353-1828:

Landlord's wire instructions are as follows:

Wire Transfers:
Account Name: Brickell Key Centre LLC Account Number: 1029060888
Bank Name: PNC
ACH Routing Number: 043000096 Wire Routing Number: 043000096

Notwithstanding the foregoing, the first full monthly installment of Base Rent due under this Lease shall be paid in advance on the date of Tenant’s execution of this Lease and shall be applied to the first full monthly installment of Base Rent due hereunder. Tenant agrees to timely pay all Base Rent, Additional Rent, defined below, and all other sums of money which become due and payable by Tenant to Landlord hereunder (collectively “Rent”), without abatement, demand, offset, deduction or counterclaim. If Tenant fails to pay part or all of the Rent within seven (7) days after it is due, Tenant shall also pay as a part of the Rent due from Tenant hereunder a late charge equal to five percent (5%) of the unpaid Rent or the maximum then allowed by law, whichever is less; provided, however, that with respect to Tenant’s first late Rent payment during the Term only, Landlord shall provide Tenant with five (5) days prior written notice before it applies the aforementioned late charge. Landlord may assess a reasonable fee to Tenant for any checks made payable to Landlord that are returned unpaid by Tenant’s bank for any reason. If the Term does not begin on the first day of a calendar month, the installment of Rent for that partial month shall be prorated.

6.Rent. Tenant shall pay to Landlord the Base Rent for the Premises in the amounts set forth in Section 1. Base Rent includes a component attributable to Operating Expenses (defined below) for the Base Year as specified in Section 1 (“Base Operating Expenses”), and to Taxes (defined below) for the Base Year (“Base Taxes”). Prior to January 1 of each year in the Term (or as soon thereafter as it is reasonably able to do so), Landlord shall provide Tenant with an estimate of Operating Expenses and Taxes for the next calendar year in the Term (each, an “Operating Period”). If Operating Expenses during any Operating Period, as estimated by Landlord, exceed Base Operating Expenses, Tenant shall pay to Landlord for such Operating Period an amount equal to the product of (a) the difference between Operating Expenses for such Operating Period and the Base Operating Expenses, multiplied by (b) the Pro-rata Share; and if Taxes during any Operating Period, as estimated by Landlord, exceed Base Taxes, Tenant shall pay to Landlord for such Operating Period an amount equal to the product of (i) the difference between Taxes for such Operating Period and the Base Taxes, multiplied by (ii) the Pro-rata Share (the sum of such amounts being collectively referred to herein as “Additional Rent”); such Additional Rent shall be paid in monthly installments of one twelfth (1/12) of the Additional Rent owed from Tenant for such Operating Period, with such installments being due at the same time and in the same manner as Tenant’s monthly payments of Base Rent.

7.Operating Expenses and Taxes. (a) Definitions of Operating Expenses and Taxes. “Operating Expenses,” as used herein, shall mean all expenses, costs and disbursements of every kind and nature relating to or incurred or paid during any Operating Period in connection with the ownership, operation, repair and maintenance of the Project, including, but not limited to, wages and salaries of all employees engaged in the operation, maintenance or security of the Project, whether billed directly or through a common or master association, including taxes,
4


insurance and benefits relating thereto; the cost of all labor, supplies, equipment, materials and tools used in the operation and maintenance of the Project; management fees; the cost of all legal and accounting expenses incurred in connection with the management and operation of the Project; the cost of all utilities for the Project, including, but not limited to, the cost of HVAC, water, sewer, waste disposal, gas, and electricity; the cost of all maintenance and service agreements for the Project, including but not limited to, security service, window cleaning, elevator maintenance and janitorial service; the cost of all insurance relating to the Project and Landlord’s personal property used in connection therewith, plus the cost of all deductible payments made by Landlord in connection therewith; the cost of all license and permit fees; the cost of repairs, replacements, refurbishing, restoration and general maintenance; a reasonable amortization charge on account of any capital expenditure incurred in an effort (i) to comply with any Laws, or (ii) to reduce the Operating Expenses of the Project; costs billed to the Building, Project or Landlord through a declaration or any cross-easement agreement which encumbers the Project, or any declaration of condominium or other like instrument that encumbers any or all of the improvements on the Project; costs or assessments required to be paid by Landlord in connection with any community improvement district; and, all other items constituting operating and maintenance costs in connection with the Project according to generally accepted accounting principles (“GAAP”); the cost of insurance endorsements in order to repair, replace and re-commission the Building for re- certification after any loss pursuant to the U.S. EPA’s ENERGY STAR® rating and/or Design to Earn ENERGY STAR, the Green Building Initiative’s Green Globes™ for Continual Improvement of Existing Buildings (Green Globes™-CIEB), the U.S. Green Building Council’s Leadership in Energy and Environmental Design (LEED) rating system, or other applicable standard, or to support achieving energy and carbon reduction targets, and all costs of maintaining, managing, reporting, commissioning, and re-commissioning the Building or any part thereof that was designed and/or built to be sustainable and conform with the U.S. EPA’s ENERGY STAR® rating and/or Design to Earn ENERGY STAR, the Green Building Initiative’s Green Globes™ for Continual Improvement of Existing Buildings (Green Globes™-CIEB), the U.S. Green Building Council’s Leadership in Energy and Environmental Design (LEED) rating system, or other applicable standard, provided however, the cost of such application, reporting and commissioning of the Building or any part thereof to seek certification shall be a cost capitalized and thereafter amortized as an Operating Expense under GAAP. Except as specifically provided in the immediately preceding sentence, Operating Expenses shall not include the following: (i) depreciation, (ii) leasing commissions, (iii) repairs and restorations paid for by the proceeds of any insurance policy, (iv) construction of improvements of a capital nature, (v) income and franchise taxes other than that portion, if any, of income and franchise taxes which may hereafter be assessed and paid in lieu of or as a substitute in whole or in part for Taxes, or (vi) costs of utilities directly charged to and reimbursed by Tenant or other tenants. “Taxes,” as used herein, means all ad valorem taxes, personal property taxes, and all other taxes, assessments, and all other similar charges, if any, which are levied, assessed, or imposed upon or become due and payable in connection with, or a lien upon, the Project or any portion thereof or facilities used in connection therewith, and all taxes of whatsoever nature that are imposed in substitution for or in lieu of any of the taxes, assessments, or other charges included in this definition of Taxes, such as taxes paid through a private agreement with respect to the Property as a part of or in connection with an inducement resolution with a development authority and all costs, expenses and fees associated or incurred by Landlord in connection with that inducement resolution and transaction involving a development authority; but excluding, however, taxes and assessments attributable to the personal property of tenants and paid by such tenants as a separate charge. In the event Landlord shall retain any consultant to negotiate the amount of taxes, tax rate, assessed value or other factors influencing the amount of Taxes, then the aggregate of all such reasonable third-party fees (including, without limitation, reasonable attorneys’ and appraisers’ fees) and all disbursements, court costs and other items paid or incurred by Landlord during the applicable tax year with respect to such proceedings shall be included in Taxes. Tenant shall not institute any proceedings with respect to the assessed valuation of the Building, Project, or the Property or any part thereof for the purpose of seeking or securing a tax reduction. If a rental tax, gross receipts tax or sales tax on Rent is imposed on Landlord by any Governmental Authority, Tenant shall, as additional Rent, reimburse Landlord, at the same time as each monthly payment of Rent is due, an amount equal to all such taxes Landlord is required to pay by reason of the Rent paid hereunder. If less than ninety-five percent (95%) of the Rentable Area of the Building is actually occupied during any Operating Period, Operating Expenses shall be the amount that such Operating Expenses would have been for such Operating Period had ninety-five percent (95%) of the Rentable Area of the Building been occupied during all such Operating Period, as determined by Landlord. Notwithstanding any other provision of the Lease to the contrary, Landlord agrees that, for purposes of calculating Operating Expenses, the portion of Operating Expenses for each calendar year after the first full calendar year after the Base Year occurs that consists of Controllable Operating Expenses (as hereinafter defined) shall not increase more than five percent (5%) per year, on a cumulative and compounding basis. As used herein, the term
5


Controllable Operating Expenses” shall mean only Operating Expense which are within the reasonable control of Landlord; thus, Controllable Operating Expenses exclude the following (and the following shall not be capped): taxes, insurance, utilities (including, without limitation, water, sewer, waste disposal, gas, electricity and power for heating, lighting, air conditioning and ventilations), security, snow and ice removal and other weather-related costs, costs incurred to comply with governmental requirements or law, third party or contract labor costs (including, without limitation, labor costs for third party or contract janitorial and security personnel), increase in minimum wages and/or union rates, and other costs beyond the reasonable control of Landlord. Any such Operating Expenses that cannot be passed through to Tenant in a given year may be carried forward to and passed through to Tenant, as Additional Rental, in subsequent calendar years, if any, if such increase in Operating Costs does not cause total Operating Expenses to exceed the foregoing limitations. Notwithstanding the foregoing, in all events Landlord shall be entitled to the management fee contribution set forth in Section 3(y) above.
(b)Additional Rent. Landlord shall, within one hundred twenty (120) days after the end of each Operating Period (or as soon thereafter as it is reasonably able to do so), furnish Tenant with a statement of the Operating Expenses and Taxes during such year and a computation of the Additional Rent owed by Tenant for such Operating Period (“Expense Statement”). Failure of Landlord to provide such statement within such time period shall not be a waiver of Landlord’s right to collect any Additional Rent. If such statement shows that the actual amount Tenant owes for such Operating Period is more than the estimated Additional Rent paid by Tenant for such Operating Period, Tenant shall pay the difference within thirty (30) days after Tenant’s receipt of the Expense Statement. If the Expense Statement shows that Tenant paid more in estimated Additional Rent than the actual amount of Additional Rent owed by Tenant for such Operating Period, Tenant shall receive a credit therefor. The credit shall be applied to future monthly payments attributable to the Additional Rent or the Base Rent (at Tenant’s discretion), or if this Lease has expired, such amount shall be refunded to Tenant. The Operating Expenses, Taxes and Additional Rent set forth in the Expense Statement shall be binding upon Tenant. Provided, however, that in the event that the Term of this Lease expires, or is terminated pursuant to the terms of this Lease, on a date other than December 31, then, at the option of Landlord, Landlord may, either prior to the date on which the Term expires, or within thirty (30) days thereafter, elect to provide Tenant with a revised estimate of the Operating Expenses and Taxes for the Operating Period in which such expiration or termination date occurs and the Additional Rent that will be due from Tenant for such Operating Period, which estimated Additional Rent shall be prorated to reflect the portion of such Operating Period that is contained within the Term of the Lease (the “Final Expense Estimate”). In the event that Landlord elects to deliver a Final Expense Estimate to Tenant, then (i) Tenant shall pay the prorated Additional Rent reflected in such statement within fifteen (15) days after Tenant’s receipt of such estimate; (ii) the estimated amount of the Additional Rent for the final Operating Period shall be binding upon Landlord and Tenant; and (iii) Landlord shall not thereafter seek from Tenant any additional payment of Additional Rent if the actual Operating Expenses and Taxes for such Operating Period are greater than those reflected in the Final Expense Estimate, nor shall Landlord have any obligation to refund to Tenant any excess funds paid by Tenant to Landlord should the actual Operating Expenses and Taxes for such Operating Period be less than those reflected in the Final Expense Estimate. In the event that Landlord elects not to provide Tenant with a Final Expense Estimate, then it shall be presumed that Landlord will provide Tenant with an Expense Statement within one hundred twenty (120) days after the end of the final Operating Period contained in the Term, as provided above, and the Additional Rent shown in such Expense Statement shall be due from Tenant to Landlord within fifteen (15) days after Tenant’s receipt of such statement.

(c)Tenant’s Audit. Tenant shall have the right to have Landlord’s books and records pertaining to Operating Expenses and Taxes for each Operating Period reviewed, copied (provided Landlord is reimbursed for the cost of such copies) and audited (“Tenant’s Audit”), provided that: (a) such right shall not be exercised more than once during any calendar year; (b) if Tenant elects to conduct Tenant’s Audit, Tenant shall provide Landlord with written notice thereof (“Tenant’s Audit Notice”) no later than thirty (30) days following Tenant’s receipt of the Expense Statement for the year to which Tenant’s Audit will apply; (c) Tenant shall have no right to conduct Tenant’s Audit if an uncured Default by Tenant exists either at the time of Landlord’s receipt of Tenant’s Audit Notice or at any time during Tenant’s Audit; (d) no subtenant shall have any right to conduct an audit and no assignee shall conduct an audit for any period during which such assignee was not in possession of the Premises; (e) conducting Tenant’s Audit shall not relieve Tenant from the obligation to timely pay Base Rent or the Additional Rent, pending the outcome of such audit; (f) Tenant’s right to conduct such audit for any calendar year shall expire thirty (30) days following Tenant’s receipt of the Expense Statement for such year, and if Landlord has not received Tenant’s Audit Notice within such thirty (30) day period, Tenant shall have waived its right to conduct Tenant’s
6


Audit for such calendar year; provided, however, that with respect to any audit of Operating Expenses and Taxes for the Base Year, Tenant’s right to conduct an audit for such year shall expire the earlier of sixty (60) days following Tenant’s receipt of the Expense Statement for the Base Year or sixty (60) days following Tenant’s receipt of the first Expense Statement forwarded by Landlord to Tenant for any Operating Period during the Term; (g) Tenant’s Audit shall be conducted by a Certified Public Accountant whose compensation is not contingent upon the results of Tenant’s Audit or the amount of any refund received by Tenant, and who is not employed by or otherwise affiliated with Tenant; (h) Tenant’s Audit shall be conducted at Landlord’s office where the records of the year in question are maintained by Landlord, during Landlord’s normal business hours; (i) Tenant’s Audit shall be completed within thirty (30) days after the date of Tenant’s Audit Notice, and a complete copy of the results thereof shall be delivered to Landlord within sixty (60) days after the date of Tenant’s Audit Notice; and (j) Tenant’s Audit shall be conducted at Tenant’s sole cost and expense. If Tenant’s Audit is completed and submitted to Landlord in accordance with the requirements of this Section and such audit demonstrates to Landlord’s reasonable satisfaction that Landlord has overstated the Operating Expenses or Taxes for the year audited, then Landlord shall reimburse Tenant for any overpayment.

(d)Confidentiality. Tenant hereby agrees to keep the results of Tenant’s Audit confidential and to require the auditor conducting Tenant’s Audit, including its employees and each of their respective attorneys and advisors, to keep the results of Tenant’s Audit in strictest confidence. In particular, but without limitation, Tenant agrees that: (a) Tenant shall not disclose the results of Tenant’s Audit to any past, current or prospective tenant of the Building; and (b) Tenant shall require that its auditors, attorneys and anyone associated with such parties shall not disclose the results of Tenant’s Audit to any past, current or prospective tenant of the Building; provided, however, that Landlord hereby agrees that nothing in items (a) or (b) of this subparagraph shall preclude Tenant from disclosing the results of Tenant’s Audit in any judicial or quasi-judicial proceeding, or pursuant to court order or discovery request, or to any current or prospective assignee or subtenant of Tenant, or to any agent, representative or employee of Landlord who or which request the same. If Tenant intends to disclose the results of Tenant’s Audit in any judicial or quasi-judicial proceeding, or if Tenant receives notice that it may be required in any such proceeding by either the order of any judicial, regulatory or other governmental entity presiding over such proceeding, or by a discovery request made in such proceeding, to disclose the results of Tenant’s Audit, then Tenant shall (i) provide Landlord with sufficient prior written notice of Tenant’s intent to make such disclosure, or such order or request for such disclosure, in order to permit Landlord to contest such intended disclosure, order or request; and (ii) cooperate with Landlord, at Tenant’s expense, in seeking a protective order or other remedy to limit the disclosure of such results to the extent reasonably required to adjudicate the matters at issue in such proceeding. If required by Landlord, Tenant shall execute and require Tenant’s auditor to execute Landlord’s then-current confidentiality agreement reflecting the terms of this Section as a condition precedent to Tenant’s right to conduct Tenant’s Audit.

8.Letter of Credit. (a) Terms and Conditions. Within thirty (30) days of the Effective Date, Tenant shall deliver to Landlord a clean, irrevocable letter of credit (the “Letter of Credit”) established in Landlord’s (and its successors’ and assigns’) favor in the Letter of Credit Amount set forth in Section 1(m) of this Lease, issued by a federally insured banking or lending institution (i.e., insured by the FDIC) with a retail banking branch located in Miami, Florida, and otherwise reasonably acceptable to Landlord (the “Issuer”), and in other form and substance reasonably acceptable to Landlord. The Letter of Credit shall specifically provide for partial draws, shall be self- renewing annually as an “Evergreen” letter of credit, without amendment, for additional one-year periods, shall have a term that is self-renewing until sixty (60) days after the expiration of the Term of the Lease (which shall include any exercised and unexercised renewal terms, if any) and shall by its terms be transferable by the beneficiary thereunder for a transfer fee not to exceed $250.00 payable by Tenant. If Tenant fails to make any payment of Rent, or other charges due to Landlord under the terms of the Lease, or otherwise commits a Default hereunder, Landlord, at Landlord’s option, may make a demand for payment under the Letter of Credit in an amount equal to the amounts then due and owing to Landlord under the Lease. If Landlord draws upon the Letter of Credit, Tenant shall present to Landlord a replacement Letter of Credit in the full Letter of Credit Amount satisfying all of the terms and conditions of this Section within twenty-one (21) days after receipt of notice from Landlord of such draw. Tenant’s failure to do so within such 21-day period will constitute a Default hereunder (Tenant hereby waiving any additional notice and grace or cure period), and upon such Default by Tenant, Landlord shall be entitled to immediately exercise all rights and remedies available to it hereunder, at law or in equity. If the Letter of Credit is terminated by the Issuer thereof prior to the date that is sixty (60) days after the expiration of the Term of this Lease, as set forth above, and Tenant has not presented to Landlord a replacement Letter of Credit which complies with the terms and conditions of the
7


Lease on or before thirty (30) days prior to the expiration date of any such Letter of Credit then held by Landlord, then Tenant shall be deemed to have committed a Default hereunder and Landlord, in addition to all other rights and remedies provided for hereunder, shall have the right to draw upon the Letter of Credit then held by Landlord and any such amount paid to Landlord by the Issuer of the Letter of Credit shall be held in a segregated account by Landlord as security for the performance of Tenant’s obligations hereunder. Any interest earned on such amounts shall be the property of Landlord. Landlord’s election to draw under the Letter of Credit and to hold the proceeds of the drawing under the Letter of Credit in a segregated account shall not be deemed a cure of any default by Tenant hereunder and shall not relieve Tenant from its obligation to present to Landlord a replacement Letter of Credit which complies with the terms and conditions of this Lease. Tenant acknowledges that any proceeds of a draw made under the Letter of Credit and thereafter held in a segregated account by Landlord may be used by Landlord to cure or satisfy any obligation of Tenant hereunder as if such proceeds were instead proceeds of a draw made under a Letter of Credit that remained outstanding and in full force and effect at the time such amounts are applied by Landlord to cure or satisfy any such obligation of Tenant. Tenant hereby affirmatively disclaims any interest Tenant has, may have, claims to have, or may claim to have in any proceeds drawn by Landlord under the Letter of Credit and held in accordance with the terms hereof. Without limiting the generality of the foregoing, Tenant expressly acknowledges and agrees that at the end of the Term of the Lease (whether by expiration or earlier termination hereof), and if Tenant is not then in Default under this Lease, Landlord shall return to the Issuer of the Letter of Credit or its successor (or as such Issuer may direct in writing) any remaining and unapplied proceeds of any prior draws made under the Letter of Credit, and Tenant shall have no rights, residual or otherwise, in or to such proceeds. In addition to the foregoing, Landlord will have the right to require Tenant to have a new Letter of Credit issued in accordance with the above requirements from a different Issuer if either the original Issuer is placed on an FDIC “watch list”, if the FDIC or similar state or federal banking regulatory agency is appointed as receiver or conservator for such Issuer or if Landlord analyzes such Issuer’s capitalization, asset quality, earnings, and/or liquidity and in Landlord’s sole and absolute discretion, disapproves of such Issuer’s financial wherewithal and ability to remain as the Issuer of the Letter of Credit. Such new Letter of Credit must comply with the foregoing requirements and must be issued within thirty (30) days of Landlord’s demand therefor.

(b) Security Deposit. In the event that Tenant does not deliver the Letter of Credit in the Letter of Credit Amount to Landlord on the Effective Date as required by Section 8(a) above, then simultaneously upon Tenant’s execution of this Lease, Tenant shall deposit a security deposit with Landlord in the amount of $300,000.00 (the “Security Deposit”) to secure Tenant’s performance under this Lease. Tenant hereby grants to Landlord a security interest in the Security Deposit as collateral for all Rent and other sums of money becoming due from Tenant to Landlord under this Lease, and for the performance of Tenant’s obligations under this Lease, which security interest shall remain in effect until all such Rent and other sums of money have been paid in full and all such obligations have been fulfilled; the parties hereby acknowledge and agree that this Lease constitutes a security agreement under which such security interest is granted from Tenant to Landlord. In the event of an uncured Default, defined below, then Landlord may, without prejudice to Landlord’s other remedies, apply part or all of the Security Deposit to cure such Default. If Landlord so uses part or all of the Security Deposit, then Tenant shall within ten (10) days after written demand, provide Landlord with a replacement Security Deposit in an amount sufficient to restore the Security Deposit to its original amount. Any part of the Security Deposit not used by the Landlord as permitted by this Lease shall be returned to Tenant after the Expiration Date. If Landlord sells the Building then the Landlord shall transfer the Security Deposit to the new owner and Landlord shall be relieved of any liability for the Security Deposit. Tenant shall not be entitled to any interest on the Security Deposit, and Landlord may commingle the Security Deposit with other monies of Landlord. Notwithstanding anything contained herein to the contrary, in the event Tenant delivers the Letter of Credit in the Letter of Credit Amount to Landlord as required by Section 8(a) above within thirty (30) days following the Effective Date, then Landlord shall return the unapplied portion of the Security Deposit to Tenant within three (3) business days of its receipt of the Letter of Credit.

1.Tenant Improvements. The construction of any Tenant Improvements to the Premises shall be undertaken in accordance with the terms and conditions of this Lease and if applicable, the terms set forth in the Work Letter attached hereto as Exhibit D and incorporated herein by this reference. Unless otherwise stated herein, the parties’ respective obligations for payment of the Tenant Improvements shall be governed by the terms of the Work Letter. Except as expressly stated in this Lease and in the Work Letter, Landlord shall have no obligation to improve or otherwise modify the Premises for Tenant’s occupancy.

8


2.Maintenance and Repair. Landlord shall make such improvements, repairs or replacements as may be necessary for normal maintenance of the Building Systems serving the Premises, the exterior and the structural portions of the Building and the Common Areas. Subject to the terms of Section 7, the maintenance and repairs to be performed by Landlord hereunder shall be at Landlord’s expense, unless the need for such maintenance or repairs was caused by the negligence or willful misconduct of Tenant, its employees, agents, contractors or invitees, in which event Tenant shall reimburse Landlord for the cost of such maintenance or repairs, plus a construction oversight fee for Landlord in an amount equal to five percent (5%) of the cost and expense of such maintenance or repairs; the construction oversight or management fee, if any, applicable to construction of the Tenant Improvements shall be governed by the terms of the Work Letter and not by the provisions of this Section. Except to the extent that Landlord is obligated to restore and repair the Premises pursuant to Section 23, Tenant, at its sole cost, shall maintain and repair the Premises and otherwise keep the Premises in good order and repair. Any repair or maintenance by Tenant shall be undertaken in accordance with the provisions and requirements of Section 16. Landlord is not responsible for replacing and/or repairing Tenant’s fixtures or any Above Standard improvements, or fixtures. Except as expressly provided in this Lease, Tenant shall accept the Premises including any existing appliances and Above Standard fixtures in their “AS IS, WHERE IS” condition as of the Effective Date. For purposes of this Lease, all Above Standard improvements and fixtures existing in the Premises as of the Effective Date shall be deemed to be Tenant’s property until the expiration or earlier termination of this Lease or Tenant’s right to possession of the Premises under this Lease, at which time such Above Standard improvements and fixtures shall become the property of Landlord and shall be surrendered to Landlord with the Premises.

3.Services. Landlord shall furnish Tenant during Tenant's occupancy of the Premises the following services: (i) Cleaning and Janitorial Services (defined in Exhibit B), (ii) domestic water at those points of supply provided for general office use of tenants in the Building, (iii) electricity for normal, Building Standard office uses subject to Section 12, (iv) elevator service at the times and frequency reasonably required for normal business use of the Premises, and (v) lamp and ballast replacement for Building Standard light fixtures, and (vi) HVAC service between 8:00 o’clock a.m. and 6:00 o’clock p.m. on Monday through Friday (“Building Standard Hours”), except on New Year’s Day, Memorial Day, July 4, Labor Day, Thanksgiving Day, Christmas Day and other holidays observed by a majority of the tenants of the Building (“Holidays”). If any Holiday falls on a weekend, the Building may observe the Holiday on the preceding Friday or the succeeding Monday. In addition to HVAC service provided during Building Standard Hours, Landlord shall, upon Tenant’s request, provide HVAC service to the Premises between the hours of 8:00 o’clock a.m. and noon on Saturday, at no additional charge to Tenant, provided that such request is made no later than 2 o’clock p.m. on the immediately preceding day. Tenant may periodically request, and Landlord shall furnish HVAC service on days and at times other than those referred to above, provided Tenant requests such service in accordance with the Project Rules, defined below, then in effect, and agrees to reimburse Landlord for this service at the then existing rate being charged in the Building (which rate as of the Effective Date is $100.00 per hour, per zone, with a two (2) hour minimum). If Tenant utilizes services provided by Landlord hereunder in either quantity and/or quality exceeding the quantity and/or quality customarily utilized by normal office uses of comparable premises in the Building, then Landlord may separately meter or otherwise monitor Tenant's use of such services, and charge Tenant a reasonable amount for such excess usage; such amount shall constitute additional Rent due hereunder within thirty (30) days of Tenant's receipt of Landlord's statement for such excess. Landlord shall not be liable for any damages directly or indirectly resulting from, nor shall any Rent be abated by reason of, the installation, use or interruption of use of any equipment in connection with furnishing any of the foregoing services, or failure to furnish or delay in furnishing any such service. The failure to furnish any such services shall not be construed as an eviction of Tenant or relieve Tenant from any of its obligations under this Lease. Tenant shall, at Tenant's expense, be responsible for cleaning and maintaining any Above Standard improvements or fixtures, including Above Standard Tenant Work, defined below, and Above Standard Tenant Improvements, in the Premises.

4.Electrical Usage. Landlord shall supply sufficient electrical capacity to a panel box located in the core of each floor for lighting and for Tenant’s office equipment to the extent that the total demand load at 100% capacity of such lighting and equipment does not exceed six (6) watts per RSF in the Premises (“Electrical Design Load”). If Tenant utilizes any portion of the Premises on a regular basis beyond Building Standard Hours or in any manner in excess of the Electrical Design Load, Landlord shall have the right to separately meter such space and charge Tenant for all excess usage; additionally, Landlord shall have the right, at Tenant’s expense, to separately meter any Above Standard fixture(s) in the Premises, such as water heaters and vending machines, and to charge
9


Tenant for the electricity consumed by such fixture(s). If separate metering is not practical, Landlord may reasonably estimate such excess usage and charge Tenant a reasonable hourly rate. Tenant shall pay to Landlord the cost of all electricity consumed in excess of six (6) watts per RSF in the Premises for the number of hours in the Building Standard Hours for the relevant period, plus any actual accounting expenses incurred by Landlord in connection with the metering or calculation thereof. Tenant shall pay the cost of installing, maintaining, repairing and replacing all such meters. In the event that the level of occupancy of the Premises, or any machinery or equipment located in the Premises, creates unusual demands on the HVAC system serving the Premises, then Tenant may install, and Landlord may require that Tenant install, its own supplemental HVAC unit(s) (“Supplemental HVAC Equipment”) in the Premises, and in either event the installation, maintenance and removal of the Supplemental HVAC Equipment shall be governed by the terms of Exhibit F attached hereto and incorporated herein by this reference. In the event that the Premises are separately metered for electricity, and electricity is provided to the Premises directly from the utility provider, then Tenant shall, at reasonable intervals specified by Landlord, submit to Landlord data regarding the consumption of electricity in the Premises in a format that is reasonably acceptable to Landlord.

5.Communication Lines. Subject to Building design limits and its existing, or then existing, capacity, Tenant may install, maintain, replace, remove or use communications or computer wires and cables which service the Premises (“Lines”), provided: (a) Tenant shall obtain Landlord’s prior written consent, and shall use contractors approved in writing by Landlord, (b) all such Lines shall be plenum rated and neatly bundled, labeled and attached to beams and not to suspended ceiling grids, (c) any such installation, maintenance, replacement, removal or use shall comply with all Laws applicable thereto, including, but not limited to the National Electric Code, and shall not interfere with any then existing Lines at the Building, and (d) Tenant shall pay all costs and expenses in connection therewith. Landlord reserves the right to require Tenant to remove any Lines located in or serving the Premises which violate this Lease or represent a dangerous or potentially dangerous condition, within three (3) business days after written notice. Tenant shall remove all Lines installed by or on behalf of Tenant upon termination or expiration of this Lease. Any Lines that Landlord expressly permits to remain at the expiration or termination of this Lease shall become the property of Landlord without payment of any type. Under no circumstances shall any Line problems be deemed an actual or constructive eviction of Tenant, render Landlord liable to Tenant for abatement of Rent, or relieve Tenant from performance of Tenant’s obligations under this Lease.

6.Prohibited Use. Tenant shall not do or permit anything to be done within the Project nor bring, keep or permit anything to be brought or kept therein, which is prohibited by any Laws now in force or hereafter enacted or promulgated, or which is prohibited by any insurance policy or which may increase the existing rate or otherwise affect any insurance which Landlord carries on the Project, or which would violate any then existing exclusive use granted by Landlord to any other tenant or occupant of the Project. Tenant shall not do or permit anything to be done in or about the Premises which will in any way obstruct or interfere with the rights of other tenants, or injure or annoy them or use or allow the Premises to be used for any unlawful or objectionable purpose. Tenant shall not commit or suffer to be committed any waste to, in or about the Premises or Project.

7.Legal Requirements; Project Rules. Tenant shall comply with, and shall indemnify and hold Landlord and its directors, officers, partners, members, shareholders, employees and agents harmless from any and all obligations, claims, administrative proceedings, judgments, damages, fines, penalties, costs, and liabilities, including reasonable attorneys’ fees (collectively, “Costs”) incurred by Landlord as a result of the failure by Tenant, its employees, agents or contractors to comply with all Laws relating to the use, condition or occupancy of the Premises now or hereafter enacted, and the Project Rules, defined below. Tenant shall cause its employees, agents and contractors to comply with, and shall use reasonable efforts to cause its invitees to comply with, all Laws applicable to the Project. Tenant shall not cause or permit the use, generation, storage, release or disposal in or about the Premises or the Project of any substances, materials or wastes subject to regulation under any Laws from time to time including, without limitation, flammable, explosive, hazardous, petroleum, toxic or radioactive materials, unless Tenant shall have received Landlord’s prior written consent, which consent Landlord may withhold or revoke at any time in its sole discretion. Tenant shall comply with, and cause its employees, agents and contractors to comply with, and shall use its reasonable efforts to cause its invitees to comply with, the rules and regulations of the Project adopted by Landlord from time to time for the safety, care and cleanliness of the Premises and the Project (“Project Rules”). In the event of any conflict between this Lease and the Project Rules, the provisions of this Lease shall control. Landlord shall not have any liability to Tenant for any failure of any other tenants to comply with the
10


Project Rules. The Project Rules in effect as of the Effective Date are attached hereto as Exhibit C. In the event that any Governmental Authority, ordinance or other Law applicable to the Project requires either Landlord or Tenant to establish and implement a transportation management plan designed to reduce the number of single-occupancy vehicles being used by employees and other permitted occupants of the Building for commuting to and from the Building, then Tenant shall cooperate with Landlord in establishing and implementing such plan. In the event that any Governmental Authority with jurisdiction over the Project requires that modifications be made to the Common Areas as a result of Tenant’s particular use or occupancy of the Premises, then such modifications shall be made by Landlord, and Tenant shall reimburse Landlord, as additional Rent due under this Lease, for Landlord’s reasonable cost incurred in making such modifications, with such reimbursement to be made within thirty (30) days after Tenant’s receipt of Landlord’s statement for such cost.

8.Alterations, Additions and Improvements. After the Commencement Date, Tenant shall not permit, make or allow to be made any construction, alterations, physical additions or improvements in or to the Premises without obtaining the prior written consent of Landlord, which shall not be unreasonably withheld (“Tenant Work”), nor place any signs in the Premises which are visible from outside the Premises, without obtaining the prior written consent of Landlord, which may be withheld in Landlord’s sole discretion. Notwithstanding the foregoing, Landlord will not unreasonably withhold its consent to Tenant Work that: (i) is non-structural and does not adversely affect any Building Systems or improvements, (ii) is not visible from the exterior of the Premises, (iii) does not affect the exterior of the Building or any Common Areas, (iv) does not violate any provision of this Lease, (v) does not violate any Laws, and (vi) will not interfere with the use and occupancy of any other portion of the Project by any other tenant or occupant of the Project. Tenant’s plans and specifications and all contractors, subcontractors, vendors, architects and engineers (collectively, “Outside Contractors”) shall be subject to Landlord’s prior written approval. If requested by Landlord, Tenant shall execute a work letter for any such Tenant Work substantially in the form then used by Landlord for construction performed by tenants of the Building. Tenant shall pay Landlord a construction oversight fee in an amount equal to three percent (3%) of the cost and expense of any Tenant Work whether undertaken by Landlord or Tenant. Landlord may hire outside consultants to review such documents and information furnished to Landlord, and Tenant shall reimburse Landlord for the cost thereof, including reasonable attorneys’ fees, upon demand. Neither review nor approval by Landlord of any plans or specifications shall constitute a representation or warranty by Landlord that such documents either (i) are complete or suitable for their intended purpose, or (ii) comply with applicable Laws, it being expressly agreed by Tenant that Landlord assumes no responsibility or liability whatsoever to Tenant or any other person or entity for such completeness, suitability or compliance. Tenant shall furnish any documents and information reasonably requested by Landlord, including “as-built” drawings (both in paper and in electronic format acceptable to Landlord) after completion of such Tenant Work. Landlord may impose such conditions on Tenant Work as are reasonably appropriate, including without limitation, compliance with any construction rules adopted by Landlord from time to time, requiring Tenant to furnish Landlord with security for the payment of all costs to be incurred in connection with such Tenant Work, insurance covering Landlord against liabilities which may arise out of such work, plans and specifications, and permits for such Tenant Work. All Building Standard Tenant Work shall become the property of Landlord upon completion and shall be surrendered to Landlord upon the expiration or earlier termination of this Lease or Tenant’s right to possession of the Premises under this Lease, unless Landlord shall require removal or restoration of such Tenant Work by Tenant. All Tenant Work that is Above Standard shall be and remain the property of Tenant, and shall be maintained by Tenant in good condition and repair throughout the Term, until the expiration or earlier termination of this Lease or Tenant’s right to possession of the Premises under this Lease, at which time such Tenant Work shall become the property of Landlord and shall be surrendered to Landlord with the Premises, unless Landlord specifies, at the time of the approval of the installation of such Above Standard Tenant Work, that Landlord will require Tenant to remove same upon the expiration or earlier termination of the Lease or Tenant’s right to possession of the Premises under the Lease. Any Tenant Work that Tenant is required to remove from the Premises upon the expiration or earlier termination of this Lease or Tenant’s right to possession of the Premises under this Lease shall be removed at Tenant’s sole expense, and Tenant shall, at Tenant’s expense, promptly repair any damage to the Premises or the Building caused by such removal. Tenant shall not allow any liens to be filed against the Premises or the Project in connection with any Tenant Work. If any liens are filed, Tenant shall cause the same to be released within five (5) days after Tenant’s receipt of written notice of the filing of such lien by bonding or other method acceptable to Landlord. All Outside Contractors shall maintain insurance in amounts and types required by, and in compliance with, Section 20. An ACORD 25 (or its equivalent) certificates of insurance in the most recent edition available evidencing such coverage shall be provided to Landlord prior to
11


commencement of any Tenant Work. All Outside Contractors shall perform all work in a good and workmanlike manner, in compliance with all Laws and all applicable Project Rules and Building construction rules. No Tenant Work shall be unreasonably disruptive to other tenants. Prior to final completion of any Tenant Work, Landlord shall prepare and submit to Tenant a punch list of items to be completed, and Tenant shall diligently complete all such punch list items.

9.Tenant’s Equipment. Except for personal computers, facsimile machines, copiers and other similar office equipment, Tenant shall not install within the Premises any fixtures, equipment or other improvements until the plans and location thereof have been approved by Landlord. The location, weight and supporting devices for any libraries, central filing areas, safes and other heavy equipment shall in all cases be approved by Landlord prior to initial installation or any relocation. Landlord may prohibit any article, equipment or any other item that may exceed the load capacity of the Building from being brought into the Building.

10.Taxes on Tenant’s Property. Tenant shall pay all ad valorem and similar taxes or assessments levied upon all equipment, fixtures, furniture and other property placed by Tenant in the Premises and all license and other fees or taxes imposed on Tenant’s business. If any improvements installed or placed in the Project by, or at the expense of, Tenant result in Landlord being required to pay higher Taxes with respect to the Project than would have been payable otherwise, Tenant shall pay to Landlord, within thirty (30) days after demand, the amount by which such excess Taxes are reasonably attributable to Tenant.
11.Access. Landlord shall have the right to enter the Premises at all reasonable times in order to inspect the condition, show the Premises, determine if Tenant is performing its obligations hereunder, perform the services or make the repairs that Landlord is obligated or elects to perform hereunder, make repairs to adjoining space, cure any Defaults of Tenant hereunder that Landlord elects to cure, and remove from the Premises any improvements or property placed therein in violation of this Lease. Except in the case of an emergency or to perform routine services hereunder, Landlord shall use reasonable efforts to provide Tenant prior notice of such access.

12.Tenant’s Insurance. Commencing the date Tenant is required to provide Landlord with the certificate of insurance, as provided below, and continuing until the expiration or earlier termination of the Lease Term, Tenant shall carry and maintain at its expense the following insurance coverages with insurance companies reasonably acceptable to Landlord with a rating of A- or better by A.M. Best Company: (i) Commercial General Liability (CGL) Policy (written on an occurrence basis), with limits not less than One Million Dollars ($1,000,000) combined single limit per occurrence, Two Million Dollar ($2,000,000) annual aggregate covering liability arising from premises, operations, independent contractors, products-completed operations, personal injury, advertising injury and liability assumed under a contract; (ii) Property Damage Insurance on a Causes of Loss-Special Form basis covering on a replacement cost value all Above Standard improvements, fixtures, personal property and equipment located within the Premises; (iii) Business Interruption and Extra Expense insurance in such amounts as will reimburse Tenant for direct or indirect loss of earnings attributable to the perils insured against under this section; (iv) Workers’ Compensation insurance policy as required by the applicable state law, and Employers Liability insurance with limits of not less than One Million Dollars ($1,000,000.00); (v) Automobile Liability insurance with single limit coverage of at least $1,000,000 for all owned, leased/hired or non-owned vehicles; (vi) to the extent applicable to Tenant, if Tenant will serve or sell alcohol at the Project, a liquor liability insurance policy with minimum coverage of One Million Dollars ($1,000,000.00); and (vii) Excess/Umbrella liability policy “following form” of not less than Four Million Dollars ($4,000,000), including a “drop down” feature in case the limits of the primary policy are exhausted. Landlord may also require all Outside Contractors (if any) to provide additional types of insurance coverages in amounts and types deemed necessary by Landlord, including, without limitation, construction All-Risk Builder’s risks, Owners and Contractors Protective (OCP) Liability insurance, Professional Errors and Omissions liability insurance, and insurance covering such contractor’s equipment and tools. Each Liability insurance policy required to be maintained hereunder by Tenant shall name the following entities as Additional Insureds: Landlord, any of Landlord’s lenders, and their direct and indirect parent companies and subsidiaries and any of their affiliated entities, successors and assigns, as well as their respective current or future directors, officers, employees, partners, members and agents. Tenant’s insurance shall be considered primary, not excess, and non-contributory with Landlord’s insurance policies. Insurance deductibles or retentions should be reasonable and customary for policy holders in similar businesses and locations. An ACORD 25 certificate of such insurance in the most recent edition available and reasonably satisfactory to Landlord, before the earlier of the Commencement Date or ten (10) days after execution of the Lease, reflecting the limits and endorsements required
12


herein, and renewal certificates shall be delivered to Landlord at least ten (10) days prior to the expiration date of any policy. Each policy shall be endorsed to provide notice of nonrenewal to Landlord and shall further provide that it may not be materially altered or canceled without thirty (30) days prior notice to Landlord. Landlord agrees to cooperate with Tenant to the extent reasonably requested by Tenant to enable Tenant to obtain such insurance. Landlord shall have the right to require increased limits if, in Landlord’s reasonable judgment, such increase is necessary. Tenant shall pay all premiums and charges for all of said policies, and, if Tenant shall fail to make any such payment when due or carry any such policy, Landlord may, but shall not be obligated to, make such payment or carry such policy, and the amount paid by Landlord shall be repaid to Landlord by Tenant within ten (10) days following demand therefor, and all such amounts so repayable, together with such interest, shall be deemed to constitute additional Rent hereunder. Payment by Landlord of any such premium, or the carrying by Landlord of any such policy, shall not be deemed to waive or release Tenant from any remedy available to Landlord under this Lease.

13.Intentionally Deleted.

14.Waiver of Subrogation; Mutual Waiver of Liability. All policies of insurance required to be carried by either party hereunder shall include a waiver of subrogation endorsement, containing a waiver by the insurer of all right of subrogation against the other party in connection with any loss, injury or damage thereby insured against. The waiver of subrogation shall apply regardless of any deductible (or self-insured retention) or self-insurance carried by either party. Any additional premium for such waiver shall be paid by the primary insured. To the full extent permitted by law, Landlord and Tenant each waive all rights of recovery against the other (and any officers, directors, partners, employees, agents and representatives of the other), and agree to release the other from liability, for loss or damage to the extent such loss or damage is covered by valid and collectible insurance in effect covering the party seeking recovery at the time of such loss or damage or would be covered by the insurance required to be maintained under this Lease by the party seeking recovery. If the release of either party, as set forth above, should contravene any law with respect to exculpatory agreements, the liability of the party in question shall be deemed not released but shall be secondary to the liability of the other’s insurer.

15.Casualty. If the Premises or the Project is damaged or destroyed, in whole or in part, by fire or other casualty at any time during the Term and if, after such damage or destruction, Tenant is not able to use the portion of the Premises not damaged or destroyed to substantially the same extent and for the Authorized Use for which the Premises were leased to Tenant hereunder, and within sixty (60) days after Landlord’s receipt of written notice from Tenant describing such damage or destruction Landlord provides notice to Tenant that the Premises, as improved to the extent of the Building Standard improvements existing immediately prior to such destruction or casualty, cannot be repaired or rebuilt to the condition which existed immediately prior to such destruction or casualty within three hundred sixty-five (365) days following the date of such destruction or casualty, then either Landlord or Tenant may by written notice to the other within thirty (30) days following such notice by Landlord terminate this Lease. Unless such damage or destruction is the result of the negligence or willful misconduct of Tenant or its employees, agents, contractors or invitees, the Rent shall be abated for the period and proportionately to the extent that after such damage or destruction Tenant is not able to use the portion of the Premises damaged or destroyed for the Authorized Use and to substantially the same extent as Tenant used the Premises prior thereto. If this Lease is not terminated pursuant to the foregoing, then upon receiving the available insurance proceeds, Landlord shall restore or replace the damaged or destroyed portions of the Premises, as improved to the extent of the Building Standard improvements existing immediately prior to such destruction or casualty, or Project; Tenant shall restore or replace the improvements to the Premises required to be insured by Tenant hereunder; and this Lease shall continue in full force and effect in accordance with the terms hereof except for the abatement of Rent referred to above, if applicable, and except that the Term shall be extended by a length of time equal to the period beginning on the date of such damage or destruction and ending upon completion of such restoration or replacement. Landlord shall restore or replace the damaged or destroyed portions of the Premises or Project that Landlord is required to restore or replace hereunder within a reasonable time, subject to Force Majeure Events and the availability of insurance proceeds. If either party elects to terminate this Lease as provided in this Section, this Lease shall terminate on the date which is thirty (30) days following the date of the notice of termination as if the Term hereof had been scheduled to expire on such date, and, except for obligations which are expressly stated herein to survive the expiration or earlier termination of this Lease, neither party shall have any liability to the other party as a result of such termination. Landlord shall not be obligated to repair any damage to Above Standard improvements or fixtures, Tenant’s inventory, trade fixtures or other personal property. If the Premises or any portion of the Project
13


are damaged or destroyed by fire or other casualty caused by the recklessness or willful misconduct of Tenant, its employees, agents, contractors, or invitees, then any repair or restoration of the Premises by Landlord pursuant to the terms of this Section shall be at Tenant’s sole cost and expense. Notwithstanding anything in this Section to the contrary, Landlord shall have no obligation to repair or restore the Premises or the Project on account of damage resulting from any casualty which occurs during the last twelve (12) months of the Term, or if the estimated cost of such repair or restoration would exceed fifty percent (50%) of the reasonable value of the Building prior to the casualty. The abatement of Rent, if applicable hereunder, and termination of this Lease by Tenant, if applicable hereunder, are the sole remedies available to Tenant in the event the Premises or the Project is damaged or destroyed, in whole or in part, by fire or other casualty.

16.Condemnation. If more than fifty percent (50%) of the Premises or if a substantial portion of the Building is taken by the power of eminent domain, then either Landlord or Tenant shall have the right to terminate this Lease by written notice to the other within thirty (30) days after the date of taking; provided, however, that a condition to the exercise by Tenant of such right to terminate shall be that the portion of the Premises or Building taken shall be of such extent and nature as to substantially impair Tenant’s use of the Premises or the balance of the Premises remaining and Landlord is unwilling or unable to provide reasonable replacement space within the Project. In the event of any taking, Landlord shall be entitled to any and all compensation and awards with respect thereto, except for an award, if any, specified by the condemning authority for any claim made by Tenant for property that Tenant has the right to remove upon termination of this Lease. Tenant shall have no claim against Landlord for the value of any unexpired portion of the Term. In the event of a partial taking of the Premises which does not result in a termination of this Lease, the Rent shall be equitably reduced as to the square footage so taken.

17.Waiver of Claims. Except for the willful misconduct or gross negligence of Landlord, its employees, agents or contractors, Landlord shall not be liable to Tenant for damage to person or property caused by defects in the HVAC, electrical, plumbing, elevator or other apparatus or systems, or by water discharged from sprinkler systems, if any, in the Building, nor shall Landlord be liable to Tenant for the theft or loss of or damage to any property of Tenant whether from the Premises or any part of the Building or Project, including the loss of trade secrets or other confidential information. Landlord agrees to make commercially reasonable efforts to protect Tenant from interference or disturbance by third persons, including other tenants; however, Landlord shall not be liable for any such interference, disturbance or breach, whether caused by another tenant or tenants or by Landlord or any other person, nor shall Tenant be relieved from any obligation under this Lease because of such interference, disturbance or breach. Landlord may comply with voluntary controls or guidelines promulgated by any governmental entity relating to the use or conservation of energy, water, gas, light or electricity or the reduction of automobile or other emissions without creating any liability of Landlord to Tenant under this Lease, provided that the Premises are not thereby rendered untenantable. In no event shall Landlord, Masaveu & C/O Management Real Estate US LLC, or their directors, officers, shareholders, partners, members, employees, or agents be liable in any manner for incidental, consequential or punitive damages, loss of profits, or business interruption. The waivers in this Section shall survive the expiration or earlier termination of this Lease.

18.Indemnity. Except for claims, rights of recovery and causes of action covered by the waiver of subrogation, Tenant shall indemnify and hold harmless Landlord and its agents, directors, officers, shareholders, partners, members, employees and invitees, from all claims, losses, costs, damages, or expenses (including reasonable attorneys’ fees) in connection with any injury to, including death of, any person or damage to any property arising, wholly or in part, out of any prohibited use of the Premises or other action, omission, or neglect of Tenant or its Outside Contractors, directors, officers, shareholders, members, partners, employees, agents, invitees, subtenants or guests, or any parties contracting with such party relating to the Project. If Landlord shall without fault on its part, be made a party to any action commenced by or against Tenant, for which Tenant is obligated to indemnify Landlord hereunder, then Tenant shall protect and hold Landlord harmless from, and shall pay all costs, expenses, including reasonable attorneys’ fees, of Landlord in connection therewith.

Tenant’s obligations under this Section shall not be limited by the amount or types of insurance maintained or required to be maintained under this Lease. The obligations under this Section shall survive the expiration or earlier termination of this Lease.

14


19.Non-Waiver. No consent or waiver, express or implied, by Landlord to any breach by Tenant of any of its obligations under this Lease shall be construed as or constitute a consent or waiver to any other breach by Tenant. Neither the acceptance by Landlord of any Rent or other payment, whether or not any Default by Tenant is then known to Landlord, nor any custom or practice followed in connection with this Lease shall constitute a waiver of any of Tenant’s obligations under this Lease. Failure by Landlord to complain of any act or omission by Tenant or to declare that a Default has occurred, irrespective of how long such failure may continue, shall not be deemed to be a waiver by Landlord of any of its rights hereunder. Time is of the essence with respect to the performance of every obligation of Tenant in which time of performance is a factor. No payment by Tenant or receipt by Landlord of an amount less than the Rent due shall be deemed to be other than a partial payment of the Rent, nor shall any endorsement or statement of any check or any letter accompanying any check or payment as Rent be deemed an accord and satisfaction. Landlord may accept such check or payment without prejudice to its right to recover the balance of such Rent or pursue any other right or remedy. Except for the execution and delivery of a written agreement expressly accepting surrender of the Premises, no act taken or failed to be taken by Landlord shall be deemed an acceptance of surrender of the Premises.

20.Quiet Possession. Provided Tenant has performed all its obligations, Tenant shall peaceably and quietly hold and enjoy the Premises for the Term, subject to the provisions of this Lease.

21.Notices. Each notice required or permitted to be given hereunder shall be in writing and may be personally delivered, sent via nationally recognized overnight courier or placed in the United States mail, postage prepaid, registered or certified mail, return receipt requested, addressed in each case at the address specified herein. A notice shall be deemed to have been received (a) upon the date of delivery or refusal thereof, if delivered personally or by overnight courier, or (b) if sent by registered or certified mail, (i) the date of delivery of such notice, as indicated on the duly completed United States Postal Service return receipt, if such receipt reflects delivery of such notice, (ii) on the date of refusal of such notice, if the refused notice reflects the date on which such notice is refused, or (iii) three (3) days after mailing of such notice, if the date of delivery of such notice cannot otherwise be established as provided above. Prior to the Commencement Date, the address for notices to Tenant shall be the address set forth in Section 1; after the Commencement Date, the address for Tenant shall be the Premises. Any notices to Landlord shall be addressed and given to Landlord at the following address:

Brickell Key Centre, LLC
601 Brickell Key Drive, Suite 101
Miami, FL 33131
Attn: Managing Director

22.Landlord’s Failure to Perform. If Landlord fails to perform any of its obligations hereunder, Landlord shall not be in default and Tenant shall not have any rights or remedies growing out of such failure unless Tenant gives Landlord written notice setting forth in reasonable detail the nature and extent of such failure and such failure is not cured within thirty (30) days following Landlord’s receipt of such notice or such longer period as may otherwise be provided herein. If such failure cannot reasonably be cured within thirty (30) days, the length for curing shall be extended as reasonably required. In no event shall Tenant’s remedies for an alleged or actual failure of Landlord to perform its obligations under this Lease include the termination of this Lease.

23.Tenant’s Failure to Perform. If Tenant fails to perform any of its obligations hereunder, in addition to the other rights of Landlord, Landlord shall have the right, but not the obligation, to perform all or any part of Tenant’s obligations. Upon receipt of a demand therefor, Tenant shall reimburse Landlord for the cost of performing such obligations.

24.Default. “Default” means the occurrence of any one or more of the following: (i) failure of Tenant to pay when due any Rent or other amount required to be paid hereunder, if such failure continues for more than five
(5) days after Tenant’s receipt of written notice thereof from Landlord; provided, however, that Landlord shall not be required to provide Tenant with notice of such failure and the five (5) day period within which to cure such failure more than twice during the Term, and, at Landlord’s election, a subsequent failure to timely pay the Rent when due shall immediately constitute a Default hereunder; (ii) failure of Tenant, after thirty (30) days written notice, or such other notice period specified in this Lease, to observe and fully perform all of Tenant’s obligations
15


hereunder, other than payment of Rent which is covered above, except as otherwise provided below; (iii) the adjudication of Tenant to be bankrupt; (iv) the filing by Tenant of a voluntary petition in bankruptcy or other similar proceedings; (v) the making by Tenant of a general assignment for the benefit of its creditors; (vi) the appointment of a receiver of Tenant’s interests in the Premises; (vii) any involuntary proceedings instituted against Tenant under any bankruptcy or similar laws, unless such is dismissed or stayed within sixty (60) days thereafter; (viii) if the Tenant is an individual or if the Tenant is controlled by a single individual, the death or incapacity of such individual; (ix) the filing of a voluntary petition in bankruptcy or other similar proceeding by any Guarantor of Tenant’s obligations hereunder, or if such Guarantor is an individual or controlled by a single individual, the death or incapacity of such individual; (x) the voluntary or involuntary dissolution of the Guarantor, or any transaction involving the Guarantor which, if done by Tenant would constitute an assignment by Tenant hereunder, without the written consent of Landlord; or (xi) vacancy of the Premises for more than sixty (60) consecutive days. Notwithstanding any applicable notice and cure period provided above, Landlord shall not, with respect to the occurrence of any of the events described in subparts (ii) through (xi) above, be required to provide Tenant with notice of such failure and the cure period, if any, that would otherwise be applicable to such failure, more than twice during the Term for substantially the same failure, and, at Landlord’s election, a subsequent occurrence of substantially the same failure shall immediately constitute a Default hereunder.

Upon the occurrence of a Default, Landlord may, at its option and without waiving any other rights available herein, at law, or in equity, require Tenant to pay Rent by (a) wire transfer of funds to an account designated by Landlord or (b) direct draft from Tenant’s account through bank draft, ACH transfer, or other equivalent funds transfer to Landlord’s designated account. Execution of this Lease by Tenant and Landlord shall be evidence of Landlord’s authorization to debit Tenant’s account as set forth herein. Tenant shall provide all necessary information and execute any additional documents requested by Landlord to facilitate payment of Rent by the method designated by Landlord. Tenant’s failure to provide such information or documents within five (5) days after written notice by Landlord shall constitute a Default hereunder.
Upon the occurrence of a Default, Landlord may, at its option, without terminating this Lease, and with or without notice to Tenant, enter into and upon the Premises and, without being liable for any damages as a result thereof, maintain the Premises and repair or replace any damage to the Premises or do anything for which Tenant is responsible hereunder on Tenant’s behalf; and, in such event, Tenant shall reimburse Landlord immediately upon demand for any expenses which Landlord incurs in effecting Tenant’s compliance under this Lease.

In addition, if a Default occurs, then or at any time thereafter while such Default continues, Landlord, at its option, may, without waiving any other rights available herein, at law, or in equity, either terminate this Lease or terminate Tenant’s right to possession without terminating this Lease. In either event, Landlord may, without additional notice and without court proceedings, reenter and repossess the Premises, and remove all persons and property therefrom using such force as may be necessary, and Tenant hereby waives any claim arising by reason thereof or by reason of issuance of any distress warrant and agrees to hold Landlord harmless from any such claims. If a Default occurs, Landlord may treat the Default as an entire breach of this Lease and Tenant immediately shall become liable to Landlord for damages for the entire breach in an amount equal to the total Rent and all other payments due for the balance of the Term discounted at the rate of six percent (6%) per annum to the then present value. If Landlord elects to terminate Tenant’s right to possession of the Premises without terminating this Lease, Landlord may rent the Premises or any part thereof for the account of Tenant to any person for such rent and for such terms and other conditions as Landlord deems practical, and Tenant shall be liable to Landlord for the amount, if any, by which the total Rent and all other payments herein provided for the unexpired balance of the Term exceed the net amount, if any, received by Landlord from such re-renting, being the gross amount so received less the cost of repossession, re- renting, remodeling and other expenses relating thereto; Tenant shall be and remain liable for such net amount even after an eviction of Tenant from the Premises, should an eviction of Tenant from the Premises occur. Such sums shall be immediately due and payable by Tenant upon demand. In no event shall Tenant be entitled to any rents received by Landlord from reletting the Premises, even if Landlord relets the Premises for an amount exceeding the Rent due from Tenant for the remainder of the unexpired Term. If a Default occurs or in case of any holding over or possession by Tenant of the Premises after the expiration or termination of this Lease, Tenant shall reimburse Landlord on demand for all costs incurred by Landlord in connection therewith including, but not limited to, reasonable attorneys’ fees, court costs and related costs. Actions by Landlord to collect amounts due from Tenant as provided in this Section may be brought at any time, and from time to time, on one or more occasions, without the necessity of Landlord’s waiting until the termination of this Lease. The remedies expressed herein are
16


cumulative and not exclusive, and the election by Landlord to terminate Tenant’s right to possession without terminating this Lease shall not deprive Landlord of the right, and Landlord shall have the continuing right, to terminate this Lease. Upon the occurrence of a Default, Landlord shall have the right to recover from Tenant all damages caused by Tenant’s Default and to pursue all rights and remedies available at law or in equity.

25.Surrender. On the last day of the Term, or upon the earlier termination hereof, Tenant shall peaceably and quietly surrender the Premises to Landlord, in good order and repair, excepting only reasonable wear and tear resulting from normal use. The Premises shall be surrendered free of all items of Tenant’s personal property, and otherwise in the condition required by the terms of this Lease, and the Premises shall be free and clear of any and all liens or encumbrances of any type.

26.Holding Over. If Tenant does not surrender possession of the Premises at the end of the Term or upon earlier termination of this Lease, at the election of Landlord, Tenant shall be a tenant-at-sufferance from day to day and the Rent due during the period of such holdover shall be two (2) times the amount which Tenant was obligated to pay for the immediately preceding month. If Landlord is unable to deliver possession of the Premises to a new tenant or to perform improvements to the Premises for a new tenant as a result of Tenant’s holdover, then Tenant shall be liable for all damages that Landlord suffers as a result of Tenant’s holding over in the Premises.

27.Removal of Tenant’s Property. Prior to the expiration or earlier termination of the Term, Tenant shall, at Tenant’s expense, remove all of Tenant’s removable trade fixtures, and other items of personal property from the Premises. Tenant shall be responsible for any damage to the Premises or Project resulting from removal of any personal property, including Lines, of Tenant. If Tenant does not remove its property prior to termination, then, in addition to its other remedies at law or in equity, Landlord shall have the right to consider the property abandoned and such property may be removed by Landlord, at Tenant’s expense, or at Landlord’s option become its property, and Tenant shall have no further rights relating thereto or for reimbursement therefor.
28.Landlord’s Lien. In addition to and cumulative of Landlord’s statutory lien, Tenant hereby grants to Landlord a security interest in and to all furniture, furnishings, fixtures, equipment, merchandise and other property placed in the Premises by Tenant to secure the performance of Tenant’s obligations under this Lease. At Landlord’s request, Tenant shall execute and cause or permit to be filed in the appropriate public records all documents required to perfect such security interest pursuant to the terms of the Uniform Commercial Code in effect in the state where the Project is located.

29.Intentionally Omitted.

30.Assignment and Subletting. Landlord shall have the right to transfer and assign in whole or in part, by operation of law or otherwise, its rights and obligations hereunder whenever Landlord, in its sole judgment, deems it appropriate without any liability to Tenant, and Tenant shall attorn to any party to which Landlord transfers its rights and obligations hereunder or the Building. Any sale, conveyance or transfer of the Building or Project will operate to release Landlord from liability from and after the effective date of such sale, conveyance, transfer or assignment upon all of the covenants, terms and conditions of this Lease, express or implied, except for those liabilities that arose prior to the effective date of such sale, conveyance, transfer or assignment. After such effective date, Tenant will look solely to Landlord’s successor in interest in and to this Lease.

Tenant shall not assign, transfer, mortgage, pledge or otherwise encumber this Lease, or any interest herein, and shall not sublet the Premises or any part thereof, or any right or privilege appurtenant thereto, or permit any other party to occupy or use the Premises, or any portion thereof, without the prior written consent of Landlord, which consent shall not be unreasonably withheld. The Landlord’s consent shall not be considered unreasonably withheld if: (i) the proposed subtenant’s or assignee’s financial responsibility or insurance does not meet the same criteria Landlord uses to select comparable Building tenants; (ii) the proposed subtenant’s or assignee’s business is not suitable for the Building considering the business of the other tenants and the Building’s prestige; (iii) the proposed use is inconsistent with the Authorized Use permitted by Section 3; or (iv) the proposed subtenant or assignee is an occupant of the Building, or if the proposed subtenant or assignee, whether or not an occupant of the Building, is in discussions with Landlord regarding the leasing of space within the Building. Whether or not Landlord consents to any proposed assignment or subletting of any portion of the Premises, Tenant shall timely pay Landlord’s review and processing fee of $750.00 (“Sublease/Assignment Processing Fee”) in addition to any
17


reasonable professional fees (including, without limitation, legal, architectural, engineering, and consulting fees) incurred by Landlord in connection with such proposed assignment or subletting (“Sublease/Assignment Professional Fees”). The Sublease/Assignment Processing Fee shall be paid by Tenant simultaneously with each request by Tenant to assign or sublease any portion of the Premises. The Sublease/Assignment Professional Fees shall, at Landlord’s option, be paid by Tenant (a) prior to Landlord’s denial or execution of a consent to the proposed assignment or subletting or (b) within thirty (30) days of Tenant’s receipt of an invoice from Landlord for such fees. Any subletting of the Premises or assignment of the Lease by Tenant in violation of the provisions of this Section 38 shall constitute a Default.

A “Change in Control” of Tenant shall be deemed for purposes of this Lease to constitute an assignment of this Lease by Tenant which shall require the consent of Landlord and entitle Landlord to exercise its options as provided hereunder. As used in this Section, a “Change in Control” shall be deemed to have occurred when: (x) any person, after the date hereof, acquires directly or indirectly the Beneficial Ownership (as defined in Section 13(d) of the Securities Exchange Act of 1934, as amended) of any voting interests or equity interests of Tenant or Guarantor, if applicable, and immediately after such acquisition such person is, directly or indirectly, the Beneficial Owner of voting or equity interests representing 50% or more of the total voting interest or equity interest of all of the then- outstanding equity interests or voting interests of Tenant or Guarantor, if applicable; (y) the stockholders, partners, members or other equity holders of Tenant or Guarantor, if applicable, shall approve a merger, consolidation, recapitalization, or reorganization of Tenant, or consummation of any such transaction if equity holder approval is not sought or obtained; or (z) the stockholders, partners, members or other equity holders of Tenant or Guarantor, if applicable, shall approve a plan of complete liquidation of Tenant or Guarantor, if applicable, or an agreement for the sale or disposition by Tenant or Guarantor, if applicable, of all or a substantial portion of such entity’s assets (i.e., 50% or more of the total assets of such entity).

If Tenant desires to assign this Lease or sublease the Premises, Tenant shall provide Landlord notice in writing at least sixty (60) days in advance of the date on which Tenant desires such assignment or sublease to take effect. Tenant’s notice shall include (A) the name and address of the proposed subtenant or assignee; (B) the nature of the proposed subtenant’s or assignee’s business it will operate in the Premises; (C) the terms of the proposed sublease or assignment; and (D) reasonable financial information so that Landlord can evaluate the proposed subtenant or assignee. Landlord shall, within thirty (30) days after receiving such information, give notice to the Tenant to (i) permit or deny the proposed sublease or assignment or (ii) terminate this Lease as to the space so affected as of the date specified in Tenant’s notice (and as to option (ii) only, Tenant will be relieved of all further obligations hereunder as to the terminated space). If Landlord does not give notice within the thirty (30) day period, then Landlord shall be deemed to have consented to the sublease or assignment upon the terms provided in Tenant’s notice.

Notwithstanding an assignment or subletting (i) subleases and assignments by Tenant shall be subject to the terms of this Lease; (ii) Tenant shall remain liable for all of the obligations of “Tenant” under this Lease; (iii) consent to one sublease or assignment does not waive the consent requirement for future assignments or subleases; and (iv) consideration received by Tenant from an assignment or sublease that exceeds the amount Tenant must pay Landlord hereunder, excluding reasonable leasing commissions paid by Tenant, payments attributable to the amortization of the cost of improvements made to the Premises at Tenant’s cost for the assignee or sublessee, and other reasonable, out- of-pocket costs paid by Tenant directly related to Tenant’s obtaining an assignee or sublessee, shall also be paid to Landlord. Tenant shall pay such amount to Landlord at the beginning of each calendar month. Landlord shall have the right to audit Tenant’s books and records to verify the accuracy of the payments under this Section. If Tenant has sublet the Premises, and thereafter a Default occurs hereunder, Landlord may proceed to collect any rent thereafter becoming due to Tenant under the sublease directly from the subtenant; in which event such collected rent shall be applied by Landlord to the Rent due from Tenant to Landlord hereunder; provided, however, that the collection of rent from Tenant’s subtenant shall not create a privity of contract between Landlord and such subtenant.

If the proposed sublessee or assignee is approved by Landlord and Tenant fails to enter into the sublease or assignment with the approved sublessee or assignee within ninety (90) days after the date Tenant submitted its proposal to Landlord, then Landlord’s approval shall expire, and Tenant must comply again with the conditions of this Section. Notwithstanding the giving by Landlord of its consent to any sublease or assignment with respect to the
18


Premises, no sublessee or assignee may exercise any renewal options, expansion options, rights of first refusal or similar rights except in accordance with a separate written agreement entered into directly between the Landlord and such sublessee or assignee provided Tenant continues to be liable for the performance of all obligations hereunder, as increased or otherwise affected by the exercise of such rights. Tenant may not exercise any renewal options, expansion options, rights of first refusal or similar rights under this Lease if Tenant has assigned all of its interest in this Lease.

31.Merger of Estates. The voluntary or other surrender of this Lease by Tenant or a mutual cancellation hereof, shall not work a merger, but shall, at the option of Landlord, terminate all or any existing subleases or subtenancies, or may, at the option of Landlord, operate as an assignment to Landlord of Tenant’s interest in such subleases or subtenancies.

32.Limitation of Liability. Notwithstanding anything herein to the contrary, Tenant’s sole and exclusive method of collecting on any judgment Tenant obtains against Landlord, or any other award made to Tenant in any judicial process requiring the payment of money by Landlord for the failure of Landlord to perform any of its obligations, shall be to proceed against the interests of Landlord in and to the Project. Therefore, Tenant hereby agrees that no personal or corporate liability of any kind or character whatsoever now attaches or at any time hereafter under any condition shall attach to Landlord for payment or performance of any obligations hereunder, including, without limitation, any Landlord indemnity obligations under Section 26. The obligations under this Section shall survive the expiration or earlier termination of this Lease.

41.Subordination. The rights and interests of Tenant under this Lease and in and to the Premises shall be subject and subordinate to all easements and recorded restrictions, covenants, and agreements pertaining to the Project, or any part thereof, and to all deeds of trust, mortgages, and other security instruments and to all renewals, modifications, consolidations, replacements and extensions thereof (the “Security Documents”) heretofore or hereafter executed by Landlord covering the Premises, the Building or any part of the Project, to the same extent as if the Security Documents had been executed, delivered and recorded prior to the execution of this Lease. After Tenant’s receipt of a notice from Landlord that it has entered into one or more Security Documents, then, during the term of such Security Documents, Tenant shall deliver to the holder or holders of all Security Documents a copy of all notices to Landlord and shall grant to such holder or holders the right to cure all defaults, if any, of Landlord hereunder within the same time period provided in this Lease for curing such defaults by Landlord and, except with the prior written consent of the holder or holders of the Security Documents, shall not surrender or terminate this Lease except pursuant to a right to terminate expressly set forth in this Lease. Tenant shall attorn to any holder of any Security Documents or its successor in interest by foreclosure or otherwise. The provisions of this subsection shall be self-operative and shall not require further agreement by Tenant; however, at the request of Landlord, Tenant shall execute such further documents as may be required by the holder of any Security Documents. At any time and from time to time upon not less than ten (10) days’ prior notice by Landlord, Tenant shall execute, acknowledge and deliver to the Landlord a written estoppel certificate certifying: (i) the Rentable Area of the Premises, (ii) the Commencement Date and Expiration Date of this Lease, (iii) the Base Rent, Base Year and Additional Rent, (iv) that this Lease is unmodified and in full force and effect, or if there have been modifications, that the same is in full force and effect as modified and stating the modifications, (v) whether or not the Landlord is in default in the keeping, observance or performance of any covenant, agreement, term, provision or condition of this Lease and, if so, specifying each such default, (vi) that Tenant has unconditionally accepted and occupied the Premises, (vii) that all requirements of the Lease have been complied with and no charges, set-offs or other credits exist against any rentals, (viii) that Tenant has not assigned, pledged, sublet, or otherwise transferred any interest in this Lease; and (ix) such other matters as Landlord may reasonably request, it being intended that any such statement may be relied upon by Landlord, any prospective purchaser, mortgagee or assignee of any mortgage of the Building or the Project or of the Landlord’s interest therein.

42.Legal Interpretation. This Lease shall be interpreted and enforced in accordance with the laws of the state where the Project is located. The determination that any provision of this Lease is invalid, void, illegal, or unenforceable shall not affect or invalidate the remainder. All obligations of the parties requiring any performance after the expiration of the Term shall survive the expiration or earlier termination of this Lease and shall be fully enforceable in accordance with those provisions pertaining thereto. If Tenant consists of two or more parties, then all
19


parties comprising the Tenant shall be jointly and severally liable for all obligations of Tenant hereunder. Should any provisions of this Lease require judicial interpretation, it is agreed that the court interpreting or construing the same shall not apply a presumption that the terms of any such provision shall be more strictly construed against one party or the other by reason of a rule of construction that a document is to be construed most strictly against the party who itself or through its agent prepared the same, it being agreed that the agents of both parties hereto have participated in the preparation of this Lease.

43.Use of Names and Signage. Tenant shall not have the right to use the name of the Project or Building except in connection with Tenant’s address, and then such terms cannot be emphasized or displayed with more prominence than the rest of such address. Landlord shall have the right to change the name of the Building or Project whenever Landlord in its sole judgment deems appropriate without any consent of or liability to Tenant. Any signage of Tenant within its Premises is subject to the prior written approval of Landlord which shall not be unreasonably withheld, conditioned or delayed; provided in all cases, Tenant shall be solely responsible for ensuring that such signage complies with all applicable Laws and for all costs and expenses relating to any such signage, including, without limitation, design, installation, any operating costs, maintenance, cleaning, repair and removal. Tenant shall be obligated to pay the cost and expense of repairing any damage associated with the removal of any such signage. Tenant shall have no right to place any signage outside the Premises, on the exterior of the Building or elsewhere in the Project.

44.Relocation. Landlord reserves the right to relocate the Premises to reasonably comparable space within the Project. Landlord will give Tenant written notice of its intention to relocate the Premises, and Tenant will complete such relocation within sixty (60) days after receipt of such notice. Upon relocation, this Lease will be amended by deleting the description of the original Premises and substituting for it a description of such new space. Landlord agrees to reimburse Tenant for its actual reasonable moving costs within the Project, the reasonable costs of reprinting reasonable quantities of stationery, and the costs of rewiring for telephone and computers comparable to the original Premises.

45.Brokerage Fees. Landlord’s Broker represents Landlord’s interests in connection with this transaction and shall be paid by Landlord for its services pursuant to a separate, written agreement fully executed by Landlord’s Broker and Landlord prior to full execution of this Lease. Landlord’s Broker does not represent Tenant in this transaction. If Tenant is represented by a broker in this transaction, as disclosed in Section 1(p) of this Lease, then Tenant’s Broker represents Tenant’s interests in connection with this transaction and shall be paid by Landlord for its services pursuant to a separate, written agreement fully executed by Tenant’s Broker and Landlord prior to full execution of this Lease. Tenant warrants and represents that it has had no dealings with any broker in connection with the negotiation or execution of this Lease other than Landlord’s Broker and, if applicable, Tenant’s Broker. Except as expressly provided above, Landlord will not be responsible for, and Tenant will indemnify and hold Landlord harmless from and against, any brokerage or leasing commission or finder’s fee claimed by any party in connection with this Lease.

46.Successors and Assigns. This Lease shall be binding upon and inure to the benefit of Landlord and its successors and assigns, and Tenant and its permitted successors and assigns.

47.Force Majeure. Except for the payment of Rent or any other sum due hereunder, each party hereto shall be excused for the period of any delay and shall not be deemed in default with respect to the performance of any of its obligations when prevented from so doing by a cause beyond such party’s reasonable control, including, without limitation, labor disputes, government regulations, fire or casualty, acts of terrorism, inability to obtain any materials or services, or acts of God (collectively, “Force Majeure Events”).

48.Parking. While Tenant is occupying the Premises and is not in Default, Tenant shall have the right in common with other tenants to use the Parking Spaces in the Building’s Parking Facility indicated in Section 1, subject to any applicable parking fees and rules and regulations promulgated from time to time. If requested by Landlord, Tenant shall execute a separate parking license agreement detailing Landlord’s and Tenant’s rights and obligations with respect to the Parking Spaces. Tenant shall be entitled to use only the number of spaces allocated to Tenant by the Parking Ratio. Nothing herein contained shall be construed to grant to Tenant any estate in real property nor the exclusive right to a particular parking space, but rather as a license only.
20



49.Rooftop Antenna. Tenant shall have no right to place any microwave, satellite or other type of antenna on the roof or exterior of the Building without the prior written consent of Landlord which may be withheld or conditioned in Landlord’s sole and absolute discretion. Landlord expressly reserves the right to charge a fee relating to each such device.

50.Attorneys’ Fees. If Tenant fails to pay any Rent or other sum due under this Lease, or fails to perform an obligation of Tenant hereunder, and after ten (10) business days notice to Tenant of any such failure Landlord engages an attorney to collect such sum or enforce such obligation, then, in addition to such sums, Tenant shall also pay Landlord’s reasonable attorneys’ fees and other reasonable costs and expenses incurred in such engagement. If Landlord and Tenant litigate any provision of this Lease or the subject matter hereof, the unsuccessful party will pay to the successful party all costs and expenses, including reasonable attorneys’ fees and expenses and court costs, incurred by the successful party, including any cost incurred by the successful party on appeal; provided, however that a recovery of attorneys’ fees by Landlord under this sentence shall include, but shall not duplicate, the recovery by Landlord of its reasonable attorneys’ fees and other reasonable costs and expenses of collection permitted under the first sentence of this Section.

51.Tenant Certification. Tenant certifies that, as of the Effective Date hereof: (i) neither it nor its officers, directors, or controlling owners is listed as a “Specifically Designated National or Blocked Person” (“SDN”) on the SDN list maintained and updated from time to time on the United States Treasury Department’s website (the “SDN List”), or is otherwise a banned or blocked person, entity, or nation pursuant to any law, order, rule or regulation that is enforced or administered by the Office of Foreign Assets Control (“OFAC”), or is otherwise named by any Executive Order, the United States Department of Justice, or the United States Treasury Department as a terrorist; (ii) neither it nor its officers, directors, or controlling owners, is acting, directly or indirectly, for or on behalf of any person, group, entity, or nation that is listed on the SDN List or is otherwise named by any Executive Order, the United States Department of Justice, or the United States Treasury Department as a terrorist, SDN or other banned or blocked person, entity, nation, or transaction pursuant to any law, order, rule or regulation that is enforced or administered by the OFAC; (iii) neither it nor its officers, directors, or controlling owners is engaged in this transaction, directly or indirectly on behalf of, or instigating or facilitating this transaction, directly or indirectly on behalf of, any such person, group, entity, or nation; (iv) neither it nor its officers, directors, or controlling owners is in violation of Presidential Executive Order 13224, the USA PATRIOT Act, the Bank Secrecy Act, the Money Laundering Control Act, or any regulations promulgated pursuant thereto (collectively, “Anti-Terrorism Laws”); and (v) neither it nor its officers, directors, or controlling owners is an entity with whom Landlord is prohibited from transacting business under any of the Anti-Terrorism Laws.
Tenant further certifies that, during the Term of this Lease (and any extensions thereof), Tenant will not violate any of the Anti-Terrorism Laws, and it will not do business with any entity that violates any of the Anti- Terrorism Laws. Upon the request of Landlord from time to time during the Term (and any extensions thereof), Tenant shall execute and return to Landlord a certificate stating that Tenant is then in compliance with the provisions of this section of the Lease.

Tenant shall indemnify and hold Landlord and its directors, officers, partners, members, shareholders, employees, and agents harmless from any and all obligations, claims, administrative proceedings, judgments, damages, fines, penalties, costs, and liabilities, including reasonable attorneys’ fees and costs, incurred by Landlord or its directors, officers, partners, members, shareholders, employees, or agents as a result of the breach of the foregoing certification. Moreover, to the extent any provision of this section of the Lease is breached during the Term of this Lease (and any extensions thereof), Landlord may, at its sole option, immediately terminate this Lease without payment or obligation to Tenant.

52.Memorandum of Lease. Except for a memorandum of lease to be recorded at Landlord’s request, neither this Lease, nor a memorandum of this Lease, shall be recorded in any public real estate records.

53.Financial Statements. Upon request, Landlord may require Tenant to provide Landlord with Tenant’s then current financial statements. If required, such financial statements shall be prepared in accordance with generally accepted accounting principles, and, if it is required by law or it is the normal practice of Tenant, such
21


financial statements shall be audited by an independent certified public accountant. If such financial statements are not audited, they shall be certified as being true and correct by Tenant’s chief financial officer.

54.Intentionally Omitted.

55.Radon Gas. Tenant hereby acknowledges receipt of the following notice as required by Chapter 88- 285, Laws of Florida: RADON GAS: Radon is a naturally occurring radioactive gas that, when it has accumulated in a building in sufficient quantities, may present health risks to persons who are exposed to it over time. Levels of radon that exceed federal and state guidelines have been found in buildings in Florida. Additional information regarding radon and radon testing may be obtained from your county health department.

56.Governing Law. This Lease shall be performed in the state where the Premises are located, and the terms of this Lease shall be governed by and construed in accordance with the laws of such state.

57.Entire Agreement. No oral statements or prior written material not specifically incorporated herein shall be of any force or effect. Tenant agrees that in entering into this Lease and accepting the Premises, it relies solely upon the representations and agreements contained in this Lease, the exhibits attached hereto and the written agreements, if any, executed contemporaneously herewith. This Lease, including the Exhibits which are attached hereto and a part hereof, constitutes the entire agreement of the parties and shall not be conditioned, modified or supplemented except by a written agreement executed by both parties.

58.Multiple Counterparts; Electronic Signatures. This Lease may be executed in multiple counterparts, each of which shall be deemed an original but all of which together shall constitute one and the same agreement. The counterparts of this Lease may be executed by electronic signatures and may be delivered electronically by any party to any other party and the receiving party may rely on the receipt of such document so executed and delivered by electronic means as if the original had been received.

59.No Liens. Nothing contained in this Lease shall be construed as a consent on the part of Landlord to subject the estate of Landlord to liability under the Construction Lien Law of the State of Florida, it being expressly understood that the Landlord’s estate shall not be subject to such liability. Tenant shall strictly comply with the Construction Lien Law of the State of Florida as set forth in Chapter 713, Florida Statutes. Any Notice of Commencement filed by or on behalf of Tenant shall contain, in bold print the following “The interest of Landlord in the Premises and Property shall not be subject in any way to any liens for improvements or other work performed by or on behalf of any Tenant.” Notwithstanding the foregoing, Tenant at its expense shall cause any lien filed against the Premises, the Building or the Project for work, services or materials claimed to have been furnished to or for the benefit of Tenant to be satisfied or transferred to bond within fifteen (15) days after Tenant’s having received notice thereof. In the event that Tenant fails to satisfy or transfer to bond such claim of lien within said fifteen (15) day period, Landlord may do so and thereafter charge Tenant as additional Rent, all costs incurred by Landlord in connection with the satisfaction or transfer of such claim, including reasonable attorney’s fees. Further, Tenant agrees to indemnify and save the Landlord harmless from and against any damage to and loss incurred by Landlord as a result of any such contractor’s claim of lien. If so requested by Landlord, Tenant shall execute a short form or memorandum of this Lease, which may, in Landlord’s sole discretion be recorded in the Public Records of Miami-Dade County for the purpose of protecting Landlord’s estate from contractors’ Claims of Lien, as provided in Chapter 713.10, Florida Statutes. In the event such short form or memorandum of this Lease is executed, Tenant shall simultaneously execute and deliver to Landlord an instrument in recordable form terminating Tenant’s interest in the real property upon which the Premises are located, which instrument may be recorded by Landlord at the expiration or earlier termination of the term of this Lease. Any security deposit paid by Tenant may be used by Landlord for the satisfaction or transfer of any Contractor’s Claim of Lien, as provided in this Paragraph. This Paragraph shall survive the expiration or earlier termination of this Lease.


[Signatures appear on next page]
22


This Lease is executed and, except as otherwise expressly provided herein, all provisions shall be effective, as of the Effective Date.


“Tenant”
SUMMIT THERAPEUTICS INC, a Delaware corporation
By: /s/ Ankur Dhingra
Name: Ankur Dhingra
Title: CFO



"Landlord"
BRICKELL KEY CENTRE, LLC, a Delaware limited liability company
By: /s/ Victor Roza
Name: Victor Roza
Title: Vice President




EXHIBIT A
FLOOR PLAN OF PREMISES
image_13a.jpg
A-1


EXHIBIT B
CLEANING AND JANITORIAL SERVICES

NIGHTLY CLEANING
1.Empty all waste receptacles, clean as necessary.
2.Vacuum all carpeted traffic areas and other areas as needed.
3.Dust furniture, files, fixtures, etc.
4.Damp wipe and polish all glass furniture tops.
5.Remove finger marks and smudges from vertical surfaces.
6.Clean all water coolers.
7.Sweep all private stairways nightly, vacuum if carpeted.
8.Damp mop spillage in office and public areas as required.

WEEKLY CLEANING
1.Twice weekly, detail vacuum all rugs and carpeted areas.
2.Once weekly, dust all cleared surfaces of furniture, files, fixtures, etc.

WASH ROOMS (NIGHTLY)
1.Damp mop, rinse and dry floors nightly.
2.Scrub floors as necessary.
3.Clean all mirrors, bright work and enameled surfaces nightly.
4.Wash and disinfect all fixtures.
5.Damp wipe and disinfect all partitions, tile walls, etc.
6.Empty and sanitize all receptacles.
7.Fill toilet tissue, soap, towel, and sanitary napkin dispensers.
8.Clean flushometers and other metal work.
9.Wash and polish all wall partitions, tile walls and enamel surfaces from trim to floor monthly.
10.Vacuum all louvers, ventilating grilles and dust light fixtures monthly.

FLOORS    1.    Ceramic tile, marble and terrazzo floors to be swept nightly and washed or scrubbed as necessary.
2.Vinyl floors and bases to be swept nightly.
3.Tile floors to be waxed and buffed monthly.
4.All carpeted areas and rugs to be detailed vacuumed twice weekly and all carpeted traffic areas and other areas as needed to be vacuumed nightly.
5.Carpet shampooing will be performed at Tenant’s request and billed to Tenant.

GLASS    1.    Clean inside of all perimeter windows as needed, but not more frequently than once every eighteen (18) months.
2.Clean outside of all perimeter windows as needed, but not more frequently than once every eighteen (18) months.
3.Clean glass entrance doors and adjacent glass panels nightly.

HIGH DUSTING (QUARTERLY)
1.Dust and wipe clean all closet shelving when empty.
2.Dust all picture frames, charts, graphs, etc.


3.Dust clean all vertical surfaces.
4.Damp dust all ceiling air conditioning diffusers.
5.Dust the exterior surfaces of lighting fixtures.

DAY SERVICE
1.Check men’s washrooms for toilet tissue replacement.
2.Check ladies’ washrooms for toilet tissue and sanitary napkin replacements.
3.Supply toilet tissue, soap and towels in men’s and ladies’ washrooms.

Neither Landlord nor the janitorial company will be responsible for removing items from surfaces in order to dust them. It is understood that while dusting is completed nightly in the common areas, it is only completed in the Premises once a week and on no particular day. In addition, neither Landlord nor the janitorial company will be
B-1


responsible for moving, dusting or cleaning any computer, copier, printer or other office equipment. Notwithstanding anything herein to the contrary, it is understood that no services of the character provided for in this Exhibit shall be performed on Saturdays, Sundays or Holidays.

B-2


EXHIBIT C
RULES AND REGULATIONS OF BUILDING

1.No smoking shall be permitted within any portion of the Building or within twenty (20) feet of the Building’s exterior doors, including tenant spaces and common areas.

2.Landlord may provide and maintain a directory for all tenants of the Building. No signs, advertisements or notices visible to the general public shall be permitted within the Project without the prior written consent of Landlord. Landlord shall have the right to remove any such sign, placard, picture, advertisement, name or notice placed in violation of this rule without notice to and at the expense of the applicable tenant.

3.Sidewalks, doorways, vestibules, halls, stairways and other similar areas shall not be obstructed by tenants or used by any tenant for any purpose other than ingress and egress to and from the leased premises and for going from one to another part of the Building. At no time shall any tenant permit its employees, agents, contractors or invitees to loiter in common areas or elsewhere in or about the Building or Project.

4.Corridor doors, when not in use, shall be kept closed.

5.Plumbing fixtures and appliances shall be used only for the purposes for which designed, and no sweepings, rubbish, rags, food or other unsuitable material shall be thrown or placed therein. Every tenant shall be responsible for ensuring that its employees, agents, contractors and invitees utilize Common Area restrooms in accordance with generally accepted practices of health, cleanliness and decency.

6.Landlord shall provide all locks for doors into each tenant’s leased area, and no tenant shall place any additional lock or locks on any door in its leased area without Landlord’s prior written consent. Two keys for each lock on the doors in each tenant’s leased area shall be furnished by Landlord. Additional keys shall be made available to tenants at the cost of the tenant requesting such keys. No tenant shall have any duplicate keys made except by Landlord. All keys shall be returned to Landlord at the expiration or earlier termination of the applicable lease.

7.A tenant may use microwave ovens and coffee brewers in kitchen or break areas. Except as expressly authorized by Landlord in writing, no other appliances or other devices are permitted for cooking or heating of food or beverages in the Building. No portable heaters, space heaters or any other type of supplemental heating device or equipment shall be permitted in the Building. All tenants shall notify their employees that such heaters are not permitted.

8.All tenants will refer all contractors, subcontractors, contractors’ representatives and installation technicians who are to perform any work within the Building to Landlord before the performance of any work. This provision shall apply to all work performed in the Building including, but not limited to installation of telephone and communication equipment, medical type equipment, electrical devices and attachments, and any and all installations of every nature affecting floors, walls, woodwork, trim, windows, ceilings, equipment and any other physical portion of the Building.

9.Movement in or out of the Building of furniture or office equipment, or dispatch or receipt by a tenant of any heavy equipment, bulky material or merchandise which require the use of elevators, stairways, lobby areas or loading dock areas, shall be restricted to hours designated by Landlord. A tenant must seek Landlord’s prior approval by providing in writing a detailed listing of any such activity. If approved by Landlord, such activity shall be performed in the manner stated by Landlord.

10.All deliveries to or from the Building shall be made only at such times, in the manner and through the areas, entrances and exits designated by Landlord.

11.No portion of any tenant’s leased area shall at any time be used for sleeping or lodging quarters. No birds, animals or pets of any type, with the exception of guide dogs accompanying visually impaired persons, shall be brought into or kept in, on or about any tenant’s leased area.
C-1


12.No tenant shall make or permit any loud or improper noises in the Building or otherwise interfere in any way with other tenants or persons having business with them.

13.Each tenant shall endeavor to keep its leased area neat and clean. Nothing shall be swept or thrown into the corridors, halls, elevator shafts, stairways or other common areas, nor shall tenants place any trash receptacles in these areas. No tenant shall employ any person for the purpose of cleaning other than the authorized cleaning and maintenance personnel for the Building unless otherwise approved in writing by Landlord. The work of cleaning personnel shall not be hindered by a tenant after 5:30 PM local time, and such cleaning work may be done at any time when the offices are vacant. Exterior windows and common areas may be cleaned at any time.

14.To insure orderly operation of the Building, Landlord reserves the right to approve all concessionaires, vending machine operators or other distributors of cold drinks, coffee, food or other concessions, water, towels or newspapers. No tenant shall install a vending machine in the Building without obtaining Landlord’s prior written approval, which shall not be unreasonably withheld; provided, however, any vending machine installed in the Building shall not exceed the weight load capacity of the floor where such machine is to be installed; and, Landlord reserves the right to require that such vending machine be separately metered in accordance with this Lease, and that such vending machine be equipped with an automatic device that reduces the power consumption of such machine during non-peak hours of use of such machine.

15.Landlord shall not be responsible to tenants, their agents, contractors, employees or invitees for any loss of money, jewelry or other personal property from the leased premises or public areas or for any damages to any property therein from any cause whatsoever whether such loss or damage occurs when an area is locked against entry or not.

16.All tenants shall exercise reasonable precautions in protection of their personal property from loss or damage by keeping doors to unattended areas locked. Tenants shall also report any thefts or losses to the Building Manager and security personnel as soon as reasonably possible after discovery and shall also notify the Building Manager and security personnel of the presence of any persons whose conduct is suspicious or causes a disturbance. The tenant shall be responsible for notifying appropriate law enforcement agencies of any theft or loss of any property of tenant or its employees, agents, contractors, or invitees.

17.All tenants, their employees, agents, contractors and invitees may be called upon to show suitable identification and sign a building register when entering or leaving the Building at any and all times designated by Landlord from time to time, and all tenants shall cooperate fully with Building personnel in complying with such requirements.

18.No tenant shall solicit from or circulate advertising material among other tenants of the Building except through the regular use of the U.S. Postal Service. A tenant shall notify the Building Manager or the Building personnel promptly if it comes to its attention that any unauthorized persons are soliciting from or causing annoyance to tenants, their employees, guests or invitees.

19.Landlord reserves the right to deny entrance to the Building or remove any person or persons from the Building in any case where the conduct of such person or persons involves a hazard or nuisance to any tenant of the Building or to the public or in the event or other emergency, riot, civil commotion or similar disturbance involving risk to the Building, tenants or the general public.

20.Unless expressly authorized by Landlord in writing, no tenant shall tamper with or attempt to adjust temperature control thermostats in the Building. Upon request, Landlord shall adjust thermostats as required to maintain the Building Standard temperature.

21.All requests for overtime air conditioning or heating must be submitted in writing to the Building management office by noon on the day desired for weekday requests, by noon Friday for weekend requests, and by noon on the preceding business day for Holiday requests.

C-2


22.Tenants shall only utilize the termite and pest extermination service provided, designated or approved by Landlord.

23.No tenant shall install, operate or maintain in its leased premises or in any other area of the Building, any electrical equipment which does not bear the U/L (Underwriters Laboratories) seal of approval, or which would overload the electrical system or any part thereof beyond its capacity for proper, efficient and safe operation as determined by Landlord, taking into consideration the overall electrical system and the present and future requirements therefor in the Building.

24.Parking in the Parking Facility shall be in compliance with all parking rules and regulations including any sticker or other identification system established by Landlord. Failure to observe the rules and regulations shall terminate an individual’s right to use the Parking Facility and subject the vehicle in violation to removal and/or impoundment. Parking stickers or other forms of identification supplied by Landlord shall remain the property of Landlord and not the property of a tenant and are not transferable. The owner of the vehicle or its driver assumes all risk and responsibility for damage, loss or theft to vehicles, personal property or persons while such vehicle is in the Parking Facility.

25.Each tenant shall observe Landlord’s reasonable rules with respect to maintaining standard window coverings at all windows in its leased premises so that the Building presents a uniform exterior appearance. Each tenant shall ensure that to the extent reasonably practical, window coverings are closed on all windows in its leased premises while they are exposed to the direct rays of the sun.

26.Bicycles and other vehicles are not permitted inside or on the walkways outside the Building, except in those areas specifically designated by Landlord for such purposes and except as may be needed or used by a physically handicapped person.

27.Landlord reserves the right to rescind any of these rules and regulations and to make such other and further rules and regulations as in its judgment shall from time to time be needful for the safety, protection, care and cleanliness of the Building, the operation thereof, the preservation of good order therein and the protection and comfort of the tenants and their agents, employees and invitees, which rules and regulations, when made and written notice thereof is given to a tenant, shall be binding upon it in like manner as if originally herein prescribed.
C-2


EXHIBIT D WORK LETTER

This Work Letter supplements the Lease to which this Work Letter is attached and, together with the Lease, governs the construction of the Tenant Improvements to the Premises. All capitalized terms appearing in this Work Letter shall have the same meaning as those appearing in the Lease, except as expressly modified herein.

1.Tenant Improvements

a.The design and construction of the improvements shown in the Final Plans defined below (the “Tenant Improvements”) shall be at the expense of Tenant, except to the extent of the Improvement Allowance defined below.

b.The cost of the Tenant Improvements shall include all “hard” construction costs (e.g., materials) incurred by Tenant in constructing the Tenant Improvements (“Tenant’s Costs”). Notwithstanding the construction of the Tenant Improvements by Tenant, Tenant shall pay to Landlord a construction management fee equal to three percent (3%) of the total cost of the Tenant Improvements (the “Construction Management Fee”, which fee shall be deducted from the Improvement Allowance. The total amount of the Tenant’s Costs and the Construction Management Fee is referred to herein as the “Improvement Costs.”

c.Improvement Allowance” shall mean an allowance of $235,625.00, to be provided by Landlord as set forth in the Improvement Allowance Section below.

2.Tenant Plans

a.Tenant shall retain an architect reasonably acceptable to Landlord, which architect shall be licensed in the state in which the Building is located (the “Architect”), to prepare the Tenant Plans and the Final Plans, defined below.

b.Tenant shall cause the Architect to prepare, and Tenant shall deliver to Landlord for Landlord’s approval, the following proposed drawings for the Tenant Improvements (“Tenant Plans”):

1.architectural drawings (consisting of floor construction plan, ceiling lighting and layout, power and telephone plan);

2.mechanical drawings (consisting of HVAC, electrical, telephone, and plumbing); and

3.finish schedule (consisting of wall finishes, floor finishes, and miscellaneous details).

c.Within ten (10) business days after Landlord receives the Tenant Plans, Landlord shall approve the Tenant Plans or provide comments regarding any objections to the Tenant Plans. Tenant shall then diligently revise the Tenant Plans to address all of Landlord’s comments. After the Tenant Plans have been approved by Landlord, Tenant shall proceed to engage a contractor for the construction of the Tenant Improvements, pursuant to the terms of this Work Letter. The Tenant Plans as approved by Landlord and Tenant shall be known as the “Final Plans.”

d.The Tenant Plans and Final Plans shall comply with all applicable Laws. Neither review nor approval by Landlord of the Tenant Plans or Final Plans shall constitute a representation or warranty by Landlord that such plans either (1) are complete or suitable for their intended purpose or (2) comply with applicable Laws, it being expressly agreed by Tenant that Landlord assumes no responsibility or liability whatsoever to Tenant or to any other person or entity for such completeness, suitability, or compliance.

D-1


e.Tenant shall not, without Landlord’s prior written approval, make any changes to the Final Plans. If Tenant desires to change the Final Plans, Tenant shall, at its expense, provide to Landlord plans and specifications for such change(s). All such plans and specifications shall be subject to Landlord’s written approval, which will not be unreasonably withheld or delayed.

3.Construction of Tenant Improvements

a.Upon the full execution of the Lease and the approval by both parties of the Final Plans, Tenant shall proceed to construct the Tenant Improvements in accordance with the Final Plans, the Lease and all applicable Laws. All work and materials required under the Final Plans shall be equal to, or of a quality superior to, Building Standard.

b.Tenant shall engage the Contractor for the construction of the Tenant Improvements in accordance with Section 4 of this Work Letter. Unless otherwise agreed in writing by Landlord and Tenant, all work involved in the construction and installation of the Tenant Improvements shall be carried out by Contractor under a direct contract with Tenant.

c.All contractors engaged by Tenant shall be required to comply with the Construction Rules and Regulations for the Building, a copy of which is attached as Schedule 1 to this Work Letter.

d.The Contractor, and all contractors performing any work in connection with the construction of the Tenant Improvements, shall be required to provide evidence of insurance naming as additional insureds Landlord, and all other entities required to be named as additional insureds under the insurance policies Tenant is required to maintain under Section 20 of the Lease, and which satisfies the requirements of the Lease and this Work Letter relating to the construction of the Tenant Improvements.

e.Under no circumstances will Tenant or Tenant’s authorized representatives alter or modify, or in any manner disturb, any Building System, except as shown on and in strict compliance with the Final Plans. Only with Landlord’s prior written consent (which may be withheld in Landlord’s discretion) and under direct supervision of Landlord shall Tenant or Tenant’s authorized representative alter, add to or modify, or in any manner disturb any branch system or installation of the Building which is located within the Premises (for the purposes of this Section “branch” shall be defined as that portion of any Building System or component of a Building System which serves to connect or extend Building Systems into the Premises).

f.Notwithstanding anything to the contrary set forth herein, Tenant hereby waives all claims against Landlord for damage to any property or injury to, or death of any person in, on or about the Premises or the Building arising out of or in any way related to the construction of the Tenant Improvements in the Premises by Contractor, unless solely caused by, or solely resulting from, the gross negligence or willful misconduct of Landlord, its employees, agents, contractors or representatives, and then only if such damage, injury, death or loss is not covered by insurance of the type required to be carried by Tenant or the Contractor hereunder. Tenant shall, and hereby does agree to, indemnify and hold Landlord harmless from and against any and all claims, causes of action, damages, costs and expenses arising out of the construction of the Tenant Improvements, including, but without limitation, personal injury or property damage, the imposition of any lien against the Premises or the Building and matters arising out of the failure of the Tenant Improvements to comply with applicable Laws. Any claim made by Tenant against Landlord whether under this Work Letter, the Lease or otherwise, shall be subject to the limitation of liability provisions of the Lease.

g.Landlord shall have the right at any time and from time to time to inspect the Premises during the Construction Period. Landlord shall have the right to review and inspect the construction of Tenant Improvements by Tenant to ensure compliance with the Final Plans, and in the event that Landlord gives notice to Tenant of non-compliance with the Final Plans, Tenant shall promptly undertake to
D-2


correct such deficiencies in order to bring the construction of the Tenant Improvements into compliance with the Final Plans and all applicable Laws.

h.Substantial Completion” shall mean the date the certificate of occupancy (the “Certificate of Occupancy”) for the Premises, as improved by the Tenant Improvements, is issued by the appropriate Governmental Authority with jurisdiction over the Building. Tenant shall provide Landlord with a copy of the Certificate of Occupancy immediately upon Tenant’s receipt of same.

i.Tenant shall notify Landlord of the estimated date of Substantial Completion of the Tenant Improvements at least seven (7) days prior thereto. Tenant and Landlord shall then set a mutually acceptable time for Tenant’s Architect and Landlord to inspect the Premises, at which time Landlord shall prepare and submit to Tenant a punch list of items to be completed. Tenant shall diligently complete the punch list items. Upon completion of the Tenant Improvements, Tenant shall furnish Landlord with a complete set of “as-built” construction plans and drawings of the Tenant Improvements, in both paper and electronic format as reasonably requested by Landlord.

j.The Contractor and any subcontractors participating in the construction of the Tenant Improvements shall guarantee that their work shall be free from any and all defects in workmanship and materials for the period of time which customarily applies in buildings comparable to the Building, but in no event for less than one (1) year after the Commencement Date. The foregoing guarantees of the Contractor and any subcontractors shall include the obligation to repair or replace in a first-class and workmanlike manner, and without any additional charge, all defects in workmanship and materials. All warranties or guarantees as to materials or workmanship on or with respect to the Tenant Improvements shall be contained in the contracts and subcontracts for performance of the Tenant Improvements and shall be written so that they shall inure to the benefit of Landlord and Tenant as their respective interests may appear, and so that they can be directly enforced by either Landlord or Tenant, and Tenant shall give to Landlord any assignment or other documentation necessary to effectuate the same.

k.Landlord shall own all Building Standard Tenant Improvements as part of the Building. All Above Standard Tenant Improvements shall be and remain the property of Tenant, until the expiration or earlier termination of the Lease or Tenant’s right to possession of the Premises under this Lease, at which time such Above Standard Tenant Improvements shall become the property of Landlord and shall be surrendered to Landlord with the Premises, unless Landlord specifies, at the time of the approval of the installation of such Above Standard Tenant Improvements, that Landlord will require Tenant to remove same upon the expiration or earlier termination of the Lease or Tenant’s right to possession of the Premises under the Lease. Any required removal of Above Standard Tenant Improvements shall be at Tenant’s expense, and upon such removal, Tenant shall repair any damage to the Premises resulting from such removal. Tenant shall, at Tenant’s expense, be responsible for cleaning and maintaining any Above Standard Tenant Improvements in good condition and repair throughout the Term of this Lease, and Tenant shall insure same as provided in Section 20 of the Lease.

4.Selection of Contractor

The contractor engaged by Tenant for the construction of the Tenant Improvements (the “Contractor”) shall either be selected by Tenant from Landlord’s approved list of contractors for construction in the Building, or shall be such other contractor as may be approved in advance by Landlord. If Tenant wishes to engage any additional contractor other than Contractor to carry out any work associated with the Tenant Improvements, any such engagement shall be subject to Landlord’s prior written approval. If requested by Landlord to do so, Contractor shall obtain a payment and performance bond issued by a surety company satisfactory to Landlord and naming Landlord, and any mortgagee of Landlord, as additional obligees.

5.Improvement Allowance

D-3


a.Landlord shall reimburse Tenant for Tenant’s Costs incurred in connection with the construction of the Tenant Improvements up to, but not exceeding, the amount of the Improvement Allowance, less the amount of the Construction Management Fee, in accordance with the terms of this Improvement Allowance Section. Additionally, any Improvement Costs incurred by Landlord shall be deducted from the Improvement Allowance, and applied by Landlord to pay such Improvement Costs as such costs are incurred. In the event the Improvement Costs exceed the amount of the Improvement Allowance, Tenant shall be responsible for timely payment of the entire overage. In no event shall Landlord be obligated to expend more than the Improvement Allowance.

b.No later than thirty (30) days after Landlord’s receipt of the Certificate of Occupancy, and all other documents required under this paragraph, Landlord shall reimburse Tenant for Tenant’s Costs incurred in designing and constructing the Tenant Improvements, in an amount up to but not exceeding the Improvement Allowance less the amount of the Construction Management Fee; provided, however, that such costs may be paid by Landlord directly to the Architect, the Contractor or any other party if so directed by Tenant. Unless waived by Landlord in writing, no final reimbursement of Tenant’s Costs will be made until the following documents have been received by Landlord:

i.a copy of the final Certificate of Occupancy for the Premises, or such other certificate of occupancy as will permit Tenant to occupy and use the Premises;

ii.an AIA-approved completion certificate executed by Contractor, and an AIA-approved application for payment executed by the Architect, both in form and substance reasonably satisfactory to Landlord, or substitutes for such documents that are reasonably acceptable to Landlord;

iii.an affidavit or certificate executed by the Architect, the Contractor and Tenant that the Tenant Improvements are complete and constructed in accordance with the Final Plans;

iv.a final contractor’s affidavit from Contractor, in a form reasonably satisfactory to Landlord, satisfying the requirements of the laws of the state in which the Building is located in order to extinguish all lien rights in connection with the design and construction of the Tenant Improvements;

v.final lien waivers from the Architect and all subcontractors, materialmen, and engineers providing goods or services in connection with the design and construction of the Tenant Improvements;

vi.Material Safety Data Sheets for all materials used in the construction of the Tenant Improvements;

vii.certified air balance reports from the HVAC contractor;

viii    written warranties and maintenance specifications for all components of the Tenant Improvements; and

ix. such other documents as may be reasonably requested by Landlord in order to demonstrate that the Tenant Improvements are complete; they have been constructed in accordance with the Final Plans and all applicable Laws; and any liens or potential liens that could be filed against the Building or any interest therein have been extinguished.

c.After the Improvement Allowance has been expended by Landlord, the principal amount of the Improvement Allowance, together with interest thereon calculated at the rate of twelve percent (12%) per annum, compounded monthly, shall be amortized evenly over the Term, and so long as
D-4


Tenant does not default in its monetary obligations under the Lease, and fail to cure such default within the applicable period of cure, if any, provided under this Lease, then the balance of the Improvement Allowance shall be reduced each month by the principal amount amortized each month, and upon Landlord’s receipt of the final payment of Rent due during the initial Term of this Lease, Tenant shall have no liability to Landlord for the repayment of any portion of the Improvement Allowance or the interest that accrued and was amortized over the initial Term of this Lease. In the event of an uncured Default by Tenant under this Lease, then in addition to all of Landlord’s other remedies available under this Lease, Tenant shall also be liable to Landlord for the entire unreduced principal balance of the Improvement Allowance remaining as of the date of default. Provided, however, that if Landlord elects to exercise its rights under Section 32 of this Lease to accelerate the entire amount of all rent and other charges due from Tenant for the balance of the Term (in accordance with the terms of such Section), and Landlord obtains a judgment for, or is paid by Tenant, the entire amount of such accelerated sum, then such judgment for or payment of such accelerated sum shall preclude a separate recovery by Landlord under the foregoing terms of this Section of the unreduced balance of the Improvement Allowance and any interest thereon.

6.Commencement Date

The Commencement Date of this Lease shall be determined in accordance with the terms of Section 1(h) of the Lease. Provided, however, that for purposes of determining the Commencement Date pursuant to Section 1(h) of the Lease, the date on which Substantial Completion shall be deemed to have occurred shall be accelerated on a day-for-day basis for each day of Tenant Delay, defined below. For example, if Substantial Completion actually occurs on January 16 of a given year, but there were fifteen (15) days of Tenant Delay, then Substantial Completion will be deemed to have occurred on January 1 of such year.

7.Tenant Delay

The term “Tenant Delay” shall mean each day that Substantial Completion is delayed by any of the following:

a.Tenant’s failure to respond within the time periods specified in this Work Letter, and if no applicable time period is specified in this Work Letter, then within reasonable time periods prescribed by Landlord, to a request for information necessary for the completion of the Tenant Plans or the Final Plans; or

b.Failure of Tenant to prepare and deliver the Tenant Plans to Landlord by the date prescribed herein; or

c.Tenant’s failure to pay any sum as required in the Lease; or

d.Changes by Tenant to the Final Plans; or

e.Requirements by Tenant for materials, finishes or installations which are not Building Standard; or

f.Any interference by Tenant with the construction of the Tenant Improvements; or

g.Changes which must be made in the Final Plans because they do not comply with applicable Laws; or

h.Changes to the base, shell or core of the Building required by the Final Plans; or

i.Tenant’s failure to act in good faith with respect to the construction of the Tenant Improvements; or

j.Any other cause defined under the Lease or this Work Letter as a Tenant Delay.
D-5



8.Landlord’s Work

Prior to the Commencement Date, Landlord shall fix and or relocate torn or damaged carpet tiles in the open area as depicted within the dotted lines on Schedule 2 attached hereto. (the “Landlord’s Work”). In the event Tenant desires any improvements to the Premises prior to the Commencement Date other than the Landlord’s Work, then such improvements shall be at Tenant’s sole cost and expense and subject to Landlord’s prior written approval.
D-6


SCHEDULE 1 TO WORK LETTER

CONSTRUCTION RULES AND REGULATIONS


image_22a.jpg
Schedule 1-1


image_24a.jpg

Schedule 1-2



image_26a.jpg

Schedule 1-3



image_27a.jpg

Schedule 1-4



image_28a.jpg

Schedule 1-5



image_29a.jpg

Schedule 1-6



image_30a.jpg
Schedule 1-7


image_31a.jpg
Schedule 1-8


SCHEDULE 2 TO WORK LETTER LANDLORD’S WORK
image_33a.jpg

E-1



EXHIBIT E
CERTIFICATE CONFIRMING LEASE DATES & BASE RENT

This Certificate Confirming Lease Dates and Base Rent is attached to and made a part of the Lease dated
    , 2024, by and between BRICKELL KEY CENTRE, LLC, a Delaware limited liability company, as Landlord, and SUMMIT THERAPEUTICS, a Delaware corporation, as Tenant.

The undersigned hereby agree and confirm that the Commencement Date, Expiration Date, and Base Rent schedule are revised as stated below:

The Commencement Date as defined in Section 1(h) of the Lease is [     ], 2024, and the Expiration Date as defined in Section 1(i) of the Lease is [     ], 2024.

The Base Rent schedule as defined in Section 1(j) of the Lease is as follows:

[To be completed and executed after the Commencement Date is determined.]

E-2


Landlord:

BRICKELL KEY CENTRE, LLC, a Delaware limited liability company

[NOT FOR EXECUTION.]

By:     (signature) Name:         (print)

Tenant:

SUMMIT THERAPEUTICS, a Delaware
corporation

[NOT FOR EXECUTION.]

By:     (signature) Name:     (print)

E-3


EXHIBIT F SUPPLEMENTAL HVAC EQUIPMENT

The provisions of this Exhibit shall govern the installation, maintenance and removal of all Supplemental HVAC Equipment installed in the Premises. The installation of Supplemental HVAC Equipment in the Premises shall be at Tenant’s sole expense, and shall include the installation of a submeter to monitor the electricity used by the Supplemental HVAC Equipment. Prior to installing any Supplemental HVAC Equipment in the Premises, Tenant shall provide Landlord with plans and specifications for same and obtain Landlord’s written approval, which shall not be unreasonably withheld or delayed. Upon receiving such approval, Tenant shall install the Supplemental HVAC Equipment in compliance with Laws, including all building, electrical, and safety codes, applicable to the Project. Prior to installing the Supplemental HVAC Equipment, Tenant shall obtain any permits or licenses that may be required in order to install and operate such equipment, and Tenant shall timely deliver copies of same to Landlord. In no event shall Tenant’s installation of the Supplemental HVAC Equipment damage the Premises or the Building, or interfere with the maintenance of the Building, or any system currently serving the Building, and Tenant shall pay to Landlord upon demand the cost of repairing any damage to the Building caused by such installation. Tenant shall notify Landlord upon completion of the installation of the Supplemental HVAC Equipment, and Landlord shall have five (5) business days after installation of the Supplemental HVAC Equipment during which to inspect its installation. Tenant shall not commence operation of the Supplemental HVAC Equipment until Landlord has approved its installation. Tenant shall be solely liable for any damages or injury arising out of the installation of the Supplemental HVAC Equipment, and Tenant’s indemnity of Landlord contained in Section 26 shall specifically apply to the installation, operation, maintenance and removal of the Supplemental HVAC Equipment. During the Term of this Lease, as the same may be extended from time to time, Tenant shall be solely responsible for maintaining the Supplemental HVAC Equipment in good working order at Tenant’s sole expense, and Tenant shall reimburse Landlord for all electricity consumed by the Supplemental HVAC Equipment, as additional Rent due hereunder, within fifteen (15) days after Tenant’s receipt of Landlord’s invoice for same. Upon the expiration or earlier termination of this Lease, Tenant shall remove the Supplemental HVAC Equipment from the Premises, and repair all damage to the Premises or the Building caused by the installation or removal of such equipment.

Signature /s/ Ankur Dhingra

F-1