EX-10.5 3 rcel-ex10_5.htm EX-10.5 EX-10.5

Exhibit 10.5

LEASE

BETWEEN

URP X LLC

AND

AVITA MEDICAL, INC.

LEASE

(Short Form)

 

 


 

LEASE

THIS LEASE is made as of __________________, by and between URP X LLC, a Delaware limited liability company, hereafter called “Landlord,” and AVITA MEDICAL, INC., a California corporation, hereafter called “Tenant.”

ARTICLE 1.
BASIC LEASE PROVISIONS

Each reference in this Lease to the “Basic Lease Provisions” shall mean and refer to the following collective terms, the application of which shall be governed by the provisions in the remaining Articles of this Lease.

1. Tenant’s Trade Name: N/A

 

2. Premises:

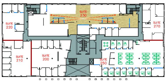
Suite No. 230 (The Premises are more particularly described in Section 2.1.)

Address of Building:

5151 California Avenue, Irvine, CA 92617

Project Description:

UCI Research Park (as shown on Exhibit Y to this Lease)

3. Permitted Use: General office and for no other use.

4. Estimated Commencement Date: July 14, 2023

5. Lease Term: 60 months, plus such additional days as may be required to cause this Lease to expire on the final day of the calendar month.

6. Basic Rent:

 

Months of Term or Period

Monthly Rate Per Rentable Square Foot

Monthly Basic Rent

1 to 12

$2.20

$23,555.40

13 to 24

$2.28

$24,411.96

25 to 36

$2.36

$25,268.52

37 to 48

$2.44

$26,125.08

49 to 60

$2.53

$27,088.71

 

Notwithstanding the above schedule of Basic Rent to the contrary, as long as Tenant is not in Default (as defined in Section 14.1) under this Lease, Tenant shall be entitled to an abatement of 2 full calendar months of Basic Rent in the aggregate amount of $47,110.80 (i.e. $23,555.40 per month) (the “Abated Basic Rent”) for the first 2 full calendar months of the Term (the “Abatement Period”). In the event of a Default that results in termination of this Lease, then as a part of Landlord’s recovery (but only to the extent Landlord is not otherwise “made whole” for the Abated Basic Rent hereunder through its recovery of leasehold damages), Landlord shall be entitled to the recovery of the then-unamortized remaining balance of the Abated Basic Rent (such amortization being calculated on a straight line basis over the initial Lease Term [excluding the Abatement Period] and such balance being determined as of the date of the Default). The payment by Tenant of the Abated Basic Rent in the event of a Default shall not limit or affect any of Landlord’s other rights, pursuant to this Lease or at law or in equity. Only Basic Rent shall be abated during the Abatement Period and all other additional rent and other costs and charges specified in this Lease shall remain due and payable pursuant to the provisions of this Lease.

7. Expense Recovery Period: Every twelve-month period during the Term (or portion thereof during the first and last Lease years) ending June 30.

8. Floor Area of Premises: approximately 10,707 rentable square feet

Floor Area of Building: approximately 63,440 rentable square feet

9. Security Deposit: $54,600.00

10. Broker(s): Irvine Management Company (“Landlord’s Broker”) is the agent of Landlord exclusively and CBRE (“Tenant’s Broker”) is the agent of Tenant exclusively.

11. Parking: 40 parking spaces in accordance with the provisions set forth in Exhibit F to this Lease.

 


 

12. Address for Payments and Notices:

 

LANDLORD

 

Payment Registration Address:

 

Email tenantportal@irvinecompany.com to request an account for the Tenant Payment Portal.

 

Notice Address:

 

THE IRVINE COMPANY LLC

550 Newport Center Drive

Newport Beach, CA 92660

Attn: Executive Vice President, Operations

 Office Properties

TENANT

 

 

 

AVITA MEDICAL, INC.

28159 Avenue Stanford, Suite 220

Valencia, CA 91355

 

Notwithstanding the foregoing, Tenant acknowledges and agrees that any notice given by Landlord under Part 3, Title 3, Chapter 4 of the California Code of Civil Procedure (entitled “Summary Proceedings for Obtaining Possession of Real Property in Certain Cases”) may be delivered to the Premises as provided and required therein, provided that copies of any such notice shall be provided to all other addresses set forth in this Item 12.

LIST OF LEASE EXHIBITS (All exhibits, riders and addenda attached to this Lease are hereby incorporated into and made a part of this Lease):

Exhibit A Description of Premises

Exhibit B Operating Expenses

Exhibit C Utilities and Services

Exhibit D Tenant’s Insurance

Exhibit E Rules and Regulations

Exhibit F Parking

Exhibit G Additional Provisions

Exhibit X Work Letter

Exhibit Y Project Description

ARTICLE 2.
PREMISES
2.1
LEASED PREMISES. Landlord leases to Tenant and Tenant leases from Landlord the Premises shown in Exhibit A (the “Premises”), containing approximately the floor area set forth in Item 8 of the Basic Lease Provisions (the “Floor Area”). The Premises are located in the building identified in Item 2 of the Basic Lease Provisions (the “Building”), which is a portion of the project described in Item 2 (the “Project”). Landlord and Tenant stipulate and agree that the Floor Area of Premises set forth in Item 8 of the Basic Lease Provisions is correct.

The Premises are a portion of certain real property which is leased by Landlord pursuant to that certain Ground Lease (the “Ground Lease”) dated as of June 24, 1998, by and between The Regents of the University of California, a California corporation (“Ground Lessor”) and The Irvine Company, a Delaware corporation, a Memorandum of which was recorded on May 5, 1999, as Instrument No. 19990328619 in the Official Records of Orange County, California. Tenant understands and acknowledges that a material consideration for Landlord entering into this Lease with Tenant is the nature of Tenant’s business and the mutual benefits to be derived by Tenant and by Ground Lessor. Accordingly, in the event of any proposed assignment of this Lease or sublease of the Premises or any portion thereof, in addition to all of the provisions of Section 9.2 of this Lease, Landlord may reasonably withhold its consent to any such proposed assignment or sublease if Landlord determines in its sole and absolute discretion that such mutual benefits will not be derived as a result of the proposed use of the Premises by such assignee, sublessee or transferee.

2.2
ACCEPTANCE OF PREMISES. Tenant acknowledges that neither Landlord nor any representative of Landlord has made any representation or warranty with respect to the Premises, the Building or the Project or the suitability or fitness of either for any purpose, except as set forth in this Lease. Tenant acknowledges that the flooring materials which may be installed within portions of the Premises located on the ground floor of the Building may be limited by the moisture content of the Building slab and underlying soils. The taking of possession or use of the Premises by Tenant for any purpose other than construction shall conclusively establish that the Premises and the Building were in satisfactory condition and in conformity with the provisions of this Lease in all respects. Nothing contained in this Section 2.2 shall affect the commencement of the Term or the obligation of Tenant to pay rent.
ARTICLE 3.
TERM
3.1
GENERAL. The term of this Lease (“Term”) shall be for the period shown in Item 5 of the Basic Lease Provisions. The Term shall commence (“Commencement Date”) on the earlier of (a) the date the Premises are deemed “ready for occupancy” (as hereinafter defined) and possession thereof is delivered to Tenant, or (b) the date Tenant commences its regular business activities within the Premises. Promptly following request by Landlord, the parties shall memorialize on a form provided by Landlord (the “Commencement Memorandum”) the actual Commencement Date and the expiration date (“Expiration Date”) of this Lease; should Tenant fail to execute and return the Commencement Memorandum to

 

 

-2-

 

 


 

Landlord within 5 business days (or provide specific written objections thereto within that period), then Landlord’s determination of the Commencement and Expiration Dates as set forth in the Commencement Memorandum shall be conclusive. The Premises shall be deemed “ready for occupancy” when Landlord, to the extent applicable, (i) has substantially completed all the work required to be completed by Landlord pursuant to the Work Letter (if any) attached to this Lease but for minor punch list matters, and (ii) has obtained the requisite governmental approvals for Tenant’s occupancy in connection with such work.
3.2
DELAY IN POSSESSION. If Landlord, for any reason whatsoever, cannot deliver possession of the Premises to Tenant on or before the Estimated Commencement Date set forth in Item 4 of the Basic Lease Provisions, this Lease shall not be void or voidable nor shall Landlord be liable to Tenant for any resulting loss or damage. However, Tenant shall not be liable for any rent until the Commencement Date occurs as provided in Section 3.1 above, except that if Landlord’s failure to substantially complete all work required of Landlord pursuant to Section 3.1(i) above is attributable to any action or inaction by Tenant (including without limitation any Tenant Delay described in the Work Letter, if any, attached to this Lease), then the Premises shall be deemed ready for occupancy, and Landlord shall be entitled to full performance by Tenant (including the payment of rent), as of the date Landlord would have been able to substantially complete such work and deliver the Premises to Tenant but for Tenant’s delay(s).
ARTICLE 4.
RENT AND OPERATING EXPENSES
4.1
BASIC RENT. From and after the Commencement Date, Tenant shall pay to Landlord without deduction or offset a Basic Rent for the Premises in the total amount shown (including subsequent adjustments, if any) in Item 6 of the Basic Lease Provisions (the “Basic Rent”). If the Commencement Date is other than the first day of a calendar month, any rental adjustment shown in Item 6 shall be deemed to occur on the first day of the next calendar month following the specified monthly anniversary of the Commencement Date. The Basic Rent shall be due and payable in advance commencing on the Commencement Date and continuing thereafter on the first day of each successive calendar month of the Term, as prorated for any partial month. No demand, notice or invoice shall be required. An installment in the amount of 1 full month’s Basic Rent at the initial rate specified in Item 6 of the Basic Lease Provisions, and 1 month’s estimated Tenant’s Share of Operating Expenses shall be delivered to Landlord concurrently with Tenant’s execution of this Lease.
4.2
OPERATING EXPENSES. Tenant shall pay Tenant’s Share of Operating Expenses in accordance with Exhibit B of this Lease.
4.3
SECURITY DEPOSIT. Concurrently with Tenant’s delivery of this Lease, Tenant shall deposit with Landlord the sum, if any, stated in Item 9 of the Basic Lease Provisions (the “Security Deposit”), to be held by Landlord as security for the full and faithful performance of Tenant’s obligations under this Lease, to pay any rental sums, including without limitation such additional rent as may be owing under any provision hereof, and to maintain the Premises as required by this Lease. Upon any Default by Tenant, Landlord may apply all or part of the Security Deposit as full or partial compensation. If any portion of the Security Deposit is so applied, Tenant shall within 5 days after written demand by Landlord deposit cash with Landlord in an amount sufficient to restore the Security Deposit to its original amount. Landlord shall not be required to keep the Security Deposit separate from its general funds, and Tenant shall not be entitled to interest on the Security Deposit. In no event may Tenant utilize all or any portion of the Security Deposit as a payment toward any Rent due under this Lease. Any unapplied balance of the Security Deposit shall be returned to Tenant or, at Landlord’s option, to the last assignee of Tenant’s interest in this Lease within 30 days following the termination of this Lease and Tenant’s vacation of the Premises. Tenant hereby waives the provisions of Section 1950.7 of the California Civil Code, or any similar or successor laws now or hereafter in effect.
ARTICLE 5.
USES
5.1
USE. Tenant shall use the Premises only for the purposes stated in Item 3 of the Basic Lease Provisions and for no other use whatsoever. Tenant shall not do or permit anything to be done in or about the Premises which will in any way interfere with the rights or quiet enjoyment of other occupants of the Building or the Project, or use or allow the Premises to be used for any unlawful purpose, nor shall Tenant permit any nuisance in the Premises or the Project. Tenant shall comply at its expense with all present and future laws, ordinances and requirements of all governmental authorities that pertain to Tenant or its use of the Premises, and with all energy usage reporting requirements of Landlord. Pursuant to California Civil Code § 1938, Landlord hereby states that the Premises have not undergone inspection by a Certified Access Specialist (CASp) (defined in California Civil Code § 55.52(a)(3)). Pursuant to Section 1938 of the California Civil Code, Landlord hereby provides the following notification to Tenant: “A Certified Access Specialist (CASp) can inspect the subject premises and determine whether the subject premises comply with all of the applicable construction-related accessibility standards under state law. Although state law does not require a CASp inspection of the subject premises, the commercial property owner or lessor may not prohibit the lessee or tenant from obtaining a CASp inspection of the subject premises for the occupancy or potential occupancy of the lessee or tenant, if requested by the lessee or tenant. The parties shall mutually agree on the arrangements for the time and manner of the CASp inspection, the payment of the fee for the CASp inspection, and the cost of making any repairs necessary to correct violations of construction related accessibility standards within the premises.”
5.2
SIGNS. Landlord shall affix and maintain a sign (restricted solely to Tenant’s name/logo as set forth herein or such other name as Landlord may consent to in writing) adjacent to the entry door of

 

 

-3-

 

 


 

the Premises, together with a listing for Tenant’s name as set forth herein in the lobby directory of the Building. Tenant shall not place or allow to be placed any other sign, decoration or advertising matter of any kind that is visible from the exterior of the Premises.
5.3
HAZARDOUS MATERIALS. Tenant shall not generate, handle, store or dispose of hazardous or toxic materials (as such materials may be identified in any federal, state or local law or regulation) in the Premises or Project without the prior written consent of Landlord. Tenant acknowledges that it has read, understands and, if applicable, shall comply with the provisions of Exhibit H to this Lease, if that Exhibit is attached.
ARTICLE 6.
LANDLORD SERVICES
6.1
UTILITIES AND SERVICES. Landlord and Tenant shall be responsible to furnish those utilities and services to the Premises to the extent provided in Exhibit C, subject to the conditions and payment obligations and standards set forth in this Lease. Landlord’s failure to furnish, or any interruption, diminishment or termination of, services due to the application of laws, the failure of any equipment, the performance of repairs, improvements or alterations, utility interruptions or the occurrence of an event of force majeure (defined in Section 20.7) shall not render Landlord liable to Tenant, constitute a constructive eviction of Tenant, give rise to an abatement of Rent, nor relieve Tenant from the obligation to fulfill any covenant or agreement. However, if the Premises, or a material portion of the Premises, are made untenantable for a period in excess of 5 consecutive business days as a result of a service interruption that is reasonably within the control of Landlord to correct and through no fault of Tenant and for reasons other than as contemplated in Article 11, then Tenant, as its sole remedy, shall be entitled to receive an abatement of Rent payable hereunder during the period beginning on the 6th consecutive business day of the service interruption and ending on the day the service has been restored.
6.2
OPERATION AND MAINTENANCE OF COMMON AREAS. During the Term, Landlord shall operate all Common Areas within the Building and the Project. The term “Common Areas” shall mean all areas within the Building, Project and other buildings in the Project which are not held for exclusive use by persons entitled to occupy space.
6.3
COMMON AREAS. The occupancy by Tenant of the Premises shall include the use of the Common Areas in common with Landlord and with all others for whose convenience and use the Common Areas may be provided by Landlord, subject, however, to compliance with Rules and Regulations set forth in Exhibit E. Landlord shall at all times during the Term have exclusive control of the Common Areas, and may restrain or permit any use or occupancy. Landlord may temporarily close any portion of the Common Areas for repairs, remodeling and/or alterations, to prevent a public dedication or the accrual of prescriptive rights, or for any other reasonable purpose.
ARTICLE 7.
REPAIRS AND MAINTENANCE
7.1
TENANT’S MAINTENANCE AND REPAIR. Subject to Articles 11 and 12, Tenant at its sole expense shall make all repairs necessary to keep the Premises and all improvements and fixtures therein in good condition and repair. Tenant’s maintenance obligation shall include without limitation all appliances, interior glass, doors, door closures, hardware, fixtures, electrical, plumbing, fire extinguisher equipment and other equipment installed in the Premises, together with any supplemental HVAC equipment servicing only the Premises. Should Landlord or its management agent agree to make a repair on behalf of Tenant and at Tenant’s request, Tenant shall promptly reimburse Landlord as additional rent for all reasonable costs incurred (including the standard supervision fee) upon submission of an invoice.
7.2
LANDLORD’S MAINTENANCE AND REPAIR. Subject to Articles 11 and 12, Landlord shall provide service, maintenance and repair with respect to the heating, ventilating and air conditioning (“HVAC”) equipment of the Building (exclusive of any supplemental HVAC equipment servicing only the Premises) and shall maintain in good repair the Common Areas, roof, foundations, footings, the exterior surfaces of the exterior walls of the Building (including exterior glass), and the structural, electrical, mechanical and plumbing systems of the Building (including elevators, if any, serving the Building), except to the extent provided in Section 7.1 above. Notwithstanding any provision of the California Civil Code or any similar or successor laws to the contrary, Tenant understands that it shall not make repairs at Landlord’s expense or by rental offset. Except as provided in Section 11.1 and Article 12 below, there shall be no abatement of rent and no liability of Landlord by reason of any injury to or interference with Tenant’s business arising from the making of any repairs, alterations or improvements to any portion of the Building, including repairs to the Premises, nor shall any related activity by Landlord constitute an actual or constructive eviction. Tenant hereby waives any and all rights under and benefits of subsection 1 of Section 1932, and Sections 1941 and 1942 of the California Civil Code, or any similar or successor laws now or hereafter in effect.
7.3
ALTERATIONS. Except for cosmetic alteration projects that do not exceed $53,535.00 during each calendar year and that do not affect the structural, electrical or mechanical components or systems of the Building, are not visible from the exterior of the Premises, do not change the basic floor plan of the Premises, and utilize only Landlord’s building standard materials (which work shall require notice to Landlord but not Landlord’s consent), Tenant shall make no alterations, additions, decorations, or improvements (collectively referred to as “Alterations”) to the Premises without the prior written consent of Landlord. Landlord may impose, as a condition to its consent, any requirements that Landlord in its discretion may deem reasonable or desirable. Tenant shall use Landlord’s designated mechanical and

 

 

-4-

 

 


 

electrical contractors, obtain all required permits for the Alterations and shall perform the work in compliance with all applicable laws, regulations and ordinances with contractors reasonably acceptable to Landlord. Landlord shall be entitled to a supervision fee in the amount of 5% of the cost of the Alterations. Landlord may elect to cause its architect to review Tenant’s architectural plans, and the reasonable cost of that review shall be reimbursed by Tenant. Should the Alterations proposed by Tenant and consented to by Landlord change the floor plan of the Premises, then Tenant shall, at its expense, furnish Landlord with as-built drawings and CAD disks compatible with Landlord’s systems. Unless Landlord otherwise agrees in writing, all Alterations affixed to the Premises, including without limitation all Tenant Improvements constructed pursuant to the Work Letter (except as otherwise provided in the Work Letter), but excluding moveable trade fixtures and furniture, shall become the property of Landlord and shall be surrendered with the Premises at the end of the Term, except that Landlord may, by notice to Tenant given at the time of Landlord’s approval, require Tenant to remove by the Expiration Date or sooner termination date of this Lease, all or any Alterations installed either by Tenant or by Landlord at Tenant’s request (collectively, the “Required Removables”). Notwithstanding anything to the contrary in the foregoing, the Tenant Improvements (as defined in the Work Letter attached hereto) shall not be Required Removables but any alternates described in the “Plan” (as defined in the Work Letter attached hereto) installed at Tenant’s request shall be Required Removables. In connection with its removal of Required Removables, Tenant shall repair any damage to the Premises arising from that removal and shall restore the affected area to its pre-existing condition, reasonable wear and tear excepted.
7.4
MECHANIC’S LIENS. Tenant shall keep the Premises free from any liens arising out of any work performed, materials furnished, or obligations incurred by or for Tenant. In the event that Tenant shall not, within 15 days following the imposition of any lien, cause the lien to be released of record by payment or posting of a proper bond in accordance with California Civil Code Section 8424 or any successor statute, Landlord shall have, in addition to all other available remedies, the right to cause the lien to be released by any means it deems proper, including payment of or defense against the claim giving rise to the lien. All expenses so incurred by Landlord shall be reimbursed by Tenant promptly following Landlord’s demand. Tenant shall give Landlord no less than 20 days’ prior notice in writing before commencing construction of any kind on the Premises.
7.5
ENTRY AND INSPECTION. Landlord shall at all reasonable times and with reasonable prior verbal notice, except in emergencies or to provide Building services, have the right to enter the Premises to inspect them, to supply services in accordance with this Lease, to make repairs and renovations as reasonably deemed necessary by Landlord, and to submit the Premises to prospective or actual purchasers or encumbrance holders (or, during the final twelve months of the Term or when an uncured Default exists, to prospective tenants), all without being deemed to have caused an eviction of Tenant and without abatement of rent except as provided elsewhere in this Lease.
ARTICLE 8.
[INTENTIONALLY OMITTED]
ARTICLE 9.
ASSIGNMENT AND SUBLETTING
9.1
RIGHTS OF PARTIES. Tenant shall not, directly or indirectly, assign, sublease, transfer or encumber any interest in this Lease or allow any third party to use any portion of the Premises (collectively or individually, a “Transfer”) without the prior written consent of Landlord, which consent shall not be unreasonably withheld if Landlord does not exercise its recapture rights. Tenant agrees that it is not unreasonable for Landlord to withhold consent to a Transfer to a proposed assignee or subtenant who is an existing tenant or occupant of the Building or Project, except that Landlord will not enforce this restriction if it does not have sufficient available space to accommodate the proposed transferee, or to a prospective tenant with whom Landlord or Landlord’s affiliate has been actively negotiating within the prior 6 months. Any attempted Transfer in violation of this Article shall be a Default by Tenant and shall, at Landlord’s option, be void. Within 30 days after receipt of executed copies of the transfer documentation and such other information as Landlord may request, Landlord shall either: (a) consent to the Transfer by execution of a consent agreement in a form reasonably designated by Landlord; (b) refuse to consent to the Transfer; or (c) recapture the portion of the Premises that Tenant is proposing to Transfer. Tenant hereby waives the provisions of Section 1995.310 of the California Civil Code, or any similar or successor Laws, now or hereinafter in effect, and all other remedies, including, without limitation, any right at law or equity to terminate this Lease, on its own behalf and, to the extent permitted under all applicable laws, on behalf of the proposed transferee. In no event shall any Transfer release or relieve Tenant from any obligation under this Lease, as same may be amended. Tenant shall pay Landlord a review fee of $1,000.00 for Landlord’s review of any requested Transfer. Tenant shall pay Landlord, as additional Rent, 50% of all rent and other consideration which Tenant receives as a result of a Transfer that is in excess of the Rent payable to Landlord for the portion of the Premises and Term covered by the Transfer, after first deducting Tenant’s costs incurred in connection with the Transfer. For purposes herein, such transfer costs shall include all reasonable and customary expenses directly incurred by Tenant attributable to the Transfer, including brokerage fees, legal fees, construction costs, and Landlord’s review fee. If Tenant is in Default, Landlord may require that all sublease payments be made directly to Landlord, in which case Tenant shall receive a credit against Rent in the amount of Tenant’s share of payments received by Landlord.
9.2
PERMITTED TRANSFER. Notwithstanding the foregoing, Tenant may assign this Lease to a successor to Tenant by merger, consolidation or the purchase of substantially all of Tenant’s assets, or assign this Lease or sublet all or a portion of the Premises to an Affiliate (defined below), without the consent of Landlord, provided that all of the following conditions are satisfied (a “Permitted Transfer”): (i) Tenant is not then in Default hereunder; (ii) Tenant gives Landlord written notice prior to such Permitted

 

 

-5-

 

 


 

Transfer; and (iii) if Tenant ceases to exist as a going concern as a result of any merger or consolidation of Tenant or the sale of all or substantially all of the assets of Tenant, the resulting successor entity has a tangible net worth not less than the tangible net worth of Tenant immediately before the Permitted Transfer. “Affiliate” shall mean an entity controlled by, controlling or under common control with Tenant.
ARTICLE 10.
INSURANCE AND INDEMNITY
10.1
TENANT’S INSURANCE. Tenant, at its sole cost and expense, shall provide and maintain in effect the insurance described in Exhibit D. Evidence of that insurance must be delivered to Landlord prior to the Commencement Date.
10.2
TENANT’S INDEMNITY. To the fullest extent permitted by law, but subject to Section 10.4 below, Tenant shall defend, indemnify and hold harmless Landlord, Ground Lessor, and Landlord’s agents, employees, lenders, and affiliates, from and against any and all negligence, claims, liabilities, damages, costs or expenses including attorney’s fees and costs (collectively, “Costs”) arising either before or after the Commencement Date which arise from or related to or are caused by Tenant’s use or occupancy of the Premises, the Building or the Common Areas of the Project, or from the conduct of Tenant’s business, or from any activity, work, or thing done, permitted or suffered by Tenant or Tenant’s agents, employees, subtenants, vendors, contractors, invitees or licensees in or about the Premises, the Building or the Common Areas of the Project, or from any Default in the performance of any obligation on Tenant’s part to be performed under this Lease, or from any act, omission or negligence on the part of Tenant or Tenant’s agents, employees, subtenants, vendors, contractors, invitees or licensees. Landlord may, at its option, require Tenant to assume Landlord’s defense in any action covered by this Section 10.2 through counsel reasonably satisfactory to Landlord. Notwithstanding the foregoing, Tenant shall not be obligated to indemnify Landlord against any liability or expense to the extent it is ultimately determined that the same was caused by the negligence or willful misconduct of Landlord, its agents, contractors or employees. Tenant shall in all cases accept any tender of defense of any action or proceeding in which Landlord is named or made a party, within 14 days of the tender and shall, notwithstanding any allegations of negligence or willful misconduct on the part of Landlord, defend Landlord as provided herein until a final determination of negligence or willful misconduct is made. Costs shall also include all of Landlord’s attorneys’ fees, litigation costs, investigation costs and court costs and all other costs, expenses and liabilities incurred by Landlord or its counsel from the date Landlord first receives Notice that any claim or demand is to be made or may be made. Tenant shall also tender the action or proceeding to its insurer, and request coverage for its indemnity obligations to Landlord. For purposes of this Section 10.2, (a) “Landlord” includes Landlord and Landlord’s directors, officers, shareholders, members, agents and employees, and (b) “Tenant” includes Tenant and its directors, officers, shareholders, members, agents, contractors and employees. Tenant’s obligations under this Section 10.2 shall survive the termination of this Lease.
10.3
WAIVER OF CLAIMS. Unless caused by the negligence or intentional misconduct of Landlord, its agents, employees or contractors but subject to Section 10.4 below, Landlord shall not be liable to Tenant, its employees, agents and invitees, and Tenant hereby waives all claims against Landlord, its employees and agents for loss of or damage to any property, or any injury to any person, resulting from any condition including, but not limited to, acts or omissions (criminal or otherwise) of third parties and/or other tenants of the Project, or their agents, employees or invitees, fire, explosion, falling plaster, steam, gas, electricity, water or rain which may leak or flow from or into any part of the Premises or from the breakage, leakage, obstruction or other defects of the pipes, sprinklers, wires, appliances, plumbing, air conditioning, electrical works or other fixtures in the Building, whether the damage or injury results from conditions arising in the Premises or in other portions of the Building. Notwithstanding anything to the contrary contained in this Lease, in no event shall Landlord be liable for Tenant’s loss or interruption of business or income (including without limitation, Tenant’s consequential damages, lost profits or opportunity costs), or for interference with light or other similar intangible interests.
10.4
WAIVER OF SUBROGATION. Landlord and Tenant waive all rights of recovery against the other on account of loss and damage to the property of such waiving party to the extent that the waiving party is entitled to proceeds for such loss and damage under any property insurance policies carried or otherwise required to be carried by this Lease.
ARTICLE 11.
DAMAGE OR DESTRUCTION
11.1
RESTORATION.
(a)
If the Building of which the Premises are a part is damaged as the result of an event of casualty, then subject to the provisions below, Landlord shall repair that damage as soon as reasonably possible unless Landlord reasonably determines that: (i) the Premises have been materially damaged and there is less than 1 year of the Term remaining on the date of the casualty; (ii) any Mortgagee (defined in Section 13.1) requires that the insurance proceeds be applied to the payment of the mortgage debt; or (iii) proceeds necessary to pay the full cost of the repair are not available from Landlord’s insurance, including without limitation earthquake insurance. Should Landlord elect not to repair the damage for one of the preceding reasons, Landlord shall so notify Tenant in the “Casualty Notice” (as defined below), and this Lease shall terminate as of the date of delivery of that notice.
(b)
As soon as reasonably practicable following the casualty event but not later than 60 days thereafter, Landlord shall notify Tenant in writing (“Casualty Notice”) of Landlord’s election, if

 

 

-6-

 

 


 

applicable, to terminate this Lease. If this Lease is not so terminated, the Casualty Notice shall set forth the anticipated period for repairing the casualty damage. If the anticipated repair period exceeds 270 days and if the damage is so extensive as to reasonably prevent Tenant’s substantial use and enjoyment of the Premises, then either party may elect to terminate this Lease by written notice to the other within 10 days following delivery of the Casualty Notice.
(c)
In the event that neither Landlord nor Tenant terminates this Lease pursuant to Section 11.1(b), Landlord shall repair all material damage to the Premises or the Building as soon as reasonably possible and this Lease shall continue in effect for the remainder of the Term. Upon notice from Landlord, Tenant shall assign or endorse over to Landlord (or to any party designated by Landlord) all property insurance proceeds payable to Tenant under Tenant’s insurance with respect to any Alterations. Within 15 days of demand, Tenant shall also pay Landlord for any additional excess costs that are determined during the performance of the repairs to such Alterations.
(d)
From and after the day following the casualty event, the rental to be paid under this Lease shall be abated in the same proportion that the Floor Area of the Premises that is rendered unusable by the damage from time to time bears to the total Floor Area of the Premises.
(e)
Notwithstanding the provisions of subsections (a), (b) and (c) of this Section 11.1, Tenant shall not be entitled to rental abatement or termination rights, if the damage is due to the gross negligence or willful misconduct of Tenant or its employees, subtenants, contractors, invitees or representatives.
11.2
LEASE GOVERNS. Tenant agrees that the provisions of this Lease, including without limitation Section 11.1, shall govern any damage or destruction and shall accordingly supersede any contrary statute or rule of law.
ARTICLE 12.
EMINENT DOMAIN

Either party may terminate this Lease if any material part of the Premises is taken or condemned for any public or quasi-public use under Law, by eminent domain or private purchase in lieu thereof (a “Taking”). Landlord shall also have the right to terminate this Lease if there is a Taking of any portion of the Building or Project which would have a material adverse effect on Landlord’s ability to profitably operate the remainder of the Building or Project. The termination shall be effective as of the effective date of any order granting possession to, or vesting legal title in, the condemning authority. All compensation awarded for a Taking shall be the property of Landlord. Tenant agrees that the provisions of this Lease shall govern any Taking and shall accordingly supersede any contrary statute or rule of law.

ARTICLE 13.
SUBORDINATION; ESTOPPEL CERTIFICATE
13.1
SUBORDINATION. Tenant accepts this Lease subject and subordinate to any mortgage(s), deed(s) of trust, ground lease(s) or other lien(s) now or subsequently arising upon the Building or the Project, and to renewals, modifications, refinancings and extensions thereof (collectively referred to as a “Mortgage”). The party having the benefit of a Mortgage shall be referred to as a “Mortgagee.” This clause shall be self-operative, but upon request from a Mortgagee, Tenant shall execute a commercially reasonable subordination and attornment agreement in favor of the Mortgagee, provided such agreement provides a non-disturbance covenant benefitting Tenant. Alternatively, a Mortgagee shall have the right at any time to subordinate its Mortgage to this Lease. Upon request, Tenant, without charge, shall attorn to any successor to Landlord’s interest in this Lease in the event of a foreclosure of any Mortgage. Tenant agrees that any purchaser at a foreclosure sale or lender taking title under a deed in lieu of foreclosure shall not be responsible for any act or omission of a prior landlord, shall not be subject to any offsets or defenses Tenant may have against a prior landlord, and shall not be liable for the return of the Security Deposit not actually recovered by such purchaser nor bound by any rent paid in advance of the calendar month in which the transfer of title occurred; provided that the foregoing shall not release the applicable prior landlord from any liability for those obligations. Tenant acknowledges that Landlord’s Mortgagees and their successors-in-interest are intended third party beneficiaries of this Section 13.1.
13.2
ESTOPPEL CERTIFICATE. Tenant shall, within 10 business days after receipt of a written request from Landlord, execute and deliver a commercially reasonable estoppel certificate in favor of those parties as are reasonably requested by Landlord (including a Mortgagee or a prospective purchaser of the Building or the Project).
ARTICLE 14.
DEFAULTS AND REMEDIES
14.1
TENANT’S DEFAULTS. In addition to any other event of default set forth in this Lease, the occurrence of any one or more of the following events shall constitute a “Default” by Tenant:
(a)
The failure by Tenant to make any payment of Rent required to be made by Tenant, as and when due, where the failure continues for a period of 5 business days after written notice from Landlord to Tenant. The term “Rent” as used in this Lease shall be deemed to mean the Basic Rent and all other sums required to be paid by Tenant to Landlord pursuant to the terms of this Lease.
(b)
Except where a specific time period is otherwise set forth for Tenant’s performance in this Lease (in which event the failure to perform by Tenant within such time period shall be a Default),

 

 

-7-

 

 


 

the failure or inability by Tenant to observe or perform any of the covenants or provisions of this Lease to be observed or performed by Tenant, other than as specified in any other subsection of this Section 14.1, where the failure continues for a period of 30 days after written notice from Landlord to Tenant.

The notice periods provided herein are in lieu of, and not in addition to, any notice periods provided by law, and Landlord shall not be required to give any additional notice under California Code of Civil Procedure Section 1161, or any successor statute, in order to be entitled to commence an unlawful detainer proceeding.

14.2
LANDLORD’S REMEDIES. In addition to all other rights or remedies of Landlord set forth in this Lease, if a Default occurs, Landlord shall have all rights available to Landlord under California law, without further notice or demand to Tenant, including, without limitation, the right to terminate this Lease. In addition, Landlord has the remedy described in California Civil Code Section 1951.4 (Landlord may continue this Lease in effect after Tenant’s breach and abandonment and recover Rent as it becomes due, if Tenant has the right to sublet or assign, subject only to reasonable limitations). In any case in which Landlord re-enters and occupies the Premises, by unlawful detainer proceedings or otherwise, Landlord, at its option, may repair, alter, subdivide or change the character of the Premises as Landlord deems best, relet all or any part of the Premises and receive the rents therefor, and none of these actions shall constitute a termination of this Lease, a release of Tenant from any liability, or result in the release of any Guarantor. Landlord shall not be deemed to have terminated this Lease or the liability of Tenant to pay any Rent or other charges later becoming due by any re-entry of the Premises pursuant to this Section 14.2, or by any action in unlawful detainer or otherwise to obtain possession of the Premises, unless Landlord has first given Tenant notice that it is terminating this Lease. Any notice given by Landlord pursuant to Section 14.1 shall be in lieu of, and not in addition to, any notice required by Section 1161 of the California Code of Civil Procedure or superseding statute. Any payment of Rent following Landlord’s delivery of notice to Tenant pursuant to Section 14.1 shall not constitute acceptance of Rent. If Landlord elects to terminate this Lease pursuant to the provisions of this Section 14.2, damages shall include, without limitation, the remedy and measure of damages specified pursuant to California Civil Code Section 1951.2, which shall include the worth at the time of award of the amount by which the unpaid Rent for the balance of the Term after the time of award exceeds the amount of Rent loss Tenant proves could have been reasonably avoided.
14.3
LATE PAYMENTS. Any Rent due under this Lease that is not paid to Landlord within 5 days of the date when due shall bear interest at the maximum rate permitted by law from the date due until fully paid and if any Rent due from Tenant shall not be received by Landlord or Landlord’s designee within 5 days after the date due, then Tenant shall pay to Landlord, in addition to the interest, a late charge for each delinquent payment equal to the greater of (i) 5% of that delinquent payment or (ii) $100.00.
14.4
DEFAULT BY LANDLORD. Landlord shall not be deemed to be in default in the performance of any obligation under this Lease unless and until it has failed to perform the obligation within 30 days after written notice by Tenant to Landlord specifying in reasonable detail the nature and extent of the failure; provided, however, that if the nature of Landlord’s obligation is such that more than 30 days are required for its performance, then Landlord shall not be deemed to be in default if it commences performance within the 30 day period and thereafter diligently pursues the cure to completion.
14.5
EXPENSES AND LEGAL FEES. Should either Landlord or Tenant bring any action in connection with this Lease, the prevailing party shall be entitled to recover as a part of the action its reasonable attorneys’ fees, and all other reasonable costs. The prevailing party for the purpose of this paragraph shall be determined by the trier of the facts.
14.6
JUDICIAL REFERENCE/ WAIVER OF JURY TRIAL. Landlord and Tenant agree that any disputes arising in connection with this Lease (including but not limited to a determination of any and all of the issues in such dispute, whether of fact or of law) shall be resolved (and a decision shall be rendered) by way of a general reference as provided for in Part 2, Title 8, Chapter 6 (§§ 638 et. seq.) of the California Code of Civil Procedure, or any successor California statute governing resolution of disputes by a court appointed referee. Nothing within this Section 14.6 shall apply to an unlawful detainer action. LANDLORD AND TENANT EACH ACKNOWLEDGES THAT IT IS AWARE OF AND HAS HAD THE ADVICE OF COUNSEL OF ITS CHOICE WITH RESPECT TO ITS RIGHT TO TRIAL BY JURY, AND, TO THE EXTENT PERMITTED BY LAW, EACH PARTY DOES HEREBY EXPRESSLY AND KNOWINGLY WAIVE AND RELEASE ALL SUCH RIGHTS TO TRIAL BY JURY IN ANY ACTION, PROCEEDING OR COUNTERCLAIM ARISING OUT OF OR IN ANY WAY CONNECTED WITH THIS LEASE.
14.7
SATISFACTION OF JUDGMENT. The obligations of Landlord do not constitute the personal obligations of the individual partners, trustees, directors, officers, members or shareholders of Landlord or its constituent partners or members. Should Tenant recover a money judgment against Landlord, such judgment shall be satisfied only from the interest of Landlord in the Project and out of the rent or other income from such property receivable by Landlord, and no action for any deficiency may be sought or obtained by Tenant.
ARTICLE 15.
END OF TERM
15.1
HOLDING OVER. If Tenant holds over for any period after the Expiration Date (or earlier termination of the Term), such tenancy shall constitute a tenancy at sufferance only and possession shall be subject to all of the terms of this Lease, except that the monthly rental shall be 150% of the total monthly rental for the month immediately preceding the date of termination. The acceptance by Landlord of monthly

 

 

-8-

 

 


 

hold-over rental in a lesser amount shall not constitute a waiver of Landlord’s right to recover the full amount due unless otherwise agreed in writing by Landlord. If Tenant fails to surrender the Premises upon the expiration of this Lease despite demand to do so by Landlord, Tenant shall indemnify and hold Landlord harmless from all loss or liability, including without limitation, any claims made by any succeeding tenant relating to such failure to surrender. The foregoing provisions of this Section 15.1 are in addition to and do not affect Landlord’s right of re-entry or any other rights of Landlord under this Lease or at law.
15.2
SURRENDER OF PREMISES; REMOVAL OF PROPERTY. Upon the Expiration Date or upon any earlier termination of this Lease, Tenant shall quit and surrender possession of the Premises to Landlord in as good order, condition and repair as when received or as hereafter may be improved by Landlord or Tenant, reasonable wear and tear and repairs which are Landlord’s obligation excepted, and shall remove or fund to Landlord the cost of removing all wallpapering, voice and/or data transmission cabling installed by or for Tenant and Required Removables, together with all personal property and debris, and shall perform all work required under Section 7.3 of this Lease. If Tenant shall fail to comply with the provisions of this Section 15.2, and remove any personal property within 10 days following the expiration or earlier termination of this Lease, such personal property shall be conclusively deemed to have been abandoned, then Landlord may effect the removal and/or make any repairs, without notice and without incurring any liability to Tenant, and the cost to Landlord shall be additional rent payable by Tenant upon demand. Tenant hereby waives all rights under and benefits of Section 1993.03 of the California Civil Code, or any similar or successor laws now or hereafter in effect and authorizes Landlord to dispose of any personal property remaining at the Premises following the expiration or earlier termination of this Lease without further notice to Tenant.
ARTICLE 16.
PAYMENTS AND NOTICES

All sums payable by Tenant to Landlord shall be paid, without deduction or offset, in lawful money of the United States to Landlord at its address set forth in Item 12 of the Basic Lease Provisions, or at any other place as Landlord may designate in writing. Unless this Lease expressly provides otherwise, all payments shall be due and payable within 5 days after demand. All payments requiring proration shall be prorated on the basis of the number of days in the pertinent calendar month or year, as applicable. Any notice, election, demand, consent, approval or other communication to be given or other document to be delivered by either party to the other may be delivered to the other party, at the address set forth in Item 12 of the Basic Lease Provisions, by personal service or by any courier or “overnight” express mailing service. Either party may, by written notice to the other, served in the manner provided in this Article, designate a different address. The refusal to accept delivery of a notice, or the inability to deliver the notice (whether due to a change of address for which notice was not duly given or other good reason), shall be deemed delivery and receipt of the notice as of the date of attempted delivery. If more than one person or entity is named as Tenant under this Lease, service of any notice upon any one of them shall be deemed as service upon all of them.

ARTICLE 17.
RULES AND REGULATIONS

Tenant agrees to comply with the Rules and Regulations attached as Exhibit E, and any reasonable and nondiscriminatory amendments, modifications and/or additions as may be adopted by Landlord from time to time.

ARTICLE 18.
BROKERS COMMISSION

The parties recognize as the broker(s) who negotiated this Lease the firm(s) whose name(s) is (are) stated in Item 10 of the Basic Lease Provisions, and agree that Landlord shall be responsible for the payment of brokerage commissions to those broker(s) unless otherwise provided in this Lease. Tenant agrees to indemnify and hold Landlord harmless from any cost, expense or liability (including reasonable attorneys’ fees) for any compensation, commissions or charges claimed by any other real estate broker or agent employed or claiming to represent or to have been employed by Tenant in connection with the negotiation of this Lease.

ARTICLE 19.
TRANSFER OF LANDLORDS INTEREST

Landlord shall have the right to transfer and assign, in whole or in part, all of its ownership interest, rights and obligations in the Building, Project or Lease, including the Security Deposit, and upon transfer Landlord shall be released from any further obligations hereunder, and Tenant agrees to look solely to the successor in interest of Landlord for the performance of such obligations and the return of any Security Deposit.

ARTICLE 20.
INTERPRETATION
20.1
JOINT AND SEVERAL LIABILITY. If more than one person or entity is named as Tenant, the obligations imposed upon each shall be joint and several and the act of or notice from, or notice or refund to, or the signature of, any one or more of them shall be binding on all of them with respect to the tenancy of this Lease, including, but not limited to, any renewal, extension, termination or modification of this Lease.

 

 

-9-

 

 


 

20.2
SUCCESSORS. Subject to Sections 13.1 and 22.3 and to Articles 9 and 19 of this Lease, all rights and liabilities given to or imposed upon Landlord and Tenant shall extend to and bind their respective heirs, executors, administrators, successors and assigns.
20.3
TIME OF ESSENCE. Time is of the essence with respect to the performance of every provision of this Lease in which time of performance is a factor.
20.4
CONTROLLING LAW. This Lease shall be governed by and interpreted in accordance with the laws of the State of California.
20.5
SEVERABILITY. If any term or provision of this Lease, the deletion of which would not adversely affect the receipt of any material benefit by either party or the deletion of which is consented to by the party adversely affected, shall be held invalid or unenforceable to any extent, the remainder of this Lease shall not be affected and each term and provision of this Lease shall be valid and enforceable to the fullest extent permitted by law.
20.6
WAIVER. One or more waivers by Landlord or Tenant of any breach of any term, covenant or condition contained in this Lease shall not be a waiver of any subsequent breach of the same or any other term, covenant or condition. Consent to any act by one of the parties shall not be deemed to render unnecessary the obtaining of that party’s consent to any subsequent act. No breach of this Lease shall be deemed to have been waived unless the waiver is in a writing signed by the waiving party.
20.7
INABILITY TO PERFORM. In the event that either party shall be delayed or hindered in or prevented from the performance of any work or in performing any act required under this Lease by reason of any cause beyond the reasonable control of that party, then the performance of the work or the doing of the act shall be excused for the period of the delay and the time for performance shall be extended for a period equivalent to the period of the delay. The provisions of this Section 20.7 shall not operate to excuse Tenant from the prompt payment of Rent.
20.8
ENTIRE AGREEMENT. This Lease constitutes the entire agreement between the parties and supersedes all prior agreements and understandings related to the Premises. This Lease may be modified only by a written agreement signed by Landlord and Tenant.
20.9
QUIET ENJOYMENT. Upon the observance and performance of all the covenants, terms and conditions on Tenant’s part to be observed and performed, and subject to the other provisions of this Lease, Tenant shall have the right of quiet enjoyment and use of the Premises for the Term without hindrance or interruption by Landlord or any other person claiming by or through Landlord.
20.10
SURVIVAL. All covenants of Landlord or Tenant which reasonably would be intended to survive the expiration or sooner termination of this Lease, including without limitation any warranty or indemnity hereunder, shall so survive and continue to be binding upon and inure to the benefit of the respective parties and their successors and assigns.
ARTICLE 21.
EXECUTION
21.1
COUNTERPARTS; DIGITAL SIGNATURES. This Lease may be executed in one or more counterparts, each of which shall constitute an original and all of which shall be one and the same agreement. The parties agree to accept a digital image (including but not limited to an image in the form of a PDF, JPEG, GIF file, or other e-signature) of this Lease, if applicable, reflecting the execution of one or both of the parties, as a true and correct original.
21.2
CORPORATE AND PARTNERSHIP AUTHORITY. Tenant and each individual executing this Lease represents and warrants to Landlord, and agrees, that such individual executing this Lease on behalf of Tenant is authorized to do so on behalf of Tenant.
21.3
EXECUTION OF LEASE; NO OPTION OR OFFER. The submission of this Lease to Tenant shall be for examination purposes only, and shall not constitute an offer to or option for Tenant to lease the Premises. Execution of this Lease by Tenant and its return to Landlord shall not be binding upon Landlord, notwithstanding any time interval, until Landlord has in fact executed and delivered this Lease to Tenant, it being intended that this Lease shall only become effective upon execution by Landlord and delivery of a fully executed counterpart to Tenant.
21.4
BROKER DISCLOSURE. By the execution of this Lease, each of Landlord and Tenant hereby acknowledge and confirm (a) receipt of a copy of a Disclosure Regarding Real Estate Agency Relationship conforming to the requirements of California Civil Code 2079.16, and (b) the agency relationships specified in Item 10 of the Basic Lease Provisions, which acknowledgement and confirmation is expressly made for the benefit of Tenant’s Broker identified in Item 10 of the Basic Lease Provisions. If there is no Tenant’s Broker so identified in Item 10 of the Basic Lease Provisions, then such acknowledgement and confirmation is expressly made for the benefit of Landlord’s Broker. By the execution of this Lease, Landlord and Tenant are executing the confirmation of the agency relationships set forth in Item 10 of the Basic Lease Provisions.
ARTICLE 22.
MISCELLANEOUS

 

 

-10-

 

 


 

22.1
NONDISCLOSURE OF LEASE TERMS. Except to the extent disclosure is required by law, Tenant shall keep the content of this Lease and any related documents confidential and shall not disclose such confidential information to any person or entity other than Tenant’s financial, legal and space-planning consultants, provided, however, that Tenant may disclose the terms to prospective subtenants or assignees under this Lease or pursuant to legal requirement.
22.2
TENANT’S FINANCIAL STATEMENTS. The application, financial statements and tax returns, if any, submitted and certified to by Tenant as an accurate representation of its financial condition have been prepared, certified and submitted to Landlord as an inducement and consideration to Landlord to enter into this Lease. Tenant shall during the Term furnish Landlord with current annual financial statements accurately reflecting Tenant’s financial condition upon written request from Landlord within 10 days following Landlord’s request; provided, however, that so long as Tenant is a publicly traded corporation on a nationally recognized stock exchange, the foregoing obligation to deliver the statements shall be waived.
22.3
MORTGAGEE PROTECTION. No act or failure to act on the part of Landlord which would otherwise entitle Tenant to be relieved of its obligations hereunder or to terminate this Lease shall result in such a release or termination unless (a) Tenant has given notice by registered or certified mail to any Mortgagee of a Mortgage covering the Building whose address has been furnished to Tenant and (b) such Mortgagee is afforded a reasonable opportunity to cure the default by Landlord. Tenant shall comply with any written directions by any Mortgagee to pay Rent due hereunder directly to such Mortgagee without determining whether a default exists under such Mortgagee’s Mortgage.
22.4
SDN LIST. Tenant hereby represents and warrants that neither Tenant nor any officer, director, employee, partner, member or other principal of Tenant (collectively, “Tenant Parties”) is listed as a Specially Designated National and Blocked Person (“SDN”) on the list of such persons and entities issued by the U.S. Treasury Office of Foreign Assets Control (OFAC). In the event Tenant or any Tenant Party is or becomes listed as an SDN, Tenant shall be deemed in breach of this Lease and Landlord shall have the right to terminate this Lease immediately upon written notice to Tenant.

IN WITNESS WHEREOF, the parties have executed this Lease as of the day and year first above written.

 

LANDLORD:

 

URP X LLC,

a Delaware limited liability company

TENANT:

 

AVITA MEDICAL, INC.,

a California corporation

 

By:img79766928_0.jpg

Steven M. Case

Executive Vice President

Office Properties

By: img79766928_1.jpg

 

Printed Name: Jim Corbett    Jim

Title: CEO      C

By: img79766928_2.jpg

 

Stacy Nishioka

Regional Vice President, Operations

Office Properties

By: img79766928_3.jpg

 

Printed Name: Sean Ekins

Title: CFO      C

 

 

 

 

-11-

 

 


 

EXHIBIT A

img79766928_4.jpg 

5151 California Avenue

2nd Floor

 

 

 

 

 

 

 

img79766928_5.jpg 

 

 

 

 

EXHIBIT A

-1-

 

 


 

EXHIBIT B

OPERATING EXPENSES
(Net)

(a) From and after the Commencement Date, Tenant shall pay to Landlord, as additional rent, Tenant’s Share of all Operating Expenses, as defined in Section (f) below, incurred by Landlord in the operation of the Building and the Project. The term “Tenant’s Share” means that portion of any Operating Expenses determined by multiplying the cost of such item by a fraction, the numerator of which is the Floor Area of Premises and the denominator of which is the total rentable square footage, as determined from time to time by Landlord, of (i) the Building, for expenses determined by Landlord to benefit or relate substantially to the Building rather than the entire Project, and (ii) all or some of the buildings in the Project, for expenses determined by Landlord to benefit or relate substantially to all or some of the buildings in the Project rather than any specific building. Landlord reserves the right to allocate to the entire Project any Operating Expenses which may benefit or substantially relate to a particular building within the Project in order to maintain greater consistency of Operating Expenses among buildings within the Project. In the event that Landlord determines that the Premises or the Building incur a non-proportional benefit from any expense, or is the non-proportional cause of any such expense, Landlord may allocate a greater percentage of such Operating Expense to the Premises or the Building. In the event that any management and/or overhead fee payable or imposed by Landlord for the management of Tenant’s Premises is calculated as a percentage of the rent payable by Tenant and other tenants of Landlord, then the full amount of such management and/or overhead fee which is attributable to the rent paid by Tenant shall be additional rent payable by Tenant, in full, provided, however, that Landlord may elect to include such full amount as part of Tenant’s Share of Operating Expenses.

(b) Commencing prior to the start of the first full “Expense Recovery Period” of the Lease (as defined in Item 7 of the Basic Lease Provisions), and prior to the start of each full or partial Expense Recovery Period thereafter, Landlord shall give Tenant a written estimate of the amount of Tenant’s Share of Operating Expenses for the applicable Expense Recovery Period. Tenant shall pay the estimated amounts to Landlord in equal monthly installments, in advance, concurrently with payments of Basic Rent. If Landlord has not furnished its written estimate for any Expense Recovery Period by the time set forth above, Tenant shall continue to pay monthly the estimated Tenant’s Share of Operating Expenses in effect during the prior Expense Recovery Period; provided that when the new estimate is delivered to Tenant, Tenant shall, at the next monthly payment date, pay any accrued estimated Tenant’s Share of Operating Expenses based upon the new estimate. Landlord may from time to time change the Expense Recovery Period to reflect a calendar year or a new fiscal year of Landlord, as applicable, in which event Tenant’s Share of Operating Expenses shall be equitably prorated for any partial year.

(c) Within 180 days after the end of each Expense Recovery Period, Landlord shall furnish to Tenant a statement (a “Reconciliation Statement”) showing in reasonable detail the actual or prorated Tenant’s Share of Operating Expenses incurred by Landlord during such Expense Recovery Period, and the parties shall within 30 days thereafter make any payment or allowance necessary to adjust Tenant’s estimated payments of Tenant’s Share of Operating Expenses, if any, to the actual Tenant’s Share of Operating Expenses as shown by the Reconciliation Statement. Any delay or failure by Landlord in delivering any Reconciliation Statement shall not constitute a waiver of Landlord’s right to require Tenant to pay Tenant’s Share of Operating Expenses pursuant hereto. Any amount due Tenant shall be credited against installments next coming due under this Exhibit B, and any deficiency shall be paid by Tenant together with the next installment. Should Tenant fail to object in writing to Landlord’s determination of Tenant’s Share of Operating Expenses within 90 days following delivery of Landlord’s Reconciliation Statement or fail to provide written notice to Landlord of its intent to audit Operating Expenses as provided in subsection (j) of this Exhibit B below within 90 days following delivery of Landlord’s Reconciliation Statement, Landlord’s determination of Tenant’s Share of Operating Expenses for the applicable Expense Recovery Period shall be conclusive and binding on Tenant for all purposes and any future claims by Tenant to the contrary shall be barred.

(d) Even though this Lease has terminated and the Tenant has vacated the Premises, when the final determination is made of Tenant’s Share of Operating Expenses for the Expense Recovery Period in which this Lease terminates, Tenant shall within 30 days of written notice pay the entire increase over the estimated Tenant’s Share of Operating Expenses already paid. Conversely, any overpayment by Tenant shall be rebated by Landlord to Tenant not later than 30 days after such final determination. However, in lieu thereof, Landlord may deliver a reasonable estimate of the anticipated reconciliation amount to Tenant prior to the Expiration Date of the Term, in which event the appropriate party shall fund the amount by the Expiration Date.

(e) If, at any time during any Expense Recovery Period, any one or more of the Operating Expenses are increased to a rate(s) or amount(s) in excess of the rate(s) or amount(s) used in calculating the estimated Tenant’s Share of Operating Expenses for the year, then the estimate of Tenant’s Share of Operating Expenses may be increased by written notice from Landlord for the month in which such rate(s) or amount(s) becomes effective and for all succeeding months by an amount equal to the estimated amount of Tenant’s Share of the increase. Landlord shall give Tenant written notice of the amount or estimated amount of the increase, the month in which the increase will become effective, Tenant’s Share thereof and the months for which the payments are due. Tenant shall pay the increase to Landlord as part of the Tenant’s monthly payments of estimated expenses as provided in paragraph (b) above, commencing with the month in which effective.

 

 

 EXHIBIT B

-1-

 

 


 

(f) The term “Operating Expenses” shall mean and include all Project Costs, as defined in Section (g) below, and Property Taxes, as defined in Section (h) below.

(g) The term “Project Costs” shall mean all expenses of operation, management, repair, replacement and maintenance of the Building and the Project, including without limitation all Common Areas (as defined in Section 6.2 of the Lease), and shall include the following charges by way of illustration but not limitation: water and sewer charges; insurance premiums, deductibles, or reasonable premium equivalents or deductible equivalents should Landlord elect to self-insure any risk that Landlord is authorized to insure hereunder; license, permit, and inspection fees; light; power; window washing; trash pickup; janitorial services to any interior Common Areas; heating, ventilating and air conditioning; supplies; materials; equipment; tools; reasonable fees for consulting services; access control/security costs, inclusive of the reasonable cost of improvements made to enhance access control systems and procedures; establishment of reasonable reserves for replacement of the roof of the Building; costs incurred in connection with compliance with any laws or changes in laws applicable to the Building or the Project; the cost of any capital improvements or replacements (other than tenant improvements for specific tenants) to the extent of the amortized amount thereof over the useful life of such capital improvements or replacements (or, if such capital improvements or replacements are anticipated to achieve a cost savings as to the Operating Expenses, any shorter estimated period of time over which the cost of the capital improvements or replacements would be recovered from the estimated cost savings) calculated at a market cost of funds, all as determined by Landlord, for each year of useful life or shorter recovery period of such capital expenditure whether such capital expenditure occurs during or prior to the Term, provided that such capital expenditures shall be limited to (1) improvements which are reasonably intended to increase or enhance building security and/or safety (such as lighting, life/fire safety systems, etc.), (2) repairs or replacements of the Building structure, Building systems or Common Areas for functional (and not aesthetic) reasons, (3) improvements required to comply with any law or change in law becoming effective as to the Building after the Commencement Date; and/or (4) expenditures incurred as a cost or labor saving measure or to affect other economies in the operation or maintenance of the Building or the Common Areas ; costs associated with the maintenance of an air conditioning, heating and ventilation service agreement, and maintenance of any communications or networked data transmission equipment, conduit, cabling, wiring and related telecommunications facilitating automation and control systems, remote telecommunication or data transmission infrastructure within the Building and/or the Project, and any other maintenance, repair and replacement costs associated with such infrastructure; capital costs associated with a requirement related to demands on utilities by Project tenants, including without limitation the cost to obtain additional voice, data and modem connections; labor; reasonably allocated wages and salaries, fringe benefits, and payroll taxes for administrative and other personnel directly applicable to the Building and/or Project, including both Landlord’s personnel and outside personnel; any expense incurred pursuant to Sections 6.1, 6.2, and 7.2 and Exhibits C and F of the Lease; and reasonable overhead and/or management fees for the professional operation of the Project. It is understood and agreed that Project Costs may include competitive charges for direct services (including, without limitation, management and/or operations services) provided by any subsidiary, division or affiliate of Landlord.

(h) The term “Property Taxes” shall include any form of federal, state, county or local government or municipal taxes, fees, charges or other impositions of every kind (whether general, special, ordinary or extraordinary) related to the ownership, leasing or operation of the Premises, Building or Project, including without limitation, the following: (i) all real estate taxes or personal property taxes levied against the Premises, the Building or Project, as such property taxes may be reassessed from time to time; and (ii) other taxes, charges and assessments which are levied with respect to this Lease or to the Building and/or the Project, and any improvements, fixtures and equipment and other property of Landlord located in the Building and/or the Project, (iii) all assessments and fees for public improvements, services, and facilities and impacts thereon, including without limitation arising out of any Community Facilities Districts, “Mello Roos” districts, similar assessment districts, and any traffic impact mitigation assessments or fees; (iv) any tax, surcharge or assessment which shall be levied in addition to or in lieu of real estate or personal property taxes, and (v) taxes based on the receipt of rent (including gross receipts or sales taxes applicable to the receipt of rent), and (vi) costs and expenses incurred in contesting the amount or validity of any Property Tax by appropriate proceedings. Notwithstanding the foregoing, general net income or franchise taxes imposed against Landlord shall be excluded.

(i) Notwithstanding anything to the contrary in the definition of Operating Expenses, Operating Expenses shall not include the following:

(1) Any ground lease rental;

(2) Costs incurred by Landlord with respect to goods and services (including utilities sold and supplied to tenants and occupants of the Building) to the extent that Landlord is reimbursed for such costs other than through the Operating Expense pass-through provisions of such tenants’ lease;

(3) Costs incurred by Landlord for repairs, replacements and/or restoration to or of the Building to the extent that Landlord is reimbursed by insurance or condemnation proceeds or by tenants (other than through Operating Expense pass-throughs), warrantors or other third persons;

(4) Costs, including permit, license and inspection costs, incurred with respect to the installation of tenant improvements made for other tenants in the Building or incurred in renovating or

 

 

 EXHIBIT B

-2-

 

 


 

otherwise improving, decorating, painting or redecorating vacant space for tenants or other occupants of the Building;

(5) Costs arising from Landlord’s charitable or political contributions;

(6) Attorneys’ fees and other costs and expenses incurred in connection with negotiations or disputes with present or prospective tenants or other occupants of the Building, except those attorneys’ fees and other costs and expenses incurred in connection with negotiations, disputes or claims relating to items of Operating Expenses, enforcement of rules and regulations of the Building and such other matters relating to the maintenance of standards required of Landlord under this Lease;

(7) Brokers commissions, finders’ fees, attorneys’ fees, entertainment and travel expenses and other costs incurred by Landlord in leasing or attempting to lease space in the Building;

(8) Expenses in connection with services or other benefits which are not offered to Tenant or for which Tenant is charged for directly but which are provided to another tenant or occupant of the Building;

(9) Costs incurred by Landlord due to the violation by Landlord of any law, code, regulation, or ordinance;

(10) Overhead and profit increments paid to subsidiaries or affiliates of Landlord for services provided to the Building to the extent the same exceeds the costs that would generally be charged for such services if rendered on a competitive basis (based upon a standard of similar office buildings in the general market area of the Premises) by unaffiliated third parties capable of providing such service;

(11) Interest on debt or amortization on any mortgage or mortgages encumbering the Building;

(12) Landlord’s general corporate overhead, except as it relates to the specific management, operation, repair, replacement and maintenance of the Building or Project;

(13) Costs of installing the initial landscaping and the initial sculpture, paintings and objects of art for the Building and Project;

(14) Advertising expenditures;

(15) Any bad debt loss, rent loss, or reserves for bad debts or rent loss;

(16) Costs associated with the operation of the business of the partnership or entity which constitutes the Landlord, as the same are distinguished from the costs of the operation, management, repair, replacement and maintenance of the Project, including partnership accounting and legal matters, costs of defending any lawsuits with any mortgagee (except as the actions of Tenant may be in issue), costs of selling, syndicating, financing, mortgaging or hypothecating any of Landlord’s interest in the Project, and costs incurred in connection with any disputes between Landlord and its employees, between Landlord and Project management, or between Landlord and other tenants or occupants;

(17) The wages and benefits of any employee who does not devote substantially all of his or her employed time to the Project unless such wages and benefits are prorated to reflect time spent on operating and managing the Project vis-à-vis time spent on matters unrelated to operating and managing the Project; provided that in no event shall Operating Costs include wages and/or benefits attributable to personnel above the level of portfolio property manager or chief engineer;

(18) Costs incurred by Landlord for improvements or replacements (including structural additions), repairs, equipment and tools which are of a “capital” nature and/or which are considered “capital” improvements or replacements under accounting principles as generally practiced in the real estate industry, except to the extent included in Project Costs pursuant to the definition in subsection (g) above or by other express terms of this Lease; and

(19) Legal fees and costs, settlements, judgments or awards paid or incurred because of disputes between Landlord and other tenants or prospective occupants or prospective tenants/occupants or providers of goods and services to the Project.

(j) Provided Tenant is not then in Default hereunder, Tenant shall have the right to cause a certified public accountant, engaged on a non-contingency fee basis, to audit Operating Expenses by inspecting Landlord’s general ledger of expenses not more than once during any Expense Recovery Period. However, to the extent that insurance premiums are determined by Landlord on the basis of an internal allocation of costs utilizing information Landlord in good faith deems proprietary, such expense component shall not be subject to audit so long as it does not exceed the amount per square foot typically imposed by landlords of other first class office projects in Orange County, California. Tenant shall give notice to Landlord of Tenant’s intent to audit within 90 days after Tenant’s receipt of Landlord’s expense statement which sets forth Landlord’s actual Operating Expenses. Such audit shall be conducted at a mutually agreeable time during normal business hours at the office of Landlord or its management agent where such accounts are

 

 

 EXHIBIT B

-3-

 

 


 

maintained. If Tenant’s audit determines that actual Operating Expenses have been overstated by more than 5%, then subject to Landlord’s right to review and/or contest the audit results, Landlord shall reimburse Tenant for the reasonable out-of-pocket costs of such audit. In the event of a dispute between Landlord and Tenant regarding such audit, either party may elect to submit the matter for binding arbitration with the Orange County, California office of JAMS pursuant to its Comprehensive Arbitration Rules and Procedures, unless the parties otherwise agree, and judgment on the arbitration award may be entered in any court having jurisdiction thereof. Tenant’s rent shall be appropriately adjusted to reflect any overstatement in Operating Expenses. All of the information obtained by Tenant and/or its auditor in connection with such audit, as well as any compromise, settlement, or adjustment reached between Landlord and Tenant as a result thereof, shall be held in strict confidence and, except as may be required pursuant to litigation, shall not be disclosed to any third party, directly or indirectly, by Tenant or its auditor or any of their officers, agents or employees. Landlord may require Tenant’s auditor to execute a separate confidentiality agreement affirming the foregoing as a condition precedent to any audit.

 

 

 

 EXHIBIT B

-4-

 

 


 

EXHIBIT C

UTILITIES AND SERVICES

Tenant shall be responsible for and shall pay promptly, directly to the appropriate supplier, all charges for electricity metered to the Premises, telephone, telecommunications service, janitorial service, interior landscape maintenance and all other utilities, materials and services furnished directly to Tenant or the Premises or used by Tenant in, on or about the Premises during the Term, together with any taxes thereon. Landlord shall make a reasonable determination of Tenant’s proportionate share of the cost of water, gas, sewer, refuse pickup and any other utilities and services that are not separately metered to the Premises and services, and Tenant shall pay such amount to Landlord, as an item of additional rent, within 10 days after delivery of Landlord’s statement or invoice therefor. Alternatively, Landlord may elect to include such cost in the definition of Project Costs in which event Tenant shall pay Tenant’s proportionate share of such costs in the manner set forth in Section 4.2. Tenant shall also pay to Landlord as an item of additional rent, within 10 days after delivery of Landlord’s statement or invoice therefor, Landlord’s “standard charges” (as hereinafter defined) for “after hours” usage by Tenant of each HVAC unit servicing the Premises. If the HVAC unit(s) servicing the Premises also serve other leased premises in the Building, “after hours” shall mean usage of said unit(s) before 6:00 A.M. or after 6:00 P.M. on Mondays through Fridays, before 9:00 A.M. or after 1:00 P.M. on Saturdays, and all day on Sundays and nationally-recognized holidays, subject to reasonable adjustment of said hours by Landlord. If the HVAC unit(s) serve only the Premises, “after hours” shall mean more than 66 hours of usage during any week during the Term. “After hours” usage shall be determined based upon the operation of the applicable HVAC unit during each of the foregoing periods on a “non-cumulative” basis (that is, without regard to Tenant’s usage or nonusage of other unit(s) serving the Premises, or of the applicable unit during other periods of the Term). As used herein, “standard charges” shall mean $25.25 for each hour of “after hours” use (inclusive of the applicable electricity charges paid to the utility provider).

 

 

 

 EXHIBIT C

-1-

 

 


 

EXHIBIT D

TENANT’S INSURANCE

The following requirements for Tenant’s insurance shall be in effect during the Term, and Tenant shall also cause any subtenant to comply with the requirements. Landlord reserves the right to adopt reasonable nondiscriminatory modifications and additions to these requirements.

1. Tenant shall maintain, at its sole cost and expense, during the entire Term: (i) commercial general liability insurance with respect to the Premises and the operations of Tenant in, on or about the Premises, on a policy form that is at least as broad as Insurance Service Office (ISO) CGL 00 01 (if alcoholic beverages are sold on the Premises, liquor liability shall be explicitly covered), which policy(ies) shall be written on an “occurrence” basis and for not less than $2,000,000 combined single limit per occurrence for bodily injury, personal injury, death, and property damage liability; such policy shall include, but not be limited to bodily injury, personal injury, blanket contractual liability, products/completed operations, broad form property damage liability and independent contractor’s liability coverage; (ii) workers’ compensation insurance coverage as required by law, together with employers’ liability insurance coverage of at least $1,000,000 each employee, each accident and each disease; (iii) with respect to Alterations constructed by Tenant under this Lease, builder’s risk insurance, in an amount equal to the replacement cost of the work; and (iv) insurance against fire, vandalism, malicious mischief and such other additional perils as may be included in a standard “special form” policy, insuring all Alterations, trade fixtures, furnishings, equipment and items of personal property in the Premises, in an amount equal to not less than 90% of their replacement cost (with replacement cost endorsement), which policy shall also include business interruption coverage in an amount sufficient to cover 1 year of loss. In no event shall the limits of any policy be considered as limiting the liability of Tenant under this Lease.

2. All policies of insurance required to be carried by Tenant pursuant to this Exhibit D shall be written by insurance companies authorized to do business in the State of California and with a general policyholder rating of not less than “A-” and financial rating of not less than “VIII” in the most current Best’s Insurance Report. The deductible, self-insured retention or other retained limit under any policy carried by Tenant shall not exceed $25,000 unless approved in writing by Landlord, and Tenant shall be responsible for payment of such deductible, self-insured retention or retained limit with waiver of subrogation in favor of Landlord. Landlord may, without any obligation to do so, advance or pay any deductible, self-insured retention or retained limit due on any claim that may involve it or its officers, directors or employees. Any insurance required of Tenant may be furnished by Tenant under any blanket policy carried by it or under a separate policy. A certificate of insurance, certifying that the policy has been issued, provides the coverage required by this Exhibit and contains the required provisions, together with endorsements acceptable to Landlord evidencing the waiver of subrogation and additional insured provisions required below, shall be delivered to Landlord prior to the date Tenant is given the right of possession of the Premises. Proper evidence of the renewal of any insurance coverage shall also be delivered to Landlord not less than 30 days prior to the expiration of the coverage. In the event of a loss covered by any policy under which Landlord is an additional insured, Landlord shall be entitled to review a copy of such policy.

3. Tenant’s commercial general liability insurance shall contain a provision that the policy(ies) shall be primary to and noncontributory with any insurance or self-insurance carried by Landlord, together with a provision including Landlord, The Irvine Company LLC, and all entities controlling, controlled by, or under common control with Landlord, together with their respective owners, shareholders, partners, members, divisions, officers, directors, employees, representatives and agents, and all of their respective successors and assigns as additional insureds. It shall not include any exclusions or limitations applicable to the Additional Insureds that are not applicable to Tenant nor an insured vs. insured exclusion.

4. Tenant’s policies described in Subsections 1 (i), (ii), (iii) and (iv) above shall each contain a waiver by the insurer of any right to subrogation against Landlord and all entities controlling, controlled by, or under common control with Landlord, together with their respective owners, shareholders, partners, members, divisions, officers, directors, employees, representatives and agents, and all of their respective successors and assigns. Tenant also waives its right of recovery for any deductible, self-insured retention or retained limit under same policies enumerated above.

5. All of Tenant’s policies shall contain a provision that the insurer will not cancel or change the coverage provided by the policy without first giving Landlord 30 days’ prior written notice. Tenant shall also name Landlord as an additional insured on any excess or umbrella liability insurance policy(ies) carried by Tenant.

6. VENDORS AND CONTRACTORS INSURANCE. It Tenant hires any vendor or contractor to complete work on the Premises; Tenant shall cause such vendor or contractor to comply with the following insurance requirements:

A. Commercial general liability insurance with coverage limits of not less than $1,000,000 combined single limit for bodily injury, personal injury, death and property damage liability per occurrence or the current limit carried by vendor or contractor, whichever is greater,

 

 

  EXHIBIT D

-1-

 

 


 

B. Worker’s compensation coverage as required by Law, including employer’s liability coverage with a limit of not less than One Million Dollars ($1,000,000) each employee, each accident and each disease.

C. Vendor or Contractor and its insurer(s) providing the insurance coverages described in this Section 6 Parts A, and B above, shall waive any and all rights of recovery against Landlord and all entities controlling, controlled by, or under common control with Landlord, together with their respective owners, shareholders, partners, members, divisions, officers, directors, employees, representatives and agents, and all of their respective successors.

D. The commercial general liability insurance policy required in Section 6 Part A, shall name Landlord and all entities controlling, controlled by, or under common control with Landlord, together with their respective owners, shareholders, partners, members, divisions, officers, directors, employees, representatives and agents, and all of their respective successors as additional insured for both operations and product completed operations coverage. Such coverage shall be primary and non-contributory to any insurance or self-insurance carried by Landlord and all entities controlling, controlled by, or under common control with Landlord.

 

NOTICE TO TENANT: IN ACCORDANCE WITH THE TERMS OF THIS LEASE, TENANT MUST PROVIDE EVIDENCE OF THE REQUIRED INSURANCE TO LANDLORD’S MANAGEMENT AGENT PRIOR TO BEING AFFORDED ACCESS TO THE PREMISES.

 

 

 

  EXHIBIT D

-2-

 

 


 

EXHIBIT E

RULES AND REGULATIONS

The following Rules and Regulations shall be in effect at the Building. Landlord reserves the right to adopt reasonable nondiscriminatory modifications and additions at any time. In the case of any conflict between these regulations and the Lease, the Lease shall be controlling.

1. The sidewalks, halls, passages, elevators, stairways, and other common areas shall not be obstructed by Tenant or used by it for storage, for depositing items, or for any purpose other than for ingress to and egress from the Premises. Should Tenant have access to any balcony or patio area, Tenant shall not place any furniture other personal property in such area without the prior written approval of Landlord.

2. Neither Tenant nor any employee or contractor of Tenant shall go upon the roof of the Building without the prior written consent of Landlord.

3. Tenant shall, at its expense, be required to utilize the third party contractor designated by Landlord for the Building to provide any telephone wiring services from the minimum point of entry of the telephone cable in the Building to the Premises.

4. No antenna or satellite dish shall be installed by Tenant without the prior written agreement of Landlord.

5. The sashes, sash doors, windows, glass lights, solar film and/or screen, and any lights or skylights that reflect or admit light into the halls or other places of the Building shall not be covered or obstructed. If Landlord, by a notice in writing to Tenant, shall object to any curtain, blind, tinting, shade or screen attached to, or hung in, or used in connection with, any window or door of the Premises, the use of that curtain, blind, tinting, shade or screen shall be immediately discontinued and removed by Tenant. Interior of the Premises visible from the exterior must be maintained in a visually professional manner and consistent with a first class office building. Tenant shall not place any unsightly items (as determined by Landlord in its reasonable discretion) along the exterior glass line of the Premises including, but not limited to, boxes, and electrical and data cords. No awnings shall be permitted on any part of the Premises.

6. The installation and location of any unusually heavy equipment in the Premises, including without limitation file storage units, safes and electronic data processing equipment, shall require the prior written approval of Landlord. The moving of large or heavy objects shall occur only between those hours as may be designated by, and only upon previous notice to, Landlord. No freight, furniture or bulky matter of any description shall be received into or moved out of the lobby of the Building or carried in any elevator other than the freight elevator (if available) designated by Landlord unless approved in writing by Landlord.

7. Any pipes or tubing used by Tenant to transmit water to an appliance or device in the Premises must be made of copper or stainless steel, and in no event shall plastic tubing be used for that purpose.

8. Tenant shall not place any lock(s) on any door in the Premises or Building without Landlord’s prior written consent, which consent shall not be unreasonably withheld. Upon the termination of its tenancy, Tenant shall deliver to Landlord all the keys to offices, rooms and toilet rooms and all access cards which shall have been furnished to Tenant or which Tenant shall have had made.

9. Tenant shall not install equipment requiring electrical or air conditioning service in excess of that to be provided by Landlord under the Lease without prior written approval from Landlord.

10. Tenant shall not use space heaters within the Premises.

11. Tenant shall not do or permit anything to be done in the Premises, or bring or keep anything in the Premises, which shall in any way increase the insurance on the Building, or on the property kept in the Building, or interfere with the rights of other tenants, or conflict with any government rule or regulation.

12. Tenant shall not use or keep any foul or noxious gas or substance in the Premises.

13. Tenant shall not permit the Premises to be occupied or used in a manner offensive or objectionable to Landlord or other occupants of the Building by reason of noise, odors and/or vibrations, or interfere in any way with other tenants or those having business with other tenants.

14. Tenant shall not permit any pets or animals in or about the Building. Bona fide service animals are permitted provided such service animals are pre-approved by Landlord, remain under the direct control of the individual they serve at all times, and do not disturb or threaten others.

15. Neither Tenant nor its employees, agents, contractors, invitees or licensees shall bring any firearm, whether loaded or unloaded, into the Project at any time.

16. Smoking tobacco, including via personal vaporizers or other electronic cigarettes, anywhere within the Premises, Building or Project is strictly prohibited except that smoking tobacco may be permitted outside the Building and within the Project only in areas designated by Landlord. Smoking,

 

 

EXHIBIT E

-1-

 

 


 

vaping, distributing, growing or manufacturing marijuana or any marijuana derivative anywhere within the Premises, Building or Project is strictly prohibited.

17. Tenant shall not install an aquarium of any size in the Premises unless otherwise approved by Landlord.

18. Tenant shall not utilize any name selected by Landlord from time to time for the Building and/or the Project as any part of Tenant’s corporate or trade name. Landlord shall have the right to change the name, number or designation of the Building or Project without liability to Tenant. Tenant shall not use any picture of the Building in its advertising, stationery or in any other manner.

19. Tenant shall, upon request by Landlord, supply Landlord with the names and telephone numbers of personnel designated by Tenant to be contacted on an after-hours basis should circumstances warrant.

20. Landlord may from time to time grant tenants individual and temporary variances from these Rules, provided that any variance does not have a material adverse effect on the use and enjoyment of the Premises by Tenant.

21. Fitness Center Rules. Tenant shall cause its employees (whether members or prospective members of the Fitness Center) to comply with the following Fitness Center rules and regulations (subject to change from time to time as Landlord may solely determine):

(a) Membership in the Fitness Center is open to the tenants of Landlord or its affiliates only. No guests will be permitted to use the Fitness Center without the prior written approval of Landlord or Landlord’s representative.

(b) Fitness Center users are not allowed to be in the Fitness Center other than the hours designated by Landlord from time to time. Landlord shall have the right to alter the hours of use of the Fitness Center, at Landlord’s sole discretion.

(c) All Fitness Center users must execute Landlord’s Waiver of Liability prior to use of the Fitness Center and agree to all terms and conditions outlined therein.

(d) Individual membership and guest keycards to the Fitness Center shall not be shared and shall only be used by the individual to whom such keycard was issued. Failure to abide by this rule may result in immediate termination of such Fitness Center user’s right to use the Fitness Center.

(e) All Fitness Center users and approved guests must have a pre-authorized keycard to enter the Fitness Center. A pre-authorized keycard shall not be issued to a prospective Fitness Center user until receipt by Landlord of Landlord’s initial fee, if any, for use of the Fitness Center by such Fitness Center user(s).

(f) Use of the Fitness Center is a privilege and not a right. Failure to follow gym rules or to act inappropriately while using the facilities shall result in termination of Tenant’s Fitness Center privileges.

 

 

 

EXHIBIT E

-2-

 

 


 

EXHIBIT F

PARKING

Tenant shall be entitled to the number of vehicle parking spaces set forth in Item 11 of the Basic Lease Provisions, which spaces shall be unreserved and unassigned and no charge to Tenant during the initial 60-month Term, on those portions of the Common Areas designated by Landlord for parking. Tenant shall not use more parking spaces than such number. All parking spaces shall be used only for parking of vehicles no larger than full size passenger automobiles, sport utility vehicles or pickup trucks. Tenant shall not permit or allow any vehicles that belong to or are controlled by Tenant or Tenant’s employees, suppliers, shippers, customers or invitees to be loaded, unloaded or parked in areas other than those designated by Landlord for such activities. If Tenant permits or allows any of the prohibited activities described above, then Landlord shall have the right, without notice, in addition to such other rights and remedies that Landlord may have, to remove or tow away the vehicle involved and charge the costs to Tenant. Parking within the Common Areas shall be limited to striped parking stalls, and no parking shall be permitted in any driveways, access ways or in any area which would prohibit or impede the free flow of traffic within the Common Areas. There shall be no parking of any vehicles for longer than a 48 hour period unless otherwise authorized by Landlord, and vehicles which have been abandoned or parked in violation of the terms hereof may be towed away at the owner’s expense. Nothing contained in this Lease shall be deemed to create liability upon Landlord for any damage to motor vehicles of visitors or employees, for any loss of property from within those motor vehicles, or for any injury to Tenant, its visitors or employees, unless ultimately determined to be caused by the sole negligence or willful misconduct of Landlord. Landlord shall have the right to establish, and from time to time amend, and to enforce against all users all reasonable rules and regulations (including the designation of areas for employee parking) that Landlord may deem necessary and advisable for the proper and efficient operation and maintenance of parking within the Common Areas. Landlord shall have the right to construct, maintain and operate lighting facilities within the parking areas; to change the area, level, location and arrangement of the parking areas and improvements therein; to restrict parking by tenants, their officers, agents and employees to employee parking areas; to enforce parking charges (by operation of meters or otherwise); and to do and perform such other acts in and to the parking areas and improvements therein as, in the use of good business judgment, Landlord shall determine to be advisable. Any person using the parking area shall observe all directional signs and arrows and any posted speed limits. In no event shall Tenant interfere with the use and enjoyment of the parking area by other tenants of the Project or their employees or invitees. Parking areas shall be used only for parking vehicles. Washing, waxing, cleaning or servicing of vehicles, or the storage of vehicles for longer than 48-hours, is prohibited unless otherwise authorized by Landlord. Tenant shall be liable for any damage to the parking areas caused by Tenant or Tenant’s employees, suppliers, shippers, customers or invitees, including without limitation damage from excess oil leakage. Tenant shall have no right to install any fixtures, equipment or personal property in the parking areas. Tenant shall not assign or sublet any of the vehicle parking spaces, either voluntarily or by operation of law, without the prior written consent of Landlord, except in connection with an authorized assignment of this Lease or subletting of the Premises.

 

 

 

  EXHIBIT F

-1-

 

 


 

EXHIBIT G

ADDITIONAL PROVISIONS

1. RIGHT TO EXTEND. Provided that Tenant is not in Default under any provision of this Lease at the time of exercise of the extension right granted herein, and provided further that Tenant is occupying the entire Premises and has not assigned or sublet any of its interest in this Lease (except in connection with a Permitted Transfer of this Lease to an Affiliate as described in Section 9.2 hereof), Tenant may extend the Term of this Lease for one period of 36 months. Tenant shall exercise its right to extend the Term by and only by delivering to Landlord, not less than 9 months nor more than 12 months prior to the expiration date of the Term, Tenant’s written notice of its irrevocable commitment to extend (the “Commitment Notice”). Should Tenant fail timely to deliver the Commitment Notice, then this extension right shall thereupon lapse and be of no further force or effect.

The Basic Rent payable under the Lease during the extension of the Term shall be at the prevailing market rental rate (including periodic adjustments) for comparable and similarly improved office space being leased by Landlord in the Building or Project as of the commencement of the extension period (the “Prevailing Rate”). In the event that the parties are not able to agree on the Prevailing Rate within 120 days prior to the expiration date of the Term, then either party may elect, by written notice to the other party, to cause said rental, including subsequent adjustments, to be determined by appraisal as follows.

Within 10 days following receipt of such appraisal election, the parties shall attempt to agree on an appraiser to determine the Prevailing Rate. If the parties are unable to agree in that time, then each party shall designate an appraiser within 10 days thereafter. Should either party fail to so designate an appraiser within that time, then the appraiser designated by the other party shall determine the Prevailing Rate. Should each of the parties timely designate an appraiser, then the two appraisers so designated shall appoint a third appraiser who shall, acting alone, determine the fair market rental value of the Premises. Any appraiser designated hereunder shall have an M.A.I. certification or equivalent with not less than 5 years’ experience in the valuation of commercial office buildings in Orange County, California.

Within 10 days following the selection of the appraiser, Landlord and Tenant shall each submit in writing to the appraiser its determination of the rental rate for the extension period (respectively, the “Landlord’s Determination” and the “Tenant’s Determination”). Should either party fail timely to submit its rental determination, then the determination of the other party shall be conclusive and binding on the parties. The appraiser shall not disclose to either party the rental determination of the other party until the expiration of that 10-day period or, if sooner, the appraiser’s receipt of both the Landlord’s Determination and the Tenant’s Determination.

Within 30 days following the selection of the appraiser and such appraiser’s receipt of the Landlord’s Determination and the Tenant’s Determination, the appraiser shall determine whether the rental rate determined by Landlord or by Tenant more accurately reflects Prevailing Rate for the Premises, as reasonably extrapolated to the commencement of the extension term. Accordingly, either the Landlord’s Determination or the Tenant’s Determination shall be selected by the appraiser as the fair market rental rate for the extension period. In determining such value, the appraiser shall first consider rental comparables for the Building and the Project, provided that if adequate comparables do not exist then the appraiser may consider transactions involving similarly improved space owned by Landlord or its affiliates in the vicinity with appropriate adjustments for differences in location and quality of project. In no event shall the appraiser attribute factors for brokerage commissions to reduce said fair market rental. At any time before the decision of the appraiser is rendered, either party may, by written notice to the other party, accept the rental terms submitted by the other party, in which event such terms shall be deemed adopted as the agreed fair market rental. The fees of the appraiser(s) shall be shared equally by both parties.

Within 20 days after the determination of the Prevailing Rate, Landlord shall prepare a reasonably appropriate amendment to this Lease for the extension period and Tenant shall execute (or make reasonable comments thereto) and return same to Landlord within 10 days. Should the Prevailing Rate not be established by the commencement of the extension period, then Tenant shall continue paying rent at the rate in effect during the last month of the initial Term, and a lump sum adjustment shall be made promptly upon the determination of such new rental.

If Tenant fails to timely comply with any of the provisions of this paragraph, Tenant’s right to extend the Term may, at Landlord’s election and in addition to any other remedies that may be available to Landlord, be extinguished, in which event the Lease shall automatically terminate as of the initial expiration date of the Term. Any attempt to assign or transfer any right or interest created by this Section to other than an Affiliate shall be void from its inception. Tenant shall have no other right to extend the Term beyond the single 36-month extension created by this Section. Unless agreed to in a writing signed by Landlord and Tenant, any extension of the Term, whether created by an amendment to this Lease or by a holdover of the Premises by Tenant, or otherwise, shall be deemed a part of, and not in addition to, any duly exercised extension period permitted by this paragraph. Time is specifically made of the essence in this Section.

2. RIGHT OF FIRST OFFER. Provided Tenant is not then in Default hereunder, and provided further that Tenant is occupying the entire Premises and has not assigned or sublet any of its interest in the Lease (except in connection with a Permitted Transfer of this Lease to an Affiliate as described in Section

 

 

EXHIBIT G

-1-

 

 


 

9.2 hereof), Landlord hereby grants Tenant a one-time right (“First Right”) to lease, during the initial 60-month Term, either (i) approximately 4,286 rentable square feet of office space known as Suite No. 200 in the Building or (ii) approximately 2,598 rentable square feet of office space known as Suite No. 270 (each, the “First Right Space”) and shown on Exhibit G-1 hereto in accordance with and subject to the provisions of this Section; provided that this First Right shall cease to be effective during the final 12 months of the Term unless and until Tenant exercises its extension option set forth in Section 1 of this Exhibit G. If, at any time after the Commencement Date and while this First Right is in effect, Landlord desires to lease the First Right Space, or any portion thereof, to any third party, Landlord shall give Tenant written notice of the basic economic terms including but not limited to the Basic Rent, term, operating expense base, security deposit, and tenant improvement allowance (collectively, the “Economic Terms”), upon which Landlord is willing to lease such particular First Right Space to Tenant or to a third party; provided that the Economic Terms shall exclude brokerage commissions and other Landlord payments that do not directly inure to the tenant’s benefit. It is understood that should Landlord intend to lease other office space in addition to the First Right Space as part of a single transaction, then Landlord’s notice shall so provide and all such space shall collectively be subject to the following provisions. Within 3 business days after receipt of Landlord’s notice, Tenant must give Landlord written notice pursuant to which Tenant shall elect to (i) lease all, but not less than all, of the space specified in Landlord’s notice (the “Designated Space”) upon such Economic Terms and the same non-Economic Terms as set forth in this Lease; (ii) refuse to lease the Designated Space, specifying that such refusal is not based upon the Economic Terms, but upon Tenant’s lack of need for the Designated Space, in which event Landlord may lease the Designated Space upon any terms it deems appropriate; or (iii) refuse to lease the Designated Space, specifying that such refusal is based upon said Economic Terms, in which event Tenant shall also specify revised Economic Terms upon which Tenant shall be willing to lease the Designated Space. In the event that Tenant does not so respond in writing to Landlord’s notice within said period, Tenant shall be deemed to have elected clause (ii) above. In the event Tenant gives Landlord notice pursuant to clause (iii) above, Landlord may elect to either (x) lease the Designated Space to Tenant upon such revised Economic Terms and the same other non-Economic Terms as set forth in this Lease, or (y) lease the Designated Space to any third party upon Economic Terms which are not materially more favorable to such party than those Economic Terms proposed by Tenant. Should Landlord so elect to lease the Designated Space to Tenant, then Landlord shall promptly prepare and deliver to Tenant an amendment to this Lease consistent with the foregoing, and Tenant shall execute (or make reasonable comments thereto) and return same to Landlord within 10 days. Tenant’s failure to timely return the amendment shall entitle Landlord to specifically enforce Tenant’s commitment to lease the Designated Space, to lease such space to a third party, and/or to pursue any other available legal remedy. Notwithstanding the foregoing, it is understood that Tenant’s First Right shall be subject to any extension or currently existing expansion rights previously granted by Landlord to any third party tenant in the Building, as well as to any such rights which may hereafter be granted by Landlord to any third party tenant occupying the First Right Space or any portion thereof, and Landlord shall in no event be obligated to initiate this First Right prior to leasing any portion of the First Right Space to the then-current occupant thereof. Tenant’s rights under this Section shall be personal to the original Tenant named in this Lease and may not be assigned or transferred (except in connection with a Permitted Transfer of this Lease to an Affiliate as described in Section 9.2 hereof). Any other attempted assignment or transfer shall be void and of no force or effect. Time is specifically made of the essence of this Section.

3. FITNESS CENTER. Subject to the provisions of this Section, so long as Tenant retains the right of possession of the Premises, and provided Tenant’s employees execute Landlord’s standard waiver of liability form and pay the applicable one time or monthly fee, if any, then Tenant’s employees (the “Fitness Center Users”) shall be entitled to use the fitness center and the shower facility located at the Project (collectively, the “Fitness Center”). No separate charges shall be assessed to Fitness Center Users for the use of the Fitness Center (with the exception of towel/laundry fees, if any) during the initial Term of this Lease, provided, however, that the costs of operating, maintaining and repairing the Fitness Center shall be included as part of Operating Expenses. The use of the Fitness Center shall be subject to the reasonable rules and regulations (including rules regarding hours of use) established from time to time by Landlord. Landlord and Tenant acknowledge that the use of the Fitness Center by the Fitness Center Users shall be at their own risk and that the terms and provisions of Section 10.2 of this Lease shall apply to Tenant and the Fitness Center User’s use of the Fitness Center. Tenant acknowledges that the provisions of this Section shall not be deemed to be a representation by Landlord that Landlord shall continuously maintain the Fitness Center (or any other fitness facility) throughout the Term of this Lease, and Landlord shall have the right, at Landlord’s sole discretion, to expand, contract, eliminate or otherwise modify the Fitness Center. No expansion, contraction, elimination or modification of the Fitness Center, and no termination of Tenant’s or the Fitness Center Users’ rights to the Fitness Center shall entitle Tenant to an abatement or reduction in Basic Rent constitute a constructive eviction, or result in an event of default by Landlord under this Lease. Landlord reserves the right to reasonably limit, restrain, or condition the use of the Fitness Center by tenants of the Building (including Tenant’s Fitness Center Users) if Landlord reasonably determines that their use of the Fitness Center has a disproportionate and/or inequitable impact on the ability of other tenants to use the Fitness Center. Tenant hereby voluntarily releases, discharges, waives and relinquishes any and all actions or causes of action for personal injury or property damage occurring to Tenant or its employees or agents arising as a result of the use of the Fitness Center, or any activities incidental thereto, wherever or however the same may occur, and further agrees that Tenant will not prosecute any claim for personal injury or property damage against Landlord or any of its officers, agents, servants or employees for any said causes of action. It is the intention of Tenant with respect to the Fitness Center to exempt and relieve Landlord from liability for personal injury or property damage caused by negligence. Tenant’s right to use the Fitness Center shall belong solely to Tenant and may not be transferred or assigned without Landlord’s prior written consent, which may be withheld by Landlord in Landlord’s sole discretion.

 

 

EXHIBIT G

-2-

 

 


 

4. CONFERENCE CENTER. Landlord currently provides a conference center (the “Conference Center”) in the Project capable of accommodating groups of people for use by Project tenants (including Tenant) on a reserved basis. Tenant shall, subject to availability, have the use of the Conference Center subject to Landlord’s procedures and charges, if any. The use of the Conference Center shall be subject to the reasonable rules and regulations (including rules regarding hours of use and priorities for the tenants of the particular building in which a Conference Center is located, set up and clean up charges, etc.) established from time to time by Landlord for the Conference Center. Landlord and Tenant acknowledge that the terms and provisions of Section 10.2 of this Lease shall apply to Tenant’s use of the Conference Center. Further, Landlord shall have no liability whatsoever with respect to the existence, condition or availability of any Conference Center nor shall Landlord have any obligation whatsoever to enforce or make reservations thereof, and Tenant hereby expressly waives all claims against Landlord with respect to the same. No expansion, contraction, elimination, unavailability or modification of the Conference Center, and no termination of or interference with Tenant’s rights to the Conference Center, shall entitle Tenant to an abatement or reduction in rent or constitute a constructive eviction or an event of default by Landlord under this Lease.

 

 

 

EXHIBIT G

-3-

 

 


 

EXHIBIT X

WORK LETTER
BUILD TO SUIT

Landlord, at Landlord’s expense, shall cause its contractor to construct the tenant improvements (the “Tenant Improvements”) for the Premises as shown in the space plan (the “Plan”) prepared by LPA and dated April 13, 2023, excluding all alternates. Any additional cost resulting from changes requested by Tenant shall be borne solely by Tenant and paid to Landlord prior to the commencement of construction. Unless otherwise specified in the Plan or hereafter agreed in writing by Landlord and Tenant, all materials and finishes utilized in constructing the Tenant Improvements shall be Landlord’s building standard. Should Landlord submit any additional plans, equipment specification sheets, or other matters to Tenant for approval or completion, Tenant shall respond in writing, as appropriate, within 5 business days unless a shorter period is provided herein. Tenant shall not unreasonably withhold its approval of any matter, and any disapproval shall be limited to items not previously approved by Tenant in the Plan or otherwise. Landlord shall not be responsible for the installation or removal costs associated with the accordion wall or server door to common area.

In the event that Tenant requests in writing a revision in the Plan or in any other plans hereafter approved by Tenant, then provided such change request is acceptable to Landlord, Landlord shall advise Tenant by written change order of any additional cost such change would cause. Tenant shall approve or disapprove such change order in writing within 5 business days following its receipt. Tenant’s approval of a change order shall not be effective unless accompanied by payment in full of the additional cost of the tenant improvement work resulting from the change order. It is understood that Landlord shall have no obligation to interrupt or modify the tenant improvement work pending Tenant’s approval of a change order.

Notwithstanding any provision in the Lease to the contrary, if Tenant fails to comply with any of the time periods specified in this Work Letter, requests any changes to the work, fails to make timely payment of any sum due hereunder, furnishes inaccurate or erroneous specifications or other information, or otherwise delays in any manner the completion of the Tenant Improvements or the issuance of an occupancy certificate (any of the foregoing being referred to in this Lease as a “Tenant Delay”), then Tenant shall bear any resulting additional construction cost or other expenses and the Commencement Date shall be deemed to have occurred for all purposes, including Tenant’s obligation to pay Rent, as of the date Landlord reasonably determines that it would have been able to deliver the Premises to Tenant but for the collective Tenant Delays.

Landlord shall permit Tenant and its agents to enter the Premises not less than 15 and not more than 30 days prior to the Commencement Date of the Lease in order that Tenant may perform any work to be performed by Tenant hereunder through its own contractors, subject to Landlord’s prior written approval, and in a manner and upon terms and conditions and at times satisfactory to Landlord’s representative. The foregoing license to enter the Premises prior to the Commencement Date is, however, conditioned upon Tenant’s contractors and their subcontractors and employees working in harmony and not interfering with the work being performed by Landlord. If at any time that entry shall cause disharmony or interfere with the work being performed by Landlord, this license may be withdrawn by Landlord upon 24 hours written notice to Tenant. That license is further conditioned upon the compliance by Tenant’s contractors with all requirements imposed by Landlord on third party contractors, including without limitation the maintenance by Tenant and its contractors and subcontractors of workers’ compensation and public liability and property damage insurance in amounts and with companies and on forms satisfactory to Landlord, with certificates of such insurance being furnished to Landlord prior to proceeding with any such entry. The entry shall be deemed to be under all of the provisions of the Lease except as to the covenants to pay Rent unless Tenant commences business activities within the Premises. Landlord shall not be liable in any way for any injury, loss or damage which may occur to any such work being performed by Tenant, the same being solely at Tenant’s risk. In no event shall the failure of Tenant’s contractors to complete any work in the Premises extend the Commencement Date of this Lease.

Tenant hereby designates David Fencil, Email: dfencil@avitamedical.com, as its representative, agent and attorney-in-fact for the purpose of receiving notices, approving submittals and issuing requests for changes, and Landlord shall be entitled to rely upon authorizations and directives of such person(s) as if given by Tenant. Tenant may amend the designation of its construction representative(s) at any time upon delivery of written notice to Landlord.

 

 

 

 

EXHIBIT X

-1-

 

 

 


 

EXHIBIT Y

UCI Research Park

img79766928_6.jpg 

 

 

 

 

 STYLEREF zExhibitLabel \* MERGEFORMAT EXHIBIT Y

-1-