EX-99.1 2 exhibit99-1.htm TECHNICAL REPORT Exhibit 99.1

Exhibit 99.1

 

AMC Mining Consultants (Canada) Ltd.

BC0767129

 

200 Granville Street, Suite 202

Vancouver BC V6C 1S4

Canada

 

T        +1 604 669 0044

E       vancouver@amcconsultants.com

W     amcconsultants.com

 

 

 

 

Technical Report

 

NI 43-101 Technical Report Update on the Ying Ag-Pb-Zn Property in Henan Province, People’s Republic of China
Silvercorp Metals Inc.

 

Henan Province, China

 

In accordance with the requirements of National Instrument 43-101 “Standards of Disclosure for Mineral Projects” of the Canadian Securities Administrators

 

Qualified Persons:

H.A. Smith, P.Eng.

S. Robinson, P.Geo., MAIG

G.K. Vartell, P.Geo.

J.E. Glanvill, Pr.Sci.Nat.

R.C. Stewart, P.Geo.

R. Carlson, FAIG RPGeo.

R. Chesher, FAusIMM (CP)

D. Claffey, MIEAust, CPEng.

AMC Project 0723067

Effective date: 16 July 2024

Report date: 28 August 2024

 

 

 

 

 

 

Unearth a smarter way

 

NI 43-101 Technical Report Update on the Ying Ag-Pb-Zn Property in Henan Province, People's Republic of China
 
Silvercorp Metals Inc.0723067

 

1Summary

 

1.1Introduction

 

AMC Mining Consultants (Canada) Ltd. (AMC) was commissioned by Silvercorp Metals Inc. (Silvercorp) to prepare a Technical Report (Ying 2024 Technical Report or Technical Report) on the Ying silver-lead-zinc property (Property) in Henan Province, China, encompassing the SGX, HZG, HPG, TLP, LME, LMW, and DCG underground mines. The seven mines are collectively referred to as the Ying mine or Ying mines in the Technical Report. AMC has previously prepared Technical Reports on the Property in 2022 (filed 4 November 2022, effective date 20 September 2022); 2020 (filed 14 October 2020, effective date 31 July 2020); 2017 (filed 24 February 2017, effective date 31 December 2016); 2014 (filed 5 September 2014, effective date 31 December 2013); 2012 (filed 15 June 2012, effective date 1 May 2012); and 2013 (minor update to 2012 report, filed 6 May 2013, effective date 1 May 2012).

 

The eight authors of the Technical Report are independent Qualified Persons (QPs). Five of the authors have visited the Ying Property. The latest AMC visit, by Mr H.A. Smith, Mr S. Robinson, Mr R. Chesher, and Mr D. Claffey, was in February 2024. The latest AMC visit by Dr G.K. Vartell was in July 2016. During the site visits, all aspects of the project have been examined by the QPs, including drill core, exploration sites, underground workings, processing plant, laboratory, tailings management facilities, and other surface infrastructure.

 

Silvercorp is a Canadian mining company producing silver, lead, and zinc metals in concentrates from mines in China. It is listed on both the TSE and NYSE as SVM. Through wholly owned subsidiaries, Silvercorp has an effective interest of 77.5 percent (%) in the SGX, HZG, TLP, LMW, and DCG mines, and 80% in the HPG and LME mines. It has all the exploration and mining permits necessary to cover its mining and exploration activities. There are no known or recognized environmental issues that might preclude or inhibit a mining operation in this area.

 

The Property is about 240 kilometres (km) west-southwest of Zhengzhou, the capital city of Henan Province, and 145 km south-west of Luoyang, which is the nearest major city. The city of Luoning is about 56 km by paved roads from Silvercorp’s Ying mill site. The project areas have good road access and operate year-round. The area has a continental sub-tropical climate with four distinct seasons.

 

Silver-lead-zinc mineralization in the Ying district has been known and intermittently mined for several hundred years. Silvercorp acquired an interest in the SGX project in 2004, the HPG project in 2006, and the TLP / LMW / LME projects in late 2007. Annual production has risen in recent years, with tonnages close to 650,000 tonnes per annum (tpa) from FY2021 through FY2022, 773,000 tpa in FY2023, and 827,000 in FY2024. The QP notes that the Silvercorp fiscal year (FY) begins in April, thus FY2024 runs from 1 April 2023 to 31 March 2024.

 

1.2Geology, exploration, and Mineral Resources

 

The Property is situated in the 300 km-long west-northwest trending Qinling orogenic belt, a major structural belt formed by the collision of two large continental tectonic plates in Paleozoic time. Rocks along the orogenic belt are severely folded and faulted, offering optimal structural conditions for the emplacement of mineral deposits. Several operating silver-lead-zinc mines, including those in the Property, occur along this belt. The dominant structures in the region are west-northwest trending folds and faults, the faults comprising numerous thrusts with sets of conjugate shear structures trending either north-west or north-east. These shear zones are associated with all the important mineralization in the district.

amcconsultants.comiii
NI 43-101 Technical Report Update on the Ying Ag-Pb-Zn Property in Henan Province, People's Republic of China
 
Silvercorp Metals Inc.0723067

  

Mineralization predominantly comprises numerous mesothermal, silver-lead-zinc-rich, quartz- carbonate veins in steeply dipping, fault-fissure zones which cut Precambrian gneiss and greenstone. The veins thin and thicken abruptly along the structures in classic “pinch-and-swell” fashion with widths varying from a few centimetres up to a few metres. The fault-fissure zones extend for hundreds to a few thousand metres along strike. To date, significant mineralization has been defined or developed in at least 534 discrete vein structures, and many other smaller veins have been found but not, as yet, well explored. Included in the number of veins are 22 gold-rich veins which have been a recent exploration target for Silvercorp. The vein systems of the various mine areas in the district are generally similar in mineralogy, with slight differences between some of the separate mine areas and between the different vein systems within each area.

 

From January 2004 to December 2023, a total of 2,392,889 metres (m) in 10,793 holes were drilled on the Property from surface and underground set-ups. Since the last technical report (from 1 January 2022 to 31 December 2023), Silvercorp drilled 2,493 underground holes and 525 surface holes, for a total of 491,561 m. Most drill core is NQ-sized (48 millimetres (mm)). Drill core recoveries are influenced by lithology and average 98 – 99%. Core is logged, photographed, and sampled in the core shack on surface. Samples are prepared by cutting the core in half with a diamond saw. One half of the core is marked with sample number and sample boundary and then returned to the core box for archival storage. The other half is placed in a labelled cotton cloth bag with sample number marked on the bag. The bagged sample is then shipped to the laboratory for preparation and assaying.

 

Other than drilling, the mines have been explored primarily from underground workings. The workings follow vein structures along strike, on levels spaced approximately 40 m apart. Channel samples across the structures are collected at 5 m intervals. From 1 January 2022 to 31 December 2023, Silvercorp undertook 116,123 m of tunnelling, and collected 64,573 channel samples. This brings the total number of metres of tunnelling completed on the Property by Silvercorp to 797,997 m with 305,376 channel samples collected.

 

Silvercorp has implemented industry standard practices for sample preparation, security, and analysis. All core and channel sampling are completed by Silvercorp personnel. Samples from NQ drill cores are collected following detailed geological logging at secure core processing facilities located at each mine site. Bagged and sealed half core drillhole samples are transported by Silvercorp personnel or courier to one of eight commercial laboratories. Channel sampling is completed by cutting channels into walls or faces of tunnels and crosscuts and collecting composite chip samples. Channel samples are transported by Silvercorp personnel to the Ying site laboratory at the mill complex in Luoning County.

 

The sample preparation procedures used at the various laboratories (nine used since January 2020, eight in 2023), incorporate sample drying to between 60°Celsius (C) and 105°C, crushing to at least 3 mm, subsampling via splitter or mat and scoop, and then pulverizing to 74 micron (µm). Analytical procedures for Ag, Pb, and Zn typically include a two or four acid digest of between 0.1 gram (g) and 1 g pulp followed by AAS or ICP with various instrumental finishes. Fire assay (10 g to 30 g) is used for gold analysis, and silver overlimit analysis.

 

Silvercorp has established Quality Assurance / Quality Control (QA/QC) procedures which monitor accuracy, precision and sample contamination during sampling, preparation, and analytical processes through the inclusion of Certified Reference Materials (CRM), coarse blanks, and field duplicates with sample batches. Umpire sampling has been completed by several independent laboratories. The QA/QC program for 1 January 2022 to 31 December 2023 included 3,616 CRMs, 3,609 coarse blanks, 4,251 quarter core field duplicates, and 314 umpire samples with 127,935 drillhole samples. A further 618 CRMs, 534 coarse blanks, 4,246 field duplicates, and 442 umpire

amcconsultants.comiv
NI 43-101 Technical Report Update on the Ying Ag-Pb-Zn Property in Henan Province, People's Republic of China
 
Silvercorp Metals Inc.0723067

 

samples were submitted with the 56,842 channel samples. Insertion rates for the various types were between 0.2% and 3.3%.

 

Silvercorp’s present protocols employed at the Ying Project do not encompass all aspects of a comprehensive QA/QC program, do not include optimal rates of insertion, and have not included rigorous monitoring of results in real time. Despite these issues, a review by the QP shows that there are no material accuracy, precision, or systematic contamination errors within the Ying sample database. The QP considers the Ying sample database to be acceptable for Mineral Resource estimation.

 

Data verification was completed by the QPs, and while some minor issues were found, the QPs do not consider the issues noted to have a material impact on Mineral Resource estimates. The QPs consider the data to be acceptable for Mineral Resource estimation.

 

The Mineral Resource estimates for the SGX, HZG, HPG, TLP, LME, LMW, and DCG deposits at the Ying Property were prepared by Silvercorp. Grade estimation was completed for a total of 534 veins using a block modelling approach using the inverse distance squared (ID2) interpolation method in Micromine software.

 

Grade estimates have been reviewed by independent QPs Mr Simeon Robinson, P.Geo., MAIG, Mr Justin Glanvill, Pri.Sci.Nat., and Dr Craig Stewart, P.Geo. of AMC. Mr Robinson takes responsibility for the SGX, TLP, and HZG estimates. Mr Glanvill takes responsibility for the LME and LMW estimates. Dr Stewart takes responsibility for the HPG and DCG estimates.

 

The interpretation and construction of mineralization wireframes was completed by Silvercorp by digitizing vein strings in cross section, and then linking strings to create three-dimensional (3D) wireframes or by creating separate 3D surfaces for hangingwall and footwall vein contacts and then creating solid 3D wireframes from those surfaces. Mineralization interpretations were constructed primarily from vein contacts recorded in drill core and underground mapping and then modified based on silver, lead, zinc, and where relevant, gold grades. Mineralized veins at the SGX, HPG, and HZG mines were modelled using a nominal threshold of 140 grams per tonne (g/t) silver equivalent (AgEq). Mineralized veins at the TLP, LMW, LME, and DCG mines were modelled using a nominal threshold of 120 g/t AgEq. Modelling cut-off grades were driven by mine specific controls.

 

A composite interval of 0.4 m was selected for all mines based on the predominant sample length. Appropriate top capping was applied based on a review of each vein. Grade estimates were completed for silver (Ag) and lead (Pb) in all deposits, zinc (Zn) in several deposits, and gold (Au) within select veins at select deposits.

 

The Mineral Resources include material (approximately 25% of total Mineral Resources by silver equivalent (AgEq) metal and 28% of the total Mineral Resources by tonnes) below the lower elevation limit of Silvercorp’s current mining licenses. However, because of the nature of Chinese regulations governing applications for new or extended mining licenses, the QPs for the Mineral Resource estimation are satisfied that there is minimal material risk associated with the granting of approval to Silvercorp to extend the lower depth limit of its licenses and to develop these Mineral Resources as and when required.

 

Mineral Resources by mine for the Property as of 30 June 2024 are presented in Table 1.1. These estimates incorporate Ag and Pb in all deposits, Zn in select deposits, and Au within select veins at select deposits. Mineral Resources are reported above a cut-off grade (COG) based on in situ values in AgEq terms in grams per tonne (g/t). COGs incorporate mining, processing, and general and administrative (G&A) costs, which were provided by Silvercorp for each mine and reviewed by the QP for Mineral Reserves. The AgEq formula and COG applied to each mine are noted in the footnotes of Table 1.1.

amcconsultants.comv
NI 43-101 Technical Report Update on the Ying Ag-Pb-Zn Property in Henan Province, People's Republic of China
 
Silvercorp Metals Inc.0723067

 

Table 1.1Ying Mineral Resources as of 30 June 2024

 

 

Mine

Resource
category
Tonnes
(Mt)
Au
grade
(g/t)
Ag
grade
(g/t)
Pb
grade
(%)
Zn
grade
(%)
Au
metal
(koz)
Ag
metal
(Moz)
Pb
metal
(kt)
Zn
metal
(kt)

SGX

Measured 4.09 0.06 252 4.88 2.50 7.24 33.14 199.57 101.99
Indicated 3.15 0.03 204 3.99 2.02 3.03 20.61 125.58 63.62
Meas + Ind 7.23 0.04 231 4.50 2.29 10.27 53.76 325.15 165.61
Inferred 2.26 0.01 210 4.38 1.70 0.98 15.28 99.00 38.44

HZG

Measured 0.65 - 294 1.05 - - 6.15 6.81 -
Indicated 0.28 - 283 0.83 - - 2.54 2.31 -
Meas + Ind 0.93 - 291 0.98 - - 8.68 9.12 -
Inferred 0.34 - 266 0.71 - - 2.94 2.43 -

HPG

Measured 1.22 1.18 79 3.36 1.04 46.10 3.08 40.91 12.67
Indicated 0.81 1.34 60 2.44 0.90 34.83 1.56 19.66 7.28
Meas + Ind 2.02 1.24 71 2.99 0.99 80.94 4.64 60.58 19.95
Inferred 1.57 2.86 103 3.76 0.95 144.71 5.22 59.18 14.88

TLP

Measured 3.64 - 185 3.09 - - 21.57 112.37 -
Indicated 2.58 - 166 2.66 - - 13.77 68.62 -
Meas + Ind 6.21 - 177 2.91 - - 35.34 180.99 -
Inferred 1.87 - 175 2.35 - - 10.50 43.77 -

LME

Measured 0.66 0.08 293 1.38 0.31 1.76 6.23 9.13 2.05
Indicated 1.14 0.07 276 1.14 0.34 2.40 10.09 12.96 3.82
Meas + Ind 1.80 0.07 282 1.23 0.33 4.16 16.33 22.09 5.87
Inferred 0.89 0.16 258 1.24 0.30 4.68 7.36 11.05 2.69

LMW

Measured 1.59 0.17 235 2.21 - 8.88 12.00 35.24 -
Indicated 2.00 0.21 201 1.84 - 13.53 12.88 36.74 -
Meas + Ind 3.59 0.19 216 2.01 - 22.41 24.89 71.99 -
Inferred 1.77 0.11 199 2.33 - 6.02 11.31 41.12 -

DCG

Measured 0.18 2.10 61 1.60 0.24 12.34 0.36 2.92 0.44
Indicated 0.18 2.22 72 2.27 0.17 12.58 0.41 4.01 0.31
Meas + Ind 0.36 2.16 67 1.93 0.21 24.92 0.77 6.93 0.75
Inferred 0.10 0.63 59 3.79 0.13 2.04 0.19 3.84 0.13

All

Measured 12.03 0.20 213 3.38 0.97 76.33 82.54 406.96 117.16
Indicated 10.12 0.20 190 2.67 0.74 66.36 61.86 269.89 75.03
Meas + Ind 22.15 0.20 203 3.06 0.87 142.69 144.40 676.85 192.18
Inferred 8.80 0.56 187 2.96 0.64 158.43 52.80 260.39 56.14

Notes:

CIM Definition Standards (2014) were used for reporting.
Measured and Indicated Mineral Resources are inclusive of Mineral Reserves.
Metal prices: gold US$1,800/troy ounce (oz), silver US$21.00/troy oz, lead US$1.00/lb, zinc US$1.10/lb.
Exchange rate: Chinese Yuan (RMB) 7.00: US$1.00.
Mineral Resources exclude the first 5 m below surface.
Veins factored to minimum extraction width of 0.4 m after estimation.
COGs: SGX 140 g/t AgEq; HZG 130 g/t AgEq; HPG 140 g/t AgEq; TLP 125 g/t AgEq; LME 130 g/t AgEq; LMW 125 g/t AgEq; DCG 150 g/t AgEq.
AgEq equivalent formulas by mine:
¾SGX = Ag g/t+35.05*Pb%+17.97*Zn%.
¾HZG = Ag g/t+33.59*Pb%.
¾HPG = Ag g/t+80.6*Au g/t+35.17*Pb%+21.60*Zn%.
¾TLP = Ag g/t+33.23*Pb%.
¾LME = Ag g/t+32.71*Pb%+9.38*Zn%.
¾LMW = Ag g/t+34.20*Pb%.
amcconsultants.comvi
NI 43-101 Technical Report Update on the Ying Ag-Pb-Zn Property in Henan Province, People's Republic of China
 
Silvercorp Metals Inc.0723067

 

¾DCG = Ag g/t+33.18*Pb%.
AgEq formulas used for significant gold bearing veins:
¾SGX (Veins S11, S16W_Au, S18E, S74) = Ag g/t+54.44*Au g/t+35.05*Pb%+17.97*Zn%.
¾LME (Veins LM4E2, LM4E3) = Ag g/t+55.12*Au g/t+32.71*Pb%+9.38*Zn%.
¾LMW (Veins LM21, LM22, LM26, LM28, LM50, LM50_3, LM52, LM53, LM54) = Ag g/t+71.85*Au g/t+34.2*Pb%.
¾DCG (Veins C76, C9_1, C9_2, C9_3, C9_4, C9E1, C9W1) = Ag g/t+83.44*Au g/t+33.18*Pb%
Includes assay results up to and including 31 December 2023.
Depleted for mine production to 30 June 2024. Non-recoverable Mineral Resources (sterile areas due to the proximity to stopes, unstable ground or where access to the vein is limited) defined as of 30 June 2024.
Numbers may not compute exactly due to rounding.

 

1.3Comparison of Mineral Resources, 31 December 2021 and 30 June 2024

 

A comparison of Mineral Resource estimates between 31 December 2021 and 30 June 2024 (2024 Q2) indicates the following:

·Measured and Indicated tonnes have increased by 18% overall. The Inferred tonnes have decreased by 33%.
·Measured and Indicated grades have decreased for gold and silver by 25% and 16%, respectively. Measured and Indicated grades have decreased for lead by 13% and zinc by 16%.
·Inferred grades increased for gold by 37% but decreased for silver, lead, and zinc by 7%, 6%, and 17%, respectively.
·The net result in the Measured and Indicated categories has been a decrease in the contained gold, silver, and zinc of 12%, 1%, and 1%, respectively, and an increase in contained lead of 3%.
·The net result in the Inferred category has been a decrease in the contained gold, silver, lead, and zinc of 8%, 37%, 37%, and 44%, respectively.

 

The reasons for the differences in grade, tonnes, and contained metal include changes made to vein interpretations for the 2024 Q2 model, conversion to higher categories arising from drilling and level development, application of different COGs, and depletion due to mining. In the case of gold, the QPs note that only 93 of the total 534 veins comprise gold estimates (71 veins at HPG, and 22 select veins from SGX, LME, LMW, and DCG). Gold grades shown in Mineral Resource tables are extremely sensitive to the overall tonnes for all veins. The notable 37% increase in the Inferred gold grades in the 2024 Q2 model is due to the decrease in the overall total tonnes of Inferred material, as well as the discovery of an additional 12 gold veins since the 2021 Q4 model.

 

1.4Mining and Mineral Reserves

 

The Mineral Reserve estimates for the Property were prepared by Silvercorp under the guidance of independent QP Mr H.A. Smith, P.Eng., who takes responsibility for those estimates. Table 1.2 summarizes the Mineral Reserve estimates for each mine and for the entire Ying operation. 56% of the Mineral Reserve tonnage is categorized as Proven and 44% is categorized as Probable.

 

To convert Mineral Resources to Mineral Reserves, mining COGs have been applied, mining dilution has been added, and mining recovery factors assessed on an individual vein mining block basis. Only Measured and Indicated Mineral Resources have been used for Mineral Reserves estimation.

 

The QP notes that a detailed estimation of Mineral Reserves was completed to 31 March 2024. For the estimation to 30 June 2024, reported mine production for the April to June 2024 period was deducted from the 31 March 2024 estimation. The April to June 2024 production was less than 1.8% of the 31 March Mineral Reserves in terms of tonnes and for each contained metal.

 

amcconsultants.comvii
NI 43-101 Technical Report Update on the Ying Ag-Pb-Zn Property in Henan Province, People's Republic of China
 
Silvercorp Metals Inc.0723067

 

Table 1.2Ying Mineral Reserve estimates at 30 June 2024

 

Mine

Category

Mt

Au
(g/t)
Ag
(g/t)
Pb
(%)
Zn
(%)
Metal contained in Mineral Reserves
Au
(koz)
Ag
(Moz)
Pb
(kt)
Zn
(kt)

SGX

Proven 3.14 0.03 242 4.64 2.20 3.1 24.4 145.6 69.0
Probable 2.25 0.01 202 4.02 1.88 0.9 14.6 90.5 42.2
Subtotal P&P 5.39 0.02 225 4.38 2.06 4.0 39.0 236.1 111.2

HZG

Proven 0.36   292 0.92     3.4 3.3  
Probable 0.13 336 0.75 1.4 1.0
Subtotal P&P 0.49   304 0.87     4.8 4.2  

HPG

Proven 0.47 1.44 82 3.72 1.14 21.6 1.2 17.4 5.3
Probable 0.36 1.44 68 2.72 0.97 16.9 0.8 9.9 3.5
Subtotal P&P 0.83 1.44 76 3.28 1.07 38.5 2.0 27.3 8.9

TLP

Proven 2.02   194 2.93     12.6 59.2  
Probable 1.34 176 2.59 7.6 34.7
Subtotal P&P 3.36   187 2.79     20.2 93.9  

LME

Proven 0.30 0.12 311 1.29 0.29 1.1 3.0 3.9 0.9
Probable 0.61 0.14 314 1.14 0.32 2.8 6.1 6.9 1.9
Subtotal P&P 0.91 0.13 313 1.19 0.31 3.9 9.2 10.8 2.8

LMW

Proven 0.83 0.22 251 2.12   5.8 6.7 17.6  
Probable 0.84 0.21 241 1.99 5.7 6.5 16.7
Subtotal P&P 1.67 0.21 246 2.05   11.5 13.2 34.3  

DCG

Proven 0.06 2.69 61 1.21   5.0 0.1 0.7  
Probable 0.05 4.54 63 1.13 7.8 0.1 0.6
Subtotal P&P 0.11 3.58 62 1.17   12.7 0.2 1.3  

Ying Mines

Proven 7.17 0.16 223 3.45 1.05 36.6 51.4 247.6 75.2
Probable 5.58 0.19 207 2.87 0.85 34.0 37.2 160.3 47.7
Total P&P 12.76 0.17 216 3.20 0.96 70.6 88.6 408.0 122.9

Notes to Mineral Reserve Statement:

·Cut-off grades (AgEq g/t): SGX – 225 Resuing, 190 Shrinkage; HZG – 235 Resuing, 205 Shrinkage; HPG – 240 Resuing, 200 Shrinkage; TLP – 205 Resuing, 170 Shrinkage; LME – 235 Resuing, 210 Shrinkage, 205 Room & Pillar; LMW – 250 Resuing, 225 Shrinkage, 195 Longhole, 205 Room & Pillar; DCG – 275 Resuing, 235 Shrinkage.

·Stope Marginal cut-off grades (AgEq g/t): SGX – 200 Resuing, 160 Shrinkage; HZG – 195 Resuing, 165 Shrinkage; HPG – 220 Resuing, 180 Shrinkage; TLP – 185 Resuing, 160 Shrinkage; LME – 205 Resuing, 185 Shrinkage, 150 Room & Pillar; LMW - 195 Resuing, 165 Shrinkage, 140 Longhole, 150 Room & Pillar; DCG – 235 Resuing, 190 Shrinkage.
·Development Ore cut-off grades (AgEq g/t): SGX – 125; HZG – 120; HPG – 145; TLP – 115; LME – 145; LMW – 125; DCG – 150.
·Unplanned dilution (zero grade) assumed as 0.05 m on each wall of a resuing stope and 0.10 m on each wall of a shrinkage stope. 20% unplanned dilution assumed for LMW longhole. 17% average dilution for Room & Pillar at LME, 33% average dilution for Room & Pillar at LMW.
·Mining recovery factors assumed as 95% for resuing and 92% for shrinkage; for LMW longhole, 80% is assumed; for R&P at LME and LMW, 92% is assumed.
·Metal prices: gold US$1,800/troy oz, silver US$21.00/troy oz, lead US$1.00/lb, zinc US$1.10/lb.
·Processing recovery factors: SGX – 66.6% Au, 96.4% Ag, 97.6% Pb, 60.5% Zn; HZG – 96.4% Ag, 93.6% Pb; HPG - 92.0% Au, 89.9% Ag, 91.4% Pb, 67.8% Zn; TLP – 94.0% Ag, 90.3% Pb; LME – 66.9% Au, 95.6% Ag, 90.4% Pb, 31.3% Zn; LMW – 88.3% Au, 96.8% Ag, 95.7% Pb; DCG – 85.7% Au, 80.9% Ag, 77.6% Pb.

·Payables: Au – 85%; Ag – 92.5%; Pb – 98.0%; Zn – 73.7%.
·Exclusive of mine production to 30 June 2024.
·Exchange rate assumed is RMB 7.00 : US$1.00.
·Numbers may not compute exactly due to rounding.
amcconsultants.comviii
NI 43-101 Technical Report Update on the Ying Ag-Pb-Zn Property in Henan Province, People's Republic of China
 
Silvercorp Metals Inc.0723067

 

 

Ying average Mineral Reserve grades for gold, silver, lead and zinc are 100%, 87%, 89%, and 143%, respectively, of the reported grades for the operating period from FY2022Q4 through end-FY2024. This is consistent with production generally moving to deeper mine areas. In terms of Ying Mineral Reserve AgEq metal content, SGX remains the main contributor at 49%, followed by TLP at 21% and LMW at 12%.

 

A continued focus on best mining practices and minimizing dilution will be key to achieving Mineral Reserve grades over the Ying life-of-mine (LOM).

 

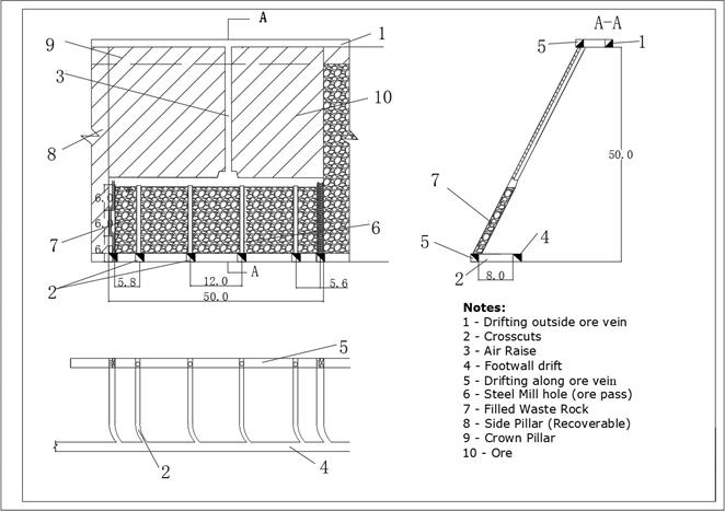
The Mineral Reserve estimation assumes that current stoping practices will continue to be predominant at the Ying property, namely cut and fill resuing and shrinkage stoping for most veins, using hand-held drills (jacklegs) and hand-mucking within stopes, and loading to mine cars by rocker-shovel or by hand. The typically sub-vertical veins, generally competent ground, reasonably regular vein width, and hand-mining techniques using short rounds, allow a significant degree of selectivity and control in the stoping process. Minimum mining widths of 0.5 m for resuing and 1.0 m for shrinkage are assumed. The QP has observed the resuing and shrinkage mining methods at the Ying property on several occasions and considers the minimum extraction and mining width assumptions to be reasonable. Minimum dilution assumptions are 0.10 m of total overbreak for a resuing cut and 0.2 m of total overbreak for a shrinkage stope. Average Ying dilution projections for resuing and shrinkage are 17% and 19%, respectively.

 

The QP notes that, for a small number of veins with relatively low-angle dip – generally veins with significant gold content – room and pillar stoping with slushers is now being used at the Property. Longhole stoping has also been recently employed in one instance, with this method now being planned to be used in some areas of the LMW mine.

 

For longhole mining at LMW, 20% dilution has been assumed. For room and pillar mining at LMW, a minimum mining width of 1.2 m or vein width + 0.2 m where vein width is greater than 1.0 m has been assumed, with average dilution approximately 33%. For a very small amount of room and pillar mining at LME, 17% dilution has been projected.

 

For the total tonnage estimated as Ying Mineral Reserves, approximately 58% is associated with resuing, 36% with shrinkage, 4% with longhole, and 2% with room and pillar mining.

 

As with previous Technical Reports, the sensitivity of the Ying Mineral Reserves to variation in COG has been tested by applying a 20% increase in COG to Mineral Reserves at each of the Ying mines. The lowest sensitivity, at 7% reduction in AgEq ounces, continues to be seen at SGX. For the entire Ying Mining District, an approximate 11% reduction in AgEq ounces for a 20% COG increase demonstrates relatively low overall COG sensitivity.

 

Total Ying Mineral Reserve tonnes are approximately 58% of Mineral Resource (Measured plus Indicated) tonnes. Gold, silver, lead, and zinc Mineral Reserve grades are 86%, 106%, 105%, and 111%, respectively, of the corresponding Measured plus Indicated Mineral Resource grades. Metal conversion percentages for gold, silver, lead, and zinc are 49%, 61%, 60%, and 64%, respectively.

 

With respect to the difference in tonnes and metal content between (Measured plus Indicated) Mineral Resources and (Proven plus Probable) Mineral Reserves, the QP notes that the Mineral Resources have not had modifying factors applied that would allow consideration of conversion to Mineral Reserves.

 

Underground access to each of the mines in the steeply sloped, mountainous district is via adits at various elevations, inclined rail haulageways, shaft / internal shafts (winzes), and declines (ramps). The mines are developed using trackless equipment – 30 t trucks and single-boom jumbos. Small, conventional tracked equipment – electric / diesel locomotives, rail cars, electric rocker shovels and

amcconsultants.comix
NI 43-101 Technical Report Update on the Ying Ag-Pb-Zn Property in Henan Province, People's Republic of China
 
Silvercorp Metals Inc.0723067

 

 

load haul ramp trucks; and pneumatic hand-held drills – have been predominant in operations to date, but with an increased use of trackless equipment now in some mine areas and a focus on more mechanized mining being a key part of future mine planning.

 

The global extraction sequence is top-down between levels, and generally outwards from the central shaft or main access location. The stope extraction sequence is bottom-up, with shrinkage and resuing being the main mining methods, and using jacklegs for in-stope drilling. In some flatter-lying veins, room and pillar mining is now employed. A trial exercise for uppers longhole stoping has also been undertaken recently, with further longhole initiatives planned.

 

As part of an aim to enhance production rates, the Ying operation plans include development of deeper mining zones and an increase in the number of concurrent mining areas, along with the introduction of additional mining equipment.

 

1.5Reconciliation

 

Table 1.3 summarizes the Silvercorp reconciliation between Mineral Reserve estimates in areas mined and production as mill feed for the Ying mines from 1 January 2022 to 31 March 2024.

 

Table 1.3Mineral Reserve to production reconciliation: January 2022 – March 2024

 

 

 

Mine

Mineral
Reserve
(kt)
Grade Metal
Au
(g/t)
Ag
(g/t)
Pb
(%)
Zn
(%)
Au
(koz)
Ag
(koz)
Pb
(kt)
Zn
(kt)

 

 

 

 

Reserve (Proven + Probable)

SGX 593 0.03 371 6.40 3.07 0.6 7,075 37.9 18.2
HZG 92 0.00 363 1.26     1,072 1.2  
HPG 121 1.02 127 3.65 1.12 4.0 495 4.4 1.4
LME 79   375 1.94     950 1.5  
LMW 173 0.95 328 1.69   5.3 1,825 2.9  
TLP 458   244 2.64     3,594 12.1  
DCG 20 0.66 88 3.54   0.4 56 0.7  
Total 1,536 0.21 305 3.96 1.27 10.3 15,067 60.8 19.6

 

 

 

 

Reconciled Mine Production

SGX 627 0.08 319 5.75 1.63 1.7 6,425 36.1 10.2
HZG 137 0.00 253 1.22     1,117 1.7  
HPG 154 0.85 110 3.11 0.90 4.2 542 4.8 1.4
LME 61   265 1.48     519 0.9  
LMW 208 0.49 279 2.41   3.3 1,866 5.0  
TLP 518   193 2.61     3,207 13.5  
DCG 22 0.46 63 2.01   0.3 45 0.4  
Total 1,727 0.17 247 3.61 0.67 9.5 13,722 62.4 11.6

 

 

 

Mine Production as % of Reserves

SGX 106% 257% 86% 90% 53% 272% 91% 95% 56%
HZG 150% - 70% 97%     104% 145%  
HPG 127% 84% 86% 85% 80% 106% 110% 108% 102%
LME 77%   71% 76%     55% 59%  
LMW 120% 52% 85% 143%   62% 102% 171%  
TLP 113%   79% 99%     89% 112%  
DCG 112% 70% 72% 57%   78% 81% 64%  
Total 112% 82% 81% 91% 53% 92% 91% 103% 59%

Notes:

·Assumes 2.5% moisture in wet ore.
·Numbers may not compute exactly due to rounding.
amcconsultants.comx
NI 43-101 Technical Report Update on the Ying Ag-Pb-Zn Property in Henan Province, People's Republic of China
 
Silvercorp Metals Inc.0723067

 

 

The QP makes the following observations relative to the data in Table 1.3:

·Overall, the mine produced 12% more tonnes from Mineral Reserves at gold, silver, lead, and zinc grades that were, respectively, 18%, 19%, 9%, and 47% lower than reserve grades. Contained gold, silver, lead, and zinc metal values were, respectively, 8% lower, 9% lower, 3% higher, and 41% lower relative to Mineral Reserve estimates.
·The lower mined grades suggest that, overall, dilution control has suffered in the recent move towards increased production.
·The lower grade performance against reserves is noted as generally consistent across the seven mines, with the exception of SGX for gold and LMW for lead, and with HZG and TLP almost achieving parity in terms of lead.
·The particularly low zinc metal recovered vs reserves may be attributed, to some extent, to processing recovery uncertainty affecting reconciled values. The QP notes that zinc currently contributes only about 5% to Ying revenue.
·Apart from the seemingly significant increase in dilution, factors that may have contributed to results variability include:
¾Over- and / or under-estimation of Mineral Resource / Reserve tonnes and grades at individual sites.
¾Variable or adverse ground conditions.
¾Increased use of shrinkage stoping in very narrow and / or discontinuous veins.
¾Mining of lower grade, but still economic, material outside of the vein proper.
¾Misattribution of feed source to the mill.
¾Mill process control issues.
¾Mill focus issues in terms of metal prioritization.

 

Silvercorp has previously placed a high level of focus on dilution control and, as part of that effort, has revised its stockpiling and record keeping procedures and implemented a work quality checklist management enhancement program. The QP recommends that Silvercorp re-emphasize the dilution control aspects of the mining process and notes that this will be even more important with an LOM plan that projects yet higher production rates. The QP again recommends that Silvercorp undertake regular mill audits aimed at ensuring optimum process control and mill performance.

 

1.6Comparison of Mineral Reserves, 31 December 2021 to 30 June 2024

 

A comparison of Mineral Reserve estimates between end-2021 (2022 Technical Report) and 30 June 2024 (2024 Technical Report) indicates the following (the 2024 Mineral Reserves do not include ore mined since end-2021):

·4% increase in total (Proven + Probable) Ying Mineral Reserve tonnes. 24% increase in Proven Mineral Reserve tonnes.
·SGX continues to be the leading contributor to the total Ying Mineral Reserves, accounting for 42% of tonnes, 44% of silver, 58% of lead, and 90% of zinc, compared to respective values of 42%, 44%, 60%, and 90% in the previous Technical Report.
·3% increase in Mineral Reserve tonnes at SGX, with decreases in gold, silver, lead, and zinc metal content of 5%, 7%, 5%, and 3%, respectively.
·TLP remains the second largest contributor to total Ying Mineral Reserves, with 26% of tonnes, 23% of silver, and 23% of lead.
·31% increase in Mineral Reserve tonnes at TLP, with increases in silver and lead metal content of 14% and 19%, respectively.
·Decreases in total Ying Mineral Reserve silver, lead, and zinc grades of 11%, 5%, and 7%, respectively.
amcconsultants.comxi
NI 43-101 Technical Report Update on the Ying Ag-Pb-Zn Property in Henan Province, People's Republic of China
 
Silvercorp Metals Inc.0723067

 

·Decreases in total Ying Mineral Reserve silver, lead, and zinc metal content of 7%, 1%, and 4%, respectively.
·Respective decreases in total Ying gold grade and gold metal content of 37% and 33%.
·In terms of AgEq metal in total Ying Mineral Reserves, approximate respective contributions are silver 61%, lead 31%, zinc 5%, and gold 4%.

 

In total Ying Mineral Reserves, SGX, TLP, LMW, LME, HPG, HZG, and DCG contribute 49%, 21%, 12%, 7%, 6%, 4%, and 1% of AgEq metal, respectively.

 

1.7Life-of-mine plan

 

Table 1.4 is a summary of the projected LOM production for each of the Ying mines and for the entire operation based on the 30 June 2024 Mineral Reserve estimates.

 

Annual ore production in the LOM plan is projected to rise from the FY2024 level of 827 kilotonnes (kt) to 1.0 million tonnes (Mt) in FY2025 (782 kt as of 30 June 2024), and then to over 1.1 Mt from FY2026 through FY2030. From FY2031 through FY2035, a slow decline is projected from just under 1.1 million tonnes per annum (Mtpa) to around 900 kilotonnes per annum (ktpa). A more rapid decline from 688 kt in FY2036 to a final year of 242 kt in FY2038 is seen in the final three years of currently envisaged production.

 

amcconsultants.comxii
NI 43-101 Technical Report Update on the Ying Ag-Pb-Zn Property in Henan Province, People's Republic of China
 
Silvercorp Metals Inc.0723067

 

Table 1.4Ying Mines LOM production plan

 

  FY2025Q2-Q4 FY2026 FY2027 FY2028 FY2029 FY2030 FY2031 FY2032 FY2033 FY2034 FY2035 FY2036 FY2037 FY2038 Totals
SGX  
Production (kt) 256 387 425 426 426 426 423 427 427 426 424 371 298 242 5,386
Au (g/t) 0.00 0.00 0.06 0.02 0.04 0.00 0.00 0.01 0.04 0.02 0.02 0.06 0.02 0.01 0.02
Ag (g/t 319 306 272 240 231 222 219 220 199 196 199 190 177 164 225
Pb (%) 5.5 5.6 4.8 4.4 4.2 4.5 4.4 3.8 4.3 4.2 3.9 4.0 4.1 3.7 4.4
Zn (%) 2.4 1.8 2.0 2.1 1.9 1.8 1.9 2.1 2.1 2.3 2.0 1.8 2.2 2.8 2.1
AgEq (g/t) 555 536 481 434 415 413 406 393 390 386 372 365 362 346 417
HZG  
Production (kt) 60 80 80 80 80 65 40               486
Au (g/t                
Ag (g/t 340 305 310 308 313 287 241 304
Pb (%) 0.6 1.0 0.9 0.9 0.8 0.8 1.2 0.9
Zn (%)               0.0
AgEq (g/t) 360 340 340 339 339 312 280 333
HPG  
Production (kt) 71 118 116 116 117 114 91 88             832
Au (g/t) 2.88 1.54 1.66 1.63 1.35 1.03 0.82 0.90 1.44
Ag (g/t 79 94 89 81 72 73 60 52 76
Pb (%) 2.0 3.5 3.2 3.5 3.8 3.6 3.3 2.7 3.3
Zn (%) 1.1 1.0 0.7 0.4 1.2 1.4 1.4 1.4 1.1
AgEq (g/t) 405 361 351 346 340 314 271 249 330
TLP  
Production (kt) 206 287 295 295 295 295 295 286 277 266 254 195 116   3,362
Au (g/t                            
Ag (g/t 202 213 224 230 227 201 198 169 167 145 141 121 114 187
Pb (%) 2.8 2.6 2.6 2.6 2.7 2.9 2.5 2.6 3.0 3.0 3.3 3.4 2.6 2.8
Zn (%)                            
AgEq (g/t) 295 298 309 317 316 297 282 256 266 246 250 233 199 279
LME  
Production (kt) 41 51 83 81 78 83 82 85 82 81 82 82     911
Au (g/t) 0.03 0.02 0.08 0.08 0.08 0.12 0.23 0.16 0.07 0.20 0.27 0.16 0.13
Ag (g/t 286 339 321 322 319 321 336 336 288 332 296 254 313
Pb (%) 1.1 1.4 0.9 1.0 1.2 1.1 1.5 1.1 1.6 1.3 1.0 1.1 1.2
Zn (%) 0.3 0.2 0.2 0.3 0.3 0.3 0.4 0.4 0.3 0.3 0.2 0.3 0.3
AgEq (g/t) 338 390 357 362 366 367 399 386 347 388 346 301 362
LMW  
Production (kt) 121 152 153 151 152 151 162 150 151 149 137 40     1,669
Au (g/t) 0.97 0.26 0.37 0.05 0.22 0.07 0.11 0.07 0.19 0.06 0.12 0.28 0.21
Ag (g/t 219 244 249 253 257 264 241 263 239 244 242 197 246
Pb (%) 2.0 2.4 2.3 2.4 2.0 2.0 2.1 2.0 2.0 1.9 1.6 1.8 2.1
Zn (%)                          
AgEq (g/t) 354 343 348 344 344 336 318 333 318 308 300 284 330
DCG  
Production (kt) 27 30 30 23                     110
Au (g/t) 3.18 3.87 3.75 3.46 3.58
Ag (g/t 54 70 67 55 62
Pb (%) 1.1 0.4 1.3 2.1 1.2
Zn (%)          
AgEq (g/t) 357 407 419 408 398
Ying Mine  
Production (kt) 782 1106 1183 1173 1148 1133 1093 1037 937 923 897 688 414 242 12,757
Au (g/t) 0.52 0.31 0.33 0.25 0.19 0.12 0.10 0.10 0.05 0.04 0.05 0.07 0.01 0.01 0.17
Ag (g/t 242 246 240 230 229 218 213 207 204 201 198 178 159 164 216
Pb (%) 3.2 3.5 3.1 3.1 3.1 3.2 3.1 2.9 3.3 3.2 3.1 3.3 3.7 3.7 3.2
Zn (%) 0.9 0.8 0.8 0.8 0.9 0.8 0.9 1.0 1.0 1.1 1.0 1.0 1.6 2.8 1.0
AgEq (g/t) 409 405 388 372 364 354 343 334 338 333 324 315 316 346 357

Note: Numbers may not compute exactly due to rounding. Zinc not included in AgEq calculation for HZG, TLP, LMW, and DCG mines.

 

amcconsultants.comxiii
NI 43-101 Technical Report Update on the Ying Ag-Pb-Zn Property in Henan Province, People's Republic of China
 
Silvercorp Metals Inc.0723067

 

1.8Metallurgical testwork and processing

 

Prior to operation of the mines and the construction of Silvercorp’s mills, metallurgical tests had been conducted by various labs to address the recoveries of the different types of mineralization. TLP mineralization was tested by the Changsha Design and Research Institute (CDRI) in 1994, SGX mineralization was tested by Hunan Nonferrous Metal Research Institute (HNMRI) in May 2005, HZG mineralization was tested by Tongling Nonferrous Metals Design Institute (TNMDI) in 2006, and HPG mineralization was tested by Changchun Gold Research Institute (CCGRI) in 2021.

 

Additional mineralization testing in 2021 was completed by CITIC Heavy Industry Machinery Co., Ltd (CITIC). CITIC was commissioned to conduct grindability tests on sulphide ore from SGX, TLP, LME, and LMW, and oxide ore from TLP and HPG.

 

The results predicted a metallurgically amenable ore with clean lead-zinc separation by differential flotation and, with the possible exception of silver halides in the upper zones of the TLP deposit, high silver recoveries. On-site metallurgists have conducted plant-tuning programs to continually improve metallurgical performance.

 

Silvercorp runs two processing plants - Plant 1 (also known as No.1 Mill or Xiayu Plant) and Plant 2 (also known as No. 2 Mill or Zhuangtou Plant) - for the Ying operations, with a total design capacity of 1,800 tonnes per day (tpd) (prior to October 2011), and then 2,800 tpd after October 2011 when expansion Phase II was completed. The two plants are situated within 2 km of each other. An extension to No. 2 Mill - which will increase its processing capacity to 3,500 tpd - is currently under construction and is scheduled to be operating by Q4 2024. The combined plant capacity will be around 4,200 tpd, although the current LOM plan is to run at 3,500 tpd and only with Plant 2 from the start of 2025 (Q4 FY2025).

 

The overall processes of the two plants are similar and comprise crushing, grinding, flotation of lead and zinc concentrates, and concentrate dewatering. A Knelson concentrator was also installed at Plant 1 to process gold-bearing ores from HPG, SGX, and LMW.

 

To date, high grade lead concentrate from Plant 2 has been blended with middle grade lead concentrate from Plant 1 to optimize profitability. Information for FY2024 indicates:

 

·For Plant 2, ore from all mines was used as the feed for flotation, although only a small proportion of ore from LMW and HZG was processed in Plant 2.
·Ores from LMW and HZG were generally lower grade and were primarily processed in Plant 1, along with about 9% of the ore from TLP.
·72% of the ore was processed at Plant 2, with an average daily processing rate of about 1,600 tpd versus the design capacity of 2,000 tpd.
·28% of the ore was processed at Plant 1, with an average daily processing rate of about 620 tpd, versus the capacity of 700 tpd.

 

The design of the expanded Mill Plant 2 increases throughput capacity to 3,500 tpd by adding a third processing line (capacity 1,500 tpd) and incorporates a Knelson concentrator for gravity separation along with optional ore sorting to increase plant feed grade if desired. The expanded plant is scheduled for commissioning in November 2024.

 

From the LOM mine schedule, a mill feed schedule has been derived based on the following assumptions:

 

·Plant 1 and Plant 2 (current capacity of 1,800 tpd) will operate until the end of 2024, at which time the expanded Plant 2 with a design capacity of 3,500 tpd will be in operation.

 

amcconsultants.comxiv
NI 43-101 Technical Report Update on the Ying Ag-Pb-Zn Property in Henan Province, People's Republic of China
 
Silvercorp Metals Inc.0723067

 

·Until the expanded Plant 2 is operating, gold-bearing ores will be fed to Plant 1. When there is not enough gold-bearing ore, Plant 1 also will process some lower-grade ores.
·Expanded Plant 2 (design capacity 3,500 tpd) is projected to begin production in November 2024 (FY2025 Q3), and to reach and operate at full production capacity in the first quarter of 2025 (FY2025 Q4).

 

1.9Personnel

 

Silvercorp operates the Ying mines mainly using contractors for mine development, production, ore transportation, and exploration. The mill plant and surface workshops are operated and maintained using Silvercorp personnel. Silvercorp provides its own management, technical services, and supervisory staff to manage the mine operations.

 

A recent snapshot of the Ying mines workforce showed a total of 3,684 persons, comprising 1,120 Silvercorp staff, 67 Silvercorp hourly employees, and 2,497 contract workers.

 

1.10Main infrastructure, including tailings dams

 

Tailings generated by ore processing activities are currently stored in one of two engineered tailings storage facilities, located close to the processing plants, named TSF 1 and TSF 2, respectively.

 

The two current tailings storage facilities (TSFs) were designed based on then current Mineral Resource / Mineral Reserve estimations and LOM production projections. Subsequent resource expansion and increased production projections indicated that the current tailings capacity will not be adequate for the full Ying LOM.

 

Construction of a third TSF, named TSF 3 or the Shimengou TSF, commenced in July 2022 with the excavation of the decant tunnels. Groundworks at the dam site and within the impoundment area commenced in August 2023. Work on the starter facility construction is progressing and is scheduled for completion in the second half of 2024. The facility, designed by the Changchun Gold Design Institute Company, has a total tailings storage volume of 17.2 million cubic millimetres (Mm3).

 

All three tailings facilities have been designed in accordance with prevailing Chinese standards, with TSF 3 as per the most recent iteration of the standard published in 2020 (GB 39496 – 2020, Safety Regulations for Tailings Ponds), which replaced the earlier 2006 version (AQ2006-2005, Safety Technical Regulations for Tailings Ponds).

 

Overall, the QP notes that existing facilities appear to be in good condition, are well maintained, well operated and appropriately managed.

 

The facilities are in an area of low seismic activity and are founded on competent bedrock. Facility designs are conventional and reasonable.

 

Monitoring systems and procedures are extensive and commensurate with accepted international good practice. The facilities are extensively inspected by a range of internal and external parties and are subject to considerable oversight from local regulators.

 

Based on the data presented during the site visit, it appears that the facilities were constructed to a high standard, with adequate levels of oversight and in accordance with an appropriate QA/QC program. Detailed ‘as-built’ reports are available for each facility, including signed-off construction drawings.

 

amcconsultants.comxv
NI 43-101 Technical Report Update on the Ying Ag-Pb-Zn Property in Henan Province, People's Republic of China
 
Silvercorp Metals Inc.0723067

 

Both existing facilities are designed and operated in accordance with Chinese standards, although these standards may, in certain areas, differ from current commonly accepted international standards.

 

TSF 3 is similar in design and operation plan to the existing facilities, with some notable exceptions, including incorporation of a complete basal liner to the impoundment area, reflecting the increased standards now required by local regulators. Design documentation is extensive, again reflecting the increased requirements, as regulators move towards an alignment with international standards.

 

The QP has made TSF recommendations on hydrological design criteria - including Inflow Design Flood events; reassessment of slope stability analysis; and, for TSF 3, that consideration should be given to the installation of an underdrainage system, installed above the high-density polyethylene (HDPE) basin liner in the area immediately upstream of the starter dam. The Silvercorp initial responses to these recommendations are included below and in Section 18.1 of the Technical Report.

 

Wastewater is generated from mining activities, mineral processing, and domestic sewage.

 

Ying TSF tailings water is collected using dams under the TSF embankments. The collected tailings water from the TSFs is piped back to the processing plant for reuse. No tailings water is discharged to the environment.

 

Mine dewatering is undertaken in accordance with the “Chinese Safety Regulations of Metal and Non-metal Mines”.

 

Sewage from the SGX mining areas is collected and treated by a biological and artificial wetland treatment system. At the HZG, HPG, TLP, LME, LMW, and DCG mines, underground water and domestic sewage are filtered through gravel pits and then discharged to the environment.

 

Data provided by Silvercorp indicates that, with few exceptions, any water released to the environment complies with regulatory requirements.

 

Waste rock dumps are sited throughout the Property and adjacent to the mines. In 2021, the Hongfa Aggregate Plant (Hongfa) was constructed to recycle and crush waste rock from the Ying Mining District. Since Hongfa has been in operation, Silvercorp has evaluated each waste dump, and decided to reclaim three waste dumps (two waste dumps at the SGX mine, and one at the HZG mine). The role of the other waste dumps is changing to temporary waste rock storage, from which waste rock is hauled to the Hongfa plant each day. Any profits from the Hongfa operation, after capital recovery, are shared between the local government, the local communities, and employees.

 

Power for the Ying Property is drawn from the Chinese national grid, with high-voltage lines to sub- stations in proximity to the different mine camps and mill plants. Diesel generators act as back-up power supply in the event of a grid power outage. The QP understands that existing main power supply provisions will be able to meet the power requirements of the Mill Plant 2 expansion and third TSF that is currently under construction.

 

In 2020, access to the SGX / HZG mine from the mill-office complex was via a 7 km paved road to Hedong wharf of Guxian Reservoir, and then across the reservoir by boat to the mine site. Silvercorp shipped the ore from the SGX / HZG and HPG mines to Hedong wharf by two large barges that could carry up to five 45-tonne trucks. Since the beginning of 2021, ore transport from the SGX / HZG and HPG mines has changed to an alternative ore transport route. This route is via a 10 km road that passes through three tunnels in sequence, with three bridges connecting the tunnels. The HPG mine can be accessed by 12 km paved road, south-west of the main office complex. The TLP, LME,

 

amcconsultants.comxvi
NI 43-101 Technical Report Update on the Ying Ag-Pb-Zn Property in Henan Province, People's Republic of China
 
Silvercorp Metals Inc.0723067

 

and LMW mines are approximately 15 km south-east of the main office complex and are accessed by paved road along the Chongyang River. A 1,756 m transportation ramp was built in 2020 from the TLP camp area to the DCG mine for ore haulage. The DCG mine can also be accessed by a 10.5 km paved road, south-southwest of the mills.

 

Domestic water for the SGX mine is sourced from the Guxian Reservoir, while water for the HPG, TLP, LME, LMW, HZG, and DCG mines is sourced from nearby creeks and springs. Water is regularly tested and reported test results indicate that its quality and quantity meet requirements. Mine production water for drilling and dust suppression is sourced from underground.

 

1.11Market studies and contracts

 

Contracts for underground mining operations are in place with several contracting firms, including Henan Sanyi Mine Construction Engineering Co. Ltd and Luoyang Xinsheng Mining Engineering Co. Ltd.

 

The QP understands that the lead and zinc concentrates are marketed to existing smelter customers in Henan and Shaanxi provinces and appropriate terms have been negotiated. All contracts have freight and related expenses to be paid by the smelter customers. The key elements of the smelter contracts are subject to change based on market conditions when the contracts are renewed each month; they may vary between smelters.

 

With respect to recently indicated concentrate terms, the QP notes that lead payability is somewhat higher than the global smelter industry norm of 95%, while zinc payability is lower than the norm of 85%. Silver payability of approximately 90 - 93% is in accord with the industry norm of 95% while gold of approximately 82 – 85% is lower than the norm of 95%.

 

1.12Environmental, permitting, social / community impact

 

Silvercorp has all the required permits for its operations on the Property. The existing mining permits cover all the active mining areas and, in conjunction with safety and environmental certificates, give Silvercorp the right to carry out full mining and mineral processing operations. Silvercorp has also obtained approvals and certificates for wastewater discharge locations at the SGX mine, the HPG mine, and the two current TSFs. All certificates must be renewed periodically.

 

The Environmental Impact Assessment (EIA) report of the Shimengou TSF (TSF 3), which is under construction, has been completed and approved by the Luoyang Branch of the Luoyang Ecological Environment Bureau. Also, the EIA report for the technical renovation and capacity expansion project of Mill Plant 2 has been delivered, with expected approval from the Luoyang branch of the Luoyang Ecological Environment Bureau by the end of July 2024.

 

There are no cultural minority groups within and around the Ying Property. The culture of the broader Luoning County is predominantly Han Chinese. No records of cultural heritage sites exist within or near the SGX, HZG, HPG, TLP, LME, LMW, and DCG mine areas. The surrounding land near the mines is used predominantly for agriculture. The mining area does not cover any natural conservation, ecological forests, or strict land control zones. Current vegetation in the project area is mainly secondary, including farm plantings. Larger wild mammals have not been found in the region. Small birds nesting and moving in the woodland are observed occasionally. The surrounding villagers raise domestic animals, such as chickens, ducks, pigs, sheep, goats, cows, etc.

 

Silvercorp has made a range of cash donations and contributions to local capital projects and community support programs, sponsoring university students, and undertaking projects such as road construction and school repairs, upgrading, and construction. Silvercorp has also made economic contributions in the form of direct hiring and retention of local contractors, suppliers, and

 

amcconsultants.comxvii
NI 43-101 Technical Report Update on the Ying Ag-Pb-Zn Property in Henan Province, People's Republic of China
 
Silvercorp Metals Inc.0723067

 

service providers. As of 31 December 2023, Silvercorp had donated over RMB101.28 million in cash or in kind.

 

The Ying operation has an environmental protection department consisting of six full-time staff. The full-time environment management personnel are mainly responsible for the environment management and rehabilitation management work in the Ying Property.

 

Environmental monitoring is undertaken for air and dust emissions, noise and wastewater. The monitoring work is completed by qualified persons and licensed institutes. For water environment monitoring, an intensive program has been developed and implemented, including once-a-quarter testing of surface water, mine water discharge, and domestic sewage water, and twice-a-year testing of the underground water near the mine and the tailings management facilities (TSFs) by the Luoyang Liming Testing Company. Mine water discharge and surface water are also tested monthly by the Yellow River Basin Environmental Monitoring Centre, an inter-provincial government organization.

 

Production activities on the Property are compliant with Chinese labour regulations. Formal contracts are signed for all full-time employees with wages well above minimum levels. The company provides annual medical surveillance and checks are conducted for its employees before, during, and after their employment with the Company. The Company does not use child or under-age labour.

 

Remediation and reclamation plans were developed during the project approval stage, including measures for project construction, operation, and closure. From 2016 through 2023, the Company spent approximately $11.5 million (M) on environmental protection, including dust control measures, wastewater treatment, solid waste disposal, under-drainage tunnel construction, soil and water conservation, noise control, ecosystem rehabilitation, and emergency response plans. In the same period, a land area of 580,367 square metres (m2) was planted with trees and grasses, as planned in the EIA; of this, 86,100 m2 of land was planted in 2022 and 50,200 m2 in 2023. Unused mining tunnels have been closed and rehabilitation coverage at all the mines has been undertaken.

 

Based on Chinese national regulatory requirements, Silvercorp will complete a site decommissioning plan at least one year before mine closure. Site rehabilitation and closure cost estimates will be made at that time.

 

1.13Capital and operating costs

 

An exchange rate of United States Dollar (US$)1 = 7.00 Chinese Yuan (RMB) is assumed for all capital and operating cost estimates.

 

Table 1.5 indicates anticipated capital expenditures on exploration and mine development; facilities, plant, and equipment; and general investment capital through to the projected end of mine life in 2038. The basis for calculating these capital costs is the LOM plan for mining and processing based on the 30 June 2024 Mineral Reserve estimates.

 

As of 30 June 2024, and separately allocated from the above, remaining capital expenditures for construction and commissioning of the extension to Mill Plant 2 and the first phase of the new TSF (TSF 3) - both expected to be complete by end of 2024 (FY2025Q3) – are, respectively, US$5.2M and US$10.3M. Inclusive of capital already spent, the final total estimates for the projects are, respectively, US$7.1M and US$23.6M.

 

The QP considers the projected capital costs to be reasonable relative to the planned exploration, development, mining, processing, and associated site facilities, equipment, and infrastructure.

 

amcconsultants.comxviii
NI 43-101 Technical Report Update on the Ying Ag-Pb-Zn Property in Henan Province, People's Republic of China
 
Silvercorp Metals Inc.0723067

 

Table 1.5Projected Ying LOM Capex (US$M)

 

Cost item Total LOM FY2025Q2-Q4 FY2026 FY2027 FY2028 FY2029 FY2030 FY2031 FY2032 FY2033 FY2034 FY2035 FY2036 FY2037 FY2038
SGX
Sustaining Capex                              
Exploration & mine development tunnelling 32.44 7.49 9.71 8.09 3.18 1.64 1.18 0.54 0.20 0.20 0.08 0.13 - - -
Facilities, Plant, and Equipment 27.91 1.33 2.01 2.20 2.21 2.21 2.21 2.19 2.21 2.21 2.21 2.19 1.92 1.55 1.26
Investment Capex 38.45 2.63 3.67 3.67 3.64 3.80 3.46 3.53 3.63 3.36 3.27 2.81 0.67 0.31 -
Total SGX Capex 98.80 11.45 15.39 13.96 9.03 7.65 6.85 6.26 6.04 5.77 5.56 5.13 2.59 1.86 1.26
HZG
Sustaining Capex                              
Exploration & mine development tunnelling 5.90 1.27 1.80 1.37 0.69 0.53 0.19 0.05 - - - - - - -
Facilities, Plant, and Equipment 0.90 0.11 0.15 0.15 0.15 0.15 0.12 0.07 - - - - - - -
Investment Capex 6.14 1.52 1.32 0.87 1.16 0.55 0.72 - - - - - - - -
Total HZG Capex 12.94 2.90 3.27 2.39 2.00 1.23 1.03 0.12 - - - - - - -
HPG
Sustaining Capex                              
Exploration & mine development tunnelling 13.75 4.07 2.45 1.96 1.30 1.05 0.90 0.95 1.07 - - - - - -
Facilities, Plant, and Equipment 2.02 0.17 0.29 0.28 0.28 0.29 0.28 0.22 0.21 - - - - - -
Investment Capex 5.68 0.84 1.01 1.01 0.90 0.75 0.39 0.40 0.38 - - - - - -
Total HPG Capex 21.45 5.08 3.75 3.25 2.48 2.09 1.57 1.57 1.66 - - - - - -
TLP
Sustaining Capex                              
Exploration & mine development tunnelling 26.34 6.27 4.10 4.05 3.21 1.69 2.02 1.67 1.15 0.87 0.81 0.50 - - -
Facilities, Plant, and Equipment 6.53 0.40 0.56 0.57 0.57 0.57 0.57 0.57 0.56 0.54 0.52 0.49 0.38 0.23 -
Investment Capex 19.89 2.24 2.58 3.14 3.07 3.20 1.92 1.39 1.09 0.71 0.30 0.25 - - -
Total TLP Capex 52.76 8.91 7.24 7.76 6.85 5.46 4.51 3.63 2.80 2.12 1.63 1.24 0.38 0.23 -
LME
Sustaining Capex                              
Exploration & mine development tunnelling 1.92 0.92 0.83 0.17 - - - - - - - - - - -
Facilities, Plant, and Equipment 2.57 0.12 0.14 0.24 0.23 0.22 0.23 0.23 0.24 0.23 0.23 0.23 0.23 - -
Investment Capex 19.66 1.98 2.71 2.69 2.48 1.91 1.91 1.93 1.72 1.32 0.69 0.32 - - -
Total LME Capex 24.15 3.02 3.68 3.10 2.71 2.13 2.14 2.16 1.96 1.55 0.92 0.55 0.23 - -
LMW
Sustaining Capex                              
Exploration & mine development tunnelling 9.22 3.37 2.80 0.75 0.42 0.39 0.12 0.45 0.45 0.35 0.12 - - - -
Facilities, Plant, and Equipment 10.60 0.77 0.97 0.97 0.96 0.96 0.96 1.03 0.95 0.96 0.95 0.87 0.25 - -
Investment Capex 9.60 1.74 2.24 1.58 1.20 0.85 0.73 0.59 0.47 0.20 - - - - -
Total LMW Capex 29.42 5.88 6.01 3.30 2.58 2.20 1.81 2.07 1.87 1.51 1.07 0.87 0.25 - -
DCG
Sustaining Capex                              
Exploration & mine development tunnelling 0.69 0.15 0.46 0.08 - - - - - - - - - - -
Facilities, Plant, and Equipment 0.93 0.22 0.26 0.25 0.20 - - - - - - - - - -
Investment Capex 0.40 0.24 0.16 - - - - - - - - - - - -
Total DCG Capex 2.02 0.61 0.88 0.33 0.20 - - - - - - - - - -
Ying Total
Sustaining Capex                              
Exploration & mine development tunnelling 90.31 23.55 22.15 16.47 8.81 5.31 4.41 3.67 2.87 1.42 1.02 0.63 - - -
Facilities, Plant, and Equipment 51.48 3.12 4.37 4.67 4.60 4.40 4.37 4.32 4.18 3.94 3.90 3.79 2.79 1.77 1.26
Investment Capex 99.82 11.18 13.69 12.97 12.45 11.06 9.13 7.85 7.29 5.58 4.26 3.38 0.67 0.31 -
Total Ying Capex 241.61 37.85 40.21 34.11 25.86 20.77 17.91 15.84 14.34 10.94 9.18 7.80 3.46 2.08 1.26

Note: Numbers may not compute exactly due to rounding.

 

amcconsultants.comxix
NI 43-101 Technical Report Update on the Ying Ag-Pb-Zn Property in Henan Province, People's Republic of China
 
Silvercorp Metals Inc.0723067

 

Major operating cost categories are mining, shipping, milling, G&A, product selling, Mineral Resources tax, and government fees and other taxes.

 

Silvercorp utilizes contract labour for mining on a rate per tonne or a rate per metre basis. The contracts include all labour, all fixed and mobile equipment, materials, and consumables, including fuel and explosives, which are purchased through the Company. Ground support consumables such as timber, and power to the portal areas are the responsibility of the Company.

 

Shipping costs are for moving ore from each mine to the processing plant.

 

The principal components of the milling costs are utilities (power and water), consumables (grinding steel and reagents), and labour, each typically about one third of the total cost.

 

G&A costs include an allowance for tailings dam operations and other environmental costs. Major capital on the two existing TSFs has already been expended and the remaining capital for bringing TSF 3 into operation is described above. Ongoing costs associated with progressively raising the dams with tailings are regarded as an operating cost. TSF 1 is projected to be complete by end-2024, TSF 2 by 2029. Operating costs for TSF 3 are projected to begin at the end of 2024.

 

As of 1 July 2016, the previous Mineral Resources tax was switched to a levy based on percentage of sales. The provision for Mineral Resources tax is approximately 3% of sales.

 

Table 1.6 summarizes projected LOM operating costs in US$, by mine, and for Ying as a whole.

 

The QP notes that the operating cost estimates are generally in close alignment with those used for Mineral Reserve COG determination. In the case of LMW, a lower unit mining cost/t projection may be seen as a reflection of nine of 13 new stopes using lower cost shrinkage, room and pillar, and longhole stoping methods, and a reduced ratio in mining support costs to stoping cost relative to recent years. Overall, the QP considers the operating cost estimates to be reasonable relative to the methods and technology used and the scale of operations envisaged over the LOM. Recent inflationary pressures on costs have also been noted and, while the projected annual production rate increases and the introduction of more mechanized mining can facilitate the achievement of costs around projected levels, a constant focus on operational efficiency and cost effectiveness will be essential.

 

amcconsultants.comxx
NI 43-101 Technical Report Update on the Ying Ag-Pb-Zn Property in Henan Province, People's Republic of China
 
Silvercorp Metals Inc.0723067

 

Table 1.6Projected Ying LOM Opex (US$M)

 

Cost item Total LOM FY2025Q2-Q4 FY2026 FY2027 FY2028 FY2029 FY2030 FY2031 FY2032 FY2033 FY2034 FY2035 FY2036 FY2037 FY2038 LOM unit costs
SGX $US/t
Mining 419.98 22.04 32.37 33.97 34.94 34.99 33.54 33.89 34.57 34.15 32.66 30.31 25.45 21.45 15.65 77.98
Shipping 20.21 0.96 1.45 1.60 1.60 1.60 1.60 1.59 1.60 1.60 1.60 1.59 1.39 1.12 0.91 3.75
Milling 58.90 2.80 4.24 4.65 4.66 4.66 4.66 4.63 4.67 4.67 4.66 4.63 4.06 3.26 2.65 10.94
G&A and product selling 57.30 2.72 4.12 4.52 4.53 4.54 4.54 4.50 4.55 4.54 4.53 4.51 3.95 3.17 2.58 10.64
Mineral Resources tax 34.03 2.13 3.10 3.05 2.79 2.66 2.68 2.61 2.53 2.54 2.52 2.39 2.06 1.67 1.30 6.32
Government fee and other taxes 15.10 0.72 1.09 1.19 1.19 1.19 1.19 1.19 1.20 1.20 1.19 1.19 1.04 0.84 0.68 2.80
Total SGX Opex 605.52 31.37 46.37 48.98 49.71 49.64 48.21 48.41 49.12 48.70 47.16 44.62 37.95 31.51 23.77 112.43
HZG  
Mining 35.02 4.40 6.17 5.98 5.44 5.91 4.48 2.64 - - - - - - - 72.04
Shipping 2.17 0.27 0.36 0.36 0.36 0.35 0.29 0.18 - - - - - - - 4.46
Milling 5.33 0.66 0.88 0.88 0.88 0.88 0.71 0.44 - - - - - - - 10.96
G&A and product selling 5.17 0.64 0.86 0.85 0.85 0.85 0.69 0.43 - - - - - - - 10.64
Mineral Resources tax 2.12 0.28 0.36 0.36 0.36 0.35 0.26 0.15 - - - - - - - 4.36
Government fee and other taxes 1.35 0.17 0.23 0.22 0.22 0.22 0.18 0.11 - - - - - - - 2.78
Total HZG Opex 51.16 6.42 8.86 8.65 8.11 8.56 6.61 3.95 - - - - - - - 105.24
HPG  
Mining 62.59 5.77 8.50 8.16 8.07 9.16 8.75 7.42 6.76 - - - - - - 75.26
Shipping 2.26 0.19 0.32 0.32 0.31 0.32 0.31 0.25 0.24 - - - - - - 2.72
Milling 9.10 0.78 1.29 1.27 1.27 1.28 1.25 1.00 0.96 - - - - - - 10.94
G&A and product selling 8.84 0.76 1.25 1.24 1.23 1.25 1.21 0.97 0.93 - - - - - - 10.63
Mineral Resources tax 2.70 0.18 0.42 0.38 0.37 0.42 0.40 0.29 0.24 - - - - - - 3.25
Government fee and other taxes 2.35 0.20 0.33 0.33 0.33 0.33 0.32 0.26 0.25 - - - - - - 2.83
Total HPG Opex 87.84 7.88 12.11 11.70 11.58 12.76 12.24 10.19 9.38 - - - - - - 105.63
TLP  
Mining 215.91 16.24 19.89 20.12 20.44 20.63 19.38 19.07 18.89 17.48 16.00 13.20 9.00 5.57 - 64.21
Shipping 10.47 0.64 0.89 0.92 0.92 0.92 0.92 0.92 0.89 0.86 0.83 0.79 0.61 0.36 - 3.11
Milling 36.79 2.25 3.14 3.23 3.23 3.23 3.23 3.23 3.13 3.03 2.91 2.78 2.13 1.27 - 10.94
G&A and product selling 35.78 2.19 3.05 3.14 3.14 3.14 3.14 3.14 3.05 2.95 2.83 2.70 2.08 1.23 - 10.64
Mineral Resources tax 13.21 0.85 1.18 1.25 1.29 1.29 1.23 1.15 1.03 1.05 0.95 0.93 0.67 0.34 - 3.93
Government fee and other taxes 9.44 0.58 0.80 0.83 0.83 0.83 0.83 0.83 0.80 0.78 0.75 0.71 0.55 0.32 - 2.81
Total TLP Opex 321.60 22.75 28.95 29.49 29.85 30.04 28.73 28.34 27.79 26.15 24.27 21.11 15.04 9.09 - 95.64
LME  
Mining 67.39 3.68 4.57 6.38 6.20 5.97 6.24 6.04 5.81 5.85 6.16 5.90 4.59 - - 73.93
Shipping 2.89 0.13 0.16 0.26 0.26 0.25 0.26 0.26 0.27 0.26 0.26 0.26 0.26 - - 3.17
Milling 9.95 0.45 0.56 0.91 0.89 0.85 0.90 0.89 0.93 0.89 0.89 0.90 0.89 - - 10.92
G&A and product selling 9.71 0.44 0.54 0.89 0.87 0.82 0.88 0.87 0.91 0.87 0.87 0.88 0.87 - - 10.65
Mineral Resources tax 4.26 0.18 0.26 0.38 0.38 0.37 0.39 0.42 0.42 0.38 0.40 0.36 0.32 - - 4.67
Government fee and other taxes 2.56 0.12 0.14 0.23 0.23 0.22 0.23 0.23 0.24 0.23 0.23 0.23 0.23 - - 2.81
Total LME Opex 96.76 5.00 6.23 9.05 8.83 8.48 8.90 8.71 8.58 8.48 8.81 8.53 7.16 - - 106.16

 

amcconsultants.comxxi
NI 43-101 Technical Report Update on the Ying Ag-Pb-Zn Property in Henan Province, People's Republic of China
 
Silvercorp Metals Inc.0723067

 

Cost item Total LOM FY2025Q2-Q4 FY2026 FY2027 FY2028 FY2029 FY2030 FY2031 FY2032 FY2033 FY2034 FY2035 FY2036 FY2037 FY2038 LOM unit costs
LMW  
Mining 121.94 9.15 12.18 12.04 12.72 12.10 12.12 11.19 10.36 9.62 9.83 8.27 2.36 - - 73.04
Shipping 5.39 0.39 0.49 0.49 0.49 0.49 0.49 0.52 0.49 0.49 0.48 0.44 0.13 - - 3.23
Milling 18.27 1.33 1.67 1.67 1.66 1.66 1.65 1.77 1.64 1.66 1.63 1.49 0.44 - - 10.94
G&A and product selling 17.76 1.29 1.62 1.63 1.61 1.62 1.60 1.72 1.60 1.61 1.59 1.45 0.42 - - 10.64
Mineral Resources tax 7.34 0.49 0.70 0.70 0.72 0.68 0.69 0.70 0.68 0.65 0.63 0.56 0.14 - - 4.40
Government fee and other taxes 4.67 0.34 0.43 0.43 0.42 0.43 0.42 0.45 0.42 0.42 0.42 0.38 0.11 - - 2.80
Total LMW Opex 175.37 12.99 17.09 16.96 17.62 16.98 16.97 16.35 15.19 14.45 14.58 12.59 3.60 - - 105.05
DCG  
Mining 7.89 2.40 2.06 1.94 1.49 - - - - - - - - - - 71.50
Shipping 0.37 0.09 0.10 0.10 0.08 - - - - - - - - - - 3.35
Milling 1.21 0.29 0.33 0.33 0.26 - - - - - - - - - - 10.97
G&A and product selling 1.17 0.28 0.32 0.32 0.25 - - - - - - - - - - 10.60
Mineral Resources tax 0.14 0.03 0.03 0.04 0.04 - - - - - - - - - - 1.27
Government fee and other taxes 0.30 0.07 0.08 0.08 0.07 - - - - - - - - - - 2.72
Total DCG Opex 11.08 3.16 2.92 2.81 2.19 - - - - - - - - - - 100.41
Ying Total  
Mining 930.72 63.68 85.74 88.59 89.30 88.76 84.51 80.25 76.39 67.10 64.65 57.68 41.40 27.02 15.65 72.95
Shipping 43.76 2.67 3.77 4.05 4.02 3.93 3.87 3.72 3.49 3.21 3.17 3.08 2.39 1.48 0.91 3.43
Milling 139.55 8.56 12.11 12.94 12.85 12.56 12.40 11.96 11.33 10.25 10.09 9.80 7.52 4.53 2.65 10.94
G&A and product selling 135.73 8.32 11.76 12.59 12.48 12.22 12.06 11.63 11.04 9.97 9.82 9.54 7.32 4.40 2.58 10.64
Mineral Resources tax 63.80 4.14 6.05 6.16 5.95 5.77 5.65 5.32 4.90 4.62 4.50 4.24 3.19 2.01 1.30 5.00
Government fee and other taxes 35.77 2.20 3.10 3.31 3.29 3.22 3.17 3.07 2.91 2.63 2.59 2.51 1.93 1.16 0.68 2.80
Total Ying Opex 1,349.33 89.57 122.53 127.64 127.89 126.46 121.66 115.95 110.06 97.78 94.82 86.85 63.75 40.60 23.77 105.77

Note: Numbers may not compute exactly due to rounding.

amcconsultants.comxxii
NI 43-101 Technical Report Update on the Ying Ag-Pb-Zn Property in Henan Province, People's Republic of China
 
Silvercorp Metals Inc.0723067
1.14Economic analysis

 

Although Silvercorp is a producing issuer and, therefore, does not require an economic analysis of the Ying Property for the purposes of this report, the QPs have considered it reasonable to include a high-level analysis to illustrate the potential economic impact relative to the latest Mineral Reserve estimation and the associated production schedule.

 

The following metal prices, costs (Ying averages over projected LOM) and exchange rate were used for the economic analysis:

 

·Gold price US$1,900/oz
·Silver price US$22/oz
·Lead price US$1.00/lb
·Zinc price US$1.15/lb
·Mining cost US$72.95/t
·Milling cost US$10.94/t
·Shipping US$3.43/t
·Mineral Resources tax US$5.00/t
·G&A US$10.64/t
·Government fees and other taxes US$2.80/t
·Sustaining and growth capital US$20.32/t
·Exchange rate US$1 = 7.00RMB

 

The QP notes that the gold, silver, and zinc metal prices used for the economic analysis are slightly higher than those used in the Ying COG calculations. The QP also notes that current spot metal prices at the time of writing of the Technical Report are: gold - $2,430/oz; silver - $30.89/oz; lead - $0.97/lb; zinc - $1.34/lb – with all but the lead price significantly higher than the prices used for the economic analysis.

 

Using the LOM production profile based on the 30 June 2024 Mineral Reserves, and the metal price and other assumptions shown above, pre-tax and post-tax cashflow projections have been generated. At a 5% discount rate, pre-tax and post-tax net present values (NPVs) of $896M and $699M, respectively, are projected. Over the LOM, 61.5% of the net revenue is projected to come from silver, 29.9% from lead, 5.0% from zinc, and 3.6% from gold.

 

Pre-tax NPV sensitivity was also examined (see Figure 1.1) over a +/- 30% change in Ag, Pb, and Zn metal prices, and in operating and capital costs.

 

 

NI 43-101 Technical Report Update on the Ying Ag-Pb-Zn Property in Henan Province, People's Republic of China
 
Silvercorp Metals Inc.0723067

 

Figure 1.1Ying pre-tax NPV sensitivity

 

Source: AMC, from Silvercorp data.

 

Most sensitivity is seen in silver price (the sensitivity would effectively be the same with variation in Ag grade) and, to a lesser extent, in operating cost. The NPV is moderately sensitive to lead price and only slightly sensitive to zinc price and capital cost.

 

The Ying mine complex is seen to be a very viable operation with a projected LOM through to 2038 based on only Proven and Probable Mineral Reserves. There remains significant potential to extend the LOM beyond 2038 via further exploration and development, particularly in areas with identified Inferred Resources.

 

1.15Recommendations

 

Other than for costs estimated below for exploration tunnelling and drilling – total US$26.68M and which is part of planned LOM capital expenditures, the QPs consider that implementation of the following recommendations will form part of the day-to-day operating cost of the Ying mines.

 

1.15.1Safety in general

 

Maintain indicated focus and measures employed related to mine and site safety, including implementation of a policy whereby the more stringent of either Chinese or Canadian safety

 

 

NI 43-101 Technical Report Update on the Ying Ag-Pb-Zn Property in Henan Province, People's Republic of China
 
Silvercorp Metals Inc.0723067

 

standards is employed. The QP notes that Silvercorp has gone beyond Chinese statutory requirements in certain areas of safety and the Company has indicated a continuing focus on production procedure safety improvement.

 

1.15.2Exploration

 

Continue exploration tunnelling and diamond drilling at the Ying Property. The exploration tunnelling is used to upgrade the drill-defined Resources to the Measured category, and the diamond drilling is used to expand and upgrade the previous drill-defined Resources, explore for new mineralized zones within the unexplored portions of vein structures, and test for the down-dip and along strike extensions of the vein structures. The proposed exploration work is as follows.

 

1.15.2.1SGX

 

Tunnelling:

 

·16,000 m exploration tunnelling on vein structures S1W, S1W2, S1W3, S1W5, S2, S2W, S2W1, S2W3, S4, S4E, S7, S7_1, S7_2, S7_3, S7W, S7W1, S7W3, S7W7, S8, S8E1, S8W, S14, S14_1, S14_2, S14E2, S16E1, S16W, S16W1, S18, S18_1, S18E2, S19, S19E, S19W, S21, S21E, S28, S31, S32, and S39 between levels 10 m and 710 m.

 

Drilling:

 

·40,000 m underground diamond drilling on vein structures S1, S1W, S1W2, S1W3, S1W5, S2, S2W, S2W1, S2W3, S4, S4E, S7, S7_1, S7_2, S7_3, S7W, S7W1, S7W3, S7W7, S8, S8E1, S8W, S14, S14_1, S14_2, S14E2, S16E1, S16W, S16W1, S18, S18_1, S18E, S18E2, S19, S19E, S19W, S21, S21E, S28, S31, S32, S35, and S39.

 

1.15.2.2HZG

 

Tunnelling:

 

·4,200 m exploration tunnelling on vein structures HZ11, HZ12, HZ15, HZ15W2, HZ20 series, HZ20E, HZ22, HZ22E, HZ22E2, HZ23, HZ25, HZ26, and HZ27 between levels 350 m and 890 m.

 

Drilling:

 

·5,000 m underground exploration drilling on vein structures HZ10, HZ11, HZ12, HZ15, HZ15W2, HZ20 series, HZ20E, HZ22, HZ22E, HZ22E2, HZ23, HZ25, HZ26, HZ27, and HZ27W.

 

1.15.2.3HPG

 

Tunnelling:

 

·4,500 m exploration tunnelling on major vein structures H3, H11, H11E, H12, H12_1, H13, H15, H15W, H16_1, H17E1, H17E2, H20W, H20W1, H31, H32, H51, X1, and X3 between levels 100 m and 7,100 m.

 

Drilling:

 

·25,000 m underground diamond drilling on vein structures H3, H4W1, H11, H11E, H12, H12_1, H13, H15, H15W, H16_1, H17E1, H17E2, H17W3, H20W, H20W1, H31, H32, H41, H42, H51, X1, and X3.

 

 

NI 43-101 Technical Report Update on the Ying Ag-Pb-Zn Property in Henan Province, People's Republic of China
 
Silvercorp Metals Inc.0723067

 

1.15.2.4LME

 

Tunnelling:

 

·15,000 m on vein structures LM2_1, LM2E, LM3 series, LM4, LM4E, LM4E2, LM5 series, LM6 series, LLM18, LM18W1, LM71, LM72, and LM73 between levels 400 m and 1,150 m.

 

Drilling:

 

·30,000 m underground diamond drilling on vein LM2_1, LM2E, LM3 series, LM4, LM4E, LM4E2, LM4W2, LM5 series, LM6 series, LLM18, LM18W1, LM18W3, LM60, LM61, LM71, LM72, LM73, and LM74.

 

1.15.2.5LMW

 

Tunnelling:

 

·6,200 m on vein structures LM7, LM7E, LM8, LM8_3, LM12, LM12_1, LM12_2, LM12_3, LM14, LM14_3, LM17, LM17W, LM17W1, LM19, LM21, LM24, LM26, LM28, LM32, LM41_1, LM41E, LM50, LM52, LM53, LM54, W1, W2, W2W1, W5, W6, W6E1, and W6W as well as their parallel subzones between levels 500 m and 1,100 m.

 

Drilling:

 

·25,000 m underground drilling LM7, LM7E, LM8, LM8_3, LM8_4, LM12, LM12_1, LM12_2, LM12_3, LM14, LM14_3, LM17, LM17W, LM17W1, LM17W2, LM19, LM19W1, LM21, LM24, Lm26, LM28, LM32, LM41_1, LM41E, LM50, LM52, LM53, LM54, LM56, W1, W2, W2W1, W5, W6, W6E1, W6W, W18, W18E, W18W, and W18W1 and their parallel vein structures.

 

1.15.2.6TLP

 

Tunnelling:

 

·17,000 m exploration tunnelling on vein structures T1 series, T2 series, T3 series, T4, T5, T11, T11E, T12, T14, T14E1, T14_1, T15 series, T16 series, T17, T17E, T17W, T21, T21E, T22 series, T23, T23W, T26, T26E, T27, T28, T30, T31, T31W, T31W1, T33 series, T35E, T35E1, T39, T39E, and T39W between levels 450 m and 1,120 m.

 

Drilling:

 

·65,000 m underground drilling on vein structures T1 series, T2 series, T3 series, T4, T5, T11, T11E, T12, T14, T14E1, T14_1, T15 series, T16 series, T17, T17E, T17W, T21, T21E, T22 series, T23, T23W, T26, T26E, T27, T28, T30, T31, T31W, T31W1, T33 series, T35, T35E, T35E1, T39, and T39W.

 

1.15.2.7DCG

 

Tunnelling:

 

·800 m exploration tunnelling on vein structures C7_1, C7_2, C8, C8E1, C9, and C9_1E between levels 750 m and 850 m.

 

Drilling:

 

·2,000 m underground drilling on vein structures C7_1, C7_2, C7_4, C8, C8E1, C9, C9_1E, and C9W2.

 

 

NI 43-101 Technical Report Update on the Ying Ag-Pb-Zn Property in Henan Province, People's Republic of China
 
Silvercorp Metals Inc.0723067

 

The estimated cost for the above exploration work is:

 

·Tunnelling: RMB 152,500,000 (US$21.79M)
·Drilling: RMB 34,200,000 (US$4.89M)

 

1.15.3Drilling

 

The QP recommends the following:

 

·The procedures used in 2020 density measurement for SGX should be independently reviewed and modified, if necessary.
·All density samples should be geologically described, with particular attention to the degree of oxidation and the presence or absence of vughs or porosity.
·The minimum size of the density samples should be 1 kilogram (kg). The part of the sample that is selected for assaying should be as representative of the mineralization in the part used for density measurement as possible. Assaying of the density sample itself is preferable but only if the wax does not lead to problems with assay sample preparation.
·The regression models are likely to be improved for some samples by inclusion of assays for copper and iron. In samples with a significant content of chalcopyrite, freibergite, pyrite, or hematite, these minerals may make a significant contribution to the overall density of the samples.
·Record if density samples are oxidized or not.
·HZG and DCG are underrepresented in the current density data. Further sampling of these deposits is required.

 

1.15.4Sample preparation, analyses, and security

 

1.15.4.1Laboratories

 

·Laboratories should be chosen based on similar protocols, or protocols should be standardized between laboratories where possible.

 

1.15.4.2CRMs

 

·Revise protocols so that CRMs are inserted using a systematic approach at a rate of one CRM in every 20 samples (5%) for both drilling and underground samples. Consider implementation of practices such as assigning CRM samples in the sample tag books prior to actual sampling, so that CRM samples occur regularly and within each batch of samples.
·Ensure that CRM results are monitored in a ‘real-time’ basis and ensure that sample batches where CRMs return results outside of two standard deviations, or one CRM outside of three standard deviations are investigated and reanalyzed.
·Maintain a ‘table of fails’ which documents the remedial action completed on any failed batch.
·Implement a system whereby the original assays of failed batches are retained in the sample database and available for audit.
·Consider implementing the review of CRM (and QA/QC) samples for all mines collectively, in addition to the present practice of reviewing QA/QC samples separately at each mine. Given that CRMs and laboratories are common to all mines this will provide additional data to monitor laboratory performance and trends.
·Issues of data bias (both positive and negative) as well as analytical drift should be further investigated including the standardization of sample preparation and analysis methods between all labs.
·Ensure that all laboratories are running their own internal CRMs to monitor performance. If possible, internal laboratory QA/QC data should be acquired in real time and incorporated into the Silvercorp database. This provides additional data to monitor analytical drift and bias.

 

 

NI 43-101 Technical Report Update on the Ying Ag-Pb-Zn Property in Henan Province, People's Republic of China
 
Silvercorp Metals Inc.0723067

 

·Attempt to standardize the crush methodology, crush sub-sampling method, and sample size, lower and upper detection limits and overlimit techniques that are utilized by the various laboratories.
·Investigate the availability of CRMs certified by two-acid versus four-acid digestion.
·Consider developing several custom Ying specific CRMs. Several CRM suppliers can create CRM from surplus coarse reject material and provide relevant certification and documentation. This may help to reduce the number of CRMs required and would also provide CRMs with matrix matched to the Ying deposits.
·Consider adding a CRM that monitors low grade zinc (less than (<) 0.2%).

 

1.15.4.3Blanks

 

·Send a batch of coarse blank samples to several laboratories to enable statistics on grade distribution of Ag, Pb, and Zn of the blank source material to be determined. This should be completed for each quarry site to ensure the source has sufficiently low Ag, Pb, Zn, and Au concentrations. If blank materials from different quarry sites are used, each blank material should be given an identification so that the source can be traced.
·Revise protocols so that blanks are inserted using a systematic approach at a rate of at least one blank in every 25 samples (4%) for both drilling and underground samples.
·Insert blanks immediately after expected high-grade mineralization.
·Implement the use of both coarse and fine (pulp) blank material to enable sample preparation and analytical processes to be monitored for contamination.
·Ensure that all laboratories are running their own internal blanks to monitor contamination. If possible, internal laboratory QA/QC data should be acquired in real time and incorporated into the Silvercorp database.
·Investigate if detection limits and analytical methods can be standardized between labs to ensure blank material is performing consistently.
·Implement the monitoring of blank results in real-time and ensure that sample batches with blanks exceeding failure limits are investigated and reanalyzed.
·Maintain a ‘table of fails’ which documents the remedial action completed on any failed batch.
·Implement a system whereby the original assays of failed batches are retained in the sample database and available for audit.
·Submit pulp duplicate samples for analysis to enable practical detection limits to be determined for each laboratory.

 

1.15.4.4Duplicates

 

·Duplicates insertion rates should be increased to 5 - 6% of total samples submitted and should comprise field duplicates, coarse crush duplicates and pulp duplicates. The collection of duplicates at different stages of the sampling process will enable the source of sampling variance to be understood.
·Investigate the cause of poor field duplicate performance in both core and underground samples. This could include a test phase that incorporates the following:
¾Submitting the second half of the core, instead of quarter core as the field duplicates (if required, a thin slice of core could be sliced off and retained for archival storage before cutting the core into halves).
¾Consider increasing the size of underground samples.

 

 

NI 43-101 Technical Report Update on the Ying Ag-Pb-Zn Property in Henan Province, People's Republic of China
 
Silvercorp Metals Inc.0723067

 

1.15.4.5Umpire samples

 

·Select a single third-party laboratory to act as the umpire laboratory.
·Submit a random selection of pulp samples to the umpire laboratory on a regular basis, with CRMs, blanks, and duplicates. This is to assess the performance of the batch at the umpire laboratory.
·Increase umpire sampling submissions to 4 - 5% of all samples collected.

 

1.15.4.6General recommendations

 

·Laboratory protocols for sample preparation and analysis should be standardized where possible.
·Insertion rates for all QA/QC sample types should be increased to conform with generally accepted industry standards. QA/QC samples should be included with every batch of samples submitted to the laboratory.
·Insert QA/QC samples randomly within sample batches as opposed to the present practice of consistently inserting consecutive CRMs, blanks, and duplicates. This will make it more difficult for the laboratory to pre-determine the QA/QC types.
·Investigate whether internal laboratory QA/QC data is available, and whether these can be reviewed in addition to Silvercorp data.
·Populate and utilize the planned implementation of a commercial drillhole database with QA/QC capability.
·Ensure that QA/QC sample results are monitored in a real-time basis and remedial actions taken as soon as possible.
·Maintain and report a ‘table of fails’ which documents the remedial action completed on any failed batch.
·Implement a system whereby the original assays of failed batches are retained in the sample database and available for audit.
·Consider implementing the review of QA/QC samples for all mines collectively, in addition to the present practice of reviewing QA/QC samples separately at each mine. Given that laboratories are common to all mines this will provide additional data to monitor laboratory performance and trends.
·Standardize the coding of batch IDs for all samples (including QA/QC samples) to allow for the review of data on a batch basis.

 

1.15.5Data verification

 

·Consider centralizing and standardizing all mine databases to reduce duplicate data and minimize version control issues. Rules or lookup tables should be set to ensure data is valid prior to upload.
·Establish standard dataset boundaries for each mine, including overlaps as required.
·Ensure assay data is recorded without rounding to accurately reflect the original assay certificates.
·Establish a protocol for the consistent treatment of samples with analytical results below the lower limit of analytical detection (LLD).
·Undertake further random assay checks of the channel sample database and make corrections as appropriate.
·Establish a protocol to ensure unsampled intervals are consistently recorded in the database.
·Ensure that when a sample ID is on two certificates there is a documented rationale and flag for what assays are used for the Mineral Resources.

 

 

NI 43-101 Technical Report Update on the Ying Ag-Pb-Zn Property in Henan Province, People's Republic of China
 
Silvercorp Metals Inc.0723067

 

·Ensure that date fields are populated in a consistent format within the assay database. All dates should be checked for validity and corrected as required. Missing dates should be corrected using historical records or by cross-referencing drill dates, samples dates, and assay dates.
·Duplicated drillhole and channel Hole IDs should be addressed to allow the Ying database to be audited as a whole. Develop procedures to ensure Hole IDs and Sample IDs are unique for each deposit.
·Store QA/QC data within the database and ensure that Certificate (batch) IDs are consistent between sample and QA/QC data.

 

1.15.6Mineral Resource

 

1.15.6.1Estimation process

 

·Continue to standardize modelling and estimation protocols at all mines to facilitate efficient model auditing.
·Establish clear responsibilities for key personnel during the Mineral Resource estimation process. This should include a rigorous internal peer review of all inputs including input databases, 3D vein / domain models, as-built and sterilization triangulations, classification wireframes etc. This internal review process could include something as structured as a formal internal data sign-off at each key stage of the modelling process.
·Ensure that vein models are appropriate for use as estimation domains in the context of established parameters (e.g. hard boundary search neighbourhood). Disparate veins in similar stratigraphic positions, considered within the mining context as the same vein, may need to be separated into separate domains (different vein domain names). Conversely, spatially related veins with minor fault offsets may be grouped into single domains (same vein domain name). This will enable blocks to be informed by appropriate data and eliminate boundary artefacts in the resulting block model.

 

1.15.6.2Resource database

 

·Finalize the migration of all Mineral Resource datasets to the central Micromine Geobank database and implement data validation checks as discussed in Sections 11 and 12.
·Create fields within the database to identify any drillhole or channel samples that should be excluded from the Mineral Resource. Documentation of why any data are excluded should be maintained and provided to any external QPs completing work on the project.
·Consider standardizing the translation of Chinese vein names to English vein names to ensure consistency between successive (i.e. yearly) Mineral Resource updates. This will allow more detailed comparisons of individual block models on a vein-by-vein basis. This could also be accomplished through a tracking document which records successive names for the same vein.

 

1.15.6.3Density for resources

 

·Collect significant additional samples for bulk density determination at all deposits from both vein (across all grade ranges) and wallrock materials.
·Density sampling programs should incorporate QA/QC including appropriately manufactured or sourced standards.
·Store bulk density data within the central database.

 

1.15.6.4Vein modelling

 

·Develop standardized procedures for vein modelling across all deposits for the purpose of Mineral Resource estimation. This should encompass standards that cover how far to

 

 

NI 43-101 Technical Report Update on the Ying Ag-Pb-Zn Property in Henan Province, People's Republic of China
 
Silvercorp Metals Inc.0723067

 

extrapolate veins from known mineralization, criteria for combining (or splitting) veins into a single estimation domain and minimum vein width criteria.

·Increase the number of vertices during wireframe construction to increase the resolution of triangulations, and to prevent deleterious triangle artefacts in veins with highly variable or sparse data density. Investigate possible advanced vein modelling tools such as implicit modelling to create more appropriate and robust vein wireframes.
·Where appropriate, clip intersecting veins using wireframe Boolean tools.
·Adjust wireframing processes to reduce wireframes pinching out to thicknesses of less than 0.4 m between data.
·Ensure all vein models are peer-reviewed prior to Mineral Resource estimation.

 

1.15.6.5Block modelling

 

·Maintain a consistent model definition process (i.e. X and Y in the plane of mineralization and Z across vein thickness).
·Round model prototype origins to the nearest 100 m to simplify software compatibility.
·Investigate whether subcell size can be decreased to at least 0.1 m across the thickness of the vein and to 1 m along strike and down dip for all models to improve accuracy of depletion coding.
·Incorporate an assessment of the quality of the geological model, grade continuity, and quality of estimates in addition to the established geometric criteria used for Mineral Resource classification. Use classification to manage:
¾Volumetric / geometric inconsistencies.
¾Grade blow outs.
¾High variance domains with consequential low confidence estimates.
¾Spatial offsets.
·During resource classification coding, ensure that ‘cookie cutter’ coding wireframes are orthogonal to the strike / dip of vein models.
·As-builts should be used in addition to any ‘cookie cutter’ wireframe built in the longitudinal plane to ensure that raises and crosscut drives are appropriately coded and depleted.
·Consider implementing quarterly reviews to identify non-recoverable portions of the Mineral Resource.

 

1.15.7Mineral processing

 

·Undertake periodic mill audits aimed at ensuring optimum process control and mill performance.
·Continue with targeting of improvements on processing systems and auxiliary facilities to enhance metal recovery and reduce energy consumption.
·Ensure that tight control is exercised over final construction and commissioning of the Mill Plant 2 expansion, and for the changeover period as Mill Plant 1 is phased out.

 

1.15.8Tailings storage facilities

 

QP note: Initial responses from Silvercorp to the following recommendations are included in Section 18.1 of the Technical Report.

 

·Consideration should be given to the adoption of more stringent hydrological design criteria for all three facilities, adopting a more extreme Inflow Design Flood than the presently adopted 1:500-year or 1:1,000-yr events.

 

 

NI 43-101 Technical Report Update on the Ying Ag-Pb-Zn Property in Henan Province, People's Republic of China
 
Silvercorp Metals Inc.0723067

 

·A reassessment of the slope stability analysis for the existing facilities should be undertaken, using up to date methods of analyses and considering all appropriate loading conditions. Initially, this should entail a rigorous review of all data obtained from field and laboratory testing with a particular focus on the identification of contractive materials based on the results of cone penetrometer test (CPTu) data. Undrained limit equilibrium analyses should be conducted. Depending on the results of this review and the undrained analyses, more complex methods of analyses may be required using advanced numerical models, i.e., non-linear deformation analyses (NDA).
·For TSF 3, consideration should be given to the installation of an underdrainage system, installed above the HDPE basin liner in the area immediately upstream of the starter dam. The aim of this system would be to facilitate the drainage of the tailings mass on which subsequent upstream raises would be constructed.

 

1.15.9Surface roads and transportation
·Assess all roads in steep slope areas and take appropriate action to offset risk in any sections that lack road safety barriers and / or where there may be potential for slope failures.
·For road transportation in general at the Ying property, continue to ensure that appropriate safety protocols are in place and adhered to.
1.15.10Mining
·For internal planning and forecasting and for external reporting, continue with efforts to fully integrate the Resource estimation, Reserve estimation, and mine planning processes.
·Continue the focus on dilution and grade control and implementation of best mining practices via the Mining Quality Control Department. This will be fundamental to achieving Mineral Reserve grades over the Ying LOM while also producing ore at significantly increased rates.
·Maintain a major and continual focus on mine planning and control in general – particularly of dilution aspects as noted above, but also with respect to personnel numbers and capabilities, and on mechanized equipment maintenance.
·Ensure that geotechnical understanding and planning is at the forefront of implementing and maintaining safe ground control in all the Ying mines.
·Continue with the plan to introduce more advanced technology at the Ying operations, while developing and implementing all necessary operating and safety measures related to the use of more mechanized equipment and new mining methods. This introduction brings additional safety considerations, with specific training and enforced protocols and operating practices being required. Equipment operating around open brows, remote mucking practices and operator protection, and provision of safety bays and adequate equipment clearances relative to drift widths are specific examples of aspects to be addressed. The QP acknowledges the Silvercorp indication of training implementation and that all current tasks in the Ying operation have been assessed and standardized for safe production.
·Maintain a high degree of development scheduling and control throughout the Ying operation. In this regard, achievement of development projections, particularly in the next few years, will be a key contributor to the planned production increases.
·For the newly planned longhole mining at LMW, a comprehensive program to monitor drilling and blasting performance against design, inclusive of regular cavity monitoring surveys, is recommended to be applied. With a view to optimizing longhole performance in general - and particularly regarding safety, production rate and dilution - engagement of specialist guidance is recommended. This would include advice on stope access and design, equipment, operating protocols, drill and blast design, geotechnical assessment and ground support – particularly around brows and hangingwalls, and backfilling.

 

NI 43-101 Technical Report Update on the Ying Ag-Pb-Zn Property in Henan Province, People's Republic of China
 
Silvercorp Metals Inc.0723067
·For room and pillar mining, ensure design and operating practices include geotechnical and support assessment, and result in adequate pillar stability and stable backs, both locally and in the wider room and pillar areas.
·For the predominant resuing and shrinkage mining methods, maintain a high degree of process control on design, drilling, and blasting. This will be critical to achieving dilution targets.
·Again, with respect to longhole mining, consider a more widespread application of the methodology in appropriate areas, with a view to further increasing stope production rates. In undertaking such, it must be recognized that design and blasting practices aimed at dilution control will require yet more focus.
·Engage specialist guidance on paste backfill, including for recipes, binder type and usage, appropriate strength requirements and achievement over time, testing protocols, delivery system, and placement.
·With what is anticipated to be an increasing use of diesel equipment, ensure that regulatory and best practice ventilation standards are maintained, including with respect to noxious gases and diesel particulate matter (DPM) concentrations.
·Particularly for room and pillar and longhole mining, monitor and assess ore recovery factors against current projections.
·Maintain the focus on stockpiling and record keeping procedures, and on assessing all aspects of reconciliation performance between mine and mill.
·Where viable and safe, continue to consider placement of waste material into stope voids for all appropriate mining methods.
·Maintain a constant focus on operational efficiency and cost effectiveness. Recognizing cost inflation pressures, such a focus will be essential, despite projected annual production rate increases and the introduction of more mechanized mining offering the achievement of costs around projected LOM levels.
·For the longer term, consider the use of electric mining vehicles at the Ying operations.

 

NI 43-101 Technical Report Update on the Ying Ag-Pb-Zn Property in Henan Province, People's Republic of China
 
Silvercorp Metals Inc.0723067

Contents

1 Summary iii
  1.1 Introduction iii
  1.2 Geology, exploration, and Mineral Resources iii
  1.3 Comparison of Mineral Resources, 31 December 2021 and 30 June 2024 vii
  1.4 Mining and Mineral Reserves vii
  1.5 Reconciliation x
  1.6 Comparison of Mineral Reserves, 31 December 2021 to 30 June 2024 xi
  1.7 Life-of-mine plan xii
  1.8 Metallurgical testwork and processing xiv
  1.9 Personnel xv
  1.10 Main infrastructure, including tailings dams xv
  1.11 Market studies and contracts xvii
  1.12 Environmental, permitting, social / community impact xvii
  1.13 Capital and operating costs xviii
  1.14 Economic analysis xxiii
  1.15 Recommendations xxiv
    1.15.1 Safety in general xxiv
    1.15.2 Exploration xxv
      1.15.2.1 SGX xxv
      1.15.2.2 HZG xxv
      1.15.2.3 HPG xxv
      1.15.2.4 LME xxvi
      1.15.2.5 LMW xxvi
      1.15.2.6 TLP xxvi
      1.15.2.7 DCG xxvi
    1.15.3 Drilling xxvii
    1.15.4 Sample preparation, analyses, and security xxvii
      1.15.4.1 Laboratories xxvii
      1.15.4.2 CRMs xxvii
      1.15.4.3 Blanks xxviii
      1.15.4.4 Duplicates xxviii
      1.15.4.5 Umpire samples xxix
      1.15.4.6 General recommendations xxix
    1.15.5

Data verification

xxix
    1.15.6

Mineral Resource

xxx
      1.15.6.1 Estimation process xxx
      1.15.6.2 Resource database xxx
      1.15.6.3 Density for resources xxx
      1.15.6.4 Vein modelling xxx
      1.15.6.5 Block modelling xxxi
    1.15.7 Mineral processing xxxi
    1.15.8 Tailings storage facilities xxxi
    1.15.9 Surface roads and transportation xxxii
    1.15.10 Mining xxxii
2 Introduction 49
3 Reliance on other experts 52
4 Property description and location 53
  4.1 Property location 53
  4.2 Ownership 53
  4.3 Mining licenses 54

 

NI 43-101 Technical Report Update on the Ying Ag-Pb-Zn Property in Henan Province, People's Republic of China
 
Silvercorp Metals Inc.0723067

  4.4 Prospecting licenses 56
       
5 Accessibility, climate, local resources, infrastructure, and physiography 57
     
6 History 59
  6.1 Introduction 59
  6.2 Drilling 59
  6.3 Ownership and production 59
  6.4 Historical Mineral Resource and Mineral Reserve estimates 60
       
7 Geological setting and mineralization 61
  7.1 Regional geology 61
  7.2 Property geology 62
  7.3 Mineralization 63
    7.3.1 Overview 63
    7.3.2 SGX area 64
    7.3.3 HZG area 68
    7.3.4 HPG area 70
    7.3.5 TLP and LM area 72
    7.3.6 DCG area 75
         
8 Deposit types 77
     
9 Exploration 78
  9.1 Introduction 78
  9.2 Summary of tunnelling prior to 2022 78
  9.3 Tunnelling progress 2022 - 2023 80
  9.4 SGX 81
  9.5 HZG 84
  9.6 HPG 85
  9.7 TLP 87
  9.8 LME 89
  9.9 LMW 91
  9.10 DCG 92
       
10 Drilling 94
  10.1 Drilling summary 94
  10.2 Summary of results for 2022 - 2023 95
  10.3 Discussion of results by mine / deposit 96
    10.3.1 SGX 96
    10.3.2 HZG 98
    10.3.3 HPG 98
    10.3.4 TLP 100
    10.3.5 LME 102
    10.3.6 LMW 103
    10.3.7 DCG 105
  10.4 Plans and sections 105
  10.5 Bulk density measurements and results 105
    10.5.1 Measurements and results 105
    10.5.2 Recommendations on bulk density 107
  10.6 Drilling procedures 107
  10.7 Conclusions 107
       
11 Sample preparation, analyses, and security 108
  11.1 Introduction 108
  11.2 Sampling 108
    11.2.1 Introduction 108

 

NI 43-101 Technical Report Update on the Ying Ag-Pb-Zn Property in Henan Province, People's Republic of China
 
Silvercorp Metals Inc.0723067

    11.2.2 Drillhole sampling 108
    11.2.3 Underground sampling 109
    11.2.4 Sample shipment and security 109
  11.3 Sampling preparation and analysis 110
    11.3.1 Laboratory protocols 111
      11.3.1.1 Discussion on laboratory protocols 113
  11.4 Quality Assurance / Quality Control 114
    11.4.1 Overview 114
    11.4.2 Certified Reference Materials 116
      11.4.2.1 Discussion on CRMs (2022 - 2023) 117
      11.4.2.2 Discussion on CRMs (2010 - 2021) 125
      11.4.2.3 Recommendations for CRMs 126
    11.4.3 Blank samples 126
      11.4.3.1 Discussion on blanks (2022 - 2023) 127
      11.4.3.2 Discussion on blanks (2010 - 2021) 130
      11.4.3.3 Recommendations on blanks 130
    11.4.4 Duplicate samples 131
      11.4.4.1 Discussion on duplicates (2022 – 2023) 131
      11.4.4.2 Discussion on duplicates (2010 - 2021) 134
      11.4.4.3 Recommendations on duplicates 134
    11.4.5 Umpire (check) samples 135
      11.4.5.1 Discussion on umpire samples (2022 - 2023) 135
      11.4.5.2 Discussion on umpire samples (2012 - 2021) 139
      11.4.5.3 Recommendations on umpire samples 139
  11.5 General recommendations 140
  11.6 Conclusions 140
       
12 Data verification 141
  12.1 Site inspections 141
  12.2 Assay data verification 142
    12.2.1 Work completed by the QP 142
    12.2.2 QP observations on assay data verification 144
  12.3 Verification of other data 145
  12.4 Recommendations 145
  12.5 Conclusions 146
       
13 Mineral processing and metallurgical testing 147
  13.1 Introduction 147
  13.2 Mineralogy 147
    13.2.1 SGX mineralization 148
    13.2.2 TLP mineralization 149
    13.2.3 HPG mineralization 150
  13.3 Metallurgical samples 150
    13.3.1 SGX mineralization 150
    13.3.2 TLP mineralization 151
    13.3.3 HPG mineralization 151
  13.4 Metallurgical testwork 151
    13.4.1 SGX mineralization 152
    13.4.2 TLP mineralization 153
    13.4.3 HPG mineralization 154
    13.4.4 HZG mineralization 156
    13.4.5 Grind size optimization 156
  13.5 Concentrate quality considerations 156
  13.6 Grindability testwork 157

 

NI 43-101 Technical Report Update on the Ying Ag-Pb-Zn Property in Henan Province, People's Republic of China
 
Silvercorp Metals Inc.0723067

  13.7 Ore sorting trials 158
  13.8 Summary of testwork outcomes 159
       
14 Mineral Resource estimates 160
  14.1 Introduction 160
  14.2 Data used 162
  14.3 Geological interpretation 163
  14.4 Input data for estimation 167
    14.4.1 Sample flagging 167
    14.4.2 Sample compositing 167
    14.4.3 Grade capping 168
  14.5 Block model 172
    14.5.1 Block model parameters 172
    14.5.2 Density 172
  14.6 Grade estimation 172
    14.6.1 Mining depletion 173
  14.7 Mineral Resource classification 174
  14.8 Block model validation 176
  14.9 Minimum mining width 182
  14.10 Mineral Resource estimates 182
  14.11 Risks 186
  14.12 Comparison with Mineral Resource estimate as of 31 December 2021 187
  14.13 General comments and recommendations 189
       
15 Mineral Reserve estimates 191
  15.1 Introduction and Mineral Resources base 191
  15.2 Mineral Reserve estimation methodology 191
  15.3 Cut-off grades 191
    15.3.1 Comment on cut-off grades 193
  15.4 Dilution and recovery factors 193
    15.4.1 Dilution 193
    15.4.2 Mining recovery factors 194
  15.5 Mineral Reserve estimate 194
  15.6 Reserves sensitivity to cut-off grade 196
  15.7 Conversion of Mineral Resources to Reserves 196
  15.8 Comparison of Mineral Reserves, end-2021 to 30 June 2024 197
       
16 Mining methods 201
  16.1 Ying mining operations 201
    16.1.1 Introduction 201
    16.1.2 SGX 202
    16.1.3 HZG 203
    16.1.4 HPG 203
    16.1.5 TLP 204
    16.1.6 LME 204
    16.1.7 LMW 205
    16.1.8 DCG 205
  16.2 Mining methods and mine design 206
    16.2.1 Geotechnical and hydrogeological considerations 206
    16.2.2 Development and access 206
    16.2.3 Mining methods 210
      16.2.3.1 Shrinkage stoping 210
      16.2.3.2 Resue stoping 212
      16.2.3.3 Step room and pillar mining method 214
      16.2.3.4 Longhole mining 216

 

NI 43-101 Technical Report Update on the Ying Ag-Pb-Zn Property in Henan Province, People's Republic of China
 
Silvercorp Metals Inc.0723067

      16.2.3.5 Stope management and grade control 217
    16.2.4 Ore and waste haulage 218
    16.2.5 Equipment 219
      16.2.5.1 Mine equipment 219
      16.2.5.2 Equipment advance rates 220
    16.2.6 Personnel 221
    16.2.7 Ventilation 223
      16.2.7.1 SGX primary ventilation 223
      16.2.7.2 Secondary ventilation 224
    16.2.8 Backfill   225
    16.2.9 Dewatering 226
      16.2.9.1 SGX dewatering 227
      16.2.9.2 HZG dewatering 228
      16.2.9.3 HPG dewatering 228
      16.2.9.4 TLP dewatering 228
      16.2.9.5 LME dewatering 228
      16.2.9.6 LMW dewatering 228
      16.2.9.7 DCG dewatering 229
    16.2.10 Water supply 229
    16.2.11 Power supply 229
    16.2.12 Compressed air 230
      16.2.12.1 Explosives 230
    16.2.13 Communications 230
  16.3 Safety 231
  16.4 Development and production quality control 232
  16.5 Production and scheduling 233
    16.5.1 Development schedule 233
    16.5.2 Mines production 235
      16.5.2.1 Production rate 235
      16.5.2.2 Mine production: 31 Dec 2021 to 31 March 2024 236
      16.5.2.3 Ying LOM production planning 237
      16.5.2.4 Ying LOM production schedule 237
  16.6 Reconciliation 240
  16.7 Mining summary 241
       
17 Recovery methods 243
  17.1 Introduction 243
  17.2 Ore supply and concentrate production from Ying Property mines 243
    17.2.1 Ore supply 243
    17.2.2 Ore composition per mine 245
    17.2.3 Concentrate production by mine in FY2024 245
    17.2.4 Concentrate quality and metal recovery (average) FY2019 – FY2024 246
    17.2.5 Impact of ore type on concentrate quality and metal recovery (FY2024) 248
    17.2.6 Ore supply by plant 250
    17.2.7 LOM mill feed schedule 252
  17.3 Mill Plant 1 (Xiayu) 254
    17.3.1 Process flowsheet 254
    17.3.2 Process description 256
      17.3.2.1 Crushing 256
      17.3.2.2 Milling / classification (two trains) 257
      17.3.2.3 Gravity separation (one train) 257
      17.3.2.4 Flotation (one train) 257
      17.3.2.5 Product concentrating, filtration, and handling 257

 

NI 43-101 Technical Report Update on the Ying Ag-Pb-Zn Property in Henan Province, People's Republic of China
 
Silvercorp Metals Inc.0723067
      17.3.2.6 Tailings thickening 258
    17.3.3 Metallurgical performance (Plant 1) 258
  17.4 Mill Plant 2 (Zhuangtou) 259
    17.4.1 Flowsheet 261
    17.4.2 Process description 261
      17.4.2.1 Crushing 261
      17.4.2.2 Milling classification 261
      17.4.2.3 Flotation 261
      17.4.2.4 Product concentrating, filtration and handling 261
      17.4.2.5 Tailings thickening 262
    17.4.3 Metallurgical performance (Plant 2) 262
    17.4.4 Sampling (for Plants 1 and 2) 263
  17.5 Mill Plant 2 expansion 263
    17.5.1 Flowsheet 263
    17.5.2 Process description 263
    17.5.3 Designed metallurgical performance 264
  17.6 Process control 265
  17.7 Ancillary facilities 265
    17.7.1 Laboratory 265
    17.7.2 Maintenance workshops 266
  17.8 Key inputs 266
    17.8.1 Power 266
    17.8.2 Water usage and mass balance for Plant 1 and Plant 2 266
      17.8.2.1 Water for Plant 1 266
      17.8.2.2 Water for Plant 2 266
      17.8.2.3 Water for Plant 2E 266
      17.8.2.4 Strategy to reduce fresh-water usage 266
    17.8.3 Reagents 267
  17.9 Conclusions 267
       
18 Project infrastructure 268
  18.1 Tailings Management Facilities (TSF) 268
    18.1.1 Overview 268
    18.1.2 Facility 1 & 2 description 269
      18.1.2.1 Confining dams 269
      18.1.2.2 Facilities operation and management 273
      18.1.2.3 Surveillance – Monitoring instrumentation and inspections 274
      18.1.2.4 Dam Classification and Design Criteria 276
      18.1.2.5 Documentation 277
    18.1.3 TSF 3 description 277
      18.1.3.1 Confining dam 277
      18.1.3.2 Basin liner 278
      18.1.3.3 Water management 278
      18.1.3.4 Facility construction 279
      18.1.3.5 Facility documentation and design 282
    18.1.4 Conclusions and recommendations 282
      18.1.4.1 General 282
      18.1.4.2 Specifics 283
      18.1.4.3 Current QP recommendations and Silvercorp response comments (italicized) 285
  18.2 Waste rock dumps 287
  18.3 Power supply 288
    18.3.1 SGX and HZG mines 288
    18.3.2 HPG mine 289

 

NI 43-101 Technical Report Update on the Ying Ag-Pb-Zn Property in Henan Province, People's Republic of China
 
Silvercorp Metals Inc.0723067
    18.3.3 TLP / LM mines 289
    18.3.4 No. 1 and No. 2 Mills and office / camp complex 289
    18.3.5 Underground lighting 290
    18.3.6 Power for future TSF 3 290
  18.4 Roads 290
  18.5 Transportation 292
  18.6 Water supply 292
  18.7 Wastewater and sewage treatment 294
  18.8 Other infrastructure 295
    18.8.1 Mine dewatering 295
    18.8.2 Site communications 295
    18.8.3 Camp 295
    18.8.4 Dams and tunnels 295
    18.8.5 Surface maintenance workshops 296
    18.8.6 Explosives magazines 297
    18.8.7 Fuel farm 297
    18.8.8 Mine dry 298
    18.8.9 Administration building 298
    18.8.10 Warehouse and open area storage 298
    18.8.11 Assay laboratory 298
    18.8.12 Security / gatehouse 298
    18.8.13 Compressed air 299
    18.8.14 Underground harmful gas monitoring system 299
    18.8.15 Underground personal location system 300
         
19 Market studies and contracts 301
  19.1 Mining contracts 301
  19.2 Concentrate marketing 301
  19.3 Smelter contracts 301
  19.4 Commodity prices 303
       
20 Environmental studies, permitting and social or community impact 304
  20.1 Introduction 304
  20.2 Laws and regulations 304
    20.2.1 Laws 304
    20.2.2 Regulations and guidelines 305
  20.3 Waste and tailings disposal management 306
  20.4 Site monitoring 307
    20.4.1 Monitoring plan 307
    20.4.2 Water management 308
    20.4.3 Groundwater 310
    20.4.4 Wastewater 311
  20.5 Permitting requirements 313
    20.5.1 Environmental impact assessment reports and approvals 313
    20.5.2 Project safety pre-assessments reports and safety production permits 314
    20.5.3 Resource utilization plan (RUP) reports and approvals 314
    20.5.4 Soil and water conservation plan and approvals 315
    20.5.5 Geological hazards assessment report and approval 315
    20.5.6 Mining permits 315
    20.5.7 Land use right permits 315
    20.5.8 Water permit 316
  20.6 Social and community interaction 316
    20.6.1 Cultural minorities and heritages 316
    20.6.2 Relationships with local government 316

 

NI 43-101 Technical Report Update on the Ying Ag-Pb-Zn Property in Henan Province, People's Republic of China
 
Silvercorp Metals Inc.0723067

    20.6.3 Labour practices 316
  20.7 Remediation and reclamation 317
  20.8 Site closure plan 317
       
21 Capital and operating costs 319
  21.1 Capital costs 319
  21.2 Operating costs 321
       
22 Economic analysis 324
  22.1 Introduction 324
  22.2 Annual production schedule 324
  22.3 Cash flow forecast and cash flow projection 326
  22.4 Sensitivity analysis 328
       
23 Adjacent properties 329
     
24 Other relevant data and information 330
     
25 Interpretation and conclusions 331
     
26 Recommendations 337
  26.1 Safety in general 337
  26.2 Exploration 337
    26.2.1 SGX 337
    26.2.2 HZG 337
    26.2.3 HPG 337
    26.2.4 LME 338
    26.2.5 LMW 338
    26.2.6 TLP 338
    26.2.7 DCG 338
  26.3 Drilling 339
  26.4 Sample preparation, analyses, and security 339
    26.4.1 Laboratories 339
    26.4.2 CRMs 339
    26.4.3 Blanks 340
    26.4.4 Duplicates 340
    26.4.5 Umpire samples 341
    26.4.6 General recommendations 341
  26.5 Data verification 341
  26.6 Mineral Resource 342
    26.6.1 Estimation Process 342
    26.6.2 Resource Database 342
    26.6.3 Density for resources 342
    26.6.4 Vein modelling 343
    26.6.5 Block modelling 343
  26.7 Mineral processing 343
  26.8 Tailings storage facilities 344
  26.9 Surface roads and transportation 344
  26.10 Mining 344
       
27 References 346

Tables

Table 1.1 Ying Mineral Resources as of 30 June 2024 vi
Table 1.2 Ying Mineral Reserve estimates at 30 June 2024 viii

 

NI 43-101 Technical Report Update on the Ying Ag-Pb-Zn Property in Henan Province, People's Republic of China
 
Silvercorp Metals Inc.0723067
Table 1.3 Mineral Reserve to production reconciliation: January 2022 – March 2024 x
Table 1.4 Ying Mines LOM production plan xiii
Table 1.5 Projected Ying LOM Capex (US$M) xix
Table 1.6 Projected Ying LOM Opex (US$M) xxi
Table 2.1 Persons who prepared or contributed to this Technical Report 49
Table 4.1 Mining licenses 55
Table 7.1 Discrete gold veins on the Property 63
Table 7.2 Dimensions and orientations of mineralized veins in the SGX area 68
Table 7.3 Dimensions and orientations of major mineralized veins in the HZG area 70
Table 7.4 Dimensions and orientations of major mineralized veins in the HPG area 71
Table 7.5 Dimensions and orientations of major mineralized veins in the TLP area 74
Table 7.6 Dimensions and orientations of major mineralized veins in the LMW area 74
Table 7.7 Dimensions and orientations of major mineralized veins in the LME area 75
Table 7.8 Dimensions and orientations of the mineralized veins in the DCG area 76
Table 9.1 Summary of tunnelling and sampling completed to 31 December 2021 78
Table 9.2 Tunnelling and sampling completed in 2022 - 2023 80
Table 9.3 Mineralization exposed by drift tunnelling in 2022 - 2023 81
Table 9.4 Mineralization zones defined by the 2022 - 2023 tunnelling in SGX 82
Table 9.5 Mineralization zones defined by the 2022 - 2023 tunnelling in HZG 84
Table 9.6 Mineralization zones defined by the 2022 - 2023 tunnelling in HPG 86
Table 9.7 Mineralization zones defined by the 2022 - 2023 tunnelling in TLP 88
Table 9.8 Mineralization zones defined by the 2022 - 2023 tunnelling in LME 90
Table 9.9 Mineralization zones defined by the 2022 – 2023 tunnelling at LMW 91
Table 9.10 Mineralization zones defined by the 2022 – 2023 tunnelling at DCG 93
Table 10.1 Summary of drilling completed by Silvercorp, 2004 to December 2021 94
Table 10.2 Summary of the 2022 - 2023 drilling program on the Property 95
Table 10.3 Brief summary of the 2022 - 2023 drilling results 95
Table 10.4 Summary of the SGX 2022 - 2023 drilling programs 96
Table 10.5 Summary of the HZG 2022 - 2023 drilling programs 98
Table 10.6 Summary of HPG 2022 - 2023 drilling programs 99
Table 10.7 Summary of TLP 2022 - 2023 drilling programs 100
Table 10.8 Summary of LME 2022 - 2023 drilling programs 102
Table 10.9 Summary of the LMW 2022 - 2023 drilling programs 103
Table 10.10 Summary of the DCG 2022 - 2023 drilling programs 105
Table 10.11 Bulk density values for the Ying deposits pre-2020 106
Table 11.1 Laboratories used at Ying Project (January 2006 – December 2023) 111
Table 11.2 Ying laboratory protocols (January 2006 – December 2023) 113
Table 11.3 Ying QA/QC samples by time period (2010 – June 2016) 114
Table 11.4 Ying QA/QC insertion rates by time period (2010 – June 2016) 115
Table 11.5 Ying QA/QC samples by time period (July 2016 – December 2023) 115
Table 11.6 Ying QA/QC insertion rates by time period (July 2016 – December 2023) 115
Table 11.7 Ying CRMs (January 2022 – December 2023) 116
Table 11.8 Ying Ag CRM results (January 2022 – December 2023) 119

 

NI 43-101 Technical Report Update on the Ying Ag-Pb-Zn Property in Henan Province, People's Republic of China
 
Silvercorp Metals Inc.0723067
Table 11.9 Ying Pb CRM results (January 2022 – December 2023) 120
Table 11.10 Ying Zn CRM results (January 2022 – December 2023) 122
Table 11.11 Ying coarse blank results based on Silvercorp fail criteria (2022 – 2023) 127
Table 11.12 Ying coarse blank results based on 3 x LLD fail criteria 128
Table 11.13 Drill Field duplicate results by laboratory and sample type (2022-2023) 132
Table 11.14 Ying umpire samples laboratories 135
Table 11.15 Ying umpire sample results 138
Table 12.1 Drillholes reviewed on site 142
Table 12.2 Assay verification results (drilling July 2016 to Dec 2023) 144
Table 12.3 Assay verification results (channel samples July 2016 to Dec 2023) 144
Table 13.1 Mineral composition of the SGX mineralization 148
Table 13.2 Phase distribution of silver (SGX mineralization) 148
Table 13.3 Mineral composition of the TLP-LM mineralization 149
Table 13.4 Phase distribution of silver (TLP - LM mineralization) 150
Table 13.5 Core samples used for ore blending test 150
Table 13.6 Head grade of blended sample from SGX 151
Table 13.7 TLP mineralization samples for metallurgical tests 151
Table 13.8 Head grade of blended sample from HPG 151
Table 13.9 Liberation of Pb, Zn, and Ag vs size fractions (70% -75 µm) 152
Table 13.10 Mass balance for locked cycle test (SGX mineralization) 152
Table 13.11 Mass balance for locked cycle test (TLP mineralization) 153
Table 13.12 Mass balance for locked cycle test (HPG mineralization) 154
Table 13.13 Mass balance for locked cycle test (HZG mineralization) 156
Table 13.14 Grind size optimization test results 156
Table 13.15 Product quality (blends of Plants 1 & 2) 156
Table 13.16 Source and ore type of samples 157
Table 13.17 Grindability test results 157
Table 14.1 Ying Mineral Resources as of 30 June 2024 161
Table 14.2 Summary of data used 162
Table 14.3 Grade capping summary 169
Table 14.4 Comparison between raw, composite, and capped composites 170
Table 14.5 Block model rotations 172
Table 14.6 Ying deposits - estimation search parameters 172
Table 14.7 Comparison of 31 December 2021 and 30 June 2024 Mineral Resource estimates 187
Table 15.1 Mineral Reserve cut-off grades1,2 and key estimation parameters 192
Table 15.2 Stope marginal1,2 and development ore cut-off grades 193
Table 15.3 Average dilution by mine and method 194
Table 15.4 Ying Mining District Mineral Reserve estimates & metal content at 30 June 2024 195
Table 15.5 Estimated reduction in contained AgEq oz in Mineral Reserves for COG increase of 20% 196
Table 15.6 Mineral Resources and Mineral Reserves comparison 197
Table 15.7 Comparison of 2022 and 2024 Mineral Reserve estimates 198
Table 16.1 SGX mines current equipment list 220

 

NI 43-101 Technical Report Update on the Ying Ag-Pb-Zn Property in Henan Province, People's Republic of China
 
Silvercorp Metals Inc.0723067
Table 16.2 SGX mine contractor equipment list 220
Table 16.3 Equipment advance rates 221
Table 16.4 Silvercorp staff 221
Table 16.5 List of contract workers in the Ying district 222
Table 16.6 Silvercorp hourly workers 222
Table 16.7 Mine water flow 226
Table 16.8 Stage 1 water pumps at SGX mine 227
Table 16.9 Second stage water pumps at SGX mine 227
Table 16.10 Ying Mines LOM development schedule by fiscal year (FY) 234
Table 16.11 Ying mines production rate summary 235
Table 16.12 Ying mines production Q4 FY2022 to end of Q4 FY2024 236
Table 16.13 Ying Mines LOM production plan 239
Table 16.14 Mineral Reserve to production reconciliation: January 2022 – March 2024 240
Table 17.1 Processing Plants 1 and 2 - summary of current capacities 243
Table 17.2 Ore supply to Plants 1 and 2 from FY2019 to FY2024 244
Table 17.3 Average mill feed grades by mine FY2024 245
Table 17.4 Concentrate production by mine (FY2024) 246
Table 17.5 Concentrate quality by year from FY2019 to FY2024 247
Table 17.6 Overall metal recovery by year from FY2019 to FY2024 247
Table 17.7 SGX mine – ore processed – actual mass balance (FY2024) 248
Table 17.8 HZG mine – ore processed – actual mass balance (FY2024) 249
Table 17.9 HPG mine – ore processed – actual mass balance (FY2024) 249
Table 17.10 TLP mine - ore processed – actual mass balance (FY2024) 249
Table 17.11 LME mine - ore processed - actual mass balance (FY2024) 249
Table 17.12 LMW mine – ore processed – actual mass balance (FY2024) 250
Table 17.13 DCG mine – ore processed – actual mass balance (FY2024) 250
Table 17.14 Flotation feed: ore grade and recovery (FY2024) 251
Table 17.15 Flotation feed: tonnes to plants (FY2024) 251
Table 17.16 LOM mill feed schedule from 01 July 2024 253
Table 17.17 Design mass balance at Plant 1 (daily basis) 258
Table 17.18 Flotation feed: ore grade vs. recovery - FY2024 (Plant 1) 258
Table 17.19 Design mass balance for Plant 2 (Pb+Zn ore) (Phase I and Phase II, 2 x 1,000 tpd). 262
Table 17.20 Flotation feeds: ore grade vs. recovery - FY2024 (Plant 2) 262
Table 17.21 Recent plant performance - SGX (Ag-Pb-Zn) ore 264
Table 17.22 Recent plant performance - TLP (Ag-Pb) ore 264
Table 17.23 Recent plant performance – LMW (Au-Ag-Pb ore) 265
Table 18.1 Major characteristics TSF 1 and TSF 2 271
Table 18.2 Number of instruments installed on TSF 1 and TSF 2 275
Table 18.3 Dam Classification System (as per GB 39496 – 2020) 277
Table 18.4 Silvercorp table: Testing methods for tailings dam materials 286
Table 18.5 Waste dumps at the Ying project 288
Table 18.6 Example test results of potable water at the mines and mills 293

 

NI 43-101 Technical Report Update on the Ying Ag-Pb-Zn Property in Henan Province, People's Republic of China
 
Silvercorp Metals Inc.0723067
Table 18.7 Dam and diversion tunnels in the Ying district 296
Table 19.1 Key elements of smelter contracts 302
Table 20.1 Water environmental monitoring plans for Ying mining area 307
Table 20.2 January 2022 to December 2023 monitoring results, surface water, Yellow River Basin Environmental Monitoring Centre 309
Table 20.3 January 2022 to December 2023 monitoring results, surface water, Luoyang Liming Testing Company 310
Table 20.4 Results summary of groundwater tests 311
Table 20.5 Mine water monitoring results (Yellow River Basin Environmental Monitoring Centre, 21 July 2023) 311
Table 20.6 Sewage water monitoring results (Luoyang Liming Testing Company, 21st July 2023) 312
Table 20.7 Expenditures on reclamation and remediation from 2016 to 2023 (‘000 US$) 317
Table 21.1 Projected Ying LOM Capex (US$M) 320
Table 21.2 Projected Ying LOM Opex (US$M) 322
Table 22.1 Ying Mines LOM production schedule 325
Table 22.2 Ying property cash flow projection 327

Figures

Figure 1.1 Ying pre-tax NPV sensitivity xxiv
Figure 4.1 Location of Ying Property 53
Figure 4.2 Location of the approved mining licenses in the Ying Property 54
Figure 5.1 Ying mine and mill locations 57
Figure 7.1 Geology of Western Henan Province and location of Ying Property 61
Figure 7.2 Ying mining licenses and mineralization vein systems 63
Figure 7.3 Tunnels and veins in the SGX area 66
Figure 7.4 Cross section on Line 2, SGX 67
Figure 7.5 Tunnels and veins in the HZG area 69
Figure 7.6 Tunnels and veins in the HPG area 71
Figure 7.7 Distribution of mineralized veins in the TLP-LM area 72
Figure 7.8 Tunnels and veins in the DCG area 76
Figure 9.1 Longitudinal projection of Vein S8, SGX 83
Figure 9.2 Longitudinal projection of Vein HZ26, HZG 85
Figure 9.3 Longitudinal projection of Vein H17, HPG 87
Figure 9.4 Longitudinal projection of Vein T3, TLP 89
Figure 9.5 Longitudinal projection of Vein LM5, LME 90
Figure 9.6 Longitudinal projection of Vein LM7, LMW 92
Figure 9.7 Longitudinal projection of Vein C9_2, DCG 93
Figure 11.1 Ying sampling processing, logging, and storage facilities 110
Figure 11.2 SGS Tianjin jaw crusher and RSD 112
Figure 11.3 Summary control chart for CDN-ME-1603 (Ag) 119
Figure 11.4 Summary control chart for CDN-ME-2001 (Ag) 120
Figure 11.5 Summary control chart for CDN-ME-1603 (Pb) 121

 

NI 43-101 Technical Report Update on the Ying Ag-Pb-Zn Property in Henan Province, People's Republic of China
 
Silvercorp Metals Inc.0723067
Figure 11.6 Summary control chart for CDN-ME-1811 (Pb) 121
Figure 11.7 Summary control chart for CDN-ME-1403 (Zn) 122
Figure 11.8 Summary control chart for CDN-ME-1405 (Zn) 123
Figure 11.9 Summary control chart for CDN-ME-1808 (Zn) 123
Figure 11.10 Coarse blank control chart (Ag) 128
Figure 11.11 Coarse blank control chart (Pb) 128
Figure 11.12 Coarse blank control chart (Zn) 129
Figure 11.13 Ying field duplicate RPD and scatter plots of Ag (channel samples) 133
Figure 11.14 Ying field duplicate RPD and scatter plots of Pb (channel samples) 133
Figure 11.15 Ying field duplicate RPD and scatter plots of Zn (channel samples) 134
Figure 11.16 Ying umpire RPD and scatter plots of Ag (UG samples, Site Lab, SGS Umpire Lab) 136
Figure 11.17 Ying umpire RPD and scatter plots of Pb (UG samples, Site Lab, SGS Umpire Lab) 136
Figure 11.18 Ying umpire RPD and scatter plots of Zn (UG samples, Site Lab, SGS Umpire Lab) 137
Figure 13.1 Distribution of silver minerals and silver-bearing minerals 149
Figure 13.2 Locked cycle flotation flow sheet (SGX mineralization) 153
Figure 13.3 Locked cycle gravity separation and flotation flow sheet (HPG mineralization) 155
Figure 13.4 Ore sorting circuit at Plant 2 – crushing and screening 158
Figure 13.5 Ore sorting circuit at Plant 2 – sorting units (2) 159
Figure 14.1 3D view of the SGX mineralization wireframes 163
Figure 14.2 3D view of the HZG mineralization wireframes 164
Figure 14.3 3D view of the HPG mineralization wireframes 164
Figure 14.4 3D view of the TLP mineralization wireframes 165
Figure 14.5 3D view of the LME mineralization wireframes 165
Figure 14.6 3D view of the LMW mineralization wireframes 166
Figure 14.7 3D view of the DCG mineralization wireframes 166
Figure 14.8 SGX mineralized sample length histogram 168
Figure 14.9 SGX deposit: Vein S8 - Silver histogram and log probability plot - grade capping 169
Figure 14.10 Estimation pass longitudinal projection SGX mine: Vein S8 173
Figure 14.11 Mining depletion longitudinal projection SGX mine: Vein S8 174
Figure 14.12 Mineral Resource classification longitudinal projection SGX mine: Vein S8 176
Figure 14.13 Silver equivalent grade longitudinal projection SGX mine: Vein S8 177
Figure 14.14 Silver equivalent grade longitudinal projection TLP mine: Vein T2 177
Figure 14.15 S8 silver swath plot by easting 178
Figure 14.16 S8 silver swath plot by northing 178
Figure 14.17 S8 silver swath plot by elevation 179
Figure 14.18 S8 lead swath plot by easting 179
Figure 14.19 S8 lead swath plot by northing 180
Figure 14.20 S19 lead swath plot by elevation 180
Figure 14.21 S8 zinc swath plot by easting 181
Figure 14.22 S8 zinc swath plot by northing 181

 

NI 43-101 Technical Report Update on the Ying Ag-Pb-Zn Property in Henan Province, People's Republic of China
 
Silvercorp Metals Inc.0723067
Figure 14.23 S8 zinc swath plot by elevation 182
Figure 14.24 SGX – Vein S8 vertical long section projection Mineral Resource 183
Figure 14.25 HZG - Vein HZ26 vertical long section projection Mineral Resource 183
Figure 14.26 HPG - Vein H17 vertical long section projection Mineral Resource 184
Figure 14.27 TLP – Vein T2 vertical long section projection Mineral Resource 184
Figure 14.28 LME – Vein LM5 vertical long section projection Mineral Resource 185
Figure 14.29 LMW - Vein LM7 vertical long section projection Mineral Resource 185
Figure 14.30 DCG – Vein C9_2 oblique section projection Mineral Resource 186
Figure 16.1 Ying mines locations 201
Figure 16.2 Decline ramp at SGX mine 208
Figure 16.3 SGX mine design 209
Figure 16.4 TLP mine – A26 shrinkage stope 211
Figure 16.5 Shrinkage stoping method 212
Figure 16.6 SGX mine – 12A resuing stope 213
Figure 16.7 Resue stoping method 214
Figure 16.8 LMW mine – LM50 room and pillar stope 215
Figure 16.9 Room and pillar mining method 216
Figure 16.10 1-yd LHD at HPG B8 stope 217
Figure 16.11 Ying loco and rail cars 219
Figure 16.12 SGX ventilation system diagrams 224
Figure 16.13 LMW paste backfill plant control room 226
Figure 17.1 Tonnes milled production trend - FY2019 to FY2024 245
Figure 17.2 Overall metal recovery to concentrate from FY2019 to FY2024 248
Figure 17.3 General view photos (Plant 1) 254
Figure 17.4 Flowsheet (Plant 1) 255
Figure 17.5 General view photos (Plant 2) 259
Figure 17.6 Flowsheet for Plant 2 260
Figure 18.1 Arrangement of Ying TSFs 268
Figure 18.2 View of downstream face of TSF 2 269
Figure 18.3 View of downstream face of TSF 2 Starter Dam 270
Figure 18.4 Discharging finger drain 271
Figure 18.5 Upstream toe drain outlet pipe – TSF 1 272
Figure 18.6 Upstream toe drain outlet pipes – TSF 2 273
Figure 18.7 Tailings discharge along crest of TSF 2 273
Figure 18.8 Operational decant tower in TSF 2 274
Figure 18.9 TSF monitoring data displayed in the control room 275
Figure 18.10 TSF 3 completed main tunnel 279
Figure 18.11 TSF 3 tunnel lining in progress 280
Figure 18.12 View upstream to TSF 3 Starter Dam Foundation Excavation (longitudinal axis of starter dam extends from left (close to excavator to right) 281
Figure 18.13 Terracing in progress within TSF 3 basin area 282
Figure 18.14 Hongfa Aggregate Plant at the Ying site 287
Figure 18.15 A shipping truck driven through Yueliangwan tunnel 291

 

NI 43-101 Technical Report Update on the Ying Ag-Pb-Zn Property in Henan Province, People's Republic of China
 
Silvercorp Metals Inc.0723067
Figure 18.16 SGX water treatment plant 294
Figure 18.17 TLP explosives magazine under construction 297
Figure 18.18 Central monitoring room 299
Figure 22.1 Ying pre-tax NPV sensitivity 328

 

NI 43-101 Technical Report Update on the Ying Ag-Pb-Zn Property in Henan Province, People's Republic of China
 
Silvercorp Metals Inc.0723067

 

2Introduction

AMC Mining Consultants (Canada) Ltd. (AMC) was commissioned by Silvercorp Metals Inc. (Silvercorp) to prepare a Technical Report (Ying 2024 Technical Report or Technical Report) on the Ying silver-lead-zinc property (Property) in Henan Province, China, encompassing the SGX, HZG, HPG, TLP, LME, LMW, and DCG underground mines. The seven mines are collectively referred to as the Ying mine or Ying mines in the Technical Report. AMC has previously prepared Technical Reports on the Property in 2022 (filed 4 November 2022, effective date 20 September 2022); 2020 (filed 14 October 2020, effective date 31 July 2020); 2017 (filed 24 February 2017, effective date 31 December 2016); 2014 (filed 5 September 2014, effective date 31 December 2013); 2012 (filed 15 June 2012, effective date 1 May 2012); and 2013 (minor update to 2012 report, filed 6 May 2013, effective date 1 May 2012). Table 2.1 indicates persons who prepared or contributed to the 2024 Technical Report.

This report has been produced in accordance with the Standards of Disclosure for Mineral Projects (effective 9 June 2023) as contained in National Instrument 43-101 (NI 43-101) and accompanying policies and documents. NI 43-101 utilizes the definitions and categories of Mineral Resources and Mineral Reserves as set out in the Canadian Institute of Mining, Metallurgy and Petroleum Definition Standards for Mineral Resources and Mineral Reserves 2014 (CIM 2014).

Table 2.1Persons who prepared or contributed to this Technical Report

 

Qualified Persons responsible for the preparation of this Technical Report
Qualified Person Position Employer Independent
of Silvercorp?
Date of last site visit Professional designation Sections of report*

 

 

Mr H.A. Smith

 

 

Senior Principal Mining Engineer

 

AMC Mining Consultants (Canada) Ltd.

Yes

26 - 29 Feb

2024

 

P.Eng. (BC),

P.Eng. (ON),

P.Eng. (AB),

P.Eng. (NT)

2 - 6, 15, 16,

20, 21, 22,

24, and parts

of 1, 12, 18,

19, 25, 26,

and 27

 

Dr G.K. Vartell

 

Geology Manager / Principal Geologist

AMC Mining Consultants (Canada) Ltd.

Yes

13 - 20 Jul

2016

 

P.Geo. (BC)

7 - 10, 23,

and parts of 1, 12, 25, 26,

and 27

 

Mr S. Robinson

 

Principal Geologist

AMC Mining Consultants (Canada) Ltd.

Yes

26 - 29 Feb

2024

P.Geo. (BC),

P.Geo. (ON), MAIG

Parts of 1, 12,

14, 25, 26,

and 27

Mr J.E. Glanvill Principal Geologist AMC Consultants (UK) Limited. Yes None Pr.Sci.Nat.

Parts of 1, 14,

25, 26, and 27

 

Mr R.C. Stewart

 

Senior Geologist

AMC Mining Consultants (Canada) Ltd.

Yes

None

P.Geo. (BC)

Parts of 1, 14,

25, 26, and 27

 

Mr R. Carlson

Geology Manager / Principal Geologist AMC Consultants Pty Ltd

Yes

None

FAIG, RPGeo

11 and parts

of 1, 25, 26,

and 27

 

Mr R. Chesher

Senior Principal Consultant (Metallurgy) AMC Consultants Pty Ltd

Yes

26 - 29 Feb

2024

FAusIMM (CP)

13, 17, and

parts of 1, 19,

25, 26, and 27

Mr D. Claffey Principal Consultant Hillerton Consulting Ltd. Yes

26 - 29 Feb

2024

MIEAust, CPEng

Parts of 1, 18,

25, 26, and 27

 

amcconsultants.com49
NI 43-101 Technical Report Update on the Ying Ag-Pb-Zn Property in Henan Province, People's Republic of China
 
Silvercorp Metals Inc.0723067

 

Other experts who assisted the Qualified Persons
Expert Position Employer Independent
of Silvercorp?
Visited site Sections of report
Mr D. Liu Chief Financial Officer Silvercorp Metals Inc. No Since July 2014 General
Mr G. Ma Senior Geologist Silvercorp Metals Inc. No Since 2018 General
Mr Y. Liu Chief Mining Engineer Silvercorp Metals Inc. No Since June 2015 Part of 16
Mr D. Luo Mining Engineer Silvercorp Metals Inc. No Since November 2023 Part of 16
Mr T. Zhang Senior Metallurgical Engineer Silvercorp Metals Inc. No Since July 2020

Parts of 13

and 17

Mr Y. Li Resource Geologist Silvercorp Metals Inc. No Since 2019 Part of 14
Mr Y. Wang Engineer Silvercorp Metals Inc. No Since October 2010 Part of 20

*Note: For Section 14, Mr Robinson is responsible for the SGX, TLP, and HZG deposits, Mr Glanvill is responsible for LMW and LME, Mr Stewart is responsible for HPG and DCG. Mr Smith is responsible for Section 18, other than for the TSFs discussion, for which Mr Claffey takes responsibility. For other sections where QPs are indicated as having part responsibility, that responsibility reflects their individual area of expertise, whether geological, mining, metallurgical, or other.

 

The authors of the Technical Report acknowledge the numerous contributions from Silvercorp in the preparation of this report and are particularly appreciative of the prompt and willing assistance of Mr D. Liu and Mr G. Ma.

The eight authors of the Technical Report are independent Qualified Persons (QPs). Five of the authors have visited the Ying Property. The latest AMC visit, by Mr H.A. Smith, Mr S. Robinson, Mr R. Chesher, and Mr D. Claffey, was in February 2024. The latest AMC visit by Dr G.K. Vartell was in July 2016. During the site visits, all aspects of the project have been examined by the QPs, including drill core, exploration sites, underground workings, processing plant, laboratory, tailings management facilities, and other surface infrastructure.

Silvercorp is a Canadian mining company producing silver, lead, and zinc metals in concentrates from mines in China. It is listed on both the TSE and NYSE as SVM. Through wholly owned subsidiaries, Silvercorp has an effective interest of 77.5 percent (%) in the SGX, HZG, TLP, LMW, and DCG mines, and 80% in the HPG and LME mines. It has all the exploration and mining permits necessary to cover its mining and exploration activities. There are no known or recognized environmental issues that might preclude or inhibit a mining operation in this area.

The Property is about 240 kilometres (km) west-southwest of Zhengzhou, the capital city of Henan Province, and 145 km south-west of Luoyang, which is the nearest major city. The city of Luoning is about 56 km by paved roads from Silvercorp’s Ying mill site. The project areas have good road access and operate year-round. The area has a continental sub-tropical climate with four distinct seasons.

Silver-lead-zinc mineralization in the Ying district has been known and intermittently mined for several hundred years. Silvercorp acquired an interest in the SGX project in 2004, the HPG project in 2006, and the TLP / LMW / LME projects in late 2007. Annual production has risen in recent years, with tonnages close to 650,000 tonnes per annum (tpa) from FY2021 through FY2022, 773,000 tpa in FY2023, and 827,000 in FY2024. The QP notes that the Silvercorp fiscal year (FY) begins in April, thus FY2024 runs from 1 April 2023 to 31 March 2024.

The current Technical Report provides an update to the Mineral Resource and Mineral Reserve estimates, incorporating new drilling and underground channel sample results and updated depletion due to mining. The Mineral Resources and Mineral Reserves are reported with an effective date of 30 June 2024.

 

amcconsultants.com50
NI 43-101 Technical Report Update on the Ying Ag-Pb-Zn Property in Henan Province, People's Republic of China
 
Silvercorp Metals Inc.0723067

 

In preparing this report, the QPs relied on various geological maps, reports, and other technical information provided by Silvercorp.

The QPs reviewed and analyzed the data received, and drew their own conclusions, augmented by direct field observations and knowledge of the Property, and of the results of recent detailed communication with key Silvercorp personnel. Specific documents referenced in this report are listed in Section 27: References.

Much of the geological information in this report was originally written in Chinese. Translations of key technical documents and data into English were provided by Silvercorp. The independent QPs are not Chinese speaking but have no reason to believe that the translations are not credible and generally reliable but cannot attest to their absolute accuracy.

Unless otherwise stated:

·All currency amounts and commodity prices are in US dollars (US$). Where Chinese Yuan (RMB) are stated, an exchange rate of US$1 = 7.00 RMB is assumed.
·Quantities are in metric (SI) units.
·Years are Silvercorp fiscal years (1 April to 31 March) unless otherwise stated.
·Tonnes are dry tonnes unless otherwise stated.

This report includes the tabulation of numerical data, which involves a degree of rounding for the purpose of Mineral Resource and Mineral Reserve reporting. The QPs do not consider any rounding of the numerical data to be material to the reporting results.

This report is dated 28 August 2024 and has an effective date of 16 July 2024.

amcconsultants.com51
NI 43-101 Technical Report Update on the Ying Ag-Pb-Zn Property in Henan Province, People's Republic of China
 
Silvercorp Metals Inc.0723067

3Reliance on other experts

The QPs have relied, in respect of legal aspects, upon the work of the Expert listed below. To the extent permitted under National Instrument 43-101 (NI 43-101), the QPs disclaim responsibility for the relevant section of the Report.

·Expert: Mr Wenhui Xu, BaiRun LLP, Yunfu City, Guangdong Province, China, as advised in a letter of 18 April 2024 to Mr Derek Liu, Chief Financial Officer, Silvercorp Metals Inc.
·Report, opinion, or statement relied upon: Information on mineral tenure and status, and title issues.
·Extent of reliance: Full reliance following a review by the QPs.
·Portion of Technical Report to which disclaimer applies: Relevant portion of Section 4.

The QPs have relied, in respect of legal tenure of Mining Permit depths, upon the work of the issuer’s expert listed below. To the extent permitted under NI 43-101, the QPs disclaim responsibility for the relevant sections of the Report.

·Expert: Mr Guoliang Ma, Senior Geologist of Silvercorp Metals Inc., as advised in an email dated 21 June 2024.
·Report, opinion, or statement relied upon: Information on Mining Permit coordinate levels (depth extents).
·Extent of reliance: Full reliance following a review by the QPs.
·Portion of Technical Report to which disclaimer applies: Relevant portions of Section 14.11.

The QPs have relied, in respect of environmental studies, permitting, and social or community impact aspects, upon the work of the Experts listed below. To the extent permitted under NI 43-101, the QPs disclaim responsibility for the relevant section of the Report.

·Experts: Mr Guoliang Ma and Mr Yang Wang of Silvercorp Metals Inc.
·Report, opinion, or statement relied upon: Information on environmental studies, permitting, and social or community impact aspects.
·Extent of reliance: Full reliance following a review by the QPs.
·Portion of Technical Report to which disclaimer applies: Section 20.

The QPs have relied, in respect of royalty obligations, government fee, Mineral Resources tax and other taxes, and metal payable arrangements, upon the work of the issuer’s expert listed below. To the extent permitted under NI 43-101, the QPs disclaim responsibility for the relevant sections of the Report.

·Expert: Mr Derek Liu, Chief Financial Officer, Silvercorp Metals Inc.
·Report, opinion, or statement relied upon: Information on royalty obligations, government fee, Mineral Resources tax and other taxes, and metal payable arrangements.
·Extent of reliance: Full reliance following a review by the QPs.
·Portion of Technical Report to which disclaimer applies: Relevant portions of Sections 4, 19, 21, and 22.

 

amcconsultants.com52
NI 43-101 Technical Report Update on the Ying Ag-Pb-Zn Property in Henan Province, People's Republic of China
 
Silvercorp Metals Inc.0723067
4Property description and location
4.1Property location

The Property is situated in central China in western Henan Province near the town of Luoning (Figure 4.1). The term “Ying District” is used to describe a 100 square kilometres (sq km) rectangular area bounded by latitude 34 degrees (°) 07’N to 34°12’N and longitude 111°14’E to 111°23’E. Within this district block, Silvercorp has three principal centres of operation, within which seven mining projects are located. Ore from all mining projects is hauled to the Mill Complex for processing.

Figure 4.1       Location of Ying Property

 

4.2Ownership

Silvercorp, through its wholly owned subsidiary Victor Mining Ltd, is party to a cooperative joint venture agreement dated 12 April 2004 under which it earned a 77.5% interest in Henan Found Mining Co. Ltd (Henan Found), the Chinese company holding (with other assets) the SGX, HZG, TLP, LMW, and DCG projects. In addition, Silvercorp, through its wholly owned subsidiary

amcconsultants.com53
NI 43-101 Technical Report Update on the Ying Ag-Pb-Zn Property in Henan Province, People's Republic of China
 
Silvercorp Metals Inc.0723067

Victor Resources Ltd, is party to a cooperative agreement dated 31 March 2006, under which it initially obtained a 60% interest in Henan Huawei Mining Co. Ltd (Henan Huawei), the beneficiary owner of the project in Haopinggou (the HPG Project) and the project in Longmen (the LME Project). Since that time, Silvercorp’s interest in Henan Huawei has increased to 80%.

4.3Mining licenses

The information supporting Figure 4.2 and Table 4.1 is contained in a letter provided to Silvercorp by BaiRun LLP, Yunfu City, Guangdong Province, China and is referenced in Section 3.

The Ying Property is covered by four major contiguous mining licenses, as shown in Figure 4.2.

Figure 4.2      Location of the approved mining licenses in the Ying Property

 

 

Notes: Excluded areas on the map have no mineralization and are unclaimed, or have been mined out or explored by another company with license not renewed. These areas have no impact on Silvercorp’s activities.

 

The mines in the Property are located as follows:

·The SGX and HZG lead-zinc-silver mines are within the Yuelianggou Mining License in the western part of the block.
·The HPG lead-zinc-silver-gold mine is within the Haopinggou Mining License in the central western part of the block.
·The TLP, LME, and LMW lead-silver mines are within the Tieluping-Longmen Mining License in the eastern part of the block.
·The DCG gold-silver mine is within the Dongcaogou Mining License in the north-eastern part of the block.
amcconsultants.com54
NI 43-101 Technical Report Update on the Ying Ag-Pb-Zn Property in Henan Province, People's Republic of China
 
Silvercorp Metals Inc.0723067

The total area of the four mining licenses is 68.59 sq km. Table 4.1 lists their names, license numbers, areas, and expiry dates.

Table 4.1      Mining licenses

 

Area and license name Mines Mining license # Sq km ML expiry date
Yuelianggou Lead-zinc-silver Mine SGX & HZG C4100002009093210038549 19.8301 Sep 2024
Haopinggou Lead-zinc-silver-gold Mine HPG C4100002016043210141863 6.2257 29 Apr 2028
Tieluping-Longmen Silver-lead Mine TLP, LME, & LMW C4100002016064210142239 22.7631 26 Feb 2041
Dongcaogou Gold-silver Mine DCG C4100002015064210138848 19.772 15 Jun 2025
Total     68.59  

 

The licenses indicate mining being permitted between prescribed elevations as follows:

·Yuelianggou Mining License – 1,060 metres (m) and 0 m elevations
·Haopinggou Mining License - 955 m and 365 m elevations
·Tieluping-Longmen Mining License - 1,250 m and 700 m elevations
·Doncaogou Mining License - 1,087 m and 605 m elevations

Henan Found has engaged an accredited geological team to prepare the reports needed to apply for extensions of the four mining permits to mine the ores below the current permits’ lower limits.

Mining licenses are subject to mining-right usage fees, and applicable Mineral Resource taxes. The renewal of mining licenses and extending of mining depth and boundaries occur in the ordinary course of business as long as Mineral Resources exist, are defined, the required documentation is submitted, and the applicable government resources taxes and fees are paid. The mining licenses give the right to carry out full mining and mineral processing operations in conjunction with safety and environmental certificates. Safety certificates for Silvercorp’s mining activities have been issued by the Department of Safety, Production and Inspection of Henan Province. Environmental certificates have been issued by the Department of Environmental Protection of Henan Province.

Surface rights for mining purposes are not included in the licenses, but Silvercorp has acquired or leased surface rights for mining and milling activities by effecting payment of a fee based on the appraised value of the land or negotiation. Subject to negotiation, some land use compensation fees may also be due to the local farmers if their agricultural land is disturbed by exploratory work.

China has an established Mining Code that defines the mining rights guaranteed by the government of China.

China has a 13% Value Added Tax (VAT) on sales of concentrates and on articles such as materials and supplies. The VAT paid on materials purchased for mining is returned to Silvercorp as an incentive to mine in China. There is no VAT on labour. In addition, Silvercorp also pays a VAT surtax, which amounts to approximately 1.6% of sales, and Mineral Resources tax is currently levied at approximately 3% of sales. The normal income tax rate in China is 25%. In 2020, Henan Found was recognized as a High and New Technology Enterprise (HNTE) and its effective income tax rate was reduced to 15% from 2020 to 2022. The recognition of a HNTE is good for three years, and can be renewed, subject to government approval, in the fourth year. In 2023, Henan Found renewed the recognition of a HNTE and continues to enjoy a reduced income tax rate from 2023 to 2025.

amcconsultants.com55
NI 43-101 Technical Report Update on the Ying Ag-Pb-Zn Property in Henan Province, People's Republic of China
 
Silvercorp Metals Inc.0723067

There are no known or recognized environmental issues that might preclude or inhibit a mining operation in this area. Some major land purchases may be required in the future for mine infrastructure purposes (such as for additional processing plant requirements, waste disposal, offices and accommodations). There are no significant factors and risks that may affect access, title, or the right or ability to perform work on the Ying property that are known at this time.

4.4Prospecting licenses

In June 2023 Chinese laws regarding prospecting licenses were amended. In a document titled “Notice by the Ministry of Natural Resources of Further Improving the Administration of Registration of Mineral Resources Prospecting and Mining” (Document Number: No.4 [2023]) issued on 5 June 2023), it was declared that “…(3) A holder of the mining rights is not required to apply for new registration of prospecting rights if the holder carries out the prospecting work in the deep and upper parts of the mining area”. Silvercorp is therefore no longer required to hold prospecting licenses to complete exploration activities within the current mining permits. These prospecting licenses were referred to as Exploration Licenses in previous Technical Reports.

amcconsultants.com56
NI 43-101 Technical Report Update on the Ying Ag-Pb-Zn Property in Henan Province, People's Republic of China
 
Silvercorp Metals Inc.0723067
5Accessibility, climate, local resources, infrastructure, and physiography

The district lies within rugged, deeply dissected mountainous terrain of the Xionger Mountain Range. Elevations range from 300 m to 1,200 m above sea level. Hill slopes are steep, commonly exceeding 25°, and have good bedrock exposure.

The area is sparsely vegetated, consisting mostly of bushes, shrubs, ferns, and small trees. At higher elevations the vegetation is denser, and the trees are larger. The local economy is based on agriculture (wheat, corn, tobacco, medicinal herbs) and mining. Agriculture is confined to the bottoms of the larger stream valleys and to the many terraced hillsides.

The Property is about 240 km west-southwest of Zhengzhou (population 13.8 million), the capital city of Henan Province, and 145 km south-west of Luoyang (population 7.1 million), which is the nearest major city (see Section 4, Figure 4.1). Zhengzhou, the largest industrial city in the region, offers full-service facilities and daily air flights to Beijing, the capital of China, as well as to Shanghai and Hong Kong. The city of Luoning (population 374,000), is about 56 km by paved roads from the Ying mill site, which is located to the north of the mining license areas. The mill site is about 15 km by paved road from the Guxian Reservoir (Figure 5.1). All the mine sites are accessed by paved roads.

Figure 5.1      Ying mine and mill locations

 

 

 

amcconsultants.com57
NI 43-101 Technical Report Update on the Ying Ag-Pb-Zn Property in Henan Province, People's Republic of China
 
Silvercorp Metals Inc.0723067

Note that the area in Figure 5.1 with the geology drape roughly corresponds to the outline of the mining licenses. To increase haulage efficiency and facilitate environment-friendly operations, Silvercorp has driven haulage tunnels to connect the SGX and HPG mines, and from HPG to a road-access point closer to the mill sites. The SGX, HZG, HPG, TLP, LME, LMW, and DCG mines all have road access. Currently all ore is hauled to the mill using trucks.

The area has a continental, sub-tropical climate with four distinct seasons. Temperatures have a typical annual range of -10°Celsius (C) to 38°C and an annual average of 15°C, with local changes dependent on elevation. The annual precipitation averages 900 millimetres (mm), occurring mostly in the July to September rainy season and supplemented by snow and frost occurring from November to March. The mines and associated facilities operate year-round.

Silvercorp has sufficient surface rights to operate the Ying mines and mills. There are major power grids adjacent to the Property, including a power line extending to the SGX Area. Adjacent to the Property is a hydropower generating station at the dam that forms the Guxian Reservoir. This reservoir is on the Luo River, a tributary of the Yellow River. Sufficient manpower is available to serve most exploration or mining operations. The steep valleys form natural reservoirs for mine tailings and waste dumps. See Section 18 for further discussion of project infrastructure.

amcconsultants.com58
NI 43-101 Technical Report Update on the Ying Ag-Pb-Zn Property in Henan Province, People's Republic of China
 
Silvercorp Metals Inc.0723067
6History
6.1Introduction

Silver-lead-zinc mineralization in the Ying district has been known and intermittently mined for several hundred years. The first systematic geological prospecting and exploration was initiated in 1956 by the Chinese government. Detailed summaries of the district’s historical activities from 1956 to 2004, when Silvercorp first acquired interests in the area, are described in previous Technical Reports prepared in accordance with NI 43-101 (see Section 27 References).

6.2Drilling

Prior to Silvercorp obtaining the rights to the SGX mine in 2004, there was little drilling work completed on the Ying Property. Drilling programs conducted by previous operators include a 10,736 m surface drilling program in the TLP-LM area by the No. 6 Nonferrous Geological Exploration Team of Henan Province from 1991 to 1994 and a test drilling program of two holes in the SGX area by the Henan Nonferrous Geological Exploration Bureau in 2003. The areas drilled by these holes have been mined out.

6.3Ownership and production

Silvercorp acquired an interest in the SGX mine project in 2004. Subsequently, Silvercorp acquired the HZG, HPG, TLP, LM (LME and LMW), and DCG projects, all of which were previously held and operated by private Chinese companies.

The underground mine at HPG was initially constructed in April 1995, with a mining license issued in June 1996 to Huatai #1 company. The mine was shut down during 1997 and 1998, and in 2001, new mining licenses were issued by the Henan Bureau of Land and Resources to Huatai #2 company (changing names on a mine license in China is difficult so the same name is used even though they are different companies). In 2004, Huatai #3 company acquired the mine, which reportedly produced 70,000 tpa of ore from four principal underground levels. Ore was shipped to the Guxian Ore Processing Plant, owned by Huatai. In 2006, Silvercorp reached an agreement with Huatai, which included both the mine and the plant.

In 1998, a mining permit was issued for the TLP area to Tieluping Silver and Lead Mine of Luoning County. The mine produced 450 tonnes per day (tpd) of ore using shrinkage stoping methods. Ore was shipped to five small mills; lead concentrates were produced by conventional flotation methods. The government closed the mine in December 2006 due to health, safety, and environment concerns. The operation is thought to have produced about 1.55 million tonnes of ore, although actual production and grades are unknown. Silvercorp acquired the TLP project from the owners in late 2007.

In 2002, a mining permit was issued for the LM area to Luoning Xinda Mineral Products Trade Co. Ltd. (Xinda), which allowed Xinda to mine 30,000 tonnes of silver-lead ore using shrinkage stoping methods. Ore was mined mainly from the 990 m to 838 m Levels and shipped to a local custom mill for processing by conventional flotation. Reported production for the operation was 120,206 tonnes of ore averaging 257.06 grams per tonne (g/t) silver (Ag) and 7.04% lead (Pb). Silvercorp acquired the LM project from the owners in late 2007.

Two exploration permits for the original Dongcaogou Gold-Silver Deposit and the adjacent Ximiao-Leileishi Gold Deposit to the west were acquired by Silvercorp in August 2006 and June 2007, respectively. In February 2013, the Department of Land and Resources of Henan Province approved the delimitation of the mining area of Dongcaogou Gold and Silver Mine (DCG), which combined the original Dongcaogou Gold-Silver Deposit and Ximiao-Leileishi Gold Deposit.

amcconsultants.com59
NI 43-101 Technical Report Update on the Ying Ag-Pb-Zn Property in Henan Province, People's Republic of China
 
Silvercorp Metals Inc.0723067

On 15 June 2015, the Department of Land and Resources of Henan Province issued the DCG mining license with the validity period from 15 June 2015 to 15 June 2025.

6.4Historical Mineral Resource and Mineral Reserve estimates

Silvercorp acquired its interests in the Ying Property between 2004 and 2007. Any Mineral Resource or Mineral Reserve estimates that pre-date Silvercorp’s involvement are not considered by the QPs to be information that is material to the Technical Report.

amcconsultants.com60
NI 43-101 Technical Report Update on the Ying Ag-Pb-Zn Property in Henan Province, People's Republic of China
 
Silvercorp Metals Inc.0723067
7Geological setting and mineralization
7.1Regional geology

The Property is situated in the 300 km-long west-northwest trending Qinling orogenic belt, a major structural belt formed by the collision of two large continental tectonic plates in Paleozoic time. Figure 7.1 shows the regional geology and location of the Ying District in which the Property is situated.

Figure 7.1       Geology of Western Henan Province and location of Ying Property

 

amcconsultants.com61
NI 43-101 Technical Report Update on the Ying Ag-Pb-Zn Property in Henan Province, People's Republic of China
 
Silvercorp Metals Inc.0723067

The northern continental plate, the North China Plate, covers all of Henan Province and most parts of North China, while the southern plate, the Yangtze Plate, covers most part of South China. Rocks along the orogenic belt between the two major tectonic plates are severely folded and faulted, offering optimal structural conditions for the emplacement of a myriad of mineral deposits. Several operating silver-lead-zinc mines, including those on the Property, occur along this belt.

The Qinling orogenic belt is comprised largely of Proterozoic to Paleozoic-age rock sequences consisting of mafic to felsic volcanic rocks with variable amounts of interbedded clastic and carbonate sedimentary rocks. The rocks are weakly metamorphosed to lower greenschist facies, with local areas of strongly metamorphosed lower amphibolite facies. The basement of the belt is comprised of highly metamorphosed Archean-age rocks of the North China plate, dominantly felsic to mafic gneisses with minor amphibolites, intrusive gabbros, and diabases. The metamorphosed Qinling belt sequence and the underlying Archean basement rocks are intruded by mafic to felsic dikes and stocks of Proterozoic and Mesozoic ages. They are overlain by non-metamorphosed sedimentary rock sequences of Mesozoic to Cenozoic age, primarily marls and carbonaceous argillites, which are in turn overlain locally by sandstone-conglomerate sequences.

The dominant structures in the Qinling orogenic belt are west-northwest trending folds and faults generated during the collision of the two major tectonic plates in Paleozoic time. The faults consist of numerous thrusts having a component of oblique movement with sets of conjugate shear structures trending either north-west or north-east. These conjugate shear zones, which display features of brittle fracturing such as fault gouge, brecciation, and well-defined slickensides, are associated with all the important mineralization recognized along the 300 km-long orogenic belt. At least three important north-northeast trending mineralized fault zones are identified in the Ying Property:

1Heigou-Luan-Weimosi deep-seated fault zone.
2Waxuezi-Qiaoduan fault zone.
3Zhuyangguan-Xiaguan fault zone.
7.2Property geology

The Archean basement that underlies the Property consists primarily of highly metamorphosed mafic to felsic gneisses derived from mafic to felsic volcanic and sedimentary rock units as shown in Figure 7.2. The lowest part of the basement sequence is a 1 km thick mafic gneiss with local gabbroic dikes and sills that trend north-northeast and dip 30° to 60° south-east. This sequence is overlain by a much thicker sequence of thin-bedded quartz-feldspathic gneiss, which is bounded on the north and west by Proterozoic-age andesitic greenstones along a very high-angle (greater than (>) 70°) “detachment” fault-shear zone. The greenstones have been folded, and dip steeply toward the north-east and south-west. The basement gneisses are commonly tightly folded with boudins abundant near the mafic gneiss-feldspathic gneiss contact. Small granite porphyry stocks of Proterozoic to Paleozoic age locally intrude the gneisses.

All of these lithologies are extensively cut by high-angle, mostly west-dipping conjugate faults. These faults trend generally north-east, varying from mostly north to north-northeast on the west side of the district, to north-east with occasional north and rare north-west on the east side of the district. The faults are commonly near-vertical, with steep dips in either direction, and they are occasionally filled with swarms of younger andesitic to basaltic diabase dikes. Repeated movement on the faults has offered the openings which host all of the district’s important silver-lead-zinc veins.

amcconsultants.com62
NI 43-101 Technical Report Update on the Ying Ag-Pb-Zn Property in Henan Province, People's Republic of China
 
Silvercorp Metals Inc.0723067
Figure 7.2Ying mining licenses and mineralization vein systems

 

7.3Mineralization
7.3.1Overview

The Ying Property contains multiple mesothermal silver-lead-zinc-rich quartz-carbonate veins in steeply dipping, fault-fissure zones which cut Archean gneiss and greenstone. To date, significant mineralization has been defined or developed in at least 534 discrete vein structures, and many other smaller veins have been found but not, as yet, well explored. Beside HPG, which contains grades of around 1.5 g/t gold (Au) in the ore veins, 22 of the 534 veins contain high levels of gold and various levels of silver and base metals. These gold veins are shown in Table 7.1.

Table 7.1Discrete gold veins on the Property

 

Mine Vein Mine Vein

LMW

LM21

SGX

S11
LM22 S18E
LM26 S16W_Au*
LM28 S74
LM50

DCG

C76
LM50_3 C9E1
LM52 C9_1**
LM53 C9_2**
LM54 C9_3**
LME LM4E2 C9_4**
LM4E3 C9W1

Notes: *Part of S16W; **Split from C9.

amcconsultants.com63
NI 43-101 Technical Report Update on the Ying Ag-Pb-Zn Property in Henan Province, People's Republic of China
 
Silvercorp Metals Inc.0723067

Structurally, the vein systems throughout the district are all somewhat similar in that they occur as sets of veins of generally similar orientation enclosed by fault-fissure zones which trend most commonly northeast-southwest, less commonly north-south, and rarely northwest-southeast. The structures extend for hundreds to a few thousand metres along strike. They are often filled by altered andesite or diabase dikes together with quartz-carbonate veins or as discrete zones of altered bedrock (mainly gneiss) associated with local selvages of quartz-carbonate veinlets. From one-third to one-half of the structures exposed at the surface are conspicuously mineralized as well as altered.

The silver-lead-zinc-rich quartz-carbonate vein systems consist of narrow, tabular, or splayed veins, often occurring as sets of parallel and offset veins. The veins thin and thicken abruptly along the structures in classic “pinch-and-swell” fashion with widths varying from a few centimetres up to a few metres. “Swells” formed in structural dilatant zones along the veins often forming mineralized “shoots”. At the SGX mine, these shoots range from 30 m to more than 60 m in vertical and horizontal dimensions over true vein widths of 0.4 m to 3.0 m. The vertical dimension of the SGX shoots is commonly twice or more the horizontal dimension. Longitudinal sections constructed along the veins indicate that many of the shoots have a steep, non-vertical rake.

The silver-lead-zinc-rich vein systems of the various mine areas in the district are also generally similar in mineralogy, with slight differences between some of the separate mine areas and between the different vein systems within each area. These differences have been attributed to district-scale mineral zonation at different levels of exposure. This subtle zonation is thought to be perhaps analogous to the broad-scale zonation patterns observed in the Coeur d’Alene District (USA) and characteristic of many other significant mesothermal silver-lead-zinc camps in the world (Broili et al., 2008 & 2010).

7.3.2SGX area

Currently defined silver-lead-zinc mineralization in the SGX area occurs within 100 veins which occur in eight major and two minor vein systems. Four of the 100 veins contain high gold values. The five largest veins based on Measured and Indicated Mineral Resource tonnes, S8, S19, S7, S7_1, and S2, account for 36% of this mineralization.

The SGX veins have been extensively mapped and sampled at various levels in the underground workings and by drilling. Results show that approximately 30% of the material filling the veins is strongly mineralized with massive, semi-massive, veinlet, and disseminated galena and sphalerite over narrow widths ranging from 0.2 m to 5.5 m or more with a weighted average true width of 0.78 m. Other than galena and sphalerite, the most common metallic minerals are small amounts of pyrite, chalcopyrite, hematite, and very small amounts of wire silver, silver-bearing sulfosalts (mainly pyrargyrite), silver-bearing tetrahedrite (known as freibergite), and possibly acanthite (silver sulphide). The metallic minerals are confined to the veins where they occur as massive accumulations or disseminations. The galena mineralization often occurs as massive tabular lenses comprised of coarsely crystalline aggregates or fine-grained granular “steel galena” bodies, which can be up to 1.0 m thick and 100 m or more in vertical and horizontal dimensions. Sphalerite, in its dark-coloured, iron-rich variety often known as “blackjack”, occurs with the galena as coarse bands or aggregates. Alternating bands of galena, sphalerite, pyrite, and quartz are common near the vein margins.

A detailed study on assay results of drill core and tunnelling samples from major vein structures in 2012 revealed the existence of wide alteration and mineralization zones with lower but economic grades of silver adjacent to some high-grade silver-lead-zinc vein structures, such as S7_1, S16W_Ag, S16E, S6, and S2. These lower-grade zones have mostly been neglected in sampling programs before 2012 because of a lack of visible sulphides. An improved understanding of the geology, alteration, and mineralization of major vein structures has indicated that contacts between

amcconsultants.com64
NI 43-101 Technical Report Update on the Ying Ag-Pb-Zn Property in Henan Province, People's Republic of China
 
Silvercorp Metals Inc.0723067

mineralization and wall rocks can no longer based solely on visual geological mapping, but also requires consideration of sampling results because of the silver content in adjoining alteration zones. As a result, average widths of defined mineralized zones have been substantially increased.

Several shoots in some of the SGX veins are unusually rich in silver relative to lead, containing from 131 to 343 grams (g) silver for each percent lead. This is a much greater amount of silver to lead than most other SGX veins. The silver in these shoots is thought to be carried mostly as a silver-rich, non-lead-bearing mineral such as freibergite, which is a dark-coloured metallic mineral that could easily be hidden within metallic granular masses of galena. Freibergite is also a copper-bearing mineral, and these shoots contain up to several percent of potentially valuable copper, because of the presence of freibergite. There is one gold vein at SGX, S11, which have been modelled for the first time this year. The SGX gold veins are now S11, S16W_Au, S18E, and S74. At present, copper is not recovered from the SGX veins.

The four gold rich veins are similar to the other veins at SGX. Veins S18E and S74 strike north-east and S16W_Au strike north-south. They are all steeply dipping, with dip angles ranging between 65 - 80°, with dip direction of 315 - 335° for S18E and S74, and 85 - 110° for S16_Au. S11 is at the north-east of the resource area. It is steeply dipping, with dip angles around 86°, and dip direction of approximately 115°. Gold in these veins is dominated by electrum and kustelite in medium to fine grains in the fractures of sulphides, at the boundaries between sulphides and gangue minerals, or enclosed by sulphides. The typical grade of gold is around 0.5 g/t, with the highest gold assay in the modelled gold veins being 70.8 g/t gold.

Gangue in the vein systems consists mostly of quartz-carbonate minerals with occasional inclusions of altered wall-rock. The carbonate gangue mineral is dominantly ankerite, whereas siderite is the most common carbonate gangue mineral in many other mesothermal silver-lead-zinc districts.

Wall rock alteration is commonly marked as a myriad of quartz veinlets which are accompanied by sericite, chlorite, silicification, and ankerite on fractures. Some retrograde alteration is present as epidote along fractures. Underground drilling suggests that many of the vein systems appear to either persist or strengthen at depth. Additionally, Broili et al. (2006) notes that many of the veins exposed in underground workings are often significantly richer in silver-lead-zinc than the same veins exposed at the surface.

Figure 7.3 shows both the exploration and development tunnels (tunnels) and veins in the SGX area in plan. Figure 7.4 shows a cross section of SGX. Table 7.2 shows the attributes of the ten biggest veins.

amcconsultants.com65
NI 43-101 Technical Report Update on the Ying Ag-Pb-Zn Property in Henan Province, People's Republic of China
 
Silvercorp Metals Inc.0723067
Figure 7.3Tunnels and veins in the SGX area

amcconsultants.com66
NI 43-101 Technical Report Update on the Ying Ag-Pb-Zn Property in Henan Province, People's Republic of China
 
Silvercorp Metals Inc.0723067
Figure 7.4Cross section on Line 2, SGX

amcconsultants.com67
NI 43-101 Technical Report Update on the Ying Ag-Pb-Zn Property in Henan Province, People's Republic of China
 
Silvercorp Metals Inc.0723067

Table 7.2 presents a summary of the characteristics of the major mineralized veins in the SGX area.

 

Table 7.2Dimensions and orientations of mineralized veins in the SGX area

 

Vein # Length of
vein (m)
Defined inclined
depth (m)
Elevation of
defined depth (m)
Dip direction
(°)
Dip angle
(°)
Average true
thickness / range (m)
S8 3,905 1,074 850 - (-213) 297-317 71-91 0.58 (0.29-1.57)
S19 2,084 1,102 825 - (-277) 293-313 77-97 0.69 (0.36-1.93)
S7 2,102 970 839 - (-131) 290-310 80-100 0.75 (0.38-2.86)
S7_1 2,005 1,231 850 - (-337) 321-341 64-84 0.58 (0.28-1.74)
S2 1,332 1,098 721 - (-377) 290-310 78-98 0.58 (0.32-1.74)
S16W_Ag 1,902 1,129 798 - (-236) 85-105 56-76 0.73 (0.29-1.68)
S14 1,837 1,021 802 - (-199) 288-308 68-88 0.51 (0.23-1.43)
S21 1,776 997 820 - (-177) 111-131 79-99 0.66 (0.26-1.54)
S6 1,443 915 715 - (-89) 286-306 51-71 0.43 (0.21-1.29)
S32 1,287 972 885 - (-26) 68-88 59-79 0.52 (0.33-1.54)

Note: Veins are ranked by Measured and Indicated tonnes.

 

7.3.3HZG area

The HZG mine area, south of the SGX area, has 43 silver-lead-zinc veins in which mineralization has been defined to date. Underground and surface sampling and drilling indicates that 14% to 23% of the vein-filling material in these veins is strongly mineralized over a true weighted average width of 0.45 m (ranging from 0.30 m to 2.64 m). The veins contain distinctly more copper but lower zinc than the district’s many other veins. For example, one of the largest HZG veins defined to date, HZ20E, contains an average of 0.74% copper, which occurs mostly in chalcopyrite and tetrahedrite. The tetrahedrite commonly forms massive lenses, probably filling tension gashes that are distributed in relay-like fashion near the vein margins and in ladder-like fashion near the centre of the veins. The chalcopyrite occurs as disseminated crystals in the gangue and in the tetrahedrite. Other sulphides include galena (up to several percent locally) and pyrite.

The contact of the HZG veins with the wall-rock is sharply marked by shearing and gouge. The gangue is predominantly quartz-ankerite with conspicuous amounts of bright green fuchsite, a chrome-bearing muscovite alteration product that is especially abundant near the HZG vein margins. Fuchsite is a common alteration product in many greenstone-related mesothermal gold districts throughout the world.

The HZG veins mostly trend northeast-southwest, bending north-northeast–south-southwest toward the western margin, although there are a few vein systems that trend approximately north-south as shown in plan on Figure 7.5. The five largest veins based on Measured and Indicated Mineral Resource tonnes, HZ26, HZ22, HZ10, HZ26W, and HZ22S, account for 56% of this mineralization.

amcconsultants.com68
NI 43-101 Technical Report Update on the Ying Ag-Pb-Zn Property in Henan Province, People's Republic of China
 
Silvercorp Metals Inc.0723067
Figure 7.5 Tunnels and veins in the HZG area

amcconsultants.com69
NI 43-101 Technical Report Update on the Ying Ag-Pb-Zn Property in Henan Province, People's Republic of China
 
Silvercorp Metals Inc.0723067

Table 7.3 presents a summary of dimensions and occurrences of major mineralized veins in the HZG area.

 

Table 7.3Dimensions and orientations of major mineralized veins in the HZG area

 

Vein # Length of
vein (m)
Defined inclined
depth (m)
Elevation of
defined depth (m)
Dips to
(°)
Dip angle
(°)
Average true
thickness / range (m)
HZ26 1,610 903 1,028-126 306-326 77-97 0.49 (0.31-1.66)
HZ22 1,196 574 981-407 294-314 78-98 0.45 (0.30-1.31)
HZ10 705 488 886-454 94-114 52-72 0.47 (0.30-1.34)
HZ26W 818 724 982-258 300-320 79-99 0.45 (0.30-1.17)
HZ22S 810 688 1,022-341 297-317 71-91 0.36 (0.30-1.46)
HZ20E 566 711 1,019-349 80-100 60-80 0.33 (0.30-1.03)
HZ11 604 445 877-441 107-127 68-88 0.59 (0.30-1.59)
HZ20_6 630 722 990-350 75-95 52-72 0.38 (0.30-1.35)
HZ20_4 486 725 1,005-326 55-75 59-79 0.33 (0.30-1.11)
HZ11_1 246 265 740-476 113-133 76-96 0.48 (0.37-1.67)

Note: Veins are ranked by Measured and Indicated tonnes.

 

7.3.4HPG area

The HPG mine area is located in the central part of the district, immediately north-east of the SGX mine. Figure 7.6 shows the tunnels and veins in the HPG area in plan view. Table 7.4 describes the attributes of the ten biggest veins. Mineralization is currently defined in 71 veins. The five largest veins, based on Measured and Indicated Mineral Resource tonnes, H17, H16, H15, H17E1, and H17E2, account for 39% of the mineralization. Sampling at various levels in workings along these vein structures indicates that from 27% to 50% or more of the vein material is mineralized, ranging from 0.30 m to 5.76 m in width, averaging 0.69 m.

The veins occur in relatively permeable fault-fissure zones and are extensively oxidized from the surface to depths of about 80 m. Within this zone, the veins show many open spaces with conspicuous box-work lattice textures resulting from the leaching and oxidation of sulphide minerals. Secondary minerals present in varying amounts in this zone include cerussite (lead carbonate), malachite (copper carbonate), and limonite (hydrous iron oxide). Beneath this oxide zone, sulphide minerals are mixed with secondary oxide minerals in the vein, with sulphides becoming increasingly abundant downward to about 150 m depth, beyond which fresh sulphides are present with little or no oxidation.

The dominant sulphides are galena, typically comprising a few percent to 10% of the vein, together with a few percent sphalerite, pyrite, chalcopyrite, and freibergite-tetrahedrite. Other metallic minerals in much smaller amounts include argentite, native silver, native gold, bornite, and various sulfosalts. The minerals occur in narrow massive bands, veinlets or as disseminations in the gangue, which consists of quartz, sericite, and carbonate, occurring as dolomite and calcite with some ankerite.

amcconsultants.com70
NI 43-101 Technical Report Update on the Ying Ag-Pb-Zn Property in Henan Province, People's Republic of China
 
Silvercorp Metals Inc.0723067
Figure 7.6Tunnels and veins in the HPG area

 

Table 7.4 summarizes features of major veins in the HPG area.

 

Table 7.4Dimensions and orientations of major mineralized veins in the HPG area

 

Vein # Length of
vein (m)
Defined inclined
depth (m)
Elevation of
defined depth (m)
Dips to
(°)
Dip angle
(°)
Average true
thickness / range (m)
H17 1,815 1,283 853 - (-426) 315-335 75-95 0.77 (0.41-2.06)
H16 657 681 844-179 332-352 67-87 0.75 (0.38-1.85)
H15 816 1,153 745 - (-361) 322-342 63-83 0.88 (0.30-1.56)
H17E1 711 886 880-3 317-337 71-91 0.55 (0.30-1.67)
H17E2 1,395 526 900-407 322-342 59-79 0.54 (0.30-1.71)
H11 634 645 870-254 321-341 62-82 0.63 (0.30-1.18)
H16_1 416 632 723-100 327-347 69-89 0.77 (0.43-1.8)
H14 729 765 900-170 332-352 62-82 0.66 (0.32-1.58)
H20W 348 313 605-321 100-120 55-75 0.71 (0.36-1.36)
H13 535 649 850-201 133-153 78-98 0.68 (0.30-1.39)

Note: Veins are ranked by Measured and Indicated tonnes.

amcconsultants.com71
NI 43-101 Technical Report Update on the Ying Ag-Pb-Zn Property in Henan Province, People's Republic of China
 
Silvercorp Metals Inc.0723067
7.3.5TLP and LM area

As the mineralization style is similar at the TLP, LME, and LMW mines, they are discussed together here. There are 126 known veins at TLP and 117 at LMW and 63 at LME. Figure 7.7 shows the distribution of veins in the TLP and LM area in plan view. Table 7.5 to Table 7.7 describe the attributes of the ten biggest veins for each mine. TLP contains no gold-rich veins. LME has two gold-rich veins, LM4E2 and LM4E3. LMW has ten gold-rich veins as listed in Table 7.1.

The five largest veins at TLP, T2, T3_3, T3, T11, and T1W1, account for 34% of the mineralization defined to date at that mine. At LMW the five largest veins, LM7, LM50, LM12, LM17_1, and LM12_1 account for 32% of the mineralization defined to date in that mine. At LME the five largest veins, LM5, LM5E, LM6, LM3, and LM3_2, account for 46% of the mineralization defined to date in that mine. The five largest veins for all three mines are based on Measured and Indicated Mineral Resource tonnes.

 

Figure 7.7Distribution of mineralized veins in the TLP-LM area

amcconsultants.com72
NI 43-101 Technical Report Update on the Ying Ag-Pb-Zn Property in Henan Province, People's Republic of China
 
Silvercorp Metals Inc.0723067

Extensive underground sampling at various levels along or across the main veins indicates that a significant amount of the vein-filling material is strongly mineralized with massive, semi-massive and disseminated galena as well as minor amounts of chalcopyrite and sphalerite over widths of 0.3 m to 10 m or more. Other metallic minerals present in much smaller amounts include pyrite, hematite, and very sparse amounts of acanthite.

The veins at TLP mostly dip westward, while those at LM dip steeply both east and west. Previous mining and stoping along the Vein T1 and Vein T2 structures at TLP indicate that the mineralization plunges shallowly to the north within structural zones extending hundreds of metres to a thousand metres or more along strike. The main mineralization occurs as massive accumulations or disseminations in the veins. The galena often occurs as massive tabular lenses comprised of coarsely crystalline aggregates or fine-grained granular “steel galena” bodies, which can be up to 1.0 m thick and 100 m or more in vertical and horizontal dimensions.

Most of the silver in the TLP-LM veins is present as microscopic inclusions in the galena. It appears that Ag:Pb ratios are distinctly different between veins of the northern TLP area (North Zone) and the southern TLP and LM area (South Zone). Based upon 15 verification samples collected for a previous Technical Report (Broili et al., 2008), veins in the South Zone appear to have much higher zinc contents and higher Ag:Pb ratios (90 to 130 g silver for each percent lead) than veins from the North Zone (5 to 15 g silver for each percent lead), as well as proportionally less gold. It is thought this difference is the result of zonation or reflects differences in the level of exposure of the vein systems.

Gangue in the TLP-LM vein systems is mostly fine-grained silica with zones of quartz-carbonate minerals and occasional inclusions of altered wall-rock. The carbonate is dominantly ankerite, in contrast to siderite, which is the most common carbonate gangue mineral in many mesothermal silver-lead-zinc districts.

The veins occur in relatively permeable fault-fissure zones and are extensively oxidized from the surface to depths of about 80 m. Within this zone, the veins show many open spaces with conspicuous box-work lattice textures resulting from the leaching and oxidation of sulphide minerals. Secondary minerals present in varying amounts in this zone include cerussite, malachite, and limonite. Beneath this oxide zone, sulphide minerals are mixed with secondary oxide minerals in the vein, with sulphides becoming increasingly abundant downward to about 150 m depth, beyond which fresh sulphides are present with little or no oxidation.

Wall rock alteration consists of numerous quartz veinlets accompanied by sericite, chlorite, silicification, and ankerite on fractures. The vein systems appear to have better continuity and increasing mineralization at depth, and many veins exposed in the underground workings are often significantly richer in silver-lead-zinc than the same veins exposed at the surface. This suggests that the mineralization is either leached from the surface outcrops or more likely becomes richer at depth due to primary mineral zoning (Broili et al., 2006).

Since 2020, ten gold veins have been discovered at LMW. These vein structures are characterized by higher gold grades and gentle dip angles between 10 and 30°. In general, there are two groups of gentle dip veins with higher gold grades. Group one includes LM50, LM50_3, LM52, LM54, and LM59, and group two includes LM21, LM22, LM26, and LM28.

For example, LM50, the largest Au vein at LMW, dips south-east at dip angles between 2 and 22°. The thickness ranges between 0.41 - 2.06 m (average thickness 0.81 m) and has been defined over 1,100 m along strike and over 630 m down-dip. The gold mineralization is associated with K-feldspar-ankerite-quartz-pyrite-galena veinlets and stockwork alteration hosted in gneiss. The mineralization is dominated by gold with low grades of silver and lead.

amcconsultants.com73
NI 43-101 Technical Report Update on the Ying Ag-Pb-Zn Property in Henan Province, People's Republic of China
 
Silvercorp Metals Inc.0723067

LM26 is another one of the larger veins. It and LM22 both dip north-west with dip angles between 15 and 35°, and have been defined around 400 m along strike and over 600 m down-dip with average thickness of 0.65 m. The veins are coarse-grained quartz-ankerite veins with banded and disseminated pyrrhotite, pyrite and minor chalcopyrite, and galena. The grade distributions within the veins are variable. Both veins have a spatially coincident smaller high-grade gold and copper core. The high-grade core has gold assays ranging from 0.5 g/t to 100 g/t gold and copper assays ranging from 0.25 to > 10% copper. Silver values in both veins average 18 g/t Ag with only 3% of the assays being over 100 g/t silver and the highest silver value being 7,853 g/t. Veins contain sporadic values of lead and zinc.

The TLP system also contains some epithermal veins and veinlets. These veins contain abundant large vugs lined with carbonate and they either crosscut or follow some of the mesothermal filled structures.

Dimensions and occurrences of major mineralized veins from the TLP and LM area are summarized in Table 7.5, Table 7.6, and Table 7.7.

 

Table 7.5Dimensions and orientations of major mineralized veins in the TLP area

 

Vein # Length of
vein (m)
Defined inclined
depth (m)
Elevation of
defined depth (m)
Dips to
(°)
Dip angle
(°)
Average true
thickness / range (m)
T2 2,320 1,225 1,184 - (-2) 301-321 65-85 0.77 (0.38-2.43)
T3_3 1,353 1,207 1,219-140 287-307 53-73 1.14 (0.43-3.49)
T3 1,788 1,244 1,092 - (-113) 300-320 65-85 0.77 (0.38-2.6)
T11 1,480 1,017 1,034-102 296-316 56-76 0.51 (0.36-1.7)
T1W1 1,175 1,047 1,141-222 298-318 51-71 0.6 (0.33-1.6)
T3W1 507 275 1,190-926 286-306 63-83 1.88 (0.46-5.22)
T23 1,611 744 1,094-371 303-323 66-86 0.52 (0.28-1.49)
T22E 773 741 1,033-298 70-90 72-92 0.49 (0.43-1.74)
T1 1,904 768 1,184-431 296-316 68-88 0.65 (0.34-1.67)
T5 1,477 902 1,165-338 293-313 56-76 0.56 (0.28-1.67)

Note: Veins are ranked by Measured and Indicated tonnes.

 

Table 7.6Dimensions and orientations of major mineralized veins in the LMW area

 

Vein # Length of
vein (m)
Defined inclined
depth (m)
Elevation of
defined depth (m)
Dips to
(°)
Dip angle
(°)
Average true
thickness / range (m)
LM7 1,430 1,129 1,133-290 303-323 38-58 2 (0.64-14.34)
LM50 1,110 634 906-773 147-167 2-22 0.81 (0.41-2.06)
LM12 881 894 1,093-295 304-324 53-73 0.63 (0.27-1.82)
LM17_1 684 883 1,168-347 309-329 58-78 0.86 (0.35-1.76)
LM12_1 826 818 1,081-326 307-327 57-77 0.64 (0.32-1.7)
LM41E 413 611 1,021-412 249-269 74-94 0.58 (0.29-1.51)
W1 442 411 1,139-730 286-306 75-95 0.71 (0.35-1.5)
W5 575 595 1,080-489 306-326 72-92 0.56 (0.31-1.38)
LM26 1010 999 835-426 317-337 14-34 0.64 (0.31-1.61)
LM19W2 654 496 813-321 233-253 72-92 0.49 (0.3-1.36)

Note: Veins are ranked by Measured and Indicated tonnes.

amcconsultants.com74
NI 43-101 Technical Report Update on the Ying Ag-Pb-Zn Property in Henan Province, People's Republic of China
 
Silvercorp Metals Inc.0723067
Table 7.7Dimensions and orientations of major mineralized veins in the LME area

 

Vein # Length of
vein (m)
Defined inclined
depth (m)
Elevation of
defined depth (m)
Dips to
(°)
Dip angle
(°)
Average true
thickness / range (m)
LM5 2,060 1,352 1,121 - (-161) 312-332 61-81 0.56 (0.35-1.79)
LM5E 1,148 975 952-33 306-326 60-80 0.68 (0.36-2.21)
LM6 1,184 1,062 1,124-143 297-317 57-77 0.53 (0.27-1.64)
LM3 1,307 935 1,187-343 302-322 54-74 0.49 (0.31-1.28)
LM3_2 780 667 1,175-526 304-324 66-86 0.49 (0.31-1.76)
LM4 1,072 773 1,130-386 283-303 64-84 0.55 (0.26-1.31)
LM4E2 2,333 2,143 1,119-347 311-331 11-31 1.06 (0.38-2.66)
LM3_1 503 643 985-368 307-327 63-83 0.51 (0.34-1.48)
LM5E2 1,112 1,129 966 - (-127) 305-325 65-85 0.52 (0.34-1.57)
LM3_2E 603 563 1,184-644 311-331 63-83 0.73 (0.46-2.05)

Note: Veins are ranked by Measured and Indicated tonnes.

 

7.3.6DCG area

The DCG project area is in the north-east part of the district, immediately north of the TLP mine (Figure 7.8). Mineralization is currently defined in 18 veins. The five largest veins based on Measured and Indicated Mineral Resource tonnes, C9_2, C4E, C76, C4, and C9_3, account for 77% of the Mineral Resources defined to date at DCG. Sampling in workings along vein structures indicates that from 18% to 35% or more of the vein material is mineralized, ranging from 0.30 m to 6.99 m in width, averaging 0.55 m (Table 7.8). C76 and the “C9” veins (C9E1, C9_2, C9_3, C9_4, C9_5) are the gold-rich veins at DCG. The “C9” veins have a different orientation from the other veins in that they extend north-northwest with dip direction around 60-90°, while the other veins extend north-east.

The veins occur in relatively permeable north-east striking fault-fissure zones and are oxidized from the surface to depths of about 50 m. Weak silver-lead mineralization at surface was exposed by trenches at around 200 m intervals. The grade improves with depth.

The dominant sulphides are galena, typically comprising a few percent to 10% of the vein, together with a few percent sphalerite and pyrite and minor argentite. The minerals occur in narrow massive bands, veinlets, or as disseminations in the gangue, which consists of quartz, sericite, and carbonate, occurring as dolomite and calcite with some ankerite. The dominant mineralization is silver-lead. The typical silver grade ranges between 20 and 285 g/t, although grades as high as 3,232 g/t are encountered. The gold rich veins at DCG are C76 and the “C9” veins. The “C9” veins are quartz-carbonate veins with banded and disseminated pyrite and galena. The economic metals are gold and silver with minor lead. Vein C76 is controlled by a fracture and breccia zone, with silicification, carbonate and sericite alteration. Gold is the dominant metal element with minor silver and lead.

amcconsultants.com75
NI 43-101 Technical Report Update on the Ying Ag-Pb-Zn Property in Henan Province, People's Republic of China
 
Silvercorp Metals Inc.0723067
Figure 7.8Tunnels and veins in the DCG area

 

Table 7.8 summarizes features of the veins in the DCG area.

 

Table 7.8Dimensions and orientations of the mineralized veins in the DCG area

 

Vein # Length of
vein (m)
Defined inclined
depth (m)
Elevation of
defined depth (m)
Dips to
(°)
Dip angle
(°)
Average true
thickness / range (m)
C9_2 504 351 931-677 64-84 36-56 0.6 (0.23-1.7)
C4E 847 532 1,016-509 324-344 62-82 0.57 (0.31-1.62)
C76 938 459 971-618 305-325 40-60 0.54 (0.36-2.77)
C4 925 509 1,080-609 317-337 57-77 0.72 (0.46-1.95)
C9_3 449 424 1,015-703 60-80 37-57 0.77 (0.38-1.66)
C8 1,430 544 1,074-588 308-328 53-73 0.34 (0.26-1.18)
C9_4 486 405 933-640 69-89 36-56 0.43 (0.23-1.28)
C8E1 548 328 942-646 310-330 54-74 0.46 (0.36-1.18)
C9E1 134 104 795-719 91-111 37-57 0.36 (0.27-1.31)
C78 237 139 821-726 315-335 33-53 0.47 (0.26-1.18)

Note: Veins are ranked by Measured and Indicated tonnes.

amcconsultants.com76
NI 43-101 Technical Report Update on the Ying Ag-Pb-Zn Property in Henan Province, People's Republic of China
 
Silvercorp Metals Inc.0723067
8Deposit types

The deposit type for the silver-lead-zinc mineralization described in this report is epigenetic vein deposits that have mesothermal characteristics. Mesothermal vein systems typically occur in rocks associated with orogenic belts, in the case of the Ying district, the Qinling orogenic belt. Mineralization is associated with deep-seated shear zones that cut the metamorphic rocks. The veins form in a temperature range of 200 – 300°C, at pressure depths from 600 m to 5,000 m. The veins occur in sets with the major veins in the system tending to be continuous for over 1,000 m in lateral and vertical extent.

A small number of gold-bearing veins were discovered in the last three years. They are gently dipping, which is a different orientation from the steeply to moderately dipping silver-lead-zinc veins. The gold-rich veins may be formed a little earlier than the silver-lead-zinc veins, but are likely part of the same mesothermal vein system. They are also hosted in the same metamorphic rocks.

amcconsultants.com77
NI 43-101 Technical Report Update on the Ying Ag-Pb-Zn Property in Henan Province, People's Republic of China
 
Silvercorp Metals Inc.0723067
9Exploration
9.1Introduction

From 1 January 2022 to 31 December 2023 (2022 – 2023), Silvercorp conducted extensive exploration programs on the Property that consisted exclusively of underground exploration-development activities including extensive sampling at all mines. The past exploration activities, of geological mapping (1:50,000), stream sediments geochemical mapping (1:50,000), aerial magnetic geophysical survey, and trenching, have been detailed in previous technical reports prepared for Ying Property projects (Broili et al., 2006; Xu et al., 2006; Broili and Klohn, 2007; Broili et al., 2008; Broili et al., 2010; Klohn et al., 2011).

Other than drilling, the projects have been explored primarily by underground development (termed tunnelling), and sampling. The workings follow the vein structures along strike, on levels spaced approximately 40 m apart. Silvercorp has found this method of underground exploration an effective and efficient way to define the geometry of the mineralized structures, in part due to the discontinuous character of the high-grade mineralization, but also due to the relatively inexpensive development costs. The channel sampling method is described in Section 11.2.3.

Channel samples are collected across the mineralized structures in the back of drift tunnels and the walls of crosscut tunnels at 5 m intervals, with the spacing of channel samples increasing to 15 or 25 m in the non-mineralized sections of the vein structures. Channels can consist of multiple chip samples. Chip samples may include mineralization or associated wall rock. Assay results of samples are documented on underground level plans and longitudinal sections. Details of the procedures and parameters relating to the underground channel sampling and discussion of the sample quality are given in Section 11.

Tunnelling and channel sampling done by Silvercorp prior to 2021 is summarized in the following Section 9.2.

9.2Summary of tunnelling prior to 2022

Table 9.1 is a summary table of the tunnelling and channel samples completed up to 31 December 2021. Additional details on this sampling can be found in the technical reports referenced in the footnotes.

Table 9.1Summary of tunnelling and sampling completed to 31 December 2021

 

Mine Period Tunnelling (m) # Channel samples

SGX

Sept 2004 - Dec 2010 83,583 24,235
Jan 2011 - Dec 2011 11,186 1,965
Jan 2012 - June 2013 16,123 3,654
July 2013 - June 2016 53,111 11,056
July 2016 - Dec 2019 74,239 23,465
Jan 2020 - Dec 2021 26,356 10,734
SGX total 264,598 75,109

HZG

Jan 2006 - Dec 2010 11,539 3,570
Jan 2011 - Dec 2011 4,002 1,369
Jan 2012 - June 2013 5,437 1,971
July 2013 - June 2016 9,261 3,102
July 2016 - Dec 2019 15,862 6,316
Jan 2020 - Dec 2021 8,011 4,767
HZG total 54,112 21,095
amcconsultants.com78
NI 43-101 Technical Report Update on the Ying Ag-Pb-Zn Property in Henan Province, People's Republic of China
 
Silvercorp Metals Inc.0723067

Mine Period Tunnelling (m) # Channel samples

HPG

Jan 2007 - Dec 2010 27,966 3,939
Jan 2011 - Dec 2011 6,589 760
Jan 2012 - June 2013 9,588 1,646
July 2013 - June 2016 13,305 4,386
July 2016 - Dec 2019 19,706 5,276
Jan 2020 - Dec 2021 7,224 4,106
HPG total 84,378 20,113

TLP

Jan 2008 - Dec 2010 23,919 10,392
Jan 2011 - Dec 2011 13,635 4,522
Jan 2012 - June 2013 16,077 7,541
July 2013 - June 2016 20,992 11,110
July 2016 - Dec 2019 54,122 26,522
Jan 2020 - Dec 2021 30,460 13,676
TLP total 159,205 73,763

LME

Jan 2008 - Dec 2010 5,346 2,067
Jan 2011 - Dec 2011 1,381 562
Jan 2012 - June 2013 5,144 1,755
July 2013 - June 2016 8,767 3,448
July 2016 - Dec 2019 10,988 4,201
Jan 2020 - Dec 2021 6,045 3,940
LME total 37,671 15,973

LMW

Jan 2008 - Dec 2010 6,852 2,209
Jan 2011 - Dec 2011 4,044 1,552
Jan 2012 - June 2013 5,650 2,397
July 2013 - June 2016 22,949 11,064
July 2016 - Dec 2019 26,256 9,437
Jan 2020 - Dec 2021 10,094 5,779
LMW total 75,845 32,438

DCG

Before Dec 2010 - -
Jan 2011 - Dec 2011 - -
Jan 2012 - June 2013 - -
July 2013 - June 2016 - -
July 2016 - Dec 2019 514 117
Jan 2020 - Dec 2021 5,551 2,195
DCG total 6,065 2,312
Mine totals   681,874 240,803

Sources: Jan 2011 - Dec 2011 is AMC, 2012; Jan 2012 - June 2013 is AMC, 2014; July 2013- June 2016 is AMC, 2017; July 2016 - Dec 2019 is AMC, 2020; Jan 2020 - Dec 2021 is AMC, 2022. Information for all other dates was provided by Silvercorp in 2024.

 

The QP notes that there are 2,095 surface channel samples from SGX, HZG, HPG, TLP, and LMW taken prior to 2021. Silvercorp has not provided additional information on this sampling.

The following Section, 9.3, contains long sections of a main vein for each mine and displays all tunnelling to 31 December 2023.

amcconsultants.com79
NI 43-101 Technical Report Update on the Ying Ag-Pb-Zn Property in Henan Province, People's Republic of China
 
Silvercorp Metals Inc.0723067
9.3Tunnelling progress 2022 - 2023

Underground exploration tunnelling, along with the drilling programs discussed in Section 10, were conducted during 2022 - 2023 to upgrade the Indicated and Inferred Mineral Resources and discover new mineralization in sub zones and splays. These programs were designed to test the down-dip and along strike extensions of the major mineralized vein structures and their parallel subzones, and to explore new target areas. The programs comprised 116,123 m of tunnelling, including 71,962 m of drifting along mineralized structures, and 30,376 m of cross cutting across mineralized structures. Drift and crosscut tunnels have been developed at 30 m to 50 m intervals vertically to delineate higher-category Mineral Resources. A total of 64,573 channel / chip samples were collected from the seven mine areas. Note that this number of channel / chip samples is slightly different than those discussed in Section 11. The reasons for these differences are discussed in Section 12. The numbers below come from the individual mine databases.

Statistics for the tunnelling and sampling exploration work completed at each project area are summarized in Table 9.2.

Table 9.2Tunnelling and sampling completed in 2022 - 2023

 

Mine Tunnelling Total metres Channel samples (pcs)

SGX

Drifting 16,364

12,049

Crosscut 6,079
Raise & others 7,328
Subtotal 29,771

HZG

Drifting 6,265

9,167

Crosscut 2,650
Raise & others 648
Subtotal 9,563

HPG

Drifting 6,175

5,969

Crosscut 3,926
Raise & others 1,170
Subtotal 11,271

TLP

Drifting 25,122

19,891

Crosscut 11,955
Raise & others 1,989
Subtotal 39,065

LME

Drifting 3,668

2,564

Crosscut 1,754
Raise & others 597
Subtotal 6,019

LMW

Drifting 11,266

12,414

Crosscut 3,159
Raise & others 991
Subtotal 15,416

DCG

Drifting 3,102

2519

Crosscut 853
Raise & others 1064
Subtotal 5,019
Total   116,123 64,573

Notes: pcs=pieces. Numbers may not compute exactly due to rounding. Channel samples in this table include those taken in drifts, crosscuts and raises & other. Channel samples listed in Section 11 do not include raises & others.

amcconsultants.com80
NI 43-101 Technical Report Update on the Ying Ag-Pb-Zn Property in Henan Province, People's Republic of China
 
Silvercorp Metals Inc.0723067

On average, 41% of the exploration drift tunnelling was mineralized (mineralization rate). As an example, Table 9.3 summarizes mineralization structures exposed in drift tunnels developed in 2022 – 2023, including the mineralization rate for each mine.

 

Table 9.3Mineralization exposed by drift tunnelling in 2022 - 2023

 

Mine Completed
meterage (m)
Mineralization
exposed (m)
Mineralization
rate
Mineralization
width (m)
Ag
(g/t)
Pb
(%)
Zn
(%)
Au
(g/t)
Cu
(%)
SGX 16,364 8,404 51% 0.68 336 6.08 2.99 0.00 0.00
HZG 6,265 2,054 33% 1.97 206 0.51 0.14 0.00 0.21
HPG 6,175 2,158 35% 0.89 91 3.65 0.96 2.07 0.15
TLP 25,122 10,255 41% 0.73 225 3.31 0.47 0.02 0.06
LME 3,668 1703 46% 0.52 380 2.19 0.54 0.02 0.09
LMW 11,266 3628.9 32% 0.70 389 2.33 0.34 1.88 0.46
DCG 3,102 1,365 44% 0.59 63 3.34 0.25 2.28 0.05
Total / average 71,962 29,566 41% 0.79 267 3.75 1.18 0.49 0.11

 

The results of the 2022 - 2023 underground tunnelling program demonstrate good down-dip and along strike consistency in relation to existing production veins and resulted in the discovery of numerous subzones and splays beside major vein structures in the Property.

·At the west side of the SGX resource area, several subzones of S1, such as S1W2, S1W3, and S1W5, were discovered with higher thickness and Ag and Pb grades.
·Cross sections at the footwalls of H16 of HPG exposed thick splay veins H16_1 and H16_3 with higher Au grade.
·Tunnelling at higher elevation at TLP extended the high-grade mineralization of T15, T16 and T17 between elevation of 800 m and 990 m, and T1 and T3 between elevation 990 and 1,120 m. In addition, a continuously mineralized, gently dipping gold vein T50 was discovered in PD730 at elevation around 730 m, which indicates there may be some gently dipping gold veins at TLP similar to those at LMW.
·The newly discovered high-grade mineralization in W18W has been continuously exposed for over 100 m at 850 m elevation, which also has important implications for the future exploration of north-west-trending mineralized vein structures at the higher elevations at the LMW mine. In addition, new discoveries of higher-grade gold vein structures LM28 at the west and LM52 at the east of the resource area led to the continuous expansion of Au resources at LMW.

The QP notes that there are 614 surface channel samples from SGX (563 samples) and HPG (51 samples) taken in 2022. There was no surface channel sampling in 2023. Silvercorp has not provided additional information on this sampling.

 

The following sections summarize the results of the 2022 - 2023 exploration tunnelling programs by mine. Note the tables show select veins and do not represent the whole mine area. For average grades of the sampled material for the individual mines, see Table 9.3. The breakdown of what is termed underground tunnelling includes drifting, crosscuts, and raises. The component by area is shown in Table 9.2.

9.4SGX

A total of 29,771 m of underground tunnelling was completed along and across major production vein structures S1, S1W2, S1W5, S2, S2a_4, S2Wa, S2W2, S2W2a, S7_1, S7_1E, S7_2, S7W, S8, S8E, S14, S14_2, S18W, S19, S19W, S21, S21W1, S22, S31, and S32 between the 530 m and the 60 m elevations. Drift and crosscut tunnels were developed at 30 m to 50 m intervals through eight

amcconsultants.com81
NI 43-101 Technical Report Update on the Ying Ag-Pb-Zn Property in Henan Province, People's Republic of China
 
Silvercorp Metals Inc.0723067

access tunnels, CM101, CM102, CM103, CM105, PD16, PD690, PD700, and the ramp, to upgrade and expand drill-defined Mineral Resource blocks. A total of 12,049 chip samples were collected during the 2022 - 2023 program. High grade mineralized zones have been exposed in tunnels on most levels at the SGX mine. Underground channel samples from selected mineralized zones collected during the reporting period are weighted by true thickness and reported in Table 9.4. Figure 9.1 gives an example of the channel sample density and location of drifts on one of the main veins at SGX.

 

Table 9.4 Mineralization zones defined by the 2022 - 2023 tunnelling in SGX

 

Tunnel ID

Vein

Level
(m)
Length of
mineralized zone
along strike (m)
True width
(m)
Weighted average grade
Ag
(g/t)
Pb
(%)
Zn
(%)
CM101-S19-350-1MWTJ-QGX S19 380 35 0.98 315 14.44 4.22
CM101-S7_1E-110-2NYM S7_1E 110 60 0.93 554 14.63 4.29
CM101-S7_1E-110-2SYM S7_1E 110 40 0.91 318 8.79 4.71
CM105-1#-S18W-210-14NYM S18W 210 50 0.49 640 12.08 2.48
CM105-1#-S2W2-450-14SYM S2W2 450 65 0.73 491 13.80 3.16
CM105-S2SJ-S1-140-10SYM S1 140 105 0.60 971 10.87 4.88
CM105-S2SJ-S1-180-10NYM S1 180 60 0.81 598 9.77 2.62
CM105-S2SJ-S1-180-10SYM S1 180 55 0.66 626 7.12 4.27
CM105-S2SJ-S1-260-10ANYM S1 260 23 0.88 582 7.22 3.45
CM105-S2SJ-S1W5-260-14ANYM S1W5 260 25 0.44 904 5.84 4.26
CM105-S2SJ-S2W2-340-12_XB_QGX S2W2 320 30 0.48 250 14.66 1.75
CM105-S2SJ-S2W2a-180-10SYM S2W2a 180 25 1.06 957 24.53 0.99
PD16-S2-60-4ASYM S2 60 75 0.45 350 9.76 3.23
PD700-S8-530-25_XB_QGX S8 530 62 0.72 239 14.33 0.42
XPD-S19W-260-15NYM S19W 260 25 0.67 348 8.87 2.84
XPD-S7_2-160-11A_XB_QGX S7_2 160 25 0.87 503 7.95 4.26
CM101-S19-110-6SYM S19 110 25 0.70 307 13.55 0.70
PD16-S2 -210-6ANYM S2a_4 210 60 0.82 794 16.13 1.97
XPD-S7_1E-210-1BNYM S7_1 210 55 0.69 439 7.41 2.14
XPD-S8W -210-15NYM S8 210 55 0.89 969 6.52 0.28
CM105-1#-S22-350-12SYM S22 350 55 0.54 386 13.74 0.83
PD16_2J-S14_2-210-6A_XB_QGX S14_2 210 25 0.51 251 7.17 9.02
CM105-S2SJ-S2-100-12ATJ-QGX S2 115 35 0.90 1,187 3.46 1.10
CM105-1#-S21-400-16TJ-QGX-NYM S21 437 30 0.87 183 14.08 0.99
XPD-S8E-300-17SYM S8E 300 50 0.63 806 2.41 1.42
CM105-S2SJ-S1W2-260-14SYM S1W2 260 32 0.90 498 10.53 3.41
CM105-1#-S7W1-260-12SYM S7W 260 55 0.43 586 5.20 2.57
CM105-1#-S21W1-490-10ASYM S21W1 490 27 0.61 437 7.41 3.34
CM105-S2SJ-S1W2-260-14NYM NW_F1 260 75 0.48 410 9.22 0.51
CM102-S32-480-83SYM S32 480 70 0.84 1,154 11.38 1.19
CM101-S7_1-210-2ASYM S7_1 210 85 0.47 532 4.82 0.71
CM105-1#-2J-S18W-210-14NYM S18W 210 55 0.41 731 7.67 3.54
PD16-S2-110-4ANYM S2 110 90 0.58 365 9.90 2.33
PD16-S2-160-4ANYM S2 160 105 1.08 512 9.74 1.00

 

amcconsultants.com82
NI 43-101 Technical Report Update on the Ying Ag-Pb-Zn Property in Henan Province, People's Republic of China
 
Silvercorp Metals Inc.0723067

 

Tunnel ID

Vein

Level
(m)
Length of
mineralized zone
along strike (m)
True width
(m)
Weighted average grade
Ag
(g/t)
Pb
(%)
Zn
(%)
PD700-S8-490-17A_QK_QGX S8 490 60 0.79 765 16.42 0.65
XPD-S19W-300-17NYM S19W 300 40 0.43 375 5.94 5.48
CM105-1#-S14-350-20NYM S14 350 55 0.64 509 9.25 1.57
CM105-S2SJ-S1-220-8ANYM S1 220 87 1.24 947 11.01 4.02
PD16-S31-300-6ASYM S31 300 100 0.50 655 3.75 5.28
XPD-S19-110-11ASYM S19 110 85 1.27 617 13.63 1.40
PD700-S8-530-19_QK_QGX S8 530 40 0.78 645 16.66 0.50
CM101-S7_2-160-1TJ-QGX S7_2 160 45 0.64 505 5.22 1.01
XPD-S8-160-13ASYM S8 160 79 0.85 510 8.61 0.29

Note: Selected results from 1 January 2022 to 31 December 2023.

 

Figure 9.1Longitudinal projection of Vein S8, SGX

 

 

Source: Silvercorp, 2024.

 

amcconsultants.com83
NI 43-101 Technical Report Update on the Ying Ag-Pb-Zn Property in Henan Province, People's Republic of China
 
Silvercorp Metals Inc.0723067

 

9.5HZG

 

The purpose of the underground tunnelling program of 9,563 m was to delineate and upgrade the previous drill-defined Mineral Resource blocks within the major vein structures HZ20E, HZ26, HZ10, HZ22, HZ12, HZ22, and HZ27 between the 450 m and the 650 m elevations. Drift and crosscut tunnels were developed at 40 m to 50 m intervals through three access tunnels PD810, PD780, and PD820 and are connected with raises, declines, and shafts through different levels. A total of 9,167 chip samples were collected during the 2022 - 2023 program. High-grade mineralized zones were exposed in tunnels on different levels along major mineralized vein structures HZ10, HZ11, HZ12, HZ20E, HZ22, HZ26, and HZ27. The underground channel samples from selected mineralized zones collected during the reporting period are weighted by true thickness and reported in Table 9.5. Figure 9.2 gives an example of the channel sample density and location of drifts on one of the main veins at HZG.

 

Table 9.5 Mineralization zones defined by the 2022 - 2023 tunnelling in HZG

 

Tunnel ID

Vein

Level
(m)
Length of
mineralized zone
along strike (m)
True width
(m)
Weighted average grade
Ag
(g/t)
Pb
(%)
Zn
(%)
PD718-HZ11-550-29NYM HZ11 550 58 0.95 546 1.28 0.23
PD718-HZ10-550-127SYM HZ10 550 25 1.14 367 2.60 0.43
PD718-HZ26-450-43SYM HZ26 450 50 1.12 366 1.60 0.36
PD718-HZ26-450-45SYM HZ26 450 25 0.66 441 0.36 0.17
PD718-HZ26-500-41SYM HZ26 500 41 0.90 568 0.48 0.24
PD718-HZ26-500-45SYM HZ26 500 40 1.01 435 0.86 0.20
PD820-HZ22W-650-47ASYM HZ22 650 28 0.53 498 2.27 0.32
PD820-HZ27-650-47-NYM HZ27 650 30 0.56 947 1.07 0.22
PD820-MSJ-HZ20E-500-145SYM HZ20E 500 85 0.68 461 0.20 0.25
PD718-HZ11-600-29ASYM HZ11 600 45 1.09 317 2.67 0.27
PD718-HZ10-600-29NYM HZ10 600 25 0.90 556 0.54 0.17
PD718-HZ11-600-29ANYM HZ11 600 25 0.88 477 1.34 0.69
PD718-HZ12-650-33SYM HZ12 650 93 0.58 480 2.51 0.15
PD718-HZ26-450-41SYM HZ26 450 25 1.48 652 0.79 0.29
PD718-HZ26-500-37ASYM HZ26 500 42 1.10 728 0.36 0.31
PD718-HZ26-500-37ASYM HZ26 500 28 1.21 821 1.10 0.50
PD718-HZ26-500-37ASYM HZ26 500 45 0.99 506 0.34 0.13

Note: Selected results from 1 January 2022 to 31 December 2023.

 

amcconsultants.com84
NI 43-101 Technical Report Update on the Ying Ag-Pb-Zn Property in Henan Province, People's Republic of China
 
Silvercorp Metals Inc.0723067

 

Figure 9.2 Longitudinal projection of Vein HZ26, HZG

 

Source: Silvercorp, 2024.

 

9.6HPG

 

Compared with mineralized vein systems in other areas, mineralization in the HPG area is characterized by significantly higher gold grade and significantly lower grades for silver.

 

The purpose of the 11,271 m underground tunnelling program was to further delineate and upgrade the previous drill-defined Mineral Resource blocks within major vein structures B08, H5, H5E, H5_1, H11, H12_1, H13, H13_1, H15, H15_1, H15_2, H15W, H16, H16_3, H17_1, H17_2, H20W, H32, H32E1, and H41W between the 50 m and the 740 m elevations. Drift and crosscut tunnels were developed at 30 m to 50 m intervals through access tunnels PD2, PD3, PD6, PD600, PD630, and ramp. A total of 5,969 chip samples were collected. Significant mineralization zones were exposed in drift tunnels on different levels along the major vein structures. The underground channel samples from selected mineralized zones collected during the reporting period are weighted by true thickness and reported in Table 9.6. Figure 9.3 gives an example of the channel sample density and location of drifts on one of the main veins at HPG.

 

amcconsultants.com85
NI 43-101 Technical Report Update on the Ying Ag-Pb-Zn Property in Henan Province, People's Republic of China
 
Silvercorp Metals Inc.0723067

 

Table 9.6Mineralization zones defined by the 2022 - 2023 tunnelling in HPG

 

Tunnel ID

Vein

Level
(m)
Length of
mineralized zone
along strike (m)
True width
(m)
Weighted average grade
Au
(g/t)
Ag
(g/t)
Pb
(%)
Zn
(%)
PD2-H20W-490-25SYM H20W 490 262 0.73 5.21 75 2.58 0.77
PD3-H15_6-380-SYM H15_6 380 28 0.70 1.84 157 5.82 0.40
PD3-H16-420-19SYM H16 420 25 1.02 9.54 20 0.74 0.82
PD3-H16-460-25SYM H16 460 40 0.96 3.70 53 0.93 0.92
PD5-H41W-610-25SYM H41W 610 35 0.76 0.95 119 2.97 1.76
PD600-H5-560-4NYM1 H5 560 50 0.97 0.22 328 2.33 0.22
PD720-H13_1-740-8NYM H13_1 740 55 0.67 0.48 133 5.43 0.64
PD720-H13-740-8SYM H13 740 70 0.86 0.50 120 9.20 0.19
PD720-H17_1-740-8NYM H17_2 740 30 0.69 0.51 99 9.72 0.11
SC2-H13-690-4NYM H13 690 135 0.97 0.45 113 7.70 0.24
SC2-H15_2-690-6SYM H15_2 690 23 1.53 0.02 81 7.24 0.06
PD3-H17_1-100-Resue-18QGX H17_1 100 28 1.01 1.56 41 1.74 3.81
PD3-H15_1-380-38SYM H15_1 380 20 0.71 0.14 50 6.13 6.10
PD3-H16_3-380-21NYM H16_3 380 85 1.12 4.16 76 2.16 1.81
PD3-H32E1-380-12NYM H32E1 380 60 0.60 0.56 79 6.11 2.74
PD3-H16_3-460-23NYM H16_3 460 30 0.83 12.08 329 2.37 0.61
PD600XPD-H12_1-520-27NYM_EXP H12_1 520 70 1.26 2.50 33 2.46 0.66
PD630-H15_2-610-10NYM H15_2 610 29 0.95 0.06 132 9.01 0.02
PD638-H5-638-EYM H5 638 49 0.76 0.19 165 3.36 0.12
SC2-H17-690-6NYM H17_1 690 18 1.47 0.53 123 6.41 0.09
PD720-H15-740-20NYM H15 740 45 1.83 2.45 201 12.95 0.04
PD720-H15W-740-18NYM H15W 740 80 0.69 1.99 121 1.73 0.31

Note: Selected results from 1 January 2022 to 31 December 2023.

 

amcconsultants.com86
NI 43-101 Technical Report Update on the Ying Ag-Pb-Zn Property in Henan Province, People's Republic of China
 
Silvercorp Metals Inc.0723067

 

Figure 9.3 Longitudinal projection of Vein H17, HPG

 

 

Source: Silvercorp, 2024.

 

9.7TLP

 

The purpose of the 39,065 m underground tunnelling program was to further delineate and upgrade the previous drill-defined Mineral Resource blocks within major vein structures T1, T1E, T1W, T1W1, T1W2, T2, T2W, T2W2, T3, T3E, T4, T5, T5E1, T11, T11E, T11E3, T11E4, T14, T14E, T15, T15W, 15W1, T15W3, T16, T16E1, T16E2, T16W, T17, T17E, T17W, T20, T21, T21E, T22, T22E, T22E1, T22W, T23, T31W, T31W2, T31W3, T33, T33E, T33E1, T33E3, T33W, T35E, T35E2, T38, T39E, T39E2, and T39W between the 500 m and the 1,120 m elevations. Drift and crosscut tunnels were developed at 30 m to 50 m intervals through seven access tunnels PD730, PD800, PD820, PD840, PD846, PD890, PD930, PD960, PD1050, and ramp PD820XPD. A total of 19,891 chip samples were collected. Mineralized zones were exposed in drift tunnels on different levels along the major vein structures and numerous new mineralized subzones and splays were discovered. The underground channel samples from selected mineralized zones collected during the reporting period are weighted by true thickness and reported in Table 9.7. Figure 9.4 gives an example of the channel sample density and location of drifts on one of the main veins at TLP.

 

amcconsultants.com87
NI 43-101 Technical Report Update on the Ying Ag-Pb-Zn Property in Henan Province, People's Republic of China
 
Silvercorp Metals Inc.0723067

 

Table 9.7Mineralization zones defined by the 2022 - 2023 tunnelling in TLP

 

Tunnel ID

Vein

Level
(m)
Length of
mineralized zone
along strike (m)
True width
(m)
Weighted average grade
Ag
(g/t)
Pb
(%)
Zn
(%)
PD1070-T2W2-1070-1SYM T2W2 1,070 85 1.32 399 3.16 0.35
PD820-T16W-820-14NYM T16W 820 45 0.94 1,122 3.06 1.47
PD820-T15W-755-8NYM T15W 755 55 0.53 279 4.83 0.24
PD820-T15-820-12NYM T15 820 35 0.61 199 4.62 0.58
PD730-T2W-700_Sublevel-7NYM T2W 700 30 0.57 403 7.70 0.84
PD820-T11E-820-12NYM T11E 820 30 0.62 272 4.17 0.25
PD820XPD-T22E-650-4SYM1 T22E 650 88 0.92 275 3.22 0.31
PD1050-T21-1050-5NYM T21 1,050 40 1.50 296 2.79 0.13
PD820XPD-T22E-550-14NYM T22E 550 55 1.07 298 7.62 1.81
PD820-T16W-820-24NYM T16W 820 90 0.75 424 1.43 1.02
PD820-T15W-820-12SYM T15W 820 30 0.55 265 3.81 0.60
PD820-T17E-650-14SYM T17E 650 26 0.60 328 2.19 0.67
PD820-T15W2-795-12SYM T15W2 795 60 0.71 525 2.11 0.36
PD820-T15W-700-Sublevel_4NYM T15W 700 31 1.08 522 4.62 0.17
PD730-T3-700_Sublevel-11NYM T3 700 35 0.69 274 3.43 0.31
PD840-T1W1-840-Resuing_Sublevel_4SYM T1W1 840 40 0.70 276 4.96 0.39
PD820-T15-820-18SYM T15 820 143 0.61 434 1.71 0.78
PD730-T2-700_Sublevel-15NYM T2 700 40 1.55 171 5.06 0.51
PD820XPD-T1W-700-2SYM T1W 700 75 0.56 247 2.82 0.43
PD820-T15-795-18NYM T15 795 194 0.59 431 2.30 0.68
PD820-T16W-600-5SYM T16W 600 92 0.61 351 3.44 0.62
PD890-T16E-890-2NYM T16E 890 35 0.68 386 0.90 0.27
PD730-T3E-700_Sublevel-13SYM T3E 700 68 0.86 427 6.28 0.85
PD1070-T1E-1120-4SYM T22E1 1,120 65 0.80 300 1.70 0.06
PD1070-T1-1070-4NYM T1 1,070 84 0.70 183 5.98 0.08
PD1070-T3E-1120-4SYM T3E 1,120 35 0.82 98 9.91 0.27
PD820-T15-846-16SYM T15 846 120 0.70 480 1.49 0.61
PD960-T33W-960-19SYM T33W 960 32 0.63 390 1.83 0.29
PD890-T1W-890-9NYM T1W 890 40 0.95 629 1.29 0.39
PD820-T11-650-16NYM T11 650 48 0.65 597 2.48 1.36
PD840-T16-840-19SYM T16 840 63 0.77 904 3.17 0.24
PD1070-T22E1-1120-4NYM T22E1 1,120 33 1.23 132 7.96 0.12
PD820XPD-T38-650-21NYM T38 650 68 0.52 482 2.96 1.59
PD890-T16E2-890-8NYM T16E2 890 39 0.71 224 3.51 0.56
PD730-T2-780-35NYM T2 780 48 0.61 374 2.81 0.07
PD800-T33E1-800-Resuing_Sublevel_5SYM T33E1 800 45 0.54 255 2.97 0.48
PD800-T38-800-5SYM T38 800 40 0.55 300 2.64 0.27
PD820-T16W-798-20SYM T16W 820 40 0.77 1,603 2.45 1.41
PD820XPD-T17W-500-1SYM T17W 500 170 0.73 107 7.63 0.59
PD890-T15W1-890-10SYM T15W1 890 68 0.64 278 2.02 0.32

Note: Selected results from 1 January 2022 to 31 December 2023.

 

amcconsultants.com88
NI 43-101 Technical Report Update on the Ying Ag-Pb-Zn Property in Henan Province, People's Republic of China
 
Silvercorp Metals Inc.0723067

 

Figure 9.4 Longitudinal projection of Vein T3, TLP

 

 

Source: Silvercorp, 2024.

 

9.8LME

 

A total of 6,019 m of underground tunnelling was completed at the LME mine. The purpose of the drifting program was to upgrade existing drill-defined Mineral Resource blocks along mineralized vein structures. Drift and crosscut tunnels were developed at 40 m to 50 m intervals between the 550 m and the 1,012 m elevations through shaft PD900, and access tunnels PD838 and PD959 respectively. A total of 2,564 chip samples were collected. Drifting was mainly focused on the LM5, LM3, LM3_1, LM18, LM18E2, LM6W, LM71, and LM74 Veins, and successfully extended the strike lengths of known mineralized zones between the 1,012 m and the 550 m elevations. The underground channel samples from selected mineralized zones collected during the reporting period are weighted by true thickness and reported in Table 9.8. Figure 9.5 gives an example of the channel sample density and location of drifts on one of the main veins at LME.

 

amcconsultants.com89
NI 43-101 Technical Report Update on the Ying Ag-Pb-Zn Property in Henan Province, People's Republic of China
 
Silvercorp Metals Inc.0723067

 

Table 9.8Mineralization zones defined by the 2022 - 2023 tunnelling in LME

 

Tunnel ID

Vein

Level
(m)

Length of
mineralized zone
along strike (m)

True width
(m)

Weighted average grade
Ag
(g/t)
Pb
(%)
Zn
(%)
PD838-LM3_1-845-77SYM LM3_1 845 45 0.53 1,045 1.73 0.64
PD838-LM3-845-77SYM LM3 845 120 0.50 354 1.30 0.26
PD900-LM3_1-650-73SYM LM3_1 650 45 0.79 634 2.67 0.52
PD900-LM5-550-72NYM LM5 550 30 0.44 575 2.18 1.17
PD900-LM71-650-73NYM LM71 650 35 0.59 404 2.33 0.82
PD838-LM74-870-YM LM74 870 48 0.83 477 0.47 0.08
PD900-LM6W-600-74WCM LM6W 600 20 1.39 589 1.74 0.16
PD1012-LM18-1012-54NYM LM18 1,012 50 0.37 636 3.61 0.26
PD1012-LM18E2-1012-52NYM LM18E2 1,012 75 0.60 331 1.18 0.07
PD900-LM3-1-650-73NYM LM3-1 650 70 0.58 342 3.24 0.80
PD900-LM3-1-700-69NYM LM3_1 700 30 0.40 604 1.31 1.50
PD900-LM3-1-700-69SYM LM3_1 700 70 0.68 321 1.83 0.26
PD900-LM3-600-73NYM LM3 600 40 0.41 344 2.56 0.11
PD900-LM3-600-73SYM LM3 600 35 0.46 713 4.34 0.38
PD900-LM5-550-70NYM LM5 550 40 0.67 305 2.06 1.01
PD900-LM5-550-72NYM LM5 550 95 0.46 344 1.81 0.50
PD959-LM18E2-959-54NYM LM18E2 959 33 0.54 307 3.51 0.08

Note: Selected results from 1 January 2022 to 31 December 2023.

 

Figure 9.5Longitudinal projection of Vein LM5, LME

 

Source: Silvercorp, 2024.

 

amcconsultants.com90
NI 43-101 Technical Report Update on the Ying Ag-Pb-Zn Property in Henan Province, People's Republic of China
 
Silvercorp Metals Inc.0723067

 

9.9LMW

 

The 15,416 m underground tunnelling program was focused on vein structures LM7, LM7E, LM8, LM8_1, LM8_3, LM12_1, LM12E, LM13, LM17, LM17W2, LM26, LM41_1, LM41E, W1, W2, W6E, W18, and W18W, as well as the parallel zones spatially associated with these major structures. Underground tunnelling was conducted on levels between the 600 m and the 1,070 m elevations through shaft SJ969, ramps XPDS and XPDN, and four access tunnels PD918, PD991, PD969, and PD924. A total of 12,414 chip samples were collected. High-grade mineralized zones from 22 m to 105 m in length were exposed in drift tunnels at different levels. The discovery of high-grade zones in Vein W1 and W2 in the north-west of the resource area at 1,040 m and 998 m levels have resulted in the re-modelling of some of the major vein structures at LMW. The gently dipping higher-gold veins, LM22, LM26, LM28, LM50, and LM52, were exposed between level 650 m and 850 m, which led to the updating of the gold veins. The underground channel samples from selected mineralized zones collected during the reporting period are weighted by true thickness and reported in Table 9.9. Figure 9.6 gives an example of the channel sample density and location of drifts on one of the main veins at LMW.

 

Table 9.9 Mineralization zones defined by the 2022 – 2023 tunnelling at LMW

 

Tunnel ID

Vein

Level
(m)
Length of
mineralized zone
along strike (m)
True width
(m)
Weighted average grade
Au
(g/t)
Ag
(g/t)
Pb
(%)
Zn
(%)
XPDN-LM12_1-650-7NYM LM12_1 650 25.00 0.75 0.70 1,167 3.20 0.20
XPDN-LM26-650-1SHSH LM26 650 30.00 0.01 2.48 1,010 4.77 0.62
PD988-W2-988-138SYM W2 988 32.00 0.52 1.85 1,384 0.39 0.09
XPDN-LM41_1-840-3NYM LM41_1 840 105.00 0.37 0.03 1,132 2.76 0.34
XPDN-LM41E-800-113SYM LM41E 800 33.00 0.38 0.02 391 5.69 0.22
XPDN-LM41E-700-9SYM LM41E 700 45.00 0.38 0.02 680 8.11 0.42
XPDS-LM41E-600-111NYM LM41E 600 70.00 0.47 0.02 289 5.71 0.46
XPDNS-LM41E-600-111SYM LM41E 600 30.00 0.53 0.07 334 11.10 0.54
PD969Shaft-LM8_1-600-110NYM LM8_1 600 30.00 0.64 0.04 174 11.64 0.73
PD988-W2-988-138SYM W2 988 22.00 0.55 0.24 1,014 1.07 0.16
PD918-W6E-880-134NYM W6E 880 35.00 1.15 0.02 104 8.44 0.16
PD1040-W18-1040-138NYM W18 1,040 60.00 0.44 0.09 1,061 2.54 0.34
XPDN-LM26-550-1SHSH2 LM26 650 27.50 0.53 2.30 671 1.82 0.24
PD1080-LM17W2-1050-9S/NYM LM17W2 1,050 87.50 0.49 0.07 524 1.51 0.11
XPDN-LM7E-550-13SYM LM7E 650 50.00 0.41 0.26 549 1.67 0.70
XPDN-LM26-550-0SHSH LM26 650 43.00 0.96 5.69 262 0.12 0.04
XPDN-W18-800-136NYM W18 800 32.50 1.09 0.17 1,475 1.05 0.51
XPDN-LM26-550-0R&P2#SHSH LM26 650 45.00 0.79 1.49 239 0.94 0.13
XPDN-LM26-550-1SYM LM26 650 28.00 0.39 6.20 47 0.16 0.03
XPDN-LM50-780-5-7R&P2SHSH LM50 780 30.00 0.77 9.32 26 0.33 0.13
PD990-LM17W2-990-9SYM LM17W2 990 72.50 0.46 0.05 478 1.98 1.09
PD990-LM17W2-990-9SYM LM17W2 990 30.00 0.64 0.05 1,025 3.39 0.94
XPDN-LM26-550-0R&P3#SHSH LM26 650 27.50 0.91 7.65 1,049 2.69 0.12
XPDN-LM50-780-5-7SHSH1 LM50 780 30.00 0.77 7.88 20 0.71 0.10
PD1040-W1-1070-8NYM W1 1,070 50.00 0.74 0.02 670 1.30 0.31
PD990-LM41_1-990-111SYM LM41_1 990 37.50 0.50 0.05 734 1.59 0.67
XPDN-LM50-780-5-7R&PSHSH1 LM50 780 32.50 0.82 14.44 55 1.14 0.39

 

amcconsultants.com91
NI 43-101 Technical Report Update on the Ying Ag-Pb-Zn Property in Henan Province, People's Republic of China
 
Silvercorp Metals Inc.0723067

Tunnel ID

Vein

Level
(m)
Length of
mineralized zone
along strike (m)
True width
(m)
Weighted average grade
Au
(g/t)
Ag
(g/t)
Pb
(%)
Zn
(%)
XPDN-LM26-550-1R&P2#SHSH LM26 650 27.50 0.91 3.72 23 0.01 0.04
PD988-W18E-988-140SYM W18E 988 30.00 0.53 0.06 599 0.94 0.24
XPDN-LM52-750-11SYM_SHSH LM52 750 22.50 0.57 6.06 4 0.02 0.09
XPDN-LM21-750-11SYM LM52 750 45.00 0.71 10.89 4 0.01 0.02
PD930XPD-W18W-850-144SYM W18W 850 97.50 0.84 0.06 224 7.35 0.43
PD918-W6E2-880-134NYM W6E2 880 30.00 0.56 0.05 531 1.50 0.87
XPDN-LM17W-750-13SYM LM17W 750 30.00 0.42 0.06 386 4.22 0.38

Note: Selected results from 1 January 2022 to 31 December 2023.

 

Figure 9.6Longitudinal projection of Vein LM7, LMW

 

 

 

Source: Silvercorp, 2024.

 

9.10DCG

The 5,019 m underground tunnelling program was focused on vein structures C4, C4E, C7, C8, and C9, as well as the parallel zones spatially associated with these major structures. Underground tunnelling was conducted on level 850 m, 800 m, and 750 m elevation. The underground tunnelling on level 850 m through 800 m to 750 m exposed the continuous higher-gold vein structures C9 series. Detailed underground mapping indicated that C9 consists of a series of gold veins C9_1 to C9_5 with similar occurrence and displaced by a set of north-east striking faults. A total of

amcconsultants.com92
NI 43-101 Technical Report Update on the Ying Ag-Pb-Zn Property in Henan Province, People's Republic of China
 
Silvercorp Metals Inc.0723067

2,519 channel samples were collected. The underground channel samples from selected mineralized zones collected during the reporting period are weighted by true thickness and reported in Table 9.10. Figure 9.7 gives an example of the channel sample density and location of drifts on one of the main veins at DCG.

Table 9.10Mineralization zones defined by the 2022 – 2023 tunnelling at DCG

 

Tunnel ID

Vein

Level
(m)
Length of
mineralized zone
along strike (m)
True width
(m)
Weighted average grade
Au
(g/t)
Ag
(g/t)
Pb
(%)
Zn
(%)
DCG-XPD-C9-800-YM C9_4 800 40.00 0.69 7.26 67 0.13 0.12
DCG-XPD-C9-750-50BSYM C9_2 750 35.00 0.56 2.99 104 0.14 0.19
DCG-XPD-C8E1-780-401ASYM C8E1 800 35.00 0.43 0.68 191 4.67 1.33
DCG-XPD-C9-750-50BSYM C9_2 750 30.00 0.56 5.96 32 0.08 0.10
DCG-XPD-C9 1-750-53ASYM C9_1 750 40.00 0.85 15.09 112 0.31 1.32
DCG-XPD-C9-750-50BSYM C9_2 750 40.00 0.52 3.94 16 0.23 0.20
DCG-XPD-C9-750-55SYM C9 750 30.00 0.84 6.01 22 0.22 0.15
DCG-XPD-C7-750-404NYM C7 750 60.00 0.54 0.19 46 8.80 0.78
DCG-XPD-C8E1-750-402SYM C8E1 750 42.50 0.50 0.54 199 6.37 0.19
DCG-XPD-C4-800-403SYM C4 800 25.00 0.61 0.10 43 9.45 0.11

Note: Selected results from 1 January 2022 to 31 December 2023.

 

Figure 9.7Longitudinal projection of Vein C9_2, DCG

 

 

Source: Silvercorp, 2024.

amcconsultants.com93
NI 43-101 Technical Report Update on the Ying Ag-Pb-Zn Property in Henan Province, People's Republic of China
 
Silvercorp Metals Inc.0723067
10Drilling

 

10.1Drilling summary

Since acquiring the Ying projects, Silvercorp has initiated systematic drilling programs to test the strike and down-dip extensions of the major mineralized vein structures and explore for new mineralized structures in less-explored or unexplored areas in the Property. From January 2004 to December 2023, a total of 2,392,889 m in 10,793 holes was drilled on the Property from surface and underground set-ups.

 

A summary of the drilling undertaken by Silvercorp between 2004 and December 2021 is presented in Table 10.1. This includes drilling on the mine targets as well as reconnaissance drilling on projects which are summed separately. Further details on this drilling are provided in the previous Technical Reports.

 

Representative longitudinal sections for the veins are presented in Section 9. Figure 7.4 (Section 7) presents a cross section which demonstrates drill intersection angles relative to the vein geometry.

  

Table 10.1Summary of drilling completed by Silvercorp, 2004 to December 2021

 

Mine Period Number of holes Meterage (m)
Underground Surface
SGX Jan 2004 - Dec 2021 2,252 259 630,661
HZG May 2006 - Dec 2021 423 128 145,719
HPG May 2006 - Dec 2021 788 222 228,888
TLP Jan 2008 - Dec 2021 1,386 118 358,463
LM Jan 2008 - Dec 2011 324 11 114,458
LME Jan 2012 - Dec 2021 495 82 123,650
LMW Jan 2012 - Dec 2021 917 71 239,998
DCG Jan 2010 - Dec 2021 117 119 38,880
Mine subtotal Jan 2004 - Dec 2021 6,702 1,010 1,880,717
Project
RHW 2006 0 7 1,981
XM 2006 0 2 479
SDG-LIG Jul 2007 – Jun 2013 36 18 17,151
Project subtotal   36 27 19,611
Total Jan 2004 - Dec 2021 6,738 1,037 1,900,328
amcconsultants.com94
NI 43-101 Technical Report Update on the Ying Ag-Pb-Zn Property in Henan Province, People's Republic of China
 
Silvercorp Metals Inc.0723067

Table 10.2 presents the drilling carried out by mine from January 2022 to December 2023. This drilling post-dates the last Technical Report and is discussed in detail below.

Table 10.2Summary of the 2022 - 2023 drilling program on the Property
Mine Surface Underground Total
Number of collars Metres Number of collars Metres Number of collars Metres
SGX 118 26,392 555 96,026 673 122,418
HZG 53 12,540 175 33,999 228 46,539
HPG 82 13,457 224 32,888 306 46,344
TLP 92 14,345 421 68,949 513 83,293
LME 50 13,396 287 48,901 337 62,297
LMW 68 12,658 738 91,984 806 104,642
DCG 62 11,635 93 14,392 155 26,027
Total 525 104,423 2,493 387,139 3,018 491,561

Source: Silvercorp, 2024 based on individual mine databases.

 

Drilling programs were continuously conducted over the Property from January 2022 to December 2023. Underground and surface drilling was carried out in mining areas to test the down-dip extension of major mineralized vein structures, extend the Measured and Indicated Mineral Resources at or above the current mining depth, and infill the Inferred Mineral Resource blocks defined in previous drilling programs below the current mining depth. Most of the holes were designed as inclined holes to test multiple vein structures and to ensure a good intersection angle. A total of 491,561 m in 3,018 diamond holes was completed, including 104,423 m in 525 surface holes and 387,139 m in 2,493 underground holes drilled from at or above the current mining elevations. Results of the diamond drilling program were the down-dip and strike extension of most of the major mineralized veins and the discovery of a number of new mineralized veins in the current mine areas.

10.2Summary of results for 2022 - 2023

Drilling results from the 2022 - 2023 drilling program in the Property are briefly summarized in Table 10.3. These results have been incorporated into the mine databases and contribute to the current Mineral Resource update for the seven deposits.

Table 10.3Brief summary of the 2022 - 2023 drilling results

 

Mine

Holes
completed
No. of
mineralized
Average grade of
mineralized intersections
(g/t AgEq)
Average true width of
mineralized
intersections (m)
Detected depth
elevation (m)
SGX 673 383 624 0.73 878 - (-171)
HZG 228 72 512 0.65 860-375
HPG 306 135 380 0.92 819 - (-42)
TLP 513 307 502 0.99 1,130-517
LME 337 179 502 0.51 1,161-38
LMW 806 383 449 0.96 1,120-139
DCG 155 65 266 0.75 977-649

Notes: Value of 140 g/t AgEq selected as lowest COG for SGX and HPG; 130 g/t for HZG and LME; 125 g/t for TLP and LMW, and 150 g/t for DCG. AgEq formulas and inputs are shown in the footnotes of Table 14.1.

  

Drilling results of individual mine areas for the 2022 - 2023 period are further discussed in the following sections. The silver equivalent (AgEq) formulas and inputs are shown in the footnotes of Table 14.1.

amcconsultants.com95
NI 43-101 Technical Report Update on the Ying Ag-Pb-Zn Property in Henan Province, People's Republic of China
 
Silvercorp Metals Inc.0723067
10.3Discussion of results by mine / deposit
10.3.1SGX

The underground and surface drilling were focused on expanding the known Mineral Resource of major production veins S1, S1W2, S1W3, S2, S2W, S2W2, S6, S6E1, S7, S7_1, S7_2, S7_3, S7E, S8, S8E, S8W, S8W1, S14, S14_1, S16E, S16W, S19, S19E, S19W, and S29. Limited drilling was also conducted on veins S1W5, S7_1E, S7E2, S7W, S16E2, S16W1, S21, S22, S32, and S39, and their branch veins. The results from the program added and extended notable high-grade mineralized zones within vein structures S19, S8, S32, S18, S28, S2, S7_1, S7, and S16W. The 2022 - 2023 SGX drilling program results are summarized in Table 10.4.

Table 10.4Summary of the SGX 2022 - 2023 drilling programs
Target vein Number of holes drilled Holes intercepting mineralization
(= or > 90 g/t AgEq)
Detected depth elevation
(m)
S1 60 20 516 - (-168)
S14 65 20 593-132
S14_1 65 17 603-107
S14_2 23 4 415-193
S14E 18 3 441-173
S14E1 13 2 593-177
S14W 7 3 200-188
S16E 51 14 696-279
S16E1 20 3 597-306
S16E2 32 7 612-497
S16E3 6 2 659-521
S16W 47 21 646-202
S16W1 35 10 636-385
S18 7 2 426-311
S18E 5 2 422-379
S18W 7 2 197-196
S19 74 30 518 - (-83)
S19E 53 9 447 - (-1)
S19W 53 10 470-113
S1W 22 5 270-70
S1W2 52 18 506-95
S1W3 40 9 362-117
S1W5 25 6 287-156
S2 92 35 548 - (-132)
S21 25 14 565-296
S21W 19 8 557-295
S21W1 20 4 562-314
S22 31 6 472-301
S23 5 1 546-546
S28 5 2 439-376
S28W 5 1 426-426
S29 51 13 402-84
S29E 14 5 270-194
S2W 40 17 444 - (-155)
amcconsultants.com96
NI 43-101 Technical Report Update on the Ying Ag-Pb-Zn Property in Henan Province, People's Republic of China
 
Silvercorp Metals Inc.0723067
Target vein Number of holes drilled Holes intercepting mineralization
(= or > 90 g/t AgEq)
Detected depth elevation
(m)
S2W2 82 39 446 - (-164)
S2W3 21 11 413-119
S31 24 4 288-200
S31E 4 1 132-132
S32 26 14 738-227
S33 15 6 482-201
S37 7 1 283-283
S37E 5 2 442-426
S39 32 14 254-57
S4 18 5 442-177
S4E 24 3 521-345
S5 19 4 490-291
S6 92 39 618 - (-44)
S6E 13 1 615-615
S6E1 43 1 221-221
S7 61 24 790-234
S7_1 75 30 660 - (-171)
S7_1E 33 5 808-101
S7_2 79 26 746-185
S7W7 10 3 507-293
S7W3 16 2 420-297
S7_3 57 7 667-257
S7_4 13 1 563-563
S74 7 4 742-307
S7E 45 3 618-107
S7E2 35 9 515-197
S7W 30 8 630-267
S7W1 7 5 365-258
S7W2 1 1 287-287
S7W9 2 2 442-442
S8 73 24 747-40
S8E 53 9 659-141
S8W 53 7 698-49
S8W1 44 2 730-194
S8W2 5 1 187-187

Note: Results from January 2022 to December 2023. Holes intersect more than one vein so the number of holes in this table exceeds the number of holes in Table 10.3. AgEq formulas and inputs are shown in the footnotes of Table 14.1.

 

The drillhole intersection angles with the veins are variable, as in the case of underground drillholes they are drilled as fans of multiple holes from one set-up. This is best seen in Figure 7.4, which is a cross section on Exploration Line 2 for SGX.

amcconsultants.com97
NI 43-101 Technical Report Update on the Ying Ag-Pb-Zn Property in Henan Province, People's Republic of China
 
Silvercorp Metals Inc.0723067
10.3.2HZG

The diamond drilling program was designed to test the along strike and down-dip extension of major mineralized vein structures HZ10, HZ11, HZ12, H15W2, HZ20, HZ22, HZ22E, HZ23, and HZ26, between the 860 m and the 375 m elevations.

The 2022 - 2023 diamond drilling program expanded the mineralization in these and other vein structures for which the results are summarized in Table 10.5.

Table 10.5Summary of the HZG 2022 - 2023 drilling programs
Target vein Number of holes drilled Holes intercepting mineralization
(= or > 90 g/t Ag equivalent)
Detected depth elevation
(m)
HZ20E 8 5 473-625
HZ26 44 15 375-730
HZ23 12 7 496-745
HZ11 23 8 540-680
HZ15W2 13 3 400-670
HZ12 13 1 635
HZ20 29 9 414-794
HZ22E 15 1 731
HZ22W 6 2 687-803
HZ5 7 0  
HZ10 24 11 568-744
HZ15 1 0  
HZ18 5 2 639-817
HZ18W 6 1 758
HZ8 1 0  
HZ27 1 0  
HZ20W 1 0  
HZ22 13 5 630-860
HZ10_1 1 0  
HZ23W 1 1 633
HZ22W2 3 1 628
HZ26E 1 0  

Note: AgEq formulas and inputs are shown in the footnotes of Table 14.1.

 

The drillhole intersection angles with the veins are variable, as in the case of underground drillholes they are drilled as fans of multiple holes from one set-up. This is best seen in Figure 7.4, which is a cross section on Exploration Line 2 for SGX.

10.3.3HPG

The underground diamond drilling program was designed to test the along strike and down-dip extension of the major mineralized vein structures H5, H13, H14, H15, H15W, H16, H17, H17_1, H18, H20W, and H31E1 between the minus 42 m and the 817 m elevations. Significant new mineralized zones were defined within major vein structures H13, H15, H17, H17_1, and H20W along strike and down-dip directions. The 2022 - 2023 HPG drilling program results are summarized in Table 10.6.

amcconsultants.com98
NI 43-101 Technical Report Update on the Ying Ag-Pb-Zn Property in Henan Province, People's Republic of China
 
Silvercorp Metals Inc.0723067
Table 10.6Summary of HPG 2022 - 2023 drilling programs
Target vein Number of holes drilled Holes intercepting mineralization
(= or > 90 g/t Ag equivalent)
Detected depth elevation
(m)
B08 8 8 553-574
H4 7 2 809-817
H5 34 10 267-619
H5_2 12 3 272-324
H5a 27 4 195-452
H5a1 4 1 582-582
H5E 38 10 82-466
H6 12 1 756-756
H9 6 2 610-625
H10_1 11 2 559-599
H10_1a 11 1 631-631
H11 32 10 416-566
H12_1 4 3 533-558
H12_2 3 1 564-564
H12E 3 2 589-617
H13 68 12 360-762
H13a 8 1 359-359
H14 32 5 422-775
H14a 21 2 439-770
H15 58 23 175-737
H15_2 18 5 591-789
H15_3 1 1 583-583
H15W 40 10 194-725
H15W2 1 1 684-684
H15Wa 1 1 334-334
H16 32 8 351-553
H16_1 20 7 463-529
H16_3 23 8 337-439
H17 61 13 (-42) - 774
H17_1 60 11 (-37) - 692
H18 31 6 618-765
H20W 29 11 435-554
H29 10 4 681-730
H32 20 2 660-666
H32a 21 6 660-732
H32E1 36 9 341-755
H39_1E 1 1 571-571
H39_2 6 2 589-600
H40 13 1 442-442
H41W 25 3 568-630
H42 18 4 369-736
H50 5 3 535-551
X3_1 1 1 604-604

Notes: Holes intersect more than one vein so the number of holes in this table exceeds the number of holes in Table 10.3. AgEq formulas and inputs are shown in the footnotes of Table 14.1.

amcconsultants.com99
NI 43-101 Technical Report Update on the Ying Ag-Pb-Zn Property in Henan Province, People's Republic of China
 
Silvercorp Metals Inc.0723067

The drillhole intersection angles with the veins are variable, as in the case of underground drillholes they are drilled as fans of multiple holes from one set-up. This is best seen in Figure 7.4, which is a cross section on Exploration Line 2 for SGX.

10.3.4TLP

The 2022 - 2023 underground diamond drilling program was designed to test along strike and down-dip extensions of the major mineralized vein structures T1, T11, T15W2, T16, T16W, T1W, T1W1, T2, T23 and T3 and to explore for new vein structures in less-explored areas. Results of the drilling program added significant mineralization zones within major vein structures T1, T11, T12, T16, T1W1, T2, T23, T3, and T38. Numerous mineralized parallel and splay structures such as T15W2, T15W3, T17E, T3_3, T38, and T3E12 were discovered beside major vein structures. The results of the 2022 - 2023 drilling program at TLP are summarized in Table 10.7.

Table 10.7Summary of TLP 2022 - 2023 drilling programs
Target vein Number of holes drilled Holes intercepting mineralization
(= or > 90 g/t Ag equivalent)
Detected depth elevation
(m)
T1 33 19 666-1,101
T1_1 4 1 984
T11 42 22 535-917
T11E 6 1 902
T11E1 6 2 754-788
T11E4 4 2 878-907
T12 3 1 517
T14 8 4 680-791
T14E 4 2 786-788
T14E1 1 1 920
T14E2 5 3 907-974
T15 14 4 619-816
T15_1 10 5 815-838
T15_2 1 1 947
T15W 11 6 581-637
T15W1 7 4 903-973
T15W2 21 9 623-953
T15W3 4 4 714-818
T15W4 7 2 920-921
T15W8 5 2 678-685
T16 43 16 576-1,044
T16_2 15 4 691-849
T16E 4 2 894-927
T16E2 6 3 714-896
T16W 21 8 675-823
T16W_1 4 2 652-652
T17 13 2 672-857
T17E 11 7 712-857
T17E1 4 4 661-697
T17W 7 3 570-671
T17W3 5 4 696-737
T1W 20 12 599-916
T1W1 45 29 545-1,117

 

amcconsultants.com100
NI 43-101 Technical Report Update on the Ying Ag-Pb-Zn Property in Henan Province, People's Republic of China
 
Silvercorp Metals Inc.0723067

 

Target vein Number of holes drilled Holes intercepting mineralization
(= or > 90 g/t Ag equivalent)
Detected depth elevation
(m)
T1W2 10 6 585-697
T1W2_1 2 1 823
T1W2_2 7 3 1,008-1,031
T1W3 1 1 690
T2 59 29 516-997
T20 4 2 729-737
T21 5 3 695-744
T21E 2 1 728
T22 9 3 830-1,012
T22_1 5 2 986-991
T22E 9 4 722-747
T22W1 1 1 1,002
T22W3 4 4 888-911
T23 42 20 610-1,058
T26 10 5 1,107-1,117
T26_1 4 1 956
T26E 1 1 957
T28_1 5 5 866-888
T29 3 1 1,012
T2E 1 1 735
T2W 3 1 758
T3 34 20 589-970
T3_3 11 6 1,029-1,119
T31 4 1 770
T31W 2 1 788
T31W3 2 2 910-912
T33E 8 1 1,020
T33E1 1 1 1,018
T35E1 4 2 877-907
T38 15 10 792-946
T39E2 3 1 784
T39W 5 2 791-824
T3E1 2 1 749
T3E12 7 4 912-1,055
T3E5 4 4 833-839
T3E6 1 1 932
T3E8 3 2 1,074-1,093
T3W1 6 3 1,009-1,130
T3W2 1 1 978
T3W4 1 1 881
T4 6 2 745-750
T5 12 9 724-915
T5E1 5 1 821
T5E3 4 2 1,065-1,066

Notes: Holes intersect more than one vein so the number of holes in this table exceeds the number of holes in Table 10.3. AgEq formulas and inputs are shown in the footnotes of Table 14.1.

amcconsultants.com101
NI 43-101 Technical Report Update on the Ying Ag-Pb-Zn Property in Henan Province, People's Republic of China
 
Silvercorp Metals Inc.0723067

 

The drillhole intersection angles with the veins are variable, as in the case of underground drillholes they are drilled as fans of multiple holes from one set-up. This is best seen in Figure 7.4, which is a cross section on Exploration Line 2 for SGX.

The LM mine will be discussed in terms of the two sub areas LME and LMW.

10.3.5LME

The 2022 - 2023 LME underground drilling program was focused on vein structures LM3, LM4, LM5, LM5E, LM6, LM71, and LM75, and their subzones and splay structures. The purpose of the drilling program was to extend known mineralization along strike and down-dip and explore for new veins at or above the current mining depth within the mineralized vein structures. The drilling program added new mineralized zones within major production veins LM3, LM4, LM5, and LM6. The drilling program also discovered vein structures LM71, LM74, and LM75 with resources defined. The results of the 2022-2023 drilling program are summarized in Table 10.8.

Table 10.8 Summary of LME 2022 - 2023 drilling programs
Target vein Number of holes drilled Holes intercepting mineralization
(= or > 90 g/t Ag equivalent)
Detected depth elevation (m)
LM18 14 6 911-1,037
LM18E1 7 4 723-993
LM18E2 11 4 1,015-1,045
LM18W1 5 2 991-1,035
LM18W2 5 4 1,016-1,023
LM18W3 11 3 999-1,022
LM2 27 6 744-1,040
LM2E_1 3 2 1,014-1,016
LM2W 1 1 803
LM3 65 17 563-1,065
LM3_1 47 22 630-875
LM3_2 89 33 591-1,072
LM3_2E 41 12 756-1,101
LM3_3 13 7 795-918
LM3_4 5 3 1,073-1,102
LM3E2 2 1 984
LM3W2 22 5 830-1,161
LM3W3 1 1 541
LM4 56 11 527-995
LM4E 12 3 587-643
LM4E2 25 4 544-613
LM4W 11 2 566-695
LM5 79 22 398-1,015
LM5E 36 12 38-686
LM5E1 10 3 431-463
LM5E2 23 8 395-652
LM5E3 6 1 442
LM5E4 5 3 535-580
LM5E6 3 1 434
LM5W3 9 5 447-645

 

amcconsultants.com102
NI 43-101 Technical Report Update on the Ying Ag-Pb-Zn Property in Henan Province, People's Republic of China
 
Silvercorp Metals Inc.0723067

 

Target vein Number of holes drilled Holes intercepting mineralization
(= or > 90 g/t Ag equivalent)
Detected depth elevation (m)
LM5W4 6 2 439-666
LM5W5 25 9 467-599
LM6 49 18 471-651
LM6_1 23 10 523-647
LM68 5 2 593-667
LM6E 20 8 455-496
LM6E2 5 3 545-575
LM6W 12 6 514-676
LM6W_1 13 8 560-640
LM6W1 1 1 632
LM71 28 13 614-795
LM73 6 3 655-676
LM74 15 4 807-864
LM75 35 14 594-1,073
LM76 7 1 755

Notes: Holes intersect more than one vein so the number of holes in this table exceeds the number of holes in Table 10.3. AgEq formulas and inputs are shown in the footnotes of Table 14.1.

 

The drillhole intersection angles with the veins are variable, as in the case of underground drillholes they are drilled as fans of multiple holes from one set-up. This is best seen in Figure 7.4, which is a cross section on Exploration Line 2 for SGX.

10.3.6LMW

The LMW diamond drilling in 2022 - 2023 was designed to extend and expand the known mineralized zones within major vein structures LM7, LM12, LM14, LM17, LM21, LM22, LM26, LM41E, LM50, W1, W2, and W18, and explore for new mineralized structures in less-explored areas. Results of the drilling program successfully expanded mineralization in vein structures LM7, LM14, LM17, LM21, LM26, LM41E, LM50 W1, W2, and W18, in addition to discovering vein structure LM17W2, LM52, LM12E2, LM28, LM29, and W18W. The 2022 - 2023 drilling program results are summarized in Table 10.9.

Table 10.9 Summary of the LMW 2022 - 2023 drilling programs
Target vein Number of holes drilled Holes intercepting mineralization
(= or > 90 g/t Ag equivalent)
Detected depth elevation (m)
LM11 5 5 715-737
LM11E 4 1 711-738
LM12 19 7 670-990
LM12_1 9 5 575-952
LM12_2 3    
LM12_2a 5 1 811-917
LM12E 3 3 622-688
LM12E2 7 3 868-943
LM13 5 3 679-927
LM13W2 8 4 685-743
LM13Wa 3 2 624-676
LM14 24 10 155-675

 

amcconsultants.com103
NI 43-101 Technical Report Update on the Ying Ag-Pb-Zn Property in Henan Province, People's Republic of China
 
Silvercorp Metals Inc.0723067

 

Target vein Number of holes drilled Holes intercepting mineralization
(= or > 90 g/t Ag equivalent)
Detected depth elevation (m)
LM14_1 7 4 525-575
LM16_1 7 1 641-716
LM17 47 18 537-924
LM17W 1 1 1,087-1,087
LM17W2 9 7 881-1,054
LM19 7 2 784-965
LM19W2 11 2 677-727
LM19Wa 9 4 706-774
LM20 7 7 614-677
LM20W 10 7 625-951
LM21 37 13 653-794
LM22 22 4 819-942
LM26 71 29 499-683
LM28 4 2 988-993
LM29 7 3 1,001-1,028
LM30 10 6 613-676
LM32 5    
LM32E 4 2 568-623
LM33 5 1 563-591
LM41 11 3 782-874
LM41_1 6 3 139-917
LM41E 48 28 550-851
LM50 104 54 753-838
LM52 12 5 693-770
LM7 70 42 531-1,035
LM7W 6 4 862-913
LM7W1 4 3 611-644
LM8 3 1 253-500
LM8_1 8 4 574-673
LM8_2 7 2 760-789
LM8_4E 1    
LM8_4a 5 1 845-856
W1 54 26 669-1,120
W18 37 18 856-1,065
W18W 3 3 984-1,008
W2 30 19 945-1,085
W4 2    
W5 1    
W6 3 2 639-995
W6E 6 4 854-916
W6E1 10 4 875-941

Note: AgEq formulas and inputs are shown in the footnotes of Table 14.1.

 

The drillhole intersection angles with the veins are variable, as in the case of underground drillholes they are drilled as fans of multiple holes from one set-up. This is best seen in Figure 7.4, which is a cross section on Exploration Line 2 for SGX.

 

amcconsultants.com104
NI 43-101 Technical Report Update on the Ying Ag-Pb-Zn Property in Henan Province, People's Republic of China
 
Silvercorp Metals Inc.0723067

 

10.3.7DCG

The DCG diamond drilling in 2022 - 2023 was designed to extend and expand the known mineralized zones within major vein structures C4, C4E, C7, C76, C8, and C9 and explore for new mineralized structures in less-explored areas. Results of the drilling program successfully expanded mineralization in vein structures C4, C4E, C76, and C9 in addition to discovering vein C79. The 2022 - 2023 drilling program results are summarized in Table 10.10.

Table 10.10 Summary of the DCG 2022 - 2023 drilling programs
Target vein Number of holes drilled Holes intercepting mineralization
(= or > 90 g/t Ag equivalent)
Detected depth elevation (m)
C10 1    
C10E 1    
C2 5    
C4 11 3 732-847
C4E 29 15 678-840
C4Ea 2    
C4W 1    
C6 1    
C7 6 2 725-736
C7_1 2 2 785-785
C7_2 1    
C76 10 6 690-920
C77 1 1 741-770
C79 5 2 725-768
C8 3 1 750-960
C8E1 13 2 707-806
C9 40 20 707-842
C9_2 8 5 690-825
C9_4 9 3 738-939
CJ9W1 2 1 783-783

Note: Results from January 2022 to December 2023. AgEq formulas and inputs are shown in the footnotes of Table 14.1.

 

10.4Plans and sections

Plans for each mine and representative examples of drill sections through the deposits are shown in Section 7, Section 9, and Section 14.

10.5Bulk density measurements and results
10.5.1Measurements and results

Prior to 2020, 497 samples were collected for bulk density measurement by Silvercorp from the different mines in the Ying Property. Samples were cut as an individual block of about 1 kilogram (kg) from different mineralization types at each mine area. Several wallrock samples were also collected for comparison purposes. The bulk density was measured using the wax-immersion method by the Inner Mongolia Mineral Experiment Research Institute located in Hohhot, Inner Mongolia. Table 10.11 presents the average bulk densities derived for the Ying deposits prior to 2020.

 

amcconsultants.com105
NI 43-101 Technical Report Update on the Ying Ag-Pb-Zn Property in Henan Province, People's Republic of China
 
Silvercorp Metals Inc.0723067

 

Table 10.11 Bulk density values for the Ying deposits pre-2020

 

Mine Samples
collected
# samples for bulk
density calculation
Average bulk
density
Remarks
SGX, HPG 194 186 N/A Calculated using the Pb and Zn assay results, see formula below.
DCG 0 0 2.70 Assumed based on HZG.
HZG 17 17 2.70 Average of the 17 measurements.
TLP 186 186 2.92 Adopted from previous government exploration reports.
LME, LMW 100 98 2.93 The minimum and maximum values were removed from the dataset.

Source: Compiled by AMC, 2020, using data provided by Silvercorp.

 

A relationship between measured bulk density and the weighted combination of lead and zinc grade was developed using multivariate linear least squares regression, and this formula is used for the SGX and HPG mines. At these mines, the assay values for lead and zinc show a correlation to density and form a good regression line. Samples with a relative error of >20% between the measured and calculated bulk density were removed from the dataset before calculation of the final relationship that was used in the Mineral Resource estimate. The relationship between bulk density and grade is:

Bulk Density = 2.643339 + 0.0524358 x Pb% + 0.011367 x Zn%

Using this formula, the Ying Property bulk density measurements range from ~2.64 tonnes per cubic metre (t/m3) to 6.00 t/m3 with a mean of 2.76 t/m3 for SGX and from 2.64 t/m3 to 5.30 t/m3 with a mean of 2.72 t/m3 for HPG.

In 2020, Silvercorp took an additional 210 density measurements at SGX and 100 density measurements at HPG. AMC reviewed the 2020 SGX data and found that it was very scattered relative to previous density and a poor fit to the prior report’s regression formula. The significant scatter suggests higher experimental errors than in previous years or that the ore type measured in 2020 was different to the ore measured in previous years. The 2020 SGX data does not appear to be satisfactory for use in density estimation without further validation.

The 100 density measurements at HPG and the original 90 density measurements were plotted against the regression line. There remains a reasonable case for applying the 2020 regression model to the HPG resource block model.

The HPG data appears to be affected by the presence of oxidized samples and iron sulphides or oxides, but this cannot be resolved until more samples have been collected.

In the 2020 Technical Report, the bulk density formula above was applied to DCG. In reviewing the data, it was noted that the upper parts of DCG are oxidized. The performance of the regression model in the oxidized zone is uncertain due to the oxidation of sulphide minerals and the formation of secondary porosity. For this reason, 2.7 t/m3 was applied to the Mineral Resource model for DCG. This value is consistent with the value applied to HZG, for which good predictive relationships were also not evident due to the impact of oxidation and formation of secondary porosity.

No additional density measurements were provided to the QP since 2020.

 

amcconsultants.com106
NI 43-101 Technical Report Update on the Ying Ag-Pb-Zn Property in Henan Province, People's Republic of China
 
Silvercorp Metals Inc.0723067

 

10.5.2Recommendations on bulk density

The QP recommends the following:

·The procedures used in the 2020 density measurement for SGX should be independently reviewed and modified, if necessary.
·All density samples should be geologically described, with particular attention to the degree of oxidation and the presence or absence of vughs or porosity.
·The minimum size of the density samples should be 1 kg. The part of the sample that is selected for assaying should be as representative of the mineralization in the part used for density measurement as possible. Assaying of the density sample itself is preferable but only if the wax does not lead to problems with assay sample preparation.
·The regression models are likely to be improved for some samples by inclusion of assays for copper and iron. In samples with a significant content of chalcopyrite, freibergite, pyrite, or hematite, these minerals may make a significant contribution to the overall density of the samples.
·Record if density samples are oxidized or not.
·HZG and DCG are underrepresented in the current density data. Further sampling of these deposits is required.
10.6Drilling procedures

NQ-sized drill cores (48 mm in diameter) are recovered from the mineralized zones. Drill core recoveries are influenced by lithology and average 98 – 99%. Drill core is moved from drill site to the surface core shack located at the mine camp on daily basis and is logged, photographed, and sampled in detail there. Samples are prepared by cutting the core in half with a diamond saw. One half of the core is marked with a sample number and sample boundary and then returned to the core box for archival storage. The other half is placed in a labeled cotton cloth bag with sample number marked on the bag. A pre-numbered ticket book with three connected tickets with the same number is used to assign the sample numbers. A ticket from the book is inserted in the bag, another is stapled onto the core boxes beside the archived sample, and the stub of the ticket book is retained for reference. The bagged sample is then shipped to the laboratory for assaying. Sampling is further discussed in Section 11.

Core recovery at Ying is good. Core recoveries at Ying range between 63.33% and 100% with the average recovery being 98.72%.

10.7Conclusions

The QP is not aware of any drilling, sampling, or recovery factors that could materially impact the accuracy and reliability of the results.

 

amcconsultants.com107
NI 43-101 Technical Report Update on the Ying Ag-Pb-Zn Property in Henan Province, People's Republic of China
 
Silvercorp Metals Inc.0723067
11Sample preparation, analyses, and security
11.1Introduction

This section describes the sampling methods, analytical techniques, security, and assay Quality Control / Quality Assurance (QA/QC) protocols employed at the Ying Property from January 2022 to January 2024. All work programs completed on the Property since 2004 have been managed by Silvercorp and carried out in accordance with the company’s internal procedures.

The QP has reviewed sample preparation, analysis, security and QA/QC protocols, and results for drillhole and sampling programs completed between January 2010 and December 2023. Pre-2010 protocols are reported as being similar, but the results of QA/QC programs were not available for the QP to verify. The QP notes that work completed prior to 2010 comprises approximately 3% of total drilling and 9% of underground sampling databases.

Since the release of the 2021 AMC Technical Report, Silvercorp has collected and analyzed an additional 127,935 drillhole samples and 56,842 underground channel samples from the seven Ying mines. These samples represent approximately 29% of the total Ying drillhole database and 20% of the total Ying channel sample database. While a summary of results for the period 2010 - 2021 is discussed, this report focuses on the work carried out in 2022 and 2023. Readers are referred to previous Technical Reports for additional information on earlier work.

11.2Sampling
11.2.1Introduction

Mineralization within the Ying mines occurs as a series of narrow quartz-carbonate veins which are typically related to steeply dipping, fault-fissure zones, hosted within Archean gneiss and greenstone. Individual veins commonly ‘pinch and swell’, varying in thickness from several centimetres to several metres. In some instances, veins may disappear and reappear within the fault-fissure structures along strike and down-dip.

Silvercorp’s exploration strategy comprises a combination of underground tunnelling and diamond core drilling. Tunnels are typically developed along and across the veins on nominal 40 - 50 m spaced levels, with infill to 20 - 25 m levels where warranted. Raises and declines are developed to provide access to the veins between levels. Diamond core drilling is used to target veins in other locations vertically and laterally.

11.2.2Drillhole sampling

Drilling at the Property has been completed using NQ (48 mm) diamond core. Drillholes are collared from both surface and underground. Drill core is collected in wooden core trays by drilling personnel. Silvercorp geologists visit the drill site daily to check drilling progress, drill core quality, and correct depth markings. Once checks of the core are complete, core is transported to a secure core logging facility at the respective mine.

Silvercorp personnel complete all logging and sampling processes. This comprises the collection of core recovery data, detailed lithological, vein and mineralization logging, core photography, and core sampling. After geological logging, sample intervals are determined by the geologist based on the presence of veining and sulphide content, respecting geological and mineralization contacts. Samples of the adjacent footwall or hangingwall wallrock are collected in addition to the visible mineralization or vein.

 

amcconsultants.com108
NI 43-101 Technical Report Update on the Ying Ag-Pb-Zn Property in Henan Province, People's Republic of China
 
Silvercorp Metals Inc.0723067

 

Silvercorp historically has collected drillhole samples at lengths that generally range between 5 centimetres (cm) and 2 m. The minimum length was increased to 40 cm in recent programs. During the sampling process the geologist records the Hole ID and relevant depth interval of the sample in a sample book with a pre-numbered sample ID and tear-off tags.

After the core has been photographed, core to be sampled is cut in half with a rock saw. One half of the core is collected and placed into cotton bags and the other half of the core is returned to the core tray for archival storage (or quartered if a duplicate sample is required). The sample number for the corresponding interval is then marked on the outside of the cotton bag, and a tear off tag with the sample number is inserted into the bag. The sample number is also recorded on the retained half of the core with an indelible marker for future reference. Sample bags are then sealed and placed into larger rice bags and secured for shipment to the laboratory.

11.2.3Underground sampling

Underground samples comprise a composite of chips collected from channels cut into the walls or faces of tunnels and crosscuts. Faces are typically sampled along sample lines perpendicular to the mineralized vein structure on 5 m intervals within mineralized zones and increasing to 15 m or 25 m intervals within non-mineralized zones. Sampling of mineralized zones typically encompasses samples of adjacent wallrock in addition to the visible mineralization or vein. Sample lengths have historically ranged between ~20 cm and 2 m. The minimum sample length was recently increased to 40 cm.

Samples are collected in cotton bags labelled with a unique sample number. Sample bags are then sealed and placed into larger rice bags and secured for shipment to the laboratory.

11.2.4Sample shipment and security

Drill core is stored in a clean and well-maintained core shack at each mine. Core shacks are locked when unattended and monitored by security personnel 24 hours a day. Figure 11.1 shows photos of the SGX core shack and core storage, and logging facilities at HPG and TLP.

Underground channel samples are transported to the Ying mine laboratory by Silvercorp personnel. Drillhole samples, which are predominantly dispatched to commercial laboratories, are transported by Silvercorp personnel to the respective laboratory or transported by commercial courier.

 

amcconsultants.com109
NI 43-101 Technical Report Update on the Ying Ag-Pb-Zn Property in Henan Province, People's Republic of China
 
Silvercorp Metals Inc.0723067

 

Figure 11.1 Ying sampling processing, logging, and storage facilities

 

 

Notes: Top Left: SGX core processing / logging facility, Top Right: SGX core storage, Bottom Left: HPG Core logging facility, Bottom Right: TLP Core logging facility.

Source: Silvercorp, 2022.

 

11.3Sampling preparation and analysis

Silvercorp has used a total of 10 primary laboratories between 2004 and 2023 for analysis of drill core samples and underground samples. Additional laboratories were utilized primarily between 2019 and 2021 to accommodate the volume of samples and to mitigate protracted laboratory turn-around times. Table 11.1 presents the laboratories used for sample analysis from the Property since 2006.

All external laboratories are certified in accordance with the China Metrology Certification / China Inspection Body and Laboratory Mandatory Approval (CMA) issued by the Chinese government at the national or provincial level. This approval is a mandatory requirement for all commercial laboratory and inspection institutions operating within China that release data to the public. SGS Tianjin is certified in accordance with the China National Accreditation Service for Conformity Assessment (CNAS) in addition to CMA. The CNAS accreditation incorporates ISO/IEC 17025:2017. The Ying site laboratory is not certified by any standards association at the present time.

 

amcconsultants.com110
NI 43-101 Technical Report Update on the Ying Ag-Pb-Zn Property in Henan Province, People's Republic of China
 
Silvercorp Metals Inc.0723067

 

Table 11.1Laboratories used at Ying Project (January 2006 – December 2023)

 

Laboratory name Abbreviated name Location Certification Years used
Henan Found site laboratory Site lab Luoning County, Henan Province No certification 2006 – 2023
SGS-CSTC Standards Technical Services (Tianjin) Co., Ltd. SGS Tianjin CMA, CNAS 2020 – 2023
Analytical Laboratory of Henan Non-Ferrous Metals Geological and Exploitation Institute Henan Nonferrous Ins Zhengzhou, Henan Province CMA 2006 – 2023
Chengde 514 Geological and Mineral Test and Research Co. Ltd. Chengde Chengde, Hebei Province CMA 2016 – 2023
Test Centre of Qiqihar Geological Exploration Institute of Qiqihar, Heilongjiang Qiqihar Geol Test Centre Qiqihar, Heilongjiang Province

CMA

2020 – 2023

Henan Centre of Quality Supervision and Inspection for Gold and Precious Metal Product Henan Gold Test Centre Sanmenxia, Henan Province

CMA

2020 – 2022

Lab of Brigade 1 of Geological and Mineral Exploration Bureau in Henan Province Henan Geol Brigade 1 Luoyang, Henan Province CMA 2020 – 2023
Analytical Laboratory of Henan Non-Ferrous Metals (Brigade 6) Henan Nonferrous Brigade 6 Luoyang, Henan Province CMA 2020 – 2023
Analytical Laboratory of Henan Non-Ferrous Metals (Brigade 1) Henan Nonferrous Brigade 1 Anyang, Henan Province CMA 2020 – 2023
Analytical Lab of the Inner Mongolia Geological Exploration Bureau Inner Mongolia Geol Lab Hohhot, Inner Mongolia. CMA 2016 – 2019

Source: Compiled by AMC, 2024 from data provided by Silvercorp.

 

11.3.1Laboratory protocols

Sample preparation procedures at the nine laboratories used since January 2020 have some differences in sample preparation and analysis. Samples are dried at the laboratories at a temperature between 60°C and 105°C, and then crushed using a jaw crusher to a size varying between 2 mm and 20 mm (Figure 11.2). Rod crushers are then used to reduce the crush size to at least 3 mm, but typically to 1 mm. Sub-sampling of the crushed samples is completed using a riffle splitter at the Site Lab, SGS Tianjin, and the Qiqihar Geol Test Centre. All other laboratories pour crushed samples onto a mat and subsample manually using a scoop. A sub-sample of between 100 g and 500 g is then pulverized to 74 microns (µm).

 

amcconsultants.com111
NI 43-101 Technical Report Update on the Ying Ag-Pb-Zn Property in Henan Province, People's Republic of China
 
Silvercorp Metals Inc.0723067

Figure 11.2 SGS Tianjin jaw crusher and RSD

 

 

Source: AMC, 2024.

 

Pulp samples taken for digestion vary in size from 0.2 g to 1 g for Ag, 0.1 g to 1 g for Pb and Zn, and between 10 and 30 g for Au.

A two-acid digest is used at all laboratories except SGS Tianjin, where a four-acid digest is used. Analysis at all laboratories generally comprises AAS and ICP using various instrumental finishes. Over limit (above upper detection) typically comprise fire assays for Au and Ag, and a combination of dilution and titration (volumetric correction) for Pb and Zn. Chengde differs from most other laboratories by using dilution for Ag and Au over-limit samples.

 

Table 11.2 summarizes laboratory protocols for the nine laboratories used by Silvercorp between 2006 and 2023. No information was available for the Inner Mongolia Geol Lab (used between 2006 and 2019).

 

amcconsultants.com112
NI 43-101 Technical Report Update on the Ying Ag-Pb-Zn Property in Henan Province, People's Republic of China
 
Silvercorp Metals Inc.0723067

 

Table 11.2Ying laboratory protocols (January 2006 – December 2023)

 

Element Process Ying Site lab SGS Tianjin Henan
Nonferrous
Ins
Chengde
Laboratory
Qiqihar Geol
Test Centre
Henan Gold
Test Centre
Henan Geol
Brigade 1
Henan
Nonferrous
Brigade 6
Henan
Nonferrous
Brigade 1
All Drying 105°C 95°C 70°C 60°C 95°C 105°C 95°C 90°C 70°C
Crush Jaw to 20 mm, rod
to 2 mm
Jaw to
3 mm
Jaw to
4 mm, rod
to 1 mm
Jaw to
4 mm, rod
to 1 mm
Jaw to 2 mm Jaw to
4 mm, rod
to 1 mm
Jaw to
4 mm, rod
to 1 mm
Jaw to
4 mm, rod
to 1 mm
Jaw to
4 mm, rod
to 1 mm
Split method Riffle split Riffle split Manual 1/4 Manual 1/4 Riffle split Manual 1/4 Manual 1/4 Manual 1/4 Manual 1/4
Pulverize mass 100 g 500 g N/S N/S 400 g 400 g 500 g 500 g 400 g
Pulverize size 74 µm 74 µm 74 µm 74 µm 74 µm 74 µm 74 µm 74 µm 74 µm
Ag Method 2A AAS 4A
ICP-AES
2A AAS 2A AAS 2A ICP 2A AAS 2A AAS 2A AAS 2A AAS
LLD (g/t) 5 2 2 2 2 2 1 5 5
UDL (g/t) 300 100 1,500 500 100 800 10,000 2,000 2,000
Overlimit FA FA FA D FA FA-AAS FA-AAS FA-AAS FA-AAS
O/L UDL (g/t)   >2,000 NS NS 50,000 20,000 50,000 >2,000 50,000
Pb Method 2A AAS 4A
ICP-AES
2A ICP NS ICP 2A ICP 2A
ICP-OES
2A AAS 2A AAS 2A AAS
LLD (%) 0.02 0.0002 0.01 0.005 0.0001 0.01 0.001 0.03 0.02
UDL (%) 1 1 10 5 1 5 10 10 5
Overlimit D, V AAS/V V V D, V V V V V
O/L UDL (%) NS 20 20 20 >20 >3 >10 >10 >5
Zn Method 2A AAS 4A
ICP-AES
2A ICP NS ICP 2A ICP NS
ICP-OES
2A AAS 2A AAS 2A AAS
LLD (%) 0.02 0.0001 0.01 0.005 0.0001 0.01 0.001 0.03 0.02
UDL (%) 0.5 1 10 3 1 3 10 5 3
Overlimit D, V AAS/V V V D, V V V V V
O/L UDL (%) NS 20 20 20 >20 >3 >10 >5 >5
Au Method 2A AAS FA-AAS 2A AAS NS AAS FA-AAS FA-AAS 2A AAS FA-AAS FA-AAS
LLD (g/t) 0.05 0.01 0.1 0.05 0.1 0.01 0.1 0.1 0.01
UDL (g/t) 5 10 10 50 10 100 10 10 10
Overlimit FA FA-AAS FA D FA NS NS FA FA
O/L UDL (g/t) NS 100 NS NS >100 NS 100 100 100

Notes:

·2A=Two acid digest, 4A=Four acid digest, ICP=Inductively Coupled Plasma, AES=Atomic Emission Spectroscopy, AAS=Atomic absorption spectroscopy, FA= Fire assay, NS=Not specified.
·Over limits: D=Dilution, V=Volumetric (titration).

Source: Compiled by AMC, 2024 from data provided by Silvercorp.

 

11.3.1.1Discussion on laboratory protocols

The laboratory sample preparation and analysis protocols are somewhat different between laboratories. The QP recommends that, in future programs, laboratories are chosen based on similar protocols, or that protocols are standardized between laboratories as much as possible.

 

amcconsultants.com113
NI 43-101 Technical Report Update on the Ying Ag-Pb-Zn Property in Henan Province, People's Republic of China
 
Silvercorp Metals Inc.0723067
11.4Quality Assurance / Quality Control
11.4.1Overview

Silvercorp has established QA/QC procedures to monitor accuracy, precision and sample contamination of the sample stream during sampling, preparation, and analysis. Certified Reference Materials (CRMs) and coarse blanks have been included with drilling and underground samples since 2010. Field duplicates have been included with drilling samples since 2012, and with underground samples between 2012 and 2016, and between 2020 and 2023. Pulp duplicates were sent as internal check samples between 2010 and 2016. Umpire (check) samples (pulps) have been sent to a separate ‘umpire’ laboratory for most programs since 2010, with the exception of the period from July 2016 to December 2019.

Silvercorp analyzes samples for Ag, Pb, and Zn at all mines, and Au and Cu at select mines. Drillhole samples are submitted to external commercial laboratories for analysis. Drillhole sample dispatch and monitoring is managed by geologists from the central Beijing office. Underground channel samples are almost exclusively sent to the Ying site laboratory for analysis. Underground sample dispatch and monitoring is managed by geologists at the respective mine sites. Drillhole and underground assay data is stored within Microsoft Access databases at each mine site. QA/QC data is generally stored in Microsoft Excel worksheets.

A summary of QA/QC samples included in drilling and underground sampling since 2010 is presented in Table 11.3 and Table 11.5. Table 11.4 and Table 11.6 summarize the insertion rate of these QA/QC samples. Note in the period from 2004 to December 2009, limited QA/QC programs were in place, however no data was available for review.

In this report, gold and copper values are not discussed in detail as they are not material components of the Mineral Resource.

 

Table 11.3Ying QA/QC samples by time period (2010 – June 2016)

 

Time period

Drilling Underground Combined DH / UG1
Drill
samples
CRMs Blanks Field
dups
Channel
samples
CRMs Blanks Field
dups
Pulp
duplicates
Umpire
samples

January 2010 to

December 20112

27,604 810 168 - Reported with drill samples 543 247
January 2012 to June 20133 17,369 477 531 447 17,938 648 390 330 684 319
July 2013 to July 20164 14,444 453 438 422 44,166 1,282 1,104 850 684 519

Notes:

1Previous reports combined drillhole and underground samples for pulp duplicate and umpire samples.
22012 Technical Report (Drill and channel samples combined).
32014 Technical Report.
42017 Technical Report.

Source: Compiled by AMC, 2022.

 

amcconsultants.com114
NI 43-101 Technical Report Update on the Ying Ag-Pb-Zn Property in Henan Province, People's Republic of China
 
Silvercorp Metals Inc.0723067

 

Table 11.4Ying QA/QC insertion rates by time period (2010 – June 2016)

 

Time period

Drilling Underground Combined DH / UG1
Drill samples CRMs Blanks Field dups Channel samples CRMs Blanks Field dups Pulp duplicates Umpire samples

January 2010 to

December 20111,2

27,604 2.9% 0.6% 0.0% Reported with drill samples 2.0% 0.9%

January 2012 to

June 20133

17,369 2.7% 3.1% 2.6% 17,938 3.6% 2.2% 1.8% 3.8% 1.8%
July 2013 to July 20164 14,444 3.1% 3.0% 2.9% 44,166 2.9% 2.5% 1.9% 1.5% 1.2%

Notes:

1Previous reports combined drillhole and underground samples for pulp duplicate and umpire samples.
22012 Technical Report (Drill and channel samples combined).
32014 Technical Report.
42017 Technical Report.

Source: Compiled by AMC, 2022.

 

Table 11.5Ying QA/QC samples by time period (July 2016 – December 2023)

 

Time period 1

Drilling Underground
Drill samples CRMs Blanks Field dups Umpire samples Channel samples CRMs Blanks Field dups Umpire samples

July 2016 to

December 20192

20,433 625 625 623 0 67,274 1,731 304 0 0

January 2020 to

December 20203

61,366 1,437 1,425 1,431 52 21,532 481 485 486 470

January 2021 to

December 20213

148,869 3,423 3,427 3,779 200 22,075 417 419 419 670

January 2022 to

December 20234

127,935 3,616 3,609 4,251 314 56,842 618 534 4,246 442

Notes:

1Breakdown by year is approximate. Year compiled by AMC based on drill date recorded in collar file and assay files. Where missing, dates were compiled from assay date, report date or interpolated by sorting data by sample ID.
22020 Technical Report.
32022 Technical Report.
4Current Technical Report.

Source: Compiled by AMC, 2024 from data provided by Silvercorp.

 

Table 11.6Ying QA/QC insertion rates by time period (July 2016 – December 2023)

 

Time period 1

Drilling Underground
Drill samples CRMs Blanks Field dups Umpire samples Channel samples CRMs Blanks Field dups Umpire samples

July 2016 to

December 20192

20,433 3.1% 3.1% 3.0% 0.0% 67,274 2.6% 0.5% 0.0% 0.0%

January 2020 to

December 20203

61,366 2.3% 2.3% 2.3% 0.1% 21,532 2.2% 2.3% 2.3% 2.2%

January 2021 to

December 20213

148,869 2.3% 2.3% 2.5% 0.1% 22,075 1.9% 1.9% 1.9% 3.0%

January 2022 to

December 20234

127,935 2.8% 2.8% 3.3% 0.2% 56,842 1.1% 0.9% 7.5% 0.8%

Notes:

1Breakdown by year is approximate. Year compiled by AMC based on drill date recorded in collar file and assay files. Where missing, dates were compiled from assay date, report date or interpolated by sorting data by sample ID.
22020 Technical Report.
32022 Technical Report.
4Current Technical Report.

Source: Compiled by AMC, 2024 from data provided by Silvercorp.

 

amcconsultants.com115
NI 43-101 Technical Report Update on the Ying Ag-Pb-Zn Property in Henan Province, People's Republic of China
 
Silvercorp Metals Inc.0723067
11.4.2Certified Reference Materials

Twenty-one different CRMs were used by Silvercorp during the January 2022 – December 2023 drill and channel sampling programs. All CRMs were supplied by CDN Resource Laboratories of Langley, British Columbia, Canada, and are variably certified for Ag, Pb, Zn, Cu, and Au. Thirteen of the CRMs were used in previous years. The eight new CRMs were purchased to replace depleted CRM stocks, or to monitor additional grade ranges.

Except for CDN-ME-1305, all CRMs are certified by four-acid digest with an instrumental finish for silver. CDN-ME-1305 is certified by fire assay with an instrument finish. CRMs CDN-ME-1603, CDN-ME-1606, CDN-ME-1810, CDN-ME-1902, and CDN-ME-2001 are also certified for silver by fire assay with a gravimetric finish. CDN-ME-1811 is also certified by aqua regia digest with instrument finish.

All copper, lead, and zinc values are certified by four-acid digest with an instrumental finish. All gold CRMs are certified by fire assay with an instrumental finish. CRM CDN-ME-1201 has only a provisional value for gold (relative standard deviation >~5%).

 

Details of CRMs used at Ying are presented in Table 11.7.

 

Table 11.7Ying CRMs (January 2022 – December 2023)

 

CRM ID Ag (g/t) Pb (%) Zn (%) Au (g/t) No. CRMs
(drilling)
No. CRMs
(channel)
Expected
value
SD Expected
value
SD Expected
value
SD Expected
value
SD 2022 2023 2022 2023
CDN-ME-12012 37.6 1.7 0.465 0.016 4.99 0.145 0.125 0.015 10     3
CDN-ME-1808 39 1.3 0.6 0.01 3.85 0.075 2.31 0.14 272 85   18
CDN-ME-1702 47.4 1.65 2.38 0.06 1.23 0.02 3.24 0.09 272 75   27
CDN-ME-1403 53.9 2.7 0.414 0.009 1.34 0.03 0.954 0.039 59 128   25
CDN-ME-1708 53.9 2 0.171 0.006 0.484 0.013 6.96 0.25   23   25
CDN-ME-1404 59.1 1.35 0.381 0.009 2.08 0.035 0.897 0.032       1
CDN-ME-2204 78 3.5 1.11 0.02 2.41 0.06 1.013 0.046   28   28
CDN-ME-16033 86 1.5 1.34 0.025 0.45 0.015 0.995 0.033 244 229 1 62
CDN-ME-1405 88.8 3.3 0.638 0.026 3.02 0.055 1.295 0.037 230 277   114
CDN-ME-18114 90 2 0.304 0.008 1.55 0.03 2.05 0.12 320 143 1 70
CDN-ME-2203 90 2.5 1.44 0.03 3.13 0.085 1.277 0.049       2
CDN-ME-1812 97 2.5 1.47 0.03 3.23 0.1 7.86 0.33   22   35
CDN-ME-1801 108 3 3.08 0.05 7.43 0.15 0.911 0.029       7
CDN-ME-2201 135 4 1.93 0.035 4.62 0.085 1.52 0.085   73   32
CDN-ME-18103 151 4.5 1.46 0.035 0.96 0.02 4.41 0.165 290 17   22
CDN-ME-1903 180 5.5 1.06 0.02 1.75 0.035 3.035 0.121   34   4
CDN-ME-13051 231 6 3.21 0.045 1.61 0.025 1.92 0.09       2
CDN-ME-2202 249 7 1.14 0.02 2.26 0.05 1.755 0.0685   47   33
CDN-ME-19023 356 9.5 2.2 0.05 3.66 0.115 5.38 0.21 173 88   31
CDN-ME-1302 418.9 8.15 4.68 0.12 1.2 0.02 2.412 0.117       3
CDN-ME-20013 582 9.5 0.78 0.0155 1.5 0.025 1.317 0.0695 374 103   72

 

Notes:

·CRMs are presented in order of increasing Ag expected value.
·Except for CDN-ME-1305, All Ag, Pb, and Zn CRM values shown are certified by 4A digest with instrumental finish. All CRM Au values are certified by fire assay with instrumental finish.
·SD = standard deviation.

 

amcconsultants.com116
NI 43-101 Technical Report Update on the Ying Ag-Pb-Zn Property in Henan Province, People's Republic of China
 
Silvercorp Metals Inc.0723067
1CDN-ME-1305: Ag certified by fire assay with instrument finish. Pb, and Zn CRM values shown are certified by 4A digest with instrumental finish. Au CRM values are certified by fire assay with instrumental finish.
2Provisional value for Au (RSD > ~5%).
3Ag certified for 4A digest with instrumental finish and fire assay with gravimetric finish. Instrumental finish value shown.
4Certified for 4A digest and aqua regia with instrumental finish. 4A digest value shown.

Source: Compiled by AMC, 2024.

 

Silvercorp prepares individual 50 g CRM packets from bulk containers, and selects which CRMs are inserted into the sample stream based on visually estimated mineralization criteria (i.e., strongly mineralized samples are accompanied by CRMs with similarly high grades, and vice versa).

Silvercorp’s internal procedures require that CRMs are inserted into the sample stream at a rate of ~1 CRM for every 37 samples.

CRM performance is monitored on a batch-by-batch basis by geologists at each mine and by the Exploration Management Department in Silvercorp’s Beijing office. Assay data is visually reviewed on CRM control charts. Assay results of a CRM within ±2 standard deviations (SD) of the recommended value are considered acceptable, results between 2SD and 3SD are considered as a warning, and assay data outside the ±3SD control lines are deemed failed assays. When two or more consecutive assays of CRMs occur outside the warning 2SD control lines in a sample batch, Silvercorp will notify the laboratory immediately to check their internal QA/QC procedures and re-assay samples of the batch with failed CRM assays. Only approved assay results are used for Mineral Resource estimation.

11.4.2.1Discussion on CRMs (2022 - 2023)

CRMs contain known concentrations of silver, lead, and zinc which are inserted into the sample stream to check the analytical accuracy of the laboratory. Industry best practice typically advocates an insertion rate of at least 5 - 6% of the total samples assayed (Long et al., 1997; Méndez, 2011; Rossi and Deutsch, 2014). This should ensure that CRMs are included in every batch of samples sent to the laboratory. CRMs should be monitored on a batch-by-batch basis and remedial action taken immediately if required. For each economic mineral, the use of at least three CRMs is recommended with values:

·At the approximate cut-off grade (COG) of the deposit.
·At the approximate expected grade of the deposit.
·At a higher grade.

Between January 2022 and December 2023, a total of 4,234 CRMs were submitted as part of the drilling program, representing an average overall insertion rate of 2.8%. For the channel sampling program, 618 CRMs were submitted during this timeframe, representing an average overall insertion rate of 1.1%. A detailed review completed by the QP also shows that actual insertion rates are somewhat erratic, varying from ~1 in 20 samples to ~1 in 100 samples. In some cases, CRMs have not been inserted by various mines for extended periods of time. This does not provide adequate control to assess the performance of individual batches.

The average Measured plus Indicated Mineral Resource grades of the seven Ying Property mines range from ~80 g/t to 365 g/t for Ag, 1.1% to 5.1% for Pb, 0.2% to 2.5% for Zn, and 1.2 g/t to 4.1 g/t for Au. COGs for the seven mines of the Ying Property are expressed in Ag equivalency. Given that there is a positive correlation between metals, approximate Measured plus Indicated Mineral Resource COGs range from ~42 g/t to 154 g/t for Ag, ~0.4% to 1.8% for Pb, and ~0.2% to 0.8% for Zn (only applicable for SGX, HPG, LME, DCG). Gold rich veins incorporate COG ranges between 0.7 g/t and 1.6 g/t Au.

 

amcconsultants.com117
NI 43-101 Technical Report Update on the Ying Ag-Pb-Zn Property in Henan Province, People's Republic of China
 
Silvercorp Metals Inc.0723067

 

The 21 CRMs used presently by Silvercorp provide reasonable coverage of the COG and average grade ranges, and cover higher grade ranges for all economic minerals. It is noted that the lowest grades CRM for Zn has a grade of 0.45%, which may not adequately monitor the contribution of low-grade (0.2%) zinc at some of the mines.

Industry best practice is to investigate and, where necessary, re-assay batches where any two consecutive CRM assay results occur outside of two standard deviations, or one CRM assay result occurs outside of three standard deviations of the certified value. It should be noted that consecutive CRM warnings are often defined by two different CRMs in a sample batch.

Control charts are commonly used to monitor the analytical performance of an individual CRM over time. CRM assay results are plotted in order of analysis along the X axis. Assay values of the CRM are plotted on the Y axis. Control lines are also plotted on the chart for the expected value of the CRM, two standard deviations above and below the expected value (defining a ‘warning’ threshold), and three standard deviations above and below the expected value (defining a ‘fail’ threshold). Control charts show analytical drift, bias, trends, and irregularities occurring at the laboratory (or various laboratories over time.

Table 11.8, Table 11.9, and Table 11.10 summarize the results of Ying CRMs for Ag, Pb, and Zn. These tables incorporate all mines, all laboratories, and both drilling and underground samples.

Figure 11.3 to Figure 11.8 present summary control charts for Ying CRMs for Ag, Pb, and Zn. Due to the number of labs used, control charts have been combined, and present CRM results compiled by year, laboratory, and sample type. Samples are sorted in chronological order within each laboratory. This combined control chart shows differences between laboratories, and changes in analytical accuracy and precision over time.

 

amcconsultants.com118
NI 43-101 Technical Report Update on the Ying Ag-Pb-Zn Property in Henan Province, People's Republic of China
 
Silvercorp Metals Inc.0723067

 

Table 11.8Ying Ag CRM results (January 2022 – December 2023)

 

CRM ID

Expected
value
(Ag g/t)

SD

Grade
range
Number
of
assays

Low
warn
(-2SD)

High
warn
(+2SD)

Low
fail
(-3SD)

High
fail
(+3SD)
Mis-
label
True
fail

Fail

%

CDN-ME-1201 37.6 1.7 LG 13 0 0 0 0 0 0 0
CDN-ME-1302 418.9 8.15 HG 3 0 0 0 0 0 0 0
CDN-ME-1305 231 6 AG 2 0 0 0 0 0 0 0
CDN-ME-1403 53.9 2.7 LG 213 0 6 0 0 5 1 0
CDN-ME-1404 59.1 1.35 LG 1 0 0 0 0 0 0 0
CDN-ME-1405 88.8 3.3 AG 625 0 0 1 0 0 1 0
CDN-ME-1603# 86 1.5 AG 536 22 39 38 5 0 104 19
CDN-ME-1702 47.4 1.65 LG 374 2 0 1 0 0 3 1
CDN-ME-1708 53.9 2 LG 48 1 0 0 0 0 1 2
CDN-ME-1801 108 3 AG 7 0 0 0 0 0 0 0
CDN-ME-1808 39 1.3 LG 378 2 21 0 1 1 23 6
CDN-ME-1810 151 4.5 AG 329 0 0 0 0 0 0 0
CDN-ME-1811 90 2 AG 534 36 1 33 1 0 0 0
CDN-ME-1812 97 2.5 AG 59 0 0 1 4 0 5 8
CDN-ME-1902# 356 9.5 AG 292 0 0 0 0 0 0 0
CDN-ME-1903 180 5.5 AG 40 0 5 0 1 0 6 15
CDN-ME-2001 582 9.5 HG 549 51 1 5 0 0 57 10
CDN-ME-2201 135 4 AG 107 0 0 0 0 0 0 0
CDN-ME-2202 249 7 AG 80 0 0 0 2 0 2 3
CDN-ME-2203 90 2.5 AG 2 0 0 0 0 0 0 0
CDN-ME-2204 78 3.5 LG 60 0 1 0 0 0 1 2
Total - - - 4,252 114 74 79 14 6 204 4.8

Notes: All mines combined. Drillhole and underground channel samples combined. Original assay results. SD = standard deviation, LG=low grade, AG=average grade, HG = high grade.

# Control chart presented.

Source: Compiled by AMC, 2024.

 

Figure 11.3Summary control chart for CDN-ME-1603 (Ag)

 

 

 

Notes: Summary control chart: All mines, all labs, drillholes and channel samples combined (2022-2023), CH514=Chengde, Qiqihar = Qiqihar Geol Test Centre, HNI=Henan Non-Ferrous Ins, HGeo_Br1=Henan Geol Brigade 1, HNF_Br6=Henan Nonferrous Brigade 6, HNF_Br1=Henan Nonferrous Brigade 1.

Source: Compiled by AMC, 2024.

amcconsultants.com119
NI 43-101 Technical Report Update on the Ying Ag-Pb-Zn Property in Henan Province, People's Republic of China
 
Silvercorp Metals Inc.0723067

 

Figure 11.4Summary control chart for CDN-ME-2001 (Ag)

 

 

 

Notes: Summary control chart: All mines, all labs, drillholes and channel samples combined (2022-2023), CH514=Chengde, Qiqihar= Qiqihar Geol Test Centre, HNI=Henan Non-Ferrous Ins, HGTC=Henan Gold Test Centre, HGeo_Br1=Henan Geol Brigade 1, HNF_Br6=Henan Nonferrous Brigade 6, HNF_Br1=Henan Nonferrous Brigade 1.

Source: Compiled by AMC, 2024.

 

Table 11.9Ying Pb CRM results (January 2022 – December 2023)

 

 

CRM ID

Expected
value
(Pb%)

SD

Grade
range
Number
assays

Low
warn
(-2SD)

High
warn
(+2SD)

Low
fail

(-3SD)

High
fail
(+3SD)
Mis-
label
True
fail

Fail

%

CDN-ME-1201 0.465 0.005 AG 13 0 0 0 0 0 0 0
CDN-ME-1302 4.68 0.014 HG 3 0 0 0 0 0 0 0
CDN-ME-1305 3.21 0.005 HG 2 0 0 0 0 0 0 0
CDN-ME-1403 0.414 0.007 AG 213 0 14 0 0 5 0 0
CDN-ME-1404 0.381 0.000 LG 1 0 1 0 0 0 0 0
CDN-ME-1405 0.638 0.016 AG 625 0 0 0 0 0 0 0
CDN-ME-1603 1.34 0.039 AG 536 11 149 1 2 0 3 1
CDN-ME-1702 2.38 0.051 HG 374 0 0 1 0 0 1 0
CDN-ME-1708 0.171 0.008 LG 48 1 0 0 3 0 3 6
CDN-ME-1801 3.08 0.071 HG 7 0 1 0 0 0 0 0
CDN-ME-1808 0.6 0.010 AG 378 0 21 1 1 0 2 1
CDN-ME-1810 1.46 0.027 AG 329 1 1 0 0 0 0 0
CDN-ME-1811 0.304 0.127 LG 534 1 0 0 62 1 61 11
CDN-ME-1812 1.47 0.030 AG 59 0 2 1 0 0 1 2
CDN-ME-1902 2.2 0.037 HG 292 0 1 0 0 0 0 0
CDN-ME-1903 1.06 0.026 AG 40 0 0 0 2 0 2 5
CDN-ME-2001 0.78 0.014 AG 549 0 0 0 0 0 0 0
CDN-ME-2201 1.93 0.015 HG 107 0 0 0 0 0 0 0
CDN-ME-2202 1.14 0.065 AG 80 1 0 2 1 0 3 4
CDN-ME-2203 1.44 0.005 AG 2 0 0 0 0 0 0 0
CDN-ME-2204 1.11 0.026 AG 60 12 0 1 0 0 1 2
Total - - - 4,252 27 190 7 71 6 77 1.8

Notes: All mines combined. Drillhole and underground channel samples combined. Original assay results. SD=standard deviation, LG=low grade, AG=average grade, HG=high grade.

# Control chart presented.

Source: Compiled by AMC, 2024.

 

amcconsultants.com120
NI 43-101 Technical Report Update on the Ying Ag-Pb-Zn Property in Henan Province, People's Republic of China
 
Silvercorp Metals Inc.0723067

 

Figure 11.5Summary control chart for CDN-ME-1603 (Pb)

 

 

 

Notes: Summary control chart: All mines, all labs, drillholes and channel samples combined (2022-2023), CH514=Chengde, Qiqihar= Qiqihar Geol Test Centre, HNI=Henan Non-Ferrous Ins, HGTC=Henan Gold Test Centre, HGeo_Br1=Henan Geol Brigade 1, HNF_Br6=Henan Nonferrous Brigade 6, HNF_Br1=Henan Nonferrous Brigade 1.

Source: Compiled by AMC, 2024.

 

Figure 11.6Summary control chart for CDN-ME-1811 (Pb)

 

 

Notes: Summary control chart: All mines, all labs, drillholes and channel samples combined (2022-2023), CH514=Chengde, Qiqihar= Qiqihar Geol Test Centre, HNI=Henan Non-Ferrous Ins, HGTC=Henan Gold Test Centre, HGeo_Br1=Henan Geol Brigade 1, HNF_Br6=Henan Nonferrous Brigade 6, HNF_Br1=Henan Nonferrous Brigade 1.

Source: Compiled by AMC, 2024.

amcconsultants.com121
NI 43-101 Technical Report Update on the Ying Ag-Pb-Zn Property in Henan Province, People's Republic of China
 
Silvercorp Metals Inc.0723067

 

Table 11.10Ying Zn CRM results (January 2022 – December 2023)

 

CRM ID

Expected
value
(Zn%)

SD

Grade
range
Number
assays

Low
warn
(-2SD)

High
warn
(+2SD)

Low
fail
(-3SD)

High
fail
(+3SD)
Mis-
label
True
fail

Fail
%

CDN-ME-1201 4.99 0.145 HG 13 0 0 0 0 0 0 0
CDN-ME-1302 1.2 0.02 AG 3 0 0 0 0 0 0 0
CDN-ME-1305 1.61 0.025 AG 2 0 0 0 0 0 0 0
CDN-ME-1403 1.34 0.03 AG 213 0 0 0 6 5 1 0.9
CDN-ME-1404 2.08 0.035 AG 1 0 0 0 0 0 0 0
CDN-ME-1405 3.02 0.055 HG 625 39 2 28 0 0 69 11.0
CDN-ME-1603 0.45 0.015 AG 536 3 0 0 0 0 0 0
CDN-ME-1702 1.23 0.02 AG 374 41 0 2 0 0 43 11.5
CDN-ME-1708 0.484 0.013 AG 48 0 1 0 0 0 1 2.1
CDN-ME-1801 7.43 0.15 HG 7 0 0 0 0 0 0 0
CDN-ME-1808 3.85 0.075 HG 378 1 39 0 10 1 49 13.5
CDN-ME-1810 0.96 0.02 AG 329 71 0 1 0 0 1 1.4
CDN-ME-1811 1.55 0.03 AG 534 1 3 1 0 0 5 0.9
CDN-ME-1812 3.23 0.1 HG 59 0 0 0 0 0 0 0
CDN-ME-1902 3.66 0.115 HG 292 6 0 0 0 0 6 2.0
CDN-ME-1903 1.75 0.035 AG 40 0 0 0 0 0 0 0
CDN-ME-2001 1.5 0.025 AG 549 17 0 0 0 0 17 3.1
CDN-ME-2201 4.62 0.085 HG 107 0 1 0 0 0 1 0.9
CDN-ME-2202 2.26 0.05 AG 80 1 1 0 0 0 2 2.5
CDN-ME-2203 3.13 0.085 HG 2 0 0 0 0 0 0 0
CDN-ME-2204 2.41 0.06 AG 60 1 0 0 0 0 1 1.7
Total - - - 4,252 181 47 32 16 6 196 4.6

Notes: All mines combined. Drillhole and underground channel samples combined. Original assay results. SD=standard deviation, LG=low grade, AG=average grade, HG=high grade.

# Control chart presented.

Source: Compiled by AMC, 2024.

 

Figure 11.7Summary control chart for CDN-ME-1403 (Zn)

Notes: Summary control chart: All mines, all labs, drillholes and channel samples combined (2022-2023), CH514=Chengde, Qiqihar= Qiqihar Geol Test Centre, HNI=Henan Non-Ferrous Ins, HGTC=Henan Gold Test Centre, HGeo_Br1=Henan Geol Brigade 1, HNF_Br6=Henan Nonferrous Brigade 6, HNF_Br1=Henan Nonferrous Brigade 1.

Source: Compiled by AMC, 2024.

 

amcconsultants.com122
NI 43-101 Technical Report Update on the Ying Ag-Pb-Zn Property in Henan Province, People's Republic of China
 
Silvercorp Metals Inc.0723067

 

Figure 11.8Summary control chart for CDN-ME-1405 (Zn)

Notes: Summary control chart: All mines, all labs, drillholes and channel samples combined (2022-2023), CH514=Chengde, Qiqihar= Qiqihar Geol Test Centre, HNI=Henan Non-Ferrous Ins, HGTC=Henan Gold Test Centre, HGeo_Br1=Henan Geol Brigade 1, HNF_Br6=Henan Nonferrous Brigade 6, HNF_Br1=Henan Nonferrous Brigade 1.

Source: Compiled by AMC, 2024.

 

Figure 11.9Summary control chart for CDN-ME-1808 (Zn)

Notes: Summary control chart: All mines, all labs, drillholes and channel samples combined (2022-2023), CH514=Chengde, Qiqhar= Qiqihar Geol Test Centre, HNI=Henan Non-Ferrous Ins, HGTC=Henan Gold Test Centre, HGeo_Br1=Henan Geol Brigade 1, HNF_Br6=Henan Nonferrous Brigade 6, HNF_Br1=Henan Nonferrous Brigade 1.

Source: Compiled by AMC, 2024.

 

The QP notes the following, based on the review of CRMs used at the seven Ying Mines between January 2022 and December 2023:

·The 2022 to 2023 work program has some improvement on control of issues since late 2022, when a fulltime QA/QC geological supervisor was employed.
·A significant decrease in the number of CRM sample misclassifications has occurred during the program compared to the 2021 report (6 vs 43).
·Three Ag CRMs, and one Pb CRM have a failure rate greater than 5%. These warnings and failures are generally related to specific laboratories.
·Silver:
¾A total of 93 CRMs out of the total 4,252 submitted returned Ag results outside of control limits, representing an overall 2.18% failure.

 

amcconsultants.com123
NI 43-101 Technical Report Update on the Ying Ag-Pb-Zn Property in Henan Province, People's Republic of China
 
Silvercorp Metals Inc.0723067

 

¾CRM CDN-ME-1603 (86 g/t Ag, Figure 11.3) returned 43 Ag results outside of control limits, with failure rates of 8%. The majority were low fails related to the site laboratory. There is a trend of results in the 81 - 83 g/t Ag range and at the 87 - 88 g/t Ag range, which suggests potential manipulation of results depending on supervisor / shift.
¾CRM CDN-ME-1811 (90 g/t Ag) returned 34 Ag result outside of control limits (one misclassified), with a failure rate of 6%. The 33 low fails are associated with the Site Lab. This trend is similar to CDM-ME-1603.
¾CRM CDN-ME-2001 (588 g/t Ag) returned a total of five assay results below lower control limits and 17 results below lower warning limits. This high-grade Ag CRM shows the Qiqihar laboratory with a bias low of 4%.
¾Several of the laboratories show slight bias in Ag analytical results. Chengde Ag CRMs show a relatively consistent slight negative bias compared to other labs. The appears to be most prevalent in lower grade Ag CRMs (CDN-ME-1403, CDN-ME-1405, and CDN-ME-1811).
·Lead:
¾A total of 77 CRMs out of the total 4,252 submitted returned Pb results outside of control limits, representing an overall 1.8% failure.
¾CRM CDN-ME-1603 (1.34% Pb, Figure 11.5) returned two results outside of upper control limits and one below the lower control limit. The spread of data within and between laboratories suggests a difference in calibrations between Qiqihar, SGS, and the other labs.
¾CRM CDN-ME-1811 (0.3% Pb, Figure 11.6) returned 61 results outside of upper control limits (11.0% failure rate). All failures were associated with the site laboratory and occurring at the beginning of the 2022 period, with distinct improvement into the 2023 period.
·Zinc:
¾A total of 42 CRMs out of the total 4,252 submitted returned Zn results outside of control limits, representing an overall failure rate of 1%.
¾CRM CDN-ME-1403 (1.34% Zn, Figure 11.7) returned one result outside lower control limits (0.5% failure rate) and five misclassifications. Failures were associated with a sample with an apparent non-CRM result.
¾CRM CDN-ME-1405 (3.02% Zn, Figure 11.8) returned 28 results below control limits, representing an overall 4% failure. An additional 41 results were outside of warning limits (39 below, two above). Most failures are associated with the site laboratories, especially early in 2022, in a similar fashion to the trend noticed in Lead for CDN-ME-1811. Negative bias is also apparent at the Chengde 514 laboratory. SGS laboratory results show a slight positive bias.
¾CRM CDN-ME-1808 (3.85% Zn, Figure 11.9) returned nine results outside upper control limits, two results above upper warning limits and 39 results (~6%) below lower warning limits. There is no single reason apparent for the number of high fails across a number of laboratories. The significant number of high warnings are associated with analytical results, with a persistent high bias returned from HG and HN laboratories.
·Gold:
¾Gold CRM performance is similar to Ag, Pb, and Zn, with differences in analytical accuracy noted between labs, and both high and low bias occurring at specific laboratories and specific CRMs.

 

amcconsultants.com124
NI 43-101 Technical Report Update on the Ying Ag-Pb-Zn Property in Henan Province, People's Republic of China
 
Silvercorp Metals Inc.0723067

 

·General comments:
¾In general, CRMs included with sample submissions show overall acceptable analytical accuracy, with most CRM results occurring within control limits (within three between-laboratory standard deviations of the expected value as specified on the CRM certificate).
¾The relatively low CRM insertion rates (~2.8% for drilling and 1.1% for channel samples), large number of different CRMs in use, and number of laboratories used for the 2022 - 2023 program restrict the ability to monitor laboratory performance over time (although they are reduced slightly in 2023). Increasing insertion rates, decreasing the number of different CRMs, and decreasing the number of laboratories (if and where practical) would provide more data per unit of time and allow for better tracking of laboratory performance. Silvercorp is currently endeavoring to increase the percentage of QA/QC samples.
¾Instances of analytical bias are noted in several laboratories and numerous CRMs, but not consistently. In general, the average assay result for the CRM is within 5% of the expected CRM result.
¾Analytical drift and changes in instrument calibration are observed at several laboratories throughout the 2022 - 2023 program.
¾Discrepancies between laboratory results for a particular CRM may be the result of differences in sample sizes, digestion parameters, or analytical method and / or machine calibration issues at individual labs.
¾The QA/QC database provided by Silvercorp for QP review was not provided in a format which enables a detailed review of QA/QC data on a batch (submission) basis. This is primarily due to the use of inconsistent batch reference numbers between the CRM database and the sample database. The use of reference numbers in ‘date like’ formats may also lead to discrepancies between database batch reference numbers, when data is stored within Excel worksheets. Silvercorp has now instigated the use of a fit for purpose, commercial database to manage the data, with plans to instigate by Q3 2024.
¾Despite Silvercorp’s protocols, which require the review of QA/QC data in real time, data associated with the 2022 to 2023 work program does not appear to have been subject to a rigorous review with remedial actions applied. Issues of lab bias should be communicated to the relevant laboratory during work programs.

 

11.4.2.2Discussion on CRMs (2010 - 2021)

Silvercorp has included CRMs with sample submissions in previous work programs. A summary of the results is:

·CRM submissions and results prior to 2010 are not available.
·For drill and channel programs completed between January 2010 and June 2016, CRMs comprised approximately 3% of total samples submitted to the laboratory. CRMs demonstrate reasonable analytical accuracy, with most CRM analyses occurring within control limits. Minor bias was noted in several CRMs.
·CRMs were included in 2016 to 2021 drilling and underground sample programs comprising approximately 2.4% of samples submitted to the laboratory. All grade ranges except high-grade silver were monitored by fourteen different CRMs. Analytical drift and negative bias were noted in several CRMs for Ag, Pb, and Zn. In general, CRM results show overall acceptable analytical accuracy.

 

amcconsultants.com125
NI 43-101 Technical Report Update on the Ying Ag-Pb-Zn Property in Henan Province, People's Republic of China
 
Silvercorp Metals Inc.0723067

 

11.4.2.3Recommendations for CRMs
·Revise protocols so that CRMs are inserted using a systematic approach at a rate of one CRM in every 20 samples (5%) for both drilling and underground samples. Consider implementation of practices such as assigning CRM samples in the sample tag books prior to actual sampling, so that CRM samples occur regularly and within each batch of samples.
·Ensure that CRM results are monitored in a ‘real-time’ basis and ensure that sample batches where CRMs return results outside of two standard deviations, or one CRM outside of three standard deviations, are investigated and reanalyzed.
·Maintain a ‘table of fails’ which documents the remedial action completed on any failed batch.
·Implement a system whereby the original assays of failed batches are retained in the sample database and available for audit.
·Consider implementing the review of CRM (and QA/QC) samples for all mines collectively, in addition to the present practice of reviewing QA/QC samples separately at each mine. Given that CRMs and laboratories are common to all mines, this will provide additional data to monitor laboratory performance and trends.
·Issues of data bias (both positive and negative) as well as analytical drift should be further investigated, including the standardization of sample preparation and analysis methods between all labs.
·Ensure that all laboratories are running their own internal CRMs to monitor performance. If possible, internal laboratory QA/QC data should be acquired in real time and incorporated into the Silvercorp database. This provides additional data to monitor analytical drift and bias.
·Attempt to standardize the crush methodology, crush sub-sampling method, and sample size, lower and upper detection limits and overlimit techniques that are utilized by the various laboratories.
·Investigate the availability of CRMs certified by two-acid versus four-acid digestion.
·Consider developing several custom Ying specific CRMs. Several CRM suppliers can create CRMs from surplus coarse reject material and provide relevant certification and documentation. This may help to reduce the number of CRMs required and would also provide CRMs with matrix matched to the Ying deposits.
·Consider adding a CRM that monitors low grade zinc (less than (<) 0.2%).
11.4.3Blank samples

Coarse blank material used at the Property are derived from several unmineralized marble quarries nearby the individual mine sites. To the QP’s knowledge, the quarry sources have not been subjected to detailed analytical testing or certification.

Between January 2022 and December 2023, a total of 3,609 coarse blanks were inserted into the drill core sample stream and 534 coarse blanks were inserted into the channel sample stream. This represents an insertion rate of 2.8% and 1.1% for drillhole and channel samples, respectively.

Silvercorp revised blank failure criteria in 2020 to consider blank samples with assay results greater than 10 g/t Ag, 0.1% Pb, or 0.1% Zn to have failed. Statistics on blank samples submitted by Silvercorp between January 2022 and December 2023 and the results of Silvercorp pass / fail parameters are presented in Table 11.11.

 

amcconsultants.com126
NI 43-101 Technical Report Update on the Ying Ag-Pb-Zn Property in Henan Province, People's Republic of China
 
Silvercorp Metals Inc.0723067
Table 11.11Ying coarse blank results based on Silvercorp fail criteria (2022 – 2023)

 

Sample
type

Laboratory

Number
of blank
samples

Number
of Ag fail
>10 g/t

Number
of Pb fail

>0.1%

Number
of Zn fail
>0.1%

% Ag
fail
% Pb
fail
% Zn
fail

Drill

Ying Site Laboratory 454 17 34 3 3.74 7.49 0.66
SGS Tianjin 1,103 6 7 3 0.54 0.63 0.27
Henan Nonferrous Ins 135 0 0 0 0.00 0.00 0.00
Chengde Laboratory 284 2 1 0 0.70 0.35 0.00
Qiqihar Geol Test Centre 443 3 2 0 0.68 0.45 0.00
Henan Geol Brigade 1 470 1 0 0 0.21 0.00 0.00
Henan Nonferrous Brigade 6 222 0 4 0 0.00 1.80 0.00
Henan Nonferrous Brigade 1 467 3 1 0 0.64 0.21 0.00
Henan Geol Test Centre 31 1 0 0 3.23 0.00 0.00
Total 3,609 33 49 6 0.91 1.36 0.17
UG Ying Site Laboratory 534 11 31 9 2.06 5.81 1.69

Notes: Drill=drilling, UG=underground channel samples.

Source: Compiled by AMC, 2024.

 

11.4.3.1Discussion on blanks (2022 - 2023)

Coarse blanks test for contamination during both the sample preparation (crushing, pulverizing) and assay process. Pulp or fine blanks test for contamination during the analytical process. Both coarse and fine blanks should be inserted in each batch sent to the laboratory and comprise 4 - 5% of total samples submitted (Long et al., 1997; Méndez, 2011; Rossi and Deutsch, 2014).

Blank samples should be monitored in real-time as the results of sample batches are received. Failed blank samples should be investigated and sample batches where contamination is identified should be re-assayed. The generally accepted criterion is that 80% of coarse blanks should be less than three times the lower limit of analytical detection (LLD), and 90% of pulp blanks should be less than two times the LLD.

Where extremely low LLD are utilized in high grade samples, blank performance is best measured against a practical lower detection limit, which can be calculated from pulp duplicate data. Analytical test work on the blank material by multiple laboratories may also provide an understanding of the expected grade distribution of blank materials. Given that Silvercorp does not have pulp duplicate data for Ying samples, and there is no analysis to assess the metal distribution within the blank material, a practical detection limit cannot be derived.

Table 11.12, Figure 11.10, Figure 11.11, and Figure 11.12 present the results of January 2022 to December 2023 coarse blanks using three times the LLD to identify blank fails.

 

amcconsultants.com127
NI 43-101 Technical Report Update on the Ying Ag-Pb-Zn Property in Henan Province, People's Republic of China
 
Silvercorp Metals Inc.0723067

 

Table 11.12Ying coarse blank results based on 3 x LLD fail criteria

 

Sample
type

Laboratory

Number
of
samples
Ag
LLD
Pb
LLD
Zn
LLD
n Ag
fail
n Pb
fail
n Zn
fail
% Ag
fail
% Pb
fail
% Zn
fail

Drill

Ying Site Laboratory 454 5 0.02 0.02 14 55 4 3.1 12.1 0.9
SGS Tianjin 1,103 5 0.02 0.02 3 20 6 0.3 1.8 0.5
Henan Nonferrous Ins 135 5 0.02 0.02 0 0 0 0.0 0.0 0.0
Chengde Laboratory 284 5 0.02 0.02 1 1 0 0.4 0.4 0.0
Qiqihar Geol Test Centre 443 5 0.02 0.02 3 4 0 0.7 0.9 0.0
Henan Gold Test Centre 31 5 0.02 0.02 0 0 0 0.0 0.0 0.0
Henan Geol Brigade 1 470 5 0.02 0.02 0 3 1 0.0 0.6 0.2
Henan Nonferrous Brigade 6 222 5 0.02 0.02 0 6 0 0.0 2.7 0.0
Henan Nonferrous Brigade 1 467 5 0.02 0.02 2 1 1 0.4 0.2 0.2
Total 3,609       23 90 12 0.6 2.5 0.3
UG Ying Site Laboratory 534 5 0.02 0.02 9 46 12 1.7 8.6 2.2

Notes: Drill=drilling, UG=underground channel samples, LLD=lower limit of analytical detection, n=number of.

Source: Compiled by AMC, 2024.

 

Figure 11.10Coarse blank control chart (Ag)

Notes: CH514=Chengde, Qiqihar= Qiqihar Geol Test Centre, HGTC=Henan Gold Test Centre, HGeo_Br1=Henan Geol Brigade 1, HNF_Br6=Henan Nonferrous Brigade 6, HNF_Br1=Henan Nonferrous Brigade 1.

Source: Compiled by AMC, 2024.

 

Figure 11.11Coarse blank control chart (Pb)

Notes: CH514=Chengde, Qiqihar= Qiqihar Geol Test Centre, HGTC=Henan Gold Test Centre, HGeo_Br1=Henan Geol Brigade 1, HNF_Br6=Henan Nonferrous Brigade 6, HNF_Br1=Henan Nonferrous Brigade 1.

Source: Compiled by AMC, 2024.

 

amcconsultants.com128
NI 43-101 Technical Report Update on the Ying Ag-Pb-Zn Property in Henan Province, People's Republic of China
 
Silvercorp Metals Inc.0723067

 

Figure 11.12Coarse blank control chart (Zn)

Notes: CH514=Chengde, Qiqihar= Qiqihar Geol Test Centre, HGTC=Henan Gold Test Centre, HGeo_Br1=Henan Geol Brigade 1, HNF_Br6=Henan Nonferrous Brigade 6, HNF_Br1=Henan Nonferrous Brigade 1.

Source: Compiled by AMC, 2024.

 

The QP makes the following observations with respect to coarse blanks:

·The coarse blank material used by Silvercorp has not been tested to ensure sufficiently low concentrations of metals of interest.
·The 2022 to 2023 work program does not appear to have had any rigorous real time data review or remedial actions applied.
·Silvercorp’s 10 g/t fail limit for Ag is between two to ten times higher than the reported LLD and well below the expected Ag COGs at all the deposits. This is considered an acceptable limit.
·Silvercorp’s failure limit of 0.1% Pb and Zn is between 3 and 1,000 times higher than the reported LLDs. Given that the COG of some deposits may include Pb and Zn grades in the 0.2% to 0.5% range, the failure limit is likely too high to identify systematic contamination which may impact COG decisions.
·Based on Silvercorp’s 10 g/t Ag coarse blank failure criteria, 0.9% of total drillholes and 2.1% of underground blanks exceed the failure threshold. Individual lab failure rates vary between 0.0% and 3.7%.
·Based on Silvercorp’s 0.1% Pb coarse blank failure criteria, 1.4% of total drillholes and 5.8% of underground blanks exceed the failure threshold. Individual lab failure rates vary between 0.0% and 7.5%.
·Based on Silvercorp’s 0.1% Zn coarse blank failure criteria, 0.2% of total drillholes and 1.7% of underground blanks exceed the failure threshold. Individual lab failure rates vary between 0% and 1.7%.
·Table 11.12 shows that laboratories used at the Ying project incorporate a wide range of LLDs. The LLD for Ag varies between 1 g/t to 5 g/t, for Pb and Zn between 0.0001% to 0.01% and for Au between 0.01 to 0.1 g/t.
·When applying a three times LLD failure criteria, the following is noted:
¾The site laboratory has a failure rate of 3.1% for Ag and 12.1% for Zn, and 0.9% for Pb for drillhole samples, and a failure rate of 8% for underground channel samples.
·While blank material has not been tested, the results received from various laboratories suggest blank material has an average concentration less than 5 g/t Ag, 0.025% Pb, and 0.025% Zn. While the expected grade distributions of coarse blanks is not definitive, analytical results from the nine different laboratories (Figure 11.10, Figure 11.11, Figure 11.12) suggest low levels of contamination are occurring at the site laboratory, Henan Geol Brigade 6, and the Henan Gold Test Center. The level of contamination appears to increase at the site laboratory in 2022.

 

amcconsultants.com129
NI 43-101 Technical Report Update on the Ying Ag-Pb-Zn Property in Henan Province, People's Republic of China
 
Silvercorp Metals Inc.0723067

 

·General comments:
¾In general, coarse blank samples show that minor levels of contamination are occurring during either the sample preparation or analytical process. The amount of contamination observed is unlikely to have a material impact on Mineral Resource estimates.
¾Despite Silvercorp’s protocols which require the review of QA/QC data in real time, data associated with the 2022 to 2023 work program does not appear to have been subject to a rigorous review with remedial actions applied. Issues of laboratory contamination should be communicated to relevant laboratories as soon as possible.
11.4.3.2Discussion on blanks (2010 - 2021)

Silvercorp has included coarse blanks with sample submissions in previous work programs. A summary of results is presented below:

·Blank submissions and results prior to 2010 are not available.
·For drill and channel programs completed between January 2010 and June 2016, coarse blanks comprised approximately 2% of total samples submitted to the laboratory. Minor contamination was noted during the July 2012 to June 2016 programs and affected batches were reanalyzed.
·Coarse blanks were included in 2016 to 2021 drilling and underground sample programs comprising approximately 2.6% of samples submitted to the laboratory. No systematic contamination was noted in drillhole or underground channel samples.
11.4.3.3Recommendations on blanks

The QP makes the following recommendations:

·Send a batch of coarse blank samples to several laboratories to enable statistics on grade distribution of Ag, Pb, and Zn of the blank source material to be determined. This should be completed for each quarry site to ensure the source has sufficiently low Ag, Pb, Zn, and Au concentrations. If blank materials from different quarry sites are used, each blank material should be given an identification so that the source can be traced.
·Revise protocols so that blanks are inserted using a systematic approach at a rate of at least one blank in every 25 samples (4%) for both drilling and underground samples.
·Insert blanks immediately after expected high-grade mineralization.
·Implement the use of both coarse and fine (pulp) blank material to enable sample preparation and analytical processes to be monitored for contamination.
·Ensure that all laboratories are running their own internal blanks to monitor contamination. If possible, internal laboratory QA/QC data should be acquired in real time and incorporated into the Silvercorp database.
·Investigate if detection limits and analytical methods can be standardized between labs to ensure blank material is performing consistently.
·Implement the monitoring of blank results in real-time and ensure that sample batches with blanks exceeding failure limits are investigated and reanalyzed.
·Maintain a ‘table of fails’ which documents the remedial action completed on any failed batch.
·Implement a system whereby the original assays of failed batches are retained in the sample database and available for audit.
·Submit pulp duplicate samples for analysis to enable practical detection limits to be determined for each laboratory.

 

amcconsultants.com130
NI 43-101 Technical Report Update on the Ying Ag-Pb-Zn Property in Henan Province, People's Republic of China
 
Silvercorp Metals Inc.0723067

 

11.4.4Duplicate samples

Silvercorp’s current QA/QC protocols include the insertion of field duplicates with both drilling and underground channel samples. Field duplicates have been included with drilling samples since 2012 and have been included with underground channel samples between January 2012 and July 2016, and between January 2020 and December 2023.

Between January 2022 and December 2023, a total of 4,251 quarter core field duplicates were submitted with drillhole samples, and 4,246 field duplicates were submitted with underground samples (Table 11.5). This represents a field duplicate insertion rate of 3.3% for drilling and 7.5% for underground channel samples.

Field duplicates of core samples are prepared by cutting the unsampled half of the core into two and including one of these quarters as a separate sample in the original laboratory submission. Underground field duplicates comprise the collection of a separate sample from rock chips taken at the same location in the face, back or wall of tunnels, and including this in the initial laboratory submission.

Silvercorp monitors field duplicates using scatter graph plots of the grades of original samples against the grades of the corresponding duplicate. A 45-degree line representing equal grades of the original and the duplicate are included on the plot as well as a line representing 20% error. Silvercorp expects field duplicates to be within 20% of the original sample.

11.4.4.1Discussion on duplicates (2022 – 2023)

Duplicate samples are taken at successive points within the sample preparation and analysis process to understand the variances occurring at each stage of the process. Pulp duplicates monitor variance associated with sub-sampling of the pulp, the analysis process as well as the inherent geological variability. Coarse reject duplicates monitor these same variances plus the variance associated with sub-sampling of the coarse reject. Field duplicates monitor all previously described variances plus the variance associated with the actual sampling process.

While duplicate samples should encompass the entire range of grades seen within a deposit to ensure that the geological heterogeneity is understood, most duplicate samples should be selected from zones of mineralization. Unmineralized or very low-grade samples approaching the stated limit of lower detection are commonly imprecise, and do not provide a meaningful assessment of variance.

Generally accepted industry best practice is to include a combination of field, coarse and pulp duplicates in the original sample stream in approximately equal proportions at a combined insertion rate of 5 to 6% (Long et al., 1997; Méndez, 2011; Rossi and Deutsch, 2014).

Duplicate data can be assessed using a variety of approaches. The QP typically assesses duplicate data using scatter plots and absolute relative paired difference (RPD) plots which measure the absolute difference between a sample and its duplicate relative to the mean of the pairs. In these analyses, pairs where one sample is less than 15 times the LLD are excluded. Removing these low values ensures that there is no undue influence on the RPD plots due to the higher variance of grades expected near the lower detection limit, where precision becomes poorer (Long et al., 1997).

The performance of duplicates is dependent on the mineralization style, inherent geological variance, and variance associated with sampling. The relative precision of a duplicate sample will increase as the variance associated with sub-sampling is removed. Pulp duplicates should therefore be more precise (alike) than coarse duplicates as they do not incorporate the sampling errors associated with collection of the sub-sample from the coarse reject. Coarse reject duplicates should be more precise than field duplicates.

 

amcconsultants.com131
NI 43-101 Technical Report Update on the Ying Ag-Pb-Zn Property in Henan Province, People's Republic of China
 
Silvercorp Metals Inc.0723067

The generally accepted criterion is that 85 - 90% of field duplicate samples should have an absolute relative difference of less than 25%. The threshold RPD decreases to less than 20% for coarse duplicates and to less than 10% for pulp duplicates (Rossi and Deutsch, 2014).

Table 11.13 presents a summary of field duplicates by laboratory and sample type for 2022 and 2023. Figure 11.13 presents example RPD and scatter plots for Ag, Pb, and Zn respectively for underground channel samples processed at the Ying site laboratory.

Table 11.13Drill Field duplicate results by laboratory and sample type (2022-2023)

 

Element Sample type Drill UG
Lab => Ying Site
lab
SGS Tianjin Henan
Nonferrous
Ins
Chengde
Laboratory
Qiqihar
Geol Test
Centre
Henan
Gold Test
Centre
Henan Geol
Brigade 1
Henan
Nonferrous
Brigade 6
Henan
Nonferrous
Brigade 1
Ying Site
lab
Ag n dup pairs 227 741 126 227 443 11 395 145 306 700
LLD (g/t) 10 2 2 2 0.5 2 1 1 1 5
Mean orig (g/t) 201 164 95 242 117 106 163 139 232 341
Mean dup (g/t) 184 170 101 242 112 106 134 148 202 321
n > 15 x LLD 55 303 40 86 218 7 103 70 168 373
<25% RPD (%) 25% 44% 27% 55% 42% 43% 33% 51% 39% 52%
Pb n dup pairs 392 1,004 124 296 404 26 363 199 415 891
LLD (%) 0.02 0.02 0.02 0.02 0.02 0.02 0.02 0.02 0.02 0.02
Mean orig 1.95 1.51 1.45 1.83 1.51 1.62 1.54 1.50 1.60 56
Mean dup 1.98 1.57 1.46 1.78 1.58 1.62 1.67 1.47 1.57 56
n > 15 x LLD 206 483 72 126 186 14 174 107 248 760
% <25% RPD 56% 55% 57% 48% 63% 17% 54% 57% 61% 57%
Zn n dup pairs 344 1,058 134 291 427 25 392 166 395 702
LLD (%) 0.02 0.02 0.02 0.02 0.02 0.02 0.02 0.02 0.02 0.01
Mean orig 0.50 0.52 0.69 0.71 0.48 0.67 0.57 0.57 0.59 1.14
Mean dup 0.52 0.52 0.75 0.76 0.49 0.80 0.54 0.53 0.56 1.11
n > 15 x LLD 74 203 37 74 85 9 79 43 94 424
% <25% RPD 50% 54% 47% 53% 54% 67% 54% 35% 49% 59%

Notes: n dup pairs=number of duplicate pairs where the assay value of each duplicate is not blank and >0. LLD=Lower limit of analytical detection.

Source: Compiled by AMC, 2024. 

The QP makes the following observations with respect to field duplicates:

·The results of field duplicate sampling of quarter core and a separate underground sample are less than optimal.
·The percentage of quarter core duplicate samples with a RPD of less than 25% ranges from 25% to 52% for Ag, 48% to 61% for Pb, and 35% to 67% for Zn at the various laboratories.
·The percentage of underground duplicate samples with a RPD of less than 25% is 52% for Ag, 57% for Pb, and 59% for Zn.
·Duplicate performance is broadly similar between laboratories and elements. This suggests that a significant source of the variance may be occurring at the initial sampling process.
·The implementation of coarse (crush) duplicates and pulp duplicates in future programs could be used to assist in identifying where error is occurring during the sampling process.

 

amcconsultants.com132
NI 43-101 Technical Report Update on the Ying Ag-Pb-Zn Property in Henan Province, People's Republic of China
 
Silvercorp Metals Inc.0723067

·A comparison of the mean of original samples against the mean of duplicate samples shows no consistent bias is occurring between the original and duplicate. Most laboratories have a duplicate mean that is within 10% of the original sample mean.
·Sub-optimal results of duplicate samples may be attributable to heterogeneity within the mineralization.
Figure 11.13 Ying field duplicate RPD and scatter plots of Ag (channel samples)

Notes: Lower detection limit 5 g/t Ag (700 duplicate pairs).
Source: Compiled by AMC, 2024.

 

Figure 11.14 Ying field duplicate RPD and scatter plots of Pb (channel samples)

Notes: Lower detection limit 0.02% Pb (891 duplicate pairs).
Source: Compiled by AMC, 2024.

 

amcconsultants.com133
NI 43-101 Technical Report Update on the Ying Ag-Pb-Zn Property in Henan Province, People's Republic of China
 
Silvercorp Metals Inc.0723067

Figure 11.15 Ying field duplicate RPD and scatter plots of Zn (channel samples)

Notes: Lower detection limit 0.02% Zn (702 duplicate pairs).
Source: Compiled by AMC, 2024.

 

11.4.4.2Discussion on duplicates (2010 - 2021)

Silvercorp has included field duplicates with sample submissions in most previous work programs since January 2012. Pulp duplicates were submitted during programs from January 2010 to December 2021.

·Drill field duplicate insertion rates have varied between 2.6% and 3.0%. Underground field duplicate insertion rates have varied between 1.8% and 2.3%.
·Pulp duplicate insertion rates varied between 1.5% and 3.8% of total drillhole and underground samples submitted.
·A review of field duplicate and pulp duplicate data from programs completed prior to July 2016 do not show any significant issues with data collected during this time.
·Field duplicates collected between July 2016 and December 2021 show precision below industry expected standards, but are not at a level that trigger major rework requirements.
11.4.4.3Recommendations on duplicates

The QP recommends that the following improvements be made to the QA/QC protocols with respect to duplicate samples:

·Duplicates insertion rates should be increased to 5 - 6% of total samples submitted and should comprise field duplicates, coarse crush duplicates and pulp duplicates. The collection of duplicates at different stages of the sampling process will enable the source of sampling variance to be understood.
·Investigate the cause of poor field duplicate performance in both core and underground samples. This could include a test phase that incorporates the following:
¾Submitting the second half of the core, instead of quarter core as the field duplicates (if required, a thin slice of core could be sliced off and retained for archival storage before cutting the core into halves).
¾Consider increasing the size of underground samples.

 

amcconsultants.com134
NI 43-101 Technical Report Update on the Ying Ag-Pb-Zn Property in Henan Province, People's Republic of China
 
Silvercorp Metals Inc.0723067

 

11.4.5Umpire (check) samples

Silvercorp regularly submits a portion of pulp samples to a second umpire (check) laboratory for independent analysis. Individual samples are selected randomly from mineralized samples and encompass a variety of grade ranges.

A total of 756 umpire samples were submitted to a second laboratory between January 2022 and December 2023. Table 11.14 presents a summary of the number of umpire samples by primary and umpire laboratory. For drillhole samples analyzed at various primary laboratories, umpire samples were sent to SGS Tianjin for umpire analysis. Underground samples where the original sample was analyzed at the Site Laboratory were submitted to three different commercial laboratories (Henan Geol Brigade 1, Henan Non-Ferrous Ins, and SGS Tianjin). CRMs and blanks do not appear to have been submitted with umpire samples submissions.

Table 11.14Ying umpire samples laboratories

 

  Number of samples (Umpire Laboratory)
Henan Geol
Brigade 1
Henan Nonferrous
Brigade 1
SGS Tianjin

Primary laboratory

Drill

Chengde Laboratory - - 51
Henan Geol Brigade 1 - - 25
Qiqihar Geol Test Centre - - 56
Henan Gold Test Centre - - 23
Henan Nonferrous Brigade 1 - - 42
Henan Nonferrous Brigade 6 - - 32
Henan Nonferrous Ins - - 63
SGS   21 -
Site Lab - - 1
UG Site Lab 190 - 252

Source: Compiled by AMC, 2024.

 

11.4.5.1Discussion on umpire samples (2022 - 2023)

Umpire laboratory samples are pulp samples sent to a separate laboratory to assess the accuracy of the primary laboratory. Umpire samples measure analytical variance and sub-sampling variance. Generally accepted practices are that at least 4 - 5% of total samples submitted to the primary laboratory should be sent to a third-party umpire laboratory (Méndez, 2011; Rossi and Deutsch, 2014).

Table 11.15 presents the results of the umpire sampling program. Figure 11.16, Figure 11.17, and Figure 11.18 present example RPD and scatter plots for Ag, Pb, and Zn for underground samples where the primary laboratory was the Ying Site Laboratory and the umpire laboratory was SGS.

 

amcconsultants.com135
NI 43-101 Technical Report Update on the Ying Ag-Pb-Zn Property in Henan Province, People's Republic of China
 
Silvercorp Metals Inc.0723067

 

Figure 11.16Ying umpire RPD and scatter plots of Ag (UG samples, Site Lab, SGS Umpire Lab)

Note: Lower detection: Site Lab = 5 g/t Ag, SGS = 1 g/t Ag (252 duplicate pairs, 148 pairs > 15 X LLD).
Source: Compiled by AMC, 2024. 

 

Figure 11.17Ying umpire RPD and scatter plots of Pb (UG samples, Site Lab, SGS Umpire Lab)

Note: Lower detection: Site Lab = 0.02% Pb, SGS = 0.0002% Pb (252 duplicate pairs, 235 pairs > 15 X LLD).
Source: Compiled by AMC, 2024.

 

amcconsultants.com136
NI 43-101 Technical Report Update on the Ying Ag-Pb-Zn Property in Henan Province, People's Republic of China
 
Silvercorp Metals Inc.0723067

 

Figure 11.18Ying umpire RPD and scatter plots of Zn (UG samples, Site Lab, SGS Umpire Lab)

Note: Lower detection: Site Lab = 0.02% Zn, SGS = 0.0001% Zn (252 duplicate pairs, 145 pairs > 15 X LLD).
Source: Compiled by AMC, 2024.

 

amcconsultants.com137
NI 43-101 Technical Report Update on the Ying Ag-Pb-Zn Property in Henan Province, People's Republic of China
 
Silvercorp Metals Inc.0723067

 

Table 11.15Ying umpire sample results
  Primary lab Umpire lab

Element

Number of
sample
pairs
Mean
original
samples
1
Mean
umpire
samples
1

Mean
difference1, 2

n >15
x LLD
3
% Samples
within
10% RPD

DH

Chengde Laboratory

SGS

Ag (g/t)

51

230 228 0.89% 45 98
Pb (%) 1.74 1.71 2.03% 46 93
Zn (%) 0.47 0.45 4.01% 28 85

Henan Geol Brigade 1

SGS

Ag (g/t)

25

400 406 -1.49% 22 77
Pb (%) 1.97 2.04 -3.15% 22 86
Zn (%) 0.54 0.54 -0.63% 12 75
Qiqihar Geol Test Centre

SGS

Ag (g/t)

56

164 174 -6.33% 47 82
Pb (%) 0.98 1.02 -3.90% 51 80
Zn (%) 0.25 0.25 -1.71% 22 86

Henan Gold Test Centre

SGS

Ag (g/t)

23

320 319 0.41% 21 91
Pb (%) 1.91 1.88 1.39% 22 90
Zn (%) 0.25 0.24 5.24% 10 56
Henan Nonferrous Brigade 1

SGS

Ag (g/t)

42

283 262 7.39% 30 62
Pb (%) 1.84 1.83 0.44% 37 89
Zn (%) 0.57 0.57 1.21% 19 84
Henan Nonferrous Brigade 6

SGS

Ag (g/t)

32

277 305 -10.32% 25 81
Pb (%) 2.95 2.93 0.66% 31 94
Zn (%) 0.92 0.90 2.65% 16 88
Henan Nonferrous Ins

SGS

Ag (g/t)

62

206 208 -0.86% 53 89
Pb (%) 1.80 1.82 -0.92% 51 90
Zn (%) 0.60 0.59 0.73% 39 85

UG

Site Lab

Henan Geol Brigade 1 Ag (g/t)

190

527 526 0.15% 128 74
Pb (%) 2.46 2.22 9.8% 165 77
Zn (%) 0.74 0.72 2.9% 128 78

Site Lab

SGS

Ag (g/t)

252

318 323 -1.4% 148 75
Pb (%) 3.44 3.50 -1.7% 235 87
Zn (%) 0.91 0.93 -2.9% 145 92

Notes:

1 Based on all sample pairs.

2 Calculated as (umpire-orig) / orig.

3 Number of sample pairs 15 times the higher of the LLD.
Source: Compiled by AMC, 2024.

 

The QP makes the following observations based on the review of the umpire sampling program completed at Ying between January 2022 and December 2023:

·Silvercorp’s umpire sampling program comprises less than 0.3% of all drillhole samples, and 0.3% of underground samples submitted, which is significantly less than generally accepted practice.
·Umpire sample programs have not incorporated CRMs, blanks, or duplicates to monitor the performance of the umpire laboratory.
·Differences in laboratory preparation, digestion, and analytical methodology inherently result in slight differences between the primary and umpire laboratory.

 

amcconsultants.com138
NI 43-101 Technical Report Update on the Ying Ag-Pb-Zn Property in Henan Province, People's Republic of China
 
Silvercorp Metals Inc.0723067

 

·Drilling samples:
¾The use of numerous primary laboratories used for drillhole sampling, and low number of umpire samples has resulted in relatively few umpire sample pairs for meaningful analysis.
¾Check assay results completed on drillhole samples do not show any persistent bias with the mean of original samples generally being within 5% of the mean of the check samples.
¾Most laboratories used for drillhole analysis have more than 80% of checks sample pairs which are within a 10% RPD. The percentage of Zn samples within 10% RPD is consistently lower across a number of laboratories suggesting that differences in Zn analytical methodologies is more pronounced between laboratories.
¾When the Henan Gold Test Centre Zn results are compared to the SGS check laboratory results only 56% of sample pairs are within 10% RPD. The QP notes this is based on 23 sample pairs, an insufficient number for meaningful analysis.
¾Henan Nonferrous Brigade 6 has the highest Ag difference at 10.32% between it and SGS. This is based on one sample disparity, likely and incorrect reading.
·Underground samples:
¾Two check laboratories have been used to check the accuracy of the primary Ying Site Laboratory.
¾The percentage of check sample pairs within a 10% RPD ranges about 74% for Ag, 77 - 87% for Pb, and 78 - 92% for Zn.
·Silvercorp’s check sampling program does not include sufficient data for detailed analysis. The number of laboratories used, differences in analytical methodologies, lack of included CRM, pulp blank and duplicate samples with umpire sample submissions does not provide sufficient confidence in the umpire laboratory to conclusively assess the primary laboratory. Limited results suggest that the performance of primary laboratories is acceptable.
11.4.5.2Discussion on umpire samples (2012 - 2021)

Silvercorp has included umpire samples with sample submissions from 2010 to June 2016. Umpire samples have averaged 0.9% of all samples submitted. Umpire sampling did not show any significant bias or precision errors with previous laboratories.

Umpire samples were not inserted in the period of July 2016 and December 2019, but from January 2020 to December 2021 the process was re-established. The overall insertion was low for drilling with a rate of 0.12% and with channels at 2.61%.

11.4.5.3Recommendations on umpire samples

The QP recommends that the following improvements be made to the QA/QC protocols with respect to umpire samples:

·Select a single third-party laboratory to act as the umpire laboratory.
·Submit a random selection of pulp samples to the umpire laboratory on a regular basis, with CRMs, blanks, and duplicates. This is to assess the performance of the batch at the umpire laboratory.
·Increase umpire sampling submissions to 4 - 5% of all samples collected.

 

amcconsultants.com139
NI 43-101 Technical Report Update on the Ying Ag-Pb-Zn Property in Henan Province, People's Republic of China
 
Silvercorp Metals Inc.0723067

 

11.5General recommendations

In addition to recommendations on Laboratory protocols (Section 11.3.1.1), CRMs (Section 11.4.2.3), blanks (Section 11.4.3.3), duplicates (Section 11.4.4.3), and umpire samples (Section 11.4.5.3) the QP makes the following general recommendations:

·Laboratory protocols for sample preparation and analysis should be standardized where possible.
·Insertion rates for all QA/QC sample types should be increased to conform with generally accepted industry standards. QA/QC samples should be included with every batch of samples submitted to the laboratory.
·Insert QA/QC samples randomly within sample batches as opposed to the present practice of consistently inserting consecutive CRMs, blanks, and duplicates. This will make it more difficult for the laboratory to pre-determine the QA/QC types.
·Investigate whether internal laboratory QA/QC data are available, and whether these can be reviewed in addition to Silvercorp data.
·Populate and utilize the planned implementation of a commercial drillhole database with QA/QC capability.
·Ensure that QA/QC sample results are monitored in a real-time basis and remedial actions taken as soon as possible.
·Maintain and report a ‘table of fails’ which documents the remedial action completed on any failed batch.

·Implement a system whereby the original assays of failed batches are retained in the sample database and available for audit.
·Consider implementing the review of QA/QC samples for all mines collectively, in addition to the present practice of reviewing QA/QC samples separately at each mine. Given that laboratories are common to all mines, this will provide additional data to monitor laboratory performance and trends.
·Standardize the coding of batch IDs for all samples (including QA/QC samples) to allow for the review of data on a batch basis.

 

11.6Conclusions

Silvercorp has implemented industry standard practices which cover sample collection, preparation, and analysis protocols and sample security at the Ying Property. Basic QA/QC protocols have been implemented to monitor accuracy, precision and sample contamination during sampling, preparation, and analytical processes through the inclusion of CRMs, coarse blanks, and field duplicates with sample batches. Limited umpire (check) assaying has been completed by several independent laboratories.

Silvercorp’s present protocols employed at the Ying Project do not encompass all aspects of a comprehensive QA/QC program, do not include optimal rates of insertion, and have not included rigorous monitoring of results in a real time basis. Despite these issues, a review by the QP shows that there are no material accuracy, precision, or systematic contamination errors within the Ying sample database. The QP considers the Ying sample database to be acceptable for Mineral Resource estimation.

 

amcconsultants.com140
NI 43-101 Technical Report Update on the Ying Ag-Pb-Zn Property in Henan Province, People's Republic of China
 
Silvercorp Metals Inc.0723067

 

12Data verification
12.1Site inspections

Independent AMC QPs Mr HA Smith, Mr S Robinson, and Mr RJ Chesher, together with independent QP Mr D Claffey of Hillerton Consulting Ltd. visited the Ying Property between 26 - 29 February 2024. Mr Smith has made three previous site visits. The following items formed part of the data verification exercise on site:

·Discussions with site staff regarding:
¾Sample collection.
¾Sample preparation.
¾Sample storage.
¾QA/QC.
¾Data validation procedures.
¾Underground mapping procedures.
¾Survey procedures.
¾Geological interpretation.
¾Exploration strategy.
¾Underground operations and mining methods.
¾Tailings management facilities (TSFs) design, construction, and operation, including plans for 3rd TSF.
¾Mills operation and plan for Mill No. 2 expansion.
·Silvercorp presentations on Ying operations, Mill No. 2 expansion, future planning, and initiatives.
·Inspection of Mill No. 1 and Mill No. 2 and viewing of ore-sorting set-up and operation.
·Inspections of current TSFs and area for 3rd TSF.
·Inspection of site laboratory and SGS sample preparation laboratory.
·Inspection of SGX water treatment plant.
·Inspection of mine electrical sub-station.
·SGX mine visit:
¾Core shack:
-Review of rock samples and a selection of diamond core showing representative portions of significant Ag-Pb-Zn veins (see Table 12.1).
-Review of core storage and processing facilities.
¾CM105-S2SJ-S2W-100-12A resuing stope.
¾Refuge chamber.
¾Dewatering station.
¾Monitoring room and emergency broadcasting and communication systems.
¾Load-haul-dump machine at XPD area.
¾XPD-S7-2-320-2WCM channel sampling.
¾Waste rock chutes.
¾Roadside drill rig.
¾Surface emergency rescue warehouse / medical room.
¾CM108 portal.

 

amcconsultants.com141
NI 43-101 Technical Report Update on the Ying Ag-Pb-Zn Property in Henan Province, People's Republic of China
 
Silvercorp Metals Inc.0723067

 

 

·HPG mine visit:
¾PD600-XPD-B8 longhole stoping.
¾PD5-XPD main transportation decline.
¾Visit to underground diamond core drill setup at XPD-260-18A (drillhole ZK22S14003).
·Inspection of Hongfa aggregate plant.
·TLP mine visit:
¾PD820 portal.
¾PD820XPD-T22E-A26 Shrinkage Stope.
¾PD730 portal.
¾Shallow-dipping part of the T21 vein (Ag-Pb-Zn) and steep-dipping T21E vein (Ag-Pb- Zn-Au) at PD730.
·LMW mine visit:
¾Core shack: Review of select intervals of drillcore showing typical Ag-Pb-Zn veins and recently discovered shallow-dipping Au-rich veins. (see Table 12.1).
¾Paste backfill station.
¾LM50 and LM26 room and pillar stoping in shallow-dipping Au veins.
¾930XPD-850: high-grade Ag-Pb vein W18W.

Table 12.1 shows the list of drillholes reviewed on site by Mr Robinson. Select intervals were reviewed as discussed above.

 

Table 12.1 Drillholes reviewed on site

 

SGX Hole ID SGX Hole ID LMW Hole ID
ZK02AS203 ZK12S103 ZKX0818
ZK02S6008 ZK12S607 ZKX11238
ZK02S7E2005 ZK14AS2W2001 ZKX05X076
ZK06S706 ZK15S19W002 ZKX05X096
ZK06S8010 ZK16S18W002 ZKX05X098
ZK08AS2W207 ZK24AS21001 ZKX3822
ZK0S16W1005 ZK24AS7001 ZKX1613
ZK10AS6010 ZK26S21W002 ZKX03X021
ZK10S104 ZK63AS8E1001 ZKX03X026
ZK10S14006 ZK6AS2W06 ZKX1623
ZK11AS19015 ZKDB06AS1401 ZKX05X079
ZK11AS1905 ZKDB0S8E102 ZKX05X010
ZK11AS1906 ZKDB10AS1401  
ZK11S7_1002 ZKDB12S1001  
ZK12AS1W5005 ZKDB12S2002  
ZK12AS2W2001 ZKDB71S3201  

 

12.2Assay data verification
12.2.1Work completed by the QP

The QP for Section 12 of the 2017 Technical Report supervised a random cross-check of 10 - 15% of the mineralized assay results in the database with original assay results for data collected to 30 June 2016. Details are outlined in the 2017 Technical Report. No issues were noted. The current QP for this section, Dr Genoa K Vartell, has reviewed this work and accepts the results.

 

amcconsultants.com142
NI 43-101 Technical Report Update on the Ying Ag-Pb-Zn Property in Henan Province, People's Republic of China
 
Silvercorp Metals Inc.0723067

 

For the 2020 Technical Report and under supervision of Dr Vartell, a full-time employee of AMC completed data verification for assay results collected between 1 July 2016 and 31 December 2019. This verification comprised randomly selecting data from approximately 5% of the drilling and 5% of the channel samples from each year and each mine and comparing Ag, Zn, Pb, and Au assay results in the Mineral Resource database with analytical results on the original assay certificate. Details are outlined in the 2020 Technical Report. Minor issues were noted.

Under supervision of Dr Vartell, a full-time employee of AMC completed data verification for assay results collected between 1 January 2020 and 31 December 2021. Due to the large number of assays in 2020 and 2021, the data was subset to only assays with > 35 g/t silver or > 0.1% lead or > 0.1% zinc or > 0.1 g/t gold assays. This verification comprised randomly selecting data from approximately 8% of the drilling and channel samples from each year, mine and laboratory and comparing Ag, Zn, Pb, and Au assay results in the Mineral Resource database with analytical results on the original assay certificate. Minor issues were noted.

Under supervision of Dr Vartell, Amir Ridzuan of Amir Ridzuan Enterprise completed data verification for assay results collected between 1 January 2022 and 31 December 2023. Due to the large number of assays in 2022 and 2023, an automated computer process was used to check for discrepancies between the original assay certificates and the database. Over 70% of the assay certificates were provided by Silvercorp. Data verification on these certificates comprised checking the key data types (drilling and underground channel samples) from each year and comparing Ag, Zn, Pb, and Au assay results in the Mineral Resource database with analytical results on the original assay certificate.

Checks of the 2022-2023 assay data identified 1067 anomalies where the same sample ID existed in more than one assay certificate, but the values from the assay certificates were different from each other. This list of samples was provided to Silvercorp. Silvercorp confirmed that if an assay result was unexpected, it re-ran the same sample with the same sample number again in a different batch as a check. This situation normally arose when a channel sample was re-taken. The procedure is for the new assay to be used, but the QP found this was not always the case. These sample IDs were excluded from the check.

The results of drilling and channel assay verification from 2016 to 2023 are presented in Table 12.2 and Table 12.3.

 

amcconsultants.com143
NI 43-101 Technical Report Update on the Ying Ag-Pb-Zn Property in Henan Province, People's Republic of China
 
Silvercorp Metals Inc.0723067

 

Table 12.2Assay verification results (drilling July 2016 to Dec 2023)

 

Year Total samples # Samples selected
for verification
Assays
confirmed1
Errors noted2 Certificate
error3
% Samples
verified
2016 2,994 298 297 1 0 10
2017 7,407 559 559 0 0 7.5
2018 5,665 262 262 0 0 4.6
2019 5,678 453 452 1 0 8
20204, 5 6,872 650 596 54 37 9
20214, 5 16,938 1,200 1200 0 22 7
2022 82,274 57,286 57,242 44 nr6 70
2023 45,661 30,001 29,948 53 nr6 66
Total 173,489 90,709 90,556 153 59 22.8

Notes:

1 Assay results match certificate ignoring minor rounding and truncation discrepancies.

2 Assay value does not match certificate.

3 Certificate reference number in the database incorrect.

4 Due to the large number of assays in 2020 and 2021 (65,711 & 159,698, respectively), the database was sub-set on the following criteria: only samples > 35 g/t silver or > 0.1% lead or > 0.1% zinc or > 0.1 g/t gold were included for review.

5 QA/QC samples were included in the assay verification check.

6 nr=not recorded.

 

Table 12.3Assay verification results (channel samples July 2016 to Dec 2023)

 

Year Total samples # Samples selected
for verification
Assays
confirmed1
Errors noted2 Certificate
error3
% Samples
verified
2016 9,190 512 465 33 14 5.6
2017 18,803 977 963 7 7 5.2
2018 18,106 1,036 951 72 13 5.7
2019 23,829 1,307 1,273 22 12 5.5
20204, 5 8,798 668 663 5 119 7.6
20214, 5 12,862 959 951 8 186 7.5
20227 27,179 25,686 25,447 239 nr6 95
20237 29,663 21,775 21,739 36 nr6 73
Total 148,430 52,920 52,452 422 351 25.6

Notes:

1 Assay results match certificate ignoring minor rounding and truncation discrepancies.

2 Assay value does not match certificate.

3 Certificate reference number in the database incorrect.

4 Due to the large number of assays in 2020 and 2021 (23,454 & 24,000, respectively), the database was sub-set on the following criteria: only samples > 35 g/t silver or > 0.1% lead or > 0.1% zinc or > 0.1 g/t gold were included for review.

5 QA/QC samples were included in the assay verification check.

6 nr=not recorded.

7 Total samples refer to the number of channels samples taken in drifts.

 

12.2.2QP observations on assay data verification

The QP makes the following observations based on the assay data verification undertaken:

·Cross-checking of original assay results with the drilling database for 2022 - 2023 noted 97 errors out of 87,190 samples verified representing an error rate of 0.11%.
·Cross-checking of original assay results with the channel sample database noted 275 errors out of 47,186 samples verified representing an error rate of 0.58%.
·Ag assays (recorded as grams per tonne) have been inconsistently rounded or truncated to the nearest integer value in the Ying drilling and channel databases.

 

amcconsultants.com144
NI 43-101 Technical Report Update on the Ying Ag-Pb-Zn Property in Henan Province, People's Republic of China
 
Silvercorp Metals Inc.0723067

 

·Pb and Zn assays (recorded as percent) have been inconsistently rounded or truncated to two decimal places in the Ying drilling and channel databases.
·Au (recorded as grams per tonne) is commonly recorded as 0 g/t when no Au assays are available. This is further discussed in Section 14.
·Assay results below the LLD are not treated consistently within the assay database. In some cases, LLD results are recorded as the LLD and in other cases they are recorded as half of the LLD or set to another background value.
·Pb analyses were recorded in the Ag columns and vice versa in the database for the data from three assay certificates. These certificates impacted the 2022 channel data, however there were less than 100 affected assays.

 

12.3Verification of other data

During the review of the 2023 database, the QP noted that some issues highlighted in the previous Technical Report have not yet been addressed or only partially addressed. These issues do not directly affect Mineral Resources but reduce the efficiency in which data can be reviewed or audited. These discrepancies, however, have resulted in differences in the number of samples tabulated by time-period between Silvercorp and AMC.

A summary of prior issues is provided below:

·Date fields for the date of drilling or underground sample collection, and assaying are inconsistent, invalid, and often left unpopulated prior to 2022. In some instances, discrepancies are noted with sample dates and assay dates being years apart. Missing date information creates issues with time-period reporting and identifying and rectifying errors.
·Sample type discrepancies were noted between the collar and assay files (i.e., noted as drillhole in collar file and underground channel sample in assay file).
·Assay certificate and batch data is inconsistently recorded in the sample database. In some instances, dates have been used as the lab certificate ID which have been corrupted by Microsoft Excel.

Differences in the number of samples tabulated by time-period between Silvercorp and AMC are primarily due to 1) differing interpretations of missing dates, 2) some drillholes occur in more than one mine database, and 3) non-sampled intervals being counted as a sample.

12.4Recommendations

The QPs have been informed by Silvercorp that going forward, data will be housed in Micromine’s Geobank data management system. The QPs recommend that Silvercorp implement the following:

·Consider centralizing and standardizing all mine databases to reduce duplicate data and minimize version control issues. Rules or lookup tables should be set to ensure data is valid prior to upload.
·Establish standard dataset boundaries for each mine, including overlaps as required.
·Ensure assay data is recorded without rounding to accurately reflect the original assay certificates.
·Establish a protocol for the consistent treatment of samples with analytical results below the LLD.
·Undertake further random assay checks of the channel sample database and make corrections as appropriate.
·Establish a protocol to ensure unsampled intervals are consistently recorded in the database.

 

amcconsultants.com145
NI 43-101 Technical Report Update on the Ying Ag-Pb-Zn Property in Henan Province, People's Republic of China
 
Silvercorp Metals Inc.0723067

 

·Ensure that when a sample ID is on two certificates there is a documented rationale and flag for what assays are used for the Mineral Resources.
·Ensure that date fields are populated in a consistent format within the assay database. All dates should be checked for validity and corrected as required. Missing dates should be corrected using historical records or by cross-referencing drill dates, samples dates, and assay dates.
·Duplicated drillhole and channel Hole IDs should be addressed to allow the Ying database to be audited as a whole. Develop procedures to ensure Hole IDs and Sample IDs are unique for each deposit.
·Store QA/QC data within the database and ensure that Certificate (batch) IDs are consistent between sample and QA/QC data.
12.5Conclusions

The QPs do not consider the issues noted to have a material impact on Mineral Resource estimates. The QP considers the assay database to be acceptable for Mineral Resource estimation.

 

amcconsultants.com146
NI 43-101 Technical Report Update on the Ying Ag-Pb-Zn Property in Henan Province, People's Republic of China
 
Silvercorp Metals Inc.0723067
13Mineral processing and metallurgical testing
13.1Introduction

Laboratory-scale mineral processing and metallurgical tests for the Ying Property deposits have been carried out by four laboratories in China as follows:

·Changsha Design and Research Institute (CDRI) using TLP mineralization in 1994.
·Hunan Nonferrous Metal Research Institute (HNMRI) using SGX mineralization in 2005.
·Tongling Nonferrous Metals Design Institute (TNMDI) using HZG mineralization in 2006.
·Changchun Gold Research Institute (CCGRI) using HPG mineralization in 2021.

The objectives of the 1994 to 2005 laboratory mineral processing testwork were:

·To maximize silver recovery to the lead concentrate.
·To develop a process flow sheet with appropriate operating parameters as a basis for the industrial scale implementation of lead, zinc, and silver recovery.
·To determine the product quality characteristics relative to the relevant national standards.

The metallurgical testing consisted of mineralogical assessment, gravity separation tests, flotation tests, and specific gravity measurements of the mineralized veins.

SGX is the main deposit and the HNMRI work was the most comprehensive; therefore, the lab test results from HNMRI’s study (2005) on SGX mineralization were used for both Mill Plant 1 (2005) and Mill Plant 2 (2008) design.

In 2021, CCGRI was entrusted to carry out mineral processing tests for HPG mineralization. The purpose was to conduct a comprehensive mineral processing test on gold ore, obtain a recovery plan for gold, silver, lead, and zinc, and provide a basis for production process optimization. The test results were used for the technical upgrading of the Mill Plant 2 concentrator in 2021. Knelson concentrators were added to the plant circuit for gravity recovery and greatly improved the overall gold recovery for the HPG mine.

Additional mineralization testing in 2021 was done by CITIC Heavy Industry Machinery Co. Ltd (CITIC). CITIC was commissioned to conduct grinding tests on sulphide ore from SGX, TLP, LME, and LMW, and oxide ore from TLP and HPG. This test work included JK Drop Weight testing, Bond Ball Mill Index testing, and Bond Abrasion Index testing.

13.2Mineralogy

Silvercorp has three principal mining operations on the Ying Property:

·SGX, consisting of the SGX and HZG mines in the western part of the block.
·HPG, consisting of the HPG mine, also in the western part of the block.
·TLP / LM, consisting of the TLP, LME, LMW, and DCG mines in the eastern part of the block.

The mineralization in the SGX-HZG deposits and other deposits in the Ying district occurs as relatively narrow tabular veins that pinch-and-swell along fault-fissure structures.

The mineralogy generally consists of galena and sphalerite plus a variety of silver minerals from native silver to silver sulphides and sulphosalts, some rare, and in the case of TLP / LM mine, some silver halides in the upper zones.

The mineralogy specific to each deposit is described in the following sub-sections.

 

amcconsultants.com147
NI 43-101 Technical Report Update on the Ying Ag-Pb-Zn Property in Henan Province, People's Republic of China
 
Silvercorp Metals Inc.0723067
13.2.1SGX mineralization

In 2005, HNMRI performed petrographic analysis on samples collected for metallurgical test work from veins S14, S16E, and S16W in adit CM102. HNMRI’s study identified the following main mineral occurrences:

·Polymetallic sulphide minerals: galena, sphalerite with trace amounts of chalcopyrite, pyrrhotite, hematite, magnetite, and arsenopyrite.
·Silver minerals: native-silver, B-argentite, and the antimonial sulphosalts: pyrargyrite and stephanite.

Table 13.1 summarizes the mineralogical compositions of blended cores, as feed for flotation tests.

 

Table 13.1 Mineral composition of the SGX mineralization

 

Sulphide minerals % Gangue minerals %
Pyrite, pyrrhotite 2.5 Quartz 40.0
Galena 6.8 Chlorite and sericite 22.5
Sphalerite 7.8 Kaolin and clay minerals 15.0
Arsenopyrite 0.1 Hornblende and feldspars 4.0
Chalcopyrite etc. 0.2 Iron oxides, others 1.1

 

The mineralogical study results showed that:

·Galena is fine to coarse-grained (0.05 to 0.5 mm) and commonly occurs as a replacement of pyrite. The galena is distributed along the fractures of quartz or other gangue minerals and is commonly interlocked with sphalerite and pyrite.
·Sphalerite is commonly coarse-grained and ranges from 0.2 to 2.0 mm in size. It is formed by replacing pyrite and is enclosed in a skeleton of remaining pyrite.

 

Table 13.2 summarizes the distribution of silver minerals. Silver appears in two forms:

·As silver minerals, including native silver, electrum, tetrahedrite, polybasite, pyrargyrite, and argentite.
·As electro-replacement in galena, pyrite, and other sulphides. Native sulphides usually range from 0.01 to 0.07 mm in size.
·Only 4.6% of the silver was associated with gangue minerals.

 

Table 13.2Phase distribution of silver (SGX mineralization)

 

Occurrence g/t % Comments
Native silver 89.45 23.32 Free silver
Silver sulphides 136.32 35.54 In tetrahedrite, polybasite, pyrargyrite, and argentite
Silver in sulphides 140.04 36.51 In galena, sphalerite, pyrite, and chalcopyrite
Enclosed in gangue minerals 17.76 4.63 In quartz etc.
Total   100  

 

An example of the distribution of silver minerals and silver-bearing minerals is shown in Figure 13.1.

 

amcconsultants.com148
NI 43-101 Technical Report Update on the Ying Ag-Pb-Zn Property in Henan Province, People's Republic of China
 
Silvercorp Metals Inc.0723067

 

Figure 13.1Distribution of silver minerals and silver-bearing minerals

Source: Silvercorp.

 

13.2.2TLP mineralization

The TLP mineralogical assessment was carried out by the No. 6 Brigade, a China-based Exploration Company, and the main mineral occurrences were noted as:

·Metallic sulphide minerals: galena, sphalerite, pyrite, and chalcopyrite.
·Silver minerals: native silver, argentite-acanthite, freibergite, polybasite, cerargyrite- bromochlorargyrite, and canfieldite (a rare silver tin sulphide).
·Gangue minerals: carbonate, quartz, sericite, chlorite, hornblende, feldspars, and others.

 

The composition of the minerals in the blended sample is listed in Table 13.3.

 

Table 13.3Mineral composition of the TLP-LM mineralization

 

Sulphide & iron minerals % Gangue minerals %
Galena 2.1 Carbonate 42.5
Cerussite 0.5 Quartz 30.0
Anglesite 0.2 Biotite 4.5
Sphalerite 0.2 Chlorite 4.5
Chalcopyrite 0.1 Sericite 2.5
Covellite 0.1 Hornblende 2.0
Pyrite 0.1 Psilomelane 1.5
Hematite Limonite 6.0 Feldspars 1.4
    Clay 2.1

 

amcconsultants.com149
NI 43-101 Technical Report Update on the Ying Ag-Pb-Zn Property in Henan Province, People's Republic of China
 
Silvercorp Metals Inc.0723067

A detailed phase distribution of silver is listed in Table 13.4. Although only 12.7% of the silver was associated with oxides and gangue minerals, 30.9% was as halides; thus only 56.4% was as free silver or associated with sulphide minerals — much lower than was found for SGX.

It was noted that this could result in lower recoveries for TLP mineralization, although the occurrence of halides is related to surface oxidation and would be expected to decrease at depth.

 

Table 13.4 Phase distribution of silver (TLP - LM mineralization)

 

Occurrence g/t % Comments
Native Silver 18.7 13.61 Free silver
Silver Sulphides 42.9 31.22 In freibergite, argentite-acanthite, polybasite
Silver in Sulphides 15.9 11.57 In galena
Absorbed by Fe and Mn Oxides 15.5 11.28 N/A
Enclosed in gangue minerals 2.0 1.46 N/A
Silver in Halides 42.4 30.86 In bromochlorargyrite
Total   100.00  

 

13.2.3HPG mineralization

Mineralogical analysis of HPG mineralization showed that:

·Common sulphide minerals are galena, sphalerite, and tetrahedrite, with lesser amounts of chalcopyrite, pyrargyrite, and other sulfosalts.
·Small amounts of acanthite and native silver may occur, but most silver in the veins is present as inclusions in galena or tetrahedrite (silver-bearing tetrahedrite is also known as freibergite).
·Copper and gold may increase at depth.
·Common gangue minerals are quartz, pyrite, and carbonate, usually siderite or ankerite with distal calcite.
13.3Metallurgical samples

Samples sent for metallurgical tests are described in the following text.

13.3.1SGX mineralization

Blends of the core samples from veins S14, S16E, and S16W in adit CM102 at the SGX mine were used. Compositions of these core samples are listed in Table 13.5.

 

Table 13.5Core samples used for ore blending test

 

Sample Ag (g/t) Pb (%) Zn (%)
No. 1 436.45 0.72 0.87
No. 3 659.75 2.66 13.34
No. 5 314.65 9.67 4.20

To better understand the metallurgical characteristics of the SGX mineralization, HNMRI blended these core samples based on the following ratios of No.1: No.3: No.5 of 2.50: 2.00: 5.55. It was assumed that this blend would be representative of ore mined from SGX and it would represent an anticipated mill grade. The head grade result of this blended sample is provided in Table 13.6.

 

amcconsultants.com150
NI 43-101 Technical Report Update on the Ying Ag-Pb-Zn Property in Henan Province, People's Republic of China
 
Silvercorp Metals Inc.0723067

 

Table 13.6 Head grade of blended sample from SGX

 

Pb (%) Zn (%) Cu (%) S (%) As (%) Total Fe (%)
5.88 5.23 0.063 4.02 0.001 2.83
Au (g/t) Ag (g/t) CaO (%) MgO (%) SiO2 (%) Al2O3 (%)
0.17 385.7 0.740 0.64 30.71 5.40
13.3.2TLP mineralization

CDRI did some metallurgical work for silver and lead materials on the TLP project in 1994. Two representative bulk samples (Table 13.7) consisting of 110 kg of high-grade mineralization, 111 kg of wall rocks and 304.5 kg of medium-grade mineralization, totalling 525.5 kg, were collected from several crosscuts and undercut drifts for metallurgical testing. The samples consisted of mainly transition mineralization but also included a small amount of oxide and sulphide materials. Sample No.1 contained more carbonate rock than Sample No.2, which had higher silicate content.

 

Table 13.7 TLP mineralization samples for metallurgical tests

 

Samples Ag grade (g/t) Pb grade (%)
Sample 1 187.1 2.37
Sample 2 204.9 2.66
13.3.3HPG mineralization

Blends of channel samples from veins H5, H15, and H17, taken from stopes PD3-H5-380-9, D2-H15-570-12, and PD3-H17-150-20, respectively, at the HPG mine were used. These samples were high-grade sulphide ore. Compositions of the 360 kg (120 kg from each vein) composite samples are listed in Table 13.8.

 

Table 13.8 Head grade of blended sample from HPG

 

Element Au (g/t) Ag (g/t) Pb (%) Zn (%)
Grade 3.1 270.0 5.42 2.01
13.4Metallurgical testwork

Prior to operation of the mines and the construction of Silvercorp’s mills, metallurgical tests by HNMRI and other laboratories were conducted to address the recoveries of the different types of mineralization (Broili et al. 2006, Xu et al. 2006, Broili & Klohn 2007, Broili et al. 2008). As noted in 13.1, HPG mineralization was tested in 2021:

·TLP mineralization was tested by the CDRI in 1994.
·SGX mineralization was tested by HNMRI in May 2005.
·HZG mineralization was tested by TNMDI in 2006.
·HPG mineralization was tested by CCGRI in 2021.

Some initial size-by-size analysis work is summarized in Table 13.9 which shows the grade and distribution of Pb, Zn, and Ag vs size fractions for a ball mill stream of 70% -75 µm. The results indicated that liberation of Pb, Zn, and Ag at the grinding target of 70% -75 µm was sufficient for desired flotation recovery.

amcconsultants.com151
NI 43-101 Technical Report Update on the Ying Ag-Pb-Zn Property in Henan Province, People's Republic of China
 
Silvercorp Metals Inc.0723067

 

Table 13.9 Liberation of Pb, Zn, and Ag vs size fractions (70% -75 µm)

 

Size (mm) Yield (%) Grade Distribution (%)
Pb (%) Zn (%) Ag (g/t) Pb Zn Ag
+0.150 5.59 1.80 4.21 151.0 1.71 4.45 2.19
-0.150+0.100 12.22 3.99 5.94 278.0 8.31 13.72 8.78
-0.100+0.074 12.01 5.14 5.95 384.0 10.51 13.50 11.91
-0.074+0.037 22.43 5.76 6.60 387.0 22.01 27.98 22.45
-0.037+0.019 21.65 8.93 5.24 511.0 32.94 21.45 28.56
-0.019+0.010 14.29 7.05 4.03 441.0 17.16 10.89 16.28
-0.010 11.81 3.66 3.59 322.0 7.36 8.01 9.83
Total 100.00 5.87 5.29 387.0 100.00 100.00 100.00

 

HNMRI’s evaluation did not find any difficulty with separation of gangue minerals associated with the base and precious metal mineralization but did find a small fraction of encapsulation of the barren sulphide minerals (pyrite, etc.) with silver, lead, and zinc sulphide minerals. Due to the coarseness of these minerals, it was expected that adequate liberation during processing would occur to maintain high recoveries.

After the initial work, the main focus was on flotation testwork to maximize lead and, therefore, silver recovery. Both open-circuit and closed-circuit flotation tests were conducted to derive the final metallurgical performance predictions, in line with normal practice.

13.4.1SGX mineralization

As summarized in previous Ying Property NI 43-101 Technical Reports, the SGX testwork concluded that:

·A conventional Pb / Zn separation process by differential flotation (see Figure 13.2, closed loop) would effectively produce Pb and Zn concentrates.
·The optimum grinding target for the ore was 70% passing 75 µm.
·The optimum reagent dosage at different addition locations was as shown in Figure 13.2. This gave the best metal recovery (refer to Table 13.10) under recommended operating conditions.

 

Table 13.10 Mass balance for locked cycle test (SGX mineralization)

 

Product Mass yield
(%)
Grade Recovery (%)
Pb (%) Zn (%) Ag (g/t) Pb Zn Ag
Head - 5.88 5.21 386.5 - - -
Lead Con. 7.84 68.18 6.24 4,197.0 90.89 9.39 85.12
Zinc Con. 7.49 2.10 59.61 453.8 2.67 85.67 8.79
Tails 84.67 0.45 0.30 27.8 6.44 4.94 6.09
Total 100 - - - 100 100 100
amcconsultants.com152
NI 43-101 Technical Report Update on the Ying Ag-Pb-Zn Property in Henan Province, People's Republic of China
 
Silvercorp Metals Inc.0723067

Figure 13.2Locked cycle flotation flow sheet (SGX mineralization)

Source: Silvercorp.

13.4.2TLP mineralization

Under closed conditions and using an 80% -75 µm feed, the CDRI laboratory performed conventional flotation tests and reported the following results (Table 13.11). The test work demonstrated that silver and lead could be easily extracted from the mineralized vein material using a conventional flotation process. It was noted that silver recovery did not appear to be impacted by the presence of halides.

 

Table 13.11 Mass balance for locked cycle test (TLP mineralization)

 

Samples   Ag grade (g/t) Pb grade (%) Ag recovery (%) Pb recovery (%)

Sample 1

Head 187.1 2.37 - -
Conc 5274.0 66.94 94.71 94.96
Tails 10.3 0.12 5.29 5.04
Total - - 100 100

Sample 2

Head 204.9 2.66   -
Conc 5432.0 61.65 94.12 82.24
Tails 12.5 0.49 5.88 17.76
Total - - 100 100
amcconsultants.com153
NI 43-101 Technical Report Update on the Ying Ag-Pb-Zn Property in Henan Province, People's Republic of China
 
Silvercorp Metals Inc.0723067
13.4.3HPG mineralization

Closed-circuit gravity separation and flotation tests on HPG mineralization were carried out by CCGRI in 2021 using 60% -75 µm feed conditions, as shown in Figure 13.3. The test results (Table 13.12) showed that free particulate gold could be recovered effectively by using a Knelson centrifugal concentrator for gravity separation; with the use of a shaking table on the Knelson concentrate enabling further separation into high, middle, and low-grade gold streams (Figure 13.3). Flotation recovery was seen to comprehensively recover gold, silver, lead, and zinc in the ore.

 

Table 13.12 Mass balance for locked cycle test (HPG mineralization)

 

Product

Mass
yield
(%)
Grade Recovery
Au
(g/t)
Ag
(g/t)
Pb
(%)
Zn
(%)
Au Ag Pb Zn
Gravity Con. 0.0072 10,077.1 63,421.8 42.88 0.05 23.40

95.00

1.69  

88.46

0.06

96.90

-
Shaking Table Con.1

0.0047

2,108.6

20,305.6

44.62

0.04

3.20

52.32

0.35

12.11

0.04

-

Shaking Table Con.2

0.3840

207.6

7,078.7

50.01

2.07

25.72

10.07

3.54

0.40

Au-Ag-Pb Con. 10.4500 12.7 1,972.7 48.37 3.28 42.68 42.68 76.35 76.35 93.26 17.05
Zn Con. 3.3280 2.1 445.9 1.18 44.96   2.23     5.5   0.72 74.44
Tails 85.8261 0.1 19.0 0.15 0.19   2.77     6.04   2.38 8.11
Total 100 3.1 270.0 5.42 2.01 100 100 100 100
amcconsultants.com154
NI 43-101 Technical Report Update on the Ying Ag-Pb-Zn Property in Henan Province, People's Republic of China
 
Silvercorp Metals Inc.0723067
Figure 13.3Locked cycle gravity separation and flotation flow sheet (HPG mineralization)

Source: Silvercorp.

amcconsultants.com155
NI 43-101 Technical Report Update on the Ying Ag-Pb-Zn Property in Henan Province, People's Republic of China
 
Silvercorp Metals Inc.0723067
13.4.4HZG mineralization

TNMDI tested the HZG mineralization in 2006. It was found to contain low levels of copper and zinc. The mass balance is summarized in Table 13.13.

 

Table 13.13 Mass balance for locked cycle test (HZG mineralization)

 

Product Mass yield
(%)
Grade Recovery (%)
Ag (g/t) Pb (%) Cu (%) Au (%) Ag Pb Cu Au
Copper Conc 1.53 22,026.0 16.40 19.440 0.29 85.82 9.67 89.98 3.12
Lead Conc 4.39 895.2 50.23 0.433 0.14 10.01 85.03 5.75 4.32
Tailings 94.08 17.4 0.146 0.015 0.14 4.14 5.30 4.27 92.56
Total 100 392.7 2.59 0.33 0.14 100 100 100 100

 

13.4.5Grind size optimization

Table 13.14 shows the grade and distribution of Pb, Zn, and Ag vs size fractions for a ball mill stream under different grinding targets. The results indicated that:

·The minimum grinding target of 65% -75 µm gave sufficient liberation of Pb, Zn, and Ag.
·The grade / recovery performance was relatively insensitive to grind size in the 65% – 75% -75 µm range, although some small (~1%) improvement in silver recovery could be expected at the fine end of this range.

 

Table 13.14 Grind size optimization test results

 

Product Yield (%) Grade Recovery (%) -75 µm
(%)
Pb (%) Zn (%) Ag (g/t) Pb Zn Ag
Lead Conc 11.84 43.10 8.61 2,726.8 86.75 19.42 84.65 60
Lead Tails 88.16 0.88 4.80 66.4 13.25 80.58 15.35 -
Feed Ore 100.00 5.88 5.25 381.4 100.00 100.00 100.00 -
Lead Conc 11.72 44.19 7.89 2,876.4 88.68 17.65 86.55 65
Lead Tails 88.28 0.75 4.89 59.3 11.32 82.35 13.45 -
Feed Ore 100.00 5.84 5.24 389.5 100.00 100.00 100.00 -
Lead Conc 11.30 45.99 7.01 2,965.2 88.69 15.21 87.19 70
Lead Tails 88.70 0.75 4.98 55.5 11.31 84.79 12.81 -
Feed Ore 100.00 5.86 5.21 384.3 100.00 100.00 100.00 -
Lead Conc 11.15 46.55 7.15 2,986.0 88.10 15.21 87.50 75
Lead Tails 88.85 0.79 5.00 53.5 11.90 84.79 12.50 -
Feed Ore 100.00 5.89 5.24 380.5 100.00 100.00 100.00 -

 

13.5Concentrate quality considerations

Table 13.15 shows the product quality projected for both mill plants.

 

Table 13.15Product quality (blends of Plants 1 & 2)

Product Content (% unless stated otherwise)
Cu Pb Zn As Total Fe  
Lead Conc 0.36 68.10 6.24 0.015 -  
Zinc Conc 0.33 2.10 50.00 0.010 1.61
  Au (g/t) Ag (g/t) MgO Al2O3 SiO2 F
Lead Conc 0.20 4,196.0 0.13 1.13 - -
Zinc Conc 0.10 454.0 - - 2.87 0.10

amcconsultants.com156
NI 43-101 Technical Report Update on the Ying Ag-Pb-Zn Property in Henan Province, People's Republic of China
 
Silvercorp Metals Inc.0723067

Table 13.15 shows the product chemical composition, which indicated that:

·The lead concentrate product was high-grade (68–70% Pb). Copper (0.36%) and zinc (6.24%) levels in the lead concentrate were acceptable.
·Arsenic levels in the zinc concentrate (0.01% As) were well below the 0.5%, as customary limit for marketed concentrate.
·The product moisture (8%) would be low due to the coarse grind (65% -75 µm) and, therefore, ease of filtration.
·Both lead and zinc concentrate quality would be acceptable for the commercial market.
13.6Grindability testwork

Four samples were sent to CITIC in 2021 for grinding tests. Table 13.16 shows the source and ore type for each sample. The tests included ore density, JK Drop Weight Test, Bond Ball Mill Work Index (BWi), and Bond Abrasion Index (Ai). The grindability test results are shown in Table 13.17.

Table 13.16 Source and ore type of samples

 

Sample ID Mine Ore type
SG-1 SGX, HPG, HZG Sulphide
TLP-1 TLP Sulphide / Transition
EW-1 LME, LMW, DCG Sulphide
YH-1 TLP, HPG Oxide

 

Table 13.17 Grindability test results

 

Test Code Unit SG-1 TLP-1 EW-1 YH-1
Density SG N/A 2.99 2.79 2.82 2.73

JK Drop Weight

A N/A 77.7 77.5 71.2 74.5
b N/A 0.61 0.52 0.56 0.61
Axb N/A 47.4 40.3 39.9 45.4
ta N/A 0.41 0.37 0.37 0.43
SCSE kWh/t 9.70 10.02 10.15 9.37
DWi kWh/m3 6.24 6.90 7.02 6.05
Mia kWh/t 16.6 19.3 19.4 17.7
Mih kWh/t 12.1 14.4 14.4 12.8
Mic kWh/t 6.3 7.4 7.5 6.6
Ball Mill Work Index BWi @ 125 µm kWh/t 14.49 16.28 19.85 17.70
Abrasion Index Ai N/A 0.1988 0.2276 0.1903 0.1960

 

The DWi test values ranged from 6.05 kilowatt hour per cubic metre (kWh/m3) to 7.02 kWh/m3, indicating that the ore resistance to crushing is "intermediate" in hardness. The BWi test values ranged from 14.49 kilowatt hour per tonne (kWh/t) to 19.85 kWh/t, indicating that the grinding resistance of the ore is "hard". The Ai index test values ranged from 0.1903 to 0.2276, which indicates that the metal wear resistance is between “slight wear” and “moderate wear”.

amcconsultants.com157
NI 43-101 Technical Report Update on the Ying Ag-Pb-Zn Property in Henan Province, People's Republic of China
 
Silvercorp Metals Inc.0723067
13.7Ore sorting trials

An ore sorting system based on XRT (X-ray transmission) measurement has been installed at Plant 2 and is currently undergoing a six-month trial.

ROM ore is crushed and screened (Figure 13.4) to produce the following size fractions:

·-15 mm fines
·-50+15 mm
·-120+50 mm

[-15 mm fines] are conveyed directly to the plant feed bin while the [-50+15 mm] and [-120+50 mm] fractions report to the XRT analysis / sorting units (Figure 13.5). Nominal rejection of material in the sorted fractions is 20%.

While trials are ongoing and comprehensive results are not yet available, interim, short-duration runs have produced upgrading. As an example, a ~3,500 t lot of ROM ore produced the following results:

·[-15 mm fines] - 37.4% of feed
·Sorted discard (combined) - 21.6% of combined sorted stream
·Silver upgrade - 246 g/t to 300 g/t Ag
·Silver recovery - 95.8%
·Lead upgrade - 3.18% to 3.93% Pb
·Lead recovery - 96.8%

 

Figure 13.4 Ore sorting circuit at Plant 2 – crushing and screening

 

Source: AMC, 2024.

amcconsultants.com158
NI 43-101 Technical Report Update on the Ying Ag-Pb-Zn Property in Henan Province, People's Republic of China
 
Silvercorp Metals Inc.0723067
Figure 13.5 Ore sorting circuit at Plant 2 – sorting units (2)

Source: AMC, 2024.

 

13.8Summary of testwork outcomes

The mineralogy predicted a metallurgically amenable ore with clean lead-zinc separation by differential flotation and, with the possible exception of silver halides in the upper zones of the TLP deposit, high silver recoveries.

The gravity separation-flotation combined process proved to perform better in recovering gold, silver, lead, and zinc in gold ore. In particular, the gravity separation process could recover more particulate gold and improve the overall recovery rate of gold.

The metallurgical testwork resulted in the following projection of performance indices:

·>90% lead recovery to a high grade (>65% Pb) lead concentrate with >85% silver recoveries.
·85% zinc recovery to an acceptable (>50% Zn) zinc concentrate.
·Low and acceptable Zn impurity levels in lead concentrates and very low As impurity levels in both concentrates.
·Gravity separation could recover most of the gold particles in gold ore, with a gold recovery rate greater than 50%; additional gold could be recovered in lead concentrate by flotation, with a total gold recovery rate over 90%.

Ongoing trials of XRT-based ore sorting have produced an upgrade in silver and lead grades. Evaluation of the net benefit of ore sorting will continue in 2024 allowing a decision to be made regarding permanent installation of ore sorting systems.

amcconsultants.com159
NI 43-101 Technical Report Update on the Ying Ag-Pb-Zn Property in Henan Province, People's Republic of China
 
Silvercorp Metals Inc.0723067
14Mineral Resource estimates
14.1Introduction

The Mineral Resource estimates for the SGX, HZG, HPG, TLP, LME, LMW, and DCG deposits at the Ying Property were prepared by Silvercorp. Grade estimation was completed for 534 veins using a block modelling approach using the inverse distance squared (ID2) interpolation method in Micromine software. Grade estimates were completed for Ag and Pb in all deposits, Zn in select deposits, and Au within select veins at select deposits.

Mr Simeon Robinson, P.Geo., MAIG of AMC, reviewed the data, parameters and methodologies used to prepare the SGX and TLP Mineral Resource estimates. Mr Robinson is satisfied that the SGX and TLP estimates have been completed in accordance with reasonably accepted industry practice and takes responsibility for these estimates.

Mr Simeon Robinson, P.Geo., MAIG of AMC with assistance of Mr Brett Nielsen, MAIG of AMC reviewed the data, parameters and methodologies used to prepare the HZG Mineral Resource estimates. Mr Robinson is satisfied that the HZG estimates have been completed in accordance with reasonably accepted industry practice and takes responsibility for these estimates.

Mr Justin Glanvill, Pri.Sci.Nat., of AMC, reviewed the data, parameters and methodologies used to prepare the LMW and LME Mineral Resource estimates. Mr Glanvill is satisfied that the LMW and LME comply with reasonable industry practice and takes responsibility for these estimates.

Dr Craig Stewart, P.Geo., of AMC, reviewed the data, parameters and methodologies used to prepare the HPG and DCG Mineral Resource estimates. Dr Stewart is satisfied that the HPG and DCG estimates comply with reasonable industry practice and takes responsibility for these estimates.

The Mineral Resources include material (approximately 25% of total Mineral Resources by AgEq metal and 28% of the total Mineral Resources by tonnes) below the lower elevation limit of Silvercorp’s current mining licenses. However, because of the nature of Chinese regulations governing applications for new or extended mining licenses, the QPs for the Mineral Resource estimation are satisfied that there is minimal material risk associated with the granting of approval to Silvercorp to extend the lower depth limit of its licenses and to develop these Mineral Resources as and when required.

Table 14.1 presents the total Mineral Resources by mine for the Property as of 30 June 2024. These estimates incorporate Ag and Pb in all deposits, Zn in select deposits, and Au within select veins at select deposits. Mineral Resources are reported above a COG based on in situ values in silver equivalent (AgEq) terms in grams per tonne. COGs incorporate mining, processing, and general and administration (G&A) costs provided by Silvercorp for each mine and reviewed by the QP for Mineral Reserves. The AgEq formula and COG applied to each mine are noted in the footnotes of Table 14.1.

amcconsultants.com160
NI 43-101 Technical Report Update on the Ying Ag-Pb-Zn Property in Henan Province, People's Republic of China
 
Silvercorp Metals Inc.0723067
Table 14.1Ying Mineral Resources as of 30 June 2024

 

Mine

Resource
category
Tonnes
(Mt)
Au
grade
(g/t)
Ag
grade
(g/t)
Pb
grade
(%)
Zn
grade
(%)
Au
metal
(koz)
Ag
metal
(Moz)
Pb
metal
(kt)
Zn
metal
(kt)

SGX

Measured 4.09 0.06 252 4.88 2.50 7.24 33.14 199.57 101.99
Indicated 3.15 0.03 204 3.99 2.02 3.03 20.61 125.58 63.62
Meas + Ind 7.23 0.04 231 4.50 2.29 10.27 53.76 325.15 165.61
Inferred 2.26 0.01 210 4.38 1.70 0.98 15.28 99.00 38.44

HZG

Measured 0.65 - 294 1.05 - - 6.15 6.81 -
Indicated 0.28 - 283 0.83 - - 2.54 2.31 -
Meas + Ind 0.93 - 291 0.98 - - 8.68 9.12 -
Inferred 0.34 - 266 0.71 - - 2.94 2.43 -

HPG

Measured 1.22 1.18 79 3.36 1.04 46.10 3.08 40.91 12.67
Indicated 0.81 1.34 60 2.44 0.90 34.83 1.56 19.66 7.28
Meas + Ind 2.02 1.24 71 2.99 0.99 80.94 4.64 60.58 19.95
Inferred 1.57 2.86 103 3.76 0.95 144.71 5.22 59.18 14.88

TLP

Measured 3.64 - 185 3.09 - - 21.57 112.37 -
Indicated 2.58 - 166 2.66 - - 13.77 68.62 -
Meas + Ind 6.21 - 177 2.91 - - 35.34 180.99 -
Inferred 1.87 - 175 2.35 - - 10.50 43.77 -

LME

Measured 0.66 0.08 293 1.38 0.31 1.76 6.23 9.13 2.05
Indicated 1.14 0.07 276 1.14 0.34 2.40 10.09 12.96 3.82
Meas + Ind 1.80 0.07 282 1.23 0.33 4.16 16.33 22.09 5.87
Inferred 0.89 0.16 258 1.24 0.30 4.68 7.36 11.05 2.69

LMW

Measured 1.59 0.17 235 2.21 - 8.88 12.00 35.24 -
Indicated 2.00 0.21 201 1.84 - 13.53 12.88 36.74 -
Meas + Ind 3.59 0.19 216 2.01 - 22.41 24.89 71.99 -
Inferred 1.77 0.11 199 2.33 - 6.02 11.31 41.12 -

DCG

Measured 0.18 2.10 61 1.60 0.24 12.34 0.36 2.92 0.44
Indicated 0.18 2.22 72 2.27 0.17 12.58 0.41 4.01 0.31
Meas + Ind 0.36 2.16 67 1.93 0.21 24.92 0.77 6.93 0.75
Inferred 0.10 0.63 59 3.79 0.13 2.04 0.19 3.84 0.13

All

Measured 12.03 0.20 213 3.38 0.97 76.33 82.54 406.96 117.16
Indicated 10.12 0.20 190 2.67 0.74 66.36 61.86 269.89 75.03
Meas + Ind 22.15 0.20 203 3.06 0.87 142.69 144.40 676.85 192.18
Inferred 8.80 0.56 187 2.96 0.64 158.43 52.80 260.39 56.14

Notes:

·CIM Definition Standards (2014) were used for reporting.
·Measured and Indicated Mineral Resources are inclusive of Mineral Reserves.
·Metal prices: gold US$1,800/troy ounce (oz), silver US$21.00/troy oz, lead US$1.00 per pound (lb), zinc US$1.10/lb.
·Exchange rate: RMB 7.00: US$1.00.
·Mineral Resources exclude the first 5 m below surface.
·Veins factored to minimum extraction width of 0.4 m after estimation.
·COGs: SGX 140 g/t AgEq; HZG 130 g/t AgEq; HPG 140 g/t AgEq; TLP 125 g/t AgEq; LME 130 g/t AgEq; LMW 125 g/t AgEq; DCG 150 g/t AgEq.
·AgEq equivalent formulas by mine:
¾SGX = Ag g/t+35.05*Pb%+17.97*Zn%.
¾HZG = Ag g/t+33.59*Pb%.
¾HPG = Ag g/t+80.6*Au g/t+35.17*Pb%+21.60*Zn%.
¾TLP = Ag g/t+33.23*Pb%.
¾LME = Ag g/t+32.71*Pb%+9.38*Zn%.

 

amcconsultants.com161
NI 43-101 Technical Report Update on the Ying Ag-Pb-Zn Property in Henan Province, People's Republic of China
 
Silvercorp Metals Inc.0723067
¾LMW = Ag g/t+34.20*Pb%.
¾DCG = Ag g/t+33.18*Pb%
·AgEq formulas used for significant gold bearing veins:
¾SGX (Veins S11, S16W_Au, S18E, S74) = Ag g/t+54.44*Au g/t+35.05*Pb%+17.97*Zn%.
¾LME (Veins LM4E2, LM4E3) = Ag g/t+55.12*Au g/t+32.71*Pb%+9.38*Zn%.
¾LMW (Veins LM21, LM22, LM26, LM28, LM50, LM50_3, LM52, LM53, LM54) = Ag g/t+71.85*Au g/t+34.2*Pb%.
¾DCG (Veins C76, C9_1, C9_2, C9_3, C9_4, C9E1, C9W1) = Ag g/t+83.44*Au g/t+33.18*Pb%
·Includes assay results up to and including 31 December 2023.
·Depleted for mine production to 30 June 2024. Non-recoverable Mineral Resources (sterile areas due to the proximity to stopes, unstable ground or where access to the vein is limited) defined as of 30 June 2024.
·Numbers may not compute exactly due to rounding.

 

Due to the number of deposits, veins, metals, and the associated 534 block models within the Ying Property, only a representative summary of the models is discussed within this report. Most tables and figures present data from the SGX and TLP deposits, which collectively contribute 64% of the total Measured and Indicated AgEq metal and 61% of the total Measured and Indicated tonnes for the combined Ying Property, respectively.

 

14.2Data used

The Ying database used for Mineral Resource estimation includes sample data where assay results were available up to and including the 31 December 2023. The database comprises surface and underground diamond drillholes, underground samples collected from channels cut into tunnels, raises, and crosscuts and a relatively minor number of channel samples collected from trenches at surface. Data relevant to each mine site is stored in separate Microsoft Access databases which are managed by designated database administrators at each site. Sample data was provided as a series of Microsoft Excel worksheets which comprised collar coordinates, downhole surveys, and sample and assay intervals for each mine. This data was imported into Datamine Studio RM and checked for errors by the relevant QPs.

In addition to sample databases, Silvercorp provided 534 separate wireframes of the mineralization / vein envelopes for the Ying Project in Datamine format. Mineralization wireframes were checked and verified by relevant QPs.

Details on the number of vein wireframes and a summary of the data within the mine databases is presented in Table 14.2. Drilling and channel samples and metre totals presented are approximate due to minor overlap and duplication of data in individual mine databases.

Table 14.2     Summary of data used

 

Mine

No. of
veins
No. of
underground
channel samples
Metres of
underground
channel samples
No. of
drillholes
Metres of
drill core
samples
No. of surface
channel
samples
Metres of
surface channel
samples
SGX 100 88,405 47,104.3 3,166 103,277.9 1,809 1,724.5
HZG 42 23,676 11,017.1 771 31,793.3 108 66.3
HPG 71 25,046 17,315.8 1,350 69,457.0 668 674.6
TLP 126 86,593 51,576.4 2,119 97,550.7 104 246.2
LME 64 17,753 10,798.3 1,155 56,212.6 0 0.0
LMW 117 37,951 20,747.7 2,057 100,412.7 20 15.4
DCG 14 4,322 2,985.3 445 30,352.5 0 0.0
Total* 534 283,746 161,544.8 11,063 489,056.6 2,709 2,726.9

Notes: Compiled by AMC, 2024 using individual mine databases. Database includes all assays available up to and including 31 December 2023.

* Totals are approximate due to minor overlap, and duplication of data in individual mine databases. Non-sampled data is excluded.

amcconsultants.com162
NI 43-101 Technical Report Update on the Ying Ag-Pb-Zn Property in Henan Province, People's Republic of China
 
Silvercorp Metals Inc.0723067
14.3Geological interpretation

The interpretation and construction of mineralization wireframes was completed by Silvercorp personnel using Micromine software by either digitizing strings in cross-section, and then linking strings to create three-dimensional (3D) wireframes, or by creating separate 3D surfaces for hangingwall (HW) and footwall (FW) vein contacts and then creating solid 3D wireframes from those surfaces. Mineralization interpretations were constructed primarily from vein contacts recorded in drillcore and underground mapping and then modified based on silver, lead, zinc, and where relevant, gold grades.

Mineralized veins at the SGX, HPG, and HZG mines were modelled using a nominal threshold of 140 g/t AgEq. Mineralized veins at the TLP, LMW, LME, and DCG mines were modelled using a nominal threshold of 120 g/t AgEq. Modelling cut-off grades were driven by mine specific controls. Drillhole and underground channel intervals were selected to ensure a minimum vein thickness of 0.4 m.

Mineralization interpretations were reviewed by the relevant QPs. Minor adjustments requested by the QPs were made by Silvercorp personnel as required. These changes included out of plane vein intersections (from parallel veins), anomalous direction changes, and inconsistent triangulations.

The QPs do note that there is scope for refinement of Silvercorp’s interpretation approach which will resolve many of the artefacts created during the wireframe triangulations of clustered and variably distributed HW and FW contact points.

Figure 14.1 to Figure 14.7 present a 3D perspective view of vein / mineralization wireframes for each mine.

Figure 14.13D view of the SGX mineralization wireframes

Notes: 3D view, drillhole and channel sample traces shown in black. Individual veins are given unique colours to aid visualization.

Source: AMC, 2024.

amcconsultants.com163
NI 43-101 Technical Report Update on the Ying Ag-Pb-Zn Property in Henan Province, People's Republic of China
 
Silvercorp Metals Inc.0723067
Figure 14.23D view of the HZG mineralization wireframes

Notes: 3D view, drillhole and channel sample traces shown in black. Individual veins are given unique colours to aid visualization.

Source: AMC, 2024.

 

Figure 14.33D view of the HPG mineralization wireframes

Notes: 3D view, drillhole and channel sample traces shown in black. Individual veins are given unique colours to aid visualization.

Source: AMC, 2024.

amcconsultants.com164
NI 43-101 Technical Report Update on the Ying Ag-Pb-Zn Property in Henan Province, People's Republic of China
 
Silvercorp Metals Inc.0723067
Figure 14.43D view of the TLP mineralization wireframes

Notes: 3D view, drillhole and channel sample traces shown in black. Individual veins are given unique colours to aid visualization.

Source: AMC, 2024.

 

Figure 14.53D view of the LME mineralization wireframes

Notes: 3D view, drillhole and channel sample traces shown in black. Individual veins are given unique colours to aid visualization.

Source: AMC, 2024.

amcconsultants.com165
NI 43-101 Technical Report Update on the Ying Ag-Pb-Zn Property in Henan Province, People's Republic of China
 
Silvercorp Metals Inc.0723067
Figure 14.63D view of the LMW mineralization wireframes

Notes: 3D view, Drillhole and channel sample traces shown in black. Individual veins are given unique colours to aid visualization.

Source: AMC, 2024.

 

Figure 14.73D view of the DCG mineralization wireframes

Notes: 3D view, Drillhole and channel sample traces shown in black. Individual veins are given unique colours to aid visualization.

Source: AMC, 2024.

amcconsultants.com166
NI 43-101 Technical Report Update on the Ying Ag-Pb-Zn Property in Henan Province, People's Republic of China
 
Silvercorp Metals Inc.0723067
14.4Input data for estimation

Silvercorp selectively sampled drillholes during the logging process based on the visual presence of veining and sulphide content as a proxy for mineralization. This results in intervals that are not sampled. To ensure that high grades would not be smeared into unsampled areas during the modelling process, all unsampled portions of drillholes (and channels where relevant) were assigned grades of zero (for all elements). As unsampled intervals are commonly much larger than vein widths, unsampled portions were split into nominal 0.4 m intervals. The use of this small interval ensured that the assigned zero grades were correctly coded by intersecting wireframes in the subsequent sample flagging process.

Before relatively recent discoveries of gold-bearing veins at SGX, LME, LMW, and DCG drillholes and channel samples were not systematically sampled for gold other than at the HPG deposit. The lack of systematic sampling results in significant differences in input data spacing between Au and Ag, Pb, Zn assays. In the relatively few veins where gold has been estimated, drillhole and channel sample intervals that do not include Au assays have been set to a zero-gold grade. This approach is conservative but has been taken to prevent high-grade gold assays from being smeared into areas without gold assays.

14.4.1Sample flagging

Desurveyed sample data was coded using Silvercorp’s mineralization wireframe using Micromine software. During this process, any sample interval that had a centroid inside a wireframe, was assigned a “vein” code relevant to that wireframe. Due to the complexity of the vein systems at Ying, and lack of clear timing relationships between veins of different orientations, sample coding was completed on a per-vein basis to allow samples occurring within two or more wireframes to be coded to each wireframe.

14.4.2Sample compositing

Flagged sample data was composited using a residual retention process to provide equal sample support. A composite interval of 0.4 m was selected for all mines based on the predominant sample length. Figure 14.8 presents a histogram for the SGX deposit showing the distribution of sample lengths within all mineralization wireframes.

Sample compositing was completed using Micromine software, by vein, using a primary composite length of 0.4 m, and a minimum composite length of 0.2 m. Residual samples (less than 0.2 m, left over after compositing) were combined with the previous composite if the composite occurred within the same vein.

Residual samples less than 0.2 m after compositing that could not be combined with the previous interval generally reflect historical highly selective underground sampling. To mitigate potential sample selection bias, the grades in these samples were diluted by expanding samples to a 0.4 m length. Diluted samples typically comprised less than 1% of samples.

amcconsultants.com167
NI 43-101 Technical Report Update on the Ying Ag-Pb-Zn Property in Henan Province, People's Republic of China
 
Silvercorp Metals Inc.0723067
Figure 14.8SGX mineralized sample length histogram

Source: AMC, 2024.

Notes: All data within veins.

 

14.4.3Grade capping

Grade capping is the process of reducing the grade of an outlier sample to a value that is more representative of the grade distribution. The capping process prevents high-grade outlier samples from smearing high-grade into areas of low-grade during the estimation process.

All capping thresholds were selected by the relevant QPs using flagged, composited sample data provided by Silvercorp. A combination of histograms and probability plots were used to identify breaks within the sample population, and potential high-grade outliers for each vein. Outliers were then reviewed in a 3D context to determine whether samples reflected clustered high-grade zones which could be sub-domained, or random high-grade occurrences. Grade caps were typically defined at the upper break of the dominant sample population defined by the histogram or log probability plot. Figure 14.9 presents an example histogram and log probability plot for gold for Vein S8 at the SGX deposit. Table 14.3 presents a summary of grade caps applied to the various Ying deposits.

The raw, uncapped composite and capped statistics for Ag, Pb, and Zn for a subset of veins from each deposit are presented in Table 14.4. Veins have been selected based on their contribution to the overall Measured and Indicated Mineral Resource tonnes.

amcconsultants.com168
NI 43-101 Technical Report Update on the Ying Ag-Pb-Zn Property in Henan Province, People's Republic of China
 
Silvercorp Metals Inc.0723067
Figure 14.9SGX deposit: Vein S8 - Silver histogram and log probability plot - grade capping

Notes: Grade capping of SGX deposit, Vein S8, composite samples. Left: Ag grade histogram (200 g/t bins), Right: Ag grade log probability plot. Grade cap defined at break in sample population as shown by red arrow.

Source: AMC, 2024.

 

Table 14.3Grade capping summary

 

Mine Element Number of veins Number of veins top cut Lowest top cut Highest top cut

SGX

Au (g/t) 4 * 4 6.00 15.00
Ag (g/t) 100 69 120 7,000
Pb (%) 100 47 2.00 65.00
Zn (%) 100 67 1.00 40.00
HZG Ag (g/t) 42 31 150 7,200
Pb (%) 42 39 0.4 25.0

HPG

Au (g/t) 72 57 0.60 50.00
Ag (g/t) 72 64 10 4,200
Pb (%) 72 38 1.00 55.00
Zn (%) 72 27 1.00 25.00
TLP Ag (g/t) 126 112 200 6,000
Pb (%) 126 101 3.00 46.0

LME

Au (g/t) 2 * 2 4.00 8.00
Ag (g/t) 63 61 80 6,980
Pb (%) 63 61 0.60 24.50
Zn (%) 63 59 0.25 5.50

LMW

Au (g/t) 9 * 9 5 85.0
Ag (g/t) 118 115 130 7,000
Pb (%) 118 116 0.50 29.00

DCG

Au (g/t) 7 * 4 8.00 30.00
Ag (g/t) 14 12 20 2,000
Pb (%) 14 8 0.40 20.00
Zn (%) 14 13 0.25 6.00

Note: *Only a select number of veins were estimated for Au.
Source: AMC, 2024.

amcconsultants.com169
NI 43-101 Technical Report Update on the Ying Ag-Pb-Zn Property in Henan Province, People's Republic of China
 
Silvercorp Metals Inc.0723067
Table 14.4Comparison between raw, composite, and capped composites

 

Mine Vein Statistic Ag (g/t) Pb (%) Zn (%)
Raw Comp Capped Raw Comp Capped Raw Comp Capped

SGX

S8

No. samples 4,875 7,671 7,671 4,875 7,671 7,671 4,875 7,671 7,671
Minimum 0 0 0 0 0 0 0 0 0
Maximum 8,400 8,400 6,500 78.14 78.14 78.14 36.38 36.38 28.00
Mean 128 128 127 3.04 3.04 3.04 1.11 1.11 1.11
Coeff. Var 3.53 3.41 3.35 2.37 2.27 2.27 2.53 2.41 2.40

S19

No. samples 3,616 5,940 5,940 3,616 5,940 5,940 3,616 5,940 5,940
Minimum 0 0 0 0 0 0 0 0 0
Maximum 6,824 6,300 4,200 73.94 71.69 71.69 34.03 34.03 26.00
Mean 185 184 183 3.70 3.70 3.70 1.56 1.56 1.56
Coeff. Var 2.39 2.29 2.22 2.06 1.98 1.98 1.97 1.92 1.91

S7

No. samples 2,832 4,623 4,623 2,832 4,623 4,623 2,832 4,623 4,623
Minimum 0 0 0 0 0 0 0 0 0
Maximum 4,060 4,060 3,000 63.12 60.08 60.08 32.73 25.47 25.47
Mean 132 131 131 2.75 2.75 2.75 1.32 1.31 1.31
Coeff. Var 2.51 2.36 2.34 2.46 2.30 2.30 2.13 2.01 2.01

S7_1

No. samples 3,967 5,966 5,966 3,967 5,966 5,966 3,967 5,966 5,966
Minimum 0 0 0 0 0 0 0 0 0
Maximum 3,908 3,908 3,908 74.26 74.26 74.26 56.54 56.54 56.54
Mean 177 176 176 3.86 3.85 3.85 2.98 2.97 2.97
Coeff. Var 2.20 2.11 2.11 2.41 2.29 2.29 1.99 1.90 1.90

S2

No. samples 2,078 3,232 3,232 2,078 3,232 3,232 2,078 3,232 3,232
Minimum 0 0 0 0 0 0 0 0 0
Maximum 10,878 10,878 5,400 79.37 79.37 79.37 44.99 41.95 36.00
Mean 350 350 341 6.12 6.11 6.11 2.04 2.03 2.03
Coeff. Var 2.13 2.07 1.87 1.77 1.68 1.68 1.88 1.77 1.77

S16W_Ag

No. samples 4,152 7,147 7,147 4,152 7,147 7,147 4,152 7,147 7,147
Minimum 0 0 0 0 0 0 0 0 0
Maximum 9,278 9,278 7,000 83.90 83.90 83.90 46.48 45.86 40.00
Mean 206 205 204 4.40 4.37 4.37 2.21 2.20 2.19
Coeff. Var 2.45 2.34 2.29 2.49 2.35 2.35 2.08 1.99 1.97

S14

No. samples 3,641 4,313 4,313 3,641 4,313 4,313 3,641 4,313 4,313
Minimum 0 0 0 0 0 0 0 0 0
Maximum 13,490 13,490 7,000 81.85 81.85 81.85 52.96 52.96 35.00
Mean 398 393 390 6.62 6.54 6.54 1.48 1.47 1.46
Coeff. Var 2.25 2.00 1.92 2.12 1.90 1.90 2.13 2.02 2.00

HZG

HZ26

No. samples 2,347 3,649 3,649 2,347 3,649 3,649 2,347 3,649 3,649
Minimum 0 0 0 0 0 0 0 0 0
Maximum 6,659 6,659 6,659 18.19 18.19 15.00 4.72 4.72 2.80
Mean 258 258 258 0.81 0.81 0.81 0.16 0.16 0.16
Coeff. Var 2.27 2.18 2.18 1.95 1.91 1.88 1.49 1.46 1.42
amcconsultants.com170
NI 43-101 Technical Report Update on the Ying Ag-Pb-Zn Property in Henan Province, People's Republic of China
 
Silvercorp Metals Inc.0723067
Mine Vein Statistic Ag (g/t) Pb (%) Zn (%)
Raw Comp Capped Raw Comp Capped Raw Comp Capped

HPG

H17

No. samples 3,372 7,442 7,442 3,372 7,442 7,442 3,372 7,442 7,442
Minimum 0 0 0 0 0 0 0 0 0
Maximum 2,231 2,231 1,400 67.13 67.13 67.13 40.43 40.43 40.43
Mean 48 48 48 2.47 2.47 2.47 0.89 0.89 0.89
Coeff. Var 2.01 2.00 1.95 2.05 2.02 2.02 2.69 2.64 2.64

TLP

T2

No. samples 4,019 7,459 7,459 4,019 7,459 7,459 4,019 7,459 7,459
Minimum 0 0 0 0 0 0 0 0 0
Maximum 6,093 6,093 3,500 56.09 56.09 42.00 17.50 17.50 8.00
Mean 71 71 70 2.10 2.10 2.09 0.18 0.17 0.17
Coeff. Var 3.27 3.13 2.88 1.88 1.82 1.80 2.96 2.86 2.51

T3_3

No. samples 1,438 3,118 3,118 1,438 3,118 3,118 1,438 3,118 3,118
Minimum 0 0 0 0 0 0 0 0 0
Maximum 2,941 2,871 2,000 41.20 41.20 29.00 4.28 4.28 1.90
Mean 107 107 104 1.87 1.87 1.86 0.10 0.10 0.10
Coeff. Var 2.50 2.44 2.27 1.96 1.91 1.85 2.11 2.06 1.91

T3

No. samples 2,496 4,882 4,882 2,496 4,882 4,882 2,496 4,882 4,882
Minimum 0 0 0 0 0 0 0 0 0
Maximum 2,205 2,205 1,500 68.00 68.00 36.00 4.07 4.07 2.62
Mean 53 53 52 1.77 1.77 1.75 0.11 0.11 0.11
Coeff. Var 2.61 2.53 2.42 2.15 2.06 1.93 2.26 2.16 2.01

LME

LM5

No. samples 2,998 5,449 5,449 2,998 5,449 5,449 2,998 5,449 5,449
Minimum 0 0 0 0 0 0 0 0 0
Maximum 14,613 14,613 4,000 37.17 33.77 14.00 7.53 7.53 4.2
Mean 219 219 211 1.02 1.02 1.01 0.27 0.27 0.27
Coeff. Var 2.80 2.70 2.33 1.89 1.79 1.71 1.87 1.83 1.78

 

LMW

LM7

No. samples 2,302 6,074 6,074 2,302 6,074 6,074 2,302 6,074 6,074
Minimum 0 0 0 0 0 0 0 0 0
Maximum 2,005 2,005 1,500 37.74 37.74 13.00 7.60 7.6 2.5
Mean 77 77 76 0.87 0.87 0.85 0.09 0.09 0.08
Coeff. Var 2.64 2.56 2.49 2.18 2.09 1.76 3.53 3.5 2.15

LM50

No. samples 1,576 2,912 2,912 1,576 2,912 2,912 1,576 2,912 2,912
Minimum 0 0 0 0 0 0 0 0 0
Maximum 3,867 3,867 2,160 12.53 12.53 6.50 3.12 3.12 1.6
Mean 51 50 48 0.43 0.43 0.42 0.09 0.09 0.09
Coeff. Var 4.77 4.61 4.11 2.36 2.31 2.14 2.38 2.33 2.05

DCG

C9_2

No. samples 267 550 550 267 550 550 267 550 550
Minimum 0 0 0 0 0 0 0 0 0
Maximum 3,232 3,232 2,000 1.41 1.41 1.41 8.88 8.88 5
Mean 42 42 39 0.08 0.08 0.08 0.16 0.16 0.14
Coeff. Var 4.78 4.77 4.04 2.07 2.04 2.04 4.75 4.59 3.69

Note: All statistics are length weighted. Any residual composite samples less than 0.2 m are expanded to 0.4 m and diluted with zero grades. Comp = composited samples. Capped = capped composites. Coeff. Var = coefficient of variation.

Source: AMC, 2024.

 

amcconsultants.com171
NI 43-101 Technical Report Update on the Ying Ag-Pb-Zn Property in Henan Province, People's Republic of China
 
Silvercorp Metals Inc.0723067

 

14.5Block model

14.5.1Block model parameters

Silvercorp created separate block models for each vein using Micromine software. Block models were rotated so that the X-block dimension was aligned down the dip of the vein, the Y-block dimension was aligned along the strike of the vein, and the Z-block dimension was aligned across the vein thickness. Model rotations are outlined in Table 14.5.

Table 14.5Block model rotations

 

Rotation Axis of rotation Description
First rotation Z-axis Rotation around Z-axis to align Y-axis with the strike of the vein
Second rotation Y-axis Rotation around the Y-axis to align X-axis down dip of vein, and Z-axis across vein thickness.

Source: AMC, 2024.

 

All models used a parent block size of 10 mX by 10 mY by 0.8 mZ. Parent block dimensions were chosen as a compromise based on nominal 5 m spaced channel sampling on 40 m spaced levels, with 40 - 50 m spaced drillholes in less well-informed areas on major veins.

Parent blocks were subcelled to 2 mX by 2 mY by 0.1 mZ to provide resolution of vein contacts.

14.5.2Density

A fixed density was assigned to blocks for all deposits other than SGX and HPG, which used a regressed density value. Density is discussed in Section 10.5.

14.6Grade estimation

Silver, lead, zinc, and in select veins gold, were estimated into the parent blocks using ID2 interpolation using Micromine software. The ID2 interpolation method was selected due to the significant number of veins at the Ying Project. Previous comparisons of ID2 and ordinary kriging, and successive resource estimations completed since 2020, have demonstrated that the ID2 interpolation provides an appropriate estimation of the contained metal.

Informing data was restricted using hard domain boundaries so that only the flagged, capped composites within the vein could influence the estimate of the specific vein model. A multiple-pass, omnidirectional search was used for all estimates. Search pass parameters are summarized in Table 14.6. An example of the estimation passes is displayed for the Vein S8 of the SGX mine in Figure 14.10.

 

Table 14.6Ying deposits - estimation search parameters

 

 

Pass

Search
distance X
(m)
Search
distance Y
(m)
Search
distance Z
(m)
Minimum
number of
samples
Maximum
number of
samples
Maximum number
of samples per
drillhole or channel
1 25 25 25 4 12 2
2 50 50 50 4 12 2
3 200 200 200 3 12 2

Source: AMC, 2024.

 

amcconsultants.com172
NI 43-101 Technical Report Update on the Ying Ag-Pb-Zn Property in Henan Province, People's Republic of China
 
Silvercorp Metals Inc.0723067

 

Figure 14.10Estimation pass longitudinal projection SGX mine: Vein S8

Note: Longitudinal section looking towards 305°.
Source: AMC, 2024.

 

14.6.1Mining depletion

Silvercorp depletes block models based on topography, mining activity (stopes and tunnels) and material considered to be non-recoverable due to access restrictions, or proximity to stopes or unstable ground.

All blocks within 5 vertical metres of the natural topography surface are coded using a ‘TOPO’ flag within the block model and excluded from Mineral Resource calculations per Silvercorp’s internal business process.

Mining and tunnelling is defined on a vein-by-vein basis by manually constructing ‘cookie cutter’ wireframes in the longitudinal plane for each vein based on the intersection of the vein with as-built surveys of stopes and tunnels. These wireframes are used by Silvercorp in preference to directly using as-built survey wireframe solids to ensure that very narrow (<2 m wide) tunnels and stopes are coded correctly into the 2 mX by 2 mY by 0.8 mZ model subcells.

Areas considered to be non-recoverable or sterile (locally termed ‘write-off’) are defined by Silvercorp personnel on a biannual basis. Write-off ‘cookie cutter’ wireframes are constructed for each vein in the longitudinal plane.

Stope, tunnel and write-off depletion wireframes are used to code each vein within the model with a ‘MINED’ flag. Coding is completed so that tunnels overprint stopes, and stopes overprint ‘write-off’. Figure 14.11 presents a longitudinal section of SGX Vein S8 with depletion coding.

 

amcconsultants.com173
NI 43-101 Technical Report Update on the Ying Ag-Pb-Zn Property in Henan Province, People's Republic of China
 
Silvercorp Metals Inc.0723067

 

Mineral Resources exclude all blocks coded as tunnels, stopes or write-off. Tunnels and stopes are depleted from the block model based on mining completed to the end of June 2024. Non-recoverable Mineral Resources (write-off) have been depleted based on a review of mining activities to the end of June 2024.

The QPs note that the use of the “cookie cutter” wireframes is not a precise estimation of the amount of depletion in longitudinal drives and stopes and does not consistently deplete the model for small cross-cut drives and raises. The QPs do not consider this to have a material impact on in situ Mineral Resources.

Figure 14.11Mining depletion longitudinal projection SGX mine: Vein S8

Note: Longitudinal section looking towards 305°. Figure shows mined out to 31 March 2024, write-off to 31 December 2023.
Source: AMC, 2024.

 

14.7Mineral Resource classification

The Mineral Resource classification considered the narrow-vein style of mineralization, the observed grade continuity, and the sample spacing in longitudinal projection. Smoothing was implemented to remove isolated blocks of one classification category that were surrounded by blocks of another classification category.

 

amcconsultants.com174
NI 43-101 Technical Report Update on the Ying Ag-Pb-Zn Property in Henan Province, People's Republic of China
 
Silvercorp Metals Inc.0723067

 

Silvercorp uses geometric criteria as a general guide to define Mineral Resource classification, based on historical Mineral Resource estimates and block model performance. These criteria are detailed below:

 

·Measured Resource:
¾Measured Resources are defined by the presence of exploration tunnelling. The boundary of Measured Resources is determined by extrapolating 20 – 25 m up and down-dip from the exploration tunnels where channel samples are less than 15 m apart.
¾No Measured Resources are extrapolated along strike from the ends of an exploration tunnel.
¾The basis for Measured Resources is derived from the clear visual identification of the vein and its continuity as observed directly during tunnelling.
·Indicated Resource:
¾Indicated Resources are defined by either exploration drilling or exploration tunnelling.
¾A basic drilling grid of 50 m (along strike) by 100 m (up and down-dip) is used to delineate Indicated Resources. A minimum of three holes is required to define an Indicated Resource block. Boundaries of drillhole-defined Indicated Resource blocks are determined by extrapolating 25 m along strike and 50 m up and down-dip from the drillhole closest to the boundary.
¾Boundaries of tunnel-defined Indicated Resources are determined by extrapolating 40 – 50 m up and down-dip from the exploration tunnel.
¾No Indicated Resources are extrapolated along strike from the ends of exploration tunnels.
·Inferred Resource:
¾Inferred Resources are either defined by a low-density of drillholes or extrapolated from drillhole-defined Indicated Resource blocks.
¾Boundaries of Inferred Resource are determined by extrapolating 50 m along strike and 100 m up and down-dip from the hole closest to the Indicated boundary.
¾No Inferred Resources are extrapolated from exploration tunnels.

Mineral Resource classification was reviewed by the relevant QPs. Minor modifications to classification were requested by the QPs to address local uncertainty with the geological model, erratic grade continuity, or poor-quality estimates.

An example of the Mineral Resource classification for the SGX mine Vein S8 is presented in Figure 14.12.

 

amcconsultants.com175
NI 43-101 Technical Report Update on the Ying Ag-Pb-Zn Property in Henan Province, People's Republic of China
 
Silvercorp Metals Inc.0723067

 

Figure 14.12Mineral Resource classification longitudinal projection SGX mine: Vein S8

Note: Longitudinal section looking towards 305°.
Source: AMC, 2024.

 

14.8Block model validation

The QPs validated the block models using a combination of methods including statistical comparisons between the model and input data, swath plots, comparisons to previous estimates, and running independent check estimates on various models.

Figure 14.13 and Figure 14.14 show examples of the drillhole and channel composite AgEq grades compared to the block model estimated grades for a part of Vein S8 at the SGX mine and part of Vein T2 of the TLP mine – the largest veins from the largest deposits. The figures show good agreement between the drillhole composite grades and the estimated block model grades.

 

amcconsultants.com176
NI 43-101 Technical Report Update on the Ying Ag-Pb-Zn Property in Henan Province, People's Republic of China
 
Silvercorp Metals Inc.0723067

 

Figure 14.13Silver equivalent grade longitudinal projection SGX mine: Vein S8

Note: Longitudinal section looking towards 305°. A portion of the block model is shown.
Source: AMC, 2024.

 

Figure 14.14Silver equivalent grade longitudinal projection TLP mine: Vein T2

Note: Longitudinal section looking towards 305°.
Source: AMC, 2024.

 

amcconsultants.com177
NI 43-101 Technical Report Update on the Ying Ag-Pb-Zn Property in Henan Province, People's Republic of China
 
Silvercorp Metals Inc.0723067

 

Figure 14.15 to Figure 14.23 present swath plots for the SGX vein S8. Swath plots generally indicate a good agreement between model grade and declustered composite grades. Slight differences were noted between the model and composites reflecting grade smoothing, edge effects, or are due to the highly clustered data and challenges with finding a robust declustering solution.

Figure 14.15S8 silver swath plot by easting

Notes: S8 model rotated 37 degrees clockwise around Z-axis, and 81 degrees clockwise around Y-axis. Swath plots in real world coordinates (not rotated). Composites are declustered.

Source: AMC, 2024.

 

Figure 14.16S8 silver swath plot by northing

Notes: S8 model rotated 37 degrees clockwise around Z-axis, and 81 degrees clockwise around Y-axis. Swath plots in real world coordinates (not rotated). Composites are declustered.

Source: AMC, 2024.

 

amcconsultants.com178
NI 43-101 Technical Report Update on the Ying Ag-Pb-Zn Property in Henan Province, People's Republic of China
 
Silvercorp Metals Inc.0723067

 

Figure 14.17S8 silver swath plot by elevation

Notes: S8 model rotated 37 degrees clockwise around Z-axis, and 81 degrees clockwise around Y-axis. Swath plots in real world coordinates (not rotated). Composites are declustered.

Source: AMC, 2024.

 

Figure 14.18S8 lead swath plot by easting

Notes: S8 model rotated 37 degrees clockwise around Z-axis, and 81 degrees clockwise around Y-axis. Swath plots in real world coordinates (not rotated). Composites are declustered.

Source: AMC, 2024.

 

amcconsultants.com179
NI 43-101 Technical Report Update on the Ying Ag-Pb-Zn Property in Henan Province, People's Republic of China
 
Silvercorp Metals Inc.0723067

 

Figure 14.19S8 lead swath plot by northing

Notes: S8 model rotated 37 degrees clockwise around Z-axis, and 81 degrees clockwise around Y-axis. Swath plots in real world coordinates (not rotated). Composites are declustered.

Source: AMC, 2024.

 

Figure 14.20S19 lead swath plot by elevation

Notes: S8 model rotated 37 degrees clockwise around Z-axis, and 81 degrees clockwise around Y-axis. Swath plots in real world coordinates (not rotated). Composites are declustered.

Source: AMC, 2024.

 

amcconsultants.com180
NI 43-101 Technical Report Update on the Ying Ag-Pb-Zn Property in Henan Province, People's Republic of China
 
Silvercorp Metals Inc.0723067

 

Figure 14.21S8 zinc swath plot by easting

 

Notes: S8 model rotated 37 degrees clockwise around Z-axis, and 81 degrees clockwise around Y-axis. Swath plots in real world coordinates (not rotated). Composites are declustered.

Source: AMC, 2024.

 

Figure 14.22S8 zinc swath plot by northing

Notes: S8 model rotated 37 degrees clockwise around Z-axis, and 81 degrees clockwise around Y-axis. Swath plots in real world coordinates (not rotated). Composites are declustered.

Source: AMC, 2024.

 

amcconsultants.com181
NI 43-101 Technical Report Update on the Ying Ag-Pb-Zn Property in Henan Province, People's Republic of China
 
Silvercorp Metals Inc.0723067

 

Figure 14.23 S8 zinc swath plot by elevation

Notes: S8 model rotated 37 degrees clockwise around Z-axis, and 81 degrees clockwise around Y-axis. Swath plots in real world coordinates (not rotated). Composites are declustered.

Source: AMC, 2024.

 

14.9Minimum mining width

To ensure that the estimates have reasonable prospects of eventual economic extraction, all vein block models were tested to ensure they had a minimum horizontal thickness of 0.4 m to be amenable for the resuing mining method. This was achieved by testing horizontal thicknesses across the model at a spacing equivalent to the model subcell dimensions. In instances where the modelled vein was less than 0.4 m thick, block dimensions for the respective subcell was expanded in the Z direction (across strike), and model grades were diluted accordingly.

 

14.10Mineral Resource estimates

The Mineral Resource estimates for the Ying property as of 30 June 2024 are presented in Table 14.1 in the introduction to this section. Mineral Resource estimates report Ag and Pb grades in all deposits, Zn grades in select deposits, and Au grades within select veins at select deposits. Contained metal is also reported for those metals where applicable.

Longitudinal sections showing the model with AgEq grades, supporting data, mined-out areas and classification for some of the largest veins on the Ying property are displayed in Figure 14.24 to Figure 14.30. Note only the Measured, Indicated, and Inferred are shown, thus the outer boundary coincides with the extent of Inferred material.

amcconsultants.com182
NI 43-101 Technical Report Update on the Ying Ag-Pb-Zn Property in Henan Province, People's Republic of China
 
Silvercorp Metals Inc.0723067
Figure 14.24 SGX – Vein S8 vertical long section projection Mineral Resource

Notes: Long section looking towards 305°. Figure shows mined out to 31 March 2024, write-off to 31 December 2023.
Source: AMC, 2024.

 

Figure 14.25HZG - Vein HZ26 vertical long section projection Mineral Resource

Notes: Long section looking towards 315°. Figure shows mined out to 31 March 2024, write-off to 31 December 2023.
Source: AMC, 2024.

amcconsultants.com183
NI 43-101 Technical Report Update on the Ying Ag-Pb-Zn Property in Henan Province, People's Republic of China
 
Silvercorp Metals Inc.0723067

Figure 14.26HPG - Vein H17 vertical long section projection Mineral Resource

Notes: Long section looking towards 320°. Figure shows mined out to 31 March 2024, write-off to 31 December 2023.
Source: AMC, 2024.

 

Figure 14.27TLP – Vein T2 vertical long section projection Mineral Resource

Notes: Long section looking towards 310°. Figure shows mined out to 31 March 2024, write-off to 31 December 2023.
Source: AMC, 2024.

amcconsultants.com184
NI 43-101 Technical Report Update on the Ying Ag-Pb-Zn Property in Henan Province, People's Republic of China
 
Silvercorp Metals Inc.0723067
Figure 14.28 LME – Vein LM5 vertical long section projection Mineral Resource

Notes: Long section looking towards 315°. Figure shows mined out to 31 March 2024, write-off to 31 December 2023.
Source: AMC, 2024.

 

Figure 14.29LMW - Vein LM7 vertical long section projection Mineral Resource

Notes: Long section looking towards 315°. Figure shows mined out to 31 March 2024, write-off to 31 December 2023.
Source: AMC, 2024.

amcconsultants.com185
NI 43-101 Technical Report Update on the Ying Ag-Pb-Zn Property in Henan Province, People's Republic of China
 
Silvercorp Metals Inc.0723067

Figure 14.30DCG – Vein C9_2 oblique section projection Mineral Resource

Source: AMC, 2024.

 

14.11Risks

The QPs are not aware of any known environmental, permitting, legal, taxation, socio-economic, marketing, political, or other similar factors which could materially affect the stated Mineral Resources.

The QPs note that 25% of the total Mineral Resources based on AqEq metal, and 28% of Mineral Resources based on tonnes fall below the current mining permits. On a mine by mine basis the number can vary between 0% (HZG) to 59% (LME).

As discussed in Section 4.3, it is not unusual for mining companies in China, including Silvercorp, to undertake resource-related activities outside of limits prescribed in mining permits (title). The process related to applications for, and granting of, mining permit limit extensions occurs in parallel with those activities.

In previous years, Prospecting permits were required to allow for exploration activities beneath current mining permits. As discussed in Section 4.4, Prospecting permits are no longer necessary if the Mining permit holder carries out the prospecting work in the deep and upper parts of the mining area. Details of mining permits depths were provided to AMC by Silvercorp (see Section 3).

The QPs are satisfied that there is minimal material risk of Silvercorp not receiving approval to mine these resources when access is required in the future.

amcconsultants.com186
NI 43-101 Technical Report Update on the Ying Ag-Pb-Zn Property in Henan Province, People's Republic of China
 
Silvercorp Metals Inc.0723067
14.12Comparison with Mineral Resource estimate as of 31 December 2021

Prior to this Technical Report, the most recently published independent Mineral Resource estimate on the Property is contained in the 2022 Technical Report, with an effective date of 31 December 2021. A comparison between the Mineral Resource estimates with an effective date of 31 December 2021 (2021 Q4) and 30 June 2024 (2024 Q2) are presented in Table 14.7. Changes since the 2021 Q4 estimate include:

·Drilling of an additional 3,018 diamond core drillholes for a total of 491,561 m.
·Ongoing underground development including the completion of an additional 116,123 m of tunnels including 71,961 m of drifts 30,375 m of crosscuts and 13,787 m of raises and associated channel samples.
·Ongoing depletion and sterilization (write-off) due to mining.
·Updated metal prices, AgEq formulas, and COGs for each mine.

 

Table 14.7 Comparison of 31 December 2021 and 30 June 2024 Mineral Resource estimates

 

Mine

Resource category

Tonnes
(Mt)
Au Ag Pb Zn
g/t Metal
(koz)
g/t Metal
(Moz)
% Metal
(kt)
% Metal
(kt)

SGX

2024 Q2 MS+ID 7.23 0.04 10.3 231 53.8 4.50 325.2 2.29 165.6
2024 Q2 IF 2.26 0.01 1.0 210 15.3 4.38 99.0 1.70 38.4
2021 Q4 MS+ID 6.64 0.03 6.1 270 57.7 5.14 341.5 2.48 164.7
2021 Q4 IF 3.98 0.01 0.7 232 29.7 4.63 184.3 1.93 76.8
Difference MS+ID (%) 9% 56% 70% -14% -7% -13% -5% -8% 1%
Difference IF (%) -43% 148% 41% -9% -49% -5% -46% -12% -50%

HZG

2024 Q2 MS+ID 0.93 - - 291 8.7 0.98 9.1 - -
2024 Q2 IF 0.34 - - 266 2.9 0.71 2.4 - -
2021 Q4 MS+ID 1.03 - - 365 12.1 1.06 10.9 - -
2021 Q4 IF 0.55 - - 326 5.8 0.83 4.6 - -
Difference MS+ID (%) -10% - - -20% -28% -7% -16% - -
Difference IF (%) -37% - - -18% -49% -15% -47% - -

HPG

2024 Q2 MS+ID 2.02 1.24 80.9 71 4.6 2.99 60.6 0.99 19.9
2024 Q2 IF 1.57 2.86 144.7 103 5.2 3.76 59.2 0.95 14.9
2021 Q4 MS+ID 1.69 1.50 81.3 80 4.3 3.49 59.0 1.30 22.0
2021 Q4 IF 1.45 2.61 121.9 91 4.3 3.43 49.8 1.20 17.4
Difference MS+ID (%) 20% -17% 0% -10% 7% -14% 3% -24% -9%
Difference IF (%) 8% 10% 19% 13% 23% 10% 19% -21% -15%

TLP

2024 Q2 MS+ID 6.21 - - 177 35.3 2.91 181.0 - -
2024 Q2 IF 1.87 - - 175 10.5 2.35 43.8 - -
2021 Q4 MS+ID 4.46 - - 206 29.6 3.27 145.8 - -
2021 Q4 IF 3.76 - - 180 21.8 2.86 107.5 - -
Difference MS+ID (%) 39% - - -14% 19% -11% 24% - -
Difference IF (%) -50% - - -3% -52% -18% -59% - -
amcconsultants.com187
NI 43-101 Technical Report Update on the Ying Ag-Pb-Zn Property in Henan Province, People's Republic of China
 
Silvercorp Metals Inc.0723067

Mine

Resource category

Tonnes
(Mt)
Au Ag Pb Zn
g/t Metal
(koz)
g/t Metal (Moz) % Metal
(kt)
% Metal
(kt)

LME

2024 Q2 MS+ID 1.80 0.07 4.2 282 16.3 1.23 22.1 0.33 5.9
2024 Q2 IF 0.89 0.16 4.7 258 7.4 1.24 11.0 0.30 2.7
2021 Q4 MS+ID 1.47 0.18 8.6 327 15.5 1.69 24.8 0.40 5.8
2021 Q4 IF 1.49 0.65 30.9 221 10.5 1.45 21.6 0.41 6.0
Difference MS+ID (%) 23% -61% -52% -14% 6% -27% -11% -18% 0%
Difference IF (%) -40% -75% -85% 17% -30% -14% -49% -25% -55%

LMW

2024 Q2 MS+ID 3.59 0.19 22.4 216 24.9 2.01 72.0 - -
2024 Q2 IF 1.77 0.11 6.0 199 11.3 2.33 41.1 - -
2021 Q4 MS+ID 3.09 0.31 31.3 260 25.9 2.22 68.6 - -
2021 Q4 IF 1.51 0.07 3.6 235 11.4 2.36 35.5 - -
Difference MS+ID (%) 16% -38% -28% -17% -4% -9% 5% - -
Difference IF (%) 17% 42% 66% -15% -1% -1% 16% - -

DCG

2024 Q2 MS+ID 0.36 2.16 24.9 67 0.8 1.93 6.9 0.21 0.7
2024 Q2 IF 0.10 0.63 2.0 59 0.2 3.79 3.8 0.13 0.1
2021 Q4 MS+ID 0.35 3.00 34.2 90 1.0 1.80 6.4 0.24 0.8
2021 Q4 IF 0.32 1.44 14.8 98 1.0 2.70 8.6 0.21 0.7
Difference MS+ID (%) 1% -28% -27% -26% -25% 7% 9% -13% -12%
Difference IF (%) -68% -57% -86% -40% -81% 41% -55% -38% -80%

Total

2024 Q2 MS+ID 22.15 0.20 142.7 203 144.4 3.06 676.8 0.87 192.2
2024 Q2 IF 8.80 0.56 158.4 187 52.8 2.96 260.4 0.64 56.1
2021 Q4 MS+ID 18.73 0.27 161.4 242 146.0 3.51 656.8 1.03 193.3
2021 Q4 IF 13.05 0.41 171.8 201 84.5 3.15 411.8 0.77 100.9
Difference MS+ID (%) 18% -25% -12% -16% -1% -13% 3% -16% -1%
Difference IF (%) -33% 37% -8% -7% -37% -6% -37% -17% -44%

 

The following observations have been made by the QPs from the comparison table:

·Measured and Indicated tonnes have increased by 18% overall. The Inferred tonnes have decreased by 33%.
·Measured and Indicated grades have decreased for gold and silver by 25% and 16%, respectively. Measured and Indicated grades have decreased for lead by 13% and zinc by 16%.
·Inferred grades increased for gold by 37% but decreased for silver, lead and zinc by 7%, 6%, and 17%, respectively.
·The net result in the Measured and Indicated categories has been a decrease in the contained gold metal, silver metal and zinc metal of 12%, 1% and 1%, respectively, and an increase in contained lead metal of 3%.
·The net result in the Inferred category has been a decrease in the contained gold, silver, lead, and zinc of 8%, 37%, 37%, and 44%, respectively.

The reasons for the differences in grade, tonnes, and contained metal include changes made to vein interpretations for the 2024 Q2 model, conversion to higher categories arising from drilling and level development, application of different COGs, and depletion due to mining. In the case of gold, the QPs note that only 93 of the total 534 veins comprise gold estimates (71 veins at HPG, and 22 select veins from SGX, LME, LMW and DCG). Gold grades shown in Mineral Resource tables are extremely sensitive to the overall tonnes for all veins. The notable 37% increase in the Inferred gold grades in the 2024 Q2 model is due to the decrease in the overall total tonnes of Inferred material, as well as the discovery of an additional 12 gold veins since the 2021 Q4 model.

amcconsultants.com188
NI 43-101 Technical Report Update on the Ying Ag-Pb-Zn Property in Henan Province, People's Republic of China
 
Silvercorp Metals Inc.0723067
14.13General comments and recommendations

The QPs have reviewed the Silvercorp Mineral Resource estimates and are satisfied that they comply with generally accepted industry practices. The QPs take responsibility for these estimates.

The QPs suggest the following recommendations be considered for future Mineral Resource estimates:

Mineral Resource estimation process

·Continue to standardize modelling and estimation protocols at all mines to facilitate efficient model auditing.
·Establish clear responsibilities for key personnel during the Mineral Resource estimation process. This should include a rigorous internal peer review of all inputs including input databases, 3D vein / domain models, as-built and sterilization triangulations, classification wireframes etc. This internal review process could include something as structured as a formal internal data sign-off at each key stage of the modelling process.
·Ensure that vein models are appropriate for use as estimation domains in the context of established parameters (e.g. hard boundary search neighbourhood). Disparate veins in similar stratigraphic positions, considered within the mining context as the same vein, may need to be separated into separate domains (different vein domain names). Conversely, spatially related veins with minor fault offsets may be grouped into single domains (same vein domain name). This will enable blocks to be informed by appropriate data and eliminate boundary artefacts in the resulting block model.

 

Mineral Resource database

·Finalize the migration of all Mineral Resource datasets to the central Micromine Geobank database and implement data validation checks as discussed in Sections 11 and 12.
·Create fields within the database to identify any drillhole or channel samples that should be excluded from the Mineral Resource. Documentation of why any data are excluded should be maintained and provided to any external QPs completing work on the project.
·Consider standardizing the translation of Chinese vein names to English vein names to ensure consistency between successive (i.e. yearly) Mineral Resource updates. This will allow more detailed comparisons of individual block models on a vein-by-vein basis. This could also be accomplished through a tracking document which records successive names for the same vein.

Density

·Collect significant additional samples for bulk density determination at all deposits from both vein (across all grade ranges) and wallrock materials.
·Density sampling programs should incorporate QA/QC including appropriately manufactured or sourced standards.
·Store bulk density data within the central database.

Vein modelling

·Develop standardized procedures for vein modelling across all deposits for the purpose of Mineral Resource estimation. This should encompass standards that cover how far to extrapolate veins from known mineralization, criteria for combining (or splitting) veins into a single estimation domain, and minimum vein width criteria.
·Increase the number of vertices during wireframe construction to increase the resolution of triangulations, and to prevent deleterious triangle artefacts in veins with highly variable or
amcconsultants.com189
NI 43-101 Technical Report Update on the Ying Ag-Pb-Zn Property in Henan Province, People's Republic of China
 
Silvercorp Metals Inc.0723067
sparse data density. Investigate possible advanced vein modelling tools such as implicit modelling to create more appropriate and robust vein wireframes.
·Where appropriate, clip intersecting veins using wireframe Boolean tools.
·Adjust wireframing processes to reduce wireframes pinching out to thicknesses of less than 0.4 m between data.

·Ensure all vein models are peer-reviewed prior to Mineral Resource estimation.

Block modelling

·Maintain a consistent model definition process (i.e. X and Y in the plane of mineralization and Z across vein thickness).
·Round model prototype origins to the nearest 100 m to simplify software compatibility.
·Investigate whether subcell size can be decreased to at least 0.1 m across the thickness of the vein and to 1 m along strike and down dip for all models to improve accuracy of depletion coding.
·Incorporate an assessment of the quality of the geological model, grade continuity, and quality of estimates in addition to the established geometric criteria used for Mineral Resource classification. Use classification to manage:
¾Volumetric / geometric inconsistencies.
¾Grade blow outs.
¾High variance domains with consequential low confidence estimates.
¾Spatial offsets.
·During resource classification coding, ensure that ‘cookie cutter’ coding wireframes are orthogonal to the strike / dip of vein models.

·As-builts should be used in addition to any ‘cookie cutter’ wireframe built in the longitudinal plane to ensure that raises and crosscut drives are appropriately coded and depleted.

·Consider implementing quarterly reviews to identify non-recoverable portions of the Mineral Resource.
amcconsultants.com190
NI 43-101 Technical Report Update on the Ying Ag-Pb-Zn Property in Henan Province, People's Republic of China
 
Silvercorp Metals Inc.0723067
15Mineral Reserve estimates
15.1Introduction and Mineral Resources base

The Mineral Resources upon which the Ying Mineral Reserves are based have been discussed in detail in Section 14. The Mineral Resources are located in, or adjacent to, areas where Silvercorp has mining permits. The permitting issue has also been discussed in Section 14. The QP considers that it is reasonable to include all the current Mineral Resources, including those located below the current lower limit of Silvercorp’s mining permits, in the Mineral Reserve estimation.

To convert Mineral Resources to Mineral Reserves, mining COGs have been applied, mining dilution has been added, and mining recovery factors assessed on an individual vein mining block basis. Only Measured and Indicated Mineral Resources have been used for Mineral Reserves estimation.

The Mineral Reserve estimates for the Ying property were prepared by Silvercorp under the guidance of independent QP Mr H.A. Smith, P.Eng., who takes responsibility for those estimates.

15.2Mineral Reserve estimation methodology

The Mineral Reserve estimation assumes that current stoping practices will continue to be predominant at the Ying property, namely cut and fill resuing and shrinkage stoping for most veins, using hand-held drills (jacklegs) and hand-mucking within stopes, and loading to mine cars by rocker-shovel or by hand. The typically sub-vertical veins, generally competent ground, reasonably regular vein width, and hand-mining techniques using short rounds, allow a significant degree of selectivity and control in the stoping process. Minimum mining widths of 0.5 m for resuing and 1.0 m for shrinkage are assumed. The QP has observed the resuing and shrinkage mining methods at the Ying property on several occasions and considers the minimum extraction and mining width assumptions to be reasonable. Minimum dilution assumptions are 0.10 m of total overbreak for a resuing cut and 0.2 m of total overbreak for a shrinkage stope. Dilution is discussed further in Section 15.4.

The QP notes that, for a small number of veins with relatively low-angle dip – generally veins with significant gold content – room and pillar stoping with slushers is now being used at the Property. Longhole stoping has also been recently employed in one instance, with this method now being planned to be used in some areas of the LMW mine.

For the total tonnage estimated as Ying Mineral Reserves, approximately 58% is associated with resuing, 36% with shrinkage, 4% with longhole, and 2% with room and pillar mining.

15.3Cut-off grades

Mineral Reserves have been estimated using full breakeven cut-off values for the different mining methods (largely shrinkage and resuing) at each site as appropriate. The COG basis is summarized below and in Table 15.1.

COG AgEq (g/t) = (operating cost/t + sustaining capital cost/t + mineral resources tax/t + government fee/t) / (Ag value/g x processing recovery x payable)

In determining metal prices for use in the cut-off calculations, the QP has referenced World Bank long-term forecast information, prices used in recent NI 43-101 reports, three-year trailing averages, and prices current as of March 2024. An exchange rate of 7.00 RMB to US$1 was used in the cut-off calculations. The exchange rate was also referenced against current Silvercorp budgeting and information in the public domain.

 

amcconsultants.com191
NI 43-101 Technical Report Update on the Ying Ag-Pb-Zn Property in Henan Province, People's Republic of China
 
Silvercorp Metals Inc.0723067

 

Table 15.1Mineral Reserve cut-off grades1,2 and key estimation parameters

 

Item SGX HZG HPG TLP LME LMW DCG
Foreign exchange rate (RMB:US$) 7.00 7.00 7.00 7.00 7.00 7.00 7.00 7.00 7.00 7.00 7.00 7.00 7.00 7.00
  Resuing Shrinkage Resuing Shrinkage Resuing Shrinkage Resuing Shrinkage Resuing Shrinkage Resuing Shrinkage Resuing Shrinkage
Operating costs                            
Mining Cost ($/t) 88.34 64.95 92.81 75.76 83.14 61.70 76.10 54.60 84.57 71.00 105.52 88.14 87.35 66.60
Shipping cost ($/t) 3.75 3.75 4.43 4.43 2.71 2.71 3.10 3.10 3.17 3.17 3.24 3.24 3.24 3.24
Milling cost ($/t) 11.00 11.00 11.00 11.00 11.00 11.00 11.00 11.00 11.00 11.00 11.00 11.00 11.00 11.00
G&A and product selling cost ($/t) 10.64 10.64 10.64 10.64 10.64 10.64 10.64 10.64 10.64 10.64 10.64 10.64 10.64 10.64
Mineral Resources tax ($/t) 3.51 3.51 3.11 3.11 3.45 3.45 3.16 3.16 3.25 3.25 3.50 3.50 3.25 3.25
Government fee and other tax ($/t) 2.80 2.80 2.80 2.80 2.80 2.80 2.80 2.80 2.80 2.80 2.80 2.80 2.80 2.80
Sustaining Capital ($/t) (mine development, exploration tunnelling, PPE) 17.72 17.72 17.29 17.29 22.60 22.60 14.79 14.79 25.97 25.97 17.32 17.32 22.63 22.63
Total operating costs (US$/t)3 137.76 114.37 142.07 125.02 136.34 114.90 121.60 100.10 141.40 127.83 154.02 136.64 140.90 120.15
Mill recoveries                            
Au (%) 66.59 66.59     92.00 92.00     66.90 66.90 88.30 88.30 85.70 85.70
Ag (%) 96.35 96.35 96.40 96.40 89.90 89.90 94.00 94.00 95.60 95.60 96.80 96.80 80.90 80.90
Pb (%) 97.63 97.63 93.60 93.60 91.40 91.40 90.30 90.30 90.40 90.40 95.70 95.70 77.60 77.60
Zn (%) 60.47 60.47     67.80 67.80     31.30 31.30        
Payables                            
Au (%) 85.00 85.00     85.00 85.00     85.00 85.00 85.00 85.00 85.00 85.00
Ag (%) 92.50 92.50 92.50 92.50 92.50 92.50 92.50 92.50 92.50 92.50 92.50 92.50 92.50 92.50
Pb (%) 97.99 97.99 97.99 97.99 97.99 97.99 97.99 97.99 97.99 97.99 97.99 97.99 97.99 97.99
Zn (%) 73.74 73.74     73.74 73.74     73.74 73.74        
Full breakeven COG (AgEq g/t) = (Total operating cost $/t)/($ value per in situ gram after metallurgical recovery & payable) 225 190 235 205 240 200 205 170 235 210 250 225 275 235

Notes:

1. For longhole mining at LMW, a full breakeven COG of 195 AgEq g/t has been applied.

2. For room and pillar mining at LMW and LME, a full breakeven COG of 205 AgEq g/t has been applied.

3. Operating cost estimates referenced budgeting projections and FY2023 and FY2024 ‘actuals’.

Numbers may not compute exactly due to rounding.

Metal price assumptions: Au $1,800/oz; Ag $21.00/oz; Pb $1.00 per pound (lb); Zn $1.10/lb.

See Section 14 for AgEq formulae. No Zn value ascribed to ore from HZG, TLP, LMW, and DCG sites. Au value included for viable gold-bearing veins at SGX, HPG, LME, LMW, and DCG.

amcconsultants.com192
NI 43-101 Technical Report Update on the Ying Ag-Pb-Zn Property in Henan Province, People's Republic of China
 
Silvercorp Metals Inc.0723067

Lower COG values have been used for development ore and in areas where, effectively, all development and drilling for a given stope is complete and the decision is whether to mine the stope or not. These values are shown in Table 15.2.

Table 15.2Stope marginal1,2 and development ore cut-off grades

 

Item SGX HZG HPG TLP LME LMW DCG
  Resuing Shrinkage Resuing Shrinkage Resuing Shrinkage Resuing Shrinkage Resuing Shrinkage Resuing Shrinkage Resuing Shrinkage
Stope Marginal COG (AgEq g/t) 200 160 195 165 220 180 185 160 205 185 195 165 235 190
Development Ore COG (AgEq g/t) 125 120 145 115 145 125 150

1 For longhole mining at LMW, a stope marginal COG of 140 AgEq g/t has been applied.

2 For room and pillar mining at LMW and LME, a stope marginal breakeven COG of 150 AgEq g/t has been applied

Note: Costs, recoveries, payables, and metal price assumptions as per Table 15.1 above.

 

15.3.1Comment on cut-off grades

The QP considers that the Mineral Reserve COGs and their supporting parameters are reasonable. The QP also notes that the Ying Mineral Reserves, as a whole, have limited sensitivity to variation in COG as discussed in Section 15.6.

15.4 Dilution and recovery factors
15.4.1Dilution

As indicated above, minimum mining widths are assumed as 0.5 m and 1.0 m, respectively, for resuing and shrinkage. For resuing, a dilution factor has been applied to each true vein width up to a minimum extraction width of 0.5 m or to (vein width plus 0.1 m) where the true width is greater than 0.4 m. For shrinkage, a minimum dilution factor of 0.2 m is added to the minimum vein width of 0.8 m. The QP notes that a key strategy used at Ying for minimizing floor dilution is the placement of rubber mats and / or conveyor belting over the waste fill floor in resuing stopes immediately before each resuing blast. This effectively serves as a barrier between ore and waste.

For longhole mining at LMW, 20% dilution has been assumed. For room and pillar mining at LMW, a minimum mining width of 1.2 m or vein width + 0.2 m where vein width is greater than 1.0 m has been assumed, with average dilution approximately 33%. For a very small amount of room and pillar mining at LME, 17% dilution has been projected.

The dilution calculation process used for the Mineral Reserves estimation assumes that the resulting figures represent the overall tonnes and grade delivered to surface. There is a small degree of waste hand-sorting, and therefore upgrading, that occurs underground, depending on the mine and mining method. The QP considers that the resulting impact of this hand-sorting on the delivered product is not significant enough to materially affect the dilution factors used in the estimation.

The QP notes that the projections for dilution for the predominant resuing and shrinkage mining methods assume a high degree of process control in terms of design, drilling, and blasting, and that such control on an ongoing basis is critical to achieving dilution targets. For the newly planned longhole mining at LMW, a comprehensive program to monitor drilling and blasting performance against design, inclusive of regular cavity monitoring surveys, is recommended to be applied.

Table 15.3 summarizes average dilution estimates from the Mineral Reserve calculations for each of the Ying mines. The QP considers that, overall, the current dilution estimation is reasonable, but

amcconsultants.com193
NI 43-101 Technical Report Update on the Ying Ag-Pb-Zn Property in Henan Province, People's Republic of China
 
Silvercorp Metals Inc.0723067

notes that production grades since the beginning of 2022 have been lower than reserve grades for the areas mined (see Table 16.14). This suggests that the move towards increased production rates has resulted in increased dilution and emphasizes the requirement for a renewed focus on mining process control.

Table 15.3Average dilution by mine and method

 

Mine Dilution %    
Resuing Shrinkage* Longhole R&P
SGX 18.4% 23.5%    
HZG 16.7% 21.8%    
HPG 7.8% 15.6%    
TLP 16.4% 16.5%    
LME 16.5% 18.1%   16.9%
LMW 16.4% 19.2% 20.0% 32.5%
DCG 15.3% 21.7%    
Total Ying 16.9% 19.4% 20.0% 29.8%

*Shrinkage at SGX includes stopes to be subsequently backfilled.

 

15.4.2Mining recovery factors

Mining recovery estimates used in the resuing and shrinkage Mineral Reserve calculations are based on experience with these predominant mining methods at each of the Ying operations. For resuing stopes, 95% total recovery is assumed; for shrinkage stopes, 92% total recovery is assumed. Minimal pillars are anticipated to remain between adjacent mining blocks in the same vein, and partial recovery in sill pillars is allowed for in the respective recovery factors. For the recently introduced longhole mining at LMW, the projected recovery factor is 80%. For room and pillar mining at LMW and LME, and for mining with backfill at SGX, the projected recovery factor is 92%.

15.5 Mineral Reserve estimate

To convert Mineral Resources to Mineral Reserves, Silvercorp uses the following procedures:

·Selection of Measured and Indicated Mineral Resource areas (potential stope blocks) for which the average AgEq grade is greater than the applicable mine COG.
·Application of minimum extraction and mining width criteria and calculation of diluting material quantities at zero grade.
·Estimation of Mineral Reserve potential by applying relevant mining loss factors.
·Reconfirmation that diluted AgEq grade is greater than the applicable mine cut-off grade.
·Confirmation as Mineral Reserves by considering any other significant cost factors such as additional waste development required to gain access to the block in question.

Table 15.4 summarizes the Mineral Reserve estimates for each Ying mine and for the entire Ying operation. 56% of the Mineral Reserve tonnage is categorized as Proven and 44% is categorized as Probable.

amcconsultants.com194
NI 43-101 Technical Report Update on the Ying Ag-Pb-Zn Property in Henan Province, People's Republic of China
 
Silvercorp Metals Inc.0723067
Table 15.4Ying Mining District Mineral Reserve estimates & metal content at 30 June 2024

 

Mine

Category

Mt

Au
(g/t)
Ag
(g/t)
Pb
(%)
Zn
(%)
Metal contained in Mineral Reserves
Au
(koz)
Ag
(Moz)
Pb
(kt)
Zn
(kt)

SGX

Proven 3.14 0.03 242 4.64 2.20 3.1 24.4 145.6 69.0
Probable 2.25 0.01 202 4.02 1.88 0.9 14.6 90.5 42.2
Subtotal P&P 5.39 0.02 225 4.38 2.06 4.0 39.0 236.1 111.2

HZG

Proven 0.36   292 0.92     3.4 3.3  
Probable 0.13 336 0.75 1.4 1.0
Subtotal P&P 0.49   304 0.87     4.8 4.2  

HPG

Proven 0.47 1.44 82 3.72 1.14 21.6 1.2 17.4 5.3
Probable 0.36 1.44 68 2.72 0.97 16.9 0.8 9.9 3.5
Subtotal P&P 0.83 1.44 76 3.28 1.07 38.5 2.0 27.3 8.9

TLP

Proven 2.02   194 2.93     12.6 59.2  
Probable 1.34 176 2.59 7.6 34.7
Subtotal P&P 3.36   187 2.79     20.2 93.9  

LME

Proven 0.30 0.12 311 1.29 0.29 1.1 3.0 3.9 0.9
Probable 0.61 0.14 314 1.14 0.32 2.8 6.1 6.9 1.9
Subtotal P&P 0.91 0.13 313 1.19 0.31 3.9 9.2 10.8 2.8

LMW

Proven 0.83 0.22 251 2.12   5.8 6.7 17.6  
Probable 0.84 0.21 241 1.99 5.7 6.5 16.7
Subtotal P&P 1.67 0.21 246 2.05   11.5 13.2 34.3  

DCG

Proven 0.06 2.69 61 1.21   5.0 0.1 0.7  
Probable 0.05 4.54 63 1.13 7.8 0.1 0.6
Subtotal P&P 0.11 3.58 62 1.17   12.7 0.2 1.3  

Ying Mines

Proven 7.17 0.16 223 3.45 1.05 36.6 51.4 247.6 75.2
Probable 5.58 0.19 207 2.87 0.85 34.0 37.2 160.3 47.7
Total P&P 12.76 0.17 216 3.20 0.96 70.6 88.6 408.0 122.9

Notes to Mineral Reserve Statement:

·Cut-off grades (AgEq g/t): SGX – 225 Resuing, 190 Shrinkage; HZG – 235 Resuing, 205 Shrinkage; HPG – 240 Resuing, 200 Shrinkage; TLP – 205 Resuing, 170 Shrinkage; LME – 235 Resuing, 210 Shrinkage, 205 Room & Pillar; LMW – 250 Resuing, 225 Shrinkage, 195 Longhole, 205 Room & Pillar; DCG – 275 Resuing, 235 Shrinkage.
·Stope Marginal cut-off grades (AgEq g/t): SGX – 200 Resuing, 160 Shrinkage; HZG – 195 Resuing, 165 Shrinkage; HPG – 220 Resuing, 180 Shrinkage; TLP – 185 Resuing, 160 Shrinkage; LME – 205 Resuing, 185 Shrinkage, 150 Room & Pillar; LMW - 195 Resuing, 165 Shrinkage, 140 Longhole, 150 Room & Pillar; DCG – 235 Resuing, 190 Shrinkage.
·Development Ore cut-off grades (AgEq g/t): SGX – 125; HZG – 120; HPG – 145; TLP – 115; LME – 145; LMW – 125; DCG – 150.
·Unplanned dilution (zero grade) assumed as 0.05 m on each wall of a resuing stope and 0.10 m on each wall of a shrinkage stope. 20% unplanned dilution assumed for LMW longhole. 17% average dilution for Room & Pillar at LME, 33% average dilution for Room & Pillar at LMW.
·Mining recovery factors assumed as 95% for resuing and 92% for shrinkage; for LMW longhole, 80% is assumed; for R&P at LME and LMW, 92% is assumed.
·Metal prices: gold US$1,800/troy oz, silver US$21.00/troy oz, lead US$1.00/lb, zinc US$1.10/lb.
·Processing recovery factors: SGX – 66.6% Au, 96.4% Ag, 97.6% Pb, 60.5% Zn; HZG – 96.4% Ag, 93.6% Pb; HPG – 92.0% Au, 89.9% Ag, 91.4% Pb, 67.8% Zn; TLP – 94.0% Ag, 90.3% Pb; LME – 66.9% Au, 95.6% Ag, 90.4% Pb, 31.3% Zn; LMW – 88.3% Au, 96.8% Ag, 95.7% Pb; DCG – 85.7% Au, 80.9% Ag, 77.6% Pb.
·Payables: Au – 85%; Ag – 92.5%; Pb – 98.0%; Zn – 73.7%.
·Exclusive of mine production to 30 June 2024.
·Exchange rate assumed is RMB 7.00 : US$1.00.
·Numbers may not compute exactly due to rounding.
amcconsultants.com195
NI 43-101 Technical Report Update on the Ying Ag-Pb-Zn Property in Henan Province, People's Republic of China
 
Silvercorp Metals Inc.0723067

The QP notes that a detailed estimation of Mineral Reserves was completed to 31 March 2024. For the estimation to 30 June 2024, reported mine production for the April to June 2024 period was deducted from the 31 March 2024 estimation. The April to June 2024 production was less than 1.8% of the 31 March Mineral Reserves in terms of tonnes and for each contained metal.

Ying average Mineral Reserve grades for gold, silver, lead and zinc are 100%, 87%, 89%, and 143%, respectively, of the reported grades for the operating period from FY2022Q4 through end- FY2024. This is consistent with production generally moving to deeper mine areas.

In terms of Ying Mineral Reserve AgEq metal content, SGX remains the main contributor at 49%, followed by TLP at 21% and LMW at 12%.

A continued focus on best mining practices and minimizing dilution will be key to achieving Mineral Reserve grades over the Ying life-of-mine (LOM).

15.6 Reserves sensitivity to cut-off grade

The sensitivity of the Ying Mineral Reserves to variation in COG has been tested by applying a 20% increase in COG to Mineral Reserves at each of the Ying mines. The approximate percentage differences in contained AgEq ounces for each of the Ying mines and for the property as a whole are shown in Table 15.5.

Table 15.5Estimated reduction in contained AgEq oz in Mineral Reserves for COG increase of 20%

 

COGs increased by 20% SGX HZG HPG TLP LME LMW DCG
Mine AgEq oz reduction 7.3% 15.0% 12.3% 16.3% 13.5% 15.9% 18.1%
Ying Total AgEq oz reduction 11.3%

The lowest sensitivity continues to be seen at SGX. For the entire Ying Mining District, an approximate 11% reduction in AgEq ounces for a 20% COG increase demonstrates relatively low overall COG sensitivity.

15.7 Conversion of Mineral Resources to Reserves

Table 15.6 compares the respective sums of Measured plus Indicated Resources and Proven plus Probable Reserves for each of the Ying mines and the entire Ying operation.

amcconsultants.com196
NI 43-101 Technical Report Update on the Ying Ag-Pb-Zn Property in Henan Province, People's Republic of China
 
Silvercorp Metals Inc.0723067
Table 15.6Mineral Resources and Mineral Reserves comparison

 

Mine   Tonnes
(Mt)
Au
(g/t)
Ag
(g/t)
Pb
(%)
Zn
(%)
Au
(koz)
Ag
(Moz)
Pb
(kt)
Zn
(kt)
   
SGX Resource MS+ID 7.23 0.04 231 4.50 2.29 10.3 53.8 325.2 165.6
Reserve Prv + Prb 5.39 0.02 225 4.38 2.06 4.0 39.0 236.1 111.2
Conversion percentages 74% 52% 97% 98% 90% 39% 73% 73% 67%
HZG Resource MS+ID 0.93   291 0.98     8.7 9.1  
Reserve Prv + Prb 0.49 304 0.87 4.8 4.2
Conversion percentages 52%   105% 89%     55% 46%  
HPG Resource MS+ID 2.02 1.24 71 2.99 0.99 80.9 4.6 60.6 19.9
Reserve Prv + Prb 0.83 1.44 76 3.28 1.07 38.5 2.0 27.3 8.9
Conversion percentages 41% 116% 106% 110% 108% 48% 44% 45% 44%
TLP Resource MS+ID 6.21   177 2.91     35.3 181.0  
Reserve Prv + Prb 3.36 187 2.79 20.2 93.9
Conversion percentages 54%   105% 96%     57% 52%  
LME Resource MS+ID 1.80 0.07 282 1.23 0.33 4.2 16.3 22.1 5.9
Reserve Prv + Prb 0.91 0.13 313 1.19 0.31 3.9 9.2 10.8 2.8
Conversion percentages 51% 185% 111% 97% 95% 94% 56% 49% 48%
LMW Resource MS+ID 3.59 0.19 216 2.01   22.4 24.9 72.0  
Reserve Prv + Prb 1.67 0.21 246 2.05 11.5 13.2 34.3
Conversion percentages 47% 110% 114% 102%   51% 53% 48%  
DCG Resource MS+ID 0.36 2.16 67 1.93 0.21 24.9 0.8 6.9 0.7
Reserve Prv + Prb 0.11 3.58 62 1.17 12.7 0.2 1.3
Conversion percentages 31% 166% 94% 61% 0% 51% 29% 19% 0%
Total Resource MS+ID 22.15 0.20 203 3.06 0.87 142.7 144.4 676.8 192.2
Reserve Prv + Prb 12.76 0.17 216 3.20 0.96 70.6 88.6 408.0 122.9
Conversion percentages 58% 86% 106% 105% 111% 49% 61% 60% 64%

Notes:

·Numbers may not compute exactly due to rounding.
·MS+ID = Measured and Indicated Mineral Resources; Prv+Prb = Proven and Probable Mineral Reserves.

 

For the Property as a whole, total Mineral Reserve tonnes are approximately 58% of Mineral Resource (Measured plus Indicated) tonnes. Gold, silver, lead, and zinc Mineral Reserve grades are 86%, 106%, 105%, and 111%, respectively, of the corresponding Measured plus Indicated Mineral Resource grades. Metal conversion percentages for gold, silver, lead, and zinc are 49%, 61%, 60%, and 64%, respectively.

With respect to the difference in tonnes and metal content between (Measured plus Indicated) Mineral Resources and (Proven plus Probable) Mineral Reserves, the QP notes that the Mineral Resources have not had modifying factors applied that would allow consideration of conversion to Mineral Reserves.

15.8 Comparison of Mineral Reserves, end-2021 to 30 June 2024

Table 15.7 shows Ying Mineral Reserves at 31 December 2021 (2022 Technical Report) and 30 June 2024 (this Technical Report). The 2024 Mineral Reserves do not include ore mined since 31 December 2021.

amcconsultants.com197
NI 43-101 Technical Report Update on the Ying Ag-Pb-Zn Property in Henan Province, People's Republic of China
 
Silvercorp Metals Inc.0723067
Table 15.7Comparison of 2022 and 2024 Mineral Reserve estimates

 

Mine

Category

Tonnes
(Mt)

Au
(g/t)

Ag
(g/t)

Pb
(%)

Zn
(%)

Metal Contained in Mineral
Reserves
Au
(koz)
Ag
(Moz)
Pb
(kt)
Zn
(kt)
SGX 2024 Proven 3.14 0.03 242 4.64 2.20 3.15 24.37 145.6 69.0
Probable 2.25 0.01 202 4.02 1.88 0.86 14.63 90.5 42.2
Total Proven & Probable 5.39 0.02 225 4.38 2.06 4.01 39.00 236.1 111.2
SGX 2022 Proven 2.62 0.05 267 5.12 2.46 3.95 22.53 134.1 64.5
Probable 2.61 0.00 230 4.41 1.90 0.26 19.33 115.2 49.7
Total Proven & Probable 5.23 0.03 249 4.76 2.18 4.21 41.86 249.3 114.2

SGX %

Change

Proven 20% -34% -10% -9% -11% -20% 8% 9% 7%
Probable -14% 292% -12% -9% -1% 237% -24% -21% -15%
Total Proven & Probable 3% -7% -9% -8% -5% -5% -7% -5% -3%
HZG 2024 Proven 0.36   292 0.92     3.35 3.3  
Probable 0.13 336 0.75 1.40 1.0
Total Proven & Probable 0.49   304 0.87     4.75 4.2  
HZG 2022 Proven 0.37   350 1.08     4.17 4.0  
Probable 0.36 347 0.77 4.06 2.8
Total Proven & Probable 0.73   348 0.93     8.23 6.8  

HZG %

Change

Proven -4%   -16% -15%     -20% -19%  
Probable -64% -3% -2% -65% -65%
Total Proven & Probable -34%   -13% -6%     -42% -38%  
HPG 2024 Proven 0.47 1.44 82 3.72 1.14 21.56 1.23 17.4 5.3
Probable 0.36 1.44 68 2.72 0.97 16.91 0.80 9.9 3.5
Total Proven & Probable 0.83 1.44 76 3.28 1.07 38.47 2.03 27.3 8.9
HPG 2022 Proven 0.35 1.41 89 3.38 1.39 15.81 1.00 11.7 4.8
Probable 0.44 1.80 59 2.76 1.04 25.67 0.85 12.2 4.6
Total Proven & Probable 0.79 1.63 73 3.03 1.19 41.48 1.85 24.0 9.4

HPG %

Change

Proven 34% 2% -9% 10% -18% 36% 23% 48% 10%
Probable -18% -20% 15% -1% -7% -34% -5% -19% -24%
Total Proven & Probable 5% -12% 5% 8% -11% -7% 10% 14% -6%
TLP 2024 Proven 2.02   194 2.93     12.60 59.2  
Probable 1.34 176 2.59 7.56 34.7
Total Proven & Probable 3.36   187 2.79     20.17 93.9  
TLP 2022 Proven 1.55   219 3.15     10.94 49.0  
Probable 1.02 204 2.91 6.70 29.7
Total Proven & Probable 2.58   213 3.05     17.64 78.7  
TLP % Change Proven 30%   -12% -7%     15% 21%  
Probable 31% -14% -11% 13% 17%
Total Proven & Probable 31%   -12% -9%     14% 19%  
LME 2024 Proven 0.30 0.12 311 1.29 0.29 1.13 3.03 3.9 0.9
Probable 0.61 0.14 314 1.14 0.32 2.77 6.14 6.9 1.9
Total Proven & Probable 0.91 0.13 313 1.19 0.31 3.90 9.17 10.8 2.8
LME 2022 Proven 0.23 0.16 349 1.59 0.32 1.23 2.62 3.7 0.7
Probable 0.68 0.30 316 1.62 0.40 6.62 6.91 11.0 2.7
amcconsultants.com198
NI 43-101 Technical Report Update on the Ying Ag-Pb-Zn Property in Henan Province, People's Republic of China
 
Silvercorp Metals Inc.0723067

 

Mine

Category

Tonnes
(Mt)

Au
(g/t)

Ag
(g/t)

Pb
(%)

Zn
(%)

Metal Contained in Mineral
Reserves
Au
(koz)
Ag
(Moz)
Pb
(kt)
Zn
(kt)
Total Proven & Probable 0.91 0.27 325 1.61 0.38 7.86 9.53 14.7 3.4

LME %

Change

Proven 30% -30% -11% -19% -10% -9% 15% 5% 17%
Probable -10% -53% -1% -30% -19% -58% -11% -37% -28%
Total Proven & Probable 0% -50% -4% -27% -18% -50% -4% -27% -18%
LMW 2024 Proven 0.83 0.22 251 2.12   5.77 6.71 17.6  
Probable 0.84 0.21 241 1.99 5.73 6.50 16.7
Total Proven & Probable 1.67 0.21 246 2.05   11.50 13.21 34.3  
LMW 2022 Proven 0.57 0.33 321 2.27   5.99 5.86 12.9  
Probable 1.29 0.55 242 1.87 22.95 10.06 24.1
Total Proven & Probable 1.86 0.48 266 1.99   28.95 15.92 37.0  

LMW %

Change

Proven 46% -34% -22% -6%   -4% 15% 37%  
Probable -35% -62% 0% 7% -75% -35% -31%
Total Proven & Probable -10% -56% -7% 3%   -60% -17% -7%  
DCG 2024 Proven 0.06 2.69 61 1.21   4.96 0.11 0.7  
Probable 0.05 4.54 63 1.13 7.76 0.11 0.6
Total Proven & Probable 0.11 3.58 62 1.17   12.72 0.22 1.3  
DCG 2022 Proven 0.09 2.41 73 1.38 0.28 6.79 0.20 1.2 0.2
Probable 0.13 3.84 104 1.87 0.15 15.43 0.42 2.3 0.2
Total Proven & Probable 0.21 3.25 91 1.67 0.20 22.22 0.62 3.5 0.4

DCG %

Change

Proven -35% 12% -15% -13% -100% -27% -45% -43% -100%
Probable -58% 18% -39% -39% -100% -50% -74% -74% -100%
Total Proven & Probable -48% 10% -31% -30% -100% -43% -64% -64% - 100%
Ying Mine 2024 Proven 7.17 0.16 223 3.45 1.05 36.56 51.40 247.6 75.2
Probable 5.58 0.19 207 2.87 0.85 34.03 37.15 160.3 47.7
Total Proven & Probable 12.76 0.17 216 3.20 0.96 70.59 88.55 408.0 122.9
Ying Mine 2022 Proven 5.78 0.18 255 3.75 1.22 33.78 47.32 216.6 70.3
Probable 6.54 0.34 230 3.02 0.87 70.94 48.32 197.5 57.2
Total Proven & Probable 12.32 0.26 241 3.36 1.03 104.72 95.65 414.1 127.5
Ying % Change Proven 24% -13% -12% -8% -14% 8% 9% 14% 7%
Probable -15% -44% -10% -5% -2% -52% -23% -19% -17%
Total Proven & Probable 4% -35% -11% -5% -7% -33% -7% -1% -4%

 

Some significant aspects of the comparison are:

·4% increase in total (Proven + Probable) Ying Mineral Reserve tonnes. 24% increase in Proven Mineral Reserve tonnes.
·SGX continues to be the leading contributor to the total Ying Mineral Reserves, accounting for 42% of tonnes, 44% of silver, 58% of lead, and 90% of zinc, compared to respective values of 42%, 44%, 60%, and 90% in the previous Technical Report.
·3% increase in Mineral Reserve tonnes at SGX, with decreases in gold, silver, lead and zinc metal content of 5%, 7%, 5% and 3%, respectively.
·TLP remains the second largest contributor to total Ying Mineral Reserves, with 26% of tonnes, 23% of silver and 23% of lead.
amcconsultants.com199
NI 43-101 Technical Report Update on the Ying Ag-Pb-Zn Property in Henan Province, People's Republic of China
 
Silvercorp Metals Inc.0723067
·31% increase in Mineral Reserve tonnes at TLP, with increases in silver and lead metal content of 14% and 19%, respectively.
·Decreases in total Ying Mineral Reserve silver, lead, and zinc grades of 11%, 5%, and 7%, respectively.
·Decreases in total Ying Mineral Reserve silver, lead, and zinc metal content of 7%, 1%, and 4%, respectively.
·Respective decreases in total Ying gold grade and gold metal content of 35% and 33%.
·In terms of AgEq metal in total Ying Mineral Reserves, approximate respective contributions are silver 61%, lead 31%, zinc 5%, and gold 4%.

In total Ying Mineral Reserves, SGX, TLP, LMW, LME, HPG, HZG, and DCG contribute 49%, 21%, 12%, 7%, 6%, 4%, and 1% of AgEq metal, respectively.

amcconsultants.com200
NI 43-101 Technical Report Update on the Ying Ag-Pb-Zn Property in Henan Province, People's Republic of China
 
Silvercorp Metals Inc.0723067
16Mining methods
16.1 Ying mining operations
16.1.1Introduction

The Ying Mining District has been intermittently mined over many years by small-scale, local miners. Silvercorp commenced mining at its Ying property (SGX mine) in April 2006. Its current mining activities continue to be focused at the SGX mine, but now also include the HZG (a satellite deposit to SGX), HPG, TLP, LME, LMW, and DCG mines. Figure 16.1 is a plan view showing the relative location of the mines.

Figure  16.1Ying mines locations

Source: Silvercorp, 2024.

 

Underground access to each of the mines in the steeply sloped, mountainous district is via adits at various elevations, inclined rail haulageways, shaft / internal shafts (winzes), and declines (ramps).

 

amcconsultants.com201
NI 43-101 Technical Report Update on the Ying Ag-Pb-Zn Property in Henan Province, People's Republic of China
 
Silvercorp Metals Inc.0723067

 

The mines are developed using trackless equipment – 30 t trucks and single-boom jumbos. Small, conventional tracked equipment – electric / diesel locomotives, rail cars, electric rocker shovels and load haul ramp trucks; and pneumatic hand-held drills – have been predominant in operations to date, but with an increased use of trackless equipment (e.g. 1 cubic metre (m3) LHDs, 5 t, 15 t and 30 t trucks) now in some mine areas and a focus on more mechanized mining being a key part of future mine planning. Part of the TLP, SGX, LME, LMW, HZG, HPG, and DCG mines still use mini haul trucks with a payload of up to three tonnes each for hauling ore to the surface. Throughout the Ying district, mine trucks are used in all the ramp areas for hauling ore and waste to the surface. These trucks meet the Chinese mine safety requirements. Excluding the ramp and mini haul truck areas, other mine sections use rail cars for hauling ore and waste to the surface.

The global extraction sequence is top-down between levels, and generally outwards from the central shaft or main access location. The stope extraction sequence is bottom-up, with shrinkage and resuing being the main mining methods, and using jacklegs for in-stope drilling. In some flatter-lying veins, room and pillar mining is now employed. A trial exercise for uppers longhole stoping has also been undertaken recently, with further longhole initiatives planned. Ore handling in resuing stopes is by hand-carting / hand-shovelling and / or small bucket slushers to specially manufactured steel-lined ore passes, and for shrinkage stopes is by gravity to drawpoints. Slushers are used in room and pillar mining. Most production loading from stope drawpoints to date has been via hand shovels or rocker shovels, with rail cars and battery-powered or diesel locomotives transporting ore to the main shaft, inclined rail haulageway, or main loading points in declines. As noted above, LHDs and a variety of truck sizes are now also being introduced into operations, with ramp haulage to surface being a major initiative. Some hand picking of high-grade ore and of waste may be carried out on surface at either ore pile or sorting belt, with transport to the centralized processing plants being via 30 t and 45 t trucks.

In the future, the Ying operation plans to develop deeper mining zones within each mining area, as part of an aim to enhance production rates. In tandem with this deeper zone development, the district managers’ plans include augmenting the number of mining machines, including LHDs and haulage trucks.

16.1.2SGX

The SGX mine is located in the western part of the Ying district.

There are six production systems in total. Production levels are spaced vertically at 40 m to 50 m intervals. The design of the production systems includes:

·Five adits with internal shafts from the surface to 0 mRL.
·A planned shaft extending from a surface elevation of 680 mRL to -365 mRL, which is anticipated to be completed in 2026.
·The main ramp production system, inclusive of one main ramp, two branch ramps, one new ramp, and some connection ramps:
¾Main ramp to 0 mRL with a total length of 4,700 m;
¾S2 branch ramp of 1,020 m from 90 mRL at the main ramp to 0 mRL;
¾400XPD branch ramp, with a design length of 3,800 m from 400 mRL at the main ramp to 0 mRL. By the end of 2023, this ramp was developed to 230 mRL and is planned to be completed in 2025;
¾New ramp access to be developed from 700 mRL to 570 mRL with a total length of 1,100 m;
¾Connection ramps planned to connect the main ramp to each level of the adit production system.
amcconsultants.com202
NI 43-101 Technical Report Update on the Ying Ag-Pb-Zn Property in Henan Province, People's Republic of China
 
Silvercorp Metals Inc.0723067

Each production system is an independent mining area with an independent transport and muck-hoisting system.

SGX is the largest of the Silvercorp Ying operations, producing about 35% of tonnes and 47% of silver ounces for the total operation in fiscal year 2024. The mining plan currently shows production occurring through to FY2038. Vein widths range from around 0.3 m to 5.1 m, with resuing the predominant mining method to date, and only about 13% mined by shrinkage in FY2024 on a tonnage basis. Mining is currently planned down to 0 mRL. Adjacent to the SGX mine are the ore and waste sorting facilities, main office, engineering, and administration buildings.

16.1.3HZG

The HZG mine is a satellite of the SGX mine, with portals located about 4 km to the south of the main SGX site.

The HZG mine is accessed by one adit and two decline ramps for hoisting from two production systems. Production levels are spaced at 50 m vertical intervals. The design of the production systems includes:

·The adit production system, which consists of one main inclined rail haulageway, one branch inclined rail haulageway, and a blind shaft:
¾The main inclined rail haulageway from the adit of 820 mRL to 650 mRL.
¾The branch inclined rail haulageway from 650 mRL to 550 mRL in the south area.
¾The blind shaft from 650 mRL to 450 mRL in the north area.
·The ramp production system design consists of one main ramp, two branch ramps, and some connection ramps:
¾The main ramp of 3,800 m from 712 mRL to 300 mRL (by the end of 2023, this ramp was developed to 400 mRL and is planned to be completed in 2024).
¾HZ20 branch ramp, used for hauling rock from the HZ20 vein area, with total length of 1,200 m from 450 mRL to 350 mRL, is planned to be developed in 2024.
¾HZ15 branch ramp, used for hauling rock from the HZ15 vein area, with total length of 1,800 m from 600 mRL to 450 mRL (by the end of 2023, this ramp was developed to 550 mRL and is planned to be completed in 2024).
¾Connection ramps planned to connect the main ramp to each level of the adit production system.
·A new ramp access of 1,200 m from 800 mRL at surface to 715 mRL is to be developed.
·Each production system is an independent mining area with an independent transport and muck-hoisting system.

The first year of production at HZG was 2011. The vein widths for mining range from about 0.2 m to 3.0 m, the veins being generally similar to those found throughout the district. The mining method by tonnage was effectively 90% resuing in FY2024. Approximately 9% of Ying ore tonnage and 9% of silver ounces in FY2024 were produced at HZG. The mining plan envisages ore being produced through to FY2031 at HZG.

16.1.4HPG

The HPG mine has been operated since 2007 and is located in the central part of the Ying district, to the north-east of the SGX mine.

amcconsultants.com203
NI 43-101 Technical Report Update on the Ying Ag-Pb-Zn Property in Henan Province, People's Republic of China
 
Silvercorp Metals Inc.0723067

The mine is accessed from several adits and mining through to FY2032 is projected in the Life-of-mine (LOM) plan. The mine is divided into three production systems, with production levels spaced at 50 m intervals. The production system design includes:

·The lowest adit production system, with internal inclined rail haulageway from surface to 460 mRL and blind shaft from 460 mRL to 50 mRL.
·The ramp production and exploration system, which includes one main ramp and some connection ramps:
¾Main ramp of 2,900 m from 600 mRL to 340 mRL (by the end of 2023, this ramp was developed to 440 mRL and is planned to be completed in 2024);
¾Connection ramps planned to connect the main ramp to each level of the adit production system.
·A new ramp of 1,200 m from 650 mRL to 750 mRL and a branch ramp of 450 m from 650 to 610 mRL planned to be developed in 2025.

Each production system is an independent mining area with an independent transport and muck-hoisting system. The mining method by tonnage was about 45% resuing and about 55% shrinkage in FY2024, with vein widths for mining ranging from less than 0.3 m up to about 2.7 m. About 9% of Ying ore tonnage in FY2024 was produced at HPG (approximately 4% of Ying silver ounces, and 32% of Ying gold ounces).

 

16.1.5TLP

The TLP mine lies about 11 km east–southeast of SGX.

The TLP mine consists of four production / exploration systems, with production levels spaced at 50 m intervals. The production and exploration system design includes:

·One adit production system (6 adits) above 800 mRL to 1070 mRL.
·One adit production system with internal blind shaft and inclined rail haulageway at 740 mRL;
¾A new ramp of 3,000 m under development from 740 mRL to 610 mRL.
·One adit production system with inclined rail haulageway at 820 mRL.
·A proposed shaft extension from an elevation of 890 mRL to -65 mRL, which is anticipated to be completed by 2026.
·Ramp production and exploration system, which includes one main ramp, two branch ramps, one new ramp, and some connection ramps:
¾The main ramp of 3,600 m length from 840 mRL to 510 mRL, which was developed in 2020;
¾The south branch exploration incline ramp of 1,820 m from 590 mRL to 700 mRL;
¾The east branch exploration decline ramp of 480 m from 590 mRL to 500 mRL;
¾Connection ramps planned to connect the main ramp to each level of the adit production system.

The mining plan currently shows production occurring through to FY2037 from stopes between 510 mRL and 1,070 mRL and from vein widths generally between 0.3 m and 5.0 m. The mining method by tonnage was about 92% resuing and about 8% shrinkage in FY2024. TLP contributed about 30% of Ying ore tonnes and 24% of Ying silver ounces in FY2024.

16.1.6LME

The LME mine is located just south of the TLP mine and about 12 km from SGX.

amcconsultants.com204
NI 43-101 Technical Report Update on the Ying Ag-Pb-Zn Property in Henan Province, People's Republic of China
 
Silvercorp Metals Inc.0723067

The LME mine has two production / exploration systems, with production levels spaced at 50 m intervals. The system design includes:

·One adit production and exploration system with internal blind shaft from 900 mRL to 500 mRL, and inclined rail haulageway from 500 mRL to 400 mRL.
·The ramp production system, which includes one main ramp with two branch ramps:
¾The main ramp of 1,960 m from 854 mRL to 700 mRL connects to the TLP south branch incline ramp; this ramp was developed to 750 mRL in 2023 and is anticipated to be completed in 2024.

The mining method by tonnage was almost 100% resuing in FY2024. LME contributed about 3% of Ying ore tonnes and 3% of Ying silver ounces in FY2024. The mining plan currently shows production occurring through to FY2036.

16.1.7LMW

The LMW mine is located just south of the TLP mine and about 12 km from SGX. It is divided into four production / exploration systems, with production levels spaced at 50 m intervals. The system design includes:

·Shaft production and exploration system, with a shaft to hoist from surface to 500 mRL.
·Adit system consisting of one adit and two inclined rail haulageways from surface to 800 mRL.
·Ramp production system composed of two ramps, located at the east and west sides of the mine; and with connection ramps:
¾PD980_XPD ramp of 4,000 m for exploration and production from 980 mRL to 500 mRL, located at the east side of the mine.
¾Connection ramps planned to connect the main ramp to each level of the adit production system.
·PD930_XPD ramp of 2,500 m from 938 mRL to 700 mRL (by the end of 2023, this ramp was developed to 800 mRL and is planned to be completed in 2024):
¾Connection ramps planned to connect the main ramp to each level of the adit production system.

The mining method by tonnage was about 75% resuing in FY2024. LMW contributed approximately 12% of Ying ore tonnes and 13% of Ying silver ounces in FY2024. The mining plan currently shows production occurring through to FY2036.

16.1.8DCG

The DCG mine is located around 2.7 km north-west of the TLP mine. The access for DCG is via a ramp from 900 mRL to 796 mRL. The length of the ramp is 1,768 m. The mining method by tonnage was about 74% resuing in FY2024. DCG contributed approximately 1% of Ying ore tonnes and 0.3% of Ying silver ounces in FY2024. Production through to FY2028 is shown in the current mine plan.

amcconsultants.com205
NI 43-101 Technical Report Update on the Ying Ag-Pb-Zn Property in Henan Province, People's Republic of China
 
Silvercorp Metals Inc.0723067
16.2Mining methods and mine design
16.2.1Geotechnical and hydrogeological considerations

No specific geotechnical or hydrogeological study data are available for the Ying mines. In general, ground conditions experienced to date have been good. The excavation of relatively small openings, both in development and stoping, facilitates ground stability. A large number of resuing mining stopes also means a greater number of smaller rather than larger openings. Support is only installed where deemed to be necessary, with rockbolts being used for hangingwall support on occasion. Timber and steel I-beams are also used where unstable ground is encountered.

The QP is not aware that water in-flow to date at the Ying mines has created any significant problems. Section 16.2.9 discusses mine dewatering.

16.2.2Development and access

The mines in the Ying District are sited in narrow valleys and were developed with a series of adits at each mine providing access from the surface to the mining areas. Several main ramps have also been developed at the Ying mines, as referenced above and further described below. Most of the operational levels do not have their own access portal and must connect to ramps, internal shafts, or inclined rail haulageways. A major ramp development program is now underway at the Ying mines, with the intention of connecting most stopes to the individual mine ramp system and, thereby, increasing ore and waste movement capacity with reduced transport times, and allowing much easier and quicker stope access for operating personnel and supervision.

In summary, mine access for rock transportation, materials supply, and personnel is provided by five different means and, in combination, they form the access systems for the Ying District mines:

·Adits and portals
·Inclined rail haulageways
·Decline accesses (ramps)
·Internal shafts (winzes)
·Shafts

Adits are driven at a slight incline at dimensions of approximately 2.4 m x 2.4 m with arch profile. These are the principal means of access for men and materials and transport of ore and waste. All services such as electrical, compressed air, drill water, and dewatering lines are sited in the adits. In many instances, the adits are also used for delivery and removal of fresh or return air. Most of the adits are equipped with narrow gauge rail for transport by railcars. Where there is no rail and no ramp access, tricycle cars have been utilized for transport of ore, waste, and supplies.

Inclined rail haulageways have been driven at approximately 25° to 30°. Typical dimensions are 2.6 m wide x 2.4 m high. They are equipped with narrow gauge rail and steps on one side for foot travel. The main purpose of these drives is haulage of ore and waste, and delivery of ventilation and other services such as water, compressed air, communications, and electricity. The QP notes that more ramps are planned for future operations, which will preclude development of further inclined rail haulageways.

amcconsultants.com206
NI 43-101 Technical Report Update on the Ying Ag-Pb-Zn Property in Henan Province, People's Republic of China
 
Silvercorp Metals Inc.0723067

Ramps have been developed in each of the Ying mines. The ramps can be separated into three different types, governed by dimensions:

·‘Large’ ramps at SGX, TLP, LMW, and HPG are 4.2 m wide by 3.8 m high with an arch profile at a 12% grade and using 30 tonne haulage trucks for transportation of ore and waste. These ramps are:
¾At SGX mine, the SGX_XPD Ramp starts at 560 m elevation and bottoms at 55 m elevation. The total developed length is just over 6.3 km;
¾At TLP mine, the PD820_XPD Ramp starts at 840 m elevation and bottoms at 510 m elevation. The total developed length is 3.6 km;
¾At LMW mine, the PD980_XPD Ramp starts at 980 m elevation and bottoms at 500 m elevation. The total developed length is 4 km.
·‘Medium’ ramps at SGX, HPG, HZG, LMW, LME, and DCG are 3.6 m wide by 3.4 m high with an arch profile at a 12% grade and using 15 tonne haulage trucks for transportation of ore and waste. These ramps are:
¾At SGX mine, the CM108_XPD Ramp starts at 700 m elevation and bottoms at 680 m elevation. This ramp started development at the end of 2023;
¾At HPG mine, the PD600_XPD Ramp starts at 600 m elevation and bottoms at 340 m elevation. This ramp is still under development and, by the end of 2023, had reached 440 m elevation, with a length of 2 km;
¾At HPG mine, the PD5_XPD Ramp starts at 770 m elevation and bottoms at 660 m elevation. This ramp started development at the end of 2023;
¾At HZG mine, the PD718_XPD Ramp starts at 718 m elevation and bottoms at 350 m elevation. This ramp is still under development and, by the end of 2023, had reached 400 m elevation, with a length of 4 km;
¾At HZG mine, the PD788_XPD Ramp starts at 800 m elevation and bottoms at 715 m elevation. This ramp is planned to be developed in 2024;
¾At LMW mine, PD930_XPD Ramp starts at 930 m elevation and bottoms at 735 m elevation. This ramp is still under development and, by the end of 2023, had reached 800 m elevation, with a length of 1.2 km;
¾At LME mine, PD856_XPD Ramp starts at 856 m elevation and bottoms at 700 m elevation. By the end of 2023, this ramp was developed to 750 m elevation, with a length of 1.1 km;
¾At DCG mine, access is via a ramp that extends from 915 mRL to 796 mRL. The length of the ramp is 1,768 m.
¾At TLP mine, PD730_XPD Ramp starts at 740 m elevation and bottoms at 664 m elevation with a total length of 1 km. This ramp is still under development and is estimated to be finished at the beginning of 2025.
·‘Small’ ramps at 3.0 m wide by 3.0 m high with an arch profile at a 10% grade and using 5 tonne hauling trucks for transportation of ore and waste. This dimension is used for connection ramps. Each mine has designed the connection ramps from the existing ramps to each production and exploration level to facilitate increasing the production rate and exploration rate, and to enhance the use of mechanized equipment.

Figure 16.2 shows a decline ramp at the SGX mine.

amcconsultants.com207
NI 43-101 Technical Report Update on the Ying Ag-Pb-Zn Property in Henan Province, People's Republic of China
 
Silvercorp Metals Inc.0723067
Figure 16.2 Decline ramp at SGX mine

Source: Silvercorp, 2022.

 

Shaft systems have been or are being established at the Ying mines. They include:

·Existing shafts:
¾As of December 2023, there were 19 internal shafts (winzes) and 11 inclined rail haulageways throughout the Ying Property. The hoisting capacity of each varies from 30,000 tpa to 80,000 tpa (combined ore and waste). Fully-loaded rail cars carrying ore and waste are cage-transported via these hoisting systems; they are also used for moving men and materials.
¾At LMW mine the 969 shaft is from surface 969 mRL to 500 mRL. The finished diameter is 3.5 m and it is equipped with a ZJK-2×125P hoist winch. The total depth of the shaft is 480 m, and the hoisting capacity is 50,000 tpa of combined ore and waste, with a standard cage. This shaft works in tandem with the PD900 winze in the LM East area.
amcconsultants.com208
NI 43-101 Technical Report Update on the Ying Ag-Pb-Zn Property in Henan Province, People's Republic of China
 
Silvercorp Metals Inc.0723067
·Planned shafts:
¾At SGX mine, the planned shaft extends from the surface at 680 mRL to -265 mRL and will have a diameter of 6 m and a JKM-4×6PIII hoisting winch. It will be equipped with a 3.6 m x 1.6 m cage and a 22 m3 skip. The overall depth of the shaft is 945 m, with a hoisting capacity of 1,200,000 tonnes per annum for combined waste and ore. The shaft length encompasses 15 levels from 450 mRL to -190 mRL, with a vertical separation of 50 m between each level. Concurrently, the main ramp will be extended to -190 mRL and will establish connectivity with the shaft system.
¾At TLP mine, the planned shaft spans from the surface at 890 mRL to -65 mRL and will be 5 m in diameter with a JKMD3.25×4ZIII hoisting winch. It will be furnished with a 3.6 m x 1.6 m cage and a 15 m3 skip. The total shaft depth will be 955 m, with a hoisting capacity of 1,000,000 tpa of combined waste and ore. The shaft length encompasses 16 levels from 800 mRL to 0 mRL, with a vertical separation of 50 m between each level. The 800 level will be the unloading level. From 500 level to 0 level, there will be one connection tunnel from the TLP new shaft to LME mining development areas at each level. At 500 level and 350 level, there are connection tunnels from the TLP new shaft to LMW mining development areas.

At SGX, only the adit portals and one ramp connect the mine workings to surface. Inclined rail haulageways and internal shafts provide access to the ore, which is generally located at elevations below the level of portal entrances. Declines and internal shafts are developed for the SGX, LMW, LME, HZG, TLP, and HPG mines. As noted, the inclined rail haulageways will be phased out as the ramps and planned shaft development are completed.

Figure 16.3 is an orthogonal view of the 2024 SGX mine design.  

 

Figure 16.3 SGX mine design

Source: Silvercorp, 2024.

amcconsultants.com209
NI 43-101 Technical Report Update on the Ying Ag-Pb-Zn Property in Henan Province, People's Republic of China
 
Silvercorp Metals Inc.0723067
16.2.3Mining methods

Shrinkage stoping and resue stoping are the predominant mining methods employed at the Ying mines, but with a small amount of room and pillar mining now being employed and some trial longhole stoping also recently undertaken. The LOM plan envisages the continuation of these methods, but with an increasing focus on shrinkage stoping and more mechanized mining.

16.2.3.1Shrinkage stoping

A sill drive is initially driven along the vein at 1.8 m height. For typical shrinkage stopes, the lower part of the vein will be mined at 1.2 m width, while the upper part will be mined at 0.8 m width. An access drive at 2 m wide x 2 m high (conventionally a footwall drive) is also developed parallel to the vein at a stand-off distance of about 6 m. Crosscuts for ore mucking from draw-points are driven between the vein and the strike drives at approximately 5 m spacing. Each stoping block is typically 40 m to 60 m in strike length by 40 m to 50 m in height. Travelway raises that are also used for services are established between the levels at each end of the stope block. Waste packs are built on each void side of the raise as stoping proceeds upwards.

Jacklegs are used to drill a 1.8 – 2.0 m stope lift that is drilled and blasted as inclined up-holes with a forward inclination of 65 – 75° (“half-uppers”). The typical drill pattern has a burden of 0.6 - 0.8 m and spacing of 0.8 – 1.2 m, dependent on vein width. Holes are charged with cartridge explosives and ignited with tape fuse. The powder factor is generally 0.4 – 0.5 kg/t. Stope blasting fills the void below with ore as mining proceeds upwards. The ore swell is mucked from the drawpoints to maintain a stope working height of about 2 m. While mining is underway, only about 30% of the stope ore may be mucked. When mining is complete, all remaining ore is mucked from the stope, unless significant wall dilution occurs. The stope is left empty beneath a sill (crown) pillar of, typically, around 3 m thickness (adopted thickness ultimately dependent on extraction width). Ventilation, compressed air, and water are carried up the travelway raises to the mining horizon. Loading of the ore from the draw-points is by miners into rail cars, either using rocker-shovels or by hand. Figure 16.4 is a view inside the A26 shrinkage stope at the TLP mine. The stope width is about 1.3 m.

amcconsultants.com210
NI 43-101 Technical Report Update on the Ying Ag-Pb-Zn Property in Henan Province, People's Republic of China
 
Silvercorp Metals Inc.0723067
Figure 16.4TLP mine – A26 shrinkage stope

 

Source: AMC, 2024.

 

Figure 16.5 is a schematic of the shrinkage stoping method.

 

amcconsultants.com211
NI 43-101 Technical Report Update on the Ying Ag-Pb-Zn Property in Henan Province, People's Republic of China
 
Silvercorp Metals Inc.0723067

 

Figure 16.5Shrinkage stoping method

Source: Silvercorp, 2024.

 

16.2.3.2Resue stoping

Resue stoping veins are typically high-grade and generally between 0.1 m (minimum extraction 0.3 m) and 0.80 m width. Resue stoping involves separately blasting and mucking the vein and adjoining waste to achieve a minimum stope mining width.

Vein and access development preparation is essentially the same as for shrinkage stoping, other than draw points being established at approximately 15 m spacing along strike. Blasted ore is mucked into steel-lined mill holes that are carried up with the stope and feed to the draw points. The base of the mill holes is held in place with a timber set.

Half-upper lifts are drilled with jacklegs and blasted in essentially the same manner as for shrinkage stoping. Typically, after a lift in the vein is blasted and mucked, the footwall is blasted and the ensuing waste is used to fill the space mined out and to provide a working floor. This process is repeated until the stope sill (crown) pillar is reached. The entire stope is left filled with waste from the slashing of the footwall.

amcconsultants.com212
NI 43-101 Technical Report Update on the Ying Ag-Pb-Zn Property in Henan Province, People's Republic of China
 
Silvercorp Metals Inc.0723067

The blasted ore is transported by wheelbarrow and / or hand shoveled to the mill hole, which is extended in lift segments as the stope is mined upwards. The footwall waste is slashed (blasted) to maintain a minimum mining width (typically 0.8 m).

The order of vein extraction and footwall slashing is generally dependent on the condition of the vein hangingwall contact. Where the contact is distinct and stable, the vein is extracted first; otherwise, the footwall waste is extracted first, followed by vein slashing.

Figure 16.6 is a view of the 12A resuing stope at the SGX mine.

Figure 16.6SGX mine – 12A resuing stope

Source: AMC, 2024.

 

Rubber mats and/or belting are placed on top of the waste after each waste lift to minimize blasted ore intermingling with the waste (ore losses) and also to minimize over-mucking of the waste (dilution). The rubber mats and/or belting are rolled up and removed prior to the next waste slash, with that slashed waste material forming the floor for the next extraction lift.

amcconsultants.com213
NI 43-101 Technical Report Update on the Ying Ag-Pb-Zn Property in Henan Province, People's Republic of China
 
Silvercorp Metals Inc.0723067

Figure 16.7 is a schematic of the resue stoping method.

Figure 16.7Resue stoping method

Source: Silvercorp, 2024.

 

16.2.3.3Step room and pillar mining method

Room and pillar stoping is now typically used at the Property for several high-grade Au veins, which are generally between 0.8 m and 2.0 m in thickness, with dip angles around 15° to 30°. A footwall drift is driven along the vein at 2.0 m high. Two initial crosscuts at about 2 m wide x 2 m high are driven up-dip to a top sill location. The distance between the two crosscuts is typically 30 m to 35 m. The top sill is developed after the two crosscuts are finished and is driven along the vein strike. The excavating method advances from the footwall drift to the top sill, with mucking of the higher-ore via the crosscuts to an ore pass below the footwall drift. The stope area is divided into several standard blocks along the trend of the ore vein, with each block measuring 50 m along strike and 50 m on dip, divided into two 25 m sub-levels, with a 3 m crown pillar for each sub-level. During the mining process, additional crosscuts are driven on about 10 m centres. Where possible, lower mineral grade areas are left as pillars with, as required to allow extraction of higher grade mineralization but to maintain the pillar / void design, concrete pillars installed with dimensions of about 2.5 by 2.5 m.

Jacklegs are used to drill a 1.8 – 2.0 m stope advance. The typical drill pattern has a burden of 0.6 - 0.8 m and spacing of 0.8 – 1.2 m, dependent on vein thickness. Holes are charged with cartridge explosives and ignited with tape fuse. The powder factor is generally 0.4 – 0.5 kg/t.

amcconsultants.com214
NI 43-101 Technical Report Update on the Ying Ag-Pb-Zn Property in Henan Province, People's Republic of China
 
Silvercorp Metals Inc.0723067

Opposite to the stoping direction and adjacent to the bottom sill, a room is excavated in which an electric slusher winch is installed. The slusher (or rake) is used for mucking the ore swell from the stope to the footwall drift.

Figure 16.8 is an up-dip view of the LM50 room and pillar stope at the LMW mine.

Figure 16.8LMW mine – LM50 room and pillar stope

Source: AMC, 2024.

amcconsultants.com215
NI 43-101 Technical Report Update on the Ying Ag-Pb-Zn Property in Henan Province, People's Republic of China
 
Silvercorp Metals Inc.0723067

Figure 16.9 is a representative view of the room and pillar stoping method.

Figure 16.9Room and pillar mining method

Source: Silvercorp, 2024.

 

16.2.3.4Longhole mining

A trial of uppers longhole stoping has been undertaken in the HPG B8 stope. Further longhole stoping is planned for the LM7 stope at the LMW mine. Figure 16.10 shows a 1-yd LHD adjacent to the HPG B8 stope.

The longhole mining method has been planned to be generally used for low-grade and wide veins, typically between 4 m and 9 m thick and with dip angles around 55° to 70°. A stoping block is designed at 40 m to 60 m in length and 15 m to 20 m in height. The typical 50 m distance between levels is reduced to 20 m via ramp access for hauling ore and material transporting. The top sill is driven along the vein at an initial height of 2.4 m. From the ramp access at the bottom of the stope, the bottom sill is driven along the vein at the same 2.4 m height. A footwall access drive at 2.6 m wide x 2.4 m high is developed parallel to the bottom sill at a stand-off distance of about 8 m, with crosscuts connecting the two drives at typical intervals of 8 m to 10 m.

Top Hammer Drills are used to drill a 0.75 x 0.75 m vertical drop raise. The drilling direction is upward, from the bottom sill to the top sill. Production drilling is done on a single dip plane, perpendicular to the vein strike. For production drilling, the top spacing of drilling holes ranges from 1.8 m to 2.3 m, and collar spacing of drilling holes ranges from 0.1 m to 0.4 m, depending on rock conditions. The spacing of each plane is 1.5 m to 2 m, determined by rock conditions. The backfill method for this mining method at LMW is consolidated fill from the filling plant. Waste rock from development is also used as backfill material. The longhole method involves mucking using load haul dump machines (LHDs) and loading haul trucks at a load chamber located between the ramp and footwall drift.

amcconsultants.com216
NI 43-101 Technical Report Update on the Ying Ag-Pb-Zn Property in Henan Province, People's Republic of China
 
Silvercorp Metals Inc.0723067
Figure 16.101-yd LHD at HPG B8 stope

Source: AMC, 2024.

 

16.2.3.5Stope management and grade control

Silvercorp has developed a stope management protocol and stope management manual at the Ying operations. The purpose of stope management is to implement stope operation procedures for dilution reduction via the Mining Quality Control Department. The department has a total of nine technical staff, including management, mine engineers, geologists, and technicians, and reports directly to Silvercorp’s HQ in Beijing. The mine engineers in the group are responsible for supervising the stope operation procedure, with stope inspection occurring at least once per day to check that mine contractors are following procedure guidelines. The geologists and geological technicians are responsible for stope geological mapping and sampling, which occurs every 3 – 5 m of stope lift in resuing and shrinkage stopes and at proportionate intervals in room and pillar stopes. The department also measures the mined area of a stope at the end of each month for mine contract payment purposes.

amcconsultants.com217
NI 43-101 Technical Report Update on the Ying Ag-Pb-Zn Property in Henan Province, People's Republic of China
 
Silvercorp Metals Inc.0723067

Key aspects of the resuing and shrinkage stope inspection are as follows:

·Ensuring that the back and floor of the stope are flat prior to drilling blasting holes.
·Checking to ensure the boundary of the mineralization and drillhole locations are correctly marked with red paint before drilling.
·Ensuring drillholes are inclined not less than 60° to the horizontal, are not longer than 2 m, and are drilled optimally relative to vein and excavation width to minimize dilution.
·Checking length, orientation, direction, location, slope gradient, and number of blast holes after drilling blastholes.
·In a resuing stope, checking if the stope floor is covered with rubber mat / belt before vein blasting.
·In a resuing stope, checking to make sure that waste is sorted first and left in the stope before mucking ore to the mill holes after blasting; also ensuring that the floor and walls are cleaned with a broom to minimize ore losses before footwall slashing.
·After blasting, checking that the stope back is not more than 3.5 m high and the steel mill holes in a resue stope are properly covered with timbers.

Regarding contract payments, a mine contractor is paid based on the quantity of ore mined. As it may be seen as an incentive for the contractor to maximize material removed from the stope, contractor payments are governed by a specific formula that calculates planned ore tonnes based on extraction to design and a planned dilution factor. During mine operations, each rail car or truck load of ore is weighed at a weigh station outside the mine portals. If weighed ore tonnes are greater than planned ore tonnes from a given stoping area, the mine contractor is paid solely based on the planned tonnes. For shrinkage stopes, an adjustment for paid tonnes is required to be made, since a stope usually takes several months to complete and, generally, only blast swell is mucked until the stope nears completion.

16.2.4Ore and waste haulage

As described above, stoping ore and development waste have been typically loaded by hand or rocker shovel into 0.75 m3 rail cars. Increasingly, LHDs and haulage trucks are being used for the same purpose. See Section 16.4 for a description of the haul vehicle rock type, weight, and source tracking process. In the case of rail cars, each is tagged to identify the location from which the ore or waste has been mined. Typically, the cars have been pushed by hand or by loco along the rail on the production level to the bottom of an inclined rail haulageway, where they are hoisted to the next level. If this level is the adit level, the cars are parked until sufficient numbers have been accumulated to form a train for the locomotive to bring to the portal. The dimensions of the adits and rail inclined haulageways are referenced above. Where hoisting is via internal shafts (winzes), these shafts are used in the same manner as the rail inclined haulageways. Rail cars are pushed onto the cage for transport to the next level. Only one internal shaft at SGX is equipped with a skip to hoist waste.

As the mines move towards a greater use of more mechanized mining equipment, for the loading phase:

·Ore from stopes is loaded using vibration feeder, wheel mucking loader, LHD loader, or electric harrow into 0.75 m3 rail cars, 3-tonne mini trucks, or 5-tonne small trucks, depending on the development dimensions.
·Waste from development faces is loaded using wheel mucking loader, wheel mounted mucker, or LHD loader into 0.75 m3 rail cars, 3-tonne mini trucks, or 5-tonne small trucks, depending on the development dimensions.
amcconsultants.com218
NI 43-101 Technical Report Update on the Ying Ag-Pb-Zn Property in Henan Province, People's Republic of China
 
Silvercorp Metals Inc.0723067

For the hauling phase:

·The shaft and rail inclined haulageway systems will continue to transport ore or waste from the workface to the surface via 0.75 m3 rail cars.
·The ramp hauling system involves 0.75 m3 rail cars, LHDs, or 3-tonne mini trucks transporting ore or waste from the workface to the orepass or the loading chamber at each level, with larger trucks then completing the transport to surface (the size of the trucks generally based on the dimensions of the ramp).

Figure 16.11 shows a typical Ying loco with rail cars.

Figure 16.11 Ying loco and rail cars

Source: AMC, 2016.

 

16.2.5Equipment
16.2.5.1Mine equipment

Most of the key mining equipment is provided by Silvercorp and is maintained by contractors. Exceptions to this are the air compressors at small adits such as CM103 and CM102 at the SGX mine, which are provided by the mining contractors. Auxiliary fans, vent bags, low voltage transformers, rocker shovels, submersible pumps, small winches, etc. are provided and maintained by contractors. Ramp development contractors in SGX and LMW also use their own equipment.

amcconsultants.com219
NI 43-101 Technical Report Update on the Ying Ag-Pb-Zn Property in Henan Province, People's Republic of China
 
Silvercorp Metals Inc.0723067

The Silvercorp fixed plant is predominantly domestically manufactured and locally sourced. The equipment manufacturers are well known and commonly used. Table 16.1 and Table 16.2 list equipment at the SGX mine. Equipment at the other mine sites in the Ying district is similar to that at the SGX mine.

Table 16.1       SGX mines current equipment list

 

Mine / camp Equipment Model Capacity Quantities

SGX

  

 

Winch 2JTP-1.6*0.9 95 kW 1
Winch 2JTP-1.6*0.9 132 kW 9
Winch 2JPT-1.6*1.0 132 kW 1
Winch JTP-1.2*1.2 75 kW 1
Winch JTK1.2*1.2 75 kW 1
Primary fan FKCDZ-6-No.20 43.2-103.4 m3/s 2
Cage GLS1/6/1/1   4
Cage GLM1/6/1/1   6
Skip   1.5 m3 1
Shotcreter HPS-5 5 m3/h 2
Shotcreter JG-150 3.5 m3/h 2

 

Table 16.2       SGX mine contractor equipment list

 

Mine Equipment Model Capacity Quantities

SGX Mine

One boom jumbo drill CYTJ45B 55 kW 3
Shovel   168 kW 6
LHD RWJ202   4
Compressor LG132G-8/17 132 kW 3
Compressor GL110A--BLG110G-8JG110LA 110 kW 15
Compressor KLT90-8VDS-120AR90E11-20/8 90 kW 10
Large haul truck FQ3250GD303 40 t 11
Middle haul truck UQ-12 15 t 3
Small haul truck   8 t 0
mini haul truck   3 t 17
Wheel mucking loader     27
Wheel mounted mucker     51
Electric locomotive     33
Manual drill YT28   396
Auxiliary fan FD 2*37 kW 5
Auxiliary fan YBT-11 11 kW 114

 

16.2.5.2Equipment advance rates

Table 16.3 summarizes advance rates assumed for development and production activities.

amcconsultants.com220
NI 43-101 Technical Report Update on the Ying Ag-Pb-Zn Property in Henan Province, People's Republic of China
 
Silvercorp Metals Inc.0723067
Table 16.3Equipment advance rates

 

Development or production activity Rate (m/month) Machine type
Jumbo - Ramp 120 Single boom electric-hydraulic
Jackleg – Levels (Hand Mucking) 50 Jackleg (YT-28)
Jackleg – Levels (Mechanical Mucking) 60 Jackleg (YT-28)
Jackleg - Stope Raises 40 Jackleg (YT-28)
Jackleg – Shaft (Mechanical Mucking) 55 Jackleg (YT-28)
Jackleg – Declines (Mechanical Mucking)

60

Jackleg (YT-28)

Raise Boring – Shaft (Mechanical Mucking) 100 ZFY1.8-40-250 (LM-180)

 

16.2.6Personnel

Silvercorp operates the Ying mines mainly using contractors for mine development, production, ore transportation, and exploration. The mill plant and surface workshops are operated and maintained using Silvercorp personnel. Silvercorp provides its own management, technical services, and supervisory staff to manage the mine operations.

Each mine complex is run by a mine manager and one or two deputy mine managers.

Table 16.4, Table 16.5, and Table 16.6 provide a recent ‘snapshot’ of the workforce, split by Silvercorp staff, contract workers, and Silvercorp hourly employees.

Table 16.4Silvercorp staff
Mine Staff
SGX 255
HZG 45
HPG 65
TLP / LME 233
LMW / DCG 110
Mill Plant 254
Company Administration 158
Total 1,120

 

amcconsultants.com221
NI 43-101 Technical Report Update on the Ying Ag-Pb-Zn Property in Henan Province, People's Republic of China
 
Silvercorp Metals Inc.0723067

 

Table 16.5List of contract workers in the Ying district

Mine Contractors Workers Location

SGX

Shaanxi Tunnelling Construction Engineering Ltd. 255 CM101, PD700
Shaanxi Tunnelling Construction Engineering Ltd. 295 PD16, SGX_XPD
Shaanxi Tunnelling Construction Engineering Ltd. 232 CM105
Luoyang Xinsheng Mining Engineering Ltd. 94 CM102
Ankang Hongkun Engineering Construction Ltd. 9 CM108_XPD
Subtotal 885  

HZG

Luoyang Xinsheng Mining Engineering Ltd. 110 HZG_XPD
Shaanxi Tunnelling Construction Engineering Ltd. 0 PD780_XPD
Shaanxi Tunnelling Construction Engineering Ltd. 100 PD820, PD810, PD890
Subtotal 210  

HPG

Luoyang Xinsheng Mining Engineering Ltd. 99 PD2
Henan Xinmao Mining Engineering Co., Ltd 8 PD5_XPD
Luoyang Xinsheng Mining Engineering Ltd. 139 PD3, PD600_XPD
Subtotal 246  
LME Luoyang Xinsheng Mining Engineering Ltd. 149 PD900, PD838
Subtotal 149  

LMW

Luoyang Xinsheng Mining Engineering Ltd. 126 PD924, SJ969
Luoyang Xinsheng Mining Engineering Ltd. 13 PD930_XPD
Luoyang Xinsheng Mining Engineering Ltd. 214 PD980_XPD
Subtotal 353  

TLP

Luoyang Xinsheng Mining Engineering Ltd. 158 PD820, PD846
Luoyang Xinsheng Mining Engineering Ltd. 105 PD800, PD840, PD890
Luoyang Xinsheng Mining Engineering Ltd. 228 PD730, PD930, PD960, PD990
Luoyang Xinsheng Mining Engineering Ltd. 140 PD820_XPD
Subtotal 631  
DCG Luoyang Xinsheng Mining Engineering Ltd. 23 DCG XPD
Subtotal 23  
Total   2,497  

 

Table 16.6Silvercorp hourly workers

 

Mine Workers Location
SGX 32 SGX Hand picking, waste sorting
HZG 4 HZG Hand picking, waste sorting
HPG 5 HPG Hand picking, waste sorting
LME 4 LME Hand picking, waste sorting
LMW 8 LMW Hand picking, waste sorting
TLP 14 TLP Hand picking, waste sorting
Total 67  
amcconsultants.com222
NI 43-101 Technical Report Update on the Ying Ag-Pb-Zn Property in Henan Province, People's Republic of China
 
Silvercorp Metals Inc.0723067
16.2.7Ventilation

Mine ventilation at the Ying mines is planned and set up to be in accordance with Chinese laws and regulations. Among the key ventilation requirements are: minimum ventilation volume per person (4 m3/min/person), minimum ventilation velocity (typically 0.25 - 0.50 m/sec dependent on location or activity), and minimum diluting volume for diesel emissions (4 m3/min/kW). The following section describes the ventilation system at SGX. Other mines have a similar network of fans, entries, and face ventilation.

 

16.2.7.1SGX primary ventilation

The SGX primary ventilation volume is predominantly influenced by the minimum air velocity for the various development and production activities. The peak ventilation volume is estimated to be 63.6 m3/sec, which is inclusive of 15% air leakage.

A diagonal ventilation system is utilized in the SGX mine.

West Wing (Vein S14, S6, S2 Stopes): Fresh air enters 300 mRL, 260 mRL, 210 mRL, 160 mRL, and 110 mRL from adit PD16 via No.2 internal shaft and CM105 via No.1 internal shaft. Exhaust air returns to the 640 adit via 450 mRL, exploration line 70 – 72 internal shaft, and ventilation raises, and then is exhausted to surface by a main axial fan.

East Wing (Vein S16W, S7, S8, S21 Stopes): Fresh air enters 400 mRL, 350 mRL, 300 mRL, and 260 mRL from adit CM101 via No.3 internal shaft, and CM105 via No.1 internal shaft. Exhaust air: part returns to the 650 adit via 450 mRL, exploration line 70 – 72 internal shaft, and ventilation raises, and then is exhausted to surface by a main axial fan, which is located at PD650 entrance; the remainder of the exhaust air returns to the 680 adit via 490 mRL and ventilation raises, and then is exhausted to surface by a main axial fan.

The PD700 adit uses a separate ventilation system: fresh air enters 570 mRL and 530 mRL from adit PD700 via the inclined haulageway and internal shaft. Exhaust air returns to the CM108 adit via 640 mRL and ventilation raises, and then is exhausted to surface by a main axial fan.

One 75 kilowatt (kW) axial ventilation fan is installed in the entrance of PD 650 adit. One 22 kW axial ventilation fan is installed in the entrance of PD 680 adit. One 22 kW axial ventilation fan is installed in the entrance of CM108 adit. All these fans have spare motors for back-up.

Figure 16.12 shows ventilation system diagrams for the SGX mine.

amcconsultants.com223
NI 43-101 Technical Report Update on the Ying Ag-Pb-Zn Property in Henan Province, People's Republic of China
 
Silvercorp Metals Inc.0723067
Figure 16.12 SGX ventilation system diagrams

 

 

Source: Silvercorp, 2024.

 

16.2.7.2Secondary ventilation

The secondary ventilation system consists of auxiliary fans for ventilating production faces, development faces, and infrastructure chambers.

amcconsultants.com224
NI 43-101 Technical Report Update on the Ying Ag-Pb-Zn Property in Henan Province, People's Republic of China
 
Silvercorp Metals Inc.0723067

Development faces are ventilated using domestically manufactured fans (5.5 to 11 kW – 380 V). A combination of forced and exhaust ventilation is applied for long distance blind-headings.

Resuing and shrinkage stopes are force ventilated using domestically manufactured fans via the timber-cribbed access. The stope air returns to the upper level via a raise.

16.2.8Backfill

Backfill such as tailings or development waste is typically not required for shrinkage mining, where blasted ore provides a working platform for each stope lift. The ore is removed on completion of stope mining leaving an empty void. The potential to opportunistically dispose of development waste into these voids is not currently considered in mine plans; however, at SGX, where there will be an increased number of shrinkage stopes, Silvercorp has planned to construct a new backfill plant in 2024 for backfilling of stopes with poorer rock stability and to provide additional safety benefits.

The resue stoping method uses blasted waste from the footwall (to achieve the minimum mining width) as the working platform for each stope lift. The waste remains in the stope at completion of stope mining. For some stopes, where the rock mass of footwall and hangingwall is less stable and the width of vein is over 0.8 m, upper-level development waste rock may be used for filling of stope voids.

As an addition to an overall mining optimization and mechanization initiative, a surface paste backfill plant was established and commissioned at the LMW site at 1080 m elevation in early 2023, with two lines to underground. For certain areas, this provides more mining method options, backfill efficiency with reduced labour involvement, and the opportunity for reduced use of ore pillars and thus increased ore recovery. Figure 16.13 shows the control room at the LMW backfill plant.

The LMW mine backfilling system consists of several sub-systems including filter mud delivery, small-size stone (gravel), high speed flexible mixer, water addition, backfill control, cement supply, pipeline conveying, water supply, and power supply. The plant has a capacity of 40 m3/hr and the targeted concentration of the backfill is approximately 69 – 72% solids. The prepared backfilling slurry is pumped from surface at the 1080 m horizon to the underground transportation development at the 800 m Level via one of the two 114 mm pipelines, and then delivered to various underground shrinkage stope voids as needed via one 114 mm pipeline. Following the establishment of the backfill plant, Silvercorp experimented with a new mining method in the LMW mine, whereby cut and fill mining replaced the resue mining method in a stope where the width was greater than 1 m. This successful experiment led Silvercorp to decide to use open stoping with paste backfill in the LM7 vein area, where the thickness of the LM7 vein is greater than 2 m.

amcconsultants.com225
NI 43-101 Technical Report Update on the Ying Ag-Pb-Zn Property in Henan Province, People's Republic of China
 
Silvercorp Metals Inc.0723067
Figure 16.13 LMW paste backfill plant control room

 

Source: AMC, 2024.

 

16.2.9Dewatering

Mine dewatering is accomplished under the requirement from the “Chinese Safety Regulations of Metal and Non-metal Mines”.

Typical underground water flow from the different mines is listed in Table 16.7 below.

Table 16.7Mine water flow

Mine Maximum water flow (m3/day) Average water flow (m3/day)
SGX 4,600 3,300
HZG 580 290
HPG 1,900 1,100
TLP 1,100 700
LME 800 640
LMW 500 330
DCG 240 80

amcconsultants.com226
NI 43-101 Technical Report Update on the Ying Ag-Pb-Zn Property in Henan Province, People's Republic of China
 
Silvercorp Metals Inc.0723067

The SGX dewatering system is described in some detail below. The dewatering systems at the HZG, HPG, TLP, LME, and LMW mines are similar to those at SGX. These systems are briefly described also.

16.2.9.1SGX dewatering

The pumping system is a dirty water arrangement with a sump and three pumps at each main location. In normal circumstances, one pump is running, one is being maintained, and one is on standby. Under conditions of maximum water inflow, all available pumps can be operated, except for pumps that are being maintained. If all pumps operate, they can handle the maximum estimated inflow rate. There are two main pipelines to surface, one of which is on standby. The underground sump capacity is 6 – 8 hours at the average water yield.

Stage 1 dewatering

Pump stations equipped with three or more pumps connected directly to surface are located at the bottom of internal shafts. Table 16.8 lists such pumps at SGX.

 

Table 16.8 Stage 1 water pumps at SGX mine

 

Portal Model Units Power (kW) Flow (m3/h) Lift (m)
CM101 MD85-45×9 3 160 85 405
MD46-50×9 1 110 46 450
CM105-S1# MD155-67×6 3 280 155 402
MD155-67×6P 1 280 155 402
CM105-S2# MD155-67×6 3 280 155 402
MD155-67×5 1 220 155 335
PD16 MD46-50×8 3 90 46 400
PD700 MD46-50×7 3 75 46 350
CM105 Skip shaft MD155-67*6 3 280 155 402
CM102 MD46-50×5 1 55 46 250
MD25-50*5 1 37 25 250
XPD MD46-50×6 1 75 46 300
MD25-50×8 1 75 25 400

 

Stage 2 dewatering

Mining level accesses have been designed with a 0.3% gradient to allow for drainage. The pump and piping arrangements are similar to Stage 1. The inflow collected from various mining levels is then pumped to the 260 m elevation; from here it is pumped to surface through the first stage dewatering system. Table 16.9 lists the details of the SGX second stage pumping system.

Table 16.9 Second stage water pumps at SGX mine

 

Pump station Units Model Power (kW) Flow (m3/h) Lift (m)
CM101 4 MD155-67×6P 280 155 402
CM105-S1 3 MD155-67×5 220 155 335
1 MD155-67×5P 220 155 335
CM105-S2 3 MD155-67×5 220 155 335
1 MD155-67×5P 220 155 335
PD16 3 MD46-50×6 75 46 300
amcconsultants.com227
NI 43-101 Technical Report Update on the Ying Ag-Pb-Zn Property in Henan Province, People's Republic of China
 
Silvercorp Metals Inc.0723067

In case of a flood and for protection of personnel and equipment, water dams are set up at the entrance to shaft stations and pump houses.

Development face dewatering

Conventional electric submersible pumps are used for development ramp and decline face dewatering on an as-needed basis. Water is stage discharged to the nearest level pump station.

16.2.9.2HZG dewatering

HZG dewatering is divided into two stages: the first stage is from 450 mRL to 650 mRL, the second stage is from 650 mRL to 820 mRL. The first stage utilizes one 75 kW MD46-50×5 and two 55 kW MD46-50×5 centrifugal pumps. For the second stage, three 55 kW MD46-50×5 centrifugal pumps are located at the pump station in a similar set-up to SGX.

16.2.9.3HPG dewatering

PD3 dewatering is divided into two stages: the first is from 50 mRL to 460 mRL, and the second is from 460 mRL to PD3 (600 m) adit level. The sumps at both 300 mRL and 460 mRL have a capacity of 300 m3. For the first stage, there are three centrifugal pumps: model D85-45X4 with power draw 75 kW. For the second stage, there are three of the same model centrifugal pumps. Two 159 mm pipelines installed in inclined rail haulageways take the water to surface, with one line on standby.

16.2.9.4TLP dewatering

The underground dewatering system at TLP is separated into two areas, East side and West side. For the West side of TLP (PD730, PD840, PD890, PD930, PD960, PD990), water discharge is currently from the 700 m level to the 730 m level, and then via the PD730 adit to surface. There are four centrifugal pumps installed in Line 31 internal shaft at 510 mRL bottom pump station. The pump model is MD46-50×4, head is 200 m, designed discharge capacity is 46 m3/h, and power is 45 kW. Two 89 mm pipelines installed along Line 31 internal shaft are connected to surface via 650 mRL, Line 33 internal shaft, PD770 inclined haulageway, and PD 770 adit. For the East side of TLP (PD820, ramp), water discharge is currently from the 700 m level to the 840 m level, and then via the PD820_XPD to surface. There are three centrifugal pumps – model MD25-50×4 with power draw 30 kW – and two 89 mm pipelines installed in an inclined haulageway for taking the water to surface.

 

16.2.9.5LME dewatering

At LME, three 110 kW MD46-50x8 centrifugal water pumps are installed at the 500 mRL pump station in the PD900 internal shaft. There are two 140 mm pipelines installed in the PD900 internal shaft, which are then routed via PD838 adit to surface.

16.2.9.6LMW dewatering

Three centrifugal pumps (model MD46-50×8), with a combined power draw of 90 kW, are installed in the 969 shaft, 500 mRL bottom pump station. There are two 140 mm pipelines installed in the 969 shaft, which are then routed via PD924 adit to surface.

amcconsultants.com228
NI 43-101 Technical Report Update on the Ying Ag-Pb-Zn Property in Henan Province, People's Republic of China
 
Silvercorp Metals Inc.0723067
16.2.9.7DCG dewatering

The working face at DCG mine has less water, requiring the use of a small water pump for underground production dewatering.

16.2.10Water supply

In 2023, the Ying operation received confirmation of government permission to use water from nearby creeks and springs.

The water source for the SGX, HZG, HPG, TLP, LME, LMW, and DCG mines is from nearby creeks and springs and underground sources. A water pond of typical 100 to 200 m3 capacity is established at each production system. Both the water quality and quantity from local creeks is sufficient to meet mine requirements, dust suppression, fire-prevention, and live water.

SGX requirements are estimated at 650 m3/d. There are two 200 m3 water ponds at CM105 and CM101 on surface, and each additional adit portal has a small size sump. Water supply is via 108 mm diameter pipelines.

HZG requirements are estimated at 200 m3/d. There is a water pond of 200 m3 at surface.

HPG requirements are estimated at 260 m3/d. There is a water pond of 200 m3 at the mine site, with water being delivered via a 107 mm diameter pipeline. An additional water pond of 300 m3 was constructed in 2017 for pumping underground water to No.2 Mill. In 2023, SGX and HPG pumped around 750 m3/d of underground water to No.2 Mill.

TLP requirements are estimated at 550 m3/d for drilling and dust suppression. There are two water ponds of 200 m3 at the mine site, with water being delivered via an 89 mm diameter pipeline.

LM requirements are estimated at 150 m3/d for LME and 300 m3/d for LMW. There are two water ponds of 200 m3 at each portal, with water being delivered via 89 mm diameter pipelines for LME and 150 mm diameter pipelines for LMW.

DCG requirements are estimated at 50 m3/d. There is a water pond of 200 m3 capacity at the portal.

16.2.11Power supply

Power for the SGX mine is supplied from the local government network by three lines. One is a 35 kilovolts (kV) high-voltage line that is connected from Luoning Guxian 110 kV substation; the second is a 10 kV high-voltage line that is connected from Luoning Guxian 35 kV substation. The power source is hydropower, generated at the Guxian Reservoir Dam, and the length of overhead power lines is about 8 km. The third network supply is a 10 kV high-voltage line from the Luoning-Chongyang 35 kV substation, about 12 km from SGX.

A fully automated 35 kV substation in the immediate vicinity of the mine site was built in 2008. The capacity of the main transformers is 6,300 kilovolt-amperes (kVA).

The 35 kV overhead line can supply main power for all mine production; the 10 kV overhead line is maintained as a standby. Two 1,500 kW and one 1,200 kW generators are installed in the fully automated 35 kV substation as a back-up supply for the CM101, CM102, CM103, CM105, PD16, and PD700 adits, and XPD decline in the event of a power outage.

Underground water pumping stations and hoist winches belong to the first-class power load, and require two independent 10 kV power lines, one for operation and the other for back-up.

amcconsultants.com229
NI 43-101 Technical Report Update on the Ying Ag-Pb-Zn Property in Henan Province, People's Republic of China
 
Silvercorp Metals Inc.0723067

During normal operation they can maintain stope operation in addition to meeting the requirement of the first-class power load. In case of emergencies, including underground flooding, they are only required to guarantee service of the first-class power load.

The 10 kV distribution power station at TLP mine is designed with two 10 kV power supply lines drawn from the Lianglong Line and Liangdong Line of different bus sections at the Yueliangwan 110 kV substation on the 10 kV side. This 10 kV distribution power station also supplies power to the LME and LME mines.

See also Section 18.3.

16.2.12Compressed air

Compressed air is primarily used for drilling. Jacklegs are used in all stopes and conventional development faces. A minor quantity of air is used for shotcrete application and cleaning blastholes.

Compressor plants are located adjacent to each portal; they are of two-stage, electric piston configuration. Air is reticulated via steel pipes of varying sizes, depending on demand, to all levels and is also directed to emergency refuge stations. Air lines are progressively sized from 159 mm diameter down to 50 mm diameter at the stopes.

Compressed air consumption is estimated for each mine operating system (usually differentiated by adits), based on mine production and number of development faces. Suitable air compressors are installed to satisfy volume requirements.

16.2.12.1 Explosives

Starting June 2022, and referencing the Chinese government's safety regulations, an outside company with hazardous material transportation qualifications began handling the transportation of explosives and detonators for the Ying operations. Special vehicles certified for hazardous material transportation are used for this purpose. Additionally, in line with the safety development plan for the civil explosives industry established by the Chinese government, the Ying operations began procuring electronic detonators in June 2022, thereby improving safety measures related to the use of explosives.

16.2.13Communications

Mine surface communication is available by landline service from China Network Company (CNC) and by mobile phone service from China Mobile (CMCC) and China Unicom.

Key underground locations such as hoist rooms, shaft stations, transportation dispatching rooms, power substations, pump stations, refuge rooms, and the highest point of each level are equipped with telephones. Communication cables to underground are connected via internal shafts and declines. Internal telephones are installed in operating areas and dispatching rooms, which are also connected with communication cables to the local telephone lines.

At the end of 2023, in line with the “GB-16423-2020 Safety Regulations for Metal and Non-metallic Mines” and “Management Measures for Emergency Plans for Production Safety Accidents”, SGX and HZG mine embarked on updating their communication and liaison system, and emergency broadcast system, for their safety production license next period. Other mines will update these two systems in 2024 to prepare for the next period of their safety production licenses. The two systems currently use a private line for power supply, requiring two lines from two different portals to the underground working face; and, based on the telephone system, a new broadcast system is being established to ensure that emergency instructions are communicated to all personnel in the affected area.

amcconsultants.com230
NI 43-101 Technical Report Update on the Ying Ag-Pb-Zn Property in Henan Province, People's Republic of China
 
Silvercorp Metals Inc.0723067

For example, in the SGX mine: The communication and liaison system utilizes two 24-core optical cables connecting two surface portals to HZG mine's two surface portals via an underground route. One line runs from the SGX mine CM105 adit portal to HZG mine PD820 adit portal through the CM105-1 production system, CM 101 production system, and PD820 adit production system. The other line runs from the SGX mine PD16 adit portal to HZG mine PD718_XPD ramp portal through the PD16 production system, CM105-S2SJ production system, and PD718_XPD ramp production system.

For the broadcast system, SGX is establishing a broadcast server and installing microphones and other equipment, as well as related supporting software at each level, based on the original telephone system route.

For updating these two systems, HZG mine will set up similar equipment to SGX mine.

16.3Safety

Ying mine safety is practiced as per Chinese health and safety laws and regulations. The Occupational Health and Safety (OHS) department role is to provide safety training, enforce OHS policies and procedures, make mine safety recommendations, and carry out daily inspections of the underground workings and explosives usage.

The company has formulated safety production responsibility regulations, safety production rules and regulations, and a safety operation handbook, and all work is performed by personnel with operating qualifications.

Each of the mining contractors is required to appoint safety officers at an average ratio of one safety officer to 20 contractor workers for each portal.

A ten-member safety committee is maintained for each of the SGX, HZG, HPG, TLP, LME, LMW, and DCG mines. The committees are led by the Henan Found General Manager and include the Deputy General Manager, Mine Manager, Safety Department Supervisor, and mining contractor representatives. The committees are coordinated by each mine’s safety division, and the mine management and the safety officers are required to have valid mine safety training certificates issued by the Provincial Bureau of Safe Production and Inspection.

In the Ying district, each mine has its own safety department with at least one safety supervisor and four safety engineers, except for DCG, which has one safety supervisor. Insurance policies covering death and injury have been purchased for all company staff and contractor workers in the mines.

The mines and contractors supply Personal Protective Equipment (PPE) to their own personnel.

A contract with the Luoning County General Hospital is in place to take and treat injured workers from all mines, except those only requiring first aid treatment at the mine clinic. During the QP site visit in February 2024, the emergency response warehouse / medical room at the SGX site was inspected.

Since 2022, all tasks in the Ying operation, inclusive of those at the mill plant workshops, have been assessed and standardized for safe production. This assessment includes identifying, evaluating, and classifying potential hazards, as well as developing corresponding control measures. The standardized safety production process has been documented in two updated versions since 2019. Monthly inspections are conducted to assess significant accident hazards. Training materials with illustrations and texts have been developed for frontline employees and internal management personnel, tailored to their specific roles.

amcconsultants.com231
NI 43-101 Technical Report Update on the Ying Ag-Pb-Zn Property in Henan Province, People's Republic of China
 
Silvercorp Metals Inc.0723067

 

The training includes classroom sessions followed by practical on-site guidance. On-site inspection forms are used to assess each task process, and the “Enterprise Blog” (EB) (see below) form is utilized for data collection and reporting. The safety production information management system automatically generates on-site safety inspection work logs for each safety management person by combining the personnel positioning system and on-site inspection form. Company leaders are responsible for daily inspections of identified risk sources and hidden dangers.

Beginning in June 2023, Silvercorp made the decision to swap out the seat belts in winze working areas for double-hook seat belts and provide comprehensive training to front-line workers on how to properly use them.

The QP notes that Silvercorp has gone beyond Chinese statutory requirements in certain areas of safety and the Company has indicated a continuing focus on production procedure safety improvement. The QP has also previously recognized that some operating practices and procedures fall short of more international standards. The QP recommends that Silvercorp continue with a focus of improving mine and site safety and including implementation of a policy where the more stringent of either Chinese or Canadian safety standards is employed.

16.4Development and production quality control

Since the start of 2022, Silvercorp has faced a challenge with labour recruitment, whilst also targeting increased production. In response, the company has chosen to expand the scale of development, enhance the use of mechanized equipment, and facilitate an increase in mine production by adding more shrinkage stopes. The company is also conducting a trial of an XRT ore sorting system.

Silvercorp has also introduced other initiatives aimed at improving the quality of production:

·Using colour card markings to identify the type of rock from the working face: blue means resue stope ore, green means shrinkage stope ore, red means ore from exploration tunnelling, and white means waste rock.
·Integral to the process for ore and waste rock weighing, the weighing person records the weight of the haul vehicle against the card colour / type.
·Geologists are required to check the ore exploration tunnelling work face to identify the type of rock. When the type of rock (e.g. ore) from the exploration tunnelling work face has been identified, the geologist records the advance metres by filling out the “exploration tunnelling work face check-in sheet for identifying type of rock from drift work face” in the EB system (see below). After completing this process, the associated red card (identifying ore in this case) is placed in the haul vehicle.

 

Silvercorp requires the statistician at each mine to upload the mine weighing data to the online system every day.

Since late 2015, Silvercorp has implemented a workplace safety and work quality checklist system to reinforce operations process control. A feature of this initiative is an internal EB system in the management of Mine Production and Safety Information, which the Company implemented in August 2015. The “Enterprise Blog” is an internet social media system that facilitates and makes transparent the distribution and flow of work-related knowledge and information for parties at different locations.

First, all possible risks / hazard sources (potential hazards), risk levels, and control methods in all operating activities, machinery and equipment are identified; then, management processes and formulates corresponding inspection items for different hazards and summarizes them into an "Inspection Form".

amcconsultants.com232
NI 43-101 Technical Report Update on the Ying Ag-Pb-Zn Property in Henan Province, People's Republic of China
 
Silvercorp Metals Inc.0723067

Before each shift, on-site management personnel investigate item by item, enter the inspection results into the "Fact Sheet" system, and upload on-site inspection photos or other attachments. If all the inspection results of the inspection items are satisfied, the operation can be started. If there is a potential safety hazard but it can be eliminated by on-site action, the operation will be started after the hazard is nullified on the site. Personnel cannot start an operation until the safety risks are eliminated and safety is confirmed.

In the system, for example, each of the mining stopes, development faces, or pieces of equipment is assigned a “blog” name. Daily results of on-site inspection for these stopes or faces by responsible engineers are required to be “published” on their “blogs”. The results are listed in a structured data format in a “check-list table”, containing information and supporting photos as required by the Company. Related parties at different levels of the management team can access the daily “blog” directly, for each workplace, for first-hand information. The EB system will also record if a management person has accessed the “blog” to read or comment on the daily results for which that person is responsible. With the EB system, information collection, distribution, retrieval, and monitoring has become transparent and immediate. The information and knowledge collected by the frontline technicians or engineers freely flows through layers of the management structure. The responsible management person has the requirement, incentive, and tools to make prompt and more accurate decisions that can be instantly delivered to responsible parties. From the safety point of view, using the EB system enables personnel to be easily informed about any potentially hazardous conditions, and mine safety inspectors to collect and analyze the current status and history of stopes and development faces. In 2021, the EB system introduced a data visualization function, which shows the data in chart (line chart, pie chart, bar chart, dynamic chart, etc.), and table formats. For the display part, the size and position of chart and table can be self-adaptive, which means computers and mobile phones can view the mining production daily report, mining production monthly report, geological exploration daily report, geological exploration monthly report, milling production daily report, and milling production monthly report. Each mine has individual mining production and geological reports. Further, based on all the data recorded by the fact-finding system, performance appraisal of the work quality of personnel involved in safety production management is carried out to ensure that safety production measures and processes are implemented as required.

In summary, some of the benefits of the EB system are:

·Information collection, distribution, retrieval, and monitoring has become transparent and instant.
·Information and knowledge collected by the frontline technicians or engineers freely flows through the management structure.
·Safety information is readily shared.
·The structured data format allows statistics to be generated for key management info.
·Management has the requirement, incentive, and tools to make prompt and more accurate decisions.
·Collaboration is facilitated, KPI assessments are able to be fair and timely, and each person is accountable for his work.
16.5Production and scheduling
16.5.1Development schedule

Table 16.10 summarizes the LOM development schedule from 1 July 2024 (start of FY2025Q2) for each of the Ying mines and for the entire operation.

amcconsultants.com233
NI 43-101 Technical Report Update on the Ying Ag-Pb-Zn Property in Henan Province, People's Republic of China
 
Silvercorp Metals Inc.0723067

Table16.10Ying Mines LOM development schedule by fiscal year (FY)

 

Mine Categories FY2025* FY2026 FY2027 FY2028 FY2029 FY2030 FY2031 FY2032 FY2033 FY2034 FY2035 FY2036 FY2037 FY2038 Total

SGX

Capital lateral 16,522 23,321 18,704 13,829 11,196 9,472 8,225 7,781 7,386 7,610 7,028 1,855 860   133,789
Capital vertical 916 1,665 4,624 362 385 180 164 60             8,356
Operating lateral 8,383 10,515 10,367 12,817 12,607 12,219 13,205 12,523 11,937 9,636 6,800 4,320 2,619 1,139 129,086
Operating vertical 6,026 6,107 6,594 7,818 7,659 7,144 6,748 7,005 6,342 5,935 4,026 2,673 1,177 650 75,905
Total (m) 31,847 41,608 40,289 34,826 31,847 29,015 28,342 27,369 25,665 23,181 17,854 8,848 4,656 1,789 347,136

HZG

Capital lateral 3,995 4,800 2,906 3,475 1,553 2,130                 18,859
Capital vertical 161 120           281
Operating lateral 817 1,928 2,473 1,084 1,692 237 165 8,396
Operating vertical 427 1,160 1,598 636 1,323 272 138 5,554
Total (m) 5,399 8,008 6,977 5,195 4,568 2,639 303               33,089

HPG

Capital lateral 8,616 3,923 2,850 1,565 1,795 1,205 1,255 1,170             22,379
Capital vertical 211               211
Operating lateral 4,415 7,580 8,046 8,322 7,623 7,142 6,419 6,832 56,379
Operating vertical 744 1,331 1,467 1,688 1,957 2,105 1,864 1,701 12,857
Total (m) 13,985 12,834 12,363 11,575 11,375 10,452 9,538 9,703             91,825

TLP

Capital lateral 7,681 6,648 9,411 8,025 7,770 4,250 3,500 2,820 2,215 1,030 870       54,220
Capital vertical 2,080 2,463 2,690 2,570 1,600 2,110 1,500 1,220 1,100 1,210 750     19,293
Operating lateral 14,707 12,362 8,815 10,730 9,155 7,786 5,514 6,841 4,438 3,667 1,502 724 454 86,696
Operating vertical 6,170 4,265 4,360 5,335 4,633 4,515 3,865 4,700 3,315 2,420 1,060 520 560 45,718
Total (m) 30,638 25,738 25,276 26,660 23,158 18,661 14,379 15,581 11,068 8,327 4,182 1,244 1,014   205,927

LME

Capital lateral 3,363 5,439 5,588 5,146 3,938 4,057 4,319 4,108 3,203 1,888 876       41,925
Capital vertical 3,486 2,732 800                 7,018
Operating lateral 1,319 2,154 1,864 1,808 1,754 1,552 1,493 899 750 1,060 716 15,369
Operating vertical 1,099 1,215 1,340 1,468 1,343 1,440 1,095 670 555 840 610 11,675
Total (m) 9,268 11,540 9,592 8,422 7,035 7,049 6,907 5,677 4,508 3,788 2,202       75,987

LMW

Capital lateral 8,065 7,373 2,902 1,901 938 761 572 426             22,938
Capital vertical 369 1,401 200 0 100 65 690 722 590     4,137
Operating lateral 2,893 6,597 7,425 5,266 6,383 4,817 3,013 2,376 875 1,380 614 41,639
Operating vertical 3,231 4,445 3,564 5,480 3,167 3,204 1,662 1,401 623 183 61 27,021
Total (m) 14,558 19,816 14,091 12,647 10,588 8,847 5,937 4,925 2,088 1,563 675       95,735

DCG

Capital lateral 889 775                         1,664
Capital vertical 0 44   44
Operating lateral 3,518 2,073 677 6,268
Operating vertical 282 191 127 600
Total (m) 4,688 3,083 804                       8,575

Ying

Capital lateral 49,131 52,279 42,361 33,941 27,190 21,875 17,871 16,305 12,804 10,528 8,774 1,855 860   295,773
Capital vertical 7,222 8,425 8,314 2,932 2,085 2,355 2,354 2,002 1,690 1,210 750       39,339
Operating lateral 36,052 43,209 39,667 40,027 39,214 33,753 29,809 29,471 18,000 15,744 9,631 5,044 3,073 1,139 343,832
Operating vertical 17,979 18,714 19,050 22,425 20,082 18,680 15,372 15,477 10,835 9,378 5,757 3,193 1,737 650 179,329
Total (m) 110,383 122,628 109,392 99,325 88,571 76,663 65,405 63,256 43,329 36,860 24,912 10,092 5,670 1,789 858,274

Note: Numbers may not compute exactly due to rounding.

*FY2025 refers to the development plan from the second quarter to the fourth quarter of Fiscal 2025.

amcconsultants.com234
NI 43-101 Technical Report Update on the Ying Ag-Pb-Zn Property in Henan Province, People's Republic of China
 
Silvercorp Metals Inc.0723067

Development is characterized as either operating or capital, and includes vein exploration, stope preparation, level development, decline and shaft excavation, and underground infrastructure development. Capital development is notionally associated with ramp excavation, level access, and level rock transportation routes. Operating development is notionally the portions of the level access that provide immediate access to a stope, draw-point accesses, and vein development, including exploration vein development.

The QP notes and considers reasonable the projected advance rate of 120 m/month (~4 m/day) for the main ramp developments at SGX, LMW, TLP, and HZG. The QP also notes that the annual development projections, particularly in the next few years, are a key contributor to the production increases discussed below; but again, considers that the development totals are achievable, while necessitating a continuing high degree of development scheduling and control throughout the Ying operation.

16.5.2Mines production
16.5.2.1Production rate

Mine operations are scheduled for 365 days of the year, but with production on a 330 days per year basis. Nominal projected production rates for shrinkage, resuing, and room and pillar stopes are around 1,000 t, 400 t, and 700 t per month, respectively, but with the actual rate from each stope being dependent on realized vein and excavation widths. The longhole production rate is projected at 1500 t per month.

Table 16.11 is a general summary of production rates and projected years of operation for the Ying mines.

Table16.11Ying mines production rate summary
    Production rate (t/month) Typical no. of
stopes in
operation
Typical annual
production
(kt/a)
Estimated
mine life
(years)
Shrinkage Room and
Pillar
Long
Hole
Resue
SGX 1,000     400 97 300 14
HZG 1,000     400 23 75 7
HPG 1,000     400 22 74 8
TLP 1,000     400 70 250 12
LME 1,000 700   400 8 25 11
LMW 1,000 700 1,500 400 27 100 12
DCG 1,000     400 2 10 4
amcconsultants.com235
NI 43-101 Technical Report Update on the Ying Ag-Pb-Zn Property in Henan Province, People's Republic of China
 
Silvercorp Metals Inc.0723067
16.5.2.2Mine production: 31 Dec 2021 to 31 March 2024

Table 16.12 summarizes mine production tonnes and grade from 31 December 2021 to 31 March 2024. Recent production for the first quarter of FY2025 is not included.

 

Table 16.12Ying mines production Q4 FY2022 to end of Q4 FY2024

 

Mine Ore type Unit FY2022Q4 FY2023 FY2024 Total

SGX

Ore mined t 49,350 285,273 292,266 626,889

Grade

Ag (g/t) 344 326 307 319
Au (g/t)   0.03 0.15 0.08
Pb (%) 6.40 6.00 5.40 5.75
Zn (%) 1.65 1.58 1.67 1.63

HZG

Ore mined t 9,356 53,285 74,801 137,442

Grade

Ag (g/t) 313 275 229 253
Au (g/t)        
Pb (%) 1.71 1.38 1.04 1.22
Zn (%)        

HPG

Ore mined t 10,732 69,130 73,853 153,715

Grade

Ag (g/t) 129 121 97 110
Au (g/t)   0.69 1.14 0.86
Pb (%) 2.96 3.32 2.92 3.11
Zn (%) 1.75 0.97 0.70 0.90

TLP

Ore mined t 39,241 231,391 247,177 517,809

Grade

Ag (g/t) 188 204 182 192
Au (g/t)        
Pb (%) 2.30 2.77 2.49 2.60
Zn (%)        

LME

Ore mined t 8,293 28,325 24,104 60,722

Grade

Ag (g/t) 289 273 248 265
Au (g/t)        
Pb (%) 1.54 1.52 1.42 1.48
Zn (%)        

LMW

Ore mined t 13,641 91,309 102,992 207,942

Grade

Ag (g/t) 317 311 245 279
Au (g/t) 0.00 0.34 0.69 0.49
Pb (%) 2.55 2.50 2.32 2.41
Zn (%)        

DCG

Ore mined t   10,310 11,917 22,228

Grade

Ag (g/t)   81 48 63
Au (g/t) 0.52 0.42 0.46
Pb (%) 2.25 1.82 2.02
Zn (%)      

Ying Mines

Ore mined t 130,612 769,024 827,112 1,726,747

Grade

Ag (g/t) 271 261 231 247
Au (%)   0.12 0.25 0.17
Pb (%) 3.84 3.84 3.37 3.61
Zn (%) 0.77 0.68 0.65 0.67

Notes:

·Grades in Ying Mines totals reflect final adjustments from individual period reporting – this results in some non-material grade differences when compared to compilation of individual period numbers.
·Numbers may not compute exactly due to rounding.
amcconsultants.com236
NI 43-101 Technical Report Update on the Ying Ag-Pb-Zn Property in Henan Province, People's Republic of China
 
Silvercorp Metals Inc.0723067
16.5.2.3Ying LOM production planning

Projected production for the Ying operations for FY2025 shows an approximate 20% increase over FY2024. Each mine within the district has a specific plan to achieve its contribution towards the overall projected increase.

SGX Mine intends to expand its operations by adding 14 resue stopes and five shrinkage stopes. In addition, the workforce number shows an increase of 76, encompassing LHD drivers, muckers, and drillers. Operational development is planned to increase by 1200 m over FY2024, and with 4,500 m projected for capital development. A procurement plan is also in place for the acquisition of seven LHDs.

The HZG mine is planning to expand its operations by adding one resue stope and one shrinkage stope. Additionally, the aim is to increase the workforce by eight persons, made up of LHD drivers, muckers, and drillers. The plan also includes procurement of two LHDs to support operating activities, and an increase of 500 m in capital development over FY2024.

The HPG mine plans to expand operations by adding 11 stopes, consisting of eight resue stopes and three shrinkage stopes. Additionally, the capital development is planned to increase by approximately 3,000 m over FY2024, and the operational development will see an extension of around 2,300 m; 44 new workers are planned to be employed, including LHD drivers, muckers, and drillers. The HPG mine intends to acquire five new LHDs.

The TLP mine plan includes 28 additional stopes, consisting of 24 resue stopes and four shrinkage stopes. Additionally, the capital development will be extended by approximately 9,000 m over FY2024. Five new LHDs are planned. The additional development and stopes require a workforce increase of 112 persons, encompassing muckers, drillers, and LHD drivers.

The mine plan at LME includes an additional eight stopes, comprising seven resue stopes and one shrinkage stope. The development plan will see an increase of approximately 3,700 m over FY2024, with additional capital and operating development of 2,500 m and 1,200 m, respectively. One new LHD is planned, and the recruitment process will involve the hiring of 32 personnel, encompassing drillers, muckers, and LHD drivers.

LMW Mine intends to expand operations by adding 13 stopes, including four resue stopes, two shrinkage stopes, four room and pillar stopes, and three longhole stopes with backfilling. Development activities are planned to increase by 7,600 m over FY2024, encompassing 6,600 m of capital development and 1,000 m of operating development. The personnel number shows an increase of 52, including muckers, drillers, and LHD drivers.

The DCG mine is planning to expand its operations by adding eight stopes, consisting of four shrinkage stopes and four resue stopes. The mine intends to recruit 35 workers for stope mucking and development drilling.

16.5.2.4Ying LOM production schedule

Table 16.13 is a summary of projected LOM production for each of the Ying mines and for the entire operation based on the 30 June 2024 Mineral Reserve estimates.

Annual ore production in the LOM plan is projected to rise from the FY2024 level of 827 kilotonnes (kt) to 1.0 million tonnes (Mt) in FY2025 (782 kt as of 30 June 2024), and then to over 1.1 Mt from FY2026 through FY2030. From FY2031 through FY2035, a slow decline is projected from just under 1.1 million tonnes per annum (Mtpa) to around 900 kilotonnes per annum (ktpa).

amcconsultants.com237
NI 43-101 Technical Report Update on the Ying Ag-Pb-Zn Property in Henan Province, People's Republic of China
 
Silvercorp Metals Inc.0723067

A more rapid decline from 688 kt in FY2036 to a final year of 242 kt in FY2038 is seen in the final three years of currently envisaged production.

The significantly increased production rate envisaged though FY2035 over the FY2024 performance reflects the key planning aspects discussed in Section 16.5.2.3. The Qualified Person considers that the planned production increases are certainly achievable, but that a major and continual focus on planning and control – particularly of dilution aspects, personnel numbers and capabilities, and on mechanized equipment maintenance will be required. The introduction of more mechanized equipment also brings additional safety considerations, with specific training and enforced protocols and operating practices being necessary. Safety around open brows, remote mucking practices, and provision of safety bays and adequate equipment clearances relative to drift widths are specific examples of aspects to be addressed.

Ying mine Ag grades are indicated to average around 235 g/t through FY2029, 210 g/t from FY2030 through FY2034, and then 175 g/t for the final four years of projected mine life. The AgEq grade is projected to average around 400 g/t through FY2027, 360 g/t for the next four years, and 330 g/t for the final seven years. To maintain optimum metal grades while embarking on increased production, the QP recommends that Silvercorp redouble its focus on dilution and grade control via the Mining Quality Control Department.

amcconsultants.com238
NI 43-101 Technical Report Update on the Ying Ag-Pb-Zn Property in Henan Province, People's Republic of China
 
Silvercorp Metals Inc.0723067
Table16.13Ying Mines LOM production plan

 

  FY2025Q2-Q4 FY2026 FY2027 FY2028 FY2029 FY2030 FY2031 FY2032 FY2033 FY2034 FY2035 FY2036 FY2037 FY2038 Totals
SGX
Production (kt) 256 387 425 426 426 426 423 427 427 426 424 371 298 242 5,386
Au (g/t) 0.00 0.00 0.06 0.02 0.04 0.00 0.00 0.01 0.04 0.02 0.02 0.06 0.02 0.01 0.02
Ag (g/t 319 306 272 240 231 222 219 220 199 196 199 190 177 164 225
Pb (%) 5.5 5.6 4.8 4.4 4.2 4.5 4.4 3.8 4.3 4.2 3.9 4.0 4.1 3.7 4.4
Zn (%) 2.4 1.8 2.0 2.1 1.9 1.8 1.9 2.1 2.1 2.3 2.0 1.8 2.2 2.8 2.1
AgEq (g/t) 555 536 481 434 415 413 406 393 390 386 372 365 362 346 417
HZG
Production (kt) 60 80 80 80 80 65 40               486
Au (g/t                
Ag (g/t 340 305 310 308 313 287 241 304
Pb (%) 0.6 1.0 0.9 0.9 0.8 0.8 1.2 0.9
Zn (%)               0.0
AgEq (g/t) 360 340 340 339 339 312 280 333
HPG
Production (kt) 71 118 116 116 117 114 91 88             832
Au (g/t) 2.88 1.54 1.66 1.63 1.35 1.03 0.82 0.90 1.44
Ag (g/t 79 94 89 81 72 73 60 52 76
Pb (%) 2.0 3.5 3.2 3.5 3.8 3.6 3.3 2.7 3.3
Zn (%) 1.1 1.0 0.7 0.4 1.2 1.4 1.4 1.4 1.1
AgEq (g/t) 405 361 351 346 340 314 271 249 330
TLP
Production (kt) 206 287 295 295 295 295 295 286 277 266 254 195 116   3,362
Au (g/t                            
Ag (g/t 202 213 224 230 227 201 198 169 167 145 141 121 114 187
Pb (%) 2.8 2.6 2.6 2.6 2.7 2.9 2.5 2.6 3.0 3.0 3.3 3.4 2.6 2.8
Zn (%)                            
AgEq (g/t) 295 298 309 317 316 297 282 256 266 246 250 233 199 279
LME
Production (kt) 41 51 83 81 78 83 82 85 82 81 82 82     911
Au (g/t) 0.03 0.02 0.08 0.08 0.08 0.12 0.23 0.16 0.07 0.20 0.27 0.16 0.13
Ag (g/t 286 339 321 322 319 321 336 336 288 332 296 254 313
Pb (%) 1.1 1.4 0.9 1.0 1.2 1.1 1.5 1.1 1.6 1.3 1.0 1.1 1.2
Zn (%) 0.3 0.2 0.2 0.3 0.3 0.3 0.4 0.4 0.3 0.3 0.2 0.3 0.3
AgEq (g/t) 338 390 357 362 366 367 399 386 347 388 346 301 362
LMW
Production (kt) 121 152 153 151 152 151 162 150 151 149 137 40     1,669
Au (g/t) 0.97 0.26 0.37 0.05 0.22 0.07 0.11 0.07 0.19 0.06 0.12 0.28 0.21
Ag (g/t 219 244 249 253 257 264 241 263 239 244 242 197 246
Pb (%) 2.0 2.4 2.3 2.4 2.0 2.0 2.1 2.0 2.0 1.9 1.6 1.8 2.1
Zn (%)                          
AgEq (g/t) 354 343 348 344 344 336 318 333 318 308 300 284 330
DCG
Production (kt) 27 30 30 23                     110
Au (g/t) 3.18 3.87 3.75 3.46 3.58
Ag (g/t 54 70 67 55 62
Pb (%) 1.1 0.4 1.3 2.1 1.2
Zn (%)          
AgEq (g/t) 357 407 419 408 398
Ying Mine
Production (kt) 782 1106 1183 1173 1148 1133 1093 1037 937 923 897 688 414 242 12,757
Au (g/t) 0.52 0.31 0.33 0.25 0.19 0.12 0.10 0.10 0.05 0.04 0.05 0.07 0.01 0.01 0.17
Ag (g/t 242 246 240 230 229 218 213 207 204 201 198 178 159 164 216
Pb (%) 3.2 3.5 3.1 3.1 3.1 3.2 3.1 2.9 3.3 3.2 3.1 3.3 3.7 3.7 3.2
Zn (%) 0.9 0.8 0.8 0.8 0.9 0.8 0.9 1.0 1.0 1.1 1.0 1.0 1.6 2.8 1.0
AgEq (g/t) 409 405 388 372 364 354 343 334 338 333 324 315 316 346 357

Notes: Numbers may not compute exactly due to rounding. Zinc not included in AgEq calculation for HZG, TLP, LMW and DCG mines.

amcconsultants.com239
NI 43-101 Technical Report Update on the Ying Ag-Pb-Zn Property in Henan Province, People's Republic of China
 
Silvercorp Metals Inc.0723067

16.6 Reconciliation

Table 16.14 summarizes the Silvercorp reconciliation between Mineral Reserve estimates in areas mined and production as mill feed for the Ying mines from 1 January 2022 to 31 March 2024.

 

Table 16.14Mineral Reserve to production reconciliation: January 2022 – March 2024

 

  Mine Mineral
Reserve (kt)
Grade Metal
Au (g/t) Ag (g/t) Pb (%) Zn (%) Au (koz) Ag (koz) Pb (kt) Zn (kt)

Reserve (Proven + Probable)

SGX 593 0.03 371 6.40 3.07 0.6 7,075 37.9 18.2
HZG 92 0.00 363 1.26     1,072 1.2  
HPG 121 1.02 127 3.65 1.12 4.0 495 4.4 1.4
LME 79   375 1.94     950 1.5  
LMW 173 0.95 328 1.69   5.3 1,825 2.9  
TLP 458   244 2.64     3,594 12.1  
DCG 20 0.66 88 3.54   0.4 56 0.7  
TOTAL 1,536 0.21 305 3.96 1.27 10.3 15,067 60.8 19.6

Reconciled Mine Production

SGX 627 0.08 319 5.75 1.63 1.7 6,425 36.1 10.2
HZG 137 0.00 253 1.22     1,117 1.7  
HPG 154 0.85 110 3.11 0.90 4.2 542 4.8 1.4
LME 61   265 1.48     519 0.9  
LMW 208 0.49 279 2.41   3.3 1,866 5.0  
TLP 518   193 2.61     3,207 13.5  
DCG 22 0.46 63 2.01   0.3 45 0.4  
TOTAL 1,727 0.17 247 3.61 0.67 9.5 13,722 62.4 11.6

Mine Production as % of Reserves

SGX 106% 257% 86% 90% 53% 272% 91% 95% 56%
HZG 150% - 70% 97%     104% 145%  
HPG 127% 84% 86% 85% 80% 106% 110% 108% 102%
LME 77%   71% 76%     55% 59%  
LMW 120% 52% 85% 143%   62% 102% 171%  
TLP 113%   79% 99%     89% 112%  
DCG 112% 70% 72% 57%   78% 81% 64%  
TOTAL 112% 82% 81% 91% 53% 92% 91% 103% 59%

Notes:

·Assumes 2.5% moisture in wet ore.
·Numbers may not compute exactly due to rounding.

 

The QP makes the following observations relative to the data in Table 16.14:

·Overall, the mine produced 12% more tonnes from Mineral Reserves at gold, silver, lead and zinc grades that were, respectively, 18%, 19%, 9% and 47% lower than reserve grades. Contained gold, silver, lead, and zinc metal values were, respectively, 8% lower, 9% lower, 3% higher, and 41% lower relative to Mineral Reserve estimates.
·The lower mined grades suggest that, overall, dilution control has suffered in the recent move towards increased production.
·The lower grade performance against reserves is noted as generally consistent across the seven mines, with the exception of SGX for gold and LMW for lead, and with HZG and TLP almost achieving parity in terms of lead.
amcconsultants.com240
NI 43-101 Technical Report Update on the Ying Ag-Pb-Zn Property in Henan Province, People's Republic of China
 
Silvercorp Metals Inc.0723067
·The particularly low zinc metal recovered vs reserves may be attributed, to some extent, to processing recovery uncertainty affecting reconciled values. The QP notes that zinc currently contributes only about 5% to Ying revenue.
·Apart from the seemingly significant increase in dilution, factors that may have contributed to results variability include:
¾Over- and / or under-estimation of Mineral Resource / Reserve tonnes and grades at individual sites.
¾Variable or adverse ground conditions.
¾Increased use of shrinkage stoping in very narrow and / or discontinuous veins.
¾Mining of lower grade, but still economic, material outside of the vein proper.
¾Misattribution of feed source to the mill.
¾Mill process control issues.
¾Mill focus issues in terms of metal prioritization.

Silvercorp has previously placed a high level of focus on dilution control and, as part of that effort, has revised its stockpiling and record keeping procedures and implemented a work quality checklist management enhancement program. The QP recommends that Silvercorp re-emphasize the dilution control aspects of the mining process and notes that this will be even more important with an LOM plan that projects yet higher production rates (see Sections 16.5.2.3 and 16.5.2.4). The QP again recommends that Silvercorp undertake regular mill audits aimed at ensuring optimum process control and mill performance.

16.7Mining summary

The Ying mine complex is a viable operation with a projected LOM through to 2038 based on Proven and Probable Reserves.

A production rate increase is planned from the FY2024 (full year) level of 827 ktpa to approximately 1 Mtpa in FY2025, 1.1 Mtpa in FY2026, and then to close to 1.2 Mtpa for the next two financial years. The projection remains above or close to 1 Mtpa from FY2029 through FY2031, with the rate then slowly declining to around 900 ktpa by FY2035, and then with a more rapid decline to around 240 ktpa in the final year of production. Annual production of silver is projected to be between 7.5 and 9.1 Moz through FY2031, 5.7 and 6.9 Moz through FY2035, and to average 2.4 Moz over the final three years of currently planned mine life. Approximately 408 kt of Pb, 123 kt of zinc and 70 koz of gold are also projected to be mined over the LOM. There remains significant potential to extend the LOM beyond 2038 via further exploration and development, particularly in areas with identified Inferred Resources.

As noted above, the QP recommends that Silvercorp re-emphasize the dilution control aspects of the mining process and notes that this will be even more important with an LOM plan that projects significantly higher production rates than currently achieved.

The QP notes that the development and infrastructure required to allow production as projected is either already in place, is in development, or has been planned. The ultimate success of the planned significant increase in production at close to Mineral Reserve grades will, to a large degree, be dependent on:

·Diligent planning and the consistent availability of resources, particularly skilled manpower numbers and appropriately maintained equipment.
·A concentrated focus on achieving production rate goals with the adopted mining methods while exercising strict dilution control.
·An emphasis on necessary operating protocols and safety standards.

 

amcconsultants.com241
NI 43-101 Technical Report Update on the Ying Ag-Pb-Zn Property in Henan Province, People's Republic of China
 
Silvercorp Metals Inc.0723067

 

The QP recommends that efforts continue to fully integrate the Resource estimation, Reserve estimation, and mine planning processes for both internal planning and external reporting.

The QP previously recommended that Silvercorp undertake periodic audits aimed at optimizing process control and mill performance, and that the summation of individual ore car weights by stope and zone be fully integrated into the tracking and reconciliation process. The QP now notes that a definitive process for tracking ore haulage to the surface process plants is in place, which requires each price of haulage equipment to use a tag that records type of rock (waste, ore), and name of stope, with weighing of the equipment also part of the process. Analysis of stope data compared to Mineral Reserve data is the responsibility of supervision at each mine.

Ying mines safety is governed by Chinese statutory requirements and the QP acknowledges that, in certain areas, those requirements are exceeded. The QP recommends that Silvercorp focus on the highest safety standards, including implementation of a policy whereby the more stringent of either Chinese or Canadian safety standards are employed. The introduction of more mechanized equipment and the adoption of additional mining methods over those previously employed also mean that further training must be provided, and specific operating procedures developed and diligently exercised.

The QP recognizes the technological change that is underway at the Ying property in certain areas of the mining process, including the use of more mechanized equipment. The QP notes the recent construction of a backfill station at LMW and the introduction of backfill for some stopes and, since 2021, the use of room and pillar mining and electric rakes (slushers) in lower-dip stopes with vein thickness over 1 m to improve production rates. The trial of longhole mining and the decision to expand its use in certain areas is also noted.

With respect to longhole mining, the generally good ground conditions, and the regularity and sub-vertical nature of the Ying district veins provide the opportunity to effectively employ such a bulk-mining method. The QP considers that a more widespread application of the methodology is possible, with a view to further increasing stope production rates, but with recognition that design and blasting practices aimed at dilution control will require yet more focus.

The QP notes the approximately US$151M allocated for investment capital expenditure (capex), facilities, plant and equipment in the LOM capital expenditure forecast (see Section 21), with a significant proportion of that financial provision envisaged as supporting current and future technological changes.

amcconsultants.com242
NI 43-101 Technical Report Update on the Ying Ag-Pb-Zn Property in Henan Province, People's Republic of China
 
Silvercorp Metals Inc.0723067
17Recovery methods
17.1Introduction

Silvercorp currently runs two processing plants - Plant 1 (also known as No.1 Mill or Xiayu Plant) and Plant 2 (also known as No. 2 Mill or Zhuangtou Plant) - for the Ying operations, with a total design capacity of 1,800 tpd (prior to October 2011), and then 2,800 tpd after October 2011 when expansion Phase II was completed. The two plants are situated within 2 km of each other. An extension to No. 2 Mill - which will increase its processing capacity to 3,500 tpd - is currently under construction and is scheduled to be operating by Q4 2024. The combined plant capacity will be around 4,200 tpd, although the current LOM plan is to run at 3,500 tpd and only with Plant 2 from the start of 2025 (Q4 FY2025). A third TSF (see Section 18) is being constructed to accommodate tailings beyond the capacity of the current two TSFs. Further details of the No. 2 Mill expansion are provided in Section 17.5.

The development history for Plants 1 and 2 is described below and summarized in Table 17.1:

·Both plants were designed based on the lab tests completed by HNMRI in 2005.
·Plant 1 (Xiayu Plant, with design capacity of 600 tpd, later expanded to 800 tpd) has been in operation since March 2007.
·Plant 2 (Zhuangtou Plant): (1) Phase I (1,000 tpd) has been in operation since December 2009; (2) Phase II (also 1,000 tpd) has been in operation since October 2011, when construction of another parallel flotation bank was completed.
·Total design capacity of these plants is 2,800 tpd of ore.
·Total actual processing capacity for Plants 1 and 2 is currently 2,500 tpd of ore.

In this section, production data from FY2019 through FY2024 (1 April 2018 to 31 March 2024) have generally been referenced, unless otherwise specified.

Table 17.1 shows the summary of the current capacity of the process plants.

Table 17.1Processing Plants 1 and 2 - summary of current capacities
Items Plant 1 Plant 2 (Phase I) Plant 2 (Phase II) Plants 1+2
First year in operation Mar 2007 Dec 2009 Oct 2011  
Design capacity (tpd) 800 1,000 1,000 2,800
Actual capacity (tpd) 700 900 900 2,500
Plant availability (day/yr) 330 330 330 330
Major ore feed LM / TLP / HZG All All All
Tailings pond P1-Zhuangtou P2-Shiwagou P2-Shiwagou P1+P2

Source: Silvercorp, 2024.

 

17.2Ore supply and concentrate production from Ying Property mines
17.2.1Ore supply

Ore from the Ying mines is shipped via truck to processing Plants 1 and 2:

·SGX / HPG lumps: Prior to FY2020, rich, large-size galena lumps with characteristic specular, silver-grey appearance were often hand-sorted at the mine sites, crushed, and then shipped by dedicated trucks to Plant 1. Such lumps were milled in a dedicated facility, and then sold directly or mixed with flotation lead concentrate for sale. This practice has been discontinued since the end of FY2019.
amcconsultants.com243
NI 43-101 Technical Report Update on the Ying Ag-Pb-Zn Property in Henan Province, People's Republic of China
 
Silvercorp Metals Inc.0723067
·SGX / HZG and HPG ore: An ore transportation tunnel from SGX to HPG was constructed and the haul road from HPG to the plants has been upgraded, with ore from all three sites transported by truck through the tunnel and via the haul road to the plants.
·TLP / LME / LMW ore: Transported via truck directly from mine site to the plants.
·DCG ore: A transportation tunnel from TLP to DCG was completed in October 2020 to haul the ore from DCG via TLP to the plants by truck.

Table 17.2 summarizes the ore supply from the mines from FY2019 to FY2024. Some aspects of note are:

·SGX has remained the largest contributor to production at 36% of total for FY2024.
·TLP at 29% of total for FY2024 remains the second largest contributor and continues a five- year trend of increasing production.
·Production at LME decreased 20% in FY2024, while LMW increased 9.4% and HZG increased 40%.
·HPG has increased production in FY2023 and FY2024.
·There has been an overall production increase of close to 20% in the last two years.
Table 17.2Ore supply to Plants 1 and 2 from FY2019 to FY2024

 

Fiscal year Unit SGX HZG1 HPG TLP LME LMW DCG Subtotal
2019 Tonnes 251,354 54,448 57,695 140,305 52,498 63,553   619,852
Contribution (%) 41 9 9 23 8 10   100
2020 Tonnes 236,696 52,618 54,945 154,373 44,436 58,435   601,504
Contribution (%) 39 9 9 26 7 10   100
2021 Tonnes 241,004 51,754 65,922 176,635 49,872 66,216   651,402
Contribution (%) 37 8 10 27 8 10   100
2022 Tonnes 261,639 49,497 59,183 201,572 39,227 69,486 3,688 684,292
Contribution (%) 38 7 9 29 6 10 1 100
2023 Tonnes 285,116 53,120 68,742 232,778 30,278 93,077 9,946 773,057
Contribution (%) 37 7 9 30 4 12 1 100
2024 Tonnes 292,161 74,393 73,822 239,034 24,089 101,858 10,788 816,145
Contribution (%) 36 9 9 29 3 12 1 100
Totals 2019 – 2024 Tonnes 1,567,970 335,830 380,309 1,144,697 240,400 452,625 24,422 4,146,252
Contribution (%) 38 8 9 28 6 11 1 100
Production ranking (2024) 1 4 5 2 6 3 7  

Notes:

1Includes BCG contribution. BCG is the south part of HZG.

·Wet tonnes basis.
·Numbers may not compute exactly due to rounding.
Source: Silvercorp, 2024.

 

Figure 17.1 shows total ore treated by fiscal year from FY2019 to FY2024.

amcconsultants.com244
NI 43-101 Technical Report Update on the Ying Ag-Pb-Zn Property in Henan Province, People's Republic of China
 
Silvercorp Metals Inc.0723067
Figure 17.1Tonnes milled production trend - FY2019 to FY2024

Source: AMC from Silvercorp data, 2024.

 

17.2.2Ore composition per mine

Table 17.3 shows average mill feed grades by mine for FY2024. HZG, TLP, LMW, and DCG have very low zinc values (shown as ‘zero’ in the table, as processing of zinc from these sites is of little value).

Table 17.3Average mill feed grades by mine FY2024

 

Unit SGX HZG HPG TLP LME LMW DCG Average
Ag (g/t) 307 229 97 182 248 245 48 231
Pb (%) 5.40 1.00 2.90 2.50 1.40 2.30 1.80 3.38
Zn (%) 1.70   0.70   0.07     0.67
Au (g/t) 0.15 0.14 1.14 0.18 0.15 0.69 0.42 0.32

Notes: Grades are weighted averages by ore from each mine.
Numbers may not compute exactly due to rounding.

Source: Silvercorp, 2024.

 

17.2.3Concentrate production by mine in FY2024

Table 17.4 summarizes the quantity of concentrate products, by mine, in FY2024. There was no hand-sorting ore during this period.

amcconsultants.com245
NI 43-101 Technical Report Update on the Ying Ag-Pb-Zn Property in Henan Province, People's Republic of China
 
Silvercorp Metals Inc.0723067
Table 17.4Concentrate production by mine (FY2024)

 

Products Wt. SGX HZG HPG TLP LME LMW DCG Subtotal
1. Hand-sorted concentrate
  (tonnes) 0 0 0 0 0 0 0 0
2. Knelson concentrate
  (tonnes) 5 0 60 0 0 50 6 121
3. Flotation concentrate
Pb flotation conc (tonnes) 24,320 1,619 5,214 12,795 789 5,652 408 50,797
Zn flotation conc (tonnes) 6,736   791   11     7,538
Pb+Zn concs (tonnes) 31,056 1,619 6,005 12,795 800 5,652 408 58,335
Total concentrates tonnes 31,061 1,619 6,065 12,795 800 5,702 414 58,456
Conc contribution (%) 53 3 10 22 1 10 1 100
Conc. production ranking (2024) 1 5 3 2 6 4 7  

Note: Numbers may not compute exactly due to rounding.

Source: Silvercorp, 2024.

 

17.2.4Concentrate quality and metal recovery (average) FY2019 – FY2024

Table 17.5 and Table 17.6 summarize the concentrate quality and recovery (average) by year from FY2019 to FY2024, with the recovery also shown in Figure 17.2. The results indicate that:

·Pb and Ag recoveries have been stable. The average recovery rates for Pb and Ag are 95.11% and 96.11%, respectively; these values are significantly higher than the common design recovery rate of 90%.
·Pb and Ag grades in lead concentrate have been relatively stable, however the average Pb grade decreased to 50.21% and is lower than the design value of 60%.
·Zn grade in zinc concentrate averaged 49.42%, which is significantly higher than the design value of 45%.
·Zn recovery averaged 70.55%, which continues an increasing trend from 2022. The average Zn recovery is still significantly lower than the target of 85%, this being attributed to lower than anticipated zinc content in the ore feed.
·The statistics are consistent with an increasing proportion of production from lower grade mines like TLP, while over 50% of Pb concentrate is from SGX.
amcconsultants.com246
NI 43-101 Technical Report Update on the Ying Ag-Pb-Zn Property in Henan Province, People's Republic of China
 
Silvercorp Metals Inc.0723067
Table 17.5Concentrate quality by year from FY2019 to FY2024

 

Product Fiscal year Wt (t) Pb (%) Zn (%) Ag (g/t) Au (g/t)

PbS Lumps hand-sort

2019 281 62.59 2.32 2,961  
2020 - - - -
2021 - - - -
2022        
2023        
2024 - - - -

PbS flotation conc.

2019 47,227 53.62 4.21 3,790  
2020 46,285 55.31 3.35 3,758  
2021 49,074 53.5 3.02 3,532  
2022 48,433 51.40 3.60 3,538  
2023 52,152 52.40 2.97 3,592 1.55
2024 50,799 50.21 2.45 3,429 3.26
Design - - 60 1.95 -  

ZnS flotation conc.

2019 5,750 0.78 50.91 292  
2020 6,344 0.81 52.46 307
2021 6,003 0.84 52.26 284
2022 5,817 0.55 52.78 252
2023 7,460 0.64 43.48 245
2024 7,539 0.67 49.42 301.16
Design - - 0.95 45 -  

Knelson conc.

2019          
2020        
2021        
2022        
2023 22 12.45 927 413.85
2024 121 16.50 1,143 331.09
Design - - 49   8,260 409

Note: Numbers may not compute exactly due to rounding.

Source: Silvercorp, 2024.

 

Table 17.6Overall metal recovery by year from FY2019 to FY2024

 

Fiscal year Pb (%) Zn (%) Ag (%) Au (%)
2019 95.68 54.12 95.83  
2020 95.89 63.24 95.98  
2021 96.02 62.4 94.22  
2022 95.60 59.70 95.10  
2023 95.02 63.18 95.57 86.41
2024 95.11 70.55 96.11 81.47
Average 95.55 62.20 95.47 83.94
Design 90 85 90 80

Note: Numbers may not compute exactly due to rounding.

Source: Silvercorp, 2024.

amcconsultants.com247
NI 43-101 Technical Report Update on the Ying Ag-Pb-Zn Property in Henan Province, People's Republic of China
 
Silvercorp Metals Inc.0723067
Figure 17.2Overall metal recovery to concentrate from FY2019 to FY2024

Source: AMC from Silvercorp data, 2024

 

17.2.5Impact of ore type on concentrate quality and metal recovery (FY2024)

Table 17.7 to Table 17.13 summarize concentrate production by mine (SGX, HZG, HPG, TLP, LME, LMW, DCG) for FY2024.

Table 17.7SGX mine – ore processed – actual mass balance (FY2024)

 

Production Wt
(Tonne)
Mass yield
(%)
Grade Recovery
Pb (%) Zn (%) Ag (g/t) Au (g/t) Pb (%) Zn (%) Ag (%) Au (%)
Wet tonnes 292,161                  
Dry tonnes 284,275 100.00 5.40 1.67 307 0.15 100.00 100.00 100.00 100.00
Knelson conc. 5.03 0.002 19.64   801 78.61       0.91
Lead Con. 24,320 8.56 61.41 4.61 3436 1.17 97.23 23.53 95.77 65.85
Zinc Con. 6,736 2.37 0.67 50.01 321   0.29 70.78 2.48  
Tails 253,213 89.07 0.15 0.11 6   2.47 5.69 1.75  

Source: Silvercorp, 2024.

amcconsultants.com248
NI 43-101 Technical Report Update on the Ying Ag-Pb-Zn Property in Henan Province, People's Republic of China
 
Silvercorp Metals Inc.0723067
Table 17.8HZG mine – ore processed – actual mass balance (FY2024)

 

Production Wt
(Tonne)
Mass yield
(%)
Grade Recovery
Pb (%) Zn (%) Ag (g/t) Au (g/t) Pb (%) Zn (%) Ag (%) Au (%)
Wet tonnes 74,393                  
Dry tonnes 72,417 100.00 1.04 229 0.14 100.00 100.00 100.00
Knelson conc.                
Lead Con. 1,619 2.24 43.46 9764 4.08 93.45 95.33 64.65
Zinc Con.                
Tails 70,798 97.76 0.07 11   6.55 4.67  

Source: Silvercorp, 2024.

 

Table 17.9HPG mine – ore processed – actual mass balance (FY2024)

 

Production Wt
(Tonne)
Mass yield
(%)
Grade Recovery
Pb (%) Zn (%) Ag (g/t) Au (g/t) Pb (%) Zn (%) Ag (%) Au (%)
Wet tonnes 73,822                  
Dry tonnes 71,790 100.00 2.92 0.70 97 1.14 100.00 100.00 100.00 100.00
Knelson conc. 60.07 0.084 19.38   1076 409.37       30.04
Lead Con. 5,214 7.26 36.03 2.30 1149 9.66 89.47 23.67 86.42 61.53
Zinc Con. 791 1.10 0.72 44.43 123   0.27 69.49 1.40  
Tails 65,725 91.55 0.31 0.05 12   9.71 6.83 11.24  

Source: Silvercorp, 2024.

 

Table 17.10TLP mine - ore processed – actual mass balance (FY2024)

 

Production Wt
(Tonne)
Mass yield
(%)
Grade Recovery
Pb (%) Zn (%) Ag (g/t) Au (g/t) Pb (%) Zn (%) Ag (%) Au (%)
Wet tonnes 239,034                  
Dry tonnes 232,595 100.00 2.49 182 0.18 100.00 100.00 100.00
Knelson conc.                
Lead Con. 12,795 5.50 41.85 3102 2.29 92.30 93.77 71.51
Zinc Con.                
Tails 219,799 94.50 0.20 12   7.70 6.23  

Source: Silvercorp, 2024.

 

Table 17.11LME mine - ore processed - actual mass balance (FY2024)

 

Production Wt
(Tonne)
Mass yield
(%)
Grade Recovery
Pb (%) Zn (%) Ag (g/t) Au (g/t) Pb (%) Zn (%) Ag (%) Au (%)
Wet tonnes 24,089                  
Dry tonnes 23,410 100.00 1.42 0.07 248 0.15 100.00 100.00 100.00 100.00
Knelson conc.                    
Lead Con. 789 3.37 35.60 0.83 6876 2.73 84.67 42.48 93.65 63.01
Zinc Con. 11 0.05 0.93 44.81 711   0.03 32.80 0.14  
Tails 22,609 96.58 0.22 0.02 16   15.30 24.72 6.21  

Source: Silvercorp, 2024.

amcconsultants.com249
NI 43-101 Technical Report Update on the Ying Ag-Pb-Zn Property in Henan Province, People's Republic of China
 
Silvercorp Metals Inc.0723067
Table 17.12LMW mine – ore processed – actual mass balance (FY2024)

 

Production Wt
(Tonne)
Mass yield
(%)
Grade Recovery
Pb (%) Zn (%) Ag (g/t) Au (g/t) Pb (%) Zn (%) Ag (%) Au (%)
Wet tonnes 101,858                  
Dry tonnes 99,203 100.00 2.32 245 0.69 100.00 100.00 100.00
Knelson conc. 50.02 0.050 13.10 1283 282.49     20.76
Lead Con. 5,652 5.70 38.93 4122 8.10 95.78 95.72 67.23
Zinc Con.                
Tails 93,501 94.25 0.10 10   3.93 4.02  

Source: Silvercorp, 2024.

 

Table 17.13DCG mine – ore processed – actual mass balance (FY2024)

 

Production Wt
(Tonne)
Mass yield
(%)
Grade Recovery
Pb (%) Zn (%) Ag (g/t) Au (g/t) Pb (%) Zn (%) Ag (%) Au (%)
Wet tonnes 10,788                  
Dry tonnes 10,477 100.00 1.82 48 0.42 100.00 100.00 100.00
Knelson conc. 5.57 0.053 13.02 911 151.24     19.38
Lead Con. 408 3.90 36.53 989 6.83 78.24 80.22 64.19
Zinc Con.                
Tails 10,063 96.05 0.41 9   21.38 18.77  

Source: Silvercorp, 2024.

 

Table 17.7 to Table 17.13 indicate that:

·Lead concentrate grade: only SGX is close to the design concentrate grade of 60 – 65% Pb.
·Pb recovery reached design of 90% for SGX, HZG, TLP, and LMW, and exceeded it significantly at SGX and LMW.
·Ag recoveries for SGX, HZG, TLP, LME, and LMW exceeded the design value of 90%.
·Zinc concentrate grade: Zn grades met the target grade of 45% for SGX, with LME and HPG marginally below the goal.
·No mines achieved the Zn recovery design value of 85%.
·In all mines, lead concentrates contained more than 33% Pb, which is acceptable within the Chinese domestic smelting market, although higher treatment charges and lower percent payables are experienced for lower values (see terms in Section 19.3).
17.2.6Ore supply by plant

Silvercorp has adopted the following strategies to maximize metal recovery and plant processing throughput:

·Prior to FY2020, some high-grade lead lumps were hand-sorted at the mine sites and not processed via flotation circuit. This served to increase overall lead recovery as the recovery for this fraction of lead in the feed is 100%. This also helped to reduce the flotation circuit loading and the operating cost in earlier years.
·Plant 1: Upgraded by installing a Knelson concentrator to process gold-bearing ores from HPG, SGX, and LMW. Plant 1 also processes development low grade ores from LME, LMW, HZG, and part of TLP.
·Plant 2: Processes ores from all mines.
·Lead concentrates from Plant 1 and Plant 2 are blended to maximize profit.
amcconsultants.com250
NI 43-101 Technical Report Update on the Ying Ag-Pb-Zn Property in Henan Province, People's Republic of China
 
Silvercorp Metals Inc.0723067
·For higher Ag-grade ore from LME, LMW, and HZG, the lead concentrate product grade set-point is set slightly lower to increase the recovery.

Table 17.14 shows the ore feed by mine for flotation for FY2024. SGX, TLP, and HPG ores are rich in lead; and TLP, LMW, LME, and HZG have little zinc. Lead recovery ranges from 81.02% to 97.25%, with a weighted average of 94.42%. Silver recovery ranges from 80.99% to 96.02%, with an average of 94.93%. Zinc recoveries are 62.86% for HPG and 69.70% for SGX, with an average of 68.14%. Gold recovery ranges from 64.16% to 90.96%, with an average of 89.41%.

Table 17.14Flotation feed: ore grade and recovery (FY2024)

 

Mines Grade Recovery
Pb (%) Zn (%) Ag (g/t) Au (g/t) Pb (%) Zn (%) Ag (%) Au (%)
SGX 5.73 2.45 337 0.01 97.25 69.70 96.02 64.16
HZG 0.76   255   88.33   95.36  
HPG 3.20 1.09 84 2.15 92.96 62.86 83.81 90.96
TLP 2.49   204 0.05 88.11   93.44 70.71
LME 1.32   297 0.02 83.66   95.46 69.55
LMW 1.74   231 0.39 95.42   95.42 90.86
DCG 3.04   52 0.14 81.02   80.99 66.00
Average 3.37 0.96 252 0.27 94.42 68.14 94.93 89.41

Source: Silvercorp, 2024.

 

Table 17.15 shows the ore feed from each mine processed at flotation Plants 1 and 2 in FY2024.

Table 17.15Flotation feed: tonnes to plants (FY2024)

 

Mines Plant 1 (t) Plant 2 (t) Subtotal (t)
SGX 2,428 289,733 292,161
HZG 72,792 1,601 74,393
HPG 33,229 40,593 73,822
TLP 20,670 218,364 239,034
LME - 24,089 24,089
LMW 94,318 7,540 101,858
DCG 2,170 8,617 10,788
Subtotal 225,608 590,537 816,145
Ratio (%) 27.64 72.36 100.00

Source: Silvercorp, 2024.

 

Table 17.15 indicates that, for FY2024:

·For Plant 2, ore from all mines was used as the feed for flotation, although only a small proportion of ore from LMW and HZG was processed in Plant 2.
·Ores from LMW and HZG, being generally lower grade, were primarily processed in Plant 1, along with about 9% of the ore from TLP.
·72% of the ore was processed at Plant 2, with an average daily processing rate of about 1,600 tpd versus the design capacity of 2,000 tpd.
·28% of the ore was processed at Plant 1, with an average daily processing rate of about 620 tpd, versus the capacity of 700 tpd.

 

amcconsultants.com251
NI 43-101 Technical Report Update on the Ying Ag-Pb-Zn Property in Henan Province, People's Republic of China
 
Silvercorp Metals Inc.0723067

 

17.2.7LOM mill feed schedule

From the LOM mine schedule, a mill feed schedule has been derived (Table 17.16) based on the following assumptions:

·Plant 1 and Plant 2 (current capacity of 1,800 tpd) will operate until the end of 2024, at which time the expanded Plant 2, with a design capacity of 3,500 tpd, will be in operation.
·Until the expanded Plant 2 is operating, gold-bearing ores will be fed to Plant 1. When there is not enough gold-bearing ore, Plant 1 also will process some lower-grade ores.
·Expanded Plant 2 (design capacity 3,500 tpd) is projected to begin production in November 2024 (FY2025 Q3), and to reach and operate at full production capacity in the first quarter of 2025 (FY2025 Q4).
amcconsultants.com252
NI 43-101 Technical Report Update on the Ying Ag-Pb-Zn Property in Henan Province, People's Republic of China
 
Silvercorp Metals Inc.0723067

Table 17.16LOM mill feed schedule from 01 July 2024

 

Mill MILL1 MILL2 Total

 

Mine

HZG TLP LMW HPG DCG Sub-total Processed
Daily
SGX HZG HPG TLP LME LMW DCG Sub-total Processed
Daily
ktpa
ktpa ktpa ktpa ktpa ktpa ktpa ktpd ktpa ktpa ktpa ktpa ktpa ktpa ktpa ktpa ktpd  
Q2 FY2025 20.9 1.4 14.0 11.2 7.3 54.8 0.6 82.5   7.6 49.5 12.0 18.1   169.7 1.8 224.5
Q3 FY2025 21.9 1.4 14.0 14.7 2.8 54.8 0.6 100.2   15.0 63.7 14.5 27.4 6.9 227.7 2.5 282.5
Q4 FY2025               73.1 17.2 22.5 90.0 14.7 47.8 9.6 274.9 3.5 274.9
FY2025 Q2-Q4 42.8 2.8 28.0 25.9 10.1 109.6 0.6 255.8 17.2 45.1 203.2 41.2 93.3 16.5 672.3 3.5 781.9
FY2026               387.4 80.4 117.9 286.7 50.9 152.4 30.3 1,106.1 3.5 1,106.1
FY2027               425.1 80.3 116.5 295.0 83.4 152.8 30 1,183.0 3.5 1,183.0
FY2028               425.6 80.3 116.0 295.0 81.4 151.4 23 1,173.1 3.5 1,173.1
FY2029               426.2 80.1 117.4 295.0 77.5 152.0 0 1,148.2 3.5 1,148.2
FY2030               426.5 64.7 113.8 295.0 82.6 150.8 0 1,133.4 3.5 1,133.4
FY2031               423.3 40.3 91.2 295.0 81.8 161.7 0 1,093.3 3.5 1,093.3
FY2032               427.3 0.0 87.8 286.4 85.3 150.2 0 1,037.0 3.5 1,037.0
FY2033               427.0 0.0 0.0 276.9 81.8 151.4 0 937.0 3.5 937.0
FY2034               426.2 0.0 0.0 266.3 81.4 149.1 0 922.9 3.5 922.9
FY2035               423.5 0.0 0.0 254.2 82.4 136.5 0 896.6 3.5 896.6
FY2036               371.3 0.0 0.0 195.1 81.8 39.8 0 688.1 2.5 688.1
FY2037               298.3 0.0 0.0 116.0 0.0 0.0 0 414.3 1.5 414.3
FY2038               242.4 0.0 0.0 0.0 0.0 0.0 0 242.4 1.5 242.4
Totals 42.8 2.8 28.0 25.9 10.1 109.6 0.6 5,386.0 443.3 805.7 3,359.6 911.5 1,641.5 100.2 12,647.7   12,757.3

Source: Silvercorp, 2024.

amcconsultants.com253
NI 43-101 Technical Report Update on the Ying Ag-Pb-Zn Property in Henan Province, People's Republic of China
 
Silvercorp Metals Inc.0723067
17.3Mill Plant 1 (Xiayu)
17.3.1Process flowsheet

For processing Plant 1, general view photos and the flowsheet are shown in Figure 17.3 and Figure 17.4, respectively.

Figure 17.3General view photos (Plant 1)

 

 

Source: Silvercorp, 2023.

amcconsultants.com254
NI 43-101 Technical Report Update on the Ying Ag-Pb-Zn Property in Henan Province, People's Republic of China
 
Silvercorp Metals Inc.0723067
Figure 17.4Flowsheet (Plant 1)

Note: Zinc circuit not in use.

Source: Silvercorp, 2023.

amcconsultants.com255
NI 43-101 Technical Report Update on the Ying Ag-Pb-Zn Property in Henan Province, People's Republic of China
 
Silvercorp Metals Inc.0723067

The flowsheet includes the following major unit operations:

·Crusher circuit - crusher discharge becomes mill feed.
·Grinding circuit - ball mill.
·Gravity separation circuit for gold recovery: including Knelson concentrator, shaking table, and cyclone classification in one train.
·Pb flotation circuit (one train, conventional Pb flotation arrangement, capable of processing 800 tpd).
·Filtration and product handling circuit.
17.3.2Process description

The overall process consists of crushing, grinding, gravity separation for gold, flotation of lead concentrate, and concentrate dewatering circuits as follows:

·Ore crusher circuit (closed circuit with two-stage crusher-screen: jaw crusher, one cone crusher, vibrating screen, dust collectors, two ore storage bins), operating in one train with design capacity of 800 tpd.
·Ball mill circuit with spiral classifiers - one train with design capacity of 800 tpd.
·Gravity separation for gold recovery (Knelson concentrator, shaking table, and hydrocyclone).
·Flotation circuit to recover lead concentrate - rougher-scavenger-cleaner cells, chemical reagent preparation tanks, arranged as one circuit with design capacity of 800 tpd.
·Concentrate thickening - ceramic filtration circuit to dewater lead concentrate - one train.
·Water make-up system.
·Tailings storage pond.

The following minor changes have been made to the original Plant 1 design:

·Addition of one cone crusher to reduce ball mill feed size and thus to increase overall ball mill capacity from 600 to 800 tpd.
·The original ball mill grinding size target was coarsened from 70% to 60% -75 µm, which helps to reduce energy consumption, mill grinding time and filtration time; with only a small recovery loss (see Section 13). In 2014, the system was adjusted with the ball mill grinding size target modified from 60% to 61% - 63% -75 µm, which resulted in increased Pb recovery of 0.41% and Ag recovery of 2.16 g/t.
·Addition of gravity separation circuit to recover a gold concentrate: including Knelson concentrator, shaking table, and cyclone classification in one train.
·Replacement of lime slurry by NaOH/Na2CO3 for pH control in the flotation circuit, with improvements in operability.
·Chemical consumption is slightly higher than that determined by the lab work.
·No water treatment plant is required, with untreated recycled water from the tailings storage pond and fresh water from the reservoir being reused in the plant.

 

17.3.2.1Crushing

Crushing is operated in a closed circuit consisting of jaw and cone crushers with a vibrating screen. The primary jaw crusher (Model: PEF 500 x 750) has a closed-side setting of 80 mm. Discharge from the primary jaw crusher is conveyed to the 15 mm aperture vibrating screen. Ore larger than 15 mm is conveyed to the secondary cone crusher (Model: PYH-2X cone crusher), which has a closed-side setting of 15 mm. Discharge from the secondary crusher is conveyed back to the 15 mm aperture screen. Product undersize discharge from the screen feeds fine-ore bins with live storage capacity of 100 t.

amcconsultants.com256
NI 43-101 Technical Report Update on the Ying Ag-Pb-Zn Property in Henan Province, People's Republic of China
 
Silvercorp Metals Inc.0723067

Dust from the crushing and screening processes is collected under vacuum, captured in a baghouse dust filter, and then transferred to a process tank, with the resulting slurry introduced to flotation.

17.3.2.2Milling / classification (two trains)
·Crushed ore from the live bins is conveyed to a closed milling circuit consisting of two trains, each with a grate-discharge ball mill (Model: MQCG 2100 x 3600). One circuit utilizes a screw classifier (Model: FG-200) to separate the fine product stream, while the other utilizes a cluster of hydrocyclones.
·The ball charge is made up of Mn-steel balls, with diameters ranging from 60 mm to 120 mm.
·The target grind size is 61% to 63% passing 75 µm and the overflow density is maintained at 40% solids w/w when introduced to the conditioning tanks ahead of lead flotation.

 

17.3.2.3Gravity separation (one train)
·In line with metallurgical testing on the gold-bearing and silver-bearing, polymetallic ores carried out by Changchun Gold Research Institute (CCGRI) in 2021, Plant 1 was upgraded by adding a gravity separation circuit to produce a gold concentrate.
·A set of hydrocyclones was added to replace the spiral classifier, reducing the overgrinding of galena and improving the classification efficiency.
·A Knelson concentrator was added to process the products discharged by the ball mill to recover coarse gold. At the same time, a linear screen was added in front of the Knelson to screen coarse particles 2 mm.
·The concentrate from the Knelson concentrator is cleaned with a shaking table. The tailings from the concentrator are classified by a cyclone, with coarse materials returning to the ball mill for further grinding, and fine materials enter the flotation system.

 

This system can process gold ore independently, improving the overall gold recovery of the plant.

17.3.2.4Flotation (one train)
·The overflow (O/F) fine fraction from the screw classifier flows to the lead rougher conditioning tank, and then to the lead rougher flotation cells. Knelson concentrator tailings also reports to Pb flotation feed. The lead flotation bank consists of one stage of roughing, two stages of scavenging (both BF-4 type cells), and three stages of cleaning (BF-1.2 type cells), arranged as shown in Figure 17.4.

 

17.3.2.5Product concentrating, filtration, and handling
·The lead concentrate slurry flows to a concrete settling containment structure for settling.
·The settled slurry, containing approximately 50% to 60% solids w/w, is pumped to a ceramic filter for dewatering. The moisture content of the dewatered lead concentrate is 7% to 10%.
·The filter cake product is sent to Plant 2 for concentrate blending. Blended concentrate products are then sold and shipped by truck to the customers.

The QP notes that there is also a zinc flotation circuit in Plant 1 but, due to low Zn in the feed ore to Plant 1, that circuit is not currently in operation.

To optimize profitability, high-grade lead concentrate (55% to 65% Pb) from Plant 2 is blended with medium grade lead concentrate (40% to 50% Pb) from Plant 1, before shipping the blended concentrate to customers.

amcconsultants.com257
NI 43-101 Technical Report Update on the Ying Ag-Pb-Zn Property in Henan Province, People's Republic of China
 
Silvercorp Metals Inc.0723067
17.3.2.6Tailings thickening
·Tailings are directly pumped through up to four discharge outlets into the Zhuangtou tailings storage pond located at the northern creek between Plant 1 and Plant 2.
·The plant recirculates the lead concentrate tailings overflow in addition to the tailings dam supernatant water.

A crew of two people monitors the tailings storage pond. Reclaimed process water from the tailings pond is recycled for reuse in the milling process. In addition, a crew of two carries out maintenance of the water reclamation circuit and pump stations.

17.3.3Metallurgical performance (Plant 1)

Table 17.17 lists the mass balance based on design for Plant 1. It is again noted that only the lead flotation circuit is in operation.

Table 17.17 Design mass balance at Plant 1 (daily basis)

 

Product Quantity (tpd) Distribution (%) Pb (%) Zn (%) Pb recovery (%) Zn recovery (%)
Ore 800 100 3.18 1.73 100 100
Pb Conc 28.62 4.77 60.00 1.95 90.00 5.38
Zn Conc 19.62 3.27 0.95 45.00 0.98 85.00
Tailings 551.76 91.96 0.31 0.18 9.02 9.62

Note: Zinc circuit not in use.

Source: Silvercorp, 2023.

 

Mass balances covering combined Plant 1 and Plant 2 performance for FY2024 have been shown in Table 17.7 to Table 17.13, and Plant 1 ore grade vs recovery over the same period is shown in Table 17.18. The split of ore feed quantities to Plants 1 and 2 for FY2024 has been shown in Table 17.15. For assessing Plant 1 performance, the feed quantities indicate that LMW and HZG are the most relevant, but with the 9% of TLP ore processed at Plant 1 also being of significance. The processing results show that:

·Pb / Ag recoveries exceed the design expectation for both LMW and HZG ores.
·Zinc concentrate is only generated from SGX and HPG ores.
·For the proportion of TLP ore that was processed at Plant 1, both Pb and Ag recoveries exceed respective design targets.
Table 17.18 Flotation feed: ore grade vs. recovery - FY2024 (Plant 1)

 

Mines Grade Recovery
Pb (%) Zn (%) Ag (g/t) Au (g/t) Pb (%) Zn (%) Ag (%) Au (%)
SGX 1.49 0.89 134 0.95 91.25 70.73 86.70 86.37
HZG 1.03   229 0.14 93.49   95.31 64.93
HPG 1.42 0.22 78 1.75 91.47 71.10 89.02 93.15
TLP 2.49   216 0.19 93.38   94.39 72.07
LME                
LMW 2.41   256 0.64 96.26   96.07 87.85
DCG 0.34   52 1.54 79.67   86.38 91.26

Source: Silvercorp, 2024.

amcconsultants.com258
NI 43-101 Technical Report Update on the Ying Ag-Pb-Zn Property in Henan Province, People's Republic of China
 
Silvercorp Metals Inc.0723067

17.4 Mill Plant 2 (Zhuangtou)

General view photos and flowsheet are shown in Figure 17.5 and Figure 17.6, respectively.

 

Figure 17.5General view photos (Plant 2)

Source: Silvercorp, 2023.

 

Plant 2 (Zhuangtou) is located 2 km to the west of Plant 1. Plant 2 includes two parallel processing lines. The first line with a design capacity of 1,000 tpd has been operating since December 2009. The second flotation line, also with a design capacity 1,000 tpd, was installed in October 2011.

amcconsultants.com259
NI 43-101 Technical Report Update on the Ying Ag-Pb-Zn Property in Henan Province, People's Republic of China
 
Silvercorp Metals Inc.0723067
Figure 17.6Flowsheet for Plant 2

Source: Silvercorp, 2023.

amcconsultants.com260
NI 43-101 Technical Report Update on the Ying Ag-Pb-Zn Property in Henan Province, People's Republic of China
 
Silvercorp Metals Inc.0723067
17.4.1Flowsheet

The flowsheet includes the following major unit operations:

·Crusher circuit (one train).
·Ball milling circuit
·Pb/Zn differential flotation circuit (two trains).
·Concentrate filtration and product handling circuit (one train).
17.4.2Process description

The process elements for Plant 2 are very similar to those of Plant 1, except for the larger capacity equipment, and consist of the following circuits:

·Ore crusher circuit (closed circuit with three-stage crushing-screening: one jaw crusher, two cone crushers, vibration screen, dust collectors, ore storage bins) (one train: 1 x 2,500 tpd).
·Ball mill circuit: 2 x ball mills (Model: 2.7 m dia. × 4.0 m) with 15” hydrocyclone / spiral classifiers, Model: 2FG2.4) (two trains: 2 x 1,000 tpd).

·Differential flotation circuit – to produce lead sulphide concentrate, then zinc sulphide concentrate: rougher-scavenger-cleaner cells, chemical reagent preparation tanks (2 x 1,000 tpd). No copper flotation.
·Product thickening – ceramic-disc filtration circuit (lead concentrate filtration, zinc concentrate filtration).
·Water make-up system.
·Tailings storage pond (monitored by seven people).

The plant design was based on a design document very similar to Plant 1, with some minor changes.

17.4.2.1Crushing

Crushing is a closed circuit, consisting of three-stage crushing with a vibrating screen closing the third stage (see Figure 17.6). The primary jaw crusher (Model: PEF 800 x 1000) has a closed-side setting of 80 mm. Discharge from the primary jaw crusher is conveyed to the secondary cone crusher (Model: PYHD-3CC), which has a closed-side setting of 15 mm. Discharge of the secondary cone crusher is conveyed to the 15 mm aperture vibrating screen. Ore larger than 15 mm is conveyed to the tertiary cone crusher (Model: PYH-3CC), which has a closed-side setting of 15 mm. Discharge from the tertiary crusher is conveyed back to the 15 mm aperture screen. Undersize product discharge from the screen feeds ore bins with a live capacity of 1,000 t.

17.4.2.2Milling classification

Crushed ore from the live bins is conveyed to a closed milling circuit consisting of two trains, each with a grate-discharge ball mill (Model: MQG 2.7 m dia. x 4.0) and classifier (15” hydrocyclone / spiral classifier (Model:2FG2.4)).

17.4.2.3Flotation
·Similar to Plant 1, but with larger cells (BF-16 and BF-4).
·No copper flotation.
17.4.2.4Product concentrating, filtration and handling

Similar to Plant 1, with larger size thickener, filters, and handling system.

 

amcconsultants.com261
NI 43-101 Technical Report Update on the Ying Ag-Pb-Zn Property in Henan Province, People's Republic of China
 
Silvercorp Metals Inc.0723067

To optimize profitability, high grade lead concentrate (55% to 65% Pb) from Plant 2 is blended with medium grade lead concentrate (40% to 50% Pb) from Plant 1 before shipping to customers.

17.4.2.5Tailings thickening

Tailings from the zinc scavenger flotation circuit are directly pumped into the Shi Wa Gou tailings storage pond located adjacent to Plant 2.

17.4.3Metallurgical performance (Plant 2)

Originally, Plant 2 was designed to process both Pb / Zn ore as well as Cu / Pb / Zn ore. In practice, however, Plant 2 currently processes Pb / Zn ore only. The design mass balance for Phase I of Plant 2 is shown in Table 17.19. Plant 2 was subsequently upgraded (Phase II) in 2011. The design mass balance for Phase II is the same as that for Phase I.

Table 17.19Design mass balance for Plant 2 (Pb+Zn ore) (Phase I and Phase II, 2 x 1,000 tpd)

 

Product Quantity (t/d) Product rate (%) Pb (%) Zn (%) Pb recovery (%) Zn recovery (%)
Ore 1,000 100 4.7 3.6 100 100
Pb Conc 67.2 6.72 65 - 93 -
Zn Conc 58.7 5.87 - 50 - 81.5
Tailings 874 87.4 0.35 0.23 - -

Source: Silvercorp, 2024.

 

Mass balances covering combined Plant 1 and Plant 2 performance for 2024 are shown in Table 17.7 to Table 17.13, and Plant 2 ore grade vs recovery over the same period is shown in Table 17.20. The split of ore feed quantities to Plants 1 and 2 for 2024 has been shown in Table 17.15. For assessing Plant 2 performance, the feed quantities indicate that the performance of SGX, TLP, LME, HPG, and DCG are the most relevant, while also recognizing that only a small quantity of DCG ore has been processed to date. The processing results indicate that:

·Ag recoveries exceed the design expectation (90%) for all ores other than HPG and DCG.
·Pb recoveries meet or exceed design expectation (90%) for all ores other than LME and DCG.
·Zn recoveries for SGX, LME, and HPG ores are 70.78%, 32.80%, and 69.22%, respectively, which are lower than the design value (85%).
·Since Zn grades are very low, no contribution to the zinc concentrate is assumed from TLP, LMW, HZG, and DCG ores.
Table 17.20Flotation feeds: ore grade vs. recovery - FY2024 (Plant 2)

 

Mine Grade Recovery
Pb (%) Zn (%) Ag (g/t) Au (g/t) Pb (%) Zn (%) Ag (%) Au (%)
SGX 5.44 1.68 308 0.15 97.25 70.78 95.80 65.59
HZG 1.27   216 0.10 92.14   96.37 50.66
HPG 4.16 1.10 111 0.64 89.62 69.22 86.39 88.01
TLP 2.50   179 0.18 92.20   93.70 71.40
LME 1.42 0.07 248 0.15 84.67 32.80 93.65 63.01
LMW 1.20   111 1.23 91.27   93.29 88.77
DCG 2.19   47 0.13 78.58   79.79 60.92

Source: Silvercorp, 2024.

amcconsultants.com262
NI 43-101 Technical Report Update on the Ying Ag-Pb-Zn Property in Henan Province, People's Republic of China
 
Silvercorp Metals Inc.0723067
17.4.4Sampling (for Plants 1 and 2)

For metallurgical accounting purposes, a set of five samples is usually taken during every eight-hour shift for a total of 15 samples per 24-hour day. The shift samples include flotation feed from the classifier overflow, lead and zinc concentrates from the third cleaners, and lead and zinc tailings from the last scavengers.

17.5Mill Plant 2 expansion

Mill Plant 2 is currently being expanded to a capacity of 3,500 tpd. The expanded plant (Plant 2E) has been designed and engineered by Changchun Gold Design Institute (CGDI), who were the original designers of Mill Plant 2. The design increases throughput capacity to 3,500 tpd by adding a third processing line and incorporates optional ore sorting to increase plant feed grade if desired. The expanded plant is scheduled for commissioning in November 2024.

17.5.1Flowsheet

The Plant 2E flowsheet includes the following major unit operations:

·Ore sorter
·Crusher circuit (one train)
·Grinding (2 trains - ball mill / classifier)
·Gravity separation for Au
·Pb / Zn differential flotation circuit (one train)
·Concentrate product concentration and filtration
·Tailings pre-concentration and transport
·Tailings storage
17.5.2Process description

The general process for Plant 2E is very similar to that of Plants 2, and consists of the following:

·Ore sorting:
¾ROM ore is crushed and screened as follows:
-[-15 mm fines].
-[-50+15 mm].
-[-120+50 mm].
¾[-15 mm fines] are conveyed directly to the plant feed bin.
·[-50+15 mm] and [-120+50 mm] fractions report to the XRT analysis / sorting units where the nominal rejection of material in the sorted fractions is 20%.
·Crushing – three-stage, closed circuit on tertiary crusher.
¾Capacity increased from 200 tph to 250 tph.
¾Product size remains -15 mm.
¾Tertiary crusher replaced with HP500 (400 kW).
¾Upgrading of auxiliary equipment (feeders, conveyor belts) as required to meet the 250 tph design.
·Grinding – 3,500 tpd throughput, product size remains 60-65% -74 µm.
·Third parallel grinding line added (ball mill, hydrocyclone cluster classifier).
·Gravity concentration circuit:
¾Knelson concentrator.
amcconsultants.com263
NI 43-101 Technical Report Update on the Ying Ag-Pb-Zn Property in Henan Province, People's Republic of China
 
Silvercorp Metals Inc.0723067
¾Vertical mill for regrinding Knelson gold concentrate.
¾Concentrate shaking tables (2).
·Differential flotation circuit includes lead flotation, followed by zinc flotation.
¾Additional flotation capacity has been added.
¾Some flotation units have been reconfigured, as required, to create the new, 3,500 tpd circuit.
·Concentrate dewatering:
¾Two existing 20 m diameter, high-efficiency thickeners are used for Pb concentrate.
¾A new, 18 m center-drive thickener is used for Zn concentrate.
¾Three ceramic filters (one new) are used with concentrate specification of 12% moisture.
·Water recycling system:
¾A new, 2,000 m3 plant water pond has been constructed to meet the requirements of the third grinding and flotation line.
¾A new sedimentation / settling pond has been added. The existing sedimentation pond has been removed to provide the site for the new concentrate thickener.
·TSF:
¾Tailings from the expanded plant (three production lines) are combined and discharged to the Shimengou TSF.
17.5.3Designed metallurgical performance

The Plant 2 expansion metallurgical performance design is based on recent plant results when processing different ore types. Table 17.21, Table 17.22, and Table 17.23 show mass and metal distribution and concentrate grades for SGX (Ag-Pb-Zn), TLP (Ag-Pb) and LMW (Au-Ag-Pb) ores, respectively.

Table 17.21Recent plant performance - SGX (Ag-Pb-Zn) ore

 

Product Product rate
(%)
Grade Recovery
Pb (%) Zn (%) Ag (g/t) Pb (%) Zn (%) Ag (%)
Raw ore 100 5.62 1.58 325 100 100 100
Pb concentrate 8.58 63.78 4.52 3,640 97.37 95.92 24.49
Zn concentrate 2.16 0.68 51.18 344 0.26 2.28 69.83
Tails 89.27 0.15 0.1 7 2.37 1.8 5.68

Source: Silvercorp, 2024.

 

Table 17.22Recent plant performance - TLP (Ag-Pb) ore

 

Product Product rate (%) Grade Recovery
Pb (%) Ag (g/t) Pb (%) Ag (%)
Raw ore 100 2.67 199 100 100
Pb concentrate 5.96 41.38 3,139 92.48 94.19
Tails 94.04 0.21 12 7.52 5.81

Source: Silvercorp, 2024.

amcconsultants.com264
NI 43-101 Technical Report Update on the Ying Ag-Pb-Zn Property in Henan Province, People's Republic of China
 
Silvercorp Metals Inc.0723067
Table 17.23Recent plant performance – LMW (Au-Ag-Pb ore)

 

Product Product rate (%) Grade Recovery
Au (g/t) Ag (g/t) Pb (%) Au (%) Ag (%) Pb (%)
Raw ore 100 2.1 96.4 1 100 100 100
Knelson Au concentrate 0.26 340.9 1,235.6 11 41.61 3.31 3.54
Pb concentrate 5.85 18.0 1,492.6 12 49.75 90.56 92.45
Tails 93.89 0.2 6.3 0 8.64 6.13 4.01

Source: Silvercorp, 2024.

 

17.6Process control

An ore crushing control centre in Plant 2 controls and monitors the crushing and screening equipment. Operation control in other sections is done locally:

·In 2019, a PLC (programmable logic controller) system was installed in the crushing building in Plant 2 to allow automatic control of the entire crushing system and each crusher and screen. This reduced the workload for the workforce, increased the overall operational efficiency, and reduced operating costs.
·Ore feed to the ball mill is controlled via an electronic scale. Water addition is controlled to a set-point by operators via manual slurry density measurement and manually adjusted water addition.
·Chemical reagent dosages are controlled via a localized PLC system for each set of equipment. Chemical reagent dosage is adjusted in a narrow range (around the default target or setting value), based on assay feedback (each half hour) to handle process upsets such as ore feed changes.
·The central monitoring room in the grinding-flotation building allows monitoring of key points in the production flow via TV imaging.

The current level of process control and automation is basic but adequate, recognizing that the processing circuit is complex and that low-cost operating labour to monitor and control process variables is readily available.

Control of the expanded Plant 2 will follow the same basic logic and use the same systems wherever possible.

17.7Ancillary facilities
17.7.1Laboratory

The laboratory is equipped with the usual sample preparation, fire assay, wet chemistry, and basic photometric analytical equipment, as well as sample crushing equipment.

The laboratory also conducts routine analyses of ores and concentrates, as well as water quality and other environmental testing. It also provides a technical service to the processing plant in monitoring plant conditions, solving production problems, and investigating processes to assist with improvement efforts.

The Silvercorp QA/QC check procedures include inserting standards in the sample batches submitted to the laboratory by the geology team on a regular basis and submitting duplicate pulps to an independent external lab on an intermittent basis.

amcconsultants.com265
NI 43-101 Technical Report Update on the Ying Ag-Pb-Zn Property in Henan Province, People's Republic of China
 
Silvercorp Metals Inc.0723067
17.7.2Maintenance workshops

Daily maintenance requirements are serviced through section-specific workshops, each equipped with a crane, welding capability, and basic machine-shop facilities. More extensive maintenance and major overhaul needs are met through use of appropriate contractors.

17.8Key inputs
17.8.1Power

Mill power is drawn from the Chinese national grid. It is transformed from 10,000 V to 400 V by a total of twelve 400 KVA transformers (see also Section 18.3).

Plant 1: Total installed power is 3,124 kW (including standby equipment), including 963 kW for crushing and milling. The average mill power consumption was 34.7 kWh/t ore treated in 2022 and 2023.

Plant 2: Total installed power is 9,260 kW (including standby equipment) including 3,260 kW for crushing and milling. The average mill power consumption was 43.6 kWh/t ore treated in 2022 and 2023.

The Plant 2 expansion will increase installed power by 4,326 kW.

17.8.2Water usage and mass balance for Plant 1 and Plant 2

The water usage includes:

·Fresh make-up water used for cooling, reagent preparation, and flotation.
·Recycle water used for ball mill and flotation.
·Water recycle from the tailings pond decant back to the recycle water tank.
17.8.2.1Water for Plant 1

The fresh make-up water (treated underground mine inflow water) usage is around 709 m3/d, while the remainder is recycle water - 271 m3/d from thickeners and 2,215 m3/d from the tailings pond. Total water usage is about 3,195 m3/d, with recycled water accounting for about 78%.

17.8.2.2Water for Plant 2

The fresh make-up water (treated underground mine inflow water) usage is around 1,606 m3/d, while the remainder is recycle water - 7,200 m3/d recycle from the tailings pond and 951 m3/d from thickeners. Total water usage is about 9,757 m3/d, with recycled water accounting for about 84%.

17.8.2.3Water for Plant 2E

Total water consumption for the expanded Plant 2 is estimated to be 8,699 m3/d. Fresh make-up requirement is expected to be 2,163 m3/d with the remainder supplied by recycled tailings decant water. Fresh water make-up will be supplied from treated underground mine inflow water.

17.8.2.4Strategy to reduce fresh-water usage

For optimum water usage the following practices have been implemented:

·Reclaimed water from the tailings storage ponds and overflows from the two concentrators are recycled to minimize fresh water requirements. The raw water cost at 1.67 RMB per m3 is at least 250,000 RMB per annum at the current production rate. Water is piped to the raw water tank from a river source adjacent to the concentrator property, a distance of 2.5 km.
amcconsultants.com266
NI 43-101 Technical Report Update on the Ying Ag-Pb-Zn Property in Henan Province, People's Republic of China
 
Silvercorp Metals Inc.0723067
·The cost of reclaimed water from the tailing storage ponds is 1.1 RMB per m3 and for recycled water in the plant is 0.23 RMB per m3. The in-plant recycled water is mainly for milling and flotation.
·With the re-use of recycled water from the tailings storage pond, there is minimal lock-up of water in tailings and close to 75% of the water is recycled; however, there is a requirement for fresh water, e.g., for pump seals, cooling, and reagent mixing, and it is this requirement that sets the overall fresh water demand. The reclaimed water from the tailings storage ponds accounts for about 65% of total water usage and in-plant recycled water for about 10%.
·Upfront water usage is about 3.5 - 4 m3/t ore processed, but allowing for recycled water, net usage is less than 1 m3/t ore processed.

 

17.8.3Reagents

The reagents used in both plants include:

·Depressant / modifiers: 1-Sodium sulphide, 2-Zinc sulphate, 3-Sodium sulphite, 4-Copper sulphate.
·Collectors: 1-Di-ethyl dithiocarbamate, 2-Ammonium dibutyl dithiophosphate, 3-Butyl xanthate.
·Frother: No. 2 oil (added directly).

Reagent preparation and application are described as follows:

·Reagent storage and mixing is located adjacent to the grinding / flotation plant and comprises a storage area with hoisting equipment to lift bags and drums through into the mixing area.
·From the mixing area the reagents are pumped up to the dosing station, located above the flotation section, for dosing and gravity feeding to the various addition points.
17.9Conclusions

Plant 1 averaged 684 tpd in FY2024, which is 98% of the current, stated operating capacity of 700 tpd. Plant 2 averaged 1,790 tpd in FY2024, which is 99% of the current, stated capacity of 1,800 tpd.

Lead and silver recovery targets are being met – 94.42% versus 90.0% for Pb, 94.93% versus 90.0% for Ag; however, zinc recovery averaged 68.14% versus the target of 85.0%, which was attributed to lower than planned zinc feed grades.

Improvements have been consistently targeted on the processing system and auxiliary facilities both in Plants 1 and 2 to improve metal recovery and reduce energy consumption.

Historically, higher-grade feed from SGX has enhanced plant performance but, with the proportion of SGX ore decreasing, the challenge is to maintain similar metallurgical performance on lower grade feedstock. From recent performance, it appears that recoveries are being maintained but concentrate grades are lower than target, however, not to the extent where there is a major deterioration in smelter terms.

The design of the Plant 2 expansion has benefited from knowledge and experience gained in the processing of Silvercorp ore types in Plant 1 and Plant 2. The improved design and the increased efficiency of Plant 2’s new equipment combined with the experience of the local operators can be expected to result in improved metallurgical performance.

amcconsultants.com267
NI 43-101 Technical Report Update on the Ying Ag-Pb-Zn Property in Henan Province, People's Republic of China
 
Silvercorp Metals Inc.0723067
18Project infrastructure
18.1Tailings Management Facilities (TSF)
18.1.1Overview

Tailings generated by ore processing activities are currently stored in one of two engineered tailings storage facilities, located close to the processing plants, named TSF 1 and TSF 2, respectively, as shown on Figure 18.1.

Figure 18.1 Arrangement of Ying TSFs

Source: AMC 2024, from Google Earth screenshot dated 08 July 2021.

 

TSF 1, also known as the Zhuangtou TSF, was initially constructed in 2006, based on a design prepared by the Engineering Survey and Design Institute of Ma’anshan General Institute of Mining Research Co. Tailings deposition to the facility commenced in 2007 and has been ongoing since then. The facility was designed to accommodate tailings production from Mill 1, at a rate of 600 t/d and an estimated annual tailings volume of 120,000 m3. The total tailings storage volume of the facility as designed was approximately 2.83 million cubic millimetres (Mm3). As of 31 January 2024,

amcconsultants.com268
NI 43-101 Technical Report Update on the Ying Ag-Pb-Zn Property in Henan Province, People's Republic of China
 
Silvercorp Metals Inc.0723067

the remaining tailings storage capacity was estimated to be approximately 90,000 m3 and the remaining service life approximately six months. Tailings discharge to TSF 1 is scheduled to cease in July 2024. Silvercorp has appointed a consultant to carry out a ‘status evaluation report’ of the facility as part of the process to prepare a closure plan and program, which will be carried out by another consultant. It is anticipated that construction of closure features will commence in July 2024.

Construction of TSF 2, also known as the Shiwagou TSF, commenced in May 2010, based on a design prepared by the Sanmenxia Gold Design Institute Co. Ltd. Tailings deposition to the facility commenced in 2013 and has been ongoing since then. The facility was designed to accommodate tailings production from Mill 2 at a rate of 2,000 t/d and an estimated annual tailings volume of 364,000 m3. The total tailings storage volume of the facility as designed was estimated to be approximately 4.06 Mm3. As of 31 January 2024, the remaining tailings storage capacity was calculated to be approximately 2.29 Mm3 and the remaining service life approximately 5.25 years.

Construction of a third TSF, named TSF 3 or the Shimengou TSF, commenced in July 2022 with the excavation of the decant tunnels. Groundworks at the dam site and within the impoundment area commenced in August 2023. Work on the starter facility construction is progressing and is scheduled for completion in the second half of 2024. The facility, designed by the Changchun Gold Design Institute Company, has a total tailings storage volume of 17.2 Mm3.

18.1.2Facility 1 & 2 description
18.1.2.1Confining dams

The two existing tailings facilities are similar in design, construction, and method of operation. Both are cross valley impoundments, with containment provided by a single dam located within a narrow and steeply sided valley (refer Figure 18.2).

Figure 18.2View of downstream face of TSF 2

Source: AMC, 2024.

amcconsultants.com269
NI 43-101 Technical Report Update on the Ying Ag-Pb-Zn Property in Henan Province, People's Republic of China
 
Silvercorp Metals Inc.0723067

Homogeneous, permeable, rockfill starter dams were constructed at both sites, to heights of approximately 26 m and 36 m, respectively. Both dams were subsequently raised incrementally, using upstream construction methods and tailings reclaimed mechanically from the adjacent beach. Raises were typically constructed in lifts of between 1.5 m and 2.0 m in height and benches formed at regular intervals – 4 m at TSF 1 and 6 m at TSF 2. On the downstream face of the dams above the starter embankment, topsoil was applied to the surface of the trimmed tailings surface and subsequently seeded to form a vegetative cover. On the starter dam, the downstream slope was covered with a layer of dressed stone (refer Figure 18.3).

Figure 18.3 View of downstream face of TSF 2 Starter Dam

Source: AMC, 2024.

 

A surface drainage system was constructed on the downstream face of both dams, comprising a network of rectangular reinforced concrete bench drains, drop chutes, and abutment drains. A series of concrete deflector plinths was also constructed to reduce flow path lengths and flow velocities. The drainage system conveys surface water to the downstream toe of each dam.

Surface water diversions are located on the valley sides above each facility, and a diversion dam constructed upstream of each facility to limit the amount of surface runoff reporting to the facilities.

The major parameters for each facility are summarized in Table 18.1.

amcconsultants.com270
NI 43-101 Technical Report Update on the Ying Ag-Pb-Zn Property in Henan Province, People's Republic of China
 
Silvercorp Metals Inc.0723067
Table 18.1Major characteristics TSF 1 and TSF 2

 

Parameter TSF 1 TSF 2
Starter dam crest elevation (m) 606 591
Starter dam height (m) 26 36
Starter dam upstream slope 1 V:2.0 H 1 V:2.0 H
Current crest elevation (m) 650 672
Starter dam downstream slope 1 V:2.0 H 1 V:2.5 H
Ultimate dam crest elevation (m) 650 690
Ultimate dam height (m) 70 135
Bench spacing on upstream raise portion of dam 4 6
Bench width (m) 2 2
Overall dam slope 1 V:5.0 H V:4.5 H

 

Both dams contain an internal finger drain system, intended to drain the downstream face of the dams above the level of the starter dam. The system comprises approximately 60 m long perforated pipes wrapped in geotextile laid sub-horizontally at 20 m horizontal centres within the tailings mass. Pipes, which discharge to the surface drainage system on the dam face, are installed at each bench level (refer Figure 18.4).

Figure 18.4Discharging finger drain

Source: AMC, 2024.

 

amcconsultants.com271
NI 43-101 Technical Report Update on the Ying Ag-Pb-Zn Property in Henan Province, People's Republic of China
 
Silvercorp Metals Inc.0723067

 

It is also understood that both starter dams contain some form of upstream toe drainage system, which gravity discharges, via pipes installed at the base of the dams, to the downstream toe. It appears these pipes may have been sealed off subsequently (refer Figure 18.5 and Figure 18.6).

Figure 18.5Upstream toe drain outlet pipe – TSF 1

Source: AMC, 2024.

amcconsultants.com272
NI 43-101 Technical Report Update on the Ying Ag-Pb-Zn Property in Henan Province, People's Republic of China
 
Silvercorp Metals Inc.0723067
Figure 18.6Upstream toe drain outlet pipes – TSF 2

Source: AMC, 2024.

 

18.1.2.2Facilities operation and management

Slurry tailings are delivered to the crest of each dam and discharged to the facility via spigot offtakes located at 6 m centres (refer Figure 18.7), creating a tailings surface that slopes downwards to the west, where the supernatant pond forms.

Figure 18.7Tailings discharge along crest of TSF 2

Source: AMC, 2024.

amcconsultants.com273
NI 43-101 Technical Report Update on the Ying Ag-Pb-Zn Property in Henan Province, People's Republic of China
 
Silvercorp Metals Inc.0723067

The decant system comprises a series of vertical reinforced concrete towers located within the impoundment area. As the facility is filled and the pond level rises, concrete rings are added to the towers to control the pond water level (see Figure 18.8). When the operating range of a tower is exceeded, the tower is capped, and the next uphill tower is commissioned. Decant towers are connected by tunnels excavated in bedrock to a main outlet tunnel installed, within bedrock, beneath the facility. The main decant tunnel conveys water downstream of the starter dam where it is collected and returned to the plant.

Figure 18.8Operational decant tower in TSF 2

Source: AMC, 2024.

 

A dedicated team of twenty-one specifically trained personnel is responsible for the operation of the facilities. The team includes one full-time safety manager, one tailings engineer, sixteen tailings operators, and three water pump operators, working two, twelve hour shifts per day. All personnel involved in the operation of the tailings facilities have been trained and certified to work.

18.1.2.3Surveillance – Monitoring instrumentation and inspections

Monitoring instrumentation

A comprehensive suite of instrumentation is installed on both facilities. Instruments include piezometers (standpipe and vibrating wire), displacement measuring devices (GPS and inclinometers), survey pins, video cameras, beach level and supernatant pond level sensors. The numbers of each instrument type installed on each facility is summarized on Table 18.2.

amcconsultants.com274
NI 43-101 Technical Report Update on the Ying Ag-Pb-Zn Property in Henan Province, People's Republic of China
 
Silvercorp Metals Inc.0723067
Table 18.2Number of instruments installed on TSF 1 and TSF 2

 

Instrument type TSF 1 TSF 2
Vibrating Wire Piezometer 6 12
Standpipe Piezometer 30 39
Survey Pin 33 39
GPS Displacement Monitor 2 6
Inclinometer 2 4
Camera 5 9
Beach Level Sensor 2 2
Water Level Sensor 1 2
Rain gauge 1 1

 

An on-line monitoring system allows data to be continuously monitored. Data from the system are displayed continuously, and in real-time, on monitors installed in the control room (Figure 18.9).

Figure 18.9TSF monitoring data displayed in the control room

Source: AMC, 2024.

amcconsultants.com275
NI 43-101 Technical Report Update on the Ying Ag-Pb-Zn Property in Henan Province, People's Republic of China
 
Silvercorp Metals Inc.0723067

Data are automatically monitored according to a Trigger Action Response Plan based on a four-level alert model (red, orange, yellow, blue). In the event of anomalous data being detected, the network generates an alert message, which it then automatically transmits to management staff depending on the alert level. In addition to mine personnel and management, the system will, as appropriate, issue alert messages to provincial, city and county monitoring centres.

Inspections

A comprehensive inspection regime is in place for both existing tailings facilities. Daily inspections are conducted by facility operators and cover all aspects of the TSF operation including operating parameters, the dam structure, drainage facilities, communication systems and the decant operation. Inspections are conducted in accordance with an electronic template report which is completed and posted on-line daily. Weekly inspections are carried out by the team leader and monthly inspections by the supervisor or process plant manager. On-line template reports are completed for all inspections.

Inspection personnel use a web-based system, which facilitates the uploading of real-time photos and records of facility conditions to a site-specific hazard inspection form. The system then issues alerts / warnings, depending on the severity of the identified hazard, to the appropriate level of management for action.

Chinese regulations require that a Safety Standards Evaluation Report be prepared every three years. This third-party report is essentially a comprehensive audit of the facility. The report is submitted to the government for review and, on approval, a Safety Production License (an operating license) is issued. Licenses for the facilities are valid through to 20 November 2025 for TSF 1 and 6 December 2025 for TSF 2.

The facilities are also regularly inspected by various Government departments at unspecified times. It is understood that approximately three such inspections are conducted per year. Other inspections include, but are not limited to:

·Annual third-party inspection of the decant system.
·Annual third-party assessment of risks and hazards and verification of flood control calculations and stability verification.
·Annual verification of operating data including tailings particle size distribution, tailings tonnage and volume, tailings beach levels and dam crest.
18.1.2.4Dam Classification and Design Criteria

All three tailings facilities have been designed in accordance with prevailing Chinese standards, with TSF 3 as per the most recent iteration of the standard published in 2020 (GB 39496 – 2020, Safety Regulations for Tailings Ponds), which replaced the earlier 2006 version (AQ2006-2005, Safety Technical Regulations for Tailings Ponds).

International practice uses dam classification methods to categorize TSF confining dams. Classification is undertaken to develop an understanding of the potential impacts of the facility, to inform the selection of appropriate design parameters, and to guide the development of dam safety stewardship and management programs. Classification schemes, of which there are many, are generally of two types; those that are based on an assessment of the potential consequence of dam failure and those that are based on height and storage volume. The Chinese classification is of the latter type, as shown on Table 18.3.

amcconsultants.com276
NI 43-101 Technical Report Update on the Ying Ag-Pb-Zn Property in Henan Province, People's Republic of China
 
Silvercorp Metals Inc.0723067
Table 18.3Dam Classification System (as per GB 39496 – 2020)

 

Category no. Stored volume (Mm3) Dam height (m)
1 >500 >=200
2 100 - 500 100-200
3 10 - 100 60-100
4 1 - 10 30-60
5 <1 <30

Containing less than 3 Mm3 of tailings and with an ultimate dam height of 70 m, TSF 1 is classified as a Category 3 facility. TSF 2, with a storage volume of approximately 4 Mm3 and an ultimate dam height of 135 m, also classifies as a Category 3 facility (the dam is Category 4 based on volume and Category 2 based on height, however, the standard states that when the category classification varies as such, the intermediate category is selected).

TSF 3, with a planned storage volume of more than 17 Mm3 and an ultimate dam height approaching 180 m, classifies as a Category 2 facility.

18.1.2.5Documentation

Documentation for both facilities appears to be extensive. Detailed and voluminous construction reports for both facilities, including comprehensive QA/QC test results on all aspects of the facility and signed ‘as-built’ drawings, were sighted during the QP site visit in February 2024, as were the latest Safety Standards Evaluation Reports.

Recent Slope Stability Analysis Reports (2020 for TSF 1 and 2019 for TSF 2) for both facilities were also reviewed during the site visit.

18.1.3TSF 3 description
18.1.3.1Confining dam

The design arrangement for the Shimengou TSF is broadly similar to that of the existing two facilities, with some exceptions, reflecting the more stringent requirements adopted by Chinese regulators in recent years. The most significant of these is the requirement to install an HDPE geomembrane liner over the full impoundment area, a not insignificant undertaking given the steep terrain.

The facility is a cross valley impoundment with containment provided by a single dam located within a narrow and steeply sided valley. The 60 m high starter dam will be a homogeneous, free draining structure, constructed with rock quarried from the basin area. Fill material will comprise competent rock with a maximum particle size of approximately 330 mm with less than 5% fines (75 microns). Fill material will be placed in 500 mm layers. A drainage system will be constructed on the upstream face comprising:

·300 mm thick transition layer of 10 mm to 30 mm gravel placed on the dam rockfill.
·300 mm thick coarse sand layer.
·500 grams per square metre (g/m2) geotextile.
·300 mm thick coarse sand layer.
·500 mm thick protective layer of 10 mm to 30 mm gravel.
amcconsultants.com277
NI 43-101 Technical Report Update on the Ying Ag-Pb-Zn Property in Henan Province, People's Republic of China
 
Silvercorp Metals Inc.0723067

The drainage system will be extended beneath the dam footprint. Details of the drain to be installed at the base of the starter dam are:

·300 mm thick coarse sand layer placed on the prepared foundation.
·500 g/m2 geotextile.
·1.5 mm thick HDPE geomembrane.
·Drainage net geocomposite comprising a 7 mm thick drainage core sandwiched between two layers of geotextile, one 200 g/m2 and one at 500 g/m2.
·300 mm thick layer of 10 mm to 30 mm gravel.

The dam will be constructed with 2 m wide benches at 10 m vertical intervals, resulting in upstream and downstream slopes of approximately 1 V:1.96 H and 1 V:1.98 H, respectively.

From the starter dam crest at El. 550 m, the dam will be raised using upstream construction methods and reclaimed tailings to an ultimate crest elevation of 670 m, resulting in an ultimate dam height of approximately 180 m (measured from the downstream toe). Benches, 5 m wide, will be installed at 10 m vertical intervals. With an inter-bench slope of 1 V:4.0 H, the overall slope above the starter wall will be approximately 1 V:5.0 H.

18.1.3.2Basin liner

As previously noted, the entire basin area will be lined with a 1.5 mm thick HDPE geomembrane liner. To facilitate liner placement, the valley sides will be shaped with benches created at 10 m vertical intervals. A protective geotextile will be placed on top of the HDPE.

18.1.3.3Water management

There are two water management systems associated with the Shimengou TSF, the ‘operational’ system and the ‘flood control system.’

The operational system relates to the collection of slurry water and surface water runoff directly from the facility basin. The system, similar to that installed in TSF 1 & TSF 2, comprises a series of 6 m diameter vertical decant towers (the initial tower has a diameter of 3 m) within the basin area, connected, via branch tunnels, to a main tunnel excavated through bedrock on the southern side of the valley. At each decant location, dual towers are constructed, providing an additional level of redundancy to the system. 11 towers are proposed at six separate locations (the initial decant point is equipped with a single tower). The overall tunnel length is approximately 3,200 m. The main tunnel terminates in a stilling basin located downstream of the Starter Dam.

Provincial standards (Henan Provincial Local Standard, DB41/T1448-2017), require a level of redundancy be provided for flood drainage. In compliance with the standard, the TSF design features a double flood drainage system. This second system comprises:

·A 26 m high water diversion dam constructed upstream of the TSF Starter facility to a crest elevation of 640 m.
·An approximately 1,828 m long discharge tunnel driven through bedrock on the northern side of the valley, which conveys water downstream of the starter dam.

According to standards requirements, the TSF's flood protection standard is based on a 500-year and a 1,000-year period.

In addition to the two systems described above, a surface water diversion channel will be installed on the valley sides above the facility to capture and divert surface water runoff around the facility.

amcconsultants.com278
NI 43-101 Technical Report Update on the Ying Ag-Pb-Zn Property in Henan Province, People's Republic of China
 
Silvercorp Metals Inc.0723067

The approximately 9.2 km reinforced concrete lined channel will be constructed approximately along the 670 m contour.

18.1.3.4Facility construction

Tunnel excavation commenced in July 2022 and, by the time of the site inspection in February 2024, tunnel excavation was complete and tunnel lining works were well advanced (see Figure 18.10 and Figure 18.11).

Figure 18.10TSF 3 completed main tunnel

Source: AMC, 2024.

amcconsultants.com279
NI 43-101 Technical Report Update on the Ying Ag-Pb-Zn Property in Henan Province, People's Republic of China
 
Silvercorp Metals Inc.0723067
Figure 18.11TSF 3 tunnel lining in progress

Source: AMC, 2024.

 

Earthworks for the starter facility commenced in August 2023 and are progressing. At the time of the February 2024 site inspection, foundation preparation – excavation of foundation to a competent formation – for the starter dam, was complete (see Figure 18.12) and work on the terracing within the basin area was well advanced (see Figure 18.13). Silvercorp anticipates that construction of TSF 3 will be completed by the end of 2024.

amcconsultants.com280
NI 43-101 Technical Report Update on the Ying Ag-Pb-Zn Property in Henan Province, People's Republic of China
 
Silvercorp Metals Inc.0723067
Figure 18.12View upstream to TSF 3 Starter Dam Foundation Excavation (longitudinal axis of starter dam extends from left (close to excavator to right)

Source: AMC, 2024.

 

amcconsultants.com281
NI 43-101 Technical Report Update on the Ying Ag-Pb-Zn Property in Henan Province, People's Republic of China
 
Silvercorp Metals Inc.0723067

 

Figure18.13Terracing in progress within TSF 3 basin area

Source: AMC, 2024.

 

18.1.3.5Facility documentation and design

Documentation associated with the design of TSF 3 appears to be comprehensive and commensurate with the more stringent requirements imposed by local regulators in recent years. In addition to the appropriate geotechnical, geological, and hydrological supporting studies, the following studies / reports are required:

·3D seepage analysis.
·Dynamic seismic analysis
·Dam failure numerical simulation study (tailings dam breach assessment)
·Hydraulic numerical simulation study report for flood discharge system

All these reports have been prepared and submitted for TSF 3.

18.1.4Conclusions and recommendations
18.1.4.1General

Overall, the QP notes that existing facilities appear to be in good condition, are well maintained, well operated and appropriately managed.

The facilities are in an area of low seismic activity and are founded on competent bedrock. Facility designs are conventional and reasonable.

Monitoring systems and procedures are extensive and commensurate with accepted international good practice. The facilities are extensively inspected by a range of internal and external parties and are subject to considerable oversight from local regulators.

Based on the data presented during the site visit, it appears that the facilities were constructed to a high standard, with adequate levels of oversight and in accordance with an appropriate QA/QC program. Detailed ‘as-built’ reports are available for each facility, including signed-off construction drawings.

amcconsultants.com282
NI 43-101 Technical Report Update on the Ying Ag-Pb-Zn Property in Henan Province, People's Republic of China
 
Silvercorp Metals Inc.0723067

Both existing facilities are designed and operated in accordance with Chinese standards, although as discussed further below, these standards may, in certain areas, differ from current commonly accepted international standards.

The new TSF 3 is similar in design and operation to the existing two facilities, with some notable exceptions, including the incorporation of a complete basal liner to the impoundment area, reflecting the increased standards now required by local regulators. Design documentation is extensive, again reflecting the increased requirements, as regulators move towards an alignment with international standards. Supporting studies for the new facility thus include a Tailings Dam Breach Analysis and three-dimensional seepage modelling. Facility construction is progressing, albeit more slowly than originally planned. It is anticipated that the starter facility will be completed by the end of 2024.

18.1.4.2Specifics

Comments on specific areas of the facilities design, operation and management are discussed in the following sections.

Dam classification

All three facilities have been classified by the designers in accordance with the prevailing Chinese system, which classifies dams based on the stored volume and dam height. TSF 1 and TSF 2 classify as Category 3 facilities and TSF 3 as Category 2. Flood design criteria, as proposed by Chinese standards, are 1:500-yr recurrence interval and 1:1,000-yr recurrence interval events, for Category 3 and Category 2 facilities, respectively.

Designing to accommodate a 1-500-yr design flood event for a facility the height of TSF 1 and TSF 2 appears to be adopting a low design criterion (for example the probability of a 1:500-yr event been exceeded in a 50-year design life is approximately 10%). In the opinion of the QP, most practitioners would adopt more extreme design criteria.

Slope stability analyses

Limit equilibrium factors of safety

Slope stability analyses (limit equilibrium) have been carried out for both existing facilities and the results presented in detailed and comprehensive reports. Minimum Factors of Safety (FoS) were reported to be 1.305 and 1.391 for TSF 1 and TSF 2, respectively. While these values meet the minimum value of 1.3 stipulated in Chinese standards, they do not meet currently accepted international standards (ICOLD, CDA, ANCOLD, etc.), which adopt a minimum target FoS of 1.5. The difference between a FoS of 1.3 and 1.5 is significant and the relatively low quoted factors of safety are of potential concern.

Undrained analyses

Significantly, the stability analyses appear only to have considered drained loading conditions. It is well accepted international practice that, where contractive materials exist, undrained strength analyses must be considered, as most dams fail in undrained or partially undrained conditions where the shear strength is typically lower than the drained strength parameters would indicate. For example, the latest International Commission on Large Dams (ICOLD) Bulletin on Tailings Dam Safety1 (to be published later in 2024) states: “For dams that have contractive elements in the dam

 

 

 

 

1 Tailings Dam Safety, ICOLD Bulletin No. 194, Committee L Tailings Dam and Waste Lagoons.

amcconsultants.com283
NI 43-101 Technical Report Update on the Ying Ag-Pb-Zn Property in Henan Province, People's Republic of China
 
Silvercorp Metals Inc.0723067

shell or foundation and that may be (or may become) saturated or partially saturated, undrained shear strength parameters must be considered”. Similar specific guidance is provided in the ANCOLD Guidelines on Tailings Dams 2 : “Where tailings dams involve uncompacted materials such as deposited tailings …… which can exhibit contractive behaviour, the drained shear failure mode is likely to over-predict the stability of the dam. Long-term stability analyses must consider all materials that are contractive and generate pore pressures on shearing. These materials should always be modelled in accordance with the Undrained Strength Analysis approach”.

Considering the nature of the tailings materials, and the relatively rapid rates of rise that prevailed during the early stage of facility development, the QP considers it likely that zones of contractive tailings material exist within the structural zones of both TSF 1 and TSF 2 and that, therefore, undrained analyses should be considered.

Liquefaction

The stability reports state that foundation liquefaction is not considered plausible and, given that the dams are founded on bedrock and in an area of low seismicity, this assumption appears reasonable. However, it does not appear that potential liquefaction of the tailings mass, and in particular, static liquefaction, has been considered in the analyses.

Static liquefaction represents a subset of contractive undrained shearing of loose, near-saturated materials, wherein substantial strength loss occurs following a triggering event, causing a change in stresses within the structure. The shear resistance of the materials subject to static liquefaction reduces rapidly due to the excessive strain-induced pore water pressures. Current recommended international guidance is that, if the tailings or any other materials, which may be important for the TSF stability, are brittle and potentially contractive, significant rigour is required in the assessment of the liquefaction susceptibility, stability assessment and the triggering analyses.

Phreatic surface

Installed piezometers indicate a relatively high phreatic surface within the tailings mass upstream of the starter dam.

Previous QP recommendations

Recommendations made in previous QP reporting and their understood status in that reporting are as follows:

·Local guidelines suggest a seismic peak ground acceleration of 0.05 g. The QP has previously recommended that Silvercorp review the design basis acceleration to ensure consistency with the most up-to-date Ying site seismic zoning classification and associated parameters. The QP understands that Silvercorp is reviewing and assessing seismic data relevant to TSFs 1 and 2 and as part of the design process for TSF 3.
·The QP has previously recommended that the dam classification under the Chinese system be reviewed in the context of recent international classifications. The QP understands that Silvercorp is reviewing recent international classification norms relative to the current Ying TSF classifications.
·The QP has previously recommended that Silvercorp also ensure that all safety and stability aspects of the TSFs are fully aligned with most up-to-date tailings facility recommendations

 

 

 

 

2 Guidelines on Tailings Dams: Planning, Design, Construction, Operation and Closure. Addendum, Australian National Committee on Large Dams, July 2019.

amcconsultants.com284
NI 43-101 Technical Report Update on the Ying Ag-Pb-Zn Property in Henan Province, People's Republic of China
 
Silvercorp Metals Inc.0723067

on international best practice, including for latest guidance on maximum flood parameters. The QP reiterates that recommendation and understands that Silvercorp is reviewing associated aspects for the current TSFs and for the third TSF that is under construction.

·As a general comment with respect to the Ying TSFs, it is recommended that Silvercorp reference the Global Industry Standard on Tailings Management (‘Global Industry Standard’). The QP understands that Silvercorp is making some changes to its TSF practices to better align with the Global Industry Standard. Furthermore, it is recommended that a specified program be put in place, with timeframes and participating entities identified, for review of TSF design criteria and operating practices in the context of ensuring alignment with current international industry standards and guidelines.

 

18.1.4.3Current QP recommendations and Silvercorp response comments (italicized)

The QP makes the following recommendations:

·Consideration should be given to the adoption of more stringent hydrological design criteria for all three facilities, adopting a more extreme Inflow Design Flood than the presently adopted 1:500-year or 1:1,000-yr events.
¾Silvercorp has indicated the following relative to the above recommendation:
-Silvercorp acknowledges the variations in classification standards and design criteria for tailings storage facilities (TSFs) between the Chinese standards and international standard. To ensure the safe operation of these facilities, Silvercorp will engage accredited third-party engineering firms to conduct annual assessments on the current situation flood routing for TSF1 and TSF2 and, also, the climate factors. If necessary, Silvercorp will adjust the operational parameters of the TSFs to ensure the safe operation of the facilities.
·A reassessment of the slope stability analysis for the existing facilities should be undertaken, using up to date methods of analyses and considering all appropriate loading conditions. Initially, this should entail a rigorous review of all data obtained from field and laboratory testing with a particular focus on the identification of contractive materials based on the results of CPTu data. Undrained limit equilibrium analyses should be conducted. Depending on the results of this review and the undrained analyses, more complex methods of analyses may be required using advanced numerical models, i.e., non-linear deformation analyses (NDA).
¾Silvercorp has indicated the following relative to the above recommendation:
-The Company will engage accredited third-party engineering firms to conduct annual stability assessments of the dam structures for both TSF1 and TSF2.

In the ‘Current Situation Flood Routing Simulation and Dam Stability Analysis’ report of 2022, the minimum factors of safety were reported to be 1.363 for TSF1 and 1.42 for TSF2.

-During the stability analysis of the TSFs, the shear strength of each soil layer material in both drained and undrained states is examined. This examination provides values for the friction angle ΦΦ (degrees) and cohesion 𝐶C (kPa) for both consolidated drained shear (below the Phreatic surface) and consolidated undrained shear (above the Phreatic surface). Subsequently, calculations are performed using the total stress method, taking into account both effective stress and pore water pressure.

Table 18.4 shows the relevant requirements for the testing methods of the strength indicators of tailings dam body materials and dam foundations.

amcconsultants.com285
NI 43-101 Technical Report Update on the Ying Ag-Pb-Zn Property in Henan Province, People's Republic of China
 
Silvercorp Metals Inc.0723067
Table 18.4Silvercorp table: Testing methods for tailings dam materials

 

Strength calculation
method
Type of soil Instruments used Test method and
code
Strength
index
Sample initial
state
  Non-cohesive soil Triaxial apparatus Consolidated undrained shear (CU)  

I. Dam body material:

1. The water content and density shall be consistent with the original state;

2. The place below the saturation line and underwater shall be pre- saturated;

3. The test stress shall be consistent with the actual stress of the dam.

II. The dam foundation soil shall be undisturbed soil.

  Less cohesive soil Direct shear apparatus Consolidated quick shear (CQ)  
Total stress method Triaxial apparatus Consolidated undrained shear (CU) Ccu, φcu
  Cohesive soil Direct shear apparatus Consolidated quick shear (CQ)  
  Triaxial apparatus Consolidated undrained shear (CU)  
  Non-cohesive soil Direct shear apparatus Slow Shear (S)  
  Triaxial apparatus Consolidation drainage shear (CD)  

Effective stress method

 

 

Cohesive soil The saturability shall be less than 80% Direct shear apparatus Slow Shear (S) Cφ’
Triaxial apparatus Pore water pressure measured in consolidated undrain shear

The saturability shall be greater than

80%

Direct shear apparatus Slow Shear (S)
Triaxial apparatus

Consolidation undrained Pore water

pressure measured

in shear

Note:

1.  Non-cohesive soil refers to tailings or dam foundation soil with clay content less than 5%. Less cohesive soil refers to tailings or dam foundation soil with clay content less than 15%.

2.  When the index of consolidated quick shear is adopted for cohesive soil of soft tail clay, the strength index shall be determined according to the degree of consolidation; when the shear strength index of the cross plate is adopted, the strength index shall be revised according to the degree of consolidation.

We will continue to look for more effective methods to study the slope stabilities and take actions accordingly.

·For TSF 3, consideration should be given to the installation of an underdrainage system, installed above the HDPE basin liner in the area immediately upstream of the starter dam. The aim of this system would be to facilitate the drainage of the tailings mass on which subsequent upstream raises would be constructed.
¾Silvercorp has indicated the following relative to the above recommendation:
-The adoption of this recommendation will trigger a major design change to the construction of the tailings facility. We will discuss this recommendation with the existing engineer firm to assess the risks, costs, timing, and the regulatory approval process required associated with this recommendation.
amcconsultants.com286
NI 43-101 Technical Report Update on the Ying Ag-Pb-Zn Property in Henan Province, People's Republic of China
 
Silvercorp Metals Inc.0723067
18.2Waste rock dumps

Waste dumps for the Ying mines are listed in Table 18.5. Based on mine and development plans, the mines on the Ying Property will move about 4.35 Mm3 of waste rock to the surface dumps during the remaining mine life. The excess capacities of the existing dumps are calculated as 12.61 Mm3.

Silvercorp indicates attaching great importance to environmental protection and waste minimization. At the end of April 2021, the Hongfa Aggregate Plant (Hongfa) was constructed to recycle and crush the waste rock from the Ying Mining District. Since Hongfa has been in operation, Silvercorp has evaluated each waste dump, and decided to reclaim three waste dumps (two waste dumps at the SGX mine, and one at the HZG mine). The role of the other waste dumps is changing to temporary waste rock storage, from which waste rock is hauled to the Hongfa plant each day. Figure 18.14 shows the Hongfa plant.

Figure 18.14Hongfa Aggregate Plant at the Ying site

Source: AMC, 2024.

amcconsultants.com287
NI 43-101 Technical Report Update on the Ying Ag-Pb-Zn Property in Henan Province, People's Republic of China
 
Silvercorp Metals Inc.0723067
Table 18.5Waste dumps at the Ying project

 

Mines No. of waste dumps Remaining capacity in 2024 (m3) LOM waste (m3) Variance1 (m3)
SGX 1 12,627,053 1,728,947 10,898,106
HZG 2 548,728 192,203 356,525
HPG 2 1,482,840 416,178 1,066,662
TLP 1 1,500,000 968,832 531,168
LME 0 0 489,607 -489,607
LMW 2 806,217 519,191 287,026
DCG 0 0 39,701 -39,701
Total 8 16,964,838 4,354,659 12,610,179

Note: 1Positive value indicates dump has excess capacity.

 

From Table 18.5 it is seen that the combined waste dump capacity of all mines is enough for the anticipated LOM waste rock.

At the SGX mine, development waste from CM105, PD16, CM102, CM101, PD700 and XPD will be transported to the Zhaogou waste dump, which has a remaining capacity of approximately 1.26 Mm3.

At LMW, a new waste dump has been built in the Houyangpo Valley near the New Ramp portal. The remaining capacity of the two LMW dumps is approximately 0.8 Mm3.

At TLP, the waste rock from PD730 can be dumped to the Xigou valley. The waste rock from the Xigou valley is transported to the aggregate plant daily by trucks that can carry up to 45 tonnes.

In 2023, 464,631 tonnes of waste rock from the Ying Mining District were transported to the Hongfa plant (TLP 222,922 tonnes, DCG 13,986 tonnes, SGX 24,314 tonnes, LMW 167,451 tonnes, HPG 25,029 tonnes, LME 10,927 tonnes). The Hongfa plant consumed 511,885 tonnes of waste rock and produced 400,018 tonnes of sand and gravel aggregates. Any profits from the Hongfa operation, after capital recovery, are shared between the local government, the local communities, and employees.

Waste may also be opportunistically placed into the shrinkage stope voids, although this is not in the current mine plan.

Waste can also be consumed for local construction works such as hardstand areas, retainer walls, and other miscellaneous infrastructure foundations.

18.3Power supply

The power supply for the Ying property is from the Chinese national grid, with various high voltage power lines and distances to the different mine camps and mill plants.

18.3.1SGX and HZG mines

Three power lines supply electricity to the SGX / HZG camps:

·The 35 kV and 10 kV power lines are from the nearby Luoning Guxian Hydropower Station, 7.85 km north-west of the SGX mine, where the hydropower is generated by the Guxian Dam and there are two substations, one with 110 kV and another with 35 kV capacity.
·The SGX 35 kV line is connected to the Luoning Guxian 110 kV substation, while the 10 kV line is connected to the Luoning Guxian 35 kV substation.
amcconsultants.com288
NI 43-101 Technical Report Update on the Ying Ag-Pb-Zn Property in Henan Province, People's Republic of China
 
Silvercorp Metals Inc.0723067
·The third line is a 10 kV line that is connected from the Chongyang 35 kV substation, about 12.1 km north-east of the SGX mine.

At the SGX mine, a fully automated 35 kV transformer station in the immediate vicinity of the mine site was built in 2008. This connects to the 35 kV line from Guxian and provides main electricity for the mine production and for office and residential use. The main transformers in the 35 kV substation have a total capacity of 6,300 kVA.

Two 10 kV lines mainly act as a standby source of power in case of disruption of the 35 kV line. Two 1,500 kW and one 1,200 kW diesel generators are installed at the 35 kV substation and are connected to local mine power grids, acting as a backup power supply in the event of a grid power outage.

Underground water pumps, primary fans, and shaft hoists are major pieces of equipment that require a guaranteed power supply, so two 10 kV power lines (one for normal operation and another for backup) from different sources are installed to connect to this equipment.

Power from the 35 kV substation is transformed to 10 kV and is delivered to each adit portal by overhead lines that mostly follow the access roads. The overhead lines terminate at transformers outside each adit portal, shaft, or decline. The transmission cables are 105 to 150 square millimetres (mm2) size.

18.3.2HPG mine

Two high voltage 10 kV lines supply electricity to the HPG mine site. The main power supply line is from the Chongyang 35 kV substation, 11 km north-east of the mine, and a second line connects to the SGX 35 kV substation that is used as a standby line. One 400 kW diesel generator is installed outside of the HPG PD3 tunnel, acting as backup power supply.

The 10 kV line terminates at the transformers outside each adit portal. The office buildings and camp areas for mine operations are connected to the same power line. A 105 mm2 cable is used to connect 10 kV power to an internal shaft hoist chamber in PD3.

18.3.3TLP / LM mines

Two 10 KV power lines provide electricity for the TLP and LM mines; both are from Chongyang 35 kV substation, 8 km north of the TLP mine.

Similar to the other mines on the Ying Property, the 10 kV line terminates directly at transformers outside of adit portals. The office buildings and camp areas for mine operations are connected to the same power line. 105 to 150 mm2 cables are used to connect 10 kV power to internal shaft hoist chambers of Lines 55, 33, 23, inclined haulageways in PD730 at the TLP mine, and the internal shaft hoist chamber in PD900 at the LM East camp.

18.3.4No. 1 and No. 2 Mills and office / camp complex

Power for the No. 1 and No. 2 Plants and Silvercorp’s site administration office building and camp complex is drawn from the Chongyang 35 kV substation. The 10 kV power from the substation is transformed to 400 V by several transformers for mill operations, water pumps and for office and camp uses.

The total power consumptions for No. 1 and No. 2 Plants, including associated water pumps, are 2,500 kVA and 6,500 kVA, respectively.

amcconsultants.com289
NI 43-101 Technical Report Update on the Ying Ag-Pb-Zn Property in Henan Province, People's Republic of China
 
Silvercorp Metals Inc.0723067
18.3.5Underground lighting

400 V to 230 V and 400 V to 127 V transformers are used to transform high voltage to low voltage power for underground lighting purposes. Mining level lights run on a 36 V system. Step-down transformers are used in many locations, as required.

18.3.6Power for future TSF 3

The QP understands that existing main power supply provisions will be able to meet the power requirements of the third TSF that is currently under development.

18.4Roads

The central mills and mine administration office and camp complex are located about 3 km north-east of the town of Xiayu, in the south-west of Luoning County. Luoning to Xiayu is connected by a 7 m wide and 48 km long paved road called the Yi-Gu Way. The company has built a 2 km long, 6 m wide concrete road to link the mill / office complex to the Yi-Gu Way.

Prior to 2021, access to the SGX / HZG mine from the mill-office complex was via a 7 km paved road to Hedong wharf of Guxian Reservoir, and then across the reservoir by boat to the mine site. Silvercorp shipped the ore from the SGX / HZG and HPG mines to Hedong wharf by two large barges that could carry up to five 45-tonne trucks. Since the beginning of 2021, ore transport from the SGX / HZG and HPG mines has changed to an alternative ore transport route. The route from the SGX mine site to the mill-office complex runs by the HPG mine and is via a 10 km road that passes through three tunnels (Xizihu - 1,707 m, Xiangjunshan – 1,618 m, Yueliangwan – 1,175 m) in sequence, with three bridges connecting the tunnels. These changes resulted in the cost for ore shipment increasing by about $1/t. Figure 18.15 shows an ore truck emerging from the Yueliangwan tunnel.

amcconsultants.com290
NI 43-101 Technical Report Update on the Ying Ag-Pb-Zn Property in Henan Province, People's Republic of China
 
Silvercorp Metals Inc.0723067
Figure 18.15A shipping truck driven through Yueliangwan tunnel

Source: Silvercorp, 2022.

 

Surface access to the HZG mine is via ~ 10 km paved roads from either the SGX or HPG mines (see Figure 16.1).

The TLP, LME, and LMW mines are approximately 15 km south-east of the main office complex and are accessed by paved road along the Chongyang River.

Gravel roads link to all adits from the mine camps. Drainage ditches with trees are formed along the roads. The roads are regularly repaired and maintained by designated workers. Safety barriers are installed in some steep slope areas and warning signs are posted at steep slopes, sharp turn points, and places with potential traffic risks. The road to the TLP mine was upgraded in 2016.

The QP notes that there are some steep slope areas that lack road safety barriers and recommends that Silvercorp assess these areas and take appropriate actions to offset risk.

A 1,756 m transportation ramp was built in 2020 from the TLP camp area to the DCG mine for ore haulage. The DCG project can also be accessed by a 10.5 km paved road, south-southwest of the mills.

 

amcconsultants.com291
NI 43-101 Technical Report Update on the Ying Ag-Pb-Zn Property in Henan Province, People's Republic of China
 
Silvercorp Metals Inc.0723067

18.5Transportation

Heavy-duty trucks are used to transport ore, mine supplies, and concentrates.

Ore produced at the SGX / HZG, HPG, TLP, LME, LMW, and DCG mines is loaded onto 45-tonne trucks, then shipped by road to Silvercorp’s central mills (see Figure 16.1). All ore stockpiled outside underground adits is accessible by trucks.

At the SGX mine, ore from adits PD700, CM101, PD16, and CM105 is transported by diesel-powered locomotive and railcars to the ore stockpile yard in a 2.7 km long tunnel rail system. The tunnel starts at PD700 at 640 mRL and then extends north-easterly for 1,245 m to CM101. From CM101, the tunnel extends north-westerly for 365 m to PD16, where an ore bin was built to transfer ore from 640 m to 565 m elevation. From PD16, the rail goes north about 810 m to the ore bin, adjacent to the hand-sorting facility that is still in use. Ore from CM102 of the SGX mine is hauled to the ore stockpile yard at the SGX site using small 5-tonne trucks.

To transport ore efficiently and safely from HZG to SGX, Silvercorp constructed a 1,270 m long tunnel from PD820 that connects the existing tunnel rail system to PD700 at SGX. The tunnel was completed in December 2012, with overhead electrical line installation and narrow-gauge railway construction following. This allows ore mined from all the adits at the HZG mine to be transported to the SGX mine stockpile yard via the tunnel rail system by trolley locomotive.

The final products from the mill plants are lead and zinc concentrates, which are transported by trucks to local smelters located within a 210 km radius.

18.6Water supply

Domestic water for the SGX mine is sourced from the Guxian Reservoir, while water for the HPG, TLP, LME, LMW, HZG, and DCG mines is sourced from nearby creeks and springs. Water is regularly tested and the QP understands that its quality and quantity meet requirements. Table 18.6 shows example test results for the mines.

amcconsultants.com292
NI 43-101 Technical Report Update on the Ying Ag-Pb-Zn Property in Henan Province, People's Republic of China
 
Silvercorp Metals Inc.0723067

Table 18.6Example test results of potable water at the mines and mills

 

Location PH Hardness (mg/L) Dissolved solids (mg/L) Coliform count (number/L) Colony count (CFU/mL)
State standard (GB5749-2006) 6.5-8.5 450 1000 <LDL 100
LME       <LDL  
LMW 8.21 108 170 <LDL <LDL
TLP 8.06 106 162 <LDL 21
HPG 7.97 68 160 <LDL 18
SGX 7.93 112 98 <LDL <LDL
HZG 8.19 68 130 <LDL <LDL
DCG 8.14 171 266 <LDL 42
Mill 1 8.25 175 303 <LDL <LDL
Mill 2 8.12 179 262 <LDL 31

Note: LDL = Lower limit of detection.

amcconsultants.com293
NI 43-101 Technical Report Update on the Ying Ag-Pb-Zn Property in Henan Province, People's Republic of China
 
Silvercorp Metals Inc.0723067

Mine production water for drilling and dust suppression is sourced from underground at all the mines.

18.7Wastewater and sewage treatment

Wastewater is generated from mining activities, mineral processing, and domestic sewage.

At the SGX mine, underground water is pumped to surface via the mine portals and then pumped to Sedimentation Pond 1. At this pond, lime is added to assist flocculation. Further sedimentation occurs in Pond 2. The overflow is then allowed to drain to three settlement tanks before it is discharged into the Guxian Reservoir through a discharge point near CM102 that has been approved by the Yellow River Management Committee. Figure 18.16 is a view of the SGX water treatment plant. Fish were observed to be swimming in the treated water during the QP site visit in February 2024.

Figure 18.16 SGX water treatment plant

 

Source: AMC, 2024.

 

The Ying TSF tailings water is collected using dams under the TSF embankments. The collected tailings water from the TSFs is piped back to the processing plant for reuse. No tailings water is discharged to the environment.

amcconsultants.com294
NI 43-101 Technical Report Update on the Ying Ag-Pb-Zn Property in Henan Province, People's Republic of China
 
Silvercorp Metals Inc.0723067

Sewage from the SGX mining areas is collected and treated by a biological and artificial wetland treatment system. The QP understands that reports indicate that the treated water meets all the criteria of water reuse, with 100% being reused for landscape watering. There is no discharge to the reservoir.

At the HZG, HPG, TLP, LME, LMW, and DCG mines, underground water and domestic sewage are filtered through gravel pits and then discharged to the environment.

At HPG, the underground water is pumped through a 13.2 km, 150 mm diameter pipeline to Plant 2 for reuse. The set-up includes a 300 m3 wastewater pond and installation of two MD155-67x8(p) water pumps.

18.8 Other infrastructure

18.8.1Mine dewatering

Mine dewatering is described in Section 16.2.9. It is undertaken in accordance with the “Chinese Safety Regulations of Metal and Non-metal Mines”.

18.8.2Site communications

Mine surface communications are by landline and optical fibre service from CNC and with mobile phone services from China Mobile, China Telecom, and China Unicom. Internal telephones are installed in active mining areas and the dispatch room and are connected with local communication cable nets.

High-speed internet and fibre cables are connected to all the mine sites from Xiayu.

18.8.3Camp

At each mine and mill site there are dormitory buildings and administration buildings that are equipped with dining rooms and washrooms for Silvercorp’s management, technical personnel, and hourly workers. Colour-coded steel housing structures are built adjacent to each portal as living facilities for the mine contractor workers. These buildings also include dining rooms and washrooms.

18.8.4Dams and tunnels

Diversion tunnels and a dam at SGX have been constructed to prevent storms and heavy rainfall from impacting surface infrastructures, and to block waste rock and waste material flow into the Guxian Reservoir. Table 18.7 lists the SGX dam and the diversion tunnels at each mine.

amcconsultants.com295
NI 43-101 Technical Report Update on the Ying Ag-Pb-Zn Property in Henan Province, People's Republic of China
 
Silvercorp Metals Inc.0723067
Table 18.7Dam and diversion tunnels in the Ying district

 

Mine Tunnel / dam Profile (m x m) Length (m) Purpose

SGX

PD700-Zhanggou Tunnel 5.0 x 5.0 512 To divert flood to Zhanggou above PD700 (712 m Elevation) in the SGX valley
PD16-Zhaogou Tunnel 2.2 x 2.4 540 To divert flood water to Zhanggou above PD16 (598 m elevation) in the SGX valley

CM101-PD16 Tunnel

2.2 x 2.4

330

To divert flood water from above CM101 (650 m Elevation) into PD16-Zhanggou Tunnel (598 m elevation)

CM105 West Tunnel

2.2 x 2.4

580

To divert flood water from above CM105 (570 m Elevation) to east site of the Guxian Reservoir
SGX Dam 50 x 12 x 55 (bottom
width, top width, height)
90 To prevent waste rock and waste material from washing into the Guxian Reservoir
TLP PD770-Chongyang River Tunnel 3.0 x 3.0 750 To divert the Xigou Creek and prevent PD730 from flooding
LMW 924 West Tunnel 3.0 x 3.0 70 To divert the Xigou Creek and prevent PD924 from flooding
HPG PD3 Tunnel 3.2 x 3.5 80 To divert HPG creek and prevent PD3 from flooding

 

18.8.5Surface maintenance workshops

Each mine has a maintenance workshop in which the following auxiliary services are provided:

·Tire processing, maintenance, and servicing
·Welding
·Electrical
·Hydraulic
·Tools, parts, and material warehouse

The repair workshop is mainly responsible for maintenance of large-scale production equipment, vehicle repair, processing and repair of component parts, and the processing of emergency parts. All necessary equipment is available. Mechanical maintenance facilities include mining equipment maintenance workshop, equipment and spare parts store, dump oil depot, reserve battery locomotives, and tramcar maintenance workshop and stockpile yard.

As the quantity of LHD equipment grows, Silvercorp intends to allocate a specific section within the current maintenance shop for the purpose of LHD vehicle maintenance.

In the TLP maintenance workshop, automatic welding equipment has been installed and a new technology used to make steel-lined mill holes for the ore passes discharging ore from stopes to the ore drawpoints.

In 2021, the Ying operation updated safety equipment and the maintenance process. The mechanical engineer uses the EB software tool (see Sections 16.3 and 16.4) to record maintenance processes.

The mining contractors generally have their own maintenance workshops adjacent to adit portals. Any type of truck, electric locomotive, rail cars and LHD, and minor equipment such as jacklegs, secondary fans, development pumps, etc. are serviced in these workshops.

amcconsultants.com296
NI 43-101 Technical Report Update on the Ying Ag-Pb-Zn Property in Henan Province, People's Republic of China
 
Silvercorp Metals Inc.0723067

All maintenance work at the Ying camp is performed on surface and there are no workshops located underground.

18.8.6Explosives magazines

Each mine has an explosives magazine and detonator storage house with strict security. The magazines are gated and are guarded by two gatekeepers and a dog. Surveillance cameras are installed in the magazine areas. All explosive tubes and detonators are labelled with barcodes, which are scanned before release from the magazine for security audit purposes. The QP has noted that these magazines are well constructed and maintained.

Underground working party magazines are located adjacent to each level’s return air shaft or decline and are limited to one day’s requirement for bulk explosives and three days’ requirement for blasting ancillaries.

At the TPL mine, a new explosives magazine has been constructed. The area of this storage is over 50 m². Figure 18.17 shows the explosives magazine under construction.

Figure 18.17 TLP explosives magazine under construction

 

Source: Silvercorp, 2022.

 

18.8.7Fuel farm

Diesel fuel is used for mobile mine equipment, some small trucks, and surface vehicles. There are two fuel farms at the SGX mine, with a total capacity of 60 tonnes. The first unit is located 459 m north of PD16 to supply diesel for mobile equipment. The second unit is at the PD700 waste dump, and mainly supplies diesel to the generators.

Fuel storage tanks are also installed in the TLP, LME, LMW, and HPG mines to provide diesel for mobile equipment. The DCG mine uses the storage tank at the TLP mine.

amcconsultants.com297
NI 43-101 Technical Report Update on the Ying Ag-Pb-Zn Property in Henan Province, People's Republic of China
 
Silvercorp Metals Inc.0723067

The contractors have their own small fuel tankers near the portals, and provide fuel for underground diesel locomotives, mini and small trucks, and mobile equipment.

As the fleet of mobile mining equipment expands, there is a corresponding rise in the demand for fuel. In 2024, Silvercorp has opted to augment fuel procurement and establish a skid-mounted diesel refueling station in each mine site to optimize refueling operations.

Containment for storage of fuel is constructed in the vicinity of the diesel generators and fuel dispensing facilities. The storage facility must be located down-wind from the mine air intake fans and a reasonable distance from buildings, camp, and mine portal (dependent upon local OHS regulations and fire-fighting requirements). The lined containment areas are constructed such that spills are confined and can readily be cleaned up, and so that the need for extensive and costly remediation work can be avoided during site closure.

18.8.8Mine dry

At each mine site, the dormitory buildings and administration buildings provide showers and washrooms for Silvercorp employees. There are showers and washrooms near each adit portal for contract workers. Provisions for PPE such as gloves, safety glasses, hard hats, safety boots, safety back wearing (hard, protective back vest), a small oxygen tank, and cap lamps / batteries are made by Silvercorp or its contractors.

18.8.9Administration building

At each mine site, there is an administration building that provides working space for management, supervision, geology, engineering, and other operations support staff. Silvercorp’s local office is located at the central mill site; this building can accommodate over 200 staff. The senior management personnel in charge of Ying District sales, purchasing, accounting, and technical services are located at the local office.

18.8.10Warehouse and open area storage

There are warehouses at each mine site that are designed for materials and equipment inventory storage. There are also open storage areas that can be used for the same purpose.

18.8.11Assay laboratory

The assay laboratory is located in a separate building at the north-west side of Plant 1. The laboratory is a two-story structure equipped to perform daily analyses of mine and process samples.

18.8.12Security / gatehouse

There is a designated security department at each mine site and mill plant that is responsible for daily security tasks. A security gatehouse is located at each mine site access road with personnel on round-the-clock duty. Monitoring cameras are installed at the gatehouses, loading point, ore stockpiles, and warehouses for additional coverage. There are also personnel on duty at all times at each access road. The night shift is responsible for patrol of the key areas. In terms of the ore transportation, there are dedicated personnel in charge of inspection for the transportation process. The central monitoring room located at the local office is manned round-the-clock. Figure 18.18 shows screens in the central monitoring room.

amcconsultants.com298
NI 43-101 Technical Report Update on the Ying Ag-Pb-Zn Property in Henan Province, People's Republic of China
 
Silvercorp Metals Inc.0723067
Figure 18.18 Central monitoring room

 

Source: AMC, 2024.

 

18.8.13Compressed air

Compressed air is primarily used for drilling blastholes. Jacklegs are used in all stopes and conventional development faces. There are some minor uses for shotcreting and hole cleaning.

Compressor plants are located adjacent to every portal. These compressors are of a two-stage electric piston configuration. Compressed air is reticulated via steel pipes of varying sizes, depending on demand, to all levels and to the emergency refuge stations. Air lines are progressively sized from 4 inch to 1 inch at the stopes and development headings.

18.8.14Underground harmful gas monitoring system

Underground Harmful Gas Monitoring and Personal Location Systems are employed in the SGX, HZG, HPG, TLP, LME, LMW, and DCG mines. This system, which covers all the underground areas in the Ying Mining District, meets the requirements of the Chinese Coal Mine Safety Regulation (Version 2006 system).

The system is used to monitor the underground ventilation network. Data such as air velocity and carbon monoxide (CO) concentration can be collected, processed, and reported instantly. When any item is above the threshold limit value (TLV), the mine control room is notified immediately. The

amcconsultants.com299
NI 43-101 Technical Report Update on the Ying Ag-Pb-Zn Property in Henan Province, People's Republic of China
 
Silvercorp Metals Inc.0723067

sub-system of safety monitoring, which has a routine inspection cycle of less than 30 seconds, can instantly exchange data with the Automation Integrated Software Platform.

Underground monitoring substations have two-way communication with transmission interfaces. They have a simulation data collector for air speed, air pressure, carbon monoxide, and temperature, and can collect information on power status, ventilator switch, air door switch, and smoke. The system is supported by a computer in the central office.

18.8.15Underground personal location system

The underground personal location system can indicate the exact time that each miner enters or exits underground. The system can provide the total number of miners going underground, with detail of names and working durations, and can print out daily and monthly timesheets. It can instantly report the number of workers working underground and their location. All mines also use the tag board system to monitor personnel entering and exiting a portal. After some updates and additions, the network has been extended.

amcconsultants.com300
NI 43-101 Technical Report Update on the Ying Ag-Pb-Zn Property in Henan Province, People's Republic of China
 
Silvercorp Metals Inc.0723067
19Market studies and contracts
19.1Mining contracts

Contracts for underground mining operations are in place with several contracting firms, including Henan Sanyi Mine Construction Engineering Co. Ltd and Luoyang Xinsheng Mining Engineering Co. Ltd.

19.2Concentrate marketing

The QP understands that the lead and zinc concentrates are marketed to existing smelter customers in Henan and Shaanxi provinces and appropriate terms have been negotiated as detailed in Section 19.3.

With respect to copper, when lead concentrate contains 1% to 1.5% of copper, copper is payable at 30% of copper price, and when lead concentrate contains more than 1.5% of copper, copper is payable at 40% of copper price.

19.3Smelter contracts

Monthly sales contracts are in place for the lead concentrates with leading smelters, mostly located in Henan province. Among them are Henan Yuguang Gold and Lead Smelting Co. Ltd, JiyuanWanyang Smelting (Group) Co. Ltd, JiyuanJinli Smelting (Group) Co., Lingbao Xinling Smelting Co. Ltd, and Minshan Huaneng Kaoge Co. Ltd. For the zinc concentrate, sales contracts are in place with Henan Yuguang Zinc Industry Co. Ltd.

All contracts have freight and related expenses to be paid by the smelter customers.

The key elements of the smelter contracts are subject to change based on market conditions when the contracts are renewed each month; they may vary between smelters. Table 19.1 shows terms most commonly applied.

 

amcconsultants.com301
NI 43-101 Technical Report Update on the Ying Ag-Pb-Zn Property in Henan Province, People's Republic of China
 
Silvercorp Metals Inc.0723067

 

Table 19.1Key elements of smelter contracts
  Pb Concentrate Zn Concentrate
% Pb Deduction
(RMB/t Pb)
Ag (g/t) Payable (%) Au (g/t) Payable (%) Cu (%) Payable (%) % Zn Deduction (RMB/t
if Zn price
<RMB15,000/t)
Deduction (RMB/t
Zn if price
>RMB15,000/t)
Ag
(g/t)
Payable
(RMB/g)
Minimum quality 10   1000   1 80% 1.0% 30% 35     150  
Payment scales
or deduction scales
>=50 150 3,000 - 3,500 92.5 >=1 80% 1.5% 40% >=50 4,100 4,100+(price- 15,000)*20% >=300 0.9
40-50 150+20*(50%-actual) 2,500 - 3,000 92 >=2 81%     >=45 4,100 - 20*
(50%-actual)
4,100-20*(50%-actual)+(price- 15,000)*20% 200-300 0.7
35-40 350+50*(40%-actual) 1000-2500 91.5 >=3 82%     40-45 4,200 + 50*
(45%-actual)
4,200 + 50*(45%-actual)+(price- 15,000)*20% 150-200 0.5
30-35 600+100*(35% -actual)     >=5 83%     35-40 4,450 + 100 *
(40%-actual)
4,450 + 100*(40%-actual)+(price- 15,000)*20%    
        >=7 84%              

 

amcconsultants.com302
NI 43-101 Technical Report Update on the Ying Ag-Pb-Zn Property in Henan Province, People's Republic of China
 
Silvercorp Metals Inc.0723067

With respect to lead and zinc terms, the above deductibles calculate out to approximately 95 - 98% payable for the lead concentrate and approximately 70 - 74% for zinc concentrate, at long-term prices. Lead payability is somewhat higher than the global smelter industry norm of 95% while zinc payability is lower than the norm of 85%. Silver payability of approximately 90 - 93% is in accord with the industry norm of 95% while gold of approximately 82 – 85% is lower than the norm of 95%.

19.4Commodity prices

The following metal prices for COG and AgEq calculations were used in the Mineral Resource and Mineral Reserve estimation: Au $1,800/oz, Ag $21.00/oz, Pb $1.00/lb, Zn $1.10/lb.

In establishing the COG metal prices to be used, the QP has referenced World Bank long-term forecast information, prices used in recent NI 43-101 reports, three-year trailing averages, and prices current as of March 2024. The exchange rate of 7.00 RMB to US$1 is as per Silvercorp and has been accepted as reasonable by the QP. The exchange rate was also referenced against historical information in the public domain.

amcconsultants.com303
NI 43-101 Technical Report Update on the Ying Ag-Pb-Zn Property in Henan Province, People's Republic of China
 
Silvercorp Metals Inc.0723067
20Environmental studies, permitting and social or community impact
20.1Introduction

Silvercorp has all the required permits for its operations on the Ying Property. The exploration and mining permits are described in Section 4.1 of this report.

The existing mining permits cover all the active mining areas and, in conjunction with safety and environmental certificates, give Silvercorp the right to carry out full mining and mineral processing operations. Seven safety certificates have been issued by the Department of Safety Production and Inspection of Henan Province, covering the SGX mine, HZG mine, Zhuangtou TSF, Shiwagou TSF, HPG mine, TLP mine (west and east section), LMW mine, LME mine, and DCG mine. Five environmental certificates have been issued by the Department of Environmental Protection of Henan Province, covering the Yuelianggou project (SGX mine and 1,000 tpd mill plant), HPG mine, TLP mine, LMW mine, LME mine, DCG mine, and the 2,000 tpd mill plant built in 2009. For each of these certificates, there are related mine development / utilization and soil / water conservation programs, and rehabilitation plan reports. Silvercorp has also obtained approvals and certificates for wastewater discharge locations at the SGX mine, the HPG mine, and the two TSFs. All certificates must be renewed periodically.

The Environmental Impact Assessment (EIA) report of the Shimengou TSF, which is under construction, has been completed and approved by the Luoyang Branch of the Luoyang Ecological Environment Bureau. Also, the EIA report for the technical renovation and capacity expansion project of Mill Plant 2 has been delivered, with expected approval from the Luoyang branch of the Luoyang Ecological Environment Bureau by the end of July 2024.

There are no cultural minority groups within the area surrounding the general project. The culture of the broader Luoning County is predominantly Han Chinese. No records of cultural heritage sites exist within or near the SGX, HZG, HPG, TLP, LME, LMW, and DCG project areas. The surrounding land near the mines is used predominantly for agriculture. The mining area does not cover any natural conservation, ecological forests, or strict land control zones. The current vegetation within the project area is mainly secondary, including farm plantings. Larger wild mammals have not been found in the region. Small birds nesting and moving in the woodland are observed occasionally. The surrounding villagers raise domestic animals, such as chickens, ducks, pigs, sheep, goats, and cows etc.

Silvercorp has made a range of cash donations and contributions to local capital projects and community support programs, sponsoring university students, and undertaking projects such as road construction and school repairs, upgrading, and construction. Silvercorp has also made economic contributions in the form of direct hiring and retention of local contractors, suppliers, and service providers.

20.2Laws and regulations

Silvercorp’s activities in the Property and associated infrastructure operate under the following Chinese laws, regulations, and guidelines.

20.2.1Laws
·Law of Environmental Protection PRC (1989).
·Law of Minerals Resources of PRC (1996).
·Production Safety Law of the PRC (2002).
·Law of Occupational Disease Prevention (2001-Amended 2011).
·Environmental Impact Assessment (EIA) Law (2002).
amcconsultants.com304
NI 43-101 Technical Report Update on the Ying Ag-Pb-Zn Property in Henan Province, People's Republic of China
 
Silvercorp Metals Inc.0723067
·Law on Prevention & Control of Atmospheric Pollution (2000).
·Law on Prevention & Control of Noise Pollution (1996).
·Law on Prevention & Control of Water Pollution (1996, amended 2008).
·Law on Prevention & Control Environmental Pollution by Solid Waste (2002).
·Forestry Law (1998).
·Water Law (1988).
·Water & Soil Conservancy Law (1991).
·Land Administration Law (1999).
·Protection of Wildlife Law (1989).
·Energy Conservation Law (1998).
·The Yellow River Protection Law of the PRC (2023).
20.2.2Regulations and guidelines
·Environment Protection Design Regulations of Construction Project (No.002) by Environment Protection Committee of State Council of PRC (1987).
·Regulations on the Administration of Construction Project Environmental Protection (1998).
·Regulations for Environmental Monitoring (1983).
·Regulations on Nature Reserves (1994).
·Regulations on Administration of Chemicals Subject to Supervision & Control (1995).
·Regulations on Management of Chemicals Subject to Supervision & Control (1995).
·Environment Protection Design Regulations of Metallurgical Industry (YB9066-55).
·Comprehensive Emission Standard of Wastewater (GB8978-1996).
·Environmental Quality Standard for Surface Water (GB3838-1988).
·Environmental Quality Standard for Groundwater (GB/T14848-1993).
·Ambient Air Quality Standard (GB3095-1996).
·Comprehensive Emission Standard of Atmospheric Pollutants (GB16297-1996).
·Environmental Quality Standard for Soils (GB15618-1995).
·Standard of Boundary Noise of Industrial Enterprise (GB12348-90).
·Emissions Standard for Pollution from Heavy Industry; Non-Ferrous Metals (GB4913-1985).
·Control Standard on Cyanide for Waste Slugs (GB12502-1990).
·Standard for Pollution Control on Hazardous Waste Storage (GB18597-2001).
·Identification Standard for Hazardous Wastes-Identification for Extraction Procedure-Toxicity (GB5085.3-1996).
·Standard of Landfill and Pollution Control of Hazardous Waste (GB 18598-2001).
·Standards of Pollution Control for General Industrial Solid Waste Storage and Landfill (GB18599-2020) effective as of 1 July 2021.
·Environmental Quality Standard for Noise (GB3096-2008).
·Emission Standard for Industrial Enterprises Noise at Boundary (GB12348-2008).
·Evaluating Indicator System for Lead and Zinc Industry Cleaner Production (Trial) (2007).
·The TSF Safety Regulations (GB39496-2020) have been updated, effective as of 1 September 2021.
·Administrative Measures for the Prevention and Control of Environmental Pollution from the TSF (Decree No. 26 of the Ministry of Ecological Environment), effective as of 1 July 2022.
amcconsultants.com305
NI 43-101 Technical Report Update on the Ying Ag-Pb-Zn Property in Henan Province, People's Republic of China
 
Silvercorp Metals Inc.0723067
·Emission Standards for Water Pollutants in the Yellow River Basin of Henan Province (effective as of 1 March 2021).
·Management Regulations for the Prevention & Cure of Tailings Pollution (1992).
·Management Regulations for Dangerous Chemical Materials (1987).
20.3Waste and tailings disposal management

The main waste byproducts are waste rock produced during mining operations and the mine tailings produced during processing. There is also minor sanitation waste produced.

Waste rock is deposited in various waste rock stockpiles adjacent to the mine portals. The waste rock is mainly comprised of quartz, chlorite and sericite, kaolin, and clay minerals and is non-acid generating.

The protocol for waste stockpiles is as follows: When a waste stockpile becomes full (or at the time of site closure), it is covered with soil and re-vegetated. For stabilization, retaining wall structures are built downstream of the waste rock site. Also, a diversion channel is constructed upstream to prevent high water flows into the stockpile and the slope surface from washing out. Some waste rock stockpiles - at the SGX mine, HPG mine, HZG mine, and LMW mine - have already been covered with soil and re-vegetated.

In April 2021, the Luoyang Hongfa Building Materials Aggregate Co., Ltd., a wholly owned subsidiary of Silvercorp with a design production capacity of one million tonnes per year, was put into operation. It consumed 480,000 and 450,000 tonnes of waste rock in 2022 and 2023, respectively. Any profit, after capital recovery, is shared between the local government, the local communities, and employees.

Process tailings are currently discharged into purpose-built tailings management facilities - TSF 1 and TSF 2 - that have effective design (working volume) capacities of 2.83 Mm3 and 4.05 Mm3, respectively (refer also to Section 18.1). The TSFs have decant and under-drainage systems that provide for flood protection and for the collection of return water. Daily inspections at each facility are undertaken of the tailings pipelines, TSF embankment, and the seepage / return water collection system. The TSF under-drainage and return water collection system comprises a tunnel discharging directly into an unlined collection pond / pumping station, which is situated just downstream of the TSF embankment. According to the current rehabilitation plan, after the completion of the TSFs, the facility will be covered with soil and re-vegetated. The SGX EIA Report states that the tailings do not contain sulphide and have no material potential for acid generation.

A 3rd TSF is being built in the Shimengou valley, a branch of the Chongyanggou river, within the territory of Xiayu Township, Luoning County. The Shimengou TSF is located about 1.7 km to the north of Mill Plant 2 and is about 500 m from the (downstream) Chongyang river.

The Shimengou starter dam will be about 60 m high, with ground elevation of 498 m at the dam central line and dam crest elevation of 550 m above mean sea level. The designed accumulation slope of the dam is 1:5, with a final designed elevation of 670 m and a total dam height of about 180 m. The total designed storage capacity is 19,214,000 m3, with TSF effective storage capacity of 17,212,500 m3.

amcconsultants.com306
NI 43-101 Technical Report Update on the Ying Ag-Pb-Zn Property in Henan Province, People's Republic of China
 
Silvercorp Metals Inc.0723067
20.4Site monitoring
20.4.1Monitoring plan

Comprehensive monitoring plans were developed during the EIA stage, including monitoring plans for the construction period. The Ying operation has an environmental protection department consisting of six full-time staff. The full-time environment management personnel are mainly responsible for the environment management and rehabilitation management work in the Ying Property.

The monitoring plans include air and dust emissions and noise and wastewater monitoring. The monitoring work is completed by qualified persons and licensed institutes. For water environment monitoring, an intensive program has been developed and implemented, including once-a-quarter testing of surface water, mine water discharge, and domestic sewage water, and twice-a-year testing of the underground water near the mine and the TSFs by the Luoyang Liming Testing Company. Mine water discharge and surface water are also tested monthly by the Yellow River Basin Environmental Monitoring Centre, an inter-provincial government organization. Water monitoring plans are summarized in Table 20.1.

Table 20.1Water environmental monitoring plans for Ying mining area

 

Items Monitoring location Monitoring parameters Frequency Monitored by
Mine water Discharge point after sedimentation treatment pH, Pb, Zn, Cu, Cd Once / Quarter

Luoyang Liming Testing Company

Groundwater Entrance to Guxian Reservoir from SGX and HPG Ag, Pb, Zn, Hg, As Once / Quarter
Domestic sewage water Discharge point after sanitary wastewater treatment pH, CODBOD5NH3-NSS Once / Quarter

Surface water

1. At SGX, HPG, HZG, and

Yuelianggou

2. Entrance to Guxian Reservoir from SGX and HPG

pH, BOD, COD, NH3-N, Sulphide, Cu, Pb, Ti, Sb, Zn, Cd, As, Hg, Phenol, and TPH

Twice / Year

Mine water Discharge point after sedimentation treatment pH, Pb, Zn, Cu, Cd

Once / Month

Yellow River Basin Monitoring Centre

Surface water

Entrance to Guxian Reservoir from SGX and HPG

T, pH, SS, CODcr, NH3-N, P, N,

SO4, Ag, Cu, Zn, Pb, Cd, Hg,

Phenol, and TPH

 

The QP notes that monitoring data from 2016 to 2024 indicate that the surface water results are in compliance with Class II and III limits of Surface Water Environmental Quality Standards (GB3838-2002), sanitary and process plant wastewater results are in compliance with Class I limits of Integrated Wastewater Discharge Standard (GB8978-1996), and mining water results are in compliance with Class I limits of Integrated Wastewater Discharge Standard (GB8978-1996). These standards match the requirements in the EIA approvals. In addition, the QP notes that the project-stage completion inspection results were all compliant for wastewater discharge, air emission, noise, and solid waste disposal.

There have been a few exceptional cases in which Pb concentrations slightly exceeded the permitted limit of 0.011 milligrams per litre (mg/L) at the general discharge point after sedimentation tank for both SGX and TLP mines.

amcconsultants.com307
NI 43-101 Technical Report Update on the Ying Ag-Pb-Zn Property in Henan Province, People's Republic of China
 
Silvercorp Metals Inc.0723067
20.4.2Water management

The water supply for the SGX and HPG mines is sourced mainly from the Guxian Reservoir and mountain spring water. Water supply for the HZG, TLP, LME, LMW, and DCG mines is mainly from mountain spring water near the mines.

Maintaining water quality for Guxian Reservoir, while operating the SGX / HZG and HPG projects, is a key requirement in the project environmental approvals. Silvercorp has created an SGX and HPG surface water discharge management plan. This comprises collection and sedimentation treatment of mine water combined with a containment system (i.e., zero surface water discharge), and installation of a stormwater drainage bypass system for the segregation and diversion of clean stormwater and for flood protection.

Prior to completion of the stormwater drainage bypass system, drainage construction in the project water catchment area was completed. Overflow water from the mill process (which is segregated by the thickener), and water generated from the tailings by the pressure filter, are returned to the milling process to ensure that wastewater (including tailings water) is not discharged.

Water from mining operations is reused for the same purpose and the remaining water is treated according to the Surface Water Quality Standards (GB3838-2002) and Integrated Wastewater Discharge Standard (GB8978-1996) to meet the Class III requirements of surface water quality and Class I wastewater quality before being discharged to Guxian Reservoir at discharge points approved by the Yellow River Management Committee in Luoning County.

Monthly monitoring results from Yellow River Basin Environmental Monitoring Centre, and quarterly monitoring results from the Luoyang Liming Testing Company indicate that quality of water discharged to the surface water body is compliant with standards. Selected data are shown in Table 20.2 and Table 20.3 and show the general level of test results.

amcconsultants.com308
NI 43-101 Technical Report Update on the Ying Ag-Pb-Zn Property in Henan Province, People's Republic of China
 
Silvercorp Metals Inc.0723067
Table 20.2January 2022 to December 2023 monitoring results, surface water, Yellow River Basin Environmental Monitoring Centre

 

Sample location Sampling date SS COD NH3-N Ag Cu Zn Pb Cd TPH Phenol

Entrance to Guxian Reservoir from SGX

2022/2/24 17 8 0.08 <DL 0.00372 0.0925 0.0072 0.0005 <DL <DL
2022/3/31 26 7 0.031 <DL 0.00176 0.00236 0.00048 0.0001 <DL <DL
2022/4/26 20 7 0.056 <DL 0.00144 0.00273 0.00127 0.00012 <DL <DL
2022/5/31 23 7 0.062 <DL   0.00393 0.00157 0.00007 <DL <DL
2022/7/20 16 7 0.06 0.00066 0.00137 0.00213 0.00108 0.00012 <DL <DL
2022/9/15 15 9 0.029 <DL 0.00136 <DL 0.00041 0.00011 <DL <DL

Discharge point after sedimentation treatment at SGX

2022/2/24 32 7 0.054 <DL 0.0085 0.0573 0.00372 0.00016 <DL <DL
2022/3/31 11 7 0.044 <DL 0.00207 0.00454 0.00215 0.0001 <DL <DL
2022/4/26 14 7 0.056 <DL 0.00146 <DL 0.0036 0.0001 <DL <DL
2022/5/31 15 7 0.055 <DL <DL 0.00401 0.00619 0.00006 <DL <DL
2022/7/20 14 7 0.0276 0.0007 0.0104 0.00261 0.00808 0.0001 <DL <DL
2022/9/15 24 8 0.037 <DL 0.00214 <DL 0.00324 0.00011 <DL <DL

Entrance to Guxian reservoir from HPG

2022/2/24 25 8 0.05 <DL 0.00762 0.0297 0.00314 0.00017 <DL <DL
2022/3/31 19 7 0.031 <DL 0.00217 0.00254 0.00087 0.00011 <DL <DL
2022/4/26 9 7 0.061 <DL 0.00175 <DL 0.00198 0.0001 <DL <DL
2022/5/31 16 7 0.048 <DL <DL <DL 0.00676 0.00005 <DL <DL
2022/7/20 15 7 0.056 0.00014 0.00223 0.0029 0.0013 0.00012 <DL <DL
2022/9/15 15 8 0.037 <DL 0.00181 <DL 0.00072 0.00013 <DL <DL

Entrance to Guxian Reservoir from SGX

2023/2/3 28 7 0.037 0.00018 0.00228 <DL <DL 0.00008 <DL <DL
2023/3/8 12 6 0.032 <DL 0.00158 <DL 0.00379 0.00019 <DL <DL
2023/4/26 17 7 0.039 <DL 0.00829 0.00164 0.00035 0.00018 <DL <DL
2023/5/31 15 7 0.047 <DL 0.00162 0.00402 0.00036 0.00017 <DL <DL
2023/6/20 13 7 0.029 <DL 0.00248 0.00981 0.00755 0.00036 <DL <DL
2023/7/12 16 7 0.058 <DL 0.0022 0.00859 0.00062 0.00025 <DL <DL
2023/8/30 12 6 0.052 <DL 0.0018 0.00428 0.00068 <DL <DL <DL
2023/9/21 18 8 0.046 <DL 0.00181 0.0054 0.0048 <DL <DL <DL
2023/10/12 24 8 0.048 <DL 0.00192 <DL 0.00365 <DL <DL <DL
2023/11/22 18 7 0.043 <DL 0.00026 0.00296 0.00171 <DL <DL <DL

Discharge point after sedimentation treatment at SGX

2023/2/3 22 6 0.035 <DL 0.00463 0.012 0.00606 0.00015 <DL <DL
2023/3/8 13 6 0.028 <DL 0.00148 0.0615 0.00151 0.00016 <DL <DL
2023/4/26 14 6 0.044 <DL 0.0017 0.00685 0.00104 0.00017 <DL <DL
2023/5/31 10 8 0.041 <DL 0.00219 0.027 0.00161 0.00018 <DL <DL
2023/6/20 10 8 0.043 <DL 0.00195 0.025 0.00153 0.00013 <DL <DL
2023/7/12 14 7 0.087 0.00253 0.0576 0.582 0.00436 0.00046 <DL <DL
2023/8/30 16 6 0.054 <DL 0.00246 0.00762 0.00421 <DL <DL <DL
2023/9/21 14 7 0.056 <DL 0.00234 0.00312 0.00975 <DL <DL <DL
2023/10/12 10 7 0.043 <DL 0.00176 <DL 0.00237 <DL <DL <DL
2023/11/22 8 7 0.121 <DL <DL 0.00416 0.0334 <DL <DL <DL

Entrance to Guxian reservoir from HPG

2023/2/3 16 7 0.035 <DL 0.00216 <DL 0.00016 0.00007 <DL <DL
2023/3/8 15 6 0.034 <DL 0.00122 <DL 0.00027 0.0001 <DL <DL
2023/4/26 15 6 0.041 <DL 0.00162 0.00155 0.00031 0.00017 <DL <DL
2023/5/31 13 7 0.033 <DL 0.00148 0.00319 0.00011 0.00018 <DL <DL
2023/6/20 16 8 0.032 <DL 0.00139 0.00257 0.00023 0.00016 <DL <DL
2023/7/12 16 7 0.05 <DL 0.00233 0.00882 0.00048 0.00026 <DL <DL
2023/8/30 13 6 0.044 <DL 0.00171 0.00371 0.00044 <DL <DL <DL
2023/9/21 22 7 0.049 <DL 0.0019 0.00371 0.00266 0.00018 <DL <DL
2023/10/12 19 9 0.04 <DL 0.00165 <DL 0.00091 <DL <DL <DL
2023/11/22 19 7 0.042 <DL 0.00032 <DL 0.00148 <DL <DL <DL
GB3838 Limit   70 15 0.5 0.1 1 1 0.011 0.005 0.05 0.002

Note: Units – mg/L. DL = detection limit.

amcconsultants.com309
NI 43-101 Technical Report Update on the Ying Ag-Pb-Zn Property in Henan Province, People's Republic of China
 
Silvercorp Metals Inc.0723067
Table 20.3January 2022 to December 2023 monitoring results, surface water, Luoyang Liming Testing Company

 

MINE Sampling date SS COD NH3-N Pb Cd TPH Phenol
GB3838 Limit   / 15 0.5 0.01 0.005 0.05 0.002

SGX

2022/03/01 10 13 0.065 <DL <DL <DL <DL
2022/06/16 8 11 0.062 <DL <DL <DL <DL
2022/08/09 10 13 0.064 <DL <DL <DL <DL
2022/12/14 10 11 0.045 <DL <DL <DL <DL

YUELIANGGOU

2022/03/01 10 12 0.044 <DL <DL <DL <DL
2022/06/16 12 10 0.053 <DL <DL <DL <DL
2022/08/09 10 13 0.076 <DL <DL <DL <DL
2022/12/14 11 12 0.061 <DL <DL <DL <DL

HPG

2022/03/01 12 14 0.062 <DL <DL <DL <DL
2022/06/16 10 15 0.074 <DL <DL <DL <DL
2022/08/09 14 15 0.053 <DL <DL <DL <DL
2022/12/14 10 15 0.056 <DL <DL <DL <DL

CHONGYANG RIVER

2022/03/01 13 11 0.053 <DL <DL <DL <DL
2022/06/16 11 13 0.041 <DL <DL <DL <DL
2022/08/09 11 13 0.372 <DL <DL <DL <DL
2022/12/14 9 13 0.062 <DL <DL <DL <DL

SGX

2023/02/14 <DL 12 <DL <DL <DL <DL <DL
2023/06/23 <DL 12 0.197 <DL <DL <DL <DL
2023/07/21 <DL 11 0.243 <DL <DL <DL <DL
2023/10/30 <DL 12 0.197 <DL <DL <DL <DL
HPG 2023/02/14 <DL 13 <DL <DL <DL <DL <DL
2023/06/23 <DL 13 0.245 <DL <DL <DL <DL
CHONGYANG RIVER 2023/02/14 <DL 10 <DL <DL <DL <DL <DL
2023/07/21 <DL 12 <DL <DL <DL <DL <DL

Note: Units – mg/L. DL = detection limit.

 

Except for one small creek, there are no surface water sources near the TLP and LM mines, and no mining water is discharged to this creek from the mines. There is a limited volume of mining water generated from the lower sections of the TLP and LM mines, most of which is used in the mining activities, and none is generated from the upper sections.

20.4.3Groundwater

Groundwater guidelines are contained in the Groundwater Environmental Quality Standards (GB/T14848-93). There is a groundwater monitoring program for the processing plant area, TSFs and the mining areas. Groundwater (the main drinking water source) monitoring results of tested parameters, including pH, Pb, Hg, Zn, Cd, Cu, As, cyanide (CN), and sulphate, conducted by the Luoyang Liming Testing Centre in May 2023 at different areas, indicated that groundwater quality is in compliance with Class III of GBT14848-2017. Additional testing was also performed in May 2023 by the Resource and Environment Testing Centre of the Henan Institute of Coal Geological Exploration and Research. The results are summarized in Table 20.4 below.

amcconsultants.com310
NI 43-101 Technical Report Update on the Ying Ag-Pb-Zn Property in Henan Province, People's Republic of China
 
Silvercorp Metals Inc.0723067
Table 20.4Results summary of groundwater tests
Sampling date Sampling location Pb Hg Zn Cd Cu As Ag CN Monitored by
Groundwater Standard (GBT14848- 2017) 0.05 0.001 1 0.01 1 0.05 / 0.05  
2022/4/24 Well 1 downstream TSF1 < DL < DL < DL / / < DL < DL / Luoyang Liming Testing Company
2022/4/24 Well 2 downstream TSF2 < DL < DL < DL / / < DL < DL /
2023/2/14 Well 1 downstream TSF1 < DL < DL < DL / / < DL < DL /
2023/2/14 Well 2 downstream TSF2 < DL < DL < DL / / < DL < DL /
2023/5/16 Well 1 downstream TSF1 0.00658 < DL 0.016 / < DL < DL 0.0019 < DL Resource and Environment Testing Centre of the Henan Institute of Coal Geological Exploration and Research
2023/5/16 Well 2 downstream TSF2 0.0146 < DL 0.016 / 0.03 0.0009 0.0101 < DL
2023/5/16 Wells near the mills < DL < DL < DL < DL < DL < DL < DL < DL
2023/5/16 SGX 0.0196 < DL 0.03 < DL 0.043 < DL < DL < DL
2023/5/16 HPG 0.0817 < DL 0.032 < DL 0.013 0.0008 0.002 < DL
2023/5/16 TLP-LM 0.0203 < DL 0.027 < DL 0.075 0.0006 0.00053 < DL
  Detection limit (DL) 0.00009 0.00004 0.0004 0.00005 0.006 0.0003 0.00004 0.004  

Note: Units – mg/L. DL = detection limit.

 

20.4.4Wastewater

There are three sources of wastewater: mining activities, mineral processing, and domestic sewage. Mine water from SGX, HZG and HPG is pumped to surface via the mine portals, and then pumped to Sedimentation Pond 1 via a lime dosing system to assist in flocculation. The settled water is then drained to Sedimentation Pond 2, where the overflow is allowed to drain to another system of three settlement tanks, before being discharged to Guxian Reservoir through a discharge point, approved by the Yellow River Management Committee, at an elevation of 549.5 m above sea level. Table 20.5 shows representative mine water monitoring results.

Table 20.5Mine water monitoring results (Yellow River Basin Environmental Monitoring Centre, 21 July 2023)

 

Sample location pH Cd (mg/L) Pb (mg/L) Zn (mg/L) Cu (mg/L)
Industrial wastewater reuse standard (GB / T19923-2005) 6.5-7.5 10 60 20 20
Discharge point after sedimentation treatment 7.9 < DL < DL < DL < DL
Entrance to Guxian Reservoir 8.1 0.00068 0.007 0.00428 0.0018

Note: DL = detection limit.

 

amcconsultants.com311
NI 43-101 Technical Report Update on the Ying Ag-Pb-Zn Property in Henan Province, People's Republic of China
 
Silvercorp Metals Inc.0723067

 

Sewage water from mining areas is collected and treated by a biological and artificial wetland treatment system. The treated water meets the criteria for water reuse and is applied 100% to landscape watering with no discharge to the public water body. Table 20.6 shows representative sanitary water monitoring results.

Table 20.6Sewage water monitoring results (Luoyang Liming Testing Company, 21st July 2023)

 

Sample Location PH NH3-N (mg/L) COD (mg/L) BOD (mg/L) SS (mg/L)

Integrated wastewater discharge standard class I

(GB 8978-1996)

6-9

0.1

1

2

0.5

Sanitary wastewater treatment 7.6 0.168 16 3.3 8

Note: COD=Chemical Oxygen Demand. BOD=Biochemical Oxygen Demand. SS=Suspended Soils.

 

According to the EIA approval, water quality protection for the Guxian Reservoir and the SGX project area is subject to Chinese National Standard Environmental Quality Standard for Surface Water (GB3838-1988 – Class II) and the mine discharge water quality is to meet Class I of the Integrated Wastewater Discharge Standard (i.e., at the point of discharge). Quality monitoring of the mine waters and the surrounding receiving surface waters is carried out under contract by the Luoning County Environmental Protection Bureau and the Yellow River Basin Environmental Monitoring Centre, in line with specifications in the site environmental monitoring plan. Monthly monitoring results continue to indicate that quality of water discharged to surface water bodies is compliant with both standards.

The under-drainage and return water collection system of Shiwagou TSF comprises a tunnel discharging directly into a collection pond / pumping station just downstream of the TSF embankment. This TSF decant and under-drainage system provides a mechanism for the direct discharge of tailings water from the TSF. This existing collection pond is designed to overflow into a second containment / seepage dam. There are two further containment dams downstream, with a fourth dam, approximately 1 km downstream, also acting as another pumping station and emergency containment system. The collected tailings water from the TSF in these dams is pumped back through a long pipe to Mill Plant 2 for reuse. No tailings water is discharged to the public water body.

The under-drainage and return water collection system of Zhuangtou TSF is different from that of Shiwagou in that there is no second containment / seepage dam downstream of the collection pond. Also, there is only one collection pond and emergency containment system with pumping station to pump back the water to Mill Plant 1.

At the Shimengou TSF, two tunnels have been designed, namely the drainage tunnel inside the dam and the flood discharge tunnel outside the dam. The flood discharge tunnel outside the dam only serves the first phase of the project (i.e. rainwater and any flood water above 640m elevation are discharged to the downstream emergency containment through the flood discharge tunnel outside the dam to achieve rainwater and sewage diversion). The drainage tunnel inside the tailings dam is used for seepage water and Phase II flood discharge. The tailings seepage water flows into the collection pond downstream of the TSF embankment and is pumped to the high-level water tank of Mill Plant 2 for reuse. There is a seepage water collection pond downstream of the starter dam, and an additional pond (emergency dam) located 500 m downstream of the seepage collection pond.

amcconsultants.com312
NI 43-101 Technical Report Update on the Ying Ag-Pb-Zn Property in Henan Province, People's Republic of China
 
Silvercorp Metals Inc.0723067
20.5Permitting requirements

The following permits and approvals have been obtained by Silvercorp for the Ying operation.

20.5.1Environmental impact assessment reports and approvals
·Environmental Impact Assessment Report of SGX Mine Project, by Luoyang Environmental Protection & Design Institute, January 2006.
·Approval of Environmental Impact Assessment Report of SGX Mine Project, by Henan Environmental Protection Bureau, February 2006.
·SGX Mine Project Trial Production Completion Acceptance Inspection Approval, by Henan Environmental Protection Bureau, January 2009.
·Environmental Impact Assessment Report of HPG Mine, by Luoyang Environmental Protection & Design Institute, November 2002.
·Approval of Environmental Impact Assessment Report of HPG Mine, by Henan Environmental Protection Bureau, January 2003.
·Approval of Environmental Impact Assessment Report of TLP Mine, by Henan Environmental Protection Bureau, November 1998.
·Approval of Environmental Impact Assessment of LM Mine Expansion, by Henan Environmental Protection Bureau, May 2010.
·Environmental Impact Assessment Report of 2000 t/d processing plant and tailings storage facility, by Luoyang Environmental Protection & Design Institute, May 2009.
·Approval of Environmental Impact Assessment Report for 2000 t/d Processing Plant and Tailings Storage Facility, by Henan Environmental Protection Bureau, July 2009.
·Approval of Environmental Impact Assessment Report of TLP / LM Mines, by Henan Environmental Protection Bureau, March 2016.
·Approval of Environmental Impact Assessment Report of HPG Mine, by Henan Environmental Protection Bureau, February 2016.
·Approval of Environmental Impact Assessment Report of DCG Mine, by Henan Environmental Protection Bureau, July 2016.
·Approval of Environmental Impact Assessment Report for the Shimengou TSF Project, by Henan Environmental Protection Bureau, 2023
·Clean Site Production Auditing Report of Henan Found Mining Ltd, by Luoyang Environmental Protection Bureau, December 2013.
·Clean Site Production Auditing Report of Henan Found Mining Ltd, by Luoyang Environmental Protection Bureau, January 2015.
·Environment Emergency Management Plan of Henan Found Mining Ltd, filed in Luoyang Environmental Protection Bureau, April 2012.
·Environment Emergency Management Plan for Henan Found TLP mine and Shiwagou Tailing Dam, filed in Luoyang Environmental Protection Bureau, January 2014.
·Geological Environment Protection and Reclamation Treatment for SGX Mine, Henan Found Mining Ltd., filed in Henan Land and Resources Bureau, July 2012.
·Geological Environment Protection and Reclamation Treatment for SGX Mine, Henan Found Mining Ltd., filed in Henan Land and Resources Bureau, June 2014.
·Geological Environment Protection and Reclamation Treatment for HPG Mine, Henan Found Mining Ltd., filed in Henan Land and Resources Bureau, June 2014.
·Geological Environment Protection and Reclamation Treatment for TLP Mine, Henan Found Mining Ltd., filed in Henan Land and Resources Bureau, July 2012.
amcconsultants.com313
NI 43-101 Technical Report Update on the Ying Ag-Pb-Zn Property in Henan Province, People's Republic of China
 
Silvercorp Metals Inc.0723067
·Geological Environment Protection and Reclamation Treatment for TLP / LM Mines, Henan Found Mining Ltd., filed in Henan Land and Resources Bureau, December 2014.
·Geological Environment Protection and Reclamation Treatment for Dongcaogou Mines, Henan Found Mining Ltd., filed in Henan Land and Resources Bureau, January 2014.
20.5.2Project safety pre-assessments reports and safety production permits
·Yuelianggou (SGX Mine) Project Safety Pre-Assessment Report & Registration, by Henan Tiantai Mining Safety Engineering Company, December 2008.
·HPG Mine Safety Pre-Assessment Report & Registration, by Henan Minerals Test Centre, April 2010.
·TLP Mine Safety Pre-Assessment Report & Registration, by Henan Tiantai Mining Safety Engineering Company, December 2008.
·LM Mine Safety Pre-Assessment Report & Registration, by Henan Minerals Test Centre, January 2011.
·Safety Production Permit (XCGL001Y) for Henan Found Mining Ltd, by Henan Emergency Management Bureau, valid from 20 January 2022 to 19 January 2025.
·Safety Production Permit (XCDX006Y) for SGX Mine by Henan Emergency Management Bureau, valid from 25 April 2021 to 24 April 2024.
·Safety Production Permit (XCJC388Y) for HPG Mine by Henan Emergency Management Bureau, valid from 20 September 2021 to 19 September 2024.
·Safety Production Permit (XCDX004Y) for TLP / LM Mines West by Henan Emergency Management Bureau, valid from 20 January 2022 to 19 January 2025.
·Safety Production Permit (XCDX001) for TLP / LM Mines East by Henan Emergency Management Bureau, valid from 22 February 2022 to 21 February 2025.
·Safety Production Permit (XCDX002Y) for LME, by Henan Emergency Management Bureau, valid from 20 January 2022 to 19 January 2025.
·Safety Production Permit (XCDX003Y) for LMW, by Henan Emergency Management Bureau, valid from 20 January 2022 to 19 January 2025.
·Safety Production Permit (XCDX007Y) for HZG (Qiaogou) Mine by Henan Emergency Management Bureau, valid from 25 April 2021 to 24 April 2024.
·Safety Production Permit (XCWK365Y) for Zhuangtou Tailing Dam Operation by Henan Emergency Management Bureau, valid from 21 November 2019 to 20 November 2022.
·Safety Production Permit (XCWK375Y) for Shiwagou Tailing Dam Operation by Henan Emergency Management Bureau, valid from 7 December 2019 to 6 December 2022.
20.5.3Resource utilization plan (RUP) reports and approvals
·RUP Report and Approval for SGX Mine, by China Steel Group Design Institute.
·RUP (Feasibility Studies) Report and Approval for Yuelianggou (SGX and HZG Mines), by Henan Metallurgical Planning, Design and Research Institute Co., Ltd, 2013.
·RUP Report and Approval for HPG Mine, by Sanmenxia Gold Design Institute, February 2010.
·RUP Report and Approval for TLP Mine, by China Steel Group Design Institute.
·RUP Report and Approval for LM Mine, by Sanmenxia Gold Design Institute, April 2010.
·RUP Report and Approval for DCG Mine, by Henan Found Mining Co., Ltd., July 2020.
·RUP and Ecological Remediation and Reclamation Plan Report for TLP, LME and LMW Mines, by Henan Tiantai Engineering Technology Co., Ltd., January 2022.
amcconsultants.com314
NI 43-101 Technical Report Update on the Ying Ag-Pb-Zn Property in Henan Province, People's Republic of China
 
Silvercorp Metals Inc.0723067
20.5.4Soil and water conservation plan and approvals
·Soil and Water Conservation Plan for the SGX Mine, by Luoyang Soil and Water Conservation Supervision Station and approved by Luoyang Water Resources Management Bureau, May 2009.
·Soil and Water Conservation Plan for HPG Mine, by Luoyang Soil and Water Conservation Supervision Station and approved by Luoyang Water Resources Management Bureau, May 2008.
·Soil and Water Conservation Plan for LM Mine, by Luoyang Soil and Water Conservation Supervision Station and approved by Luoyang Water Resources Management Bureau, January 2007.
·Soil and Water Conservation Plan for the Shimengou TSF, approved by Luoyang Water Resources Management Bureau, 2022
·Approval of Wastewater Discharge at the SGX mine and HPG mines to the Guxian Reservoir, by Yellow River Irrigation Work Committee, January 2007.
·Approval of Wastewater Discharge from the Ying TSF to the Chongyang River, by Yellow River Irrigation Work Committee, January 2007.
·Land Reclamation Plan for SGX Mine, Henan Found Mining Ltd., filed in Henan Land and Resources Bureau, July 2014.
·Land Reclamation Plan for TLP / LM Mines, Henan Found Mining Ltd., filed in Henan Land and Resources Bureau, June 2015.
·Land Reclamation Plan for HPG Mine, Henan Found Mining Ltd., filed in Henan Land and Resources Bureau, January 2016.
·Land Reclamation Plan for Dongcaogou Mine, Henan Found Mining Ltd., filed in Henan Land and Resources Bureau, September 2014.
·Land Reclamation Plan for Shiwagou Tailings Dam, Henan Found Mining Ltd., filed in Henan Land and Resources Bureau, July 2014.
·Receipt for Registration of Wastewater Discharge from fixed Pollution Sources, Henan Found Mining Ltd., valid from 14 April 2020 to 13 April 2025.

 

20.5.5Geological hazards assessment report and approval
·The Geological Hazards Assessment Report for the SGX mine, by Henan Provincial Science and Research Institute of Land and Resources, January 2009.
·The Geological Hazards Assessment Report is a part of the documents for the mining permit application that was implemented in March 2004. This report was not required for HPG, LM, and TLP mines since the original mining permits were issued before March 2004.
20.5.6Mining permits

See Section 4.1.

20.5.7Land use right permits
·Land use right certificate (Luoning County Guoyong (2011) No. 0032). The certificate covers a land area of 98,667 square metres (m2) located in Shagou Village, Xiayu Town, Luoning County and will expire in 2061; issued and approved by Luoning County Government, Luoning County Land and Resources Bureau and Ministry of Land and Resources of PRC.
·Forest land use right permit (Yulinzixu 2008 No 170), issued by Henan Forest Bureau in November 2008. The permit covers a forest land area of 12.8064 hectares located in Zhuangtou Village, Xiayu Township, Luoning County for the processing plant and the tailings dam construction.
amcconsultants.com315
NI 43-101 Technical Report Update on the Ying Ag-Pb-Zn Property in Henan Province, People's Republic of China
 
Silvercorp Metals Inc.0723067
20.5.8Water permit
·Water permits (No. C410328S2024-0004). This permit allows the taking of 742,700 m3 of water annually for living and mill processing from Luo River at the inlet of the Chongyang River, 7 km north of the No. 2 Mill. The permit was issued by Luoyang Bureau of Water Resources Management on 26 January 2024 and is valid until 25 January 2026.
·Water permits (No. C410328G2023-0066). This permit allows the taking of 809.900 m3 of water annually for living and mill processing from within the mining permits of Yuelianggou Pb-Zn mine, Haopinggou Ag-Pb mine, LTLP-LM Ag-Pb mine, and DCG Au-Ag mine. The permit was issued by Luoyang Bureau of Water Resources Management on 26 October 2023 and is valid until 25 October 2026.

 

20.6Social and community interaction

The nearest significant community to the Ying projects is the Xia Yu Township, which is approximately 2 km to the south-west of the Ying processing plant area. The Luoning County Town is approximately 48 km to the north-east and the Lushi County Town is approximately 30 km to the south-west.

The project area surrounding land is predominantly agricultural.

Silvercorp has provided several donations and contributions to communities within the Luoning County. These comprise a range of cash donations to local capital projects and community support programs, and capital projects such as road construction and repairing, and constructing and upgrading schools. As of 31 December 2023, Silvercorp had donated over RMB101.28 million in cash or in kind.

Economic benefit from the Ying operations is also seen in the form of direct hiring and retention of local contractors, suppliers, and service providers.

The QP understands that there are no records of public complaints in relation to Silvercorp’s Ying Property operations.

20.6.1Cultural minorities and heritages

There are no cultural minority groups within the general project area. The cultural make-up of the broader Luoning County is predominantly Han Chinese. It is understood that there are no records of cultural heritage sites located within or near the Ying Property.

20.6.2Relationships with local government

Silvercorp has indicated that it has close relationships with the local Luoning County and Luoyang City, evidenced by the following:

·The Company consults with the Luoning County on local issues.
·The Luoning County is utilized to undertake regular water quality monitoring for the SGX and HPG Projects.
·Relations with statutory bodies are positive and Silvercorp has received no notices of breaches of environmental conditions.
20.6.3Labour practices

Production activities on the Property are compliant with Chinese labour regulations. Formal contracts are signed for all the full-time employees with wages well above minimum levels. The company provides annual medical surveillance and checks are conducted for its employees before, during,

amcconsultants.com316
NI 43-101 Technical Report Update on the Ying Ag-Pb-Zn Property in Henan Province, People's Republic of China
 
Silvercorp Metals Inc.0723067

and after their employment with the Company. The Company does not use child or under-age labour.

20.7Remediation and reclamation

Remediation and reclamation plans were developed during the project approval stage, including measures for project construction, operation, and closure. From 2016 through 2023, the Company has spent approximately $M11.5 on environmental protection, including dust control measures, wastewater treatment, solid waste disposal, under-drainage tunnel construction, soil and water conservation, noise control, ecosystem rehabilitation, and emergency response plans. In the same period, a land area of 580,367 m2 was planted with trees and grasses, as planned in the EIA; of this, 86,100 m2 of land was planted in 2022 and 50,200 m2 in 2023. Unused mining tunnels have been closed and rehabilitation coverage at all the mines has been undertaken.

Table 20.7 details expenditures for environmental protection, rehabilitation, reclamation, and compensation for land acquisition from 2016 to 2023.

Table 20.7Expenditures on reclamation and remediation from 2016 to 2023 (‘000 US$)

 

Item 2016 2017 2018 2019 2020 2021 2022 2023 Totals
EIA 64 0 0 0 0 49 10 23 146
Soil & water conservation 0 0 0 41 13 56 24 19 153
Environmental equipment 0 14 24 77 8 280 0 20 423
Tailings dam 113 61 1,009 1,083 2 58 2,323 3,782 8,431
Land reclamation 60 78 106 298 112 260 62 162 1,138
Compensation for land acquisition 154 155 284 178 2 184 127 119 1,203
Total 391 308 1,423 1,677 137 887 2,546 4,125 11,495

Note: Numbers may not compute exactly due to rounding.

 

20.8Site closure plan

Mine closure will comply with the Chinese national regulatory requirements. These comprise Article 21 (Closure Requirements) of the Mineral Resources Law (1996) and Articles 33 and 34 of the Rules of Implementation Procedures of the Mineral Resources Law of the People's Republic of China (2006).

The site closure planning process will include the following components:

·Identify all site closure stakeholders (e.g., government, employees, community, etc.).
·Undertake stakeholder consultation to develop agreed-upon site closure criteria and post-operational land use.
·Maintain records of stakeholder consultation.
·Establish a site rehabilitation objective in line with the agreed post-operational land use.
·Describe / define the site closure liabilities (i.e., determined against agreed closure criteria).
·Establish site closure management strategies and cost estimates (i.e., to address / reduce site closure liabilities).
·Establish a financial accrual process for the site closure.
·Describe the post-site closure monitoring activities / program (i.e., to demonstrate compliance with the rehabilitation objective / closure criteria).
amcconsultants.com317
NI 43-101 Technical Report Update on the Ying Ag-Pb-Zn Property in Henan Province, People's Republic of China
 
Silvercorp Metals Inc.0723067

Based on the Chinese national regulatory requirements, Silvercorp will complete a site decommissioning plan at least one year before mine closure. Site rehabilitation and closure cost estimates will be made at that time.

amcconsultants.com318
NI 43-101 Technical Report Update on the Ying Ag-Pb-Zn Property in Henan Province, People's Republic of China
 
Silvercorp Metals Inc.0723067
21Capital and operating costs

An exchange rate of US$1 = 7.00 RMB is assumed for all capital and operating cost estimates.

21.1Capital costs

The Ying Property capital cost projections covering the exploitation of the current Mineral Reserves are shown below in Table 21.1.

Table 21.1 indicates anticipated capital expenditures on exploration and mine development; facilities, plant, and equipment; and general investment capital through to the projected end of mine life in 2038. The basis for calculating these capital costs is the LOM plan for mining and processing described in Sections 16 and 17.

As of 30 June 2024, and separately allocated from the above, remaining capital expenditures for construction and commissioning of the extension to Mill Plant 2 and the first phase of the new TSF (TSF 3) - both expected to be complete by end of 2024 (FY2025Q3) – are, respectively, US$5.2M and US$10.3M. Inclusive of capital already spent, the final total estimates for the projects are, respectively, US$7.1M and US$23.6M.

The QP considers the projected capital costs to be reasonable relative to the planned exploration, development, mining, processing, and associated site facilities, equipment, and infrastructure.

amcconsultants.com319
NI 43-101 Technical Report Update on the Ying Ag-Pb-Zn Property in Henan Province, People's Republic of China
 
Silvercorp Metals Inc.0723067
Table 21.1Projected Ying LOM Capex (US$M)
  

 

Cost item Total LOM FY2025Q2-Q4 FY2026 FY2027 FY2028 FY2029 FY2030 FY2031 FY2032 FY2033 FY2034 FY2035 FY2036 FY2037 FY2038
SGX
Sustaining Capex                              
Exploration & mine development tunnelling 32.44 7.49 9.71 8.09 3.18 1.64 1.18 0.54 0.20 0.20 0.08 0.13 - - -
Facilities, Plant, and Equipment 27.91 1.33 2.01 2.20 2.21 2.21 2.21 2.19 2.21 2.21 2.21 2.19 1.92 1.55 1.26
Investment Capex 38.45 2.63 3.67 3.67 3.64 3.80 3.46 3.53 3.63 3.36 3.27 2.81 0.67 0.31 -
Total SGX Capex 98.80 11.45 15.39 13.96 9.03 7.65 6.85 6.26 6.04 5.77 5.56 5.13 2.59 1.86 1.26
HZG                              
Sustaining Capex                              
Exploration & mine development tunnelling 5.90 1.27 1.80 1.37 0.69 0.53 0.19 0.05 - - - - - - -
Facilities, Plant, and Equipment 0.90 0.11 0.15 0.15 0.15 0.15 0.12 0.07 - - - - - - -
Investment Capex 6.14 1.52 1.32 0.87 1.16 0.55 0.72 - - - - - - - -
Total HZG Capex 12.94 2.90 3.27 2.39 2.00 1.23 1.03 0.12 - - - - - - -
HPG
Sustaining Capex                              
Exploration & mine development tunnelling 13.75 4.07 2.45 1.96 1.30 1.05 0.90 0.95 1.07 - - - - - -
Facilities, Plant, and Equipment 2.02 0.17 0.29 0.28 0.28 0.29 0.28 0.22 0.21 - - - - - -
Investment Capex 5.68 0.84 1.01 1.01 0.90 0.75 0.39 0.40 0.38 - - - - - -
Total HPG Capex 21.45 5.08 3.75 3.25 2.48 2.09 1.57 1.57 1.66 - - - - - -
TLP
Sustaining Capex                              
Exploration & mine development tunnelling 26.34 6.27 4.10 4.05 3.21 1.69 2.02 1.67 1.15 0.87 0.81 0.50 - - -
Facilities, Plant, and Equipment 6.53 0.40 0.56 0.57 0.57 0.57 0.57 0.57 0.56 0.54 0.52 0.49 0.38 0.23 -
Investment Capex 19.89 2.24 2.58 3.14 3.07 3.20 1.92 1.39 1.09 0.71 0.30 0.25 - - -
Total TLP Capex 52.76 8.91 7.24 7.76 6.85 5.46 4.51 3.63 2.80 2.12 1.63 1.24 0.38 0.23 -
LME
Sustaining Capex                              
Exploration & mine development tunnelling 1.92 0.92 0.83 0.17 - - - - - - - - - - -
Facilities, Plant, and Equipment 2.57 0.12 0.14 0.24 0.23 0.22 0.23 0.23 0.24 0.23 0.23 0.23 0.23 - -
Investment Capex 19.66 1.98 2.71 2.69 2.48 1.91 1.91 1.93 1.72 1.32 0.69 0.32 - - -
Total LME Capex 24.15 3.02 3.68 3.10 2.71 2.13 2.14 2.16 1.96 1.55 0.92 0.55 0.23 - -
LMW
Sustaining Capex                              
Exploration & mine development tunnelling 9.22 3.37 2.80 0.75 0.42 0.39 0.12 0.45 0.45 0.35 0.12 - - - -
Facilities, Plant, and Equipment 10.60 0.77 0.97 0.97 0.96 0.96 0.96 1.03 0.95 0.96 0.95 0.87 0.25 - -
Investment Capex 9.60 1.74 2.24 1.58 1.20 0.85 0.73 0.59 0.47 0.20 - - - - -
Total LMW Capex 29.42 5.88 6.01 3.30 2.58 2.20 1.81 2.07 1.87 1.51 1.07 0.87 0.25 - -
DCG
Sustaining Capex                              
Exploration & mine development tunnelling 0.69 0.15 0.46 0.08 - - - - - - - - - - -
Facilities, Plant, and Equipment 0.93 0.22 0.26 0.25 0.20 - - - - - - - - - -
Investment Capex 0.40 0.24 0.16 - - - - - - - - - - - -
Total DCG Capex 2.02 0.61 0.88 0.33 0.20 - - - - - - - - - -
Ying Total
Sustaining Capex                              
Exploration & mine development tunnelling 90.31 23.55 22.15 16.47 8.81 5.31 4.41 3.67 2.87 1.42 1.02 0.63 - - -
Facilities, Plant, and Equipment 51.48 3.12 4.37 4.67 4.60 4.40 4.37 4.32 4.18 3.94 3.90 3.79 2.79 1.77 1.26
Investment Capex 99.82 11.18 13.69 12.97 12.45 11.06 9.13 7.85 7.29 5.58 4.26 3.38 0.67 0.31 -
Total Ying Capex 241.61 37.85 40.21 34.11 25.86 20.77 17.91 15.84 14.34 10.94 9.18 7.80 3.46 2.08 1.26

Notes: Numbers may not compute exactly due to rounding.

amcconsultants.com320
NI 43-101 Technical Report Update on the Ying Ag-Pb-Zn Property in Henan Province, People's Republic of China
 
Silvercorp Metals Inc.0723067

 

21.2Operating costs

Major operating cost categories are mining, shipping, milling, G&A, product selling, Mineral Resources tax, and government fees and other taxes.

Silvercorp utilizes contract labour for mining on a rate per tonne or a rate per metre basis. The contracts include all labour, all fixed and mobile equipment, materials, and consumables, including fuel and explosives, which are purchased through the Company. Ground support consumables such as timber, and power to the portal areas are the responsibility of the Company.

Shipping costs are for moving ore from each mine to the processing plant.

The principal components of the milling costs are utilities (power and water), consumables (grinding steel and reagents), and labour, each typically about one third of the total cost.

G&A costs include an allowance for tailings dam operations and other environmental costs. Major capital on the two existing TSFs has already been expended and the remaining capital for bringing TSF 3 into operation is described above. Ongoing costs associated with progressively raising the dams with tailings are regarded as an operating cost. TSF 1 is projected to be complete by end- 2024, TSF 2 by 2029. Operating costs for TSF 3 are projected to begin at the end of 2024.

As of 1 July 2016, the previous Mineral Resources tax was switched to a levy based on percentage of sales. The provision for Mineral Resources tax is approximately 3% of sales.

Table 21.2 summarizes projected LOM operating costs in US$, by mine, and for Ying as a whole.

The QP notes that the operating cost estimates are generally in close alignment with those used for Mineral Reserve COG determination. In the case of LMW, a lower unit mining cost/t projection may be seen as a reflection of nine of 13 new stopes using lower cost shrinkage, room and pillar, and longhole stoping methods, and a reduced ratio in mining support costs to stoping cost relative to recent years. Overall, the QP considers the operating cost estimates to be reasonable relative to the methods and technology used and the scale of operations envisaged over the LOM. Recent inflationary pressures on costs have also been noted and, while the projected annual production rate increases and the introduction of more mechanized mining can facilitate the achievement of costs around projected levels, a constant focus on operational efficiency and cost effectiveness will be essential.

 

amcconsultants.com321
NI 43-101 Technical Report Update on the Ying Ag-Pb-Zn Property in Henan Province, People's Republic of China
 
Silvercorp Metals Inc.0723067

Table 21.2Projected Ying LOM Opex (US$M)

Cost item Total LOM FY2025Q2-Q4 FY2026 FY2027 FY2028 FY2029 FY2030 FY2031 FY2032 FY2033 FY2034 FY2035 FY2036 FY2037 FY2038 LOM unit costs US$/t
SGX  
Mining 419.98 22.04 32.37 33.97 34.94 34.99 33.54 33.89 34.57 34.15 32.66 30.31 25.45 21.45 15.65 77.98
Shipping 20.21 0.96 1.45 1.60 1.60 1.60 1.60 1.59 1.60 1.60 1.60 1.59 1.39 1.12 0.91 3.75
Milling 58.90 2.80 4.24 4.65 4.66 4.66 4.66 4.63 4.67 4.67 4.66 4.63 4.06 3.26 2.65 10.94
G&A and product selling 57.30 2.72 4.12 4.52 4.53 4.54 4.54 4.50 4.55 4.54 4.53 4.51 3.95 3.17 2.58 10.64
Mineral Resources tax 34.03 2.13 3.10 3.05 2.79 2.66 2.68 2.61 2.53 2.54 2.52 2.39 2.06 1.67 1.30 6.32
Government fee and other taxes 15.10 0.72 1.09 1.19 1.19 1.19 1.19 1.19 1.20 1.20 1.19 1.19 1.04 0.84 0.68 2.80
Total SGX Opex 605.52 31.37 46.37 48.98 49.71 49.64 48.21 48.41 49.12 48.70 47.16 44.62 37.95 31.51 23.77 112.43
HZG  
Mining 35.02 4.40 6.17 5.98 5.44 5.91 4.48 2.64 - - - - - - - 72.04
Shipping 2.17 0.27 0.36 0.36 0.36 0.35 0.29 0.18 - - - - - - - 4.46
Milling 5.33 0.66 0.88 0.88 0.88 0.88 0.71 0.44 - - - - - - - 10.96
G&A and product selling 5.17 0.64 0.86 0.85 0.85 0.85 0.69 0.43 - - - - - - - 10.64
Mineral Resources tax 2.12 0.28 0.36 0.36 0.36 0.35 0.26 0.15 - - - - - - - 4.36
Government fee and other taxes 1.35 0.17 0.23 0.22 0.22 0.22 0.18 0.11 - - - - - - - 2.78
Total HZG Opex 51.16 6.42 8.86 8.65 8.11 8.56 6.61 3.95 - - - - - - - 105.24
HPG  
Mining 62.59 5.77 8.50 8.16 8.07 9.16 8.75 7.42 6.76 - - - - - - 75.26
Shipping 2.26 0.19 0.32 0.32 0.31 0.32 0.31 0.25 0.24 - - - - - - 2.72
Milling 9.10 0.78 1.29 1.27 1.27 1.28 1.25 1.00 0.96 - - - - - - 10.94
G&A and product selling 8.84 0.76 1.25 1.24 1.23 1.25 1.21 0.97 0.93 - - - - - - 10.63
Mineral Resources tax 2.70 0.18 0.42 0.38 0.37 0.42 0.40 0.29 0.24 - - - - - - 3.25
Government fee and other taxes 2.35 0.20 0.33 0.33 0.33 0.33 0.32 0.26 0.25 - - - - - - 2.83
Total HPG Opex 87.84 7.88 12.11 11.70 11.58 12.76 12.24 10.19 9.38 - - - - - - 105.63
TLP  
Mining 215.91 16.24 19.89 20.12 20.44 20.63 19.38 19.07 18.89 17.48 16.00 13.20 9.00 5.57 - 64.21
Shipping 10.47 0.64 0.89 0.92 0.92 0.92 0.92 0.92 0.89 0.86 0.83 0.79 0.61 0.36 - 3.11
Milling 36.79 2.25 3.14 3.23 3.23 3.23 3.23 3.23 3.13 3.03 2.91 2.78 2.13 1.27 - 10.94
G&A and product selling 35.78 2.19 3.05 3.14 3.14 3.14 3.14 3.14 3.05 2.95 2.83 2.70 2.08 1.23 - 10.64
Mineral Resources tax 13.21 0.85 1.18 1.25 1.29 1.29 1.23 1.15 1.03 1.05 0.95 0.93 0.67 0.34 - 3.93
Government fee and other taxes 9.44 0.58 0.80 0.83 0.83 0.83 0.83 0.83 0.80 0.78 0.75 0.71 0.55 0.32 - 2.81
Total TLP Opex 321.60 22.75 28.95 29.49 29.85 30.04 28.73 28.34 27.79 26.15 24.27 21.11 15.04 9.09 - 95.64
LME  
Mining 67.39 3.68 4.57 6.38 6.20 5.97 6.24 6.04 5.81 5.85 6.16 5.90 4.59 - - 73.93
Shipping 2.89 0.13 0.16 0.26 0.26 0.25 0.26 0.26 0.27 0.26 0.26 0.26 0.26 - - 3.17
Milling 9.95 0.45 0.56 0.91 0.89 0.85 0.90 0.89 0.93 0.89 0.89 0.90 0.89 - - 10.92
G&A and product selling 9.71 0.44 0.54 0.89 0.87 0.82 0.88 0.87 0.91 0.87 0.87 0.88 0.87 - - 10.65
Mineral Resources tax 4.26 0.18 0.26 0.38 0.38 0.37 0.39 0.42 0.42 0.38 0.40 0.36 0.32 - - 4.67
Government fee and other taxes 2.56 0.12 0.14 0.23 0.23 0.22 0.23 0.23 0.24 0.23 0.23 0.23 0.23 - - 2.81
Total LME Opex 96.76 5.00 6.23 9.05 8.83 8.48 8.90 8.71 8.58 8.48 8.81 8.53 7.16 - - 106.16
amcconsultants.com322
NI 43-101 Technical Report Update on the Ying Ag-Pb-Zn Property in Henan Province, People's Republic of China
 
Silvercorp Metals Inc.0723067

Cost item Total LOM FY2025Q2-Q4 FY2026 FY2027 FY2028 FY2029 FY2030 FY2031 FY2032 FY2033 FY2034 FY2035 FY2036 FY2037 FY2038 LOM unit costs US$/t
LMW  
Mining 121.94 9.15 12.18 12.04 12.72 12.10 12.12 11.19 10.36 9.62 9.83 8.27 2.36 - - 73.04
Shipping 5.39 0.39 0.49 0.49 0.49 0.49 0.49 0.52 0.49 0.49 0.48 0.44 0.13 - - 3.23
Milling 18.27 1.33 1.67 1.67 1.66 1.66 1.65 1.77 1.64 1.66 1.63 1.49 0.44 - - 10.94
G&A and product selling 17.76 1.29 1.62 1.63 1.61 1.62 1.60 1.72 1.60 1.61 1.59 1.45 0.42 - - 10.64
Mineral Resources tax 7.34 0.49 0.70 0.70 0.72 0.68 0.69 0.70 0.68 0.65 0.63 0.56 0.14 - - 4.40
Government fee and other taxes 4.67 0.34 0.43 0.43 0.42 0.43 0.42 0.45 0.42 0.42 0.42 0.38 0.11 - - 2.80
Total LMW Opex 175.37 12.99 17.09 16.96 17.62 16.98 16.97 16.35 15.19 14.45 14.58 12.59 3.60 - - 105.05
DCG  
Mining 7.89 2.40 2.06 1.94 1.49 - - - - - - - - - - 71.50
Shipping 0.37 0.09 0.10 0.10 0.08 - - - - - - - - - - 3.35
Milling 1.21 0.29 0.33 0.33 0.26 - - - - - - - - - - 10.97
G&A and product selling 1.17 0.28 0.32 0.32 0.25 - - - - - - - - - - 10.60
Mineral Resources tax 0.14 0.03 0.03 0.04 0.04 - - - - - - - - - - 1.27
Government fee and other taxes 0.30 0.07 0.08 0.08 0.07 - - - - - - - - - - 2.72
Total DCG Opex 11.08 3.16 2.92 2.81 2.19 - - - - - - - - - - 100.41
Ying Total  
Mining 930.72 63.68 85.74 88.59 89.30 88.76 84.51 80.25 76.39 67.10 64.65 57.68 41.40 27.02 15.65 72.95
Shipping 43.76 2.67 3.77 4.05 4.02 3.93 3.87 3.72 3.49 3.21 3.17 3.08 2.39 1.48 0.91 3.43
Milling 139.55 8.56 12.11 12.94 12.85 12.56 12.40 11.96 11.33 10.25 10.09 9.80 7.52 4.53 2.65 10.94
G&A and product selling 135.73 8.32 11.76 12.59 12.48 12.22 12.06 11.63 11.04 9.97 9.82 9.54 7.32 4.40 2.58 10.64
Mineral Resources tax 63.80 4.14 6.05 6.16 5.95 5.77 5.65 5.32 4.90 4.62 4.50 4.24 3.19 2.01 1.30 5.00
Government fee and other taxes 35.77 2.20 3.10 3.31 3.29 3.22 3.17 3.07 2.91 2.63 2.59 2.51 1.93 1.16 0.68 2.80
Total Ying Opex 1,349.33 89.57 122.53 127.64 127.89 126.46 121.66 115.95 110.06 97.78 94.82 86.85 63.75 40.60 23.77 105.77

Notes: Numbers may not compute exactly due to rounding.

amcconsultants.com323
NI 43-101 Technical Report Update on the Ying Ag-Pb-Zn Property in Henan Province, People's Republic of China
 
Silvercorp Metals Inc.0723067

22Economic analysis

22.1Introduction

Although Silvercorp is a producing issuer and, therefore, does not require an economic analysis of the Ying Property for the purposes of this report, the QPs consider it reasonable to include a high-level analysis to illustrate the potential economic impact relative to the latest Mineral Reserve estimations and the associated production schedules.

The following metal prices, costs (Ying averages over projected LOM) and exchange rate were used for the economic analysis:

·Gold price US$1,900/oz
·Silver price US$22/oz
·Lead price US$1.00/lb
·Zinc price US$1.15/lb
Mining cost US$72.95/t
·Milling cost US$10.94/t
·Shipping US$3.43/t
·Mineral Resources tax US$5.00/t
·G&A US$10.64/t
·Government fees and other taxes US$2.80/t
·Sustaining and growth capital US$20.32/t
·Exchange rate US$1 = 7.00RMB

The QP notes that the gold, silver, and zinc metal prices used for the economic analysis are slightly higher than those used in the Ying COG calculations. The QP also notes that current spot metal prices at the time of writing of the Technical Report are: gold - $2,430/oz; silver - $30.89/oz; lead - $0.97/lb; zinc - $1.34/lb – with all but the lead price significantly higher than the prices used for the economic analysis.

22.2Annual production schedule

The Ying LOM ore and metal production schedule is shown below as Table 22.1.

amcconsultants.com324
NI 43-101 Technical Report Update on the Ying Ag-Pb-Zn Property in Henan Province, People's Republic of China
 
Silvercorp Metals Inc.0723067

Table 22.1Ying Mines LOM production schedule

Ying Mines production
schedule
FY2025Q2-Q4 FY2026 FY2027 FY2028 FY2029 FY2030 FY2031 FY2032 FY2033 FY2034 FY2035 FY2036 FY2037 FY2038 Total
Ying Mine - total tonnes
Resuing 562,016 703,993 676,169 643,504 707,199 620,189 618,931 564,613 559,101 557,303 440,679 243,511 244,283 135,318 7,276,808
Shrinkage 165,587 328,965 408,167 441,055 356,638 440,423 402,224 431,269 329,957 312,261 403,226 423,945 161,269 104,025 4,709,012
Room and pillar 33,800 10,088 22,870 10,411 24,867 5,933 17,590 16,115 26,572 14,796 22,560 6,591 - - 212,192
Back filled 20,661 63,016 75,834 78,119 59,544 66,853 54,594 25,000 21,367 38,574 30,109 14,041 8,714 3,046 559,473
Mine life plan 782,064 1,106,062 1,183,039 1,173,089 1,148,248 1,133,398 1,093,339 1,036,997 936,997 922,934 896,574 688,089 414,266 242,389 12,757,484
Grade
Au (g/t) 0.52 0.32 0.33 0.25 0.19 0.12 0.10 0.10 0.05 0.04 0.05 0.07 0.04 0.01 0.17
Ag (g/t) 242 246 240 230 229 218 213 207 204 201 198 178 159 164 216
Pb (%) 3.19 3.46 3.14 3.10 3.06 3.21 3.10 2.91 3.30 3.23 3.09 3.33 3.67 3.74 3.20
Zn (%) 0.89 0.76 0.82 0.83 0.85 0.85 0.87 1.02 0.98 1.11 0.99 1.03 1.61 2.79 0.96
Metal production
Au (oz) 11,808 9,975 11,107 8,370 6,112 4,017 3,086 3,006 1,279 784 1,086 1,044 103 67 61,844
Ag (oz) 5,808,281 8,342,738 8,705,422 8,287,329 8,065,552 7,593,249 7,148,712 6,617,254 5,886,048 5,711,384 5,476,969 3,779,209 2,035,657 1,228,975 84,686,777
Pb (pounds) 52,239,889 80,321,670 77,723,930 75,978,265 73,283,850 75,934,549 71,007,619 63,235,708 64,919,507 62,618,146 58,061,813 48,139,921 32,223,335 19,521,981 855,210,185
Zn (pounds) 9,354,864 11,317,262 12,937,901 12,804,413 13,112,234 12,888,271 12,656,126 14,041,666 12,055,167 13,493,752 11,690,393 9,260,403 8,879,279 9,015,653 163,507,384

Note: Ying LOM average recoveries: Au – 87.38%, Ag – 95.62%, Pb – 95.07%, Zn - 60.33%.

Numbers may not compute exactly due to rounding.

amcconsultants.com325
NI 43-101 Technical Report Update on the Ying Ag-Pb-Zn Property in Henan Province, People's Republic of China
 
Silvercorp Metals Inc.0723067

22.3Cash flow forecast and cash flow projection

Based on the LOM production profile and the metal price and other assumptions shown above, pre-tax and post-tax cashflow projections have been generated as presented in Table 22.2. At 5% discount rate, pre-tax and post-tax net present values (NPVs) of $896M and $699M, respectively, are projected. Over the LOM, 61.5% of the net revenue is projected to come from silver, 29.9% from lead, 5.0% from zinc, and 3.6% from gold.

amcconsultants.com326
NI 43-101 Technical Report Update on the Ying Ag-Pb-Zn Property in Henan Province, People's Republic of China
 
Silvercorp Metals Inc.0723067

Table 22.2  Ying property cash flow projection US$/t FY2025Q2-Q4 FY2026 FY2027 FY2028 FY2029 FY2030 FY2031 FY2032 FY2033 FY2034 FY2035 FY2036 FY2037 FY2038 Total
Metal Production
Au (koz)   11.81 9.98 11.11 8.37 6.11 4.02 3.09 3.01 1.28 0.78 1.09 1.04 0.10 0.07 62
Ag (koz) 5,808 8,343 8,705 8,287 8,066 7,593 7,149 6,617 5,886 5,711 5,477 3,779 2,036 1,229 84,687
Pb (Mlb) 52.24 80.32 77.72 75.98 73.28 75.93 71.01 63.24 64.92 62.62 58.06 48.14 32.22 19.52 855
Zn (Mlb) 9.35 11.32 12.94 12.80 13.11 12.89 12.66 14.04 12.06 13.49 11.69 9.26 8.88 9.02 164
Net Realized Selling Price
Au ($/oz)   1,615.00 1,615.00 1,615.00 1,615.00 1,615.00 1,615.00 1,615.00 1,615.00 1,615.00 1,615.00 1,615.00 1,615.00 1,615.00 1,615.00 1,615.00
Ag ($/oz) 20.35 20.35 20.35 20.35 20.35 20.35 20.35 20.35 20.35 20.35 20.35 20.35 20.35 20.35 20.35
Pb ($/lb) 0.98 0.98 0.98 0.98 0.98 0.98 0.98 0.98 0.98 0.98 0.98 0.98 0.98 0.98 0.98
Zn ($/lb) 0.85 0.85 0.85 0.85 0.85 0.85 0.85 0.85 0.85 0.85 0.85 0.85 0.85 0.85 0.85
Revenue
Au ($M)   19.07 16.11 17.94 13.52 9.87 6.49 4.98 4.85 2.07 1.27 1.75 1.69 0.17 0.11 99.89
Ag ($M) 118.20 169.77 177.16 168.65 164.13 154.52 145.48 134.66 119.78 116.23 111.46 76.91 41.43 25.01 1,723.39
Pb ($M) 51.20 78.72 76.17 74.46 71.82 74.42 69.59 61.97 63.62 61.37 56.90 47.18 31.58 19.13 838.13
Zn ($M) 7.96 9.63 11.01 10.90 11.16 10.97 10.77 11.95 10.26 11.48 9.95 7.88 7.56 7.67 139.15
Total Revenue ($M)   196.43 274.23 282.28 267.53 256.98 246.40 230.82 213.43 195.73 190.35 180.06 133.66 80.74 51.92 2,800.56
Mining Costs ($M)
Resuing mining 43.54 (24.28) (30.70) (29.37) (28.00) (30.64) (26.80) (26.72) (24.56) (24.17) (23.95) (19.03) (11.02) (11.27) (6.30) (317)
Shrinkage mining 21.82 (3.58) (7.12) (8.96) (9.65) (7.90) (9.56) (8.88) (9.41) (7.31) (6.79) (8.73) (9.08) (3.38) (2.41) (103)
Room and Pillar 14.29 (0.48) (0.14) (0.33) (0.15) (0.36) (0.08) (0.25) (0.23) (0.38) (0.21) (0.32) (0.09) - - (3)
Back filled 13.82 (0.19) (0.59) (0.97) (1.23) (0.96) (1.00) (0.78) (0.30) (0.31) (0.55) (0.34) (0.23) (0.20) (0.07) (8)
Drilling 1.83 (1.89) (3.30) (2.95) (2.75) (2.54) (2.28) (1.86) (1.68) (1.42) (1.19) (0.86) (0.38) (0.24) - (23)
Expensed tunneling 11.16 (12.77) (14.92) (14.87) (16.62) (16.03) (14.82) (12.88) (12.76) (9.05) (7.83) (4.95) (2.68) (1.54) (0.60) (142)
Mine common costs 26.23 (20.47) (28.97) (31.15) (30.90) (30.32) (29.96) (28.87) (27.44) (24.47) (24.12) (23.44) (17.91) (10.38) (6.27) (335)
Total Mining Costs ($M) 72.95 (63.66) (85.74) (88.60) (89.30) (88.75) (84.50) (80.24) (76.38) (67.11) (64.64) (57.67) (41.39) (27.01) (15.65) (930.64)
Milling Costs ($M) 10.94 (8.55) (12.10) (12.94) (12.83) (12.56) (12.40) (11.96) (11.34) (10.25) (10.09) (9.81) (7.53) (4.53) (2.65) (140)
Shipping Costs ($M) 3.43 (2.67) (3.77) (4.04) (4.01) (3.93) (3.86) (3.71) (3.49) (3.21) (3.17) (3.08) (2.39) (1.48) (0.91) (44)
Mineral Resource Tax ($M) 5.00 (4.14) (6.05) (6.16) (5.93) (5.77) (5.65) (5.32) (4.91) (4.61) (4.51) (4.23) (3.19) (2.00) (1.30) (64)
92.32 (79) (108) (112) (112) (111) (106) (101) (96) (85) (82) (75) (55) (35) (21) (1,178)
General & Administrative ($M) 10.64 (8.32) (11.77) (12.59) (12.48) (12.22) (12.06) (11.63) (11.03) (9.97) (9.82) (9.54) (7.32) (4.41) (2.58) (136)
Government fees and other taxes ($M) 2.80 (2.19) (3.10) (3.31) (3.29) (3.22) (3.18) (3.06) (2.91) (2.62) (2.59) (2.51) (1.93) (1.16) (0.68) (36)
Total Cash Operation Cost ($M) 105.76 (89.53) (122.53) (127.64) (127.84) (126.45) (121.65) (115.92) (110.06) (97.77) (94.82) (86.84) (63.75) (40.59) (23.77) (1,349.16)
Cashflow before tax and capital ($M)   106.90 151.70 154.64 139.69 130.53 124.75 114.90 103.37 97.96 95.53 93.22 69.91 40.15 28.15 1,451.40
Amortization ($M)   (15.72) (28.54) (39.29) (35.72) (30.10) (21.53) (18.28) (16.12) (13.80) (11.62) (9.46) (7.04) (4.91) (7.07) (259)
Taxable income ($M) 91 123 115 104 100 103 97 87 84 84 84 63 35 21 1,192
Income tax rates 15% 15% 15% 25% 25% 25% 25% 25% 25% 25% 25% 25% 25% 25%  
Income tax ($M) (13.68) (18.47) (17.30) (25.99) (25.11) (25.81) (24.16) (21.81) (21.04) (20.98) (20.94) (15.72) (8.81) (5.27) (265.08)
Cash flow after taxes before capital ($M) 93.22 133.23 137.34 113.70 105.42 98.95 90.75 81.56 76.92 74.55 72.28 54.19 31.34 22.88 1,186.32
Sustaining capital ($M) 11.11 (26.67) (26.52) (21.13) (13.40) (9.71) (8.78) (7.99) (7.05) (5.36) (4.92) (4.42) (2.79) (1.77) (1.26) (141.77)
Growth capital ($M) 9.21 (28.79) (13.69) (12.97) (12.45) (11.06) (9.13) (7.85) (7.29) (5.58) (4.26) (3.38) (0.67) (0.31) - (117.43)
Total Cost ($M) 126.07 (144.99) (162.74) (161.74) (153.69) (147.22) (139.56) (131.76) (124.40) (108.71) (104.00) (94.64) (67.21) (42.67) (25.03) (1,608.36)
Free cash flow before taxes ($M)   51.44 111.49 120.54 113.84 109.76 106.84 99.06 89.03 87.02 86.35 85.42 66.45 38.07 26.89 1,192.20
Free Cash Flow after taxes ($M) 37.76 93.02 103.24 87.85 84.65 81.04 74.91 67.22 65.98 65.37 64.48 50.73 29.26 21.62 927.12
NPV5% pre-tax $M896                              
NPV5% post-tax $M699                              

Notes: Exclusive of 17% VAT.

Numbers may not compute exactly due to rounding.

amcconsultants.com327
NI 43-101 Technical Report Update on the Ying Ag-Pb-Zn Property in Henan Province, People's Republic of China
 
Silvercorp Metals Inc.0723067
22.4Sensitivity analysis

Figure 22.1 shows the Ying pre-tax NPV sensitivity over a +/- 30% change in Ag, Pb, and Zn metal prices, and in operating and capital costs.

Figure 22.1Ying pre-tax NPV sensitivity

Source: AMC, from Silvercorp data.

 

Most sensitivity is seen in silver price (the sensitivity would effectively be the same with variation in Ag grade) and, to a lesser extent, in operating cost. The NPV is moderately sensitive to lead price and only slightly sensitive to zinc price and capital cost.

The Ying mine complex is seen to be a very viable operation with a projected LOM through to 2038 based on only Proven and Probable Mineral Reserves. Annual mined production of silver is projected to be between 7.5 and 9.1 Moz through FY2031 (metal produced 7.1 to 8.7 Moz), 5.7 and 6.9 Moz from FY2032 through FY2035 (metal produced 5.5 to 6.6 Moz), and to average 2.4 Moz (metal produced 2.3 Moz) over the final three years of currently projected mine life. Approximately 408 kt of Pb, 123 kt of zinc, and 70 koz of gold are also projected to be mined over the LOM from 1 July 2024. There remains significant potential to extend the LOM beyond 2038 via further exploration and development, particularly in areas with identified Inferred Resources.

amcconsultants.com328
NI 43-101 Technical Report Update on the Ying Ag-Pb-Zn Property in Henan Province, People's Republic of China
 
Silvercorp Metals Inc.0723067

23Adjacent properties

The QP is not aware of any adjacent properties with a similar type of mineralization.

amcconsultants.com329
NI 43-101 Technical Report Update on the Ying Ag-Pb-Zn Property in Henan Province, People's Republic of China
 
Silvercorp Metals Inc.0723067

24Other relevant data and information

The QP is not aware of any additional information or explanation that is necessary to make the Technical Report understandable and not misleading.

amcconsultants.com330
NI 43-101 Technical Report Update on the Ying Ag-Pb-Zn Property in Henan Province, People's Republic of China
 
Silvercorp Metals Inc.0723067

25Interpretation and conclusions

Silvercorp has been active on the Ying Property since 2004. The Property currently includes the SGX, HZG, HPG, TLP, LME, LMW, and DCG mines. Annual production of primarily silver-lead-zinc ore had been consistently in the range of 600,000 to 650,000 tonnes in the years leading up to and including FY2022, but increased to 769,000 tonnes in FY2023 and 827,000 tonnes in FY2024. The Silvercorp fiscal year (FY) begins in April, thus FY2025 runs from 1 April 2024 to 31 March 2025.

Mineralization in the Ying district mainly comprises numerous, steeply dipping, silver-lead-zinc veins with widths varying from a few centimetres to a few metres and with strike lengths up to a few thousand metres. To date, significant mineralization has been defined or developed in at least 534 discrete vein structures, and many other smaller veins have been found but not, as yet, well explored. Included in the number of veins are 22 new gold-rich veins, which have been a recent exploration target for Silvercorp.

Exploration is by underground drilling, surface drilling, and chip sampling of underground workings. Silvercorp’s logging, surveying, sampling, sub-sampling, and assaying procedures follow common industry practice. QA/QC programs have been in place since 2004. QA/QC records were not available from 2004 to 2009, however this represents a small portion of the total results and, therefore, does not provide a material risk to the project. The 2010 to 2023 results are deemed satisfactory by the QP.

Because of the pinch and swell nature of Ying veins, there is often significant uncertainty in location of potentially economic mineralization within the veins, and in the grade and tonnage of that mineralization. However, the large number of veins and active mining areas within each vein means that economic risk related to this uncertainty is likely to be low. Silvercorp has a history of profitable mining, which demonstrates its ability to successfully manage this uncertainty.

The Mineral Resource estimates for the SGX, HZG, HPG, TLP, LME, LMW, and DCG deposits at the Ying Property were prepared by Silvercorp. Grade estimates have been reviewed by independent QPs Mr Simeon Robinson, P.Geo., MAIG, Mr Justin Glanvill, Pri.Sci.Nat., and Dr Craig Stewart, P.Geo. of AMC. Mr Robinson takes responsibility for the SGX, TLP and HZG estimates. Mr Glanvill takes responsibility for the LME and LMW estimates. Dr Stewart takes responsibility for the HPG and DCG estimates.

Grade estimation was completed for a total of 534 veins using a block modelling approach using the inverse distance squared (ID2) interpolation method in Micromine software. This is an increase of 178 veins from the previous 2022 Technical Report. Grade estimates were completed for Ag and Pb in all deposits, Zn in select deposits, and Au within select veins at select deposits. After interpolation, a 0.4 m minimum mining width calculation was applied, whereby mineralization widths < 0.4 m had a dilution envelope of zero grade added to make up the difference. The Mineral Resources were then reported above a COG based on in situ values in AgEq.

For the purposes of COG and AgEq calculations, the QP has used recently reported individual metal processing recoveries, payables and operating costs for each site, and the following long-term metal prices for both Mineral Resources and Mineral Reserves: Au US$1,800/oz, Ag US$21.00/oz, Pb US$1.00/lb, Zn US$1.10/lb.

Measured and Indicated Resources total 22.15 Mt averaging 0.20 g/t Au, 203 g/t Ag, 3.06% Pb, and 0.87% Zn, while Inferred Resources total 8.80 Mt averaging 0.56 g/t Au, 187 g/t Ag, 2.96% Pb, and 0.64% Zn. Mineral Resource COGs are SGX 140 g/t AgEq; HZG 130 g/t AgEq; HPG 140 g/t AgEq; TLP 125 g/t AgEq; LME 130 g/t AgEq; LMW 125 g/t AgEq; DCG 150 g/t AgEq.

 

amcconsultants.com331
NI 43-101 Technical Report Update on the Ying Ag-Pb-Zn Property in Henan Province, People's Republic of China
 
Silvercorp Metals Inc.0723067

 

Proven and Probable Reserves total 12.8 Mt averaging 216 g/t Ag, 3.20% Pb, 0.96% Zn, and 0.17 g/t Au. Mineral Reserve COGs in g/t AgEq are SGX – 225 Resuing, 190 Shrinkage; HZG – 235 Resuing, 205 Shrinkage; HPG – 240 Resuing, 200 Shrinkage; TLP – 205 Resuing, 170 Shrinkage; LME – 235 Resuing, 210 Shrinkage, 205 Room & Pillar; LMW – 250 Resuing, 225 Shrinkage, 195 Longhole, 205 Room & Pillar; DCG – 275 Resuing, 235 Shrinkage.

The sensitivity of the Ying Mineral Reserves to variation in COG has been tested by applying a 20% increase in COG to Mineral Reserves at each of the Ying mines. The lowest sensitivity (reduction of 7.3% in AgEq ounces) is seen at SGX, the largest of the mines and the largest economic contributor. For the entire Ying Mining District, an approximate 11.3% reduction in AgEq ounces for a 20% COG increase demonstrates relatively low overall COG sensitivity.

The Mineral Reserve estimation assumes that current stoping practices will continue to be predominant at the Ying Mining District - namely cut and fill resuing and shrinkage stoping - but also recognizes the introduction of the use of room and pillar mining for some flatter-lying gold-rich veins and, more recently, some limited longhole mining. A significant initiative towards the use of more mechanized mining is also recognized. The largely sub-vertical veins, generally competent ground, reasonably regular vein width, and, traditionally, hand-mining techniques using short rounds has allowed a significant degree of selectivity and control in the stoping process. Minimum mining widths of 0.5 m for resuing and 1.0 m for shrinkage are assumed. The QP has observed the mining methods at Ying and considers these widths to be reasonable.

For the total tonnage estimated as Ying Mineral Reserves, approximately 58% is associated with resuing, 36% with shrinkage, 4% with longhole, and 2% with room and pillar mining.

Mining dilution and recovery factors vary from mine to mine, dependent on vein width and mining method. Average dilution factors have been estimated as 16.9% for resuing, 19.4% for shrinkage, 20.0% for longhole, and 29.8% for room and pillar. Assumed mining recovery factors are 95% for resuing, 92% for shrinkage, 80% for longhole, and 92% for room and pillar.

Silvercorp has placed a high level of focus on dilution control in recent years, and the QP considers that, overall, the current dilution estimation is reasonable. However, the QP also notes that production grades since the beginning of 2022 have been lower than Mineral Reserve grades for the areas mined (see below). This suggests that the move towards increased production rates has resulted in increased dilution and emphasizes the requirement for a renewed focus on mining process control.

Examination of the Silvercorp reconciliation between Mineral Reserve estimates in areas mined and production as mill feed for the Ying mines from 1 January 2022 to 31 March 2024 indicates that, overall, the mines produced 12% more tonnes at a 19% lower silver grade, a 9% lower lead grade, a 47% lower zinc grade, and an 18% lower gold grade; for 9% less contained silver, 3% more contained lead, 41% less contained zinc, and 8% less contained gold relative to Mineral Reserve estimates. The QP notes that silver and lead together contribute about 91% of projected Ying revenue.

A production rate increase is planned from the FY2024 (full year) level of 827 ktpa to approximately 1 Mtpa in FY2025, 1.1 Mtpa in FY2026, and then close to 1.2 Mtpa for the next two financial years. The LOM projection remains above or close to 1.1 Mtpa from FY2029 through FY2031, with the rate then slowly declining to around 900 ktpa by FY2035, and then with a more rapid decline to around 240 ktpa in the final year of production. Each mine within the district has a specific expansion plan to achieve its contribution towards the production rate increase projected in the LOM schedule. 

amcconsultants.com332
NI 43-101 Technical Report Update on the Ying Ag-Pb-Zn Property in Henan Province, People's Republic of China
 
Silvercorp Metals Inc.0723067

The QP notes that the development and infrastructure required to allow production as projected is either already in place, is in development, or has been planned. The ultimate success of the planned significant increase in production at close to Mineral Reserve grades will, to a large degree, be dependent on:

·Diligent planning and the consistent availability of resources, particularly skilled manpower numbers and appropriately maintained equipment.
·A concentrated focus on achieving production rate goals with the adopted mining methods while exercising strict dilution control.
·An emphasis on necessary operating protocols and safety standards.

 

Ying mine Ag grades are indicated to average around 235 g/t through FY2029, 210 g/t from FY2030 through FY2034, and then 175 g/t for the final four years of projected mine life. The AgEq grade is projected to average around 400 g/t through FY2027, 360 g/t for the next four years, and 330 g/t for the final seven years. To maintain optimum metal grades while embarking on increased production, the QP recommends that Silvercorp redouble its focus on dilution and grade control via the Mining Quality Control Department.

The Ying mine complex is seen to be a very viable operation with a projected LOM through to 2038 based on only Proven and Probable Mineral Reserves. Annual mined production of silver is projected to be between 7.5 and 9.1 Moz through FY2031 (metal produced 7.1 to 8.7 Moz), 5.7 and 6.9 Moz from FY2032 through FY2035 (metal produced 5.5 to 6.6 Moz), and to average 2.4 Moz (2.3 Moz metal produced) over the final three years of currently projected mine life. Approximately 408 kt of Pb, 123 kt of zinc and 70 koz of gold are also projected to be mined over the LOM from 1 July 2024. There remains significant potential to extend the LOM beyond 2038 via further exploration and development, particularly in areas with identified Inferred Resources.

Silvercorp runs two processing plants - No.1 Mill and No.2 Mill - for the Ying operations, with a current combined total design capacity of 2,800 tpd. The two plants are situated within 2 km of each other. An extension to No.2 Mill - which will increase its processing capacity to 3,500 tpd - is currently under construction and is scheduled to be operating by Q4 2024. The combined plant capacity will be around 4,200 tpd.

No.1 Mill averaged 684 tpd in FY2024, which is 98% of the current stated operating capacity of 700 tpd; while No.2 Mill averaged 1,790 tpd, which is 99% of the current stated capacity of 1,800 tpd.

Lead and silver recovery targets are being met – 94.42% versus 90.0% for Pb, 94.93% versus 90.0% for Ag; however, zinc recovery averaged 68.14% versus the target of 85.0%, which was attributed to lower than planned zinc feed grades.

Improvements have been consistently targeted on the processing system and auxiliary facilities, both in No.1 and No.2 Mill, to improve metal recovery and reduce energy consumption.

Historically, higher-grade feed from SGX has enhanced plant performance but, with the proportion of SGX ore decreasing, the challenge is to maintain similar metallurgical performance on lower grade feedstock. From recent performance, it appears that recoveries are being maintained but concentrate grades are lower than target, however, not to the extent where there is a major deterioration in smelter terms.

The design of the No.2 Mill expansion has benefited from knowledge and experience gained in the processing of Silvercorp ore types in both plants. The improved design and the increased efficiency

amcconsultants.com333
NI 43-101 Technical Report Update on the Ying Ag-Pb-Zn Property in Henan Province, People's Republic of China
 
Silvercorp Metals Inc.0723067

of No.2 Mill’s new equipment combined with the experience of the local operators can be expected to result in improved metallurgical performance.

The existing TSFs were designed based on then current Mineral Reserve estimations and LOM production projections. Subsequent resource expansion and increased production projections indicate that the current tailings capacity will not be adequate for the full Ying LOM. A third TSF, Shimengou TSF or TSF 3, is being built in the Shimengou valley. The Shimengou TSF is located about 1.7 km to the north of No.2 Mill.

Overall, the QP notes that existing TSF facilities appear to be in good condition, are well maintained, well operated and appropriately managed.

The facilities are in an area of low seismic activity and are founded on competent bedrock. Facility designs are conventional and reasonable.

Monitoring systems and procedures are extensive and commensurate with accepted international good practice. The facilities are extensively inspected by a range of internal and external parties and are subject to considerable oversight from local regulators.

Based on the QP site visit findings, it appears that the facilities were constructed to a high standard, with adequate levels of oversight and in accordance with an appropriate QA/QC program. Detailed ‘as-built’ reports are available for each facility, including signed-off construction drawings.

Both existing facilities are designed and operated in accordance with Chinese standards, although these standards may, in certain areas, differ from current commonly accepted international standards.

 

The new TSF 3 is similar in design and operation to the existing two facilities, with some notable exceptions, including the incorporation of a complete basal liner to the impoundment area, reflecting the increased standards now required by local regulators. Design documentation is extensive, again reflecting the increased requirements, as regulators move towards an alignment with international standards. Supporting studies for the new facility thus include a Tailings Dam Breach Analysis and three-dimensional seepage modelling. Facility construction is progressing, albeit more slowly than originally planned. It is anticipated that the starter facility will be completed by the end of 2024.

The QP has made TSF recommendations on hydrological design criteria - including Inflow Design Flood events; reassessment of slope stability analysis; and, for TSF 3, that consideration should be given to the installation of an underdrainage system, installed above the HDPE basin liner in the area immediately upstream of the starter dam. Silvercorp has provided initial responses to these recommendations.

Silvercorp has all the required permits for its operations on the Ying Property. The Mineral Resource and Mineral Reserve estimates include material (approximately 25% of total Mineral Resources by AgEq metal and 28% of the total Mineral Resources by tonnes) that is currently below the elevation approved in the mining permits. However, the QPs are satisfied that there is minimal material risk of Silvercorp not receiving approval to mine these resources when access is required in the future.

The EIA report of the third TSF, which is under construction, has been completed and approved by the Luoyang Branch of the Luoyang Ecological Environment Bureau. Also, the EIA report for the technical renovation and capacity expansion project of No.2 Mill has been delivered, with expected approval from the Luoyang branch of the Luoyang Ecological Environment Bureau by the end of July 2024.

amcconsultants.com334
NI 43-101 Technical Report Update on the Ying Ag-Pb-Zn Property in Henan Province, People's Republic of China
 
Silvercorp Metals Inc.0723067

The Ying operation has an environmental protection department consisting of six full-time staff. The department is mainly responsible for the environment and rehabilitation management work in the Ying Property.

Environmental monitoring items include air and dust emissions and noise and wastewater monitoring. The monitoring work is completed by qualified persons and licensed institutes. Monitoring results to date indicate, with relatively minor exceptions, that discharges have met required standards.

Based on Chinese national regulatory requirements, Silvercorp will complete a site decommissioning plan at least one year before mine closure. Site rehabilitation and closure cost estimates will be made at that time.

Anticipated capital expenditures are $142M over the LOM for exploration and mine development; facilities, plant, and equipment; and $100M in general investment capital through to the projected end of mine life in 2038. The basis for calculating these capital costs is the LOM mining and processing plan.

As of 30 June 2024, and separately allocated from the above, remaining capital expenditures for construction and commissioning of the No.2 Mill extension and the first phase of the third TSF are, respectively, US$5.2M and US$10.3M. Inclusive of capital already spent, the final total estimates for these projects are, respectively, US$7.1M and US$23.6M.

Major operating cost categories are mining, shipping, milling, G&A, product selling, Mineral Resources tax, and government fees and other taxes. The estimated total LOM operating cost is $1,349M, at a unit cost averaging $106/t per tonne of ore mined.

Overall, the QP considers both capital and operating cost estimates to be reasonable relative to the methods and technology planned to be used and the scale of operations envisaged over the LOM. Recent inflationary pressures on costs have also been noted and, while the projected annual production rate increases and the introduction of more mechanized mining can facilitate the achievement of costs around projected levels, a constant focus on operational efficiency and cost effectiveness will be essential.

Although Silvercorp is a producing issuer and, therefore, does not require an economic analysis of the Ying Property for the purposes of this report, the QPs have considered it reasonable to include a high-level analysis to illustrate the potential economic impact relative to the latest Mineral Reserve estimations and the associated production schedules.

The following metal prices, costs (Ying averages over projected LOM) and exchange rate were used for the economic analysis:

·Gold price US$1,900/oz
·Silver price US$22/oz
·Lead price US$1.00/lb
·Zinc price US$1.15/lb
·Mining cost US$72.95/t
·Milling cost US$10.94/t
·Shipping US$3.43/t
·Mineral Resources tax US$5.00/t
·G&A US$10.64/t
amcconsultants.com335
NI 43-101 Technical Report Update on the Ying Ag-Pb-Zn Property in Henan Province, People's Republic of China
 
Silvercorp Metals Inc.0723067
·Government fees and other taxes US$2.80/t
·Sustaining and growth capital US$20.32/t
·Exchange rate US$1 = 7.00RMB

The QP notes that the gold, silver, and zinc metal prices used for the economic analysis are slightly higher than those used in the Ying COG calculations. The QP also notes that current spot metal prices at the time of writing of the Technical Report are: gold - $2,430/oz; silver - $30.89/oz; lead - $0.97/lb; zinc - $1.34/lb – with all but the lead price significantly higher than the prices used for the economic analysis.

Using the LOM production profile based on the 30 June 2024 Mineral Reserves, and the metal price and other assumptions shown above, pre-tax and post-tax cashflow projections have been generated. At a 5% discount rate, pre-tax and post-tax NPVs of $896M and $699M, respectively, are projected. Over the LOM, 61.5% of the net revenue is projected to come from silver, 29.9% from lead, 5.0% from zinc, and 3.6% from gold.

Pre-tax NPV sensitivity was also examined over a +/- 30% change in Ag, Pb and Zn metal prices, and in operating and capital costs. Most sensitivity is seen in silver price (the sensitivity would effectively be the same with variation in Ag grade) and, to a lesser extent, in operating cost. The NPV is moderately sensitive to lead price and only slightly sensitive to zinc price and capital cost. 

amcconsultants.com336
NI 43-101 Technical Report Update on the Ying Ag-Pb-Zn Property in Henan Province, People's Republic of China
 
Silvercorp Metals Inc.0723067
26Recommendations

Other than for costs estimated below for exploration tunnelling and drilling – total US$26.68M and which is part of planned LOM capital expenditures – the QPs consider that implementation of the following recommendations will form part of the day-to-day operating cost of the Ying mines.

26.1Safety in general

Maintain indicated focus and measures employed related to mine and site safety, including implementation of a policy whereby the more stringent of either Chinese or Canadian safety standards is employed. The QP notes that Silvercorp has gone beyond Chinese statutory requirements in certain areas of safety and the Company has indicated a continuing focus on production procedure safety improvement.

26.2Exploration

Continue exploration tunnelling and diamond drilling at the Ying Property. The exploration tunnelling is used to upgrade the drill-defined Resources to the Measured category, and the diamond drilling is used to expand and upgrade the previous drill-defined Resources, explore for new mineralized zones within the unexplored portions of vein structures, and test for the down-dip and along strike extensions of the vein structures. The proposed exploration work is as follows.

26.2.1SGX

Tunnelling:

·16,000 m exploration tunnelling on vein structures S1W, S1W2, S1W3, S1W5, S2, S2W, S2W1, S2W3, S4, S4E, S7, S7_1, S7_2, S7_3, S7W, S7W1, S7W3, S7W7, S8, S8E1, S8W, S14, S14_1, S14_2, S14E2, S16E1, S16W, S16W1, S18, S18_1, S18E2, S19, S19E, S19W, S21, S21E, S28, S31, S32, and S39 between levels 10 m and 710 m.

 

Drilling:

·40,000 m underground diamond drilling on vein structures S1, S1W, S1W2, S1W3, S1W5, S2, S2W, S2W1, S2W3, S4, S4E, S7, S7_1, S7_2, S7_3, S7W, S7W1, S7W3, S7W7, S8, S8E1, S8W, S14, S14_1, S14_2, S14E2, S16E1, S16W, S16W1, S18, S18_1, S18E, S18E2, S19, S19E, S19W, S21, S21E, S28, S31, S32, S35, and S39.
26.2.2HZG

Tunnelling:

·4,200 m exploration tunnelling on vein structures HZ11, HZ12, HZ15, HZ15W2, HZ20 series, HZ20E, HZ22, HZ22E, HZ22E2, HZ23, HZ25, HZ26, and HZ27 between levels 350 m and 890 m.

Drilling:

·5,000 m underground exploration drilling on vein structures HZ10, HZ11, HZ12, HZ15, HZ15W2, HZ20 series, HZ20E, HZ22, HZ22E, HZ22E2, HZ23, HZ25, HZ26, HZ27, and HZ27W.
26.2.3HPG

Tunnelling:

·4,500 m exploration tunnelling on major vein structures H3, H11, H11E, H12, H12_1, H13, H15, H15W, H16_1, H17E1, H17E2, H20W, H20W1, H31, H32, H51, X1 and X3 between levels 100 m and 7,100 m.
amcconsultants.com337
NI 43-101 Technical Report Update on the Ying Ag-Pb-Zn Property in Henan Province, People's Republic of China
 
Silvercorp Metals Inc.0723067

Drilling:

·25,000 m underground diamond drilling on vein structures H3, H4W1, H11, H11E, H12, H12_1, H13, H15, H15W, H16_1, H17E1, H17E2, H17W3, H20W, H20W1, H31, H32, H41, H42, H51, X1 and X3.
26.2.4LME

Tunnelling:

·15,000 m on vein structures LM2_1, LM2E, LM3 series, LM4, LM4E, LM4E2, LM5 series, LM6 series, LLM18, LM18W1, LM71, LM72, and LM73 between levels 400 m and 1,150 m.

Drilling:

·30,000 m underground diamond drilling on vein LM2_1, LM2E, LM3 series, LM4, LM4E, LM4E2, LM4W2, LM5 series, LM6 series, LLM18, LM18W1, LM18W3, LM60, LM61, LM71, LM72, LM73 and LM74.

26.2.5LMW

Tunnelling:

·6,200 m on vein structures LM7, LM7E, LM8, LM8_3, LM12, LM12_1, LM12_2, LM12_3, LM14, LM14_3, LM17, LM17W, LM17W1, LM19, LM21, LM24, LM26, LM28, LM32, LM41_1, LM41E, LM50, LM52, LM53, LM54, W1, W2, W2W1, W5, W6, W6E1, and W6W as well as their parallel subzones between levels 500 m and 1,100 m.

Drilling:

·25,000 m underground drilling LM7, LM7E, LM8, LM8_3, LM8_4, LM12, LM12_1, LM12_2, LM12_3, LM14, LM14_3, LM17, LM17W, LM17W1, LM17W2, LM19, LM19W1, LM21, LM24, Lm26, LM28, LM32, LM41_1, LM41E, LM50, LM52, LM53, LM54, LM56, W1, W2, W2W1, W5, W6, W6E1, W6W, W18, W18E, W18W, and W18W1and their parallel vein structures.

26.2.6TLP

Tunnelling:

·17,000 m exploration tunnelling on vein structures T1 series, T2 series, T3 series, T4, T5, T11, T11E, T12, T14, T14E1, T14_1, T15 series, T16 series, T17, T17E, T17W, T21, T21E, T22 series, T23, T23W, T26, T26E, T27, T28, T30, T31, T31W, T31W1, T33 series, T35E, T35E1, T39, T39E, and T39W between levels 450 m and 1,120 m.

Drilling:

·65,000 m underground drilling on vein structures T1 series, T2 series, T3 series, T4, T5, T11, T11E, T12, T14, T14E1, T14_1, T15 series, T16 series, T17, T17E, T17W, T21, T21E, T22 series, T23, T23W, T26, T26E, T27, T28, T30, T31, T31W, T31W1, T33 series, T35, T35E, T35E1, T39, and T39W.

26.2.7DCG

Tunnelling:

·800 m exploration tunnelling on vein structures C7_1, C7_2, C8, C8E1, C9, and C9_1E between levels 750 m and 850 m.
amcconsultants.com338
NI 43-101 Technical Report Update on the Ying Ag-Pb-Zn Property in Henan Province, People's Republic of China
 
Silvercorp Metals Inc.0723067

Drilling:

 

·2,000 m underground drilling on vein structures C7_1, C7_2, C7_4, C8, C8E1, C9, C9_1E and C9W2.

 

The estimated cost for the above exploration work is:

·Tunnelling: RMB 152,500,000 (US$21.79M)
·Drilling: RMB 34,200,000 (US$4.89M)

 

26.3Drilling

The QP recommends the following:

·The procedures used in 2020 density measurement for SGX should be independently reviewed and modified, if necessary.
·All density samples should be geologically described, with particular attention to the degree of oxidation and the presence or absence of vughs or porosity.
·The minimum size of the density samples should be 1 kg. The part of the sample that is selected for assaying should be as representative of the mineralization in the part used for density measurement as possible. Assaying of the density sample itself is preferable but only if the wax does not lead to problems with assay sample preparation.
·The regression models are likely to be improved for some samples by inclusion of assays for copper and iron. In samples with a significant content of chalcopyrite, freibergite, pyrite, or hematite, these minerals may make a significant contribution to the overall density of the samples.
·Record if density samples are oxidized or not.
·HZG and DCG are underrepresented in the current density data. Further sampling of these deposits is required.

26.4Sample preparation, analyses, and security

 

26.4.1Laboratories
·Laboratories should be chosen based on similar protocols, or protocols should be standardized between laboratories where possible.

 

26.4.2CRMs
·Revise protocols so that CRMs are inserted using a systematic approach at a rate of one CRM in every 20 samples (5%) for both drilling and underground samples. Consider implementation of practices such as assigning CRM samples in the sample tag books prior to actual sampling, so that CRM samples occur regularly and within each batch of samples.
·Ensure that CRM results are monitored in a ‘real-time’ basis and ensure that sample batches where CRMs return results outside of two standard deviations, or one CRM outside of three standard deviations are investigated and reanalyzed.
·Maintain a ‘table of fails’ which documents the remedial action completed on any failed batch.
·Implement a system whereby the original assays of failed batches are retained in the sample database and available for audit.
·Consider implementing the review of CRM (and QA/QC) samples for all mines collectively, in addition to the present practice of reviewing QA/QC samples separately at each mine. Given that CRMs and laboratories are common to all mines this will provide additional data to monitor laboratory performance and trends.
amcconsultants.com339
NI 43-101 Technical Report Update on the Ying Ag-Pb-Zn Property in Henan Province, People's Republic of China
 
Silvercorp Metals Inc.0723067
·Issues of data bias (both positive and negative) as well as analytical drift should be further investigated including the standardization of sample preparation and analysis methods between all labs.
·Ensure that all laboratories are running their own internal CRMs to monitor performance. If possible, internal laboratory QA/QC data should be acquired in real time and incorporated into the Silvercorp database. This provides additional data to monitor analytical drift and bias.
·Attempt to standardize the crush methodology, crush sub-sampling method, and sample size, lower and upper detection limits and overlimit techniques that are utilized by the various laboratories.
·Investigate the availability of CRMs certified by two-acid versus four-acid digestion.
·Consider developing several custom Ying specific CRMs. Several CRM suppliers can create CRM from surplus coarse reject material and provide relevant certification and documentation. This may help to reduce the number of CRMs required and would also provide CRMs with matrix matched to the Ying deposits.
·Consider adding a CRM that monitors low grade zinc (<0.2%).

 

26.4.3Blanks
·Send a batch of coarse blank samples to several laboratories to enable statistics on grade distribution of Ag, Pb, and Zn of the blank source material to be determined. This should be completed for each quarry site to ensure the source has sufficiently low Ag, Pb, Zn, and Au concentrations. If blank materials from different quarry sites are used, each blank material should be given an identification so that the source can be traced.
·Revise protocols so that blanks are inserted using a systematic approach at a rate of at least one blank in every 25 samples (4%) for both drilling and underground samples.
·Insert blanks immediately after expected high-grade mineralization.
·Implement the use of both coarse and fine (pulp) blank material to enable sample preparation and analytical processes to be monitored for contamination.
·Ensure that all laboratories are running their own internal blanks to monitor contamination. If possible, internal laboratory QA/QC data should be acquired in real time and incorporated into the Silvercorp database.
·Investigate if detection limits and analytical methods can be standardized between labs to ensure blank material is performing consistently.
·Implement the monitoring of blank results in real-time and ensure that sample batches with blanks exceeding failure limits are investigated and reanalyzed.
·Maintain a ‘table of fails’ which documents the remedial action completed on any failed batch.
·Implement a system whereby the original assays of failed batches are retained in the sample database and available for audit.
·Submit pulp duplicate samples for analysis to enable practical detection limits to be determined for each laboratory.

 

26.4.4Duplicates
·Duplicates insertion rates should be increased to 5 - 6% of total samples submitted and should comprise field duplicates, coarse crush duplicates and pulp duplicates. The collection of duplicates at different stages of the sampling process will enable the source of sampling variance to be understood.
amcconsultants.com340
NI 43-101 Technical Report Update on the Ying Ag-Pb-Zn Property in Henan Province, People's Republic of China
 
Silvercorp Metals Inc.0723067
·Investigate the cause of poor field duplicate performance in both core and underground samples. This could include a test phase that incorporates the following:

  Submitting the second half of the core, instead of quarter core as the field duplicates (if required, a thin slice of core could be sliced off and retained for archival storage before cutting the core into halves).

  Consider increasing the size of underground samples.

 

26.4.5Umpire samples
·Select a single third-party laboratory to act as the umpire laboratory.
·Submit a random selection of pulp samples to the umpire laboratory on a regular basis, with CRMs, blanks, and duplicates. This is to assess the performance of the batch at the umpire laboratory.
·Increase umpire sampling submissions to 4 - 5% of all samples collected.

 

26.4.6General recommendations
·Laboratory protocols for sample preparation and analysis should be standardized where possible.
·Insertion rates for all QA/QC sample types should be increased to conform with generally accepted industry standards. QA/QC samples should be included with every batch of samples submitted to the laboratory.
·Insert QA/QC samples randomly within sample batches as opposed to the present practice of consistently inserting consecutive CRMs, blanks, and duplicates. This will make it more difficult for the laboratory to pre-determine the QA/QC types.
·Investigate whether internal laboratory QA/QC data is available, and whether these can be reviewed in addition to Silvercorp data.
·Populate and utilize the planned implementation of a commercial drillhole database with QA/QC capability.
·Ensure that QA/QC sample results are monitored in a real-time basis and remedial actions taken as soon as possible.
·Maintain and report a ‘table of fails’ which documents the remedial action completed on any failed batch.

·Implement a system whereby the original assays of failed batches are retained in the sample database and available for audit.
·Consider implementing the review of QA/QC samples for all mines collectively, in addition to the present practice of reviewing QA/QC samples separately at each mine. Given that laboratories are common to all mines this will provide additional data to monitor laboratory performance and trends.
·Standardize the coding of batch IDs for all samples (including QA/QC samples) to allow for the review of data on a batch basis.

 

26.5Data verification
·Consider centralizing and standardizing all mine databases to reduce duplicate data and minimize version control issues. Rules or lookup tables should be set to ensure data is valid prior to upload.
·Establish standard dataset boundaries for each mine, including overlaps as required.
·Ensure assay data is recorded without rounding to accurately reflect the original assay certificates.
amcconsultants.com341
NI 43-101 Technical Report Update on the Ying Ag-Pb-Zn Property in Henan Province, People's Republic of China
 
Silvercorp Metals Inc.0723067
·Establish a protocol for the consistent treatment of samples with analytical results below the LLD.
·Undertake further random assay checks of the channel sample database and make corrections as appropriate.
·Establish a protocol to ensure unsampled intervals are consistently recorded in the database.
·Ensure that when a sample ID is on two certificates there is a documented rationale and flag for what assays are used for the Mineral Resources.
·Ensure that date fields are populated in a consistent format within the assay database. All dates should be checked for validity and corrected as required. Missing dates should be corrected using historical records or by cross-referencing drill dates, samples dates, and assay dates.
·Duplicated drillhole and channel Hole IDs should be addressed to allow the Ying database to be audited as a whole. Develop procedures to ensure Hole IDs and Sample IDs are unique for each deposit.
·Store QA/QC data within the database and ensure that Certificate (batch) IDs are consistent between sample and QA/QC data.

 

26.6Mineral Resource
26.6.1Estimation Process
·Continue to standardize modelling and estimation protocols at all mines to facilitate efficient model auditing.
·Establish clear responsibilities for key personnel during the Mineral Resource estimation process. This should include a rigorous internal peer review of all inputs including input databases, 3D vein / domain models, as-built and sterilization triangulations, classification wireframes etc. This internal review process could include something as structured as a formal internal data sign-off at each key stage of the modelling process.
·Ensure that vein models are appropriate for use as estimation domains in the context of established parameters (e.g. hard boundary search neighbourhood). Disparate veins in similar stratigraphic positions, considered within the mining context as the same vein, may need to be separated into separate domains (different vein domain names). Conversely, spatially related veins with minor fault offsets may be grouped into single domains (same vein domain name). This will enable blocks to be informed by appropriate data and eliminate boundary artefacts in the resulting block model.

 

26.6.2Resource Database
·Finalize the migration of all Mineral Resource datasets to the central Micromine Geobank database and implement data validation checks as discussed in Sections 11 and 12.
·Create fields within the database to identify any drillhole or channel samples that should be excluded from the Mineral Resource. Documentation of why any data are excluded should be maintained and provided to any external QPs completing work on the project.
·Consider standardizing the translation of Chinese vein names to English vein names to ensure consistency between successive (i.e. yearly) Mineral Resource updates. This will allow more detailed comparisons of individual block models on a vein-by-vein basis. This could also be accomplished through a tracking document which records successive names for the same vein.

 

26.6.3Density for resources
·Collect significant additional samples for bulk density determination at all deposits from both vein (across all grade ranges) and wallrock materials.
amcconsultants.com342
NI 43-101 Technical Report Update on the Ying Ag-Pb-Zn Property in Henan Province, People's Republic of China
 
Silvercorp Metals Inc.0723067
·Density sampling programs should incorporate QA/QC including appropriately manufactured or sourced standards.
·Store bulk density data within the central database

 

26.6.4Vein modelling
·Develop standardized procedures for vein modelling across all deposits for the purpose of Mineral Resource estimation. This should encompass standards that cover how far to extrapolate veins from known mineralization, criteria for combining (or splitting) veins into a single estimation domain and minimum vein width criteria.
·Increase the number of vertices during wireframe construction to increase the resolution of triangulations, and to prevent deleterious triangle artefacts in veins with highly variable or sparse data density. Investigate possible advanced vein modelling tools such as implicit modelling to create more appropriate and robust vein wireframes.
·Where appropriate, clip intersecting veins using wireframe Boolean tools.
·Adjust wireframing processes to reduce wireframes pinching out to thicknesses of less than 0.4 m between data.

·Ensure all vein models are peer-reviewed prior to Mineral Resource estimation.

 

26.6.5Block modelling
·Maintain a consistent model definition process (i.e. X and Y in the plane of mineralization and Z across vein thickness).
·Round model prototype origins to the nearest 100 m to simplify software compatibility.
·Investigate whether subcell size can be decreased to at least 0.1 m across the thickness of the vein and to 1 m along strike and down dip for all models to improve accuracy of depletion coding.
·Incorporate an assessment of the quality of the geological model, grade continuity, and quality of estimates in addition to the established geometric criteria used for Mineral Resource classification. Use classification to manage:
¾Volumetric / geometric inconsistencies.
¾Grade blow outs.
¾High variance domains with consequential low confidence estimates.
¾Spatial offsets.
·During resource classification coding, ensure that ‘cookie cutter’ coding wireframes are orthogonal to the strike / dip of vein models.

·As-builts should be used in addition to any ‘cookie cutter’ wireframe built in the longitudinal plane to ensure that raises and crosscut drives are appropriately coded and depleted.

·Consider implementing quarterly reviews to identify non-recoverable portions of the Mineral Resource.

 

26.7Mineral processing
·Undertake periodic mill audits aimed at ensuring optimum process control and mill performance.
·Continue with targeting of improvements on processing systems and auxiliary facilities to enhance metal recovery and reduce energy consumption.
·Ensure that tight control is exercised over final construction and commissioning of the Mill Plant 2 expansion, and for the changeover period as Mill Plant 1 is phased out.
amcconsultants.com343
NI 43-101 Technical Report Update on the Ying Ag-Pb-Zn Property in Henan Province, People's Republic of China
 
Silvercorp Metals Inc.0723067
26.8Tailings storage facilities

QP note: Initial responses from Silvercorp to the following recommendations are included in Section 18.1 of the Technical Report.

·Consideration should be given to the adoption of more stringent hydrological design criteria for all three facilities, adopting a more extreme Inflow Design Flood than the presently adopted 1:500-year or 1:1,000-yr events.
·A reassessment of the slope stability analysis for the existing facilities should be undertaken, using up to date methods of analyses and considering all appropriate loading conditions. Initially, this should entail a rigorous review of all data obtained from field and laboratory testing with a particular focus on the identification of contractive materials based on the results of cone penetrometer test (CPTu) data. Undrained limit equilibrium analyses should be conducted. Depending on the results of this review and the undrained analyses, more complex methods of analyses may be required using advanced numerical models, i.e., non-linear deformation analyses (NDA).
·For TSF 3, consideration should be given to the installation of an underdrainage system, installed above the HDPE basin liner in the area immediately upstream of the starter dam. The aim of this system would be to facilitate the drainage of the tailings mass on which subsequent upstream raises would be constructed.

 

26.9Surface roads and transportation
·Assess all roads in steep slope areas and take appropriate action to offset risk in any sections that lack road safety barriers and / or where there may be potential for slope failures.
·For road transportation in general at the Ying property, continue to ensure that appropriate safety protocols are in place and adhered to.

 

26.10Mining
·For internal planning and forecasting and for external reporting, continue with efforts to fully integrate the Resource estimation, Reserve estimation, and mine planning processes.
·Continue the focus on dilution and grade control and implementation of best mining practices via the Mining Quality Control Department. This will be fundamental to achieving Mineral Reserve grades over the Ying LOM while also producing ore at significantly increased rates.
·Maintain a major and continual focus on mine planning and control in general – particularly of dilution aspects as noted above, but also with respect to personnel numbers and capabilities, and on mechanized equipment maintenance.
·Ensure that geotechnical understanding and planning is at the forefront of implementing and maintaining safe ground control in all the Ying mines.
·Continue with the plan to introduce more advanced technology at the Ying operations, while developing and implementing all necessary operating and safety measures related to the use of more mechanized equipment and new mining methods. This introduction brings additional safety considerations, with specific training and enforced protocols and operating practices being required. Equipment operating around open brows, remote mucking practices and operator protection, and provision of safety bays and adequate equipment clearances relative to drift widths are specific examples of aspects to be addressed. The QP acknowledges the Silvercorp indication of training implementation and that all current tasks in the Ying operation have been assessed and standardized for safe production.
·Maintain a high degree of development scheduling and control throughout the Ying operation. In this regard, achievement of development projections, particularly in the next few years, will be a key contributor to the planned production increases.
amcconsultants.com344
NI 43-101 Technical Report Update on the Ying Ag-Pb-Zn Property in Henan Province, People's Republic of China
 
Silvercorp Metals Inc.0723067
·For the newly planned longhole mining at LMW, a comprehensive program to monitor drilling and blasting performance against design, inclusive of regular cavity monitoring surveys, is recommended to be applied. With a view to optimizing longhole performance in general - and particularly regarding safety, production rate and dilution - engagement of specialist guidance is recommended. This would include advice on stope access and design, equipment, operating protocols, drill and blast design, geotechnical assessment and ground support – particularly around brows and hangingwalls, and backfilling.
·For room and pillar mining, ensure design and operating practices include geotechnical and support assessment, and result in adequate pillar stability and stable backs, both locally and in the wider room and pillar areas.
·For the predominant resuing and shrinkage mining methods, maintain a high degree of process control on design, drilling, and blasting. This will be critical to achieving dilution targets.
·Again, with respect to longhole mining, consider a more widespread application of the methodology in appropriate areas, with a view to further increasing stope production rates. In undertaking such, it must be recognized that design and blasting practices aimed at dilution control will require yet more focus.
·Engage specialist guidance on paste backfill, including for recipes, binder type and usage, appropriate strength requirements and achievement over time, testing protocols, delivery system, and placement.
·With what is anticipated to be an increasing use of diesel equipment, ensure that regulatory and best practice ventilation standards are maintained, including with respect to noxious gases and diesel particulate matter (DPM) concentrations.
·Particularly for room and pillar and longhole mining, monitor and assess ore recovery factors against current projections.
·Maintain the focus on stockpiling and record keeping procedures, and on assessing all aspects of reconciliation performance between mine and mill.
·Where viable and safe, continue to consider placement of waste material into stope voids for all appropriate mining methods.
·Maintain a constant focus on operational efficiency and cost effectiveness. Recognizing cost inflation pressures, such a focus will be essential, despite projected annual production rate increases and the introduction of more mechanized mining offering the achievement of costs around projected LOM levels.
·For the longer term, consider the use of electric mining vehicles at the Ying operations.
amcconsultants.com345
NI 43-101 Technical Report Update on the Ying Ag-Pb-Zn Property in Henan Province, People's Republic of China
 
Silvercorp Metals Inc.0723067
27References

AMC Mining Consultants (Canada) Ltd. 2012, Technical Report for Ying Gold-Silver-Lead-Zinc Property, Henan Province, China. Prepared for Silvercorp Metals Inc. Effective date 1 May 2012, filed 15 June 2012.

AMC Mining Consultants (Canada) Ltd. 2013, Technical Report for Ying Gold-Silver-Lead-Zinc Property, Henan Province, China. Prepared for Silvercorp Metals Inc. Effective date 1 May 2012 (Revised 30 April 2013), filed 6 May 2013.

AMC Mining Consultants (Canada) Ltd. 2014, Ying NI 43-101 Technical Report. Prepared for Silvercorp Metals Inc. Effective date 31 December 2013, filed 5 September 2014.

AMC Mining Consultants (Canada) Ltd. 2017, Ying NI 43-101 Technical Report. Prepared for Silvercorp Metals Inc. Effective date 31 December 2016, filed 24 February 2017.

AMC Mining Consultants (Canada) Ltd. 2020, NI 43-101 Technical Report Update on the Ying Ag-Pb- Zn Property in Henan Province, People’s Republic of China. Prepared for Silvercorp Metals Inc. Effective date 31 July 2020, filed 14 October 2020.

AMC Mining Consultants (Canada) Ltd. 2022, NI 43-101 Technical Report Update on the Ying Ag-Pb- Zn Property in Henan Province, People’s Republic of China. Prepared for Silvercorp Metals Inc. Effective date 20 September 2022, filed 4 November 2022.

Broili, C. and Klohn, M. 2007, Technical Update on the Ying Silver-Lead-Zinc and the HPG Gold-Silver-Lead Projects, Henan Province, China, 16 August 2007; Report prepared for Silvercorp Metals Inc., by BK Exploration Assoc., Washington USA.

Broili, C., Klohn, M., and Moran, R. 2008, NI 43-101 Technical Report and Pre-Feasibility Study November 2008 for Silvercorp Metals Inc. TP-LM Silver-Lead Project, Henan Province, Peoples Republic of China. Prepared for Silvercorp Metals Inc. by BK Exploration Assoc., Washington USA, 20 November 2008.

Broili, C., Klohn, M., and Ni, W. 2010, Ying District Silver-Lead-Zinc Project. Prepared for Silvercorp Metals Inc., 26 February 2010.

Broili, C., Klohn, M., Yee, J.W., Petrina, M., and Fong, C. 2006, Technical Update for Silvercorp Metals Inc. on the Ying Silver-Lead-Zinc Project Henan Province Peoples Republic of China, 26 May 2006.

Broili, C., Yee, J.W., and Fong, C. 2006, Technical Update for Silvercorp Metals Inc. on the Ying Silver-Lead-Zinc Project Henan Province Peoples Republic of China, 18 April 2006.

Klohn, M., Ni, W., and Broili, C. 2011, Technical Report Resources and Reserves Update HPG Mine Ying Silver-Lead-Zinc District. Report prepared for Silvercorp Metals Inc., 20 May 2011.

Klohn, M., Ni, W., and Broili, C. 2011, Technical Report Resources and Reserves Update SGX Mine Ying Silver-Lead-Zinc District. Report prepared for Silvercorp Metals Inc., 20 May 2011.

Klohn, M., Ni, W., and Broili, C. 2011, Technical Report Resources and Reserves Update TLP & LM Mine Ying Silver-Lead-Zinc District. Report prepared for Silvercorp Metals Inc., 20 May 2011.

amcconsultants.com346
NI 43-101 Technical Report Update on the Ying Ag-Pb-Zn Property in Henan Province, People's Republic of China
 
Silvercorp Metals Inc.0723067

Long, S.D., Parker, H.M. and Françis-Bongarçon, D. 1997, “Assay quality assurance quality control programme for drilling projects at the prefeasibility to feasibility report level”. Prepared by Mineral Resources Development Inc. (MRDI) August 1997.

Méndez, A.S. 2011, ‘A Discussion on Current Quality-Control Practices in Mineral Exploration, Applications and Experiences of Quality Control, Ognyan Ivanov’, IntechOpen, DOI: 10.5772/ 14492. https://www.intechopen.com/books/applications-and-experiences-ofquality control/a-discu ssion-on-current-quality-control-practices-in-mineral-exploration.

Rossi, M.E. and Deutsch, C.V. 2014, ‘Mineral Resource Estimation’, Springer: London, pp. 77-82.

 

Xu, A., Schrimpf, T., and Liu, Z. 2006, Technical Review on HPG Silver-Lead Project, Luoning County, Henan Province, People’s Republic of China. Report prepared for Silvercorp Metals Inc. by SRK Consulting, Beijing, China.

Technical Committee L 2023, Tailings Dam and Waste Lagoons Tailings Dam Safety, ICOLD Bulletin No. 194.

Australian National Committee on Large Dams July 2019, Addendum, Guidelines on Tailings Dams: Planning, Design, Construction, Operation and Closure.

amcconsultants.com347
NI 43-101 Technical Report Update on the Ying Ag-Pb-Zn Property in Henan Province, People's Republic of China
 
Silvercorp Metals Inc.0723067
28QP Certificates

CERTIFICATE OF AUTHOR 

I, Herbert A. Smith, P.Eng., of Vancouver, British Columbia, do hereby certify that:

1I am currently employed as a Senior Principal Mining Engineer with AMC Mining Consultants (Canada) Ltd. (EGBC Permit #100235), with an office at Suite 202, 200 Granville Street, Vancouver, British Columbia V6C 1S4, Canada.

2This certificate applies to the technical report titled “NI 43-101 Technical Report Update on the Ying Ag-Pb-Zn Property in Henan Province, People’s Republic of China” with an effective date of 16 July 2024, (the “Technical Report”) prepared for Silvercorp Metals Inc. (“the Issuer”).

3I graduated with a degree of B.Sc. in Mining Engineering in 1972 and a degree of M.Sc. in Rock Mechanics and Excavation Engineering in 1983, both from the University of Newcastle upon Tyne, England. I am a registered member in good standing of the Engineers and Geoscientists of British Columbia (License #32378), Professional Engineers of Ontario (License #100017396), Association of Professional Engineers and Geoscientists of Alberta (License #31494), and the Northwest Territories and Nunavut Association of Professional Engineers and Geoscientists (License #L4413).

I have worked as a Mining Engineer for a total of 46 years since my graduation and have relevant experience in underground mining, feasibility studies, and technical report preparation for mining projects.

I have read the definition of "qualified person" set out in National Instrument 43-101 (NI 43-101) and certify that by reason of my education, affiliation with a professional association (as defined in NI 43-101) and past relevant work experience, I fulfill the requirements to be a "qualified person" for the purposes of NI 43-101.

4I visited the Ying Property from 16 - 19 February 2012 for four days, 3 – 6 September 2013 for four days, 13 - 16 July 2016 for three days, and 26 - 29 February 2024 for four days.

5I am responsible for Sections 2 - 6, 15, 16, 20, 21, 22, 24 and parts of 1, 12, 18, 19, 25, 26, and 27 of the Technical Report.
6I am independent of the Issuer and related companies applying all of the tests in Section 1.5 of NI 43-101.

7I have had prior involvement with the property that is the subject of the Technical Report in that I was a qualified person for previous AMC Technical Reports on the Ying property in 2012 (filed 15 June 2012, effective date 1 May 2012), 2013 (minor update to 2012 report, filed 6 May 2013, effective date 1 May 2012), 2014 (filed 5 September 2014, effective date 31 December 2013), 2017 (filed 24 February 2017, effective date 31 December 2016), 2020 (filed 14 October 2020, effective date 31 July 2020), and 2022 (filed 4 November 2022, effective date 20 September 2022).

8I have read NI 43-101, and the Technical Report has been prepared in compliance with NI 43-101 and Form 43-101F1.

9As of the effective date of the Technical Report and the date of this certificate, to the best of my knowledge, information and belief, this Technical Report contains all scientific and technical information that is required to be disclosed to make the Technical Report not misleading.

Effective Date: 16 July 2024

Signing Date: 19 August 2024

 

Original signed by

 

   

Herbert A. Smith, P.Eng. 

Senior Principal Mining Engineer

AMC Mining Consultants (Canada) Ltd.

amcconsultants.com348
NI 43-101 Technical Report Update on the Ying Ag-Pb-Zn Property in Henan Province, People's Republic of China
 
Silvercorp Metals Inc.0723067

CERTIFICATE OF AUTHOR

 

I, Simeon Robinson, P.Geo., MAIG, of Nanaimo, British Columbia, do hereby certify that:

1I am currently employed as a Principal Geologist with AMC Mining Consultants (Canada) Ltd. (EGBC Permit #100235), with an office at Suite 202, 200 Granville Street, Vancouver, British Columbia V6C 1S4, Canada.

2This certificate applies to the technical report titled “NI 43-101 Technical Report Update on the Ying Ag-Pb-Zn Property in Henan Province, People’s Republic of China” with an effective date of 16 July 2024, (the “Technical Report”) prepared for Silvercorp Metals Inc. (“the Issuer”).

3I am a graduate of Curtin University of Technology, Kalgoorlie, Western Australia (Bachelor of Science – Mineral Exploration and Mining Geology, 2001). I have completed the Citation Program in Applied Geostatistics (University of Alberta, 2019). I am a registered member in good standing of the Engineers and Geoscientists of British Columbia (Licence #43058) and Association of Professional Geoscientists of Ontario (Registration #3904). I am a registered member of the Australian Institute of Geoscientists (#5609). I have practiced my profession for a total of 22 years since my graduation and have relevant experience in precious and base metal deposits.

I have read the definition of "qualified person" set out in National Instrument 43-101 (NI 43-101) and certify that by reason of my education, affiliation with a professional association (as defined in NI 43-101) and past relevant work experience, I fulfill the requirements to be a "qualified person" for the purposes of NI 43-101.

4I visited the Ying Property from 26-29 February 2024 for four days.

5I am responsible for Section parts of 1, 12, 14, 25, 26, and 27 of the Technical Report.

6I am independent of the Issuer and related companies applying all of the tests in Section 1.5 of NI 43-101.

7I have had prior involvement with the property that is the subject of the Technical Report in that I was a qualified person for the previous AMC Technical Report on the Ying property in 2020 (filed 14 October 2022, effective date 31 July 2022) and 2022 (filed 4 November 2022, effective date 20 September 2022).

8I have read NI 43-101, and the Technical Report has been prepared in compliance with NI 43-101 and Form 43-101F1.

9As of the effective date of the Technical Report and the date of this certificate, to the best of my knowledge, information and belief, this Technical Report contains all scientific and technical information that is required to be disclosed to make the Technical Report not misleading.

 

Effective Date: 16 July 2024

Signing Date: 19 August 2024

 

Original signed by

 

   

Simeon Robinson, P.Geo., MAIG

Principal Geologist

AMC Mining Consultants (Canada) Ltd.

amcconsultants.com349
NI 43-101 Technical Report Update on the Ying Ag-Pb-Zn Property in Henan Province, People's Republic of China
 
Silvercorp Metals Inc.0723067

CERTIFICATE OF AUTHOR

I, Genoa K. Vartell, P.Geo., of Surrey, British Columbia, do hereby certify that:

1I am currently employed as a Geology Manager / Principal Geologist with AMC Mining Consultants (Canada) Ltd. (EGBC Permit #100235), with an office at Suite 202, 200 Granville Street, Vancouver, British Columbia V6C 1S4, Canada.
2This certificate applies to the technical report titled “NI 43-101 Technical Report Update on the Ying Ag-Pb-Zn Property in Henan Province, People’s Republic of China” with an effective date of 17 July 2024, (the “Technical Report”) prepared for Silvercorp Metals Inc. (“the Issuer”).
3I am a graduate of the University of Alberta in Edmonton, Canada (Bachelor of Science (Hons) in Geology in 1991). I am a graduate of the University of Western Australia in Perth, Australia (Ph.D. in Geology). I am a registered member in good standing of the Engineers and Geoscientists of British Columbia (License #37418). I have practiced my profession for a total of 30 years since my graduation and have relevant experience in precious and base metal deposits.
I have read the definition of "qualified person" set out in National Instrument 43-101 (NI 43-101) and certify that by reason of my education, affiliation with a professional association (as defined in NI 43-101) and past relevant work experience, I fulfill the requirements to be a "qualified person" for the purposes of NI 43-101.
4I visited the Ying Property from 13 – 20 July 2016 for eight days.
5I am responsible for Sections 7 - 10, 23, and parts of 1, 12, 25, 26, and 27 of the Technical Report.
6I am independent of the Issuer and related companies applying all of the tests in Section 1.5 of NI 43-101.
7I have had prior involvement with the property that is the subject of the Technical Report in that I assisted the qualified persons with respect to a previous AMC Technical Report on the Ying property in 2013 (filed 6 May 2013, effective date 1 May 2012) and was a qualified person for the previous AMC Technical Reports on the Ying property in 2017 (filed 24 February 2017, effective date 31 December 2016), 2020 (filed 14 October 2020, effective date 31 July 2020), and 2022 (filed 4 November 2022, effective date 20 September 2022).

8I have read NI 43-101, and the Technical Report has been prepared in compliance with NI 43-101 and Form 43-101F1.
9As of the effective date of the Technical Report and the date of this certificate, to the best of my knowledge, information and belief, this Technical Report contains all scientific and technical information that is required to be disclosed to make the Technical Report not misleading.

Effective Date: 17 July 2024

Signing Date: 19 August 2024

 

Original signed by

 

   

Genoa K. Vartell, P.Geo.

Geology Manager / Principal Geologist
AMC Mining Consultants (Canada) Ltd.

amcconsultants.com350
NI 43-101 Technical Report Update on the Ying Ag-Pb-Zn Property in Henan Province, People's Republic of China
 
Silvercorp Metals Inc.0723067

CERTIFICATE OF AUTHOR

I, Justin Glanvill, PrSciNat, of Maidenhead, United Kingdom, do hereby certify that:

1I am currently employed as a Principal Geologist with AMC Consultants (UK) Limited with an office at Regus - Maidenhead, Concorde Park, Building 3, 1st Floor, Maidenhead SL6 4BY, United Kingdom.
2This certificate applies to the technical report titled “NI 43-101 Technical Report Update on the Ying Ag-Pb-Zn Property in Henan Province, People’s Republic of China”, with an effective date of 16 July 2024, (the “Technical Report”) prepared for Silvercorp Metals Inc. (“the Issuer”).
3I am a graduate of the University of Natal in Durban, South Africa (Bachelor of Science in Geology in 1997) and the University of the Witwatersrand (Master of Science, Engineering in 2013). I am a member in good standing of the Geological Society of South Africa, Geostatistical Association of South Africa and a Professional Natural Scientist (PrSciNat) registered with the South African Council for Natural Scientific Professions (SACNASP Reg. 40164/07). I have practiced my profession continuously since 1997. My expertise is in systems development and automation, underground and open-pit geological mapping and modelling, grade control, reconciliation, resource estimation, and associated geostatistics.
I have read the definition of "qualified person" set out in National Instrument 43-101 (NI 43-101) and certify that by reason of my education, affiliation with a professional association (as defined in NI 43-101) and past relevant work experience, I fulfill the requirements to be a "qualified person" for the purposes of NI 43-101.
4I have not visited the Ying Property.
5I am responsible for parts of Sections 1, 14, 25, 26, and 27 of the Technical Report.
6I am independent of the Issuer and related companies applying all of the tests in Section 1.5 of the NI 43-101.
7I have not had prior involvement with the property that is the subject of the Technical Report.
8I have read NI 43-101, and the Technical Report has been prepared in compliance with NI 43-101 and Form 43-101F1.
9As of the effective date of the Technical Report and the date of this certificate, to the best of my knowledge, information and belief, this Technical Report contains all scientific and technical information that is required to be disclosed to make the Technical Report not misleading.

Effective Date: 16 July 2024

Signing Date: 19 August 2024

 

Original signed by

 

   

Justin Glanvill, PrSciNat
Principal Geologist

AMC Consultants (UK) Limited

amcconsultants.com351
NI 43-101 Technical Report Update on the Ying Ag-Pb-Zn Property in Henan Province, People's Republic of China
 
Silvercorp Metals Inc.0723067

CERTIFICATE OF AUTHOR

 

I, Robert Craig Stewart, P.Geo., of Calgary, Alberta, do hereby certify that:

1I am currently employed as a Senior Geologist with AMC Mining Consultants (Canada) Ltd. (EGBC Permit #1002350), with an office at Suite 202, 200 Granville Street, Vancouver, British Columbia V6C 1S4, Canada.
2This certificate applies to the Technical Report titled “NI 43-101 Technical Report Update on the Ying Ag-Pb-Zn Property in Henan Province, People’s Republic of China” with an effective date of 16 July 2024, (the “Technical Report”) prepared for Silvercorp Metals Inc. (“the Issuer”).
3I am a graduate of Saint Mary’s University in Halifax, Canada (Bachelor of Science in Geology in 2008, and Master of Applied Science in Geochemistry in 2011) and Laurentian University in Sudbury, Canada (Doctor of Philosophy in Mineral Deposits and Precambrian Geology in 2017). I am a member in good standing of the Engineers and Geoscientists British Columbia (License #55480). I have practiced my profession for 14 years and have relevant experience in precious and base metal deposits.
I have read the definition of "qualified person" set out in National Instrument 43-101 (NI 43-101) and certify that by reason of my education, affiliation with a professional association (as defined in NI 43-101) and past relevant work experience, I fulfill the requirements to be a "qualified person" for the purposes of NI 43-101.
4I have not visited the Ying Property.
5I am responsible for parts of Sections 1, 14, and 25 - 27 of the Technical Report.
6I am independent of the Issuer and related companies applying all of the tests in Section 1.5 of the NI 43-101.
7I have not had prior involvement with the property that is the subject of the Technical Report.
8I have read NI 43-101 and the section of the Technical Report for which I am responsible has been prepared in compliance with NI 43-101.
9As of the effective date of the Technical Report, to the best of my knowledge, information, and belief, the section of the Technical Report for which I am responsible contains all scientific and technical information that is required to be disclosed to make the Technical Report not misleading.

Effective Date: 16 July 2024

Signing Date: 19 August 2024

 

Original signed by

 

   

Robert Craig Stewart
Senior Geologist

AMC Mining Consultants (Canada) Ltd.

amcconsultants.com352
NI 43-101 Technical Report Update on the Ying Ag-Pb-Zn Property in Henan Province, People's Republic of China
 
Silvercorp Metals Inc.0723067

CERTIFICATE OF AUTHOR

I, Roderick Carlson, FAIG, RPGeo (Exploration and Mining), of Brisbane, Australia, do hereby certify that:

1I am currently employed as a Geology Manager / Principal Geologist with AMC Consultants Pty Ltd., with an office at Level 15, 100 Creek Street, Brisbane, Queensland 4000 Australia.
2This certificate applies to the technical report titled “NI 43-101 Technical Report Update on the Ying Ag-Pb-Zn Property in Henan Province, People’s Republic of China” with an effective date of 16 July 2024, (the “Technical Report”) prepared for Silvercorp Metals Inc. (“the Issuer”).
3I am a graduate of Canberra College of Advanced Education, Canberra, ACT (Bachelor of Applied Science in Geology, 1988). I have completed an MSc (Ore Deposit Geology and Evaluation) (University of Western Australia, 1999). I am a registered Fellow of the Australian Institute of Geoscientists (#1443) and Registered Professional Geologist (RPGeo) (#10122). I have practiced my profession for a total of 36 years since my graduation and have relevant experience in precious and base metal deposits.
I have read the definition of "qualified person" set out in National Instrument 43-101 (NI 43-101) and certify that by reason of my education, affiliation with a professional association (as defined in NI 43-101) and past relevant work experience, I fulfill the requirements to be a "qualified person" for the purposes of NI 43-101.
4I have not visited the Ying Property.
5I am responsible for Section 11 and parts of 1, 25, 26 and 27 of the Technical Report.
6I am independent of the Issuer and related companies applying all of the tests in Section 1.5 of NI 43-101.
7I have not had prior involvement with the property that is the subject of the Technical Report.
8I have read NI 43-101, and the Technical Report has been prepared in compliance with NI 43-101 and Form 43-101F1.
9As of the effective date of the Technical Report and the date of this certificate, to the best of my knowledge, information and belief, this Technical Report contains all scientific and technical information that is required to be disclosed to make the Technical Report not misleading.

Effective Date:16 July 2024

Signing Date: 19 August 2024

 

Original signed by

 

   

Roderick Carlson, FAIG, RPGeo

Geology Manager / Principal Geologist

AMC Consultants Pty Ltd.

amcconsultants.com353
NI 43-101 Technical Report Update on the Ying Ag-Pb-Zn Property in Henan Province, People's Republic of China
 
Silvercorp Metals Inc.0723067

CERTIFICATE OF AUTHOR

I, Robert Chesher, FAusIMM(CP), of Brisbane, Australia, do hereby certify that:

1I am currently employed as a Principal Consultant with AMC Consultants Pty Ltd, with an office at Level 15, 100 Creek Street, Brisbane, Queensland 4000, Australia.
2This certificate applies to the technical report titled “NI 43-101 Technical Report Update on the Ying Ag-Pb-Zn Property in Henan Province, People’s Republic of China” with an effective date of 16 July 2024, (the “Technical Report”) prepared for Silvercorp Metals Inc. (“the Issuer”).
3I am a graduate of University of Queensland in Saint Lucia, Australia (BA Science in Metallurgical in 1977). I am a Fellow in good standing of the Australian Institute of Mining and Metallurgy (AusIMM) and am accredited as a Chartered Professional of the AusIMM in the discipline of Metallurgy (License #311429). I have practiced my profession continuously since 1977. My expertise is in corporate and technical (metallurgical) consulting, focusing on operational and performance reviews, improvements, and optimization.
I have read the definition of "qualified person" set out in National Instrument 43-101 (NI 43-101) and certify that by reason of my education, affiliation with a professional association (as defined in NI 43-101) and past relevant work experience, I fulfill the requirements to be a "qualified person" for the purposes of NI 43-101.
4I visited the Ying Property from 26-29 February 2024 for four days.
5I am responsible for Sections 13 and 17, and parts of 1, 19, 25, 26 and 27 of the Technical Report.
6I am independent of the Issuer and related companies applying all of the tests in Section 1.5 of NI 43-101.
7I have had prior involvement with the property that is the subject of the Technical Report in that I was a qualified person for the previous AMC Technical Report on the Ying property in 2020 (filed 14 October 2020, effective date 31 July 2020) and 2022 (filed 4 November 2022, effective date 20 September 2022).

8I have read NI 43-101, and the Technical Report has been prepared in compliance with NI 43-101 and Form 43-101F1.
9As of the effective date of the Technical Report and the date of this certificate, to the best of my knowledge, information and belief, this Technical Report contains all scientific and technical information that is required to be disclosed to make the Technical Report not misleading.

Effective Date: 16 July 2024

Signing Date: 19 August 2024

 

Original signed by

 

   

Robert Chesher, FAusIMM(CP)
Principal Consultant

AMC Consultants Pty Ltd

amcconsultants.com354
NI 43-101 Technical Report Update on the Ying Ag-Pb-Zn Property in Henan Province, People's Republic of China
 
Silvercorp Metals Inc.0723067

CERTIFICATE OF AUTHOR

I, Dermot M. Claffey, CPEng., of Devon, United Kingdom, do hereby certify that:

 

1I am currently self-employed as a Principal Consultant doing business as Hillerton Consulting Limited with an office at High Wynard, Clyst St George, Devon, EX3 0NN, United Kingdom.
2This certificate applies to the Technical Report titled “NI 43-101 Technical Report Update on the Ying Ag-Pb-Zn Property in Henan Province, People’s Republic of China” with an effective date of 16 July 2024, (the “Technical Report”) prepared for Silvercorp Metals Inc. (“the Issuer”).
3I am a graduate of the University of Dublin in Dublin, Ireland (Bachelor of Civil Engineering in 1982) and the University of Newcastle Upon Tyne (Master of Soil Mechanics and Foundation Engineering in 1983). I am a member in good standing of the Institute of Engineers, Australia. Chartered. I have practiced my profession continuously since graduation for a total of 37 years and have relevant experience in tailings management.
 I have read the definition of "qualified person" set out in National Instrument 43-101 (NI 43-101) and certify that by reason of my education, affiliation with a professional association (as defined in NI 43-101) and past relevant work experience, I fulfill the requirements to be a "qualified person" for the purposes of NI 43-101.
4I visited the Ying Property from 26-29 February 2024 for four days.
5I am responsible for parts of Sections 1, 18, 25, 26 and 27 of the Technical Report.
6I am independent of the Issuer and related companies applying all of the tests in Section 1.5 of NI 43-101.
7I have not had prior involvement with the property that is the subject of the Technical Report.
8I have read NI 43-101, and the Technical Report has been prepared in compliance with NI 43-101 and Form 43-101F1.
9As of the effective date of the Technical Report and the date of this certificate, to the best of my knowledge, information and belief, this Technical Report contains all scientific and technical information that is required to be disclosed to make the Technical Report not misleading.

Effective Date: 16 July 2024

Signing Date: 19 August 2024

 

Original signed by

 

   

Dermot M. Claffey, CPEng.

Principal Consultant

Hillerton Consulting Limited

amcconsultants.com355
NI 43-101 Technical Report Update on the Ying Ag-Pb-Zn Property in Henan Province, People's Republic of China
 
Silvercorp Metals Inc.0723067

Our offices

 

Australia    

Adelaide

Level 1, 12 Pirie Street

Adelaide SA 5000 Australia

T +61 8 8201 1800

E adelaide@amcconsultants.com

 

Brisbane

Level 15, 100 Creek Street

Brisbane Qld 4000 Australia

T +61 7 3230 9000

E brisbane@amcconsultants.com

     

Melbourne

Level 12, 477 Collins Street

Melbourne Vic 3000 Australia

T +61 3 8601 3300

E melbourne@amcconsultants.com

 

Perth

Level 1, 1100 Hay Street

West Perth WA 6005 Australia

T +61 8 6330 1100

E perth@amcconsultants.com

     
Canada    

Toronto

140 Yonge Street, Suite 200

Toronto ON M5C 1X6 Canada

T +1 647 953 9730

E toronto@amcconsultants.com

 

Vancouver

200 Granville Street, Suite 202

Vancouver BC V6C 1S4 Canada

T +1 604 669 0044

E vancouver@amcconsultants.com

     
South Africa   United Kingdom

Cape Town

First Floor, Willowbridge Centre

Carl Cronje Drive

Cape Town 7530 South Africa

T +27 720 833 231

E capetown@amcconsultants.com

 

Maidenhead

Registered in England and Wales

Company No. 3688365

Building 3, 1st Floor

Concorde Park, Concorde Road

Maidenhead SL6 4BY United Kingdom

T +44 1628 778 256

E maidenhead@amcconsultants.com

Registered Office:

The Kinetic Centre

Theobald Street

Elstree

Hertfordshire WD6 4PG United Kingdom

 

amcconsultants.com