EX-10.1 2 irix-ex10_1.htm EX-10.1 EX-10.1

 

Exhibit 10.1

 

HELLYER OAKS TECHNOLOGY PARK

OFFICE LEASE

This Office Lease (the “Lease”), dated as of the date set forth in Section 1 of the Summary of Basic Lease Information (the “Summary”), below, is made by and between SFIII HELLYER, LLC, a Delaware limited liability company, and SFIII FOS HELLYER HOLDING, LLC, a Delaware limited liability company (“Landlord”), and IRIDEX CORPORATION, a Delaware corporation (“Tenant”).

SUMMARY OF BASIC LEASE INFORMATION

TERMS OF LEASE

DESCRIPTION

1. Date:

March 4, 2026

2. Premises (Article 1):

 

2.1 Building:

That certain building with a street address of 5215 Hellyer Avenue, San Jose, California 95111 (the "Building"), which Building contains a total of approximately 172,120 rentable square feet of space.

2.2 Premises:

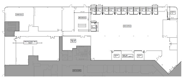
Approximately 30,784 rentable square feet of space located on the first (1st) floor of the Building and commonly known as Suite 150, as further set forth in Exhibit A to this Lease.

3. Lease Term (Article 2):

 

3.1 Length of Term:

Approximately ninety (90) months.

3.2 Lease Commencement Date:

The date upon which the Premises are Substantially Complete (as defined in the Tenant Work Letter (as defined below)), which is anticipated to be July 1, 2026.

3.3 Lease Expiration Date:

If the Lease Commencement Date shall be the first day of a calendar month, then the day immediately preceding the expiration of the ninetieth (90th) full calendar month following the Lease Commencement Date; or, if the Lease Commencement Date shall be other than the first day of a calendar month, then the last day of the month in which the ninetieth (90th) full calendar month following the Lease Commencement Date occurs.

4. Base Rent (Article 3):

 

Lease Year

Annual Base Rent

Monthly Installment of Base Rent

Approximate Monthly Base Rent per Rentable Square Foot**

1

$646,464.00*

$53,872.00*

$1.75

2

$665,857.92

$55,488.16

$1.80

 

-1-

 Hellyer Oaks Technology Park

Iridex Corporation

 


 

3

$685,833.72

$57,152.81

$1.85

4

$706,408.68

$58,867.39

$1.91

5

$727,600.92

$60,633.41

$1.97

6

$749,428.92

$62,452.41

$2.03

7

$771,911.76

$64,325.98

$2.09

8 (through Lease Expiration Date)

N/A (partial year)

$66,255.76

$2.15

* Subject to the terms set forth in Section 3.2 below, the Base Rent attributable to the six (6) month period commencing on the first (1st) day of the first (1st) full calendar month of the Lease Term and ending on the last day of the sixth (6th) full calendar month of the Lease Term shall be abated.

** The calculations of the Approximate Monthly Base Rent per Rentable Square Foot set forth above are approximate calculations rounded to the nearest cent. These approximations are provided for convenience only and the Annual Base Rent and Monthly Installment of Base Rent amounts control.

5. Operating Expenses and Tax Expenses (Article 4):

This is a "TRIPLE NET" lease and as such, the provisions contained in this Lease are intended to pass on to Tenant and reimburse Landlord for the costs and expenses reasonably associated with this Lease and the Project, and Tenant's operation therefrom. To the extent such costs and expenses payable by Tenant cannot be charged directly to, and paid by, Tenant, such costs and expenses shall be paid by Landlord but reimbursed by Tenant as Additional Rent.

6. Tenant's Share (Article 4):

Approximately 8.77%, which is the percentage obtained by dividing the number of rentable square feet in the Premises as stated above, by the rentable square feet in the Project.

7. Permitted Use (Article 5):

Administrative and general office, research and development, manufacturing, storage and distribution, subject to and in compliance with Applicable Laws (as defined below)

8. Security Deposit (Article 21):

$132,500.00

9. Parking Pass Ratio (Article 28):

3.7 unreserved parking passes, for every 1,000 rentable square feet of the Premises (i.e., 114 parking spaces), of which, subject to the terms of Article 28 of the Lease.

 

-2-

Hellyer Oaks Technology Park

Iridex Corporation

 


 

10. Address of Tenant (Section 29.18):

 

1212 Terra Bella Avenue

Mountain View, CA 94043

Attention: Mary Dy (Prior to Lease Commencement Date)

and

Iridex Corporation

5215 Hellyer Avenue, Suite 150
San Jose, California 95111
Attention: Patrick Mercer

 

(After Lease Commencement Date)

11. Address of Landlord (Section 29.18):

See Section 29.18 of the Lease.

12. Broker(s) (Section 29.24):

Cushman & Wakefield U.S., Inc. (Representing Landlord)

and

Hughes Marino (Representing Tenant).

 

-3-

Hellyer Oaks Technology Park

Iridex Corporation

 


 

SECTION 1

PREMISES, BUILDING, PROJECT, AND COMMON AREAS

1.1 Premises, Building, Project and Common Areas.

1.1.1 The Premises; Tender of Possession. Landlord hereby leases to Tenant and Tenant hereby leases from Landlord the premises set forth in Section 2.2 of the Summary (the “Premises”). The outline of the Premises is set forth in Exhibit A attached hereto and the Premises has the number of rentable square feet as set forth in Section 2.2 of the Summary (which shall not be subject to re-measurement or modification). The parties hereto agree that the lease of the Premises is upon and subject to the terms, covenants and conditions herein set forth, and Tenant covenants as a material part of the consideration for this Lease to keep and perform each and all of such terms, covenants and conditions by it to be kept and performed and that this Lease is made upon the condition of such performance. The parties hereto hereby acknowledge that the purpose of Exhibit A is to show the approximate location of the Premises in the "Building," as that term is defined in Section 1.1.2, below, only, and such Exhibit is not meant to constitute an agreement, representation or warranty as to the construction of the Premises, the precise area thereof or the specific location of the "Common Areas," as that term is defined in Section 1.1.3, below, or the elements thereof or of the accessways to the Premises or the "Project," as that term is defined in Section 1.1.2, below. Except as specifically set forth in this Lease and in the Tenant Work Letter attached hereto as Exhibit B (the "Tenant Work Letter"), Landlord shall tender possession of the Premises to Tenant in their existing, "as is" condition and Landlord shall not be obligated to provide or pay for any improvement work or services related to the improvement of the Premises. Landlord shall be deemed to have tendered possession of the Premises to Tenant upon the date of Substantial Completion of the Tenant Improvements, as those terms are defined in the Tenant Work Letter (the “Possession Date”), and no action by Tenant shall be required therefor. If for any reason, Landlord is delayed in tendering possession of the Premises to Tenant by any particular date, Landlord shall not be subject to any liability for such failure, and the validity of this Lease shall not be impaired. Neither Landlord nor any agent of Landlord has made any representation or warranty regarding the condition of the Premises, the Building or the Project or with respect to the suitability of any of the foregoing for the conduct of Tenant's business, except as specifically set forth in this Lease and the Tenant Work Letter. Notwithstanding the foregoing, Landlord represents and warrants that, as of the date hereof and solely with respect to the Premises, the Building and the Project, or any of them, it has received no written notice of a violation of any Applicable Laws (as defined in Section 24 of this Lease) that has not been cured.

1.1.2 The Building and The Project. The Premises are a part of the building set forth in Section 2.1 of the Summary (the “Building”). The Building is part of an office project known as "Hellyer Oaks Technology Park." The term “Project”, as used in this Lease, shall mean (i) the Building and the building located at 5225 Hellyer Avenue, San Jose, California to the extent designated by Landlord from time to time (the "Adjacent Building"), and the Common Areas, (ii) the land (which is improved with landscaping, parking facilities and other improvements) upon which the Building, the Adjacent Building and the Common Areas are located, and (iii) at Landlord's discretion, any additional real property, areas, land, buildings or other improvements added thereto outside of the Project.

1.1.3 Common Areas. Tenant shall have the non-exclusive right to use in common with other tenants in the Project, and subject to the rules and regulations referred to in Article 5 of this Lease, those portions of the Project which are provided, from time to time, for use in common by Landlord, Tenant and any other tenants of the Project (such areas, together with such other portions of the Project designated by Landlord, in its discretion, including certain areas designated for the exclusive use of certain tenants, or to be shared by Landlord and certain tenants, are collectively referred to herein as the “Common Areas”). The Common Areas shall consist of the "Project Common Areas" and the "Building Common Areas." The term "Project Common Areas," as used in this Lease, shall mean the portion of the Project designated as such by Landlord, which Project Common Areas may include, from time to time, in Landlord's sole discretion, amenities areas for the use of occupants of the Project. The term “Building Common Areas”, as used in this Lease, shall mean the portions of the Common Areas located within the Building designated as such by Landlord. The manner in which the Common Areas are maintained and operated shall be at the sole discretion of Landlord and the use thereof shall be subject to such rules, regulations and restrictions as Landlord may make from time to time. Landlord reserves the right to close temporarily, make alterations or additions

 

-4-

 Hellyer Oaks Technology Park

Iridex Corporation

 


 

to, or change the location of elements of the Project and the Common Areas; provided, however, that the foregoing shall not unreasonably prevent Tenant's access to the Premises.

SECTION 2

LEASE TERM

2.1 Initial Lease Term. The terms and provisions of this Lease shall be effective as of the date of this Lease. The term of this Lease (the “Lease Term”) shall be as set forth in Section 3.1 of the Summary, shall commence on the date set forth in Section 3.2 of the Summary (the “Lease Commencement Date”), and shall terminate on the date set forth in Section 3.3 of the Summary (the “Lease Expiration Date”) unless this Lease is sooner terminated as hereinafter provided. For purposes of this Lease, the term “Lease Year” shall mean each consecutive twelve (12) month period during the Lease Term, provided that the last Lease Year shall end on the Lease Expiration Date. At any time during the Lease Term, Landlord may deliver to Tenant a notice in the form as set forth in Exhibit C, attached hereto, as a confirmation only of the information set forth therein, which Tenant shall execute and return to Landlord within five (5) days of receipt thereof.

2.2 Option Term.

2.2.1 Option Right. Landlord hereby grants the tenant originally named herein and any Permitted Transferee hereunder (the "Original Tenant"), one (1) option to extend the Lease Term for the entire Premises by a period of sixty (60) months (the "Option Term"). Such option shall be exercisable only by "Notice" (as that term is defined in Section 29.18 of this Lease) delivered by Tenant to Landlord as provided below, provided that, as of the date of delivery of such Notice, (i) Tenant is not then in default under this Lease, (ii) Tenant has not previously been in default more than once in any calendar year under this Lease (beyond the applicable notice and cure periods), and (iii) there has been no material adverse change in Tenant's financial condition during the prior twenty-four (24)-month period. Upon the proper exercise of such option to extend (and provided that, at Landlord's election, as of the end of the Lease Term, (A) Tenant is not in default under this Lease, (B) Tenant has not previously been in default more than once in any calendar year under this Lease (beyond the applicable notice and cure periods), and (C) there has been no material adverse change in Tenant's financial condition during the prior twenty-four (24)-month period), then the Lease Term, as it applies to the entire Premises, shall be extended for a period of sixty (60) months. The rights contained in this Section 2.2 shall only be exercised by the Original Tenant (and not any other assignee, sublessee or other transferee of the Original Tenant's interest in this Lease) if Original Tenant is in occupancy of the entire then-existing Premises.

2.2.2 Option Rent. The Rent payable by Tenant during the Option Term (the "Option Rent") shall be equal to the greater of: (a) one hundred percent (100%) of the Rent payable prior the commencement of the Option Term, and (b) one hundred percent (100%) of the "Market Rent" as set forth below. For purposes of this Lease, the term "Market Rent" shall mean rent (including additional rent, and considering (x) any "base year" or "expense stop" applicable thereto, as well as (y) the inclusion of any utility expenses as a part thereof), including all escalations, at which tenants, as of the commencement of the term are, pursuant to transactions completed within the twelve (12) months prior to the first day of the Option Term, provided that timing adjustments shall be made to reflect any changes in the Market Rent following the date of any particular Comparable Deal up to the date of the commencement of the Option Term, leasing non-sublease, non-encumbered, non-synthetic, non-equity, non-expansion space (unless such space was leased pursuant to a definition of "fair market" comparable to the definition of Market Rent) comparable in size, location and quality to the Premises (taking into account, without limitation, the particular use of the Premises and the modular cleanroom and supporting infrastructure located within the Premises) for a "Comparable Term," as that term is defined in this Section 2.2.2 (the "Comparable Deals"), which comparable space is located in the "Comparable Buildings," as that term is defined in this Section 2.2.2, giving appropriate consideration to the annual rental rates per rentable square foot, the standard of measurement by which the rentable square footage is measured, the ratio of rentable square feet to usable square feet, and taking into consideration only, and granting only, the following concessions (provided that the rent payable in Comparable Deals in which the terms of such Comparable Deals are determined by use of a discounted fair market rate formula shall be equitably increased in order that such Comparable Deals will not reflect a discounted rate): (a) rental abatement concessions, if any, being granted such tenants in connection with such comparable spaces; (b) improvements or allowances provided or to be provided for such comparable space, taking into account the value of the existing improvements in the Premises, such value to be

 

-5-

Hellyer Oaks Technology Park

Iridex Corporation

 


 

based upon the age, quality and layout of the improvements and the extent to which the same could be utilized by general office users as contrasted with this specific Tenant, (c) Proposition 13 protection, and (d) all other monetary concessions, if any, being granted such tenants in connection with such comparable space; provided, however, that notwithstanding anything to the contrary herein, no consideration shall be given to the (I) any period of rental abatement, if any, granted to tenants in Comparable Deals in connection with the design, permitting and construction of improvements, or (II) fact that Landlord is or is not required to pay a real estate brokerage commission in connection with the applicable term or the fact that the Comparable Deals do or do not involve the payment of real estate brokerage commissions. The term "Comparable Term" shall refer to the length of the lease term, without consideration of options to extend such term, for the space in question. In addition, the determination of the Market Rent shall include a determination as to whether, and if so to what extent, Tenant must provide Landlord with financial security, such as a letter of credit or guaranty, for Tenant's rent obligations during any Option Term. Such determination shall be made by reviewing the extent of financial security then generally being imposed in Comparable Deals upon tenants of comparable financial condition and credit history to the then existing financial condition and credit history of Tenant (with appropriate adjustments to account for differences in the then-existing financial condition of Tenant and such other tenants). If in determining the Market Rent, Tenant is entitled to a improvement or comparable allowance for the improvement of the Premises (the "Option Term Improvement Allowance"), Landlord may, at Landlord's sole option, elect any or a portion of the following: (A) to grant some or all of the Option Term Improvement Allowance to Tenant in the form as described above (i.e., as an improvement allowance), and/or (B) to reduce the rental rate component of the Market Rent to be an effective rental rate which takes into consideration that Tenant will not receive the total dollar value of such excess Option Term Improvement Allowance (in which case the Option Term Improvement Allowance evidenced in the effective rental rate shall not be granted to Tenant). The term "Comparable Buildings" shall mean the Building, and other first-class institutionally-owned office buildings which are comparable to the Building in terms of tenant mix, age (based upon the date of completion of construction or major renovation), quality of construction, level of services and amenities (including the type (e.g., surface, covered, subterranean) and amount of parking), size and appearance, and are located in the "Comparable Area", which is the South San Jose – Hellyer Avenue and Hellyer Oaks Technology Park submarkets.

2.2.3 Exercise of Option. The option contained in this Section 2.2 shall be exercised by Tenant, if at all, only in the manner set forth in this Section 2.2.3. Tenant shall deliver notice (the "Exercise Notice" ) to Landlord not more than fifteen (15) months nor less than twelve (12) months prior to the expiration of the initial Lease Term, stating that Tenant is exercising its option. Concurrently with such Exercise Notice, Tenant shall deliver to Landlord Tenant's calculation of the Market Rent (the "Tenant's Option Rent Calculation"). Landlord shall deliver notice (the "Landlord Response Notice") to Tenant on or before the date which is thirty (30) days after Landlord's receipt of the Exercise Notice and Tenant's Option Rent Calculation (the "Landlord Response Date" ), stating that (A) Landlord is accepting Tenant's Option Rent Calculation as the Market Rent, or (B) rejecting Tenant's Option Rent Calculation and setting forth Landlord's calculation of the Market Rent (the "Landlord's Option Rent Calculation"). Within thirty (30) days of its receipt of the Landlord Response Notice, Tenant may, at its option, accept the Market Rent contained in the Landlord's Option Rent Calculation. If Tenant does not affirmatively accept or Tenant rejects the Market Rent specified in the Landlord's Option Rent Calculation, the parties shall follow the procedure set forth in Section 2.2.4 below, and the Market Rent shall be determined in accordance with the terms of Section 2.2.4 below.

2.2.4 Determination of Market Rent. In the event Tenant objects or is deemed to have objected to the Market Rent, Landlord and Tenant shall attempt to agree upon the Market Rent using reasonable good-faith efforts. If Landlord and Tenant fail to reach agreement within thirty (30) days following Tenant's objection or deemed objection to the Landlord's Option Rent Calculation (the "Outside Agreement Date"), then, within two (2) business days following such Outside Agreement Date, (x) Landlord may reestablish the Landlord's Option Rent Calculation by delivering written notice thereof to Tenant, and (y) Tenant may reestablish the Tenant's Option Rent Calculation by delivering written notice thereof to Landlord. If Landlord and Tenant thereafter fail to reach agreement within seven (7) business days of the Outside Agreement Date, then in connection with the Option Rent, Landlord's Option Rent Calculation and Tenant's Option Rent Calculation, each as most recently delivered to the other party pursuant to the terms and conditions of this Section 2.2, shall be submitted to the "Neutral Arbitrator," as that term is defined in Section 2.2.4.1 of this Lease, pursuant to the terms and conditions of this Section 2.2.4. The submittals shall be made concurrently with the selection of the Neutral Arbitrator pursuant to this Section 2.2.4 and shall be submitted to arbitration in accordance with Section 2.2.4.1 through 2.2.4.5 of this Lease, but subject to the conditions, when appropriate, of Section 2.2.3.

 

-6-

Hellyer Oaks Technology Park

Iridex Corporation

 


 

2.2.4.1 Landlord and Tenant shall mutually, reasonably appoint one (1) arbitrator who shall by profession be a real estate broker, appraiser or attorney who shall have been active over the five (5) year period ending on the date of such appointment in the leasing (or appraisal, as the case may be) of first-class low-rise commercial properties in the Comparable Area (the "Neutral Arbitrator"). The determination of the Neutral Arbitrator shall be limited solely to the issue of whether Landlord's Option Rent Calculation or Tenant's Option Rent Calculation, each as submitted to the Neutral Arbitrator pursuant to Section 2.2.4, above, is the closest to the actual Market Rent as determined by such Neutral Arbitrator, taking into account the requirements of Section 2.2.2 of this Lease. Such Neutral Arbitrator shall be appointed within fifteen (15) days after the applicable Outside Agreement Date. Neither the Landlord or Tenant may, directly or indirectly, consult with the Neutral Arbitrator prior to, or subsequent to, his or her appearance. The Neutral Arbitrator shall be retained via an engagement letter jointly prepared by Landlord's counsel and Tenant's counsel.

2.2.4.2 The Neutral Arbitrator shall, within thirty (30) days of his/her appointment, reach a decision as to Market Rent and determine whether the Landlord's Option Rent Calculation or Tenant's Option Rent Calculation, each as submitted to the Neutral Arbitrator pursuant to Section 2.2.4, above, is closest to Market Rent as determined by such Neutral Arbitrator and simultaneously publish a ruling ( "Award") indicating whether Landlord's Option Rent Calculation or Tenant's Option Rent Calculation is closest to the Market Rent as determined by such Neutral Arbitrator. Following notification of the Award, the Landlord's Option Rent Calculation or Tenant's Option Rent Calculation, whichever is selected by the Neutral Arbitrator as being closest to Market Rent, shall become the then applicable Option Rent.

2.2.4.3 The Award issued by such Neutral Arbitrator shall be binding upon Landlord and Tenant.

2.2.4.4 If Landlord and Tenant fail to appoint the Neutral Arbitrator within fifteen (15) days after the applicable Outside Agreement Date, either party may petition the presiding judge of the Superior Court of Santa Clara County to appoint such Neutral Arbitrator subject to the criteria in Section 2.2.4.1 of this Lease, or if he or she refuses to act, either party may petition any judge having jurisdiction over the parties to appoint such Neutral Arbitrator.

2.2.4.5 The cost of arbitration shall be paid by Landlord and Tenant equally.

2.3 Beneficial Occupancy. Tenant and its authorized agents, contractors, subcontractors and employees shall be granted a license by Landlord to enter upon the Premises prior to the Lease Commencement Date (the "Early Access Period"), at Tenant's sole risk and expense, to install furniture, fixtures and equipment, complete Landlord-approved Alterations, and establish operations in the Premises; provided, however, that such early access shall be permitted only upon Tenant's prior delivery to Landlord of (i) an executed original of this Lease, (ii) the Security Deposit, and (iii) payment in an amount equal to Base Rent and Tenant's Share of estimated Direct Expenses for the first (1st) month of the Lease Term in which such amounts are due, which prepayment shall be applied to the first such amounts due and shall not accelerate the Lease Commencement Date or the date on which such amounts are otherwise due, and provided further that (a) the provisions of this Lease, other than with respect to the payment of Base Rent, or the payment of Direct Expenses, shall apply during such early entry, including, but not limited to, the provisions of Article 10 relating to Tenant's indemnification of Landlord, (b) prior to any such entry, Tenant shall pay for and provide evidence of the insurance to be provided by Tenant pursuant to the provisions of Article 10, and (c) Tenant shall not interfere with the completion of the Tenant Improvements, or Landlord's work in the Project in any material way. Upon Tenant's breach of any of the foregoing conditions, Landlord may, in addition to exercising any of its other rights and remedies set forth herein, revoke such license upon notice to Tenant.

SECTION 3

BASE RENT

3.1 In General. Tenant shall pay, without prior notice or demand, to Landlord or Landlord's agent at the management office of the Project, or, at Landlord's option, at such other place as Landlord may from time to time designate in writing, by a check for currency which, at the time of payment, is legal tender for private or public debts in the United States of America, base rent (“Base Rent”) as set forth in Section 4 of the Summary, payable in equal

 

-7-

Hellyer Oaks Technology Park

Iridex Corporation

 


 

monthly installments as set forth in Section 4 of the Summary in advance on or before the first day of each and every calendar month during the Lease Term, without any setoff or deduction whatsoever. The Base Rent for the first full month of the Lease Term which occurs after the expiration of any free rent period shall be paid at the time of Tenant's execution of this Lease. If any Rent payment date (including the Lease Commencement Date) falls on a day of the month other than the first day of such month or if any payment of Rent is for a period which is shorter than one month, the Rent for any fractional month shall accrue on a daily basis for the period from the date such payment is due to the end of such calendar month or to the end of the Lease Term at a rate per day which is equal to 1/365 of the applicable annual Rent. All other payments or adjustments required to be made under the terms of this Lease that require proration on a time basis shall be prorated on the same basis.

3.2 Base Rent Abatement. Provided that no Event of Default is occurring, during the period commencing on the first (1st) day of the first (1st) full calendar month of the Lease Term and ending on the last day of the sixth (6th) full calendar month of the Lease Term (the "Base Rent Abatement Period"), Tenant shall not be obligated to pay any Base Rent otherwise attributable to the Premises during such Base Rent Abatement Period (the "Base Rent Abatement"). Landlord and Tenant acknowledge that the aggregate amount of the Base Rent Abatement equals $323.232.00 (i.e., $53,872.00 per month). Tenant acknowledges and agrees that during such Base Rent Abatement Period, such abatement of Base Rent for the Premises shall have no effect on the calculation of any future increases in Base Rent or Direct Expenses payable by Tenant pursuant to the terms of this Lease, which increases shall be calculated without regard to such Base Rent Abatement. Additionally, Tenant shall be obligated to pay all "Additional Rent" (as that term is defined in Section 4.1 of this Lease) during the Base Rent Abatement Period. Tenant acknowledges and agrees that the foregoing Base Rent Abatement has been granted to Tenant as additional consideration for entering into this Lease, and for agreeing to pay the Base Rent and perform the terms and conditions otherwise required under this Lease. If Tenant shall be in default under this Lease and shall fail to cure such default within the notice and cure period, if any, permitted for cure pursuant to this Lease, or if this Lease, is terminated as a result of an Event of Default by Tenant, then the dollar amount of the unamortized portion of the Base Rent Abatement calculated on a straight line basis over the initial Term of the Lease as of the date of such default or termination, as the case may be, shall be converted to a credit to be applied to the Base Rent applicable at the end of the Lease Term and Tenant shall immediately be obligated to begin paying Base Rent for the Premises in full. The foregoing Base Rent Abatement right set forth in this Section 3.2 shall be personal to the Original Tenant and shall only apply to the extent that the Original Tenant (and not any assignee, or any sublessee or other transferee of the Original Tenant's interest in this Lease) is the Tenant under this Lease during such Base Rent Abatement Period.

SECTION 4

ADDITIONAL RENT

4.1 General Terms. In addition to paying the Base Rent specified in Article 3 of this Lease, Tenant shall pay "Tenant's Share" of the annual "Direct Expenses," as those terms are defined in Sections 4.2.6 and 4.2.2 of this Lease, respectively. Such payments by Tenant, together with any and all other amounts payable by Tenant to Landlord pursuant to the terms of this Lease, are hereinafter collectively referred to as the "Additional Rent", and the Base Rent and the Additional Rent are herein collectively referred to as "Rent." All amounts due under this Article 4 as Additional Rent shall be payable for the same periods and in the same manner as the Base Rent. Without limitation on other obligations of Tenant which survive the expiration of the Lease Term, the obligations of Tenant to pay the Additional Rent provided for in this Article 4 shall survive the expiration of the Lease Term.

4.2 Definitions of Key Terms Relating to Additional Rent. As used in this Article 4, the following terms shall have the meanings hereinafter set forth:

4.2.1 [Intentionally Omitted].

4.2.2 “Direct Expenses” shall mean "Operating Expenses" and "Tax Expenses."

4.2.3 “Expense Year” shall mean each calendar year in which any portion of the Lease Term falls, through and including the calendar year in which the Lease Term expires, provided that Landlord, upon notice to Tenant, may change the Expense Year from time to time to any other twelve (12) consecutive month period, and,

 

-8-

Hellyer Oaks Technology Park

Iridex Corporation

 


 

in the event of any such change, Tenant's Share of Direct Expenses shall be equitably adjusted for any Expense Year involved in any such change.

4.2.4 “Operating Expenses” shall mean all expenses, costs and amounts of every kind and nature which Landlord pays or accrues during any Expense Year because of or in connection with the ownership, management, maintenance, security, repair, replacement, restoration or operation of the Project, or any portion thereof. Without limiting the generality of the foregoing, Operating Expenses shall specifically include any and all of the following: (i) the cost of supplying all utilities (however, excluding the cost of electricity consumed in the Premises and the premises of any other Project tenant, since Tenant is separately paying for the cost of electricity to the Premises as Additional Rent pursuant to Section 6.1.2 of this Lease), the cost of operating, repairing, maintaining, and renovating the utility, telephone, mechanical, sanitary, storm drainage, and elevator systems, and the cost of maintenance and service contracts in connection therewith; (ii) the cost of licenses, certificates, permits and inspections and the cost of contesting any governmental enactments which may affect Operating Expenses, and the costs incurred in connection with a governmentally mandated transportation system management program or similar program; (iii) the cost of all insurance carried by Landlord in connection with the Project as reasonably determined by Landlord; (iv) the cost of landscaping, relamping, and all supplies, tools, equipment and materials used in the operation, repair and maintenance of the Project, or any portion thereof; (v) the cost of parking area operation servicing the Building (whether on or offsite), repair, restoration, and maintenance; (vi) fees and other costs, including management and/or incentive fees, consulting fees, legal fees and accounting fees, of all contractors and consultants in connection with the management, operation, maintenance and repair of the Project; (vii) payments under any equipment rental agreements and the fair rental value of any management office space; (viii) subject to item (f), below, wages, salaries and other compensation and benefits, including taxes levied thereon, of all persons engaged in the operation, maintenance and security of the Project; (ix) costs under any instrument pertaining to the sharing of costs by the Project; (x) operation, repair, maintenance and replacement of all systems and equipment and components thereof of the Project; (xi) the cost of janitorial to the Project Common Areas, alarm, security and other services, replacement of wall and floor coverings, ceiling tiles and fixtures in common areas, maintenance and replacement of curbs and walkways, repair to roofs and re-roofing; (xii) amortization (including interest on the unamortized cost) over such period of time as Landlord shall reasonably determine, of the cost of acquiring or the rental expense of personal property used in the maintenance, operation and repair of the Project, or any portion thereof; (xiii) the cost of capital improvements or other costs incurred in connection with the Project (A) which are intended to effect economies in the operation or maintenance of the Project, or any portion thereof, or to reduce current or future Operating Expenses, or to enhance the safety or security of the Project or its occupants, (B) that are required to comply with present or anticipated conservation programs, (C) which are replacements or modifications of nonstructural items located in the Common Areas required to keep the Common Areas in good order or condition, or (D) that are required under any governmental law or regulation; provided, however, that any capital expenditure shall be amortized (including interest on the amortized cost) over such period of time as Landlord shall reasonably determine; and (xiv) costs, fees, charges or assessments imposed by, or resulting from any mandate imposed on Landlord by, any federal, state or local government for fire and police protection, trash removal, community services, or other services which do not constitute "Tax Expenses" as that term is defined in Section 4.2.5, below, (xv) cost of tenant relation programs reasonably established by Landlord, and (xvi) payments under any easement, license, operating agreement, declaration, restrictive covenant, or instrument pertaining to the sharing of costs by the Building. Notwithstanding the foregoing, for purposes of this Lease, Operating Expenses shall not, however, include:

(a) costs, including legal fees, space planners' fees, advertising and promotional expenses (except as otherwise set forth above), finder's fees, and brokerage fees incurred in connection with the original construction or development, or original or future leasing of the Project, and costs, including permit, license and inspection costs, incurred with respect to the installation of tenant improvements made for new tenants initially occupying space in the Project after the Lease Commencement Date or incurred in renovating or otherwise improving, decorating, painting or redecorating vacant space for tenants or other occupants of the Project (excluding, however, such costs relating to any common areas of the Project or parking facilities);

(b) except as set forth in items (xii), (xiii), and (xiv) above, depreciation, interest and principal payments on mortgages and other debt costs, if any, penalties and interest, costs of capital repairs and alterations, and costs of capital improvements and equipment;

 

-9-

Hellyer Oaks Technology Park

Iridex Corporation

 


 

(c) costs for which the Landlord is reimbursed by any tenant or occupant of the Project or by insurance by its carrier or any tenant's carrier or by anyone else, and electric power costs for which any tenant directly contracts with the local public service company;

(d) any bad debt loss, rent loss, or reserves for bad debts or rent loss;

(e) costs associated with the operation of the business of the partnership or entity which constitutes the Landlord, as the same are distinguished from the costs of operation of the Project (which shall specifically include, but not be limited to, accounting costs associated with the operation of the Project). Costs associated with the operation of the business of the partnership or entity which constitutes the Landlord include costs of partnership accounting and legal matters, costs of defending any lawsuits with any mortgagee (except as the actions of the Tenant may be in issue), costs of selling, syndicating, financing, mortgaging or hypothecating any of the Landlord's interest in the Project, and costs incurred in connection with any disputes between Landlord and its employees, between Landlord and Project management, or between Landlord and other tenants or occupants;

(f) the wages and benefits of any employee who does not devote substantially all of his or her employed time to the Project unless such wages and benefits are prorated to reflect time spent on operating and managing the Project vis-a-vis time spent on matters unrelated to operating and managing the Project; provided, that in no event shall Operating Expenses for purposes of this Lease include wages and/or benefits attributable to personnel above the level of Project manager;

(g) amount paid as ground rental for the Project by the Landlord;

(h) overhead and profit increment paid to the Landlord or to subsidiaries or affiliates of the Landlord for services in the Project to the extent the same exceeds the costs of such services rendered by qualified, first-class unaffiliated third parties on a competitive basis;

(i) any compensation paid to clerks, attendants or other persons in commercial concessions operated by the Landlord, provided that any compensation paid to any concierge at the Project shall be includable as an Operating Expense;

(j) rentals and other related expenses incurred in leasing air conditioning systems, elevators or other equipment which if purchased the cost of which would be excluded from Operating Expenses as a capital cost, except equipment not affixed to the Project which is used in providing janitorial or similar services and, further excepting from this exclusion such equipment rented or leased to remedy or ameliorate an emergency condition in the Project ;

(k) all items and services for which Tenant or any other tenant in the Project reimburses Landlord or which Landlord provides selectively to one or more tenants (other than Tenant) without reimbursement;

(l) any costs expressly excluded from Operating Expenses elsewhere in this Lease;

(m) rent for any office space occupied by Project management personnel to the extent the size or rental rate of such office space exceeds the size or fair market rental value of office space occupied by management personnel of the comparable buildings in the vicinity of the Building, with adjustment where appropriate for the size of the applicable project;

(n) costs arising from the gross negligence or willful misconduct of Landlord or its agents, employees, vendors, contractors, or providers of materials or services;

(o) legal fees and costs, settlements, judgments or awards paid or incurred because of disputes between Landlord and other tenants or prospective occupants or prospective tenants/occupants or providers of goods and services to the Project;

 

-10-

Hellyer Oaks Technology Park

Iridex Corporation

 


 

(p) costs incurred by Landlord due to the violation by Landlord of any law, code, regulation, or ordinance; and

(q) costs incurred to comply with laws relating to the removal of hazardous material (as defined under applicable law) which was in existence in the Building or on the Project prior to the Lease Commencement Date, and was of such a nature that a federal, State or municipal governmental authority, if it had then had knowledge of the presence of such hazardous material, in the state, and under the conditions that it then existed in the Building or on the Project, would have then required the removal of such hazardous material or other remedial or containment action with respect thereto; and costs incurred to remove, remedy, contain, or treat hazardous material, which hazardous material is brought into the Building or onto the Project after the date hereof by Landlord or any other tenant of the Project and is of such a nature, at that time, that a federal, State or municipal governmental authority, if it had then had knowledge of the presence of such hazardous material, in the state, and under the conditions, that it then exists in the Building or on the Project, would have then required the removal of such hazardous material or other remedial or containment action with respect thereto.

If Landlord is not furnishing any particular work or service (the cost of which, if performed by Landlord, would be included in Operating Expenses) to a tenant who has undertaken to perform such work or service in lieu of the performance thereof by Landlord, Operating Expenses shall be deemed to be increased by an amount equal to the additional Operating Expenses which would reasonably have been incurred during such period by Landlord if it had at its own expense furnished such work or service to such tenant. If the Project is not one hundred percent (100%) occupied during all or a portion of any Expense Year (including, without limitation, if any portion of the Project is unleased or is leased, but is not then being used by a tenant in the ordinary course of its business), Landlord shall make an appropriate adjustment to the components of Operating Expenses for such Expense Year to determine the amount of Operating Expenses that would have been incurred had the Project been one hundred percent (100%) occupied; and the amount so determined shall be deemed to have been the amount of Operating Expenses for such Expense Year. For purposes hereof, cost savings in components of Operating Expenses arising by reason of the cessation of use by tenants at the Project due to Casualty (as that term is defined in Section 11.1 below), Force Majeure (as that term is defined in Section 29.16 below), or other extraordinary circumstances are considered variable Operating Expenses that may be grossed up in Operating Expenses.

4.2.5 Taxes.

4.2.5.1 “Tax Expenses” shall mean all federal, state, county, or local governmental or municipal taxes, fees, charges or other impositions of every kind and nature, whether general, special, ordinary or extraordinary, (including, without limitation, real estate taxes, real estate excise taxes, general and special assessments, transit taxes, leasehold taxes or taxes based upon the receipt of rent, including gross receipts or sales taxes applicable to the receipt of rent, unless required to be paid by Tenant, personal property taxes imposed upon the fixtures, machinery, equipment, apparatus, systems and equipment, appurtenances, furniture and other personal property used in connection with the Project, or any portion thereof), which shall be paid or accrued during any Expense Year (without regard to any different fiscal year used by such governmental or municipal authority) because of or in connection with the ownership, leasing and operation of the Project, or any portion thereof.

4.2.5.2 Tax Expenses shall include, without limitation: (i) Any tax on the rent, right to rent or other income from the Project, or any portion thereof, or as against the business of leasing the Project, or any portion thereof; (ii) Any assessment, tax, fee, levy or charge in addition to, or in substitution, partially or totally, of any assessment, tax, fee, levy or charge previously included within the definition of real property tax, it being acknowledged by Tenant and Landlord that assessments, taxes, fees, levies and charges may be imposed by governmental agencies for such services as fire protection, street, sidewalk and road maintenance, refuse removal and for other governmental services formerly provided without charge to property owners or occupants, and, Tax Expenses shall also include any governmental or private assessments or the Project's contribution towards a governmental or private cost-sharing agreement for the purpose of augmenting or improving the quality of services and amenities normally provided by governmental agencies; (iii) Any assessment, tax, fee, levy, or charge allocable to or measured by the area of the Premises or the Rent payable hereunder, including, without limitation, any business or gross income tax or excise tax with respect to the receipt of such rent, or upon or with respect to the possession, leasing, operating, management, maintenance, alteration, repair, use or occupancy

 

-11-

Hellyer Oaks Technology Park

Iridex Corporation

 


 

by Tenant of the Premises, or any portion thereof; and (iv) Any assessment, tax, fee, levy or charge, upon this transaction or any document to which Tenant is a party, creating or transferring an interest or an estate in the Premises or the improvements thereon.

4.2.5.3 If Tax Expenses for any period during the Lease Term or any extension thereof are increased after payment thereof for any reason, including, without limitation, error or reassessment by applicable governmental or municipal authorities, Tenant shall pay Landlord upon demand Tenant's Share of any such increased Tax Expenses. Notwithstanding anything to the contrary contained in this Section 4.2.5 (except as set forth in Section 4.2.5.1, above), there shall be excluded from Tax Expenses (i) all excess profits taxes, franchise taxes, gift taxes, capital stock taxes, inheritance and succession taxes, estate taxes, federal and state income taxes, and other taxes to the extent applicable to Landlord's general or net income (as opposed to rents, receipts or income attributable to operations at the Project), (ii) any items included as Operating Expenses, and (iii) any items paid by Tenant under Section 4.5 of this Lease.

4.2.6 “Tenant’s Share” shall mean the percentage set forth in Section 6 of the Summary.

4.3 Allocations.

4.3.1 Method of Allocation. The parties acknowledge that, notwithstanding any contrary provision contained in the Lease, the Building is a part of a multi-building project and that the costs and expenses incurred in connection with the Project (i.e., the Operating Expenses and Tax Expenses) should be shared between the tenants of the Building and the tenants of the Adjacent Building. Accordingly, Operating Expenses and Tax Expenses are determined annually for the Property as a whole, and a portion of the Operating Expenses and Tax Expenses, which portions shall be determined by Landlord on an equitable basis, shall be allocated to the tenants of the Building (as opposed to the tenants of the Adjacent Building) and such portion shall be the Operating Expenses and Tax Expenses for purposes of this Lease. Such portion of Operating Expenses and Tax Expenses allocated to the tenants of the Building shall include all Operating Expenses and Tax Expenses attributable solely to the Building and an equitable portion of the Operating Expenses and Tax Expenses attributable to the Project as a whole.

4.3.2 Cost Pools. Landlord shall have the right, from time to time, to equitably allocate some or all of the Direct Expenses for the Project among different portions or occupants of the Project (the “Cost Pools” ), in Landlord's reasonable discretion. Such Cost Pools may include, but shall not be limited to, the office space tenants of a building of the Project or of the Project, and the retail space tenants of a building of the Project or of the Project. The Direct Expenses within each such Cost Pool shall be allocated and charged to the tenants within such Cost Pool in an equitable manner.

4.4 Calculation and Payment of Additional Rent. Tenant shall pay to Landlord, in the manner set forth in Section 4.4.1, below, and as Additional Rent, Tenant's Share of Direct Expenses for each Expense Year.

4.4.1 Statement of Actual Direct Expenses and Payment by Tenant. Landlord shall endeavor to give to Tenant following the end of each Expense Year, a statement (the “Statement”) which shall state in general major categories the Direct Expenses incurred or accrued for such preceding Expense Year, and which shall indicate the amount of Tenant's Share of Direct Expenses. Upon receipt of the Statement for each Expense Year commencing or ending during the Lease Term, Tenant shall pay, within thirty (30) days after receipt of the Statement, the full amount of Tenant's Share of Direct Expenses for such Expense Year, less the amounts, if any, paid during such Expense Year as "Estimated Direct Expenses," as that term is defined in Section 4.4.2, below, and if Tenant paid more as Estimated Direct Expenses than the actual Tenant's Share of Direct Expenses (an “Excess”), Tenant shall receive a credit in the amount of such Excess against Rent next due under this Lease. The failure of Landlord to timely furnish the Statement for any Expense Year shall not prejudice Landlord or Tenant from enforcing its rights under this Article 4. Even though the Lease Term has expired and Tenant has vacated the Premises, when the final determination is made of Tenant's Share of Direct Expenses for the Expense Year in which this Lease terminates, if Tenant's Share of Direct Expenses is greater than the amount of Estimated Direct Expenses previously paid by Tenant to Landlord, Tenant shall, within thirty (30) days after receipt of the Statement, pay to Landlord such amount, and if Tenant paid more as Estimated Direct Expenses than the actual Tenant's Share of Direct Expenses (again, an Excess), Landlord shall, within thirty (30) days, deliver a check payable to Tenant in the amount of such Excess. The provisions of this Section 4.4.1 shall survive the expiration or earlier termination of the Lease Term.

 

-12-

Hellyer Oaks Technology Park

Iridex Corporation

 


 

4.4.2 Statement of Estimated Direct Expenses. In addition, Landlord shall endeavor to give Tenant a yearly expense estimate statement (the “Estimate Statement”) which shall set forth in general major categories Landlord's reasonable estimate (the “Estimate”) of what the total amount of Direct Expenses for the then-current Expense Year shall be and the estimated Tenant's Share of Direct Expenses (the “Estimated Direct Expenses”). Landlord shall use commercially reasonable efforts to deliver such Estimate Statement to Tenant on or before May 1 following the end of the Expense Year to which such Estimate Statement relates. The failure of Landlord to timely furnish the Estimate Statement for any Expense Year shall not preclude Landlord from enforcing its rights to collect any Estimated Direct Expenses under this Article 4, nor shall Landlord be prohibited from revising any Estimate Statement or Estimated Direct Expenses theretofore delivered to the extent necessary. Thereafter, Tenant shall pay, within thirty (30) days after receipt of the Estimate Statement, a fraction of the Estimated Direct Expenses for the then-current Expense Year (reduced by any amounts paid pursuant to the second to last sentence of this Section 4.4.2). Such fraction shall have as its numerator the number of months which have elapsed in such current Expense Year, including the month of such payment, and twelve (12) as its denominator. Until a new Estimate Statement is furnished (which Landlord shall have the right to deliver to Tenant at any time), Tenant shall pay monthly, with the monthly Base Rent installments, an amount equal to one-twelfth (1/12) of the total Estimated Direct Expenses set forth in the previous Estimate Statement delivered by Landlord to Tenant.

4.5 Taxes and Other Charges for Which Tenant Is Directly Responsible.

4.5.1 Tenant shall be liable for and shall pay ten (10) days before delinquency, taxes levied against Tenant's equipment, furniture, fixtures and any other personal property located in or about the Premises. If any such taxes on Tenant's equipment, furniture, fixtures and any other personal property are levied against Landlord or Landlord's property or if the assessed value of Landlord's property is increased by the inclusion therein of a value placed upon such equipment, furniture, fixtures or any other personal property and if Landlord pays the taxes based upon such increased assessment, which Landlord shall have the right to do regardless of the validity thereof but only under proper protest if requested by Tenant, Tenant shall upon demand repay to Landlord the taxes so levied against Landlord or the proportion of such taxes resulting from such increase in the assessment, as the case may be.

4.5.2 If the tenant improvements in the Premises, whether installed and/or paid for by Landlord or Tenant and whether or not affixed to the real property so as to become a part thereof, are assessed for real property tax purposes at a valuation higher than the valuation at which tenant improvements conforming to Landlord's "building standard" in other space in the Building are assessed, then the Tax Expenses levied against Landlord or the property by reason of such excess assessed valuation shall be deemed to be taxes levied against personal property of Tenant and shall be governed by the provisions of Section 4.5.1, above.

4.5.3 Notwithstanding any contrary provision herein, Tenant shall pay prior to delinquency any (i) rent tax or sales tax, gross receipts tax, service tax, transfer tax or value added tax, or any other applicable tax on the rent or services herein or otherwise respecting this Lease, (ii) taxes assessed upon or with respect to the possession, leasing, operation, management, maintenance, alteration, repair, use or occupancy by Tenant of the Premises or any portion of the Project, including the parking facility servicing the Project and taxes or assessments due to any type of ballot measure, including an initiative adopted by the voters or local agency, or a state proposition approved by the voters; or (iii) taxes assessed upon this transaction or any document to which Tenant is a party creating or transferring an interest or an estate in the Premises.

4.6 Landlord's Books and Records. Upon Tenant's written request (an "Audit Request") given not more than ninety (90) days after Tenant's receipt of a Statement for a particular Expense Year, and provided that Tenant is not then in default under this Lease, Landlord shall furnish Tenant with such reasonable supporting documentation in connection with said Direct Expenses. Landlord shall provide said information to Tenant within sixty (60) days after Tenant's written request therefor. Within sixty (60) days after receipt of such information by Tenant (the "Review Period"), if Tenant disputes the amount of Direct Expenses set forth in the Statement, an independent Certified Public Accountant (which accountant (A) is a Certified Public Accountant, (B) is a member of a nationally recognized accounting firm, and (C) is not working on a contingency fee basis), designated and paid for by Tenant, may, after reasonable notice to Landlord and at reasonable times, inspect Landlord's records with respect to the Statement at Landlord's offices, provided that Tenant is not then in default under this Lease and Tenant has paid all amounts required to be paid under the applicable Estimate Statement and Statement, as the case may be. In connection with such inspection, Tenant and Tenant's agents must agree in advance to follow Landlord's reasonable

 

-13-

Hellyer Oaks Technology Park

Iridex Corporation

 


 

rules and procedures regarding inspections of Landlord's records, and shall execute a commercially reasonable confidentiality agreement regarding such inspection. Tenant's failure to dispute the amount of Direct Expenses set forth in any Statement within the Review Period shall be deemed to be Tenant's approval of such Statement and Tenant, thereafter, waives the right or ability to dispute the amounts set forth in such Statement. If after such inspection, Tenant still disputes such Additional Rent, a determination as to the proper amount shall be made, at Tenant's expense, by an independent Certified Public Accountant (the "Accountant") selected by Landlord and subject to Tenant's reasonable approval; provided that if such determination by the Accountant proves that Direct Expenses were overstated by more than five percent (5%), then the cost of the Accountant and the cost of such determination shall be paid for by Landlord. Tenant hereby acknowledges that Tenant's sole right to inspect Landlord's books and records and to contest the amount of Direct Expenses payable by Tenant shall be as set forth in this Section 4.6 and in no event shall Tenant have the right to inspect Landlord's books and records and/or contest the amount of Direct Expenses payable by Tenant more than one (1) time for any Expense Year (and only for the prior Expense Year), and Tenant hereby waives any and all other rights pursuant to applicable law to inspect such books and records and/or to contest the amount of Direct Expenses payable by Tenant.

SECTION 5

USE OF PREMISES

5.1 Permitted Use. Tenant shall use the Premises solely for the Permitted Use set forth in Section 7 of the Summary and Tenant shall not use or permit the Premises or the Project to be used for any other purpose or purposes whatsoever without the prior written consent of Landlord, which may be withheld in Landlord's sole discretion.

5.2 Prohibited Uses. Tenant further covenants and agrees that Tenant shall not use, or suffer or permit any person or persons to use, the Premises or any part thereof for any use or purpose contrary to the provisions of the Rules and Regulations set forth in Exhibit D, attached hereto, or in violation of the laws of the United States of America, the State of California, the ordinances, regulations or requirements of the local municipal or county governing body or other lawful authorities having jurisdiction over the Project, including, without limitation, any such laws, ordinances, regulations or requirements relating to hazardous materials or substances, as those terms are defined by applicable laws now or hereafter in effect. Tenant shall not do or permit anything to be done in or about the Premises which will in any way damage the reputation of the Project or obstruct or interfere with the rights of other tenants or occupants of the Building, or injure or annoy them or use or allow the Premises to be used for any improper, unlawful or objectionable purpose, nor shall Tenant cause, maintain or permit any nuisance in, on or about the Premises. Tenant shall comply with, and Tenant's rights and obligations under the Lease and Tenant's use of the Premises shall be subject and subordinate to, all recorded easements, covenants, conditions, and restrictions now or hereafter affecting the Project.

SECTION 6

SERVICES AND UTILITIES

6.1 Standard Tenant Services. Landlord shall provide the following services on all days (unless otherwise stated below) during the Lease Term.

6.1.1 Subject to limitations imposed by all governmental rules, regulations and guidelines applicable thereto, Landlord shall provide heating and air conditioning (“HVAC”) when necessary for normal comfort for normal office use in the Premises from 7:00 A.M. to 6:00 P.M. Monday through Friday (collectively, the “Building Hours”), except for the date of observation of New Year's Day, Independence Day, Labor Day, Memorial Day, Thanksgiving Day, Christmas Day and, at Landlord's discretion, other locally or nationally recognized holidays which are observed by other buildings comparable to and in the vicinity of the Building (collectively, the “Holidays”). Notwithstanding the foregoing, Tenant shall have control over the hours of operation of the HVAC serving the Premises, and the HVAC for the Premises may be operated at such times and for such durations as Tenant determines, subject to limitations imposed by all governmental rules, regulations and guidelines applicable thereto.

 

-14-

Hellyer Oaks Technology Park

Iridex Corporation

 


 

6.1.2 Landlord shall provide adequate electrical wiring and facilities for connection to Tenant's lighting fixtures and incidental use equipment, provided that (i) the connected electrical load of the incidental use equipment does not exceed an average of three (3) watts per rentable square foot of the Premises during Building Hours, calculated on a monthly basis, and the electricity so furnished for incidental use equipment will be at a nominal one hundred twenty (120) volts and no electrical circuit for the supply of such incidental use equipment will require a current capacity exceeding twenty (20) amperes, and (ii) the connected electrical load of Tenant's lighting fixtures does not exceed an average of one (1) watt per rentable square foot of the Premises during Building Hours, calculated on a monthly basis, and the electricity so furnished for Tenant's lighting will be at a nominal two hundred seventy-seven (277) volts, which electrical usage shall be subject to applicable laws and regulations. Subject to the foregoing limitations regarding the electrical wiring and facilities to be provided by Landlord, Landlord shall only provide electricity for Tenant's lighting fixtures during the Building Hours, excluding Holidays. Tenant shall bear the cost of replacement of lamps, starters and ballasts for non-Building standard lighting fixtures within the Premises. Notwithstanding any provision to the contrary contained in this Lease, Tenant shall pay directly to the utility company pursuant to the utility company's separate meters (or to Landlord in the event Landlord provides submeters instead of the utility company's meters), the cost of all electricity provided to and/or consumed in the Premises (including normal and excess consumption and including the cost of electricity to operate the HVAC air handlers), which electricity shall be separately metered (as described above or otherwise equitably allocated and directly charged by Landlord to Tenant and other tenants of the Building). Tenant shall pay such cost (including the cost of such meters or submeters) within ten (10) days after demand and as Additional Rent under this Lease (and not as part of the Operating Expenses).

6.1.3 Landlord shall provide city water from the regular Building outlets for drinking, lavatory and toilet purposes in the Building Common Areas.

6.1.4 Landlord shall provide nonexclusive, non-attended automatic passenger elevator service during the Building Hours, shall have one elevator available at all other times, including on the Holidays.

6.1.5 Landlord shall provide nonexclusive freight elevator service subject to scheduling by Landlord.

Tenant shall cooperate fully with Landlord at all times and abide by all regulations and requirements that Landlord may reasonably prescribe for the proper functioning and protection of the HVAC, electrical, mechanical and plumbing systems.

6.2 Overstandard Tenant Use. Tenant shall not, without Landlord's prior written consent, use heat-generating machines, machines other than normal fractional horsepower office machines, or equipment or lighting other than Building standard lights in the Premises, which may affect the temperature otherwise maintained by the air conditioning system or increase the water normally furnished for the Premises by Landlord pursuant to the terms of Section 6.1 of this Lease. If Tenant uses water, electricity, heat or air conditioning in excess of that supplied by Landlord pursuant to Section 6.1 of this Lease, Tenant shall pay to Landlord, upon billing, the actual cost of such excess consumption, the cost of the installation, operation, and maintenance of equipment which is installed in order to supply such excess consumption, and the cost of the increased wear and tear on existing equipment caused by such excess consumption; and Landlord may install devices to separately meter any increased use and in such event Tenant shall pay the increased cost directly to Landlord, on demand, at the rates charged by the public utility company furnishing the same, including the cost of installing, testing and maintaining of such additional metering devices. Tenant's use of electricity shall never exceed the capacity of the feeders to the Project or the risers or wiring installation, and subject to the terms of Section 29.31, below, Tenant shall not install or use or permit the installation or use of any computer or electronic data processing equipment in the Premises, without the prior written consent of Landlord. If Tenant desires to use heat, ventilation or air conditioning during hours other than those for which Landlord is obligated to supply such utilities pursuant to the terms of Section 6.1 of this Lease, Tenant shall give Landlord such prior notice, if any, as Landlord shall from time to time establish as appropriate, of Tenant's desired use in order to supply such utilities, and Landlord shall supply such utilities to Tenant at such hourly cost per zone to Tenant (which shall be treated as Additional Rent) as Landlord shall from time to time establish. Notwithstanding any provision to the contrary contained in this Lease, Tenant shall promptly pay to Landlord, Landlord's standard charge for any services provided to Tenant which Landlord is not specifically obligated to provide to Tenant pursuant to the terms of this Lease.

 

-15-

Hellyer Oaks Technology Park

Iridex Corporation

 


 

6.3 Interruption of Use. Tenant agrees that Landlord shall not be liable for damages, by abatement of Rent (subject to Section 6.4 below) or otherwise, for failure to furnish or delay in furnishing any service (including telephone and telecommunication services), or for any diminution in the quality or quantity thereof, when such failure or delay or diminution is occasioned, in whole or in part, by breakage, repairs, replacements, or improvements, by any strike, lockout or other labor trouble, by inability to secure electricity, gas, water, or other fuel at the Building or Project after reasonable effort to do so, by any riot or other dangerous condition, emergency, accident or casualty whatsoever, by act or default of Tenant or other parties, or by any other cause beyond Landlord's reasonable control; and such failures or delays or diminution shall never be deemed to constitute an eviction or disturbance of Tenant's use and possession of the Premises or, subject to Section 6.4 below, relieve Tenant from paying Rent or performing any of its obligations under this Lease. Furthermore, Landlord shall not be liable under any circumstances for a loss of, or injury to, property or for injury to, or interference with, Tenant's business, including, without limitation, loss of profits, however occurring, through or in connection with or incidental to a failure to furnish any of the services or utilities as set forth in this Article 6.

6.4 Abatement Event. If (i) Landlord fails to provide services required of Landlord under Section 6.1 above, and (ii) such failure causes all or a material portion of the Premises to be untenantable by Tenant and Tenant actually ceases to use all or a material portion of the Premises, (iii) such failure is reasonably within Landlord's ability to cure, and (iv) such failure is not the result of the acts and/or omissions of Tenant and/or other Tenant Parties, then in order to be entitled to receive the benefits of this Section 6.4, Tenant must give Landlord notice (the “Initial Notice”), specifying such failure to perform by Landlord (the “Abatement Event”). If Landlord has not commenced to cure such Abatement Event within five (5) business days after the receipt of the Initial Notice and is not otherwise excused from such performance by this Lease, then prior to any abatement, Tenant must deliver an additional notice to Landlord (the “Additional Notice”), specifying such Abatement Event and Tenant's intention to abate the payment of Rent under this Lease. If Landlord does not commence to cure such Abatement Event within five (5) business days of receipt of the Additional Notice and thereafter diligently pursue the cure to completion, Tenant may, upon written notice to Landlord, immediately abate Base Rent and Tenant's Share of Operating Expenses and Tenant's Share of Tax Expenses payable under this Lease for that portion of the Premises rendered untenantable and not actually used by Tenant, for the period beginning on the date five (5) business days after the Initial Notice to the earlier of the date Landlord cures such Abatement Event or the date Tenant recommences the use of such portion of the Premises. If Tenant fails to immediately provide the Additional Notice and commence applying any abatement of Base Rent and Tenant's Share of Operating Expenses and Tenant's Share of Tax Expenses payable under this Lease for that portion of the Premises rendered untenantable and not actually used by Tenant, then Tenant's right to abate Base Rent and Tenant's Share of Operating Expenses and Tenant's Share of Tax Expenses shall be of no further force or effect with respect to the applicable Abatement Event. Such right to abate Rent shall be Tenant's sole and exclusive remedy at law or in equity for an Abatement Event. Except as provided in this Section 6.4, nothing contained herein shall be interpreted to mean that Tenant is excused from paying Rent due hereunder.

SECTION 7

REPAIRS

Tenant shall, at Tenant's own expense, keep the Premises, including all improvements, fixtures, furnishings, and systems and equipment therein (including, without limitation, (a) plumbing fixtures and equipment such as dishwashers, garbage disposals, and insta-hot dispensers, and (b) all equipment located in the Premises that is utilized to supply supplemental HVAC to the Premises), and the floor or floors of the Building on which the Premises are located, in good order, repair and condition at all times during the Lease Term. Tenant shall, at Tenant's sole cost and expense, be responsible for hiring its own janitorial service for the Premises, subject to Landlord's reasonable approval. Tenant shall not cause any unnecessary labor by carelessness or indifference to the good order and cleanliness of the Premises, and if Tenant fails to provide at least weekly janitorial service for the Premises, Landlord shall have the right to do so, at Tenant's sole cost, and Tenant shall reimburse Landlord for such cost within ten (10) days of billing. In addition, Tenant shall, at Tenant's own expense, but under the supervision and subject to the prior approval of Landlord, and within any reasonable period of time specified by Landlord, promptly and adequately repair all damage to the Premises and replace or repair all damaged, broken, or worn fixtures and appurtenances, except for damage caused by ordinary wear and tear or beyond the reasonable control of Tenant; provided however, that, at Landlord's option, or if Tenant fails to make such repairs, Landlord may, but need not, make such repairs and replacements, and Tenant shall pay Landlord the cost thereof, including a percentage of the cost thereof (to be uniformly established for

 

-16-

Hellyer Oaks Technology Park

Iridex Corporation

 


 

the Building and/or the Project) sufficient to reimburse Landlord for all overhead, general conditions, fees and other costs or expenses arising from Landlord's involvement with such repairs and replacements forthwith upon being billed for same. Notwithstanding the foregoing, Landlord shall be responsible for repairs to the exterior walls, foundation and roof of the Building, the structural portions of the floors of the Building, and the base building systems and equipment of the Building, except to the extent that such repairs are required due to the negligence or willful misconduct of Tenant; provided, however, that if such repairs are due to the negligence or willful misconduct of Tenant, Landlord shall nevertheless make such repairs at Tenant's expense, or, if covered by Landlord's insurance, Tenant shall only be obligated to pay any deductible in connection therewith. Landlord may, but shall not be required to, enter the Premises at all reasonable times to make such repairs, alterations, improvements or additions to the Premises or to the Project or to any equipment located in the Project as Landlord shall desire or deem necessary or as Landlord may be required to do by governmental or quasi-governmental authority or court order or decree. Tenant hereby waives and releases any and all rights under and benefits of subsection 1 of Section 1932 and Sections 1941 and 1942 of the California Civil Code or under any similar law, statute, or ordinance now or hereafter in effect.

SECTION 8

ADDITIONS AND ALTERATIONS

8.1 Landlord's Consent to Alterations. Tenant may not make any improvements, alterations, additions or changes to the Premises or any mechanical, plumbing or HVAC facilities or systems pertaining to the Premises (collectively, the “Alterations”) without first procuring the prior written consent of Landlord to such Alterations, which consent shall be requested by Tenant not less than thirty (30) days prior to the commencement thereof, and which consent shall not be unreasonably withheld by Landlord, provided it shall be deemed reasonable for Landlord to withhold its consent to any Alteration which adversely affects the structural portions or the systems or equipment of the Building or is visible from the exterior of the Building. Notwithstanding the foregoing, Tenant shall be permitted to make Alterations following ten (10) business days' notice to Landlord, but without Landlord's prior consent, to the extent that such Alterations are decorative only (i.e., installation of carpeting or painting of the Premises). The construction of the initial improvements to the Premises shall be governed by the terms of the Tenant Work Letter and not the terms of this Article 8.

8.2 Manner of Construction. Landlord may impose, as a condition of its consent to any and all Alterations or repairs of the Premises or about the Premises, such requirements as Landlord in its reasonable discretion may deem desirable, including, but not limited to, the requirement that Tenant utilize for such purposes only contractors, subcontractors, materials, mechanics and materialmen selected by Tenant from a list provided and approved by Landlord, the requirement that upon Landlord's request, Tenant shall, at Tenant's expense, remove such Alterations upon the expiration or any early termination of the Lease Term. Tenant shall construct such Alterations and perform such repairs in a good and workmanlike manner, in conformance with any and all applicable federal, state, county or municipal laws, rules and regulations and pursuant to a valid building permit, issued by the city in which the Building is located (or other applicable governmental authority), all in conformance with Landlord's construction rules and regulations; provided, however, that prior to commencing to construct any Alteration, Tenant shall meet with Landlord to discuss Landlord's design parameters and code compliance issues. In the event Tenant performs any Alterations in the Premises which require or give rise to governmentally required changes to the "Base Building," as that term is defined below, then Landlord shall, at Tenant's expense, make such changes to the Base Building. The "Base Building" shall include the structural portions of the Building, and the public restrooms, elevators, exit stairwells and the systems and equipment located in the internal core of the Building on the floor or floors on which the Premises are located. In performing the work of any such Alterations, Tenant shall have the work performed in such manner so as not to obstruct access to the Project or any portion thereof, by any other tenant of the Project, and so as not to obstruct the business of Landlord or other tenants in the Project. Tenant shall not use (and upon notice from Landlord shall cease using) contractors, services, workmen, labor, materials or equipment that, in Landlord's reasonable judgment, would disturb labor harmony with the workforce or trades engaged in performing other work, labor or services in or about the Building or the Common Areas. In addition to Tenant's obligations under Article 9 of this Lease, upon completion of any Alterations, Tenant agrees to cause a Notice of Completion to be recorded in the office of the Recorder of the County of Santa Clara in accordance with Section 8182 of the Civil Code of the State of California or any successor statute, and Tenant shall deliver to the Project construction manager a reproducible copy of the "as built" drawings of the Alterations as well as all permits, approvals and other documents issued by any governmental agency in connection with the Alterations.

 

-17-

Hellyer Oaks Technology Park

Iridex Corporation

 


 

8.3 Payment for Improvements. If payment is made by Tenant directly to contractors, Tenant shall (i) comply with Landlord's requirements for final lien releases and waivers in connection with Tenant's payment for work to contractors, and (ii) sign Landlord's standard contractor's rules and regulations. If Tenant orders any work directly from Landlord, Tenant shall pay to Landlord an amount equal to five percent (5%) of the cost of such work to compensate Landlord for all overhead, general conditions, fees and other costs and expenses arising from Landlord's involvement with such work. If Tenant does not order any work directly from Landlord, Tenant shall reimburse Landlord for Landlord's reasonable, actual, out-of-pocket costs and expenses actually incurred in connection with Landlord's review of such work. At Landlord's option, prior to the commencement of construction of any Alteration, Tenant shall provide Landlord with the reasonably anticipated cost thereof, which Landlord shall disburse during construction pursuant to Landlord's standard, commercially reasonable disbursement procedure.

8.4 Construction Insurance. In addition to the requirements of Article 10 of this Lease, in the event that Tenant makes any Alterations, prior to the commencement of such Alterations, Tenant shall provide Landlord with evidence that Tenant carries "Builder's All Risk" insurance in an amount approved by Landlord covering the construction of such Alterations, and such other insurance as Landlord may reasonably require, it being understood and agreed that all of such Alterations shall be insured by Tenant pursuant to Article 10 of this Lease immediately upon completion thereof. In addition, Tenant's contractors and subcontractors shall be required to carry Commercial General Liability Insurance in an amount approved by Landlord and otherwise in accordance with the requirements of Article 10 of this Lease. Landlord may, in its discretion, require Tenant to obtain a lien and completion bond or some alternate form of security satisfactory to Landlord in an amount sufficient to ensure the lien-free completion of such Alterations and naming Landlord as a co-obligee.

8.5 Landlord's Property. All Alterations, improvements, fixtures, equipment and/or appurtenances which may be installed or placed in or about the Premises, from time to time, shall be at the sole cost of Tenant and shall be and become the property of Landlord, except that Tenant may remove any Alterations, improvements, fixtures and/or equipment which Tenant can substantiate to Landlord have not been paid for with any Tenant improvement allowance funds provided to Tenant by Landlord, provided Tenant repairs any damage to the Premises and Building caused by such removal and returns the affected portion of the Premises to a building standard tenant improved condition as determined by Landlord. Furthermore, Landlord may, by written notice to Tenant (i) prior to the end of the Lease Term, or given following any earlier termination of this Lease, or, (ii) in the event Tenant specifically requests it with its request for Landlord’s consent to any particular Alteration, at the time Landlord consents to such Alteration, require Tenant, at Tenant's expense, to remove any Alterations and/or improvements and/or systems and equipment within the Premises and to repair any damage to the Premises and Building caused by such removal and return the affected portion of the Premises to a building standard tenant improved condition as determined by Landlord; provided, however, that Landlord shall not require Tenant to remove any Tenant Improvements constructed pursuant to the Tenant Work Letter attached hereto as Exhibit B. If Tenant fails to complete such removal and/or to repair any damage caused by the removal of any Alterations and/or improvements and/or systems and equipment in the Premises and return the affected portion of the Premises to a building standard tenant improved condition as reasonably determined by Landlord, Landlord may do so and may charge the cost thereof to Tenant. Tenant hereby protects, defends, indemnifies and holds Landlord harmless from any liability, cost, obligation, expense or claim of lien in any manner relating to the installation, placement, removal or financing of any such Alterations, improvements, fixtures and/or equipment in, on or about the Premises, which obligations of Tenant shall survive the expiration or earlier termination of this Lease.

8.6 Rooftop Rights. Tenant is hereby granted, subject Article 8 of this Lease and such other reasonable requirements as shall be imposed by Landlord, the right to install, secure, maintain, replace and operate on the roof (the "Roof") of the Building in an area designated by Landlord in its sole discretion (the "Roof Space" ), the Rooftop Equipment (defined below). "Rooftop Equipment" shall mean one or more microwave transmitters-receivers, satellite dishes antenna and/or similar equipment for transmitting and/or receiving data, signals or other communications (collectively, "Telecommunications Equipment") and/or other equipment acceptable to Landlord in its reasonable discretion. The Rooftop Equipment shall be of a weight, height and width reasonably acceptable to Landlord and as reasonably necessary for Tenant's use of the Premises and the conduct of its business therein. In addition, also subject to Article 8, Tenant shall have the right to install, at Tenant's sole cost and expense, cables, pipes and/or conduits leading from the Rooftop Equipment to the Premises and in a location, manner, material and size as shall be reasonably approved by Landlord. Landlord shall have the right to require that Tenant install screening around

 

-18-

Hellyer Oaks Technology Park

Iridex Corporation

 


 

the Rooftop Equipment. Tenant shall not be obligated to pay any additional Base Rent on account of Tenant's use of the Roof Space.

8.6.1 The Rooftop Equipment shall be used solely and exclusively by Tenant in connection with its use and occupancy of the Premises, and any Telecommunications Equipment shall be used solely and exclusively by Tenant for communication with other offices of Tenant and with clients and vendors of Tenant or for receipt of television, cable or satellite programming. The transmission or receipt of signals for any other purpose or by or for any other person or entity shall constitute a prohibited use of the Rooftop Equipment and a default under this Lease. Tenant shall diligently service, repair, paint and maintain the Rooftop Equipment, including, without limitation, all electrical wires, guide wires, pipes and conduits related thereto. No signs, whether temporary or permanent, shall be affixed, installed or attached to the Rooftop Equipment or the Roof other than those required by Applicable Laws (as defined below). All signs required, if any, and the location thereof, shall be first approved in writing by Landlord, which approval shall not be unreasonably withheld by Landlord. In the performance of any installation, alteration, repair, maintenance, removal and/or any other work with respect to the Roof Space or the Rooftop Equipment, Tenant shall comply with all of the applicable provisions of this Lease, including, without limitation, those set forth in the Tenant Work Letter, this Article 8, and Article 10 of this Lease, and such provisions of this Lease shall be applicable to the Roof Space as if the Roof Space was part of the Premises.

8.6.2 Any and all taxes, filing fees, charges or license fees imposed upon Landlord by virtue of the existence and/or use of the Rooftop Equipment (including those shown to be specifically related to any increase in the assessed valuation of the Building attributable to the Rooftop Equipment), whether imposed by any local, state and/or federal government or any agency thereof, shall be exclusively borne by Tenant. Landlord agrees to cooperate reasonably with Tenant in any necessary applications for any necessary license or permits provided Landlord incurs no expense or liability in so doing.

8.6.3 Between the hours of 8:00 a.m. and 5:00 p.m. and upon reasonable advance notice to Landlord, Monday through Friday (exclusive of Holidays), Tenant may have access to the Roof Space for the sole purpose of servicing and maintaining the Rooftop Equipment. Landlord shall have the right (in its sole discretion) to have its representative(s) accompany Tenant whenever it services or maintains the Rooftop Equipment. At all other times, Landlord may keep the entrances to the Roof Space locked. Tenant shall not have any tools and/or materials stored in the Roof Space, and Tenant’s employees and independent contractors shall close and lock the entrance door to the Roof when leaving the same. If Tenant shall require access to any of the Roof Space at times other than those specified in the first sentence of this Section 8..3, then except in the case of an emergency, Tenant shall give Landlord at least two (2) full business days prior written notice of such requirement and shall pay all reasonable costs incurred by Landlord in connection therewith, including, without limitation, any overtime compensation paid to Building employees or any independent contractors of Landlord.

8.6.4 Upon the expiration or earlier termination of the Lease Term, Tenant shall remove the Rooftop Equipment from the Roof Space and the Building, and restore the Roof Space and the Building to the condition existing prior to such installation. Throughout the duration of this Lease, Tenant shall inspect the Rooftop Equipment at least once a month. Tenant shall be solely responsible for preserving the water tight integrity of the Roof as may be caused by, or relates to, the installation, maintenance, operation and repair of the Rooftop Equipment. Tenant shall be responsible for all leaks in the Roof arising out of or connected to its installation. Tenant's Rooftop Equipment shall not exceed the applicable load-bearing capacity of the Roof Space.

8.6.5 If, at any time during the Lease Term, Landlord, in its judgment, shall determine that it is necessary to move the Rooftop Equipment to another area of the Roof Space, then Landlord may give notice thereof to Tenant (which notice shall have annexed thereto a plan on which such other area of the Roof Space (the "Substitute Space") shall be substantially identified by hatching or otherwise). The Substitute Space with respect to the Rooftop Equipment shall not be located in an area of the Roof in which the Rooftop Equipment’s reception would differ in a materially adverse way from the Rooftop Equipment’s reception in the initial Roof Space. Within thirty (30) days of receipt of Landlord’s notice (or, if a governmental permit is required to be obtained for installation of the Rooftop Equipment on the Substitute Space, then, within thirty (30) days of the obtaining of such permit (which Tenant shall make prompt application for, with Landlord’s reasonable cooperation)), Landlord, at its sole cost shall move the Rooftop Equipment to the Substitute Space which shall then become the Roof Space hereunder and the original Roof Space shall be deleted from the coverage of this Lease.

 

-19-

Hellyer Oaks Technology Park

Iridex Corporation

 


 

8.6.6 Tenant's operation or use of the Rooftop Equipment shall not prevent or interfere with the operation or use of any equipment of Landlord. If, at any time during the Lease Term, Landlord shall reasonably determine that the Rooftop Equipment causes interference with equipment of Landlord or any other tenant of the Project (provided that, so long as Tenant continues to lease the entirety of the Building, no other Tenant of the Project shall have the right to install its equipment on the Roof of the Building (as opposed to the roof of another building in the Project)), then Landlord may so notify Tenant, and Landlord may require Tenant to replace the Rooftop Equipment with other equipment which would not cause such interference. Tenant, within thirty (30) days of receipt of such notice or, if a government permit is required in connection with the replacement of such Rooftop Equipment, then within thirty (30) days of the obtaining of such permit (which Tenant shall make prompt application for, with Landlord’s cooperation but at no cost to Landlord), shall replace the Rooftop Equipment with the new non-interfering Replacement which shall then be deemed to be the Rooftop Equipment hereunder.

8.6.7 Tenant agrees that Landlord has made no warranties or representations as to the condition or suitability of the Roof Space or the Building (or the electricity available to the Roof Space) for the installation, use, maintenance or operation of the Rooftop Equipment, and Tenant agrees to accept same in its "as is" condition and without any work or alterations to be made by Landlord.

SECTION 9

COVENANT AGAINST LIENS

Tenant shall keep the Project and Premises free from any liens or encumbrances arising out of the work performed, materials furnished or obligations incurred by or on behalf of Tenant, and shall protect, defend, indemnify and hold Landlord harmless from and against any claims, liabilities, judgments or costs (including, without limitation, reasonable attorneys' fees and costs) arising out of same or in connection therewith. Tenant shall give Landlord notice at least twenty (20) days prior to the commencement of any such work on the Premises (or such additional time as may be necessary under applicable laws) to afford Landlord the opportunity of posting and recording appropriate notices of non-responsibility. Tenant shall remove any such lien or encumbrance by bond or otherwise within ten (10) business days after notice by Landlord, and if Tenant shall fail to do so, Landlord may pay the amount necessary to remove such lien or encumbrance, without being responsible for investigating the validity thereof. The amount so paid shall be deemed Additional Rent under this Lease payable upon demand, without limitation as to other remedies available to Landlord under this Lease. Nothing contained in this Lease shall authorize Tenant to do any act which shall subject Landlord's title to the Building or Premises to any liens or encumbrances whether claimed by operation of law or express or implied contract. Any claim to a lien or encumbrance upon the Building or Premises arising in connection with any such work or respecting the Premises not performed by or at the request of Landlord shall be null and void, or at Landlord's option shall attach only against Tenant's interest in the Premises and shall in all respects be subordinate to Landlord's title to the Project, Building and Premises.

SECTION 10

INSURANCE

10.1 Indemnification and Waiver. Tenant hereby assumes all risk of damage to property or injury to persons in, upon or about the Premises from any cause whatsoever (including, but not limited to, any personal injuries resulting from a slip and fall in, upon or about the Premises) and agrees that Landlord, its partners, subpartners and their respective officers, agents, servants, employees, and independent contractors (collectively, “Landlord Parties”) shall not be liable for, and are hereby released from any responsibility for, any damage either to person or property or resulting from the loss of use thereof, which damage is sustained by Tenant or by other persons claiming through Tenant. Tenant shall indemnify, defend, protect, and hold harmless the Landlord Parties from any and all loss, cost, damage, expense and liability (including without limitation court costs and reasonable attorneys' fees) incurred in connection with or arising from any cause in, on or about the Premises (including, but not limited to, a slip and fall), any acts, omissions or negligence of Tenant or of any person claiming by, through or under Tenant, or of the contractors, agents, servants, employees, invitees, guests or licensees of Tenant or any such person, in, on or about the Project or any breach of the terms of this Lease, either prior to, during, or after the expiration of the Lease Term, provided that the terms of the foregoing indemnity shall not apply to the negligence or willful misconduct of Landlord. Should Landlord be named as a defendant in any suit brought against Tenant in connection with or arising out of

 

-20-

Hellyer Oaks Technology Park

Iridex Corporation

 


 

Tenant's occupancy of the Premises, Tenant shall pay to Landlord its costs and expenses incurred in such suit, including without limitation, its actual professional fees such as reasonable appraisers', accountants' and attorneys' fees. The provisions of this Section 10.1 shall survive the expiration or sooner termination of this Lease with respect to any claims or liability arising in connection with any event occurring prior to such expiration or termination.

10.2 Tenant's Compliance With Landlord's Fire and Casualty Insurance. Tenant shall, at Tenant's expense, comply with all insurance company requirements pertaining to the use of the Premises. If Tenant's conduct or use of the Premises causes any increase in the premium for such insurance policies then Tenant shall reimburse Landlord for any such increase. Tenant, at Tenant's expense, shall comply with all rules, orders, regulations or requirements of the American Insurance Association (formerly the National Board of Fire Underwriters) and with any similar body.

10.3 Tenant's Insurance. Tenant shall maintain the following coverages in the following amounts.

10.3.1 Commercial General Liability Insurance with limits of not less than $1,000,000 per occurrence and $2,000,000 general aggregate, covering bodily injury, property damage, and personal and advertising injury, including contractual liability coverage for Tenant's obligations under this Lease. The general aggregate limit shall apply per location.'

10.3.2 Umbrella (Excess) Liability Insurance with a limit of not less than $5,000,000 per occurrence and in the aggregate, providing coverage excess of the required Commercial General Liability, Business Automobile Liability, and Employer's Liability policies.

10.3.3 Business Automobile Liability Insurance covering all owned, non-owned, and hired vehicles with a combined single limit of not less than $1,000,000 per accident for bodily injury and property damage.

10.3.4 Physical Damage Insurance covering (i) all office furniture, business and trade fixtures, office equipment, free-standing cabinet work, movable partitions, merchandise and all other items of Tenant's property on the Premises installed by, for, or at the expense of Tenant, (ii) the "Tenant Improvements," as that term is defined in the Tenant Work Letter, and any other improvements which exist in the Premises as of the Lease Commencement Date (excluding the Base Building) (the "Original Improvements"), and (iii) all other improvements, alterations and additions to the Premises. Such insurance shall be written on an "all risks" of physical loss or damage basis, for the full replacement cost value (subject to reasonable deductible amounts) new without deduction for depreciation of the covered items and in amounts that meet any co-insurance clauses of the policies of insurance and shall include coverage for damage or other loss caused by fire or other peril including, but not limited to, vandalism and malicious mischief, theft, water damage of any type, including sprinkler leakage, bursting or stoppage of pipes, and explosion, and providing business interruption coverage for a period of one year.

10.3.5 Workers' Compensation and Employer's Liability Insurance in compliance with statutory requirements, with Employer's Liability limits of not less than $1,000,000 per accident, $1,000,000 disease-policy limit, and $1,000,000 disease-each employee.''

10.4 Form of Policies. The minimum limits of policies of insurance required of Tenant under this Lease shall in no event limit the liability of Tenant under this Lease. Such insurance shall (i) name Landlord, and any of their officers, directors, parents, partners, members, affiliated companies, employees and agents, any lender and any other party the Landlord so specifies, as an additional insured, including Landlord's managing agent, if any; (ii) specifically cover the liability assumed by Tenant under this Lease, including, but not limited to, Tenant's obligations under Section 10.1 of this Lease; (iii) be issued by an insurance company having a rating of not less than A-:VII in Best's Insurance Guide or which is otherwise acceptable to Landlord and licensed to do business in the State of California; (iv) be primary and noncontributory insurance as to all claims thereunder and provide that any insurance carried by Landlord is excess and is non-contributing with any insurance requirement of Tenant; (v) be in form and content reasonably acceptable to Landlord; and (vi) provide that said insurance shall not be canceled or coverage changed unless thirty (30) days' prior written notice shall have been given to Landlord and any mortgagee of Landlord. Tenant shall deliver said policy or policies or certificates thereof to Landlord on or before the Lease Commencement Date and at least thirty (30) days before the expiration dates thereof. Further, Landlord shall have the right, from time to time, to request copies of policies of Tenant's insurance required hereunder, which Tenant shall thereafter provide

 

-21-

Hellyer Oaks Technology Park

Iridex Corporation

 


 

within ten (10) business days. In the event Tenant shall fail to procure such insurance, or to deliver such policies or certificate, Landlord may, at its option, procure such policies for the account of Tenant, and the cost thereof shall be paid to Landlord within five (5) days after delivery to Tenant of bills therefor.

10.5 Subrogation. Landlord and Tenant intend that their respective property loss risks shall be borne by reasonable insurance carriers to the extent above provided, and Landlord and Tenant hereby agree to look solely to, and seek recovery only from, their respective insurance carriers in the event of a property loss to the extent that such coverage is agreed to be provided hereunder. The parties each hereby waive all rights and claims against each other for such losses, and waive all rights of subrogation of their respective insurers, provided such waiver of subrogation shall not affect the right to the insured to recover thereunder. The parties agree that their respective insurance policies are now, or shall be, endorsed such that the waiver of subrogation shall not affect the right of the insured to recover thereunder, so long as no material additional premium is charged therefor. Tenant's general liability, auto liability and employer's liability policies shall contain a waiver of subrogation against the Landlord and any of their Officers, Directors, Parents, Partners, Members, Affiliated Companies, Employees and Agents.

10.6 Additional Insurance Obligations. Tenant shall carry and maintain during the entire Lease Term, at Tenant's sole cost and expense, increased amounts of the insurance required to be carried by Tenant pursuant to this Article 10 and such other reasonable types of insurance coverage and in such reasonable amounts covering the Premises and Tenant's operations therein, as may be reasonably requested by Landlord, but in no event in excess of the amounts and types of insurance then being required by landlords of buildings comparable to and in the vicinity of the Building.

SECTION 11

DAMAGE AND DESTRUCTION

11.1 Repair of Damage to Premises by Landlord. Tenant shall promptly notify Landlord of any damage to the Premises resulting from fire or any other casualty ("Casualty"). If the Premises or any Common Areas serving or providing access to the Premises shall be damaged by Casualty, Landlord shall promptly and diligently, subject to reasonable delays for insurance adjustment or other matters beyond Landlord's reasonable control, and subject to all other terms of this Article 11, restore the Base Building and such Common Areas. Such restoration shall be to substantially the same condition of the Base Building and the Common Areas prior to the Casualty, except for modifications required by zoning and building codes and other laws or by the holder of a mortgage on the Building or Project or any other modifications to the Common Areas deemed desirable by Landlord, which are consistent with the character of the Project, provided that access to the Premises and any common restrooms serving the Premises shall not be materially impaired. Upon the occurrence of any damage to the Premises, upon notice (the “Landlord Repair Notice”) to Tenant from Landlord, Tenant shall assign to Landlord (or to any party designated by Landlord) all insurance proceeds payable to Tenant under Tenant's insurance required under Section 10.3 of this Lease, and Landlord shall repair any injury or damage to the Tenant Improvements and the Original Improvements installed in the Premises and shall return such Tenant Improvements and Original Improvements to their original condition; provided that if the cost of such repair by Landlord exceeds the amount of insurance proceeds received by Landlord from Tenant's insurance carrier, as assigned by Tenant, the cost of such repairs shall be paid by Tenant to Landlord prior to Landlord's commencement of repair of the damage. In the event that Landlord does not deliver the Landlord Repair Notice within sixty (60) days following the date the Casualty becomes known to Landlord, Tenant shall, at its sole cost and expense, repair any injury or damage to the Tenant Improvements and the Original Improvements installed in the Premises and shall return such Tenant Improvements and Original Improvements to their original condition. Whether or not Landlord delivers a Landlord Repair Notice, prior to the commencement of construction, Tenant shall submit to Landlord, for Landlord's review and approval, all plans, specifications and working drawings relating thereto, and Landlord shall select the contractors to perform such improvement work. Landlord shall not be liable for any inconvenience or annoyance to Tenant or its visitors, or injury to Tenant's business resulting in any way from such damage or the repair thereof; provided however, that if such Casualty shall have damaged the Premises or Common Areas necessary to Tenant's occupancy, and the Premises are not occupied by Tenant as a result thereof, then during the time and to the extent the Premises are unfit for occupancy, the Rent shall be abated in proportion to the ratio that the amount of rentable square feet of the Premises which is unfit for occupancy for the purposes permitted under this Lease bears to the total rentable square feet of the Premises. In the event that Landlord shall not deliver the Landlord Repair Notice, Tenant's right to rent abatement pursuant to the preceding sentence shall terminate as of the

 

-22-

Hellyer Oaks Technology Park

Iridex Corporation

 


 

date which is reasonably determined by Landlord to be the date Tenant should have completed repairs to the Premises assuming Tenant used reasonable due diligence in connection therewith. Notwithstanding any contrary provision of this Article 11, the parties hereby agree as follows: (i) the closure of the Project, the Building, the Common Areas, or any part thereof to protect public health shall not constitute a Casualty for purposes of this Lease, (ii) Casualty covered by this Article 11 shall require that the physical or structural integrity of the Premises, the Project, the Building, or the Common Areas is degraded as a direct result of such occurrence, and (iii) a Casualty under this Article 11 shall not be deemed to occur merely because Tenant is unable to productively use the Premises in the event that the physical and structural integrity of the Premises is undamaged.

11.2 Landlord's Option to Repair. Notwithstanding the terms of Section 11.1 of this Lease, Landlord may elect not to rebuild and/or restore the Premises, Building and/or Project, and instead terminate this Lease, by notifying Tenant in writing of such termination within sixty (60) days after the date of discovery of the damage, such notice to include a termination date giving Tenant sixty (60) days to vacate the Premises, but Landlord may so elect only if the Building or Project shall be damaged by Casualty, whether or not the Premises are affected, and one or more of the following conditions is present: (i) in Landlord's reasonable judgment, repairs cannot reasonably be completed within one hundred eighty (180) days after the date of discovery of the damage (when such repairs are made without the payment of overtime or other premiums); (ii) the holder of any mortgage on the Building or Project or ground lessor with respect to the Building or Project shall require that the insurance proceeds or any portion thereof be used to retire the mortgage debt, or shall terminate the ground lease, as the case may be; (iii) the damage is not fully covered by Landlord's insurance policies; (iv) Landlord decides to rebuild the Building or Common Areas so that they will be substantially different structurally or architecturally; (v) the damage occurs during the last twelve (12) months of the Lease Term; or (vi) any owner of any other portion of the Project, other than Landlord, does not intend to repair the damage to such portion of the Project; provided, however, that if Landlord does not elect to terminate this Lease pursuant to Landlord's termination right as provided above, and the repairs cannot, in the reasonable opinion of Landlord, be completed within one hundred eighty (180) days after being commenced, Tenant may elect, no earlier than sixty (60) days after the date of the damage and not later than ninety (90) days after the date of such damage, to terminate this Lease by written notice to Landlord effective as of the date specified in the notice, which date shall not be less than thirty (30) days nor more than sixty (60) days after the date such notice is given by Tenant. Notwithstanding the provisions of this Section 11.2, Tenant shall have the right to terminate this Lease under this Section 11.2 only if each of the following conditions is satisfied: (a) the damage to the Project by Casualty was not caused by the gross negligence or intentional act of Tenant or its partners or subpartners and their respective officers, agents, servants, employees, and independent contractors; (b) Tenant is not then in default under this Lease; (c) as a result of the damage, Tenant cannot reasonably conduct business from the Premises; and, (d) as a result of the damage to the Project, Tenant does not occupy or use the Premises at all.

11.3 Waiver of Statutory Provisions. The provisions of this Lease, including this Article 11, constitute an express agreement between Landlord and Tenant with respect to any and all damage to, or destruction of, all or any part of the Premises, the Building or the Project, and any statute or regulation of the State of California, including, without limitation, Sections 1932(2) and 1933(4) of the California Civil Code, with respect to any rights or obligations concerning damage or destruction in the absence of an express agreement between the parties, and any other statute or regulation, now or hereafter in effect, shall have no application to this Lease or any damage or destruction to all or any part of the Premises, the Building or the Project.

SECTION 12

NONWAIVER

No provision of this Lease shall be deemed waived by either party hereto unless expressly waived in a writing signed thereby. The waiver by either party hereto of any breach of any term, covenant or condition herein contained shall not be deemed to be a waiver of any subsequent breach of same or any other term, covenant or condition herein contained. The subsequent acceptance of Rent hereunder by Landlord shall not be deemed to be a waiver of any preceding breach by Tenant of any term, covenant or condition of this Lease, other than the failure of Tenant to pay the particular Rent so accepted, regardless of Landlord's knowledge of such preceding breach at the time of acceptance of such Rent. No acceptance of a lesser amount than the Rent herein stipulated shall be deemed a waiver of Landlord's right to receive the full amount due, nor shall any endorsement or statement on any check or payment or any letter accompanying such check or payment be deemed an accord and satisfaction, and Landlord may accept such check or

 

-23-

Hellyer Oaks Technology Park

Iridex Corporation

 


 

payment without prejudice to Landlord's right to recover the full amount due. No receipt of monies by Landlord from Tenant after the termination of this Lease shall in any way alter the length of the Lease Term or of Tenant's right of possession hereunder, or after the giving of any notice shall reinstate, continue or extend the Lease Term or affect any notice given Tenant prior to the receipt of such monies, it being agreed that after the service of notice or the commencement of a suit, or after final judgment for possession of the Premises, Landlord may receive and collect any Rent due, and the payment of said Rent shall not waive or affect said notice, suit or judgment.

SECTION 13

CONDEMNATION

If the whole or any part of the Premises, Building or Project shall be taken by power of eminent domain or condemned by any competent authority for any public or quasi-public use or purpose, or if any adjacent property or street shall be so taken or condemned, or reconfigured or vacated by such authority in such manner as to require the use, reconstruction or remodeling of any part of the Premises, Building or Project, or if Landlord shall grant a deed or other instrument in lieu of such taking by eminent domain or condemnation, Landlord shall have the option to terminate this Lease effective as of the date possession is required to be surrendered to the authority. If more than twenty-five percent (25%) of the rentable square feet of the Premises is taken, or if access to the Premises is substantially impaired, in each case for a period in excess of one hundred eighty (180) days, Tenant shall have the option to terminate this Lease effective as of the date possession is required to be surrendered to the authority. Tenant shall not because of such taking assert any claim against Landlord or the authority for any compensation because of such taking and Landlord shall be entitled to the entire award or payment in connection therewith, except that Tenant shall have the right to file any separate claim available to Tenant for any taking of Tenant's personal property and fixtures belonging to Tenant and removable by Tenant upon expiration of the Lease Term pursuant to the terms of this Lease, and for moving expenses, so long as such claims do not diminish the award available to Landlord, its ground lessor with respect to the Building or Project or its mortgagee, and such claim is payable separately to Tenant. All Rent shall be apportioned as of the date of such termination. If any part of the Premises shall be taken, and this Lease shall not be so terminated, the Rent shall be proportionately abated. Tenant hereby waives any and all rights it might otherwise have pursuant to Section 1265.130 of The California Code of Civil Procedure. Notwithstanding anything to the contrary contained in this Article 13, in the event of a temporary taking of all or any portion of the Premises for a period of one hundred and eighty (180) days or less, then this Lease shall not terminate but the Base Rent and the Additional Rent shall be abated for the period of such taking in proportion to the ratio that the amount of rentable square feet of the Premises taken bears to the total rentable square feet of the Premises. Landlord shall be entitled to receive the entire award made in connection with any such temporary taking. Notwithstanding any contrary provision of this Lease, the following governmental actions shall not constitute a taking or condemnation, either permanent or temporary: (i) an action that requires Tenant's business or the Building or Project to close during the Lease Term, and (ii) an action taken for the purpose of protecting public safety (e.g., to protect against acts of war, the spread of communicable diseases, or an infestation), and no such governmental actions shall entitle Tenant to any compensation from Landlord or any authority, or Rent abatement or any other remedy under this Lease.

SECTION 14

ASSIGNMENT AND SUBLETTING

14.1 Transfers. Tenant shall not, without the prior written consent of Landlord, assign, mortgage, pledge, hypothecate, encumber, or permit any lien to attach to, or otherwise transfer, this Lease or any interest hereunder, permit any assignment, or other transfer of this Lease or any interest hereunder by operation of law, sublet the Premises or any part thereof, or enter into any license or concession agreements or otherwise permit the occupancy or use of the Premises or any part thereof by any persons other than Tenant and its employees and contractors (all of the foregoing are hereinafter sometimes referred to collectively as "Transfers" and any person to whom any Transfer is made or sought to be made is hereinafter sometimes referred to as a “Transferee”). If Tenant desires Landlord's consent to any Transfer, Tenant shall notify Landlord in writing, which notice (the “Transfer Notice”) shall include (i) the proposed effective date of the Transfer, which shall not be less than thirty (30) days nor more than one hundred eighty (180) days after the date of delivery of the Transfer Notice, (ii) a description of the portion of the Premises to be transferred (the “Subject Space”), (iii) all of the terms of the proposed Transfer and the consideration therefor, including calculation of the "Transfer Premium", as that term is defined in Section 14.3 below, in connection with

 

-24-

Hellyer Oaks Technology Park

Iridex Corporation

 


 

such Transfer, the name and address of the proposed Transferee, and a copy of all existing executed and/or proposed documentation pertaining to the proposed Transfer, including all existing operative documents to be executed to evidence such Transfer or the agreements incidental or related to such Transfer, provided that Landlord shall have the right to require Tenant to utilize Landlord's standard Transfer documents in connection with the documentation of such Transfer, (iv) current financial statements of the proposed Transferee certified by an officer, partner or owner thereof, business credit and personal references and history of the proposed Transferee and any other information reasonably required by Landlord which will enable Landlord to determine the financial responsibility, character, and reputation of the proposed Transferee, nature of such Transferee's business and proposed use of the Subject Space, and (v) an executed estoppel certificate from Tenant in the form attached hereto as Exhibit E. Any Transfer made without Landlord's prior written consent shall, at Landlord's option, be null, void and of no effect, and shall, at Landlord's option, constitute a default by Tenant under this Lease. Whether or not Landlord consents to any proposed Transfer, Tenant shall pay Landlord's reasonable review and processing fees, as well as any reasonable professional fees (including, without limitation, attorneys', accountants', architects', engineers' and consultants' fees) incurred by Landlord, within thirty (30) days after written request by Landlord.

14.2 Landlord's Consent. Landlord shall not unreasonably withhold or delay its consent to any proposed Transfer of the Subject Space to the Transferee on the terms specified in the Transfer Notice. Without limitation as to other reasonable grounds for withholding consent, the parties hereby agree that it shall be reasonable under this Lease and under any applicable law for Landlord to withhold consent to any proposed Transfer where one or more of the following apply:

14.2.1 The Transferee is of a character or reputation or engaged in a business which is not consistent with the quality of the Building or the Project;

14.2.2 The Transferee intends to use the Subject Space for purposes which are not permitted under this Lease;

14.2.3 The Transferee is either a governmental agency or instrumentality thereof or a non‑profit organization;

14.2.4 The Transfer occurs during the period from the Lease Commencement Date until the earlier of (i) the fourth anniversary of the Lease Commencement Date or (ii) the date at least ninety five percent (95%) of the rentable square feet of the Project is leased, and the rent charged by Tenant to such Transferee during the term of such Transfer, calculated using a present value analysis, is less than ninety-five percent (95%) of the rent being quoted by Landlord at the time of such Transfer for comparable space in the Project for a comparable term, calculated using a present value analysis;

14.2.5 The Transferee is not a party of reasonable financial worth and/or financial stability in light of the responsibilities to be undertaken in connection with the Transfer on the date consent is requested;

14.2.6 The proposed Transfer would cause a violation of another lease for space in the Project, or would give an occupant of the Project a right to cancel its lease; or

14.2.7 Either the proposed Transferee, or any person or entity which directly or indirectly, controls, is controlled by, or is under common control with, the proposed Transferee, (i) occupies space in the Project at the time of the request for consent, or (ii) is negotiating with Landlord or has negotiated with Landlord during the six (6) month period immediately preceding the date Landlord receives the Transfer Notice, to lease space in the Project.

If Landlord consents to any Transfer pursuant to the terms of this Section 14.2 (and does not exercise any recapture rights Landlord may have under Section 14.4 of this Lease), Tenant may within six (6) months after Landlord's consent, but not later than the expiration of said six-month period, enter into such Transfer of the Premises or portion thereof, upon substantially the same terms and conditions as are set forth in the Transfer Notice furnished by Tenant to Landlord pursuant to Section 14.1 of this Lease, provided that if there are any changes in the terms and conditions from those specified in the Transfer Notice (i) such that Landlord would initially have been entitled to

 

-25-

Hellyer Oaks Technology Park

Iridex Corporation

 


 

refuse its consent to such Transfer under this Section 14.2, or (ii) which would cause the proposed Transfer to be more favorable to the Transferee than the terms set forth in Tenant's original Transfer Notice, Tenant shall again submit the Transfer to Landlord for its approval and other action under this Article 14 (including Landlord's right of recapture, if any, under Section 14.4 of this Lease). Notwithstanding anything to the contrary in this Lease, if Tenant or any proposed Transferee claims that Landlord has unreasonably withheld or delayed its consent under Section 14.2 or otherwise has breached or acted unreasonably under this Article 14, their sole remedies shall be a suit for contract damages (other than damages for injury to, or interference with, Tenant's business including, without limitation, loss of profits, however occurring) or declaratory judgment and an injunction for the relief sought, and Tenant hereby waives all other remedies, including, without limitation, any right at law or equity to terminate this Lease, on its own behalf and, to the extent permitted under all applicable laws, on behalf of the proposed Transferee.

14.3 Transfer Premium. If Landlord consents to a Transfer, as a condition thereto which the parties hereby agree is reasonable, Tenant shall pay to Landlord fifty percent (50%) of any "Transfer Premium," as that term is defined in this Section 14.3, received by Tenant from such Transferee. "Transfer Premium" shall mean all rent, additional rent or other consideration payable by such Transferee in connection with the Transfer in excess of the Rent and Additional Rent payable by Tenant under this Lease during the term of the Transfer on a per rentable square foot basis if less than all of the Premises is transferred. "Transfer Premium" shall also include, but not be limited to, key money, bonus money or other cash consideration paid by Transferee to Tenant in connection with such Transfer, and any payment in excess of fair market value for services rendered by Tenant to Transferee or for assets, fixtures, inventory, equipment, or furniture transferred by Tenant to Transferee in connection with such Transfer. The determination of the amount of Landlord's applicable share of the Transfer Premium shall be made on a monthly basis as rent or other consideration is received by Tenant under the Transfer.

14.4 Landlord's Option as to Subject Space. Notwithstanding anything to the contrary contained in this Article 14, in the event Tenant contemplates a Transfer of all or a portion of the Premises, Tenant shall give Landlord notice (the “Intention to Transfer Notice”) of such contemplated Transfer (whether or not the contemplated Transferee or the terms of such contemplated Transfer have been determined). The Intention to Transfer Notice shall specify the portion of and amount of rentable square feet of the Premises which Tenant intends to Transfer (the “Contemplated Transfer Space”), the contemplated date of commencement of the Contemplated Transfer (the “Contemplated Effective Date”), and the contemplated length of the term of such contemplated Transfer, and shall specify that such Intention to Transfer Notice is delivered to Landlord pursuant to this Section 14.4 in order to allow Landlord to elect to recapture the Contemplated Transfer Space. Thereafter, Landlord shall have the option, by giving written notice to Tenant within thirty (30) days after receipt of any Intention to Transfer Notice, to recapture the Contemplated Transfer Space. Such recapture shall cancel and terminate this Lease with respect to such Contemplated Transfer Space as of the Contemplated Effective Date. In the event of a recapture by Landlord, if this Lease shall be canceled with respect to less than the entire Premises, the Rent reserved herein shall be prorated on the basis of the number of rentable square feet retained by Tenant in proportion to the number of rentable square feet contained in the Premises, and this Lease as so amended shall continue thereafter in full force and effect, and upon request of either party, the parties shall execute written confirmation of the same. If Landlord declines, or fails to elect in a timely manner, to recapture such Contemplated Transfer Space under this Section 14.4, then, subject to the other terms of this Article 14, for a period of nine (9) months (the “Nine Month Period”) commencing on the last day of such thirty (30) day period, Landlord shall not have any right to recapture the Contemplated Transfer Space with respect to any Transfer made during the Nine Month Period, provided that any such Transfer is substantially on the terms set forth in the Intention to Transfer Notice, and provided further that any such Transfer shall be subject to the remaining terms of this Article 14. If such a Transfer is not so consummated within the Nine Month Period (or if a Transfer is so consummated, then upon the expiration of the term of any Transfer of such Contemplated Transfer Space consummated within such Nine Month Period), Tenant shall again be required to submit a new Intention to Transfer Notice to Landlord with respect any contemplated Transfer, as provided above in this Section 14.4.

14.5 Effect of Transfer. If Landlord consents to a Transfer, (i) the terms and conditions of this Lease shall in no way be deemed to have been waived or modified, (ii) such consent shall not be deemed consent to any further Transfer by either Tenant or a Transferee, (iii) Tenant shall deliver to Landlord, promptly after execution, an original executed copy of all documentation pertaining to the Transfer in form reasonably acceptable to Landlord, (iv) Tenant shall furnish upon Landlord's request a complete statement, certified by an independent certified public accountant, or Tenant's chief financial officer, setting forth in detail the computation of any Transfer Premium Tenant has derived and shall derive from such Transfer, and (v) no Transfer relating to this Lease or agreement entered into

 

-26-

Hellyer Oaks Technology Park

Iridex Corporation

 


 

with respect thereto, whether with or without Landlord's consent, shall relieve Tenant or any guarantor of the Lease from any liability under this Lease, including, without limitation, in connection with the Subject Space. In the event that Tenant subleases all or any portion of the Premises in accordance with the terms of this Article 14, Tenant shall cause such subtenant to carry and maintain the same insurance coverage terms and limits as are required of Tenant, in accordance with the terms of Article 10 of this Lease. Landlord or its authorized representatives shall have the right at all reasonable times to audit the books, records and papers of Tenant relating to any Transfer, and shall have the right to make copies thereof. If the Transfer Premium respecting any Transfer shall be found understated, Tenant shall, within thirty (30) days after demand, pay the deficiency, and if understated by more than two percent (2%), Tenant shall pay Landlord's costs of such audit.

14.6 Additional Transfers. For purposes of this Lease, the term "Transfer" shall also include (i) if Tenant is a partnership, the withdrawal or change, voluntary, involuntary or by operation of law, of fifty percent (50%) or more of the partners, or transfer of fifty percent (50%) or more of partnership interests, within a twelve (12)-month period, or the dissolution of the partnership without immediate reconstitution thereof, and (ii) if Tenant is a closely held corporation (i.e., whose stock is not publicly held and not traded through an exchange or over the counter), (A) the dissolution, merger, consolidation or other reorganization of Tenant or (B) the sale or other transfer of an aggregate of fifty percent (50%) or more of the voting shares of Tenant (other than to immediate family members by reason of gift or death), within a twelve (12)-month period, or (C) the sale, mortgage, hypothecation or pledge of an aggregate of fifty percent (50%) or more of the value of the unencumbered assets of Tenant within a twelve (12)-month period.

14.7 Occurrence of Default. Any Transfer hereunder shall be subordinate and subject to the provisions of this Lease, and if this Lease shall be terminated during the term of any Transfer, Landlord shall have the right to: (i) treat such Transfer as cancelled and repossess the Subject Space by any lawful means, or (ii) require that such Transferee attorn to and recognize Landlord as its landlord under any such Transfer. If Tenant shall be in default under this Lease, Landlord is hereby irrevocably authorized, as Tenant's agent and attorney-in-fact, to direct any Transferee to make all payments under or in connection with the Transfer directly to Landlord (which Landlord shall apply towards Tenant's obligations under this Lease) until such default is cured. Such Transferee shall rely on any representation by Landlord that Tenant is in default hereunder, without any need for confirmation thereof by Tenant. Upon any assignment, the assignee shall assume in writing all obligations and covenants of Tenant thereafter to be performed or observed under this Lease. No collection or acceptance of rent by Landlord from any Transferee shall be deemed a waiver of any provision of this Article 14 or the approval of any Transferee or a release of Tenant from any obligation under this Lease, whether theretofore or thereafter accruing. In no event shall Landlord's enforcement of any provision of this Lease against any Transferee be deemed a waiver of Landlord's right to enforce any term of this Lease against Tenant or any other person. If Tenant's obligations hereunder have been guaranteed, Landlord's consent to any Transfer shall not be effective unless the guarantor also consents to such Transfer.

14.8 Non-Transfers. Notwithstanding anything to the contrary contained in this Article 14, an assignment or subletting of all or a portion of the Premises to an affiliate of Tenant (an entity which is controlled by, controls, or is under common control with, Tenant) (each a “Permitted Transferee”), shall not be deemed a Transfer under this Article 14, provided that Tenant notifies Landlord of any such assignment or sublease and promptly supplies Landlord with any documents or information requested by Landlord regarding such assignment or sublease or such affiliate, and further provided that such assignment or sublease is not a subterfuge by Tenant to avoid its obligations under this Lease. "Control," as used in this Section 14.8, shall mean the ownership, directly or indirectly, of at least fifty-one percent (51%) of the voting securities of, or possession of the right to vote, in the ordinary direction of its affairs, of at least fifty-one percent (51%) of the voting interest in, any person or entity.

SECTION 15

SURRENDER OF PREMISES; OWNERSHIP AND
REMOVAL OF TRADE FIXTURES

15.1 Surrender of Premises. No act or thing done by Landlord or any agent or employee of Landlord during the Lease Term shall be deemed to constitute an acceptance by Landlord of a surrender of the Premises unless such intent is specifically acknowledged in writing by Landlord. The delivery of keys to the Premises to Landlord or any agent or employee of Landlord shall not constitute a surrender of the Premises or effect a termination of this Lease, whether or not the keys are thereafter retained by Landlord, and notwithstanding such delivery Tenant shall be

 

-27-

Hellyer Oaks Technology Park

Iridex Corporation

 


 

entitled to the return of such keys at any reasonable time upon request until this Lease shall have been properly terminated. The voluntary or other surrender of this Lease by Tenant, whether accepted by Landlord or not, or a mutual termination hereof, shall not work a merger, and at the option of Landlord shall operate as an assignment to Landlord of all subleases or subtenancies affecting the Premises or terminate any or all such sublessees or subtenancies.

15.2 Removal of Tenant Property by Tenant. Upon the expiration of the Lease Term, or upon any earlier termination of this Lease, Tenant shall, subject to the provisions of this Article 15, quit and surrender possession of the Premises to Landlord in as good order and condition as when Tenant took possession and as thereafter improved by Landlord and/or Tenant, reasonable wear and tear and repairs which are specifically made the responsibility of Landlord hereunder excepted. Upon such expiration or termination, Tenant shall, without expense to Landlord, remove or cause to be removed from the Premises all debris and rubbish, and such items of furniture, equipment, business and trade fixtures, free-standing cabinet work, movable partitions and other articles of personal property owned by Tenant or installed or placed by Tenant at its expense in the Premises, and such similar articles of any other persons claiming under Tenant, as Landlord may, in its sole discretion, require to be removed, and Tenant shall repair at its own expense all damage to the Premises and Building resulting from such removal; provided, however, that Tenant shall not be required to remove any Tenant Improvements constructed pursuant to the Tenant Work Letter attached hereto as Exhibit B.

SECTION 16

HOLDING OVER

If Tenant holds over after the expiration of the Lease Term or earlier termination thereof, such tenancy shall be a tenancy‑at‑sufferance, and shall not constitute a renewal hereof or an extension for any further term, and in such case Rent shall be payable at a daily rate equal to the product of (i) the daily Rent applicable during the last rental period of the Lease Term under this Lease, and (ii) a percentage equal to 150%. Such tenancy shall be subject to every other applicable term, covenant and agreement contained herein. Nothing contained in this Article 16 shall be construed as consent by Landlord to any holding over by Tenant, and Landlord expressly reserves the right to require Tenant to surrender possession of the Premises to Landlord as provided in this Lease upon the expiration or other termination of this Lease. If Tenant holds over without Landlord's express written consent, and tenders payment of rent for any period beyond the expiration of the Lease Term by way of check (whether directly to Landlord, its agents, or to a lock box) or wire transfer, Tenant acknowledges and agrees that the cashing of such check or acceptance of such wire shall be considered inadvertent and not be construed as creating a month-to-month tenancy, provided Landlord refunds such payment to Tenant promptly upon learning that such check has been cashed or wire transfer received. The provisions of this Article 16 shall not be deemed to limit or constitute a waiver of any other rights or remedies of Landlord provided herein or at law. If Tenant fails to surrender the Premises upon the termination or expiration of this Lease, in addition to any other liabilities to Landlord accruing therefrom, Tenant shall protect, defend, indemnify and hold Landlord harmless from all loss, costs (including reasonable attorneys' fees) and liability resulting from such failure, including, without limiting the generality of the foregoing, any claims made by any succeeding tenant founded upon such failure to surrender and any lost profits to Landlord resulting therefrom. Tenant agrees that any proceedings necessary to recover possession of the Premises, whether before or after expiration of the Lease Term, shall be considered an action to enforce the terms of this Lease for purposes of the awarding of any attorney's fees in connection therewith.

SECTION 17

ESTOPPEL CERTIFICATES

Within ten (10) business days following a request in writing by Landlord, Tenant shall execute, acknowledge and deliver to Landlord an estoppel certificate, which, as submitted by Landlord, shall be substantially in the form of Exhibit E, attached hereto (or such other form as may be required by any prospective mortgagee or purchaser of the Project, or any portion thereof), indicating therein any exceptions thereto that may exist at that time, and shall also contain any other information reasonably requested by Landlord or Landlord's mortgagee or prospective mortgagee. Any such certificate may be relied upon by any prospective mortgagee or purchaser of all or any portion of the Project. Tenant shall execute and deliver whatever other instruments may be reasonably required for such purposes. At any

 

-28-

Hellyer Oaks Technology Park

Iridex Corporation

 


 

time during the Lease Term, Landlord may require Tenant to provide Landlord with a current financial statement and financial statements of the two (2) years prior to the current financial statement year. Such statements shall be prepared in accordance with generally accepted accounting principles and, if such is the normal practice of Tenant, shall be audited by an independent certified public accountant. Failure of Tenant to timely execute, acknowledge and deliver such estoppel certificate or other instruments shall constitute an acceptance of the Premises and an acknowledgment by Tenant that statements included in the estoppel certificate are true and correct, without exception.

SECTION 18

SUBORDINATION

This Lease shall be subject and subordinate to all present and future ground or underlying leases of the Building or Project and to the lien of any mortgage, trust deed or other encumbrances now or hereafter in force against the Building or Project or any part thereof, if any, and to all renewals, extensions, modifications, consolidations and replacements thereof, and to all advances made or hereafter to be made upon the security of such mortgages or trust deeds, unless the holders of such mortgages, trust deeds or other encumbrances, or the lessors under such ground lease or underlying leases, require in writing that this Lease be superior thereto. Tenant covenants and agrees in the event any proceedings are brought for the foreclosure of any such mortgage or deed in lieu thereof (or if any ground lease is terminated), to attorn, without any deductions or set-offs whatsoever, to the lienholder or purchaser or any successors thereto upon any such foreclosure sale or deed in lieu thereof (or to the ground lessor), if so requested to do so by such purchaser or lienholder or ground lessor, and to recognize such purchaser or lienholder or ground lessor as the lessor under this Lease, provided such lienholder or purchaser or ground lessor shall agree to accept this Lease and not disturb Tenant's occupancy, so long as Tenant timely pays the rent and observes and performs the terms, covenants and conditions of this Lease to be observed and performed by Tenant. Landlord's interest herein may be assigned as security at any time to any lienholder. Tenant shall, within ten (10) days of request by Landlord, execute such further instruments or assurances as Landlord may reasonably deem necessary to evidence or confirm the subordination or superiority of this Lease to any such mortgages, trust deeds, ground leases or underlying leases. Tenant waives the provisions of any current or future statute, rule or law which may give or purport to give Tenant any right or election to terminate or otherwise adversely affect this Lease and the obligations of the Tenant hereunder in the event of any foreclosure proceeding or sale. Landlord shall use commercially reasonable efforts to obtain from any ground lessor and any existing or future mortgagee of the Building or Project a commercially reasonable non-disturbance agreement for the benefit of Tenant, providing that so long as Tenant is not in default beyond applicable notice and cure periods, Tenant's possession under this Lease shall not be disturbed in the event of any foreclosure or termination of any ground lease.

SECTION 19

DEFAULTS; REMEDIES

19.1 Events of Default. The occurrence of any of the following shall constitute a default of this Lease by Tenant (each, an "Event of Default"):

19.1.1 Any failure by Tenant to pay any Rent or any other charge required to be paid under this Lease, or any part thereof, when due within five (5) days following the date due; or

19.1.2 Except where a specific time period is otherwise set forth for Tenant's performance in this Lease, in which event the failure to perform by Tenant within such time period shall be an Event of Default by Tenant under this Section 19.1.2, any failure by Tenant to observe or perform any other provision, covenant or condition of this Lease to be observed or performed by Tenant where such failure continues for thirty (30) days after written notice thereof from Landlord to Tenant; provided that if the nature of such default is such that the same cannot reasonably be cured within a thirty (30) day period, Tenant shall not be deemed to be in default if it diligently commences such cure within such period and thereafter diligently proceeds to rectify and cure such default within one hundred twenty (120) days after receipt of such written notice.

19.1.3 Abandonment or vacation of all or a substantial portion of the Premises by Tenant; or

 

-29-

Hellyer Oaks Technology Park

Iridex Corporation

 


 

19.1.4 The failure by Tenant to observe or perform according to the provisions of Articles 5, 14, 17 or 18 of this Lease or any provision of the Tenant Work Letter, where, in each instance, such failure continues for more than three (3) business days after notice from Landlord; or

19.1.5 Tenant's failure to occupy the Premises within ten (10) business days after the Lease Commencement Date.

19.1.6 Any notices to be provided by Landlord under this Section 19.1 shall be in lieu of, and not in addition to, any notice required under Section 1161 et seq. of the Code of Civil Procedure, and may be served on Tenant in the manner allowed for service of notices under this Lease.

19.2 Remedies Upon Event of Default. Upon the occurrence of any event of default by Tenant, Landlord shall have, in addition to any other remedies available to Landlord at law or in equity (all of which remedies shall be distinct, separate and cumulative), the option to pursue any one or more of the following remedies (including, without limitation, during any eviction moratorium, to the extent allowed by Applicable Law), each and all of which shall be cumulative and nonexclusive, without any notice or demand whatsoever.

19.2.1 Terminate this Lease, in which event Tenant shall immediately surrender the Premises to Landlord, and if Tenant fails to do so, Landlord may, without prejudice to any other remedy which it may have for possession or arrearages in rent, enter upon and take possession of the Premises and expel or remove Tenant and any other person who may be occupying the Premises or any part thereof, without being liable for prosecution or any claim or damages therefor, and Landlord may recover from Tenant the following:

19.2.1.1 The worth at the time of award of any unpaid rent which has been earned at the time of such termination; plus

19.2.1.2 The worth at the time of award of the amount by which the unpaid rent which would have been earned after termination until the time of award exceeds the amount of such rental loss that Tenant proves could have been reasonably avoided; plus

19.2.1.3 The worth at the time of award of the amount by which the unpaid rent for the balance of the Lease Term after the time of award exceeds the amount of such rental loss that Tenant proves could have been reasonably avoided; plus

19.2.1.4 Any other amount necessary to compensate Landlord for all the detriment proximately caused by Tenant's failure to perform its obligations under this Lease or which in the ordinary course of things would be likely to result therefrom, specifically including but not limited to, brokerage commissions and advertising expenses incurred, expenses of remodeling the Premises or any portion thereof for a new tenant, whether for the same or a different use, and any special concessions made to obtain a new tenant; and

19.2.1.5 At Landlord's election, such other amounts in addition to or in lieu of the foregoing as may be permitted from time to time by applicable law.

The term "rent" as used in this Section 19.2 shall be deemed to be and to mean all sums of every nature required to be paid by Tenant pursuant to the terms of this Lease, whether to Landlord or to others. As used in Sections 19.2.1.1 and 19.2.1.2, above, the "worth at the time of award" shall be computed by allowing interest at the rate set forth in Article 25 of this Lease, but in no case greater than the maximum amount of such interest permitted by law. As used in Section 19.2.1.3 above, the "worth at the time of award" shall be computed by discounting such amount at the discount rate of the Federal Reserve Bank of San Francisco at the time of award plus one percent (1%).

19.2.2 Landlord shall have the remedy described in California Civil Code Section 1951.4 (lessor may continue lease in effect after lessee's breach and abandonment and recover rent as it becomes due, if lessee has the right to sublet or assign, subject only to reasonable limitations). Accordingly, if Landlord does not elect to terminate this Lease on account of any Event of Default by Tenant, Landlord may, from time to time, without

 

-30-

Hellyer Oaks Technology Park

Iridex Corporation

 


 

terminating this Lease, enforce all of its rights and remedies under this Lease, including the right to recover all rent as it becomes due.

19.2.3 Landlord shall at all times have the rights and remedies (which shall be cumulative with each other and cumulative and in addition to those rights and remedies available under Sections 19.2.1 and 19.2.2, above, or any law or other provision of this Lease), without prior demand or notice except as required by applicable law, to seek any declaratory, injunctive or other equitable relief, and specifically enforce this Lease, or restrain or enjoin a violation or breach of any provision hereof.

19.3 Subleases of Tenant. Whether or not Landlord elects to terminate this Lease on account of any Event of Default by Tenant, as set forth in this Article 19, Landlord shall have the right to terminate any and all subleases, licenses, concessions or other consensual arrangements for possession entered into by Tenant and affecting the Premises or may, in Landlord's sole discretion, succeed to Tenant's interest in such subleases, licenses, concessions or arrangements. In the event of Landlord's election to succeed to Tenant's interest in any such subleases, licenses, concessions or arrangements, Tenant shall, as of the date of notice by Landlord of such election, have no further right to or interest in the rent or other consideration receivable thereunder.

19.4 Efforts to Relet. No re-entry or repossession, repairs, maintenance, changes, alterations and additions, reletting, appointment of a receiver to protect Landlord's interests hereunder, or any other action or omission by Landlord shall be construed as an election by Landlord to terminate this Lease or Tenant's right to possession, or to accept a surrender of the Premises, nor shall same operate to release Tenant in whole or in part from any of Tenant's obligations hereunder, unless express written notice of such intention is sent by Landlord to Tenant. Tenant hereby irrevocably waives any right otherwise available under any law to redeem or reinstate this Lease.

19.5 Landlord Default. Landlord shall be in default under this Lease if Landlord fails to perform any of its obligations hereunder following the Lease Commencement Date and such failure continues for thirty (30) days after Tenant delivers to Landlord written notice specifying such failure; however, if such failure cannot reasonably be cured within such 30-day period, but Landlord commences to cure such failure within such 30-day period and thereafter diligently pursues the curing thereof to completion, then Landlord shall not be in default hereunder or liable for damages therefor. Except where the provisions of this Lease grant Tenant an express, exclusive remedy, or expressly deny Tenant a remedy, Tenant's exclusive remedy for Landlord's failure to perform its obligations under this Lease shall be limited to damages, injunctive relief, or specific performance; in each case, Landlord's liability or obligations with respect to any such remedy shall be limited as provided in Section 29.13.

SECTION 20

COVENANT OF QUIET ENJOYMENT

Landlord covenants that Tenant, on paying the Rent, charges for services and other payments herein reserved and on keeping, observing and performing all the other terms, covenants, conditions, provisions and agreements herein contained on the part of Tenant to be kept, observed and performed, shall, during the Lease Term, peaceably and quietly have, hold and enjoy the Premises subject to the terms, covenants, conditions, provisions and agreements hereof without interference by any persons lawfully claiming by or through Landlord. The foregoing covenant is in lieu of any other covenant express or implied.

SECTION 21

SECURITY DEPOSIT

Concurrently with Tenant's execution of this Lease, Tenant shall deposit with Landlord a security deposit (the “Security Deposit”) in the amount set forth in Section 8 of the Summary, as security for the faithful performance by Tenant of all of its obligations under this Lease. If Tenant defaults with respect to any provisions of this Lease, including, but not limited to, the provisions relating to the payment of Rent, the removal of property and the repair of resultant damage, Landlord may, without notice to Tenant, but shall not be required to apply all or any part of the Security Deposit for the payment of any Rent or any other sum in default and Tenant shall, upon demand therefor, restore the Security Deposit to its original amount (including, without limitation, during any eviction moratorium, to

 

-31-

Hellyer Oaks Technology Park

Iridex Corporation

 


 

the extent allowed by Law). Any unapplied portion of the Security Deposit shall be returned to Tenant, or, at Landlord's option, to the last assignee of Tenant's interest hereunder, within sixty (60) days following the expiration of the Lease Term. Tenant shall not be entitled to any interest on the Security Deposit. Tenant hereby irrevocably waives and relinquishes any and all rights, benefits, or protections, if any, Tenant now has, or in the future may have, under Section 1950.7 of the California Civil Code, any successor statue, and all other provisions of law, now or hereafter in effect, including, but not limited to, any provision of law which (i) establishes the time frame by which a landlord must refund a security deposit under a lease, or (ii) provides that a landlord may claim from a security deposit only those sums reasonably necessary to remedy defaults in the payment of rent, to repair damage caused by a tenant, or to clean the subject premises. Tenant acknowledges and agrees that (A) any statutory time frames for the return of a security deposit are superseded by the express period identified in this Article 21, above, and (B) rather than be so limited, Landlord may claim from the Security Deposit (i) any and all sums expressly identified in this Article 21, above, and (ii) any additional sums reasonably necessary to compensate Landlord for any and all losses or damages caused by Tenant's default of this Lease, including, but not limited to, all damages or rent due upon termination of this Lease pursuant to Section 1951.2 of the California Civil Code.

SECTION 22

[INTENTIONALLY OMITTED]

SECTION 23

SIGNS

23.1 Full Floors. Subject to Landlord's prior written approval, in its sole discretion, and provided all signs are in keeping with the quality, design and style of the Building and Project, Landlord, if the Premises comprise an entire floor of the Building, at its sole cost and expense, may install identification signage anywhere in the Premises including in the elevator lobby of the Premises, provided that such signs must not be visible from the exterior of the Building.

23.2 Multi-Tenant Floors. If other tenants occupy space on the floor on which the Premises is located, Tenant's initial identifying signage shall be provided by Landlord, at 'Landlord's sole cost and expense, and such signage shall be comparable to that used by Landlord for other similar floors in the Building and shall comply with Landlord's then-current Building standard signage program.

23.3 Prohibited Signage and Other Items. Any signs, notices, logos, pictures, names or advertisements which are installed and that have not been separately approved by Landlord may be removed without notice by Landlord at the sole expense of Tenant. Tenant may not install any signs on the exterior or roof of the Project or the Common Areas. Any signs, window coverings, or blinds (even if the same are located behind the Landlord-approved window coverings for the Building), or other items visible from the exterior of the Premises or Building, shall be subject to the prior approval of Landlord, in its sole discretion.

23.4 Building Directory. Tenant shall be entitled, at Landlord’s sole cost and expense, to have its name listed on the building directory that services the Building.

23.5 Exterior Building Signage.

23.5.1 Subject to the terms of this Section 23.5, as Alterations in accordance with Article 8 above, Tenant, at its sole cost and expense, shall have the right to install “eyebrow” signage on the exterior of the Building, identifying the name and/or logo of the Original Tenant (i.e., "Iridex Corporation") in the approximate location shown and as depicted on Exhibit G attached hereto (the "Exterior Building Signage"). The graphics, materials, color, design, lettering, size, quality, location and specifications of the Exterior Building Signage shall be subject to the prior written approval of Landlord, which approval shall not be unreasonably withheld, conditioned or delayed. The Exterior Building Signage shall also comply with and be subject to all Applicable Laws, including, but not limited to, all requirements of the City of San Jose ("City") (or other applicable governmental authorities); provided, however, that in no event shall the approval by the City (or other applicable governmental authorities) of the Exterior Building Signage be deemed a condition precedent to the effectiveness of this Lease, and if such approval is not obtained,

 

-32-

Hellyer Oaks Technology Park

Iridex Corporation

 


 

Landlord's and Tenant's other obligations under this Lease shall not be affected thereby. Landlord shall, at no cost to Landlord, reasonably cooperate with Tenant in obtaining applicable permits from the City in connection with the installation of the Exterior Building Signage. Following the initial construction and installation of the Exterior Building Signage, Tenant shall be entitled to modify the name and/or logo for such signage, at Tenant's sole cost and expense, to the new name and/or logo adopted by Original Tenant, provided that the new name and/or logo shall not be an Objectionable Name or Logo (defined below). "Objectionable Name or Logo" shall mean any name or logo which relates to an entity which is of a character or reputation, or is associated with a political orientation or faction, which is inconsistent with the quality of the Building as a first-class office building, or which would otherwise reasonably offend a landlord of the Comparable Buildings. Tenant shall, at its sole cost and expense, maintain the Exterior Building Signage in good condition and repair. The signage rights granted to Tenant under this Section 23.5 are personal to the Original Tenant and may only be exercised by the Original Tenant (and not any assignee, or any sublessee or other Transferee of the Original Tenant's interest in this Lease). Notwithstanding anything to the contrary contained in this Section 23.5, in no event shall Tenant have any right to the Exterior Building Signage if the Original Tenant is not leasing and occupying the entire Premises (the "Occupancy Threshold").

23.6 Upon the expiration or earlier termination of this Lease or Tenant's right to possession of the Premises, or the earlier termination of Tenant's right to the Exterior Building Signage pursuant to this Section 23.5, Tenant shall remove the Exterior Building Signage, at Tenant's sole cost and expense, and repair and restore to good condition the areas of the Building on which the Exterior Building Signage was located or that was otherwise affected by such signage or the removal thereof, or at Landlord's election, Landlord may perform any such removal and/or repair and restoration and Tenant shall pay Landlord the reasonable cost thereof within thirty (30) days after Landlord's demand from time to time.

SECTION 24

COMPLIANCE WITH LAW

Tenant shall not do anything or suffer anything to be done in or about the Premises or the Project which will in any way conflict with any law, statute, ordinance or other rule, directive, order, regulation, guideline or requirement of any governmental entity or governmental agency (collectively, "Applicable Laws") now in force or which may hereafter be enacted or promulgated. At its sole cost and expense, Tenant shall promptly comply with all Applicable Laws (including the making of any alterations to the Premises required by Applicable Laws) which relate to (i) Tenant's use of, or requirements to cease or reduce Tenant's business operations in or Tenant's use of, the Premises, (ii) the Alterations or the Tenant Improvements in the Premises, or (iii) the Base Building, but, as to the Base Building, only to the extent such obligations are triggered by Tenant's Alterations, the Tenant Improvements, or use of the Premises for non-general office use. Should any standard or regulation now or hereafter be imposed on Landlord or Tenant by a state, federal or local governmental body charged with the establishment, regulation and enforcement of occupational, health or safety standards for employers, employees, landlords or tenants, then Tenant agrees, at its sole cost and expense, to comply promptly with such standards or regulations. Tenant shall be responsible, at its sole cost and expense, to make all alterations to the Premises as are required to comply with the governmental rules, regulations, requirements or standards described in this Article 24. The judgment of any court of competent jurisdiction or the admission of Tenant in any judicial action, regardless of whether Landlord is a party thereto, that Tenant has violated any of said governmental measures, shall be conclusive of that fact as between Landlord and Tenant. For purposes of Section 1938 of the California Civil Code, Landlord hereby discloses to Tenant, and Tenant hereby acknowledges, that the Premises have not undergone inspection by a Certified Access Specialist (CASp). As required by Section 1938(e) of the California Civil Code, Landlord hereby states as follows: "A Certified Access Specialist (CASp) can inspect the subject premises and determine whether the subject premises comply with all of the applicable construction-related accessibility standards under state law. Although state law does not require a CASp inspection of the subject premises, the commercial property owner or lessor may not prohibit the lessee or tenant from obtaining a CASp inspection of the subject premises for the occupancy or potential occupancy of the lessee or tenant, if requested by the lessee or tenant. The parties shall mutually agree on the arrangements for the time and manner of the CASp inspection, the payment of the fee for the CASp inspection, and the cost of making any repairs necessary to correct violations of construction-related accessibility standards within the premises." In furtherance of the foregoing, Landlord and Tenant hereby agree as follows: (a) any CASp inspection requested by Tenant shall be conducted, at Tenant's sole cost and expense, by a CASp designated by Landlord, subject to Landlord's reasonable rules and requirements; (b) Tenant, at its sole cost and expense, shall be responsible for making any improvements or repairs

 

-33-

Hellyer Oaks Technology Park

Iridex Corporation

 


 

within the Premises to correct violations of construction-related accessibility standards; and (c) if anything done by or for Tenant in its use or occupancy of the Premises shall require any improvements or repairs to the Building or Project (outside the Premises) to correct violations of construction-related accessibility standards, then Tenant shall reimburse Landlord upon demand, as Additional Rent, for the cost to Landlord of performing such improvements or repairs.

SECTION 25

LATE CHARGES

If any installment of Rent or any other sum due from Tenant shall not be received by Landlord or Landlord's designee within five (5) business days after Tenant's receipt of written notice from Landlord that said amount is due, then Tenant shall pay to Landlord a late charge equal to five percent (5%) of the overdue amount plus any reasonable attorneys' fees incurred by Landlord by reason of Tenant's failure to pay Rent and/or other charges when due hereunder. The late charge shall be deemed Additional Rent and the right to require it shall be in addition to all of Landlord's other rights and remedies hereunder or at law and shall not be construed as liquidated damages or as limiting Landlord's remedies in any manner. In addition to the late charge described above, any Rent or other amounts owing hereunder which are not paid within ten (10) days after the date they are due shall bear interest from the date when due until paid at a rate per annum equal to the lesser of (i) the annual "Bank Prime Loan" rate cited in the Federal Reserve Statistical Release Publication H.15, published on the first Tuesday of each calendar month (or such other comparable index as Landlord and Tenant shall reasonably agree upon if such rate ceases to be published) plus two (2) percentage points, and (ii) the highest rate permitted by Applicable Laws.

SECTION 26

LANDLORD'S RIGHT TO CURE DEFAULT; PAYMENTS BY TENANT

26.1 Landlord's Cure. All covenants and agreements to be kept or performed by Tenant under this Lease shall be performed by Tenant at Tenant's sole cost and expense and without any reduction of Rent, except to the extent, if any, otherwise expressly provided herein. If Tenant shall fail to perform any obligation under this Lease, and such failure shall continue in excess of the time allowed under Section 19.1.2, above, unless a specific time period is otherwise stated in this Lease, Landlord may, but shall not be obligated to, make any such payment or perform any such act on Tenant's part without waiving its rights based upon any default of Tenant and without releasing Tenant from any obligations hereunder.

26.2 Tenant's Reimbursement. Except as may be specifically provided to the contrary in this Lease, Tenant shall pay to Landlord, upon delivery by Landlord to Tenant of statements therefor: (i) sums equal to expenditures reasonably made and obligations incurred by Landlord in connection with the remedying by Landlord of Tenant's defaults pursuant to the provisions of Section 26.1; (ii) sums equal to all losses, costs, liabilities, damages and expenses referred to in Article 10 of this Lease; and (iii) sums equal to all expenditures made and obligations incurred by Landlord in collecting or attempting to collect the Rent or in enforcing or attempting to enforce any rights of Landlord under this Lease or pursuant to law, including, without limitation, all reasonable legal fees and other amounts so expended. Tenant's obligations under this Section 26.2 shall survive the expiration or sooner termination of the Lease Term.

SECTION 27

ENTRY BY LANDLORD

Landlord reserves the right at all reasonable times and upon no less than 24-hours' prior written notice to Tenant (except in the case of an emergency) to enter the Premises to (i) inspect them; (ii) show the Premises to prospective purchasers, or to current or prospective mortgagees, ground or underlying lessors or insurers or, during the last twelve (12) months of the Lease Term, to prospective tenants; (iii) post notices of nonresponsibility; or (iv) alter, improve or repair the Premises or the Building, or for structural alterations, repairs or improvements to the Building or the Building's systems and equipment. Notwithstanding anything to the contrary contained in this Article 27, Landlord may enter the Premises at any time to (A) perform services required of Landlord; (B) take possession due to any breach of this Lease in the manner provided herein; and (C) perform any covenants of Tenant which Tenant

 

-34-

Hellyer Oaks Technology Park

Iridex Corporation

 


 

fails to perform. Landlord may make any such entries without the abatement of Rent, except as otherwise provided in this Lease, and may take such reasonable steps as required to accomplish the stated purposes. Tenant hereby waives any claims for damages or for any injuries or inconvenience to or interference with Tenant's business, lost profits, any loss of occupancy or quiet enjoyment of the Premises, and any other loss occasioned thereby. For each of the above purposes, Landlord shall at all times have a key with which to unlock all the doors in the Premises, excluding Tenant's vaults, safes and special security areas designated in advance by Tenant. In an emergency, Landlord shall have the right to use any means that Landlord may deem proper to open the doors in and to the Premises. Any entry into the Premises by Landlord in the manner hereinbefore described shall not be deemed to be a forcible or unlawful entry into, or a detainer of, the Premises, or an actual or constructive eviction of Tenant from any portion of the Premises. No provision of this Lease shall be construed as obligating Landlord to perform any repairs, alterations or decorations except as otherwise expressly agreed to be performed by Landlord herein.

SECTION 28

TENANT PARKING

Tenant shall have the right, but not the obligation, to rent from Landlord, commencing on the Lease Commencement Date, the amount of parking passes set forth in Section 9 of the Summary, on a monthly basis throughout the Lease Term, which parking passes shall pertain to the Project parking facility. Tenant shall be responsible for the full amount of any taxes imposed by any governmental authority in connection with the renting of such parking passes by Tenant or the use of the parking facility by Tenant. Tenant's continued right to use the parking passes is conditioned upon Tenant abiding by all rules and regulations which are prescribed from time to time for the orderly operation and use of the parking facility where the parking passes are located (including any sticker or other identification system established by Landlord and the prohibition of vehicle repair and maintenance activities in the Project's parking facilities), Tenant's cooperation in seeing that Tenant's employees and visitors also comply with such rules and regulations and Tenant not being in default under this Lease. Tenant's use of the Project parking facility shall be at Tenant's sole risk and Tenant acknowledges and agrees that Landlord shall have no liability whatsoever for damage to the vehicles of Tenant, its employees and/or visitors, or for other personal injury or property damage or theft relating to or connected with the parking rights granted herein or any of Tenant's, its employees' and/or visitors' use of the parking facilities. Landlord specifically reserves the right to change the size, configuration, design, layout and all other aspects of the Project parking facility at any time and Tenant acknowledges and agrees that Landlord may, without incurring any liability to Tenant and without any abatement of Rent under this Lease, from time to time, close-off or restrict access to the Project parking facility for purposes of permitting or facilitating any such construction, alteration or improvements. Landlord may delegate its responsibilities hereunder to a parking operator in which case such parking operator shall have all the rights of control attributed hereby to the Landlord. Landlord and/or such parking operator may institute a valet and/or a valet assist program at any time. The parking passes rented by Tenant pursuant to this Article 28 are provided to Tenant solely for use by Tenant's own personnel and such passes may not be transferred, assigned, subleased or otherwise alienated by Tenant without Landlord's prior approval. Tenant may validate visitor parking by such method or methods as the Landlord may establish, at the validation rate from time to time generally applicable to visitor parking.

SECTION 29

MISCELLANEOUS PROVISIONS

29.1 Terms; Captions. The words "Landlord" and "Tenant" as used herein shall include the plural as well as the singular. The necessary grammatical changes required to make the provisions hereof apply either to corporations or partnerships or individuals, men or women, as the case may require, shall in all cases be assumed as though in each case fully expressed. The captions of Articles and Sections are for convenience only and shall not be deemed to limit, construe, affect or alter the meaning of such Articles and Sections.

29.2 Binding Effect. Subject to all other provisions of this Lease, each of the covenants, conditions and provisions of this Lease shall extend to and shall, as the case may require, bind or inure to the benefit not only of Landlord and of Tenant, but also of their respective heirs, personal representatives, successors or assigns, provided this clause shall not permit any assignment by Tenant contrary to the provisions of Article 14 of this Lease.

 

-35-

Hellyer Oaks Technology Park

Iridex Corporation

 


 

29.3 No Air Rights. No rights to any view or to light or air over any property, whether belonging to Landlord or any other person, are granted to Tenant by this Lease. If at any time any windows of the Premises are temporarily darkened or the light or view therefrom is obstructed by reason of any repairs, improvements, maintenance or cleaning in or about the Project, the same shall be without liability to Landlord and without any reduction or diminution of Tenant's obligations under this Lease.

29.4 Modification of Lease. Should any current or prospective mortgagee or ground lessor for the Building or Project require a modification of this Lease, which modification will not cause an increased cost or expense to Tenant or in any other way materially and adversely change the rights and obligations of Tenant hereunder, then and in such event, Tenant agrees that this Lease may be so modified and agrees to execute whatever documents are reasonably required therefor and to deliver the same to Landlord within ten (10) business days following a request therefor. At the request of Landlord or any mortgagee or ground lessor, Tenant agrees to execute a short form of Lease and deliver the same to Landlord within ten (10) business days following the request therefor.

29.5 Transfer of Landlord's Interest. Tenant acknowledges that Landlord has the right to transfer all or any portion of its interest in the Project or Building and in this Lease, and Tenant agrees that in the event of any such transfer, Landlord shall automatically be released from all liability under this Lease and Tenant agrees to look solely to such transferee for the performance of Landlord's obligations hereunder after the date of transfer and such transferee shall be deemed to have fully assumed and be liable for all obligations of this Lease to be performed by Landlord, including the return of any Security Deposit, and Tenant shall attorn to such transferee.

29.6 Prohibition Against Recording. Except as provided in Section 29.4 of this Lease, neither this Lease, nor any memorandum, affidavit or other writing with respect thereto, shall be recorded by Tenant or by anyone acting through, under or on behalf of Tenant.

29.7 Landlord's Title. Landlord's title is and always shall be paramount to the title of Tenant. Nothing herein contained shall empower Tenant to do any act which can, shall or may encumber the title of Landlord.

29.8 Relationship of Parties. Nothing contained in this Lease shall be deemed or construed by the parties hereto or by any third party to create the relationship of principal and agent, partnership, joint venturer or any association between Landlord and Tenant.

29.9 Application of Payments. Landlord shall have the right to apply payments received from Tenant pursuant to this Lease, regardless of Tenant's designation of such payments, to satisfy any obligations of Tenant hereunder, in such order and amounts as Landlord, in its sole discretion, may elect.

29.10 Time of Essence. Time is of the essence with respect to the performance of every provision of this Lease in which time of performance is a factor.

29.11 Partial Invalidity. If any term, provision or condition contained in this Lease shall, to any extent, be invalid or unenforceable, the remainder of this Lease, or the application of such term, provision or condition to persons or circumstances other than those with respect to which it is invalid or unenforceable, shall not be affected thereby, and each and every other term, provision and condition of this Lease shall be valid and enforceable to the fullest extent possible permitted by law.

29.12 No Warranty. In executing and delivering this Lease, Tenant has not relied on any representations, including, but not limited to, any representation as to the amount of any item comprising Additional Rent or the amount of the Additional Rent in the aggregate or that Landlord is furnishing the same services to other tenants, at all, on the same level or on the same basis, or any warranty or any statement of Landlord which is not set forth herein or in one or more of the exhibits attached hereto.

29.13 Landlord Exculpation. The liability of Landlord or the Landlord Parties to Tenant for any default by Landlord under this Lease or arising in connection herewith or with Landlord's operation, management, leasing, repair, renovation, alteration or any other matter relating to the Project or the Premises shall be limited solely and exclusively to an amount which is equal to the lesser of (a) the interest of Landlord in the Building or (b) the equity

 

-36-

Hellyer Oaks Technology Park

Iridex Corporation

 


 

interest Landlord would have in the Building if the Building were encumbered by third-party debt in an amount equal to eighty percent (80%) of the value of the Building (as such value is determined by Landlord), provided that in no event shall such liability extend to any sales or insurance proceeds received by Landlord or the Landlord Parties in connection with the Project, Building or Premises. Neither Landlord, nor any of the Landlord Parties shall have any personal liability therefor, and Tenant hereby expressly waives and releases such personal liability on behalf of itself and all persons claiming by, through or under Tenant. The limitations of liability contained in this Section 29.13 shall inure to the benefit of Landlord's and the Landlord Parties' present and future partners, beneficiaries, officers, directors, trustees, shareholders, agents and employees, and their respective partners, heirs, successors and assigns. Under no circumstances shall any present or future partner of Landlord (if Landlord is a partnership), or trustee or beneficiary (if Landlord or any partner of Landlord is a trust), have any liability for the performance of Landlord's obligations under this Lease. Notwithstanding any contrary provision herein, neither Landlord nor the Landlord Parties shall be liable under any circumstances for injury or damage to, or interference with, Tenant's business, including but not limited to, loss of profits, loss of rents or other revenues, loss of business opportunity, loss of goodwill or loss of use, in each case, however occurring; similarly, except with respect to Tenant's violations of the provisions of this Lease regarding Hazardous Materials and Tenant's holding over in the Premises following the expiration or sooner termination of this Lease, Tenant shall not be liable under any circumstances for injury or damage to, or interference with, Landlord's business, including, but not limited to, loss of profits, loss of revenues (not including, however, loss of rents), loss of business opportunity, loss of goodwill or loss of use, in each case, however occurring.

29.14 Entire Agreement. It is understood and acknowledged that there are no oral agreements between the parties hereto affecting this Lease and this Lease constitutes the parties' entire agreement with respect to the leasing of the Premises and supersedes and cancels any and all previous negotiations, arrangements, brochures, agreements and understandings, if any, between the parties hereto or displayed by Landlord to Tenant with respect to the subject matter thereof, and none thereof shall be used to interpret or construe this Lease. None of the terms, covenants, conditions or provisions of this Lease can be modified, deleted or added to except in writing signed by the parties hereto.

29.15 Right to Lease. Landlord reserves the absolute right to effect such other tenancies in the Project as Landlord in the exercise of its sole business judgment shall determine to best promote the interests of the Building or Project. Tenant does not rely on the fact, nor does Landlord represent, that any specific tenant or type or number of tenants shall, during the Lease Term, occupy any space in the Building or Project.

29.16 Force Majeure. Notwithstanding anything to the contrary contained in this Lease, any prevention, delay or stoppage due to strikes, lockouts, labor disputes, acts of God, acts of war, terrorist acts, inability to obtain services, labor, or materials or reasonable substitutes therefor, governmental actions, civil commotions, Casualty, actual or threatened public health emergency (including, without limitation, epidemic, pandemic, famine, disease, plague, quarantine, and other significant public health risk), governmental edicts, actions, declarations or quarantines by a governmental entity or health organization (including, without limitation, any shelter-in-place orders, stay at home orders or any restrictions on travel related thereto that preclude Tenant, its agents, contractors or its employees from accessing the Premises, national or regional emergency), breaches in cybersecurity, and other causes beyond the reasonable control of the party obligated to perform, regardless of whether such other causes are (i) foreseeable or unforeseeable or (ii) related to the specifically enumerated events in this paragraph (collectively, a “Force Majeure”), shall excuse the performance of such party for a period equal to any such prevention, delay or stoppage. If this Lease specifies a time period for performance of an obligation of either party, that time period shall be extended by the period of any delay in such party's performance caused by a Force Majeure. Notwithstanding anything to the contrary in this Lease, no event of Force Majeure shall (i) excuse Tenant's obligations to pay Rent and other charges due pursuant to this Lease, (ii) be grounds for Tenant to abate any portion of Rent due pursuant to this Lease, or entitle either party to terminate this Lease, except as allowed pursuant to Articles 11 and 13 of this Lease, or (iii) excuse Tenant's obligations under Articles 5 and 24 of this Lease".

29.17 Waiver of Redemption by Tenant. Tenant hereby waives, for Tenant and for all those claiming under Tenant, any and all rights now or hereafter existing to redeem by order or judgment of any court or by any legal process or writ, Tenant's right of occupancy of the Premises after any termination of this Lease.

29.18 Notices. All notices, demands, statements, designations, approvals or other communications (collectively, “Notices”) given or required to be given by either party to the other hereunder or by law shall be in

 

-37-

Hellyer Oaks Technology Park

Iridex Corporation

 


 

writing, shall be (A) sent by United States certified or registered mail, postage prepaid, return receipt requested (“Mail”), (B) delivered by a nationally recognized overnight courier, or (C) delivered personally. Any Notice shall be sent, transmitted, or delivered, as the case may be, to Tenant at the appropriate address set forth in Section 10 of the Summary, or to such other place as Tenant may from time to time designate in a Notice to Landlord, or to Landlord at the addresses set forth below, or to such other places as Landlord may from time to time designate in a Notice to Tenant. Any Notice will be deemed given (i) three (3) days after the date it is posted if sent by Mail, (ii) the date the overnight courier delivery is made, or (iii) the date personal delivery is made. As of the date of this Lease, any Notices to Landlord must be sent, transmitted, or delivered, as the case may be, to the following addresses:

SFIII Hellyer, LLC and SFIII FOS Hellyer Holding, LLC
c/o Swift Realty Partners
260 California Street, Suite 1100
San Francisco, California 94111
Attn: Jack Waldsmith

with a copy to:

Allen Matkins Leck Gamble Mallory & Natsis LLP
1901 Avenue of the Stars, Suite 1800
Los Angeles, California 90067
Attention: Anton N. Natsis, Esq.

29.19 Joint and Several. If there is more than one Tenant, the obligations imposed upon Tenant under this Lease shall be joint and several. In the event that the Tenant is a married individual, the terms, covenants and conditions of this Lease shall be binding upon the marital community of which the Tenant is a member.

29.20 Authority. If Tenant is a corporation, trust or partnership, each individual executing this Lease on behalf of Tenant hereby represents and warrants that Tenant is a duly formed and existing entity qualified to do business in the State of California and that Tenant has full right and authority to execute and deliver this Lease and that each person signing on behalf of Tenant is authorized to do so. In such event, Tenant shall, within ten (10) days after execution of this Lease, deliver to Landlord satisfactory evidence of such authority and, if a corporation, upon demand by Landlord, also deliver to Landlord satisfactory evidence of (i) good standing in Tenant's state of incorporation and (ii) qualification to do business in the State of California.

29.21 Attorneys' Fees. In the event that either Landlord or Tenant should bring suit for the possession of the Premises, for the recovery of any sum due under this Lease, or because of the breach of any provision of this Lease or for any other relief against the other, then all costs and expenses, including reasonable attorneys' fees, incurred by the prevailing party therein shall be paid by the other party, which obligation on the part of the other party shall be deemed to have accrued on the date of the commencement of such action and shall be enforceable whether or not the action is prosecuted to judgment.

29.22 Governing Law; WAIVER OF TRIAL BY JURY. This Lease shall be construed and enforced in accordance with the laws of the State of California. IN ANY ACTION OR PROCEEDING ARISING HEREFROM, LANDLORD AND TENANT HEREBY CONSENT TO (I) THE JURISDICTION OF ANY COMPETENT COURT WITHIN THE STATE OF CALIFORNIA, (II) SERVICE OF PROCESS BY ANY MEANS AUTHORIZED BY CALIFORNIA LAW, AND (III) TO THE EXTENT PERMITTED BY APPLICABLE LAW, IN THE INTEREST OF SAVING TIME AND EXPENSE, TRIAL WITHOUT A JURY IN ANY ACTION, PROCEEDING OR COUNTERCLAIM BROUGHT BY EITHER OF THE PARTIES HERETO AGAINST THE OTHER OR THEIR SUCCESSORS IN RESPECT OF ANY MATTER ARISING OUT OF OR IN CONNECTION WITH THIS LEASE, THE RELATIONSHIP OF LANDLORD AND TENANT, TENANT'S USE OR OCCUPANCY OF THE PREMISES, AND/OR ANY CLAIM FOR INJURY OR DAMAGE, OR ANY EMERGENCY OR STATUTORY REMEDY. IN THE EVENT LANDLORD COMMENCES ANY SUMMARY PROCEEDINGS OR ACTION FOR NONPAYMENT OF BASE RENT OR ADDITIONAL RENT, TENANT SHALL NOT INTERPOSE ANY COUNTERCLAIM OF ANY NATURE OR DESCRIPTION (UNLESS SUCH COUNTERCLAIM SHALL BE MANDATORY) IN ANY SUCH PROCEEDING OR ACTION, BUT SHALL BE RELEGATED TO AN INDEPENDENT ACTION AT LAW.

 

-38-

Hellyer Oaks Technology Park

Iridex Corporation

 


 

29.23 Submission of Lease. Submission of this instrument for examination or signature by Tenant does not constitute a reservation of, option for or option to lease, and it is not effective as a lease or otherwise until execution and delivery by both Landlord and Tenant.

29.24 Brokers. Landlord and Tenant hereby warrant to each other that they have had no dealings with any real estate broker or agent in connection with the negotiation of this Lease, excepting only the real estate brokers or agents specified in Section 12 of the Summary (the “Brokers”), and that they know of no other real estate broker or agent who is entitled to a commission in connection with this Lease. Each party agrees to indemnify and defend the other party against and hold the other party harmless from any and all claims, demands, losses, liabilities, lawsuits, judgments, costs and expenses (including without limitation reasonable attorneys' fees) with respect to any leasing commission or equivalent compensation alleged to be owing on account of any dealings with any real estate broker or agent, other than the Brokers, occurring by, through, or under the indemnifying party. The terms of this Section 29.24 shall survive the expiration or earlier termination of the Lease Term.

29.25 Independent Covenants. This Lease shall be construed as though the covenants herein between Landlord and Tenant are independent and not dependent and Tenant hereby expressly waives the benefit of any statute to the contrary and agrees that if Landlord fails to perform its obligations set forth herein, Tenant shall not be entitled to make any repairs or perform any acts hereunder at Landlord's expense or to any setoff of the Rent or other amounts owing hereunder against Landlord.

29.26 Project or Building Name, Address and Signage. Landlord shall have the right at any time to change the name and/or address of the Project or Building and to install, affix and maintain any and all signs on the exterior and on the interior of the Project or Building as Landlord may, in Landlord's sole discretion, desire. Tenant shall not use the name of the Project or Building or use pictures or illustrations of the Project or Building in advertising or other publicity or for any purpose other than as the address of the business to be conducted by Tenant in the Premises, without the prior written consent of Landlord.

29.27 Counterparts. This Lease may be executed in counterparts with the same effect as if both parties hereto had executed the same document. Both counterparts shall be construed together and shall constitute a single lease.

29.28 Confidentiality. Tenant acknowledges that the content of this Lease and any related documents are confidential information. Tenant shall keep such confidential information strictly confidential and shall not disclose such confidential information to any person or entity other than Tenant's financial, legal, and space planning consultants.

29.29 Building Renovations. It is specifically understood and agreed that Landlord has no obligation and has made no promises to alter, remodel, improve, renovate, repair or decorate the Premises, Building, or any part thereof and that no representations respecting the condition of the Premises or the Building have been made by Landlord to Tenant except as specifically set forth herein or in the Tenant Work Letter. However, Tenant hereby acknowledges that Landlord is currently renovating or may during the Lease Term renovate, improve, alter, or modify (collectively, the “Renovations”) the Project, the Building and/or the Premises. Tenant hereby agrees that such Renovations shall in no way constitute a constructive eviction of Tenant nor entitle Tenant to any abatement of Rent. Landlord shall have no responsibility and shall not be liable to Tenant for any injury to or interference with Tenant's business arising from the Renovations, nor shall Tenant be entitled to any compensation or damages from Landlord for loss of the use of the whole or any part of the Premises or of Tenant's personal property or improvements resulting from the Renovations, or for any inconvenience or annoyance occasioned by such Renovations; provided, however, that Landlord shall use commercially reasonable efforts to perform any such Renovations in a manner that does not unreasonably interfere with Tenant's access to the Premises.

29.30 No Violation. Tenant hereby warrants and represents that neither its execution of nor performance under this Lease shall cause Tenant to be in violation of any agreement, instrument, contract, law, rule or regulation by which Tenant is bound, and Tenant shall protect, defend, indemnify and hold Landlord harmless against any claims, demands, losses, damages, liabilities, costs and expenses, including, without limitation, reasonable attorneys' fees and costs, arising from Tenant's breach of this warranty and representation.

 

-39-

Hellyer Oaks Technology Park

Iridex Corporation

 


 

29.31 Communications and Computer Lines. Tenant may install, maintain, replace, remove or use any communications or computer wires and cables serving the Premises (collectively, the “Lines”), provided that (i) Tenant shall obtain Landlord's prior written consent, use an experienced and qualified contractor approved in writing by Landlord, and comply with all of the other provisions of Articles 7 and 8 of this Lease, (ii) an acceptable number of spare Lines and space for additional Lines shall be maintained for existing and future occupants of the Project, as determined in Landlord's reasonable opinion, (iii) the Lines therefor (including riser cables) shall be appropriately insulated to prevent excessive electromagnetic fields or radiation, shall be surrounded by a protective conduit reasonably acceptable to Landlord, and shall be identified in accordance with the "Identification Requirements," as that term is set forth hereinbelow, (iv) any new or existing Lines servicing the Premises shall comply with all applicable governmental laws and regulations, (v) as a condition to permitting the installation of new Lines, Landlord may require that Tenant remove existing Lines located in or serving the Premises and repair any damage in connection with such removal, and (vi) Tenant shall pay all costs in connection therewith. All Lines shall be clearly marked with adhesive plastic labels (or plastic tags attached to such Lines with wire) to show Tenant's name, suite number, telephone number and the name of the person to contact in the case of an emergency (A) every four feet (4') outside the Premises (specifically including, but not limited to, the electrical room risers and other Common Areas), and (B) at the Lines' termination point(s) (collectively, the “Identification Requirements”). Prior to the expiration or earlier termination of this Lease, Tenant shall, at Tenant's sole cost and expense, remove any Lines located in or serving the Premises.

29.32 Development of the Project.

29.32.1 Subdivision. Landlord reserves the right to further subdivide all or a portion of the Project. Tenant agrees to execute and deliver, upon demand by Landlord and in the form requested by Landlord, any additional documents needed to conform this Lease to the circumstances resulting from such subdivision.

29.32.2 The Other Improvements. If portions of the Project or property adjacent to the Project (collectively, the “Other Improvements”) are owned by an entity other than Landlord, Landlord, at its option, may enter into an agreement with the owner or owners of any or all of the Other Improvements to provide (i) for reciprocal rights of access and/or use of the Project and the Other Improvements, (ii) for the common management, operation, maintenance, improvement and/or repair of all or any portion of the Project and the Other Improvements, provided that Tenant's rights under this Lease are not materially impaired, (iii) for the allocation of a portion of the Direct Expenses to the Other Improvements and the operating expenses and taxes for the Other Improvements to the Project, and (iv) for the use or improvement of the Other Improvements and/or the Project in connection with the improvement, construction, and/or excavation of the Other Improvements and/or the Project. Nothing contained herein shall be deemed or construed to limit or otherwise affect Landlord's right to convey all or any portion of the Project or any other of Landlord's rights described in this Lease.

29.32.3 Construction of Project and Other Improvements. Tenant acknowledges that portions of the Project and/or the Other Improvements may be subject to demolition or construction following Tenant's occupancy of the Premises, and that such construction may result in levels of noise, dust, obstruction of access, etc. which are in excess of that present in a fully constructed project. Tenant hereby waives any and all rent offsets or claims of constructive eviction which may arise in connection with such demolition or construction.

29.33 Waiver of Claims. As a material inducement to Landlord to enter into this Lease, Tenant hereby releases Landlord from, and hereby waives, any and all losses, costs, damages, expenses, liabilities, claims and causes of action (collectively, the "Released Claims") arising from or related to Tenant's inability or limitation to conduct operations from the Premises as a result of any "shelter in place" orders or similar governmental directives, including, without limitation, any claims for, and/or rights of, termination of this Lease and/or abatement, offset and/or deferral of Rent under this Lease, at law and/or in equity related to the inability of Tenant to conduct operations from the Premises as a result of any "shelter in place" orders or similar governmental directives related thereto. With respect to the Released Claims, Tenant acknowledges that Tenant has either been advised by legal counsel or has made itself familiar with the provisions of California Civil Code Section 1542, which provides as follows: A GENERAL RELEASE DOES NOT EXTEND TO CLAIMS THAT THE CREDITOR OR RELEASING PARTY DOES NOT KNOW OR SUSPECT TO EXIST IN HIS OR HER FAVOR AT THE TIME OF EXECUTING THE RELEASE AND THAT, IF KNOWN BY HIM OR HER, WOULD HAVE MATERIALLY AFFECTED HIS OR HER SETTLEMENT WITH THE DEBTOR OR RELEASED PARTY. Tenant, being aware of the foregoing

 

-40-

Hellyer Oaks Technology Park

Iridex Corporation

 


 

code section, hereby expressly waives any rights Tenant may have thereunder, as well as under any other statutes or common-law principles of similar effect, pertaining to the Released Claims.

29.34 Hazardous Materials. Landlord and Tenant agree as follows with respect to the existence or use of "Hazardous Materials," as that term is defined in Section 29.34.4, below, on the Project.

29.34.1 Hazardous Materials Disclosure Certificate. Upon request by Landlord from time to time, Tenant shall deliver to Landlord an executed Hazardous Materials disclosure statement, substantially in the form reasonably required by Landlord from time to time describing Tenant's then-present use of Hazardous Materials on the Premises, and shall also deliver any other reasonably necessary documents as requested by Landlord. Tenant shall concurrently file with Landlord a copy of any business response plan or inventory required to be maintained and/or filed with any federal, state or local regulatory agency under any Applicable Laws. Landlord and Tenant acknowledge and agree that, as of the date of this Lease, Tenant has fully and accurately completed Landlord's pre-leasing environmental exposures questionnaire (the "Environmental Questionnaire" and the Hazardous Materials set forth therein, the "Approved Hazardous Materials"), as set forth on Exhibit F attached hereto (the "Approved Hazardous Materials Exhibit").

29.34.2 Hazardous Materials Usage. Neither Tenant, nor Tenant's employees, contractors and subcontractors of any tier, entities with a contractual relationship with Tenant (other than Landlord), or any entity acting as an agent or sub-agent of Tenant, shall be entitled to produce, use, store, generate, transport or dispose of any Hazardous Materials on, in, or about any portion of the Premises, Building or the Project, nor cause or permit any Hazardous Materials to be brought upon, placed, stored, manufactured, generated, blended, handled, recycled, used or released on, in, under or about the Premises (herein referred to as "Hazardous Materials Usage") which were not specifically listed on the Approved Hazardous Materials Exhibit, without, in each instance, obtaining Landlord's prior written consent thereto, which consent shall not be unreasonably withheld, conditioned or delayed; provided, however, that in the event Tenant desires to use, store or dispose of Hazardous Materials which are not similar to the Hazardous Materials specifically listed on the Approved Hazardous Materials Exhibit in terms of their hazardous character, handling profile, usage and quantity ("New Hazardous Materials Usage"), then Landlord shall have the right to impose additional terms and conditions on this Lease based upon such the hazardous character, handling profile, use, storage and/or disposal of such New Hazardous Materials Usage, to the extent such additional terms and conditions are consistent with the requirements of landlords of comparable projects in the vicinity of the Project when leasing space to tenants using Hazardous Materials materially similar to the New Hazardous Materials Usage in terms of hazardous character, handling profile, usage and quantity. Tenant shall not be entitled nor permitted to install any tanks under, on or about the Premises, Building or Project for the storage of Hazardous Materials without the express written consent of Landlord, which may be given or withheld in Landlord's sole and absolute discretion. If any information provided to Landlord by Tenant on the Approved Hazardous Materials Exhibit, or otherwise relating to information concerning Hazardous Materials is false, incomplete, or misleading in any material respect, the same shall be deemed a default by Tenant under this Lease. Any Hazardous Materials Usage by Tenant and/or other Tenant Parties after the date of this Lease on or about the Project shall strictly comply with all applicable laws, including all Hazardous Materials Laws (as defined in Section 29.34.4, below) now or hereinafter enacted. Such foregoing obligation shall include, without limitation, maintaining, and complying with, all required necessary licenses, certifications, permits and approvals appropriate or required for any Hazardous Materials Usage by Tenant on the Premises. Landlord shall have a continuing right, without obligation, to require Tenant to obtain, and to review and inspect any and all such permits, licenses, certifications and approvals, together with copies of any and all Hazardous Materials management plans and programs, any and all Hazardous Materials risk management and pollution prevention programs, and any and all Hazardous Materials emergency response and employee training programs respecting Tenant's Hazardous Materials Usage. Upon request of Landlord, Tenant shall deliver to Landlord a narrative description explaining the nature and scope of Tenant's activities involving Hazardous Materials and demonstrating to Landlord's satisfaction Tenant's compliance with all Hazardous Materials Laws and the terms of this Lease.

29.34.3 Indemnity. Tenant shall indemnify, hold harmless, and, at Landlord's option (with such attorneys as Landlord may reasonably approve in advance and in writing), defend Landlord Parties and other lien holders, from and against any and all Losses (as hereinafter defined) arising from or related to: (a) any violation or alleged violation by Tenant and/or other Tenant Parties of any of the Laws, including, without limitation, the Hazardous Materials Laws; (b) any breach of the provisions of this Section 29.34 or any subsection thereof by Tenant

 

-41-

Hellyer Oaks Technology Park

Iridex Corporation

 


 

and/or other Tenant Parties; (c) any Hazardous Materials Usage on, about or from the Premises, the Project or Common Areas of any Hazardous Materials approved by Landlord under this Lease, or (d) Landlord's exercise of its cure rights in Article 26, above. The term "Losses" shall mean all claims, demands, expenses, actions, judgments, damages, penalties, fines, liabilities, losses of every kind and nature (including, without limitation, property damage, diminution in value of Landlord's interest in the Premises or the Project, damages for the loss or restriction on use of any space or amenity within the Building or the Project, damages arising from any adverse impact on marketing space in the Project, sums paid in settlement of claims and any costs and expenses associated with injury, illness or death to or of any person), suits, administrative proceedings, costs and fees, including, but not limited to, attorneys' and consultants' fees and expenses, and the costs of cleanup, remediation, removal and restoration.

29.34.4 Hazardous Materials. As used herein, the term "Hazardous Materials" means any hazardous, radioactive or toxic substance, material or waste which is or becomes regulated by any local governmental authority, the State of California or the United States Government or under any Hazardous Material Laws. The term "Hazardous Materials," includes, without limitation, hazardous radioactive material, radioactive material, mixed waste, petroleum products, asbestos, PCB's, and any material or substance which is (i) listed under Article 9, or defined as hazardous or extremely hazardous pursuant to Article 11 of Title 22, of the California Code of Regulations, Division 4, Chapter 20, (ii) defined as a "hazardous waste" pursuant to Section 1004 of the federal Resource Conservation and Recovery Act, 42 U.S.C. 6901 et seq. (42 U.S.C. 6903), (iii) defined as a "hazardous substance" pursuant to Section 101 of the Comprehensive Environmental Response, Compensation and Liability Act, 42 U.S.C. 9601 et seq. (42 U.S.C. 9601) or (iv) regulated as a radioactive material under Title 17, Division 1, Chapter 5, Subchapter 4 of the California Code or Regulations and Title 10, Code of Federal Regulations, part 20. As used herein, the term "Hazardous Material Laws" shall mean any statute, law, ordinance, or regulation of any governmental body or agency (including the U.S. Environmental Protection Agency, the California Regional Water Quality Control Board, the California Department of Public Health Radiologic Health Branch and the California Department of Toxic Substances Control) which regulates the use, storage, release or disposal of any Hazardous Material.

29.34.5 Survival. The obligations of Tenant under this Section 29.34 shall survive the expiration or earlier termination of this Lease, and shall remain effective until all of Tenant's obligations under this Section 29.34 have been completely performed and satisfied. The rights and obligations of Landlord and Tenant with respect to issues relating to Hazardous Materials are exclusively established by this Section 29.34. In the event of any inconsistency between any other part of this Lease and Section 29.34, the terms of this Section 29.34 shall control.

[signatures contained on following page]

 

-42-

Hellyer Oaks Technology Park

Iridex Corporation

 


 

IN WITNESS WHEREOF, Landlord and Tenant have caused this Lease to be executed the day and date first above written.

 

 

LANDLORD:

SFIII HELLYER, LLC,
a Delaware limited liability company

By: Swift Real Estate Partners Fund III OP, LLC,
a Delaware limited liability company,
its sole member

By: Swift Fund III GP, LLC,
a Delaware limited liability company
its managing member

By: /s/Damian P. Manolis
Name: Damian P. Manolis
Its: Authorized Signatory

SFIII FOS HELLYER HOLDING, LLC,
a Delaware limited liability company

By: SFIII FOS Hellyer, LLC,
a California limited liability company

By: Swift Fund III GP, LLC,
a Delaware limited liability company

By: /s/Damian P. Manolis
Name: Damian P. Manolis
Its: Authorized Signatory

TENANT:

IRIDEX CORPORATION,
a Delaware corporation

By: /s/ Patrick Mercer
Name: Patrick Mercer
Its: CEO

 

 

 

 

 

-43-

Hellyer Oaks Technology Park

Iridex Corporation

 


 

EXHIBIT A

HELLYER OAKS TECHNOLOGY PARK

OUTLINE OF PREMISES

img238073356_0.jpg

 

 

 

Exhibit A

-1-

Hellyer Oaks Technology Park

Iridex Corporation

 


 

EXHIBIT B

HELLYER OAKS TECHNOLOGY PARK

TENANT WORK LETTER

This Tenant Work Letter shall set forth the terms and conditions relating to the construction of the tenant improvements in the Premises. This Tenant Work Letter is essentially organized chronologically and addresses the issues of the construction of the Premises, in sequence, as such issues will arise during the actual construction of the Premises. All references in this Tenant Work Letter to Articles or Sections of "this Lease" shall mean the relevant portion of Articles 1 through 29 of the Office Lease to which this Tenant Work Letter is attached as Exhibit B and of which this Tenant Work Letter forms a part, and all references in this Tenant Work Letter to Sections of "this Tenant Work Letter" shall mean the relevant portion of Sections 1 through 4 of this Tenant Work Letter.

SECTION 1

CONSTRUCTION DRAWINGS FOR THE PREMISES

1.1 Approved Work Drawings and Tenant Improvements. Landlord shall be solely responsible, at Landlord's sole cost and expense, to construct the improvements in the Premises described on Schedule 1 attached hereto (the "Tenant Improvements") pursuant to the space plan on Schedule 1 attached hereto (collectively, the "Approved Working Drawings"). Tenant shall make no changes or modifications to the Approved Working Drawings without the prior written consent of Landlord, which consent may be withheld in Landlord's sole discretion if such change or modification would directly or indirectly delay the "Substantial Completion," as that term is defined in Section 4.1 of this Tenant Work Letter, of the Premises or increase the cost of designing or constructing the Tenant Improvements.

1.2 Tenant Approved Installation. Notwithstanding anything to the contrary in this Tenant Work Letter or the Lease, Tenant shall, at its sole cost and expense, be responsible for all installations within the Premises in accordance with this Section 1.2. All installations must comply with Applicable Laws and Building requirements.

1.2.1 Tenant Communication Devices Installation. Tenant shall be responsible for the installation, maintenance, and removal of all communication devices serving the Premises. Such work shall not interfere with Landlord's construction of the Tenant Improvements and must comply with Applicable Laws and Building requirements.

SECTION 2

CONTRACTOR'S WARRANTIES AND GUARANTIES

Landlord hereby assigns to Tenant all warranties and guaranties by the contractor who constructs the Tenant Improvements (the "Contractor") relating to the Tenant Improvements. Notwithstanding the foregoing, Tenant shall not be deemed to have waived, and Tenant expressly reserves, any claims and remedies against Landlord arising from Landlord's failure to perform its express obligations under this Tenant Work Letter or the Lease, or arising from Landlord's gross negligence or willful misconduct.

SECTION 3

COMPLETION OF THE TENANT IMPROVEMENTS;
LEASE COMMENCEMENT DATE

3.1 Substantially Complete. The Premises shall be deemed "Substantially Completed" upon the Substantial Completion of the Premises. For purposes of this Lease, "Substantial Completion" of the Premises shall

 

B-1-1

 

 


 

occur upon the completion of construction of the Tenant Improvements in the Premises pursuant to the Approved Working Drawings, with the exception of any punch list items and any tenant fixtures, work-stations, built-in furniture, or equipment to be installed by Tenant or under the supervision of Contractor.

3.2 Delay of the Substantial Completion of the Premises. Except as provided in this Section 3.2, the Lease Commencement Date shall occur as set forth in the Lease and Section 3.1, above. If there shall be a delay or there are delays in the Substantial Completion of the Premises or in the occurrence of any of the other conditions precedent to the Lease Commencement Date, as set forth in of the Lease, as a direct, indirect, partial, or total result of the following to the extent such items delay Substantial Completion:

3.2.1 Tenant's failure to timely approve any matter requiring Tenant's approval;

3.2.2 A breach by Tenant of the terms of this Tenant Work Letter or the Lease;

3.2.3 Tenant's request for changes in the Approved Working Drawings that are approved by Tenant and implemented by Landlord or Contractor;

3.2.4 Tenant's requirement for materials, components, finishes or improvements which are not available in a commercially reasonable time given the anticipated date of Substantial Completion of the Premises, as set forth in the Lease, or which are different from, or not included in, Landlord's standard improvement package items for the Building. Notwithstanding the foregoing, Tenant's selection of finishes, materials, and items from Landlord's then-current standard improvement package shall not constitute a Tenant delay, and any delay resulting from the unavailability or lead time of such standard improvement package items shall not be deemed a Tenant delay; or

3.2.5 Any other acts or omissions of Tenant, or its agents, or employees (excluding the acts or omissions of Landlord or Contractor);

then, notwithstanding anything to the contrary set forth in the Lease or this Tenant Work Letter and regardless of the actual date of the Substantial Completion of the Premises, the date of Substantial Completion of the Premises shall be deemed to be the date the Substantial Completion of the Premises would have occurred if no Tenant delay or delays, as set forth above, had occurred.

SECTION 4

MISCELLANEOUS

4.1 Tenant's Representative. Tenant has designated Patrick Mercer as its sole representative with respect to the matters set forth in this Tenant Work Letter, who, until further notice to Landlord, shall have full authority and responsibility to act on behalf of the Tenant as required in this Tenant Work Letter.

4.2 Landlord's Representative. Landlord has designated Jack Waldsmith as its sole representative with respect to the matters set forth in this Tenant Work Letter, who, until further notice to Tenant, shall have full authority and responsibility to act on behalf of the Landlord as required in this Tenant Work Letter.

4.3 Tenant's Agents. All contractors, subcontractors, laborers, materialmen, and suppliers engaged by Tenant shall be properly licensed and insured and shall comply with Applicable Laws and Building Rules and Regulations. Union labor shall be required only to the extent mandated by Applicable Laws or required for work affecting base building systems or work performed outside the Premises.

4.4 Time of the Essence in This Tenant Work Letter. Unless otherwise indicated, all references herein to a "number of days" shall mean and refer to calendar days. In all instances where Tenant is required to approve or deliver an item, if no written notice of approval is given or the item is not delivered within the stated time period, at Landlord's sole option, at the end of such period the item shall automatically be deemed approved or delivered by Tenant and the next succeeding time period shall commence.

 

B-1-2

 

 


 

4.5 Tenant's Lease Default. Notwithstanding any provision to the contrary contained in this Lease, if an event of default beyond any applicable notice and cure period as described in the Lease, or a default by Tenant under this Tenant Work Letter with respect to Tenant's payment obligations relating to the Tenant Improvements, has occurred at any time on or before the Substantial Completion of the Premises, then (i) in addition to all other rights and remedies granted to Landlord pursuant to the Lease, Landlord shall have the right to cause Contractor to cease the construction of the Premises until such monetary default is cured (in which case, Tenant shall be responsible for any delay in the Substantial Completion of the Premises caused by such work stoppage as set forth in Section 3 of this Tenant Work Letter), and (ii) all other obligations of Landlord under the terms of this Tenant Work Letter shall be suspended until such time as such default is cured pursuant to the terms of the Lease, however, Landlord shall not exercise the foregoing rights if Tenant is disputing the appliable payment obligation in good faith and has timely paid all undisputed amounts.

4.6 Electronic Mail. Any notices, demands, statements or communications given, or required to be given, by one party to the other pursuant to this Tenant Work Letter, may be given: (i) by e-mail to Tenant at pmercer@iridex.com, Attention: Patrick Mercer, and (ii) by e-mail to Landlord at waldsmith@swiftrp.com, Attention: Jack Waldsmith; or such other e-mail address as Tenant or Landlord may provide to the other, in writing, as the case may be.

 

B-1-3

 

 


 

Schedule 1 to Exhibit B

Description and Drawing of Tenant Improvements

1. Install eleven (11) additional private offices along window line.

2. Add three (3) walls with doors for additional offices.

3. Install an information-technology room ("IT Room") with dedicated air, power drops, and outlets.

4. Remove carpet from small research and development lab area.

5. Merge the 5,460 square foot lab space into Suite 150 and incorporate the following Tenant Improvements, as displayed in green in the attached floor plan below:

a. Install two (2) double doors on the wall facing the hallway.

i. The double door closest to the break room should be 8 feet from the exit door on the right.

b. Remove the gowning room and replace this space with an opening.

c. Create an opening by the double door closest to the stairway/exit.

6. Repair damaged walls and floors in warehouse; prepare space to be move-in ready.

img238073356_1.jpg

 

B-1-4

 

 


 

EXHIBIT C

HELLYER OAKS TECHNOLOGY PARK

NOTICE OF LEASE TERM DATES

To: _______________________
_______________________
_______________________
_______________________
 

Re: Office Lease dated ____________, 20___ between ____________________, a _____________________ ("Landlord"), and _______________________, a _______________________ ("Tenant") concerning Suite ______ on floor(s) __________ of the office building located at __________________, __________________, ________________________.

Gentlemen:

In accordance with the Office Lease (the "Lease"), we wish to advise you and/or confirm as follows:

1. The Lease Term shall commence on or has commenced on _____________ for a term of _______________ ending on _______________.

2. Rent commenced to accrue on ____________, in the amount of ____________.

3. If the Lease Commencement Date is other than the first day of the month, the first billing will contain a pro rata adjustment. Each billing thereafter, with the exception of the final billing, shall be for the full amount of the monthly installment as provided for in the Lease.

4. Your rent checks should be made payable to __________ at ______________.

 

 

"Landlord":

,
a

By:
      Its:

Agreed to and Accepted as
of
, 20_ .

"Tenant":


a

By:
     Its:

 

 

 

EXHIBIT C

-1-

Hellyer Oaks Technology Park

Iridex Corporation

 


 

EXHIBIT D

HELLYER OAKS TECHNOLOGY PARK

RULES AND REGULATIONS

Tenant shall faithfully observe and comply with the following Rules and Regulations. Landlord shall not be responsible to Tenant for the nonperformance of any of said Rules and Regulations by or otherwise with respect to the acts or omissions of any other tenants or occupants of the Project. In the event of any conflict between the Rules and Regulations and the other provisions of this Lease, the latter shall control.

1. Tenant shall not alter any lock or install any new or additional locks or bolts on any doors or windows of the Premises without obtaining Landlord's prior written consent. Tenant shall bear the cost of any lock changes or repairs required by Tenant. Two keys will be furnished by Landlord for the Premises, and any additional keys required by Tenant must be obtained from Landlord at a reasonable cost to be established by Landlord. Upon the termination of this Lease, Tenant shall restore to Landlord all keys of stores, offices, and toilet rooms, either furnished to, or otherwise procured by, Tenant and in the event of the loss of keys so furnished, Tenant shall pay to Landlord the cost of replacing same or of changing the lock or locks opened by such lost key if Landlord shall deem it necessary to make such changes.

2. All doors opening to public corridors shall be kept closed at all times except for normal ingress and egress to the Premises.

3. Landlord reserves the right to close and keep locked all entrance and exit doors of the Building during such hours as are customary for comparable buildings in the vicinity of the Building. Tenant, its employees and agents must be sure that the doors to the Building are securely closed and locked when leaving the Premises if it is after the normal hours of business for the Building. Any tenant, its employees, agents or any other persons entering or leaving the Building at any time when it is so locked, or any time when it is considered to be after normal business hours for the Building, may be required to sign the Building register. Access to the Building may be refused unless the person seeking access has proper identification or has a previously arranged pass for access to the Building. Landlord will furnish passes to persons for whom Tenant requests same in writing. Tenant shall be responsible for all persons for whom Tenant requests passes and shall be liable to Landlord for all acts of such persons. The Landlord and his agents shall in no case be liable for damages for any error with regard to the admission to or exclusion from the Building of any person. In case of invasion, mob, riot, public excitement, or other commotion, Landlord reserves the right to prevent access to the Building or the Project during the continuance thereof by any means it deems appropriate for the safety and protection of life and property.

4. No furniture, freight or equipment of any kind shall be brought into the Building without prior notice to Landlord. All moving activity into or out of the Building shall be scheduled with Landlord and done only at such time and in such manner as Landlord designates. Landlord shall have the right to prescribe the weight, size and position of all safes and other heavy property brought into the Building and also the times and manner of moving the same in and out of the Building. Safes and other heavy objects shall, if considered necessary by Landlord, stand on supports of such thickness as is necessary to properly distribute the weight. Landlord will not be responsible for loss of or damage to any such safe or property in any case. Any damage to any part of the Building, its contents, occupants or visitors by moving or maintaining any such safe or other property shall be the sole responsibility and expense of Tenant.

5. No furniture, packages, supplies, equipment or merchandise will be received in the Building or carried up or down in the elevators, except between such hours, in such specific elevator and by such personnel as shall be designated by Landlord.

6. The requirements of Tenant will be attended to only upon application at the management office for the Project or at such office location designated by Landlord. Employees of Landlord shall not perform any work or do anything outside their regular duties unless under special instructions from Landlord.

 

Exhibit D

-1-

Hellyer Oaks Technology Park

Iridex Corporation

 


 

7. No sign, advertisement, notice or handbill shall be exhibited, distributed, painted or affixed by Tenant on any part of the Premises or the Building without the prior written consent of the Landlord. Tenant shall not disturb, solicit, peddle, or canvass any occupant of the Project and shall cooperate with Landlord and its agents of Landlord to prevent same.

8. The toilet rooms, urinals, wash bowls and other apparatus shall not be used for any purpose other than that for which they were constructed, and no foreign substance of any kind whatsoever shall be thrown therein. The expense of any breakage, stoppage or damage resulting from the violation of this rule shall be borne by the tenant who, or whose servants, employees, agents, visitors or licensees shall have caused same.

9. Tenant shall not overload the floor of the Premises, nor mark, drive nails or screws, or drill into the partitions, woodwork or drywall or in any way deface the Premises or any part thereof without Landlord's prior written consent. Tenant shall not purchase spring water, ice, towel, linen, maintenance or other like services from any person or persons not approved by Landlord.

10. Except for vending machines intended for the sole use of Tenant's employees and invitees, no vending machine or machines other than fractional horsepower office machines shall be installed, maintained or operated upon the Premises without the written consent of Landlord.

11. Tenant shall not use or keep in or on the Premises, the Building, or the Project any kerosene, gasoline or other inflammable or combustible fluid, chemical, substance or material.

12. Tenant shall not without the prior written consent of Landlord use any method of heating or air conditioning other than that supplied by Landlord.

13. Tenant shall not use, keep or permit to be used or kept, any foul or noxious gas or substance in or on the Premises, or permit or allow the Premises to be occupied or used in a manner offensive or objectionable to Landlord or other occupants of the Project by reason of noise, odors, or vibrations, or interfere with other tenants or those having business therein, whether by the use of any musical instrument, radio, phonograph, or in any other way. Tenant shall not throw anything out of doors, windows or skylights or down passageways.

14. Tenant shall not bring into or keep within the Project, the Building or the Premises any animals, birds, aquariums, or, except in areas designated by Landlord, bicycles or other vehicles.

15. No cooking shall be done or permitted on the Premises, nor shall the Premises be used for the storage of merchandise, for lodging or for any improper, objectionable or immoral purposes. Notwithstanding the foregoing, Underwriters' laboratory-approved equipment and microwave ovens may be used in the Premises for heating food and brewing coffee, tea, hot chocolate and similar beverages for employees and visitors, provided that such use is in accordance with all applicable federal, state, county and city laws, codes, ordinances, rules and regulations.

16. The Premises shall not be used for manufacturing or for the storage of merchandise except as such storage may be incidental to the use of the Premises provided for in the Summary. Tenant shall not occupy or permit any portion of the Premises to be occupied as an office for a messenger-type operation or dispatch office, public stenographer or typist, or for the manufacture or sale of liquor, narcotics, or tobacco in any form, or as a medical office, or as a barber or manicure shop, or as an employment bureau without the express prior written consent of Landlord. Tenant shall not engage or pay any employees on the Premises except those actually working for such tenant on the Premises nor advertise for laborers giving an address at the Premises.

17. Landlord reserves the right to exclude or expel from the Project any person who, in the judgment of Landlord, is intoxicated or under the influence of liquor or drugs, or who shall in any manner do any act in violation of any of these Rules and Regulations.

18. Tenant, its employees and agents shall not loiter in or on the entrances, corridors, sidewalks, lobbies, courts, halls, stairways, elevators, vestibules or any Common Areas for the purpose of smoking tobacco products or

 

Exhibit D

-2-

Hellyer Oaks Technology Park

Iridex Corporation

 


 

for any other purpose, nor in any way obstruct such areas, and shall use them only as a means of ingress and egress for the Premises.

19. Tenant shall not waste electricity, water or air conditioning and agrees to cooperate fully with Landlord to ensure the most effective operation of the Building's heating and air conditioning system, and shall refrain from attempting to adjust any controls.

20. Tenant shall store all its trash and garbage within the interior of the Premises. No material shall be placed in the trash boxes or receptacles if such material is of such nature that it may not be disposed of in the ordinary and customary manner of removing and disposing of trash and garbage in city in which the Building is located without violation of any law or ordinance governing such disposal. All trash, garbage and refuse disposal shall be made only through entry-ways and elevators provided for such purposes at such times as Landlord shall designate.

21. Tenant shall comply with all safety, fire protection and evacuation procedures and regulations established by Landlord or any governmental agency.

22. Any persons employed by Tenant to do janitorial work shall be subject to the prior written approval of Landlord, and while in the Building and outside of the Premises, shall be subject to and under the control and direction of the Building manager (but not as an agent or servant of such manager or of Landlord), and Tenant shall be responsible for all acts of such persons.

23. No awnings or other projection shall be attached to the outside walls of the Building without the prior written consent of Landlord, and no curtains, blinds, shades or screens shall be attached to or hung in, or used in connection with, any window or door of the Premises other than Landlord standard drapes. All electrical ceiling fixtures hung in the Premises or spaces along the perimeter of the Building must be fluorescent and/or of a quality, type, design and a warm white bulb color approved in advance in writing by Landlord. Neither the interior nor exterior of any windows shall be coated or otherwise sunscreened without the prior written consent of Landlord. Tenant shall abide by Landlord's regulations concerning the opening and closing of window coverings which are attached to the windows in the Premises, if any, which have a view of any interior portion of the Building or Building Common Areas.

24. The sashes, sash doors, skylights, windows, and doors that reflect or admit light and air into the halls, passageways or other public places in the Building shall not be covered or obstructed by Tenant, nor shall any bottles, parcels or other articles be placed on the windowsills.

25. Tenant must comply with requests by the Landlord concerning the informing of their employees of items of importance to the Landlord.

26. Tenant must comply with the State of California "No‑Smoking" law set forth in California Labor Code Section 6404.5, and any local "No‑Smoking" ordinance which may be in effect from time to time and which is not superseded by such State law.

27. Tenant hereby acknowledges that Landlord shall have no obligation to provide guard service or other security measures for the benefit of the Premises, the Building or the Project. Tenant hereby assumes all responsibility for the protection of Tenant and its agents, employees, contractors, invitees and guests, and the property thereof, from acts of third parties, including keeping doors locked and other means of entry to the Premises closed, whether or not Landlord, at its option, elects to provide security protection for the Project or any portion thereof. Tenant further assumes the risk that any safety and security devices, services and programs which Landlord elects, in its sole discretion, to provide may not be effective, or may malfunction or be circumvented by an unauthorized third party, and Tenant shall, in addition to its other insurance obligations under this Lease, obtain its own insurance coverage to the extent Tenant desires protection against losses related to such occurrences. Tenant shall cooperate in any reasonable safety or security program developed by Landlord or required by law.

28. All office equipment of any electrical or mechanical nature shall be placed by Tenant in the Premises in settings approved by Landlord, to absorb or prevent any vibration, noise and annoyance.

 

Exhibit D

-3-

Hellyer Oaks Technology Park

Iridex Corporation

 


 

29. Tenant shall not use in any space or in the public halls of the Building, any hand trucks except those equipped with rubber tires and rubber side guards.

30. No auction, liquidation, fire sale, going-out-of-business or bankruptcy sale shall be conducted in the Premises without the prior written consent of Landlord.

31. No tenant shall use or permit the use of any portion of the Premises for living quarters, sleeping apartments or lodging rooms.

Landlord reserves the right at any time to change or rescind any one or more of these Rules and Regulations, or to make such other and further reasonable Rules and Regulations as in Landlord's judgment may from time to time be necessary for the management, safety, care and cleanliness of the Premises, Building, the Common Areas and the Project, and for the preservation of good order therein, as well as for the convenience of other occupants and tenants therein, and based upon guidelines, rules and regulations provided from time to time by the Center for Disease Control ("CDC"), Building Owners and Managers Association International ("BOMA"), Occupational Health Standards Association ("OSHA") and others. To the extent the guidelines, rules and regulations promulgated and developed by the CDC, OSHA, BOMA and other applicable organizations (collectively, "Guidelines") and other Laws conflict with these Rules and Regulations or provide more stringent requirements than these Rules and Regulations, the Guidelines and Laws shall apply. Landlord may waive any one or more of these Rules and Regulations for the benefit of any particular tenants, but no such waiver by Landlord shall be construed as a waiver of such Rules and Regulations in favor of any other tenant, nor prevent Landlord from thereafter enforcing any such Rules or Regulations against any or all tenants of the Project. Tenant shall be deemed to have read these Rules and Regulations and to have agreed to abide by them as a condition of its occupancy of the Premises.

 

Exhibit D

-4-

Hellyer Oaks Technology Park

Iridex Corporation

 


 

EXHIBIT E

HELLYER OAKS TECHNOLOGY PARK

FORM OF TENANT'S ESTOPPEL CERTIFICATE

The undersigned as Tenant under that certain Office Lease (the "Lease") made and entered into as of ___________, 20_ by and between _______________ as Landlord, and the undersigned as Tenant, for Premises on the ______________ floor(s) of the office building located at _________________, _________________, __________________________, certifies as follows:

1. Attached hereto as Exhibit A is a true and correct copy of the Lease and all amendments and modifications thereto. The documents contained in Exhibit A represent the entire agreement between the parties as to the Premises.

2. The undersigned currently occupies the Premises described in the Lease, the Lease Term commenced on __________, and the Lease Term expires on ___________, and the undersigned has no option to terminate or cancel the Lease or to purchase all or any part of the Premises, the Building and/or the Project.

3. Base Rent became payable on ____________.

4. The Lease is in full force and effect and has not been modified, supplemented or amended in any way except as provided in Exhibit A.

5. Tenant has not transferred, assigned, or sublet any portion of the Premises nor entered into any license or concession agreements with respect thereto except as follows:

6. Tenant shall not modify the documents contained in Exhibit A without the prior written consent of Landlord's mortgagee.

7. All monthly installments of Base Rent, all Additional Rent and all monthly installments of estimated Additional Rent have been paid when due through ___________. The current monthly installment of Base Rent is $_____________________.

8. All conditions of the Lease to be performed by Landlord necessary to the enforceability of the Lease have been satisfied and Landlord is not in default thereunder. In addition, the undersigned has not delivered any notice to Landlord regarding a default by Landlord thereunder.

9. No rental has been paid more than thirty (30) days in advance and no security has been deposited with Landlord except as provided in the Lease.

10. As of the date hereof, there are no existing defenses or offsets, or, to the undersigned's knowledge, claims or any basis for a claim, that the undersigned has against Landlord.

11. If Tenant is a corporation or partnership, each individual executing this Estoppel Certificate on behalf of Tenant hereby represents and warrants that Tenant is a duly formed and existing entity qualified to do business in the State of California and that Tenant has full right and authority to execute and deliver this Estoppel Certificate and that each person signing on behalf of Tenant is authorized to do so.

12. There are no actions pending against the undersigned under the bankruptcy or similar laws of the United States or any state.

13. Other than in compliance with all applicable laws and incidental to the ordinary course of the use of the Premises, the undersigned has not used or stored any hazardous substances in the Premises.

EXHIBIT E

-1-

Hellyer Oaks Technology Park

Iridex Corporation

 


 

14. To the undersigned's knowledge, all tenant improvement work to be performed by Landlord under the Lease has been completed in accordance with the Lease and has been accepted by the undersigned and all reimbursements and allowances due to the undersigned under the Lease in connection with any tenant improvement work have been paid in full.

The undersigned acknowledges that this Estoppel Certificate may be delivered to Landlord or to a prospective mortgagee or prospective purchaser, and acknowledges that said prospective mortgagee or prospective purchaser will be relying upon the statements contained herein in making the loan or acquiring the property of which the Premises are a part and that receipt by it of this certificate is a condition of making such loan or acquiring such property.

Executed at ______________ on the ____ day of ___________, 20__.

 

"Tenant":

,
a

By:
      Its:

By:
      Its:

 

 

EXHIBIT E

-2-

Hellyer Oaks Technology Park

Iridex Corporation

 


 

EXHIBIT F

HELLYER OAKS TECHNOLOGY PARK

APPROVED HAZARDOUS MATERIALS

ENVIRONMENTAL QUESTIONNAIRE
FOR COMMERCIAL AND INDUSTRIAL PROPERTIES

Property Name:

Property Address:

Instructions: The following questionnaire is to be completed by the Lessee representative with knowledge of the planned operations for the specified building/location. Please print clearly and attach additional sheets as necessary.

1.0 PROCESS INFORMATION

Describe planned use, and include brief description of manufacturing processes employed.



2.0 HAZARDOUS MATERIALS

Are hazardous materials used or stored? If so, continue with the next question. If not, go to Section 3.0.

2.1 Are any of the following materials handled on the Property? Yes No

(A material is handled if it is used, generated, processed, produced, packaged, treated, stored, emitted, discharged, or disposed.) If so, complete this section. If this question is not applicable, skip this section and go on to Section 5.0.

Explosives

 Fuels

Oils

 ☐ Solvents

Oxidizers

 Organics/Inorganics

 Acids

 Bases

Pesticides

Gases

PCBs

 Radioactive Materials

Other (please specify)

 

 

2‑2. If any of the groups of materials checked in Section 2.1, please list the specific material(s), use(s), and quantity of each chemical used or stored on the site in the Table below. If convenient, you may substitute a chemical inventory and list the uses of each of the chemicals in each category separately.

 

Material

Physical State (Solid, Liquid, or Gas)

Usage

Container Size

Number of Containers

Total Quantity

 

 

 

 

 

 

 

 

 

 

 

 

 

 

 

 

 

 

 

 

 

 

 

 

 

 

 

 

 

 

2‑3. Describe the planned storage area location(s) for these materials. Please include site maps and drawings as appropriate.



 

Exhibit F

-1-

Hellyer Oaks Technology Park

Iridex Corporation

 


 

3.0 HAZARDOUS WASTES

Are hazardous wastes generated? Yes No

If yes, continue with the next question. If not, skip this section and go to section 4.0.

3.1 Are any of the following wastes generated, handled, or disposed of (where applicable) on the Property?

 

Hazardous wastes

Industrial Wastewater

Waste oils

PCBs

Air emissions

Sludges

 Regulated Wastes

Other (please specify)

3‑2. List and quantify the materials identified in Question 3‑1 of this section.

 

WASTE GENERATED

RCRA listed Waste?

SOURCE

APPROXIMATE MONTHLY QUANTITY

WASTE CHARACTERIZATION

DISPOSITION

 

 

 

 

 

 

 

 

 

 

 

 

 

 

 

 

 

 

 

 

 

 

 

 

3‑3. Please include name, location, and permit number (e.g. EPA ID No.) for transporter and disposal facility, if applicable). Attach separate pages as necessary.

 

Transporter/Disposal Facility Name

Facility Location

Transporter (I) or Disposal (D) Facility

Permit Number

 

 

 

 

 

 

 

 

 

 

 

 

 

 

 

 

3‑4. Are pollution controls or monitoring employed in the process to prevent or minimize the release of wastes into the environment? Yes No

3‑5. If so, please describe.



4.0 USTS/ASTS

4.1 Are underground storage tanks (USTs), aboveground storage tanks (ASTs), or associated pipelines used for the storage of petroleum products, chemicals, or liquid wastes present on site (lease renewals) or required for planned operations (new tenants)? Yes___ No___

If not, continue with section 5.0. If yes, please describe capacity, contents, age, type of the USTs or ASTs, as well any associated leak detection/spill prevention measures. Please attach additional pages if necessary.

 

Capacity

Contents

Year Installed

Type (Steel, Fiberglass, etc)

Associated Leak Detection / Spill Prevention Measures*

 

 

 

 

 

 

 

 

 

 

 

 

 

 

 

*Note: The following are examples of leak detection / spill prevention measures:

Integrity testing

Inventory reconciliation

Leak detection system

 

Exhibit F

-2-

Hellyer Oaks Technology Park

Iridex Corporation

 


 

Overfill spill protection

Secondary containment

Cathodic protection

4‑2. Please provide copies of written tank integrity test results and/or monitoring documentation, if available.

4‑3. Is the UST/AST registered and permitted with the appropriate regulatory agencies? Yes No
If so, please attach a copy of the required permits.

4‑4. If this Questionnaire is being completed for a lease renewal, and if any of the USTs/ASTs have leaked, please state the substance released, the media(s) impacted (e.g., soil, water, asphalt, etc.), the actions taken, and all remedial responses to the incident.



4‑5. If this Questionnaire is being completed for a lease renewal, have USTs/ASTs been removed from the Property? Yes No

If yes, please provide any official closure letters or reports and supporting documentation (e.g., analytical test results, remediation report results, etc.).

4‑6. For Lease renewals, are there any above or below ground pipelines on site used to transfer chemicals or wastes? Yes No

For new tenants, are installations of this type required for the planned operations?

Yes No

If yes to either question, please describe.



5.0 ASBESTOS CONTAINING BUILDING MATERIALS

Please be advised that an asbestos survey may have been performed at the Property. If provided, please review the information that identifies the locations of known asbestos containing material or presumed asbestos containing material. All personnel and appropriate subcontractors should be notified of the presence of these materials, and informed not to disturb these materials. Any activity that involves the disturbance or removal of these materials must be done by an appropriately trained individual/contractor.

6.0 REGULATORY

6‑1. Does the operation have or require a National Pollutant Discharge Elimination System (NPDES) or equivalent permit? Yes No
If so, please attach a copy of this permit.

6‑2. Has a Hazardous Materials Business Plan been developed for the site? Yes No
If so, please attach a copy.

CERTIFICATION

I am familiar with the real property described in this questionnaire. By signing below, I represent and warrant that the answers to the above questions are complete and accurate to the best of my knowledge. I also understand that

 

Exhibit F

-3-

Hellyer Oaks Technology Park

Iridex Corporation

 


 

Lessor will rely on the completeness and accuracy of my answers in assessing any environmental liability risks associated with the property.

Signature:

Name:

Title:

Date:

Telephone:

 

Exhibit F

-4-

Hellyer Oaks Technology Park

Iridex Corporation

 


 

EXHIBIT F

HELLYER OAKS TECHNOLOGY PARK

EXTERIOR BUILDING SIGNAGE

img238073356_2.jpg

 

 

Exhibit F

-1-

Hellyer Oaks Technology Park

Iridex Corporation

 


 

OFFICE LEASE

 

HELLYER OAKS TECHNOLOGY PARK

 

 

 

 

SFIII HELLYER, LLC,
a Delaware limited liability company

and

SFIII FOS HELLYER HOLDING, LLC,
a Delaware limited liability company,

collectively, as Landlord,

and

IRIDEX CORPORATION,
a Delaware corporation

as Tenant.

 

 

  Hellyer Oaks Technology Park

Iridex Corporation

 


 

SECTION 1

PREMISES, BUILDING, PROJECT, AND COMMON AREAS

4

SECTION 2

LEASE TERM

5

SECTION 3

BASE RENT

5

SECTION 4

ADDITIONAL RENT

5

SECTION 5

USE OF PREMISES

10

SECTION 6

SERVICES AND UTILITIES

11

SECTION 7

REPAIRS

12

SECTION 8

ADDITIONS AND ALTERATIONS

13

SECTION 9

COVENANT AGAINST LIENS

14

SECTION 10

INSURANCE

15

SECTION 11

DAMAGE AND DESTRUCTION

17

SECTION 12

NONWAIVER

18

SECTION 13

CONDEMNATION

18

SECTION 14

ASSIGNMENT AND SUBLETTING

19

SECTION 15

SURRENDER OF PREMISES; OWNERSHIP AND REMOVAL OF TRADE FIXTURES

22

SECTION 16

HOLDING OVER

23

SECTION 17

ESTOPPEL CERTIFICATES

23

SECTION 18

SUBORDINATION

23

SECTION 19

DEFAULTS; REMEDIES

24

SECTION 20

COVENANT OF QUIET ENJOYMENT

26

SECTION 21

SECURITY DEPOSIT

26

SECTION 22

SUBSTITUTION OF OTHER PREMISES

26

SECTION 23

SIGNS

27

SECTION 24

COMPLIANCE WITH LAW

27

SECTION 25

LATE CHARGES

28

SECTION 26

LANDLORD'S RIGHT TO CURE DEFAULT; PAYMENTS BY TENANT

28

SECTION 27

ENTRY BY LANDLORD

29

SECTION 28

TENANT PARKING

29

SECTION 29

MISCELLANEOUS PROVISIONS

30

 

EXHIBITS

 

A OUTLINE OF PREMISES

B TENANT WORK LETTER

C FORM OF NOTICE OF LEASE TERM DATES

D RULES AND REGULATIONS

E FORM OF TENANT'S ESTOPPEL CERTIFICATE

F Approved hazardous materials
G EXTERIOR BUILDING SIGNAGE LOCATION

 

1

Hellyer Oaks Technology Park

Iridex Corporation

 


 

TABLE OF CONTENTS

 

Page

Abatement Event

16

Accountant

14

Additional Notice

16

Alterations

17

Approved Hazardous Materials

41

Approved Hazardous Materials Exhibit

41

Award

7

Base Rent

7

Base Rent Abatement

8

Base Rent Abatement Period

8

Brokers

39

Building

4

Building Common Areas

4

Building Hours

14

collectively,

1

Common Areas

4

Comparable Area

6

Comparable Buildings

6

Comparable Deals

5

Comparable Term

6

Contemplated Effective Date

26

Contemplated Transfer Space

26

Cost Pools

12

Direct Expenses

8

Environmental Questionnaire

41

Estimate

12

Estimate Statement

12

Estimated Direct Expenses

12

Excess

13

Exercise Notice

6

Expense Year

8

Force Majeure

38

Hazardous Material Laws

42

Hazardous Materials

42

Hazardous Materials Usage

41

Holidays

14

HVAC

14

Identification Requirements

40

Initial Notice

16

Intention to Transfer Notice

26

Landlord Parties

20

Landlord Repair Notice

22

Landlord Response Date

6

Landlord Response Notice

6

Landlord's Option Rent Calculation

6

Lease

1

Lease Commencement Date

5

Lease Expiration Date

5

Lease Term

5

Lease Year

5

2

Hellyer Oaks Technology Park

Iridex Corporation

 


 

Lines

40

Losses

42

Mail

38

Market Rent

5

Net Worth

27

Neutral Arbitrator

7

New Hazardous Materials Usage

41

Nine Month Period

26

Notices

38

Operating Expenses

9

Option Rent

5

Option Term

5

Option Term Improvement Allowance

6

Original Tenant

5

Other Improvements

40

Outside Agreement Date

6

Permitted Transferee Assignee

27

Possession Date

4

Premises

4

Project

4

Renovations

40

Review Period

13

Roof

18

Roof Space

18

Rooftop Equipment

18

Security Deposit

32

Statement

12

Subject Space

24

Substitute Space

19

Summary

1

Tax Expenses

11

Tenant

1

Tenant’s Share

12

Tenant's Option Rent Calculation

6

Transfer Notice

24

Transferee

24

Abatement Event

15

Additional Notice

15

Alterations

16

Approved Hazardous Materials

40

Approved Hazardous Materials Exhibit

40

Award

7

Base Rent

7

Base Rent Abatement

8

Base Rent Abatement Period

8

Brokers

38

Building

4

Building Common Areas

4

Building Hours

14

collectively,

1

Common Areas

4

Comparable Area

6

3

Hellyer Oaks Technology Park

Iridex Corporation

 


 

Comparable Buildings

6

Comparable Deals

5

Comparable Term

6

Contemplated Effective Date

25

Contemplated Transfer Space

25

Cost Pools

12

Direct Expenses

8

Environmental Questionnaire

40

Estimate

12

Estimate Statement

12

Estimated Direct Expenses

12

Excess

12

Exercise Notice

6

Expense Year

8

Force Majeure

37

Hazardous Material Laws

41

Hazardous Materials

41

Hazardous Materials Usage

40

Holidays

14

HVAC

14

Identification Requirements

39

Initial Notice

15

Intention to Transfer Notice

25

Landlord Parties

20

Landlord Repair Notice

21

Landlord Response Date

6

Landlord Response Notice

6

Landlord's Option Rent Calculation

6

Lease

1

Lease Commencement Date

5

Lease Expiration Date

5

Lease Term

5

Lease Year

5

Lines

39

Losses

41

Mail

37

Market Rent

5

Neutral Arbitrator

6

New Hazardous Materials Usage

40

Nine Month Period

26

Notices

37

Operating Expenses

8

Option Rent

5

Option Term

5

Option Term Improvement Allowance

6

Original Tenant

5

Other Improvements

39

Outside Agreement Date

6

Possession Date

4

Premises

4

Project

4

Renovations

39

4

Hellyer Oaks Technology Park

Iridex Corporation

 


 

Roof

18

Roof Space

18

Rooftop Equipment

18

Security Deposit

31

Statement

12

Subject Space

24

Substitute Space

19

Summary

1

Tax Expenses

11

Tenant

1

Tenant’s Share

12

Tenant's Option Rent Calculation

6

Transfer Notice

24

Transferee

24

5

Hellyer Oaks Technology Park

Iridex Corporation