EX-10.1 2 aaoi_ex1001.htm LEASE AGREEMENT

Exhibit 10.1

 

LEASE AGREEMENT

 

BETWEEN

 

COLEMAN LOGISTICS ASSETS LLC, Landlord

 

AND

 

APPLIED OPTOELECTRONICS, INC., Tenant

 

SUGAR LAND INTERCHANGE DISTRIBUTION CENTER (“Project”)

 

September 19, 2025

 

 

 

 

 

 

 

 

 

 

 

 

 

 

 

 

   

 

 

TABLE OF CONTENTS

 

1.   PREMISES, PROJECT AND TERM 1
2.   BASE RENT, SECURITY DEPOSIT AND ESCROW PAYMENTS 3
3.   OPERATING EXPENSES AND COMMON AREAS 6
4.   TAXES 8
5.   LANDLORD’S REPAIRS 9
6.   TENANT’S REPAIRS AND MAINTENANCE 10
7.   ALTERATIONS 11
8.   SIGNS 12
9.   UTILITIES 12
10.   INSURANCE 12
11.   FIRE AND CASUALTY DAMAGE 15
12.   LIABILITY AND INDEMNIFICATION 16
13.   USE 17
14.   INSPECTION 18
15.   ASSIGNMENT AND SUBLETTING. 18
16.   CONDEMNATION 21
17.   SURRENDER/HOLDING OVER 21
18.   QUIET ENJOYMENT 22
19.   EVENTS OF DEFAULT 22
20.   REMEDIES 23
21.   MORTGAGES 27
22.   LIENS 28
23.   HAZARDOUS MATERIALS 28
24.   NO LANDLORD’S LIEN 29
25   FINANCIAL INFORMATION 29
26.   LANDLORD'S DEFAULT 30
27.   NOTICES AND RENT PAYMENTS 30
28.   MISCELLANEOUS 31
29.   SPECIAL PROVISIONS 35

 

EXHIBITS

 

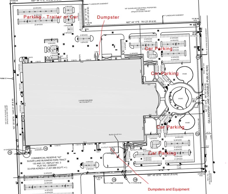
EXHIBIT “A” PROJECT SITE PLAN AND LOCATION OF PREMISES
EXHIBIT “A-1” DESCRIPTION OF LAND
EXHIBIT “B” DEPICTION/OUTLINE OF PREMISES
EXHIBIT “C” WORK LETTER
EXHIBIT “D” FORM LETTER DOCUMENTING DELIVERY OF PREMISES
EXHIBIT “E” RULES AND REGULATIONS
EXHIBIT “F” BROOM CLEAN CONDITION AND REPAIR REQUIREMENTS
EXHIBIT “G” PERMITTED HAZARDOUS MATERIALS

 

 

 

 i 

 

 

LEASE AGREEMENT

 

THIS LEASE AGREEMENT (the “Lease”) is hereby made and entered into as of the Lease Date by and between Landlord and Tenant. The Basic Lease Information, including all terms defined therein, are incorporated as part of this Lease. The Lease includes Exhibit “A” through Exhibit “G”, all of which are made a part of the Lease.

 

WITNESSETH:

 

1. PREMISES, PROJECT AND TERM.

 

A. In consideration of the mutual obligations of Landlord and Tenant set forth herein, Landlord leases to Tenant, and Tenant hereby takes and leases from Landlord, the Premises as defined above in the Basic Lease Information, subject to the terms, covenants and conditions in this Lease. The Premises is located within the Building, which Building is a portion of the Project. Any statement of square footage set forth in this Lease is an approximation, which Landlord and Tenant agree is reasonable. Landlord and Tenant agree that no adjustment in rental or Reimbursable Expenses (hereinafter defined) shall be made if the actual square footage is more or less than the approximation.

 

Additionally, Tenant shall, subject to Governmental Requirements and the terms and conditions of this Lease, have the exclusive right to use, on a “24 hour a day”, “365 days a year” basis and without any additional charge, the following: (a) the dock doors serving the Premises, (b) the trash dumpster area within the Project and shown on Exhibit “A” attached hereto as the “Tenant Dumpster Area” and (c) the parking areas (including trailer parking stalls) within the Project labeled and shown on Exhibit “A” attached hereto as the “Tenant Exclusive Parking Area” (so called herein). The Tenant Exclusive Parking Area will be considered part of the Premises, except for (i) purposes of calculating Base Rent and Tenant’s Proportionate Share of Operating Expenses and (ii) Landlord’s obligations under Sections 3.A and 5 of this Lease. Tenant shall have the right to construct the fence in accordance with Section 7 of this Lease, and, to the extent constructed, shall maintain the fence surrounding the Tenant Exclusive Parking Area  in good condition and repair.  If any improvements of the Tenant Exclusive Parking Area  are required by applicable law as a condition to any permitted use or uses to which Tenant or any of Tenant Entities intends to put the same, then Tenant shall, at Tenant’s expense, make such improvements as are required by Governmental Requirements, with Landlord to have reasonable approval rights to the extent of any discretionary latitude provided Tenant under applicable laws. Other than fencing required by Governmental Requirements or approved by Landlord, Tenant shall not install or construct any buildings or other improvements in the Tenant Exclusive Parking Area. Tenant is solely responsible at its sole expense to continuously comply with applicable laws relating to the use of the Tenant Exclusive Parking Area  and to make any necessary repairs maintenance to Tenant’s improvements thereto in accordance with Sections 6 and 7 (including to any fencing or other improvements installed by Tenant as required or permitted hereunder).

 

B. The Term of this Lease shall commence on the Commencement Date as set forth in the Basic Lease Information. The Term of this Lease shall expire at 5:00 p.m. on the last day of the Term as described in the Basic Lease Information, unless sooner terminated by the provisions of this Lease. Tenant may perform certain Leasehold Improvements to the Premises pursuant to Exhibit “C” attached hereto and Section 7. After the Commencement Date, Landlord will forward to Tenant a letter documenting the delivery of the Premises and any other factual matters pertaining to this Lease in the form attached hereto as Exhibit “D”. Provided that Tenant has not previously delivered the final certificate of occupancy for the Premises, Tenant shall deliver to Landlord such final certificate of occupancy following Tenant’s receipt thereof but in all events prior to Tenant’s commencing business operations within the Premises.

 

 

 

 1 

 

 

C. By taking possession of the Premises, except as and to the extent otherwise expressly provided in this Lease and Exhibit “C” attached hereto, Tenant (i) ACCEPTS THE PREMISES “AS-IS,” WITH TENANT ACCEPTING ALL DEFECTS, IF ANY, OTHER THAN LATENT DEFECTS IDENTIFIED BY TENANT IN WRITING WITHIN 90 DAYS FOLLOWING THE COMMENCEMENT DATE; AND LANDLORD MAKES NO WARRANTY OF ANY KIND, EXPRESS OR IMPLIED, WITH RESPECT TO THE PREMISES (WITHOUT LIMITATION, LANDLORD MAKES NO WARRANTY AS TO THE HABITABILITY, FITNESS OR SUITABILITY OF THE PREMISES FOR A PARTICULAR PURPOSE, NOR AS TO COMPLIANCE WITH ANY LAWS, RULES OR REGULATIONS, NOR AS TO THE ABSENCE OF ANY TOXIC OR OTHERWISE HAZARDOUS MATERIALS), (ii) acknowledges that the Premises are acceptable for Tenant’s use and that neither Landlord nor any broker or agent has made, or shall be deemed to have made, any representations or warranties in connection with the Premises or their fitness for Tenant’s use or compliance with applicable Governmental Requirements and (iii) waives all claims of defect in the Premises (other than latent defects identified by Tenant in writing within 90 days following the Commencement Date) and any implied warranty that the Premises or the Building are suitable for Tenant’s intended commercial purpose. The foregoing shall not be construed to relieve Landlord from its obligations which are expressly set forth in this Lease. Notwithstanding the foregoing, Landlord warrants (but does not represent) that as of the Commencement Date only: (i) the Premises shall be clean and free of debris, and (ii) the electrical, mechanical, plumbing, life-safety, sprinkler, heating, ventilating and air-conditioning, and other systems serving the Premises, the Generator and the overhead doors serving the Premises (other than those items constructed or modified by Tenant in connection with the Leasehold Improvements) shall be in good operating condition and repair. If Tenant notifies Landlord on or before the date that is six (6) months after the Commencement Date (the “Warranty Period”), that any portion of such systems serving the Premises or the Generator is malfunctioning or defective (and which was not caused by Tenant or Tenant Entities, including Tenant’s performance of the Leasehold Improvements), Landlord shall not be liable to Tenant for any damages, but as Tenant's sole remedy, Landlord, at no cost to Tenant, shall promptly perform such work or take such other action as may be necessary to place the same in good condition and repair (collectively, “Warranty Repairs”).  Except for Warranty Repairs that Tenant notified Landlord of in writing before the expiration of the Warranty Period, which Landlord shall be required to promptly complete despite the expiration of the Warranty Period, Landlord shall have no further obligations with respect to such items upon the end of the Warranty Period.

 

D. Tenant agrees that in the event of delay in Landlord delivering possession of the Premises for any reason, Landlord shall not be liable for any damage resulting from such inability. If Landlord fails to deliver possession of the Premises to Tenant on or before December 1, 2025 (the “Outside Date”) for any reason other than force majeure or any Tenant Delay, Tenant shall have the one-time right to terminate this Lease by delivering written notice to Landlord at any time prior to the time Landlord delivers exclusive possession of the entire Premises to Tenant. If Tenant delivers such notice, this Lease shall terminate and be of no further force or effect (except for the provisions thereof that expressly survive the expiration or earlier termination of this Lease), and Landlord will return any amounts previously paid to Landlord (e.g., the first (1st) month’s Base Rent and Reimbursement Expenses and, as applicable, the Security Deposit or Letter of Credit) to Tenant. For purposes of this Lease, a “Tenant Delay” is any delay resulting from the acts or omissions of Tenant or its agents, employees, subtenants, assignees, licensees, contractors or invitees (collectively, the “Tenant Entities”). If any delay is the result of a Tenant Delay, the Commencement Date and the payment of rent under this Lease shall be accelerated by the number of days of such Tenant Delay.

 

E. Landlord shall deliver the Premises to Tenant on the date following the date upon which the tenant currently occupying the Premises vacates the Premises for the purpose of (i) performing the Leasehold Improvements, (ii) storing Tenant’s inventory and equipment (to the extent permitted by Governmental Requirements), and (iii) using the office portion of the Premises (the “Early Possession”), which Early Possession will be subject to all of Tenant’s obligations under this Lease (except that Tenant will not be obligated to pay Rent during such early occupancy until the Commencement Date), and the Early Possession shall only be permitted in the event Tenant has delivered to Landlord the first monthly installment of Base Rent (hereafter defined) and the Reimbursable Expenses, and the security deposit required pursuant to Paragraph 2.B below. Tenant shall provide Landlord with copies of certificates of insurance, complying in all respects with the terms of this Lease for all insurance required to be provided hereunder prior to the Early Possession. Tenant hereby releases and discharges Landlord, its contractors, agents, employees and manager from and against any and all claims of loss, damage or injury to persons or property, including without limitation any product inventory, which is alleged to have occurred during the period of Early Possession. Landlord makes no representation or warranty about safety of the Premises during any period of Early Possession, as construction and other activities will be ongoing. Tenant shall coordinate its activities in the Premises during Early Possession with Landlord and Landlord’s contractor.

 

 

 

 2 

 

 

F. Notwithstanding the fact that the Term of this Lease and Tenant’s obligation to pay rent does not commence until the Commencement Date, this Lease shall nevertheless be binding upon the parties in accordance with its terms when executed by Landlord and Tenant. Simultaneously with Tenant’s execution and delivery of this Lease, Tenant shall deliver to Landlord the first monthly installment of Base Rent (hereafter defined) and Reimbursable Expenses (hereafter defined), and the security deposit required pursuant to Paragraph 2.B below. Prior to Tenant’s or any Tenant Entities’ entry into the Premises, Tenant shall deliver to Landlord evidence of Tenant’s insurance as required pursuant to Paragraph 10.B below.

 

2. BASE RENT, SECURITY DEPOSIT AND ESCROW PAYMENTS.

 

A. Tenant agrees to pay to Landlord the base rent for the Premises in effect from time to time (the “Base Rent”), in advance and without demand, notice, deduction or set off (except as expressly provided herein), in the amounts set forth in the schedule of Base Rent listed in the Basic Lease Information. Each monthly installment of Base Rent payable with respect to the Premises shall be due and payable on or before the first day of each calendar month during the Term, except that the first monthly installment of Base Rent, plus the other monthly charges set forth in Paragraph 2.C below, shall be due and payable simultaneously with Tenant’s execution and delivery of this Lease together with the security deposit payable pursuant to Paragraph 2.B below. Rent for any period during the Term which is less than a full calendar month shall be a prorated portion of the monthly installment of rent based upon the number of days in such month. All Base Rent and other payments due hereunder shall be payable as specified in the Basic Lease Information.

 

B. In addition, Tenant agrees to deposit with Landlord on the date hereof the sum listed in the Basic Lease Information, which shall be held by Landlord as security for the performance of Tenant’s obligations under this Lease; it being expressly understood and agreed that this security deposit is not an advance rental deposit or a measure of Landlord’s damages in case of Tenant’s default. Upon each occurrence of an Event of Default (hereinafter defined), Landlord may use all or part of the security deposit to pay past due rent or other payments due Landlord under this Lease, and the cost of any other damage, injury, expense or liability caused by such Event of Default without prejudice to any other remedy provided herein or provided by law. On demand, Tenant shall pay Landlord the amount that will restore the security deposit to its original amount. Any remaining balance of such security deposit shall be returned by Landlord to Tenant no later than sixty (60) days after the expiration of the of the Term of this Lease or any earlier termination of this Lease (other than a termination by Landlord under Paragraph 20 for an Event of Default). Notwithstanding anything in this Lease or under applicable law to the contrary, Tenant hereby waives Section 93.004 - 93.011 of the Texas Property Code as such sections of the Texas Property Code relate to the security deposit under this Lease.

 

 

 

 3 

 

 

Notwithstanding the foregoing to the contrary, the security deposit may be in the form of an Irrevocable Standby Letter of Credit in favor of Landlord (the “letter of credit”) in the amount listed in the Basic Lease Information. Under any circumstance under which Landlord is entitled the use of all or a part of the security deposit, then, Landlord, in addition to all other rights and remedies provided under this Lease, shall have the right to draw down all or a portion of the full balance of the letter of credit and retain the proceeds. The letter of credit shall be in favor of Landlord, shall be issued by a commercial bank reasonably acceptable to Landlord with branch offices located in the New York, New York metropolitan area, shall comply with all of the terms and conditions of this paragraph and shall otherwise be in form reasonably acceptable to Landlord. If, at any time while the letter of credit is outstanding, (i) the issuing bank is declared insolvent or taken into receivership by the Federal Deposit Insurance Corporation or any other governmental agency, or is closed for any reason, or (ii) Landlord reasonably believes that the issuing bank may be or become insolvent or otherwise unable to meet its obligations, then, not later than fifteen (15) days after written notice from Landlord, Tenant shall cause the existing letter of credit to be replaced by a new letter of credit issued by another commercial bank reasonably acceptable to Landlord, with such new letter of credit to comply with all of the terms and conditions of this paragraph. If Tenant fails to deliver a reasonably acceptable replacement letter of credit within such fifteen (15) day period, Landlord shall have the right to present the existing letter of credit to the issuing bank for payment, and the entire sum so obtained shall be paid to Landlord, to be held by Landlord until Tenant would otherwise be entitled to the return of the letter of credit, and to be retained by Landlord if a default occurs. A draft of the form of letter of credit must be submitted to Landlord for its reasonable approval prior to issuance. The letter of credit or any replacement letter of credit shall be irrevocable and shall automatically renew on a year to year basis until a period ending not earlier than three (3) months after the Expiration Date (the “End Date”) without any action whatsoever on the part of Landlord; provided that the issuing bank shall have the right not to renew the letter of credit by giving written notice to Landlord not less than sixty (60) days prior to the expiration of the then current term of the letter of credit that it does not intend to renew the letter of credit. Notwithstanding any provision to the contrary, Landlord shall be entitled to receive from Tenant a fee in an amount not to exceed $750.00 for attorneys’ fees incurred in connection with the review of any proposed substitute or replacement letter of credit pursuant to this paragraph. Tenant understands that the election by the issuing bank not to renew the letter of credit shall not, in any event, diminish the obligation of Tenant to maintain such an irrevocable letter of credit in favor of Landlord as required herein. Landlord, or its then managing agent, shall have the right from time to time to make one or more draws on the letter of credit at any time that Landlord has the right to use all or a part of the security deposit pursuant to this Lease, and the proceeds may be applied as permitted under this Lease. The letter of credit must state that it can be presented for payment at the office of the issuer or an approved correspondent in the metropolitan area in which the Project is located. Funds may be drawn down on the letter of credit upon presentation to the issuing or corresponding bank of Landlord’s (or Landlord’s then managing agent’s) certificate stating only as follows: “Beneficiary is entitled to draw on this credit pursuant to that certain Lease dated _______________ between _____________________, a ____________, as Landlord and ____________________, a ___________, as Tenant, as amended from time to time.” It is understood that if Landlord or its managing agent is a corporation, partnership or other entity, then such statement shall be signed by an officer (if a corporation), a general partner (if a partnership), or any authorized party (if another entity). Tenant acknowledges and agrees (and the letter of credit shall so state) that the letter of credit shall be honored by the issuing bank without inquiry as to the truth of the statements set forth in such draw request and regardless of whether the Tenant disputes the content of such statement. In the event of a transfer of Landlord’s interest in the Premises, Landlord shall have the right to transfer the letter of credit to the transferee, at no cost to Landlord or such transferee, and Tenant shall take whatever action necessary to effectuate such transfer and thereupon the Landlord shall, without any further agreement between the parties, be released by Tenant from all liability therefor, and it is agreed that the provisions hereof shall apply to every transfer or assignment of said letter of credit to a new landlord. Without limiting the generality of the foregoing, if the letter of credit expires earlier than the End Date, or the issuing bank notifies Landlord that it will not renew the letter of credit, Landlord shall accept a renewal thereof or substitute letter credit (such renewal or substitute letter of credit to be in effect not later than thirty (30) days prior to the expiration of the expiring letter of credit), irrevocable and automatically renewable as above provided to the End Date upon the same terms as the expiring letter of credit or upon such other terms as may be reasonably acceptable to Landlord. However, if (xx) the letter of credit is not timely renewed, or (yy) a substitute letter of credit, complying with all of the terms and conditions of this paragraph is not timely received, then Landlord may present the expiring letter of credit to the issuing bank, and the entire sum so obtained shall be paid to Landlord, to be held by Landlord in accordance with Paragraph 2.B of this Lease. If Tenant previously deposited the Security Deposit with Landlord, and provided an Event of Default does not then exist, Landlord shall promptly return the Security Deposit to Tenant upon Landlord’s receipt of the letter of credit meeting the foregoing requirements.

 

 

 

 4 

 

 

C. In addition to Base Rent and Tenant’s other obligations hereunder, Tenant agrees to pay, as additional rent due with respect to the Premises, Tenant’s Proportionate Share (as defined in the Basic Lease Information) of the following costs and expenses (collectively, the “Reimbursable Expenses”): (i) Taxes (hereinafter defined) payable by Landlord pursuant to Paragraph 4.A below, (ii) the proportionate cost of jointly metered utilities payable pursuant to Paragraph 9 below, (iii) the cost of maintaining insurance pursuant to Paragraph 10.A below, including the payment of applicable deductibles that are commercially reasonable, and (iv) the cost of the Operating Expenses (hereinafter defined) as described in Paragraph 3 below incurred during each full or partial calendar year during the Term. During each month of the Term of this Lease, on the same day that Base Rent is due hereunder, Tenant shall escrow with Landlord an amount equal to 1/12th of Tenant’s Proportionate Share of such Reimbursable Expenses, as reasonably estimated by Landlord from time to time. Reimbursable Expenses for the first and last calendar years of the Term shall be prorated based on the number of days occurring during the Term in each such year. Tenant authorizes Landlord to use the funds deposited with Landlord under this Paragraph 2.C to pay such Reimbursable Expenses. Landlord shall be entitled to revise its projection in the exercise of its reasonable business judgment no more than two (2) times per calendar year, and if Landlord so revises such projection, Tenant shall pay to Landlord, on the same day as Base Rent is due, an amount equal to 1/12th of Tenant’s Proportionate Share of such Reimbursable Expenses pursuant to Landlord’s revised estimate thereof. As soon as practicable following each calendar year during the Term hereof, Landlord shall determine the actual Reimbursable Expenses for the preceding calendar year and shall notify Tenant thereof. Tenant shall have fifteen (15) days to review Landlord’s calculations and to reasonably request additional information to substantiate such calculations, which Landlord shall provide within thirty (30) days of each such request. If Tenant disagrees with any such calculations, Tenant may “Dispute” such Reimbursable Expenses or portion thereof no later than sixty (60) days following Landlord’s delivery of its determination of the actual Reimbursable Expenses by providing Tenant’s calculations of such Reimbursable Expenses or portion thereof. Upon receipt of such “Dispute” by Landlord, Landlord shall cause such Reimbursable Expenses to be audited by an independent certified public account reasonably acceptable to Tenant, and the cost of such audit shall be borne by Tenant unless Landlord overstated Reimbursable Expenses by more than five percent (5%), in which event Landlord shall pay for the cost thereof (up to $2,500.00). If the Tenant’s total escrow payments are less than Tenant’s actual Proportionate Share of all such Reimbursable Expenses, Tenant shall pay the difference to Landlord within thirty (30) days after demand. If the total escrow payments of Tenant are more than Tenant’s actual Proportionate Share of all such Reimbursable Expenses, Landlord shall retain such excess and credit it against Tenant’s next annual escrow payments, except that if the Term has ended, Landlord shall refund any such excess to Tenant within sixty (60) days after the expiration date of the Term. Landlord’s and Tenant’s obligation to reimburse and pay Reimbursable Expenses as set forth above shall survive the expiration or earlier termination of this Lease.

 

D. If any installment of Base Rent, Reimbursable Expenses or any other amount payable by Tenant hereunder is not received by Landlord by the date when due, after applicable notice and cure periods, it shall bear interest at the Default Rate from the date due until paid. All interest, and any late charges imposed pursuant to the provisions below, shall be considered additional rent due from Tenant to Landlord under the terms of this Lease. The term “Default Rate” as used in this Lease shall mean the lesser of (i) twelve percent (12%) or (ii) the maximum rate of interest permitted by applicable law. Further, in the event Tenant fails to make any payment within five (5) days of the date when due under this Lease, to help defray the additional cost to Landlord for processing such late payments, a late charge in an amount equal to five percent (5%) of the then delinquent payment shall automatically be imposed with respect to such then delinquent payment. Tenant acknowledges that, in addition to interest costs, the late payments by Tenant to Landlord of any monthly installments of rent or other sums due under this Lease will cause Landlord to incur costs not contemplated by this Lease, the exact amount of such costs being extremely difficult and impractical to fix. Such other costs include, without limitation, processing, administrative and accounting charges and late charges that may be imposed on Landlord by the terms of any Mortgage or related loan documents encumbering the Premises, the Building or the Land. The provision for such late charge shall be in addition to all of Landlord’s other rights and remedies hereunder or at law and shall not be construed as liquidated damages or as limiting Landlord’s remedies in any manner.

 

 

 

 5 

 

 

3. OPERATING EXPENSES AND COMMON AREAS.

 

A. Landlord shall maintain the Common Areas (hereinafter defined) and those portions of the Building to be maintained by Landlord as expressly provided in this Lease in good order, condition and repair. As used in this Lease, “Operating Expenses” means all costs, expenses and obligations incurred by Landlord in connection with the operation, maintenance, repair, replacement and management of the Building, the Land and the Common Areas of the Project (including the amount of any reasonable credits which Landlord may grant to particular tenants of the Building in lieu of providing any standard services or paying any standard costs for similar tenants), as determined in accordance with sound and prudent asset management principles, including the following costs by way of illustration, but not limitation: water and sewer charges; utility costs, including, but not limited to, the cost of heat, light, power, steam, gas and energy for the Common Areas; waste disposal; recycling costs; the cost of janitorial services; the cost of security and alarm services (including any central station signaling system); mechanical, electrical, plumbing, sewer, sprinkler and other life safety equipment and systems forming a part of the Building or the Project (other than the cost of repair, replacement and maintenance of the items which are a tenant’s responsibility); cost of repair and maintenance of any improvements as required under any easements or similar agreements benefiting the Project; cost of repair and maintenance of the downspouts and gutters; the paving of all parking facilities, access roads, driveways, truck ways, sidewalks and passageways; cost of repair and maintenance of the roof of the Building; cost of repair, maintenance and replacement of the exterior of the Building and the structural components; cost of repair, maintenance and replacement of signage serving the Project, including directional, way-finding and identification signs, and sign structures (but excluding the signage of any individual tenant or occupant maintained by such party); costs of cleaning, repairing, replacing and maintaining the Common Areas, including parking and landscaping, window cleaning costs; labor costs; costs and expenses of managing the Building and the Project, including management and/or administrative fees (not to exceed, in the aggregate, 3% of the gross revenues of the Project); air conditioning maintenance costs; elevator maintenance fees and supplies; material costs; equipment costs including the cost of maintenance, repair and service agreements and rental and leasing costs of tools and equipment; purchase costs of equipment; current rental and leasing costs of items which would be capital items if purchased; tool costs; costs of any capital improvements that (i) reduce or limit increases in Operating Expenses, or (ii) are incurred to comply with any Governmental Requirements promulgated or made applicable to the Project following the Lease Date (which shall be cost capitalized and thereafter amortized as an annual Operating Expense under generally accepted accounting principles) (the “Permitted Capital Costs”); licenses, permits and inspection fees; wages and salaries; employee benefits and payroll taxes; accounting and legal fees; any sales, use or service taxes incurred in connection therewith. Permitted Capital Costs shall be amortized over the reasonable life of such expenditures in accordance with such reasonable life and amortization schedules as shall be determined by Landlord employing sound and prudent property management accounting principles, with an amortization rate on the unamortized amount at 3.75% in excess of the Prime Rate (hereinafter defined) as of the date such expense is incurred. Operating Expenses shall not include depreciation or amortization of the Building or the Project or equipment in the Building or the Project except as provided herein; loan principal and/or interest payments or any other financing costs; capital expenditures other than Permitted Capital Costs; costs of alterations of tenants’ premises; leasing commissions; interest expenses on long-term borrowings; advertising, promotional, merchant’s association or any other marketing costs; repairs resulting from any defect in the original design or construction of the Project; structural replacements; legal expenses incurred for negotiating lease terms for prospective tenants, negotiating termination or extension of leases with existing tenants, or proceedings against any other specific tenant relating solely to the collection of rent or other sums due to Landlord from such tenant; all items and services for which Tenant or other tenants reimburse Landlord outside of Operating Expenses; costs incurred due to a violation of law by Landlord relating to the Project; amounts paid to subsidiaries or affiliates of Landlord except to the extent that the cost of the subject services, supplies, or materials do not exceed the cost that would have been provided by unaffiliated parties on a competitive basis; repairs or other work (including rebuilding) occasioned by fire, windstorm, or other casualty or condemnation; costs incurred to re-surface any parking area (other than the amount of any deductible); expenses for vacant or vacated space, including utility, security, and renovating costs of this space; any amounts related directly or indirectly to salaries, overhead or administrative charges, management fees, or office expenses that are in excess of three percent (3%) of the gross revenues of the Project; or reserves of any kind.

 

 

 

 6 

 

 

B. As used in this Lease, “Common Areas” shall mean all areas within the Project which are available for the common use of tenants of the Project and which are not leased or held for the exclusive use of Tenant or other tenants, including, but not limited to, parking areas, driveways, sidewalks, loading areas, access roads, corridors, landscaping and planted areas. Notwithstanding the foregoing, subject to the provisions of Section 1.A of this Lease, the Common Areas shall include the Tenant Exclusive Parking Area for the purposes of Landlord’s maintenance obligations under Section 3.A of this Lease. Landlord, from time to time, may change the size, location, nature and use of any of the Common Areas, convert Common Areas into leasable areas, construct additional parking facilities (including parking structures) in the Common Areas, and increase or decrease Common Area land and/or facilities. Such activities are permitted if (and only if) they do not materially affect Tenant’s use of or access to the Premises or materially affect the parking available to Tenant. Tenant shall have the nonexclusive right (in common with other tenants and all others to whom Landlord has granted or may grant such rights) to use the Common Areas for the purposes intended, subject to such reasonable rules and regulations governing the Common Areas as Landlord may establish from time to time. Tenant shall abide by such rules and regulations and shall use its best efforts to cause others who use the Common Areas with Tenant’s express or implied permission to abide by Landlord’s rules and regulations. At any time, Landlord may temporarily close portions of the Common Areas to perform any acts in the Common Areas as is required in connection with repairs, or in connection with improvements which, in Landlord’s reasonable judgment, are desirable to improve the Project. Landlord will exercise good faith commercially reasonable efforts to minimize interference with use of the Common Areas in connection with any such work and, in any event, shall cause means of vehicular and pedestrian access to be available to the Premises. Tenant shall not interfere with the rights of Landlord, other tenants or any other person entitled to use the Common Areas.

 

C. Tenant shall be liable for all vehicles owned, rented or used by Tenant or Tenant’s agents, employees, contractors and invitees in or about the Project. Tenant shall not store any equipment, inventory or other property in any trucks, nor store any trucks on the parking lot of the Project, other than in trucks and trailers parked directly in front of the dock doors serving the Premises. Tenant’s parking shall not be reserved or exclusive, and in no event will Tenant or any Tenant Entities park more vehicles in the parking facilities than Tenant’s Proportionate Share of the total parking spaces available for common use, provided that there shall be no limitation of Tenant’s parking in the Tenant Exclusive Parking Area, other than those established by Governmental Requirements. Automobile parking shall be limited to vehicles no larger than standard size automobiles or pickup utility vehicles, which shall be parked only in striped parking spaces and not in driveways, loading areas or other locations not specifically designated for parking. Handicapped spaces shall only be used by those legally entitled to such use. Tenant shall not cause large trucks or other large vehicles to be parked outside of the Tenant Exclusive Parking Area, except that parking of large delivery vehicles, trucks or storage of trailers shall be permitted adjacent to Tenant’s dock doors exclusively serving the Premises provided that any such parking and storage does not interfere with the use of the driveways and other Common Areas serving the Building and the Project, and access to other tenants’ premises. In the event the Premises have access to a loading dock which does not exclusively service the Premises, Tenant shall not park its trucks in the dock area longer than the time it takes to reasonably load or unload its trucks. In no event shall Tenant park any vehicle in or about a loading dock which exclusively services another tenant within the Project, or in a thoroughfare, driveway, street, or other area not specifically designated for parking. If a trailer parking area is included in the Project, Tenant shall be entitled to use those trailer parking spaces clearly marked and indicated to be for Tenant’s use on the attached Project Site Plan for the parking and storage of large delivery vehicles, trucks and/or trailers. Landlord reserves the right to establish commercially reasonable rules and regulations, applied in a non-discriminatory manner, for the loading and unloading of trucks upon the Project. Upon request by Landlord, Tenant shall move its trucks and vehicles if, in Landlord’s reasonable opinion, said vehicles are in violation of any of the above restrictions, and Landlord shall have the right to tow and remove, at Tenant’s sole cost and expenses, any such vehicles, trucks or trailers interfering with access to any portion of the Project or otherwise in violation of the provisions of this Lease or any rules and regulations governing parking and loading.

 

 

 

 7 

 

 

D. For purposes of calculating Operating Expenses under Paragraph 3.A, the maximum increase in the amount of Controllable Operating Costs (hereinafter defined) that may be included in calculating Tenant’s Proportionate Share of Operating Expenses for each calendar year after the Cap Base Year (hereinafter defined) during the initial Term shall be limited to eight (8%) percent per calendar year on a cumulative, compounded basis. By way of illustration, the maximum amount of Controllable Operating Costs that may be included in the calculation of Tenant’s Proportionate Share of Operating Expenses for each calendar year after the Cap Base Year shall equal the product of the Controllable Operating Costs during the Cap Base Year and the following percentages for the following calendar years: 108% for the first calendar year following the Cap Base Year; 116.64% for the second calendar year following the Cap Base Year; 125.97% for the third calendar year following the Cap Base Year; 136.05% for the fourth calendar year following the Cap Base Year; etc. However, any increases in Operating Expenses not recovered by Landlord due to the foregoing limitation shall be carried forward into succeeding calendar years during the Term (subject to the foregoing limitation) to the extent necessary until fully recouped by Landlord. The “Cap Base Year” means the first full calendar year following the Commencement Date; however, Controllable Operating Costs for the Cap Base Year only shall be increased to reflect Landlord’s commercially reasonable estimate of the maintenance and repair costs that would have been incurred in the absence of any warranties and adjusted to the amount that would have been incurred had the Project been fully occupied, and Landlord had been supplying services to the entirety of the Project, for the duration of such Cap Base Year. “Controllable Operating Costs” means those Operating Expenses which are within the reasonable control of Landlord; thus, excluding Taxes, insurance costs, utilities, snow removal costs and other weather-related costs (including extraordinary landscape maintenance costs, such as those resulting from infestation, storms, drought and other severe weather), costs incurred to comply with governmental requirements and laws, increased costs due to union labor, collective bargaining negotiations, boycotts, strikes and other extraordinary circumstances, costs resulting from acts of force majeure, pandemics, epidemics, health crises, COVID-19, amortized costs of capital expenditures, management fees, and other costs beyond the reasonable control of Landlord.

 

E. Landlord and Tenant agree that each provision of this Lease for determining charges, amounts, and additional rent payments by Tenant is commercially reasonable, and as to each such charge or amount, constitutes a “method by which the charge is to be computed” for purposes of Section 93.012 (Assessment of Charges) of the Texas Property Code, as such section now exists or as it may be hereafter amended or succeeded.

 

4. TAXES.

 

A. Landlord agrees to pay all taxes, assessments, governmental charges, license fees, license taxes, business license fees, commercial rental taxes, levies, charges, improvement bonds, tax, water and sewer rents and charges, utilities and communications taxes and charges or similar or dissimilar imposition imposed by any authority having the direct power to tax, including any city, county, state or federal government, or any school, agricultural, lighting, drainage or other improvement or special assessment district thereof, or any other governmental charge, general and special, ordinary and extraordinary, foreseen and unforeseen, which may be assessed against any legal or equitable interest of Landlord in the Premises, Building, Project or the Land, and any impositions, assessments, charges and fees payable with respect to the Project as required under any agreements, easements, declarations, covenants, conditions and restrictions or similar agreements encumbering the Building or the Project (collectively referred to herein as “Taxes”). Taxes shall expressly include the franchise tax set forth in V.T.C.A. Tax Code Section 171.0001 et seq., as the same may be amended or recodified from time to time, that are assessed on Landlord’s income from the Project. Taxes shall include all charges and assessments payable herein and applicable to each year during the Term of this Lease. For purposes of this Lease, the term Taxes shall also include, without limitation: any tax on Landlord’s “right” to rent or “right” to other income from the Premises or as against Landlord’s business of leasing the Premises; any assessment, tax, fee, levy or charge allocable to or measured by the area of the Premises or other premises in the Building or the rent payable by Tenant hereunder or other tenants of the Project, including, without limitation, any gross receipts tax or excise tax levied by state, city or federal government, or any political subdivision thereof, with respect to the receipt of such rent, or upon or with respect to the possession, leasing, operation, management, maintenance, alteration, repair, use or occupancy by Tenant of the Premises, or any portion thereof but not on Landlord’s other operations; any assessment, tax, fee, levy or charge upon this transaction or any document to which Tenant is a party, creating or transferring an interest or an estate in the Premises; any assessment, tax, fee, levy or charge by any governmental agency related to any transportation plan, fund or system (including assessment districts) instituted within the geographic area of which the Project is a part; and/or any costs and expenses (including, without limitation, reasonable attorneys’ fees) incurred in attempting to protest, reduce or minimize Taxes. Landlord shall have the right to employ an independent tax-consulting firm to attempt to assure a fair tax burden on the Building and grounds within the applicable taxing jurisdiction. Tenant agrees to pay its Proportionate Share of the commercially reasonable cost of such consultant. Notwithstanding the foregoing or anything to the contrary herein, Taxes shall expressly exclude, and Landlord (and not Tenant) shall be obligated, at Landlord’s sole cost and expense, to pay, any assessment for special improvements installed in connection with the initial development (or re-development) of the Project or otherwise incurred as a result of the initial construction or subsequent enlargement of the Building or the Land.

 

 

 

 8 

 

 

B. Tenant shall be liable for and shall timely pay all taxes levied or assessed against any personal property or fixtures placed in the Premises. If any such taxes are levied or assessed against Landlord or Landlord’s property and (i) Landlord pays the same or (ii) the assessed value of Landlord’s property is increased by inclusion of such personal property and fixtures and Landlord pays the increased taxes, then, upon demand Tenant shall pay to Landlord such taxes.

 

C. Tenant hereby waives any right it may have under the laws of the state or commonwealth in which the Land is situated to protest the appraised value of all or any portion of the Premises and the Building, and any right it may have under the laws of the state or commonwealth in which the Land is situated to appeal an order of the appraisal review board with respect to all or any portion of the Premises and/or the Building. Tenant agrees that Landlord shall have the sole right to protest any appraisals of the Premises and the Building. Tenant also hereby waives any right it may have to receive a copy of any notice received by Landlord of reappraisal of all or any portion of the Premises and/or the Building, including without limitation any notice required under the laws of the state or commonwealth in which the Land is situated. Tenant agrees that Landlord shall not be liable to Tenant for any damages for Landlord’s failure to send to Tenant a copy of any notice of reappraisal concerning the Premises and/or the Building, irrespective of any obligation under applicable law of Landlord to provide such notice. Notwithstanding the foregoing, if Tenant protests, challenges or appeals any valuation for property tax purposes of all or any portion of the Premises and/or the Building, and such valuation increases from the value protested, appealed or challenged, Tenant agrees to indemnify Landlord on an after-tax basis for any property taxes due as a result of such increase.

 

D. Landlord may from time to time contest the Taxes (any such proceeding, a “Tax Proceeding”) at its own election. Landlord will contract with a reputable third party ad valorem real estate tax consultant (the “Tax Consultant”) to determine whether or not to proceed with any Tax Proceeding every calendar year during the Term, with Landlord electing which Tax Consultant to use. Landlord will follow the recommendations of such Tax Consultant each calendar year during the Term unless in Landlord’s reasonable determination, Landlord wishes to contest Taxes regardless of such Tax Consultant’s recommendation. At Tenant’s request from time to time (but not more often than twice in any calendar year), Landlord will keep Tenant apprised of the status of any Tax Proceeding and shall provide Tenant with copies of any filings relating to such Tax Proceeding. If Landlord elects to institute a Tax Proceeding, Landlord shall proceed to take all commercially reasonable action in pursuit of such reduction. If Landlord elects to contest the Taxes, then Landlord may bill Tenant for Tenant's Proportionate Share of the out of pocket costs and expenses of such contest (using the same share then being used for Tenant's Proportionate Share of the Taxes) as and when incurred, and those amounts shall constitute part of the Taxes. To the extent Landlord has so billed and received from Tenant payment, such costs and expenses shall not be offset as described below from the abatement or refund, if any, ultimately received with respect to that contest. The Taxes are reduced by any net abatement or refund paid to Landlord by the taxing authorities as a result of any contest or otherwise after recovering all of Landlord's costs and expenses of securing such abatement or refund, and Landlord shall refund to Tenant Tenant’s Proportionate Share of such net abatement or refund within sixty (60) days after Landlord’s receipt thereof.

 

E. TENANT HEREBY WAIVES ALL RIGHTS TO PROTEST ALL PROPERTY TAXES ASSESSED TO THE PROPERTY, ALL RIGHTS TO PROTEST THE APPRAISED VALUE OF THE PROPERTY OR TO APPEAL THE SAME, AND ALL RIGHTS TO RECEIVE NOTICES OF REAPPRAISALS AS SET FORTH IN SECTIONS 41.413 AND 42.015 OF THE TEXAS TAX CODE.

 

5. LANDLORD’S REPAIRS. Tenant understands and agrees that Landlord’s maintenance and repair obligations with respect to the Premises are limited to the Warranty Repairs and those expressly set forth in this Paragraph 5. Landlord shall maintain, repair and replace, so as to keep in good working order, condition and repair at all times, the roof (including the roof covering, membrane and insulation), gutters and downspouts, the foundation, footings, structural portions of the floor slab, exterior and load-bearing walls, and all other structural portions of the Building, and all utility lines, drains, basins and similar facilities up to their point of connection with the Building (other than any such lines exclusively serving the Premises, which shall be the responsibility of Tenant, and Tenant shall have the right to access such lines wherever located). Landlord shall, as an Operating Expense, maintain the fire-protection sprinkler systems for the Building in good working order, condition and repair, with Tenant maintaining the same to the extent such systems exclusively serve the Premises. Notwithstanding the foregoing, Landlord shall not be responsible for maintenance, repairs or replacements caused in part or in whole by the negligent acts or omissions of any duty by Tenant, its agents, servants, employees or invitees, in which case Tenant will pay to Landlord, as additional rent, the full and actual cost of such maintenance, repairs and replacements. Subject to the provisions of Paragraph 3, the costs incurred by Landlord shall be included in Tenant’s Proportionate Share of Operating Expenses. Tenant shall give Landlord prompt written notice of defect or need for repairs under this Paragraph 5, after which Landlord shall have reasonable opportunity to repair same or cure such defect. Tenant will not be entitled to any abatement of rent and Landlord will not have any liability by reason of any injury to or interference with Tenant’s business arising from the making of any repairs, replacements, alterations or improvements in or to any portion of the Building or the Premises or in or to fixtures, appurtenances and equipment therein as required herein. Tenant waives the right to make repairs at Landlord’s expense under any law, statute, ordinance, rule, regulation, order or ruling.

 

 

 

 9 

 

 

6. TENANT’S REPAIRS AND MAINTENANCE.

 

A. Except as provided in Paragraph 5 (Landlord’s Repairs), Paragraph 11 (Fire and Casualty Damage) and Paragraph 16 (Condemnation), and except for express obligations of Landlord under this Lease (including, without limitation, Warranty Repairs), Tenant, at its own cost and expense, shall (i) maintain all parts of the Premises (including, but not limited to, damage to the floor slab of the Premises caused by Tenant or any Tenant Entity, the mechanical, electrical, plumbing, sewer, heating and air conditioning, warehouse fans and ventilation systems, sprinkler and other life safety equipment and the other fixtures and systems forming a part of the Premises, the dock doors, levelers and other loading dock equipment serving the Premises, and, to the extent damaged by Tenant or any other Tenant Entities, any downspouts or gutters), in good, neat, clean, sanitary and operable condition and (ii) promptly make all necessary repairs and replacements all parts of the Premises and all constituent elements thereof. All such repairs and replacements shall be done in a good and workmanlike manner, and shall be lien free upon completion, and shall be undertaken and completed subject to Tenant obtaining all necessary permits or approvals, and in all events in accordance with all applicable Governmental Requirements (hereinafter defined). In addition to the foregoing, Tenant shall, at its sole expense, repair any damage to the Premises, the Building, or the Project caused by acts or omissions of Tenant or Tenant’s employees, agents or invitees, or caused by Tenant’s default hereunder. If Tenant fails to make needed repairs within thirty (30) days after receipt of written notice from Landlord, Landlord may make such repairs, and Tenant shall pay Landlord on demand Landlord’s actual costs in making such repairs plus a fee in the amount of 10% of the actual costs of performing such work to cover the costs of Landlord’s supervision.

 

B. In addition to Tenant’s other obligations hereunder, Tenant, at its own cost and expense, shall also maintain, in full force and effect, a preventative maintenance and service contract with a reputable, fully licensed and insured/bonded third-party service provider approved by Landlord (such approval not to be unreasonably withheld, conditioned or delayed) for maintenance of all heating and air conditioning systems and equipment within or serving the Premises (the “Maintenance Contract”).  The terms and provisions of any Maintenance Contract shall require that the service provider maintain the heating and air conditioning systems and equipment in accordance with the manufacturer’s recommendations and be reasonably acceptable to Landlord, and shall otherwise be in accordance with normal, customary and reasonable practices in the geographic area in which the Premises is located and for heating and air conditioning systems and equipment comparable to the Premises’ heating and air conditioning systems and equipment, but not less than quarterly preventative maintenance visits.  Tenant shall procure and deliver to Landlord the Maintenance Contract on or prior to the Commencement Date.  Thereafter, Tenant shall provide to Landlord a copy of renewals or replacements of such Maintenance Contract no later than thirty (30) days prior to the then-applicable expiration date of the existing Maintenance Contract.  In addition, no later than fifteen (15) days after request, Tenant shall deliver to Landlord copies of all service records, logs and reports related to the maintenance services performed with respect to the heating and air conditioning systems and equipment. If Tenant fails to timely deliver to Landlord the Maintenance Contract (or any applicable renewal or replacement thereof), or the service records for the heating and air conditioning systems and equipment, then Landlord shall have the right to contract directly for the periodic maintenance of the heating and air conditioning systems and equipment in the Premises and to charge the cost thereof back to Tenant as additional rent. In the event the Premises includes elevator equipment, then in addition to the Maintenance Contract for the heating and air conditioning systems and equipment, Tenant shall procure and maintain a maintenance and service agreement for such elevator equipment, and the provisions of this paragraph, including the obligation to deliver service records, shall apply to the maintenance and service of such elevator equipment.

 

 

 

 10 

 

 

7. ALTERATIONS. Tenant shall not make any alterations, additions or improvements to the Premises without the prior written consent of Landlord, which consent shall not be unreasonably withheld, conditioned or delayed in connection with any alterations, additions, or improvements that do not adversely affect the Building’s structure or the Building’s systems. Notwithstanding the foregoing, so long as Tenant delivers to Landlord at least thirty (30) days’ prior written notice, which notice must be accompanied by any plans for such proposed alterations, additions or improvements or a description of the scope of such proposed alterations, additions or improvements, Tenant shall not be required to obtain Landlord’s consent for non-structural alterations to the Premises totaling less than $250,000.00 in any single instance or series of related alterations performed within a six (6) month period, provided that such alterations (i) do not affect or impact the configuration or location of any exterior or interior load-bearing walls of the Building, the Building’s structure, or the HVAC System or the Building’s life-safety, electrical, plumbing, or other mechanical systems; (ii) are not visible from the exterior of the Premises; (iii) will not result in the penetration or puncturing of the roof or, if such penetration or puncturing will jeopardize the structural integrity of the slab, the floor; and (iv) do not cause Landlord to incur any cost or expense. Additionally, Tenant, at its own cost and expense, may (1) erect such shelves, bins, machinery and trade fixtures as it desires provided that: (ww) such items do not alter the basic character of the Premises or the Building and/or improvements of which the Premises are a part; (xx) such items do not overload or materially damage the Premises, the Building or such improvements; (yy) such items may be removed without material injury to the Premises; and (zz) the construction, erection or installation thereof complies with all applicable Governmental Requirements and with Landlord’s reasonable requirements, and (2) install exterior security cameras in locations approved by Landlord, which approval shall not be unreasonably withheld, conditioned, or delayed. All alterations, additions, improvements and partitions erected by Tenant shall be and remain the property of Tenant during the Term of this Lease; provided, however, all alterations, additions, improvements, partitions, shelves, bins, machinery and trade fixtures installed by or on behalf of Tenant shall be removed on or before the earlier to occur of the date of termination of this Lease or vacating of the Premises by Tenant, at which time Tenant shall restore the Premises to its condition prior to such installations, reasonable wear and tear excepted. All alterations, installations, removals and restoration shall comply with all laws, statutes, ordinances, orders, rules regulations, directives and requirements of, and the provisions of all licenses, permits (special or otherwise), approvals and certificates issued by, all federal, state, county and city governments, departments, bureaus, boards, agencies, offices, commissions and other subdivisions thereof, or of any official thereof, or of any other governmental, public or quasi-public authority, whether now or hereafter in force (collectively “Governmental Requirements”), including, without limitation, the Americans With Disabilities Act, as amended from time to time (“ADA”), and shall be performed in a good and workmanlike manner so as not to damage or alter the primary structure or structural qualities of the Building and other improvements situated on the Premises or of which the Premises are a part. Except as otherwise expressly set forth in this Lease, it is agreed that the use of and access to the roof of the Building is expressly reserved to Landlord and is expressly denied to Tenant, except in connection with Tenant’s installation, maintenance and repair of the HVAC system serving the Premises and Tenant’s other obligations under this Lease. Tenant shall not access or penetrate the roof of the Building in any manner, nor install or construct any alterations, additions or improvements thereon, nor otherwise use or occupy the roof at any time during the Term hereof, unless given prior written approval from Landlord, which approval shall not be unreasonably withheld, conditioned or delayed.

 

If any Alterations require Landlord’s consent, Landlord must give notice to Tenant at the time Landlord grants its consent thereto as to whether or not such Alterations must be removed upon the expiration or earlier termination of this Lease or Tenant shall have no obligation to remove such Alterations and return the Premises to the condition that existed prior to Tenant having undertaken such Alterations upon the expiration or earlier termination of this Lease. Likewise, if Tenant intends to make any Alterations that do not require Landlord’s consent, Tenant shall have the option, prior to making such Alterations, to notify Landlord in writing of Tenant’s intent to make such Alterations and to request that Landlord advise Tenant in writing as to whether or not Landlord will require that such Alterations be removed upon the expiration or earlier termination of this Lease. In such instance, if Landlord notifies Tenant that such Alterations must be removed upon the expiration or earlier termination of this Lease and if Tenant then proceeds with such Alterations, Tenant shall be responsible for removing such Alterations upon the expiration or earlier termination of this Lease and returning the Premises to the condition that existed prior to the date Tenant undertook such Alterations. In all other instances, Tenant shall remove any Alterations made to the Premises by Tenant during the Term that did not require Landlord’s prior consent hereunder. Notwithstanding the foregoing or anything herein to the contrary, Tenant shall not be required to remove any part of the Leasehold Improvements constructed in accordance with Exhibit “C” attached hereto.

 

 

 

 11 

 

 

8. SIGNS. Any signage, decorations, advertising media, blinds, draperies, window treatments, bars, and security installations Tenant desires for the Premises shall be subject to Landlord’s prior written approval (not to be unreasonably withheld, conditioned or delayed) and shall in all events comply with all applicable Governmental Requirements. Tenant shall repair, paint, and/or replace the Building fascia surface to which its signs are attached upon vacation of the Premises, or the removal or alteration of its signage, all at Tenant’s sole cost and expense. Tenant shall not (i) make any changes to the exterior of the Premises, (ii) install any exterior lights, decorations, balloons, flags, pennants, banners or painting, or (iii) erect or install any signs, windows or door lettering, placards, decorations or advertising media of any type which can be viewed from the exterior of the Premises, without Landlord’s prior written consent (not to be unreasonably withheld, conditioned or delayed). All signs, decorations, advertising media, blinds, draperies and other window treatment or bars or other security installations visible from outside the Premises shall conform in all respects to the reasonable criteria established by Landlord and to the requirements of all covenants, conditions and restrictions applicable to the Premises and the Building. Notwithstanding the foregoing, Tenant, at its sole cost and expense, may install its name and logo on the exterior of the Building and the monument sign serving the Project, provided such signage shall be subject to Landlord’s approval as to construction, method of attachment, size, shape, height, lighting, color, and general appearance, which approval shall not be unreasonably withheld, conditioned or delayed.

 

9. UTILITIES. Tenant shall timely pay for all water, gas, heat, light, power, telephone, sewer, sprinkler charges and other utilities and services used on or at the Premises, together with any taxes, penalties, deposits, surcharges or the like pertaining to the Tenant’s use of the Premises. Tenant shall pay all security deposits required by utility companies for any services separately metered to the Premises. Tenant shall pay its Proportionate Share of all charges for jointly metered utilities (including, but not limited to the cost of utilities consumed in connection with providing electrical power for the Building’s canopy lighting, the lighting of the parking facilities and other Common Areas and facilities associated with the Building, the Building’s fire pump room and irrigation system, as well as other electricity gauged by the “house meter”).

 

Notwithstanding the provisions of Section 9 but subject to Sections 11 or 16, if any failure or interruption of any services or utilities due solely to Landlord’s negligence or willful misconduct (a “Service Interruption”) renders the Premises (or a part of the Premises) untenantable (i.e., Tenant cannot reasonably conduct its business in its ordinary course therein) or inaccessible and the Premises (or the untenantable or inaccessible portion thereof) are not used by Tenant for more than four (4) consecutive Business Days (the “Eligibility Period”), then Rent abates proportionately commencing on the next day after the last day of the Eligibility Period and continuing for the period that the Premises or the applicable portion thereof are rendered untenantable or inaccessible and are not used by Tenant. In order to be eligible for an abatement under this Section 9, Tenant must, within five (5) days after the last day of the Eligibility Period, provide Landlord written notice (the “Service Interruption Notice”) of (1) the date of occurrence of any failure or interruption of such services that continues for more than five (5) consecutive Business Days and (2) the date Tenant vacates the Premises or any part thereof (the Service Interruption Notice must specify the part of the Premises that Tenant is vacating if Tenant is not vacating all the Premises) due to a Service Interruption. Landlord will use commercially reasonable efforts to remedy any Service Interruption.

 

10. INSURANCE.

 

A. LANDLORD. Landlord shall maintain insurance covering the Building of which the Premises is a part in an amount not less than eighty percent (80%) of the “replacement cost” thereof insuring against the perils and costs of Fire, Lightning, Extended Coverage, Vandalism and Malicious Mischief and such other “all risk” coverage as Landlord shall deem necessary. In addition, Landlord shall procure and maintain commercial general liability insurance, which shall be in addition to, and not in lieu of, insurance required to be maintained by Tenant, and such other insurance that Landlord deems necessary to carry for, or in connection with, Landlord’s operation of the Building and the Project. All such insurance shall be for the sole benefit of Landlord, and under Landlord’s sole control. Landlord shall not be obligated to insure any furniture, equipment, trade fixtures, machinery, goods, or supplies which Tenant may keep or maintain in the Premises or any alteration, addition, or improvement which Tenant may make upon the Premises.

 

 

 

 12 

 

 

B. TENANT.

 

(1) Tenant shall obtain, pay for and maintain the following insurance on or in connection with the Premises:

 

(a) Insurance against all risk of physical loss or damage to the Leasehold Improvements and all other tenant improvements and alterations (collectively, “Improvements”) and theft, sprinkler leakage and boiler and machinery coverage on all of Tenant’s trade fixtures, machinery, equipment, furniture, inventory and other property on the Premises (collectively, “Equipment”) as provided under “Special Causes of Loss” form coverage in amounts not less than the actual replacement cost of the Improvements and Equipment. Such policy shall contain Replacement Cost and Agreed Amount Endorsements and “Law and Ordinance” coverage (at full replacement cost). Such policy and endorsements shall contain deductibles not more than $25,000 per occurrence. Any deductibles selected by Tenant shall be the sole responsibility of Tenant. Tenant shall use the proceeds from such insurance for the replacement of its Equipment and for the restoration of the Improvements to the Premises. Landlord shall be named as loss payee with respect to Improvements to the Premises. The limits of insurance required by this Lease, or as carried by Tenant, shall not limit the liability of Tenant or relieve Tenant of any obligation thereunder, except to the extent provided for under Paragraph 11.D below.

 

(b) Commercial General Liability Insurance (“CGL”) against claims for personal and bodily and advertising injury, death or property damage occurring on, in or as a result of the use, occupancy, or maintenance of the Premises and the Project. The CGL for injuries to persons and for damage to property at all times shall be in an amount of not less than $2,000,000 per occurrence and $4,000,000 general aggregate, Combined Single Limit, for injuries to non-employees and property damage, with no self-insured retention or deductible unless approved by Landlord, on an occurrence basis, and shall include premises/operations coverage, products/completed operations liability coverage and personal injury/advertising injury coverage.

 

(c) Business automobile liability insurance covering owned, hired and non-owned vehicles with limits of $1,000,000 combined single limit per occurrence.

 

(d) Workers’ compensation insurance in the amount required by applicable law and employers’ liability insurance covering all persons employed by Tenant in connection with any work done on or about any of the Premises in an amount not less than $1,000,000.

 

(e) Umbrella or Excess liability over general liability, automobile liability and employers’ liability in an amount not less than $5,000,000 per occurrence and $5,000,000 aggregate.

 

(f) Intentionally Omitted.

 

(g) During any period in which substantial Improvements at the Premises are being undertaken, builder’s risk insurance covering the total completed value, including all hard and soft costs (which shall include business interruption coverage) with respect to the Improvements being constructed, altered or repaired (on a completed value, non-reporting basis), replacement cost of work performed and equipment, supplies and materials furnished in connection with such construction, alteration or repair of Improvements or equipment, together with such other endorsements as Landlord may reasonably require. Landlord shall be named as Loss Payee as their interests may appear.

 

(h) Such other insurance (or other or different terms with respect to any insurance required pursuant to this Paragraph 10.B, including without limitation amounts of coverage, deductibles, form of mortgagee clause, insurer rating) on or in connection with any of the Premises as Landlord or Landlord’s lender may reasonably require.

 

(2) The insurance required by Paragraph 10.B(1) shall be written by companies having an AM Best’s rating of A-VII, unless otherwise approved by Landlord, and are authorized to write insurance policies by, the State Insurance Department (or its equivalent) for the state in which the property is located. The insurance required by Paragraph 10.B shall be primary and non-contributing with, and not in excess of any other insurance available to Landlord.

 

 

 

 13 

 

 

(3) Each insurance policy shall contain standard non-contributory mortgagee clauses in favor of and acceptable to Landlord. Each policy shall name Landlord, Landlord’s property manager, trustees, officers, directors, members, agents, employees, and representatives, and Landlord’s lender as additional insureds. Each policy required by any provision of Paragraph 10.B(1) shall provide that it may not be cancelled, substantially modified or allowed to lapse on any renewal date except after at least thirty (30) days’ prior written notice to Landlord and Landlord’s lender. Tenant shall either provide Landlord with a blanket additional insured endorsement which evidences the fact that each of the parties listed above is covered as an additional insured on the CGL policies required above, or originals of the endorsements to the CGL policies providing equivalent (or greater) coverage than that provided by ISO form CG 20 10 11 85). Such endorsements must be separate from certificates of insurance. This coverage shall be written on the most current ISO CGL form, shall include contractual liability, premises-operations and products-completed operations and shall contain an exception to any pollution exclusion which insures damage or injury arising out of heat, smoke, or fumes from a hostile fire. Such insurance shall be written on an occurrence basis and contain a standard separation of insureds provision.

 

(4) Tenant shall pay as they become due all premiums for the insurance required by Paragraph 10.B, shall renew or replace each policy and deliver to Landlord evidence of the payment of the full premium therefor or installment then within five (5) days of the expiration date of such policy, and shall promptly deliver to Landlord all original certificates of insurance, acceptable to Landlord, evidencing the existence and amount of such coverages or, if required by Landlord’s lender, original or certified policies. All certificates of insurance (including liability coverage) provided to Landlord and Landlord’s lender shall be on ACORD Form 28 (Evidence of Commercial Property Insurance) and ACORD Form 25 (Certificate of Liability Insurance). Each certificate of insurance shall name Landlord as the certificate holder. Tenant shall not do any act which may make void or voidable any insurance on the Premises or Project; and, in the event Tenant’s use of the Premises shall result in an increase in Landlord’s insurance premiums, Tenant shall pay to Landlord upon demand, as additional rent, an amount equal to such increase in insurance.

 

(5) Anything in Paragraph 10.B(1) to the contrary notwithstanding, any insurance which Tenant is required to obtain pursuant to Paragraph 10.B(1) may be carried under a “blanket” policy or policies covering other properties of Tenant such blanket policy or policies, on an occurrence basis. Upon request, Tenant shall provide to Landlord a Statement of Values which may be reviewed annually and shall be amended to the extent determined necessary by Landlord based on revised Replacement Cost Valuations.

 

(6) Each policy (other than workers’ compensation coverage) shall contain a full waiver of subrogation against Landlord.

 

(7) The proceeds of any insurance required under Paragraph 10.B shall be paid to Landlord and Tenant as their interests appear in the insured property.

 

(8) Tenant will not permit the Premises to be used for any purpose or in any manner that would (i) void the insurance thereon, (ii) increase the insurance risk, or (iii) cause the disallowance of any sprinkler credits, including without limitation, use of the Premises for the receipt, storage or handling of any product, material or merchandise that is explosive or highly inflammable. If any increase in the cost of any insurance on the Premises or the Building of which the Premises are a part is caused by Tenant’s use of the Premises, or because Tenant vacates the Premises, then Tenant shall pay the amount of such increase to Landlord.

 

(9) Should Tenant engage the services of any contractor to perform work in the Premises, Tenant shall ensure that such contractor carries property, builder’s risk (as necessary), commercial general liability, business automobile liability, umbrella/excess liability, worker’s compensation and employers liability coverages in substantially the same amounts as are required of Tenant under this Lease.

 

(10) All policies required to be carried by any contractor shall be issued by and binding upon an insurance company licensed to do business in the state in which the Land is located with an A.M. Best rating of at least “A-VII” or better unless otherwise approved by Landlord. Certificates of insurance, acceptable to Landlord, evidencing the existence and amount of each insurance policy required hereunder shall be delivered to Landlord prior to the commencement of any work in the Premises. Further, the certificates must include an endorsement for each policy whereby the insurer agrees not to cancel, non-renew, or materially alter the policy without at least thirty (30) days’ prior written notice to Landlord. The above requirements shall apply equally to any subcontractor engaged by contractor.

 

 

 

 14 

 

 

11. FIRE AND CASUALTY DAMAGE.

 

A. If the Premises or the Building should be damaged or destroyed by fire or other peril, Tenant promptly shall give written notice to Landlord. If the Building should be totally destroyed or the Premises are so damaged that, in Landlord’s reasonable estimation (which Landlord shall deliver to Tenant within sixty (60) days after such damage) rebuilding or repairs cannot be completed within three hundred sixty (360) days after Landlord’s receipt of all insurance proceeds with respect to such damage, this Lease shall terminate and the rent shall be abated during the unexpired portion of this Lease, effective upon the date of the occurrence of such damage. If Landlord has the right to terminate this Lease pursuant to this Section, Landlord agrees to exercise such right in a nondiscriminatory fashion among tenants in the Building. Consideration of the following factors in arriving at its decision shall not be deemed discriminatory: length of term remaining on the Lease, time needed to repair and restore, costs of repair and restoration not covered by insurance proceeds, Landlord’s plans to repair and restore Common Areas serving the Premises, Landlord’s plans for repair and restoration of the Building, and other factors (other than the rental rates payable under the leases in question) relevant to Landlord’s decision as long as they are applied to Tenant in the same manner as other tenants.

 

B. If the Building should be damaged by any peril which would be covered by the insurance which Landlord is required to maintain under Paragraph 10.A above, and this Lease is not terminated pursuant to Paragraph 11.A above, Landlord shall restore the Premises to substantially its previous condition, except that Landlord shall not be required to rebuild, repair or replace any part of the partitions, fixtures, additions and other Improvements that may have been constructed, erected or installed in, or about the Premises for the benefit of, or by or for Tenant. Effective upon the date of the occurrence of such damage and ending upon substantial completion of Landlord’s restoration of the Premises, if the Premises are untenantable in whole or part during such period, the rent shall be reduced to such extent as may be fair and reasonable under all of the circumstances as reasonably determined by Landlord. If such repairs and rebuilding have not been substantially completed within three hundred sixty (360) days after the date of Landlord’s receipt of all insurance proceeds (subject to extension of such period due to Force Majeure (hereinafter defined) and any delays caused by Tenant or its employees, agents or contractors), Tenant, as Tenant’s exclusive remedy, may terminate this Lease by delivering written notice of termination to Landlord on or before the date that Landlord has substantially completed the repairs and rebuilding.

 

C. Notwithstanding anything herein to the contrary (i) in no event shall Landlord be required to expend a sum greater than the net insurance proceeds actually received by Landlord with respect to the damage in question in connection with Landlord’s repair and restoration obligations hereunder, and (ii) in the event the holder of any indebtedness secured by a Mortgage (hereinafter defined) covering the Premises requires that the insurance proceeds be applied to such indebtedness, then Landlord shall have the right to terminate this Lease by delivering written notice of termination to Tenant within thirty (30) days after such requirement is made known by any such holder, whereupon all rights and obligations hereunder shall cease and terminate (except as expressly provided to the contrary herein).

 

Notwithstanding the foregoing, if Landlord elects to terminate this Lease under this Paragraph 11, Tenant may elect to continue this Lease in full force and effect, in which case Tenant shall repair any damage to the Premises and/or the Building and Tenant shall pay the cost of such repairs, except that upon completion of such repairs, Landlord shall deliver to Tenant any insurance proceeds received by Landlord for the damage actually repaired by Tenant, but Landlord will have no obligation or responsibility for any costs in excess of the insurance proceeds. Tenant shall give Landlord written notice of such election (the “Tenant Rebuild Election”) within thirty (30) days after receiving Landlord’s termination notice, and in such event Landlord shall have no responsibility to repair or replace Tenant’s trade fixtures, inventory, or other personal property, all of which shall be Tenant’s responsibility to handle as Tenant determines in Tenant’s sole discretion, provided, however, that Landlord shall reasonably cooperate with Tenant with respect to obtaining all necessary permits. Landlord may vitiate the Tenant Rebuild Election and Tenant’s right to repair any damage to the Premises and/or the Building, in which event this Lease shall terminate as set forth in the immediately preceding paragraph, by paying to Tenant within thirty (30) days after Landlord’s receipt of the Tenant Rebuild Election, a portion of the insurance proceeds actually received by Landlord under Paragraph 10.B(1)(a) equal to the unamortized cost of the Leasehold Improvements, amortized on a straight-line basis over the Term.

 

D. Tenant waives any and all rights of recovery against Landlord for or arising out of damage to or destruction of any property of Tenant to the extent that Tenant’s property insurance policies then in force or the policies required by this Lease, whichever is broader, insure against such damage or destruction.

 

 

 

 15 

 

 

LANDLORD WILL NOT BE RESPONSIBLE FOR OR LIABLE TO TENANT FOR ANY LOSS OR DAMAGE THAT MAY BE OCCASIONED BY OR THROUGH THE ACTS OR OMISSIONS OF PERSONS OCCUPYING ADJOINING PREMISES OR ANY PART OF THE PREMISES ADJACENT TO OR CONNECTED WITH THE PREMISES OR ANY PART OF THE BUILDING OR THE PROJECT OR FOR ANY LOSS OR DAMAGE RESULTING TO TENANT OR ITS PROPERTY FROM BURST, STOPPED OR LEAKING WATER, GAS, SEWER OR STEAM PIPES OR FALLING PLASTER, OR ELECTRICAL WIRING OR FOR ANY DAMAGE OR LOSS OF PROPERTY WITHIN THE PREMISES FROM ANY CAUSES WHATSOEVER, INCLUDING BUT NOT LIMITED TO THEFT, AND/OR ACTS OR THREATENED ACTS OF TERRORISM, DAMAGE OR INJURY DUE TO MOLD, EVEN IF SUCH LOSSES OR DAMAGES ARISE DUE TO THE NEGLIGENCE OF LANDLORD OR ITS AGENTS, CONTRACTORS, OR EMPLOYEES, EXCEPTING ONLY LOSSES OR DAMAGES RESULTING FROM THE GROSS NEGLIGENCE OR WILLFUL MISCONDUCT OF LANDLORD. LANDLORD WILL NOT BE LIABLE UNDER ANY CIRCUMSTANCES TO TENANT FOR ANY INCIDENTAL, SPECIAL, INDIRECT, CONSEQUENTIAL OR PUNITIVE DAMAGES, AND TENANT WAIVES ANY RIGHTS IT MAY HAVE TO SUCH DAMAGES UNDER THIS LEASE IN THE EVENT OF A BREACH OR DEFAULT BY LANDLORD UNDER THIS LEASE.

 

Notwithstanding any contrary provision hereof, Tenant shall not be liable to Landlord for any form of incidental, special, indirect, consequential or punitive damages (i) other than the New Tenant Damages (defined below), or (ii) unless due to an environmental contamination of the Premises, the Building, or the Project by Tenant or any Tenant Entity. As used herein, “New Tenant Damages” means any cost to enforce the terms of this Lease (including attorneys’ fees) and any increase in Landlord’s costs of leasing the Premises to a new tenant, any loss of rent paid to Landlord by a new tenant, and/or any liability of Landlord in favor of a new tenant, in each case resulting from any inability of Landlord to deliver possession of the Premises to, or perform improvements for, such new tenant as a result of Tenant’s holdover in the Premises after the expiration or earlier termination of this Lease.

 

12. LIABILITY AND INDEMNIFICATION. LANDLORD, ITS DESIGNATED PROPERTY MANAGEMENT COMPANY AND THE HOLDER OF ANY MORTGAGE, AND THEIR RESPECTIVE PARTNERS, MEMBERS, AFFILIATES AND SUBSIDIARIES, AND ALL OF THEIR RESPECTIVE OFFICERS, TRUSTEES, DIRECTORS, SHAREHOLDERS, EMPLOYEES, SERVANTS, PARTNERS, REPRESENTATIVES, CONTRACTORS, INSURERS, INVITEES AND AGENTS (EACH AN “INDEMNIFIED PARTY”) SHALL NOT BE LIABLE TO TENANT AND TENANT HEREBY WAIVES ALL CLAIMS AGAINST EACH INDEMNIFIED PARTY FOR ANY INJURY TO OR DEATH OF ANY PERSON OR DAMAGE TO OR DESTRUCTION OF PROPERTY IN OR ABOUT THE PREMISES OR THE PROJECT BY OR FROM ANY CAUSE WHATSOEVER, INCLUDING, WITHOUT LIMITATION, GAS, FIRE, OIL, ELECTRICITY OR LEAKAGE OF ANY CHARACTER FROM THE ROOF, WALLS, BASEMENT OR OTHER PORTION OF THE PREMISES OR THE PROJECT, EVEN IF SUCH LOSSES OR DAMAGES ARISE DUE TO THE NEGLIGENCE OF LANDLORD OR ITS AGENTS, CONTRACTORS, OR EMPLOYEES, BUT EXCLUDING, HOWEVER, THE GROSS NEGLIGENCE OR WILLFUL MISCONDUCT OF ANY INDEMNIFIED PARTY OF WHICH GROSS NEGLIGENCE OR WILLFUL MISCONDUCT LANDLORD HAS KNOWLEDGE AND REASONABLE TIME TO CORRECT. EXCEPT AS TO INJURY TO PERSONS OR DAMAGE TO PROPERTY CAUSED BY THE NEGLIGENCE OR WILLFUL MISCONDUCT OF AN INDEMNIFIED PARTY, TO THE MAXIMUM EXTENT PERMITTED BY LAW, TENANT HEREBY AGREES TO INDEMNIFY, DEFEND AND HOLD EACH INDEMNIFIED PARTY HARMLESS FOR, FROM AND AGAINST ALL LIABILITIES, CLAIMS, FINES, PENALTIES, COSTS, DAMAGES OR INJURIES TO PERSONS, DAMAGES TO PROPERTY, LOSSES, LIENS, CAUSES OF ACTION, SUITS, JUDGMENTS AND EXPENSES (INCLUDING COURT COSTS, ATTORNEYS’ FEES, EXPERT WITNESS FEES AND COSTS OF INVESTIGATION), OF ANY NATURE, KIND OR DESCRIPTION OF ANY PERSON OR ENTITY, DIRECTLY OR INDIRECTLY ARISING OUT OF, CAUSED BY, OR RESULTING FROM (IN WHOLE OR PART) (1) TENANT’S CONSTRUCTION OF OR USE, OCCUPANCY OR ENJOYMENT OF THE PREMISES, (2) ANY ACTIVITY, WORK OR OTHER THINGS DONE, PERMITTED OR SUFFERED BY TENANT AND ITS AGENTS AND EMPLOYEES IN OR ABOUT THE PREMISES, (3) ANY BREACH OR DEFAULT IN THE PERFORMANCE OF ANY OF TENANT’S OBLIGATIONS UNDER THIS LEASE, (4) ANY ACT, OMISSION, NEGLIGENCE OR WILLFUL MISCONDUCT OF TENANT OR ANY OF ITS AGENTS, CONTRACTORS, EMPLOYEES, SUBTENANTS, INVITEES OR LICENSEES, (5) ANY INJURY TO OR DEATH OF ANY PERSON OR DAMAGE TO OR DESTRUCTION OF PROPERTY OCCURRING IN, ON OR ABOUT THE PREMISES, OR ANY PART THEREOF, FROM ANY CAUSE WHATSOEVER, (6) THE PRESENCE OF MOLD IN THE PREMISES OR BUILDING WHICH WAS CAUSED BY, CONTRIBUTED TO, OR ALLOWED BY TENANT, OR (7) ANY DAMAGE TO TENANT’S PROPERTY, OR THE PROPERTY OF TENANT’S AGENTS, EMPLOYEES, CONTRACTORS, BUSINESS INVITEES OR LICENSEES, LOCATED IN OR ABOUT THE PREMISES.

 

 

 

 16 

 

 

SUBJECT TO SECTION 10 OF THIS LEASE, EXCEPT TO THE EXTENT ARISING DUE TO THE NEGLIGENCE OR WILLFUL MISCONDUCT OF TENANT OR TENANT ENTITIES, LANDLORD SHALL INDEMNIFY, DEFEND AND HOLD TENANT HARMLESS FROM AND AGAINST ANY AND ALL EXPENSES, INCLUDING REASONABLE ATTORNEYS’ FEES, IN CONNECTION THEREWITH, ARISING OUT OF ANY INJURY TO OR DEATH OF ANY PERSON OR DAMAGE TO OR DESTRUCTION OF PROPERTY OCCURRING IN, ON OR ABOUT THE PREMISES, THE EXTERIOR AREAS, OR ANY PART THEREOF TO THE EXTENT ARISING FROM THE GROSS NEGLIGENCE OR WILLFUL MISCONDUCT OF LANDLORD.

 

THE PROVISIONS OF THIS PARAGRAPH  12 SHALL SURVIVE THE EXPIRATION OR TERMINATION OF THIS LEASE WITH RESPECT TO ANY CLAIMS OR LIABILITY OCCURRING PRIOR TO SUCH EXPIRATION OR TERMINATION.

 

13. USE.

 

A. The Premises shall be used only for the Permitted Use, subject to all Governmental Requirements. Outside storage (other than vehicles and trailers) is prohibited without Landlord’s prior written consent. Tenant shall comply with the requirements of all deed restrictions, restrictive covenants and other covenants, conditions and restrictions listed on Exhibit “H” attached hereto. Tenant shall not permit any unreasonable odors, smoke, dust, gas, noise or vibrations to emanate from the Premises, nor take any other action that would constitute a nuisance or would unreasonably interfere with, or endanger Landlord or any other tenants of the Building. Tenant shall not place weight upon any portion of the Premises exceeding the structural floor load (per square foot of area) which such area was designed (and is permitted by law) to carry or otherwise use any Building system in excess of its capacity or in any other manner which may damage such system or the Building. Tenant shall not create within the Premises a working environment with a density of greater than the maximum density permitted by law.

 

B. During the Term, Tenant shall, at its sole cost and expense, comply with all Governmental Requirements applicable to the Premises and the Project, as well as any requirement of Landlord’s insurance carrier with respect to Tenant’s use of the Premises. Tenant shall obtain, at Tenant’s sole cost and expense, any and all licenses and permits necessary for Tenant’s contemplated use of the Premises for the Permitted Use. In addition to the terms and conditions set forth herein, Landlord and Tenant shall be bound by those certain rules and regulations, set forth on Exhibit “E” attached hereto and made a part hereof; provided, however, Landlord shall apply such rules and regulations in a non-discriminatory manner among all tenants in the Project, and in the event of a conflict between such rules and regulations and this Lease, this Lease shall prevail. Tenant shall promptly notify Landlord in the event Tenant receives notice from any governmental authority, agency or department regarding or in any manner relating to the Premises, the Building, the Land or the Project, including, without limitation, any violations of any Governmental Requirements. Tenant shall promptly notify Landlord in the event Tenant receives notice, or Tenant otherwise has knowledge, that any employee of Tenant or invitee entering the Premises has been diagnosed with a confirmed case of any infectious disease or other illness posing a threat to the health and wellness of the general public as declared by any governmental authority, agency or department. Further, Tenant shall promptly notify Landlord in the event any damage to the Premises or the Project occurs or is threatened as the result of any civil unrest or disturbance. Tenant shall not at any time use or occupy the Premises in violation of the certificates of occupancy issued for the Building or the Premises, and in the event that any department of the state or the city or county in which the Project is located shall at any time contend or declare that the Premises are used or occupied in violation of such certificate or certificates of occupancy, Tenant shall, upon five (5) days’ notice from Landlord or any such governmental agency, immediately discontinue such use of the Premises (and otherwise remedy such violation). The failure by Tenant to discontinue such use shall be considered a default under this Lease and Landlord shall have the right to exercise any and all rights and remedies provided herein or available by law or in equity.

 

C. Compliance with Law.

 

(1) Existing Governmental Regulations. If any Governmental Requirements in existence as of the date of this Lease require an alteration or modification (a “Code Modification”) of the Premises, the Building and/or the Project and such Code Modification (i) is not made necessary as a result of the specific use of the Premises being made by Tenant (as distinguished from a use of the Premises that, despite its nature, would require a Code Modification), and (ii) is not made necessary as a result of any specific alteration of or improvement to the Premises by Tenant (including the Leasehold Improvements) (as distinguished from an alteration or improvement to the Premises that, despite its nature, would require a Code Modification), such Code Modification shall be performed by Landlord at Landlord’s sole cost and expense. In the event Tenant is delayed in obtaining a certificate of occupancy for the Premises due to a Code Modification required to be performed by Landlord under this subparagraph (1), then the Commencement Date shall be extended by one (1) day for each day that Tenant is unable to obtain a certificate of occupancy for the Premises due to such required Code Modification.

 

 

 

 17 

 

 

(2) Governmental Regulations – Landlord Responsibility. If, as a result of one or more Governmental Requirements that are not in existence as of the date of this Lease, it is necessary from time to time during the Term, to perform a Code Modification to the Building or the Project that (i) is not made necessary as a result of the specific use being made by Tenant of the Premises (as distinguished from an alteration or improvement which would be required to be made by the owner of any building comparable to the Building irrespective of the use thereof by any particular occupant), and (ii) is not made necessary as a result of any alteration of the Premises by Tenant (including any Leasehold Improvements), such Code Modification shall be performed by Landlord and cost thereof shall be included in Operating Expenses.

 

(3) Governmental Regulations Tenant Responsibility. If, as a result of one or more Governmental Requirements, it is necessary from time to time during the Term to perform a Code Modification to the Building or the Project that is made necessary as a result of the specific use being made by Tenant of the Premises or as a result of any alteration of the Premises by Tenant (including the Leasehold Improvements), such Code Modification shall be the sole and exclusive responsibility of Tenant in all respects; provided, however, that Tenant shall have the right to retract its request to perform a proposed alteration in the event that the performance of such alteration would trigger the requirement for a Code Modification.

 

14. INSPECTION. Landlord and Landlord’s agents and representatives shall have the right to enter the Premises at any time, upon prior reasonable notice (which may be telephonic), to (i) inspect the Premises, (ii) make such repairs as may be required or permitted pursuant to this Lease, and (iii) show the Premises to prospective purchasers of, or parties who are anticipated to provide financing with respect to, the Building. Notwithstanding the foregoing, Landlord shall have the right to enter the Premises at any time, without notice to Tenant, in case of an emergency posing a threat to persons or property. During the period that is twelve (12) months prior to the end of the Term, upon telephonic notice to Tenant, Landlord and Landlord’s representatives may enter the Premises during business hours for the purpose of showing the Premises. In addition, Landlord shall have the right to erect a suitable sign on the Premises stating the Premises are available. In exercising Landlord’s rights pursuant to this Paragraph 14, Landlord shall use commercially reasonable efforts to not materially and adversely interfere with the operations of Tenant's business. Landlord shall obtain non-disclosure agreements (“NDAs”) on Tenant’s commercially reasonable form prior to permitting any agent of Landlord or third party from entering the Premises (except in the event of an emergency). Notwithstanding the foregoing, Tenant may deny access to third parties if Tenant determines, in good faith, that such third party’s access to the Premises could expose Tenant’s confidential and proprietary information; however, if such denial would prevent Landlord from performing its obligations under this Lease, Landlord’s failure to perform such obligations shall not constitute a default by Landlord under this Lease.

 

15. ASSIGNMENT AND SUBLETTING.

 

A. Tenant shall not directly or indirectly, by operation of law, a merger, consolidation or similar transaction, due to a sale or transfer of all or a controlling ownership interest in Tenant or a sale of substantially all of Tenant’s assets, or otherwise, assign, sublet, mortgage, hypothecate or otherwise encumber all or any portion of its interest in this Lease or in the Premises, or grant any license in any person other than Tenant or its employees to use or occupy the Premises or any part thereof without the prior written consent of Landlord, not to be unreasonably withheld, conditioned or delayed. Any attempted assignment, subletting, transfer or encumbrance by Tenant in violation of the terms and covenants of this paragraph shall be void. In addition, as used in this Paragraph 15, the term “Tenant” shall also mean any entity that has guaranteed Tenant’s obligations under this Lease, and the restrictions applicable to Tenant contained herein shall also be applicable to such guarantor. In the event Tenant desires to sublet the Premises, or any portion thereof, or assign this Lease, Tenant shall give written notice thereof to Landlord at least thirty (30) days prior to the proposed commencement date of such subletting or assignment, which notice shall set forth the name of the proposed sublessee or assignee, the relevant terms of any sublease or assignment and copies of financial reports and other relevant financial information of the proposed sublessee or assignee. Tenant shall also provide to Landlord a copy of the fully-negotiated sublease or assignment document prior to Landlord providing its consent to such sublease or assignment. Any approved or permitted assignment or sublease shall be expressly subject to the terms and conditions of this Lease.

 

 

 

 18 

 

 

B. If Landlord has the right to approve of any sublessee or assignee, Landlord shall also have the option, in the event of any proposed subletting or assignment, to terminate this Lease, or in case of a proposed subletting of less than the entire Premises, to recapture the portion of the Premises to be sublet, as of the date the subletting or assignment is to be effective. The option shall be exercised, if at all, by Landlord giving Tenant written notice thereof within ten (10) business days following Landlord’s receipt of Tenant’s written notice as required above. If this Lease shall be terminated with respect to the entire Premises pursuant to this paragraph, the Term of this Lease shall end on the date stated in Tenant’s notice as the effective date of the sublease or assignment as if that date had been originally fixed in this Lease for the expiration of the Term hereof; provided, however, that effective on such date Tenant shall pay Landlord all amounts, as estimated by Landlord, payable by Tenant to such date with respect to taxes, insurance, repairs, maintenance, restoration and other obligations, costs or charges which are the responsibility of Tenant hereunder. Further, upon any such cancellation Landlord and Tenant shall have no further obligations or liabilities to each other under this Lease, except with respect to obligations or liabilities which have accrued hereunder as of such cancellation date (in the same manner as if such cancellation date were the date originally fixed in this Lease for the expiration of the Term hereof) and except for those obligations and liabilities which, by the express terms of this Lease, are to survive any expiration or termination hereof. If Landlord recaptures only a portion of the Premises under this paragraph, the Base Rent during the unexpired Term hereof shall abate proportionately based on the rent per square foot contained in this Lease as of the date immediately prior to such recapture. Notwithstanding the foregoing, Tenant may nullify any recapture of the Premises under this paragraph by Landlord by sending Landlord written notice within ten (10) business days following Landlord’s written election that Tenant has withdrawn its request for Landlord’s approval of any assignment of this Lease or subletting of the Premises, in which event this Lease shall continue as if Tenant had never requested Landlord’s approval of any such assignment or sublease.

 

C. Upon the occurrence of an assignment or subletting, whether or not consented to by Landlord, or mandated by judicial intervention, Tenant hereby assigns, transfers and conveys to Landlord fifty percent (50%) of all rents or other sums (or a combination of the rental payable under such sublease or assignment, plus any bonus or other consideration therefor or incident thereto) received or receivable by Tenant under any such assignment or sublease, which are in excess of the rents and other sums payable by Tenant under this Lease (or in case of a sublease, which are in excess of the rents and other sums payable by Tenant with respect to the portion of the Premises that is subleased); provided that before Landlord is entitled to participation in such excess, Tenant shall be entitled to recover from the excess Tenant’s reasonable costs and expenses actually incurred for real estate broker’s commissions, tenant improvement costs and reasonable rent concessions afforded and required to assign or sublet. Tenant agrees to pay such amounts required to be paid to Landlord hereunder within ten (10) days after receipt by Tenant.

 

D. Tenant acknowledges that it shall be reasonable for Landlord to withhold its consent to a proposed assignment or sublease in any of the following instances: (i) the assignee or sublessee is not, in Landlord’s reasonable opinion, sufficiently creditworthy to perform the obligations such assignee or sublessee will have under this Lease; (ii) the intended use of the Premises by the assignee or sublessee is not the same as set forth in this Lease or otherwise reasonably satisfactory to Landlord; (iii) the intended use of the Premises by the assignee or sublessee would materially increase the pedestrian or vehicular traffic to the Premises or the Project; (iv) occupancy of the Premises by the assignee or sublessee would, in the good faith judgment of Landlord, violate any agreement binding upon Landlord, or the Project with regard to the identity of tenants, usage in the Project, or similar matters; (v) the assignee or sublessee (or any affiliate of the assignee or sublessee) is then actively negotiating with Landlord or has negotiated with Landlord within the previous six (6) months, or is a current tenant or subtenant within the Premises or Project; (vi) the identity or business reputation of the assignee or sublessee will be reasonably likely to damage the goodwill or reputation of the Premises or the Project; or (vii) in the case of a sublease, the subtenant has not acknowledged that the Lease controls over any inconsistent provision in the sublease. The foregoing criteria shall not exclude any other reasonable basis for Landlord to refuse its consent to such assignment or sublease.

 

E. If this Lease is assigned to any person or entity pursuant to the provisions of the United States Bankruptcy Code, 11 U.S.C. § 101 et. seq. (as amended from time to time, the “Bankruptcy Code”), any and all monies or other consideration payable or otherwise to be delivered in connection with such assignment shall be paid or delivered to Landlord, shall be and remain the exclusive property of Landlord and shall not constitute property of Tenant or of the estate of Tenant within the meaning of the Bankruptcy Code. Any and all monies or other considerations constituting Landlord’s property under the preceding sentence not paid or delivered to Landlord shall be held in trust for the benefit of Landlord and be promptly paid or delivered to Landlord. Any person or entity to which this Lease is assigned pursuant to the provisions of the Bankruptcy Code, shall be deemed, without further act or deed, to have assumed all of the obligations arising under this Lease on and after the date of such assignment. Any such assignee shall upon demand execute and deliver to Landlord an instrument confirming such assumption.

 

 

 

 19 

 

 

F. The acceptance of rent by Landlord from any person other than Tenant shall not be deemed to be a waiver by Landlord of any provision of this Lease or to be a consent to any subletting or assignment. Any assignee of Tenant’s interest in this Lease, by accepting any such assignment, shall be deemed to have assumed Tenant’s obligations hereunder arising from and after the effective date of the assignment. No assignment, subletting or other transfer, whether consented to by Landlord or not, or permitted hereunder, shall relieve Tenant or any guarantor or surety of Tenant’s obligations under this Lease of its liability hereunder. If an Event of Default occurs while the Premises or any part thereof are sublet, then Landlord, in addition to any other remedies herein provided, or provided by law, may collect directly from the sublessee all rents payable by the sublessee to Tenant under the sublease and apply such rent against any sums due Landlord hereunder. No such collection shall be construed to constitute a novation or a release of Tenant from the further performance of Tenant’s obligations hereunder.

 

G. If Tenant is any form of partnership, a withdrawal or change, voluntary, involuntary or by operation of law of any partner, or the dissolution of the partnership, shall be deemed a voluntary assignment. If Tenant consists of more than one (1) person, a purported assignment, voluntary or involuntary or by operation of law from one (1) person to the other shall be deemed a voluntary assignment. If Tenant is a corporation or limited liability entity, any dissolution, merger, consolidation or other reorganization of Tenant, or sale or other transfer of a controlling percentage of the ownership interest of Tenant, or the sale of at least twenty-five percent (25%) of the value of the assets of Tenant shall be deemed a voluntary assignment. Notwithstanding anything to the contrary set forth in this Paragraph 15(G), this Paragraph 15(G) shall not apply to the purchase or sale of publicly traded securities on a national exchange.

 

H. Should Tenant request of Landlord the right to assign or sublet its rights under this Lease, Landlord shall charge Tenant, and Tenant shall pay to Landlord, a non-refundable administrative fee of One Thousand Dollars ($1,000.00), plus any attorneys’ and paralegal fees and costs incurred by Landlord in connection with such assignment or sublease or request for consent. Acceptance of the One Thousand Dollar ($1,000.00) administrative fee and/or reimbursement of Landlord’s attorneys’ and paralegal fees and costs shall in no event obligate Landlord to consent to any proposed assignment or sublease.

 

I. Notwithstanding any provision in this Lease to the contrary, provided no Event of Default has occurred and is continuing under this Lease, upon at least thirty (30) days’ prior written notice to Landlord, Tenant may, without Landlord’s prior written consent, assign this Lease to an entity into which Tenant is merged or consolidated or to an entity to which substantially all of Tenant’s assets are transferred or to an entity controlled by or is commonly controlled with Tenant, provided (i) such merger, consolidation, or transfer of assets is for a good business purpose and not principally for the purpose of transferring Tenant’s interests under this Lease, and (ii) the assignee or successor entity has a tangible net worth, calculated in accordance with generally accepted accounting principles (and evidenced by financial statements in form reasonably satisfactory to Landlord) at least equal to the greater of (a) the Tangible Net Worth of Tenant as of the Lease Date or (b) the Tangible Net Worth of Tenant immediately prior to such merger, consolidation, or transfer. For purposes of this subparagraph, the term “controlled by” or “commonly controlled with” shall mean the possession, direct or indirect, of the power to direct or cause the direction of the management and policies of such controlled person or entity; the ownership, directly or indirectly, of at least fifty-one percent (51%) of the voting securities of, or possession of the right to vote, in the ordinary direction of its affairs, at least fifty-one percent (51%) of the voting interest in, any person or entity shall be presumed to constitute such control for the purposes herein. Notwithstanding the foregoing, if Tenant assigns this this Lease pursuant to this Paragraph 15(I) to an entity with a Tangible Net Worth equal to or exceeding $100,000,000, Tenant shall automatically be released from all liability under this Lease arising after the date of such assignment. "Tangible Net Worth" means the excess of total assets over total liabilities, in each case as determined in accordance with generally accepted accounting principles consistently applied ("GAAP"), excluding, however, from the determination of total assets all assets that would be classified as intangible assets under GAAP, including goodwill, licenses, patents, trademarks, trade names, copyrights and franchises.

 

 

 

 20 

 

 

16. CONDEMNATION. If the whole or any part of the Premises shall be taken in eminent domain, condemnation, or transferred by agreement in lieu of condemnation (a “Taking”), either Tenant or Landlord may terminate this Lease by serving the other party with written notice of same no later than thirty (30) days after the date of the Taking, such termination being effective as of the taking date; provided in the case of termination by Tenant at least ten percent (10%) of the Premises must be taken and the remaining portion of the Premises must not be adequate for the reasonable conduct of Tenant’s business in the Premises as reasonably determined by Tenant and Landlord. If neither Tenant nor Landlord elect to terminate this Lease as aforesaid, then this Lease shall terminate on the taking date only as to that portion of the Premises so taken, Landlord shall restore the Premises to substantially the same condition as it existed before the Taking to the extent reasonably practicable, provided that Landlord’s obligation to so restore the Premises shall be limited to the award Landlord receives in respect of such Taking, and the Base Rent and other charges payable by Tenant pursuant to this Lease shall be reduced proportionally. Landlord shall be entitled to the entire condemnation award for all realty and improvements. Tenant shall only be entitled to an award for Tenant’s fixtures, personal property, and reasonable moving expenses, provided Tenant independently petitions the condemning authority for same and such claim will not reduce Landlord’s condemnation award. This Paragraph 16 shall be Tenant’s sole and exclusive remedy in the event of a Taking. This Lease sets forth the terms and conditions upon which this Lease may terminate in the event of a Taking. Accordingly, the parties waive the provisions of any applicable statutes permitting the parties to terminate this Lease as a result of a Taking.

 

If any part of the Project outside the Premises should be taken as aforesaid, this Lease shall not terminate, nor shall the rent payable hereunder be reduced. Notwithstanding the foregoing, Tenant may terminate this Lease for a taking outside the Premises if: (i) twenty-five percent (25%) or more of the parking spaces serving the Building have been lost; (ii) the Project no longer parks to code; or (iii) reasonable access over the Common Areas to and from the Premises and an adjacent public street or highway has been materially impaired.

 

17. SURRENDER/HOLDING OVER.

 

A. Tenant shall surrender the Premises by the expiration date of the Term of this Lease, or upon the early termination hereof, with all of the improvements, parts and surfaces thereof broom clean and free of debris, and in good operating order, condition and state of repair as described on Exhibit “F” attached hereto and incorporated herein by this reference, ordinary wear and tear excepted. “Ordinary wear and tear” shall not include any damage or deterioration that would have been prevented by good maintenance practices. Notwithstanding any provision to the contrary, Tenant shall, at Tenant’s sole cost, remove all of Tenant’s furniture, furnishings, equipment, partitions and other trade fixtures and personal property, as well as all data/telecommunications cabling and wiring installed by or on behalf of Tenant, whether inside walls, under any raised floor or above any ceiling. Any such improvements or property not so removed shall be deemed abandoned by Tenant and title to the same shall thereupon pass to Landlord under this Lease as by a bill of sale, but Tenant shall remain responsible for the cost of removal and disposal of such improvements (if required under Paragraph 7 above) and personal property, as well as any damage caused by such removal. Tenant shall repair any damage occasioned by the installation, maintenance or removal of any such trade fixtures, alterations, additions, improvements, furniture, other fixtures, equipment, machinery and other personal property. In connection therewith, Tenant shall remove all bolts and fasteners affixed to any portion of the Premises or Building, and shall leave all surfaces flush and smooth, and in a good, safe and clean condition. Tenant shall remove all Hazardous Materials introduced by Tenant or any Tenant Entity, whether or not permitted hereunder, and shall dispose of them in a safe and legal manner off of the Project. Tenant shall notify Landlord in writing at least thirty (30) days prior to vacating the Premises if vacating prior to the natural expiration of the Term and shall make a representative available to meet with Landlord for a joint inspection of the Premises prior to vacating. If Tenant fails to give such notice or to make a representative available for such inspection, then Landlord’s inspection of the Premises shall be deemed correct for the purpose of determining Tenant’s responsibility for repairs and restoration of the Premises and Building.

 

 

 

 21 

 

 

B. At the termination of this Lease by its expiration or otherwise, Tenant immediately shall deliver possession of the Premises to Landlord in the condition required in this Lease and with all repairs and maintenance required herein to be performed by Tenant completed. If, for any reason, Tenant retains possession of the Premises or any part thereof after such termination, Tenant shall pay to Landlord all damages sustained and costs and expenses incurred by Landlord resulting from retention of possession by Tenant, including, without limitation, the loss of any proposed subsequent tenant for any portion of the Premises, if Tenant’s holding over continues for the more than thirty (30) days after Landlord has provided notice to Tenant. However, Landlord may, at its option, serve written notice upon Tenant that such holding over constitutes either (i) the creation of a tenancy at will, upon the terms and conditions set forth in this Lease, terminable by either party upon thirty (30) days’ prior written notice to the other party, or (ii) creation of a tenancy at sufferance, in any case upon the terms and conditions set forth in this Lease; provided, however, that rental shall be paid monthly and such monthly rental shall, in addition to all other sums which are to be paid by Tenant hereunder, whether or not as additional rent, be equal to 150% of the rental being paid monthly to Landlord under this Lease immediately prior to such termination. If no such notice is served, then a tenancy at sufferance shall be deemed to be created at the rent in the preceding sentence. No holding over by Tenant, whether with or without consent of Landlord, shall operate to extend this Lease, by operation of law or otherwise, except as expressly provided. The preceding provisions of this Paragraph 17 shall not be construed as consent for Tenant to retain possession of the Premises in the absence of written consent thereto by Landlord.

 

18. QUIET ENJOYMENT. So long as an Event of Default does not exist, Tenant shall peaceably and quietly have, hold and enjoy the Premises for the Term hereof without hindrance from Landlord or any other party claiming by, through or under Landlord subject to the terms and provisions of this Lease and to the provisions of any (i) covenants, conditions and restrictions, (ii) master lease, or (iii) Mortgage to which this Lease is subordinate or may be subordinated. Following the execution of this Lease, Landlord shall not execute or consent to any covenants, conditions and restrictions that materially impair Tenant’s right to use the Premises for the Permitted Use or increase Tenant’s obligations or reduce its rights hereunder more than a de minimis amount.

 

19. EVENTS OF DEFAULT. The following events (herein individually referred to as an “Event of Default”) each shall be deemed to be an event of default by Tenant under this Lease:

 

A. Tenant shall fail to pay any installment of the Base Rent herein reserved when due, or any other payment or reimbursement to Landlord required herein when due, and such failure shall continue for a period of five (5) days after Tenant’s receipt of written notice that such payment was due; provided, however, Landlord shall only be obligated to provide such written notice to Tenant two (2) times within any twelve (12) consecutive month period and in the event Tenant fails to timely pay Base Rent or any other amounts due for a third time during any such twelve (12) consecutive month period, then an immediate Event of Default shall occur as a result of such late payment and Landlord shall have no obligation or duty to provide notice of such non-payment to Tenant prior to the occurrence of such Event of Default under this Lease.

 

B. Tenant shall fail to comply with any term, provision or covenant of this Lease (other than those listed above in this Paragraph 19), and shall not cure such failure within twenty (20) days after written notice thereof to Tenant (or if the failure cannot be corrected through the exercise of reasonable diligence within such twenty (20) day period, if Tenant does not commence to correct same within such twenty (20) day period and thereafter diligently and continuously prosecute same to completion).

 

C. Tenant or any guarantor of the Tenant’s obligations hereunder shall: (i) become insolvent; (ii) admit in writing its inability to pay its debts; (iii) make a general assignment for the benefit of creditors; (iv) commence any case, proceeding or other action seeking to have an order for relief entered on its behalf as a debtor or to adjudicate it a bankrupt or insolvent, or seeking reorganization, arrangement, adjustment, liquidation, dissolution or composition of it or its debts under any law relating to bankruptcy, insolvency, reorganization or relief of debtors, or seeking appointment of a receiver, trustee, custodian or other similar official for it or for all or of any substantial part of its property; or (v) take any action to authorize or in contemplation of any of the actions set forth above in this paragraph.

 

 

 

 22 

 

 

D. Any case, proceeding or other action against the Tenant or any guarantor of the Tenant’s obligations hereunder shall be commenced seeking: (i) to have an order for relief entered against it as debtor or to adjudicate it a bankrupt or insolvent; (ii) reorganization, arrangement, adjustment, liquidation, dissolution or composition of it or its debts under any law relating to bankruptcy, insolvency, reorganization or relief of debtors; (iii) appointment of a receiver, trustee, custodian or other similar official for it or for all or any substantial part of its property, and such case, proceeding or other action (a) results in the entry of an order for relief against it which is not fully stayed within seven (7) business days after the entry thereof or (b) shall remain un-dismissed for a period of ninety (90) days.

 

E. Tenant shall abandon the Premises for thirty (30) consecutive days, whether or not Tenant is in default in payment of the rental payments due under this Lease, and Tenant does not commence occupying the Premises within ten (10) days after written notice thereof from Landlord.

 

F. Tenant shall fail to timely deliver any instrument requested in accordance with the provisions of the Paragraph 21 or Paragraph 28.D hereof, and such failure shall continue for a period of five (5) business days after Tenant’s receipt of a second written notice stating that Tenant has failed to timely deliver any instrument requested in accordance with the provisions of the Paragraph 21 or Paragraph 28.D hereof.

 

G. Tenant shall fail to discharge or bond around any lien placed upon the Premises or the Land in violation of Paragraph 22 hereof within twenty (20) days after Tenant is provided written notice of the filing of such lien or encumbrance.

 

H. Tenant, its bankruptcy trustee, or any entity authorized by court order to act on behalf of Tenant, shall reject this Lease under 11 U.S.C. sec. 365(a) or any other provision of Title 11 of the United States Code, or the deemed rejection of this Lease by operation of law under 11 U.S.C. sec. 365(d)(4). Any such rejection of this Lease terminates this Lease, without notice of any kind to Tenant, effective on the later of: (1) the date Tenant vacates the Premises following such rejection; (2) the date the Bankruptcy Court with jurisdiction over Tenant’s bankruptcy case enters an order on its docket authorizing Tenant to reject this Lease; or (3) the date this Lease is deemed rejected under 11 U.S.C. sec. 365(d)(4). 

 

20. REMEDIES.

 

A. Upon the occurrence and during the continuance of an Event of Default, Landlord shall have the option to pursue, without any notice or demand, any one or more of the following remedies and/or any other remedies to which Landlord is entitled at law or in equity:

 

(1) commence dispossessory proceedings with or without the termination of this Lease. Tenant shall remain liable for the payment of all rental accruing after any writ of possession as to the Premises is issued to Landlord.

 

(2) commence proceedings against Tenant for all amounts owed by Tenant to Landlord, whether as Base Rent, Reimbursable Expenses, damages or otherwise;

 

 

 

 23 

 

 

(3) terminate this Lease, in which event Tenant shall immediately surrender the Premises to Landlord. Tenant agrees to pay on demand the amount of all loss and damage which Landlord may suffer by reason of the termination of the Term under this paragraph or otherwise, including, without limitation, an amount which, at the date of such termination, is calculated as follows: (a) the value of the excess, if any, of (i) a sum equal to the discounted then present value of the Base Rent and any amounts treated as additional rent hereunder (calculated for this purpose only in an amount equal to the additional rent payable during the calendar year most recently ended prior to the occurrence of the Event of Default), and other sums provided herein to be paid by Tenant for the remainder of the stated Term hereof, over (ii) the aggregate reasonable rental value of the Premises for the remainder of the stated Term hereof, which excess, if any, shall be discounted to present value using a discount rate equal to the Prime Rate at the time of the calculation plus one percent (1%) (the “Discount Rate”); plus (b) the costs of recovering possession of the Premises and all other expenses incurred by Landlord due to Tenant’s default, including, without limitation, reasonable attorney’s fees; plus (c) the unpaid Base Rent and additional rent earned as of the date of termination plus any interest and late fees due hereunder, plus amounts expressly owing on the date of termination by Tenant to Landlord under this Lease or in connection with the Premises. The amount as calculated above shall be deemed immediately due and payable. THE PAYMENT OF THE AMOUNT CALCULATED UNDER ITEM (A) ABOVE SHALL NOT CONSTITUTE PAYMENT OF RENTAL IN ADVANCE FOR THE REMAINDER OF THE TERM. INSTEAD, SUCH SUM SHALL BE PAID AS AGREED LIQUIDATED DAMAGES AND NOT AS A PENALTY; THE PARTIES AGREE THAT IT IS DIFFICULT OR IMPOSSIBLE TO CALCULATE THE DAMAGES WHICH LANDLORD WILL SUFFER AS A RESULT OF TENANT’S DEFAULT, AND THIS PROVISION IS INTENDED TO PROVIDE A REASONABLE ESTIMATE OF SUCH DAMAGES. IF LANDLORD PURSUES THE REMEDY DESCRIBED IN THIS PARAGRAPH  20.A(3), TENANT WAIVES ANY RIGHT TO ASSERT THAT LANDLORD’S ACTUAL DAMAGES ARE LESS THAN THE AMOUNT CALCULATED UNDER THIS PARAGRAPH  20.A(3), AND LANDLORD WAIVES ANY RIGHT TO ASSERT THAT ITS DAMAGES ARE GREATER THAN THE AMOUNT CALCULATED UNDER THIS PARAGRAPH  20.A(3). In determining the aggregate reasonable rental value pursuant to item (a)(ii) above, the parties hereby agree that, at the time Landlord seeks to enforce this remedy, all relevant factors should be considered, including, but not limited to, (1) the length of time remaining in the Term, (2) the then current market conditions in the general area in which the Building is located, (3) the likelihood of reletting the Premises for a period of time equal to the remainder of the Term, (4) the net effective rental rates then being obtained by landlords for similar type space of similar size in similar type buildings in the general area in which the Building is located, (5) the vacancy levels in the general area in which the Building is located, (6) current levels of new construction that will be completed during the remainder of the Term and how this construction will likely affect vacancy rates and rental rates, and (7) inflation. Tenant shall reimburse Landlord for all reasonable attorney’s fees incurred by Landlord in connection with enforcing this Lease.

 

(4) terminate Tenant’s right to possession without terminating this Lease. Upon any such termination of Tenant’s right to possession only without termination of the Lease, Landlord may, at Landlord’s option, enter into the Premises, remove Tenant’s signs and other evidences of tenancy, and take and hold possession thereof as provided below, without such entry and possession terminating the Lease or releasing Tenant, in whole or in part, from any obligation, including Tenant’s obligation to pay Base Rent or any amounts treated as additional rent hereunder, for the full Term. In any such case, Tenant shall pay forthwith to Landlord, if and when Landlord so elects, the unpaid Base Rent and additional rent earned as of the date of termination plus any interest and late fees due hereunder, plus amounts expressly owing on the date of termination by Tenant to Landlord under this Lease or in connection with the Premises. Further, Tenant shall pay forthwith to Landlord, if and when Landlord so elects, a sum equal to the discounted then present value of the Base Rent and all amounts treated as additional rent hereunder (calculated for this purpose only in an amount equal to the additional rent payable during the calendar year most recently ended prior to the occurrence of the Event of Default), and other sums provided herein to be paid by Tenant for the remainder of the stated Term hereof, discounted to present value using the Discount Rate. THE PAYMENT OF THE FOREGOING AMOUNTS SHALL NOT CONSTITUTE PAYMENT OF RENT IN ADVANCE FOR THE REMAINDER OF THE TERM. INSTEAD, SUCH SUM SHALL BE PAID AS AGREED LIQUIDATED DAMAGES AND NOT AS A PENALTY; THE PARTIES AGREE THAT IT IS DIFFICULT OR IMPOSSIBLE TO CALCULATE THE DAMAGES WHICH LANDLORD WILL SUFFER AS A RESULT OF TENANT’S DEFAULT, AND THIS PROVISION IS INTENDED TO PROVIDE A REASONABLE ESTIMATE OF SUCH DAMAGES. IF LANDLORD PURSUES THE REMEDY DESCRIBED IN THIS PARAGRAPH  20.A(4), TENANT WAIVES ANY RIGHT TO ASSERT THAT LANDLORD’S ACTUAL DAMAGES ARE LESS THAN THE AMOUNT CALCULATED UNDER THIS PARAGRAPH  20.A(4), AND LANDLORD WAIVES ANY RIGHT TO ASSERT THAT ITS DAMAGES ARE GREATER THAN THE AMOUNT CALCULATED UNDER THIS PARAGRAPH  20.A(4). Upon the receipt from Tenant of the sum required to be paid pursuant to this Paragraph 20.A(4), Landlord shall use reasonable efforts to relet the Premises. Upon making such payment and after Landlord has received in full the balance of the rent and other sums Landlord would have received over the remainder of the Term (i.e., the difference between face amount of Base Rent and additional rent due hereunder for the entire Term and the discounted amount paid to Landlord by Tenant), together with the reimbursement or payment of any sums expended by Landlord for costs as set forth in Paragraph 20.B below, Tenant shall receive from Landlord all Base Rent received by Landlord from other tenants on account of the Premises during the Term hereof, provided that the amounts to which Tenant shall become so entitled shall in no event exceed the entire amount actually paid by Tenant to Landlord pursuant to this this Paragraph 20.A(4). In no event shall Tenant be entitled to any rental received by Landlord in excess of the amounts due by Tenant hereunder.

 

 

 

 24 

 

 

(5) terminate Tenant’s right to possession without terminating this Lease. Upon any termination of Tenant’s right to possession only, without termination of the Lease, Landlord may, at Landlord’s option, enter into the Premises, remove Tenant’s signs and other evidences of tenancy, and take and hold possession thereof as provided below, without such entry and possession terminating this Lease or releasing Tenant, in whole or in part, from any obligation, including Tenant’s obligation to pay Base Rent or any amounts treated as additional rent hereunder, for the full Term. In any such case, Landlord may relet the Premises on behalf of Tenant for such term or terms (which may be greater or less than the period which would otherwise have constituted the balance of the Term) and on such terms and conditions (which may include concessions of free rent and alteration, repair and improvement of the Premises) as Landlord, in its sole discretion, may determine and receive directly the rental by reason of the reletting. Tenant agrees to pay Landlord on demand any deficiency that may arise by reason of any reletting of the Premises. Tenant further agrees to reimburse Landlord upon demand for all sums due pursuant to Paragraph 20.B below. Landlord shall have no obligation to relet the Premises or any part thereof and shall in no event be liable for failure to relet the Premises or any part thereof, or, in the event of any such reletting, for refusal or failure to collect any rent due upon such reletting. No such refusal or failure shall operate to relieve Tenant of any liability under this Lease. Tenant shall instead remain liable for all rent, including Base Rent, Reimbursable Expenses and all other amounts due and payable under this Lease.

 

(6) Enter upon and take possession of the Premises as Tenant’s agent without terminating this Lease, and without being liable for prosecution or any claim for damages therefor, or for trespass or other tort. Landlord may remove all persons and property from the Premises; such property may be removed, stored and/or disposed of pursuant to this Lease or any other procedures permitted by law, and Landlord may, but shall not be obligated to, relet the Premises as Tenant’s agent and receive the rental therefor, in which event Tenant shall pay to Landlord on demand all sums due pursuant to Paragraph 20.B below, together with any deficiency that may arise by reason of such reletting.

 

(7) Do whatever Tenant is obligated to do under this Lease and enter the Premises, without being liable for prosecution or any claim for damages therefor, or for trespass or other tort, to accomplish such purpose. Tenant shall reimburse Landlord immediately upon demand for any expenses which Landlord incurs in thus effecting compliance with this Lease on Tenant’s behalf, together with interest thereon at the Default Rate from the date Landlord incurs the expense in question until Landlord is reimbursed therefor. Tenant agrees that Landlord shall not be liable for any damages resulting to Tenant from effecting compliance with Tenant’s obligations under this paragraph, whether caused by the negligence of Landlord or otherwise.

 

(8) Notwithstanding any other provision of this Lease and notwithstanding any rights afforded at law to Landlord, the Landlord hereby waives the benefit of any statutory, decisional or other right or rule or contractual right which would permit the Landlord to obtain possession of the Premises or lock out or to remove Tenant or any of Tenant’s property from the Premises prior to entry of a judgment of a court of competent jurisdiction (which may be a judgment obtained following any summary proceeding in unlawful detainer or otherwise) awarding possession of the Premises to Landlord.

 

B. Upon the occurrence of an Event of Default, in addition to any other sum provided to be paid herein, Tenant also shall be liable for and shall pay to Landlord: (i) reasonable brokers’ fees incurred by Landlord in connection with any reletting the whole or any part of the Premises; (ii) the costs of removing and storing Tenant’s or other occupant’s property; (iii) the costs of putting the Premises into condition required under this Lease following the expiration of the Term; (iv) all reasonable expenses incurred in marketing the Premises; and (v) all reasonable expenses incurred by Landlord in enforcing or defending Landlord’s rights and/or remedies. If either party hereto institutes any action or proceeding to enforce any provision hereof by reason of any alleged breach of any provision of this Lease, the prevailing party shall be entitled to receive from the losing party all reasonable attorneys’ fees and all court costs in connection with such proceeding.

 

C. Exercise by Landlord of any one or more remedies hereunder granted or otherwise available shall not be deemed to be an acceptance of surrender of the Premises by Landlord, whether by agreement or by operation of law, it being understood that such surrender can be affected only by the written agreement of Landlord and Tenant. Tenant and Landlord further agree that forbearance by Landlord to enforce its rights pursuant to this Lease, at law or in equity, shall not be a waiver of Landlord’s right to enforce one or more of its rights in connection with that or any subsequent default.

 

 

 

 25 

 

 

D. The term “Prime Rate” as used herein shall mean the per annum “prime rate” of interest as published by the Federal Reserve Bank of New York on the date on which this Lease or Tenant’s right to possess the Premises is terminated in accordance with this Paragraph 20, or the date on which any calculation required under this Lease is to occur.

 

E. All obligations of Landlord hereunder will be construed as covenants, not conditions; and all such obligations will be binding upon Landlord only during the period of its possession of the Premises and not thereafter. The term “Landlord” shall mean only the owner, for the time being of the Premises, and in the event of the transfer by such owner of its interest in the Premises, such owner shall thereupon be released and discharged from all covenants and obligations of the Landlord thereafter accruing, but such covenants and obligations shall be binding during the Term upon each new owner for the duration of such owner’s ownership. NOTWITHSTANDING ANYTHING CONTAINED IN THIS LEASE TO THE CONTRARY, THE OBLIGATIONS OF LANDLORD UNDER THIS LEASE (INCLUDING ANY ACTUAL OR ALLEGED BREACH OR DEFAULT BY LANDLORD) DO NOT CONSTITUTE PERSONAL OBLIGATIONS OF THE INDIVIDUAL PARTNERS, DIRECTORS, OFFICERS, MEMBERS OR SHAREHOLDERS OF LANDLORD OR LANDLORD’S MEMBERS OR PARTNERS, AND TENANT SHALL NOT SEEK RECOURSE AGAINST THE INDIVIDUAL PARTNERS, DIRECTORS, OFFICERS, MEMBERS OR SHAREHOLDERS OF LANDLORD OR AGAINST LANDLORD’S MEMBERS OR PARTNERS OR AGAINST ANY OTHER PERSONS OR ENTITIES HAVING ANY INTEREST IN LANDLORD, OR AGAINST ANY OF THEIR PERSONAL ASSETS FOR SATISFACTION OF ANY LIABILITY WITH RESPECT TO THIS LEASE. ANY LIABILITY OF LANDLORD FOR A DEFAULT BY LANDLORD UNDER THIS LEASE, OR A BREACH BY LANDLORD OF ANY OF ITS OBLIGATIONS UNDER THE LEASE, SHALL BE LIMITED SOLELY TO ITS INTEREST IN THE BUILDING AND THE LAND AND THE PROCEEDS DERIVED THEREFROM, AND IN NO EVENT SHALL ANY PERSONAL LIABILITY BE ASSERTED AGAINST LANDLORD IN CONNECTION WITH THIS LEASE NOR SHALL ANY RECOURSE BE HAD TO ANY OTHER PROPERTY OR ASSETS OF LANDLORD, ITS PARTNERS, DIRECTORS, OFFICERS, MEMBERS, SHAREHOLDERS OR ANY OTHER PERSONS OR ENTITIES HAVING ANY INTEREST IN LANDLORD. TENANT’S SOLE AND EXCLUSIVE REMEDY FOR A DEFAULT OR BREACH OF THIS LEASE BY LANDLORD SHALL BE EITHER (I) AN ACTION FOR DAMAGES, OR (II) AN ACTION FOR INJUNCTIVE RELIEF; TENANT HEREBY WAIVING AND AGREEING THAT TENANT SHALL HAVE NO OFFSET RIGHTS OR RIGHT TO TERMINATE THIS LEASE ON ACCOUNT OF ANY BREACH OR DEFAULT BY LANDLORD UNDER THIS LEASE, EXCEPT AS EXPRESSLY PROVIDED OTHERWISE HEREIN.

 

F. If Landlord repossesses the Premises pursuant to the authority herein granted, then Landlord shall have the right to (i) keep in place and use or (ii) remove and store, all of the furniture, fixtures and equipment at the Premises, including that which is owned by or leased to Tenant at all times prior to any foreclosure thereon or repossession thereof by any lessor thereof or third party having a lien thereon, which Tenant fails to remove within sixty (60) days after the date of such repossession. Landlord also shall have the right to relinquish possession of all or any portion of such furniture, fixtures, equipment and other property to any person (Claimant) who presents to Landlord a copy of any instrument represented by Claimant to have been executed by Tenant (or any predecessor of Tenant) granting Claimant the right under various circumstances to take possession of such furniture, fixtures, equipment or other property, without the necessity on the part of Landlord to inquire into the authenticity or legality of said instrument. The rights of Landlord herein stated shall be in addition to any and all other rights that Landlord has or may hereafter have at law or in equity; and Tenant stipulates and agrees that the rights herein granted Landlord are commercially reasonable.

 

G. Any agreement by Landlord for free or abated rent or other charges applicable to the Premises, or for the giving or paying by Landlord to or for Tenant of any cash or other bonus, inducement or consideration for Tenant’s entering into this Lease, including, but not limited to, any tenant finish allowance, or the agreement to pay any brokerage commissions or fees, all of which concessions are hereinafter referred to as “Inducement Provisions”, shall be deemed conditioned upon Tenant’s full and faithful performance of all of the terms, covenants and conditions of this Lease to be performed or observed by Tenant during the term hereof as the same may be extended. Upon the occurrence of an Event of Default of this Lease by Tenant, any such Inducement Provision shall automatically be deemed deleted from this Lease and of no further force or effect, and in the event Landlord elects to terminate this Lease or Tenant’s right of possession for such Event of Default, the unamortized portion of any rent, other charge, bonus, inducement or consideration theretofore abated, given or paid by Landlord under such an Inducement Provision shall be immediately due and payable by Tenant to Landlord, and recoverable by Landlord, as additional rent due under this Lease, notwithstanding any subsequent cure of said event of default by Tenant. The acceptance by Landlord of rent or the cure of the event of default which initiated the operation of this paragraph shall not be deemed a waiver by Landlord of the provisions of this Lease unless specifically so stated in writing by Landlord at the time of such acceptance.

 

 

 

 26 

 

 

H. Notwithstanding anything in this Lease to the contrary, all amounts payable by Tenant to or on behalf of Landlord under this Lease, whether or not expressly denominated as rent, shall constitute rent.

 

I. This is a contract under which applicable law excuses Landlord from accepting performance from (or rendering performance to) any person or entity other than Tenant.

 

21. MORTGAGES.

 

A. Tenant accepts this Lease subject and subordinate to any mortgages, deeds to secure debt, deeds of trust or underlying leases, as well as to any extensions or modifications thereof, now or at any time hereafter constituting a lien or charge upon the Premises or the improvements situated thereon or the Building (hereinafter collectively referred to as a “Mortgage”). Such subordination shall be self-executing, but Tenant shall, no later than ten (10) days after receipt of written request from Landlord, execute and deliver to Landlord such further agreements or instruments (collectively, an “SNDA”) as Landlord or any existing or future holder of any Mortgage deems desirable to confirm such subordination. Notwithstanding the foregoing, if the holder of any Mortgage elects to have Tenant’s interest in this Lease superior to any such instrument, then by notice to Tenant from such party, this Lease shall be deemed superior to such lien, whether this Lease was executed before or after said mortgage or deed of trust, and Tenant agrees to promptly execute such instruments as may be reasonably required by the holder of such Mortgage in order to effect such subordination of the Mortgage. In the event any existing or future holder of any Mortgage requires a modification of this Lease which does not increase Tenant’s rental obligations hereunder, or does not materially change any other obligation of Tenant hereunder, and does not materially reduce Landlord’s obligations under this Lease, Tenant agrees to execute appropriate instruments to reflect such modification, upon request by Landlord.

 

B. If any Mortgage is foreclosed, or Landlord’s interest under this Lease is conveyed or transferred in lieu of foreclosure:

 

(1) No person or entity which as the result of any of the foregoing has succeeded to the interest of Landlord in this Lease (any such person or entity being hereafter called a “Successor”) shall be liable for any default by Landlord or any other matter which occurred prior to the date such Successor succeeded to Landlord’s interest in this Lease, nor shall such Successor be bound by or subject to any offsets or defenses which Tenant may have against Landlord or any other predecessor in interest to such Successor, provided further, however, that nothing herein shall be deemed to limit such Successor’s obligations under this Lease which are required to be performed from and after the date such Successor succeeds to Landlord's interest hereunder or any obligations under this lease which have not been performed by any prior owner and continue to be unperformed at the time of the succession, and which, in any such case described in this sentence, affect Tenant's use or enjoyment of the Premises, such as required maintenance, repairs, restoration and furnishing of service.

 

(2) Upon request of any Successor, Tenant will attorn to such Successor, as Landlord under this Lease and will execute and deliver such instruments as may be necessary or appropriate to evidence such attornment within fifteen (15) days after receipt of a written request to do so.

 

(3) No Successor shall be bound to recognize any prepayment by more than thirty (30) days of Base Rent or other amounts from the date when otherwise due hereunder.

 

C. Landlord shall obtain a SNDA from the current holder of any Mortgage, and notwithstanding anything contained herein to the contrary, Tenant's subordination of the lien of this Lease as contemplated in this Paragraph 21 to any current Mortgage will not be effective unless and until it has received a SNDA agreement reasonably acceptable to Tenant, recognizing all of Tenants rights under this Lease, and signed by the holder of any Mortgage, the form of which shall be on the holders commercially reasonable form therefor. The subordination of Tenants rights hereunder to any future Mortgage under Paragraph 21 shall be conditioned upon such future holders execution and delivery of an SNDA in a form reasonably acceptable to Tenant and such holder or other institutional lenders. Tenant shall at all times be responsible for its own legal fees in connection with the review and negotiation of any SNDA. If Tenant has not received an SNDA from the current holder of any Mortgage, signed and acknowledge by Landlord and such holder, in recordable form and otherwise acceptable to Tenant in its good faith discretion, within ninety (90) days of the Lease Date, Tenant may terminate this Lease at any time (but before Tenant’s receiving such SNDA or commencing construction of any Leasehold Improvements).

 

 

 

 27 

 

 

22. LIENS. Tenant has no authority, express or implied, to create or place any lien or encumbrance of any kind or nature whatsoever upon, or in any manner to bind, the interest of Landlord or Tenant in the Premises or the Land, or to charge the rentals payable hereunder for any claim in favor of any person dealing with Tenant, including those who may furnish materials or perform labor for any construction or repairs. Tenant shall not mortgage or otherwise encumber or allow to be encumbered its interest herein, and Tenant shall give Landlord immediate written notice of the placing of any mortgage, lien or other encumbrance against the Premises. Should Tenant cause any mortgage, lien or other encumbrance (hereinafter singularly or collectively referred to as an “Encumbrance”) to be filed, against the Premises or the Land, Tenant shall dismiss or bond against same within twenty (20) days after the filing thereof. If Tenant fails to remove said Encumbrance within said twenty (20) days, Landlord shall have the absolute right to remove said Encumbrance by whatever measures Landlord shall deem convenient including, without limitation, payment of such Encumbrance, in which event Tenant shall reimburse Landlord, as additional rent, all costs expended by Landlord, including reasonable attorneys’ fees, in removing said Encumbrance. Tenant shall indemnify Landlord and its agents, employees and contractors against any damages, losses or costs arising out of any such claim. Tenant’s indemnification of Landlord contained in this paragraph shall survive the expiration or earlier termination of this Lease. All of the aforesaid rights of Landlord shall be in addition to any remedies which either Landlord or Tenant may have available to them at law or in equity.

 

23. HAZARDOUS MATERIALS.

 

A. Tenant agrees that Tenant and the other Tenant Entities shall never handle, use, manufacture, incorporate into, or dispose of, at, in or under the Premises, the Building, the Land or any other portion of the Project any “toxic or hazardous materials” (as defined hereafter); provided, however, Tenant may use those toxic or hazardous materials that are either (a) office supplies, (b) kitchen cleaning materials that are generally considered to be a household cleaner and are purchased in a container not larger than one (1) gallon, and (c) identified on Exhibit “G” attached hereto, and then only if (i) all such toxic or hazardous materials, supplies and materials are properly labeled and contained, (ii) all such toxic or hazardous materials are stored, handled, transported and disposed of in accordance with highest accepted industry standards and all applicable laws, rules and regulations, and (iii) if a material safety data sheet is required under applicable laws to accompany the toxic or hazardous materials, supplies or materials, a copy of such current material safety data sheet is provided to Landlord. For purposes of this Lease, “toxic or hazardous materials” shall mean any flammables, explosives, radioactive materials, hazardous wastes or materials, toxic wastes or materials, petroleum products or derivatives or other similar hazardous or toxic chemicals or substances, or any materials containing any such hazardous or toxic chemicals or substances at levels or content which cause such materials to be classified as hazardous or toxic as then prescribed by the highest industry standards or by the then current levels or content as set from time to time by the U.S. Environmental Protection Agency (“EPA”) or the U.S. Occupational Safety and Health Administration (“OSHA”) or as defined under 29 CFR 1910 or 29 CFR 1925 or other applicable Governmental Requirements. Tenant further agrees that Tenant will not permit any substance to come into contact with groundwater under the Premises. Any such substance coming into contact with groundwater shall, regardless of its inherent hazardous characteristics, be considered a toxic or hazardous material for purposes of this Lease. In the event there is a spill of toxic or hazardous materials (other than permitted office supplies and kitchen cleaning supplies) at the Premises, or, if caused by any Tenant Entities, at the Building, the Land or any other portion of the Project, Tenant shall notify Landlord of the method, time and procedure for any cleanup and removal of such toxic or hazardous materials; and, Landlord shall have the right to require reasonable changes in such method, time or procedure. In the event there is a spill of a toxic or hazardous material that comes from office supplies in the Premises, Tenant shall notify Landlord if the spill would in any way endanger or pose a threat to Tenant’s employees, Building maintenance or custodial personnel, other tenants or the general public. At all times during the Term of this Lease, Landlord will have the right, but not the obligation, to enter upon the Premises to inspect, investigate, sample and/or monitor the Premises to determine if Tenant is in compliance with the terms of this Lease regarding toxic or hazardous materials. If any governmental agency shall ever require testing to ascertain whether or not there has been any release of hazardous materials by Tenant or any Tenant Entity, then the reasonable costs thereof shall be reimbursed by Tenant to Landlord upon demand as additional charges if such requirement applies to the Premises. In addition, Tenant shall execute reasonable affidavits, representations and the like from time to time at Landlord’s request concerning Tenant’s best knowledge and belief regarding the presence of toxic or hazardous materials on the Premises that were introduced by Tenant or any Tenant Entity. To the fullest extent permitted by law, Tenant agrees to promptly indemnify, protect, defend and hold harmless each Indemnified Party from and against any and all claims, damages, judgments, suits, causes of action, losses, liabilities, penalties, fines, expenses and costs (including, without limitation, clean-up, removal, remediation and restoration costs, loss of rental income, loss due to business interruption, sums paid in settlement of claims, attorneys’ fees, consultant fees and expert fees and court costs) which arise or result from the presence of toxic or hazardous materials on, in, under or about the Premises, the Building, the Land or any other portion of the Project and which are caused by Tenant or any other Tenant Entities. This Paragraph 23 shall survive the expiration or any termination of this Lease. Landlord represents and warrants, to Landlord’s knowledge, Landlord has not received any written notice from any governmental authority, which remains uncured, asserting that the Premises is in violation of any Governmental Requirements related to hazardous materials.

 

 

 

 28 

 

 

B. In the event of any breach of this Paragraph 23 by Tenant or any contamination of the Premises, the Building, the Land or any other portion of the Project, by any Tenant Entities, Tenant shall pay all costs for the removal or abatement or cleanup of any toxic or hazardous materials at the Premises, the Building, the Land or any other portion of the Project. In such case, Landlord shall have the right, in its sole discretion, to approve all plans, consultants, and cleanup standards. Tenant shall provide Landlord on a timely basis with (i) copies of all documents, reports, and communications with governmental authorities; and (ii) notice and an opportunity to attend all meetings with regulatory authorities. Tenant shall comply with all notice requirements and Landlord and Tenant agree to cooperate with governmental authorities seeking access to the Premises for purposes of sampling or inspection. No disturbance of Tenant’s use of the Premises resulting from activities conducted pursuant to this paragraph shall constitute an actual or constructive eviction of Tenant from the Premises. In the event that such cleanup extends beyond the termination of the Lease, Tenant’s obligation to pay rent (including additional rent) shall continue until such cleanup is completed and any certificate of clearance or similar document has been delivered to Landlord; provided that Landlord is using good faith efforts to complete such cleanup and obtain any certificate of clearance or similar document. Rent during such holdover period shall be at market rent; if the parties are unable to agree upon the amount of such market rent, then Landlord and Tenant shall each appoint a qualified MAI appraiser doing business in the area; in turn, these two independent MAI appraisers shall appoint a third MAI appraiser and the majority shall decide upon the fair market rental for Premises as of the expiration of the then current term. Landlord and Tenant shall equally share in the expense of this appraisal except that in the event the rent is found to be within ten percent of the original rate quoted by Landlord, then Tenant shall bear the full cost of all the appraisal process. In no event shall the rent be subject to determination or modification by any person, entity, court, or authority other than as set forth expressly herein, and in no event shall the rent for any holdover period be less that the rent due in the preceding period.

 

24. NO LANDLORD’S LIEN. Tenant’s property, racking, shelves, wall display systems, bins, machinery, fixtures, security devices (including security gates and security cameras), generators, furnishings, equipment, accounts receivable, inventory, and other personal property (collectively, “Tenant’s Property”), however installed or located on or about the Premises, will be and remain the property of Tenant or its lender, service providers, contractors, or vendors (and their respective lenders or contractors) (collectively, “Vendors”) and may be installed, modified, and removed at any time and from time to time during the Term without Landlord’s consent. In no event (including an Event of Default) will Landlord have any lien or other security interest in any of Tenant’s Property located in the Premises or elsewhere, and Landlord hereby expressly waives and releases any lien or other security interest however created or arising. At Tenant’s request and cost, Landlord will execute a reasonable lien waiver and access agreement on Landlord’s standard form therefor so long as such party agrees (a) to provide Landlord with at least five (5) business days’ notice before exercising any remedy to remove Tenant’s Property; (b) to allow a representative of Landlord to be present during the exercise of any such remedy; (c) to repair and restore any damage caused by the removal of Tenant’s Property; (d) to carry at least the same level of insurance as required of Tenant during any time that such third party is on the Premises; and (e) to indemnify, defend, and hold harmless Landlord from any claims arising out of or relating to such party’s exercise of its rights.

 

25. FINANCIAL INFORMATION. From time to time during the Term, Tenant shall deliver to Landlord information and documentation describing and concerning Tenant’s financial condition, in form and substance reasonably acceptable to Landlord, within ten (10) days following Landlord’s written request therefor.  Upon Landlord’s request, Tenant shall provide to Landlord the most currently available audited financial statement of Tenant; and if no such audited financial statement is available, then Tenant shall instead deliver to Landlord its most currently available balance sheet and income statement.  Such financial information shall be certified by an officer of Tenant as being a true and correct. Furthermore, upon the delivery of any such financial information from time to time during the Term, Tenant shall be deemed to automatically represent and warrant to Landlord that the financial information delivered to Landlord is true, accurate and complete, and that there has been no adverse change in the financial condition of Tenant since the date of the then-applicable financial information.  Tenant hereby authorizes Landlord to obtain one or more credit reports on Tenant at any time, and shall execute such further authorizations as Landlord may reasonably require in order to obtain a credit report. Notwithstanding anything to the contrary contained herein, so long as Tenant remains a publicly traded company (or a consolidated subsidiary of a publicly traded company) with financial statements that are publicly available, Tenant shall not be required to provide or deliver financial statements or any other information required under this Paragraph 25.

 

 

 

 29 

 

 

26. LANDLORD’S DEFAULT. Landlord shall not be in default hereunder unless it fails to cure within thirty (30) days after notice from Tenant or, if the action to be performed by Landlord requires more than thirty (30) days to cure, fails to diligently and continuously pursue the cure to completion thereafter any breach by Landlord of its obligations hereunder. Subject to the provisions of any SNDA, before exercising any remedies for a default by Landlord, Tenant shall give notice and a reasonable time to cure to any mortgagee of which Tenant has been notified by Landlord in writing. In the event of a default by Landlord under the Lease, Tenant may pursue any and all remedies available to it at law or in equity, including, but not limited to, suing Landlord for damages or filing an action for specific performance, except as otherwise expressly provided herein. Notwithstanding the foregoing provisions of this Paragraph 26 or anything else contained in this Lease to the contrary, if Landlord fails to perform any maintenance, repair or replacement obligation under this Lease, and if the failure continues for a period of thirty (30) days after Landlord’s receipt of written notice from Tenant (unless the failure cannot reasonably be cured within such (30) day period, and Landlord commences the cure of the failure within said thirty (30) day period and thereafter diligently and continuously pursues the cure to completion), then Tenant may take commercially reasonable steps to minimize damage from Landlord's failure to perform such obligation (e.g., relocating Tenant’s equipment, renting drying equipment, etc.) (“Preventative Measures”), if Tenant first notifies Landlord in writing that it intends to perform Preventative Measures, and Landlord does not perform the obligation or commence performance thereof (and thereafter diligently and continuously pursue the performance to completion) within five (5) days after Landlord's receipt of the notice (except in case of emergencies, in which such case, Tenant may take Preventative Measures immediately and no such additional period shall be necessary); however, in no event shall Tenant perform any obligations of Landlord under this Lease in connection with such Preventative Measures. Notwithstanding the above or any other terms of this Lease, in the case of an emergency, Tenant shall have the right, but not the obligation, to immediately prosecute any and all repairs to the Premises and the roof directly above the Premises reasonably necessary to cause such emergency to cease (“Emergency Repair(s)”) and shall seek to deliver contemporaneous written notification to Landlord of the emergency and related Emergency Repairs (provided that if contemporaneous written notice is not practicable, as reasonably determined, then Tenant shall provide such written notice as soon thereafter as reasonably practicable). Tenant must use Landlord’s designated contractor with regard to any repairs to the Building’s structure or the Building’s systems. Following Tenant's performance of Preventative Measures or Emergency Repairs, Landlord shall reimburse Tenant for all reasonable, out-of-pocket costs and expenses incurred by Tenant in connection therewith, within thirty (30) days after receipt by Landlord of a certified list of the costs, together with copies of “paid” receipts; provided, if such costs would have otherwise been Operating Expenses had Landlord performed the same, Landlord shall not be responsible for reimbursing Tenant for Tenant’s Proportionate Share of such costs. Notwithstanding anything in this Lease to the contrary, Tenant will be liable for any and all damages or injury to persons or property resulting from Tenant's performance of the Preventative Measures and/or Emergency Repairs under this Paragraph 26, except to the extent caused by the gross negligence or willful misconduct of Landlord, its employees, agents and/or contractors. As used in this Lease, the term “emergency” means (i) any situation that poses a serious and immediate threat to the health, safety, or property of Tenant, its employees, invitees, or customers, (ii) any leak in the roof allowing water into the Premises that is not repaired within five (5) days after written notice to Landlord of the existence of such leak or (iii) the interruption of electrical, water, or sewer service that prevents Tenant from operating within the Premises for the Permitted Use.

 

27. NOTICES AND RENT PAYMENTS. Each provision of this Lease or of any applicable Governmental Requirements with reference to the sending, mailing or delivering of notice or the making of any payment by Landlord to Tenant, or with reference to the sending, mailing or delivering of any notice or the making of any payment by Tenant to Landlord, shall be deemed to be complied with when and if the following steps are taken:

 

A. All rent and other payments required to be made by Tenant to Landlord hereunder shall be payable to Landlord at the address set forth in the Basic Lease Information or at such other address as Landlord may specify from time to time by written notice delivered in accordance herewith. Tenant’s obligation to pay rent and any other amounts to Landlord under the terms of this Lease shall not be deemed satisfied until such rent and other amounts have been actually received by Landlord. In addition to Base Rent and Reimbursable Expenses due hereunder, all sums of money and all payments due Landlord hereunder shall be deemed to be additional rent owed to Landlord.

 

B. All payments required to be made by Landlord to Tenant hereunder shall be payable to Tenant at the address of the Premises set forth in the Basic Lease Information, or at such other address within the continental United States as Tenant may specify from time to time by written notice delivered in accordance herewith.

 

 

 

 30 

 

 

C. All notices required or permitted hereunder shall be in writing and shall be delivered to the parties at the addresses set forth in the Basic Lease Information. Any such notices shall be either (a) sent by overnight delivery using a nationally recognized overnight courier, in which case notice shall be deemed delivered one (1) business day after deposit with such courier, (b) sent by telefax, in which case notice shall be deemed delivered upon transmission of such notice provided that an original of such facsimile is also sent to the addressee by means described in clauses (a) or (c), or (c) sent by personal delivery, in which case notice shall be deemed delivered upon receipt or refusal of delivery. A party’s address may be changed by written notice to the other party; provided, however, that no notice of a change of address shall be effective until actual receipt of such notice. Copies of notices are for informational purposes only, and a failure to give or receive copies of any notice shall not be deemed a failure to give notice. Notices given by counsel to Landlord shall be deemed given by Landlord and notices given by counsel to Tenant shall be deemed given by Tenant. If Landlord sends a default notice or an invoice to Tenant for payment of any rent due hereunder, an email of such default notice and/or invoice shall be sent to AP@ao-inc.com and Serena_Huang@ao-inc.com regardless of any other method of notice sent to the other Tenant notice parties.

 

28. MISCELLANEOUS.

 

A. Words of any gender used in this Lease shall be held and construed to include any other gender, and words in the singular number shall be held to include the plural, unless the context otherwise requires. The captions inserted in this Lease are for convenience only and in no way define, limit or otherwise describe the scope or intent of this Lease, or any provision hereof, or in any way affect the interpretation of this Lease.

 

B. The terms, provisions and covenants contained in this Lease shall run with the land and shall apply to, inure to the benefit of, and be binding upon, the parties hereto and upon their respective heirs, executors, personal representatives, legal representatives, successors and assigns, except as otherwise herein expressly provided. Landlord shall have the right to transfer and assign, in whole or in part, its rights and obligations in the Building and property that are the subject of this Lease. Upon any Landlord’s conveyance of the Building or the Land, and the assignment of its rights under this Lease, to another party (“Successor”), such Landlord shall be released from its obligations hereunder accruing after the date of such assignment and the Successor shall become the “Landlord” hereunder from and after the date of any such conveyance and assignment and shall thereafter have all of the rights and obligations of the Landlord hereunder, in accordance with the terms hereof, during the period of its ownership of the Building.

 

C. Any prevention, delay or stoppage due to strikes, lockouts, labor disputes, acts of God, acts of war, terrorism, terrorist activities, pandemics, epidemics, health crisis, COVID-19, SARS, MERS, inability to obtain services, labor, or materials or reasonable substitutes therefore, governmental actions, civil commotions, fire, flood, earthquake or other casualty, and other causes beyond the reasonable control of the party obligated to perform, except with respect to the obligations imposed with regard to rent and other charges to be paid by Tenant pursuant to this Lease (collectively, “Force Majeure”), notwithstanding anything to the contrary contained in this Lease, shall excuse the performance of such party for a period equal to any such prevention, delay or stoppage and, therefore, if this Lease specifies a time period for performance of an obligation of either party, that time period shall be extended by the period of any delay in such party’s performance caused by a Force Majeure.

 

D. Tenant agrees, from time to time, within ten (10) days after request by Landlord, to deliver to Landlord or Landlord’s designee financial statements (unless Tenant is a publicly traded company (or a consolidated subsidiary of a publicly traded company) with financial statements that are publicly available) and an estoppel certificate stating (1) that this Lease is in full force and effect, (2) the date to which rent is paid, (3) that there is no default on the part of Landlord or Tenant under this Lease, except as identified by Tenant with reasonable specificity, (4) that Tenant does not have any right of offset, claims or defenses to the performance of its obligations under this Lease, except as identified by Tenant with reasonable specificity, and (5) such other factual matters pertaining to this Lease as may be reasonably requested by Landlord. Tenant hereby irrevocably appoints Landlord as attorney-in-fact for the Tenant with full power and authority to execute and deliver in the name of Tenant such estoppel certificate if Tenant fails to deliver the same within such ten (10) day period and such certificate as signed by Landlord or Landlord’s designee, as the case may be, shall be fully binding on Tenant, unless Tenant fails to deliver a contrary certificate within five (5) days after receipt by Tenant of a copy of the certificate executed by Landlord or Landlord’s designee, as the case may be, on behalf of Tenant.

 

 

 

 31 

 

 

E. Whenever Tenant requests Landlord to take any action not required of it hereunder or give any consent required or permitted under this Lease, Landlord shall promptly notify Tenant if Landlord reasonably expects to incur $1,000.00 or more in connection with such action or consent (which notice shall include Landlord’s good faith estimate of the total cost Landlord expects to incur to in connection with such action or consent), in which event Tenant may then promptly notify Landlord if Tenant still desires Landlord to take such action or give such consent and, should Tenant give such notice to proceed, Tenant will reimburse Landlord for Landlord’s reasonable, out-of-pocket costs payable to third parties and incurred by Landlord in reviewing the proposed action or consent, including reasonable attorneys’, engineers’ or architects’ fees, within thirty (30) days after Landlord’s delivery to Tenant of a statement of such costs. Tenant will be obligated to make such reimbursement without regard to whether Landlord consents to any such proposed action.

 

F. This Lease constitutes the entire understanding and agreement of the Landlord and Tenant with respect to the subject matter of this Lease, and contains all of the covenants and agreements of Landlord and Tenant with respect thereto. Landlord and Tenant each acknowledge that no representations, inducements, promises or agreements, oral or written, have been made by Landlord or Tenant, or anyone acting on behalf of Landlord or Tenant, which are not contained herein, and any prior agreements, promises, negotiations, or representations not expressly set forth in this Lease are of no force or effect. The foregoing Basic Lease Information is incorporated into and made a part of this Lease. If any conflict exists between any Basic Lease Information and the Lease, then the Lease shall control. This Lease may not be altered, changed or amended except by an instrument in writing signed by both parties hereto.

 

G. All obligations of Tenant hereunder that accrue prior to the expiration or earlier termination of the Term of this Lease shall survive the expiration or earlier termination of the Term hereof, including without limitation, all payment obligations with respect to taxes and insurance and all obligations concerning the condition and repair of the Premises that accrue prior to the expiration or earlier termination of the Term of this Lease.

 

H. If any clause or provision of this Lease is illegal, invalid or unenforceable under present or future laws effective during the Term of this Lease, then and in that event, it is the intention of the parties hereto that the remainder of this Lease shall not be affected thereby, and it is also the intention of the parties to this Lease that in lieu of each clause or provision of this Lease that is illegal, invalid or unenforceable, there be added, as a part of this Lease, a clause or provision as similar in terms to such illegal, invalid or unenforceable clause or provision as may be possible and be legal, valid and enforceable.

 

I. All references in this Lease to “the date hereof” or similar references shall be deemed to refer to the last date, in point of time, on which all parties hereto have executed this Lease.

 

J. When this Lease is signed by and delivered to both Landlord and Tenant, Landlord shall pay a real estate commission to Landlord’s Broker named in the Basic Lease Information as provided in the written agreement between Landlord and Landlord’s Broker. When this Lease is signed by and delivered to both Landlord and Tenant, Landlord shall also pay a real estate commission to Tenant’s Broker named in the Basic Lease Information as provided in the written agreement between Landlord and Tenant’s Broker. Landlord and Tenant each warrant that they have dealt with no other real estate brokers in connection with this transaction except those specified in the Basic Lease Information. Each party agrees to indemnify and hold the other party harmless from and against any claims by any other broker, agent or other persons claiming a commission or other form of compensation by virtue of having dealt with the indemnifying party other than those specified in the Basic Lease Information with regard to this leasing transaction.

 

K. If and when included within the term “Landlord”, as used in this instrument, there is more than one person, firm or corporation, all shall jointly arrange among themselves for their joint execution of a notice specifying some individual at some specific address for the receipt of notices and payments to Landlord. If and when included within the term “Tenant”, as used in this instrument, there is more than one person, firm or corporation, all shall jointly arrange among themselves for their joint execution of a notice specifying some individual at some specific address within the continental United States for the receipt of notices and payments to Tenant. All parties included within the terms “Landlord” and “Tenant”, respectively, shall be bound by notices given in accordance with the provisions of Paragraph 25 hereof to the same effect as if each had received such notice.

 

 

 

 32 

 

 

L. Submission of this Lease shall not be deemed to be a reservation of the Premises. Landlord shall not be bound hereby until its delivery to Tenant of an executed copy hereof signed by Landlord, already having been signed by Tenant, and until such delivery Landlord reserves the right to exhibit and lease the Premises to other prospective tenants. Notwithstanding anything contained herein to the contrary, Landlord may withhold delivery or possession of the Premises from Tenant until such time as Tenant has paid to Landlord the security deposit required by Paragraph 2.B hereof and one month’s rent as set forth in Paragraph 2.A hereof.

 

M. Landlord and Tenant shall keep the terms and conditions of this Lease confidential and shall not disclose the terms of this Lease to any third party (other than to their respective attorneys and accountants) except as may be required by law or by the order of a court of competent jurisdiction. In addition, either party may disclose the terms of this Lease pursuant to securities laws, other applicable laws or governmental regulations or an order of a court of competent jurisdiction, provided that the disclosing party promptly notifies the other party of any motion to compel such disclosure and the disclosure order, in a court filing for purposes of enforcing the provisions herein and for purposes of identifying to other parties any exclusive rights herein.

 

N. Tenant agrees that Landlord or an affiliate of Landlord may include Tenant’s name and logo in marketing literature for the Project, and other developments owned and/or operated by Landlord or an affiliate of Landlord, for the limited purpose of informing third parties that Tenant is occupying the Project or the larger development of which the Project is a part.

 

O. Except in the case of delay due to Force Majeure referred to in Paragraph 28.C, time is of the essence for the performance of each term, condition and covenant of this Lease and the exercise by Tenant of every right or option contained in this Lease and for the giving of any notice for which deadlines for the performance, exercise or giving of such notice, as applicable, are expressly set forth herein. The foregoing shall not operate, however, to reduce the time period allocated for the performance of any obligation or the curing of any default if a time period is specified in the Lease for the performance of such obligation.

 

P. This Lease shall only create the relationship of landlord and tenant between Landlord and Tenant.

 

Q. LANDLORD AND TENANT EACH HEREBY WAIVES ITS RESPECTIVE RIGHTS TO TRIAL BY JURY OF ANY CONTRACT OR TORT CLAIM, COUNTERCLAIM, CROSS-COMPLAINT, OR CAUSE OF ACTION IN ANY ACTION, PROCEEDING, OR HEARING BROUGHT BY EITHER PARTY AGAINST THE OTHER ON ANY MATTER ARISING OUT OF OR IN ANY WAY CONNECTED WITH THIS LEASE, THE RELATIONSHIP OF LANDLORD AND TENANT, OR TENANT’S USE OR OCCUPANCY OF THE PREMISES, INCLUDING, WITHOUT LIMITATION, ANY CLAIM OF INJURY OR DAMAGE OR THE ENFORCEMENT OF ANY REMEDY UNDER ANY CURRENT OR FUTURE LAW, STATUTE, REGULATION, CODE, OR ORDINANCE.

 

R. No amendment, modification, or alteration of this Lease is binding unless in writing, dated subsequent to the date of this Lease, and duly executed by authorized representatives of the parties hereto.

 

S. In any legal action brought to interpret, enforce the performance of any term or condition of this Agreement, or to recover damages for the breach of this Lease, as between Landlord and Tenant, the prevailing party therein will be entitled to recover from the other party, as an element of its costs of suit and not as damages, reasonable attorneys’ fees and costs from the party not prevailing.

 

T. No waiver of any provision of this Lease or of any breach hereunder shall be deemed to be a waiver of any other provision hereof, or of any subsequent breach.

 

 

 

 33 

 

 

U. Landlord’s consent to or approval of any act by Tenant requiring Landlord’s consent or approval under this Lease shall not be deemed to render unnecessary the obtaining of Landlord’s consent to or approval of any subsequent act of Tenant. No act or thing done by Landlord or Landlord’s agents during the Term shall be deemed an acceptance of a surrender of the Premises, unless in writing signed by Landlord. The delivery of the keys to any employee or agent of Landlord shall not operate as a termination of the Lease or a surrender of the Premises. The acceptance of any rent by Landlord following a breach of this Lease by Tenant shall not constitute a waiver by Landlord of such breach or any other breach unless such waiver is expressly stated in a writing signed by Landlord.

 

V. Landlord shall be the sole determinant of the type and amount of any access control or courtesy guard services to be provided to the Project, if any. IN ALL EVENTS, LANDLORD SHALL NOT BE LIABLE TO TENANT, AND TENANT HEREBY WAIVES ANY CLAIM AGAINST LANDLORD, FOR (I) ANY UNAUTHORIZED OR CRIMINAL ENTRY OF THIRD PARTIES INTO THE PREMISES, THE BUILDING OR THE PROJECT, (II) ANY DAMAGE TO PERSONS, OR (III) ANY LOSS OF PROPERTY IN AND ABOUT THE PREMISES, THE BUILDING OR THE PROJECT, BY OR FROM ANY UNAUTHORIZED OR CRIMINAL ACTS OF THIRD PARTIES, REGARDLESS OF ANY ACTION, INACTION, FAILURE, BREAKDOWN, MALFUNCTION AND/OR INSUFFICIENCY OF THE ACCESS CONTROL OR COURTESY GUARD SERVICES PROVIDED BY LANDLORD.

 

W. Tenant shall not record this Lease or any memorandum hereof without Landlord’s written consent.

 

X. This Lease may be executed in any number of counterparts and by facsimile signature, each of which shall be deemed an original, and all of such counterparts shall constitute one agreement. To facilitate execution of this Lease, the parties may execute this Lease electronically (e.g., by “DocuSign” or similar technology) and exchange electronic counterparts of the signature pages and such electronic counterparts shall serve as originals. All references herein to the term “facsimile” shall be deemed to mean a document forwarded by electronic mail as a Portable Document Format (.pdf) attachment to such electronic mail. No party hereto will raise the delivery of a facsimile signature, the use of an electronic signature or electronic transmission to deliver a signature, or the fact that any signature (electronic or otherwise) was transmitted or communicated through the use of electronic transmission, as a defense to the formation or enforceability of a contract and each such party forever waives any such defense.

 

Y. Landlord and Tenant acknowledge that the parties and their counsel have reviewed, fairly negotiated and revised this Lease and that the normal rule of construction to the effect that any ambiguities in a document are to be resolved against the original drafter of this Lease shall not be employed in the interpretation of this Lease. The use of captions, headings, boldface, italics or underlining is for convenience only, and will not affect the interpretation of this Lease.

 

Z. This Lease shall be governed and interpreted by and be subject to the laws of the state or commonwealth in which the Premises is located. Landlord and Tenant each consents and agrees that the courts of the state in which the Premises is located will have jurisdiction over it in actions arising under or relating to this Lease. Landlord and Tenant each agrees that any action arising out of or relating to this Lease will be brought in the courts of such state and waives any argument that such venue is improper.

 

AA. All exhibits and schedules attached hereto are incorporated into this Lease by reference.

 

BB. If two or more individuals, corporations, partnerships or other business associations (or any combination of two or more thereof) shall sign this Lease as Tenant, the liability of each such individual, corporation, partnership or other business association to pay Rent and perform all other obligations hereunder shall be deemed to be joint and several, and all notices, payments and agreements given or made by, with or to any one of such individuals, corporations, partnerships or other business associations shall be deemed to have been given or made by, with or to all of them. In like manner, if Tenant shall be a partnership or other business association, the members of which are, by virtue of statute or federal law, subject to personal liability, then the liability of each such member shall be joint and several.

 

 

 

 34 

 

 

CC. If Tenant is a corporation or limited liability company, each individual executing this Lease on behalf of Tenant hereby covenants and warrants that Tenant is a duly authorized and existing corporation or limited liability company, that Tenant has and is qualified to do business in the State, that the corporation or limited liability company has full right and authority to enter into this Lease, and that each person signing on behalf of the corporation is authorized to do so. If Tenant is a partnership or trust, each individual executing this Lease on behalf of Tenant hereby covenants and warrants that he is duly authorized to execute and deliver this Lease on behalf of Tenant in accordance with the terms of such entity’s partnership or trust agreement. Tenant shall provide Landlord on demand with such evidence of such authority as Landlord shall reasonably request, including, without limitation, resolutions and certificates. Tenant shall furnish to Landlord, promptly upon demand, a corporate resolution, proof of due authorization by partners, or other appropriate documentation evidencing the due authorization of Tenant to enter into this Lease. This Lease shall not be construed to create a partnership, joint venture or similar relationship or arrangement between Landlord and Tenant hereunder. Each individual executing this Lease on behalf of Landlord hereby covenants and warrants that Landlord has and is qualified to do business in the State, that Landlord has full right and authority to enter into this Lease, and that each person signing on behalf of Landlord is authorized to do so.

 

DD. Tenant hereby represents and warrants that neither Tenant, nor any persons or entities holding any legal or beneficial interest whatsoever in Tenant, are (i) the target of any sanctions program that is established by Executive Order of the President or published by the Office of Foreign Assets Control, U.S. Department of the Treasury (“OFAC ”); (ii) designated by the President or OFAC pursuant to the Trading with the Enemy Act, 50 U.S.C. App. § 5, the International Emergency Economic Powers Act, 50 U.S.C. §§ 1701-06, the Patriot Act, Public Law 107-56, Executive Order 13224 (September 23, 2001) or any Executive Order of the President issued pursuant to such statutes; or (iii) named on the following list that is published by OFAC: “List of Specially Designated Nationals and Blocked Persons.” If the foregoing representation is untrue at any time during the Term, an Event of Default will be deemed to have occurred, without the necessity of notice to Tenant.

 

29. SPECIAL PROVISIONS.

 

A. RENEWAL OPTION. Provided that no Event of Default exists at the time of delivery of Tenant’s written notice or commencement of the renewal term, Tenant has not assigned this Lease or subleased all or any portion of the Premises, or Tenant has not vacated and abandoned the Premises, Tenant shall have two (2) options to renew this Lease for a term of five (5) years each for the portion of the Premises being leased by Tenant as of the date the renewal term is to commence, on the same terms and conditions set forth in the Lease, except as modified by the terms, covenants and conditions as set forth below:

 

(1) If Tenant elects to exercise said option, then Tenant shall provide Landlord with written notice no earlier than twelve (12) months prior to the expiration of the then current term of this Lease, but no later than nine (9) months prior to the expiration of the then current term of this Lease. If Tenant fails to provide such notice, Tenant shall have no right to extend or renew the term of the Lease.

 

(2) The Base Rent in effect at the expiration of the then current term of the Lease shall be the current fair market rental for comparable space in the Building and in other similar buildings in the same rental market as of the date the renewal term is to commence (the "Market Rental Rate"). In the event Tenant timely exercises its option to renew in accordance with this Paragraph 29, within thirty (30) business days after Tenant exercises said option, Landlord shall notify Tenant in writing of the Market Rental Rate for the Premises for said renewal term. Tenant shall have fifteen (15) business days from the receipt of Landlord's notice to either (1) accept, (2) reject, or (3) dispute Landlord's determination of the Market Rental Rate. In the event that Tenant rejects or disputes Landlord's determination, Tenant shall so notify Landlord in writing. If Tenant rejects Landlord's determination, then Tenant's exercise of the renewal option shall be deemed rescinded and thereafter Tenant shall have no further right to renew the Term. If Tenant disputes Landlord's determination, Tenant shall advise Landlord in such written notice of Tenant's determination of the Market Rental Rate. If Landlord and Tenant cannot agree upon the Market Rental Rate within thirty (30) days of Landlord's notice (the "Negotiation Period"), the following dispute resolution mechanism shall be utilized: Landlord and Tenant shall, within fifteen (15) days of the conclusion of the Negotiation Period, each select a qualified commercial real estate broker with at least ten years’ experience in leasing property and buildings in the city or submarket in which the Premises are located. The two brokers shall give their opinion of prevailing rental rates within 20 days after their retention. In the event the opinions of the two brokers differ and, after good faith efforts over the succeeding 20-day period, they cannot mutually agree, the brokers shall immediately and jointly appoint a third broker with the qualifications specified above. This third broker shall immediately (within five days) choose either the determination of Landlord’s broker or Tenant’s broker and such choice of this third broker shall be final and binding on Landlord and Tenant. Each party shall pay its own costs for its real estate broker. Following the determination of the Prevailing Rental Rate by the brokers, the parties shall equally share the costs of any third broker.

 

 

 

 35 

 

 

(3) This option is not transferable; the parties hereto acknowledge and agree that they intend that the aforesaid option to renew this Lease shall be “personal” to Tenant as set forth above and that in no event will any assignee or sublessee have any rights to exercise the aforesaid option to renew (other than any transferee under Paragraph 15(I)).

 

B. RIGHT OF FIRST REFUSAL. Provided that (i) no Event of Default exists and (ii) Tenant has not assigned this Lease or sublet all or any portion of the Premises, Tenant shall have a right of first refusal to lease any space in the Building which is contiguous to (i.e., shares a common demising wall with) the Premises (the “First Refusal Space”). Tenant’s first refusal rights relative to the First Refusal Space are subject to the following terms and conditions:

 

(1) If Landlord receives a written bona fide offer or proposal from a prospective tenant for the lease of part or all of the First Refusal Space (which may be in the form of a non-binding “letter of intent” or similar document), prior to entering into any lease with such prospective tenant, Landlord shall notify Tenant of the prospective lease (and of Landlord’s receipt from the prospective tenant of a written offer or proposal relating thereto which is acceptable to Landlord), and such notification from Landlord to Tenant also shall identify all of the space to be leased, the effective rent commencement date, the term of the proposed lease, the rent rate, the terms of any options to renew or expansion rights and all other material economic terms and conditions provided for in the third party’s offer or proposal. Provided, however, Landlord shall not be required to notify Tenant of the identity of the prospective tenant. Tenant shall have thirty (30) business days after such notification is delivered to Tenant by Landlord (the “Tenant Response Period”) to elect (by so notifying Landlord in writing) to lease all (but not less than all) of the space encompassed by the prospective tenant’s offer or proposal on all of the same terms and conditions (including, without limitation, rent rate, tenant improvements allowance and term of lease) as set forth in the prospective tenant’s offer or proposal.

 

(2) If Tenant elects, pursuant to subsection (1) above, to lease from Landlord all of the space encompassed by the prospective tenant’s offer or proposal, Tenant and Landlord shall proceed diligently and in good faith to finalize and execute a lease amendment for such purpose within fifteen (15) business days after the expiration of the Tenant Response Period (provided, however, in any event, Tenant’s exercise of its rights relative to the First Refusal Space shall be irrevocable, and the terms set forth in the offer accepted by Tenant shall be binding on Tenant).

 

(3) If Tenant elects not to lease from Landlord the space encompassed by a prospective tenant’s offer or proposal (as evidenced either by Tenant’s written notice to Landlord to that effect or by Tenant’s failure to respond to Landlord within the Tenant Response Period), then, in such event, Landlord shall be entitled, at any time within six (6) months after the expiration of the Tenant Response Period (without triggering any further rights of Tenant under this Paragraph), to enter into a lease agreement with the prospective tenant or any other party relative to all or any portion of the space encompassed by the prospective tenant’s offer or proposal, in which case all of Tenant’s first refusal rights under this Paragraph shall immediately and automatically terminate relative to such portion or all (as the case may be) of the First Refusal Space that Landlord so leases. If Tenant elects not to lease from Landlord the space encompassed by a prospective tenant’s offer or proposal (as evidenced either by Tenant’s written notice to Landlord to that effect or by Tenant’s failure to respond to Landlord within the Tenant Response Period), and Landlord does not enter into a lease agreement with the prospective tenant or another party relative to all or any portion of the space encompassed by the prospective tenant’s offer or proposal within twelve (12) months after the expiration of the Tenant Response Period, Tenant’s first refusal rights under this Paragraph shall be revived in full with regard to the relevant portion or all (as the case may be) of the First Refusal Space.

 

(4) All rights of Tenant under this Section are subject and subordinate to all prior rights previously granted by Landlord to other tenants in the Building, and Landlord shall be entitled to enter into any extension or renewal of the lease of any tenant in the Building relative to the First Refusal Space (regardless of whether such lease expressly provides for such extension or renewal right) without triggering any rights of Tenant under this Section.

 

 

 

 36 

 

 

C. TERMINATION OPTION.

 

(1) Tenant shall have the one-time option to terminate this Lease (the "Termination Option") effective as of the last day of the sixty-sixth (66th) full calendar month of the initial Term (the "Termination Date"), as to all (but not less than all) of the Premises. Tenant may exercise the Termination Option by delivering written notice (the "Termination Notice") to Landlord at least six (6) months prior to the Termination Date. If Tenant elects to exercise the Termination Option, then Tenant shall pay a fee to Landlord (the "Termination Fee") simultaneously with its delivery of the Termination Notice in an amount equal to the sum of (i) the unamortized portion of the Abated Rent, the Allowance, and the broker commissions paid in connection with this Lease, which amounts shall accrue interest at 8% per annum and be amortized over the initial Term, and (ii) Base Rent and Reimbursable Expenses for five (5) months at the rates applicable to the Premises for the five (5) months following the Termination Date.

 

(2) Tenant may not exercise the Termination Option if there is an existing and continuing monetary default by Tenant under the Lease on the date of the Termination Notice or the Termination Date.

 

(3) The payment of the Termination Fee simultaneously with the Termination Notice is a condition precedent to the effectiveness of any termination under this Paragraph 29.C.  No termination under this Paragraph 29.C affects any then outstanding liabilities of Landlord or Tenant under this Lease.

 

D. GENERATOR. Subject to the provisions of this Paragraph 29.D, Tenant shall be entitled to operate, maintain and replace the existing generator to supply electricity to the Premises and any other equipment related thereto (collectively, the “Generator”) outside of the Building at Tenant’s sole cost and expense. Tenant understands that the Generator must be screened (using either vegetation screening or structural screening, or a combination thereof), to Landlord’s reasonable satisfaction, so as to minimize any adverse aesthetic impact on the Building. Tenant shall be solely responsible for the cost of operation and maintenance of the Generator; and Tenant shall maintain and operate the Generator in accordance with all Governmental Requirements, including without limitation, obtaining and maintaining any and all permits, approvals and licenses required to operate the Generator by any governmental authority having jurisdiction. Tenant shall not be entitled to grant or assign to any third party (other than a permitted assignee of Tenant’s rights under this Lease or a permitted subtenant relative to the Premises (or a portion thereof)) the right to use the Generator without Landlord’s prior written consent (which consent shall not be unreasonably withheld, conditioned, or delayed). Upon reasonable advance notice to Tenant, Landlord shall be entitled to cause the Generator to be moved to another location reasonably acceptable to Tenant, at Landlord’s cost and expense (not as part of the Operating Expenses). Notwithstanding anything contained herein to the contrary, Tenant acknowledges that it is accepting the existing Generator at the Premises in its “as-is” condition, without any representation or warranty of any kind, express or implied, by Landlord.

 

E. Exterior Equipment. Tenant, at its sole cost and expense, may install nitrogen storage tanks, air compressors, generators, chiller and air handlers approved by Landlord, which approval shall not be unreasonably withheld, conditioned or delayed (the “Exterior Equipment”) in the locations identified on Exhibit A (the “Exterior Equipment Areas”). Landlord grants to Tenant permission during the Term, at Tenant’s sole cost and expense, to install, operate, and maintain in the Exterior Equipment Area the Exterior Equipment, subject to the following conditions:

 

(1) Tenant shall bear all costs to install, maintain, operate and repair the Exterior Equipment in compliance with all applicable laws (including any applicable city ordinances and restrictive covenants), which costs include, without limitation, (1) any structural modifications required to support the Exterior Equipment, (2) any screens or other improvements Landlord may reasonably require to protect the aesthetic quality of the Project, (3) any fences that Landlord may require for safety reasons and (4) any enclosures or other safety measures required by applicable laws (including any applicable city ordinances and restrictive covenants).

 

(2) All equipment must be routed, anchored, and attached in accordance with good industry practices. The Exterior Equipment must be identified with permanently marked, weatherproof tags at the following locations: (i) prominently on the exterior frame of each piece of the Exterior Equipment; (ii) at any building entry point; and (iii) at the interior wall feed through or any other transmission line exit point.

 

 

 

 37 

 

 

(3) Tenant shall:

 

(a) promptly repair, to Landlord's reasonable satisfaction, any damage to the any building or the Project caused by the installation, use, or removal of any Exterior Equipment;

 

(b) keep and maintain all Exterior Equipment in good condition and repair at all times;

 

(c) not unreasonably interfere with any other persons operating other equipment at the Project as of the Lease Date; and

 

(d) take all commercially reasonable action (including installation of additional insulation) to prevent vibrations and unreasonable sound disturbance in any building at the Project resulting from the operation of the Exterior Equipment.

 

(4) Upon the expiration or earlier termination of the Lease, Tenant, at Tenant’s expense, shall promptly remove all specified Exterior Equipment and repair and restore all damage to the Premises, the Building, and the Project caused by the removal, to Landlord’s reasonable satisfaction.

 

(5) Tenant has thoroughly inspected the Exterior Equipment Area and accepts it in its “AS IS” condition. Landlord makes no, and Tenant waives and releases Landlord from any, representations and warranties about the condition or availability of any of the building pipe chases or their suitability for the installation and operation of any Exterior Equipment.

 

(6) Prior to the installation of the Exterior Equipment, Tenant, at its cost, shall deliver to Landlord, either: (A) 2 reproducible copies of "as-built" plans and specifications (1/8" scale), or (B) “as-built” plans and specifications in electronic CAD format reasonably acceptable to Landlord showing the location of all equipment, systems, cabling and piping. In addition to either A and/or B Tenant shall provide to Landlord any and all government, municipal, and applicable property owners association approvals prior to installation. Landlord shall, at no cost to Landlord, reasonably cooperate with Tenant in obtaining any approvals from any applicable property owners association with respect to such installation.

 

F. RIGHT OF FIRST OFFER TO PURCHASE.

 

(1) Provided no Event of Default then exists, Landlord shall, prior to offering the Project for sale to any third party (other than in connection with a portfolio sale of multiple properties), first offer to sell to Tenant the Project in an "AS-IS" condition on good faith, commercially reasonable terms; such offer shall be in writing and specify the terms for sale of the Project, including the purchase price, the required earnest money deposit, the date by which closing must occur and other operative terms as Landlord deems appropriate (the "Offer Notice"). Tenant shall notify Landlord in writing whether Tenant elects to purchase the Project, within ten days after Landlord delivers to Tenant the Offer Notice. If Tenant timely elects to purchase the Project, then Landlord and Tenant shall execute a purchase and sale contract, on the terms set forth in the Offer Notice or on such other terms as Landlord and Tenant may agree in writing.

 

(2) If Tenant fails or is unable to timely exercise its right hereunder, then such right shall lapse, time being of the essence with respect to the exercise thereof (it being understood that Tenant's right hereunder is a one-time right only), and Landlord may thereafter sell the Project to third parties on such terms as Landlord may elect. Tenant may not exercise its rights under this Paragraph 29.F if an Event of Default exists. In no event shall Landlord be obligated to pay a commission with respect to the sale of the Building pursuant to this Paragraph 29.F, and Tenant and Landlord shall each indemnify the other against all costs, expenses, attorneys' fees, and other liability for commissions or other compensation claimed by any broker or agent claiming the same by, through, or under the indemnifying party.

 

(3) Tenant's rights under this Paragraph 29.F shall terminate if (i) this Lease or Tenant's right to possession of the Premises is terminated or (ii) Tenant assigns its interest in this Lease or sublets any portion of the Premises.

 

 

 

 38 

 

 

(4) Tenant acknowledges and agrees that the right of first offer set forth in this Paragraph 29.F shall not apply in connection (i) a foreclosure of a mortgage on the Project, (ii) a conveyance of a deed in lieu of such foreclosure, or (iii) the first subsequent transfer of the Project immediately following such a foreclosure or conveyance in lieu thereof.

 

G. TENANT TELECOMMUNICATIONS EQUIPMENT. Provided that Tenant complies with the terms of this Paragraph 29.G, Tenant may, at its risk and expense, install telecommunications equipment and related wiring (collectively, the “Telecom Equipment”) on the roof of the Building at a location reasonably approved by Landlord. Before installing the Telecom Equipment, Tenant shall submit to Landlord for its approval (which approval shall be in Landlord's reasonable discretion) plans and specifications which (1) specify in detail the design, location, size, and frequency of the Telecom Equipment and (2) are sufficiently detailed to allow for the installation of the Telecom Equipment in a good and workmanlike manner and in accordance with all Governmental Requirements. If Landlord approves of such plans, and Tenant installs the Telecom Equipment (which shall be in a good and workmanlike manner), Tenant shall maintain and use the Telecom Equipment in accordance with all applicable laws and shall obtain all permits required for the installation and operation thereof; copies of all such permits must be submitted to Landlord before Tenant begins to install the Telecom Equipment. Tenant shall thereafter maintain all permits necessary for the maintenance and operation of the Telecom Equipment while it is on the Building and operate and maintain the Telecom Equipment in such a manner so as not to unreasonably interfere with any other satellite, antennae, or other transmission facility on the Building's roof or in the Building. Landlord may require that Tenant screen the Telecom Equipment with a parapet wall or other screening device reasonably acceptable to Landlord. Tenant shall maintain the Telecom Equipment and the screening therefor in good repair and condition. Tenant may only use the Telecom Equipment in connection with Tenant's business. Tenant shall not allow any third party to use such equipment, whether by sublease, license, occupancy agreement or otherwise. Tenant shall, at its risk and expense, remove the Telecom Equipment, within ten (10) business days after the occurrence of any of the following events: (A) the termination of Tenant's right to possess the Premises; (B) the termination of the Lease; (C) the expiration of the Term; or (D) Tenant's vacating the Premises. If Tenant fails to do so, Landlord may remove the Telecom Equipment and store or dispose of it in any manner Landlord deems appropriate without liability to Tenant; Tenant shall reimburse Landlord for all costs incurred by Landlord in connection therewith within ten days after Landlord's request therefor. Tenant shall repair any damage to the Building caused by or relating to the Telecom Equipment, including that which is caused by its installation, maintenance, use, or removal. All work relating to the Telecom Equipment shall, at Tenant's expense, be coordinated with Landlord's roofing contractor so as not to affect any warranty for the Building's roof.

 

30. DECEPTIVE TRADE PRACTICES. TENANT HEREBY WAIVES ALL ITS RIGHTS UNDER THE DECEPTIVE TRADE PRACTICES – CONSUMER PROTECTION ACT, SECTION 17.41 ET. SEQ. OF THE TEXAS BUSINESS AND COMMERCE CODE, A LAW THAT GIVES CONSUMERS SPECIAL RIGHTS AND PROTECTIONS. AFTER CONSULTATION WITH AN ATTORNEY OF TENANT’S OWN SELECTION, TENANT VOLUNTARILY CONSENTS TO THIS WAIVER.

 

31. LANDLORD REPRESENTATIONS. Landlord represents, warrants and covenants to and with Tenant, that, to Landlord’s knowledge as of the date of this Lease:

 

A. There are no actions, suits or proceedings pending or threatened against, by or affecting Landlord which affect title to the Project or which question the validity or enforceability of this Lease or of any action taken by Landlord under this Lease, in any court or before any governmental authority, domestic or foreign.

 

B. Landlord has good and marketable fee simple title to the Project.

 

C. There are no pending or threatened or contemplated condemnation actions involving all or any portion of the Land; and, to Landlord’s knowledge, there are no existing, proposed or contemplated plans to widen, modify or realign any public rights of way located adjacent to any portion of the Land.

 

[REMAINDER OF PAGE INTENTIONALLY LEFT BLANK]

 

[SIGNATURES ON FOLLOWING PAGE]

 

 

 

 39 

 

 

IN WITNESS WHEREOF, Landlord and Tenant have executed this Lease as of the Lease Date set forth in the Basic Lease Information.

 

 

 

  LANDLORD:  
         
 

COLEMAN LOGISTICS ASSETS LLC,

 
  a Delaware limited liability company  
         
         
  By:      
  Name: Richard Prokup  
  Title: Director  
  Date:    
         
 

 

     
  TENANT:  
       
  APPLIED OPTOELECTRONICS, INC.,  
  a Delaware corporation  
         
  By:      
  Name:    
  Title:    
 

Date:

   

 

 

 

 

 

 

[REMAINDER OF PAGE INTENTIONALLY LEFT BLANK]

 

 

 

 

 

 

 40 

 

 

EXHIBIT “A”

 

PROJECT SITE PLAN / LOCATION OF PREMISES

 

 

 

 

 

 

 A-1 

 

 

EXHIBIT “A-1”

 

DESCRIPTION OF LAND

 

 

ALL OF COMMERCIAL RESERVE “A2”, containing 33.4709 acres, more or less, of SUGAR LAND BUSINESS PARK TRACT 130 AND 131, REPLAT NO, 3, an addition in Fort Bend County, Texas, according to the map or plat thereof recorded in Plat No. 20090097, of the Plat Records of Fort Bend County, Texas.

 

 

 

 

 

 

 

 

 

 

 

 

 A-1-1 

 

 

EXHIBIT “B”

 

DEPICTION / OUTLINE OF PREMISES

 

 

 

 

Drawings, dimensions, plans, boundaries, furniture, fixtures and improvements shown in this Exhibit are for illustrative purposes only and are not intended to indicate the actual square footages, build out or improvements to such space.

 

 

 

 

 B-1 

 

 

EXHIBIT “C”

 

WORK LETTER

 

Tenant may construct and install certain improvements to the Premises and within the Project (collectively, the “Leasehold Improvements”) in accordance with the following terms and provisions:

 

1.Landlord’s Construction Allowance. Provided the Lease is in full force and effect and no Event of Default under the terms, covenants and conditions of the Lease exists, Landlord hereby agrees to pay toward the cost of the Leasehold Improvements an amount equal to the lesser of (i) the actual, aggregate cost of the Leasehold Improvements or (ii) the construction allowance in an amount not to exceed $1,886,985.00 (the “Allowance”). Landlord shall have no obligation to provide or expend any amount in excess of the Allowance in connection with the Leasehold Improvements. Landlord shall pay and contribute to Tenant the Allowance for the costs and expenses incurred with respect to the Leasehold Improvements within thirty (30) days after the last to occur of (x) completion of the Leasehold Improvements and (y) satisfaction of the provisions of Paragraph 5 below. Notwithstanding any provision to the contrary herein, the parties acknowledge and agree that Landlord shall have no obligation to pay or contribute any portion of the Allowance not expended on the Leasehold Improvements. Notwithstanding any provision to the contrary herein, any portion of the Allowance that has not been requested in accordance with the provisions of this Exhibit “C” within twelve (12) months following the Commencement Date shall be forfeited and Landlord shall have no further obligation to contribute such forfeited Allowance.

 

2.Work. Tenant shall commence performance of the Leasehold Improvements only after obtaining Landlord’s written approval of the Tenant’s Plans (as defined below) for such Leasehold Improvements and the general contractor to perform such Leasehold Improvements. Landlord may only withhold approval of the Tenant’s Plans if the work to be performed pursuant thereto will (i) exceed or adversely affect the Building’s structure or systems, (ii) be visible from the exterior of the Building, or (iii) affect any other tenant’s use of or access to its premises (a “Design Defect”). Landlord shall not unreasonably withhold, condition or delay its approval of the general contractor to perform such Leasehold Improvements. Landlord hereby approves EE Reed Construction LP, Forney Construction, B Bell Builder LP, Tellepsen Builders or Trinity Consulting Group, Inc. to serve as the general contractor to perform such Leasehold Improvements. The cost of the Leasehold Improvements includes, without limitation:

 

2.1All costs and expenses actually incurred and pertaining to the Leasehold Improvements, including, but not limited to, material and equipment costs, costs charged by contractors, subcontractors and general and other conditions costs and expenses in connection with the performance and installation of the Leasehold Improvements;

 

2.2All costs and expenses of preparation of the Tenant’s Plans for space planning, construction, site inspection and contract administration by Consultants (as defined below);

 

2.3All costs of permits, licenses and other approvals required for the performance of the Leasehold Improvements; and

 

2.4A construction management or oversight fee payable to Landlord’s construction manager of one percent (1%) of the total Allowance funded by Landlord to Tenant.

 

If the total cost of the Leasehold Improvements exceeds the Allowance, then the entire amount of any such excess shall be borne by Tenant.

 

3.Plans and Specifications.

 

 

 

 C-1 

 

 

3.1.Tenant shall employ consultants (the “Consultants”) designated by Tenant for the preparation of the necessary architectural, life safety, mechanical and electrical plans, drawings and specifications pertaining to the Leasehold Improvements, provided, however, that all such Consultants shall be subject to the advance written approval of Landlord (not to be unreasonably withheld, conditioned, or delayed). Tenant shall furnish Landlord with architectural and design plans and specifications (the “Tenant’s Plans”) prepared first in preliminary form (the “Preliminary Plans”), and thereafter in working form (the “Working Drawings”), which shall cover, describe and depict the Leasehold Improvements. All Tenant’s Plans shall meet the requirements set forth in Schedule I attached hereto. All costs and expenses related to the Leasehold Improvements in excess of the Allowance shall be the obligation of, and shall be paid by, Tenant.

 

3.2.Upon submission of the Tenant’s Plans for the Leasehold Improvements, Landlord shall review the Tenant’s Plans and shall either approve the Tenant’s Plans or advise Tenant in writing of any aspect of the design, engineering, construction or installation which is not acceptable to Landlord due to a Design Defect. Landlord shall advise Tenant of its approval or identify with reasonable explanation the Design Defect(s) in the Tenant’s Plans within two (2) business days after Landlord’s receipt of the Tenant’s Plans. In the event that Landlord shall disapprove of any portion of the Tenant’s Plans, Tenant shall resubmit them to Landlord, and Landlord shall thereafter have two (2) business days to advise Tenant of its approval or identify with reasonable explanation the Design Defect(s) in the Tenant’s Plans. In the event Landlord fails to approve or disapprove the Tenant’s Plans or any changes thereto within the time period set forth above, and such failure continues for two (2) business days after Landlord’s receipt of written notice from Tenant (which notice shall also be sent to Ryan Kehoe via email ryan.kehoe@mapletree.com.sg) and such written notice specifically states in bold all capital letters that if Landlord fails to respond within such two (2) business day period that Landlord’s approval shall be deemed given), then Landlord’s failure to respond within such two (2) business day period shall constitute a deemed approval of such Tenant’s Plans.

 

3.3.After approval of the Tenant’s Plans or any portion thereof, Tenant shall not in any way modify, revise or change the approved Tenant’s Plans without the prior written consent of Landlord, which consent may only be withheld in the event the modified, revised or changed Tenant’s Plans result in a Design Defect. If Landlord approves such request, the entire cost of such change, including the cost of revising the Tenant’s Plans or preparing new plans, shall be paid from the Allowance or borne by Tenant.

 

3.4.It shall be Tenant’s sole responsibility that the Tenant’s Plans comply with all applicable Governmental Requirements and to procure and deliver to Landlord, upon request, all such licenses, permits and approvals from all governmental authorities as are necessary to permit the Leasehold Improvements to be commenced and continued to completion and the Premises to be occupied.

 

4.Contracts and Contractors for the Leasehold Improvements. Tenant shall make all such contracts and arrangements as shall be necessary or desirable for the construction and installation of the Leasehold Improvements. Tenant agrees to retain contractors, subcontractors and materialmen who are of good reputation and experienced in and favorably known for the construction of space comparable to the Premises in the metropolitan area where the Building is situated, and that are properly licensed for the work they are to perform. Tenant shall provide Landlord with a list of all proposed contractors, subcontractors and materialmen that Tenant intends to utilize with respect to the Leasehold Improvements and provide true, correct and complete copies of all contracts relating to the Leasehold Improvements. Such contractors and subcontractors performing Leasehold Improvements that affect the Building’s structure or the Building’s systems must be satisfactory to Landlord in Landlord’s commercially reasonable discretion. Landlord shall approve or disapprove of Tenant’s proposed contractors within five (5) business days after receiving Tenant’s submission of any such contractor’s name. Tenant and Tenant’s contractors shall use qualified craftsmen and laborers and, upon Landlord’s demand, Tenant shall promptly take all measures necessary to avoid labor unrest in the Premises and on the Project which is caused by Tenant or Tenant’s contractors. The cost of all Leasehold Improvements, and the materials and services related thereto, shall in all events be competitively priced and shall in no event be in excess of the cost of such Leasehold Improvements if charged by an unrelated and independent third-party contractor in an arm’s length transaction.

 

 

 

 C-2 

 

 

5.Construction. Promptly upon Landlord’s approval of the Tenant’s Plans for the Leasehold Improvements, Tenant shall apply for, and supply to Landlord upon issuance, a building permit and any other required governmental permits, licenses or approvals required to construct and perform the Leasehold Improvements. Upon issuance of such permits and approvals, Tenant shall commence the Leasehold Improvements in accordance with the Tenant’s Plans and shall diligently prosecute the Leasehold Improvements to completion. Tenant agrees to cause the Leasehold Improvements to be constructed in a good and workmanlike manner using first-class quality materials, and in compliance with all applicable building codes and ordinances. Upon completion of the Leasehold Improvements, Tenant shall provide to Landlord: (i) an architect’s certificate of substantial completion; (ii) copies of all necessary governmental permits and satisfactory evidence of the closing all such permits, including, but not limited to, a final certificate of occupancy; (iii) the sworn statement of Tenant’s general contractor confirming substantial completion of the Leasehold Improvements in accordance with the Landlord approved Tenant’s Plans; (iv) three complete sets of record drawings, warranty documentation and operations and maintenance manuals; (v) final lien waivers from all contractors, subcontractors and materialmen supply work or materials in excess of $20,000.00; and (vi) any other information or documentation reasonably requested by Landlord to evidence lien-free completion of construction and payment of all of the cost thereof. Landlord shall have the right to observe the performance of the Leasehold Improvements and Tenant shall take all such actions with respect thereto as Landlord may, in its good faith determination, deem advisable from time to time to assure that the Leasehold Improvements and the manner of performance thereof shall not be injurious to the Project, the engineering and construction of the Building or the electrical, plumbing, heating, mechanical, ventilating or air-conditioning systems of the Building, and shall be in accordance with the Tenant’s Plans and the provisions herein, and Landlord’s right to enter the Premises in order to observe the Leasehold Improvements, and the performance thereof, shall in no event constitute a breach of Tenant’s right to quiet enjoyment under the Lease, at law or otherwise.

 

6.Tenant’s Default. If Tenant shall fail to comply with any term, provision or agreement hereunder, and if any such failure is not cured within fifteen (15) days following written notice to Tenant, then, in addition to any other remedies granted Landlord under the Lease in the case of default by Tenant and any remedies provided for elsewhere in this Exhibit “C” or available at law or equity, Landlord may elect, upon notice to Tenant, to require Tenant to discontinue all work hereunder until such failure is cured.

 

7.Miscellaneous.

 

7.1.Tenant designates George Nguyen (George_Nguyen@ao-inc.com) and Magdiel Gonzalez (Magdiel_Gonzalez@ao-inc.com) (the “Tenant’s Authorized Representative”), as the person authorized to approve in writing all plans, drawings, specifications, change orders, charges and approvals pursuant to this Exhibit “C” (and the act of the aforenamed person shall be sufficient to bind Tenant). Tenant may designate a substitute Tenant’s Authorized Representative by written notice to Landlord. Landlord shall not be obligated to respond to any instructions, approvals, changes, or other communications from anyone claiming to act on Tenant’s behalf other than Tenant’s Authorized Representative. All references in this Exhibit to actions taken, approvals granted, or submissions made by Tenant shall mean that such actions, approvals or submissions have been taken, granted or made, in writing, by Tenant’s Authorized Representative acting for Tenant.

 

7.2Tenant expressly assumes the responsibility and obligation of supplying the Consultants with all information concerning Tenant’s requirements with respect to the Leasehold Improvements as and when requested by any of the Consultants.

 

7.3.Tenant shall, before commencing any of the Leasehold Improvements, and for so long as any Leasehold Improvements shall continue, comply with the insurance requirements set forth in Paragraph 10(B) of the Lease. In the event Tenant fails to so comply, Landlord shall have the option, but not the obligation to procure the required insurance and charge Tenant the cost of such compliance as additional rent.

 

7.4.All rights and remedies of Landlord herein created or otherwise existing at law or equity are cumulative, and the exercise of one or more such rights or remedies shall not be deemed to exclude or waive the right to the exercise of any other rights or remedies. All such rights and remedies may be exercised and enforced concurrently and whenever and as often as deemed desirable.

 

 

 

 C-3 

 

 

7.5.This Exhibit “C” shall not be deemed applicable to any additional space added to the Premises, or any alterations or other improvements to the Premises, at any time or from time to time, whether by any options under the Lease or otherwise, or to any portion of the Premises or any additions thereto in the event of a renewal or extension of the original term of the Lease, whether by any options under the Lease or otherwise.

 

8.Electrical Capacity Requirement. Tenant desires a minimum electrical service capacity of 5.3 KKW, to be delivered to the Premises at Tenant’s designated main distribution panel. Landlord, at Tenant’s expense, shall confirm whether the Building’s existing infrastructure can accommodate this requirement. If an upgrade is necessary, Landlord permits Tenant to perform the upgrade at Tenant’s expense, subject to the terms and conditions of this Lease.

 

9.Landlord Work. Landlord, at its sole cost and expense, shall (a) demolish the office areas identified on Schedule II to this Exhibit and install any demising walls necessary to separate the Premises from any other portion of the Building not part of the Premises within sixty (60) days after delivery possession of the Premises to Tenant, and (b) deliver the mechanical, electrical, plumbing, and HVAC systems serving the Premises as of the Lease Date in good working order.

 

[REMAINDER OF THIS PAGE INTENTIONALLY LEFT BLANK]

 

 

 

 

 

 

 

 

 

 

 

 

 

 

 

 

 

 

 C-4 

 

 

SCHEDULE I

 

STANDARDS FOR PLANS

 

1.The working drawings shall be prepared at a scale of not less than 1/8"=1 foot.

 

2.The Tenant’s Plans shall contain sufficient notations, specifications and details to describe all Leasehold Improvements, including but not limited to:

 

(a)Insulated structures, walls, special wall coverings, graphics, special painting or special wall materials such as plate glass or glass block.

 

(b)Door dimensions, thickness, hardware or locks.

 

(c)Flooring materials.

 

(d)Electrical outlets requiring a dedicated circuit, more than 120 volts or more than 15 amperes.

 

(e)Telephone outlets requiring more than 3/4 inch diameter conduit.

 

(f)Light fixtures, exhaust fans, ceiling heights, or ceiling designs using non-standard materials.

 

(g)Any special conduits, receptacles or electrical devices necessary to serve communications equipment, computers or other facilities to be installed by Tenant.

 

(h)Any special requirements to accommodate handicapped employees of Tenant within the Premises.

 

(i)The locations of all improvements, Building systems and equipment, or any modifications to existing improvements, Building systems and equipment, to be installed or performed in connection with the Leasehold Improvements.

 

(j)A depiction and description of the type of equipment (listing the manufacturer and product name and/or number) to be installed in connection with the Leasehold Improvements, and any manufacturer-required installation specifications.

 

 

 

 

 

 

 

 C-5 

 

 

SCHEDULE II

 

 

 

 

 

 

 

 C-6 

 

 

EXHIBIT “D”

 

FORM LETTER DOCUMENTING DELIVERY OF PREMISES

 

Date

 

 

 

[Tenant]

 

 

 

Re:Lease Agreement dated _______________ between [Landlord] and [Tenant] Property Located at _________________________________________

 

Dear ______________:

 

This letter will serve to document our agreement regarding certain terms of the lease for the referenced premises:

 

a.The Commencement Date is ____________________.

 

b.The Premises contain __________ square feet of area.

 

c.The Building contains __________ square feet of area.

 

d.Tenant’s Proportionate Share is __________%.

 

e.Base Rent shall be payable in accordance with the following schedule:

 

[INSERT SCHEDULE BASED ON CONFIRMED DATES]

 

Your agreement to these terms will be understood unless you notify me otherwise.

 

For your convenience, I have enclosed a rent schedule, which shows when your rental payments are due. We do not send out monthly invoices. All rental payments are due by the 1st of each month and should be made payable to Landlord.

 

Please mail your payments to the following address:

 

_____________________[Landlord entity name]
_____________________
_____________________
_____________________

 

If you have any questions, please do not hesitate to call me at _________________. I look forward to working with you. Welcome to your new facility!

 

Sincerely,

 

Enclosures

 

 

 D-1 

 

 

EXHIBIT “E”

 

RULES AND REGULATIONS

 

1. Any sidewalks, lobbies, passages and stairways shall not be obstructed or used by Tenant for any purpose other than ingress and egress from and to the Premises. Landlord shall in all cases retain the right to control or prevent access by all persons whose presence, in the reasonable judgment of Landlord, shall be prejudicial to the safety of the property.

 

2. The toilet rooms, toilets, urinals, sinks, faucets, plumbing or other service apparatus of any kind shall not be used for any purposes other than those for which they were installed, and no sweepings, rubbish, rags, ashes, chemicals or other refuse or injurious substances shall be placed therein or used in connection therewith or left in any lobbies, passages, elevators or stairways.

 

3. Tenant shall not impair in any way the fire safety system and shall comply with all safety, fire protection and evacuation procedures and regulations established by any governmental agency. No person shall go on the roof without Landlord’s prior written consent (which shall not be unreasonably withheld, conditioned or delayed).

 

4. Skylights, windows, doors and transoms shall not be covered or obstructed by Tenant, and Tenant shall not install any window covering which would affect the exterior appearance of the Building, except as approved in writing by Landlord (which approval shall not be unreasonably withheld, conditioned or delayed).

 

5. Without Landlord’s prior written consent, Tenant shall not hang, install, mount, suspend or attach anything from or to any sprinkler, plumbing, utility or other lines. If Tenant hangs, installs, mounts, suspends or attaches anything from or to any doors, windows, walls, floors or ceilings, Tenant shall spackle and sand all holes and repair any damage caused thereby or by the removal thereof at or prior to the expiration or termination of the Lease.

 

6. Tenant shall not change any locks nor place additional locks upon any doors without Landlord’s prior written consent (which shall not be unreasonably withheld, conditioned or delayed).

 

7. Neither Tenant nor its employees, agents or invitees shall disturb the occupants of the Building and/or the Project by the use of any loudspeakers, phonographs, radios or televisions, musical instruments, making of unseemly noises, use of flashing lights or searchlights or any other unreasonable use which can be heard or experienced outside of the Premises.

 

8. Except as expressly permitted pursuant to the terms of the Lease, Tenant shall not use nor keep in the Building any matter having an offensive odor, nor explosive or highly flammable material, nor shall any animals other than service dogs in the company of and assisting their disabled masters be brought into or kept in or about the property.

 

9. All wires installed by Tenant must be clearly tagged at the distributing boards and junction boxes and elsewhere where required by Landlord.

 

10. Tenant shall not place weights anywhere beyond the safe carrying capacity of the Building.

 

11. The use of rooms as sleeping quarters is strictly prohibited at all times.

 

12. Landlord will not be responsible for lost or stolen personal property, equipment, money or jewelry from Tenant’s area or public rooms regardless of whether or not such loss occurred when the area is locked from entry.

 

 

 

 E-1 

 

 

13. Tenant shall have the right, at Tenant’s sole risk and responsibility, to use only Tenant Exclusive Parking Area. Tenant shall comply with all reasonable parking regulations promulgated by Landlord from time to time for the orderly use of the vehicle parking areas. Parked vehicles shall not be used for vending or any other business or other activity while parked in the parking areas. Vehicles shall be parked only in striped parking spaces, except for loading and unloading, which shall occur solely in zones marked for such purpose, and be so conducted as to not unreasonably interfere with traffic flow within the property or with loading and unloading areas of other tenants. Tenant may not operate any recreational vehicles around the Project. Tractor trailers shall be parked in areas designated for tractor trailer parking. Employee and tenant vehicles shall not be parked in spaces marked for visitor parking or other specific use. All vehicles entering or parking in the parking areas shall do so at owner’s sole risk and Landlord assumes no responsibility for any damage, destruction, vandalism or theft. Tenant shall reasonably cooperate with Landlord in any reasonable measures implemented by Landlord to control abuse of the parking areas, including without limitation access control programs, tenant and guest vehicle identification programs, and validated parking programs, provided that no such validated parking program shall result in Tenant being charged for spaces to which it has a right to free use under its Lease. Each vehicle owner shall promptly respond to any sounding vehicle alarm or horn, and failure to do so may result in temporary or permanent exclusion of such vehicle from the parking areas. Any vehicle which violates the parking regulations may be cited, towed at the expense of the owner, temporarily or permanently excluded from the parking areas, or subject to other lawful consequence. All vehicles shall follow Landlord’s designated points of entrance and exit and turn-arounds and circulation routes for the property.

 

14. Tenant may not repair any vehicle inside or outside the Premises.

 

15. No vehicular washing of any type will take place in the Premises including the truck apron and parking areas.

 

16. Pest control in the Premises is a Tenant expense.

 

17. Tenant and its employees, contractors and invitees shall not smoke in the Building nor at the Building entrances and exits or in any other areas around the Building designated by Landlord as non-smoking areas.

 

18. Except as expressly permitted pursuant to the terms of the Lease, no item, including, but not limited to, vehicles, trailers, temporary structures, supplies or equipment, shall be stored outside the Premises within the Project without the express permission of the Landlord.

 

19. For purpose of good housekeeping, safety and cleanliness of the area outside the Premises and of the Common Areas, Tenant must keep all refuse and debris in containers. If Tenant fails in this respect, Landlord may give written notification to Tenant to clean up such refuse and debris. If Tenant does not remedy the situation within forty-eight (48) hours from receipt of such notification, Landlord retains the right to clean up the area and bill Tenant for such work.

 

20. Tenant shall keep and maintain Tenant’s dumpster clean and painted with lids and doors in good working order and, at Landlord’s request, locked. Landlord may screen, as an Operating Expense, the dumpster area.

 

21. Tenant shall provide Landlord with a written identification of any vendors engaged by Tenant to perform services for Tenant at the Premises (examples: cleaners, security guards/monitors, trash haulers, telecommunications installers/maintenance).

 

22. Tenant will furnish and maintain an adequate number of fire extinguishers in good operating condition as may be required by local, state and federal laws, ordinances, regulations and codes.

 

23. A person other than law enforcement who is licensed to carry a handgun may not enter the Project with a firearm that is carried openly.

 

24. Tenant shall provide, within ten (10) days after Landlord’s request from time to time, reasonably requested energy and water consumption data and related information in connection with Tenant’s use of the Premises performed by or on behalf of Tenant – all to be used for purposes of monitoring and improving building efficiencies.

 

 

 

 E-2 

 

 

25. The following items must be recycled according to the extent required by Governmental Regulations: (i) Paper; (ii) Cardboard, (iii) Plastics, (iv) Aluminum Cans/Metals; and (v) Glass. Landlord reserves the right to refuse to collect or accept from Tenant any trash that is not separated and sorted as required by Governmental Requirements. Tenant shall pay all costs, expenses, fines, penalties or damages that may be imposed on Landlord or Tenant by reason of Tenant’s failure to comply with the provisions of this paragraph.

 

26. With respect to heating, ventilation and cooling installed following the Lease Date, (i) Tenant shall be required to install equipment that meets or exceeds the minimum performance criteria of the ASHRAE Standard 90.1-2010, Energy Efficient Building Design and Construction, or applicable building code, whichever is more stringent; (ii) Tenant shall be required to install equipment that meets or exceeds the minimum performance criteria of the ASHRAE Standard 62.1-2010, Ventilation for Acceptable Indoor Air Quality, or applicable building code, whichever is more stringent; and (iii) any new rooftop unit (“RTU”) that services the Premises must meet the DOE Better Buildings Allowance High-Efficiency RTU Specifications.

 

27. Tenant shall be required to install mechanical ventilation equipment with zero use of chlorofluorocarbon (CFC)-based refrigerants.

 

28. Tenant shall cause all of its employees, agents and contractors to comply with these rules and regulations.

 

29. Landlord reserves the right to rescind, suspend or modify any rules or regulations and to make such other rules and regulations as, in Landlord’s reasonable judgment, may from time to time be needed for the safety, care, maintenance, operation and cleanliness of the property, provided that, (i) the such other rules and regulations shall be commercially reasonable, non-arbitrary, and comparable to those for industrial parks in the Houston, Texas metropolitan area, (ii) such other rules and regulations will not be construed to modify or amend, in whole or in part, the terms, covenants, agreements and conditions of this Lease, (iv) such other rules and regulations shall not impose any additional material monetary obligations on Tenant not contained in this Lease, and (v) in the event that such other rules and regulations differs from the terms of this Lease, the terms of this Lease shall be controlling. Notice of any action by Landlord referred to in this section, given to Tenant, shall have the same force and effect as if originally made a part of the foregoing Lease. New rules or regulations will not, however, be unreasonably inconsistent with the proper and rightful enjoyment of the Premises by Tenant under the Lease.

 

30. These rules and regulations are not intended to give Tenant any rights or claims in the event that Landlord does not enforce any of them against any other tenants or if Landlord does not have the right to enforce them against any other tenants and such non-enforcement will not constitute a waiver as to Tenant.

 

 

 

 

 

 

 

 

 E-3 

 

 

EXHIBIT “F”

 

BROOM CLEAN CONDITION AND REPAIR REQUIREMENTS

 

·All lighting must be in good working order with replacement of bulbs, ballasts, and lenses as needed.

 

·All truck doors and dock levelers must be serviced and in good operating order, including overhead door springs, rollers, tracks and motorized door operator. Replace dented truck door panels, broken panels and cracked lumber, adjust door tension to insure proper operation, and paint replacement doors to match the Building standard.

 

·Any damage to structural steel columns in the warehouse and office must be repaired.

 

·All HVAC systems must be in good working order and well maintained, including the replacement of any necessary parts or the system. This includes, filters, thermostats, warehouse heaters and exhaust fans. Upon move-out, Landlord will inspect the condition of the HVAC systems with a certified mechanical contractor. Notwithstanding the foregoing, in no event shall Tenant be required to replace HVAC systems upon the expiration or termination of this Lease, provided that there are HVAC systems serving the Premises that are in good working order and providing, in the aggregate, similar tonnage of cooling capacity as the HVAC systems serving the Premises as of the Lease Date.

 

·All portions of the Premises must be clean, and free of excessive dust, dirt, grease, oil and stains. This includes all flooring (including all carpets and vinyl tiles), all fixtures, the coffee bar, restroom areas, windows and walls. All holes or chips in the walls must be repaired. The walls must be in paintable condition.

 

·The floor/slab shall be in good condition and repair. Cracks in concrete and asphalt shall be acceptable if they are ordinary wear and tear, and are not the result of misuse. There must be no protrusion of anchors from the warehouse floor and all holes must be patched.

 

·All windows with cracks or breakage must be replaced.

 

·Tenant must provide keys for all locks on the Premises, including front doors, rear doors, and interior doors.

 

·All mechanical and electrical systems must be left in a safe condition that conforms to code. All low voltage wiring must be removed from the Premises and any damage caused by that removal repaired to Landlord’s reasonable satisfaction. Wires and installations will be corrected to Landlord’s reasonable satisfaction. If machinery/equipment is removed, the electrical lines must be properly terminated at the nearest junction box.

 

·All plumbing fixtures must be in good working order and not leak, including, the water heater, faucets and toilets.

 

·All Dock bumpers will be left in place and well-secured.

 

·Drop grid ceiling must be free of excessive dust. No ceiling tiles may be missing or damaged.

 

·All of Tenant’s trash must be removed from both inside and outside of the Building.

 

·All of Tenant’s signs in front of the Building and on exterior or interior doors must be removed.

 

 

 

 F-1 

 

 

EXHIBIT “G”

 

PERMITTED HAZARDOUS MATERIALS

 

 

 

 

 

 

 

 

 

 

 

 

 

 

 

 

 

 

 

 

 

 

 

 

 

 G-1 

 

 

EXHIBIT “H”

 

RESTRICTIVE COVENANTS

 

 

 

 

 

 

 

 

 

 

 

 

 

 

 

 

 

 

 

 

 

 

 

 

 

 

 H-1