EX-96.1 7 ex_744109.htm EXHIBIT 96.1 HTML Editor

Exhibit 96.1

 

ueccover.jpg

 

 

 

ueclogo1.jpg

 

S-K 1300 INITIAL ASSESSMENT REPORT – ROUGHRIDER URANIUM PROJECT

REPORT DATE: NOVEMBER 5, 2024

 

TABLE OF CONTENTS


 

1.0 Executive Summary

1-1

1.1 Property Description

1-1

1.2 Geology and Mineralization

1-1

1.3 Status of Exploration and Development

1-1

1.4 Mineral Processing and Metallurgical Testing

1-2

1.5 Mineral Resource Estimate

1-2

1.6 Mining Methods

1-3

1.7 Processing and Recovery Methods

1-3

1.8 Project Infrastructure

1-4

1.9 Environmental, Permitting and Social License

1-4

1.10 Capital and Operating Costs

1-4

1.11 Economic Analysis

1-5

1.12 Conclusions and Recommendations

1-6
   

2.0 Introduction

2-1

2.1 Background

2-1

2.2 Registrant for Whom the Technical Report Summary was Prepared

2-1

2.3 Terms of Reference and Purpose of the Report

2-1

2.4 Source of Information and Data

2-1

2.5 Qualified Persons

2-2

2.6 Details of Personal Inspection

2-3
   

3.0 Property Description

3-1

3.1 Coordinate System

3-1

3.2 Project Location

3-1

3.3 Mineral Lease

3-3

3.4 Mineral Rights

3-4

3.4.1 Mineral Claim and Mineral Lease

3-5

3.4.2 Surface Lease

3-5

3.5 Violations and Fines

3-6

3.6 Royalties or Similar Interest

3-6

3.6.1 Uranium Crown Royalty

3-6

3.6.2 Roughrider Royalty

3-7

3.6.3 Corporation Capital Tax

3-7
   

4.0 Accessibility, Climate, Local Resources, Infrastructure, and Physiography

4-1

4.1 Topography and Elevation

4-1

4.2 Vegetation (and Habitats/Species of Conservation Importance)

4-1

4.3 Property Access

4-3

4.4 Climate and Length of Operating Season

4-3

4.5 Catchments and Water Resources

4-4

4.6 Availability of Infrastructure

4-4
 
ttlogo1.jpg
 
i

 

ueclogo1.jpg

 

S-K 1300 INITIAL ASSESSMENT REPORT – ROUGHRIDER URANIUM PROJECT

REPORT DATE: NOVEMBER 5, 2024

  

5.0 History

5-1

5.1 Pre-Discovery

5-1

5.2 Discovery to Present

5-2

5.3 Historical Production

5-3
   

6.0 Geological Setting, Mineralization, and Deposit

6-1

6.1 Regional Geology

6-1

6.2 Local Geology

6-2

6.2.1 Hearne Subprovince

6-2

6.2.2 Athabasca Group

6-3

6.2.3 Surficial Geology

6-3

6.3 Property Geology

6-3

6.3.1 Structural Geology

6-6

6.3.2 Mineralization

6-7

6.3.3 Alteration

6-11

6.4 Deposit Type

6-12
   

7.0 Exploration

7-1

7.1 Exploration

7-1

7.1.1 2005 GEOTEM and Aeromagnetic Survey

7-1

7.1.2 2006 Logging of Historic Drill Core

7-1

7.1.3 2007 Aeromagnetic Survey

7-1

7.1.4 2007 Tempest and Magnetic Gradiometer Survey

7-1

7.1.5 Ambient Noise Tomography

7-1

7.1.6 Photo-Relogging

7-2

7.2 Exploration Drilling

7-2

7.2.1 Drilling Methodology and Procedures

7-5

7.2.2 Drillhole Surveys

7-6

7.2.3 Geophysical Surveys

7-7

7.2.4 Drill Core Logging

7-7

7.2.5 Drill Core Sampling

7-8

7.2.6 Core Recovery

7-9

7.2.7 Hydrogeologic Characterization

7-12

7.2.8 Geotechnical Characterization

7-15
   

8.0 Sample Preparation, Analyses, and Security

8-1

8.1 Drill Core Preparation and Analysis

8-1

8.2 Specific Gravity Sample Preparation and Analysis

8-3

8.3 PIMA Sample Preparation and Analysis

8-3

8.4 Quality Assurance and Quality Control

8-3

8.4.1 Blanks

8-3

8.4.2 Duplicates

8-4

8.4.3 Certified Reference Materials (CRM)

8-7

8.4.4 SRC Internal QAQC Report

8-12

8.4.5 External Duplicates (Umpires)

8-13

 

ttlogo1.jpg

 

ii

 

ueclogo1.jpg

 

S-K 1300 INITIAL ASSESSMENT REPORT – ROUGHRIDER URANIUM PROJECT

REPORT DATE: NOVEMBER 5, 2024

  

8.4.6 Density Samples

8-16

8.4.7 Umpire Density Samples

8-18

8.5 Sample Security

8-19

8.6 QP Opinion of the Adequacy of Sample Preparation, Security and Analytical Procedures

8-19
   

9.0 Data Verification

9-1

9.1 Site Visit

9-1

9.2 Core and Collar Review

9-1

9.3 Database Validation

9-4

9.4 Review of UEC QA/QC

9-5

9.5 Limitations

9-5

9.6 Qualified Person’s Opinion

9-5
   

10.0 Mineral Processing and Metallurgical Testing

10-1

10.1 Metallurgical Test Work Program

10-1

10.2 SGS Canada Phase 1 Test Work (2008 – 2009)

10-1

10.2.1 Test Program

10-1

10.2.2 Phase 1 Test Results

10-3

10.3 SGS Canada Phase 2 Test Work (2009 – 2010)

10-5

10.3.1 Test Program

10-5

10.3.2 Phase 2 Test Results

10-5

10.4 SGS Canada Phase 3 Test Work (2010 – 2011)

10-8

10.4.1 Test Program

10-8

10.4.2 Phase 3 Test Results

10-8

10.5 SGS Canada Phase 4 Test Work (2011 – 2012)

10-12

10.5.1 Test Program

10-12

10.5.2 Phase 4 Test Results

10-12

10.6 SRC Phase 5 Test Work (2013)

10-14

10.6.1 Phase 5 Test Results

10-14

10.7 Summary

10-16

10.8 QP Opinion

10-16
   

11.0 Mineral Resource Estimates

11-1

11.1 Introduction

11-1

11.2 Source Database

11-1

11.2.1 Drillholes

11-2

11.3 Geologic Domaining

11-3

11.3.1 Lithology Model

11-3

11.3.2 Structural Model

11-4

11.3.3 Mineralization Model

11-4

11.3.4 Boundary Analysis

11-7

11.4 Density and Missing Values

11-11

11.5 Probe Grade Conversion

11-12

11.6 Compositing and Statistical Analysis

11-13

11.6.1 Compositing

11-13

 

ttlogo1.jpg

 

iii

 

ueclogo1.jpg

 

S-K 1300 INITIAL ASSESSMENT REPORT – ROUGHRIDER URANIUM PROJECT

REPORT DATE: NOVEMBER 5, 2024

  

11.6.2 Declustering

11-13

11.6.3 Outlier Capping and Restrictions

11-13

11.6.4 Representative Distributions

11-16

11.7 Variography

11-17

11.8 Block Model Estimation

11-23

11.8.1 Estimation Overview

11-23

11.8.2 Block Model Definition

11-23

11.8.3 Interpolation Methods

11-24

11.9 Model Validation

11-29

11.9.1 Global Bias

11-29

11.9.2 Histogram

11-30

11.9.3 Visual Inspection

11-31

11.9.4 Swath Plots

11-33

11.10 Mineral Resource Classification

11-35

11.11 Cut-off Grade and Reasonable Prospects of Economic Extraction

11-40

11.12 Mineral Resource Statement

11-40

11.13 Mineral Resource Uncertainty

11-41

11.13.1 Specific Identified Risks

11-41

11.13.2 Generic Mineral Resource Uncertainty

11-42

11.14 Mineral Resource Sensitivity

11-42

11.15 Audit Findings

11-44

11.16 Recommendations

11-45

11.17 QP Opinion

11-46
   

12.0 Mineral Reserve Estimates

12-1
   

13.0 Mining Methods

13-1

13.1 Geotechnical and Hydrological Information

13-1

13.1.1 Geotechnical

13-1

13.1.2 Hydrogeological

13-3

13.2 Mining Methods

13-3

13.2.1 Mining Blocks

13-3

13.2.2 Mine Access

13-4

13.2.3 Lateral Development

13-5

13.2.4 Cross-Cuts

13-5

13.2.5 Ventilation Shaft

13-5

13.2.6 Backfill

13-6

13.2.7 Stoping

13-6

13.2.8 Ground Support

13-6

13.2.9 Ground Freezing

13-7

13.3 Cut-off

13-8

13.4 Mine Layout

13-10

13.4.1 Stope Shape Design

13-10

13.4.2 Dilution

13-11

13.4.3 Mining Recovery

13-11

 

ttlogo1.jpg

 

iv

 

ueclogo1.jpg

 

S-K 1300 INITIAL ASSESSMENT REPORT – ROUGHRIDER URANIUM PROJECT

REPORT DATE: NOVEMBER 5, 2024

  

13.5 Mining Equipment

13-11

13.6 Fixed Mining Equipment

13-12

13.6.1 Fans

13-12

13.6.2 Heating

13-12

13.6.3 Electrical Distribution

13-13

13.6.4 Grade Control

13-13

13.6.5 Refuge System

13-13

13.7 Mining Labour

13-13

13.8 Ventilation

13-13

13.8.1 Airflow Assumptions

13-13

13.8.2 Airflow Velocities

13-14

13.9 Secondary Egress

13-14

13.10 Mine Schedule

13-14

13.10.1 Production Cycle

13-14

13.10.2 Production Rates

13-15

13.10.3 Mining Sequence

13-17

13.10.4 Development Schedule

13-17

13.10.5 Production Schedule

13-19

13.11 Indicated Category Only

13-22

13.12 Potential Mill Feed

13-22
   

14.0 Processing and Recovery Methods

14-1

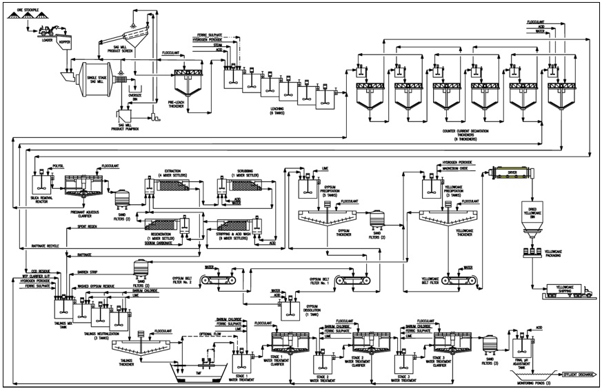
14.1 Flowsheet Development

14-1

14.2 Process Description

14-3

14.3 Reagents and Consumables

14-5

14.4 Plant Services

14-7

14.4.1 Water Supply and Distribution

14-7

14.4.2 Air Supply and Distribution

14-7

14.4.3 Instrumentation and Process Control

14-7

14.4.4 Quality Control

14-7

14.5 Annual Production Estimate

14-7

14.6 Staffing

14-8

14.7 QP Opinion

14-8
   

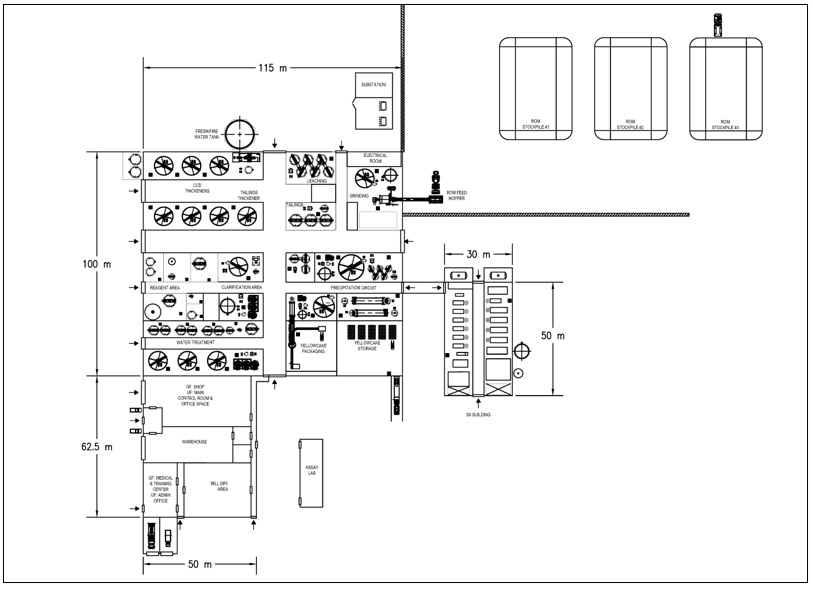
15.0 Project Infrastructure

15-1

15.1 External and Internal Site Access Roads

15-1

15.2 Underground Mine and Surface Support Infrastructure

15-1

15.3 Processing Plant Infrastructure

15-3

15.4 Water Treatment Plant

15-5

15.5 Site Ancillary Infrastructure

15-5

15.5.1 Truck Shop Complex

15-5

15.5.2 Permanent Accommodation Camp

15-5

15.5.3 Administration Building and Mill Dry

15-5

15.5.4 Assay and Metallurgical Laboratory

15-5

15.5.5 Warehouse & Cold Storage

15-6

 

ttlogo1.jpg

 

v

 

ueclogo1.jpg

 

S-K 1300 INITIAL ASSESSMENT REPORT – ROUGHRIDER URANIUM PROJECT

REPORT DATE: NOVEMBER 5, 2024

  

15.5.6 Power Supply and Distribution

15-6

15.5.7 Fuel Storage and Dispensing

15-6

15.5.8 Communication System

15-6

15.5.9 Fresh and Fire Water

15-7

15.5.10 Waste Disposal

15-7

15.6 Waste Rock Management Facility

15-7

15.7 Tailings Management Facility

15-7

15.7.1 Design Criteria

15-7

15.7.2 Design and Construction Concept

15-8

15.7.3 Operation and Closure

15-8
   

16.0 Market Studies

16-1

16.1 Markets

16-1

16.1.1 Uranium Market Demand

16-1

16.1.2 Uranium Market Supply

16-1

16.1.3 Market Prices

16-2

16.1.4 Contracts

16-2
   

17.0 Environmental Studies, Permitting, and Plans, Negotiations, or Agreements with Local Individuals or Groups

17-1

17.1 Environmental Considerations

17-1

17.1.1 Baseline Studies

17-2

17.1.2 Environmental Risks and Opportunities

17-3

17.2 Social (Including Labour) Considerations

17-5

17.3 Governance Considerations

17-7

17.4 Current and Future Permitting Requirements

17-8

17.4.1 Provincial EIA and Permitting

17-8

17.4.2 Federal Impact Assessment and Licensing

17-9

17.4.3 Decommissioning

17-10

17.4.4 Indigenous Engagement

17-11

17.4.5 Summary

17-12

17.5 Other Significant Factors or Risks

17-13

17.6 QP Opinion

17-14
   

18.0 Capital and Operating Costs

18-1

18.1 Capital Costs

18-1

18.1.1 Initial Capital Costs

18-2

18.1.2 Sustaining Capital Cost

18-3

18.1.3 Capital Cost Exclusions

18-4

18.2 Operating Costs

18-5

18.2.1 Mining Operating Cost

18-5

18.2.2 Processing Operating Cost

18-6

18.2.3 G&A and Site Services Cost

18-7
   

19.0 Economic Analysis

19-1

19.1 Forward-looking Statements

19-1

 

ttlogo1.jpg
 
vi

 

ueclogo1.jpg

 

S-K 1300 INITIAL ASSESSMENT REPORT – ROUGHRIDER URANIUM PROJECT

REPORT DATE: NOVEMBER 5, 2024

  

19.2 Assumptions and Inputs

19-2

19.2.1 General

19-2

19.2.2 Metal Pricing

19-2

19.2.3 Production

19-2

19.2.4 Working Capital

19-2

19.2.5 Taxes, Provincial Royalties, and Depreciation

19-3

19.3 Economic Analysis Results

19-3

19.3.1 Sensitivity Analysis

19-8
   

20.0 Adjacent Properties

20-1
   

21.0 Other Relevant Data and Information

21-1
   

22.0 Interpretation and Conclusions

22-1

22.1 Geology and Mineral Resources

22-1

22.2 Metallurgy and Process

22-1

22.3 Mining Methods

22-2

22.4 Infrastructure

22-2

22.5 Environmental

22-2

22.6 Capital and Operating Costs

22-2

22.7 Economic Analysis

22-3

22.8 Risks and Uncertainties

22-3
   

23.0 Recommendations

23-1

23.1 Introduction

23-1

23.1.1 Mineral Resource Estimate

23-1

23.1.2 Mining

23-2

23.1.3 Metallurgy and Processing

23-3

23.1.4 Infrastructure

23-4

23.1.5 Environmental

23-4

23.1.6 Tailings Management Facility

23-4

23.2 Cost Estimate for Recommendations

23-5
   

24.0 References

24-1
   

25.0 Reliance on Information Provided by the Registrant

25-1
   

26.0 Date and Signature Pages

26-1
   

27.0 Glossary

27-1
   

Appendix A

1

List of Potential, Permits, Approvals, and Authorizations

2

 

ttlogo1.jpg

 

vii

 

 

ueclogo1.jpg

 

S-K 1300 INITIAL ASSESSMENT REPORT – ROUGHRIDER URANIUM PROJECT

REPORT DATE: NOVEMBER 5, 2024

  

LIST OF FIGURES


 

Figure 3‑1: Project Location in Saskatchewan (SRK, 2023)

3-2

Figure 3‑2: Project Location (SRK, 2023)

3-3

Figure 4‑1: Plan View of the Project Topography (SRK, 2023)

4-1

Figure 4‑2: Habitat Areas as defined in ADEX (BARR, 2013)

4-3

Figure 6‑1: Geological Sketch Map of Athabasca Basin

6-2

Figure 6‑2: Stratigraphic Column of the Property Geology (UEC, 2024)

6-5

Figure 6‑3: Long Section of the Geological Model (SRK, 2023)

6-6

Figure 6‑4: Macro-scale Lineaments on First Vertical Derivative Ground Magnetics Image (SRK, 2023)

6-7

Figure 6‑5: Uranium Mineralized Drill Core from MWNE-085 from 252.2 m to 258.1 m (SRK, 2023)

6-8

Figure 6‑6: Plan View of the Project Uranium Deposits (SRK, 2023)

6-9

Figure 6‑7: Cross Section W-W’ through the RRW Deposit (SRK, 2023)

6-9

Figure 6‑8: Cross Section E-E’ through the RRE Deposit (SRK, 2023)

6-10

Figure 6‑9: Cross Section FE-FE’ through the RRFE Deposit (SRK, 2023)

6-11

Figure 7‑1: Plan View of the Project Drillhole Collars by Company (UEC, 2024)

7-4

Figure 7‑2: Drilling operations at the Project (SRK, 2023)

7-6

Figure 7‑3: Recovery vs. U3O8% Grade within Modelled Mineralization (SRK, 2023)

7-10

Figure 7‑4: Cross Section of RRW Modelled Mineralization (SRK, 2023)

7-11

Figure 7‑5: Contact Analysis Plot of Recovery vs. Distance from the Unconformity (SRK, 2023)

7-12

Figure 7‑6: Plan View and Long Section Looking North of Hydrogeological Holes (SRK, 2023)

7-13

Figure 7‑7: Interval Logging Data Availability in Each Deposit Area Below the Unconformity (SRK, 2023)

7-19

Figure 7‑8: Distribution of Logged Structures (SRK, 2023)

7-20

Figure 7‑9: Distribution of Mineral Infill in Logged Structures (SRK, 2023)

7-21

Figure 7‑10: Distribution of Logging IRS Strength Estimate and Locations of PLT Tests (SRK, 2023)

7-22

Figure 8‑1: Blank Sample Results for Fluorimetry (AQRFLR) and ICP-OES (SCUIOS) at SRC (SRK, 2023)

8-4

Figure 8‑2: Field Duplicate Sample Results for Fluorimetry (AQRFLR - U3O8%) (SRK, 2023)

8-5

Figure 8‑3: Coarse Reject Duplicate Sample Results for Fluorimetry (AQRFLR -U3O8 %) (SRK, 2023)

8-6

Figure 8‑4: Pulp Duplicate Sample Results for ICP-OES (SRUIOS - U3O8%) (SRK, 2023)

8-7

Figure 8‑5: CRM Plot for STD-BL5 Analyzed at SRC (SRK, 2023)

8-9

Figure 8‑6: CRM Plot for STD-SRCU02 Analyzed at SRC (SRK, 2023)

8-10

Figure 8‑7: CRM Plot for STD-BL4A Analyzed at SRC (SRK, 2023)

8-11

Figure 8‑8: SRC Internal BL5 CRM Performance (Hathor samples 2007 to 2011) (SRK, 2023)

8-13

Figure 8‑9: External Duplicate Sample Results for U3O8% (SRC vs SGS) (SRK, 2023)

8-14

Figure 8‑10: External Duplicate Sample Results for DNC vs U3O8% (SRC vs SGS) (SRK, 2023)

8-15

Figure 8‑11: Standard 01 Density CRM plot (SRK, 2023)

8-17

Figure 8‑12: External Duplicate Density Sample Results (Hathor vs SRC) (SRK, 2023)

8-18

Figure 9‑1: Core Review at Roughrider (UMR, 2024)

9-2

Figure 9‑2: Confirmation of Mineralization via a SPP2 Scintillometer (UMR, 2024)

9-3

Figure 9‑3: Drill Collar MWNE-11-682 (UMR, 2024)

9-4

Figure 10‑1: Extraction Isotherm for Aqueous and Organic using Strong Acid and Ammonia Strip

10-11

Figure 11‑1: Cross Section looking North at the Project Lithological Model and Drillholes Coloured by Logged Lithology (UMR, 2024)

11-3
Figure 11‑2: Long Section looking North of the Modelled RRW, RRE, and RRFE Zones (SRK, 2023) 11-5

 

ttlogo1.jpg

 

viii

 

ueclogo1.jpg

 

S-K 1300 INITIAL ASSESSMENT REPORT – ROUGHRIDER URANIUM PROJECT

REPORT DATE: NOVEMBER 5, 2024

  

Figure 11‑3: Oblique View of RRW Mineralization Model Underlain by Drill Hole Traces Looking at Plunge of 50° Along an Azimuth of 354°

11-5

Figure 11‑4: Oblique View of RRE Mineralization Model Underlain by Drill Hole Traces Looking at Plunge of 40° along an Azimuth of 355°

11-6

Figure 11‑5: Oblique View of the RRFE Mineralization Model Underlain by Drill Hole Traces Looking at Plunge of +45° along an Azimuth of 000°

11-6

Figure 11‑6: Contact Analysis between Layer-Parallel Veins and Northeast Striking Veins of RRW Zone

11-8

Figure 11‑7: Contact Analysis between the Combined Vein Domains and Surrounding Low-Grade Domain of RRW Zone

11-9

Figure 11‑8: Oblique View (Azimuth of 336°, Plunge of +47°) of Intersecting Domains High-Grade Layering 7 and High-Grade NE Overlain by Primary Search Ellipse of the High-Grade Layering 7 Domain and the Associated Restricted Soft Boundary Search (SRK, 2023)

11-10

Figure 11‑9: Measured Density versus U3O8 % Grade; Samples colored by Clay Alteration Intensity

11-11

Figure 11‑10: Measured Specific Gravity versus U3O8 % grade, with samples colored by Low and High Clay Alteration Groupings.

11-12

Figure 11‑11: Probability and Histogram Plots of U3O8 % in RRW High-Grade Layering Group (UMR, 2024)

11-14

Figure 11‑12: Probability and Histogram Plots of U3O8 % in RRW High-Grade NE Group (UMR, 2024)

11-14

Figure 11‑13: Probability and Histogram Plots of U3O8 % in RRW Low-Grade Group (UMR, 2024)

11-15

Figure 11‑14: Experimental and Modelled Variograms for High-Grade Layering in RRW (1100)

11-18

Figure 11‑15: Experimental and Modelled Variograms for High-Grade NE in RRW (1200)

11-19

Figure 11‑16: Experimental and Modelled Variograms for Low-Grade in RRW (1400)

11-20

Figure 11‑17: Diagram Demonstrating the Change of Support Principle

11-30

Figure 11‑18: Quantile-Quantile Plot of DGM Comparison to Blocks (UMR, 2024)

11-31

Figure 11‑19: Cross-Section of RRW Estimated Block Grades Underlain by Composite Grades Looking Northeast (UMR, 2024)

11-32

Figure 11‑20: Cross-Section of RRFE Estimated Block Grades Underlain by Composite Grades Looking Northeast (UMR, 2024)

11-33

Figure 11‑21: Swath Plot of % U3O8 Composites and Block Model for RRW High-Grade Layering (1100) Domain in the X, Y, Z Directions (UMR, 2024)

11-34

Figure 11‑22: Swath Plot of % U3O8 Composites and Block Model for RRW High-Grade NE (1200) Domain in the X, Y, Z Directions (UMR, 2024)

11-34

Figure 11‑23: Swath Plot of % U3O8 Composites and Block Model for RRW Low-Grade (1400) Domain in the X, Y, Z Directions (UMR, 2024)

11-35

Figure 11‑24: Long Section Looking North of In-Situ Classification of RRW, RRE, and RRFE Zones (UMR, 2024)

11-36

Figure 11‑25: Cross Section Looking East of the Classification of the RRW Zone, Underlain by Drillhole Traces (UMR, 2024)

11-37

Figure 11‑26: Cross Section Looking East of the Classification of the RRFE Zone, Underlain by Drillhole Traces (UMR, 2024)

11-38

Figure 11‑27: Cross Section Looking East-northeast of the In-situ Classification of the RRW Zone Transferred to the Stope Classification (UMR, 2024)

11-39

Figure 11‑28: Long Section Looking North of Classified Stopes for RRW, RRE, and RRFE (UMR, 2024)

11-39

Figure 11‑29: Diluted Block Model Grade Tonnage Curves for Indicated Mineral Resources (UMR, 2024)

11-43
Figure 11‑30: Diluted Block Model Grade Tonnage Curves for Inferred Mineral Resources (UMR, 2024) 11-44
 
ttlogo1.jpg
 
ix

 

ueclogo1.jpg

 

S-K 1300 INITIAL ASSESSMENT REPORT – ROUGHRIDER URANIUM PROJECT

REPORT DATE: NOVEMBER 5, 2024

  

Figure 13‑1: Section showing Shaft Geotechnical Data (Golder, 2014)

13-1

Figure 13‑2: Exploration Level Geotechnical Data

13-2

Figure 13‑3: Plan view of Roughrider Uranium Deposits (Snowden, 2024)

13-4

Figure 13‑4: Cross Section of Main Decline (Snowden, 2024)

13-5

Figure 13‑5: NGI Empirical Rock Mass Support Chart (Norwegian Geotechnical Institute, 2022)

13-7

Figure 13‑6: Conceptual Isometric View of Freeze Wells Surrounding Mineralized Material Zones (Snowden, 2024)

13-8

Figure 13‑7: Grade-tonnage Curve of Indicated and Inferred Material within Block Model (Snowden, 2024)

13-10

Figure 13‑8: Mining Order (Snowden, 2024)

13-15

Figure 13‑9: Mining Sequence (Isometric View) (Snowden, 2024)

13-17

Figure 13‑10: Lateral Development by Period (COG 0.3% U3O8) (Snowden, 2024)

13-18

Figure 13‑11: Vertical Development by Period (COG 0.3% U3O8) (Snowden, 2024)

13-18

Figure 13‑12: Stope Production (COG 0.3% U3O8) (Snowden, 2024)

13-19

Figure 13‑13: Overall Production Schedule (COG 0.30% U3O8) (Snowden, 2024)

13-20

Figure 13‑14: Overall Production Schedule (COG 0.40% U3O8) (Snowden, 2024)

13-20

Figure 13‑15: Overall Production Schedule (COG 0.45% U3O8) (Snowden, 2024)

13-21

Figure 13‑16: Overall Production Schedule (COG 0.50% U3O8) (Snowden, 2024)

13-21

Figure 13‑17: Production Schedule excluding Inferred Category (COG 0.40% U3O8) (Snowden, 2024)

13-22

Figure 14‑1: Simplified Process Flowsheet (Tetra Tech, 2024)

14-2

Figure 15‑1: Overall Site General Arrangement (Tetra Tech, 2024)

15-2

Figure 15‑2: Preliminary Process Plant General Arrangement (Tetra Tech, 2024)

15-4

Figure 17‑1: Known Heritage Sites near the Project site (BARR, 2013)

17-14

Figure 19‑1: Post-Tax Annual and Cumulative Cash Flow (with Inferred Resources) (Tetra Tech, 2024)

19-4

Figure 19‑2: Post-Tax Annual and Cumulative Cash Flow (without Inferred Resources) (Tetra Tech, 2024)

19-5

Figure 19‑3: Sensitivity Analysis of Post-Tax NPV (with Inferred Resources) (Tetra Tech, 2024)

19-8

Figure 19‑4: Sensitivity Analysis of Post-Tax IRR (with Inferred Resources) (Tetra Tech, 2024)

19-8

Figure 19‑5: Sensitivity Analysis of Post-Tax NPV (without Inferred Resources) (Tetra Tech, 2024)

19-9

Figure 19‑6: Sensitivity Analysis of Post-Tax IRR (without Inferred Resources) (Tetra Tech, 2024)

19-9

Figure 20‑1: Plan View of the Roughrider Deposit Area of the Eastern Athabasca (SRK, 2023)

20-1

 

ttlogo1.jpg

 

x

 

ueclogo1.jpg

 

S-K 1300 INITIAL ASSESSMENT REPORT – ROUGHRIDER URANIUM PROJECT

REPORT DATE: NOVEMBER 5, 2024

  

LIST OF TABLES


 

Table 1‑1: Mineral Resource Statement for the Project (as of November 5, 2024)

1-3

Table 1‑2: Capital Cost Summary

1-5

Table 1‑3: Operating Cost Summary

1-5

Table 1‑4: Summary of Economic Analysis Results

1-6

Table 2‑1: Technical Report Sections and Third-Party Firms

2-2

Table 2‑2: Site Visit

2-3

Table 3‑1: ML-5547 Boundary Points

3-4

Table 3‑2: List of Permits (UEC, 2024)

3-5

Table 7‑1: Project Drilling Summary by Year, Company, and Deposit (UEC, 2024)

7-3

Table 7‑2: Key Geotechnical Data Categories Relevant for Rock Quality Classification Rating Systems

7-17

Table 7‑3: Project Geotechnical Data Collection Sources (SRK, 2023)

7-18

Table 8‑1: Project U3O8% and U ppm CRMS (SRK, 2023)

8-8

Table 8‑2: Project Density CRMs (SRK, 2023)

8-16

Table 9‑1: Reviewed Drill Core by Zone

9-1

Table 10‑1: Simplified Test Procedures used in Phase 1 of the Test Program (SGS, 2011)

10-2

Table 10‑2: Multi-Element Analysis Results for the Three Composite Samples

10-3

Table 10‑3: Leaching Test Results for the Three Composite Samples

10-4

Table 10‑4: Multi-Element Analysis Results for the Phase 2 Composite Samples

10-5

Table 10‑5: Comminution Characterization Test Results for the Phase 2 Composite Samples

10-6

Table 10‑6: Leaching Test Results for the Three Composite Samples

10-7

Table 10‑7: Multi-Element Analysis Results for the Phase 3 Composite Samples

10-9

Table 10‑8: Bond Ball Mill Work Index for the Phase 3 Composite Samples

10-9

Table 10‑9: Leaching Test Results for the Phase 3 Composite Samples

10-10

Table 10‑10: Multi-Element Analysis Results for the Phase 4 Composite Samples

10-12

Table 10‑11: Comminution Test Results for the Phase 4 Mineralized Composite Samples

10-13

Table 10‑12: Comminution Test Results for the Phase 4 Non-Mineralized Composite Samples

10-13

Table 10‑13: Leaching Test Results for the Phase 5 Composite Samples

10-14

Table 10‑14: Multi-Element Analysis Results for the Phase 5 Composite Samples

10-15

Table 10‑15: Comminution Characterization Test Results for the Phase 5 Composite Samples

10-15

Table 10‑16: Leaching Test Results for the Phase 5 Composite Samples

10-16

Table 11‑1: Excluded Drillholes

11-2

Table 11‑2: Final Estimation Domains and Coding by Zone and Mineralization Group

11-7

Table 11‑3: Boundary Conditions for the RRW Domains

11-7

Table 11‑4: Boundary Conditions for the RRE Domains

11-8

Table 11‑5: Boundary Conditions for the RRFE Domains

11-8

Table 11‑6: Soft Boundary Search Parameters (Recreated from SRK, 2023)

11-10

Table 11‑7: High-Grade Threshold Restrictions by Domain

11-16

Table 11‑8: Summary Composite Statistics of U3O8 by Domain (Recreated from SRK, 2023)

11-17

Table 11‑9: Summary of Variogram Models for RRW

11-21

Table 11‑10: Summary of Variogram Models for RRE

11-22

Table 11‑11: Summary of Variogram Models for RRFE

11-23
Table 11‑12: Block Model Definition 11-24

 

ttlogo1.jpg

 

xi

 

ueclogo1.jpg

 

S-K 1300 INITIAL ASSESSMENT REPORT – ROUGHRIDER URANIUM PROJECT

REPORT DATE: NOVEMBER 5, 2024

  

Table 11‑13: Estimation Parameter Summary

11-25

Table 11‑14: Declustered Composite Mean versus Block Mean

11-29

Table 11‑15: Mineral Resource Statement for the Project (as of November 5, 2024)

11-41

Table 13‑1: Longhole Stope Parameters

13-6

Table 13‑2: MSO Inventories

13-6

Table 13‑3: Cut-off Grade Parameters

13-9

Table 13‑4: MSO Parameters

13-10

Table 13‑5: Mobile Equipment List

13-12

Table 13‑6: Mining Labour Requirements

13-13

Table 13‑7: Airflow Assumptions

13-14

Table 13‑8: Development Rates

13-16

Table 13‑9: Production Rates

13-16

Table 13‑10: Equipment Rates

13-16

Table 13‑11: MSO Inventory Excluding Inferred Category

13-22

Table 13‑12: Potential Mill Feed (COG 0.30% U3O8)

13-23

Table 13‑13: Potential Mill Feed (COG 0.40% U3O8)

13-23

Table 13‑14: Potential Mill Feed (COG 0.45% U3O8)

13-23

Table 13‑15: Potential Mill Feed (COG 0.50% U3O8)

13-23

Table 14‑1: Major Plant Design Criteria

14-1

Table 14‑2: Reagents and Major Consumables Consumption

14-6

Table 14‑3: Projected Yellowcake Production

14-8

Table 14‑4: Plant Staffing Requirements

14-8

Table 18‑1: Capital Cost Summary

18-1

Table 18‑2: Initial Mining Capital Cost Summary

18-2

Table 18‑3: Process Plant Capital Cost Summary

18-3

Table 18‑4: LOM Sustaining Capital Cost Summary

18-4

Table 18‑5: Average LOM Operating Cost Summary

18-5

Table 18‑6: Average Mining Operating Cost Summary

18-6

Table 18‑7: Average Process Operating Cost Summary

18-6

Table 19‑1: LOM Average Production Statistics

19-2

Table 19‑2: Cash Flow Summary

19-4

Table 19‑3: Summary of Pre-Tax Economic Analysis (with Inferred Resources)

19-5

Table 19‑4: Summary of Pre-Tax Economic Analysis (without Inferred Resources)

19-5

Table 19‑5: Summary of LOM Annual Cash Flow (with Inferred Resources)

19-6

Table 19‑6: Summary of LOM Annual Cash Flow (without Inferred Resources)

19-7

Table 23‑1: Cost Estimate for Drilling Recommendations

23-2

Table 23‑2: Cost Estimate for Mining Recommendations

23-3

Table 23‑3: Cost Estimate for Recommendations

23-5

 

ttlogo1.jpg

 

xii

 

 

 

ueclogo1.jpg

 

S-K 1300 INITIAL ASSESSMENT REPORT – ROUGHRIDER URANIUM PROJECT

REPORT DATE: NOVEMBER 5, 2024

  

1.0

EXECUTIVE SUMMARY


 

This Technical Report Summary (“TRS”) was prepared in accordance with the U.S. Securities and Exchange Commission (“SEC”) Regulation S-K Subpart 1300 (“S-K 1300”) and specifically Item 17 Code for Federal Regulations Parts 229, 230, 239 and 249) for Uranium Energy Corporation (“UEC”) by Tetra Tech Canada Inc. (“Tetra Tech”),  Understood Mineral Resources Ltd. (“UMR”), Terracon Geotechnique Ltd. (“Terracon”), Snowden Optiro (“Snowden”) and Clifton Engineering Group Inc. (“Clifton”) on the Roughrider Project (the “Project”).

 

1.1

Property Description


 

The Project is located 7 km north, via gravel road, of Points North Landing, a regional service center on Provincial Highway 905, in the eastern Athabasca basin of northern Saskatchewan, Canada. The Project is an Exploration Stage Property within the 597-hectare mineral lease ML-5547, which is 100% held by UEC. The Project site comprises core logging, office, and storage facilities. The uranium deposits at the Project were discovered in 2008 by Hathor Exploration Limited (“Hathor”) and were subsequently explored and studied in increasing detail until 2016.

 

1.2

Geology and Mineralization


 

The Project is located in the Athabasca Basin, a prolific uranium producing district, and comprises the Roughrider West Zone (“RRW”), the Roughrider East Zone (“RRE”) and Roughrider Far East Zone (“RRFE”) unconformity-related uranium deposits. The deposits occur at, and below, the unconformity between the overlying Athabasca group sandstones and conglomerates, and the Wollaston group orthogneisses. Uranium mineralization is localized by structures, adjacent to, and within graphitic meta-pelites. The mineralization is characterized by uraninite and lesser amounts of uranophane, and red to orange coloured oxy-hydroxillized iron oxides.

 

Uranium mineralization in the Athabasca basin, and the Project, is interpreted to form where oxidized uranium bearing fluids, presumably sourced from the Athabasca group, mix, at or near the unconformity with reduced fluids, or rock masses of the basement, Wollaston group. Uranium is reduced at the redox front where these conditions exist.

 

1.3

Status of Exploration and Development


 

Prospecting, airborne radiometric surveys, and lake sediment sampling for uranium in the Project area began in 1969. As a result of regional exploration work and targeting by various operators, significant uranium mineralization was discovered in 1978 at the Dawn Lake Project (east of the Project) and Midwest Lake (south of the Project). Exploration and drilling efforts around the property concentrated on an east-west trending conductor (indicative of graphitic gneisses of the Wollaston group), although no anomalous mineralization was intersected.

 

In 2006, Hathor acquired mineral lease, ML-5544 (now part of ML-5547). Drilling in 2008 intersected high-grade uranium mineralization, of the RRW deposit. In 2009 and 2011, the RRE and RRFE were discovered respectively. Based on the RRW and RRE deposits only, Hathor completed a Preliminary Economic Assessment (“PEA”) in 2011.

 

ttlogo1.jpg

 

1-1

  

ueclogo1.jpg

 

S-K 1300 INITIAL ASSESSMENT REPORT – ROUGHRIDER URANIUM PROJECT

REPORT DATE: NOVEMBER 5, 2024

  

Hathor was acquired by Rio Tinto Canada Uranium Corp. (“RTCU”) in 2011. RTCU continued to advance the Project through to 2016, completing substantial pre-development and environmental baseline work including dedicated geotechnical drilling, shaft versus decline modelling, the establishment of hydrogeological monitoring wells, terrestrial and aquatic environmental assessments, heritage assessments, species at risk, and a conceptual reclamation plan. In 2013, RTCU submitted an Advanced Exploration Program (“ADEX”) proposal to the Saskatchewan Ministry of Environment that was intended to initiate an Environmental Impact Study (“EIS”) review of the Project. Ministerial approval for RTCU to proceed with the ADEX Program was received on August 20, 2014, from the Saskatchewan Minister of Environment pursuant to Section 15(1)(a) of the Environmental Assessment Act. Although ADEX development by RTCU did not start due to low uranium prices in the subsequent years, the original approval remains in effect.

 

The Project comprises data from 665 drillholes, for a total of 228,185 m, drilled on the property by Hathor and RTCU from 2007 to 2016. On October 17, 2022, UEC completed the acquisition of 100% of the Project from RTCU. On November 1, 2023, UEC commenced an exploration drill program, and as of July 31, 2024, UEC has drilled an additional 29,840 m in 94 holes to further explore on the Property.

 

1.4

Mineral Processing and Metallurgical Testing


 

From 2008 to 2013, SGS Canada carried out four phases of test work on uranium recovery at the Roughrider deposits. The work included extensive metallurgical testing, covering preliminary leaching tests and variability tests. After acquiring the Roughrider prospect, Rio Tinto continued with a fifth phase of tests in 2013. Since UEC acquired the project in 2022, no additional tests have been conducted.

 

A summary of the metallurgical testing results is listed below:

 

The comminution test work showed that Roughrider samples are soft in nature with the average Bond Ball Mill Work Index of 10.6 kWh/t.

 

Agitated tank leach test results showed that Roughrider mineralization is amenable for uranium extraction via atmospheric acid leaching. On average 98.5% of extraction can be achieved within 12-h of leach retention time at 50°C with a grind size of 250 µm. Further, it was found that no significant difference in dissolution and extraction of uranium from the different deposits (RRW, RRE and RRFE).

 

Two different approaches (strong acid strip with uranyl peroxide precipitation and ammonia strip with ammonium diuranate precipitation) were examined for production of final yellowcake product. It was found that organic extraction followed by strong acid strip produced higher quality yellowcake meeting the refinery specifications compared to the ammonium sulfate strip method.

 

Tailings neutralization and effluent treatment test work based on the standard approaches used in the Athabasca region indicated that effluent quality meeting the Metal and Diamond Mining Effluent Regulations (MDMER) guidelines can be achieved.

 

1.5

Mineral Resource Estimate


 

The 2024 Mineral Resource Statement for the Roughrider Project adheres to SEC’s property disclosure regulations, S-K 1300. To meet the requirement of Reasonable Prospects of Eventual Economic Extraction, the Mineral Resource estimate is reported within a constrained mineable shape optimizer (MSO) as informed by a breakeven cut-off grade of 0.30% U3O8. The Mineral Resources are reported diluted, including waste and mineralization below cut-off. The reporting date of this Mineral Resource Statement is November 5, 2024.

 

The Mineral Resource is composed of Indicated and Inferred Mineral Resources (Table 1‑1). No Mineral Reserves have been estimated at the Property.

 

ttlogo1.jpg
 
1-2

  

ueclogo1.jpg

 

S-K 1300 INITIAL ASSESSMENT REPORT – ROUGHRIDER URANIUM PROJECT

REPORT DATE: NOVEMBER 5, 2024

  

Table 11: Mineral Resource Statement for the Project (as of November 5, 2024)

Zone

Classification

Tonnage (kt)

Grade U3O8 (%)

Contained U3O8 Metal (M lb U3O8)

RRW

Indicated

431

1.89

17.97

Inferred

152

2.80

9.39

RRE

Indicated

-

-

-

Inferred

390

2.57

22.05

RRFE

Indicated

268

1.67

9.89

Inferred

78

1.13

1.94

Total

Indicated

699

1.81

27.86

Inferred

620

2.45

33.38

*Notes

 

1.

There are no Mineral Reserves estimated for this Project.

 

2.

Mineral Resource estimate is reported on a 100% ownership basis.

 

3.

Mineral Resource estimate is reported diluted within the underground MSO shapes based on a U3O8 price of US$85/lb and metallurgical recovery of 97.5%. A longhole mining method was assumed with an approximate cut-off of 0.30% U3O8. The MSO shapes were estimated by Snowden, a third-party firm comprising mining experts the definition defined by S-K 1300.

 

4.

The Mineral Resource estimate was prepared by UMR, a third-party comprising mining experts under the definitions defined by S-K 1300.

 

5.

The tonnage is presented in metric tonnes and contained metal is in reported in both metric tonnes and imperial pounds. Estimates have been rounded and may not add up due to significant figure rounding.

 

1.6

Mining Methods


 

This TRS was completed assuming a decline would be suitable to access the deposits. A longhole transverse retreat mining method was assumed for the three mining areas. The mining rate was assumed at 400 t/d with mill feed being hauled to surface stockpiles. Various cut-off grades were assessed from a breakeven of 0.3% U3O8 to 0.5% U3O8. For the Initial economic analysis, a cut-off grade of 0.4% U3O8 was assumed. The initial economic analysis includes Inferred Mineral Resources which by definition of SEC is speculative. Other potential risks might be contributed to the limited ventilation, geotechnical, backfill, and hydrogeological studies on the Project.

 

1.7

Processing and Recovery Methods


 

The processing facility is designed using established methods from other Athabasca basin region operations like Rabbit Lake, Key Lake, and McClean Lake. It will operate at an average throughput of 400 t/d with a life of mine (“LOM”) average mill feed grade of 2.36% U3O8 and a recovery rate of 97.5%. Mineralized material feed from the underground mine will be trucked to the run of mine (“ROM”) pad, ground to 250 µm in a single-stage semi-autogenous grinding (“SAG”) circuit, and leached with sulphuric acid and hydrogen peroxide at 50°C. The pregnant leach solution (“PLS”) will be produced using counter-current decantation (“CCD”) and clarification. Solvent extraction (“SX”) will be used to remove impurities enriching uranium concentration in the PLS. Yellowcake will be precipitated from the enriched solution using hydrogen peroxide and magnesium oxide. The precipitated yellowcake will undergo solid-liquid separation, drying at 450°C and finally packaged in barrels for shipment. Tailings and waste process solutions will be neutralized and stored in the Tailings Management Facility (“TMF”). Reclaimed water will be treated in a water treatment plant (“WTP”) and monitored for environmental compliance before discharge.

 

ttlogo1.jpg

 

1-3

  

ueclogo1.jpg

 

S-K 1300 INITIAL ASSESSMENT REPORT – ROUGHRIDER URANIUM PROJECT

REPORT DATE: NOVEMBER 5, 2024

  

1.8

Project Infrastructure


 

The Roughrider project site is located 7 km north of Points North Landing, via an existing pioneering access road that connects to Provincial Highway 905 in the eastern Athabasca basin of northern Saskatchewan, Canada. While there are existing roads for exploration, all-weather access upgrades are necessary for better connectivity. The nearby Points North Landing Airstrip can support aerial personnel and cargo transportation, with Rise Air providing flights to various regional airports. Currently, the site lacks a permanent power supply, but a connection to the provincial grid via a new 138 kV transmission line is envisioned, along with backup diesel generators for emergencies.

 

Key mining infrastructure will include an underground mine with ventilation shafts, a decline for material transport, a backfill plant, and a waste rock management facility (WRMF) for storing different types of waste materials. The process plant area will feature surface stockpiles, processing facilities, water treatment plant, a laboratory, and various support structures like fuel storage and maintenance shops. Additionally, the TMF, including tailings transport system, deposition system and a reclaim water system, will be established to safely handle the tailings.

 

1.9

Environmental, Permitting and Social License


 

The ADEX Environmental Impact Assessment (“EIA”) from 2012 to 2014 included extensive baseline studies, but further environmental studies have been requested by federal and provincial regulators to confirm previous findings. A new baseline program initiated in 2023, largely completed in 2024, supports the Project's assessment and licensing. Water quality impacts are crucial and treated effluent discharge is expected. Air quality and radiation monitoring is planned. Species identified in terrestrial and aquatic programs align with previous surveys. Radiological and environmental safety controls will be implemented, along with a Radiation Protection Program.

 

Indigenous engagement is crucial under the United Nations Declaration on the Rights of Indigenous Peoples Act, ensuring free, prior, and informed consent (“FPIC”). UEC has re-engaged with neighboring communities to gain social licence to operate. Governance risks include establishing Environmental, Social, and Governance (ESG) frameworks and compliance with Canadian Nuclear Safety Commission (“CNSC”) regulations, focusing on health, safety, and environmental protection. Sensitive habitats and water bodies require a risk-informed approach. The power supply may be hydroelectric, but greenhouse gas emissions from diesel and propane use must be managed. Decarbonization strategies will align with federal climate commitments.

 

Uranium's role in reducing carbon emissions offers positive corporate marketing opportunities. Future environmental assessments will consider cumulative impacts and social enhancement opportunities with nearby projects, particularly in water resources, traffic, and local employment.

 

1.10

Capital and Operating Costs


 

The total estimated initial capital cost for the design, construction, installation and commissioning of the Project is $545.5 million for a 400 t/d operation. This includes all direct costs, indirect costs, owner’s costs and contingency. The capital cost estimate is consistent with an Association for the Advancement of Cost Engineering (“AACE”) Class 5 estimate with the expected accuracy within ±50%. The project contingency is estimated to be 18.3% of the total capital cost. A breakdown of the initial capital cost is provided in Table 1‑2. The LOM sustaining capital cost is estimated at $115.2 million. All currencies are expressed in US dollars, unless otherwise stated.

 

ttlogo1.jpg

 

1-4

  

ueclogo1.jpg

 

S-K 1300 INITIAL ASSESSMENT REPORT – ROUGHRIDER URANIUM PROJECT

REPORT DATE: NOVEMBER 5, 2024

  

Table 12: Capital Cost Summary

Capital Cost Area

Value (US$ million)

Mining

96.8

Processing Plant

89.5

Infrastructure

80.1

Tailings and Waste Rock Management

19.0

Direct Cost

285.4

Indirect Cost*

99.9

Owner's Cost

60.2

Contingency

99.9

Total Initial Capital Cost

545.5

Pre-production Cost

35.6

Total Initial Cost (inc. pre-production)

581.1

Sustaining Cost

115.2

Note: Total may not add due to rounding.

*Includes Engineering, Procurement, Construction Management (“EPCM”) cost of $34.0 million

 

The operating cost estimate for the Project consists of mining, processing, General and Administrative (“G&A”) and site services costs. The LOM operating costs are summarized in Table 1‑3. The average LOM operating cost is estimated at $493.5/t processed, or $9.72/lb yellowcake recovered in the concentrate. The expected accuracy of the operating cost estimate is within ±50%. Operating costs include contingency which does not exceed 25%.

 

Table 13: Operating Cost Summary

Description

LOM Cost

(US$ million)

Unit Cost

(US$/t processed)

Unit Cost (US$/lb

U3O8 Recovered)

Mining

198.5

164.8

3.25

Processing

262.9

218.2

4.30

G&A

133.1

110.5

2.18

Total Operating Costs

594.5

493.5

9.72

Note: Total may not add due to rounding.

 

1.11

Economic Analysis


 

The Project has been evaluated using a long-term U3O8 market price of $85/lb. The LOM base case Project net cash flows before and after tax are presented in Table 1‑4.

 

The base case post-tax cash flow for mineral resources including inferred resource is evaluated to be a Net Present Value (“NPV”) of US$946 million and an Internal Rate of Return (“IRR”) of 40% and payback period of 1.4 years when discounted at 8% per year. All-in sustaining cost (“AISC”) is estimated to be $20.48/lb of U3O8 recovered.

 

ttlogo1.jpg

 

1-5

  

ueclogo1.jpg

 

S-K 1300 INITIAL ASSESSMENT REPORT – ROUGHRIDER URANIUM PROJECT

REPORT DATE: NOVEMBER 5, 2024

  

The base case post-tax cash flow for mineral resources excluding inferred resource is evaluated to be a NPV of US$162 million and an IRR of 19.8% and payback period of 2.0 years when discounted at 8% per year. The AISC is estimated to be $24.81/lb of U3O8 recovered.

 

Table 14: Summary of Economic Analysis Results

Description

Unit

With Inferred Resources

Without Inferred Resources

Pre-tax

Post-tax

Pre-tax

Post-tax

NPV @ 8% Discount Rate

US$ million

1,628.8

946.2

342.1

161.7

IRR

%

52.7

40.0

29.7

19.8

Payback Period

years

1.2

1.4

1.7

2.0

 

1.12

Conclusions and Recommendations


 

The economic assessment result shows robust economics for the Project at 400 t/d of mill feed with a nine-year mine life producing yellowcake concentrate. Overall, the Project is considered to be technically and economically viable based on assessment parameters and results.

 

The QPs recommend UEC focus on advancing development of the Roughrider Project as described in the TRS by completing the data collection required to conduct a Pre-Feasibility Study (“PFS”) and update the inferred resources to indicated resource to the extent possible. Furthermore, it is recommended to continue with the Project permitting process, planning and scheduling and sourcing financing. A list of recommendations and a summary of estimated costs for various areas to complete the recommended work is presented in Section 23.0. A budget of US$18.5 million is proposed for work carrying through to the completion of PFS level design.

 

ttlogo1.jpg

 

1-6

  

ueclogo1.jpg

 

S-K 1300 INITIAL ASSESSMENT REPORT – ROUGHRIDER URANIUM PROJECT

REPORT DATE: NOVEMBER 5, 2024

  

2.0

INTRODUCTION


 

2.1

Background


 

Tetra Tech, UMR, Terracon, Snowden and Clifton have been requested by UEC (hereinafter also referred to as the “Company” or the “Client”) to prepare an S-K 1300 TRS on the Initial Assessment of the Roughrider Project located in Saskatchewan, Canada. UEC is a public company listed on the New York Stock Exchange (NYSE American: UEC).

 

The Project is a uranium project located in the eastern Athabasca Basin of northern Saskatchewan, Canada, one of the world’s premier uranium mining jurisdictions. The Project occurs entirely within the 597-hectare Mineral Lease ML-5547, which is registered to Roughrider Mineral Assets Inc. (“RMA”), a wholly owned subsidiary of UEC. The Project is located approximately 13 km west of Orano’s McClean Lake Mill, near UEC’s existing Athabasca Basin properties. The Project was the flagship asset of Hathor (“Hathor”), which Rio Tinto Canada Uranium Corp. (“RTCU”) acquired on December 1, 2011, for $550 million (“M”). On October 17, 2022, UEC completed the acquisition of 100% of the Project from RTCU for a total acquisition cost of $150M in cash and shares.

 

2.2

Registrant for Whom the Technical Report Summary was Prepared


 

This report was prepared as an initial assessment level Technical Report Summary in accordance with the SEC S-K regulations (Title 17, Part 229, Items 601 and 1300 through 1305) for UEC.

 

2.3

Terms of Reference and Purpose of the Report


 

The quality of information, conclusions, and estimates contained herein are based upon the following: i.) information available at the time of preparation and ii.) the assumptions, conditions, and qualifications set forth in this report. This report is intended for use by UEC subject to the terms and conditions of its contract with Tetra Tech and relevant securities legislation. The contract permits UEC to file this report as a Technical Report Summary with United States securities regulatory authorities pursuant to the SEC S-K regulations, more specifically Title 17, Subpart 229.600, item 601(b)(96) - Technical Report Summary and Title 17, Subpart 229.1300 - Disclosure by Registrants Engaged in Mining Operations.

 

The Initial Assessment is preliminary in nature. It includes Inferred Mineral Resources that are considered too speculative geologically to have the economic considerations applied to them that would enable them to be categorized as Mineral Reserves, and there is no certainty that the economic assessment will be realized.

 

2.4

Source of Information and Data


 

The information and data used to prepare the TRS have been provided by UEC, its consultants, or are available in the public domain. This TRS is based in part on internal Company technical reports, previous studies, maps, published government reports, Company letters and memoranda, and public information, as cited throughout this TRS and listed in the References Section (Section 24). Reliance upon information provided by the registrant Company is listed in Section 25, when applicable.

 

This TRS supersedes the previous report, SK-1300 Technical Report Summary: Roughrider Uranium Project, Saskatchewan, Canada, dated 25th April 2023, prepared by SRK Consulting which had previously been filed accordance with the U.S. SEC (Regulation S-K Subpart 1300 (“S-K 1300”) and specifically Item 17 CFR § 229, 230, 239 and 249)).

 

ttlogo1.jpg

 

2-1

  

ueclogo1.jpg

 

S-K 1300 INITIAL ASSESSMENT REPORT – ROUGHRIDER URANIUM PROJECT

REPORT DATE: NOVEMBER 5, 2024

  

2.5

Qualified Persons


 

This report was compiled by Tetra Tech, with sub-sections authored by UMR, Terracon, Snowden and Clifton. All four firms are third-party firms comprising mining experts in accordance with 17 CFR § 229.1302(b)(1). UEC has determined that all four firms meet the qualifications specified under the definition of qualified person in 17 CFR § 229.1300. The list of firms responsible for each report section is presented in Table 2‑1.

 

Table 21: Technical Report Sections and Third-Party Firms

No.

Section

Company

1.0

Executive Summary

All

2.0

Introduction

Tetra Tech

3.0

Property Description and Location

Tetra Tech

4.0

Accessibility, Climate, Local Resources, Infrastructure and Physiography

Tetra Tech

5.0

History

6.0

Geological Setting, Mineralization and Deposit

UMR

7.0

Exploration

UMR & Terracon

8.0

Sample Preparation, Analyses and Security

UMR

9.0

Data Verification

UMR

10.0

Mineral Processing and Metallurgical Testing

Tetra Tech

11.0

Mineral Resource Estimates

UMR & Snowden

12.0

Mineral Reserve Estimates

Snowden

13.0

Mining Methods

Snowden

14.0

Recovery Methods

Tetra Tech

15.0

Project Infrastructure

Tetra Tech

16.0

Market Studies and Contracts

Tetra Tech

17.0

Environmental Studies, Permitting and Social or Community Impact

Clifton

18.0

Capital and Operating Costs

Tetra Tech & Snowden

19.0

Economic Analysis

Tetra Tech

20.0

Adjacent Properties

Tetra Tech

21.0

Other Relevant Data and Information

Tetra Tech

22.0

Interpretation and Conclusions

All

23.0

Recommendations

All

24.0

References

All

25.0

Reliance on Information provided by the Registrant

Tetra Tech

26.0

Date & Signature Pages

All

 

ttlogo1.jpg

 

2-2

  

ueclogo1.jpg

 

S-K 1300 INITIAL ASSESSMENT REPORT – ROUGHRIDER URANIUM PROJECT

REPORT DATE: NOVEMBER 5, 2024

  

2.6

Details of Personal Inspection


 

A site visit to the Project was most recently completed on August 1, 2024. Table 2‑2 summarizes the details of the personal inspections on the property by each qualified person or, if applicable:

 

Table 22: Site Visit

Expertise

Company

Date of Visit

Details of Inspection

Geology/Mineral Resources

UMR

August 1, 2024

Site examination; inspection of logging, geological setting, mineralization, and structural controls; review of chain of custody; review of drilling, logging, sampling, analytical testing, and QA/QC procedures; drillhole collar confirmation; structural validation; and partial drillhole database validation.

 

Mining

Snowden

August 1, 2024

Site examination, visited core shed, reviewed select core samples. Visited Project site; assessed existing infrastructure, Discussion on site layout and utilities.

 

Metallurgical Testwork/

Mineral Recovery/

Infrastructure/ Rock Storage

Facility/ Tailings Facility

 

Tetra Tech

August 1, 2024

Site examination, visited core shed, reviewed select core samples. Visited Project site; assessed existing infrastructure, Discussion on site layout, utilities, potential infrastructure locations.

 

Environmental

Clifton

June 29, 2023

Site examination, visited where most of the major facilities have been planned for development to support mining, processing, and effluent treatment, including:

         hydrological monitoring stations and a weather monitoring station installed on site.

         Viewing of the shoreline of South McMahon Lake near planned infrastructure for mining and milling, and the potential effluent discharge location.

         Flora and fauna of the Property (as being typical for this area of northern Saskatchewan)

 

The August 1, 2024 site visit was also attended by the following UEC personnel:

 

James Hatley: Vice President Production, Canada

 

Chris Hamel: Vice President of Exploration, Canada

 

ttlogo1.jpg

 

2-3

  

ueclogo1.jpg

 

S-K 1300 INITIAL ASSESSMENT REPORT – ROUGHRIDER URANIUM PROJECT

REPORT DATE: NOVEMBER 5, 2024

  

3.0

PROPERTY DESCRIPTION


 

3.1

Coordinate System


 

All coordinates presented in this TRS are Universal Transverse Mercator (UTM) projection, unless otherwise specified. The Project is located within UTM zone 13N.

 

3.2

Project Location


 

The Project is located 7 km north of Points North Landing, a regional service center on Provincial Highway 905, in northern Saskatchewan, Canada. (Figure 3-1). The Project is approximately 440 km north of La Ronge, and 700 km north of Saskatoon. The Project is located at the coordinates 556,545E and 6,466,820N UTM zone 13N.

 

The Project camp, including the core logging and storage facilities, is on the shore of the northeast bay of McMahon Lake, and can be accessed by a 6 km gravel road off the Provincial Highway 905 (Figure 3-2).

 

ttlogo1.jpg

 

3-1

 

ueclogo1.jpg

 

S-K 1300 INITIAL ASSESSMENT REPORT – ROUGHRIDER URANIUM PROJECT

REPORT DATE: NOVEMBER 5, 2024

  

fig3-1.jpg

 

Figure 31: Project Location in Saskatchewan (SRK, 2023)

 

ttlogo1.jpg

 

3-2

 

ueclogo1.jpg

 

S-K 1300 INITIAL ASSESSMENT REPORT – ROUGHRIDER URANIUM PROJECT

REPORT DATE: NOVEMBER 5, 2024

  

fig32.jpg

 

Figure 32: Project Location (SRK, 2023)

 

3.3

Mineral Lease


 

The Project comprises one Mineral Lease, ML-5547, registered to RMA, which is 100% held by UEC. ML-5547 was consolidated, from three individual and contiguous licenses, ML-5544, ML-5545, and ML-5546 by RTCU on October 4, 2012. ML-5547 covers 597 hectares and is defined by the boundary points as listed in Table 3-1. ML-5547 was registered with the Saskatchewan Ministry of Energy and Resources on November 2, 2020, and is valid from March 20, 2021, for 10 years, expiring on March 20, 2031. There is an annual expenditure requirement on ML-5547 of US$11,194, or US$18.75 per hectare. The Project though currently has a credit of US$80,826 and is in good standing until January 1, 2028.

 

ttlogo1.jpg

 

3-3

 

  

ueclogo1.jpg

 

S-K 1300 INITIAL ASSESSMENT REPORT – ROUGHRIDER URANIUM PROJECT

REPORT DATE: NOVEMBER 5, 2024

  

Table 31: ML-5547 Boundary Points

 

Points

Easting

Northing

Points

Easting

Northing

A

558,533.541

6,465,868.353

N

555,945.856

6,466,763.272

B

558,536.000

6,465,765.000

O

556,464.000

6,467,254.000

C

558,434.000

6,465,795.000

P

556,704.000

6,467,530.000

D

558,034.000

6,465,651.000

Q

557,101.000

6,467,784.000

E

557,602.000

6,465,593.000

R

557,501.000

6,468,115.000

F

557,160.000

6,465,523.000

S

557,966.000

6,468,298.000

G

557,008.000

6,465,508.000

T

558,490.606

6,468,533.421

H

556,491.000

6,465,430.000

U

558,443.432

6,468,263.925

I

556,217.000

6,465,338.000

V

558,487.388

6,467,732.064

J

555,974.000

6,465,258.000

W

558,501.003

6,467,469.976

K

556,332.000

6,465,798.000

X

558,571.000

6,466,966.000

L

555,487.523

6,466,328.814

Y

558,696.000

6,466,088.000

M

555,352.000

6,466,414.000

Z

558,530.949

6,466,013.522

 

3.4

Mineral Rights


 

Exploration and mining in Saskatchewan are governed by the Crown Minerals Act, the Mineral Disposition Amendment Regulations, 2012 and the Mineral Tenure Registry Regulations, and administered by the Mines Branch of the Saskatchewan Ministry of Energy and Resources. Mineral rights are owned by the Crown and are distinct from surface rights.

 

There are two key land tenure milestones that must be met for commercial production to occur in Saskatchewan:

 

 

1.

Conversion of a mineral claim to mineral lease, and

 

 

2.

Granting of a Surface Lease to cover the specific surface area within a mineral lease where mining is to occur.

 

The processes associated with these are described further below.

 

Several other permits, licenses and approvals are required both for ongoing exploration and eventual operation for the Project to proceed. To carry out exploration at the Project, a Surface Exploration Permit, Forest Product Permit, and Aquatic Habitat Protection Permit are required.

 

Table 3-2 indicates the permits currently in place for the Property. The Permits, like the Mineral Lease, are registered to RMA. UEC and RTCU have kept the Project permits current through the transition of ownership. Several of the permits include conditions relating to restrictions on development, health and safety, environmental protection, and restoration/closure of disturbed areas. Non-compliance with these conditions could lead to regulatory enforcement action. Future permitting processes expected to be required are summarized in Section 3.5.

 

ttlogo1.jpg

 

3-4

  

ueclogo1.jpg

 

S-K 1300 INITIAL ASSESSMENT REPORT – ROUGHRIDER URANIUM PROJECT

REPORT DATE: NOVEMBER 5, 2024

  

Table 32: List of Permits (UEC, 2024)

 

Name

Disposition Type

Effective

Date

Expiry

Date

Holder

(Organization)

Parent

Disposition

Status

Reason

Created On

0104668

Sand and Gravel

4/1/2024

3/31/2045

RMA

10028363

Activated

10/19/2022

0104669

Sand and Gravel

4/1/2024

3/31/2045

RMA

10016620

Activated

10/19/2022

0104670

Easement

4/1/2023

3/31/2047

RMA

10017136

Activated

10/19/2022

0104664

Industrial

4/1/2024

3/31/2029

RMA

10002692

Activated

10/19/2022

0104663

Foreshore Installations

4/1/2023

3/31/2033

RMA

10016552

Activated

10/19/2022

0104666

Foreshore Installations

4/1/2023

3/31/2025

RMA

10016553

Activated

10/19/2022

0104665

Foreshore Installations

4/1/2023

3/31/2033

RMA

10016554

Activated

10/19/2022

0104667

Miscellaneous Use

4/1/2023

3/31/2025

RMA

10016288

Activated

10/19/2022

SaskTel Site

Air Monitoring

5/1/2024

5/31/2027

UEC

10014608

Activated

5/1/2024

EASB#2013-

2014

The Roughrider Advanced

Exploration Program

8/14/2014

Annual update 10/1/2025

UEC

ML-5547

Activated

8/14/2014

 

3.4.1

Mineral Claim and Mineral Lease

 

A mineral claim does not grant the holder the right to mine minerals except for exploration purposes. Subject to completing necessary expenditure requirements, mineral claim credits can be accumulated for a maximum of 21 years. To ensure that mineral claims are kept in good standing in Saskatchewan, the claim holder must undertake the minimum exploration work on a yearly basis. The current requirements are US$11.25 per hectare per year for claims that have existed for 10 years or less, and US$18.75 per hectare per year for claims that have existed in excess of 10 years. Excess expenditures can be accumulated as credits for future years.

 

A mineral claim in good standing can be converted to a mineral lease by applying to the mining recorder and having a completed boundary survey. In contrast to a mineral claim, the acquisition of a mineral lease grants the holder the exclusive right to explore for, mine, recover, and dispose of any minerals within the mineral lease. Mineral leases are valid for 10 years and are renewable. In the case of the Project, there is a mineral lease (ML-5547), and this has been renewed and is now valid to 2031 (Table 3-1).

 

The Project originally consisted of three contiguous mineral claims, S-107243 staked on January 30, 2004, and S-110759 and S-110760 staked on March 18, 2008, covering a total area of 543 hectares. Hathor carried out a legal survey of the property in 2010. On March 16, 2011, the three mineral claims were converted to mineral leases, and these were subsequently combined into a single mineral lease (ML-5547). Due to minor modification to the eastern property boundary as a result of the legal survey and land tenure changes, the official size of the mineral lease is 597 ha. Mineral Resources for the RRE, RRFE and RRW are contained completely within the mineral lease.

 

3.4.2

Surface Lease

 

For mining, a mining surface lease is required prior to work commencing on site. The mining surface lease will generally cover all areas that are predicted to be disturbed plus a buffer area and accrues annual fees per hectare. Within the boundaries of the surface lease, the annual payments can vary as land is disturbed or reclaimed with undisturbed lease fees of US$82.7 per hectare and disturbed lease fees of US$932.3 per hectare. Surface leases are coordinated through the Ministry of Government Relations, Northern Engagement Branch, and the Ministry of Environment (MOE), Lands Branch, and include input from other government agencies where appropriate. In Saskatchewan, the EIA and licensing process are sequential, as the EIA process must be completed prior to the issuance of specific leases, licenses and permits. While lease negotiations can start early and in parallel with the EIA process, a precondition of the issuance of a mining lease is the successful outcome of the provincial EIA process.

 

ttlogo1.jpg

 

3-5

  

ueclogo1.jpg

 

S-K 1300 INITIAL ASSESSMENT REPORT – ROUGHRIDER URANIUM PROJECT

REPORT DATE: NOVEMBER 5, 2024

  

Co-ordinated between various provincial government ministries and industry, the leases address a range of issues to which mining companies must comply, including land tenure, environmental protection measures, occupational health and safety provisions, and socio-economic benefits for residents of northern Saskatchewan. Most of these requirements already exist in law or are commitments made by the proponent in the EIA process, the lease agreement just brings these into one document. Beyond addressing business opportunities and other local benefits, each mining surface lease also requires the company to negotiate a long-term Human Resource Development Agreement with the Ministry of Advanced Education, Employment and Labour. This agreement speaks to the level of effort to recruit, train and hire northern workers. For mining projects, the surface lease is negotiated between the proponent and the provincial government following the completion of a successful environmental assessment.

 

Once the surface lease is negotiated, the Provincial approval to operate a Pollution Control Facility is issued, which describes commitments that must be met in terms of monitoring and reporting.

 

3.5

Violations and Fines


 

Subject to a formal legal due diligence, UEC has indicated that they are not the subject of any violations or fines associated with the Project. UEC is maintaining all the necessary permits for its current activities.

 

3.6

Royalties or Similar Interest


 

The Project is subject to royalty payments to the Government of Saskatchewan, via the “Uranium Crown Royalty” and through a private agreement with the Uranium Royalty Corporation (“URC”), the “Roughrider Royalty”, as well as Corporation Capital Tax.

 

3.6.1

Uranium Crown Royalty

 

The Government of Saskatchewan approved a new uranium royalty system effective January 1, 2013. The uranium royalty system is enacted under the Crown Mineral Royalty Regulations, pursuant to the Crown Minerals Act. According to the system, each owner, or joint venture participant, in a uranium mine is a royalty payer. Individual interests of a royalty payer are consolidated on a corporate basis for the calculation of royalties applied to the royalty payer's sales of uranium. The system has three components:

 

Basic royalty – 5% of gross revenue

 

Resource Surcharge – 3% of gross revenue

   

Saskatchewan Resource Credit – a credit of 0.75% gross revenue

 

Profit royalty – rates increase from 10% to 15% as net profit increases

 

ttlogo1.jpg

 

3-6

  

ueclogo1.jpg

 

S-K 1300 INITIAL ASSESSMENT REPORT – ROUGHRIDER URANIUM PROJECT

REPORT DATE: NOVEMBER 5, 2024

  

The Profit Royalty is based on net profits, with a two-tier rate structure. It will apply at rates of 10% on net profits up to and including US$21.26 per kilogram, and 15% on net profits above US$21.26 per kilogram. The Basic Royalty is not deductible from Profit Royalty payable. Profit is calculated based on recognition of the full dollar value of a royalty payer’s exploration, capital, production, decommissioning and reclamation costs.

 

The total royalty is calculated as follows:

 

Royalty Payment = Basic Royalty + Resource Surcharge - Saskatchewan Resource Credit

 

3.6.2

Roughrider Royalty

 

The Project is subject to royalty payments through a private agreement, the “Roughrider Royalty”, with Uranium Royalty Corporation (“URC”). The Roughrider Royalty is a 2.0% net smelter return royalty payable pursuant to the interest that UEC or any of its subsidiaries, assignees or successors holds in the Property.

 

3.6.3

Corporation Capital Tax

 

For resource corporations, the Resource Surcharge rate is 3.0% of the value of sales of all uranium produced in Saskatchewan.

 

ttlogo1.jpg

 

3-7

  

ueclogo1.jpg

 

S-K 1300 INITIAL ASSESSMENT REPORT – ROUGHRIDER URANIUM PROJECT

REPORT DATE: NOVEMBER 5, 2024

  

4.0

ACCESSIBILITY, CLIMATE, LOCAL RESOURCES, INFRASTRUCTURE, AND PHYSIOGRAPHY


 

4.1

Topography and Elevation


 

The Mineral Lease boundary for the Property is shown in Figure 3-2. It has a maximum north-south dimension of roughly 2.5 km, and a maximum east-west dimension of roughly 3 km. The Mineral Lease area lies between approximately elevations of 477 and 502 m above mean sea level (“MASL”) (Figure 4-1). The predominant geology on site consists of glacial till underlain by water-bearing sandstone and the Western Churchill Province of the Archean Canadian Shield (“basement”) rocks.

 

Throughout the Project area, glacial landforms distinctly trend northeast arising from the retreating of glacial ice from the southwest to the northeast during the Quaternary period. The Project deposits are located on the flank of a glacial drumlin. Approximately 60% of ML-5547 is land, while the remaining is water/lakes.

 

Two aquifers transmit groundwater under the Project site. The shallow aquifer extends at most 30 m into the ground and transmits water parallel to surface drainage. The deep aquifer transmits water in a more complex manner based on local geography (SRK, 2011). The surface water level of South McMahon Lake is assumed to be approximately 478 MASL.

 

fig4-1.jpg
 

Figure 41: Plan View of the Project Topography (SRK, 2023)

 

4.2

Vegetation (and Habitats/Species of Conservation Importance)


 

The ADEX EIA (RTCU, 2014) was informed by environmental baseline data gathered by CanNorth between 2012 and 2014. As such there is a reasonably good understanding of the Project context and its local and regional setting. The summary description of the vegetation, habitat and species of conservation importance presented below is extracted from these reports.

 

ttlogo1.jpg

 

4-1

 

ueclogo1.jpg

 

S-K 1300 INITIAL ASSESSMENT REPORT – ROUGHRIDER URANIUM PROJECT

REPORT DATE: NOVEMBER 5, 2024

  

The baseline studies included development of a habitat map (Figure 4-2) based on satellite imagery from 2011, which was ground truthed in the field (QP considers an update to this would be needed to confirm if there have been changes in the last decade should the Project proceed). ML-5547 sits within the local study area. In terms of vegetation, five ecotypes (habitats) were identified based on tree canopy composition and wetland type:

 

Open/shrubby wetland

 

Treed wetland

 

Ribbed fen

 

Jack pine-dominated conifer forest

 

Black spruce-dominated conifer forest

 

According to the ADEX EIA (RTCU, 2014), of the 119 rare plant species potentially occurring in the Athabasca Plain ecoregion, five have been observed in the study area: leathery grape fern, few-flowered sedge, three-seeded sedge, hairy butterwort, and American Scheuchzeria. None of the species observed are listed on the federal Species at Risk Act or protected under the provincial Wildlife Act. No exotic and/or prohibited, noxious, or nuisance weeds as listed by the Saskatchewan Weed Control Act were observed during vegetation studies.

 

Database searches resulted in the identification of 11 federally listed wildlife species at risk or species with special conservation measures as potentially occurring within the study area. These include seven bird species and four mammals. Two bird species were detected in the study area that are listed federally as threatened: the olive-sided flycatcher and common nighthawk. Five bird species detected within the lease area and/or regional study area (“RSA”) have provincial activity setbacks including the bald eagle, osprey, northern hawk owl, Bonaparte’s gull, and common tern. Setback distances for common terns apply only to breeding colonies, and no colonies were observed. The four mammal species of conservation importance were the wolverine, little brown myotis (mouse eared bat), northern myotis, and boreal woodland caribou.

 

ttlogo1.jpg

 

4-2

 

ueclogo1.jpg

 

S-K 1300 INITIAL ASSESSMENT REPORT – ROUGHRIDER URANIUM PROJECT

REPORT DATE: NOVEMBER 5, 2024

  

 
fig42.jpg

 

Figure 42: Habitat Areas as defined in ADEX (BARR, 2013)

 

4.3

Property Access


 

The area around the Project is a well-developed mining area close to necessary infrastructure and resources. The Property can be accessed by a 7 km gravel road, floatplane or helicopter from Points North Landing. Points North Landing is on Provincial Highway 905 which is linked to the nearest sizeable population center, La Ronge 440 km south, by Highway 102. There are several daily commercial airline services from Saskatoon to Points North Landing, and regular charter flights for Orano’s McLean Lake operation.

 

4.4

Climate and Length of Operating Season


 

According to the ADEX PFS (BARR, 2013) the Project area has a climate that is a mid-latitude continental climate, with temperatures ranging from 32ºC in the summer to -45ºC in the winter. Winters are long and cold, with mean monthly temperatures below freezing for seven months of the year. Annual precipitation is about 500 mm per year, with half of that in the summer months. Winter snowpack averages 70 cm to 90 cm. Lake ice forms by mid-October and usually melts by mid-June. Field operations are possible year-round with the exception of limitations imposed by lakes and swamps and the periods of break-up and freeze-up (effectively drilling operations are possible from January to April and June to October). Future mine operation is expected to operate year-round.

 

ttlogo1.jpg

 

4-3

 

ueclogo1.jpg

 

S-K 1300 INITIAL ASSESSMENT REPORT – ROUGHRIDER URANIUM PROJECT

REPORT DATE: NOVEMBER 5, 2024

  

According to Canada’s Changing Climate Report – In Light of the Latest Global Science Assessment (2022), which refers to the IPCCs AR6 report, there will be an increase in annual mean temperature in North America. They project that warming in Canada will be greater in the northernmost regions. Increases in mean annual precipitation is projected for several North American regions, including specifically where the Project site is located. According to Climatedata (https://climatedata.ca/), average temperature for the period 2021 to 2050 for Wollaston Lake, which lies 55 km to the southeast of the Project site, is expected to be -1.5ºC compared to -3.7ºC for the period 1971 to 2000. Changes in precipitation patterns and the possibility of increased variability in the amount and timing of rainfall and snowfall could result in more frequent and intense extreme weather events, such as floods and droughts.

 

4.5

Catchments and Water Resources


 

The Project straddles two distinct watersheds (which were characterized in terms of flow and quality during the ADEX EIA (RTCU, 2014):

 

The Smith Creek catchment, which flows north from the Project, entering Smith Bay on the south side of Hatchet Lake. At the time of the ADEX EIA (2014) there were no other industrial users discharging to the watershed, and the nearest commercial user of the watershed was an outfitting camp located near the north end of Hatchet Lake and potentially a winter commercial fishery within the lake; and

 

The Collins Creek catchment, which flows east from the area of the Property to Collins Bay of Wollaston Lake. Collins Creek receives the treated effluent from the McClean Lake uranium mill, which is located approximately 11 km east of the Property. The creek then enters Collins Bay (opposite the Rabbit Lake uranium mine and mill). A freshwater intake for the Rabbit Lake mine and mill is located within Collins Bay and treated effluent from the Rabbit Lake operation is discharged into Wollaston Lake.

 

4.6

Availability of Infrastructure


 

The Project benefits from being close to Points North Landing and the Provincial Highway 905, both of which can be used for import of consumables and equipment. A road has been constructed to connect the Project site to the Provincial Road but will require further upgrade to facilitate development. The airstrip at Points North Landing or a dedicated airstrip would be used for ingress and egress of the workforce, which are likely be working on a fly-in-fly-out basis.

 

The Project will need to build its own administrative, maintenance, and operational support infrastructure on-site. This will include a fully serviced accommodation camp. The Project will need to generate heating and hot water, and other services such as water treatment, water supply and waste management.

 

Typical infrastructure associated with underground mining located at surface will also need to be constructed such as shaft and headframe, winding house, ventilation fans, backfill plant / concrete plant, and freeze plant.

 

The power demand for the Project is estimated to be 14.5 MW. South of Points North Landing and approximately 15 km from the Project is the nearest national grid substation, which is understood to be operated by “SaskPower”. The substation is situated on the high voltage regional transmission grid between the Athabasca Hydroelectric System (23 MW capacity) and the Island Falls Hydroelectric Station (111 MW capacity).

 

SaskPower has previously been contacted regarding the potential to connect to the substation. However, at this stage, the capacity and current utilization of the transmission system has not been studied and nothing has been confirmed or agreed. If there is not adequate capacity on the nearby high voltage power line, then a liquid natural gas (“LNG”)-fired power plant or a Small Modular Reactor(s) (“SMR”) are likely to be the lowest LOM cost self-generation alternative options.

 

ttlogo1.jpg

 

4-4

 

ueclogo1.jpg

 

S-K 1300 INITIAL ASSESSMENT REPORT – ROUGHRIDER URANIUM PROJECT

REPORT DATE: NOVEMBER 5, 2024

 

5.0

HISTORY


 

5.1

Pre-Discovery


 

Between 1969 and 1974, following the discovery of the Rabbit Lake uranium deposit in 1968 by Gulf Minerals Ltd., Numac Oil and Gas (“Numac”) held the large Permit Number Eight over the Midwest Lake (McMahon Lake) and Dawn Lake areas. Prospecting, airborne radiometric surveys and lake sediment sampling for uranium and radon were carried out in 1969 and 1972 (Forgeron, 1969; Beckett, 1972). At the time, Numac, in conjunction with their partners Esso Minerals and Bow Valley Industries, focused on the Midwest Lake area, located adjacent to the Project.

 

In 1976, Asamera Oil Corp. (“Asamera”) initiated the Dawn Lake project, located approximately 6 km southeast of the current Project. Asamera discovered the Dawn Lake 11, 11A, 11B, and 14 zones in 1978. In 1983, the Saskatchewan Mining and Development Corporation (“SMDC”), predecessor to Cameco Corporation (“Cameco”) became the operator of the Dawn Lake Joint Venture. By 1995, the Dawn Lake Joint Venture consisted of Cameco, Cogema Resources Inc. (now Orano SA (“Orano”)), PNC Exploration Canada Ltd., and Kepco Canada Ltd. (Jiricka et al., 1995). The Dawn Lake Joint Venture held the Esso North claim until it lapsed in 2003.

 

Early work by Asamera on the Esso North claim consisted of electromagnetic (“EM”) and aeromagnetic surveys in 1977, followed by airborne very low frequency (“VLF”) EM, magnetic and radiometric surveys in 1978 and 1979 by Kenting and Geoterrex, respectively. These surveys located an east-west trending conductor of moderate strength, and a radiometric anomaly associated with a broad VLF-EM response on the eastern portion of the Esso North claim (Parker, 1982).

 

From 1978 to 1981, Turam, Vector Pulse EM, and VLF-EM surveys confirmed the east-west conductor as well as some weaker northeast trending VLF-EM conductors. The east-west conductor occurs just outside the western boundary of ML-5547. During this same period, Asamera drilled 17 holes on the Esso North claim (Parker,1982; Asamera, 1982). Holes EN-1 to EN-16 were drilled during the period of 1978 and 1981.  The next holes EN-18 and EN-19 were drilled in 1984. The first 10 holes, EN-1 to EN-10, were drilled across the projected northeast strike extent of the Project. These holes are located within ML-5547 (formerly lease ML-5544) and penetrated basement rock for an average length of 25 m.

The other seven holes were drilled on the main east-west striking conductor. Results, however, were discouraging; the highest radioactivity was encountered in drillhole EN-14 with 590 counts per second (“cps”) on a radiation detector. Basement lithologies intersected in drillholes included Archean granitoid, pegmatite, migmatite, and rare pelitic gneiss. Some evidence of structural disturbance and alteration was observed in the Athabasca sandstone intersected in drillholes EN-14, EN-15, and EN-16. Parker (1982) recommended relogging of the drill core to determine if any structural features had been missed. Only EN-14 and EN-15 are collared within ML-5547.

 

In 1984, SMDC carried out Time Domain EM (“TEM”) on the Esso North claim and completed two additional holes (Roy et al., 1984). Drillhole EN-18 targeted a weak TEM conductor near the east-west conductor. Results of this hole were negative. Drillhole EN-19 targeted a weak northeast trending TEM conductor. It intersected faulting and alteration in the Athabasca sandstone, but no other interesting features, and ended in pegmatite. Drillholes EN-18 and EN-19 are located within ML-5547.

 

ttlogo1.jpg

 

5-1

 

ueclogo1.jpg

 

S-K 1300 INITIAL ASSESSMENT REPORT – ROUGHRIDER URANIUM PROJECT

REPORT DATE: NOVEMBER 5, 2024

 

Exploration on the Esso North claim was dormant until 1995 (Jiricka et al., 1995), when Cameco resurveyed the area with TEM and located both the east-west conductor and the weak northeast striking conductor. The latter target was tested by one hole, EN-20; it intersected faulted and altered sandstone but no significant radioactivity. The basement consisted of granite, pegmatite, as well as minor pelitic and psammitic gneiss. Radioactivity of up to 379 cps occurred in the basement, but the cause of the conductor was not found. Hole EN-20 is located within lease ML-5547.

 

In 1996 one drillhole, EN-21, was completed that targeted the east-west conductor. This conductor is located just west of ML-5547. No conductive material was intersected, and the basement lithology was granite. Anomalous lead values present were attributed to heavy minerals in the sandstone. The lower 40% of the sandstone column was bleached (Jiricka et al., 1996).

 

Under an agreement dated September 10, 2004, between Roughrider Uranium Corp. (“Roughrider”) and Bullion Fund Inc. (“Bullion Fund”), Roughrider earned a 90% interest in claim S-107243 (and six other claims that became part of Roughrider’s Russell South property) by paying Bullion Fund an aggregate of CA$200,000 cash. Bullion Fund retained a 10% carried interest. On August 10, 2006, Roughrider became a wholly owned subsidiary of Hathor. A 1.9701% net smelter return on ML-5544 (now part of ML-5547) was payable to original Roughrider shareholders.

 

On April 12, 2007, Terra Ventures Inc. (“Terra”) announced that it had closed a deal with Bullion Fund to acquire an 8% carried working interest in seven claims comprising 56,360 acres in two separate projects located in the Athabasca Basin, Saskatchewan, of which 90% of the remaining 92% working interest was held by Hathor. One of the claims was S-107243. Terra’s interest was to be carried in all respects through to the completion of a feasibility study and the public announcement that the claims will be put into commercial production. Terra paid CA$2.3 million to acquire the interest and paid a finder’s fee of CA$69,000.

 

On March 24, 2008, Terra announced that it had closed its agreement with Bullion Fund to purchase Bullion Fund’s remaining 2% of Hathor’s carried working interest in the Project. This purchase increased Terra’s holding to a 10% carried working interest through to the completion of a feasibility study and the public announcement that the claims will be put into commercial production. The consideration paid by Terra to acquire this interest was CA$2.5 million and 3M shares of Terra.

 

5.2

Discovery to Present


 

RRW was discovered by Hathor during the winter drilling program of February 2008. A hydrothermal clay alteration system was intersected in drillhole MWNE-08-10, while high-grade uranium mineralization (5.29% U3O8 over a core length interval of 11.9 m) was intersected in drillhole MWNE-08-12.

 

RRE was discovered during the summer drilling program in September 2009. Hydrothermal alteration was intersected in several earlier drillholes during the summer program. High-grade uranium mineralization (12.71% U3O8 over a core length interval of 28 m) was intersected subsequently in drillhole MWNE-10-170.

 

A third zone, RRFE, was discovered during the winter drilling program in February 2011. The discovery drillhole intersected 1.57 % U3O8 over core length of 37.5 m.

 

On April 18, 2011, Hathor and Terra announced that they had executed a binding letter agreement pursuant to which Hathor would acquire, in an all-share transaction, all the issued and outstanding shares of Terra. On May 9, 2011, Hathor and Terra announced that they had executed a definitive plan of arrangement agreement (the “Arrangement”) to complete the previously announced merger. The result of the Arrangement was consolidation of 100% ownership of the Property. On August 2, 2011, Terra received approval from 96% of votes cast at a special meeting of its shareholders held in Vancouver. On August 4, 2011, Terra received final approval from the Supreme Court of British Columbia to complete the Arrangement. On August 5, 2011, Hathor and Terra announced the completion of the Arrangement and Terra became a wholly owned subsidiary of Hathor.

 

ttlogo1.jpg

 

5-2

 

ueclogo1.jpg

 

S-K 1300 INITIAL ASSESSMENT REPORT – ROUGHRIDER URANIUM PROJECT

REPORT DATE: NOVEMBER 5, 2024

 

On December 1, 2011, Rio Tinto announced that it was successful in acquiring Hathor, through a wholly owned Canadian subsidiary, RTCU. On January 11, 2012, RTCU acquired all remaining Hathor common shares making RTCU 100% owners of the Property. After acquiring the Property, RTCU continued to advance the Project, completing substantial pre-development and environmental baseline work including dedicated geotechnical drilling, shaft vs. decline modelling, the establishment of hydrogeological monitoring wells, terrestrial and aquatic environmental assessments, heritage assessments, species at risk, and a conceptual reclamation plan.

 

In July of 2013, RTCU submitted an ADEX proposal for consideration to the MOE. The program was intended to initiate the EIS review of the Project, with the Project intended to provide direct data related to the mineralized material and mine development design. The application was partially through the EIS review process, but no official determination was completed.

 

On October 17, 2022, UEC completed the acquisition of 100% of the Project from RTCU for a total acquisition cost of US$150M in cash and shares. On November 1, 2023, UEC commenced an exploration drill program, and as of July 31, 2024, UEC has drilled an additional 29,840 m in 94 holes to further explore on the property.

 

5.3

Historical Production


 

There is no historical production at the Project.

 

ttlogo1.jpg

 

5-3

 

ueclogo1.jpg

 

S-K 1300 INITIAL ASSESSMENT REPORT – ROUGHRIDER URANIUM PROJECT

REPORT DATE: NOVEMBER 5, 2024

 

6.0

GEOLOGICAL SETTING, MINERALIZATION, AND DEPOSIT


 

The information for section 6 was provided by UEC and was reviewed and accepted by UMR.

 

6.1

Regional Geology


 

The Roughrider project, comprising the RRW, RRE and RRFE deposits occurs in the Athabasca Basin, which covers over 85,000 km2 in northern Saskatchewan and north-eastern Alberta. The saucer-shaped basin contains a relatively undeformed and unmetamorphosed sequence of Mesoproterozoic clastic rocks known as the Athabasca Group Figure 6-1). These rocks lie unconformably on the basement rocks. The basement rocks consist of Archean orthogneisses, which are overlain by, and structurally intercalated with, the highly deformed supracrustal Palaeoproterozoic Wollaston Group (Annesley et al., 2005).

 

The Athabasca Basin is elongated along an east-west axis and straddles the boundary between two subdivisions of the Western Churchill Province. The Rae Subprovince to the west and the Hearne Subprovince to the east. The subprovinces are separated by the northeast trending Snowbird Tectonic Zone, locally known as the Virgin River-Black Lake shear zone in the area of the Athabasca Basin.

 

The Hearne Craton beneath the eastern Athabasca Basin comprises variably reworked Archean basement, which is dominated by granitic domes and foliated to gneissic granitoid rocks with infolded outliers of Paleoproterozoic metasedimentary rocks. The structural and tectonic regime of the area has been influenced strongly by collisional tectonics between the Hearne and Superior Cratons during the early Proterozoic Trans-Hudson Orogen, which occurred approximately 1.9 billion years ago (“Ga”) to 1.77 Ga.

 

Prior to deposition of the Athabasca Group, rocks of the Rae and Hearne Provinces that would later form the basement of the basin rocks experienced a lengthy period of weathering and non-deposition. Consequently, the basal Athabasca stratigraphy is underlain by a regolith of deeply weathered, hematite-stained basement. In places, the preserved regolith can reach a thickness of up to 50 m, but typically less than 10 m.

 

Unconformably overlying the basement rocks is the late Mesoproterozoic Athabasca Group consisting mainly of fluvial clastic sedimentary rocks, which are about 1,400 m thick in the central part of the basin (Ramaekers, 1990). The Athabasca Group comprises eight formations, although in the eastern Athabasca Basin, the Manitou Falls Formation is the only formation present. It is subdivided into four units, from bottom to top, designated MFa to MFd. Lithologies are dominated by fine to coarse-grained, partly pebbly or clay-intraclast-bearing quartz arenites. Minor conglomerates, mudstones, and dolostones also occur.

 

Apart from faulting and local folding associated with thrusting, the Athabasca Group strata are undeformed and unmetamorphosed. Age dating of zircons and diagenetic fluorapatite (SGS, 2003) indicate an age of sedimentary deposition around 1.77 Ga, post-dating the Trans-Hudson Orogeny (circa 1.9 Ga to 1.77 Ga).

 

ttlogo1.jpg

 

6-1

 

ueclogo1.jpg

 

S-K 1300 INITIAL ASSESSMENT REPORT – ROUGHRIDER URANIUM PROJECT

REPORT DATE: NOVEMBER 5, 2024

 

fig6-1.jpg

 

Figure 61: Geological Sketch Map of Athabasca Basin

 

(After Raemakers et al., 2001)

 

6.2

Local Geology


 

6.2.1

Hearne Subprovince

 

Four important lithostructural domains have been identified in the Hearne Subprovince: the Eastern Wollaston Domain, Western Wollaston Domain (“WWD”), Wollaston-Mudjatik Transition Zone (“WMTZ”), and Mudjatik Domain (“MD”) (Annesley et al., 1997; Annesley et al., 2005). The basement rocks within the Project are part of the WMTZ. The WWD and WMTZ host all currently producing uranium mines in the area, as well as several other significant uranium occurrences. Certain lithologies, coupled with the deformational history of some domains, have had a strong influence on the location of the Athabasca unconformity-type uranium deposits.

 

The basement rocks in the Project area are structurally complex, comprising steeply dipping Wollaston Group rocks interfingering Archean granitic to granodioritic orthogneisses. Interpretations of aeromagnetic data suggest that several Archean granitic domes dominate the basement geology.

 

Model ages from the orthogneiss indicate a crustal history beginning as early as 3.6 Ga with extensive crust development approximately 2.92 Ga. Pelitic to psammitic supracrustal rocks and mafic granulites, minor quartzites, calc-silicates, marbles and ultramafic rocks, as well as rare oxide, silicate and sulfide facies iron formations occur in narrow arcuate bands throughout, defining the dome-and-basin pattern. In the east, most of these supracrustal remnants have been correlated with the Wollaston Supergroup. Metamorphic grades range from upper amphibolite to granulite facies (Annesley et al., 2002; SGS, 2003).

 

ttlogo1.jpg

 

6-2

 

ueclogo1.jpg

 

S-K 1300 INITIAL ASSESSMENT REPORT – ROUGHRIDER URANIUM PROJECT

REPORT DATE: NOVEMBER 5, 2024

 

Away from the RRW, RRE, and RRFE deposits within the Project area, the reddish to greenish paleoweathering profile immediately below the sub-Athabasca unconformity is variable in its development but typically extends to a depth of 10 m to 35 m. It comprises a thin (less than 1 m) zone of bleached rock that is typically illitic to kaolinitic in composition.

 

Immediately beneath is a zone of variably developed hematite alteration (red zone). This is separated from the lowermost alteration zone, the chlorite-altered green zone, by a transitional red-green zone, which is a combination of hematite and chlorite alteration. Within the RRW, RRE, and RRFE deposits, the paleoweathered regolith is overprinted and obliterated by hydrothermal alteration. In some cases, however, a ghost clay signature of the kaolinitic zone is still evident.

 

6.2.2

Athabasca Group

 

The Property is underlain by 195 m to 215 m of sandstone belonging to the Manitou Falls Collins Member (“MFc”) and Bird Member (“MFb”) of the Athabasca Group. The Read Formation (“MFa”) is missing. The MFc can reach a thickness of 70 m to 100 m and is composed of a fine-grained, homogeneous, beige to maroon sandstone. The MFb member ranges from 100 m to 130 m in thickness and comprises a heterogeneous mix of sandstone, pebbly sandstones and conglomerates. The conglomerates include a distinctive “Marker Conglomerate” that can be correlated regionally. The basal conglomerate is not ubiquitous throughout the Property; in places immediately overlying the RRW, RRE, and RRFE deposits it may be absent. Typically, in the Project area, the unconformity is approximately 196 m to 221 m below the surface.

 

6.2.3

Surficial Geology

 

The Athabasca Basin and surrounding areas bear the strong imprint of Quaternary glaciation. During the Pleistocene Epoch, the northern half of Saskatchewan was scoured by the Laurentide ice sheet that was generally moving in a south-westerly direction. Glacial erosion of the less resistant sandstone of the Athabasca Basin resulted in an increased sediment load in the ice. Consequently, the glacial drift cover is much more extensive and thicker over the basin than the rest of the shield region (SGS, 2003).

 

The surficial geology within the Property is characterized by portions of two low drumlins trending in a northeast direction. The drumlin tops are approximately 20 m to 50 m above local lake surface. The glacial deposits are composed generally of a sandy till that contains primarily reworked Athabasca sand grains, cobbles and boulders.

 

No outcrops have been observed on the Property. Drilling has encountered overburden depths between 9 m and 12 m. Near the Project area, McMahon Lake has a water depth of between 5 m and 12 m.

 

6.3

Property Geology


 

The RRW, RRE, and RRFE deposits occur in the basal part of the Wollaston Group of the WMTZ. The basement is structurally complex, comprising steeply dipping Wollaston Group rocks dominated by garnet- and cordierite-bearing pelitic gneisses with subordinate amounts of graphitic pelitic gneisses and psammopelitic to psammitic gneisses, and rare garnetites. The pelitic gneiss varies from equigranular to porphyroblastic in texture. The porphyroblasts vary in size up to centimetre-scale and normally comprise red almandine rich garnets when fresh. The gneisses have been intruded by syn- to post-peak metamorphic felsic pegmatites, granites, and microgranites of Hudsonian age. These rocks locally contain up to 400 parts per million (“ppm”) of primary uranium and unconformably overlie the basal Archean aged granitic gneiss.

 

ttlogo1.jpg

 

6-3

 

ueclogo1.jpg

 

S-K 1300 INITIAL ASSESSMENT REPORT – ROUGHRIDER URANIUM PROJECT

REPORT DATE: NOVEMBER 5, 2024

 

Proximal to mineralization, graphite in graphitic pelitic gneisses has been consumed by alteration and mineralization; distal to mineralization, the graphite appears to be discontinuous. These two features may help explain the absence of basement-hosted graphitic conductors at the Project.

 

Hydrothermal calc-silicate alteration of the orthogneisses is present locally. The alteration is interpreted to be post-peak metamorphism in age and is probably related to the introduction of the Hudsonian felsic rocks. The sandstone and basement rocks have been subjected to several episodes of brittle deformation, including the brittle reactivation of older ductile shear zones.

 

The primary lithologies on the Property comprise:

 

Overburden

 

Manitou Falls Formation:

 

 

MFc (Collins Member, sandstone)

 

 

MFbu (Bird Member Upper, sandstone)

 

 

MFbmc (Bird Member Marker Conglomerate)

 

 

MFbl (Bird Member Lower, sandstone)

 

 

MFBascon (Basal Conglomerate)

 

Wollaston Supergroup:

 

 

WOLF (Felsic Pelitic Gneiss)

 

 

WOLM (Mafic Pelitic Gneiss)

 

 

WOLG (Graphitic Pelitic Gneiss)

 

Archean:

 

 

GRGN (Basal Archean Gneiss)

 

ttlogo1.jpg

 

6-4

 

ueclogo1.jpg

 

S-K 1300 INITIAL ASSESSMENT REPORT – ROUGHRIDER URANIUM PROJECT

REPORT DATE: NOVEMBER 5, 2024

 

The stratigraphic column for the Property geology and an example long section are presented in Figure 6-2 and Figure 6-3, respectively.

 

fig6-2.jpg

 

Figure 62: Stratigraphic Column of the Property Geology (UEC, 2024)

 

ttlogo1.jpg

 

6-5

 

ueclogo1.jpg

 

S-K 1300 INITIAL ASSESSMENT REPORT – ROUGHRIDER URANIUM PROJECT

REPORT DATE: NOVEMBER 5, 2024

 

fig6-3.jpg

 

Figure 63: Long Section of the Geological Model (SRK, 2023)

 

(Section Location on Figure 6-6)

 

6.3.1

Structural Geology

 

All structural orientations referred to in this TRS are in the format of dip°/dip direction°.

 

Macro-scale geophysical, geological and structural modelling suggests that the Property is crosscut by a large number of structures. The two main structures to note are:

 

An east-west striking, north-dipping fault (approximately 75°/010°) with a reverse sense of slip and a maximum throw of approximately 20 m.

 

A north-east striking, northwest-dipping fault (approximately 55°/295°) with ambiguous throw, possibly suggesting strike-slip movement. This is locally referred to as the ‘Midwest Trend’, that hosts the Midwest and Midwest A uranium deposits on the adjacent mineral leases, to the south of the Property.

 

The crosscutting relationship between these two faults is also unclear, suggesting that they were likely active at the same time. The north-up apparent reverse sense of movement on the east-west fault suggests sinistral movement on the north-east fault if they were both active in the same kinematic regime, which is the same sense of movement as inferred for north-east structures at Wheeler River (Pope, 2012).

 

The magnetic images support this interpretation, with two major projects to regional scale magnetic lineaments parallel to the east-west and north-east striking faults (Figure 6-4). However, it is probable that the magnetic lineaments are caused by larger-scale precursor basement features rather than the low-displacement faults themselves.

 

ttlogo1.jpg

 

6-6

 

ueclogo1.jpg

 

S-K 1300 INITIAL ASSESSMENT REPORT – ROUGHRIDER URANIUM PROJECT

REPORT DATE: NOVEMBER 5, 2024

 

The other project-scale feature which is important to mineralization is the WOLG lithology of the Wollaston Group, which forms the core of the larger WOLM. Uranium mineralization is proximal to the WOLG, though not necessarily within it. The WOLG is also a useful marker horizon and modelling it has assisted in defining the orientation of layering in each deposit. Layering orientation varies; however, it has an average project-scale orientation of approximately 60°/000°. Given the apparent reverse sense of displacement on the steeper east-west striking fault, layering is well oriented for reactivation in shear or possibly mixed-mode extension depending on the local stress orientation at failure. The WOLG also appears to be sinistrally offset by the north-east striking fault, which supports the interpreted kinematics of this fault. Any offset of the WOLG by the east-west striking fault is ambiguous due to the limited drilling data in the hanging wall of the fault.

 

fig6-4.jpg

 

Figure 64: Macro-scale Lineaments on First Vertical Derivative Ground Magnetics Image (SRK, 2023)

 

6.3.2

Mineralization

 

Uranium deposits in the Athabasca Basin can be broadly subdivided into two styles: unconformity-hosted (occurring at or above the unconformity) and basement-hosted. The Project is characterized by basement hosted mineralization, which is typically hosted in faults (often referred to as veins when hosting mineralization) which must have been open to hydrothermal fluid flow at the time of mineralization and thus were likely active at some stage post basin formation.

 

Uranium mineralization is highly variable in thickness and style in all zones. High grade uranium mineralization occurs primarily as structurally controlled, medium- to coarse-grained, semi-massive to massive pitchblende with what has been termed worm-rock texture, and texturally complex redox controlled mineralization. This high-grade uranium mineralization is intimately associated locally with lesser amounts of red-to-orange coloured oxy-hydroxillized iron oxides. Yellow secondary uranium minerals, probably uranophane, are present locally as veinlets or void-filling masses within the high-grade primary mineralization (Figure 6-5).

 

ttlogo1.jpg

 

6-7

 

ueclogo1.jpg

 

S-K 1300 INITIAL ASSESSMENT REPORT – ROUGHRIDER URANIUM PROJECT

REPORT DATE: NOVEMBER 5, 2024

 

Lower grade mineralization occurs as either disseminated grains of pitchblende, fracture-lining, or veins of pitchblende. Galena occurs in a number of habits and is variably present in the uranium mineralization. The lead is presumed to have formed from the radioactive decay of uranium. Veinlets of galena are up to 5 mm thick and either crosscut massive pitchblende, as anhedral masses (less than 1 mm in size) interstitial to the massive pitchblende, or as fine- grained, sub-millimetre-scale disseminated flecks of galena omnipresent throughout mineralized drill core. In all cases, the galena appears to have formed later than the uranium mineralization.

 

Mineralization is in general terms, mono-metallic (uraninite) in composition. In the RRW deposit, visible, crystalline nickel-cobalt sulf-arsenides are present locally. At the RRE and RRFE deposits, the presence of nickel-cobalt sulf-arsenides is rare. The exact relationship of these elements to uranium is variable and still unclear at this time. However, unlike many unconformity-type uranium deposits in the Athabasca Basin, variable amounts of copper mineralization are present within the deposits.

 

The zones of uranium mineralization at the Project vary in size and depth below the unconformity:

 

1.

RRW - is 200 m long and up to 50 m wide, and occurs at the unconformity down to approximately 50 m below the unconformity (Figure 6-6 and Figure 6-7);

 

2.

RRE - is 100 m long and up to 50 m wide, and occurs from 20 m below the unconformity down to approximately 120 m below the unconformity (Figure 6-6 and Figure 6-8); and

 

3.

RRFE - is 75 m long and up to 50 m wide, and occurs from 100 m below the unconformity down to approximately 220 m below the unconformity (Figure 6-6 and Figure 6-9).

 

fig6-5.jpg

 

Figure 65: Uranium Mineralized Drill Core from MWNE-085 from 252.2 m to 258.1 m (SRK, 2023)

 

ttlogo1.jpg

 

6-8

 

ueclogo1.jpg

 

S-K 1300 INITIAL ASSESSMENT REPORT – ROUGHRIDER URANIUM PROJECT

REPORT DATE: NOVEMBER 5, 2024

 

fig6-6.jpg

 

Figure 66: Plan View of the Project Uranium Deposits (SRK, 2023)

 

fig6-7.jpg

 

Figure 67: Cross Section W-W through the RRW Deposit (SRK, 2023)

 

ttlogo1.jpg

 

6-9

 

ueclogo1.jpg

 

S-K 1300 INITIAL ASSESSMENT REPORT – ROUGHRIDER URANIUM PROJECT

REPORT DATE: NOVEMBER 5, 2024

 

fig6-8.jpg

 

Figure 68: Cross Section E-E through the RRE Deposit (SRK, 2023)

 

ttlogo1.jpg

 

6-10

 

ueclogo1.jpg

 

S-K 1300 INITIAL ASSESSMENT REPORT – ROUGHRIDER URANIUM PROJECT

REPORT DATE: NOVEMBER 5, 2024

 

fig6-9.jpg

 

Figure 69: Cross Section FE-FE through the RRFE Deposit (SRK, 2023)

 

6.3.3

Alteration

 

Strong alteration has been intersected in the Athabasca sandstone and in the highly deformed basement rocks. Alteration within the overlying Athabasca Group includes intense bleaching, limonitization, desilicification and silicification, hydrothermal hematization, and illitic argillization. None of the primary hematite in the sandstone is preserved within the zone of bleaching and alteration.

 

Away from the RRW, RRE, and RRFE deposits, the background dominant clay species within the Athabasca sandstone is the regional dickite assemblage; within the Project area, it is illite. However, the extent and intensity of the alteration in the Athabasca sandstone at the RRE is less than that above the RRW. In contrast, however, the illite abundance in the sandstone above the RRFE, the deepest of the three zones, is the stronger than at seen above either the RRE or RRW. Consequently, this variation cannot be simply due to the deeper depth of mineralization at the RRE. Currently, drilling has not identified the cause of the illite alteration patterns observed at the RRE deposit.

 

In basement rocks, alteration extends to at least 180 m below the unconformity and up to 115 m laterally away from the known mineralization. It varies in strength, ranging from weak to intense where massive clay has completely replaced the protolith. Clay alteration is predominantly white to pale green in colour and illitic in nature and extends downward into the Archean rocks. Hematite alteration within the basement rocks is spatially restricted in distribution and is commonly associated with high-grade mineralization. The hematite is variably altered on a local scale to a limonitic iron oxide.

 

ttlogo1.jpg

 

6-11

 

ueclogo1.jpg

 

S-K 1300 INITIAL ASSESSMENT REPORT – ROUGHRIDER URANIUM PROJECT

REPORT DATE: NOVEMBER 5, 2024

 

6.4

Deposit Type


 

The Roughrider deposits are interpreted to be Athabasca unconformity-associated uranium deposits, or some variant thereof. Two end-members of the unconformity-associated uranium deposit model have been defined (Quirt, 2003). A sandstone hosted egress-type model (one example is the Midwest A deposit south of the Project) involves the mixing of oxidizing sandstone-hosted brine with relatively reduced fluids from the basement in the sandstone. Basement-hosted, ingress-type deposits (one example is the Rabbit Lake deposit) formed by fluid-rock reactions between an oxidizing sandstone brine and the local wall rock of a basement fault zone. Both types of mineralization and associated host-rock alteration occur at sites of basement–sandstone fluid interaction where a spatially stable redox gradient, or front, was present. Although either type of deposit can result in high grade pitchblende mineralization with up to 20% pitchblende, they are not physically large.

 

Egress-type deposits tend to be polymetallic (uranium-nickel-cobalt-copper-arsenic) and typically follow the trace of the underlying graphitic pelites and associated faults along the unconformity. Ingress-type, tend to be mono-mineralic uranium deposits, and can have more irregular, structurally controlled geometry.

 

The RRW, RRE, and RRFE deposits are interpreted to be ingress types, although minor sections of the RRW mineralization does extend above the unconformity and the mineralization is polymetallic compared to the RRE and RRFE deposits.

 

ttlogo1.jpg

 

6-12

 

ueclogo1.jpg

 

S-K 1300 INITIAL ASSESSMENT REPORT – ROUGHRIDER URANIUM PROJECT

REPORT DATE: NOVEMBER 5, 2024

 

7.0

EXPLORATION


 

7.1

Exploration


 

This sub-section summarizes the exploration work completed at the Property, other than exploration drilling, which is summarized in Section 7.2. Exploration work conducted includes a number of geophysical (EM, magnetic, gravity, seismic and resistivity) surveys completed by a number of different contractors between 2005 and 2009 and relogging of available historical drill core in 2006 by Hathor.

 

Sub-sections 7.1.1 to 7.1.5 are excerpts from 2023 SRK MRE report (SRK, 2023) which were reviewed and accepted by the UMR QP.

 

7.1.1

2005 GEOTEM and Aeromagnetic Survey

 

Fugro Airborne Surveys (“Fugro”) completed a 124-line kilometer airborne electromagnetic (“GEOTEM”) and aeromagnetic survey of the Project area (ML-5544) in 2005 (Robertshaw, 2006). The survey did not detect any graphitic-type basement conductors within the Project area. Three weak and short electromagnetic conductor segments, thought to represent fault zones extending through the Athabasca Group sandstone, were identified.

 

7.1.2

2006 Logging of Historic Drill Core

 

In the fall of 2006, Hathor relogged available historical drill core drilled on the Property. Detailed lithogeochemical and clay speciation studies of the historical drill core were also undertaken. These data were invaluable in identifying drill target areas.

 

7.1.3

2007 Aeromagnetic Survey

 

Goldak Airborne Surveys carried out an 850-line km tri-axial aeromagnetic survey in 2008. This survey provided a high-quality product with sufficiently broad coverage to assess the geological and structural setting of the Project, in relation to significant nearby features such as the uranium deposits of the adjacent Midwest Joint Venture (“MWJV”) owned by Orano (69.16%), Denison Mines (25.17%), and OURD (Canada) Co., Ltd. (5.67%). Within the MWJV property, prominent structures trend 30°, 50°, and 95° (Robertshaw, 2008).

 

7.1.4

2007 Tempest and Magnetic Gradiometer Survey

 

Fugro completed a 395-line km airborne EM (“TEMPEST”) and magnetic gradiometer survey in 2007. The survey was aimed at identifying sandstone alteration features using an early time EM channel data. Results showed a 1 km wide region of early channel conductivity that coincided with a group of anomalies from ground resistivity surveys, including a low resistivity zone that is interpreted to identify the hydrothermal alteration associated with the deposits.

 

7.1.5

Ambient Noise Tomography

 

Fleet Space Technologies Pty Ltd completed a series of ExoSphere ambient noise tomography (“ANT”) surveys in April of 2024. Data processing and results were provided by Fleet Space Technologies. The primary objective of the survey was to identify seismic velocity structures and geometries within the basement and sedimentary sequence associated with uranium mineralization. The secondary objective of the survey was to map depth to basement in areas where drilling had not previously identified the unconformity depth. The survey interpreted a structure near the west-central region of the third infill survey that correlated with regional velocity trends and resembled the signature from known mineralization at the Roughrider deposit, located further to the northwest of the property. Areas of interest for future exploration were identified, particularly zones of intermediate velocity spatially associated with high velocity boundaries, which could indicate potential mineralization zones.

 

ttlogo1.jpg

 

7-1

 

ueclogo1.jpg

 

S-K 1300 INITIAL ASSESSMENT REPORT – ROUGHRIDER URANIUM PROJECT

REPORT DATE: NOVEMBER 5, 2024

 

7.1.6

Photo-Relogging

 

During a series of site visits by RTCU geologists in 2012 and 2013, it was suggested that the felsic basement units originally logged as granitoid gneisses were actually semi-pelitic gneisses, concordant with the mafic pelitic gneisses rather than a series of complex, metamorphosed granitoid intrusions. These observations were consistent with other deposits in the Athabasca Basin, particularly in the Cameco logging scheme. A former Cameco geologist was contracted by RTCU in 2013 and suggested that all crucial holes be re-logged according to the Cameco logging scheme.

 

A photo re-logging program was completed in April 2014 by contract geologists from Big Rock Exploration. The scope of re-logging program was focused on drillholes within the immediate RRW, RRE, and RRFE deposit areas. Regional exploration holes were not re-logged at this time. The results of this re-logging did not change the overall interpretation of the deposit. In general, rocks previously logged as granitoid gneisses were re-logged to arkosic and semi-pelitic gneisses. The more mafic units were easier to distinguish visually and were rarely changed from the original logs.

 

A number of difficulties were noted by the contractors during the re-logging program associated with the intense alteration of the rocks. Alteration near the unconformity, referred to as paleo-weathering, often obscures original texture and mineralogy, making it difficult or impossible to accurately identify the original lithology. Hydrothermal alteration also overprints texture and mineralogy, particularly in close proximity to mineralization. Seeing the core in person lends some degree of confidence in the interpretation of the protolith but can be quite challenging when logging by photos.

 

7.2

Exploration Drilling


 

Exploration drilling data available on the Property has been collected through multiple phases of drilling, by Asamera (1978), Hathor (2007 to 2012) and Rio Tinto (2012 to 2016) totaling 665 drillholes for 228,184.9 m (Table 7-1 and Figure 7-1). In addition to drill phases focused on defining uranium mineralization at RRW, RRE, and RRFE, a significant amount of drilling has been completed through the Project area testing various targets (termed “RECON” in Table 7-1).

 

UEC commenced a drill program in November 2023 that is ongoing, and as of July 31, 2024, UEC has drilled an additional 29,840 m in 94 holes to further explore on the Property. Of the 94 holes, only six holes intersected the mineralized zones used in the 2023 Mineral Resource estimate; four of which are metallurgical drill holes (RR-875, RR-879, RR-883, and RR-886B) that are currently being processed at the SRC laboratory and the other two are infill holes that are awaiting the assays to be returned to UEC. Mineralization has been intersected and reported to the public through press releases; however, the drill program results thus far are not considered to be material to the Mineral Resource Statement presented in this TRS.

 

Information in sub-sections 7.2.1 to 7.2.8 regarding Hator and RTCU is from the 2023 SRK MRE report (SRK, 2023) which was reviewed and accepted by the UMR QP. The information regarding the recent UEC drilling in these subsections was provided by UEC, which was also reviewed and accepted by the UMR QP.

 

ttlogo1.jpg

 

7-2

 

 

ueclogo1.jpg

 

S-K 1300 INITIAL ASSESSMENT REPORT – ROUGHRIDER URANIUM PROJECT

REPORT DATE: NOVEMBER 5, 2024

 

Table 71: Project Drilling Summary by Year, Company, and Deposit (UEC, 2024)

 

Year

Company

RECON

RRE

RRFE

RRW

Total

Holes

Metres

Holes

Metres

Holes

Metres

Holes

Metres

Holes

Metres

1978

Asamera

10

2,348

2

473

2

503

-

-

14

3,323

2007

Hathor

3

906

-

-

-

-

-

-

3

906

2008

Hathor

12

4,461

-

-

-

-

30

11,571

42

16,032

2008

Hathor

37

11,003

6

2,446

-

-

119

38,413

162

51,862

2010

Hathor

-

-

72

20,016

13

4,324

80

21,427

165

45,767

2011

Hathor

12

4,703

21

5,476

48

17,815

4

1,252

85

29,247

2012

Hathor

3

1,602

-

-

1

456

-

-

4

2,058

Rio Tinto

4

2,084

4

954

27

13,009

-

-

35

16,047

2013

Rio Tinto

75

33,578

7

1,862

12

4,144

1

396

95

39,980

2014

Rio Tinto

47

17,306

1

477

10

4,344

-

-

58

22,127

2016

Rio Tinto

2

835

-

-

-

-

-

-

2

835

2023

UEC

19

5,810

-

-

-

-

-

-

19

5,810

2024*

UEC

75

24,030

-

-

-

-

-

-

75

24,030

Grand Total

-

299

108,666

113

31,704

113

44,595

234

73,059

759

258,024

*2024 Drilling from January 1st to July 31st.

 

ttlogo1.jpg

 

7-3

 

 

ueclogo1.jpg

 

S-K 1300 INITIAL ASSESSMENT REPORT – ROUGHRIDER URANIUM PROJECT

REPORT DATE: NOVEMBER 5, 2024

 

fig7-1.jpg

 

Figure 71: Plan View of the Project Drillhole Collars by Company (UEC, 2024)

 

ttlogo1.jpg

 

7-4

 

ueclogo1.jpg

 

S-K 1300 INITIAL ASSESSMENT REPORT – ROUGHRIDER URANIUM PROJECT

REPORT DATE: NOVEMBER 5, 2024

 

7.2.1

Drilling Methodology and Procedures

 

All drilling on the Property has been completed using diamond coring method. Procedures for data collection were developed and implemented by Hathor, adopted by Rio Tinto in 2012, and were generally adopted by UEC in 2023. The procedures used through all drilling campaigns are well documented in standard operating procedures and manuals.

 

Diamond drilling has been completed using primarily Zinex A5 Diamond drills, and to a lesser extent, Longyear LF-70 drills. These drilling rigs have depth capabilities of 600+ m. The drills were configured depending on the drilling location and season. Winter drill programs utilize drills mounted on metal skids to allow mobilization between drill collar sites. Summer drill programs have utilized a combination of skid-mounted, helicopter-portable and barge-based drill rigs (Figure 7-2). Both the skid-mounted and helicopter-portable rigs can complete drillholes ranging in dip from vertical to 45º. In contrast, the barge-based drill rig is limited to vertical holes. Only drilling at the RRW deposit employed barge-based drill rigs due to the location under South McMahon Lake. Starting in November 2023, drilling initiated by UEC has utilized Clean-Tech Modular Drilling Systems by Drillco Mining.

 

Wireline coring tools were used in all cases, with the majority of coring completed at NQ (47.0 mm diameter) and HQ (63.5 mm diameter). NQ-sized holes were cased NW into bedrock and drilled NQ to depth, HQ-sized holes were cased HW and drilled HQ-sized to depth. In rare instances, for example hole MWNE-10-607, NQ-sized holes were reduced to BQ-sized (36.5 mm diameter) holes due to encountering‑ severely bad ground.

 

RRW and RRFE were drilled on generally 10 m spaced sections, and 10 m to 15 m spacings on section for RRW and RRFE, respectively. RRE is drilled at slightly wider, 10 m to 20 m spacings. Vertical and inclined drillholes have been used to target the mineralization in each zone, although the vast majority of holes are steeper than 70º. Drilling has largely been designed to intersect the mineralized zones at an angle roughly perpendicular to the local mineralization trend, although, due to the complex structural framework at each deposit, intersection thicknesses are rarely true thickness (Examples in Figure 6-7 to Figure 6-9).

 

All mineralized and non-mineralized holes within the vicinity of the RRW, RRE, and RRFE deposits were cemented from bottom to top. The top 30 m of all non-mineralized holes outside the deposit areas are cemented as per Saskatchewan MOE regulations.

 

ttlogo1.jpg

 

7-5

 

ueclogo1.jpg

 

S-K 1300 INITIAL ASSESSMENT REPORT – ROUGHRIDER URANIUM PROJECT

REPORT DATE: NOVEMBER 5, 2024

 

fig7-2.jpg

 

Figure 72: Drilling operations at the Project (SRK, 2023)

 

(A: Barge Mounted A5 Drill, B: Helicopter Transported A5 Drill, C: Skid Mounted A5 Drill)

 

7.2.2

Drillhole Surveys

 

Holes are located on a grid and collar sites are surveyed by differential GPS using NAD83 and UTM zone 13N. Land-based drillhole locations are marked with a tagged picket.

 

Downhole surveys were completed either with, or a combination of, Reflex EZ-Shot or a Reflex Gyro instrument. The Reflex EZ-shot is a single point instrument and is used to obtain dip and azimuth measurements at 21 m intervals down the hole with an initial test taken 6 m below the casing and a final test at the bottom of the hole. UEC employs the same system, utilized at 30 m intervals once the casing is set into bedrock.

 

ttlogo1.jpg

 

7-6

 

ueclogo1.jpg

 

S-K 1300 INITIAL ASSESSMENT REPORT – ROUGHRIDER URANIUM PROJECT

REPORT DATE: NOVEMBER 5, 2024

 

The Reflex Gyro is a continuous multi-point instrument, which is not affected by magnetics and allows measurements to be made through the casing. It is used to obtain dip and azimuth measurements at 3 m intervals through the casing and at 5 m through the rest of the hole and a final test at the bottom of the hole. The reflex Gyro system was employed starting in the winter of 2010.

 

7.2.3

Geophysical Surveys

 

At the completion of each drillhole, downhole radiometric surveys were performed down the drill string at a speed of 15 m per minute down the hole and 5 m per minute up the hole using a Mount Sopris winch and Matrix logger interface board.

 

Unmineralized or weakly mineralized holes were surveyed using a single crystal (sodium iodide, or NaI) gamma probe that included the following tools: SN169, SN276, SN439, SN3858, SN4171, SN4172 and SN4178. Holes with an estimated uraninite content greater than 3% were surveyed with a downhole triple (one NaI and two Geiger-Mueller tubes) gamma probe that included the following tools: SN3705, SN4484, SN3877 and SN4410. Similarly, UEC employs a shielded standard gamma tool with an NaI crystal for stratigraphic information and High-Flux gamma tool calibrated to Eagle Point style mineralization for estimation of uranium mineralization.

 

The Saskatchewan Research Council (“SRC”) provides downhole calibration test pit facilities in Saskatoon, Saskatchewan, for the calibration of downhole gamma probes. These test pits consist of four variably mineralized holes with maximum grades of 0.61%, 0.30%, 1.35%, 4.15% uraninite. The probes used for the surveys were calibrated at the SRC test pit facility and allow for grade thickness estimates to be made from the instrument readings and grade estimates equivalent to U3O8 (“eU3O8”) to be calculated.

 

In general, no calibrations were available for high-grade mineralization (more than 5% U3O8) as Hathor and RTCU were not able to maintain an open cased hole in such material and the highest grade SRC test pit available is 4.15% U3O8. Consequently, no eU3O8 grades are generally reported.

 

The eU3O8 values were used to guide drilling and sampling operations only. Only U3O8 chemical assays have been used to construct the mineralization models and inform the grade estimates supporting the MRE.

 

7.2.4

Drill Core Logging

 

At the drill rig, the core was removed from the core barrel by the drillers and placed directly into wooden core boxes. Individual drill runs were identified with small wooden blocks, onto which the depth in metres was recorded. The core was transported either by the drill contractor or company personnel to the fenced core-logging facility (the Project Core Camp) on the Property.

 

All drill core logging and sampling was conducted by Hathor, RTCU, or UEC personnel. As per health and safety protocols, and to avoid any radioactive cross-contamination, all core boxes were scanned with a hand-held scintillometer to assess whether they were “hot” or “cold” in nature upon arrival at the Project Core Camp. The definition of “hot” core boxes are those that yield an “in-box” reading of greater than 500 cps. At this point, hot core was placed directly into the “hot shacks” and cold core (less than 500 cps) was placed in “cold shacks”.

 

Geologists logged the hot and cold drill cores by recording their observations in a database. The logging included observations of radioactivity, lithologies, mineralization, alteration, friability, maximum grain size in the sandstone, fracture density, structural information, core loss/recovery, and a descriptive log of the core. Upon completion of each drillhole, the data was transferred into the master database. All core trays were marked with aluminum tags as well as felt-tip marker.

 

ttlogo1.jpg

 

7-7

 

ueclogo1.jpg

 

S-K 1300 INITIAL ASSESSMENT REPORT – ROUGHRIDER URANIUM PROJECT

REPORT DATE: NOVEMBER 5, 2024

 

All mineralized core was carefully scanned with a hand-held Gamma Radiation Detector (Exploranium GR-110G or RS-120 Super SCINT) by removing each piece of drill core from the ambient background, noting the most pertinent reproducible result in cps, and carefully returning it to its correct place in the core box. These data, in conjunction with the downhole gamma probe data were used to guide split-sampling. UEC utilizes the same procedure but relies upon the SPP2 scintillometer for gamma measurements in the core shack.

 

After selection of the intervals to be split-sampled, an aluminum tag or a hexagonal plastic core marker with the same number was stapled into the core box at the beginning of the sample interval. Paper sample tag markers are stapled into the core box to document the sample.

 

Detailed photographic records of each drillhole were kept. All drillholes were photographed from just above the marker conglomerate (approximately 160 m vertical depth below surface) to the end of the drillhole prior to sampling. Mineralized sections were additionally photographed with the sample tags in place prior to split sampling.

 

7.2.5

Drill Core Sampling

 

To determine the content and distribution of uranium, and other major, minor and trace elements, as well as clay minerals (alteration), several types of samples are routinely collected from drill core from RRW, RRE and RRFE, including:

 

Composite geochemical samples of sandstone and basement rocks

 

Systematic split geochemical samples of mineralized (radioactive) drill core

 

Point geochemical samples of basement rock

 

Dry specific gravity (“SG”) samples

 

Clay alteration species (“PIMA”) samples

 

All geochemical core samples are tracked by two-part SRC ticket books. One tag goes with the sample for assay and the other tag is kept with the geologist’s records.

 

Composite Geochemical Samples

 

Hathor, RTCU, and UEC collected a suite of composite sandstone samples down the entire sandstone column from each drillhole. From the top of the sandstone column to a downhole depth of approximately 180 m, the sandstones were sampled by 10 m composite chip samples. For the next 20 m, a total of 4 m to 5 m samples were collected, and for the final approximately 10 m up to the unconformity (approximately 210 m vertical depth below surface), 1 m to 2 m composite samples were taken. Immediately below the unconformity, a 1 m composite sample was collected from the paleo-weathered material. UEC also used composite samples through the sandstone, but at a 10 m interval through the sandstone, with spot sample taken at feature of interest.

 

In the case that mineralization or very strong alteration reached the sandstone column, this sampling approach was superseded by the collection of systematic split samples. All composite samples were sent to the SRC laboratory for preparation and assaying.

 

Split Samples

 

Hathor, RTCU, and UEC assayed all the cored sections through mineralized intervals. Sampling of the holes for assays was guided by the radiometric logs and readings from a hand-held scintillometer. Initial drillholes (up to MWNE-08-19) were sampled using variable sample lengths between 0.2 m and 1.0 m. All drillholes after MWNE 08-19, were sampled using either 0.5 m or 1.0 m sample lengths. In areas of extreme core loss sample intervals may extend locally to 3 m.

 

ttlogo1.jpg

 

7-8

 

ueclogo1.jpg

 

S-K 1300 INITIAL ASSESSMENT REPORT – ROUGHRIDER URANIUM PROJECT

REPORT DATE: NOVEMBER 5, 2024

 

Barren samples were taken to shoulder both ends of mineralized intersections. Shoulder sample lengths were at least 1 m on either end but may be significantly more in areas with strong mineralization. All cores were split with either a handheld wheel-type splitter or a hydraulic core splitter according to sample intervals marked on the core. One half of the core was preserved in the box for future reference and the other half was bagged, tagged, and sealed in a plastic bag. The bags of samples for geochemical or clay analyses were placed in large plastic pails and sealed for shipping. Bags of mineralized samples were sealed for shipping in metal or plastic pails depending on their radioactivity. Mineralized samples were shielded by placing non-mineralized or weakly mineralized samples around the inner margins of the pail.

 

Point Samples

 

Point samples, normally 10 cm to 15 cm in length, were taken: selectively through the paleo-weathering profile; systematically at 3 m or 5 m intervals through altered basement rock which is not split-sampled; and selectively through fresh basement rock. This sampling aids in the identification and understanding of background metal distribution.

 

Specific Gravity Samples

 

In winter 2009 (MWNE 09-43A onwards), a process to determine the dry SG on un-split core samples from various host rocks and mineralization styles was instituted. These samples were dried for four days in storage at the core logging shacks. Dry SG was determined by the water immersion methodology. Dried core pieces were weighed, wrapped in plastic film, which was heated to make tight seal around the core, and then weighed suspended in water.

 

For mineralized core, dry SG was determined for 50 cm core lengths to correspond to the sample interval. Between one and three 50 cm core lengths were selected for every 10 m of mineralized core. For unmineralized core, dry SG was determined for 10 cm core lengths roughly every 20 m throughout each drillhole.

 

Locations of each density sample were marked in the boxes to avoid core mix ups while measurements are taken. Prior to each measurement of the unknown samples, three in-house standards were measured and checked to ensure results were within +/-1% of the expected value of the standards.

 

PIMA Sampling

 

For the determination of clay alteration species in the sandstone column, Hathor (2007 to 2011) collected samples for analysis using the PIMA analyzer. Throughout the sandstone section, a 2 cm to 3 cm chip sample of core was collected every 5 m or 10 m. Near the unconformity, the sample interval was shortened as needed. PIMA samples were also collected as needed throughout the altered basement rocks, normally at 3 m or 5 m intervals.

 

7.2.6

Core Recovery

 

The mineralized rock at the RRW, RRE, and RRFE deposits is predominantly highly altered basement gneisses. Locally, the core can be broken and blocky, but recovery was generally good with recovery of 95%, 96%, and 99% within the modelled mineralized volumes for the RRW, RRE, and RRFE, respectively.

 

ttlogo1.jpg

 

7-9

 

ueclogo1.jpg

 

S-K 1300 INITIAL ASSESSMENT REPORT – ROUGHRIDER URANIUM PROJECT

REPORT DATE: NOVEMBER 5, 2024

 

There are localized intervals of up to 10 m with only 80% recovery. Intervals where core loss was greater than 50% over 3 m runs were rare. There is some evidence that higher-grade intervals are more prone to lower-than-average recovery, although this is supported by very few samples (Figure 7-3). The few instances of very high grades (>15% U3O8) and low recovery (<80%) samples were investigated by reviewing the downhole radiometric survey information corresponding to these intervals and found the grade values are supported by high-value radiometric data, suggesting that the intervals are indeed high-grade (Figure 7-4).

 

In general, the recovery within the Wollaston group basement rocks is relatively high compared to the Manitou Falls formation. There is a notable Project-wide decrease in recovery at the unconformity associated with increased alteration (Figure 7-5). This decrease in recovery at the unconformity does not affect the modelled mineralization but is indicative of the decreased rock quality.

 

Due to the high rate of core recovery within the mineralized zones, the chemical assays are considered to be unbiased in relation to the drilling recovery. In rare cases, some mineralization may have washed out during the drilling process. In instances of high-grade mineralization with poor recovery, close correlation of the downhole radiometric data and the observed chemical analyses was observed which provides confidence in the tenor of mineralization whilst recognizing there may be some differences in absolute values.

 

fig7-3.jpg

 

Figure 73: Recovery vs. U3O8% Grade within Modelled Mineralization (SRK, 2023)

 

ttlogo1.jpg

 

7-10

 

ueclogo1.jpg

 

S-K 1300 INITIAL ASSESSMENT REPORT – ROUGHRIDER URANIUM PROJECT

REPORT DATE: NOVEMBER 5, 2024

 

fig7-4.jpg

 

Figure 74: Cross Section of RRW Modelled Mineralization (SRK, 2023)

 

{(red shaded solids) with drillholes coloured by % recovery (legend inset upper right) and radiometric probing CPS trace (red lines) on the left of the hole trace and U3O8% geochemical assays right of the drillhole}

 

ttlogo1.jpg

 

7-11

 

ueclogo1.jpg

 

S-K 1300 INITIAL ASSESSMENT REPORT – ROUGHRIDER URANIUM PROJECT

REPORT DATE: NOVEMBER 5, 2024

 

fig7-5.jpg

 

Figure 75: Contact Analysis Plot of Recovery vs. Distance from the Unconformity (SRK, 2023)

 

7.2.7

Hydrogeologic Characterization

 

Background and Overview

 

The hydrogeological stratigraphy of the Athabasca Group is relatively well understood from nearby operations and is characterized by highly permeable water- bearing sandstones and conglomerates. The unconformity between the Athabasca Group and the underlying basement rocks itself is also a potentially high permeability conduit for inflow.

 

These units have typically been either avoided or isolated from the main mining areas proximal to the unconformity using ground freezing technology. The use of ground freezing in this geological scenario is well established and has been effectively implemented on similar uranium deposits in the area such as Cigar Lake and McArthur River, both operated by Cameco. Notably, the Cigar Lake mine was flooded in 2006, prior to the adoption of ground freezing in this region, when mining encountered unmanageably high inflows within basement rocks near the unconformity.

 

Type and Appropriateness of Hydrogeological Testing and Sampling

 

Hydrogeological investigations began with RTCU in July 2012 and continued to 2016. Hydrogeological characterization was undertaken by way of drilling and packer testing at seven locations in and around the RRE and RRFE deposits as well as adjacent to the deposits (Figure 7-6). Single-well packer tests were performed within the Athabasca Sandstone and underlying basement rock over 75 intervals at seven-hole locations. Test interval lengths ranged from around 22 m to 45 m with three longer interval tests (up to 121 m) completed in the deeper basement rock at the shaft exploration hole.

 

Multilevel vibrating wire piezometers (with up to six pressure transducers per string at depths of between 290 metres below ground level (“mbql”) and 444 mbgl) together with nested standpipe piezometers (three monitoring intervals per location installed within each of the Athabasca Sandstone, unconformity, and within the crystalline basement rock) were installed at six locations.

 

ttlogo1.jpg

 

7-12

 

ueclogo1.jpg

 

S-K 1300 INITIAL ASSESSMENT REPORT – ROUGHRIDER URANIUM PROJECT

REPORT DATE: NOVEMBER 5, 2024

 

Monitoring by RTCU (2012 to 2016) included water level measurements and water quality sampling from the monitoring wells on a quarterly basis as well as continuous water level monitoring from the vibrating wire piezometers recorded twice daily. No monitoring has been undertaken in the unconsolidated (overburden) deposits.

 

fig7-6.jpg

 

Figure 76: Plan View and Long Section Looking North of Hydrogeological Holes (SRK, 2023)

 

Terracon QP considers the scope of hydrogeological testing, monitoring and sampling completed to-date to be appropriate for the current level of study. Terracon acknowledges that current hydrogeological studies are focused on the RRE and RRFE deposits. The RRW deposit lies underneath a lake which has prevented installation of instrumentation or hydrogeological testing in this area. Furthermore, no hydrogeological characterization of the shallow unconsolidated (overburden) deposits have been undertaken. Finally, no hydrogeological studies have been undertaken with respect to a potential tailings storage facility area and this will be addressed as the Project advances.

 

RTCU identified the possibility that groundwater samples may be impacted by cement grout in the exploration holes resulting in unrepresentatively high pH values. This will need further investigation and additional confirmatory groundwater sampling. Ongoing baseline groundwater chemistry monitoring will be required as the project advances to adequately confirm baseline groundwater characteristics.

 

ttlogo1.jpg

 

7-13

 

ueclogo1.jpg

 

S-K 1300 INITIAL ASSESSMENT REPORT – ROUGHRIDER URANIUM PROJECT

REPORT DATE: NOVEMBER 5, 2024

 

Results and Interpretation

 

Packer testing in the Athabasca Sandstone (generally excluding the basal conglomerate, which was tested across the unconformity and into the basement rock) resulted in a geometric mean hydraulic conductivity of 3E-7 m/s. This result compares favourably with other nearby deposits such as the Midwest Project to the south of the Property.

 

Testing in the crystalline basement rock, away from the Roughrider deposits, produced a geometric mean hydraulic conductivity 2E-8 m/s (i.e., one order of magnitude lower than the Athabasca Sandstone). Geometric mean hydraulic conductivity in the altered crystalline basement rocks associated with the Roughrider deposits was 2E-9 m/s (i.e., one order of magnitude lower than that of the unaltered crystalline basement rock and two orders of magnitude lower than the Athabasca Sandstone). Packer testing results showed that the permeability of the basement rock is higher away from the altered zones, which are more clay rich and less fractured.

 

Testing performed across the unconformity (including the basal conglomerate) showed a geometric mean hydraulic conductivity very similar to the Athabasca Sandstone. Future investigations will include packer testing over shorter intervals, isolating the basal conglomerate, in order to get a better estimate of the specific hydraulic properties of this unit.

 

In the absence of hydrogeological testing within the unconsolidated overburden, RTCU considered the hydraulic conductivity data from the nearby Midwest Project where the overlying sandy tills and alluvial sands indicate a permeability of between around E-6 m/s and E-5 m/s (i.e. one to two orders of magnitude higher than the Athabasca Sandstone).

 

Initial studies by RTCU suggested that the bedrock hydrogeological unit is unconfined. This observation is based on a lack of strong vertical hydraulic gradients observed in the monitoring wells. These observations require further confirmation as they are critical to the understanding of risk of inflows from the Athabasca Sandstone into a potential underground mine. Horizontal hydraulic gradients, from the data collected have also been relatively inconclusive and variable. Vibrating wire piezometer data collected between 2012 and 2013 shows a general decline in water levels during this period of up to 1 m, likely indicating equilibration to some extent with the surrounding formation, but also showing a slight seasonal variation of up to 1 m.

 

Groundwater Modelling and Inflow Estimation

 

Estimates of groundwater inflows to a potential mine were produced in support of the 2011 PEA (SRK, 2011) based on similar nearby deposits and hydrogeological data from the wider Athabasca Basin. Golder Associates (now WSP) developed a 3D conceptual model to predict inflows into mine workings (Golder, 2014). 

Water Management Infrastructure Considerations

 

Expected inflows can be considered in terms of routine or average groundwater inflows as well as non-routine or unexpected significant inflows due to intersection of unforeseen high permeability preferential flow zones, including the potential inflow via exploration and investigative drill holes. Estimates of both types of inflows are important and should be considered separately for dewatering infrastructure design purposes. For example, unexpected nonroutine inflows may be managed through standby pumping capacity and contingency sump storage whereas a duty system should be designed for efficient pumping of the ongoing average inflows.

 

ttlogo1.jpg

 

7-14

 

ueclogo1.jpg

 

S-K 1300 INITIAL ASSESSMENT REPORT – ROUGHRIDER URANIUM PROJECT

REPORT DATE: NOVEMBER 5, 2024

 

Study Level and Suitability

 

The work undertaken to date is considered suitable by Terracon for an advanced exploration stage project. There are gaps in the following aspects of hydrological studies that will be addressed in future mining studies:

 

Hydrogeological characterization in and around the RRW deposit;

 

Regional baseline groundwater and surface water monitoring and characterization studies as well as a water impact assessment in support of environmental studies;

 

Hydrogeological characterization of the shallow unconsolidated (overburden) deposits; and

 

Hydrogeological characterization for a potential tailings storage facility area.

 

Key Risks, Limitations and Recommendations

 

There is an ongoing risk to the Project of connection between future mine workings and the Athabasca Sandstone, unconformity, or the overlying surface water system. This could take place either through connection with a geological structure or via exploration drillholes. The risk of hydraulic connection has been investigated to some degree at RRE and RRFE deposits through packer testing and VWP installation but not at RRW deposit. Therefore, further hydrogeological test work is required at RRW, likely included in future resource or geotechnical drill programs in this area. Further work is also required to characterize the shallow unconsolidated (overburden) deposits.

 

The risk of water impacts on the Project have not been fully evaluated to date. Baseline groundwater and surface water monitoring (level, flow and chemistry) will need to be restarted and expanded to adequately confirm baseline conditions. Early data from this program should inform regional characterization studies and a water impact assessment. These studies should include the area around a potential tailings storage facility area. Groundwater sampling to date may have been impacted by cement grout in exploration holes, calling into question their representativeness. This will also need further investigation and likely additional confirmatory groundwater sampling.

 

Hathor and RTCU have described that the exploration drillholes have been surveyed and grouted. However, RTCU noted that drillhole seals could fail and suggest that drillhole collar security measures should be implemented (if developing underground), as are used successfully at other underground uranium operations in Saskatchewan. The Terracon QP agrees with this risk and recommendation and note that an ongoing system of recording, surveying and grouting all exploration drill holes should be implemented.

 

Any water that is discharged by the Project to the environment will require treatment through a water treatment plant. Only limited initial work has been done by RTCU on the water balance to define water disposal and treatment requirements and this will require further work as the Project progresses. This is a notable gap as it could represent a significant cost aspect of the Project. Further work is required to better define the site water balance both in terms of flow and quality to design and cost a suitable water treatment plant.

 

7.2.8

Geotechnical Characterization

 

Background and Overview

 

A preliminary appraisal of the geotechnical data and the rock mass characteristics of the three deposit areas is provided below. Each deposit area is well drilled, but each has a varying quantity and quality of recorded geotechnical information.  Terracon assesses that the geotechnical characterization of the Project is at a conceptual study level.

 

ttlogo1.jpg

 

7-15

 

ueclogo1.jpg

 

S-K 1300 INITIAL ASSESSMENT REPORT – ROUGHRIDER URANIUM PROJECT

REPORT DATE: NOVEMBER 5, 2024

 

This report section is limited to the above and does not give a detailed description (or constitute design) of:

 

The stability and dimensions of minable stopes

 

The need for pillars and/or backfill support

 

The optimal location for mine access excavations and their respective standoff distance

 

The vertical opening placement and dimensions

 

Comment on the sequence of excavation to manage ground control risk and optimize extraction

 

Data Collection Approach

 

Geotechnical data was collected by Hathor, RTCU, and Golder, and recorded in an Acquire database including:

 

Total and solid core recovery Geotechnical domain (interval) logging with various geotechnical parameters to enable rock classification rating calculations, but with varying degrees of completion

 

Point structure logging

 

Point Load Testing (PLT) strength index

 

Lithology, alteration, and major structures log data.

 

Terracon QP has assessed previous reviews of the extent and suitability of geotechnical logging information with respect to key geotechnical data categories summarized in Table 7-2 and expanded in Table 7-3.

 

ttlogo1.jpg

 

7-16

 

 

ueclogo1.jpg

 

S-K 1300 INITIAL ASSESSMENT REPORT – ROUGHRIDER URANIUM PROJECT

REPORT DATE: NOVEMBER 5, 2024

 

Table 72: Key Geotechnical Data Categories Relevant for Rock Quality Classification Rating Systems

 

(The status of the Project data elements is listed next to each category)

 

Category

Parameters

Classification System

Status of Roughrider Geotechnical Data set

Beniawski's

RMR (1989)

Barton Q

(1974, 2002)

Laubscher

MRMR (1990)

Laubscher

IRMR (2000)

Domain Logging Point Logging

Intact Rock Strength (IRS)

UCS

x

x

x

x

Logged

Partial testing

Open Fracture Frequency (FF)

RQD

x

x

x

-

Partial testing

-

FF/m

x

-

x

x

Extensive Logging

-

Joint Sets

x

x

x

x

Partial testing

-

Open Joint Strength

Roughness

x

x

x

x

Limited to RRFE

Limited

Infill Strength

x

x

x

x

Limited to RRFE

Limited

Joint Alteration

x

x

x

x

Limited to RRFE

Limited

Cemented Joints (CJ) Quantity Strength

CJ/m

-

-

-

x

Partial Logging

-

CJ Strength

-

-

-

x

Partial Logging

-

Adapted from: Jakubec & Esterhuizen 2007 Use of The Mining Rock Mass Rating Classification: Industry Experience

 

The Nature and Quality of the Sampling Methods

 

Geotechnical data generated from the logging and core testing are listed in Table 7-3.  Some parameters are not complete in the geotechnical domain logging which inhibits explicit calculation of rock quality ratings using common industry classification systems.

 

ttlogo1.jpg

 

7-17

 

 

ueclogo1.jpg

 

S-K 1300 INITIAL ASSESSMENT REPORT – ROUGHRIDER URANIUM PROJECT

REPORT DATE: NOVEMBER 5, 2024

 

Table 73: Project Geotechnical Data Collection Sources (SRK, 2023)

 

Drillhole Logging/Testing Data

Deposit Area

RRW

RRE

RRFE

Recovery

Yes

Yes

Yes

Point Structure

Yes

Yes

Yes

Geotechnical Domain Intervals

Incomplete parameters for rock quality ratings

IRS Strength

>80% drillholes

RQD

1 drillhole

7 drillholes

>80% drillholes

Open Joint Count

>80% drillholes

Joint Condition

Not logged

Not logged

9 drillholes

Point Load Tests

1 drillhole

2 drillholes

>15 drillholes

 

Geotechnical Data Distribution

 

There is generally more geotechnical data for the RRFE deposit, with only one drillhole with geotechnical data is available for the RRW deposit. Figure 7-7 presents key geotechnical parameters in each deposit area.  In general, the rock quality improves with increasing depth below the unconformity, i.e., RRW is poorest relative to RRE and RRE relatively poorer than RRFE.

 

ttlogo1.jpg

 

7-18

 

 

ueclogo1.jpg

 

S-K 1300 INITIAL ASSESSMENT REPORT – ROUGHRIDER URANIUM PROJECT

REPORT DATE: NOVEMBER 5, 2024

 

fig7-7.jpg

 

Figure 77: Interval Logging Data Availability in Each Deposit Area Below the Unconformity (SRK, 2023)

 

Main geotechnical parameters (looking North)

 

ttlogo1.jpg

 

7-19

 

 

ueclogo1.jpg

 

S-K 1300 INITIAL ASSESSMENT REPORT – ROUGHRIDER URANIUM PROJECT

REPORT DATE: NOVEMBER 5, 2024

 

Logged Structural Data

 

There is a reasonable amount of structural logging in the vicinity of the three deposit areas (Figure 7‑8), where feature type and infill mineral type is recorded. Structural point logging is available across three types of logging files:

 

Geological logging with logged structures;

 

Logged structures with core orientation and confidence rating; and

 

Logged structures with feature conditions including open, cemented, and sheared categories and geotechnical rating of the joint condition (planarity, roughness, and infill strength).

 

Based on the available data, Terracon is of the opinion that there are sufficient geotechnical parameters collected to estimate representative (not explicit) rock quality ratings (Q or RMR), commensurate with the level of the current study.

 

fig7-8.jpg

 

Figure 78: Distribution of Logged Structures (SRK, 2023)

 

(Upper image displays geology logging without geotechnical descriptions (Orange: geological structure logging, Green: Structural logging with orientation quality recorded). Lower image displays geotechnical logging with joint condition ratings)

 

An indication of the infill mineral logged for structures across the deposit areas is shown in Figure 7-9 (an interpretation of weak to strong is inferred from left to right in these charts). Clay is dominant in all areas and more resistant minerals (Quartz and carbonate fill) are not logged in the RRW but present in the RRFE deposit.

 

ttlogo1.jpg

 

7-20

 

ueclogo1.jpg

 

S-K 1300 INITIAL ASSESSMENT REPORT – ROUGHRIDER URANIUM PROJECT

REPORT DATE: NOVEMBER 5, 2024

 

fig7-9.jpg

 

Figure 79: Distribution of Mineral Infill in Logged Structures (SRK, 2023)

 

(Inferred strength increases from left to right)

 

ttlogo1.jpg

 

7-21

 

ueclogo1.jpg

 

S-K 1300 INITIAL ASSESSMENT REPORT – ROUGHRIDER URANIUM PROJECT

REPORT DATE: NOVEMBER 5, 2024

 

Strength Testing

 

Point load test (“PLT”) testing was performed to estimate the intact rock strength by RTCU following ASTM standards during the period 2012 to 2016.  Core samples tested were predominantly from drillholes in the RRFE deposit area and further east. Limited testing is available for RRE and RRW deposit areas (Figure 7-10).

 

Laboratory testing was completed in 2014 to determine strength and deformation properties of intact core samples.  Testing includes unconfined compressive strength (UCS), triaxial compressive strength (TCS), and Brazilian tensile strength (BTS), of representative samples in the Athabasca Sandstone and Basement rock. 

 

fig7-10.jpg

 

Figure 710: Distribution of Logging IRS Strength Estimate and Locations of PLT Tests (SRK, 2023)

 

Geotechnical Characterization

 

A preliminary geotechnical evaluation was conducted for the 2011 PEA (SRK, 2011) to assess and characterize the rock mass of the RRW and RRE. Based on this limited evaluation, general geotechnical domains were defined and input recommendations for mine design were provided based on these domains. Notably the majority of the geotechnical information described in the previous sections was not available for this evaluation, and the rock mass characterization was largely based on visual review of core photos and lithological logging information.

 

Four rock mass domains were defined in this evaluation and summary descriptions of rock mass quality conditions:

 

1.

Sandstone Domain: The Sandstone Domain contains the sandstone/conglomerate units above the Unconformity. Variability is anticipated to be low with generally Fair to Good rock mass quality prevailing (intact rock strength estimated at 60 MPa to 120 MPa).

 

2.

Unconformity Domain: The Unconformity Domain encompasses a zone of ground approximately 20 m either side of the regional unconformity surface where ground conditions are interpreted to exhibit a wider variability compared to the surrounding Sandstone and Basement Domains. An increased frequency of core loss, percent clay, and rubble is observed in all lithological units.

 

ttlogo1.jpg

 

7-22

 

ueclogo1.jpg

 

S-K 1300 INITIAL ASSESSMENT REPORT – ROUGHRIDER URANIUM PROJECT

REPORT DATE: NOVEMBER 5, 2024

 

3.

Basement Domain: The Basement domain encompasses the rock mass outside the interpreted High-Risk Domains including meta-sediments, and granitic gneiss. Similar to the Sandstone Domain, variability is expected to be low, with predominantly Fair to Good rock mass conditions with rock strength in the range of 80 MPa to 150 MPa by field index estimation.

 

4.

High-Risk Domain: Weaker and more friable zones should be expected in close proximity to major structures and mineralization. Based on core photo reviews of clay alteration and visual estimation of rock mass quality, an RMR <30 (poor conditions) has been used to define this domain.

 

Ground Control Comments

 

An early indication of anticipated ground control (support and improvement) has been provided by SRK and confirmed as reasonable by Terracon. Based on this preliminary evaluation, and considering the conditions expected in the High-Risk Domain for lateral development at 5 m by 5 m, a common ground control regime of 2.4 m long rebar rock bolt reinforcement, welded mesh and shotcrete surface support to the floor is considered appropriate by industry experience in similar conditions. The Basement domain, expected to be less fractured with a higher strength rock mass of Fair – Good condition, will require the same reinforcement (2.4 m long rock bolts) with either mesh or shotcrete and to 1.5-3 m from the floor. However, the long-term degradation potential of the rock types after excavation (by water and air weathering) will require assessment and suitable long-term ground control regimes designed.

 

Spans greater than 5 m by 5 m dimension (horizontally and vertically) may need be supported with longer support in addition to the primary ground support listed above.

 

Due to the likely presence of water, some level of cover grouting will be required for all lateral development within sandstone (if required), and within the basement rocks within 20 m vertical depth beneath the unconformity. This may be designed as pre-grouting or post-grouting methods.

 

Recommendations

 

As described in the 2011 PEA (SRK, 2011), and confirmed by Terracon the current assessment is preliminary in nature and further data and study are required to understand the mine scale fault structures, rock mass characterization, and potential hydrogeological conditions and connectivity. The number of drillhole intercepts have increased, as well as improvements in the types of logging data and methods of data collection since the 2011 PEA. This improved data set (2012 to 2016) has provided increased geotechnical and PLT testing data concentrated in the RRFE deposit area.

 

The system of data capture requires improvement to allow for valid geotechnical parameter collection and the calculation of standardized rock mass classification values. Major structures are to be identified and characterized by engineering geological descriptions. Hydrogeological connectivity needs to be measured in structures and in the rock mass where mine access and production excavations are likely to be designed. Borehole televiewer tools are recommended to qualify the in-situ conditions of major structures and fractured zones, calibrate the spacing of real and open joints, and characterize zones of no core recovery.

 

ttlogo1.jpg

 

7-23

 

ueclogo1.jpg

 

S-K 1300 INITIAL ASSESSMENT REPORT – ROUGHRIDER URANIUM PROJECT

REPORT DATE: NOVEMBER 5, 2024

 

8.0

SAMPLE PREPARATION, ANALYSES, AND SECURITY


 

Information in section 8 regarding Hator and RTCU is from the 2023 SRK MRE report which was reviewed and accepted by the UMR QP. The information regarding the recent UEC drilling in these subsections was provided by UEC, which was also reviewed and accepted by UMR.

 

Drill core from the Property was logged, marked for sampling, split, bagged, and sealed for shipment by Hathor, RTCU, and UEC personnel at their secure, fenced core-logging facility on the Pproperty. All samples for U3O8 assay were transported by land, in compliance with pertinent federal and provincial regulations by Project personnel. The sample containers were transported directly to the Geoanalytical Laboratories of the SRC located in Saskatoon.

 

The Geoanalytical Laboratories of the SRC are unique facilities offering high quality analytical services to the exploration industry. The laboratory is accredited ISO 9001 by the Standards Council of Canada for certain testing procedures including those used to assay samples from the Property. The laboratory is licensed by the CNSC for possession, transfer, import, export, use and storage of designated nuclear substances by CNSC Licence Number 01784-1-09.3. As such, the laboratory is closely monitored and inspected by the CNSC for compliance. The SRC laboratory is independent of Hathor, RTCU, and UEC.

 

Non-mineralized samples for routine geochemical investigation were shipped to the Geoanalytical Laboratories of the SRC by ground transport. Samples for PIMA clay analyses taken by Hathor were shipped to a consultant of Northwind Resources Ltd., Saskatoon, by ground transport. UEC analyzes and ASD spectrometer on site for the collection of spectral data from drill core.

 

Analytical data results were sent electronically to Hathor, RTCU, and UEC. These results were provided as a series of Adobe PDF files containing the official analytical results and a Microsoft Excel spreadsheet file containing only the analytical results. Upon receipt of the data, the electronic data was imported directly into the master drillhole database. During the import process, all values reported below detection limits were converted to half the detection limit of that element.

 

8.1

Drill Core Preparation and Analysis


 

All core samples, including composite geochemical, split, and point samples were prepared by SRC. SRC performs the following sample preparation procedures on all samples submitted to them.

 

On arrival at SRC, samples were sorted into their matrix types (sandstone or basement rock) and according to radioactivity level. The samples were prepared and analyzed in that order.

 

Sample preparation (drying, crushing, and grinding) was done in separate facilities for sandstone and basement samples to reduce the probability of sample cross-contamination. Crushing and grinding of radioactive samples yielding more than 2,000 cps was done in a separate CNSC-licensed radioactive sample preparation facility. Radioactive material was kept in a CNSC-licensed concrete bunker until it could be transported by certified employees to the radioactive sample preparation facility.

 

Sample drying was carried out at 80ºC with the samples in their original bags in large low temperature ovens. Following drying, the samples were crushed to 60% passing 2 mm using a steel jaw crusher. A 100 g to 200 g split was taken of the crushed material using a riffle splitter. This split was then ground to 90% passing 150 mesh using a chromium-steel puck-and-ring grinding mill for mineralized samples or a motorized agate mortar and pestle grinding mill for all non-mineralized samples. The resulting pulp was transferred to a clear plastic snap-top vial with the sample number labelled on the top.

 

ttlogo1.jpg

 

8-1

 

ueclogo1.jpg

 

S-K 1300 INITIAL ASSESSMENT REPORT – ROUGHRIDER URANIUM PROJECT

REPORT DATE: NOVEMBER 5, 2024

 

All grinding mills were cleaned between sample runs using steel wool and compressed air. Between-sample grinds of silica sand were performed if the samples were clay-rich.

 

Prior to the primary geochemical analysis, the sample material was digested into solution using several digestion methods. A “total” three-acid digestion on a 250 ml aliquot of the sample pulp using a mixture of concentrated HF/HNO3/HClO4 acids to dissolve the pulp in a Teflon beaker over a hotplate; the residue, following drying, was dissolved in 15 ml of dilute ultrapure HNO3. A “partial” acid digestion, on a two-gram aliquot of the sample pulp, digested using 2.25 ml of an eight-to-one ratio of ultrapure HNO3 and HCl for one hour at 95ºC in a hot water bath and then diluted to 15 ml using deionized water.

 

For fluorimetric analysis of uranium (also known as “AQRFLR”), an aliquot of either total digestion solution or partial digestion solution was pipetted into a platinum dish and evaporated. A NaF/LiK pellet was placed on the dish and the sample was fused for three minutes using a propane rotary burner and then cooled to room temperature before fluorimetric analysis.

 

Another digestion method used was a sodium peroxide fusion in which an aliquot of pulp was fused with a mixture of Na2O2 and NaCO3 in a muffle oven. The fused mixture was subsequently dissolved in deionized water. Boron was analyzed by inductively coupled plasma optical emission spectrometry on this solution.

 

With each batch of samples run, SRC inserts, at a minimum, a duplicate from the batch and a QC standard of its own. For analytical QC purposes, Hathor and RTCU inserted one field duplicate for approximately every 10 m of sampled interval. This frequency equates to one duplicate for every 20 samples. Prior to winter 2010, all field duplicates were quarter core in size, and since winter 2010 all field duplicates were half core in size.

 

One blank sample per drillhole was inserted. After standard sample preparation, SRC analyzed the samples by several analytical methods depending on the characteristics of each sample:

 

Up to 2012, split samples, both mineralized and non-mineralized, from within the mineralized section were assayed for pitchblende using SRC accredited fluorimetry (ISO/IEC 17025) U3O8-method (code U3O8). In 2012 SRC changed their mineralized-grade U3O8 method from a fluorimetry determination to an inductively-coupled plasma optical emission spectrometry (“ICP-OES”) determination. All Hathor mineralized samples were analyzed by fluorimetry, with select samples between 2007 and 2009 being reanalyzed by ICP-OES. The ICP-OES method employed by SRC was ISO/IEC accredited and used for all split samples by RTCU from 2012 to 2016;

 

All split samples were additionally analyzed using ICP-OES (partial and total digestion; method code ICP-1), plus boron;

 

Select split samples were analyzed for gold, platinum, and palladium by conventional fire assay procedures and axial inductively coupled plasma spectrometry finish on 15 g sub- samples (method code AU5); and

 

Non-radioactive, non-mineralized samples were analyzed using ICP-OES (partial and total digestion; method code ICP-1) and/or inductively coupled plasma mass spectrometry (“ICP-MS”) (partial and total digestion; method code ICPMS 1), plus boron.

 

All samples are archived at SRC’s laboratory for two calendar years (pulps inside and rejects outside), unless any specific instructions have been provided by Hathor or RTCU.

 

ttlogo1.jpg

 

8-2

 

ueclogo1.jpg

 

S-K 1300 INITIAL ASSESSMENT REPORT – ROUGHRIDER URANIUM PROJECT

REPORT DATE: NOVEMBER 5, 2024

 

8.2

Specific Gravity Sample Preparation and Analysis


 

This is described in Section 7.2.5.

 

8.3

PIMA Sample Preparation and Analysis


 

There is no sample preparation involved for the samples sent for clay analyses.

 

8.4

Quality Assurance and Quality Control


 

A robust QA/QC process was in place between 2007 and 2016, and by UEC from November 2023 to present. This includes the insertion of blanks, duplicates (field, coarse rejects and pulps) throughout the period and certified reference materials (“CRM”), from 2012 to 2016, inserted into the assay sample stream sent to SRC. CRMs were only inserted into the assay stream by RTCU, in 2012 after the acquisition of the Property. Prior to this, Hathor relied on SRC internal QA/QC procedures in regard to CRM analysis. Both Hathor and RTCU undertook density analysis, monitored by three CRM samples, and undertook a limited umpire verification of the density samples. SGS Lakefield was used at the external (“umpire”) laboratory.

 

8.4.1

Blanks

 

Blank samples have been included in the sample stream since 2007. The composition of the blank material is unknown but is referred to as a field blank. In total 5,066 blank samples have undergone either fluorimetry or ICP-OES U3O8% analysis and the blank insertion rate has been calculated to be 27%, which has been derived from the total number of U3O8 assays. The total number of blanks may possibly contain internal SRC blanks as well as other blanks, as seven different types of blanks are denoted in the QA/QC data. Furthermore, the assay date associated with the blank samples is believed to be related to the upload date and not the actual analysis date, which is why some samples analyzed pre-2013 report with a 2013 date.

 

ttlogo1.jpg

 

8-3

 

ueclogo1.jpg

 

S-K 1300 INITIAL ASSESSMENT REPORT – ROUGHRIDER URANIUM PROJECT

REPORT DATE: NOVEMBER 5, 2024

 

In reviewing the blank analysis data, a 5X detection limit threshold was applied for U3O8%. Samples that plot above this threshold are determined as failed samples; only three of the Project samples report above this value and four samples were above 2X the detection limit for any of the seven different blanks analyzed (Figure 8-1).

 

fig8-1.jpg

 

Figure 81: Blank Sample Results for Fluorimetry (AQRFLR) and ICP-OES (SCUIOS) at SRC (SRK, 2023)

 

8.4.2

Duplicates

 

The precision of sampling and analytical results can be measured by re-analyzing a portion of the same sample using the same methodology. The variance between the original and duplicate result is a measure of their precision and/or internal variability. It should be noted that in the duplicate database there are eight category types. Although the analysis only focused on field duplicates, coarse rejects and pulp duplicates, this understanding is based on the supporting data provided. The database contains 30 unknown samples that were analyzed by SRC using fluorimetry. This low number of samples (30) is unlikely to influence in the UMR QP’s opinion derived from the analysis of the duplicate data. Furthermore, the assay date associated with the duplicate samples is believed to be related to the upload date and not the actual analysis date, which is why some samples were analyzed in a pre-2013 report with a 2013 date.

 

An RTCU review of the QA/QC samples in 2013 identified that SRC did not undertake regular grind sizing test and only ~68% of samples passed through a -106 µm sieve. They stated that “a greater percentage passing -106 µm would increase sample homogeneity and therefore reproducibility of analytical results”, which the UMR QP agrees with, though based on the result presented below this is not considered a material issue to the MRE and will likely only impact relatively very low-grade samples (<1000 ppm).

 

ttlogo1.jpg

 

8-4

 

ueclogo1.jpg

 

S-K 1300 INITIAL ASSESSMENT REPORT – ROUGHRIDER URANIUM PROJECT

REPORT DATE: NOVEMBER 5, 2024

 

Field Duplicates

 

Field duplicate samples have been included in the sample stream since 2007. These duplicates were originally quarter core but switched to half core post winter 2010. The field duplicate samples are denoted by “FP” in the Project QA/QC database. Initially, the core was split by hand, though this was later replaced by a hydraulic splitter in 2013. The UMR QP was unable to determine which samples were half core and quarter core field duplicates due to the lack of analysis date stated in the database. The insertion rate has been calculated to be 10%, which has been derived from the total number of U3O8 (fluorimetry and ICP-OES U3O8%) assays.

 

The percent mean difference between each sample was determined and plotted graphs for use as threshold values (Figure 8-2) along with 10% error lines. Samples that fall outside of the 10% threshold limits are determined to be failed samples. Samples that report below the detection limits were not included as these can result in large percentage differences and are not true representations of the mean percentage between samples at varying U3O8 grade ranges.

 

As expected, the duplicate results show a wider range of variation than the other duplicate types inserted into the sample stream, but still show reasonably good repeatability (Figure 8-2) and good correlation between the original and duplicate sample above. The field duplicates report correlation coefficients typically in excess of 0.9. The same degree of correlation and repeatability was identified across all grade ranges.

 

fig8-2.jpg

 

Figure 82: Field Duplicate Sample Results for Fluorimetry (AQRFLR - U3O8%) (SRK, 2023)

 

ttlogo1.jpg

 

8-5

 

ueclogo1.jpg

 

S-K 1300 INITIAL ASSESSMENT REPORT – ROUGHRIDER URANIUM PROJECT

REPORT DATE: NOVEMBER 5, 2024

 

Coarse Duplicates

 

Coarse reject samples have been included in the sample stream since 2007. These are produced at the initial crushing stage at SRC. The insertion rate has been calculated to be 5%, which has been derived from the total number of U3O8 (fluorimetry and ICP-OES U3O8%) assays.

 

In order to analyze the results of the field duplicates appropriately, the percent mean difference between each sample was calculated and plotted on the graphs for use as threshold values (Figure 8-3) along with 10% error lines. Samples which fall outside of the 10% threshold limits are determined to be failed samples.

 

As expected, these duplicate results show a higher degree of correlation than the field duplicates inserted into the sample stream, with an excellent repeatability (Figure 8-3) and a high degree of correlation between the original and duplicate sample. The coarse duplicates report correlation coefficients typically in excess of 0.99.

 

fig8-3.jpg

 

Figure 83: Coarse Reject Duplicate Sample Results for Fluorimetry (AQRFLR -U3O8 %) (SRK, 2023)

 

Pulp Duplicates

 

Pulp duplicates samples are collected at the final stage of sample preparation and have been included in the sample stream since 2007. The insertion rate has been calculated to be 6%, which has been derived from the total number of U3O8 (fluorimetry and ICP-OES U3O8%) assays.

 

ttlogo1.jpg

 

8-6

 

ueclogo1.jpg

 

S-K 1300 INITIAL ASSESSMENT REPORT – ROUGHRIDER URANIUM PROJECT

REPORT DATE: NOVEMBER 5, 2024

 

The percent mean difference between each sample was calculated and plotted on graphs to determine sample failures. The results for the pulp duplicates show a very high degree of repeatability and correlation between the original and duplicate sample, with a correlation coefficient typically in excess of 0.99 (Figure 8-4). As expected, these duplicate results show a higher degree of correlation between the original and duplicate sample than the field duplicates and ever so slightly more than the coarse rejects inserted into the sample stream.

 

fig8-4.jpg

 

Figure 84: Pulp Duplicate Sample Results for ICP-OES (SRUIOS - U3O8%) (SRK, 2023)

 

8.4.3

Certified Reference Materials (CRM)

 

Hathor did not insert any CRMs into the sample stream and instead relied upon the internal CRMs inserted by SRC, at a rate of 1 in 20 (Section 8.4.4). This is industry standard for uranium projects in the Athabasca basin, since it would require procurement and storage of radioactive material at the site.

 

The analysis of the CRMs is primarily based on samples inserted into the sample stream by RTCU, all CRMs assay results for U3O8 (%) and U (ppm) were analyzed using ICP-OES (no CRMs are reported as being analyzed by fluorimetry).

 

In total 20 CRMs were inserted into the sample stream since 2013, though this data is believed to be related to the upload date and not the analysis date. Only five report ICP-OES U3O8 % results, as shown in Table 8-1., Table 8-1 shows no failures where data is available. The U3O8% grade range covered by the five CRMs is representative of most of the grade distribution, except at the very high-grade end of the distribution (above 10% U3O8%). SRC internal CRM include expected values up to 87.5% U3O8% (Section 8.4.4). The other 15 CRMs were used to monitor Mo and Se and U, with the latter in low ppm concentrations. The analysis has mainly focused on the five CRMs which were used to monitor U3O8% for the reasons described below. The insertion rate has been calculated to be 25%, which has been derived from the total number of U3O8 (ICP-OES U3O8%) assays.

 

ttlogo1.jpg

 

8-7

 

ueclogo1.jpg

 

S-K 1300 INITIAL ASSESSMENT REPORT – ROUGHRIDER URANIUM PROJECT

REPORT DATE: NOVEMBER 5, 2024

 

Nine CRMs provided in the database do not have accompanying standard deviation or certified mean values and therefore the UMR QP was unable to analyze these in any detail. However, none of these report U3O8% assays analyzed using fluorimetry or ICP-OES. Six of the other CRMs have low (ppm) levels of U, these all were noted to perform within a reasonable degree, though in some cases multiple different U (ppm) analysis were undertaken and it is not clear as to why this was implemented. Overall, the 15 CRMs which did not analyze U3O8% generally report U assays below 5 ppm and only one of these report U grades of ~112 ppm, all of which would be well below the modelling cut-off considered to support the MRE.

 

Table 81: Project U3O8% and U ppm CRMS (SRK, 2023)

 

CRM Name

No. of Samples

Submitted

U3O8 %

Analyzed

U ppm

Analyzed

Certified

Mean

% Failed samples

(outside 3SD)

STD-DCB01

19

No

Yes

N/A

0%

STD NIST- 983-1Y

136

N/A

0%

STD NIST- 981-1Y

132

N/A

0%

STD DS9

131

N/A

0%

STD ASH-1

66

N/A

0%

S5

4

N/A

0%

ASR316

11

N/A

0%

DCB01

227

N/A

0%

QFIR-S5

49

N/A

0%

STD-BL2A

48

Yes

No

0.502%

0%

STD-BL3

46

1.21%

0%

STD-BL4A

62

0.147%

0%

STD-BL5

31

8.36%

0%

STD- SRCU02

10

1.58%

0%

STD- CAR110

341

No

Yes

3,198 ppm

0%

CAR110

200

3,350 ppm

0%

ASR1

15

1.5 ppm

0%

ASR2

15

2.5 ppm

0%

ASR209

298

2.5 ppm

0%

ASR109

394

0.28 ppm

0%

 

ttlogo1.jpg

 

8-8

 

ueclogo1.jpg

 

S-K 1300 INITIAL ASSESSMENT REPORT – ROUGHRIDER URANIUM PROJECT

REPORT DATE: NOVEMBER 5, 2024

 

Figure 8-5 to and Figure 8-7 are examples of U3O8 CRM performances at different grade ranges. The reported U3O8 CRM grades for the entire dataset are generally similar to the certified values normally reported within the three standard deviations. This indicates that there is no significant under or over reporting of values (suggesting high accuracy and precision). No sample switches were identified.

 

fig8-5.jpg

 

Figure 85: CRM Plot for STD-BL5 Analyzed at SRC (SRK, 2023)

 

ttlogo1.jpg

 

8-9

 

ueclogo1.jpg

 

S-K 1300 INITIAL ASSESSMENT REPORT – ROUGHRIDER URANIUM PROJECT

REPORT DATE: NOVEMBER 5, 2024

 

fig8-6.jpg

 

Figure 86: CRM Plot for STD-SRCU02 Analyzed at SRC (SRK, 2023)

 

ttlogo1.jpg

 

8-10

 

ueclogo1.jpg

 

S-K 1300 INITIAL ASSESSMENT REPORT – ROUGHRIDER URANIUM PROJECT

REPORT DATE: NOVEMBER 5, 2024

 

fig8-7.jpg

 

Figure 87: CRM Plot for STD-BL4A Analyzed at SRC (SRK, 2023)

 

ttlogo1.jpg

 

8-11

 

 

ueclogo1.jpg

 

S-K 1300 INITIAL ASSESSMENT REPORT – ROUGHRIDER URANIUM PROJECT

REPORT DATE: NOVEMBER 5, 2024

 

8.4.4

SRC Internal QAQC Report

 

Since Hathor had not incorporated CRM in their QA/QC program, and relied on SRC inserted CRMs, RTCU requested SRC provide a report detailing their internal QA/QC procedures for all samples analyzed between 2007 and the RTCU acquisition of the Property in 2011. The following paragraph summarizes SRC’s analysis of the QA/QC results.

 

SRC inserted CRM at a rate of 1 in 20 into the sample stream. In total, seven CRMs were employed by SRC, covering a range of grades from 0.026% U3O8 to 87.5% U3O8. An example of one of SRC’s CRM plots is shown in Figure 8-8. Additionally, SRC also inserted pulp duplicates into the sample stream at a rate of 1 in 40. If for any reason a failure, or any issues were identified with any samples then the batch or sub-group associated with the problematic sample was reanalyzed and a corrective action report was produced describing the issue and corrective measure taken.

 

Overall, the performance of the SRC QA/QC samples was within acceptable tolerances for U3O8%. The UMR QP observes that some of the other minor analytes show a slight positive bias, though the majority of these samples fall within the three standard deviation failure lines. The potential bias, in these other elements, is not considered material to the MRE and they are not reported in the Mineral Resource statement.

 

ttlogo1.jpg

 

8-12

 

ueclogo1.jpg

 

S-K 1300 INITIAL ASSESSMENT REPORT – ROUGHRIDER URANIUM PROJECT

REPORT DATE: NOVEMBER 5, 2024

 

SRC also compared fluorimetry versus ICP-OES for a subset of samples, which shows a reasonable degree of continuity between sample pairs.

 

fig8-8.jpg

 

Figure 88: SRC Internal BL5 CRM Performance (Hathor samples 2007 to 2011) (SRK, 2023)

 

8.4.5

External Duplicates (Umpires)

 

The external duplicate samples are collected at the final stage of sample preparation and sent to the umpire laboratory (SGS Lakefield) for either U3O8% analysis or delayed neutron counting (“DNC”). The UMR QP calculated the insertion rate to be 4.9% for U3O8% analysis (fluorimetry) and 12% for the DNC analysis and is believed to be related to the Hathor submitted data only. It should be noted that 86 umpire samples were found (SGS certificate) with a 2013-time stamp, though none of the sample ID’s matched the assay database and so no further analysis of these were conducted. In 2023, SRK recommended that the Company try to source the umpire sample submitted post RTCU ownership and review these, though given all other QA/QC types performed well the lack of these umpire samples is not considered material to the MRE.

 

The percent mean difference between each sample were calculated and plotted on graphs to determine sample failures (Figure 8-9 and Figure 8-10) along with 10% error lines.

 

ttlogo1.jpg

 

8-13

 

ueclogo1.jpg

 

S-K 1300 INITIAL ASSESSMENT REPORT – ROUGHRIDER URANIUM PROJECT

REPORT DATE: NOVEMBER 5, 2024

 

The results for the external duplicates analyzed using U3O8% and DNC show a high degree of repeatability (Figure 8-9 and Figure 8-10) and a high degree of correlation between the original and duplicate samples analyzed at the two different laboratories. The correlation coefficient is in excess of 0.99, with only two samples falling outside the 10% error limits for the U3O8% versus DNC, which is not considered material to the MRE.

 

fig8-9.jpg

 

Figure 89: External Duplicate Sample Results for U3O8% (SRC vs SGS) (SRK, 2023)

 

ttlogo1.jpg

 

8-14

 

ueclogo1.jpg

 

S-K 1300 INITIAL ASSESSMENT REPORT – ROUGHRIDER URANIUM PROJECT

REPORT DATE: NOVEMBER 5, 2024

 

fig8-10.jpg

 

Figure 810: External Duplicate Sample Results for DNC vs U3O8% (SRC vs SGS) (SRK, 2023)

 

ttlogo1.jpg

 

8-15

 

ueclogo1.jpg

 

S-K 1300 INITIAL ASSESSMENT REPORT – ROUGHRIDER URANIUM PROJECT

REPORT DATE: NOVEMBER 5, 2024

 

8.4.6

Density Samples

 

Both Hathor and RTCU verified their density results using three standards. Each of the three standards were measured for each drillhole from which density samples were measured. Density samples from the core were not measured until the results of the standard measurements were confirmed to pass.

 

It should be noted that the three density standards all report similar certified means between 2.65 t/m3 and 2.69 t/m3, as shown in Table 8-2, which also shows the low failure rate for each CRM.

 

Table 82: Project Density CRMs (SRK, 2023)

 

CRM Name

No of Samples

Analyzed

Certified Mean

Density (t/m3)

% Failed samples

Standard 1

371

2.655

2%

Standard 2

371

2.669

2%

Standard 3

368

2.693

1%

 

Figure 8-5 is an example of one of the density CRM performances. The UMR QP notes that the densities reported for the entire dataset are generally similar to the certified values, normally within the three standard deviations, though a few samples do report outside this range. The UMR QP was informed that density samples which fall outside the three standard deviations were reanalyzed by both Hathor and RTCU before proceeding with further measurements. Overall, there appears to be no significant under or over reporting of density values suggesting high accuracy and precision.

 

ttlogo1.jpg

 

8-16

 

ueclogo1.jpg

 

S-K 1300 INITIAL ASSESSMENT REPORT – ROUGHRIDER URANIUM PROJECT

REPORT DATE: NOVEMBER 5, 2024

 

fig8-11.jpg

 

Figure 811: Standard 01 Density CRM plot (SRK, 2023)

 

ttlogo1.jpg

 

8-17

 

ueclogo1.jpg

 

S-K 1300 INITIAL ASSESSMENT REPORT – ROUGHRIDER URANIUM PROJECT

REPORT DATE: NOVEMBER 5, 2024

 

8.4.7

Umpire Density Samples

 

Twenty density samples were sent to SRC for verification purposes. This is believed to be related to the Hathor analysis only, as it was undertaken in 2010. It is not known if these relate to exact samples analyzed by Hathor or whether these are quarter or half core field duplicates.

 

The percent mean difference between each sample was calculated and plotted on graphs to determine sample failures (Figure 8-9).

 

The results for the external density duplicates show a moderate to high degree of repeatability (Figure 8-9) and a moderate to high degree of correlation between the original and duplicate samples analyzed, with a correlation coefficient typically of 0.79. Given the low sample population, it is difficult to make any meaningful conclusions, though it does appear that the Hathor density values slightly under report compared to the SRC values.

 

fig8-12.jpg

 

Figure 812: External Duplicate Density Sample Results (Hathor vs SRC) (SRK, 2023)

 

ttlogo1.jpg

 

8-18

 

 

ueclogo1.jpg

 

S-K 1300 INITIAL ASSESSMENT REPORT – ROUGHRIDER URANIUM PROJECT

REPORT DATE: NOVEMBER 5, 2024

 

8.5

Sample Security


 

Drill core samples from the Property were logged, marked for sampling, split, bagged and sealed in drums for transport within a fenced core-logging facility on the Property. The sealed drums were transported by road directly to the SRC laboratory in Saskatoon. Samples were traced by their unique sample ID, which was marked in the boxes from which they were taken and have accompanied the sample through preparation, analysis, and addition to the master assay database.

 

8.6

QP Opinion of the Adequacy of Sample Preparation, Security and Analytical Procedures


 

The UMR QP has reviewed the data upon which the MRE is based and is of the opinion that the sample preparation, security and analytical procedures and systems employed to collect and manage this information meets industry best practice. The UMR QP considers that the QA/QC results demonstrate acceptable levels of accuracy and precision at the laboratories. The UMR QP is of the opinion that the supporting data are representative and adequately support the geological interpretations and estimates to the level of classification assigned.

 

ttlogo1.jpg

 

8-19

 

ueclogo1.jpg

 

S-K 1300 INITIAL ASSESSMENT REPORT – ROUGHRIDER URANIUM PROJECT

REPORT DATE: NOVEMBER 5, 2024

 

9.0

DATA VERIFICATION

 

9.1

Site Visit


 

A site visit to the Roughrider Property was carried out August 1, 2024, by UMR’s QP for Mineral Resources and Tetra Tech’s QP for infrastructure and overall site inspection. The one-day site visit included:

 

Review of drill core from eleven representative drill holes across all three zones of the deposit,

 

Confirmation of seven drill hole collar locations,

 

Review and verification of the geological setting / environment,

 

Review of drilling, logging, sampling, analytical and QA/QC procedures, and

 

Review of overall site facilities.

 

9.2

Core and Collar Review


 

The core from representative drill holes of each zone (Table 9‑1) was laid out onsite for the review (Figure 9‑1). A comparison of the drill logs and assay results with the drill core showed that the information recorded in the drill database matched well with the drill core. The selected drillholes provided examples of low- and high-grade uranium mineralization and an overall sense of the Roughrider deposit’s geology. As part of the review, the UMR QP verified the occurrences of mineralization visually and by way of a hand-held scintillometer (Figure 9‑2).

 

Table 91: Reviewed Drill Core by Zone

 

Zone

Drill Holes

RRW

MWNE-10-209, MWNE-10-216, & MWNE-10-220

RRE

13RR0807B, MWNE-10-610, MWNE-10-612, & MWNE-10-648,

RRFE

MWNE-713, MWNE-714, & MWNE-717A

RR North Showing

RR-940

 

ttlogo1.jpg

9-1

 

ueclogo1.jpg

 

S-K 1300 INITIAL ASSESSMENT REPORT – ROUGHRIDER URANIUM PROJECT

REPORT DATE: NOVEMBER 5, 2024

 
fig9-1.jpg

Figure 91: Core Review at Roughrider (UMR, 2024)

 

ttlogo1.jpg

9-2

 

ueclogo1.jpg

 

S-K 1300 INITIAL ASSESSMENT REPORT – ROUGHRIDER URANIUM PROJECT

REPORT DATE: NOVEMBER 5, 2024

 
fig9-2.jpg

Figure 92: Confirmation of Mineralization via a SPP2 Scintillometer (UMR, 2024)

 

The locations of seven drillhole collars were confirmed visually and with a handheld Garmin GPS, inclusive to 12RRO744, 13RRO815, MWNE-08-30, MWNE-10-641, MWNE-11-682, MWNE-11-711 and MWNE-11-713. The handheld Garmin GPS measurements are within 3 m of the database locations, which is expected as the handheld is less accurate than the differential GPS used during drilling. The hole collar locations were demarked with tree branches or painted labelled laths inserted into the ground near the drill collar (Figure 9‑3).

 

ttlogo1.jpg

9-3

 

ueclogo1.jpg

 

S-K 1300 INITIAL ASSESSMENT REPORT – ROUGHRIDER URANIUM PROJECT

REPORT DATE: NOVEMBER 5, 2024

 

fig9-3.jpg

Figure 93: Drill Collar MWNE-11-682 (UMR, 2024)

 

9.3

Database Validation


 

The UMR QP performed the following digital queries:

 

Header table: searched for incorrect or duplicate collar coordinates and duplicate hole IDs.

 

Survey table: searched for duplicate entries, survey points past the specified maximum depth in the collar table, and abnormal dips and azimuths.

 

Lithology, alteration, and structure tables: searched for duplicate entries, intervals past the specified maximum depth in the collar table, overlapping intervals, negative lengths, missing collar data, missing intervals, and incorrect logging codes.

 

ttlogo1.jpg

9-4

 

ueclogo1.jpg

 

S-K 1300 INITIAL ASSESSMENT REPORT – ROUGHRIDER URANIUM PROJECT

REPORT DATE: NOVEMBER 5, 2024

 

Geochemical, density, and assay tables: searched for duplicate entries, sample intervals past the specified maximum depth, negative lengths, overlapping intervals, sampling lengths exceeding tolerance levels, missing collar data, missing intervals, and duplicated sample IDs.

 

No significant issues were identified. More information on database validation is available in Section 11.2 Source Database.

 

9.4

Review of UEC QA/QC


 

UEC and its predecessors had a robust QA/QC process in place, as described in Section 8. Assay results were actively monitored throughout the drill programs and QA/QC results were summarized. UMR is satisfied that the QA/QC process is performing as designed to ensure the quality of the assay data.

 

9.5

Limitations


 

UMR was not limited in access to any of the supporting data use for the resource estimation or describing the geology and mineralization in this report. The database verification is limited to the procedures described above. All mineral resource data relies on industry professionalism and integrity of those who collected and handled the database.

 

9.6

Qualified Persons Opinion


 

It is the opinion of the UMR QP that the geological data collection and QA/QC procedures carried out by UEC and its predecessors, are of adequate to support the MRE, and they meet industry best practice standards.

 

ttlogo1.jpg

9-5

 

ueclogo1.jpg

 

S-K 1300 INITIAL ASSESSMENT REPORT – ROUGHRIDER URANIUM PROJECT

REPORT DATE: NOVEMBER 5, 2024

 

10.0

MINERAL PROCESSING AND METALLURGICAL TESTING

 

10.1

Metallurgical Test Work Program


 

Hathor engaged Melis Engineering Ltd. (Melis) as metallurgical consultant to plan and oversee the test work carried out by SGS Canada at Lakefield facility since 2008. The project was later acquired by Rio Tinto RTCU in late 2011.

 

Between 2008 and 2012, SGS Canada has completed the following test work programs in four phases:

 

Phase 1 Test Work (2008 – 2009) – Preliminary uranium recovery test on the RRW deposit samples

 

Phase 2 Test Work (2009 – 2010) – Extensive metallurgical test work on RRW deposit samples

 

Phase 3 Test Work (2010 – 2011) – Variability test work on RRW deposit samples

 

Phase 4 Test Work (2012 – 2013) – Extensive metallurgical test work was planned on the RRFE deposit samples, but test program limited to leaching test work only.

 

After acquiring the Roughrider project, RTCU tasked test work to SRC to determine the metallurgical characteristics of samples from the RRE. The test work was completed and an SRC report issued in August 2013. The test work on the RRE samples is referred as Phase 5 test work in this report. No further test work has been conducted since 2013.

 

The Property was acquired by UEC in October of 2022. No additional test work has been carried out by UEC up to time of writing this report.

 

This section summarizes the metallurgical test work program and results completed by SGS Canada and SRC.

 

10.2

SGS Canada Phase 1 Test Work (2008  2009)


 

For Phase 1, samples were extracted from mineralized diamond drill core intervals from RRW drillholes DDH 08‑12, DDH 08-24, DDH 08-32, and DDH 08-33. Three weighted composite samples were prepared targeting grades 5% U3O8, 2.5% U3O8 and 0.5% U3O8. The samples named RR Comp #1, RR Comp #2, and RR Comp #3 were evaluated for metallurgical response to atmospheric acid leaching, low pressure oxygen acid leaching, SX, yellowcake precipitation, tailings neutralization and effluent treatment tests. The main objective of Phase 1 test work was to understand the preliminary uranium recovery on early-stage drill core samples using the two established flowsheets commonly used in the Athabasca area.

 

10.2.1

Test Program

 

Table 10‑1 lists the details of the test work conducted for composite samples during the 2008-2009 test campaign.

 

ttlogo1.jpg

10-1

 

ueclogo1.jpg

 

S-K 1300 INITIAL ASSESSMENT REPORT – ROUGHRIDER URANIUM PROJECT

REPORT DATE: NOVEMBER 5, 2024

 

Table 101: Simplified Test Procedures used in Phase 1 of the Test Program (SGS, 2011)

 

Process/Procedure

Details of Test

Sample Preparation

Composite sample – Crushed below 1.7 mm, homogenized and split in rotary splitter

Head Assays

ICP-OES following strong acid digestion, whole rock analysis by x-ray fluorescence (XRF), fire assay for Au.

Agitated Leaching Test

Composite samples were ground using ball mill to target grind size. Leach tests were conducted at 33% solids, 50°C, and 24 h. Effect of target free acid.

Sodium chlorate was used as oxidant in atmospheric acid leaching, while 15 PI oxygen overpressure was used for low pressure oxygen acid leaching, if required H2O2 was added to reach target oxidation-reduction potential (ORP).

SX Test

SX tests were performed using combined PLS from the bench-scale and bulk leach tests. Organic was made up of 4% Alamine 336, 4% Isodecanol in Kerosene. For stripping test, two circuits were evaluated: Strong acid strip using 400 g/L of sulfuric acid and ammonia strip using 180 g/L of ammonium sulfate solution.

Yellowcake Precipitation Test

For acid strip circuit, loaded strip solution was neutralized to pH 3 to precipitate gypsum. After gypsum precipitation, the strip solution pH was increased to 3.5 using magnesia slurry along with addition of hydrogen peroxide to precipitate yellowcake.

 

For ammonia strip circuit, loaded strip solution was neutralized to pH of 7.7 using ammonia solution for yellowcake precipitation.

Tailings Neutralization

For acid strip circuit, tailings slurry (leach residue) and tailings solution (raffinate & regen waste solution) were treated separately. For tailings slurry, leach residue was neutralized in three stages (pH 4.5, 7 and 8.5) using lime with precipitate and overflow collected at each stage for assay. The tailings solution was neutralized in two stages (pH 4 & 10.5) using lime along with addition of target ferric sulfate and barium chloride. Both precipitate and overflow solutions were assayed.

 

For ammonia strip circuit, tailings (leach residue, raffinate and regen solution) was neutralized at pH 7 using lime with addition of target ferric sulfate and barium chloride. Both precipitate and overflow solutions were assayed.

Effluent Treatment

The overflow solution from tailings neutralization test was used as feed for effluent treatment test.

 

For acid strip circuit, two stage effluent treatment (pH 4 & 7.5) using lime with addition of target ferric sulfate and barium chloride. Both precipitate and overflow solutions were assayed.

 

For ammonia strip circuit, two stage effluent treatment (pH 10 & 7) using lime with addition of target ferric sulfate and barium chloride. Both precipitate and overflow solutions were assayed.

 

ttlogo1.jpg

10-2

 

ueclogo1.jpg

 

S-K 1300 INITIAL ASSESSMENT REPORT – ROUGHRIDER URANIUM PROJECT

REPORT DATE: NOVEMBER 5, 2024

 

10.2.2

Phase 1 Test Results

 

Approximately 50 kg of samples were sent to SGS for test work. Table 10‑2 lists the chemical assay results for the three composite samples.

 

Table 102: Multi-Element Analysis Results for the Three Composite Samples

 

Element

Unit

RR Comp #1

RR Comp #2

RR Comp #3

Method

U3O8

%

6.11

2.68

0.62

ICP

U3O8*

%

5.80

2.74

0.65

ICP

As

ppm

520

-

65

ICP

Au

ppm

1.05

0.23

0.48

Fire Assay

Ba

ppm

870

630

210

ICP

Bi

ppm

160

85

57

ICP

Cd

ppm

3

<2

<2

ICP

Co

ppm

220

210

36

ICP

Cu

ppm

770

1,200

420

ICP

Li

ppm

580

290

530

ICP

Mo

ppm

2,400

710

1,700

ICP

Pb

ppm

-

850

450

ICP

Sb

ppm

58

23

10

ICP

Se

ppm

29

16

<10

ICP

Sn

ppm

<2

2

<2

ICP

Y

ppm

400

170

65

ICP

Zn

ppm

460

180

<40

ICP

Note: * Duplicate Assay

 

10.2.2.1

Leaching Test Results

 

In Phase 1, total of six atmospheric leach (AL) tests and three low pressure oxygen (LPO) leach tests were carried out. Table 10‑3 presents the leaching conditions and the uranium extraction achieved for 24-hour time. The acid consumption for Phase 1 leach tests ranged from approximately 38 kg/t to 142 kg/t, with uranium extraction of greater than 97% achieved in 24 h leach time along with fast leach kinetics. Test results indicated the successful extraction of uranium using standard agitated leach test.

 

ttlogo1.jpg

10-3

 

ueclogo1.jpg

 

S-K 1300 INITIAL ASSESSMENT REPORT – ROUGHRIDER URANIUM PROJECT

REPORT DATE: NOVEMBER 5, 2024

 

Table 103: Leaching Test Results for the Three Composite Samples

 

Test

Composite

Grind Size

Leach Temperature

Solids

Leach

Target Free Acid

Acid Addition

Oxidant

U3O8 Extraction (24h)

ID  

µm

°C

%

Type

g/L H2SO4

kg/t

kg/t

%

AL-1

RR Comp #3

140

50

33

AL

10

37.7

1.9

97.5

AL-2

RR Comp #3

140

50

33

AL

20

76.2

2.0

98.1

AL-3

RR Comp #3

140

50

33

AL

40

138.3

4.6

98.4

AL-4

RR Comp #1

177

50

33

AL

20

135.3

5.2

99.1

AL-5

RR Comp #2

134

50

33

AL

20

104.8

4.1

97.9

AL-6

RR Comp #1

180

50

33

AL

55

141.9

5.5

99.3

LP-1

RR Comp #3

140

50

33

LPO

20

59.1

0.8

97.0

LP-2

RR Comp #1

177

50

33

LPO

20

134.6

-

99.2

LP-3

RR Comp #2

134

50

33

LPO

20

102.9

-

97.3

 

10.2.2.2

SX Test Results

 

The leach solutions generated from all leach tests were combined and used as feed for the SX test. For strong acid test, four organic contact/stripping cycles were required before the raffinate reached uranium concentration below 1 mg/L, while for ammonia sulfate test required only two cycles to reach the raffinate concentration of less than 1 mg/L. Test results indicated successful selective uranium extraction using standard amine based SX.

 

10.2.2.3

Yellowcake Precipitation Test Results

 

Depending on the procedure used for SX (strong acid or ammonia strip), two different methods were employed for yellowcake precipitation as described in Table 10‑1. For strong acid strip solution, gypsum precipitation was done at pH 3 using 15% hydrated lime slurry to avoid final product contamination with excess sulfate. Uranyl peroxide was precipitated from the clarified loaded strip solution using hydrogen peroxide and milk of magnesia for pH control. The yellowcake precipitate contained approximately 77% U3O8 indicating an efficient recovery of uranium as uranyl peroxide.

 

For the ammonia circuit, the pH of ammonium sulfate strip solution was gradually increased to pH of 7.7 using 10% ammonia solution producing precipitate containing approximately 76% U3O8 indicating an efficient recovery of uranium as yellowcake product. As these were preliminary bench scale test, there were a few deleterious elements that slightly exceeded the refinery penalty limits but the indications were that this would be resolved with tighter parameter controls in future tests.

 

10.2.2.4

Tailings Neutralization and Effluent Treatment Test Results

 

The tailings neutralization produced residue with contaminants such as uranium, radium-226 below the target concentrations. Further, effluent treatment of waste solution using typical flowsheet used in Athabasca region operations produced effluent meeting the MDMER except for molybdenum, which was attributed due to insufficient ferric sulfate addition in the test.

 

ttlogo1.jpg

10-4

 

ueclogo1.jpg

 

S-K 1300 INITIAL ASSESSMENT REPORT – ROUGHRIDER URANIUM PROJECT

REPORT DATE: NOVEMBER 5, 2024

 

10.3

SGS Canada Phase 2 Test Work (2009  2010)


 

For Phase 2, four variability composite samples named PE, PG, WRM, and DM along with overall composite of RR2 were evaluated in this stage. The mineralized intersections making up the samples were sourced from hole DDH MWNE-09-85 purpose drilled for metallurgical tests.

 

10.3.1

Test Program

 

The test program followed similar procedure as described in Table 10‑1 with minor modifications to the conditions as required.

 

10.3.2

Phase 2 Test Results

 

For Phase 2 tests, four variability composites and an overall composite (Composite RR2) were prepared from the purposed-drilled half core recovered from DDH MWNE-09-85 located in RRW. These half core samples were split into four composites namely: Comp PG (20 kg), Comp DM (13 kg), Comp WRM (13 kg) and Comp PE (11 kg) along with overall composite RR2 (45 kg). Table 10‑4 lists chemical assay results for these composite samples.

 

Table 104: Multi-Element Analysis Results for the Phase 2 Composite Samples

 

Element

Unit

Comp RR2

Comp

PG

Comp

DM

Comp

WRM

Comp

PE

Method

U3O8

%

3.30

0.19

0.81

16.51

0.11

ICP

Al

ppm

130,000

130,000

140,000

110,000

100,000

ICP

As

ppm

350

75

170

800

350

ICP

Au

ppm

0.16

0.02

0.08

0.69

0.02

Fire Assay

Ba

ppm

220

130

220

540

52

ICP

Bi

ppm

120

64

170

310

<20

ICP

Cd

ppm

<10

<10

<10

<10

<10

ICP

Co

ppm

59

<40

<40

120

110

ICP

Cu

ppm

280

34

120

620

440

ICP

Fe

ppm

47,000

65,000

18,000

69,000

4,000

ICP

Li

ppm

270

240

340

290

200

ICP

Mo

ppm

620

220

900

1,200

150

ICP

Pb

ppm

1,600

130

410

7,900

71

ICP

Sb

ppm

<60

<60

<60

<60

<60

ICP

Se

ppm

<40

<40

<40

<40

<40

ICP

Sn

ppm

<40

<40

<40

<40

<40

ICP

Y

ppm

110

10

42

500

26

ICP

Zn

ppm

<50

<50

<50

<50

<50

ICP

 

ttlogo1.jpg

10-5

 

ueclogo1.jpg

 

S-K 1300 INITIAL ASSESSMENT REPORT – ROUGHRIDER URANIUM PROJECT

REPORT DATE: NOVEMBER 5, 2024

 

10.3.2.1

Comminution Tests

 

For Phase 2, comminution characteristics including SAG mill power index and Bond ball mill work indices were determined for the composites and the results are listed in Table 10‑5. The results indicate that the Roughrider mineralization is generally soft in nature.

 

Table 105: Comminution Characterization Test Results for the Phase 2 Composite Samples

 

Composite

SAG Mill Power Index (min)

Bond Ball Mill Work Index (kWh/t)

PG

12.8

10.3

DM

7.9

7.2

WRM

12.9

8.7

PE

23.4

11.1

 

10.3.2.2

Leaching Test Results

 

During Phase 2, total of 14 AL tests and five LPO leach tests were carried out. Table 10‑6 presents the leaching conditions and the uranium extraction achieved in 24-hour. The acid consumption for Phase 2 leach tests ranged from approximately 50 kg/t to 170 kg/t, with maximum uranium extraction of 99.8% achieved in 24 h leach time. On overall composite RR2, ten AL tests were carried out with uranium extraction on average of 98.5%.

 

ttlogo1.jpg

10-6

 

 

ueclogo1.jpg

 

S-K 1300 INITIAL ASSESSMENT REPORT – ROUGHRIDER URANIUM PROJECT

REPORT DATE: NOVEMBER 5, 2024

 

Table 106: Leaching Test Results for the Three Composite Samples

 

Test

ID

Composite

Grind

Size

Leach

Temperature

Solids

Leach

Type

Target

Free Acid

Acid

Addition

Oxidant

U3O8

Extraction

(24h)

   

µm

°C

%

 

g/L H2SO4

kg/t

kg/t

%

AL-1

RR2

99

50

33

AL

10

91.1

5.2

99.1

AL-2

RR2

99

50

33

AL

20

125.0

5.0

99.4

AL-3

RR2

99

50

33

AL

30

148.1

3.0

98.7

AL-4

RR2

116

50

33

AL

pH 1.8

50.3

4.6

98.0

AL-5

RR2

99

50

33

AL

pH 1.8

102.2

3.3

97.3

AL-6

RR2

116

50

33

AL

20

116.8

2.6

98.3

AL-7

RR2

116

35

33

AL

20

113.2

15.7

99.2

AL-8

RR2

116

35

33

AL

10

91.7

13.4

98.9

AL-9

RR2

-

35

33

AL

20

106.8

4.8

98.5

AL-10

RR2

-

20

33

AL

20

97.8

4.9

99.0

VAL-1

PE

158

50

33

AL

20

52.0

2.2

95.8

VAL-2

DM

125

50

33

AL

20

79.1

1.2

97.7

VAL-3

PG

172

50

33

AL

20

120.1

0.4

95.6

VAL-4

WRM

120

50

33

AL

20

160.4

6.9

99.8

LP-1

RR2

-

50

33

LPO

20

110.0

4.7

99.2

LP-2

PE

158

50

33

LPO

20

52.6

5.3

95.6

LP-3

DM

125

50

33

LPO

20

80.3

6.7

98.2

LP-4

PG

172

50

33

LPO

20

141.5

6.6

96.4

LP-5

WRM

120

50

33

LPO

20

172.2

6.9

99.4

 

10.3.2.3

SX Test Results

 

The leach solutions generated from all the leach testing were combined and used as feed for the SX test. For strong acid test, seven organic contact/stripping cycles were required before the raffinate reached uranium concentration below 1 mg/L, while for ammonia sulfate test required six cycles to reach the raffinate concentration of less than 1 mg/L. Test results indicated the successful extraction of uranium using amine-based extraction and strong acid strip.

 

10.3.2.4

Yellowcake Precipitation Test Results

 

Depending on the procedure used for SX (strong acid or ammonia strip), two different methods were employed for the yellowcake precipitation as described in Table 10‑1.

 

For the strong acid strip solution, the gypsum precipitation was done at pH 3 using 15% hydrated lime slurry to avoid final product contamination with excess sulfate. The clarified loaded strip solution was treated with magnesia and hydrogen peroxide producing precipitate containing approximately 82% U3O8 indicating an efficient recovery of uranium as yellowcake product meeting refinery specifications.

 

ttlogo1.jpg

10-7

 

ueclogo1.jpg

 

S-K 1300 INITIAL ASSESSMENT REPORT – ROUGHRIDER URANIUM PROJECT

REPORT DATE: NOVEMBER 5, 2024

 

For the ammonia circuit, the pH of the ammonium sulfate strip solution was gradually increased to pH of 7.7 using 10% ammonia solution producing precipitate containing approximately 76% U3O8 indicating an efficient recovery of uranium as yellowcake product but contained significant quantities of impurities in the product.

 

10.3.2.5

Tailings Neutralization and Effluent Treatment Test Results

 

The tailings neutralization produced residue with contaminants such as uranium, radium-226 below the target concentrations. Further, effluent treatment of waste solution using typical flowsheet used in Athabasca region operations produced effluent meeting the MDMER guidelines for all the elements.

 

10.4

SGS Canada Phase 3 Test Work (2010  2011)


 

For Phase 3, eight variability composite samples were prepared from RRW purpose-drilled holes (DDH Nos. 09-171 and 09-172) for testing to determine metallurgical response variability. The composites were named RRA, RRB, RRC, RRD, RRE, RRF, RRG, RRH, along with overall composite RR3.

 

10.4.1

Test Program

 

The test program followed a similar procedure as described in Table 10‑1 with minor modifications to the conditions as required.

 

10.4.2

Phase 3 Test Results

 

The overall composite RR3 was made up of 41.4% of RRA, 12.2% of RRB, 17.6% of RRC, 4.1% of RRD, 4.1% of RRE, 10.2% of RRF, 5.4% of RRG, and 5.0% of RRH. Table 10‑7 lists chemical assay results for these composite samples. The samples ranged from 0.05% U3O8 (Comp RRA) to 17.43% U3O8 (Comp RRG) with overall composite RR3 containing 1.4% U3O8.

 

ttlogo1.jpg

10-8

 

 

ueclogo1.jpg

 

S-K 1300 INITIAL ASSESSMENT REPORT – ROUGHRIDER URANIUM PROJECT

REPORT DATE: NOVEMBER 5, 2024

 

Table 107: Multi-Element Analysis Results for the Phase 3 Composite Samples

 

Element

Unit

Comp

RR3

Comp

RRA

Comp

RRB

Comp

RRC

Comp

RRD

Comp

RRE

Comp

RRF

Comp

RRG

Comp

RRH

Method

U3O8

%

1.40

0.05

0.25

2.29

0.25

0.55

0.13

17.43

0.08

ICP

As

ppm

880

320

560

980

330

680

910

5,500

250

ICP

Au

ppm

0.02

<0.02

0.02

<0.02

<0.02

0.03

0.02

<0.02

<0.02

Fire Assay

Ba

ppm

420

160

660

630

230

240

1,000

540

49

ICP

Bi

ppm

93

<20

58

140

39

100

100

840

<20

ICP

Cd

Ppm

<10

<10

<10

<10

<10

<10

<10

<10

<10

ICP

Co

ppm

160

60

130

300

69

130

390

560

79

ICP

Cu

ppm

800

250

990

520

42

160

850

5,600

1,200

ICP

Li

ppm

320

280

310

370

320

320

290

380

240

ICP

Mo

ppm

1,400

270

830

750

170

880

3,200

16,000

140

ICP

Pb

%

0.081

0.009

0.017

0.062

0.022

0.039

0.05

1.37

0.01

AA

Sb

ppm

<80

<80

<80

<80

<80

<80

<80

<80

<80

ICP

Se

ppm

<60

<60

<60

<60

<60

<60

<60

240

<60

ICP

Sn

ppm

<20

<20

<20

<20

<20

<20

<20

<20

<20

ICP

Y

ppm

110

25

63

210

63

58

45

790

21

ICP

Zn

ppm

<40

<40

<40

66

<40

<40

52

<40

<40

ICP

 

10.4.2.1

Comminution Tests

 

For Phase 3, Bond ball mill work indices were determined for the composites and the results are listed in Table 10‑8. The results ranged from 7.2 to 14.5 kWh/t with an average of 10.5 kWh/t. This further confirms the RRW mineralization is generally soft in nature.

 

Table 108: Bond Ball Mill Work Index for the Phase 3 Composite Samples

 

Composite

Bond Ball Mill Work Index (kWh/t)

RRA

12.7

RRB

10.5

RRC

8.8

RRD

7.2

RRE

7.2

RRF

14.4

RRG

9.5

RRH

13.5

 

ttlogo1.jpg

10-9

 

ueclogo1.jpg

 

S-K 1300 INITIAL ASSESSMENT REPORT – ROUGHRIDER URANIUM PROJECT

REPORT DATE: NOVEMBER 5, 2024

 

10.4.2.2

Leaching Test Results

 

During Phase 3, total of 13 AL tests and eight LPO leach tests were carried out. Table 10‑9 presents the leaching conditions and the uranium extraction achieved for 24-hour time. The acid consumption for Phase 3 leach tests ranged from approximately 42 kg/t to 158 kg/t, with maximum uranium extraction of 99.3% achieved in 24-hour time. Typical leach conditions in the Phase 3 leach tests were a mesh-of-grind K80 of 250 μm, which is significantly coarser than the grind size tested during Phases 1 and 2.

 

For AL tests, the uranium extraction was 98.5% or higher for the overall composite RR3. The leach kinetics data showed that a 12-hour leach is the optimum retention time for the Roughrider mineralization, particularly when considering the leach results on the overall composite RR3. The results show that the Roughrider mineralization is easily leached, validating the leach extractions obtained in the first two phases of work.

 

Table 109: Leaching Test Results for the Phase 3 Composite Samples

 

Test

ID

Composite

Grind

Size

Leach

Temperature

Solids

Leach

Type

Target

Free Acid

Acid

Addition

Oxidant

U3O8

Extraction

(24h)

   

µm

°C

%

 

g/L H2SO4

kg/t

kg/t

%

AL-1

RR3

102

50

33

AL

20

95.6

2.0

99.1

AL-2

RR3

102

50

33

AL

5

57.0

1.9

98.6

AL-3

RR3

205

50

33

AL

20

78.8

2.0

98.9

AL-4

RR3

102

35

33

AL

20

86.5

1.8

98.4

AL-5

RRA

339

50

33

AL

15

70.9

0.9

94.6

AL-6

RRB

305

50

33

AL

15

51.6

0.0

93.8

AL-7

RRC

434

50

33

AL

15

63.1

2.0

97.7

AL-8

RRD

557

50

33

AL

15

61.6

0.0

91.3

AL-9

RRE

416

50

33

AL

15

136.5

3.0

95.0

AL-10

RRF

466

50

33

AL

15

41.8

1.0

88.2

AL-11

RRG

548

50

33

AL

15

87.4

10.8

58.3*

AL-12

RRG

~250

50

33

AL

15

96.8

22.1

82.8*

AL-13

RRG

~150

50

33

AL

15

95.1

27.1

94.9

LP-1

RR3

~250

50

33

LPO

20

91.9

12.1

99.3

LP-2

RRA

~250

50

33

LPO

20

62.7

12.6

95.3

LP-3

RRB

~250

50

33

LPO

20

63.6

11.4

94.7

LP-4

RRC

~250

50

33

LPO

20

72.9

11.9

98.5

LP-5

RRD

~250

50

33

LPO

20

67.4

13.1

92.9

LP-6

RRE

~250

50

33

LPO

20

157.9

11.3

95.9

LP-7

RRF

~250

50

33

LPO

20

99.1

13.7

92.0

LP-8

RRG

~150

50

33

LPO

20

149

12.6

99.0

Note: *Low extraction values due to low ORP levels and low ferric levels in the leach solution. Also due to re-precipitation of some of the uranium when extending the leach to 24 hours.

 

ttlogo1.jpg

10-10

 

ueclogo1.jpg

 

S-K 1300 INITIAL ASSESSMENT REPORT – ROUGHRIDER URANIUM PROJECT

REPORT DATE: NOVEMBER 5, 2024

 

10.4.2.3

SX Test Results

 

SX of the PLS from the bulk leach was carried out to generate raffinate for effluent treatment tests. The extraction isotherms for both strong acid and ammonia strip are depicted in Figure 10‑1, which are essentially identical, suggesting that the same number of extraction stages would be required for each process, but the phase disengagement was observed to be superior for the strong acid strip process.

 

fig10_1.jpg

 

Figure 101: Extraction Isotherm for Aqueous and Organic using Strong Acid and Ammonia Strip

(Melis, 2011)

 

10.4.2.4

Tailings Neutralization and Effluent Treatment Test Results

 

Tailings and effluent treatment were tested using leach residue and raffinate generated from the bulk leach on Composite RR3. The treatment conditions were typical treatment conditions used at northern Saskatchewan uranium mines.

 

The tailings neutralization produced residue with contaminants such as uranium, radium-226 below the target concentrations. Further, effluent treatment of waste solution produced effluent meeting the MDMER guidelines for most of the elements, except for molybdenum. It was attributed in the test report that insufficient ferric sulfate addition or solids carry over between the stages as a reason for the higher molybdenum concentration in the effluent. It should be noted that Phase 2 test results achieved the acceptable effluent quality.

 

ttlogo1.jpg

10-11

 

ueclogo1.jpg

 

S-K 1300 INITIAL ASSESSMENT REPORT – ROUGHRIDER URANIUM PROJECT

REPORT DATE: NOVEMBER 5, 2024

 

10.5

SGS Canada Phase 4 Test Work (2011  2012)


 

For Phase 4, five mineral composite samples named UG, MG, PG, LPG, and GG along with overall composite of RR4 were evaluated from RRFE deposit. In addition, non-mineralized composites (NMG, NMPG, NMGG, NMS) were also sent for comminution testing.

 

10.5.1

Test Program

 

The test program followed a similar procedure as described in Table 10‑1 with minor modifications to the conditions as required. In this phase, comminution testing, and leach tests were performed.

 

10.5.2

Phase 4 Test Results

 

Phase 4 tests were conducted on five composite samples and one overall composite assembled from core mineralized intersections recovered from a purpose-drilled hole (DDH MWNE-11-718) in RRFE. Table 10‑10 lists chemical assay results for these composite samples. The samples ranged from 1.90% U3O8 (Comp PG) to 15.75% U3O8 (Comp LPG) with overall composite RR4 containing 2.63% U3O8.

 

Table 1010: Multi-Element Analysis Results for the Phase 4 Composite Samples

 

Element

Unit

Comp

RR4

Comp

MG

Comp

UG

Comp

LPG

Comp

GG

Comp

PG

Method

U3O8

%

2.63

2.25

2.89

15.75

4.65

1.90

ICP

As

ppm

146

187

35

1,520

44

158

ICP

Au

ppm

0.11

0.12

0.02

0.44

0.1

0.07

Fire Assay

Ba

ppm

219

198

279

694

179

249

ICP

Bi

ppm

32.2

36.3

9.3

81.2

30.2

25.4

ICP

Cd

ppm

<0.2

<0.2

<0.2

0.2

<0.2

<0.2

ICP

Co

ppm

21.2

12.1

5.4

215

7.3

32.7

ICP

Cu

ppm

100

51

16

100

50

484

ICP

Li

ppm

145

180

212

182

155

148

ICP

Mo

ppm

144

215

63

337

129

131

ICP

Pb

%

0.23

0.095

0.069

1.09

0.32

0.14

AA

Sb

ppm

7.3

4.6

6.2

25.1

10.1

3.9

ICP

Se

ppm

20

14

2

40

34

32

ICP

Sn

ppm

1.9

5.8

1.4

7

3

3

ICP

Y

ppm

74.4

42.3

23.9

290

104

49.2

ICP

Zn

ppm

5

10

6

4

3

6

ICP

 

10.5.2.1

Comminution Tests

 

For Phase 4, comminution characteristics including SAG mill power index and Bond ball mill work indices were determined for the mineralized composites and the results are listed below in Table 10‑11. The Bond ball mill work index for RRFE deposit average is 10.9 kWh/t, which is in agreement with the Roughrider mineralization of RRW deposit.

 

ttlogo1.jpg

10-12

 

ueclogo1.jpg

 

S-K 1300 INITIAL ASSESSMENT REPORT – ROUGHRIDER URANIUM PROJECT

REPORT DATE: NOVEMBER 5, 2024

 

Further, SAG mill power index and crusher index were also determined for non-mineralized composite and the results are listed in Table 10‑12. The Bond ball mill index on the blend of non-mineralized composite was found to be 16.5 kWh/t.

 

Table 1011: Comminution Test Results for the Phase 4 Mineralized Composite Samples

 

Composite

SAG Mill Power Index (min)

Bond Ball Mill Work Index (kWh/t)

MG

30.2

10.7

UG

25.9

10.6

LPG

-

-

GG

53.3

12.1

PG

41.6

10

 

 

Table 1012: Comminution Test Results for the Phase 4 Non-Mineralized Composite Samples

 

Composite

SAG Mill Power Index (min)

Crusher Index

NMG

15.8

10.8

NMPG

46.6

9.9

NMGG

43.9

11

NMS

43.9

7.7

 

10.5.2.2

Leaching Test Results

 

During Phase 4, a total of 20 AL tests were conducted. Table 10‑13 presents the leaching conditions and the uranium extraction achieved in 24-hour. The acid consumption for Phase 4 leach tests ranged from approximately 36 kg/t to 125 kg/t, with maximum uranium extraction of 99.7% achieved in 24 h leach time.

 

Based on the results, the overall composite RR4 was generally leached easily with greater than 99% uranium extraction. The coarser grind leach test showed that coarse grind did not impact the extraction.

 

As observed in the previous phases, high uranium extractions (>98.5%) was achieved within 9 to 12-hour leach in four of the five composites, with the exception of the very high-grade composite (15.8% U3O8), Composite LPG, which took 24 hours to yield an extraction of 98.4%. It should be noted that the initial testing of AL-16 & AL-17 did not reach target ORP values, hence these tests were repeated and labeled as AL-16R & AL-17R.

 

The results show that the RRFE mineralization is easily leached, and in agreement with the RRW deposit test results.

 

ttlogo1.jpg

10-13

 

ueclogo1.jpg

 

S-K 1300 INITIAL ASSESSMENT REPORT – ROUGHRIDER URANIUM PROJECT

REPORT DATE: NOVEMBER 5, 2024

 

Table 1013: Leaching Test Results for the Phase 5 Composite Samples

 

Test

ID

Composite

Grind

Size

Leach

Temperature

Solids

Leach

Type

Target

Free Acid

Acid

Addition

Oxidant

U3O8

Extraction

(24h)

   

µm

°C

%

 

g/L H2SO4

kg/t

kg/t

%

AL-1

RR4

150

50

33

AL

15

75.1

1.9

99.6

AL-2

RR4

250

50

33

AL

5

35.9

5.1

99.3

AL-3

RR4

250

50

33

AL

10

56.1

2.5

99.3

AL-4

RR4

250

35

33

AL

15

67.2

2.5

99.6

AL-5

RR4

250

50

33

AL

20

79.4

2.7

99.6

AL-6

RR4

250

50

33

AL

30

103.4

2.2

99.7

AL-7

RR4

350

50

33

AL

15

65.7

4.0

99.7

AL-8

RR4

450

50

33

AL

15

64.9

2.7

99.0

AL-9

RR4

450

50

33

AL

20

78.6

2.7

99.6

AL-10

RR4

450

50

33

AL

30

104.1

2.1

99.6

AL-11

RR4

550

50

33

AL

15

124.6

2.1

99.3

AL-12

RR4

550

50

33

AL

30

92.4

1.7

98.8

AL-13

UG

350

50

33

AL

15

76.0

0.0

98.7

AL-14

MG

350

50

33

LPO

15

64.9

1.5

99.5*

AL-15

PG

350

50

33

LPO

15

73.6

1.1

99.3

AL-16

LPG

350

50

33

LPO

15

69.6

4.2

63.6*

AL-17

GG

350

50

33

LPO

15

69.5

2.2

94.1

AL-16R

LPG

350

50

33

LPO

15

103.9

11.9

98.4

AL-17R

GG

350

50

33

LPO

15

78.7

3.3

96.3

AL-18

LPG

350

50

33

LPO

15

105.5

16.1

94.7

Note: *12 h leach test

 

10.6

SRC Phase 5 Test Work (2013)


 

For Phase 5, RTCU sent 66 core samples extracted from drillhole No. 13RR0752 in RRE to SRC for testing. SRC prepared two composite samples named Upper and Lower for the test work. The test work includes grindability tests and leaching test work.

 

10.6.1

Phase 5 Test Results

 

Table 10‑14 lists chemical assay results for the two composite samples. The head grade of two composite samples upper and lower are 0.44% U3O8 (Comp Upper) and 4.93% U3O8 (Comp Lower), respectively.

 

ttlogo1.jpg

10-14

 

ueclogo1.jpg

 

S-K 1300 INITIAL ASSESSMENT REPORT – ROUGHRIDER URANIUM PROJECT

REPORT DATE: NOVEMBER 5, 2024

 

Table 1014: Multi-Element Analysis Results for the Phase 5 Composite Samples

 

Element

Unit

Comp Upper

Comp Lower

Method

U3O8

%

0.44

4.93

ICP

Ba

ppm

108

198

ICP

Cd

ppm

2

<1

ICP

Co

ppm

42

81

ICP

Cu

ppm

567

11,100

ICP

Li

ppm

358

427

ICP

Mo

ppm

879

660

ICP

Pb

ppm

250

5,690

ICP

Sn

ppm

6

9

ICP

Y

ppm

35

112

ICP

Zn

ppm

41

10

ICP

 

10.6.1.1

Comminution Tests

 

For Phase 5, comminution characterization tests including SAG mill power index, Bond ball mill work index and abrasion index were conducted for the composites and the results are listed below in Table 10‑15. The Bond ball mill work index for composite ranged from 8.6 to 11 kWh/t, which is in agreement with the Phase 4 results.

 

Table 1015: Comminution Characterization Test Results for the Phase 5 Composite Samples

 

Composite

SAG Mill Power Index (min)

Bond Ball Mill Work Index (kWh/t)

Abrasion Index

Upper SPI A

16.5

-

-

Upper SPI B

4.9

-

-

Upper SPI C

12.2

-

-

Lower SPI A

4.7

-

-

Lower SPI B

5.5

-

-

Lower SPI C

22.3

-

-

Upper, All

-

8.6

0.001

Lower, All

-

10.99

0.015

 

The comminution characteristics for RRE are similar to RRW and RRFE, the mineralized rocks are characterized as soft and of relatively low abrasiveness.

 

10.6.1.2

Leaching Test Results

 

A total of 8 AL tests were conducted. Table 10‑16 presents the leaching test results. It was found that, on average, the upper and lower samples achieved uranium extraction of approximately 98% and 94%, respectively, with acid addition ranging from 32 to 77 kg/t. The results indicated that samples from RRE achieved good uranium extraction and are similar to that achieved for RRW and RRFE.

 

ttlogo1.jpg

10-15

 

ueclogo1.jpg

 

S-K 1300 INITIAL ASSESSMENT REPORT – ROUGHRIDER URANIUM PROJECT

REPORT DATE: NOVEMBER 5, 2024

 

Table 1016: Leaching Test Results for the Phase 5 Composite Samples

 

Test ID

Composite

Acid Addition

Oxidant

U3O8 Extraction (24h)

   

kg/t

kg/t

%

A

Upper

31.6

1.2

97.0

B

Upper

50.9

3.4

98.8

C

Upper

36.4

1.2

97.4

D

Upper

37.1

11.6

97.7

A

Lower

59.3

8.2

94.8

B

Lower

77.2

8.2

94.8

C

Lower

49.0

11.6

91.3

D

Lower

56.8

11.6

95.0

 

10.7

Summary


 

Based on the test results presented above, the following conclusions can be made:

 

The comminution test work showed that Roughrider samples are soft in nature with the average Bond Ball Mill Work Index of 10.6 kWh/t.

 

Agitated tank leach test results showed that Roughrider mineralization is amenable for uranium extraction via atmospheric acid leaching. On average 98.5% of extraction can be achieved within 12 h of leach retention time at 50°C with a grind size of 250 µm. Further, it was found that no significant difference in dissolution and extraction of uranium from the different deposits (RRW, RRE, and RRFE).

 

Two different approaches (strong acid strip with uranyl peroxide precipitation and ammonia strip with ammonium diuranate precipitation) were examined for production of final yellowcake product. It was found that organic extraction followed by strong acid strip produced higher quality yellowcake meeting the refinery specifications compared to the ammonium sulfate strip method.

 

Tailings neutralization and effluent treatment test work based on the standard approaches used in the Athabasca region indicated that effluent quality meeting the MDMER guidelines can be achieved.

 

10.8

QP Opinion


 

It is the Tetra Tech QP’s opinion that the Roughrider deposit sampling and metallurgical testing procedures, results, interpretations, supervision and reporting have been conducted appropriately and to standard industry practices and adequate for the purposes used in this TRS. The characterization of the mineralized material and testing of metallurgical response variability is adequate for preliminary flowsheet development and cost estimation.

 

It is noted that the samples extracted from nine drillholes at various depths and spatial intervals throughout RRW, RRE and RRFE are not certain to be representative of the final total mineralized package and further sampling and metallurgical test programs may be required as the resource definition and mine design advance.

 

ttlogo1.jpg

10-16

 

ueclogo1.jpg

 

S-K 1300 INITIAL ASSESSMENT REPORT – ROUGHRIDER URANIUM PROJECT

REPORT DATE: NOVEMBER 5, 2024

 

11.0

MINERAL RESOURCE ESTIMATES


 

11.1

Introduction


 

A MRE for the Roughrider deposit was completed by SRK in 2023, as documented in the report dated April 25, 2023, and titled “Technical Report Summary: Roughrider Uranium Project, Saskatchewan, Canada”. UEC retained UMR to audit the 2023 MRE to verify the estimate is appropriate for use in the enclosed Initial Assessment. Through the use of various professional experts, the current costs and price for U3O8 have been updated for the reporting of the MRE. In UMR’s opinion, the 2023 estimate for Roughrider is current to July 31, 2024, reasonable, and meets the requirements for public disclosure in accordance with the U.S. Securities and Exchange Commission (Regulation S-K Subpart 1300 (“S-K 1300”) and specifically Item 17 Code for Federal Regulations Parts 229, 230, 239, and 249).

 

The 2023 MRE for the Roughrider deposit considers 665 diamond drillholes drilled from surface between the years of 2007 to 2016. As of July 31, 2024, 94 drillholes from 2023 and 2024 have been drilled on the Property after the date of the previous MRE. Of the 94 drillholes, 31 are regional exploration holes drilled distal to the Roughrider deposit and the other 63 holes were drilled in the vicinity of the deposit.

 

Of the 63 holes drilled near the deposit, 57 holes were dedicated to expanding the deposit, targeting outside the 2023 MRE wireframes or in between the zones that form the deposit. The other six holes intersected the 2023 MRE wireframes; four of which are metallurgical drillholes (RR-875, RR-879, RR-883, and RR-886B) that are currently being processed at the SRC laboratory and the other two are infill drilling awaiting the assays to be returned to UEC. Results of this drilling are incomplete and have been deemed immaterial in terms of significant impact on the resource.

 

This section describes the resource estimation methodology and summarizes the key assumptions. The mineral resources are reported in accordance with the terms and definitions of S-K 1300.

 

11.2

Source Database


 

The drillhole data was provided to the UMR QP as part of a Leapfrog software project; the drill data includes collar surveys, downhole surveys, lithology logs, structural logs, scintillometer measurements, assay data, and specific gravity data.

 

The collar information is composed of 665 entries that details the drillhole name, the collar locations in Universal Transverse Mercator (UTM) North America Datum 1983 (NAD 83) zone 13N coordinates, and the end depth of the drillhole.

 

The survey tab of the drill hole database contains 19,851 records from all 665 drillholes, which averages to a survey data point every 11.5 m of borehole. The entries in the lithology tab define the drillhole, the interval, and the lithology log; it contains 18,782 logged intervals from 663 drill holes. The assay tab contains 56,524 entries for U3O8 with values ranging between -9 and 87.2% U3O8. The -9 value was assigned to samples that did not undergo U3O8 analysis and a value of 0.0005 was used for samples below detection. The drillhole database contains 5,480 specific gravity measurements with values ranging between 1.48 and 5.72, and an average of 2.47. The interval structure and scintillometer logs consist of 4,077, and 29,601 entries, respectively.

 

ttlogo1.jpg

11-1

 

ueclogo1.jpg

 

S-K 1300 INITIAL ASSESSMENT REPORT – ROUGHRIDER URANIUM PROJECT

REPORT DATE: NOVEMBER 5, 2024

 

Additional to drillhole data, the UMR QP was provided with a lidar topography surface. The mineralized zones are >200 m from surface, thus the modelling and estimation is unaffected by the topographical surface.

 

SRK removed 22 holes from consideration in the modelling and estimation due to uncertain location and poor intersection angles (Table 11‑1). The drillholes were collared on shore at a relatively shallow angle to intercept the deposit. The shallow nature of the holes required more casing to be drilled, resulting in a deeper first downhole measurement (>40 m depth) that may have been influenced by the metal casing. The deep location and possible metal influence of the first survey, in conjunction with the shallow orientation of the hole, makes the downhole projection uncertain. The UMR QP reviewed the removed holes and concluded that their inclusion would not be significant in terms of global Mineral Resources.

 

Table 111: Excluded Drillholes

 

Excluded Drillholes

MWNE-08-030

MWNE-08-037

MWNE-09-085

MWNE-09-146A

MWNE-08-031

MWNE-08-038

MWNE-09-132

MWNE-09-148

MWNE-08-032

MWNE-08-039

MWNE-09-133A

MWNE-09-151

MWNE-08-033

MWNE-08-040

MWNE-09-134

MWNE-09-510

MWNE-08-034

MWNE-08-041

MWNE-09-137

 

MWNE-08-035

MWNE-08-042

MWNE-09-140

 

 

11.2.1

Drillholes

 

The Leapfrog drillhole database was organized and imported into a Vulcan database and checked for the following:

 

Unique collar locations

 

Overlapping assays

 

Empty table check for assays, collars, lithology, and surveys

 

Increasing depth field in surveys, assays, lithology, and specific gravity field

 

Consecutive variation tolerance (maximum of 30 degrees) for dip and azimuth

 

Unique sample ID for assay and specific gravity measurements

 

Ensure azimuth survey measurements are between 0 and 360

 

Ensure dip survey measurements are between -90 and 0

 

Ensure U3O8 (%) grades are between 0 and 100

 

There are no overlapping assays, duplicate assay sample IDs, depth errors, or gross numerical errors in recorded assay grades. There are 300 holes that share collar coordinate locations with at least one other hole, but this is not in error. The holes with non-unique collar coordinate locations are either an abandoned hole that was restarted, or a hole that shares the same drill pad as a previous hole. The data was also reviewed in cartesian space. No significant errors were identified in the digital queries or visual review.

 

ttlogo1.jpg

11-2

 

 

ueclogo1.jpg

 

S-K 1300 INITIAL ASSESSMENT REPORT – ROUGHRIDER URANIUM PROJECT

REPORT DATE: NOVEMBER 5, 2024

 

11.3

Geologic Domaining


 

Lithology and structural models were generated to inform the final mineralization model that constrains the MRE. The final mineralization model consists of RRW, RRE, and RRFE with sub-groups within each zone representing mineralization style, grade, and structural controls.

 

11.3.1

Lithology Model

 

Nine lithologies wireframes were generated to represent the primary lithology observed within the deposit area, inclusive to: an overburden unit, five Manitou Falls formation units, and three Wollaston group units (Figure 11‑1). Lithology models were based on lithological logs recorded from drill cores. The graphitic gneiss unit within the Wollaston group is of particular importance, as uranium mineralization is observed to be within and proximal to this unit.

 

fig11_1.jpg

Figure 111: Cross Section looking North at the Project Lithological Model and Drillholes Coloured by Logged Lithology (UMR, 2024)

 

ttlogo1.jpg

11-3

 

ueclogo1.jpg

 

S-K 1300 INITIAL ASSESSMENT REPORT – ROUGHRIDER URANIUM PROJECT

REPORT DATE: NOVEMBER 5, 2024

 

11.3.2

Structural Model

 

Uranium mineralization predominantly follows the orientation of the east-west graphitic gneiss but is locally controlled by cross-cutting northeast and east-west structures.

 

Trend surfaces were used as a guide for the development of high-grade U3O8 ‘vein’ mineralization models for each zone. For modelling and estimation purposes, the mineralized zones were coded the following:

 

RRW (code 1000)

 

RRE (code 3000)

 

RRFE (code 4000)

 

11.3.3

Mineralization Model

 

Uranium is observed in three basement-hosted zones (RRW, RRE, and RRFE) that are within and proximal to the east-west striking, moderately northerly dipping (~70°) graphitic gneiss. The three zones plunge downwards to the east along the graphitic gneiss; the midpoint of the RRW zone is observed at 40 m below the unconformity (with mineralization extending to the unconformity), the midpoint of the RRE zone is 60 m below the unconformity (with mineralization extending to 15 m below the unconformity), and the RRFE zone has a midpoint 160 m below the unconformity.

 

Mineralization at the deposit consists predominantly of uraninite/pitchblende that occurs as massive to semi-massive accumulations, foliation and structurally controlled, mineral replacements, and disseminations.

 

‘Vein’ models were created to represent the structurally controlled mineralization, as informed by the structural and lithology models, using a modelling threshold of 0.5 U3O8%, although some lower grades were incorporated in places to maintain continuity. The vein models capture the predominate high-grade mineralization orientated along the graphitic gneiss, termed ‘High-Grade Laying’, and the local cross-cutting structures, termed ‘High-Grade North-East Structure’ and ‘High-Grade East-West Structures’. The modelled veins are typically 0.5 m to 2.0 m thick but have local intersections that are significantly thicker. The vein wireframes capture the majority of high to medium grade intersections of the deposit.

 

An indicator interpolate grade shell was also created using a 0.1% U3O8 threshold to represent the lower grade disseminated mineralization not encapsulated by the vein wireframes, and to a lesser degree, the high-grade veins of limited continuity.

 

Mineralized models were grouped based on the nature of the mineralization and coded, specifically:

 

High-Grade Layering (code 100)

 

High-Grade North-East Structures (code 200)

 

High-Grade East-West Structures (code 300)

 

Low-Grade (code 400)

 

Figure 11‑2 is a visualization of the three modelled deposits that comprise the Roughrider deposit, and Figure 11‑3, Figure 11‑4, and Figure 11‑5 are individual images of the RRW, RRE, and RRFE zones, respectively.

 

ttlogo1.jpg

11-4

 

ueclogo1.jpg

 

S-K 1300 INITIAL ASSESSMENT REPORT – ROUGHRIDER URANIUM PROJECT

REPORT DATE: NOVEMBER 5, 2024

 

fig11_2.jpg

 

Figure 112: Long Section looking North of the Modelled RRW, RRE, and RRFE Zones (SRK, 2023)

 

fig11_3.jpg

 

Figure 113: Oblique View of RRW Mineralization Model Underlain by Drill Hole Traces Looking at Plunge of 50° Along an Azimuth of 354°

(Recreated from SRK, 2023)

 

ttlogo1.jpg

11-5

 

ueclogo1.jpg

 

S-K 1300 INITIAL ASSESSMENT REPORT – ROUGHRIDER URANIUM PROJECT

REPORT DATE: NOVEMBER 5, 2024

 

fig11_4.jpg

 

Figure 114: Oblique View of RRE Mineralization Model Underlain by Drill Hole Traces Looking at Plunge of 40° along an Azimuth of 355°

(Recreated from SRK, 2023)

 

fig11_5.jpg

 

Figure 115: Oblique View of the RRFE Mineralization Model Underlain by Drill Hole Traces Looking at Plunge of +45° along an Azimuth of 000°

(Recreated from SRK, 2023)

 

ttlogo1.jpg

11-6

 

ueclogo1.jpg

 

S-K 1300 INITIAL ASSESSMENT REPORT – ROUGHRIDER URANIUM PROJECT

REPORT DATE: NOVEMBER 5, 2024

 

The final estimation domain model is based on the zone, mineralization model groups, and mineralization models totaling 97 estimation domains, in 11 groups (Table 11‑2). In the UMR QP’s opinion, the domain models adequately constrain the mineralization for estimation purposes. However, the UMR QP also believes that interpretation is overly complex for the data density and some of the interpreted veins are inadequately supported by the geologic data. A simpler vein model may reduce the degree of subjectivity being imparted into the model; however, in the UMR QP’s professional judgement, the current interpreted model is not adding material unwarranted metal content to the Mineral Resource. In this case, the issues of an overfitted model have implications locally rather than globally.

 

Table 112: Final Estimation Domains and Coding by Zone and Mineralization Group

 

Zone

Zone Code

Group

Group Code

Mineralization Model Codes

 

 

High-Grade Layering

1100

1101 to 1129

RRW 1000

High-Grade NE

1200

1201 to 1220

   

Low-Grade

1400

1402

 

 

High-Grade Layering

3100

3101 to 3111

RRE 3000

High-Grade NE

3200

3201 to 3207

   

High-Grade EW

3300

3302

   

Low-Grade

3400

3402

 

 

High-Grade Layering

4100

4101 to 4121

RRFE 4000

High-Grade NE

4200

4201 to 4202

   

High-Grade EW

4300

4301 to 4304

   

Low-Grade

4400

4402

 

11.3.4

Boundary Analysis

 

Contact analysis was conducted to evaluate if the boundary conditions between contacting domains were ‘soft’ or ‘hard’, meaning if the grade change across the boundary are gradual or abrupt, respectively. The results of the analysis are summarized in Table 11‑3, Table 11‑4, and Table 11‑5.

 

Table 113: Boundary Conditions for the RRW Domains

 

Domain Group

1100

1200

1400

Waste

1100

       

1200

Soft

     

1400

Hard

Hard

   

Waste

Hard

Hard

Hard

 

 

ttlogo1.jpg

11-7

 

ueclogo1.jpg

 

S-K 1300 INITIAL ASSESSMENT REPORT – ROUGHRIDER URANIUM PROJECT

REPORT DATE: NOVEMBER 5, 2024

 

Table 114: Boundary Conditions for the RRE Domains

 

Domain Group

3100

3200

3300

3400

Waste

3100

         

3200

Soft

       

3300

Soft

Soft

     

3400

Hard

Hard

Hard

   

Waste

Hard

Hard

Hard

Hard

 

 

 

Table 115: Boundary Conditions for the RRFE Domains

 

Domain Group

3100

3200

3300

3400

Waste

4100

         

4200

Soft

       

4300

Soft

Soft

     

4400

Hard

Hard

Hard

   

Waste

Hard

Hard

Hard

Hard

 

 

The high-grade layer-parallel, north-east and east-west striking mineralization is interpreted to have precipitated synchronously, thus the boundaries between them are considered to be ‘soft’, which is supported by the contact analysis. An example of the contact analysis for RRW is in Figure 11‑6 and 11-7.

 

fig11_6.jpg

 

Figure 116: Contact Analysis between Layer-Parallel Veins and Northeast Striking Veins of RRW Zone

(Recreated from SRK, 2023) Note: Red line shows regression of data points and the black lines represent 90-10 percentiles

 

ttlogo1.jpg

11-8

 

ueclogo1.jpg

 

S-K 1300 INITIAL ASSESSMENT REPORT – ROUGHRIDER URANIUM PROJECT

REPORT DATE: NOVEMBER 5, 2024

 

fig11_7.jpg

 

Figure 117: Contact Analysis between the Combined Vein Domains and Surrounding Low-Grade Domain of RRW Zone

(Recreated from SRK, 2023) Note: Red line shows regression of data points and the black lines represent 90-10 percentiles

 

The soft boundaries restrict the search ellipsoid to include samples from nearby estimation domains. The search was orientated to the contacting features of the shared boundary and the semi-major range was limited to 6 m, 8 m, and 10 m for RRW, RRE, and RRFE, respectively, based on the observations of the contact analysis. The major and minor ranges were then adjusted according to the original anisotropic ratios. The soft boundary search parameters are summarized in Table 11‑6. An example of the restricted soft boundary search relative to the primary search parameters is visualized in Figure 11‑8. A hard boundary was used for the contacts between the veins and modelled halo, and waste.

 

ttlogo1.jpg

11-9

 

 

ueclogo1.jpg

 

S-K 1300 INITIAL ASSESSMENT REPORT – ROUGHRIDER URANIUM PROJECT

REPORT DATE: NOVEMBER 5, 2024

 

Table 116: Soft Boundary Search Parameters (Recreated from SRK, 2023)

 

Deposit

Primary Domain

Secondary Domain

Search Ellipse

     

Bearing

Plunge

Dip

Major

Semi-Major

Minor

 

HG Layering

HG NE

345

-45

20

12

8

4

RRW

HG NE

HG Layering

170

50

180

12

8

3

 

HG Layering

HG NE

250

-45

-35

8

8

4

 

HG Layering

HG EW

20

-75

0

8

8

4

 

HG NE

HG Layering

350

-40

-10

10

6

5

RRE

HG NE

HG EW

20

-75

0

8

8

4

 

HG EW

HG Layering

350

-40

-10

10

6

5

 

HG Layering

HG EW

92

20

70

8

8

4

 

HG Layering

HG NE

92

-17

42

8

8

4

RRFE

HG NE

HG Layering

350

-40

-10

8

8

4

 

HG NE

HG EW

20

-75

0

8

8

4

 

HG EW

HG Layering

92

-17

42

15

10

5

 

 

fig11_8.jpg

 

Figure 118: Oblique View (Azimuth of 336°, Plunge of +47°) of Intersecting Domains High-Grade Layering 7 and High-Grade NE Overlain by Primary Search Ellipse of the High-Grade Layering 7 Domain and the Associated Restricted Soft Boundary Search (SRK, 2023)

 

ttlogo1.jpg

11-10

 

ueclogo1.jpg

 

S-K 1300 INITIAL ASSESSMENT REPORT – ROUGHRIDER URANIUM PROJECT

REPORT DATE: NOVEMBER 5, 2024

 

11.4

Density and Missing Values


 

In the estimation domains, the grade variable is nearly exhaustively sampled at all drillhole locations, but the density variable is largely missing sporadically. The collocated grade and density variables are strongly, positively, and non-linearly correlated, a common observation in the high-grade uranium deposits of the Athabasca Basin. It is industry standard to fit a polynomial regression formula to the collocated data and apply the equation to impute this missing data. A total of 1,193 SG measurements were evaluated and determined that SG is strongly correlated with % U3O8 for grades above 15% U3O8, but below 15% U3O8, SG is largely controlled by the intensity of clay alteration. Figure 11‑9 shows the relationship between SG, % U3O8, and clay alteration. Clay alteration is logged on a 0 to 5 scale with 0 representing no clay alteration and 5 representing intense clay alteration. Based on the observations between the three variables, the following equations for density imputation were implemented:

 

1.

U3O8 < 15%, and Logged Argillic Alteration <3 intensity

 

Density = (0.0003% (U3O8* U3O8)) + (0.0126* U3O8) +2.3185

 

2.

U3O8 < 15 %, and Logged Argillic Alteration >=3 intensity

 

Density = (0.0005% (U3O8* U3O8)) + (0.0061* U3O8) +2.2016

 

3.

U3O8 >=15 %

 

Density = (0.0004% (U3O8* U3O8)) + (0.0107* U3O8) +2.2567

 

fig11_9.jpg

 

Figure 119: Measured Density versus U3O8 % Grade; Samples colored by Clay Alteration Intensity

(Recreated from SRK, 2023)

 

ttlogo1.jpg

11-11

 

ueclogo1.jpg

 

S-K 1300 INITIAL ASSESSMENT REPORT – ROUGHRIDER URANIUM PROJECT

REPORT DATE: NOVEMBER 5, 2024

 

fig11_10.jpg

 

Figure 1110: Measured Specific Gravity versus U3O8 % grade, with samples colored by Low and High Clay Alteration Groupings.

 

Regression curves for low clay (blue), high clay (red), and high-grade uranium (black). (Recreated from SRK, 2023)

 

The few intervals within the estimation domains that do not have uranium assay values were assigned a value of 0.0001% U3O8 (one-tenth the detection limit of U3O8 analysis). The UMR QP is of the opinion that the density imputation and the replacement of 0.0001% U3O8 for samples not analyzed for uranium is reasonable and acceptable.

 

11.5

Probe Grade Conversion


 

Uranium exploration companies performing work in the Athabasca Basin frequently use downhole radiometric tools to measure gamma radiation emitted during the decay of uranium and variations. The collected radiometric data is subjected to a set of mathematical equations to convert the measured counts per second of the gamma rays into 10-centimetre increments of percent equivalent uranium (% eU3O8). The conversion from downhole radiometric data to eU3O8 is common practice by uranium companies in the Athabasca Basin.

 

Probe and assay data were investigated to determine if the use of % eU3O8 is appropriate for the Roughrider deposit. It was concluded that the gamma probe data is uncalibrated for grades above 4% U3O8 and the exact grades cannot be confirmed in these instances; therefore, only assay grades were used in the estimation. There is only a limited amount of block estimates informed by the high-grade and low-recovery samples, the global impact of these problematic samples is not considered to be material, and the classification criteria reflects the uncertainty in the grade (i.e., blocks informed by low-recovery, high-grade samples are categorized as Inferred Mineral Resources).

 

ttlogo1.jpg

11-12

 

ueclogo1.jpg

 

S-K 1300 INITIAL ASSESSMENT REPORT – ROUGHRIDER URANIUM PROJECT

REPORT DATE: NOVEMBER 5, 2024

 

The UMR QP believes there is enough assay and probe data to create and validate a site-specific grade-gamma regression to impute the grade values in areas of low-recovery. However, the UMR QP agrees that the impact of the blocks informed by high-grade, low-recovery samples is not significant and they have been appropriately flagged as Inferred Mineral Resources. Therefore, not using U3O8 in the estimate is acceptable, but the estimate can be optimized by including a well validated equivalent U3O8.

 

11.6

Compositing and Statistical Analysis


 

11.6.1

Compositing

 

Approximately 99% of assays were sampled in 1 m or smaller intervals, and more than 90% of the samples were sampled at 0.5 m. Assays were composited in Maptek’s Vulcan software at 1.0 m lengths using hard boundaries with a merge tolerance of 0.5 m. Assays were composited starting at the first mineralized wireframe boundary from the collar and resetting at each new wireframe boundary. Composites less than 0.5 m, which were located at the bottom of the mineralized intercept, were added to the previous composite. The grade (% U3O8) and density (SG) variables were composited and a grade x density field (% U3O8 x SG) was calculated for each composite.

 

In UMR QP’s opinion, the 1.0 m composites are appropriate for the selected block size used in the model and envisioned mining method.

 

11.6.2

Declustering

 

A global representative distribution of variables is essential for unbiased resources calculation, and one step in determining a representative distribution is the consideration of the spatial arrangement of the data. Declustering techniques assign each datum a weight based on its closeness to surrounding data.

 

Cell declustering to determine the weight of each composite was used. In cell declustering, a grid of equal volume cells is placed over the domain. The cell size is unique to itself and unrelated to the block size used in 3D modelling, and, typically, the cell size is approximately equal to the data spacing in the sparsely sampled regions of the domain. The algorithm then counts the number of occupied cells (nocc) and gives each cell the same weight. If there is only one composite in a cell, it receives a weight of 1/nocc , and if there are multiple data in a cell, then they equally share the weight assigned to the cell (Deutsch, 2015).

 

11.6.3

Outlier Capping and Restrictions

 

Where the assay distribution is skewed positively or approaches log-normal, erratic high grade assay values can have a disproportionate effect on the average grade of a deposit. One method of treating these outliers in order to reduce their influence on the average grade is to cut or cap them at a specific grade level.

 

The uncapped composited data with the declustered weights for each domain was reviewed in probability plots, histograms, and cartesian space for stationarity and outliers. Two grade populations are noted in most of the high-grade domains, as visualized in Figure 11‑11 (30% U3O8) and Figure 11‑12 (15% U3O8). A more subtle higher-grade population is also observed in the low-grade domains at 5% U3O8 (Figure 11‑13).

 

ttlogo1.jpg

11-13

 

ueclogo1.jpg

 

S-K 1300 INITIAL ASSESSMENT REPORT – ROUGHRIDER URANIUM PROJECT

REPORT DATE: NOVEMBER 5, 2024

 

fig11_11.jpg

 

Figure 1111: Probability and Histogram Plots of U3O8 % in RRW High-Grade Layering Group (UMR, 2024)

 

 

fig11_12.jpg

 

Figure 1112: Probability and Histogram Plots of U3O8 % in RRW High-Grade NE Group (UMR, 2024)

 

ttlogo1.jpg

11-14

 

ueclogo1.jpg

 

S-K 1300 INITIAL ASSESSMENT REPORT – ROUGHRIDER URANIUM PROJECT

REPORT DATE: NOVEMBER 5, 2024

 

fig11_13.jpg

 

Figure 1113: Probability and Histogram Plots of U3O8 % in RRW Low-Grade Group (UMR, 2024)

 

Upon viewing the composites in cartesian space, it was determined that the higher-grade populations of the domains are clustered and associated with structural intersections. SRK summarizes, “these high-grade populations are not outliers but are key characteristics of this deposit type and are indicative of mineralization focused on preferential fluid pathways, such as the intersection between north-east trending faults and the faulted layers of the graphitic gneiss. These focused pathways are limited in extent though, so the distance over which these grades, indicative of these features, can influence the estimates must be controlled/restricted in the estimate rather than being capped. (SRK, 2023).

 

A High Yield Limit function (“HYL”) was used to restrict the influence of the high-grade populations in the bimodal domains, limiting the influence of samples greater than 5%, 10%, 15%, 25%, and 30% U3O8 (Table 11‑7). The restricted ranges for estimation were based on the completed variography, where the constricted major, semi-major, and minor directions are 80%, 50%, and 50% of the ranges, respectively, of the modelled variography for the RRE and RRFE domains, whereas RRW used restrictions of 70%, 50%, and 50% of the ranges.

 

ttlogo1.jpg

11-15

 

ueclogo1.jpg

 

S-K 1300 INITIAL ASSESSMENT REPORT – ROUGHRIDER URANIUM PROJECT

REPORT DATE: NOVEMBER 5, 2024

 

Table 117: High-Grade Threshold Restrictions by Domain

 

Zone

Domain

Threshold
(% U3O8)

Restricted Radii (m)

     

Major

Semi-Major

Minor

 

High-Grade Layering

30

36

12.5

7.5

RRW

High-Grade NE

10

28

12.5

5

 

Low Grade

5

36

7.5

7.5

 

High-Grade Layering

15

24

10

7.5

RRE

High-Grade NE

25

20

12.5

5

 

High-Grade EW

N/A

 

Low Grade

5

18

8

6

 

High-Grade Layering

15

40

15

6

RRFE

High-Grade NE

15

20

12

5

 

High-Grade EW

15

20

12

5

 

Low Grade

5

20

6

6

 

11.6.4

Representative Distributions

 

In UMR’s opinion, the composite distributions are reasonable and, in conjunction with the declustered weights, produce representative distributions for the Roughrider MRE. The use of a HYL function to restrict the influence of high-grade, spatially contiguous samples of the bimodal distributions is a reasonable technique for managing the risk of overestimation. Table 11‑8 is the % U3O8 summary statistics of the composites (unweighted).

 

ttlogo1.jpg

11-16

 

ueclogo1.jpg

 

S-K 1300 INITIAL ASSESSMENT REPORT – ROUGHRIDER URANIUM PROJECT

REPORT DATE: NOVEMBER 5, 2024

 

Table 118: Summary Composite Statistics of U3O8 by Domain (Recreated from SRK, 2023)

 

Zone

Domain

No. of

Composites

U3O8 Statistics

     

Min

Max

Mean

COV*

 

High-Grade Layering

424

0.001

76.7

7.58

1.68

RRW

High-Grade NE

212

0.002

73.7

9.56

1.55

 

Low Grade

827

0.001

26.95

0.52

3.44

 

High-Grade Layering

160

0.001

84.7

10.34

1.5

RRE

High-Grade NE

119

0.107

55.5

9.59

1.21

 

High-Grade EW

16

0.42

34.22

9.98

1.06

 

Low Grade

365

0.001

11.29

0.3

2.92

 

High-Grade Layering

441

0.002

51.9

5.72

1.37

RRFE

High-Grade NE

22

0.418

20.5

4.7

1.19

 

High-Grade EW

51

0.001

55.8

7.35

1.63

 

Low Grade

490

0.001

33.25

0.6

4.03

*COV: Coefficient of Variation

 

11.7

Variography


 

Continuity analysis was completed for uranium mineralization using the composites for each mineralized domain. Semi-variogram models were created for U3O8% (grade), density, and U3O8% x density (GxD). Downhole variograms were used to model nugget effect for each group. The density and GxD variograms were deemed to be relatively unstable and abandoned in favour of the grade models being applied to all the variables during estimation. In the UMR QP’s opinion, this is permissible given the high correlation between grade, density, and GxD. Variogram models for  % U3O8 in RRW are presented in Figure 11‑14, Figure 11‑15, and Figure 11‑16. Table 11‑9, Table 11‑10, and Table 11‑11 summarizes the variogram models for U3O8% in the domains within RRW, RRE, and RRFE, respectively.

 

ttlogo1.jpg

11-17

 

ueclogo1.jpg

 

S-K 1300 INITIAL ASSESSMENT REPORT – ROUGHRIDER URANIUM PROJECT

REPORT DATE: NOVEMBER 5, 2024

 

fig11_14.jpg

 

Figure 1114: Experimental and Modelled Variograms for High-Grade Layering in RRW (1100)

(Recreated from SRK, 2023)

 

ttlogo1.jpg

11-18

 

ueclogo1.jpg

 

S-K 1300 INITIAL ASSESSMENT REPORT – ROUGHRIDER URANIUM PROJECT

REPORT DATE: NOVEMBER 5, 2024

 

fig11_15.jpg

 

Figure 1115: Experimental and Modelled Variograms for High-Grade NE in RRW (1200)

(Recreated from SRK, 2023)

 

ttlogo1.jpg

11-19

 

ueclogo1.jpg

 

S-K 1300 INITIAL ASSESSMENT REPORT – ROUGHRIDER URANIUM PROJECT

REPORT DATE: NOVEMBER 5, 2024

 

fig11_16.jpg

 

Figure 1116: Experimental and Modelled Variograms for Low-Grade in RRW (1400)

(Recreated from SRK, 2023)

 

ttlogo1.jpg

11-20

 

 

ueclogo1.jpg

 

S-K 1300 INITIAL ASSESSMENT REPORT – ROUGHRIDER URANIUM PROJECT

REPORT DATE: NOVEMBER 5, 2024

 

Table 119: Summary of Variogram Models for RRW

 

Zone

Domain

Structure

Contribution

Type

Direction

Range

         

Azi

Plunge

Dip

Major

Minor

Vertical

RRW

High-Grade

C0

0.14

Nugget

-

-

-

-

-

-

   Layering

C1

0.09

Spherical

170

50

180

4

2

1

   

C2

0.77

Spherical

170

50

180

45

23

14

 

 

C0

0.15

Nugget

-

-

-

-

-

-

  High-Grade

C1

0.22

Spherical

345

-46

22

19

20

3

  NE

C2

0.47

Spherical

345

-46

22

24

21

8

   

C3

0.16

Spherical

345

-46

22

32

23

9

 

 

C0

0.28

Nugget

-

-

-

-

-

-

  Low Grade

C1

0.06

Spherical

357

-45

5

3

3

6

   

C2

0.14

Spherical

357

-45

5

20

4

9

   

C3

0.52

Spherical

357

-45

5

45

24

10

 

ttlogo1.jpg

11-21

 

ueclogo1.jpg

 

S-K 1300 INITIAL ASSESSMENT REPORT – ROUGHRIDER URANIUM PROJECT

REPORT DATE: NOVEMBER 5, 2024

 

Table 1110: Summary of Variogram Models for RRE

 

Zone

Domain

Structure

Contribution

Type

Direction

Range

         

Azi

Plunge

Dip

Major

Minor

Vertical

 

High-

C0

0.22

Nugget

-

-

-

-

-

-

  Grade

C1

0.46

Spherical

352

-39

-8

22

6

10

  Layering

C2

0.32

Spherical

352

-39

-8

30

19

15

 

High-

C0

0.10

Nugget

-

-

-

-

-

-

  Grade

C1

0.55

Spherical

250

-45

-36

21

3

3

RRE NE

C2

0.35

Spherical

250

-45

-36

24

24

9

 

High-

C0

0.22

Nugget

-

-

-

-

-

-

  Grade

C1

0.46

Spherical

20

-75

0

20

20

7.5

  EW

C2

0.32

Spherical

20

-75

0

25

25

10

 

Low

C0

0.30

Nugget

-

-

-

-

-

-

  Grade

C1

0.38

Spherical

342

-47

-17

6

6

3

   

C2

0.32

Spherical

342

-47

-17

21

17

12

 

ttlogo1.jpg

11-22

 

ueclogo1.jpg

 

S-K 1300 INITIAL ASSESSMENT REPORT – ROUGHRIDER URANIUM PROJECT

REPORT DATE: NOVEMBER 5, 2024

 

Table 1111: Summary of Variogram Models for RRFE

 

Zone

Domain

Structure

Contribution

Type

Direction

Range

         

Azi

Plunge

Dip

Major

Minor

Vertical

 

High-Grade

C0

0.30

Nugget

-

-

-

-

-

-

  Layering

C1

0.15

Spherical

92

-17

42

12

2

1

   

C2

0.55

Spherical

92

-17

42

50

27

11

 

High-Grade

C0

0.10

Nugget

-

-

-

-

-

-

  NE

C1

0.55

Spherical

250

-45

-36

21

3

3

RRFE  

C2

0.35

Spherical

250

-45

-36

24

24

9

 

High-Grade

C0

0.30

Nugget

-

-

-

-

-

-

  EW

C1

0.47

Spherical

92

19

69

16

3

2

   

C2

0.23

Spherical

92

19

69

23

23

6

 

 

C0

0.20

Nugget

-

-

-

-

-

-

  Low Grade

C1

0.38

Spherical

88

-21

41

17

5

3

   

C2

0.42

Spherical

88

-21

41

25

12

12

 

 

11.8

Block Model Estimation


 

11.8.1

Estimation Overview

 

A three-dimensional block model was constructed in Vulcan to encompass the RRW, RRE, and RRFE domains. The block variables grade, density, and GxD were independently interpolated using ordinary kriging (“OK”) as informed by the variogram models and the composites. HYL restrictions were used to control the influence of high-grade samples. A combination of hard and restricted soft boundary conditions was used in the estimation.

 

11.8.2

Block Model Definition

 

The constructed block model fully encloses the modelled resource wireframes. The model origin, using UTM zone 13N NAD83 coordinates, is 556,000 m Easting (X), 6,466,650 m Northing (Y), and -100 m elevation (Z). The block model uses a parent block size of 4 m (Easting) by 4 m (Northing) by 2.5 m (elevation) with 0.50 m by 0.25 m by 0.25 m sub-blocks.

 

ttlogo1.jpg

11-23

 

ueclogo1.jpg

 

S-K 1300 INITIAL ASSESSMENT REPORT – ROUGHRIDER URANIUM PROJECT

REPORT DATE: NOVEMBER 5, 2024

 

Table 11‑12 is a summary of the block model definition parameters. In the UMR QP’s opinion, the selected parent block size is suitable for mining analysis and the 0.25 m to 0.50 m sub-blocks adequately capture the complex geologic features of the modelled domains. A whole block approach was used for block coding whereby the block was assigned a numerical code based on the domain where its centroid is located. The parent blocks were discretized at 3 by 3 by 3 and the sub-block grades were assigned the grade of the parent block.

 

Table 1112: Block Model Definition

 

Axis

Parent

Block

Size (m)

Sub-Block

Size (m)

Origin

Number

of Cells

Rotation

Angle

Easting (X)

4

0.50

556,000

400

0

Northing (Y)

4

0.25

6,466,650

200

0

Elevation (Z)

2

0.25

-100

600

0

 

11.8.3

Interpolation Methods

 

The grade, density, and GxD variables were interpolated using OK in two passes. The basis of the estimate is the constructed grade variogram, the composites, and the blocks within each domain. In the hard boundary estimation, only samples from within individual domains were used to estimate blocks within those domains. In addition to the hard boundary estimation procedures, the domains determined to have a ‘soft’ boundary with contacting or adjacent domains (previously summarized in Table 11‑3 to Table 11‑5), a supplemental restricted search ellipsoid was used to incorporate samples from specific nearby estimation domains (previously summarized in Table 11‑6). Octant restrictions were employed in 73% of the estimated domains to limit screening effects in both the first and second estimation passes.

 

The first pass used a primary search ellipse that approximates the grade variogram range and orientation for each domain. The interpolation of the variables was completed using a minimum of 1, 2, 3, 4, 5, or 6 to a maximum of 5, 6, 8, 10, or 12 composites per estimate. The maximum number of samples used per drill hole per estimate was typically limited to four, but there are three domains that used a maximum of two and one domain that used a maximum of five. The number of samples per estimate were derived from Kriging Neighborhood Analysis tests and reviewing the estimated results in a series of plan views and sections. The HYL function was used to restrict the influence of the high-grade populations in the bimodal domains, limiting the influence of samples greater than 5%, 10%, 15%, 25%, and 30% U3O8. The HYL restricted search ellipse is detailed in Table 11‑7 of section 11.6.3 (Outlier Capping and Restrictions). The first pass, on average, estimated 81% of the blocks within the domains.

 

The second pass implemented a larger search ellipse, equating to 150% the size of the first pass on average, to estimate the remaining blocks. The same HYL parameters as the first pass were used for the second pass, and, in terms of sample selection, the second pass is like the first pass but with minor adjustments that optimize for the larger search.

 

The final block grade is calculated by dividing the GxD variable by the density variable. The first and second estimation passes are summarized in Table 11‑13.

 

ttlogo1.jpg

11-24

 

ueclogo1.jpg

 

S-K 1300 INITIAL ASSESSMENT REPORT – ROUGHRIDER URANIUM PROJECT

REPORT DATE: NOVEMBER 5, 2024

 

Table 1113: Estimation Parameter Summary

 

 

Orientation

Pass 1 Radii (m)

Pass 1 Sample Criteria

Pass 2 Radii (m)

Pass 2 Sample Criteria

Domain

Bearing

Plunge

Dip

Major

Semi

Minor

Min

Max

Max/
DDH

Octant

Search?

HYL
(%

U3O8)

Major

Semi

Minor

Min

Max

Max/
DDH

Octant

Search?

HYL
(%

U3O8)

1101

170

50

180

45

25

15

5

8

4

Y

30

60

32.5

20

4

8

3

N

30

1102

170

50

180

45

25

15

5

8

4

Y

30

60

32.5

20

4

8

3

N

30

1103

170

50

180

45

25

15

4

8

4

Y

30

75

40

25

3

8

3

N

30

1104

170

50

180

45

25

15

5

8

4

Y

30

60

32.5

20

4

8

3

N

30

1105

170

50

180

45

25

15

5

8

4

Y

30

60

32.5

20

4

8

3

N

30

1106

170

50

180

45

25

15

5

8

4

Y

30

60

32.5

20

4

8

3

N

30

1107

170

50

180

45

25

15

5

8

4

Y

30

60

32.5

20

4

8

3

N

30

1108

170

50

180

45

25

15

5

8

4

Y

30

60

32.5

20

4

8

3

N

30

1109

170

50

180

45

25

15

5

8

4

Y

30

60

32.5

20

4

8

3

N

30

1110

170

50

180

45

25

15

4

8

4

Y

30

75

40

25

3

8

3

N

30

1111

170

50

180

45

25

15

5

8

4

Y

30

60

32.5

20

4

8

3

N

30

1112

170

50

180

45

25

15

5

8

4

Y

30

60

32.5

20

4

8

3

N

30

1113

170

50

180

45

25

15

5

8

4

Y

30

60

32.5

20

4

8

3

N

30

1114

170

50

180

45

25

15

5

8

4

Y

30

60

32.5

20

4

8

3

N

30

1115

170

50

180

45

25

15

5

8

4

Y

30

60

32.5

20

4

8

3

N

30

1116

170

50

180

45

25

15

5

8

4

Y

30

60

32.5

20

4

8

3

N

30

1117

170

50

180

45

25

15

5

8

4

Y

30

60

32.5

20

4

8

3

N

30

1118

170

50

180

45

25

15

5

8

4

Y

30

60

32.5

20

4

8

3

N

30

1119

170

50

180

45

25

15

4

8

4

Y

30

60

32.5

20

2

8

3

N

30

1120

170

50

180

45

25

15

5

8

4

Y

30

60

32.5

20

4

8

3

N

30

1121

170

50

180

45

25

15

5

8

4

Y

30

60

32.5

20

4

8

3

N

30

1122

170

50

180

45

25

15

5

8

4

Y

30

60

32.5

20

4

8

3

N

30

1123

170

50

180

45

25

15

5

8

4

Y

30

60

32.5

20

4

8

3

N

30

1124

170

50

180

45

25

15

5

8

4

Y

30

60

32.5

20

4

8

3

N

30

 

ttlogo1.jpg

11-25

 

ueclogo1.jpg

 

S-K 1300 INITIAL ASSESSMENT REPORT – ROUGHRIDER URANIUM PROJECT

REPORT DATE: NOVEMBER 5, 2024

 

 

Orientation

Pass 1 Radii (m)

Pass 1 Sample Criteria

Pass 2 Radii (m)

Pass 2 Sample Criteria

Domain

Bearing

Plunge

Dip

Major

Semi

Minor

Min

Max

Max/
DDH

Octant

Search?

HYL
(%

U3O8)

Major

Semi

Minor

Min

Max

Max/
DDH

Octant

Search?

HYL
(%

U3O8)

1125

170

50

180

45

25

15

3

8

4

Y

30

75

40

25

3

8

3

N

30

1126

170

50

180

45

25

15

5

8

4

Y

30

60

32.5

20

4

8

3

N

30

1127

170

50

180

45

25

15

5

8

4

Y

30

60

32.5

20

4

8

3

N

30

1128

170

50

180

45

25

15

3

8

4

Y

30

75

40

25

2

8

N/A

N

30

1129

170

50

180

45

25

15

5

8

4

Y

30

60

32.5

20

2

8

3

N

30

1201

345

-45

22.5

35

25

10

5

8

4

Y

10

45

32.5

15

4

8

3

N

10

1202

345

-45

22.5

35

25

10

5

8

4

Y

10

45

32.5

15

4

8

3

N

10

1203

345

-45

22.5

35

25

10

5

8

4

Y

10

45

32.5

15

4

8

3

N

10

1204

345

-45

22.5

35

25

10

3

8

4

Y

10

60

45

20

3

8

3

N

10

1205

345

-45

22.5

35

25

10

5

8

4

Y

10

45

32.5

15

4

8

3

N

10

1206

345

-45

22.5

35

25

10

5

8

4

Y

10

60

45

20

4

8

3

N

10

1207

345

-45

22.5

35

25

10

5

8

4

Y

10

45

32.5

15

4

8

3

N

10

1208

345

-45

22.5

35

25

10

5

8

4

Y

10

45

32.5

15

4

8

3

N

10

1209

345

-45

22.5

35

25

10

5

8

4

Y

10

45

32.5

15

4

8

3

N

10

1210

345

-45

22.5

35

25

10

5

8

4

Y

10

45

32.5

15

4

8

3

N

10

1211

345

-45

22.5

35

25

10

5

8

4

Y

10

60

45

20

3

8

3

N

10

1212

345

-45

22.5

35

25

10

5

8

4

Y

10

45

32.5

15

4

8

3

N

10

1213

345

-45

22.5

35

25

10

5

8

4

Y

10

45

32.5

15

4

8

3

N

10

1214

345

-45

22.5

35

25

10

3

8

4

Y

10

60

45

20

3

8

3

N

10

1215

345

-45

22.5

35

25

10

5

8

4

Y

10

45

32.5

15

4

8

3

N

10

1216

345

-45

22.5

35

25

10

3

8

4

Y

10

60

45

20

3

8

3

N

10

1217

345

-45

22.5

35

25

10

3

8

4

Y

10

60

45

20

2

8

N/A

N

10

1218

345

-45

22.5

35

25

10

3

8

4

Y

10

45

32.5

15

4

8

3

N

10

1219

345

-45

22.5

35

25

10

1

8

4

N

10

60

45

20

1

8

N/A

N

10

1220

345

-45

22.5

35

25

10

3

8

4

N

10

60

45

20

1

8

4

N

10

 

ttlogo1.jpg

11-26

 

ueclogo1.jpg

 

S-K 1300 INITIAL ASSESSMENT REPORT – ROUGHRIDER URANIUM PROJECT

REPORT DATE: NOVEMBER 5, 2024

 

 

Orientation

Pass 1 Radii (m)

Pass 1 Sample Criteria

Pass 2 Radii (m)

Pass 2 Sample Criteria

Domain

Bearing

Plunge

Dip

Major

Semi

Minor

Min

Max

Max/
DDH

Octant

Search?

HYL
(%

U3O8)

Major

Semi

Minor

Min

Max

Max/
DDH

Octant

Search?

HYL
(%

U3O8)

1402

355

-45

5

45

25

10

6

12

5

Y

5

75

45

20

5

12

4

N

5

3101

350

-40

-10

30

20

15

6

10

4

N

15

55

37.5

23

5

10

4

N

15

3102

350

-40

-10

30

20

15

6

10

4

N

15

45

30

23

5

10

4

N

15

3103

350

-40

-10

30

20

15

6

10

4

N

15

45

30

23

5

10

4

N

15

3104

350

-40

-10

30

20

15

6

10

4

N

15

45

30

23

3

10

4

N

15

3105

350

-40

-10

30

20

15

6

10

4

N

15

45

30

23

3

10

4

N

15

3106

350

-40

-10

30

20

15

6

10

4

N

15

45

30

23

5

10

4

N

15

3107

350

-40

-10

30

20

15

4

10

4

N

15

45

30

23

2

5

4

N

15

3108

350

-40

-10

30

20

15

6

10

4

N

15

45

30

23

3

10

4

N

15

3109

350

-40

-10

30

20

15

6

10

4

N

15

45

30

23

3

10

4

N

15

3110

350

-40

-10

30

20

15

2

10

4

N

15

45

30

23

2

10

4

N

15

3111

350

-40

-10

30

20

15

4

10

4

N

15

45

30

23

3

10

4

N

15

3201

250

-45

-35

25

25

10

6

10

4

N

25

50

50

18

3

10

4

N

25

3202

250

-45

-35

25

25

10

6

10

4

N

25

45

45

18

3

10

4

N

25

3203

250

-45

-35

25

25

10

6

10

4

N

25

37.5

37.5

18

3

10

4

N

25

3204

250

-45

-35

25

25

10

6

10

4

N

25

60

60

25

3

10

4

N

25

3205

250

-45

-35

25

25

10

6

10

4

N

25

37.5

37.5

18

5

10

4

N

25

3206

250

-45

-35

25

25

10

6

10

4

N

25

50

50

25

5

10

4

N

25

3207

250

-45

-35

25

25

10

6

10

4

N

25

37.5

37.5

18

5

10

4

N

25

3302

20

-75

0

25

25

10

6

10

4

N

N/A

45

45

20

3

6

N/A

N

N/A

3402

342

-47

-17

21

17

12

6

10

4

N

5

50

50

25

2

12

N/A

N

5

4101

92

-17

42

50

30

12.5

6

10

4

Y

15

65

40

17

5

10

4

N

15

4102

92

-17

42

50

30

12.5

6

10

4

Y

15

65

40

17

5

10

4

N

15

4103

92

-17

42

50

30

12.5

6

10

4

Y

15

65

40

17

5

10

4

N

15

4104

92

-17

42

50

30

12.5

6

10

4

Y

15

65

40

17

5

10

4

N

15

 

ttlogo1.jpg

11-27

 

ueclogo1.jpg

 

S-K 1300 INITIAL ASSESSMENT REPORT – ROUGHRIDER URANIUM PROJECT

REPORT DATE: NOVEMBER 5, 2024

 

 

Orientation

Pass 1 Radii (m)

Pass 1 Sample Criteria

Pass 2 Radii (m)

Pass 2 Sample Criteria

Domain

Bearing

Plunge

Dip

Major

Semi

Minor

Min

Max

Max/
DDH

Octant

Search?

HYL
(%

U3O8)

Major

Semi

Minor

Min

Max

Max/
DDH

Octant

Search?

HYL
(%

U3O8)

4105

92

-17

42

50

30

12.5

6

10

4

Y

15

65

40

17

5

10

4

N

15

4106

92

-17

42

50

30

12.5

6

10

4

Y

15

80

60

20

4

10

4

N

15

4107

92

-17

42

50

30

12.5

6

10

4

Y

15

65

40

17

4

10

3

N

15

4108

92

-17

42

50

30

12.5

6

10

4

Y

15

65

40

17

5

10

4

N

15

4109

92

-17

42

50

30

12.5

6

10

4

Y

15

65

40

17

5

10

4

N

15

4110

92

-17

42

50

30

12.5

6

10

4

Y

15

65

40

17

5

10

4

N

15

4111

92

-17

42

50

30

12.5

3

10

2

Y

15

N/A

4112

92

-17

42

50

30

12.5

6

10

4

Y

15

65

40

17

5

10

4

N

15

4113

92

-17

42

50

30

12.5

6

10

4

Y

15

65

40

17

5

10

4

N

15

4114

92

-17

42

50

30

12.5

6

10

4

Y

15

65

40

17

5

10

4

N

15

4115

92

-17

42

50

30

12.5

6

10

4

Y

15

65

40

17

5

10

4

N

15

4116

92

-17

42

50

30

12.5

6

10

4

Y

15

65

40

17

5

10

4

N

15

4117

92

-17

42

50

30

12.5

6

10

4

Y

15

65

40

17

5

10

4

N

15

4118

92

-17

42

50

30

12.5

6

10

4

Y

15

65

40

17

5

12

4

N

15

4120

92

-17

42

50

30

12.5

3

10

2

Y

15

N/A

4121

92

-17

42

50

30

12.5

3

10

2

Y

15

N/A

4201

133

45

22

50

30

12.5

3

10

4

Y

15

65

40

40

2

10

4

N

15

4202

103

71

-136

50

30

12.5

3

10

4

Y

15

65

40

17

3

10

4

Y

15

4301

92

20

70

25

25

7.5

6

10

4

N

15

35

35

12

5

10

4

N

15

4302

92

20

70

25

25

7.5

6

10

4

N

15

65

50

22

3

10

4

N

15

4303

92

20

70

25

25

7.5

6

10

4

N

15

65

50

22

5

10

4

N

15

4304

92

20

70

25

25

7.5

6

10

4

N

15

35

35

12

5

10

4

N

15

4402

88

-21

40

25

12.5

12.5

6

12

4

Y

5

75

32.5

32.5

2

10

3

N

15

 

ttlogo1.jpg

11-28

 

ueclogo1.jpg

 

S-K 1300 INITIAL ASSESSMENT REPORT – ROUGHRIDER URANIUM PROJECT

REPORT DATE: NOVEMBER 5, 2024

 

11.9

Model Validation


 

The block model was validated by mean comparison, volumetric comparison, histogram comparison, visual inspection, and swath plots. Overall, there is a good correlation between the block estimates and the supporting composite grades.

 

11.9.1

Global Bias

 

The UMR QP declustered the composites to create a representative distribution to check the SRK model against. The declustering weights were generated through a block model approach. A block model was created with block dimensions of 0.75 m by 0.75 m by 0.75 m, which is slightly smaller than the size of the informing composites. The composites were assigned a unique ID per composite and a nearest neighbour estimation was completed on the unique IDs. The number of blocks assigned the unique ID were divided by the total blocks of the domain, resulting in the declustering weight for that composite. The weights were rescaled to be manageable for the database and used, in part with the variable values, as the representative distribution.

 

The average block grades were compared to the means of the representative distributions for an assessment of global bias (Table 11‑14).

 

Table 1114: Declustered Composite Mean versus Block Mean

 

Zone

Domains

Declustered Composites
(Density Weighted)

Tonnage Weighted Blocks

Percent Different

   

Avg. % U3O8

Avg. % U3O8

 

RRW

High Grade

9.11

9.39

3.07%

 

Low Grade

0.40

0.37

-7.70%

RRE

High Grade

13.35

11.14

-16.55%

 

Low Grade

0.31

0.28

-8.44%

RRFE

High Grade

6.26

5.87

-6.21%

 

Low Grade

0.61

0.55

-10.38%

 

The block model estimate contains underpredicted grades, at varying degrees, relative to the representative distributions for all domains except the RRW High Grade domains, which includes the High-Grade Layering (code 1100) and High-Grade NE (code 1200) domains. The RRW High-Grade domain is within |5%| percent error, and thus, is considered reasonable by the UMR QP.

 

The overall slight to moderate underprediction of grade is due to the HYL imposed during estimation, in lieu of capping the data. In the UMR QP’s opinion, the use of a HYL function to restrict the influence of high-grade, spatially contiguous samples is a reasonable technique for managing the risk of overestimation and grade smearing.

 

ttlogo1.jpg

11-29

 

ueclogo1.jpg

 

S-K 1300 INITIAL ASSESSMENT REPORT – ROUGHRIDER URANIUM PROJECT

REPORT DATE: NOVEMBER 5, 2024

 

11.9.2

Histogram

 

The UMR QP created a Discrete Gaussian Model (“DGM”) using the RRW High-Grade Layering, RRW High-Grade NE, RRE High-Grade Layering, and RRFE High-Grade Layering composites, representing the domains with the largest contributions to metal content for the deposit. The DGM accounts for change of support using a variogram model, a normal score transformation, and Hermite polynomials (Harding & Deutsch, 2019). Change of support means that as the support of the core sample increases to the size of a mining unit (or block size) the observed variability will decrease and the distribution will become more symmetric (Harding & Deutsch, 2019; Figure 11‑17).

 

fig11_17.jpg

 

Figure 1117: Diagram Demonstrating the Change of Support Principle

(Harding & Deutsch, 2019)

 

For the selected domains, quantile-quantile plots were generated to compare the distribution of block estimate grades to the composite grades corrected by the change of support model (Figure 11‑18). The DGM and block estimate closely replicate each other in the RRW High-Grade Layering domain (code 1100). The other three domains show a generally good replication of data until higher grades where the blocks underpredict relative to the DGM. The underpredictions are attributed to the use of a HYL during estimation.

 

ttlogo1.jpg

11-30

 

ueclogo1.jpg

 

S-K 1300 INITIAL ASSESSMENT REPORT – ROUGHRIDER URANIUM PROJECT

REPORT DATE: NOVEMBER 5, 2024

 

fig11_18.jpg

 

Figure 1118: Quantile-Quantile Plot of DGM Comparison to Blocks (UMR, 2024)

 

11.9.3

Visual Inspection

 

Block grades were visually compared with drillhole composites on cross-sections, longitudinal sections, and plan views; examples are provided in Figure 11‑19 and Figure 11‑20. The block grades and composite grades correlate well visually within the Roughrider deposit, although rare exceptions have been identified. The UMR QP does not believe the exceptions are material to the global resource.

 

ttlogo1.jpg

11-31

 

ueclogo1.jpg

 

S-K 1300 INITIAL ASSESSMENT REPORT – ROUGHRIDER URANIUM PROJECT

REPORT DATE: NOVEMBER 5, 2024

 

fig11_19.jpg

 

Figure 1119: Cross-Section of RRW Estimated Block Grades Underlain by Composite Grades Looking Northeast (UMR, 2024)

 

ttlogo1.jpg

11-32

 

ueclogo1.jpg

 

S-K 1300 INITIAL ASSESSMENT REPORT – ROUGHRIDER URANIUM PROJECT

REPORT DATE: NOVEMBER 5, 2024

 

fig11_20.jpg

 

Figure 1120: Cross-Section of RRFE Estimated Block Grades Underlain by Composite Grades Looking Northeast (UMR, 2024)

 

11.9.4

Swath Plots

 

A series of swath plots were generated for the estimation domain. The swath plots compare the block model grades against the composite grades to evaluate any potential local grade bias; no bias was identified in the model. As expected, the composite database is more variable than the block model, but the block model captures general trends observed in the data. Figure 11‑26, Figure 11‑29, and Figure 11‑30 are an example of the review process for the RRW domains.

 

ttlogo1.jpg

11-33

 

ueclogo1.jpg

 

S-K 1300 INITIAL ASSESSMENT REPORT – ROUGHRIDER URANIUM PROJECT

REPORT DATE: NOVEMBER 5, 2024

 

fig11_21.jpg

 

Figure 1121: Swath Plot of % U3O8 Composites and Block Model for RRW High-Grade Layering (1100) Domain in the X, Y, Z Directions (UMR, 2024)

 

 

fig11_22.jpg

 

Figure 1122: Swath Plot of % U3O8 Composites and Block Model for RRW High-Grade NE (1200) Domain in the X, Y, Z Directions (UMR, 2024)

 

ttlogo1.jpg

11-34

 

ueclogo1.jpg

 

S-K 1300 INITIAL ASSESSMENT REPORT – ROUGHRIDER URANIUM PROJECT

REPORT DATE: NOVEMBER 5, 2024

 

fig11_23.jpg

 

Figure 1123: Swath Plot of % U3O8 Composites and Block Model for RRW Low-Grade (1400) Domain in the X, Y, Z Directions (UMR, 2024)

 

11.10

Mineral Resource Classification


 

Mineral Resources must be classified, in order of increasing geological confidence, as Inferred, Indicated, or Measured Mineral Resources to be compliant with S-K 1300.

 

The MRE for the Roughrider deposit contains Indicated and Inferred Mineral Resources; the RRW and RRFE zones is comprised of Indicated and Inferred Mineral Resources, while the RRE zone is entirely composed of Inferred Mineral Resources. The classification was assigned to regions of the block model based on SRK’s assessment of drill hole spacing in conjunction with the geological understanding and continuity of mineralization, data quality, spatial continuity, block model representativeness, and data density.

 

Below are the classification criteria for Indicated and Inferred Mineral Resources:

 

Indicated Mineral Resources were defined by the following criteria:

 

Block estimates are not informed by high-grade samples (>15% U308) with low core recovery (less than 80%)

 

Maximum average distance to samples used to estimate the block is less than the range of the modelled (variogram) continuity at 90% of the sill by domain group

 

Minimum of three holes used in the block estimate

 

OK informed by robust variograms. The modelled variograms at RRE are not robust, so it has been excluded from Indicated consideration

 

ttlogo1.jpg

11-35

 

ueclogo1.jpg

 

S-K 1300 INITIAL ASSESSMENT REPORT – ROUGHRIDER URANIUM PROJECT

REPORT DATE: NOVEMBER 5, 2024

 

Slope of regression of block estimate greater than or equal to 0.8

 

Inferred Mineral Resources were defined by the following criteria:

 

Block estimates within the modelled estimation domains

 

Maximum extrapolation distance to samples used to estimate the block is less than 15 m

 

Figure 11‑24, Figure 11‑25 and Figure 11‑26 visualize the classification of in-situ mineralization at the deposit.

 

fig11_24.jpg

 

Figure 1124: Long Section Looking North of In-Situ Classification of RRW, RRE, and RRFE Zones (UMR, 2024)

 

ttlogo1.jpg

11-36

 

ueclogo1.jpg

 

S-K 1300 INITIAL ASSESSMENT REPORT – ROUGHRIDER URANIUM PROJECT

REPORT DATE: NOVEMBER 5, 2024

 

fig11_25.jpg

 

Figure 1125: Cross Section Looking East of the Classification of the RRW Zone, Underlain by Drillhole Traces (UMR, 2024)

 

11-37

 

ueclogo1.jpg

 

S-K 1300 INITIAL ASSESSMENT REPORT – ROUGHRIDER URANIUM PROJECT

REPORT DATE: NOVEMBER 5, 2024

 

fig11_26.jpg

 

Figure 1126: Cross Section Looking East of the Classification of the RRFE Zone, Underlain by Drillhole Traces (UMR, 2024)

 

The estimate assumes the deposit is amenable to underground mining methods and was further constrained using a mineable shape optimizer (“MSO”). The underground mineable shapes were classified as Indicated or Inferred based on majority of classified mineralized tonnes held within it. Figure 11‑27 visualizes the conversion from in-situ classification to stope-by-stope classification and Figure 11‑28 shows the stope-by-stope classification for the whole deposit.

 

ttlogo1.jpg

11-38

 

ueclogo1.jpg

 

S-K 1300 INITIAL ASSESSMENT REPORT – ROUGHRIDER URANIUM PROJECT

REPORT DATE: NOVEMBER 5, 2024

 

fig11_27.jpg

 

Figure 1127: Cross Section Looking East-northeast of the In-situ Classification of the RRW Zone Transferred to the Stope Classification (UMR, 2024)

 

 

fig11_28.jpg

 

Figure 1128: Long Section Looking North of Classified Stopes for RRW, RRE, and RRFE (UMR, 2024)

 

ttlogo1.jpg

11-39

 

ueclogo1.jpg

 

S-K 1300 INITIAL ASSESSMENT REPORT – ROUGHRIDER URANIUM PROJECT

REPORT DATE: NOVEMBER 5, 2024

 

11.11

Cut-off Grade and Reasonable Prospects of Economic Extraction


 

To meet the requirement of reasonable prospects of economic extraction (“RPEE”), the MRE is reported within a constrained MSO. A cut-off grade of 0.30 % U3O8 was used to inform the MSO. The cutoff grade was calculated using the following criteria and assumptions:

 

U3O8 price = US$85.00/lb

 

Transport cost = US$0.26/lb

 

Mining cost = US$163/t

 

Processing cost = US$222/t

 

G&A cost = US$112/t

 

Royalties = 9.22%

 

Process recovery = 97.5%

 

Commodity price assumption was provided by UEC based on the TradeTech’s (2024) marketing study that forecasts a long-term price to 2040 which covers the life-of-mine presented in this report. It is the QP’s opinion that the price is reasonable and consistent with the market studies. The detailed analysis of the commodity price is provided in Section 16. Mining and selling costs were based on benchmark data and similar sized operations in the region and were deemed suitable for an initial assessment. Mineral Resource MSO assessment takes into account an approximate 10 m offset from the mining license boundary. Additional details on the MSO analysis are in Section 13.3.

 

11.12

Mineral Resource Statement


 

The 2024 Mineral Resource Statement for the Roughrider deposit adheres to SEC’s property disclosure regulations, S-K 1300. To meet the requirement of RPEE, the MRE is constrained by underground mining shapes as informed by a breakeven cut-off grade of 0.30% U3O8. The Mineral Resources are reported diluted, including waste and mineralization below cut-off. The reporting date of this Mineral Resource Statement is 2024-11-05, coincident with the final design of the MSO shapes.

 

The Mineral Resource is composed of Indicated and Inferred Mineral Resources. The Indicated Mineral Resources total 699 kt at an average grade of 1.81% U3O8 for a total of 27.86 Mlbs U3O8. Inferred Mineral Resources total 620 kt at an average grade of 2.45% U3O8 for a total of 33.38 Mlbs U3O8 (Table 11‑15). No Mineral Reserves have been estimated at the Property.

 

ttlogo1.jpg

11-40

 

ueclogo1.jpg

 

S-K 1300 INITIAL ASSESSMENT REPORT – ROUGHRIDER URANIUM PROJECT

REPORT DATE: NOVEMBER 5, 2024

 

Table 1115: Mineral Resource Statement for the Project (as of November 5, 2024)

 

Zone

Classification

Tonnage (kt)

Grade U3O8 (%)

Contained U3O8 Metal (M lb U3O8)

RRW

Indicated

431

1.89

17.97

 

Inferred

152

2.80

9.39

RRE

Indicated

-

-

-

 

Inferred

390

2.57

22.05

RRFE

Indicated

268

1.67

9.89

 

Inferred

78

1.13

1.94

Total

Indicated

699

1.81

27.86

 

Inferred

620

2.45

33.38

*Notes

 

1.

There are no Mineral Reserves estimated for this Project.

 

2.

Mineral Resource estimate is reported on a 100% ownership basis.

 

3.

Mineral Resource estimate are reported diluted within the underground MSO shapes based on a U3O8 price of US$85/lb and metallurgical recovery of 97.5%. A longhole mining method was assumed with an approximate cut-off of 0.30% U3O8. The MSO shapes were estimated by Snowden, a third-party firm comprising mining experts the definition defined by S-K 1300.

 

4.

The Mineral Resource estimate was prepared by UMR, a third-party comprising mining experts under the definitions defined by S-K 1300.

 

5.

The tonnage is presented in metric tonnes and contained metal is in reported in both metric tonnes and imperial pounds. Estimates have been rounded and may not add up due to significant figure rounding.

 

11.13

Mineral Resource Uncertainty


 

11.13.1

Specific Identified Risks

 

The Project has downhole radiometric data that can be converted to eU3O8 through mathematical equations; a accepted practice by uranium companies in the Athabasca Basin. It is also common practice to replace assay results obtained from core with poor recovery (<70% recovery) with the calculated eU3O8 grades. However, SRK investigated the probe and assay data, and concluded that the gamma probe data is uncalibrated for grades above 4% U3O8; thus, eU3O8 was not used in the estimate. This resulted in a limited number of block estimates being informed by high-grade and low-recovery samples. The global impact of these problematic samples is not considered to be material, and the classification criteria reflects the uncertainty in the grade (i.e. blocks informed by low-recovery, high-grade samples are Inferred or not reported). Although utmost care was used to avoid the risk of overestimation and overreporting, the risk remains.

 

High-grade uranium deposits are sensitive to variations in volume; thus, if the interpretation of the constraining estimation domains change, the contained metal content is likely to vary significantly.

 

Uranium data is nearly exhaustively sampled at all data locations but, there are significantly less density measurements. The lack of data increases uncertainty in the estimation of density across the deposit, equating to increased uncertainty in estimated tonnage. The risk is partially offset by the regression formula to impute missing density measurement or assign density values to estimated blocks.

 

The QP considers that the MRE reported adjacent to the unconformity, where there is limited information in the hydrogeological and geotechnical conditions, are subject to increase the uncertainty. In the event that technical challenges cannot be managed, this material is at risk of not meeting RPEE.

 

Overall, the drill sampling methods used at the Roughrider deposit meet or exceed industry standards and the assay results have been comprehensively reviewed and validated. The geostatistical estimates of in-situ tonnages and grades are reasonable and validated by comprehensive validation. The UMR QP considers that these methods are appropriate to produce the declared Mineral Resources.

 

ttlogo1.jpg

11-41

 

ueclogo1.jpg

 

S-K 1300 INITIAL ASSESSMENT REPORT – ROUGHRIDER URANIUM PROJECT

REPORT DATE: NOVEMBER 5, 2024

 

11.13.2

Generic Mineral Resource Uncertainty

 

Mineral resources are uncertain because of variability at all scales and sparse sampling. The variables constituting the Mineral Resource, the volume of the geological interpretation and the grade estimates within that volume, are the sources of uncertainty. These uncertainties are typically a function of drill spacing, with denser spacing equating to less uncertainty and sparser spaced areas having more uncertainty.

 

Changes to the geologic interpretation would greatly alter the estimation. If new interpretations of geological complexities are presented, the Mineral Resource would need to be updated to reflect the new interpretations.

 

UEC cannot be certain that any part or parts of a deposit or Mineral Resource estimate will ever be confirmed or converted into Mineral Reserves or that mineralization can in the future be economically or legally extracted.

 

The UMR QP considers that the level of uncertainty has been adequately reflected in the classification of Mineral Resources. Notwithstanding this, the MRE presented in herein may be materially impacted by any future changes in the break-even cut-off grade, which may result from changes in mining method selection, mining costs, processing recoveries and costs, metal price fluctuations, or significant changes in geological knowledge.

 

The combined level of technical studies completed to date on the Project is at a conceptual study level. Substantive additional technical work, comprising gathering site specific information and additional technical work is required to advance the Project to a position where economic viability can be demonstrated.

 

11.14

Mineral Resource Sensitivity


 

The resources were calculated at various cut-off grade thresholds as a review of the deposit’s sensitivity to change in mining costs. The UMR QP notes that, although there is some sensitivity of average grade and tonnes to cut-off grade, the contained metal is less sensitive. Figure 11‑29 and Figure 11‑30 visualize the sensitivity of the tonnes and grade to the various cut-off grades for Indicated and Inferred Mineral Resources, respectively.

 

ttlogo1.jpg

11-42

 

ueclogo1.jpg

 

S-K 1300 INITIAL ASSESSMENT REPORT – ROUGHRIDER URANIUM PROJECT

REPORT DATE: NOVEMBER 5, 2024

 

fig11_29.jpg

 

Figure 1129: Diluted Block Model Grade Tonnage Curves for Indicated Mineral Resources (UMR, 2024)

 

ttlogo1.jpg

11-43

 

ueclogo1.jpg

 

S-K 1300 INITIAL ASSESSMENT REPORT – ROUGHRIDER URANIUM PROJECT

REPORT DATE: NOVEMBER 5, 2024

 

fig11_30.jpg

 

Figure 1130: Diluted Block Model Grade Tonnage Curves for Inferred Mineral Resources (UMR, 2024)

 

11.15

Audit Findings


 

UMR’s resource related conclusions and observations are summarized below:

 

The Roughrider Mineral Resource estimate, effective January 1, 2023, as estimated by SRK is reasonable and meets the requirements for public disclosure in accordance with S-K 1300.

 

Mineral Resources of Roughrider were classified as Indicated and Inferred based on drill hole spacing, the geological understanding and continuity of mineralization, data quality, spatial continuity, block model representativeness, and data density. In UMR’s opinion, the Mineral Resource classification methodology is reasonable.

 

The domain models SRK created adequately constrain the mineralization for estimation purposes. However, in UMR’s opinion, the vein interpretations are overly complex for the data density and some of the interpreted veins are inadequately supported by the geologic data. A simpler vein model may reduce the degree of subjectivity being imparted into the model, but, in the QP’s professional judgement, the current model is not adding material, unwarranted metal content to the Mineral Resource. In this case, the issues of an overfitted model have implications locally rather than globally. Furthermore, the mining constraints placed on the reported mineral resources further reduces the likelihood of over-reporting.

 

ttlogo1.jpg

11-44

 

ueclogo1.jpg

 

S-K 1300 INITIAL ASSESSMENT REPORT – ROUGHRIDER URANIUM PROJECT

REPORT DATE: NOVEMBER 5, 2024

 

SRK investigated the probe and assay data and concluded that the gamma probe data is uncalibrated for grades above 4% U3O8; thus, eU3O8 was not used in the estimate. UMR believes there is enough assay and probe data to create and validate a site-specific grade-gamma regression to impute the grade values in areas of low-recovery. As a result of not using eU3O8, the estimate contains a limited number of block estimates informed by high-grade and low-recovery samples. However, in UMR’s opinion, the global impact of the blocks informed by low-recovery assays is not material and the classification criteria reflects the uncertainty in the estimated grade (i.e. blocks informed by low-recovery, high-grade samples are categorized as Inferred Mineral Resources). Therefore, not using eU3O8 in the estimate is acceptable, but the estimate can be optimized by including a well validated eU3O8.

 

Upon reviewing the domain grade distributions, SRK determined that the high-grade samples are not ‘outliers’ but rather a key characteristic of the Roughrider deposit where increased grades are observed in clusters along intersections of vein sets. Instead of capping these ‘outliers’, SRK elected to implement a high yield limit during estimation to restrict the influence of the high-grade populations. In UMR’s opinion, the use of a HYL function to restrict the influence of high-grade, spatially contiguous samples is a reasonable technique for managing the risk of overestimation and grade smearing. This is supported by the following reasons:

 

 

These extreme values are valid and, in UMR’s opinion, should be used to estimate resources, but their spatial influence should be limited, which was done via the high-grade domains and the high yield limit function

 

 

The presence of extreme grades is less problematic if spatial connectivity is observed, which is the case at Roughrider.

 

 

Extreme grades at a uranium deposit are less consequential than that of a precious metal deposit, where capping is typically considered to be a necessity.

 

The composite size, block size, variography modeling, and estimation parameters, including the use of soft boundaries, are appropriate for the deposit in UMR’s opinion.

 

The block and composite grades correlate well visually within the Roughrider Deposit, although rare exceptions have been identified. UMR does not believe the exceptions are material to the global resource.

 

11.16

Recommendations


 

The UMR QP recommends the following to reduce the uncertainty in the MRE:

 

A drillhole spacing study to better inform drillhole spacing for Mineral Resource classification. After completion of the drillhole study, definition drilling should be planned and executed accordingly.

 

Use of geostatistical techniques to quantify the uncertainty of the deposit  in future studies to inform decisions as it relates to mining evaluation, planning, and extraction. The uncertainty associated with the volume, grade, and density variables of the deposit are to be the focus of the study, as these variables define the overall metal content of the deposit, the largest input to project economics.

 

Creating and validating a site-specific grade-gamma regression to impute the grade values in areas of low-recovery.

 

Additional geologic investigations should be completed to confirm the interpretation of continuity in the high-grade vein-like domains. Denison’s Tthe Heldeth Túé (THT) deposit is located only a few hundred metres away from the Roughrider deposit and the high-grade mineralization within THT is interpreted differently and more simply.

 

ttlogo1.jpg

11-45

 

ueclogo1.jpg

 

S-K 1300 INITIAL ASSESSMENT REPORT – ROUGHRIDER URANIUM PROJECT

REPORT DATE: NOVEMBER 5, 2024

 

UEC has planned resource upgrade drilling to upgrade Inferred Mineral Resources at RRE and RRW to Indicated Mineral Resources with approximately 85 drill holes. The UMR QP reviewed the drill program proposed by UEC and is of the opinion that it is a reasonable approach to advancing the project. The cost of completing this work is approximately US $6.43 million with most of the planned expenses to be incurred in 2025; a detailed cost estimate is available in section 26, recommendations.

 

11.17

QP Opinion


 

A variety of factors may affect the MRE, including but not limited to: changes to product pricing assumptions, re-interpretation of geology, geometry and continuity of mineralization zones, mining and metallurgical recovery assumptions, and additional infill or step out drilling.

 

In the UMR QP’s opinion, the estimation methods used are consistent with standard industry practice and the MRE for the Roughrider deposit are considered to be reasonable and acceptable.

 

The UMR QP is of the opinion that all issues relating to all relevant technical and economic factors likely to influence the prospect of economic extraction can be resolved with further work.

 

ttlogo1.jpg

11-46

 

ueclogo1.jpg

 

S-K 1300 INITIAL ASSESSMENT REPORT – ROUGHRIDER URANIUM PROJECT

REPORT DATE: NOVEMBER 5, 2024

 

12.0

MINERAL RESERVE ESTIMATES


 

There is no Mineral Reserve estimate for the Project. An initial assessment was completed including material classified as Inferred. The SEC defines an initial assessment as:

 

Initial assessment is a preliminary technical and economic study of the economic potential of all or parts of mineralization to support the disclosure of mineral resources. The initial assessment must be prepared by a qualified person and must include appropriate assessments of reasonably assumed modifying factors, together with any other relevant operational factors that are necessary to demonstrate, at the time of reporting, that there are reasonable prospects for economic extraction. An initial assessment is required for disclosure of mineral resources but cannot be used as the basis for disclosure of mineral reserves.

 

ttlogo1.jpg

12-1

 

ueclogo1.jpg

 

S-K 1300 INITIAL ASSESSMENT REPORT – ROUGHRIDER URANIUM PROJECT

REPORT DATE: NOVEMBER 5, 2024

 

13.0

MINING METHODS

 

13.1

Geotechnical and Hydrological Information


 

Preliminary geotechnical and hydrological data was collected by Golder Associates Ltd. (now WSP) between 2013 and 2014 for previous owners of the Project. Geotechnical core logging, point load tests, and packer testing were completed on a few drillholes primarily targeting two shaft locations as well as an exploration drift level in the upper half of the deposit.

 

13.1.1

Geotechnical

 

13.1.1.1

Shaft

 

Shaft geotechnical data was based on drillhole 13RRSH001 with International Society for Rock Mechanics and Rock Engineering (“ISRM”) rock strength and RMR76 data shown in Figure 13‑1.

 

fig13_01.jpg

 

Figure 131: Section showing Shaft Geotechnical Data (Golder, 2014)

 

The drillhole is comprised of overburden from 0 m to 25 m (unlogged), sandstone from 25 m to 215 m with a fracture frequency that is low (< 1 fracture/m) to moderate (1-3 fractures/m). ISRM rock strength is generally R3 with some isolated clay altered zones of R0-R2. RMR ranges from 40 to 76 with a mean of 66 which is good quality rock with the poorer quality rock located within 20 m above the unconformity.

 

ttlogo1.jpg

13-1

 

ueclogo1.jpg

 

S-K 1300 INITIAL ASSESSMENT REPORT – ROUGHRIDER URANIUM PROJECT

REPORT DATE: NOVEMBER 5, 2024

 

The unconformity at 215 m downhole (~280 m elevation) is characterized by localized fractures and moderate clay alteration from approximately 2 m above unconformity to 4.5 m below the unconformity.

 

The basement rock below the unconformity (215 m to 280 m depth) has low fracture frequency, ISRM strength of around R5 with weaker R2 rock within 25 m of the unconformity and RMR76 range of 59 to 84 indicating good to very good rock.

 

13.1.1.2

Exploration Drift

 

The exploration drift was planned for the basement around 280 m downhole (220m elevation). Geotechnical evaluation was based on six holes with geotechnical logging and 13 holes that were photo logged for strength. They generally indicate strengths in the range of R3 to R4 and RMR76 in the range of 60 to 80 (good rock) with a weaker zone of R2 to R3 rock in the zone shown Figure 13‑2. No RMR76 estimate was given for the weaker zone.

 

As for the hydraulic conductivity, tests show the overlying Athabasca formation which appears to be controlling the hydraulic conditions of that unit. The basement rocks exhibit lower hydraulic conductivity than the overlying Athabasca formation. The tests indicated that the geologic structures, such as faults and fractures, are controlling the groundwater flow in the basement rocks.

 

fig13_02.jpg

 

Figure 132: Exploration Level Geotechnical Data

(Overview of area of poor rock mass quality – interpreted from core photographs -REF Golder October 27, 2014)

 

13.1.1.3

Regional Geotechnical Considerations

 

No in-situ stress measurements have been taken at Roughrider. Other underground mines in the area indicate a normal stress profile with horizontal in-situ stress ranging up to a maximum of 1.2 times the vertical stress. A seismic assessment for Roughrider was completed in 2010 indicating low seismic activity in the region.

 

ttlogo1.jpg

13-2

 

ueclogo1.jpg

 

S-K 1300 INITIAL ASSESSMENT REPORT – ROUGHRIDER URANIUM PROJECT

REPORT DATE: NOVEMBER 5, 2024

 

13.1.2

Hydrogeological

 

Hydrogeological estimations by Golder Associates in 2014 were made based on the planned exploration drifts as well as a 2011 mine plan (SRK, 2011) that used raise boring as the primary mining method so inflows will likely be different with the current mine plan.

 

Hydraulic conductivities were estimated in six hydrostatic units

 

Unconsolidated Sediments: K = 4 x 10-6 m/s

 

Athabasca Sandstone: K = 3 x 10-7 m/s

 

Highly permeable section of the Paleo-weathered zone: K = 3 x 10-7 m/s

 

Basement: K = 2 x 10-8 m/s

 

Alteration Halo/Uranium mineralization: K = 2 x 10-9 m/s

 

Enhanced Permeability Zone (for non-routine flows): K = 7 x 10-7 m/s

 

Inflows during the exploration drift development ranged from 200 m3/day during shaft sinking and up to 900 m3/day once all lateral developments were completed. The LOM inflow from the 2011 mine plan, was approximated 1,900 m3/day at the end of the mine life although some estimates with non-routine flows included ranged up to 9,500 m3/day.

 

The hydraulic conductivities of the basement were considered unusual for the Athabasca Basin and should be investigated further. Intersecting boreholes that were collared in the lake is a serious concern that must be mitigated through careful investigation of borehole locations and the development of response plans before underground development begins.

 

13.2

Mining Methods


 

The Roughrider deposit will be mined using the longhole stoping method utilizing retreat mining in a transverse stope orientation with various orientations between the 3 main mineralized zones. Various underground mining methods were considered; however, longhole stoping was ultimately selected to reduce cost. Development will be located to the South of the deposits and will be accessed using a ramp decline which will also be the primary source of fresh air ventilation. Exhaust shafts will be used to ventilate the mine.

 

13.2.1

Mining Blocks

 

The Roughrider deposit consists of three main areas that will be mined as separate mining blocks. These are defined as RRW, RRE and RRFE as shown in Figure 13‑3.

 

ttlogo1.jpg

13-3

 

ueclogo1.jpg

 

S-K 1300 INITIAL ASSESSMENT REPORT – ROUGHRIDER URANIUM PROJECT

REPORT DATE: NOVEMBER 5, 2024

 

fig13_03.jpg

 

Figure 133: Plan view of Roughrider Uranium Deposits (Snowden, 2024)

 

13.2.2

Mine Access

 

Both shaft and decline mine access options were considered for the Roughrider project. A decline access was selected due to limited information available on the ground conditions and a lower capital cost when compared to a shaft with hoist option. The mine will be accessed by a 5 m x 5 m decline with a constant gradient of about 14% and the portal located at 465 m elevation above sea level.

 

13.2.2.1

Portal Construction

 

The construction of the decline will require mining through overburden material which is estimated to be about 25 m thick in the location selected for the portal. A box cut will be mined through the overburden with an assumed slope of 30° and supported with soil nails. The portal will be constructed of a 6 m wide corrugated steel culvert and will be backfilled around for support.

 

13.2.2.2

Decline Construction

 

The decline will be driven using conventional drill and blast with an average advance rate of 2.25 metres per day (m/d). This advance rate was assumed considering good conditions; however, the rate could be significantly reduced in wet or poor ground conditions where grouting and additional supports are required. It is recommended that tunnel boring be considered for potential higher advance rates and lower costs. A typical cross section is shown in Figure 13‑4. Ground freezing will be used to control water inflows into the main decline as well as into the three mineralized mining zones. Details for ground freezing is presented in Section 13.2.8.

 

ttlogo1.jpg

13-4

 

ueclogo1.jpg

 

S-K 1300 INITIAL ASSESSMENT REPORT – ROUGHRIDER URANIUM PROJECT

REPORT DATE: NOVEMBER 5, 2024

 

fig13_04.jpg

 

Figure 134: Cross Section of Main Decline (Snowden, 2024)

 

13.2.3

Lateral Development

 

The lateral development will be driven 5 m wide by 5 m high. The drift size was selected to provide sufficient clearance for a 30-tonne truck. The drift height is required to provide adequate clearance for installing ventilation ducts and providing sufficient ventilation airflow volumes for truck haulage operation during the production period.

 

13.2.4

Cross-Cuts

 

Cross-cuts for stoping will be driven 4.5 m wide by 4.5 m high which is sufficient for load-haul-dump (“LHD”) units and truck movements if required.

 

13.2.5

Ventilation Shaft

 

The ventilation exhaust shaft will be excavated by contractors using a raise bore. The ventilation shaft width will be 4.5 m. A detailed ventilation simulation was not conducted and therefore the dimensions of the vent raises will need to be confirmed in future studies. Ground freezing will be used to control water inflows into the main decline as well as the ventilation shaft.

 

ttlogo1.jpg

13-5

 

ueclogo1.jpg

 

S-K 1300 INITIAL ASSESSMENT REPORT – ROUGHRIDER URANIUM PROJECT

REPORT DATE: NOVEMBER 5, 2024

 

13.2.6

Backfill

 

A detailed backfill plan was not prepared for this initial assessment; however, the plan is to use hydraulic backfill and the cost of a paste plant and a nominal backfill cost inclusive of paste was assumed. Detailed backfill percent requirements and ratio of waste rock to hydraulic fill will be determined in future studies.

 

13.2.7

Stoping

 

Using Datamine’s MSO software with the block model described in Section 11.0, longhole mining was assessed using stope parameters presented in Table 13‑1.

 

Table 131: Longhole Stope Parameters

 

Parameter

Unit

RRW

RRE

RRFE

Orientation of Stope

degree

350

005

355

Stope Size

m

10

10

10

Minimum Stope Width

m

2

2

2

Minimum Pillar Length

m

10

10

10

Stope Height

m

20

20

20

Minimum Stope Dip Angle

degree

50

50

50

 

The MSO analysis results is presented Table 13‑2.

 

Table 132: MSO Inventories

 

Description

Tonnes (kt)

U3O8 (%)

Contained U3O8 (M lb)

Waste

734

0.0

0.0

Indicated

326

3.8

27.2

Inferred

259

6.0

34.1

Total

1,319

2.1

61.3

Note: The above inventories exclude isolated stopes that are not adjacent to the remaining stopes.

 

Longhole mining method was selected over cut and fill to minimize development costs and reduce other potential project risks; however, a detailed geotechnical assessment needs to be completed to confirm if the stope shapes are appropriate. To reduce dilution and potentially mitigate poor ground conditions in RRW above 240 masl, there may be opportunities to economically utilize more selective mining methods, such as cut and fill.

 

13.2.8

Ground Support

 

Due to the limited geotechnical information, a basic assumption for all tunnels has been used, which is poor to fair ground conditions using the Q rock mass system by the Norwegian Geotechnical Institute (NGI). Development is expected to have spans of around 5 m with an excavation support ratio (ESR) between 1.3 (access tunnels) and 2 (vertical shafts). The required rock support classification is shown in Figure 13‑5 with the support suggestions being split between 1 (spot bolting) and 3 (systematic bolting and fibre reinforced concrete (5 cm to 6 cm).

 

ttlogo1.jpg

13-6

 

ueclogo1.jpg

 

S-K 1300 INITIAL ASSESSMENT REPORT – ROUGHRIDER URANIUM PROJECT

REPORT DATE: NOVEMBER 5, 2024

 

fig13_05.jpg

 

Figure 135: NGI Empirical Rock Mass Support Chart (Norwegian Geotechnical Institute, 2022)

 

Based on the Snowden QP’s previous underground experience, systematic bolting (1.8 m long on a 1.2 m by 1.2 m pattern) and fibre reinforced concrete (50 mm to 60 cm) for all areas of the mine was assumed. Shotcrete at a minimum thickness of 50 mm is required in all mineralized material development for gamma blocking. Some mines in the area required steel sets for certain parts of their mine access; however, at this time no steel sets have been assumed for the mine.

 

13.2.9

Ground Freezing

 

Ground freezing will be used to control water inflows into the main decline as well as into the three mining zones. Freeze wells will be installed from surface in a “tee pee” configuration around the perimeter of each zone with active freezing starting at least 12 months prior to mining. Figure 13‑6 shows a conceptual view of the freeze caps installed over each of the zones.

 

In addition to the mineralized zones, a perimeter will be frozen around the decline to a depth below the unconformity to reduce water inflows. The freeze plants would be of modular construction and delivered over three years as the ground cooling demand ramps up due to the requirements to freeze multiple zones.

 

ttlogo1.jpg

13-7

 

ueclogo1.jpg

 

S-K 1300 INITIAL ASSESSMENT REPORT – ROUGHRIDER URANIUM PROJECT

REPORT DATE: NOVEMBER 5, 2024

 

fig13_06.jpg

 

Figure 136: Conceptual Isometric View of Freeze Wells Surrounding Mineralized Material Zones (Snowden, 2024)

 

13.3

Cut-off


 

Cut-off grades were calculated using current market studies and costs benchmarked from studies of similar projects. The parameters used are listed in Table 13‑3. Once the cost estimate was completed, the values used were confirmed to be reasonable.

 

ttlogo1.jpg

13-8

 

ueclogo1.jpg

 

S-K 1300 INITIAL ASSESSMENT REPORT – ROUGHRIDER URANIUM PROJECT

REPORT DATE: NOVEMBER 5, 2024

 

Table 133: Cut-off Grade Parameters

 

Parameter

Unit

Value

Revenue

Uranium Price

US$/lb

85

Royalties

%

9.22

Mill Recovery

%

97.5

Transportation

US$/lb

0.26

Uranium Recovery

%

97.5

Net Smelter Return

US$/lb

74.98

Costs

Mining

US$/t

163

Processing

US$/t

222

G&A

US$/t

112

Total Costs

US$/t

497

Cut-off

Cut-off

% U3O8

0.30

 

Tonnes versus U3O8 grade curve is presented in Figure 13‑7. Sensitivity scenarios were also completed at 0.40%, 0.45%, and 0.50% U3O8 cut-off grades, to assess whether the reduced tonnages with higher feed grades would produce a better NPV.

 

ttlogo1.jpg

13-9

 

ueclogo1.jpg

 

S-K 1300 INITIAL ASSESSMENT REPORT – ROUGHRIDER URANIUM PROJECT

REPORT DATE: NOVEMBER 5, 2024

 

fig13_07.jpg

 

Figure 137: Grade-tonnage Curve of Indicated and Inferred Material within Block Model (Snowden, 2024)

 

13.4

Mine Layout


 

13.4.1

Stope Shape Design

 

The mine design uses a longhole stoping method. Mine stope shapes were created using the Datamine MSO. The MSO parameters used to create the optimized stopes are shown in Table 13‑4.

 

Table 134: MSO Parameters

 

Parameter

Unit

RRW

RRE

RRFE

Orientation of Stope

-

350

005

355

Stope Size

m

10

10

10

Minimum Stope Width

m

2

2

2

FWS and FW* dilution

m

0.5

0.5

0.5

Stope Height

m

20

20

20

Minimum Stope Dip Angle

Degree

50

50

50

*FW = Footwall

 

 

ttlogo1.jpg

13-10

 

ueclogo1.jpg

 

S-K 1300 INITIAL ASSESSMENT REPORT – ROUGHRIDER URANIUM PROJECT

REPORT DATE: NOVEMBER 5, 2024

 

13.4.2

Dilution

 

Dilution within the stopes consists of planned and unplanned dilution. The planned dilution is material below the cut-off grade which is contained within the MSO stopes and unplanned dilution is the external overbreak material in hanging wall and footwall which is material outside the stope shape expected to overbreak into the stope and be recovered with the mineralized material.

 

Planned dilution totals about 250% of the mineralized material. The high level of dilution is expected when using a bulk mining method such as longhole stoping with the narrow veins with non-uniform orientation as found in this deposit.

 

For the MSO runs overbreak of 0.50 m was assumed in both the footwall and hanging wall of the stope. As the current geotechnical evaluation is not sufficient for a detailed analysis of potential overbreak, previous experience was used to assume approximately 5% dilution for the primary stopes and 15% for the secondary stopes.

 

13.4.3

Mining Recovery

 

Mining recovery is a factor applied to account for potential mineralized material losses during the mining process. Due to the large stopes and high levels of dilution, it was assumed that the stopes will be fully recovered.

 

13.5

Mining Equipment


 

Mobile mine equipment will be purchased as required depending on the mining schedule and will generally consist of a single development and a single production crew. Due to the short mine life, major equipment is assumed to be replaced only once during the LOM. Table 13‑5 provides a breakdown of the major mobile mine equipment at its peak requirement.

 

ttlogo1.jpg

13-11

 

ueclogo1.jpg

 

S-K 1300 INITIAL ASSESSMENT REPORT – ROUGHRIDER URANIUM PROJECT

REPORT DATE: NOVEMBER 5, 2024

 

Table 135: Mobile Equipment List

 

Description

Count

Jumbo

1

Bolter

1

Cable Bolter

1

4.0 m3 LHD

2

30t Truck

3

ANFO Charger

1

Scissor Lift

1

Shotcrete Sprayer

1

Transmixer

1

Longhole Rig

1

Grader

1

Fuel/Lube Truck

1

Personnel Carrier

1

Supervisor Vehicle

2

Flat Deck Truck

1

Mechanics Truck

1

Forklift/telehandler

1

Multifunction Carrier (includes cassettes for flat deck, boom truck crane)

1

 

13.6

Fixed Mining Equipment


 

13.6.1

Fans

 

To properly ventilate the mine, three main types of fans will be required, including:

 

The exhaust fan, a 515-kW fan located on surface at the exhaust shaft, this is the main ventilation fan and will keep the mine under negative air pressure.

 

The intake fan, a 100-kW fan located at the main decline to keep sufficient fresh air flowing through the intake.

 

Five auxiliary fans each rated for 90 kW to provide proper circulation around the mine workings.

 

13.6.2

Heating

 

Heating will be required to raise intake air to a minimum of 3°C during the winter months using a natural gas direct fired heating system with an assumed consumption of 4 million m3 of natural gas per year.

 

ttlogo1.jpg

13-12

 

ueclogo1.jpg

 

S-K 1300 INITIAL ASSESSMENT REPORT – ROUGHRIDER URANIUM PROJECT

REPORT DATE: NOVEMBER 5, 2024

 

13.6.3

Electrical Distribution

 

Underground electrical power distribution will use 2 MW skid-mounted substations with all required cabling, distribution boards and transformers.

 

13.6.4

Grade Control

 

In addition to grade control measures related to infill drilling and underground surveys, a radiometric scanner will be employed to scan each truck load to determine approximate U3O8 grades. This will allow the material to be unloaded onto graded stockpiles and blended/processed as required.

 

13.6.5

Refuge System

 

Each of the mining areas will have its own refuge station. A total of three refuge stations were included in the initial cost estimate.

 

13.7

Mining Labour


 

Labour requirements have been developed based on the operation. The majority of personnel will work on 2 weeks on 2 weeks off rotation basis with one day and one night shift per rotation. Some senior managers will work a 4- days on 3-days off shift. Maximum labour requirements are summarized in Table 13‑6.

 

Table 136: Mining Labour Requirements

 

Department

Maximum Labour Requirements

Operations Staff

7

Operations Hourly

64

Maintenance Staff

2

Maintenance Hourly

14

Technical Staff

9

Total

96

 

13.8

Ventilation


 

The ventilation system will be established using the main decline for fresh air supply and a dedicated exhaust shaft. A detailed ventilation study has not been completed and is recommended for advancing the Project.

 

13.8.1

Airflow Assumptions

 

The airflow requirements have been determined based on the Saskatchewan Mines Regulation cS-15.1 Reg 8 s16-8 which states that the minimum required airflow per kilowatt of diesel engine is 3.8 m3/min. Total airflow requirements are shown in Table 13‑7.

 

ttlogo1.jpg

13-13

 

ueclogo1.jpg

 

S-K 1300 INITIAL ASSESSMENT REPORT – ROUGHRIDER URANIUM PROJECT

REPORT DATE: NOVEMBER 5, 2024

 

Table 137: Airflow Assumptions

 

Category

Airflow Requirements (m3/s)

Equipment

85

Active Levels

30

Sump

5

Facilities

10

Leakage

20

Total

150

 

13.8.2

Airflow Velocities

 

The airflow requirements will result in air velocities of 6 m/s in the mine decline which is the upper limit recommended for airflow velocities where employees travel or work. The airflow requirements will result in air velocities of 10.5 m/s in the exhaust shaft which is within regular design criteria. As the airflow velocities are currently at the upper limit of acceptable ranges, a larger decline or a fresh air shaft may be required if detailed ventilation studies result in increased airflow requirements.

 

13.9

Secondary Egress


 

Secondary personnel egress will be installed in the exhaust shaft using a self-contained modular ladderway attached to the shaft liner.

 

13.10

 Mine Schedule


 

The preliminary mine schedule was prepared using Datamine’s Enhanced Production Scheduling (“EPS”) software, utilizing the MSO stopes prepared at a cut-off (“COG”) of 0.3% U3O8. EPS produces a task-based schedule with assumptions on equipment numbers and productivity rates driving the duration of each task with a practical mining sequence applied to all tasks. Additional mine schedule, including the COG 0.40%, 0.45%, and 0.50% U3O8, were estimated utilizing the 0.30% U3O8 sequence. The additional mine schedule was completed assuming the similar development as the base case, with the mine and backfill sequencing being estimated in Excel rather than detailed EPS schedules for each option. Difference between the base case and alternative COG scenarios are described in the sections below.

 

13.10.1

Production Cycle

 

Lateral development will be undertaken with a conventional drill, blast, load, haul and support cycle utilizing a development jumbo. It is likely that ground freezing, in advance of development, will be required in some areas, but sufficient information was not available for this study phase to define the exact areas. Development rates were reduced overall to allow for the reduced productivity when freezing is required. Individual development activities were not considered as the development rates are based on the full development cycle including markup, drilling, charging, blasting, mucking, support, etc.

 

ttlogo1.jpg

13-14

 

ueclogo1.jpg

 

S-K 1300 INITIAL ASSESSMENT REPORT – ROUGHRIDER URANIUM PROJECT

REPORT DATE: NOVEMBER 5, 2024

 

Stoping will be performed with a transverse stoping method with fill, mined on retreat to the footwall drive with primary and secondary stopes. Tasks were included for aspects of the production cycle to estimate equipment requirements, with delays allowed between tasks as required. The stoping production cycle was based on the following tasks:

 

Slot raise

 

Production drilling

 

Loading

 

Backfill

 

Curing

 

The mining will be ordered as shown in Figure 13‑8 with the primary stopes mined from the bottom level upwards. Once the primary stopes have been backfilled and have had sufficient curing time, then the secondary stopes will be mined from the bottom level upwards.

 

fig13_08.jpg

 

Figure 138: Mining Order (Snowden, 2024)

 

Lateral development for the alternative COG scheduled scenarios assumed stopes could be mined in sequence from west to east without primary and secondary stoping. Additional analysis needs to be completed to assess the viability of this assumption.

 

13.10.2

Production Rates

 

Development rates were applied based on primary, secondary and vertical development. Primary development was considered for the tasks which would be prioritized above others such as decline, level access and return air drive development. Secondary development was considered for the tasks with a lower priority, which results in lower rates overall. Vertical rates were applied to all vertical and raise bore development. Table 13‑8 summarizes the development rates applied in the schedule.

 

ttlogo1.jpg

13-15

 

ueclogo1.jpg

 

S-K 1300 INITIAL ASSESSMENT REPORT – ROUGHRIDER URANIUM PROJECT

REPORT DATE: NOVEMBER 5, 2024

 

Table 138: Development Rates

 

Activity

Type

Rate

Unit

Decline

Primary

2.25

(m/day)

Level access

Primary

2.25

(m/day)

Crosscut

Secondary

1.5

(m/day)

Escapeway drive

Secondary

1.5

(m/day)

Footwall drive

Primary

2.25

(m/day)

Return air drive

Primary

2.25

(m/day)

Stockpile

Secondary

1.5

(m/day)

Sump

Secondary

1.5

(m/day)

Raise bore

Vertical

4.0

(m/day)

Return air raise

Vertical

4.0

(m/day)

 

 

Production rates were applied to each task in the production cycle, with delays between tasks as described in the previous section. Table 13‑9 summarizes the production rates applied in the schedule.

 

Table 139: Production Rates

 

Activity

Type

Rate

Unit

Slot raise

Production

1.33

(m/day)

Production drilling

Production

170.0

(m/day)

Loading

Production

15,000

(t/month)

Backfill

Production

15,000

(m3/month)

 

 

Equipment rates were estimated from first principles and benchmarked against similar operations. Equipment with a maximum capacity is applied to various tasks to constrain the total number of active tasks by area. Table 13‑10 summarizes the maximum capacity by equipment type.

 

Table 1310: Equipment Rates

 

Equipment

Type

Capacity

Unit

Development jumbo

Development

240

(m advance/month)

LHD

Production

20,000

(t/month)

Longhole rig

Production

15,000

(t/month)

Backfill plant

Production

5,000

(m3/month)

 

ttlogo1.jpg

13-16

 

ueclogo1.jpg

 

S-K 1300 INITIAL ASSESSMENT REPORT – ROUGHRIDER URANIUM PROJECT

REPORT DATE: NOVEMBER 5, 2024

 

13.10.3

Mining Sequence

 

The mining sequence was applied by assigning a higher priority to tasks required to be completed initially before resources are available to move to different regions. Figure 13‑9 shows the mining sequence shaded by colour gradient. Initial targeted areas are coloured with hotter colours (red) with final areas in cooler colours (blue).

 

Initial focus was on the development of the decline, ventilation and secondary egress from surface (red to yellow). Once the decline reached the deposit, initial focus was on the RRW with the decline held while levels and ventilation were developed in this area (green). Mining then progressed to RRE (cyan) and finally RRFE (blue).

 

fig13_09.jpg

 

Figure 139: Mining Sequence (Isometric View) (Snowden, 2024)

 

13.10.4

Development Schedule

 

The development schedule by period is shown in Figure 13‑10 for lateral development and Figure 13‑11 for vertical development.

 

ttlogo1.jpg

13-17

 

ueclogo1.jpg

 

S-K 1300 INITIAL ASSESSMENT REPORT – ROUGHRIDER URANIUM PROJECT

REPORT DATE: NOVEMBER 5, 2024

 

fig13_10.jpg

 

Figure 1310: Lateral Development by Period (COG 0.3% U3O8) (Snowden, 2024)

 

 

fig13_11.jpg

 

Figure 1311: Vertical Development by Period (COG 0.3% U3O8) (Snowden, 2024)

 

ttlogo1.jpg

13-18

 

ueclogo1.jpg

 

S-K 1300 INITIAL ASSESSMENT REPORT – ROUGHRIDER URANIUM PROJECT

REPORT DATE: NOVEMBER 5, 2024

 

13.10.5

Production Schedule

 

The production schedule from the mining stopes is shown in Figure 13‑12.

 

fig13_12.jpg

 

Figure 1312: Stope Production (COG 0.3% U3O8) (Snowden, 2024)

 

 

The overall production schedules for the various COG are shown in Figure 13‑13 to Figure 13‑17.

 

ttlogo1.jpg

13-19

 

ueclogo1.jpg

 

S-K 1300 INITIAL ASSESSMENT REPORT – ROUGHRIDER URANIUM PROJECT

REPORT DATE: NOVEMBER 5, 2024

 

fig13_13.jpg

 

Figure 1313: Overall Production Schedule (COG 0.30% U3O8) (Snowden, 2024)

 

 

fig13_14.jpg

 

Figure 1314: Overall Production Schedule (COG 0.40% U3O8) (Snowden, 2024)

 

ttlogo1.jpg

13-20

 

ueclogo1.jpg

 

S-K 1300 INITIAL ASSESSMENT REPORT – ROUGHRIDER URANIUM PROJECT

REPORT DATE: NOVEMBER 5, 2024

 

fig13_15.jpg

 

Figure 1315: Overall Production Schedule (COG 0.45% U3O8) (Snowden, 2024)

 

 

fig13_16.jpg

 

Figure 1316: Overall Production Schedule (COG 0.50% U3O8) (Snowden, 2024)

 

ttlogo1.jpg

13-21

 

ueclogo1.jpg

 

S-K 1300 INITIAL ASSESSMENT REPORT – ROUGHRIDER URANIUM PROJECT

REPORT DATE: NOVEMBER 5, 2024

 

13.11

 Indicated Category Only


 

Additional MSO stopes at COG 0.40% U3O8 and excluding the Inferred classified material was completed to assess risk to the potential cashflow. The resulting inventory is shown in Table 13‑11.

 

Table 1311: MSO Inventory Excluding Inferred Category

 

Description

Tonnes (kt)

U3O8 (%)

Contained U3O8 (M lb)

Waste

149

0.0

0.0

Indicated

250

3.8

20.8

Inferred

1

0.0

0.0

Total

400

2.4

20.8

 

The overall production schedule for this case, assuming processing rate of 300 t/d, is shown in Figure 13‑17.

 

fig13_17.jpg

 

Figure 1317: Production Schedule excluding Inferred Category (COG 0.40% U3O8) (Snowden, 2024)

 

13.12

 Potential Mill Feed


 

There is no Mineral Reserve estimate for the Project. An initial assessment was completed which included material classified as Inferred which will be referred to as potential mill feed. There was no Measured material in the Project and all waste material has no contained metal. The potential mill feed which includes all material from within the stopes plus select segments of development where total U3O8 grade was above 0.3% is shown in Table 13‑12 to Table 13‑15.

 

ttlogo1.jpg

13-22

 

ueclogo1.jpg

 

S-K 1300 INITIAL ASSESSMENT REPORT – ROUGHRIDER URANIUM PROJECT

REPORT DATE: NOVEMBER 5, 2024

 

Table 1312: Potential Mill Feed (COG 0.30% U3O8)

Description

Tonnes (kt)

U3O8 (%)

Contained U3O8 (M lb)

Waste

762

0.0

0.0

Indicated

343

3.6

27.1

Inferred

290

5.3

33.8

Total

1,396

2.0

60.9

 

 

Additional potential mill feed for stopes assessed above 0.40%, 0.45%, and 0.50% U3O8 are shown below.

 

Table 1313: Potential Mill Feed (COG 0.40% U3O8)

 

Description

Tonnes (kt)

U3O8 (%)

Contained U3O8 (M lb)

Waste

573

0.0

0.0

Indicated

355

3.6

28.4

Inferred

276

5.6

34.4

Total

1,205

2.4

62.8

 

 

Table 1314: Potential Mill Feed (COG 0.45% U3O8)

 

Description

Tonnes (kt)

U3O8 (%)

Contained U3O8 (M lb)

Waste

536

0.0

0.0

Indicated

333

3.8

27.9

Inferred

273

5.7

34.1

Total

1,141

2.5

62.0

 

 

Table 1315: Potential Mill Feed (COG 0.50% U3O8)

 

Description

Tonnes (kt)

U3O8 (%)

Contained U3O8 (M lb)

Waste

515

0.0

0.0

Indicated

326

3.9

27.8

Inferred

266

5.8

33.8

Total

1,107

2.5

61.6

 

ttlogo1.jpg

13-23

 

ueclogo1.jpg

 

S-K 1300 INITIAL ASSESSMENT REPORT – ROUGHRIDER URANIUM PROJECT

REPORT DATE: NOVEMBER 5, 2024

 

14.0

PROCESSING AND RECOVERY METHODS


 

The Project uranium mineralization is found mainly as uraninite/pitchblende with some uranophane. High-grade deposits are found as medium- to coarse-grained, semi-massive to massive pitchblende, while lower-grade deposits are more dispersed. The uranium will be extracted using conventional methods, including grinding, leaching, counter-current decantation, SX, and precipitation. The key design criteria and processes involved in the extraction flowsheet are summarized in this section.

 

14.1

Flowsheet Development


 

The processing facility is designed using established methods from other Athabasca operations such as Rabbit Lake, Key Lake, and McClean Lake. It will operate at a nominal throughput of 400 t/d with an LOM average mill feed grade of 2.36% U3O8 and a recovery rate of 97.5%. LOM average annual production of yellowcake product is expected to be about 3.08 million kg (6.80 million lbs.) at 95% U3O8. ROM material from the underground mine will be trucked to the ROM pad, ground to 250 µm in a single-stage semi-autogenous grinding circuit, and leached with sulphuric acid and hydrogen peroxide at 50°C. The PLS will be produced using counter-current decantation and clarification. SX will be used to remove impurities enriching uranium concentration in the PLS. Yellowcake will be precipitated from the enriched solution using hydrogen peroxide and magnesium oxide. The precipitated yellowcake will undergo solid-liquid separation, drying at 450°C and packaged in barrels for shipment. Tailings and waste process solutions will be neutralized and stored in the TMF. Reclaimed water will be treated in the water treatment plant and monitored for environmental compliance before discharge. Key design criteria are listed in Table 14‑1 and the simplified flowsheet is presented in Figure 14‑1.

 

Table 141: Major Plant Design Criteria

 

Description

Unit

Value

Source

Mineralized Material Characteristics

Moisture content

%

10

Industry Experience

Bond ball mill work index

kWh/t

12.9

Test work

Head Grade – LOM Average

% U3O8

2.36

Mine Plan

Operating Schedule

Shift/day

--

2

Typical

Plant hours/shift

h

12

Typical

Days/year

days

350

Industry Experience

Operation Parameters

Overall plant feed

t/d

400

Calculation

Plant availability

%

90

Industry Experience

Plant throughput (Nominal)

t/h

18.5

Calculation

Leaching feed size (80% passing)

µm

250

Test work

Recovery

%

97.5

Test work

Concentrate Grade

% U3O8

95

Industry Experience

Annual concentrate production (Average)

Million lb/a

6.80

Calculation

 

ttlogo1.jpg

14-1

 

ueclogo1.jpg

 

S-K 1300 INITIAL ASSESSMENT REPORT – ROUGHRIDER URANIUM PROJECT

REPORT DATE: NOVEMBER 5, 2024

 

fig14_01.jpg

 

Figure 141: Simplified Process Flowsheet (Tetra Tech, 2024)

 

ttlogo1.jpg

14-2

 

ueclogo1.jpg

 

S-K 1300 INITIAL ASSESSMENT REPORT – ROUGHRIDER URANIUM PROJECT

REPORT DATE: NOVEMBER 5, 2024

 

14.2

Process Description


 

ROM material from the underground mine will be transported to the ROM pad near the processing plant, where a radiometric scanner will estimate the uranium grade of each truckload. The material will be unloaded onto one of three graded stockpiles to provide uniform blended material to the processing plant. A front-end loader will move a measured ratio of the material from each stockpile to the mill feed bin equipped with a 300 mm static grizzly screen. The material will be drawn from the bin by a belt feeder equipped with a variable frequency drive, which will direct it to the SAG mill feed hopper. The feeder will have a weightometer and a radiometric scanner for process control and grade monitoring.

 

The grinding process will use a SAG mill (3.3 m diameter x 3.5 m EGL) with a 300-kW motor fitted with a variable frequency drive for speed control. The solids density in the mill will be maintained at 72% (by wt.) by adding dilution water. The mill discharge will be screened at 10 mm using a trommel screen, with oversize material either recycled back to the mill or sent to waste pile, depending on the uranium grade. The trommel undersize will be pumped to a vibrating screen fitted with 500 µm aperture deck. The screen oversize will gravitate to the mill whereas screen undersize at P80 of 250 µm will gravitate to the pre-leach thickener. A deep cone thickener (8 m diameter) will thicken the milled slurry to 50% solids (by wt.). Thickener overflow water will be recycled back to the grinding circuit, while thickener underflow will be pumped to the leaching circuit.

 

Atmospheric leaching will be performed in a series of six rubber-lined carbon steel tanks equipped with dual axial flow impellers providing total leach residence time of 12 hours. The pulp will cascade through the tanks by gravity, with the option to bypass any tank for maintenance. To reduce personnel exposure to radioactive dust and radon, tanks will be covered and vented through a scrubber. Steam will be sparged to the first two tanks to maintain a temperature of 50°C. Sulfuric acid and hydrogen peroxide will be added to maintain the free acid levels (15 g/L in the exit solution) and oxidation-reduction potential (475 – 500 mV). Ferric sulfate may be added if the mill feed lacks sufficient iron content required for uranium extraction. Reagent addition will be controlled to ensure target uranium extraction of 98.5%. The leached slurry will be pumped to the CCD circuit.

 

The CCD circuit consists of six deep cone thickeners (8 m diameter) that transfer thickened pulp and overflow water via agitated mix tanks in a counter-current flow. Flocculant will be injected as required to assist with the settling. Wash water, consisting of raffinate and process water, will be introduced to the final thickener to achieve a wash ratio of 2.5 m3 of wash solution per t of leach feed. The free acid level will be controlled at 10 g/L H2SO4 to maintain uranium solubility in CCD circuit and achieving a CCD circuit recovery of over 99.5%. The pregnant aqueous solution from CCD circuit will be pumped to a silica removal reactor where coagulant is added to reduce silica content. It will then gravitate to a clarifier. Settled solids from the clarifier will be periodically pumped to the CCD thickener No.1 feed tank, while the clarified overflow solution will be pumped to sand filters for further clarification. Sand filters will be backwashed periodically with clarified solution and compressed air, and the backwash will be returned to the clarifier. The final clarified solution, with less than 10 ppm total suspended solids, will be transferred to a surge tank, heated inline to 40°C, and then directed to the SX circuit.

 

The SX circuit is designed to purify and concentrate uranium from the solution to enable yellowcake precipitation. It can process up to 56 m³/h of clarified PLS, with an expected uranium recovery rate of 99.8%.

 

ttlogo1.jpg

14-3

 

ueclogo1.jpg

 

S-K 1300 INITIAL ASSESSMENT REPORT – ROUGHRIDER URANIUM PROJECT

REPORT DATE: NOVEMBER 5, 2024

 

The extraction stage will use four mixer-settler (MS) units in series to facilitate the transfer of uranium from the PLS to the organic solution. The organic solution containing 8% tertiary amine, 8% isodecanol, and 84% kerosene will enter the extraction section at MS No.4 and will flow counter current to the aqueous exiting as pregnant organic at MS No.1. The forward organic flow will be 80% of the PLS flow. In each MS unit, the organic and aqueous solutions are mixed in a mechanically stirred mixer box, and the resulting emulsion is then separated in the settler box. The PLS will enter the extraction section at #1 MS and exit at MS No.4 depleted of uranium, now called raffinate. Entrained organic in the raffinate will be recovered using a coalescer after-settler. About 15% to 50% of the raffinate will be recycled to the CCD wash solution, utilizing the contained acid. The raffinate recycle rate will depend on iron and other dissolved elements concentration in the raffinate. The rest of the raffinate will be sent for tailings neutralization.

 

A single scrub mixer-settler will wash the pregnant organic exiting the extraction MS No.1 with water to remove entrained aqueous droplets and reduce the risk of deleterious elements contaminating the yellowcake precipitation process. The spent aqueous from scrubbing stage will be sent to the extraction MS No.1.

 

The stripping process involves five MS units. The strip solution (425 g/L H2SO4) at 5% of the organic flow rate will flow counter-current to the pregnant organic, with the acid strength decreasing along the flow. Concentrated H2SO4 will be added in MS No.4 and No.5 as needed to transfer uranium to the aqueous phase. The pregnant strip solution from strip MS No.5 will be directed to an organic recovery after-settler before gypsum precipitation.

 

The barren organic from stripping stage will be washed with hot water (40°C) in a single-stage acid wash MS to recover acid. The washed barren organic will be recycled, while the acid aqueous solution will be sent to the strip solution make-up tank. About 50% of the organic flow will be regenerated with sodium carbonate to prevent contaminants like molybdenum from accumulating. The spent regeneration solution will be pumped to tailings neutralization circuit.

 

The gypsum precipitation process aims to reduce sulfate levels in the strong acid strip solution before yellowcake precipitation. The process involves five mechanically stirred tanks providing six-hour residence time, where pH is gradually increased to 3.4 using lime slurry to precipitate gypsum. The slurry from the final tank will be pumped to a gypsum high-rate thickener (11 m diameter). The thickened gypsum slurry is filtered on a vacuum belt filter in two stages. The filter cake from stage 1 will be re-leached with acidified water for one-hour to dissolve entrained uranium from the gypsum cake. The re-leached slurry is filtered again to recover dissolved uranium. The filtrate will be recycled to the gypsum precipitation reactors. The final filter cake will be pumped to tailings neutralization circuit. Gypsum thickener overflow will be pumped to sand filters for clarification. Sand filters will be backwashed periodically with clarified solution and compressed air, and the backwash will be returned to the first gypsum reactor. The clarified gypsum thickener overflow solution will be pumped to a surge tank.

 

The clarified gypsum thickener overflow will be cooled to 20 to 25°C before yellowcake precipitation. The process involves two mechanically stirred tanks providing six-hour residence time, where hydrogen peroxide will be used to precipitate uranium and the pH will be maintained between 3.2 and 3.4 using slaked magnesium oxide. The yellowcake pulp will move from the second reactor to a wash tank and then pumped to a high-rate thickener (8 m diameter). The thickener underflow will be pumped to a belt filter. The filtered cake will gravitate to the dryer feed hopper while the filtrate will be returned to the precipitation tank. The overflow from the yellowcake thickener, known as barren solution, will be sand-filtered to recover any residual yellowcake solids. The sand filters will be periodically backwashed, with the backwash solution returned to the precipitation tank. The filtrate from the sand filters will be stored in a barren strip tank and then sent to the tailings neutralization circuit.

 

ttlogo1.jpg

14-4

 

ueclogo1.jpg

 

S-K 1300 INITIAL ASSESSMENT REPORT – ROUGHRIDER URANIUM PROJECT

REPORT DATE: NOVEMBER 5, 2024

 

The filtered yellowcake product will be dried in an electric rotary dryer operating at a peak temperature of 475°C, reducing the product moisture content and producing a stable uranium oxide product at 95% U3O8. The drying process will include a wet scrubber to handle process gases before discharge. The scrubber discharge will be recycled into the yellowcake wash tank. The dried yellowcake will be stored in a bin with a three-day capacity. The yellowcake will be packaged into 210 L steel drums using an automated system under negative air pressure to avoid contamination. Each drum, with an average net weight of about 380 kg, will be sampled, sealed, cleaned, weighed, and labeled. Approximately 25 to 30 drums will be packaged daily and shipped to the refinery regularly.

 

Waste streams from the process, including leach residue, washed gypsum, raffinate, spent regen, barren solution, crud treatment residue, and clarifier underflows, will be sent to the tailings neutralization circuit. These streams will be combined in a mix tank with hydrogen peroxide and ferric sulfate, and then cascaded to three reaction tanks where lime and barium chloride are added to increased pH to 4.5, 7, and 10 sequentially, with each tank providing one hour of residence time. The neutralized slurry will be pumped to a deep cone thickener (8 m diameter), and the thickened tailings will be pumped to the TMF for permanent storage. The thickener overflow, depending on water quality, will either be directed to the TMF or mixed with TMF reclaim water and will report to the water treatment plant (WTP).

 

Tailings will be deposited subaqueously using a relocatable barge to enhance distribution and prevent segregation, forming a uniform, low-permeability tailings mass. A water cover will be maintained to mitigate radiation, dust, and radon release. Excess water will be reclaimed with a pump barge and pumped to the WTP.

 

The WTP will use a three-stage chemical process to adjust pH to 4, 7, and 10 sequentially. Reclaim water from the TMF will be first adjusted to pH 3.5 with sulfuric acid. Each treatment stage will include two tanks where ferric sulfate, barium chloride, and lime slurry are added. The slurry then gravitates to a reactor clarifier (8 m diameter) for settling, with settled precipitates pumped to a surge tank prior to being pumped to the tailings neutralization circuit and the clear water moving to the next stage. In the final stage, the clear water is polished through sand filters, which are periodically backwashed. The treated water will be directed to a pH adjustment tank.

 

After adjusting the pH, the treated water will be directed to a monitoring pond, where it will be continuously sampled as the pond fills. When the pond is full, a sample will be taken for detailed laboratory analysis. If the results meet water quality standards, the water will be released into the environment. If not, it will be returned to the WTP for further processing. The operation will use three 5,000 m³ monitoring ponds, with one pond for filling, one for discharging, and one on standby. Treated water will also be used to supplement process water make-up where appropriate.

 

14.3

Reagents and Consumables


 

The proposed reagents and their consumption rates (based on a 400 t/d nominal throughput and an average LOM head grade of 2.36% U3O8) are detailed in Table 14‑2. The reagent system includes equipment for unloading, storage, mixing, and transferring reagents. Solution tanks will have level indicators to prevent spills, and the facility will be equipped with ventilation, fire suppression systems, and other safety protections. Essential consumables such as screen decks, filter cloths, concentrate drums, laboratory supplies, and maintenance spares inventory will be adequately maintained.

 

ttlogo1.jpg

14-5

 

 

ueclogo1.jpg

 

S-K 1300 INITIAL ASSESSMENT REPORT – ROUGHRIDER URANIUM PROJECT

REPORT DATE: NOVEMBER 5, 2024

 

Table 142: Reagents and Major Consumables Consumption

 

Reagents

Preparation Method

Estimated

 Consumption* (t/y)

Sulfuric Acid (93%)

Received in bulk tankers as a liquid, stored in carbon steel tanks, and pumped to different addition points without dilution

19,960

Hydrogen peroxide

(70% H2O2)

Received as a liquid in bulk tankers, stored in stainless steel tanks, and diluted to 20% H2O2 for distribution to the leaching, yellowcake precipitation, and tailings neutralization circuits.

3,020

Sodium carbonate

Received as powder in bulk tankers, stored in a dedicated silo; mixed to 100 g/L solids density and then stored in a holding tank and distributed via metering pumps to the SX circuit

680

Magnesium oxide

Received as powder in bulk tankers, stored in a dedicated silo; mixed to 10% solids density and then stored in an agitated holding tank and distributed via centrifugal pumps to the yellowcake precipitation circuit

625

Barium chloride

Received as powder in 1 t bags; mixed to 10% solids density and then stored in a holding tank and distributed via metering pumps to the tailings neutralization and water treatment circuit

80

Ferric sulfate (60%)

Received as liquid in bulk tankers, stored in FRP tanks and pumped to pumps to leaching, tailings neutralization and water treatment circuit without dilution

1,700

Lime

Received as quick lime powder in bulk tankers, stored in a dedicated silo; slaked and mixed to 20% solids density, stored in an agitated tank and distributed via a pressurized lime loop

12,500

Flocculant

Received as powder in 1 t bags; mixed to 0.5% storing strength; diluted to 0.05% strength by inline mixing and stored in a holding tank; added via progressive cavity pumps to the thickeners and clarifiers

60

Polysil

Received as liquid in an intermediate bulk container and metered to silica removal reactor without dilution

70

Alamine

Received as liquid in an intermediate bulk container and pumped to an intermediate mix tank without dilution, before transfer to the barren organic tank

2

Isodecanol

Received as liquid in an intermediate bulk container and pumped to an intermediate mix tank without dilution, before transfer to the barren organic tank

2

Kerosene

Received as liquid in an intermediate bulk container and pumped to an intermediate mix tank without dilution, mixed inline with Alamine and Isodecanol mixture before transferred to barren organic tank

15

Antiscalant

Received as liquid in barrels and pumped to process water and fresh/fire water tank without dilution

7

Grinding Media

(125 mm)

Received in 1 t bags; stored in ball bin; manually added to SAG mill

70

* The values are preliminary.

 

ttlogo1.jpg

14-6

 

ueclogo1.jpg

 

S-K 1300 INITIAL ASSESSMENT REPORT – ROUGHRIDER URANIUM PROJECT

REPORT DATE: NOVEMBER 5, 2024

 

14.4

Plant Services


 

14.4.1

Water Supply and Distribution

 

A freshwater supply system will provide clean water to the mine and process plant. Water will be pumped from nearby wells, stored in a tank, and distributed to various locations. It will be mostly used for reagent preparation, gland water, dust suppression, emergency firewater, and as feed to a potable water plant where the potable water will be chlorinated and ultraviolet light-disinfected before service.

 

14.4.2

Air Supply and Distribution

 

Air service systems will be provided at the plant site for the following applications:

 

Plant service: high-pressure air will be provided for the process plant for various maintenance by dedicated air compressors (one operating and one standby).

 

Instrumentation: dried and oil-free instrument air will come from the plant air compressors and be stored in a dedicated air receiver.

 

14.4.3

Instrumentation and Process Control

 

A distributed control system (“DCS”) will be implemented in the process plant, featuring local control panels near equipment and a centralized PC-based operator interface station (“OIS”) in the control room. Local panels will oversee and manage equipment, with alarms integrated either locally or on the panels. The DCS and OIS will manage process control, data management, equipment interlocking, alarming, trending, event logging, and reporting, enabling automated monitoring and operation from operator workstations.

 

14.4.4

Quality Control

 

A metallurgical and assay laboratory will perform routine assays for the mine, processing plant, and environmental and geological departments. It will conduct basic tests to monitor and improve process performance and efficiency. An automatic sampling system will be used to collect sufficient samples for analysis, standardization, and potential testing, with major process streams sampled regularly for process reconciliation, optimization and regulatory purposes.

 

14.5

Annual Production Estimate


 

The annual production estimate will vary due to the ramp-up schedule, mining production plan, and metallurgical performance. The annual yellowcake production estimate is based on the mine production plan and metallurgical performance, as presented in Table 14‑3.

 

ttlogo1.jpg

14-7

 

ueclogo1.jpg

 

S-K 1300 INITIAL ASSESSMENT REPORT – ROUGHRIDER URANIUM PROJECT

REPORT DATE: NOVEMBER 5, 2024

 

Table 143: Projected Yellowcake Production

 

 

 

Year

Ore Processed

(tonnes)

Head Grade

(% U3O8)

Overall

Recovery (%)

Concentrate

Grade (% U3O8)

Yellowcake

(Million lbs)

Year 1

112,634

3.27

97.5

95.0

7.92

Year 2

147,763

2.85

97.5

95.0

9.05

Year 3

149,887

1.59

97.5

95.0

5.13

Year 4

149,791

2.55

97.5

95.0

8.22

Year 5

149,141

2.20

97.5

95.0

7.07

Year 6

149,750

3.51

97.5

95.0

11.29

Year 7

148,753

1.71

97.5

95.0

5.46

Year 8

159,695

1.88

97.5

95.0

6.44

Year 9

37,383

0.75

97.5

95.0

0.60

LOM Total

1,204,797

2.36

97.5

95.0

61.17

Note: Numbers may not add due to rounding

 

14.6

Staffing


 

Personnel needs are based on operational demands, shifts, equipment maintenance, safety, and training. Table 14‑4 outlines the average annual staffing requirements, with staffing organized into two 12-hour shifts per day on two-week in/out rotation.

 

Table 144: Plant Staffing Requirements

 

Description

Personnel Required*

Management

10

Operations

36

Metallurgical and Assay Laboratory

9

Process Plant Maintenance

24

Total

79

*Includes cross shifts

 

 

14.7

QP Opinion


 

The Tetra Tech QP believes that the results of the metallurgical test work conducted thus far have been accurately interpreted to develop an updated flowsheet design for optimal uranium recovery. This flowsheet resembles the established processes used by nearby Athabasca uranium plants, including the currently operating Key Lake and McClean Lake, as well as the now-closed Rabbit Lake.

 

ttlogo1.jpg

14-8

 

ueclogo1.jpg

 

S-K 1300 INITIAL ASSESSMENT REPORT – ROUGHRIDER URANIUM PROJECT

REPORT DATE: NOVEMBER 5, 2024

 

15.0

PROJECT INFRASTRUCTURE


 

The Project site is located 7 km north of Points North Landing, via an existing pioneering access road that connects to provincial Highway 905 in the eastern Athabasca basin of northern Saskatchewan, Canada. While there are existing roads for exploration, all-weather access upgrades are necessary for better connectivity. The nearby Points North Landing Airstrip can support aerial personnel and cargo transportation, with Rise Air providing flights to various regional airports. Currently, the site lacks a permanent power supply, but a connection to the provincial power grid via a new 138 kV transmission line is envisioned, along with backup diesel generators for emergency power.

 

Key mining infrastructure will include an underground mine with ventilation shafts, a decline for mine access and material transport, a backfill plant, and a waste rock management facility (“WRMF”) for storing different types of waste materials. The process plant area will feature a surface stockpile, processing facilities, a water treatment facility, a metallurgical and assay laboratory, and various support structures such as fuel storage and maintenance shops. Additionally, a tailings transport and deposition system and a reclaim water system will be constructed to safely handle the tailings and reclaimed water between the process facilities and TMF. Overall, the project infrastructure is designed to support extensive mining operations with necessary components for efficiency and safety. The overall project infrastructure is presented in the overall site general arrangement in Figure 15‑1.

 

15.1

External and Internal Site Access Roads


 

The existing project site access road will be upgraded to a double-lane, all-weather road between Highway 905 and the project site. A security gatehouse will be established for access control at the site entrance. The road will be designed for year-round use and capable of supporting the logistics for mine development, supplies, and personnel during project construction and will also be used for concentrate and supply transport during operations. Scheduled road maintenance will include snow removal, dust suppression, ditch clearing, seasonal rehabilitation, and inspection of structures such as bridges and culverts.

 

There will be all-weather internal access roads to enable the movement of vehicles and materials across various facilities and are categorized into primary access roads and service access roads based on their intended use. External access to these roads will be monitored and controlled by the site security at the gatehouse to prevent unauthorized access.

 

15.2

Underground Mine and Surface Support Infrastructure


 

The underground mine and surface support infrastructure comprise ventilation shafts, a decline for access and material transport, ground freezing systems, a backfill plant, safety and refuge stations, a dewatering system, a grade control system, and ancillary facilities. For more detailed information, please refer to Section 13.

 

ttlogo1.jpg

15-1

 

 

ueclogo1.jpg

 

S-K 1300 INITIAL ASSESSMENT REPORT – ROUGHRIDER URANIUM PROJECT

REPORT DATE: NOVEMBER 5, 2024

 
fig15_01.jpg

 

Figure 151: Overall Site General Arrangement (Tetra Tech, 2024)

 

ttlogo1.jpg

15-2

 

ueclogo1.jpg

 

S-K 1300 INITIAL ASSESSMENT REPORT – ROUGHRIDER URANIUM PROJECT

REPORT DATE: NOVEMBER 5, 2024

 

15.3

Processing Plant Infrastructure


 

The ROM pad will feature three graded stockpiles with a storage capacity for 30 days of processing plant feed. Runoff water from the ROM pad area will be collected and sent to the WTP. The main process plant will be a pre-engineered structure measuring 115 m by 100 m, equipped with insulated walls and roof, multiple overhead cranes, and steel platforms for equipment and maintenance access. The foundation will consist of concrete footings and a slab-on-grade floor.

 

The main processing plant will include grinding, leaching, counter-current decantation, precipitation, yellowcake drying, tailings neutralization, and reagent handling, with each section designed to prevent fluid cross-contamination and manage spills. The floor surfaces will have localized areas sloped toward sumps for drainage and cleanup. High radioactive dust and radon release areas (grinding, leaching and tailings neutralization) will be enclosed in concrete vaults. The SX plant will be a 50 m by 30 m pre-engineered structure, also featuring overhead crane and fibreglass-reinforced plastic (“FRP”) platforms for equipment support and maintenance needs, ensuring operational safety and efficiency. A preliminary layout of the process plant is presented in Figure 15‑2.

 

ttlogo1.jpg

15-3

 

ueclogo1.jpg

 

S-K 1300 INITIAL ASSESSMENT REPORT – ROUGHRIDER URANIUM PROJECT

REPORT DATE: NOVEMBER 5, 2024

 

fig15_02.jpg

 

Figure 152: Preliminary Process Plant General Arrangement (Tetra Tech, 2024)

 

ttlogo1.jpg

15-4

 

ueclogo1.jpg

 

S-K 1300 INITIAL ASSESSMENT REPORT – ROUGHRIDER URANIUM PROJECT

REPORT DATE: NOVEMBER 5, 2024

 

15.4

Water Treatment Plant


 

Excess water from the TMF will be reclaimed via a pump barge and pumped to a WTP via a reclaim water pipeline. The WTP will be a 53 m by 24 m pre-engineered structure with insulated walls and roof adjacent to the main process plant. The floor will be sloped toward sumps for efficient drainage and cleanup operations.

 

15.5

Site Ancillary Infrastructure


 

15.5.1

Truck Shop Complex

 

The truck shop complex will feature an 80 m by 24 m pre-engineered building for the repair and maintenance of underground mining and mobile equipment. It will include three service bays, a wash bay, a tire change area, spare parts storage area and facilities for personnel such as offices, a lunchroom, and first aid. The vehicle service and wash bays will likely have drive-through to eliminate the needs for backing up vehicles or making U-turns, which can enhance the traffic safety for other road users in the area. The truck shop complex also features mine rescue along with necessary safety equipment storage space.

 

The complex will also have a mine dry building (44 m by 28 m) located adjacent to truck shop. The ground floor will house lockers for men and women separately, along with restrooms, change space, janitorial, electrical, and mechanical rooms. The second floor will consist of a lunchroom, offices, workstations, and conference rooms for mine personnel. The lunchroom will be equipped with fridge, stove, microwave, coffee maker, dishwasher, and cupboards. The office spaces shall be equipped with furniture such as desks, chairs, computers, and telephones.

 

15.5.2

Permanent Accommodation Camp

 

The permanent camp will consist of modular buildings for reception, offices, storage, a kitchen, dining hall, three 50-person dormitories (150 single-occupancy rooms), and recreational space, all connected by fire-rated corridors. The fenced site will include fresh and fire water tanks, parking, an electrical house, a waste collection system, and a sewage treatment unit. The design of the camp meets the necessary building and fire codes. Each dorm room will feature essential amenities, and the camp will be ready for operations during the final construction year, with additional temporary accommodations for construction staff as needed. Air transportation to the site will be provided by a contractor, with bus service to the nearby airstrip.

 

15.5.3

Administration Building and Mill Dry

 

The administration and mill dry building will be a two-storey modular structure measuring 48 m by 24 m. The ground floor will feature men and women lockers, restrooms, and utility rooms, while the second floor will include a lunchroom and office spaces equipped with necessary furniture and appliances. First aid posts will be located adjacent to the administration building, managed by first aid-certified personnel and equipped with a garage for the fire truck and ambulance. Emergency Med-Evac air ambulance services will be contracted from nearby communities.

 

15.5.4

Assay and Metallurgical Laboratory

 

The assay and metallurgical laboratory will be a 30 m by 10 m two-storey modular building, designed to conduct routine assays for mining, processing, and environmental departments, as well as metallurgical investigations for future material testing.

 

ttlogo1.jpg

15-5

 

ueclogo1.jpg

 

S-K 1300 INITIAL ASSESSMENT REPORT – ROUGHRIDER URANIUM PROJECT

REPORT DATE: NOVEMBER 5, 2024

 

15.5.5

Warehouse & Cold Storage

 

A warehouse building measuring 48 m by 16 m will store operational supplies and equipment, featuring a 5-ton overhead crane and a truck receiving platform, along with interior and exterior lighting and an electric forklift. A separate cold storage sprung structure will provide insulated, unheated space for non-temperature sensitive consumables, equipped with vehicle access doors and -lighting.

 

15.5.6

Power Supply and Distribution

 

The project site currently lacks a permanent power supply, but plans include a new 138 kV transmission line extension connecting to the provincial power grid nearby. Backup diesel generators will serve as the primary emergency power source. An onsite substation will step down the 138 kV power supply to 13.8 kV for general site distribution and 4,160 V for the process plant and ancillary buildings, with an estimated continuous power demand of 14.5 MW, including underground mine and ground freezing.

 

To minimize unplanned downtime, critical spare parts will be stored onsite, and Uninterrupted Power Supplies along with battery banks will support essential electronics and safety equipment during power interruptions. Major power equipment will be housed in prefabricated, insulated E-houses, which will also contain ancillary power equipment like switchgear and motor control centers. These modular enclosures will feature fire detection and suppression systems, along with temperature control to prevent overheating or freezing.

 

Power distribution will occur through 13.8 kV overhead lines, with voltage levels adjusted as needed for different loads. Large motors (>200 kW) will utilize a 4,160 V system, while smaller loads will connect to a 600 V system. All buildings will include proper grounding and lightning protection measures.

 

15.5.7

Fuel Storage and Dispensing

 

Diesel will be used for general site equipment, mobile machinery, backup generators, and ancillary services. Modular double-walled ISO tanks, protected by steel cages, will store diesel on-site. These tanks will have valved flow controls, leak detection instruments, and will undergo routine inspections.

 

The ISO tanks will be placed in a designated fuel farm area near the truck shop complex, providing about a week’s fuel capacity, with a modular dispensing station for refueling. The storage area will feature spill containment berms and monitoring devices to detect leaks, with spill response equipment on standby 24/7.

 

15.5.8

Communication System

 

The project site has access to a provincial 4G LTE cellular network and is located within the service area. An internal fibre optic and wireless network will connect this service to the underground mine and surface infrastructure, including the processing plant, administration, maintenance shops, and accommodation camp. A satellite communication system, with satellite phones, will serve as a backup.

 

The communication network will utilize fibre-optic technology for voice, internet, and intranet traffic, featuring Voice over Internet Protocol for voice and video communications. A VHF radio system will support handheld and mobile units, while a telephone PBX and cellular service will be available. Plans also include satellite television for the camps.

 

Wireless connections will be secured with a smart card access system. The local area network will connect users through switches, while the wide area network will employ routers with multi-protocol label switching. A backup satellite system will support full communication bandwidth, and backup power will ensure orderly shutdowns and startups of critical systems. A pre-manufactured trailer will serve as the temporary main telecommunications office during construction.

 

ttlogo1.jpg

15-6

 

ueclogo1.jpg

 

S-K 1300 INITIAL ASSESSMENT REPORT – ROUGHRIDER URANIUM PROJECT

REPORT DATE: NOVEMBER 5, 2024

 

15.5.9

Fresh and Fire Water

 

Freshwater for the site will be sourced from groundwater wells, primarily for potable use and fire emergencies. The underground mine and treated water from WTP will be utilized for processing to reduce freshwater needs. Freshwater pipelines will be buried below the freezing level. Potable water will be chlorinated, and UV disinfected before being stored and distributed to various facilities. The accommodation camp will have its own groundwater supply and treatment units.

 

Firewater will be stored in a dedicated tank at the process plant, designed to meet a two-hour demand of 2,000 US gallons per minute. A firewater loop will supply hydrants throughout the site, complemented by fire extinguishers and sprinkler systems. The SX plant will feature a CO2-based fire suppression system, integrated with a distributed control system for automatic operation during emergencies. Fire alarm systems will connect to the emergency response unit at the administration building and monitored 24/7.

 

15.5.10

Waste Disposal

 

Sewage from the accommodation camp and site facilities will be treated using a Moving Bed Biofilm Reactor (MBBR) module, with treated water recycled or discharged in accordance with environmental regulations. Hazardous waste will be collected in designated containers and stored onsite before shipment to a certified facility offsite. Non-hazardous waste will be transferred offsite for either recycling or disposal based on best industry practice.

 

15.6

Waste Rock Management Facility


 

The WRMF is designed to contain mine waste produced from underground mine development and is located east of the mine area. The footprint of the facility will be lined with geomembrane and contained within a perimeter berm and channel to collect contact water runoff from the Potentially Acid Generating (“PAG”) waste pile. Excess mine waste contact water will be routed to the adjacent TMF. Separate stockpiles will be established for overburden soils that will be used for closure earthworks. Please refer to Figure 15‑1 the overall site layout for the general arrangement of the WRMF.

 

15.7

Tailings Management Facility


 

A TMF will be constructed to store the uranium tailings produced from processing. The TMF will be located approximately 1 km northeast of the proposed processing plant on gently sloping terrain. Please refer to Figure 15‑1 the overall site layout for the general arrangement of the TMF. Thickened slurry tailings will be deposited into three adjacent storage cells sequentially constructed over the LOM. The design incorporates a double liner seepage containment system and a ‘pervious surround’ rock filter. This approach will allow for staged TMF cell construction and progressive reclamation.

 

ttlogo1.jpg

15-7

 

ueclogo1.jpg

 

S-K 1300 INITIAL ASSESSMENT REPORT – ROUGHRIDER URANIUM PROJECT

REPORT DATE: NOVEMBER 5, 2024

 

15.7.1

Design Criteria

 

TMF design criteria were:

 

Conventional slurry tailings operation with subaqueous deposition and water reclaim to process plant,

 

Allow for storage of nominal 1.2 million tonnes of processed mill feed over the LOM,

 

TMF location within mineral lease boundary and a minimum 100 m away from surface water bodies,

 

For average tailings settled dry density of 1.3 t/m3, storage for nominal 0.9 million m3 tailings solids is required,

 

Allow for nominal 3 m of water cover over settled tailings surface to mitigate risk associated with dust and radon,

 

Allow for nominal 2 m freeboard during operational life,

 

Incorporate staged cell construction to allow for progressive reclamation and reduce initial capital cost.

 

15.7.2

Design and Construction Concept

 

The TMF will consist of three adjacent storage cells excavated below grade with perimeter embankments constructed of compacted soil. Seepage will be contained by a double liner system. Containment will be enhanced by construction of a filter rock drain system used successfully at other uranium operations and identified as the ‘pervious surround’ approach. The storage of tailings solids below grade will reduce risk and promote secure physical containment.

 

The double liner was designed with a bentonite-soil layer on the storage cell floor and a 1.5 mm thick HDPE geomembrane primary liner. A double geomembrane layer will be installed on the internal embankment slopes for ease of construction. The nominal 3 m thick filter rock drain layer will be connected to a sump that will allow drainage of tailings porewater at closure.

 

The storage cells are approximately 14 m deep from crest to basin floor to accommodate the 3 m water cover, 2 m freeboard, and a settled tailings deposit thickness of approximately 9 m. The three cells will be separated by two internal embankments (pillars) of native soil. The perimeter TMF embankment slopes are graded to 3H:1V. The storage cells are approximately 380 m long and 190 m (Cell 1) to 250 m (Cell 2 and Cell 3) wide.

 

The first cell, closest to the processing plant, will be constructed in the year prior to tailings production. Excess overburden from cell excavation not used in perimeter embankment construction will be stockpiled for use at closure. The second and third cells will be constructed over the life of mine as required based on tailings and water storage requirements.

 

15.7.3

Operation and Closure

 

Tailings will be pumped as a thickened slurry to the TMF and deposited subaqueously from a deposition barge. The deposition point will be moved regularly to generate a level tailings solids surface and avoid segregation. Supernatant water in the TMF will be pumped back to the process plant for re-use via a reclaim water pump system. Geotechnical and environmental instrumentation will be installed as part of the tailings management and monitoring system.

 

At closure, the water cover will be pumped out of the cell and a cover of soil and geomembrane layers will be placed over the tailings surface. With the multi-cell design, it will be possible to progressively reclaim the TMF storage cells during the Project.

 

ttlogo1.jpg

15-8

 

ueclogo1.jpg

 

S-K 1300 INITIAL ASSESSMENT REPORT – ROUGHRIDER URANIUM PROJECT

REPORT DATE: NOVEMBER 5, 2024

 

16.0

MARKET STUDIES


 

The Project’s commodity is U3O8, a uranium concentrate commonly known as yellowcake. The primary end-use for yellowcake is in the manufacturing of fuel bundles which are used in nuclear power plants producing electricity. Yellowcake is sold between producers and end-users or intermediaries and is sold both under long term contracts and in the spot market. Uranium has other commercial uses in the fields of medical diagnosis and other industries, but these markets are very small in terms of volume.

 

Market information for this section is based on the information and analysis prepared by TradeTech in its Uranium Market Study 2024, Issue 1 (TradeTech, 2024).

 

The Tetra Tech QP has reviewed the market studies and analyses developed in this section of the TRS and the results support the U3O8 price assumptions presented in Section 19.

 

16.1

Markets


 

16.1.1

Uranium Market Demand

 

The demand for yellowcake is directly correlated with the global demand for nuclear energy. The demand for nuclear energy is in turn driven by an overall increased demand for electricity, as well as a shift away from carbon-based fuel sources.

 

TradeTech identifies a steady rise in uranium requirements through to year 2040, due to the increasing support of uranium energy worldwide and restrictions on Russian imports. They also report the significance of nuclear energy as being named a low-emission technology to help accelerate decarbonization efforts at the 2023 UN’s COP28 climate conference.

 

16.1.2

Uranium Market Supply

 

Uranium can come from two sources: primary sources based on uranium mines and secondary sources based on recycled uranium, and re-enrichment of uranium.

 

It is recognized that there are current uncertainties around the availability of future uranium supplies namely sanctions on Russian nuclear fuel imports by several Western countries, delivery logistics and the cost of future production. These challenges have added to the pressure to bring new sources of primary uranium production online, as shown in the statistics provided below with regards to U3O8 production of existing established Western projects:

 

128 Mlb U3O8 produced in 2023 compared to 114 Mlb U3O8 in 2022

 

Peak forecast of 137 Mlb U3O8 to be produced in 2028

 

Decline in production at an annualized rate of 5.8% or 6 Mlb U3O8 between 2030 and 2040.

 

TradeTech modelling shows a deficit in Western requirements to uranium supply to fall to around 25 Mlb U3O8 in 2027 and increasing thereafter as existing operations are exhausted. TradeTech anticipate a decline in secondary supply as a uranium supply source over the long term due to the increased demand which could be accelerated with growing sanctions on Russian supplies.

 

ttlogo1.jpg

16-1

 

ueclogo1.jpg

 

S-K 1300 INITIAL ASSESSMENT REPORT – ROUGHRIDER URANIUM PROJECT

REPORT DATE: NOVEMBER 5, 2024

 

16.1.3

Market Prices

 

The main factors that drive U3O8 prices are variations in supply, demand, and the perceived supply/demand balance. Uranium spot prices reflect current or near-term deliveries. As much of the industry’s volumes occur in the near-term market, the spot market tends to reflect the availability of discretionary supplies relative to discretionary demand. With respect to long-term prices, utility uncovered requirements and long-term demand have significant influence on market price dynamics. With uncertainties in uranium supply, the interest in long-term contracting has increased. Restrictions on Russian imports is forecasted in prices provided by TradeTech.

 

In determining a long-term uranium price forecast, TradeTech defines two forward availability models, one which represents a current snapshot of future supply and costs reflecting technical risks which are perceived to be manageable and regulatory and investment environment favorable towards uranium production that can meet future requirements. The second model considers a restricted uranium supply that reflects a profile that is less tolerant to technical, regulatory and financial risk.

 

The average long-term price of the first model reaches $67/lb U3O8 by 2030 while the second model predicts the price per pound U3O8 will reach $93 by 2030. TradeTech’s weighted average term price reaches approximately $80/lb U3O8 in 2024 and is expected to range between the low $80s and $90/lb U3O8 over the 2025 to 2040 period.

 

Based on long term weighted average price, a flat price forecast of US$85/lb U3O8 was used for this IAR.

 

16.1.4

Contracts

 

The Project has no current contract or sales agreement in place for mining, concentrating, smelting, refining, transportation, handling, hedging, or forward sales.

 

ttlogo1.jpg

16-2

 

ueclogo1.jpg

 

S-K 1300 INITIAL ASSESSMENT REPORT – ROUGHRIDER URANIUM PROJECT

REPORT DATE: NOVEMBER 5, 2024

 

17.0

ENVIRONMENTAL STUDIES, PERMITTING, AND PLANS, NEGOTIATIONS, OR AGREEMENTS WITH LOCAL INDIVIDUALS OR GROUPS


 

This section presents technical and economic ESG factors that have the potential to become Modifying Factors should the Project move towards the reporting of Mineral Reserves. The concept of double materiality is applied, with potential ESG impacts from the Project considered equally to impacts posed by the ESG setting on the Project. According to double materiality, companies must report both on how their business is impacted by sustainability issues (“outside-in”) and how their activities impact society and the environment (“inside-out”).

 

For this assessment, potentially material is assumed to be factors that could:

 

Stop the Project, affect the continuation of operations or obtaining of approvals

 

Pose major concern to stakeholders and/or could affect the social licence to operate (this includes Indigenous rights holders, non-Indigenous communities, potential labour areas, and business stakeholders)

 

Are out of alignment with corporate strategies or policies

 

Result in the need for additional studies or costs that could affect the proposed design and/or operation of the Project and thus the value of the assets (e.g., design changes, operational management requirements, cash flow restrictions, and rehabilitation/closure demands)

 

The potential for materiality has been identified based on:

 

Experience of the ESG reviewers

 

Understanding of the location; the Project’s proposed operation; regulatory and governance structure; socio-political situation; environmental and social setting; and labour relations context – with key source documents being the PEA (SRK, 2011), the ADEX PFS (BARR, 2013), the ADEX EIA (RTCU, 2014), and the Initial Assessment (SRK, 2023).

 

Understanding the client and the reports audience, in particular current expectations from investors around ESG factors and the requirements of Canadian and international standards representing good international industry practice for a uranium project.

 

The factors are divided subjectively into environment, social and governance considerations. It is recognized that many of the factors fall into more than one of the ESG categories with inter-dependencies and direct and indirect influences making the risks and opportunities facing a future project more complex than may be presented simplistically below. Most notable of these crossing cutting factors is the involvement of Indigenous groups because of their bond to the land (environment), their historical social treatment and suppression of their culture (social), and the move towards regaining their traditional rights (governance).

 

17.1

Environmental Considerations


 

Although the advanced exploration program (ADEX) EIA included extensive baseline investigations over the period 2012 to 2014, these studies are now a decade old and both federal and provincial regulators indicated that they wanted to see additional environmental studies undertaken to confirm previous findings in terms of water resources, air quality, and biodiversity, and to inform any future Project design. An environmental baseline program was initiated in 2023 and largely completed in 2024 in support of environmental assessment and subsequent licensing. The baseline program findings were consistent with previous studies on the Project and any identified issues will be discussed in the EIA along with any proposed mitigations. For the most part, these would be dealt with in licensing and permitting. There continues to be some air quality and background radiation monitoring, and the current baseline program did not have a groundwater component and that will be done at a later date.

 

ttlogo1.jpg

17-1

 

ueclogo1.jpg

 

S-K 1300 INITIAL ASSESSMENT REPORT – ROUGHRIDER URANIUM PROJECT

REPORT DATE: NOVEMBER 5, 2024

 

Impacts to water quality were a key concern during previous engagements with authorities and communities. The design and management of water-related infrastructure has the potential to significantly influence Project capital, operational and closure costs. It is expected that the mine will be net positive for water and that a treated effluent would need to be discharged to the local environment. Erosion and sediment control will also require careful design and implementation to prevent total suspended solids from entering waterways. Previous assumptions regarding where any effluent would be discharged need to be reassessed in the environmental assessment process. Treated water ponds and any pond required to capture potentially contaminated surface water, such as waste rock or surface stockpiles, will need to be lined, with leak detection and monitoring wells installed. All water discharged to the environment will need to meet discharge water quality standards, and if it doesn’t, it will be returned to the mill for re-treatment.

 

Waste rock will be generated by the project and will have to be handled to prevent contamination. Previous work (Barr, 2015) indicated that the Athabasca Group lithologies appear to be non-acid generating and contain low levels of constituents of potential concern (COPCs). By extension, the surficial materials locally should have the same characteristics as they were derived from the Athabasca Group rocks during the last glaciation. As part of future development studies, the initial geochemical test work will need to be revisited to confirm that surficial material will behave as predicted. If not, design work will need to be updated. If there is any mineralized material its storage will require lining, seepage collection, and leak detection, along with the treatment of any drainage water prior to release.

 

Some preliminary closure concepts were outlined in the PEA (SRK, 2011) and the Initial Assessment (SRK, 2023). When the Project is approved, as part of the licensing process, a preliminary decommissioning plan (PDP) and costs will be required, supported by a financial surety to cover the projected decommissioning costs. A successful Project decommissioning and reclamation would see the land returned to its former use, wildlife habitat, which could also see the site returned to the province under its institutional care program.

 

17.1.1

Baseline Studies

 

Comprehensive baseline biophysical surveys were completed through 2023 and early 2024 to update aquatic, terrestrial, and heritage baseline surveys completed at the Property between 2011 and 2013. Overall, the results of the baseline programs have been consistent with those of the earlier comprehensive baseline programs with additional wildlife species confirmed due to updated species detection protocols. An additional year of surface water quality and hydrology monitoring is ongoing through 2024, and the air quality baseline and hydrology programs will extend through 2025. No groundwater monitoring was included in the baseline program.

 

The aquatic program included the assessment of 17 lakes and streams in the Project area. Waterbodies in the area contain adequate dissolved oxygen, near neutral to slight acidic pH, and low levels of nutrients, ions, metals, and radionuclides. Lake sediments in the area tended to contain elevated arsenic and locally lead-210 and polonium-210 tend to be elevated beyond the available lowest effect level, including in South McMahon Lake. Nickel also occurred at levels above available benchmarks in North McMahon Lake. Plankton and benthic invertebrate communities were generally indicative of moderately diverse communities, with a few dominant taxa contributing to a less even distribution of families. Thirteen fish species were documented in the area, with northern pike, white sucker, and lake whitefish the most prevalent large-bodied fish species. Suitable spawning habitats were also identified throughout the study area for these species.

 

ttlogo1.jpg

17-2

 

ueclogo1.jpg

 

S-K 1300 INITIAL ASSESSMENT REPORT – ROUGHRIDER URANIUM PROJECT

REPORT DATE: NOVEMBER 5, 2024

 

The terrestrial program included assessments of soils and terrain, wetland and upland habitat classification, land cover mapping, vegetation, wildlife, and species of conservation concern (SOCC). A total of 101 vascular plant taxa were identified during the surveys, or incidentally. Of these, 11 are ranked as provincially rare plant SOCC (S2 or S3). No federally listed plant species were detected, and no species provincially designated as weeds under The Weed Control Act were recorded.

 

A total of three species of amphibians, 120 species of birds, and 28 species of mammals were detected within the study area during wildlife investigations. Most of the bird species detected are protected under the Migratory Birds Convention Act and/or The Wildlife Act (1998), and 18 avian SOCC were identified. These included five species listed under Schedule 1 of the Species at Risk Act. Seven mammalian SOCC were identified, these included five bat species, wolverine, and woodland caribou. The species detected in the 2023/2024 baseline surveys are consistent with those identified during the previous baseline monitoring programs and desktop database searches.

 

Valued environmental and traditional valued environmental components need to be confirmed and included in a new environment impact assessment (EIA) with the latter reconfirmed with relevant Indigenous groups. Based on current information, the design criteria for the Project will need to be updated to ensure potentially material constraints around aspects such as those summarized below are developed and applied to minimize risk of unexpected development costs or objections from stakeholders.

 

17.1.2

Environmental Risks and Opportunities

 

Environmental risks and opportunities identified for the Project will require UEC to develop an appropriate governance framework that would include:

 

Establishing appropriate governance frameworks for development, construction and operation. Policies, strategies and internal control processes will need to be applied or established to set out how the Project intends to operate with respect to ESG related matters.

 

Establishing ESG goals and targets tied to national or international ESG standards. They will need to report on them on a regular basis.

 

Developing robust management systems for occupational health and safety, radiological control, environmental protection, and other areas of high risk as required by the CNSC and other stakeholders. These safety and control related systems inherently include requirements for ongoing engagement and reporting to internal and external stakeholders. As part of such a system, construction and operating licenses will require site-specific management plans, standard operating procedures, and monitoring programs to address core risk areas and facilitate assessment of compliance and reporting. 

 

Developing studies that will take a risk informed approach to decision making when evaluating alternative technologies and location of infrastructure. Although there are no protected areas or identified heritage sites, there are sensitive habitats for protected species and restrictions around working near water bodies and there may be other biophysical or social constraints identified through the engagement and EIA processes. 

 

Establishing a corporate strategy and further development studies to determine decarbonization approaches that align with government initiatives. While UEC understands the power supply to a future Project is likely to be hydroelectric there are still hydrocarbon fired power inputs to the Saskatchewan grid that will apply to project calculations. The Project described in the PEA (SRK, 2011) required both diesel and propane and it is likely there would be some of loss of vegetation/wetland cover, all of which contribute to the Project’s greenhouse gas footprint. Addressing carbon-pricing requirements, which may influence decarbonization strategies in future financial models. Tailoring marketing strategies highlighting the advantages of uranium and nuclear power over carbon-based power generation to make the most of this opportunity.

 

ttlogo1.jpg

17-3

 

ueclogo1.jpg

 

S-K 1300 INITIAL ASSESSMENT REPORT – ROUGHRIDER URANIUM PROJECT

REPORT DATE: NOVEMBER 5, 2024

 

In the spirit of reconciliation and to build on the strong reputation that uranium mining has in the region, continue to work with the communities to provide opportunities for jobs, business development, and other inputs necessary to maintain the economic benefits, and the exemplary social and environmental performance of modern uranium mines.

 

Closely monitoring the governments’ position on uranium as a critical mineral; historically uranium has been at a low risk of political interference. The 2022 federal budget proposed to provide $250 million over four years, starting in 2022-2023, to Natural Resources Canada (NRCan) to support pre-development activities of clean electricity projects of national significance, such as small modular reactors (SMR) (i.e., Canada’s SMR Action Plan). 

 

In February 24 NRCan and Ontario’s Ministry of Energy announced some major clean energy funding that includes nuclear. The funding included a $970 million investment in the Darlington Nuclear for the first grid-scale SMR (the first of four announced for Darlington), $4.5 billion for clean energy that could include nuclear, support for the Bruce Nuclear refurbishments and new reactor projects, and support for refurbishment of the Pickering nuclear reactors. 

 

As part of any future EIA, the cumulative impacts with neighbouring exploration and operational projects will need to be assessed and opportunities for social enhancement explored. This includes the Cigar Lake mine, the McArthur River mine, the McClean Lake and Rabbit Lake mills (the latter currently under care and maintenance), and nearby development projects such as Midwest Lake, and the Wheeler River Project. The most sensitive issues are likely to relate to water resources, traffic, and local procurement/employment opportunities.

 

Valued environmental and traditional valued environmental components need to be confirmed and included in a new environment assessment (“EA”) (with the latter reconfirmed with relevant Indigenous groups). Based on current information, the design criteria for the Project will need to be updated to ensure potentially material constraints around aspects such as those summarized below are developed and applied to minimize risk of unexpected development costs or objections from stakeholders.

 

As described in the Preliminary Geochemical Characterization report (BARR, 2015), waste rock generated from mining in northern Saskatchewan is typically classified as either “clean” or “mineralized” (or “special”) waste rock. Clean rock does not contain enough of any minerals that could be mobilized or potentially cause an adverse impact if released into the environment, but still requires management for other reasons, such as erosion and sediment control. Special rock at uranium mining facilities in northern Saskatchewan are variably characterized as: having elevated, though not economic, levels of uranium; being potentially acid generating (PAG); or containing other constituents of potential concern (COPC). BARR 2015 identified a list of COPCs for the ADEX’s waste materials, which are assumed to be like any future Project waste streams. The report concluded the Athabasca Group lithologies (both upper and lower) appear to be non-acid-generating with low levels of COPCs. However, the Wollaston Supergroup lithologies contain both PAG and non-PAG material, with some COPCs. As part of future development studies, the initial geochemical test work will need to be revisited and updated to determine the design, operational controls and closure plans required for any waste material (rock, tailings, overburden etc.). It is likely at least some facilities will require lining and seepage collection and leak detection, along with the treatment of collected water prior to release to surface waters.

 

Depending on the extent of processing proposed for the Project site, there may be a need for tailings disposal, which is likely to be a significant capital, operational and closure cost item. Other mines in the area dispose of tailings to old surface pits and this will not be an option for the Project. If tailings are disposed of on surface, it is expected that extensive geotechnical, geochemical and environmental investigations will be required to ensure Canadian standards, such as the Towards Sustainable Mining tailings guidance, and the Canadian Dam Association guidelines are met. Depending on business and stakeholder demands, consideration of international standards, such as the Global Industry Standard on Tailings Management, may also be needed. If the mineralized material is milled elsewhere, the disposal capacity of the receiving mine will need to be confirmed. Options for cemented tailings backfill may also need to be explored.

 

ttlogo1.jpg

17-4

 

ueclogo1.jpg

 

S-K 1300 INITIAL ASSESSMENT REPORT – ROUGHRIDER URANIUM PROJECT

REPORT DATE: NOVEMBER 5, 2024

 

The following potential environmental risks to the Project will require consideration during Project development to ensure appropriate risk controls address regulatory, stakeholder and corporate risk profile requirements:

 

 

Wildfire preparedness and response.

 

 

The effective treatment of water and its discharge to the environment.

 

 

Prevention of loss of containment for surface runoff and water treatment ponds and mineralized or hazardous material storage areas.

 

 

Consideration of climate change's impacts on the Project such as drought, excess precipitation, and extreme weather.

 

 

Consideration of whether the Project impacts on the environment will change due to climate change, and whether this alters potential Project effects.

 

 

Consideration of the potential for seismic events despite residing in a tectonically stable area.

 

 

Demonstration of the long-term safety of storing tailings in a dedicated tailings management facility. 

 

 

Effective handling of Project injection and recovery solutions such that hydrogeological connections that provide a direct or indirect connection with receptors are prevented.

 

 

An effective decommissioning plan. 

 

17.2

Social (Including Labour) Considerations


 

In 2021, the United Nations Declaration on the Rights of Indigenous Peoples Act received Royal Assent and came into force in Canada. References to free, prior and informed consent (FPIC) are found throughout the Declaration. The Declaration emphasizes the importance of recognizing and upholding the rights of Indigenous peoples and ensuring that there is effective and meaningful participation of Indigenous peoples in decisions that affect them, their communities, and territories. While the Act does not confer a veto on projects, it comes close in practice. Since UEC’s purchase of the Property, communication and interactions (labour and business participation) have been re-established with the neighboring communities supporting the goals of the Declaration and for the social licence to operate.

 

Communities that have triggered the duty to consult have been identified by the Saskatchewan MOE. Through engagement with Indigenous rights holders the proponent will identify the Project’s potential adverse impacts on the exercise of established or credibly claimed Treaty and Aboriginal rights, such as the right to hunt, fish, and trap for food, and the carrying out of traditional uses on Crown land, or public water bodies to which First Nations and Métis have a right-of-access. Efforts will be needed to solicit and incorporate traditional knowledge, concerns, and the desires of northern Saskatchewan residents into the EIA process. There are well-established forums and committees mandated to facilitate engagement. Both Hathor and RTCU undertook engagement when active on the Project, and UEC has been active since the purchase of the property in late 2022. However, it is understood there was limited engagement between 2014 and 2022 as the Project was inactive under the previous operator. The previous stakeholder analysis will need to be updated, and a new engagement plan developed. Engagement has been reinitiated to optimize opportunities for value adding to the Project and to minimize the risks of opposition.

 

From a socio-economic perspective, the communities identified with the Project have wholly owned businesses and joint ventures established to service northern Saskatchewan’s mining industry. Stakeholder and rights holder groups have entered business opportunities and contractual arrangements. These businesses and joint ventures will want to maximize their involvement with the Project in the event the Project gains environmental assessment approvals to proceed. As the uranium mining industry has a lengthy history in northern Saskatchewan, many local community members are participating as skilled employees and will be assessing employment opportunities for career development with the Project.

 

ttlogo1.jpg

17-5

 

ueclogo1.jpg

 

S-K 1300 INITIAL ASSESSMENT REPORT – ROUGHRIDER URANIUM PROJECT

REPORT DATE: NOVEMBER 5, 2024

 

Although the Project area is remote, it and the surrounding areas are used by people (particularly Indigenous peoples) for their livelihoods and recreation. This may involve traditional activities such as hunting, trapping, fishing, and harvesting. Therefore, anything that harms or restricts access to these natural resources is of concern not just in the immediate vicinity, but also more widely across the regional study area. Often accommodation is required to offset any impact to traditional activities and rights.

 

No physical resettlement is required but there is a trapper registered in the area, with historical compensation payments made by RTCU to cover possible loss of income due to exploration activities. The status of these compensation payments is unknown.

 

To determine if heritage sites are present in the area, a Heritage Resource Impact Assessment (HRIA) of the Project area was required by the Heritage Conservation Branch (HCB). Heritage sensitive segments of the project were assessed in the fall of 2023 using a combination of pedestrian reconnaissance and 362 subsurface shovel tests. No new heritage resources were identified in conflict with the Project. Since this HRIA is a baseline assessment, recommendations cannot be made regarding HCB approval for development. However, the HRIA results can be incorporated into the planning phase of the Property development. Once project plans are finalized, or as near as possible, they will require submission to the HCB for determination of future heritage requirements prior to development.

 

Radiological exposure is a concern to both potential staff and anyone encountering the site or its product. Radiological exposure is controlled by CNSC requirements (e.g., the Radiation Protection Regulations), with exposure to radionuclides controlled through water treatment, dust control, limited exposure, distance from sources, and where necessary, shielding. As part of the CNSC licence it is expected there will be extensive safety controls imposed through management systems including monitoring (site, personal and environment) and reporting. UEC will develop and implement a Radiation Protection Program for the Project.

 

General health and safety controls are specified in law. Both the federal and provincial jurisdictions have a complete package of occupational health and safety legislation that are largely aligned with each other. It is expected that hazard avoidance controls associated with things like hazardous chemicals, radiation (see above), and natural phenomena will be designed and implemented within appropriate management systems. In addition, the project will have an emergency response plan for operational and environmental emergencies.

 

The following potential social (including labour) risks to the Project will require consideration during project development and implementation:

 

Stakeholder opposition (Indigenous rights holders, non-governmental organizations, etc.) has the potential to slow down permitting processes and in extreme cases lead to direct interference with the Project. This is best managed through early, regular, and transparent communication with all relevant stakeholders.

 

Lack of available labour in the immediate Project area due in part to an under skilled workforce. However, there is an existing skilled labour set in the wider northern Saskatchewan region due to the number of other uranium mines and experience in the petroleum industry (i.e., oil sands). In addition, training initiatives to service the resource sector have been implemented in the past (e.g., Mineral Sector Steering Committee and Northern Career Quest) when required and can be restarted to fulfill labour shortfalls. Training is organized through partnerships with training institutions, other mineral industry companies in the region, Indigenous groups, and federal and provincial training financing.

 

ttlogo1.jpg

17-6

 

ueclogo1.jpg

 

S-K 1300 INITIAL ASSESSMENT REPORT – ROUGHRIDER URANIUM PROJECT

REPORT DATE: NOVEMBER 5, 2024

 

17.3

Governance Considerations


 

Governance risks and opportunities identified for the Project include:

 

To enable the above environmental and social risks and opportunities to be appropriately managed to the satisfaction of the Board, investors, Indigenous groups, regulatory, and public satisfaction, the Project will need to establish appropriate governance frameworks for Project development, construction and operation. Policies, strategies and internal control processes will need to be applied or established to set out how the Project intends to operate with respect to ESG-related matters. Top level management commitment and appropriate environmental, community, health and safety, human resources and procurement teams will need to be recruited, trained and evaluated regularly, with reporting back to relevant decision makers.

 

The CNSC will require, and most good practice guidelines in the mining industry are pushing companies towards, the development of robust management systems for health and safety, radiological control and environmental protection, and other areas of high risk (e.g. tailings management). These systems inherently include requirements for ongoing engagement and reporting to internal and external stakeholders. As part of such a system, it is expected any future construction and operation will require site-specific management plans, standard operating procedures and monitoring programs to address core risk areas and facilitate assessment of compliance and reporting.

 

Although there are no protected areas or identified heritage sites in conflict with the Project, there are sensitive habitats for protected species and restrictions around working near water bodies and may be other biophysical or social constraints identified through the engagement process. As such future Project development studies will need to take a risk informed approach to decision making when evaluating alternative technologies and location of infrastructure.

 

The power supply (Scope 2) to a future Project is likely to be hydroelectric but there is still hydrocarbon fired power input to the Saskatchewan grid. The Project described in the PEA (SRK, 2011) required both diesel and propane (Scope 1) and it is likely there would be some of loss of vegetation/wetland cover, all of which contribute to the Project’s greenhouse gas footprint. Corporate strategy and any further development studies will need to determine decarbonization approaches that align with government initiatives. As an example, it is noted that the federal government requires the proponent to address the extent to which the Project hinders or contributes to the Government’s ability to meet its environmental obligations and its commitments in respect of climate change. Future financial models will need to address carbon-pricing requirements, which may be influenced by the above decarbonization strategies.

 

Uranium and nuclear power may be considered positive in terms of transitioning away from carbon-based power generation and corporate marketing strategies could be tailored to make the most of this opportunity.

 

There will be ongoing scrutiny by environmental non-governmental organizations (ENGOs), community activists, and Indigenous groups, despite uranium mining being widely accepted in the region due to its economic benefits, the oversight from the CNSC and an excellent environmental record. Uranium is considered a strategic mineral and historically has been at a low risk of political interference, but this is difficult to predict and needs to be closely monitored. The 2022 federal budget proposed to provide CA$250M over four years, starting in 2022-23, to Natural Resources Canada to support pre-development activities of clean electricity projects of national significance, such as SMRs.

 

As part of any future EA, the cumulative impacts with neighboring exploration and operational projects will need to be assessed and opportunities for social enhancement explored. This includes the operational McClean Lake mill, the Rabbit Lake mine and mill (currently under care and maintenance), Midwest Lake as the closest potential project, and other potential projects sharing the same watersheds. The most sensitive issues are likely to relate to water resources, vehicle traffic, and local procurement and employment.

 

ttlogo1.jpg

17-7

 

ueclogo1.jpg

 

S-K 1300 INITIAL ASSESSMENT REPORT – ROUGHRIDER URANIUM PROJECT

REPORT DATE: NOVEMBER 5, 2024

 

17.4

Current and Future Permitting Requirements


 

Should the Project proceed, either to advanced exploration or to full development, the necessary development and operational approvals will need to be obtained. In Canada, uranium mining is a highly regulated activity with oversight from both provincial and federal levels of government, and often from local Indigenous groups. While both levels of government individually regulate most aspects of the project, the federal government almost exclusively regulates the nuclear aspects, while the province regulates the physical mining activities and occupational health and safety, which has been designed to align with the federal legislation. Indigenous groups often review and provide feedback in the environmental assessment process, act as intervenors in the federal licensing, and participate in follow-up monitoring and oversight activities (e.g., the Northern Saskatchewan Environmental Quality Committee).

 

This regulation and permitting encompasses both the environmental and social aspects of the project. The following discusses the main elements of the approvals and permitting processes for the Project.

 

17.4.1

Provincial EIA and Permitting

 

Generally, all mining projects are deemed a ‘Development’ per Section 2(d) of the Saskatchewan Environmental Assessment Act. If the Project were to move beyond the approved ADEX scope it is assumed that the province will determine the Project is a Development and UEC can elect to self-declare the Project as a Development, saving time in the process. A Technical Proposal document and draft terms of reference (“TOR”) will need to be submitted to MOE, Environmental and Stewardship Branch (“EASB”) with a letter indicating that UEC would like to self-declare the Project as a Development. The TOR is submitted as a draft and would be finalized after incorporating comments from the Province, the CNSC, and Indigenous groups.

 

It will be incumbent on UEC to complete the work required for an EIA, including any delegated Duty to Consult engagement and consultation. While the Clifton QP considers a federal Impact Assessment (“IA”) is not likely to be required, it recommends including elements of the federal process in a provincial EIA to aid in the federal CNSC licensing process, in accordance with Canada’s Nuclear Safety and Control Act (“NSCA”).

 

Once an EIA is submitted and the provincial internal reviews are finished, the EASB will compile the comments and produce a Technical Review Comments (“TRC”) document. If there are deficiencies in the EIA, the proponent will be required to address them before the TRC document, and the final EIA are placed into public review (generally for 30 to 60 days). When public review is complete, EASB will produce an EIA decision document for the Minister of Environment. While there are three possible outcomes (outright approval, approval with conditions or rejection), the potential outcome for a project that gets to this stage is likely approval of the EIA with conditions. With approval of the EIA, licensing and permitting can be completed.

 

While the EIA is in progress, the proponent may develop the surface lease application, and other provincial licensing packages for review, although approval of these cannot occur until the EIA process is completed and a positive outcome is obtained. Provincially, the licensing is through the MOE Environmental Protection Branch (EPB), which largely provides a one window approach for mining project licensing on behalf of other branches and ministries. There will be other ministries and permitting required related to health and safety, labour, employment, royalties, and more. Overall, several permissions, of one form or another, are required to complete the project, but when compared to the EIA process, they are rarely material to the schedule or budget if organized properly. Most ministries will indicate their interest and the need for any permits at the Technical Proposal and EIA review stages and those comments will come forward in the TRC.

 

ttlogo1.jpg

17-8

 

ueclogo1.jpg

 

S-K 1300 INITIAL ASSESSMENT REPORT – ROUGHRIDER URANIUM PROJECT

REPORT DATE: NOVEMBER 5, 2024

 

An examination of the current provincial permits for the Project shows them to be in good standing relative to the activities on site and land tenure. The original Rio Tinto approval for an ADEX program (20 August 2014) currently remains dormant and has the potential to be reactivated should certain conditions be met. In December 2023, the MOE confirmed that this is the case if the Project is completed as approved. Material changes would require an Environmental Assessment Act Section 16 review to determine whether additional work, such as an EIA, is required. UEC has completed additional baseline and engagement activities to maintain the currency of that original approval. Regardless, if the Project was to make a production decision, a new provincial EIA will be required, and the new baseline and engagement work would support this.

 

17.4.2

Federal Impact Assessment and Licensing

 

Under the Federal Impact Assessment Act, 2024 (“IAA”) an IA can be triggered in two ways. The first is by triggering one of the activity thresholds in the Physical Activities Regulations, 2019, and the second is that the project may be designated by the Federal Minister of Environment and Climate Change Canada (ECCC) in response to a request to designate the project and a supporting recommendation from the Impact Assessment Agency of Canada (IAAC) staff. A potential trigger for the Project is the amount of material being mined or milled per day. However, with the current plans to mine and mill approximately 400 t/d, the Project does not trigger Sections 20 to 23 of the regulations whereby the production or milling of ≥2,500 t/d of uranium mineralized material is the trigger. From recent experience, the IAAC will not likely refer a project for designation to the Minister if the IAAC is of the view that the potential adverse effects within federal jurisdiction would be limited and can be managed through project design, mitigation measures, existing legislative frameworks, and there will not be adverse impacts to Indigenous peoples.

 

In October 2023, Canada’s Supreme Court released a decision on a constitutional challenge to the federal IAA. Most of the Court ruled that while the Federal Government can develop an environmental assessment process, the current designated project (i.e., the Physical Activities Regulations) approach included projects and activities that are beyond the legislative authority of the federal government. They declared most of the Act to be unconstitutional as it interfered with areas of provincial jurisdiction. A small portion of the IAA that focused on federal activities was ruled to be within federal authority. The Federal Government amended the IAA, and it was promulgated (20 June 2024) and brought into force. There are no changes to the Act that would change how it is applied to the Project as the regulations remain the same.

 

The main federal licensing agency for the Project, the CNSC, will need to be satisfied that the environment, writ large, is protected. The CNSC has a global reputation as a strong nuclear regulator. The CNSC will conduct an Environmental Protection Review (“EPR”) for the licence application in accordance with their mandate under the NSCA to ensure the protection of the environment and the health and safety of people. The CNSC will follow the federal mandates with respect to Indigenous peoples and other areas of federal responsibility, such as water and climate change.

 

The CNSC and Saskatchewan MOE have historically worked closely together and the CNSC will have the ability to review any provincial EIA submitted by UEC. The regulators have demonstrated recently that they will cooperate in their review of projects despite the expiration of their cooperation agreement. The CNSC will review and provide comments on any submission by UEC to EASB. In addition, the CNSC will act as a technical advisor to MOE and will be an active participant in the EIA process; however, the provincial EIA decision will be independent of the federal government.

 

ttlogo1.jpg

17-9

 

ueclogo1.jpg

 

S-K 1300 INITIAL ASSESSMENT REPORT – ROUGHRIDER URANIUM PROJECT

REPORT DATE: NOVEMBER 5, 2024

 

Per the NSCA, UEC will need to initiate the licensing process to have meaningful discussions with the CNSC. UEC wants to have early discussions with the CNSC on the licensing process, engagement and consultation expectations, and the scope of the Project’s licensing. While the option of sequentially doing the provincial EIA and the CNSC licensing is available to the proponent, the CNSC suggests doing these two distinct processes in parallel to save time. Effectively, while the EIA process is proceeding, the development and submission of the provincial and CNSC licensing packages proceeds in parallel. A successful outcome for the provincial EIA would be an important part of the CNSC’s EPR, which would be presented to the Commission Tribunal as part of the licensing reviews. As in Saskatchewan, a positive environmental decision is required prior to the Commission approving any licensing packages. The CNSC’s licensing and oversight processes are done on a cost recovery basis through the Cost Recovery Fees Regulations. The annual CNSC cost recovery fees for a proposed mine and mill can be in the million-dollar range, or more.

 

In support of licensing, proponents are required to develop management systems complete with policies, systems/programs, procedures, and monitoring (a plan, do, act, check type system) commensurate with the proposed scope of activities. To protect human health and the environment, the CNSC focusses on their regulated areas of safety and control in their assessment of projects, including areas of higher risk such as quality management, occupational health and safety, environmental protection, radiation protection, waste management, and safeguards and non-proliferation, to name a few. The CNSC supports these activities with a detailed set of Acts, regulations, regulatory documents (“REGDOC”s, many of which have supporting Canadian Standards Association (“CSA”) standards), and other guidance.

 

If any work requires the destruction of fish habitat, a fish habitat compensation plan will be required. This offsetting plan could include replacement of impacted habitat in kind, preferably near the Project, or the submission of a cash amount into a fund that is designed to do this kind of work somewhere in Canada. The plan will be developed by a qualified biologist in concert with Fisheries and Oceans Canada (“DFO”). Any work on a freshwater intake, treated effluent discharge, or docks would include DFO in the discussion.

 

Under the Canadian Navigable Waters Act a Transport Canada authorization may be required if there are any in-water works with a potential to impact navigation. Water quality and the monitoring of biological effects will be governed by the Metal and Diamond Mining Effluent Regulations to the Fisheries Act, in addition to any provincial requirements. Other federal legislation of importance to the Project will be compliance with the Species at Risk Act (e.g., woodland caribou) and the Migratory Birds Convention Act. It is not clear whether the proposed federal policy on biodiversity will have an impact on the Project, if so, it could mean more bio-physical offsets will be required for any disturbed ground.

 

17.4.3

Decommissioning

 

As part of the approval process, UEC will be required to develop a Conceptual Decommissioning Plan for inclusion in the EIA that details the steps that will be taken to decommission Project facilities and reclaim the land at the end of Project life. As part of licensing, that conceptual plan is expanded into a more detailed Preliminary Decommissioning Plan (“PDP”), and a cost estimate for implementation will be prepared (Preliminary Decommissioning Cost – “PDC”). The company will then be required to provide some form of security or bond to cover the cost of carrying out the PDP. The bond is designed to cover the unlikely situation whereby the proponent is unable to complete the decommissioning and reclamation, and the government must step in to complete the work in a ‘decommission tomorrow’ scenario. While the salvage of some materials is likely, these cannot be considered in the PDC unless contractually anchored (i.e., a guaranteed price). The plan and costs are periodically reviewed and updated and can be scaled to reflect the current state of the Project.

 

ttlogo1.jpg

17-10

 

ueclogo1.jpg

 

S-K 1300 INITIAL ASSESSMENT REPORT – ROUGHRIDER URANIUM PROJECT

REPORT DATE: NOVEMBER 5, 2024

 

As operations progress, progressive decommissioning is encouraged as it lowers close-out liabilities, which, in turn, can reduce the amount of surety bond required. It may also reduce the cost of the disturbed-land lease fees as well. At this stage of the Project no formal decommissioning plan has been completed but an estimated cost of US$ 46 million for decommissioning is included in the financial calculations. At the end of the life of mine, closure must be done in accordance with the Section 22 of the Mineral Industry Environmental Protection Regulations, MOE’s Guidelines for Northern Mine Decommissioning and Reclamation (November 2008), the Environmental Code of Practice for Metal Mines (2009), and any applicable industry best management practices, such as those established by the Mining Association of Canada. The Department of Mines would be responsible for closure of underground workings in terms of the Saskatchewan Mines Regulations. The proponent will require a CNSC decommissioning license to conduct the work.

 

In Saskatchewan, reclaimed land can be returned to the Crown under the Reclaimed Industrial Sites Act and the Reclaimed Industrial Sites Regulations, which establish an Institutional Control Program (“ICP”). The ICP is implemented once a decommissioned site has been deemed to be reclaimed in a stable, self-sustaining and non-polluting manner. The property is then transferred back to the province for monitoring and maintenance. For this to happen, the proponent pays a calculated sum into the Institutional Control Monitoring and Maintenance Fund and the Institutional Control Unforeseen Events Fund. In the unlikely event that the site does not behave as predicted, the government can seek redress from the proponent if the costs exceed the funds available.

 

Some preliminary closure concepts were outlined in the PEA (SRK, 2011). However, these would need to be revisited as part of any future Project development study taking into account new norms around closure as stipulated by both Canadian and international good practice guidelines and standards, updated regulations and further consultation with interested parties. Conceptual closure cost estimates need to be included in any future technical economic models, with provisions included for post-mining monitoring and maintenance and social transitioning

 

17.4.4

Indigenous Engagement

 

Arising from treaty and subsequent court decisions, the provincial EIA and federal licensing/permitting processes require meaningful consultation with Indigenous groups. Both levels of government have a constitutional duty to consult with Indigenous groups on any decision within their purview that has the potential to affect Indigenous or Treaty Rights. Implementation of the Crown’s duty to consult is guided by a combination of provincial and federal CNSC regulatory requirements and guidance documents. While the duty to consult lies with the federal and provincial governments, the procedural aspects of the duty to consult are frequently delegated to the proponent. UEC is engaging local First Nations communities and Métis groups to inform them of proposed activities, receive feedback or information on current traditional land uses, and to understand any potential impacts to Treaty and Aboriginal rights that could result from the Project. Accommodation for any impacts rights and traditional activities may be required.

 

The Project has had two owners before UEC that were actively engaged with the identified communities. Rio Tinto provided, at various junctures, correspondence outlining activities on the Property to the affected communities. Rio Tinto documented its visits to the communities with descriptions of presentation materials, number of attendees, questions from community members about the Project, and the company’s responses to these inquiries. UEX Corp (UEX), which was not involved in the property per se and was quite active in northern Saskatchewan, was acquired by UEC. UEX procured goods and services from locally owned Athabasca Indigenous businesses for exploration work in this and other areas of the Athabasca region. UEC will continue to do the same.

 

UEC has established communications with the seven communities of the Athabasca region through the non-profit umbrella organization, Ya’ thi Néné’ Lands and Resources (“YNLR”). Initial discussions have occurred among UEC and the affected Indigenous groups to lay the foundation for developing a formal relationship between the rights holders and UEC. The Athabasca communities own several businesses created to provide goods and services to the mineral industry and generate economic wealth for their seven communities. After the Project’s mine life, these Athabasca businesses will continue to service mineral companies in Saskatchewan for long-term economic sustainability

 

ttlogo1.jpg

17-11

 

ueclogo1.jpg

 

S-K 1300 INITIAL ASSESSMENT REPORT – ROUGHRIDER URANIUM PROJECT

REPORT DATE: NOVEMBER 5, 2024

 

UEC has an ESG program that prioritizes “the wellbeing of the community at all times”. The two prominent ways of promoting community economic wellbeing are UEC’s commitment to local procurement and hiring. UEC in its correspondence to local Indigenous groups has expressed a commitment to purchase materials and contract work locally to the extent practicable. The summer of 2023 work on the Property included procuring accommodations, meals, fuel, equipment rentals, and other services from locally owned businesses and hiring workers from neighboring First Nations’ labour services companies.

 

In keeping with the wellbeing of communities, UEC’s goal is to enable the neighboring communities to continue their traditional economic and cultural activities with minimal disruption. UEC will keep neighboring communities and rights-bearing members informed of UEC’s activities and UEC will confer with community members on possible strategies to avoid, minimize, or mitigate adverse impacts to their rights. As an example, UEC has allowed access to the whole site for the exercise of traditional activities except for the fenced and gated 4.5 ha Roughrider Project compound, which contains all the drill core samples, including the radioactive core.

 

UEC is committed to keeping neighboring communities informed on the Project’s permit applications, site cleanup activities, environmental data collection, drilling programs by contact through video calls, written UEC exploration updates, social media, phone calls, and in-person visits. UEC welcomes feedback from the communities on its activities. UEC utilizes a stakeholder relationship management database to track and manage stakeholders’ and rightsholders’ communications, feedback, commitments, interests and issues as well as to document UEC’s disposition of these.

 

17.4.5

Summary

 

Should the Project be developed, it will need to undertake additional engagement and consultation with Indigenous and local communities and complete some additional baseline and monitoring work in support of the EIA. The reinitiated engagement program and the completion of the 2023/24 baseline program go a long way to support the next steps. UEC also recognizes there are synergies between the environmental and engineering data gathering exercises (particularly for geochemistry, surface and ground water and climate), and cost and schedule efficiencies can be achieved with careful planning. It is estimated the environmental and social assessment and CSNC licensing for the Project may require between 48 months and 72 months to complete.

 

The variation in schedule will be a function of the complexity of the proposed Project, how it interacts with the environment and the level of public concern. Therefore, the accuracy of the schedule can only be refined following the completion of pre- feasibility or feasibility level engineering studies and the findings of new engagement activities with Indigenous groups, recognizing that most of the Project’s engagement was done approximately 10 years ago.

 

The CNSC operates on a cost recovery basis that allows the agency to bill the proponent for each hour their staff dedicates to the Assessment process. This complicates the ability to accurately estimate the total costs of an EIA and licensing process. A reasonable estimate of the total costs associated with completing the assessment and permitting process through to the start of construction to be in the order of US$11M to US$15M.

 

A comprehensive list (as identified by UEC) of the potential permits, approvals and authorizations required for the Project are summarized in Appendix A.

 

ttlogo1.jpg

17-12

 

ueclogo1.jpg

 

S-K 1300 INITIAL ASSESSMENT REPORT – ROUGHRIDER URANIUM PROJECT

REPORT DATE: NOVEMBER 5, 2024

 

17.5

Other Significant Factors or Risks


 

In terms of ESG related factors, several issues or risks associated with accessing the land or obtaining the necessary permissions have been identified and are expanded upon in Section 17.1, 17.2 and 17.3 Three relate directly to the mining lease area and are summarized below:

 

 

1.

According to the Advanced Exploration Program (“ADEX”) EIA (RTCU, 2014), there are no legally protected or internationally recognized habitat areas within the concession area. It is over 100 km to the nearest national parks, which are located to the northeast, northwest and south of the Project area.

 

 

2.

Several species of conservation importance occur in the area and would require further assessment as part of any future EA process.

 

 

3.

Heritage resources impact assessments were previously undertaken to support the ADEX PFS (BARR, 2013) and EIA (RTCU, 2014), and the Canada North Environmental Services Limited Partnership (CanNorth) 2024 work. While sites were identified (Figure 17-1), there are none that would interfere with the Project as planned. Regardless, a survey of any areas to be disturbed will need to be redone for the EIA and in order to get a Heritage Conservation Branch (“HCB”) clearance ahead of construction.

 

 

4.

The uranium mining industry and the Government of Saskatchewan have focused significant effort towards obtaining a “social license” to operate in the Athabasca Basin region over the course of the past 40+ years. To this end many committees, working groups, partnerships and agreements have been formed between the uranium mining companies and Indigenous and non-Indigenous communities. UEC understands traditional rights to the Project area will be recognized as part of the surface lease agreements and Impact Benefit Agreements resulting from the proposed Project.

 

The Clifton QP is not aware of any other significant factors that may affect access to the Property title, or UEC’s ability to continue exploration activities at the Project.

 

ttlogo1.jpg

17-13

 

ueclogo1.jpg

 

S-K 1300 INITIAL ASSESSMENT REPORT – ROUGHRIDER URANIUM PROJECT

REPORT DATE: NOVEMBER 5, 2024

 

fig17_01.jpg

 

Figure 171: Known Heritage Sites near the Project site (BARR, 2013)

 

17.6

QP Opinion


 

The Project, as currently described, has identified the significant risks to, and from, the environment and UEC has made adequate provisions to eliminate or mitigate those risks. As the Project evolves, those risks will be reviewed periodically, and the mitigations updated as necessary to protect the environment and human health and safety.

 

In addition, UEC is aware of the importance and need to engage and consult with potentially impacted Indigenous groups, and has started that process, a process that will continue for the life of the operation. The local rights holders are very interested in the Project and have expressed concerns about both the potential impacts and the potential benefits. In the Clifton QP’s opinion, UEC’s ongoing engagement and consultation strategy and its plans for future activities are adequate but will need to be revised periodically as the Project evolves.

 

ttlogo1.jpg

17-14

 

ueclogo1.jpg

 

S-K 1300 INITIAL ASSESSMENT REPORT – ROUGHRIDER URANIUM PROJECT

REPORT DATE: NOVEMBER 5, 2024

 

18.0

CAPITAL AND OPERATING COSTS


 

The capital and operating cost estimates in this IAR is based on a 400 t/d processing throughput and was prepared by Snowden and Tetra Tech. The cost was estimated based on the mine plan and process flowsheet. All costs are reported in US dollars and estimated at an IA level with an overall accuracy range of ±50%.

 

18.1

Capital Costs


 

The total estimated initial capital cost for the design, construction, installation, and commissioning of the Roughrider Project is US$545.4 million. A summary breakdown of the initial capital cost is presented in Table 18‑1.

 

Table 181: Capital Cost Summary

 

Capital Cost Area

Value (US$ million)

Mining

96.8

Processing Plant

89.5

Infrastructure

80.1

Tailings and Waste Rock Management

19.0

Direct Cost

285.4

Indirect Cost*

99.9

Owner's Cost

60.2

Contingency

99.9

Total Initial Capital Cost

545.5

Pre-production Cost

35.6

Total Initial Capital Cost (inc. pre-production)

581.1

Note: Total may not add due to rounding.

*Includes EPCM cost of $34.0 million

 

 

This AACE Class 5 initial capital cost estimate has been prepared in accordance with the standards of AACE International. The accuracy range of the initial capital cost estimate is ±50%. This estimate was prepared with a base date of Q4 2024. The estimate does not include any escalation past this date. The cost estimate is largely based on the IA-level design of the project infrastructure and facilities described in Section 13, 14 and 15 of this report. Major sources of the cost estimate include in-house data and quotes from previous studies or potential suppliers.

 

The capital cost estimate uses US$ dollars as the base currency. When required, quotations received from vendors were converted to US$ dollars, using a currency exchange rate of CDN$1.00 to US$0.75. There are no provisions for foreign exchange fluctuations.

 

ttlogo1.jpg

18-1

 

ueclogo1.jpg

 

S-K 1300 INITIAL ASSESSMENT REPORT – ROUGHRIDER URANIUM PROJECT

REPORT DATE: NOVEMBER 5, 2024

 

18.1.1

Initial Capital Costs

 

18.1.1.1

Mining Capital Cost

 

Major components of the mining capital costs include portal development; ground freezing installation; decline, lateral and vertical development; mobile equipment; and mine infrastructure which are shown in Table 18‑2. All development from years -4 to -1 is considered initial capital costs. Once processing has started, additional equipment purchases and development to access the RRE and RRFE zones are considered sustaining capital cost.

 

Equipment capital was based on a combination of 2024 equipment benchmarks and vendor preliminary estimates. Development costs was based on a first principles model of lateral and vertical development.

 

Table 182: Initial Mining Capital Cost Summary

 

Capital Cost Area

Value (US$ million)

Surface Works

3.6

Development

23.4

Equipment Capital

21.8

Freezing

48.0

Total

96.8

Note: Numbers may not add due to rounding.

 

 

 

18.1.1.2

Processing Plant and Infrastructure Capital Costs

 

The initial capital cost breakdown for process plant is provided in Table 18‑3. The major equipment costs were prepared using the vendor quotations and/or based on the similar projects. The capital costs developed for the process plant are consistent with the process methodology described in Section 14. Allowance was applied for earthworks, electrical, plateworks, piping and instrumentation based on the information from the similar projects. Material quantities, if appropriate, were estimated from the general arrangement drawings. Any other additional cost such as spare parts, duties, freight and packaging, if appropriate, are included in the indirect cost estimation.

 

ttlogo1.jpg

18-2

 

ueclogo1.jpg

 

S-K 1300 INITIAL ASSESSMENT REPORT – ROUGHRIDER URANIUM PROJECT

REPORT DATE: NOVEMBER 5, 2024

 

Table 183: Process Plant Capital Cost Summary

 

Capital Cost Area

Value (US$ million)

Process Building

20.8

Grinding & Material Handling

4.4

Leaching & CCD

12.5

Solvent Extraction

15.9

Precipitation, Drying & Packaging

14.0

Tailings & Water Reclaim

6.0

Water Treatment Plant

8.6

Reagents

5.4

Utilities

1.9

Total

89.5

Note: Numbers may not add due to rounding.

 

 

The initial capital cost required for infrastructure includes the cost related to site preparation, roads, surface water management, power supply, power distribution, buildings, water services, accommodation camps, and utilities. It is estimated to be US$80.1 million for the project.

 

18.1.1.3

Indirect Capital Cost and Contingency

 

The indirect capital cost includes construction indirect (contractor management, temporary buildings and utilities), initial fills (grinding media, reagents, lubricants and fuel), freight and logistics (transportation, duties, brokerage, and insurance) spare parts, and allowance for EPCM, vendor’s assistance for commissioning and start up. The total indirect initial capital cost for the Project is estimated to be US$99.9 million, including US$34 million for EPCM.

 

Contingency accounts for estimating inaccuracies on the scope as defined by the engineering documents and is not intended to cover the costs of scope additions or additional field labour overtime to achieve schedule compression. The overall contingency for the Project initial capital cost is estimated to be US$99.9 million (18.3% of the total initial capital project cost).

 

18.1.1.4

Owners Cost

 

Owner’s costs are assumed by the Owner to support and execute the Project. The Owner’s costs include field staffing, field travel, general field expenses, community relations and Owner’s contingency. The total Project Owner’s cost is estimated to be US$60.2 million.

 

18.1.2

Sustaining Capital Cost

 

Sustaining capital costs incorporate project capital expenditures after the pre-production period of Year -4 to Year -1. The sustaining capital costs include capital required for replacing mine equipment, ongoing mine development, and expansion of TMF and WRMF. The total sustaining capital cost for the Project is estimated to be US$115.2 million and is presented in Table 18‑4. Closure and Reclamation costs beyond LOM are included in the Project economic analysis presented in Section 19.

 

ttlogo1.jpg

18-3

 

ueclogo1.jpg

 

S-K 1300 INITIAL ASSESSMENT REPORT – ROUGHRIDER URANIUM PROJECT

REPORT DATE: NOVEMBER 5, 2024

 

Table 184: LOM Sustaining Capital Cost Summary

 

Capital Cost Area

Value (US$ million)

Mining

59.7

TMF & WRMF

55.5

Total Sustaining Capital Cost

115.2

Note: Numbers may not add due to rounding.

 

 

18.1.3

Capital Cost Exclusions

 

The capital cost estimate presented herein is for information only and does not indicate the future capital cost estimate produced for subsequent studies.

 

The following items are not included in the capital cost estimate:

 

Force majeure,

 

Schedule delays, such as those caused by:

 

 

major scope changes,

 

 

unidentified ground conditions,

 

 

uncertainties in geotechnical or hydrogeological conditions,

 

 

labor disputes,

 

 

environmental permitting activities,

 

 

abnormally adverse weather conditions,

 

Schedule acceleration costs,

 

Cost of financing (including interests incurred during construction),

 

Corporate expenses,

 

Working or deferred capital (included in the financial model),

 

Receipt of information beyond the control of the EPCM contractors,

 

Salvage value for assets only used during construction,

 

Taxes and duties (PST, GST, and HST),

 

Land acquisition, if required,

 

Project sunk costs (exploration programs, etc.),

 

Cost of this study and future studies, including feasibility studies,

 

ttlogo1.jpg

18-4

 

ueclogo1.jpg

 

S-K 1300 INITIAL ASSESSMENT REPORT – ROUGHRIDER URANIUM PROJECT

REPORT DATE: NOVEMBER 5, 2024

 

Closure and reclamation cost, which is included in the financial model,

 

Vendor price fixing/gouging,

 

Macroeconomic factors,

 

Currency fluctuations,

 

Geopolitical tensions or war,

 

Disruptions of global supply and logistical services,

 

Pandemics or other natural disasters,

 

Royalties, which are included in financial analysis or permitting costs, except as expressly defined,

 

Forward inflation,

 

Escalations beyond the effective date of this study,

 

Growth factors in design and engineering.

 

18.2

Operating Costs


 

The Project operating cost estimate is summarized in Table 18‑5. The average LOM operating cost is estimated to be US$493.5/t material processed or US$9.72/lb U3O8 produced. All costs are reported in US dollars and estimated at an IA level with an accuracy range of ±50%. Operating costs include contingency which does not exceed 25%.

 

Table 185: Average LOM Operating Cost Summary

 

Description

LOM Cost

(US$ million)

Unit Cost

(US$/t processed)

Unit Cost

(US$/lb U3O8)

Mining

198.5

164.8

3.25

Processing

262.9

218.2

4.30

G&A and Site Services

133.1

110.5

2.18

Total LOM Operating Cost

594.5

493.5

9.72

Note: Numbers may not add due to rounding.

 

The Project operating cost estimate encompasses all recurring expenses such as personnel payroll, contractors, camp, equipment parts for maintenance and consumables, reagents, freight, and transportation. These estimates are based on budget prices from Q4 2024 and/or internal databases. The operations schedule includes two 12-hour shifts per day, with a work rotation of 2 weeks on followed by 2 weeks off.

 

18.2.1

Mining Operating Cost

 

Estimated mine operating costs presented were based on the COG 0.40% U3O8 schedule, described in Section 13.0. Mining takes place from years 1 to 9, with three years of pre-production, and are primarily composed of labour and consumables and are shown in Table 18‑6. Equipment running costs were based on internal benchmarked data.

 

ttlogo1.jpg

18-5

 

ueclogo1.jpg

 

S-K 1300 INITIAL ASSESSMENT REPORT – ROUGHRIDER URANIUM PROJECT

REPORT DATE: NOVEMBER 5, 2024

 

Table 186: Average Mining Operating Cost Summary

 

Description

LOM Cost (US$ million)

Infill Drilling

3.6

Development

60.6

Stoping

12.5

Backfill

12.3

Support Equipment

11.7

Fixed Equipment

10.0

Haulage

6.8

Labour

69.7

Freezing

11.3

Total

198.5

 

 

18.2.2

Processing Operating Cost

 

The average process operating cost is estimated at US$218.2/t material processed or US$4.30/lb of U3O8 produced, which includes expenses for manpower, reagents, operational and maintenance consumables and supplies, and power. The breakdown of these costs for nominal processing rate of 400 t/d at 2.36% U3O8 LOM head grade is presented in Table 18‑7.

 

Table 187: Average Process Operating Cost Summary

 

Description

LOM Cost

(US$ million)

Unit Cost

(US$/t processed)

Unit Cost (US$/lb U3O8)

Labour

57.9

48.0

0.95

Power

16.9

14.0

0.28

Consumables

     

Reagents

169.3

140.5

2.77

Grinding Media & Liners

3.5

2. 9

0.06

Supplies

15.3

12.7

0.25

Total

262.9

218.2

4.30

 Note: Numbers may not add due to rounding.

 

18.2.2.1

Labour

 

At a nominal processing rate of 400 t/d, the estimated average personnel cost is US$48.0/t material processed or US$0.95/lb of U3O8 produced. The estimated process personnel requirement is 79 individuals, which includes 10 staff members for management and technical support, 45 operators responsible for servicing overall operations from grinding to yellowcake packaging, including sample assaying and metallurgical laboratory personnel, and 24 personnel dedicated to equipment maintenance, including the maintenance management team.

 

ttlogo1.jpg

18-6

 

ueclogo1.jpg

 

S-K 1300 INITIAL ASSESSMENT REPORT – ROUGHRIDER URANIUM PROJECT

REPORT DATE: NOVEMBER 5, 2024

 

18.2.2.2

Power

 

The average assessed power consumption for a nominal processing rate of 400 t/d is 26.9 GWh per annum which includes power requirements for plant operations, HVAC and lighting. The annual power cost is estimated to be US$14.0/t processed or US$0.28/lb of U3O8. Using the SaskPower supplied rates for 2024 (SaskPower, 2024), the average unit power cost is derived from the unit power cost, demand cost and basic monthly charges.

 

18.2.2.3

Consumables and Supplies

 

The process costs related consumables including reagents, grinding media and liners cost are estimated to be US$143.4/t material processed or US$2.83/lb of U3O8 produced. The annual reagents consumptions for operation, water treatment, and tailings neutralization were calculated based on the laboratory test work and/or engineering experience when relevant data was not available from the test work. The grinding media and liner consumption is estimated from the Bond ball mill work and abrasion indices and in-house experience on the similar projects. The unit prices of consumables were based on budgetary quotations from the local marketing or/and similar local operations and from Tetra Tech's database or industry experience.

 

18.2.3

G&A and Site Services Cost

 

G&A costs do not relate directly to mining or processing operating costs. These costs include allowances for both on and off-site personnel and activities related to management, accounting, supply chain, human resources, community relations, and other site services such as catering, personnel transportation, medical services, health and safety personnel, environmental reporting team, waste management and any other personnel or activities required to support the operations. The average G&A and site services cost is estimated to be US$110.5 /t material processed or US$2.18/lb of U3O8 produced, based on the nominal processing rate of 400 t/d.

 

ttlogo1.jpg

18-7

 

ueclogo1.jpg

 

S-K 1300 INITIAL ASSESSMENT REPORT – ROUGHRIDER URANIUM PROJECT

REPORT DATE: NOVEMBER 5, 2024

 

19.0

ECONOMIC ANALYSIS


 

Two economic models were prepared for the Project: one includes Inferred Mineral Resources in the analysis, and the second excludes the Inferred material. Financial models were developed to estimate annual cash flows and sensitivities for the Project, with pre-tax estimates for comparison and after-tax estimates to evaluate potential returns. Sensitivity analyses examined the effects of fluctuations in uranium price, currency exchange rate and costs on economic drivers.

 

The TRS includes forward-looking information on projected mine production rates, construction schedules, uranium prices, and expected cash flows, with ROM head grades derived from a preliminary mine design. Factors such as securing necessary permits and timely access to equipment and skilled labour may cause actual results to differ significantly from the projections. This Initial Assessment is preliminary in nature and based partly on Inferred Mineral Resources, which are considered too speculative geologically to have modifying factors applied to them that would enable them to be categorized as Mineral Reserves. Thus, there is no certainty that this economic assessment will be realized. Estimates for capital and operating costs are detailed in Section 18.0 of the report.

 

19.1

Forward-looking Statements


 

This document contains “forward-looking statements” within the meaning of United States Private Securities Litigation Reform Act of 1995. This information and these statements, referred to herein as “forward-looking statements”, are made as of the date of this document. Forward-looking statements relate to future events or performance and reflect current estimates, predictions, expectations, or beliefs regarding future events and include, but are not limited to, statements with respect to:

 

The estimated amount and grade of Mineral Resources.

 

Estimates of the capital costs of constructing mine facilities and bringing a mine into production, operating the mine, sustaining capital, and the duration of payback periods.

 

The estimated amount of future production, both materials processed, and uranium recovered.

 

Estimates of operating costs, the LOM costs, net cash flow, NPV, and economic returns from an operating mine.

 

The assumptions on which the various estimates are made.

 

All forward-looking statements are based on the Tetra Tech QP’s current beliefs, various assumptions, and information to date. These assumptions are set forth throughout this TRS, and some of the principal assumptions include:

 

The presence of and continuity of uranium at estimated grades.

 

The geotechnical and metallurgical characteristics of rock conforming to sampled results.

 

The water quantities and quality available during mining operations.

 

The capacities and durability of various machinery and equipment.

 

Anticipated mining losses and dilution.

 

Metallurgical performance.

 

ttlogo1.jpg

19-1

 

ueclogo1.jpg

 

S-K 1300 INITIAL ASSESSMENT REPORT – ROUGHRIDER URANIUM PROJECT

REPORT DATE: NOVEMBER 5, 2024

 

Reasonable contingency amounts.

 

The QPs believe their assumptions are reasonable based on current information, but they may prove different with additional information. Forward-looking statements depend on other estimates. These statements involve inherent risks and uncertainties, meaning actual outcomes may differ from projections and assumptions may not reflect future realities.

 

19.2

Assumptions and Inputs


 

19.2.1

General

 

The following general assumptions and criteria form part of this analysis:

 

Real 2024 US Dollars; no inflation applied

 

Exchange rate – CDN$1.00 to US$0.75

 

Four-year construction period

 

Base Case Discount Rate – 8%

 

Base case is based on the 0.40% U3O8 cut-off grade

 

The analysis continues three years beyond the mine life to account for closure costs in the cash flow analysis

 

19.2.2

Metal Pricing

 

The Base Case results use a U3O8 price of US$85.00/lb.

 

19.2.3

Production

 

Average production statistics for mining schedule based on the 0.40% U3O8 cut-off grade are shown in Table 19‑1.

 

Table 191: LOM Average Production Statistics

 

Description

Unit

LOM Values (with

Inferred Resource)

LOM Values (without

Inferred Resource)

Mine Life

years

9

4

LOM Material Processed

‘000 t

1,205

400

Head Grade

% U3O8

2.36

2.36

LOM Uranium Recovery

%

97.5

97.5

LOM Yellowcake Produced

million lbs

61.17

20.28

 

19.2.4

Working Capital

 

Working capital is calculated using three months of accounts payable for Year 1, two months for Year 2, and one month for Year 3 and beyond. Changes in net working capital are reflected in the cash flow.

 

ttlogo1.jpg

19-2

 

ueclogo1.jpg

 

S-K 1300 INITIAL ASSESSMENT REPORT – ROUGHRIDER URANIUM PROJECT

REPORT DATE: NOVEMBER 5, 2024

 

 

 

19.2.4

Taxes, Provincial Royalties, and Depreciation

 

Taxes and depreciation for the Project were modelled using input from UEC’s tax advisor, incorporating federal and Saskatchewan provincial income taxes, as well as royalties. A federal rate of 15% and a provincial rate of 12% were applied to taxable income, which is calculated by subtracting deductions from gross revenues.

 

Deductions include operating and reclamation costs, deductions of discretionary tax attributes (cumulative Canadian exploration expenses [CEE], cumulative Canadian development expenses [CDE], non-capital losses and capital cost allowance (CCA) on capital assets) and Saskatchewan uranium royalties. All capital costs are assigned to either cumulative CDE or CCA. UEC's opening tax balances include cumulative exploration expenses (CEE) and operating losses. Up to 30% of the CDE balance can be applied in any given year. Mining equipment typically depreciates at 25% annually under Class 41.

 

Saskatchewan uranium projects face both revenue and profit royalties. An explanation of the various royalties is provided below:

 

Resource Surcharge of 3% of net revenue (where net revenue is defined as gross revenue less transportation costs directly related to the transporting of uranium to the first point of sale).

 

Basic Royalty of 5% of net revenue (as defined above), less a Saskatchewan Resource Credit of 0.75% of net revenue, for an effective royalty rate of 4.25%.

 

Tiered profit royalty, with a 10% royalty rate on the first US$21.26 (indexed to inflation) profit/kg of yellowcake, followed by 15% royalty on profits exceeding US$21.26 profit/kg.

 

Roughrider royalty with a rate of 2% NSR is also applied for the financial analysis.

 

In the tiered profit royalty system, the basic royalty and resource surcharge are not deductible when calculating profit royalties. Profits for royalty calculations are derived from net revenue minus operating, capital, and exploration costs. Revenue royalties appear in "pre-tax" cash flow, while profit royalties are treated as a tax in "post-tax" results. Federal and provincial taxes are applied at rates of 15% and 12%, respectively.

 

19.3

Economic Analysis Results


 

The production schedule with estimated annual recovered metal production based on tonnage processed, head grades, and recoveries has been incorporated into a 100% equity economic analysis model. Metal revenues are calculated from recoveries and the LOM metal production schedule, alongside forecast metal pricing. Operating costs, including mining, processing, site services, G&A, tailings management, and off-site charges, are deducted from revenues to yield annual operating cash flow. Initial and sustaining capital costs, along with closure and reclamation costs, are accounted for annually throughout the mine's life, deducted from operating cash flow to determine net cash flow before taxes. Initial capital costs include pre-production costs, while sustaining capital costs cover ongoing mining, processing, and tailings management facility expansions, including equipment replacement. Pre-production construction period is estimated to be four years. NPV and IRR reported in this section are estimated at the start of this four-year period.

 

Table 19‑2 provides a summary of the LOM cash flow.

 

ttlogo1.jpg

19-3

 

ueclogo1.jpg

 

S-K 1300 INITIAL ASSESSMENT REPORT – ROUGHRIDER URANIUM PROJECT

REPORT DATE: NOVEMBER 5, 2024

 

Table 192: Cash Flow Summary

 

Description

Unit

Values (with Inferred

Resource)

Values (without

Inferred Resource)

Total Revenue from Sales

US$ million

5,199.3

1,723.7

Transportation Cost

US$ million

(17.2)

(5.7)

Roughrider Royality

US$ million

(103.6)

(34.4)

SK Gross Revenue Royality

US$ million

(375.7)

(124.6)

Net Revenue

US$ million

4,702.7

1,559.1

Operating Cost

US$ million

(594.5)

(254.8)

Operating Cash Flow

US$ million

4,108.2

1,304.3

Initial Capital Cost (inc. pre-production)

US$ million

(580.9)

(503.7)

Sustaining Capital Cost (inc. closure)

US$ million

(161.5)

(83.8)

Pre-tax Cash Flow (undiscounted)

US$ million

3,365.7

716.8

All in Sustaining Cost (AISC)

US$ million

20.48

24.81

SK Profit Royality

US$ million

(550.8)

(123.4)

Corporate Tax

US$ million

(774.4)

(181.6)

Post-tax Cash Flow (undiscounted)

US$ million

2,040.4

411.8

Post-tax Cash Flow (discounted @ 8%)

US$ million

946.2

161.7

Note: Sums may not add due to rounding

 

The post-tax annual cash flow and cumulative cash flow with and without Inferred Mineral Resources are presented in Figure 19‑1 and Figure 19‑2, respectively.

 

fig19_01.jpg

 

Figure 191: Post-Tax Annual and Cumulative Cash Flow (with Inferred Resources) (Tetra Tech, 2024)

 

ttlogo1.jpg

19-4

 

ueclogo1.jpg

 

S-K 1300 INITIAL ASSESSMENT REPORT – ROUGHRIDER URANIUM PROJECT

REPORT DATE: NOVEMBER 5, 2024

 

fig19_02.jpg

 

Figure 192: Post-Tax Annual and Cumulative Cash Flow (without Inferred Resources) (Tetra Tech, 2024)

 

The financial results for the base case with and without the Inferred Mineral Resources are presented in Table 19‑3 and Table 19‑4, respectively. Table 19‑5 and Table 19‑6 show the annual cash flow with and without the Inferred Mineral Resources, respectively.

 

Table 193: Summary of Pre-Tax Economic Analysis (with Inferred Resources)

 

Description

Unit

Pre-tax

Post-tax

Undiscounted Net Cash Flow

US$ million

3,365.7

2,040.4

NPV @ 6% Discount Rate

US$ million

1,944.5

1,144.3

NPV @ 8% Discount Rate

US$ million

1,628.8

946.2

NPV @ 10% Discount Rate

US$ million

1,367.5

782.6

IRR

%

52.7

40.0

Payback Period

years

1.2

1.4

 

Table 194: Summary of Pre-Tax Economic Analysis (without Inferred Resources)

 

Description

Unit

Pre-tax

Post-tax

Undiscounted Net Cash Flow

US$ million

716.8

411.8

NPV @ 6% Discount Rate

US$ million

413.7

209.0

NPV @ 8% Discount Rate

US$ million

342.1

161.7

NPV @ 10% Discount Rate

US$ million

281.1

121.8

IRR

%

29.7

19.8

Payback Period

years

1.7

2.0

 

ttlogo1.jpg

19-5

 

ueclogo1.jpg

 

S-K 1300 INITIAL ASSESSMENT REPORT – ROUGHRIDER URANIUM PROJECT

REPORT DATE: NOVEMBER 5, 2024

 

Table 195: Summary of LOM Annual Cash Flow (with Inferred Resources)

 

Description

Unit

LOM

-4

-3

- 2

-1

1

2

3

4

5

6

7

8

9

10

11

12

Mineralized Material Processed

kt

1,205

-

-

-

-

113

148

150

150

149

150

149

160

37

-

-

-

Feed Grade

% U3O8

2.36

-

-

-

-

3.27

2.85

1.59

2.55

2.20

3.51

1.71

1.88

0.75

-

-

-

Yellowcake Recovered

Mlbs

61.2

-

-

-

-

7.92

9.05

5.13

8.22

7.07

11.29

5.46

6.44

0.60

-

-

-

Net Revenue from Sales

US$ million

5,199.3

-

-

-

-

673.0

769.4

435.8

698.4

600.7

959.4

463.8

547.5

51.3

-

-

-

Transportation Cost

US$ million

17.2

-

-

-

-

2.2

2.6

1.4

2.3

2.0

3.2

1.5

1.8

0.2

-

-

-

Roughrider Royality

US$ million

103.6

-

-

-

-

13.4

15.3

8.7

13.9

12.0

19.1

9.2

10.9

1.0

-

-

-

SK Gross Revenue Royality

US$ million

375.7

-

-

-

-

48.6

55.6

31.5

50.5

43.4

69.3

33.5

39.6

3.7

-

-

-

Net Revenue

US$ million

4,702.7

-

-

-

-

608.7

696.0

394.2

631.7

543.3

867.8

419.5

495.2

46.4

-

-

-

Operating Cost

                                   

Mining

US$ million

198.5

-

-

-

-

27.0

28.9

23.1

25.2

27.3

20.5

17.4

24.6

4.4

-

-

-

Processing

US$ million

262.9

-

-

-

-

26.9

32.4

31.6

32.5

32.1

33.4

31.6

33.5

9.0

-

-

-

G&A

US$ million

133.1

-

-

-

-

15.5

17.1

15.5

17.1

15.5

15.5

15.5

15.1

6.2

-

-

-

Total Operating Cost

US$ million

594.5

-

-

-

-

69.4

78.4

70.3

74.8

74.9

69.4

64.5

73.2

19.6

-

-

-

Capital Cost

                                   

Initial

US$ million

545.4

25.0

107.9

172.5

239.9

-

-

-

-

-

-

-

-

-

-

-

-

Pre-production

US$ million

35.6

0.5

7.6

13.4

14.1

-

-

-

-

-

-

-

-

-

-

-

-

Sustaining

US$ million

115.2

-

-

-

-

39.7

18.6

8.0

26.0

22.5

0.0

0.0

0.4

-

-

-

-

Closure

US$ million

46.3

-

2.3

2.3

2.3

2.3

2.3

2.3

2.3

2.3

2.3

2.3

2.3

7.0

9.3

2.3

2.3

Working Capital

US$ million

0.0

0.0

0.0

0.0

0.0

17.3

-4.3

-7.2

0.4

0.0

-0.5

-0.4

0.7

-4.5

-1.6

0.0

0.0

Total Capital Cost

US$ million

742.5

25.5

117.8

188.3

256.3

59.3

16.7

3.1

28.7

24.8

1.9

1.9

3.5

2.5

7.6

2.3

2.3

Cash Flow

                                   

Pre-tax Cashflow

US$ million

3,365.7

-25.5

-117.8

-188.3

-256.3

480.0

600.8

320.9

528.2

443.6

796.5

353.1

418.5

24.2

-7.6

-2.3

-2.3

SK Profit Royality

US$ million

550.8

-

-

-

-

0.0

89.5

51.7

84.9

71.4

127.3

56.8

67.2

2.0

-

-

-

Corporate Tax

US$ million

774.4

-

-

-

-

58.6

122.0

57.4

113.4

95.0

172.0

73.5

90.4

2.1

-4.1

-3.2

-2.5

Post-tax Cashflow

US$ million

2,040.4

-25.5

-117.8

-188.3

-256.3

421.4

389.3

211.8

329.9

277.2

497.2

222.9

260.9

20.2

-3.5

0.9

0.2

 

ttlogo1.jpg

19-6

 

ueclogo1.jpg

 

S-K 1300 INITIAL ASSESSMENT REPORT – ROUGHRIDER URANIUM PROJECT

REPORT DATE: NOVEMBER 5, 2024

 

Table 196: Summary of LOM Annual Cash Flow (without Inferred Resources)

 

Description

Unit

LOM

-4

-3

- 2

-1

1

2

3

4

5

6

7

Mineralized Material Processed

kt

400

-

-

-

-

83

108

108

101

-

-

-

Feed Grade

% U3O8

2.36

-

-

-

-

2.98

2.23

1.87

2.51

-

-

-

Yellowcake Recovered

Mlbs

20.3

-

-

-

-

5.31

5.19

4.34

5.45

-

-

-

Net Revenue from Sales

US$ million

1,723.7

-

-

-

-

451.3

440.9

368.5

463.0

-

-

-

Transportation Cost

US$ million

5.7

-

-

-

-

1.5

1.5

1.2

1.5

-

-

-

Roughrider Royality

US$ million

34.4

-

-

-

-

9.0

8.8

7.3

9.2

-

-

-

SK Gross Revenue Royality

US$ million

124.6

-

-

-

-

32.6

31.9

26.6

33.5

-

-

-

Net Revenue

US$ million

1,559.1

-

-

-

-

408.2

398.8

333.3

418.7

-

-

-

Operating Cost

                         

Mining

US$ million

102.3

-

-

-

-

38.5

21.9

24.1

17.7

-

-

-

Processing

US$ million

93.2

-

-

-

-

20.8

24.6

24.3

23.5

-

-

-

G&A

US$ million

59.3

-

-

-

-

14.4

16.0

14.4

14.6

-

-

-

Total Operating Cost

US$ million

254.8

-

-

-

-

73.7

62.4

62.8

55.8

-

-

-

Capital Cost

                         

Initial

US$ million

469.4

20.4

106.0

145.3

197.7

-

-

-

-

-

-

-

Pre-production

US$ million

34.3

0.5

7.1

12.6

14.1

-

-

-

-

-

-

-

Sustaining

US$ million

58.3

-

-

-

-

21.8

26.0

8.2

2.3

-

-

-

Closure

US$ million

25.5

-

1.9

1.9

1.9

1.9

1.9

1.9

1.9

6.4

3.8

1.9

Working Capital

US$ million

0.0

0.0

0.0

0.0

0.0

18.4

-8.0

-5.2

-0.6

-4.7

0.0

0.0

Total Capital Cost

US$ million

587.5

20.9

115.1

159.8

213.7

42.1

19.9

4.9

3.6

1.7

3.8

1.9

Cash Flow

                         

Pre-tax Cashflow

US$ million

716.8

-20.9

-115.1

-159.8

-213.7

292.4

316.4

265.6

359.3

-1.7

-3.8

-1.9

SK Profit Royality

US$ million

123.4

-

-

-

-

0.0

24.7

42.8

55.9

-

-

-

Corporate Tax

US$ million

181.6

-

-

-

-

15.2

66.5

47.5

72.2

-8.4

-6.5

-5.0

Post-tax Cashflow

US$ million

411.8

-20.9

-115.1

-159.8

-213.7

277.2

225.2

175.2

231.2

6.7

2.7

3.1

 

ttlogo1.jpg

19-7

 

ueclogo1.jpg

 

S-K 1300 INITIAL ASSESSMENT REPORT – ROUGHRIDER URANIUM PROJECT

REPORT DATE: NOVEMBER 5, 2024

 

19.3.1

Sensitivity Analysis

 

The Tetra Tech QP analyzed the sensitivity of NPV and IRR to key variables by adjusting each between -30% and +30% in 10% increments, based on the 2024 IAR Base Case. Variables included yellowcake price, head grade, capital costs, operating costs, and exchange rate. The analyses are presented graphically for post-tax NPV and IRR, showing that sensitivity is highest for the exchange rate, followed by head grade and uranium price. Sensitivity to metal price is comparable to that of metal grade. Sensitivities to NPV and IRR are presented in Figure 19‑3 to Figure 19‑6, respectively.

 

fig19_03.jpg

 

Figure 193: Sensitivity Analysis of Post-Tax NPV (with Inferred Resources) (Tetra Tech, 2024)

 

fig19_04.jpg

 

Figure 194: Sensitivity Analysis of Post-Tax IRR (with Inferred Resources) (Tetra Tech, 2024)

 

ttlogo1.jpg

19-8

 

ueclogo1.jpg

 

S-K 1300 INITIAL ASSESSMENT REPORT – ROUGHRIDER URANIUM PROJECT

REPORT DATE: NOVEMBER 5, 2024

 

fig19_05.jpg

 

Figure 195: Sensitivity Analysis of Post-Tax NPV (without Inferred Resources) (Tetra Tech, 2024)

 

fig19_06.jpg

 

Figure 196: Sensitivity Analysis of Post-Tax IRR (without Inferred Resources) (Tetra Tech, 2024)

 

ttlogo1.jpg

19-9

 

ueclogo1.jpg

 

S-K 1300 INITIAL ASSESSMENT REPORT – ROUGHRIDER URANIUM PROJECT

REPORT DATE: NOVEMBER 5, 2024

 

20.0

ADJACENT PROPERTIES


 

The Project lies in the eastern Athabasca Basin, a region with a rich history of uranium mining and processing. Orano/Denison’s active McLean Lake Operation and Cameco’s Rabbit Lake Operation (currently under care and maintenance) are notable nearby facilities, both within 30 km of Roughrider. Adjacent uranium projects include Orano/Denison’s Midwest Project, Denison/Korea Waterbury Lake Uranium Limited Partnership’s (KWULP) Waterbury Project, and Cameco’s Dawn Lake Project (Figure 20-1).

 

fig20_01.jpg

 

Figure 201: Plan View of the Roughrider Deposit Area of the Eastern Athabasca (SRK, 2023)

 

ttlogo1.jpg

20-1

 

ueclogo1.jpg

 

S-K 1300 INITIAL ASSESSMENT REPORT – ROUGHRIDER URANIUM PROJECT

REPORT DATE: NOVEMBER 5, 2024

 

21.0

OTHER RELEVANT DATA AND INFORMATION


 

A Strengths, Weaknesses, Opportunities and Threats (“SWOT”) analysis has been conducted for the Project. The SWOT analysis helps identify, at the conceptual level, the potential opportunities and key areas for future focus during the next phase of the study.

 

Strengths:

 

Existing land access to the project site

 

Proximity of Provincial Highway 905

 

Proximity of the Points North Landing Airstrip

 

Existing 138 kV power transmission line nearby

 

Abundant water source

 

Adequate land space to locate site infrastructure within proximity

 

Mild terrain

 

Under SaskTel cellular network coverage

 

Known uranium extraction process common to other uranium processing plants in operation

 

Robust project economics at current uranium price

 

Weaknesses:

 

Underground mine is subject to groundwater inflow

 

Stringent effluent treatment standards due to presence of water bodies nearby

 

Liners are required for stockpiles and TMF due to ground permeability

 

Typical long, cold winter in the northern Prairies

 

Low population and low availability of contractor services in the region

 

Long haul distance for supplies from Saskatoon

 

Logistics may be hindered by winter conditions

 

More sophisticated engineering, construction and operations to comply with radiation safety

 

Insufficient engagement and consultation with local Indigenous and non-Indigenous communities could impact project timing and costs and possibly the level of regulatory process

 

A failure to control groundwater potentially contaminated by the mining fluids could greatly increase costs (pumping, water treatment and possible additional wells). It could also affect decommissioning timeliness due to the effort required to bring fluids under control or to bring water quality back into compliance with water quality standards

 

ttlogo1.jpg

21-1

 

ueclogo1.jpg

 

S-K 1300 INITIAL ASSESSMENT REPORT – ROUGHRIDER URANIUM PROJECT

REPORT DATE: NOVEMBER 5, 2024

 

Opportunities:

 

Improving public acceptance of nuclear energy over carbon-based energy production

 

Increasing uranium demand due to global de-carbonization and reduction of carbon-based energy production

 

Negotiate with SaskPower for lower electricity rates

 

Potential sharing of resources and supplies with the nearby operation

 

Potential toll milling options at the nearby operation

 

Use electric mining equipment to reduce underground mine ventilation, diesel consumption and carbon footprint

 

Economic opportunities for indigenous communities in the region via direct employment and contracting services

 

While it can be considered a burden, there is considerable opportunity in the adoption of the integrated management system platforms for addressing safety and control areas of the Project as defined by the CNSC and other regulators. The opportunity is that it allows an orderly and defensible development of mitigations and the reporting of results.

 

Good community relationships, including potential agreements, is an opportunity to develop good relations with local communities, which in turn will benefit several areas including staffing, environmental protection, acquiring services, public opinion, and regulatory approvals.

 

Threats:

 

Increasing capital and labour costs

 

Construction delays

 

Unknowns in geotechnical conditions

 

Limited skilled labour in the region

 

Permitting timeline

 

Competition for labour and resources from oil sands and other mines

 

ttlogo1.jpg

21-2

 

ueclogo1.jpg

 

S-K 1300 INITIAL ASSESSMENT REPORT – ROUGHRIDER URANIUM PROJECT

REPORT DATE: NOVEMBER 5, 2024

 

22.0

INTERPRETATION AND CONCLUSIONS


 

This section contains forward-looking information related to Mineral Resources and the LOM plan for the Project. The material factors that could cause actual results to differ materially from the conclusions, estimates, designs, forecasts or projections in the forward-looking information include any significant differences from one or more of the material factors or assumptions that were set forth in this sub-section including geological and grade interpretations and controls and assumptions and forecasts associated with establishing the prospects for economic extraction; grade continuity analysis and assumptions; Mineral Resource model tonnes and grade and mine design parameters; prevailing economic conditions, commodity markets and prices; environmental, social or government approvals.

 

The Project is an Exploration Stage Property 100% owned by UEC. The area around the Project is a well-developed mining area close to necessary infrastructure and resources.

 

22.1

Geology and Mineral Resources


 

The Project deposits are considered to be example of unconformity-related uranium deposits. Resource estimation domains were designed based on a combination of the mineralization and structural models. The UMR QP considers that the knowledge of the deposit setting, lithologies, structural controls on mineralization, and the mineralization style and setting, is sufficient to support the MRE to the level of classification assigned.

 

The UMR QP has considered the relevant factors and MSO shapes, described in Section 11.4, as a guide to identify those portions of the model to have prospects for economic extraction and select an appropriate resource reporting cut-off grade for reporting of the MRE. The MRE comprises 699 kt @ 1.81% U3O8 for 27.86 Mlbs of U3O8 in the Indicated Mineral Resource category and 620 kt @ 2.45% U3O8 for 33.38 Mlbs of U3O8 in the Inferred Mineral Resource category. The MRE is reported as diluted within the MSO shapes, considering a 0.3% U3O8 cut-off.

 

The UMR QP believes that the level of uncertainty has been adequately reflected in the classification of Mineral Resources for the Project. Notwithstanding this, the MRE presented in Section 11 may be materially impacted by any future changes in the break-even cut-off grade, which may result from changes in mining method selection, mining costs, processing recoveries and costs, metal price fluctuations, or significant changes in geological knowledge.

 

22.2

Metallurgy and Process


 

Between 2008 and 2013, SGS Canada conducted four phases of test work on uranium recovery at the Roughrider deposits, encompassing preliminary tests, extensive metallurgical testing, and variability tests. In 2013, Rio Tinto carried out a fifth phase after acquiring the prospect. The Project was acquired by UEC in 2022, but no further testing has been conducted since.

 

In general, the test program found the samples to be soft, with an average Bond Ball Mill Work Index of 10.6 kWh/t. Leaching test results showed that the mineralization is suitable for uranium extraction via atmospheric acid leaching. The SX tests revealed that organic extraction followed by a strong acid strip produced yellowcake that met refinery specifications. Tailings neutralization and effluent treatment tests, using standard approaches, indicated that effluent quality met MDMER guidelines.

 

ttlogo1.jpg

22-1

 

ueclogo1.jpg

 

S-K 1300 INITIAL ASSESSMENT REPORT – ROUGHRIDER URANIUM PROJECT

REPORT DATE: NOVEMBER 5, 2024

 

The process plant is designed to operate at an average throughput of 400 t/d, using a single-stage SAG circuit followed by sulfuric acid and hydrogen peroxide leaching at 50°C. The PLS is produced using counter-current decantation and clarification. SX removes impurities and enriches uranium concentration. Yellowcake is precipitated from the enriched solution using hydrogen peroxide and magnesium oxide, then undergoes solid-liquid separation, drying at 450°C, and is packaged in barrels for shipment. Tailings and waste process solutions are neutralized and stored in the TMF. Reclaimed water is treated in a water treatment plant and monitored for environmental compliance before discharge.

 

22.3

Mining Methods


 

There is no Mineral Reserve estimate. The Initial Assessment was completed assuming a decline would be suitable to access the deposits. A longhole transverse retreat mining method was assumed for the three mining areas. The mining rate was assumed at 400 t/d with mill feed being hauled to surface stockpiles. Various cut-off grades were assessed, from a breakeven of 0.3% to 0.5% U3O8. For the Initial economic analysis, a COG of 0.4% U3O8 was assumed.

 

The initial assessment cashflow includes Inferred Mineral Resource which by definition of SEC is speculative geologically. Other potential risks might be contributed to the limited ventilation, geotechnical, backfill, and hydrogeological studies on the project.

 

22.4

Infrastructure


 

The Roughrider project site is situated 7 km north of Points North Landing in northern Saskatchewan, Canada. While currently lacking a permanent power supply, plans include connecting to the provincial grid and installing backup diesel generators. Key infrastructure will feature an underground mine, material transport system, processing facilities, water treatment, and a waste management facility. The TMF will handle tailings and reclaim water for environmental compliance.

 

22.5

Environmental


 

From 2012 to 2014, the ADEX EIA included extensive baseline investigations. Despite this, regulators have requested additional studies to confirm previous findings. A new baseline program initiated in 2023 supports the Project's environmental assessment and licensing. Water quality impacts are crucial, influencing costs. The mine will need to discharge treated effluent. Air quality, radiation, and future groundwater monitoring are essential. The design of water-related infrastructure must include erosion and sediment control. Terrestrial and aquatic programs identified various species, consistent with earlier surveys. The UN Declaration on the Rights of Indigenous Peoples Act (2021) emphasizes free, prior, and informed consent (FPIC). UEC has re-engaged with neighboring communities to align with the Declaration's goals. Radiological and environmental controls will be implemented, and a Radiation Protection Program will be developed. Governance risks involve establishing ESG frameworks and complying with CNSC regulations. Continuous stakeholder scrutiny is expected. Future assessments will consider cumulative impacts and social enhancement opportunities.

 

22.6

Capital and Operating Costs


 

The total estimated initial capital cost for the design, construction, installation and commissioning of the Project is US$545.5 million. The capital cost estimate is consistent with an AACE Class 5 estimate with the expected accuracy within ±50%. The project contingency is estimated to be 18.3% of the total capital cost. The LOM sustaining capital cost is estimated at US$115.2 million.

 

ttlogo1.jpg

22-2

 

ueclogo1.jpg

 

S-K 1300 INITIAL ASSESSMENT REPORT – ROUGHRIDER URANIUM PROJECT

REPORT DATE: NOVEMBER 5, 2024

 

The average LOM operating cost, including mining, processing, G&A and site services costs, is estimated at US$493.5/t processed, or US$9.72/lb yellowcake recovered in the concentrate. Operating costs include contingency which does not exceed 25%.

 

22.7

Economic Analysis


 

The Project has been evaluated using a long-term U3O8 market price of $85/lb. The base case post-tax cash flow for the mill feed with the Inferred Mineral Resources evaluates to a NPV of US$946 million, an IRR of 40% and payback period of 1.4 years when discounted at 8% per year. The base case post-tax cash flow for the mill feed without the Inferred Mineral Resources evaluates to a NPV of US$162 million, an IRR of 19.8% and payback period of 2.0 years when discounted at 8% per year.

 

22.8

Risks and Uncertainties


 

High-grade uranium deposits are sensitive to variations in volume; thus, if the interpretation of the constraining estimation domains change, the contained metal content is likely to vary significantly.

 

Uranium data is nearly exhaustively sampled at all data locations but, there are significantly less density measurements. The lack of data increases uncertainty in the estimation of density across the deposit, equating to increased uncertainty in estimated tonnage. The risk is partially offset by the regression formula to impute missing density measurement or assign density values to estimated blocks.

 

The level of uncertainty has been adequately reflected in the classification of Mineral Resources. Notwithstanding this, the MRE presented in herein may be materially impacted by any future changes in the break-even cut-off grade, which may result from changes in mining method selection, mining costs, processing recoveries and costs, metal price fluctuations, or significant changes in geological knowledge.

 

The initial assessment cashflow includes Inferred Mineral Resource which by definition of SEC is speculative geologically. Other potential risks might be contributed to the limited ventilation, geotechnical, backfill, and hydrogeologic studies on the project.

 

There is an ongoing risk to the Project of connection between future mine workings and the Athabasca Sandstone, unconformity, or the overlying surface water system. The risk of hydraulic connection has been investigated to some degree at RRE and RRFE deposits through packer testing and VWP installation but not at RRW deposit. Therefore, further hydrogeological test work is required at RRW, likely included in future resource or geotechnical drill programs in this area.

 

The risk of water impacts on the Project have not been fully evaluated to date. Baseline groundwater and surface water monitoring (level, flow and chemistry) will need to be restarted and expanded to adequately confirm baseline conditions. Early data from this program should inform regional characterization studies and a water impact assessment. These studies should include the area around the potential tailings storage facility area. Groundwater sampling to date may have been impacted by cement grout in exploration holes, calling into question their representativeness. This will also need further investigation and likely additional confirmatory groundwater sampling.

 

Any water that is discharged by the Project to the environment will require treatment through a water treatment plant. Only limited initial work has been done by RTCU on the water balance to define water disposal and treatment requirements and this will require further work as the Project progresses.

 

ttlogo1.jpg

22-3

 

ueclogo1.jpg

 

S-K 1300 INITIAL ASSESSMENT REPORT – ROUGHRIDER URANIUM PROJECT

REPORT DATE: NOVEMBER 5, 2024

 

The current geotechnical assessment is preliminary in nature and further data and study are required to understand the mine scale fault structures, rock mass characterization, and potential hydrogeological conditions and connectivity.

 

The test work at SGS and SRC were conducted on the samples extracted from nine drillholes at various depths and spatial intervals throughout RRW, RRE and RRFE are not certain to be representative of the final total mineralized package and further sampling and metallurgical test programs may be required as the resource definition and mine design advance.

 

Insufficient engagement and consultation with local Indigenous and non-Indigenous communities could impact project timing and costs and possibly the level of regulatory process

 

A failure to control groundwater potentially contaminated by the mining fluids could greatly increase costs (pumping, water treatment and possible additional wells). It could also affect decommissioning timeliness due to the effort required to bring fluids under control or to bring water quality back into compliance with water quality standards.

 

This Initial Assessment is preliminary in nature and based partly on Inferred Mineral Resources, which are considered too speculative geologically to have modifying factors applied to them that would enable them to be categorized as Mineral Reserves. Thus, there is no certainty that this economic assessment will be realized.

 

ttlogo1.jpg

22-4

 

ueclogo1.jpg

 

S-K 1300 INITIAL ASSESSMENT REPORT – ROUGHRIDER URANIUM PROJECT

REPORT DATE: NOVEMBER 5, 2024

 

23.0

RECOMMENDATIONS


 

23.1

Introduction


 

This TRS presents an initial assessment to support the disclosure of Mineral Resources, according to Item 17 Code for Federal Regulations Parts 229, 230, 239 and 249 of S-K 1300, specifically Section II, E, 4.

 

The QPs recommend UEC focus on advancing development of the Roughrider Project as described in the IAR by completing the data collection required to conduct a Pre-Feasibility Study (PFS). Furthermore, it is recommended to continue with the Project permitting process, planning and scheduling and sourcing financing.

 

23.1.1

Mineral Resource Estimate

 

The UMR QP recommendations relating to the Mineral Resource estimate are summarized below:

 

Mineral Resources are uncertain because of variability at all scales and sparse sampling. Geostatistical techniques can be used to quantify the uncertainty and the expected reduction of uncertainty in resources as a function of data spacing. UMR recommends that a drillhole spacing study be completed on the deposit to better inform drillhole spacing for Mineral Resource classification. Use of geostatistical techniques to quantify the uncertainty of the deposit to inform decisions as it relates to mining evaluation, planning, and extraction. The uncertainty associated with the volume, grade, and density variables of the deposit are to be the focus of the study, as these variables define the overall metal content of the deposit, the largest input to project economics.

 

Creating and validating a site-specific grade-gamma regression to impute the grade values in areas of low-recovery.

 

Additional geologic investigations and studies should be completed to confirm the interpretation of continuity in the high-grade vein-like domains. Denison’s Tthe Heldeth Túé (THT) Deposit is located only a few hundred metres away from the Roughrider Deposit and the high-grade mineralization within THT is interpreted differently and more simply.

 

The estimated costs for the recommended tests listed above are estimated to be approximately US$300,000.

 

UEC has planned resource upgrade drilling to upgrade Inferred Mineral Resources at RRE and RRW to Indicated Mineral Resources. Approximately 85 drill holes are required to improve the confidence of the Mineral Resource estimate and bring the majority of the resources into the Indicated category. The UMR QP reviewed the drill program proposed by UEC and is of the opinion that it is a reasonable approach to advancing the project. The cost of completing this work is approximately US $6.43 million (Table 23‑1) with most of the planned expenses to be incurred in 2025.

 

ttlogo1.jpg

23-1

 

ueclogo1.jpg

 

S-K 1300 INITIAL ASSESSMENT REPORT – ROUGHRIDER URANIUM PROJECT

REPORT DATE: NOVEMBER 5, 2024

 

Table 231: Cost Estimate for Drilling Recommendations

 

Item

Budget (US$ Million)

Personnel

0.60

Field Equipment Costs

0.10

Analysis

0.20

Travel and Transport

0.10

Miscellaneous

0.01

Total Direct Costs

1.02

Diamond Drilling

4.80

Camp Costs

0.51

Other Contractor

0.10

Total Contractor Costs

5.41

Total Proposed Budget

6.43

Note: Total may not add due to rounding.

 

 

23.1.2

Mining

 

To advance the mining study to a PFS level, additional work is required which includes:

 

Ventilation study: A ventilation simulation using Ventsim or similar should be completed to confirm airflow requirements in each area of the mine

 

Geotechnical study: Additional geotechnical drilling (included in the resource drilling) and analysis should be completed to confirm support requirements

 

Mine method study:  Consider cut and fill mining in RRW above 240 masl just below the unconformity layer

 

Backfill study: A backfill study should be completed to confirm suitability to use mine waste in a paste rockfill backfill

 

Hydrogeological: A hydrogeological study should be completed with the designed mine workings to more accurately estimate mine water inflows with and without freezing

 

Freezing study trade-off: A study should be completed looking at different freezing options including directional surface freezing from a pad, vertical surface freezing from a dike around the deposits, underground freezing and freezing alternatives including higher pumping capacities and grouting

 

Due to the complex geological conditions manual stope design utilizing the optimized stope shapes will help reduce planned dilution and increase mining recovery

 

Mining cost estimates: Mining capital and operating costs should be confirmed with vendor quotes where possible

 

Overburden depth analysis and other earthworks necessary to determine the portal and surface work cost estimate.

 

Consider accelerating mining rate to expose higher grade mineralized material earlier in the mine life and stockpile the low-grade mineralized material to be processed later.

 

ttlogo1.jpg

23-2

 

ueclogo1.jpg

 

S-K 1300 INITIAL ASSESSMENT REPORT – ROUGHRIDER URANIUM PROJECT

REPORT DATE: NOVEMBER 5, 2024

 

The estimated costs for the recommended tests listed above are estimated to be approximately US$2.33 million and a breakdown is provided in Table 23‑2.

 

Table 232: Cost Estimate for Mining Recommendations

 

Item

Budget (US$ Million)

Ventilation study

0.05

Geotechnical study

1.00

Mine design optimization

0.05

Schedule optimization

0.03

Backfill study

0.50

Hydrogeological study

0.25

Freezing study

0.10

Mining Cost estimate

0.10

Surface mine cost estimate

0.25

Total

2.33

Note: Total may not add due to rounding.

 

 

23.1.3

Metallurgy and Processing

 

The Tetra Tech QP recommends conducting additional metallurgical tests. These tests should focus on samples that accurately represent the geological and metallurgical characteristics of the resource, as defined by the resource model and the mine plan. This approach aims to ensure that the testing reflects the actual conditions and variability of the deposit based on mine plan, which can lead to more accurate predictions of processing performance and recovery rates. Further testing will need to be conducted to confirm and optimize the selected processing equipment and reagent dosage.

 

The following test work is recommended:

 

Geometallurgical and variability sample selection, preparation and characterization

 

Additional comminution characterization (JK drop weight test) is recommended to optimize the single-stage SAG mill sizing.

 

Recommended to conduct pre-treatment of mineralized material using gravity separation and/or sorting test to understand the technical feasibility of pre-concentration using physical methods.

 

Additional leaching test work is suggested with the use of hydrogen peroxide as oxidant as opposed to sodium chlorate to optimize the acid and oxidant requirements in leaching.

 

Laboratory scale vat leach tests on coarse concentrate as well as on core sections using Caro’s acid (H2SO5) lixiviant to get insight into the potential use of low cost in-situ, vat and heap leach.

 

A bulk pilot level leach test on representative overall composites of each deposit will be required to generate leach solutions and leach residue to establish downstream process data.

 

Conduct pilot testing on SX, yellowcake precipitation, tailings neutralization and water treatment using the bulk leach test to further refine the process performance and reagent consumptions.

 

ttlogo1.jpg

23-3

 

ueclogo1.jpg

 

S-K 1300 INITIAL ASSESSMENT REPORT – ROUGHRIDER URANIUM PROJECT

REPORT DATE: NOVEMBER 5, 2024

 

Static and dynamic thickening tests on the leach feed, residue and tailings including rheology tests to quantify underflow densities and thickener unit area.

 

Environmental testing of the tailings including detailed low level elemental analysis and particle size analysis, acid-base accounting measurement, aging test and shake flask extraction test. Humidity cell tests should also be included.

 

Conduct test work related to alternative technologies for CCD (High-density thickeners vs pressure filters vs belt filters) and clarifications (sand filter vs dynamic vs pin bed clarifiers).

 

Conduct trade-off study for centrifuge versus belt filters for dewatering gypsum slurry and final yellowcake slurry.

 

Conduct trade-off study relating to bulk sulphuric acid supply vs onsite acid plant.

 

The estimated costs for the recommended tests listed above are estimated to be approximately US$500,000.

 

23.1.4

Infrastructure

 

Geotechnical investigations of surface infrastructure facilities.

 

Perform a logistics study for the Project.

 

Hydrology and overall site water management study.

 

Early planning and initiating conversations with the government and nearby potential mining projects for infrastructure sharing.

 

Planning for the access road and site pre-development and construction activities.

 

Water sources required for processing, especially for leaching, should be further investigated.

 

For this study, it is assumed that the local electricity network should be capable of providing the power requirement for the proposed mining and processing. Further studies are needed to determine the network capacity and upgrading required if needed.

 

The costs associated to the items listed above are estimated to be approximately US$1,500,000.

 

23.1.5

Environmental

 

Initiation of environmental and social studies to inform infrastructure site selection, address impact assessments and permitting requirements and specifically any negotiations with interested and affected parties. Furthermore, it is important to note the importance of the criticality of advancing the environmental and social assessment and CSNC licensing for the Project that may require between 48 and 72 months to complete.

 

The estimated cost for the environmental study (excluding environmental assessment and permitting) is estimated to be US$2 million.

 

23.1.6

Tailings Management Facility

 

To advance the TMF facility design from IAR to PFS level, the following steps are recommended: conduct laboratory testing, assess foundation conditions, characterize tailings geotechnically and geochemically, identify borrow sources, refine tailings deposition design using laboratory parameters, and update water management and seepage control structures considering subsurface conditions and laboratory testing plans.

 

The costs associated to the items listed above are estimated to be approximately US$2,500,000.

 

ttlogo1.jpg

23-4

 

ueclogo1.jpg

 

S-K 1300 INITIAL ASSESSMENT REPORT – ROUGHRIDER URANIUM PROJECT

REPORT DATE: NOVEMBER 5, 2024

 

23.2

Cost Estimate for Recommendations


 

The following budget is proposed for work carrying through to the completion of PFS level design Table 23‑3.

 

Table 233: Cost Estimate for Recommendations

 

Item

Budget (million US$)

Geology & Mineral Resource

6.7

Metallurgy

0.5

Mining

2.3

Infrastructure

1.5

TMF

2.5

Pre-feasibility Study

3.0

Environmental Assessment

2.0

Total

18.5

Note: Total may not add due to rounding.

 

ttlogo1.jpg

23-5

 

ueclogo1.jpg

 

S-K 1300 INITIAL ASSESSMENT REPORT – ROUGHRIDER URANIUM PROJECT

REPORT DATE: NOVEMBER 5, 2024

 

24.0

REFERENCES


 

Rio Tinto Canada Uranium Corp (2014). Roughrider Advanced Exploration, Program Environmental Impact Statement, May 2014.

 

Annesley, I. R., Madore, C., Shi, R., Krogh, T. E., and Anonymous. (1997). U-pb geochronology and thermotectonic history of the wollaston domain in the wollaston lake area, hearne province, saskatchewan. Abstract Volume (Geological Association of Canada), 21, A4.

 

Annesley, I.R., and Madore, C. (2002). Thermotectonics of Archean/Paleoproterozoic basement to the eastern Athabasca unconformity-type uranium deposits. In B. Kribek., and J. Zeman. J. (Eds.), Uranium Deposits; From their Genesis to their Environmental Aspects. (pp. 33-36). Czech Geological Survey.

 

Annesley, I.R., Madore, C., and Portella, P. (2001). Paleoproterozoic structural, metamorphic, and magmatic evolution of the eastern sub-Athabasca basement: Controls on unconformity- type uranium deposits. Contribution of the Economic Geology Research Unit, 59, 3-4.

 

Annesley, I.R., Madore, C., and Portella, P. (2005). Geology and thermotectonic evolution of the western margin of the Trans-Hudson Orogen; evidence from the eastern sub- Athabasca basement, Saskatchewan. Canadian Journal Earth Science 42(4), 573-597. https://doi.org/10.1139/e05-034

 

Asamera Oil Corp. (1982). Summary Logs Esso North Grid, (File No. 74 I 0037) Saskatchewan Industry and Resources Assessment.

 

Barr Engineering (2013). Roughrider ADEX Prefeasibility Study.

 

Barr Engineering (2015). Geochemical Characterization Program Estimate.

 

Beckett, R.J. (1972). Numac Mining, Exploration 1972, Permit No. 8, (File No. 74 I 01 0001) Saskatchewan Industry and Resources Assessment.

 

Bieniawski, Z.T. (1976). Rock Mass Classification in Rock Engineering. In Z.T. Bieniawski (Ed.), Proceedings of Exploration for Rock Engineering, Cape Town, 1, (pp. 97-106). Balkema.

 

Canadian Nuclear Safety Commission (2023). Canadian Nuclear Safety Commission website, https://www.cnsc-ccsn.gc.ca/eng/

 

Clifton Engineering (2023). Roughrider Project Technical Report Summary: Regulatory and Permitting (File R6631)

 

Denison Mines (2024). Company website (https://denisonmines.com)

 

Deutsch, C. (2015). Cell Declustering Parameter Selection. Geostatistical Lessons. https://geostatisticslessons.com/lessons/celldeclustering

 

Environmental Code of Practice for Metal Mines (2009), Environment Canada, 2009. Government of Canada, 2018, Greenhouse Gas Pollution Pricing Act.

 

Forgeron, F. D. (1969). Hydrogeochemical Survey, Waterbury Lake, Northern Saskatchewan, Saskatchewan Industry and Resources Assessment File 74 I 01 0001.

 

ttlogo1.jpg

24-1

 

ueclogo1.jpg

 

S-K 1300 INITIAL ASSESSMENT REPORT – ROUGHRIDER URANIUM PROJECT

REPORT DATE: NOVEMBER 5, 2024

 

Golder Associates (2014). Prediction of Groundwater Inflow into Mine Workings for ADEX and LOM.

 

Golder Associates (2014). Roughrider ADEX Study - Geotechnical Report.

 

Government of Canada (1997). Nuclear Safety and Control Act. Statues of Canada 1997, C.9. https://laws-lois.justice.gc.ca/eng/acts/n-28.3/

 

Government of Canada (2019). Impact Assessment Act. Statues of Canada 2019, C.28, S.1. https://laws.justice.gc.ca/eng/acts/i-2.75/index.html

 

Harding, B. & Deutsch, C. (2019). Change of Support and the Volume Variance Relation. Geostatistical Lessons. https://geostatisticslessons.com/lessons/changeofsupport.

 

International Atomic Energy Agency (2024). Publications website (https://www.iaea.org/publications)

 

Jakubec, J., and Esterhuizen, G.S. (2007). Use of the mining rock mass rating (MRMR) classification: industry experience. In Proceedings of the International Workshop on Rock Mass Clarification in Underground Mining. US Dept Health & Human Services. N105H.

 

Jiricka D., Nimeck G., Wasiliuk K. and Halaburda J. (1995). Dawn Lake Joint Venture, 1995 Assessment Report, Saskatchewan Industry and Resources Assessment File 74 I 08 0040.

 

Jiricka, D., Nimeck, G., Wasiliuk, K., Halaburda, J., O'Connor, T. (1996). Dawn Lake Joint Venture, 1996: Assessment Report, Saskatchewan Industry and Resources Assessment File 74 I 08 0064.

 

Melis Engineering Ltd. (2011), Roughrider Project – Summary of Phase III Metallurgical Testwork, November 18, 2011

 

Melis Engineering Ltd. (2011). Hathor Exploration Limited - Roughrider Uranium Project Summary Description of Process Used in Capex and Opex Estimates, September 9, 2011

 

Melis Engineering Ltd. (2011). Roughrider Preliminary Economic Assessment - Metallurgy and Process Section, October 19, 2011

 

Melis Engineering Ltd. (2012), Rio Tinto Canada Uranium Corp. – Roughrider Phase IV Metallurgical Testwork Melis Status Report No. 4 for the Period October 30 to December 18, 2012

 

Norwegian Geotechnical Institute (2022). Using the Q-system, Rock mass classification and support design

 

Parker, J. (1982). Grid Esso North, 1982 Report, Asamera Oil Corp. Saskatchewan Industry and Resources, Assessment File 74 I 08 0037.

 

Pope (2012). Internal communication, Rio Tinto Canada Uranium Corp. 2012

 

Quirt, D. H. (2003). Athabasca unconformity-type uranium deposits: one deposit type with many variations, Uranium Geochemistry 2003, International Conference, Nancy, France, April 13-16, 2003, Proceedings, pp. 309-312.

 

Ramaekers P. (1990). Geology of the Athabasca Group (Helikian) in northern Saskatchewan, Saskatchewan Energy and Mines Report 195.

 

ttlogo1.jpg

24-2

 

ueclogo1.jpg

 

S-K 1300 INITIAL ASSESSMENT REPORT – ROUGHRIDER URANIUM PROJECT

REPORT DATE: NOVEMBER 5, 2024

 

Reclaimed Industrial Sites Act Chapter R-4.21 of The Statutes of Saskatchewan (2006) (effective March 1, 2007), as amended by the Statutes of Saskatchewan, 2014, c.E-13.1; and 2018, c.32

 

Robertshaw, P. (2006). Report on a 2005 Geotem Survey, Midwest NE Property, Northern Saskatchewan; internal report, Roughrider Uranium Corp; 109 pp.

 

Robertshaw, P. (2008). Report on 2007 and 2008 Geophysical Surveys, Midwest Northeast Property, Northern Saskatchewan; internal report for Hathor Exploration Limited; 29 pp, 5 Appendices.

 

Roy, C. E., Cooper, B. R., McGill, B. D., Middleton, R. A., Sopuck, V. J., McMullan, S. R. (1984) Dawn Lake Project Annual Report, 1984 Exploration Activities, Saskatchewan Industry and Resources, Assessment File 74 I 01 0075.

 

Saskatchewan Ministry of Labour Relations and Workplace Safety (2018). Occupational health and safety, mining safety/Mines Regulations

 

SaskPower (2024). Saskatchewan Power Corporation Power Supply Rates, Saskatchewan Power Corporation website: https://www.saskpower.com/accounts/power-rates/power-supply-rates

 

SGS Canada Inc. (2003). Geology and Mineral and Petroleum Resources of Saskatchewan; Saskatchewan Industry and Resources; Saskatchewan Geological Survey; Misc. Report 2003-7, 173 pp.

 

SGS Canada Inc. (2011). An Investigation into The Recovery of Uranium from the Roughrider Deposit, Project No. 12084-001/002, July 27, 2011.

 

SGS Canada Inc. (2011). Lakefield Research, Verbal, Email and Telephone Conversations Regarding Test Data, 2009 -2011.

 

SGS Canada Inc. (2012). An Investigation into The Recovery of Uranium from the Roughrider Deposit, Project No. 12084-003, October 12, 2012.

 

SGS Canada Inc. (2013). An Investigation into The Recovery of Uranium from the Roughrider Deposit, Project No. 12084-005, January 28, 2013.

 

SRC (2013). Draft Report, Uranium Metallurgical Testing-Roughrider Project, SRC Publication No. 13505-1C13, August 2013

 

SRK Consulting (2011). Preliminary Economic Assessment Technical Report for the East and West Zones Roughrider Uranium Project, Saskatchewan; 13 September 2011.

 

SRK Consulting (2023). Technical Report Summary: Roughrider Uranium Project, Saskatchewan, Canada; 25 April 2023

 

Stantec (2021). Arrow Deposit, Rook I Project, Saskatchewan – NI 43-101 Technical Report on Feasibility Study, 22 February 2021.

 

Tetra Tech (2023). Feasibility Study, NI 43-101 Technical Report for PLS Property. 17 January 2023.

 

TradeTech (2024). Uranium Market Study, Issue 1

 

UxC (2023). Market Outlook Forecast, Q1 2023

 

ttlogo1.jpg

24-3

 

ueclogo1.jpg

 

S-K 1300 INITIAL ASSESSMENT REPORT – ROUGHRIDER URANIUM PROJECT

REPORT DATE: NOVEMBER 5, 2024

 

25.0

RELIANCE ON INFORMATION PROVIDED BY THE REGISTRANT


 

Tetra Tech QP has relied upon information provided by the client (UEC/RMA) based on the title opinion letter received from their lawyer regarding mineral lease information included in this report (Section 3.3 and 3.4).

 

Tetra Tech QP has relied upon information provided by the client (UEC/RMA) for marketing studies – TradeTech (2024) report - for providing a long-term commodity price included in this report (Section 16).

 

Tetra Tech QP has relied on UEC and guidance from their tax advisors on applicable taxes, royalties, and other government levies or interests, applicable to revenue or income from the Project as presented in Section 3 and Section 19 and used in Section 11 for establishing RPEE and Section 19 to support the sub-section on tax information and tax inputs to the economic model that provides an after-tax model. The rates are in compliance with with the tax regime at the Project location.

 

ttlogo1.jpg

25-1

 

ueclogo1.jpg

 

S-K 1300 INITIAL ASSESSMENT REPORT – ROUGHRIDER URANIUM PROJECT

REPORT DATE: NOVEMBER 5, 2024

 

26.0

DATE AND SIGNATURE PAGES


 

This TRS titled “S-K 1300 Initial Assessment Report – Roughrider Uranium Project” with the date issued of November 5, 2024, was prepared and signed by the following authors:

 

QP / Consulting Firm

Responsible Sections

Signature

Date

Tetra Tech Canada Inc.

Section 2, 3, 4, 5, 10, 14, 15, 16, 18.1 (except mining), 18.2 (except mining), 19, 20, 21, 25 and related disclosure in Sections 1, 22, 23 and 24

“signed”

November 5, 2024

Understood Mineral Resources Ltd.

Section 6, 7 (except 7.2.7 and 7.2.8), 8, 9, 11 (except 11.11), and related disclosure in Sections 1, 22, 23 and 24

“signed”

November 5, 2024

Terracon Geotechnique Ltd.

Section 7.2.7 and 7.2.8 and related disclosure in Sections 22

“signed”

November 5, 2024

Snowden Optiro

Section 11.11, 12, 13, 18.1 (mining), 18.2 (mining), and related disclosure in Sections 1, 22, 23 and 24

“signed”

November 5, 2024

Clifton Engineering Group Ltd.

Section 17 and related disclosure in Sections 1, 22, 23 and 24

“signed”

November 5, 2024

 

ttlogo1.jpg

26-1

 

ueclogo1.jpg

 

S-K 1300 INITIAL ASSESSMENT REPORT – ROUGHRIDER URANIUM PROJECT

REPORT DATE: NOVEMBER 5, 2024

 

27.0

GLOSSARY

 

Technical Studies

Definition

Feasibility Study

Is a comprehensive technical and economic study of the selected development option for a mineral project, which includes detailed assessments of all applicable modifying factors, as defined by this section, together with any other relevant operational factors, and detailed financial analysis that are necessary to demonstrate, at the time of reporting, that extraction is economically viable. The results of the study may serve as the basis for a final decision by a proponent or financial institution to proceed with, or finance, the development of the project.

(1)

A feasibility study is more comprehensive, and with a higher degree of accuracy, than a pre- feasibility study. It must contain mining, infrastructure, and process designs completed with sufficient rigor to serve as the basis for an investment decision or to support project financing.

(2)

The confidence level in the results of a feasibility study is higher than the confidence level in the results of a prefeasibility study. Terms such as full, final, comprehensive, bankable, or definitive feasibility study are equivalent to a feasibility study.

Preliminary Feasibility Study

(or Pre- Feasibility Study)

is a comprehensive study of a range of options for the technical and economic viability of a Mineral project that has advanced to a stage where a qualified person has determined (in the case of underground mining) a preferred mining method, or (in the case of surface mining) a pit configuration, and in all cases has determined an effective method of Mineral processing and an effective plan to sell the product.

(1)

A pre-feasibility study includes a financial analysis based on reasonable assumptions, based on appropriate testing, about the modifying factors and the evaluation of any other relevant factors that are sufficient for a qualified person to determine if all or part of the Indicated and measured Mineral Resources may be converted to Mineral Reserves at the time of reporting. The financial analysis must have the level of detail necessary to demonstrate, at the time of reporting, that extraction is economically viable.

(2)

A pre-feasibility study is less comprehensive and results in a lower confidence level than a feasibility study. A pre-feasibility study is more comprehensive and results in a higher confidence level than an initial assessment.

Initial Assessment

Is a preliminary technical and economic study of the economic potential of all or parts of mineralization to support the disclosure of Mineral Resources. The initial assessment must be prepared by a qualified person and must include appropriate assessments of reasonably assumed technical and economic factors, together with any other relevant operational factors, that are necessary to demonstrate at the time of reporting that there are reasonable prospects for economic extraction. An initial assessment is required for disclosure of Mineral Resources but cannot be used as the basis for disclosure of Mineral Reserves

Marketing Studies

Definition

Final Market Study

Is a comprehensive study to determine and support the existence of a readily accessible market for the Mineral. It must, at a minimum, include product specifications based on final geologic and metallurgical testing, supply and demand forecasts, historical prices for the preceding five or more years, estimated long term prices, evaluation of competitors (including products and estimates of production volumes, sales, and prices), customer evaluation of product specifications, and market entry strategies or sales contracts. The study must provide justification for all assumptions, which must include assumptions concerning the material contracts required to develop and sell the Mineral Reserves

 

ttlogo1.jpg

27-1

 

ueclogo1.jpg

 

S-K 1300 INITIAL ASSESSMENT REPORT – ROUGHRIDER URANIUM PROJECT

REPORT DATE: NOVEMBER 5, 2024

 

Preliminary Market Study

Is a study that is sufficiently rigorous and comprehensive to determine and support the existence of a readily accessible market for the Mineral. It must, at a minimum, include product specifications based on preliminary geologic and metallurgical testing, supply and demand forecasts, historical prices for the preceding five or more years, estimated long term prices, evaluation of competitors (including products and estimates of production volumes, sales, and prices), customer evaluation of product specifications, and market entry strategies. The study must provide justification for all assumptions. It can, however, be less rigorous and comprehensive than a final market study, which is required for a full feasibility study

Resources

Definition

Mineral Resource

Is a concentration or occurrence of material of economic interest in or on the Earth’s crust in such form, grade or quality, and quantity that there are reasonable prospects for economic extraction. A Mineral Resource is a reasonable estimate of Mineralization, considering relevant factors such as cut-off grade, likely mining dimensions, location or continuity, that, with the assumed and justifiable technical and economic conditions, is likely to, in whole or in part, become economically extractable. It is not merely an inventory of all mineralization drilled or sampled.

Measured Mineral Resource

Is that part of a Mineral Resource for which quantity and grade or quality are estimated on the basis of conclusive geological evidence and sampling. The level of geological certainty associated with a measured Mineral Resource is sufficient to allow a qualified person to apply modifying factors, as defined in this section, in sufficient detail to support detailed mine planning and final evaluation of the economic viability of the deposit. Because a measured Mineral Resource has a higher level of confidence than the level of confidence of either an Indicated Mineral Resource or an Inferred Mineral Resource, a measured Mineral Resource may be converted to a proven Mineral Reserve or to a probable Mineral Reserve.

Indicated Mineral Resource

Is that part of a Mineral Resource for which quantity and grade or quality are estimated on the basis of adequate geological evidence and sampling. The level of geological certainty associated with an Indicated Mineral Resource is sufficient to allow a qualified person to apply modifying factors in sufficient detail to support mine planning and evaluation of the economic viability of the deposit. Because an Indicated Mineral Resource has a lower level of confidence than the level of confidence of a measured Mineral Resource, an Indicated Mineral Resource may only be converted to a probable Mineral Reserve.

Inferred Mineral Resource

Is that part of a Mineral Resource for which quantity and grade or quality are estimated on the basis of limited geological evidence and sampling. The level of geological uncertainty associated with an Inferred Mineral Resource is too high to apply relevant technical and economic factors likely to influence the prospects of economic extraction in a manner useful for evaluation of economic viability. Because an Inferred Mineral Resource has the lowest level of geological confidence of all Mineral Resources, which prevents the application of the modifying factors in a manner useful for evaluation of economic viability, an Inferred Mineral Resource may not be considered when assessing the economic viability of a mining project and may not be converted to a Mineral Reserve.

Reserves

Definition

Mineral Reserve

Is an estimate of tonnage and grade or quality of Indicated and measured Mineral Resources that, in the opinion of the qualified person, can be the basis of an economically viable project. More specifically, it is the economically mineable part of a measured or Indicated Mineral Resource, which includes diluting materials and allowances for losses that may occur when the material is mined or extracted.

Proven Mineral Reserve

Is the economically mineable part of a measured Mineral Resource and can only result from conversion of a measured Mineral Resource.

Probable Mineral Reserve

Is the economically mineable part of an Indicated and, in some cases, a measured Mineral Resource.

 

ttlogo1.jpg

27-2

 

ueclogo1.jpg

 

S-K 1300 INITIAL ASSESSMENT REPORT – ROUGHRIDER URANIUM PROJECT

REPORT DATE: NOVEMBER 5, 2024

 

 

 

 

 

Appendix A

List of Potential, Permits, Approvals, and Authorizations

 

 

 

 

ttlogo1.jpg

1

 

ueclogo1.jpg

 

S-K 1300 INITIAL ASSESSMENT REPORT – ROUGHRIDER URANIUM PROJECT

REPORT DATE: NOVEMBER 5, 2024

 

Table A 1: List of Potential Permits, Approvals and Authorizations required for the Project

 

Permits, Approvals, Authorizations

Issuing Agency

Provincial

Environmental Assessment Process

Saskatchewan Environmental Assessment Branch

Approval to Construct and Operate Waterworks (Surface Water Withdrawal and Groundwater Withdrawal)

Water Security Agency

Water Rights License

Water Security Agency

Approval to Construct and Operate Drainage Works

Water Security Agency

Approval to Construct and Operate Sewage Works

Water Security Agency

Aquatic Habitat Protection Permit

Water Security Agency

Forest Product Permit

Saskatchewan Environment – Forestry Branch

Miscellaneous Use Permit

Saskatchewan Environment – Lands Branch

Construction Permit

Saskatchewan Environment – Environmental Protection Branch (EPB)

Environmental Protection Plan for Industrial Sources

Saskatchewan Environment -EPB

Approval to Construct/Alter Highways Approach

Saskatchewan Highways and Infrastructure

Approval to Construct and Operate an Industrial Effluent Works

Saskatchewan Environment - EPB

Approval to Construct and Operate a Storage Facility (Hazardous Materials and Waste Dangerous Goods)

Saskatchewan Environment - EPB

Approval to Operate Pollutant Control Facilities

Saskatchewan Environment - EPB

Sand and Gravel Surface Lease

Saskatchewan Environment – EPB/Lands Branch

Approval        to         Decommission  Pollutant          Control Facilities

Saskatchewan Environment - EPB

Release from Decommissioning and Reclamation

Saskatchewan Environment – Ministry of Environment, various branches

Provincial Acceptance of Decommissioned and Reclaimed Site into Institutional Control Program

Saskatchewan Environment - ditto

Additional ministries for various other approvals related to operations and construction.

Energy (royalties), Labour (OH&S, mining), Health (camp, drinking water, food prep),

Federal

CNSC Construction Licenses

  ●         Site preparation

  ●         Construction

  ●         Operation

  ●         Decommissioning

Canadian Nuclear Safety Commission

Fisheries Act Authorization

Department of Fisheries and Oceans Canada

Species at Risk Permit

Environment and Climate Change Canada

Mineral and Diamond Mining Effluent Regulations, including effects monitoring

Environment and Climate Change Canada – Fisheries and Oceans

License to Store, Manufacture, or Handle Explosives

Natural Resources Canada

Navigable Waters Act

Transport Canada

Species at Risk and Migratory Birds Convention acts

Environment and Climate Change Canada

 

ttlogo1.jpg

2