EX-10.1 2 ex10-1.htm EX-10.1

 

Exhibit 10.1

 

LEASE

 

BETWEEN

 

SVHQ, LLC

 

(“LANDLORD”)

 

and

 

Mangoceuticals, Inc

 

(“TENANT”)

 

 

 

 

LEASE

 

This Lease (this “Lease”) is entered into by and between SVHQ, LLC, a Texas limited liability company (“Landlord”), and MANGOCEUTICALS, INC, a Texas corporation (“Tenant”), and shall be effective as of the date set forth below Landlord’s signature (the “Effective Date”)

 

1. Basic Lease Information. The key business terms used in this Lease are defined as follows:

 

A. Building”: The building commonly known as Bent Tree Gardens and located at 17130 Dallas Parkway, Dallas, Texas 75248, being approximately 25,745 square feet in size.

 

B. Rentable Square Footage of the Building” is approximately 20,896 square feet.

 

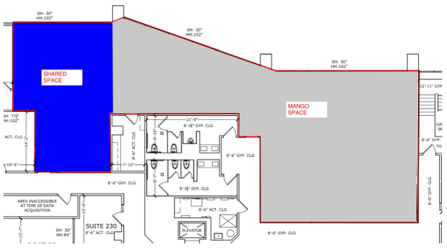
C. Premises”: The area shown on Exhibit A-1 to this Lease. The Premises consist of (i) Suite 245 on the second floor of the Building, totaling approximately 2,467 square feet (“Rentable Square Footage of the Exclusive Area”), leased exclusively to Tenant (“Exclusive Area”), and (ii) the portion of the Building totaling approximately 1,253 square feet (“Rentable Square Footage of the Shared Area”) located on the second floor of the Building, which is designated by Landlord for shared use by Tenant and Landlord, in accordance with the terms of this Lease (the “Shared Area”). The “Rentable Square Footage of the Premises” is approximately 3,720 square feet.

 

D. Base Rent”:

 

Period  

Annual Rate

Per Square Foot

 

Monthly

Base Rent

Lease Month 1 Lease Month 60  

$18.50 for the Exclusive Area

 

$9.25 for the Shared Area

 

$4,852.48

 

($3,803.29 for the Exclusive Area and $965.85 for the Shared Area)

 

E. Tenant’s Pro Rata Share”: Tenant’s Pro Rata Share shall be calculated as (i) the Rentable Square Footage of the Exclusive Area, plus (ii) one half (1/2) of the Rentable Square Footage of the Shared Area, divided by the Rentable Square Footage of the Building. Accordingly, Tenant’s Pro Rata Share consists of: (x) 11.81% for the Exclusive Area (i.e., 2,467 ÷ 20,896), with estimated Operating Expenses of $5.00 per rentable square foot (approximately $1,027.92 per month) and (y) 3.00% for the Shared Area (i.e., (1/2)*[(1,253 ÷ 20,896)]), with estimated Operating Expenses of $2.50 per rentable square foot (approximately $261.04 per month). For a total Tenant’s Pro Rata Share of 14.81%, and total estimated monthly Operating Expenses of approximately $1,288.96, subject to adjustment in accordance with this Lease.

 

F. Intentionally Omitted.

 

Bent Tree Office Lease-1- 

 

 

G. Term”: The period of approximately sixty (60) Lease Months starting on the Commencement Date (defined below) and ending on October 31, 2030, subject to the provisions of Article 3. The first “Lease Month” shall commence on the Commencement Date and end on the last day of the first full calendar month occurring after the Commencement Date (i.e., the calendar month in which the Commencement Date occurs if the Commencement Date is the first day of a calendar month and otherwise the period between the Commencement Date and the last day of the first full calendar month following the calendar month in which the Commencement Date occurs). Each other Lease Month shall be each successive calendar month. The first “Lease Year” shall consist of Lease Months 1 through 12 and each other Lease Year shall be each successive twelve Lease Month period (provided that the final Lease Year shall run through and include the Expiration Date).

 

H. Commencement Date”: November 1, 2025.

 

I. Security Deposit”: $14,557.44.

 

J. Prepaid Rent: $6,141.44.

 

K. Guarantor(s)”: None.

 

L. “Business Day(s)”: Monday through Friday of each week, exclusive of New Year’s Day, Memorial Day, Independence Day, Labor Day, Thanksgiving Day, the day after Thanksgiving and Christmas Day (“Holidays”). Landlord may designate additional Holidays, provided that the additional Holidays are commonly recognized by office buildings in the area where the Building is located.

 

M. Law(s)”: All applicable statutes, codes, ordinances, orders, rules and regulations of any municipal or governmental entity, now or hereafter adopted, including the Americans with Disabilities Act and any other law pertaining to disabilities and architectural barriers (collectively, “ADA”), and all laws pertaining to the environment, including the Comprehensive Environmental Response, Compensation and Liability Act, as amended, 42 U.S.C. §9601 et seq. (“CERCLA”), and all restrictive covenants existing of record and all rules and requirements of any existing association or improvement district affecting the Property.

 

N. Normal Business Hours”: 7:00 A.M. to 6:00 P.M. on Business Days and 8:00 A.M. to 3:00 P.M. on Saturdays, exclusive of Holidays.

 

O. “Permitted Use”: operation of a typical office and for no other purpose, in compliance with all applicable laws, ordinances, regulations, and rules, including any requirements related to safety, health, and zoning.

 

P. Tenant’s Broker”: None.

 

Bent Tree Office Lease-2- 

 

 

Q. Notice Addresses”:

 

Tenant: On or after the Commencement Date, notices shall be sent to Tenant at the Premises. Prior to the Commencement Date, notices shall be sent to Tenant at the following address:

 

Mangoceuticals, Inc.

15110 Dallas Parkway, Suite 600

Dallas, TX 75248

Attn: Jacob Cohen

Email: jacob@mangorx.com

 

Landlord:

 

SVHQ, LLC

5729 Lebanon Road Suite 144-589

Frisco, TX 75034

Attn: Kris Ramji

Email: kris@slatecommercial.com

 

Rent (defined in Section 4.A) is payable to the order of SVHQ, LLC at the following address: 5729 Lebanon Road Suite 144-589, Frisco, TX 75034.

 

2. Lease Grant. Landlord leases the Premises to Tenant and Tenant leases the Premises from Landlord, together with the right in common with others to use any portions of the Property (defined below) that are designated by Landlord for the common use of tenants and others, such as sidewalks, common corridors, vending areas, lobby areas and, with respect to multi-tenant floors, restrooms and elevator foyers (the “Common Areas”). “Property” means the Building and the parcel(s) of land on which it is located as more fully described on Exhibit A-2, together with the Common Areas and all other buildings and improvements located thereon; all appurtenances including all appurtenant parking facilities; and the Building garage(s) and other improvements serving the Building, if any, and the parcel(s) of land on which they are located. The Rentable Square Footage of the Building and/or the Rentable Square Footage of the Premises shall be subject to measurement from time to time by Landlord’s architect at Landlord’s option.

 

3. Term; Adjustment of Commencement Date; Early Access.

 

A. Term. This Lease shall govern the relationship between Landlord and Tenant with respect to the Premises from the Effective Date through the last day of the Term specified in Section 1.G (the “Expiration Date”), unless terminated early in accordance with this Lease. The Term of this Lease (as specified in Section 1.G) shall commence on the Commencement Date. If Landlord is delayed in delivering possession of the Premises or any other space due to any reason, including the holdover or unlawful possession of such space by any third party, or for any other reason, such delay shall not be a default by Landlord, render this Lease void or voidable, or otherwise render Landlord liable for damages. Promptly after the Commencement Date, Landlord shall prepare and deliver to Tenant a commencement letter agreement substantially in the form attached as Exhibit C. If such commencement letter is not executed by Tenant within 30 days after delivery of same by Landlord, then Tenant shall be deemed to have agreed with the matters set forth therein. Notwithstanding any other provision of this Lease to the contrary, if the Expiration Date would otherwise occur on a date other than the last day of a calendar month, then the Term shall be automatically extended to include the last day of such calendar month, which shall become the Expiration Date.

 

Bent Tree Office Lease-3- 

 

 

B. Acceptance of Premises. Except as otherwise provided in the Work Letter attached hereto as Exhibit D (“Landlord’s Work”), all installations and improvements now or hereafter placed on the Premises shall be for Tenant’s account and at Tenant’s cost. Subject to completion of Landlord’s Work, the Premises are accepted by Tenant in “as is” condition and configuration. Tenant shall have the right to utilize all contents in the Premises as of the Effective Date, including all attached fixtures. Tenant hereby agrees that the Premises are in good order and satisfactory condition and that, except as otherwise expressly set forth in this Lease, there are no representations or warranties of any kind, express or implied, by Landlord regarding the Premises, the Building or the Property.

 

C. Early Access. Prior to the Commencement Date, Tenant’s access to the Premises shall be permitted only with the prior written consent of Landlord, which consent shall not be unreasonably withheld. Early access to the Premises shall be subject to the terms and conditions of this Lease and Tenant shall pay Rent (defined in Section 4.A) to Landlord for each day of such early access. However, if such early access to the Premises is permitted by Landlord for the sole purpose of performing improvements or installing furniture, equipment or other personal property, Tenant shall not be required to pay Base Rent, Tenant’s Pro Rata Share of Operating Expenses and the Electrical Costs Payment (if applicable) for any days of such early access; provided however, Tenant shall pay for the cost of any other Building services requested by Tenant (e.g., freight elevator usage).

 

4. Rent.

 

A. Payments. As consideration for this Lease, commencing on the Commencement Date, Tenant shall pay Landlord, without any demand, setoff or deduction, the total amount of Base Rent, Tenant’s Pro Rata Share of Operating Expenses (defined in Section 4.B), the Electrical Costs Payment (defined in Section 4.H) (if applicable), and any and all other sums payable by Tenant under this Lease (all of which are sometimes collectively referred to as “Rent”). Tenant shall pay and be liable for all rental, gross receipts, sales and use, or other taxes, if any, imposed upon or measured by rents, receipts or income attributable to ownership, use, occupancy, rental, leasing, operation or possession of the Property. The monthly Base Rent, Tenant’s Pro Rata Share of Operating Expenses, and the Electrical Costs Payment (if applicable) shall be due and payable in advance on the first day of each calendar month without notice or demand, provided that the installment of Base Rent for the first full calendar month of the Term for which Base Rent is due shall be payable upon the execution of this Lease by Tenant. All other items of Rent shall be due and payable by Tenant on or before 30 days after billing by Landlord. All payments of Rent shall be by good and sufficient check or by other means (such as automatic debit or electronic transfer) acceptable to Landlord. If the Term commences on a day other than the first day of a calendar month, the monthly Base Rent, Tenant’s Pro Rata Share of Operating Expenses, and the Electrical Costs Payment (if applicable) for the month shall be prorated on a daily basis based on a 360-day calendar year. Landlord’s acceptance of less than the correct amount of Rent shall be considered a payment on account of the earliest Rent due. No endorsement or statement on a check or letter accompanying a check or payment shall be considered an accord and satisfaction, and either party may accept such check or payment without such acceptance being considered a waiver of any rights such party may have under this Lease or applicable Law. Tenant’s covenant to pay Rent is independent of every other covenant in this Lease.

 

Bent Tree Office Lease-4- 

 

 

B. Operating Expenses. Tenant shall pay Tenant’s Pro Rata Share of the amount, if any, by which Operating Expenses (defined in Section 4.D) for each calendar year during the Term (the “Operating Expenses”). On or about January 1 of each calendar year, Landlord shall provide Tenant with a good faith estimate of the Operating Expenses for such calendar year during the Term. On or before the first day of each month, Tenant shall pay to Landlord a monthly installment equal to one-twelfth of Tenant’s Pro Rata Share of Landlord’s estimate of the Operating Expenses. If Landlord determines that its good faith estimate of the Operating Expenses was incorrect, Landlord may provide Tenant with a revised estimate. After its receipt of the revised estimate, Tenant’s monthly payments shall be based upon the revised estimate. If Landlord does not provide Tenant with an estimate of the Operating Expenses by January 1 of a calendar year, Tenant shall continue to pay monthly installments based on the most recent estimate(s) until Landlord provides Tenant with the new estimate. Upon delivery of the new estimate, an adjustment shall be made for any month for which Tenant paid monthly installments based on the same year’s prior incorrect estimate(s). Tenant shall pay Landlord the amount of any underpayment within 30 days after receipt of the new estimate. Any overpayment shall be credited against the next sums due and owing by Tenant or, if no further Rent is due, refunded directly to Tenant within 60 days of determination. The obligation of Tenant to pay for Operating Expenses as provided herein shall survive the expiration or earlier termination of this Lease.

 

C. Reconciliation of Operating Expenses. Within 120 days after the end of each calendar year or as soon thereafter as is practicable, Landlord shall furnish Tenant with a statement of the actual Operating Expenses for such calendar year. If the most recent estimated Operating Expenses paid by Tenant for such calendar year are more than the actual Operating Expenses for such calendar year, Landlord shall apply any overpayment by Tenant against Rent due or next becoming due; provided, if the Term expires before the determination of the overpayment, Landlord shall, within 60 days of determination, refund any overpayment to Tenant after first deducting the amount of Rent due. If the most recent estimated Operating Expenses paid by Tenant for the prior calendar year are less than the actual Operating Expenses for such year, Tenant shall pay Landlord, within 30 days after its receipt of the statement of Operating Expenses, any underpayment for the prior calendar year.

 

D. Operating Expenses Defined. “Operating Expenses” means all costs and expenses incurred or accrued in each calendar year in connection with the ownership, operation, maintenance, management, repair and protection of the Property which are directly attributable or reasonably allocable to the Building, including Landlord’s personal property used in connection with the Property and including all costs and expenditures relating to the following:

 

(1) Operation, maintenance, repair and replacements of any part of the Property, including the mechanical, electrical, plumbing, HVAC, vertical transportation, fire prevention and warning and access control systems; materials and supplies (such as building standard light bulbs and ballasts); equipment and tools; floor, wall and window coverings; personal property; required or beneficial easements; related service agreements and rental expenses; and energy management consulting services not to exceed a commercially reasonable level.

 

Bent Tree Office Lease-5- 

 

 

(2) Administrative costs and management fees, including accounting, information and professional services (except for negotiations and disputes with specific tenants not affecting other parties); management office(s); and wages, salaries, benefits, reimbursable expenses and taxes (or allocations thereof) for full and part time personnel involved in operation, maintenance and management at or below the level of regional property manager and regional asset manager.

 

(3) Janitorial service; window cleaning; waste disposal; gas, water and sewer and other utility charges (including add-ons); and landscaping, including all applicable tools and supplies.

 

(4) Property, liability, earthquake (where applicable) and other insurance coverages carried by Landlord, including deductibles and risk retention programs and a proportionate allocation of the cost of blanket insurance policies maintained by Landlord and/or its Affiliates (defined below).

 

(5) Real estate taxes, assessments, excises, association dues, fees, levies, charges and other taxes of every kind and nature whatsoever, general and special, extraordinary and ordinary, foreseen and unforeseen, including interest on installment payments, which may be levied or assessed against or arise in connection with ownership, use, occupancy, rental, leasing, operation or possession of the Property, or paid as rent under any ground lease (“Tax Expenses”). Tax Expenses shall include, without limitation: (i) any tax on the rent or other revenue from the Property, or any portion thereof, or as against the business of owning or leasing the Property, or any portion thereof, including any business, gross margins, or similar tax payable by Landlord which is attributable to rent or other revenue derived from the Property, (ii) any assessment, tax, fee, levy, or charge allocable to or measured by the area of the Premises or the Rent payable hereunder, (iii) personal property taxes for property that is owned by Landlord and used in connection with the operation, maintenance and repair of the Property, (iv) any assessment, tax, fee, levy or charge, upon this transaction or any document to which Tenant is a party, creating or transferring an interest or an estate in the Premises, and (v) any assessment, tax, fee, levy or charge substituted, in whole or in part, for a tax previously in existence, or assessed in lieu of a tax increase. Tax Expenses shall not include Landlord’s estate, excise, income or franchise taxes (except to the extent provided above).

 

(6) Compliance with Laws, including license, permit and inspection fees (but not in duplication of capital expenditures amortized as provided in Section 4.D(9)); and all expenses and fees, including attorneys’ fees and court or other venue of dispute resolution costs, incurred in negotiating or contesting real estate taxes or the validity and/or applicability of any governmental enactments which may affect Operating Expenses; provided Landlord shall credit against Operating Expenses any refunds received from such negotiations or contests to the extent originally included in Operating Expenses (less Landlord’s costs).

 

(7) Building safety services, to the extent provided or contracted for by Landlord.

 

(8) Goods and services purchased from Landlord’s subsidiaries and Affiliates to the extent the cost of same is generally consistent with rates charged by unaffiliated third parties for similar goods and services.

 

Bent Tree Office Lease-6- 

 

 

(9) Amortization of capital expenditures incurred: (a) to conform with Laws; (b) to provide or maintain building standards (other than building standard tenant improvements); or (c) with the intention of promoting safety or reducing or controlling increases in Operating Expenses, such as lighting retrofit and installation of energy management systems. Such expenditures shall be amortized uniformly over the following periods of time (together with interest on the unamortized balance at the Prime Rate (defined in Section 19.B) as of the date incurred plus 2%): for building improvements, the shorter of 10 years or the estimated useful life of the improvement; and for all other items, 3 years for expenditures under $50,000 and 5 years for expenditures in excess of $50,000. Notwithstanding the foregoing, Landlord may elect to amortize capital expenditures under this subsection over a longer period of time based upon (i) the purpose and nature of the expenditure, (ii) the relative capital burden on the Property, (iii) for cost savings projects, the anticipated payback period, and (iv) otherwise in accordance with sound real estate accounting principles consistently applied.

 

(10) Geofencing marketing and advertising costs incurred by Landlord in its efforts to promote the Property and its tenants (including but not limited to the development and maintenance of a professional webpage for the Property attached as part of Landlord’s main website – with Tenant providing Landlord the authority to link Tenant’s webpage to such Project website for better promotion of Tenant’s business).

 

E. Exclusions from Operating Expenses. Operating Expenses exclude the following expenditures:

 

(1) Leasing commissions, attorneys’ fees and other expenses related to leasing tenant space and constructing improvements for the sole benefit of an individual tenant.

 

(2) Goods and services furnished to an individual tenant of the Property which are above building standard and which are separately reimbursable directly to Landlord in addition to Operating Expenses or to a third party provider.

 

(3) Repairs, replacements and general maintenance paid by insurance proceeds or condemnation proceeds.

 

(4) Electrical service costs paid separately pursuant to Section 4.H (if applicable).

 

F. Proration of Operating Expenses; Adjustments. If Landlord incurs Operating Expenses for the Property together with one or more other buildings or properties, whether pursuant to a reciprocal easement agreement, common area agreement or otherwise, the shared costs and expenses shall be equitably prorated and apportioned by Landlord between the Property and the other buildings or properties. If the Building is not 100% occupied during any calendar year or partial calendar year or if Landlord is not supplying services to 100% of the total Rentable Square Footage of the Building at any time during a calendar year or partial calendar year, Operating Expenses shall be determined as if the Building had been 100% occupied and Landlord had been supplying services to 100% of the Rentable Square Footage of the Building during that calendar year.

 

G. Intentionally Omitted.

 

Bent Tree Office Lease-7- 

 

 

H. Electrical Costs Payment. In the event Landlord elects, at its sole and absolute discretion, to separately bill and charge Tenant for electric consumption in the Premises, in addition to Operating Expenses, and as a separate obligation, Tenant shall pay Landlord the “Electrical Costs Payment” which is comprised of:

 

(1) That portion of electrical consumption which is allocable to rented space in the Building (i.e., a fraction the numerator of which is the Rentable Square Footage of the Premises and the denominator of which is the Rentable Square Footage of all occupied leased space in the Building) of the Electrical Costs (defined below); and

 

(2) For all other electricity consumed in connection with the Building, Tenant’s Pro Rata Share of the Electrical Costs.

 

The “Electrical Costs” are the following costs incurred by Landlord which are directly attributable or reasonably allocable to the Building including (i) electrical services used in the operation, maintenance and use of the Property; (ii) sales, use, excise and other taxes assessed by governmental authorities on electrical services supplied to the Property; and (iii) other costs of providing electrical services to the Property. Tenant shall, with each monthly payment of Base Rent, pay Landlord’s estimate of Tenant’s Electrical Costs Payment the same manner as provided for Operating Expenses in Sections 4.B, C, and F. As of the Effective Date, Tenant acknowledges and agrees that the Electrical Cost Payment is included in Landlord’s calculation of Operating Expenses.

 

5. Tenant’s Use of Premises.

 

A. Permitted Uses. The Premises shall be used only for the Permitted Use and for no other use whatsoever. The Permitted Use shall not include, Tenant shall not use or permit the use of the Premises for, any purpose which is illegal, creates obnoxious odors (including tobacco smoke), noises or vibrations, is dangerous to persons or property, could increase Landlord’s insurance costs, or which, in Landlord’s reasonable opinion, unreasonably disturbs any other tenants of the Building or interferes with the operation or maintenance of the Property or any work by Landlord or its contractors in the Premises. Moreover, the following uses are expressly prohibited in the Premises, and are expressly excluded from the Permitted Use: any exclusive uses provide to other tenants in the Property; schools, government offices or agencies; collection agencies; data processing, telemarketing or reservation centers; radio, television or other telecommunications broadcasting; customer service offices of a public utility company; or any other purpose which would, in Landlord’s reasonable opinion, impair the reputation or quality of the Building, overburden any of the Building systems, Common Areas or parking facilities (including any use which would create a population density in the Premises which is in excess of the density which is standard for the Building), or interfere with the operation of the Property.

 

B. Compliance with Laws. Tenant shall comply with all Laws regarding the operation of Tenant’s business and the use, condition, configuration and occupancy of the Premises and the use of the Common Areas. Tenant, within 5 days after receipt, shall provide Landlord with copies of any notices Tenant receives regarding a violation or alleged or potential violation of any Laws. Tenant shall comply with the rules and regulations of the Building attached as Exhibit B and such other reasonable rules and regulations (or modifications thereto) adopted by Landlord from time to time provided such modifications do not materially diminish the rights of Tenant under this Lease and provided further that in the event there is a conflict between the rules and regulations and this Lease, the terms of this Lease shall govern. Landlord shall enforce the rules and regulations for the Property in a reasonably nondiscriminatory manner, taking prevailing circumstances into account. Tenant shall also cause its agents, contractors, subcontractors, employees, customers, and subtenants to comply with all rules and regulations.

 

Bent Tree Office Lease-8- 

 

 

C. Tenant’s Security Responsibilities. Tenant shall (1) lock the doors to the Exclusive Area and take other reasonable steps to secure the Premises and the personal property of all Tenant Parties (defined in Article 13) and any of Tenant’s transferees, contractors or licensees in the Common Areas and parking facilities of the Building and Property, from unlawful intrusion, theft, fire and other hazards; (2) keep and maintain in good working order all security and safety devices installed in the Premises by or for the benefit of Tenant (such as locks, smoke detectors and burglar alarms); and (3) cooperate with Landlord and other tenants in the Building on Building safety matters. Tenant acknowledges that any security or safety measures employed by Landlord are for the protection of Landlord’s own interests; that Landlord is not a guarantor of the security or safety of the Tenant Parties or their property; and that such security and safety matters are the responsibility of Tenant and the local law enforcement authorities.

 

6. Security Deposit. The Security Deposit shall be delivered to Landlord upon the execution of this Lease by Tenant and shall be held by Landlord (without liability for interest, except to the extent required by Law) as security for the performance of Tenant’s obligations under this Lease. The Security Deposit is not an advance payment of Rent or a measure of Tenant’s liability for damages. Landlord may, from time to time while an event of default remains uncured, without prejudice to any other remedy, use all or a portion of the Security Deposit to satisfy past due Rent, cure any uncured default by Tenant, or repay Landlord for damages and charges for which Tenant is legally liable under this Lease or resulting from Tenant’s breach of this Lease. If Landlord uses the Security Deposit, Tenant shall on demand restore the Security Deposit to its original amount and such use by Landlord of the Security Deposit shall not constitute a cure of the existing event of default until such time as the entire amount owing to Landlord is paid in full and the Security Deposit is fully restored. Provided that Tenant has performed all of its obligations hereunder, Landlord shall return any unapplied portion of the Security Deposit to Tenant within 60 days after the later to occur of: (A) the date Tenant surrenders possession of the Premises to Landlord in accordance with this Lease; or (B) the Expiration Date. Tenant does hereby authorize Landlord to withhold from the Security Deposit all amounts allowed by Law and the amount reasonably anticipated by Landlord to be owed by Tenant as a result of an underpayment of Tenant’s Pro Rata Share of any Operating Expenses, or underpayment of the Electrical Costs Payment, for the final year of the Term. To the fullest extent permitted by applicable Law, Tenant agrees that the provisions of this Article 6 shall supersede and replace all statutory rights of Tenant under applicable Law regarding the retention, application or return of security deposits. If Landlord transfers its interest in the Premises, Landlord shall assign the Security Deposit to the transferee and, following the assignment and the delivery to Tenant of an acknowledgement of the transferee’s responsibility for the Security Deposit if required by Law, Landlord shall have no further liability for the return of the Security Deposit. Landlord shall not be required to keep the Security Deposit separate from its other accounts.

 

Bent Tree Office Lease-9- 

 

 

7. Services Furnished by Landlord.

 

A. Standard Services. Subject to the provisions of this Lease, Landlord agrees to furnish (or cause a third party provider to furnish) the following services to Tenant during the Term:

 

(1) Water service for use in the lavatories on each floor on which the Premises are located.

 

(2) Heat and air conditioning in season during Normal Business Hours, at such temperatures and in such amounts as required by governmental authority or as Landlord determines are standard for the Building.

 

(3) Maintenance and repair of the Property as described in Section 9.B.

 

(4) Janitorial service five days per week (excluding Holidays), as determined by Landlord. If Tenant’s use of the Premises, floor covering or other improvements require special services in excess of the standard services for the Building, Tenant shall pay the additional cost attributable to the special services.

 

(5) Elevator service, subject to proper authorization and Landlord’s policies and procedures for use of the elevator(s) in the Building.

 

(6) Exterior window washing at such intervals as determined by Landlord.

 

(7) Electricity to the Premises for general office use, in accordance with and subject to the terms and conditions in Article 8.

 

B. Service Interruptions. For purposes of this Lease, a “Service Failure” shall mean any interruption, suspension or termination of services being provided to Tenant by Landlord or by third-party providers, whether engaged by Tenant or pursuant to arrangements by such providers with Landlord, which are due to (1) the application of Laws; (2) the failure, interruption or malfunctioning of any electrical or mechanical equipment, utility or other service to the Building or Property; (3) the performance of repairs, maintenance, improvements or alterations; or (4) the occurrence of any other event or cause whether or not within the reasonable control of Landlord. No Service Failure shall render Landlord liable to Tenant, constitute a constructive eviction of Tenant, give rise to an abatement of Rent, or relieve Tenant from the obligation to fulfill any covenant or agreement. In no event shall Landlord be liable to Tenant for any loss or damage, including the theft of Tenant’s Property (defined in Article 14), arising out of or in connection with any Service Failure or the failure of any Building safety services, personnel or equipment.

 

C. Third Party Services. If Tenant desires any service which Landlord has not specifically agreed to provide in this Lease, such as private security systems or telecommunications services serving the Premises, Tenant shall procure such service directly from a reputable third-party service provider (“Provider”) for Tenant’s own account. Tenant shall require each Provider to comply with the Building’s rules and regulations, all Laws, and Landlord’s reasonable policies and practices for the Building. Tenant acknowledges Landlord’s current policy that requires all Providers utilizing any area of the Property outside the Premises to be approved by Landlord and to enter into a written agreement acceptable to Landlord prior to gaining access to, or making any installations in or through, such area. Accordingly, Tenant shall give Landlord written notice sufficient for such purposes, but in no event less than 14 days’ prior written notice.

 

Bent Tree Office Lease-10- 

 

 

8. Use of Electrical Services by Tenant.

 

A. Landlord’s Electrical Service. Subject to the terms of this Lease, Landlord shall furnish building standard electrical service to the Premises sufficient to operate customary lighting, office machines and other equipment of similar low electrical consumption. Landlord may, at any time and from time to time, calculate Tenant’s actual electrical consumption in the Premises by a survey conducted by a reputable consultant selected by Landlord, all at Tenant’s expense. The cost of any electrical consumption in excess of that which Landlord determines is standard for the Building shall be paid by Tenant in accordance with Section 8.D. The furnishing of electrical services to the Premises shall be subject to the rules, regulations and practices of the supplier of such electricity and of any municipal or other governmental authority regulating the business of providing electrical utility service. Landlord shall not be liable or responsible to Tenant for any loss, damage or expense which Tenant may sustain or incur if either the quantity or character of the electrical service is changed or is no longer available or no longer suitable for Tenant’s requirements.

 

B. Selection of Electrical Service Provider. Landlord shall have and retain the sole right to select the provider of electrical services to the Building and/or the Property. To the fullest extent permitted by Law, Landlord shall have the continuing right to change such utility provider. All charges and expenses incurred by Landlord due to any such changes in electrical services, including maintenance, repairs, installation and related costs, shall be included in the electrical services costs referenced in Section 4.H, unless paid directly by Tenant.

 

C. Submetering. Landlord shall have the continuing right, upon 30 days written notice, to install a submeter for the Premises at Tenant’s expense. If submetering is installed for the Premises, Landlord may charge for Tenant’s actual electrical consumption monthly in arrears for the kilowatt hours used, a rate per kilowatt hour equal to that charged to Landlord by the provider of electrical service to the Building during the same period of time (plus, to the fullest extent permitted by applicable Laws, an administrative fee equal to 15% of such charge), except as to electricity directly purchased by Tenant from third party providers after obtaining Landlord’s consent to the same. In the event Landlord is unable to determine the exact kilowatt hourly charge during the period of time, Landlord shall use the average kilowatt hourly charge to the Building for the first billing cycle ending after the period of time in question. Even if the Premises are submetered, Tenant shall remain obligated to pay the Electrical Costs Payment as provided in Section 4.H, except that Tenant shall be entitled to a credit against electrical services costs equal to that portion of the amounts actually paid by Tenant separately and directly to Landlord which are attributable to building standard electrical services submetered to the Premises.

 

Bent Tree Office Lease-11- 

 

 

D. Excess Electrical Service. Tenant’s use of electrical service shall not exceed, in voltage, rated capacity, use beyond Normal Business Hours or overall load, that which Landlord deems to be standard for the Building. If Tenant requests permission to consume excess electrical service, Landlord may refuse to consent or may condition consent upon conditions that Landlord reasonably elects (including the installation of utility service upgrades, meters, submeters, air handlers or cooling units). The costs of any approved additional consumption (to the extent permitted by Law), installation and maintenance shall be paid by Tenant.

 

9. Repairs and Alterations.

 

A. Tenant’s Repair Obligations. Tenant shall keep the Premises in good condition and repair, ordinary wear and tear excepted, and if any portion of the Premises is visible from any Common Area, such portion of the Premises shall be kept neat and clean. Tenant’s repair obligations include with respect to the Exclusive Area, without limitation, repairs to: (1) floor covering and/or raised flooring; (2) interior partitions; (3) doors; (4) the interior side of demising walls; (5) electronic, phone, data and other cabling and related equipment (collectively, “Cable”) that is installed by or for the benefit of Tenant whether located in the Premises or in other portions of the Building; (6) supplemental air conditioning units, private showers and kitchens, including hot water heaters, plumbing, dishwashers, ice machines and similar facilities serving Tenant exclusively; (7) phone rooms used exclusively by Tenant; (8) Alterations (defined below) performed by contractors retained by Tenant, including related HVAC balancing; and (9) all of Tenant’s furnishings, trade fixtures, equipment and inventory. Prior to performing any such repair obligation, Tenant shall give written notice to Landlord describing the necessary maintenance or repair. Upon receipt of such notice, Landlord may elect either to perform any of the maintenance or repair obligations specified in such notice, or require that Tenant perform such obligations by using contractors approved by Landlord. All work shall be performed at Tenant’s expense in accordance with the rules and procedures described in Section 9.C below. If Tenant fails to make any repairs to the Premises for more than 15 days after notice from Landlord (although notice shall not be required if there is an emergency), Landlord may, in addition to any other remedy available to Landlord, make the repairs, and Tenant shall pay to Landlord the reasonable cost of the repairs within 30 days after receipt of an invoice, together with an administrative charge in an amount equal to 15% of the cost of the repairs. For avoidance of doubt, Tenant shall also maintain the Shared Area in good repair, order, and condition, and shall promptly repair or replace any portion of the Shared Area that is damaged or harmed as a result of Tenant’s use or negligence, ordinary wear and tear excepted.

 

B. Landlord’s Repair Obligations. Landlord shall keep and maintain in good repair and working order and make repairs to and perform maintenance upon: (1) structural elements of the Building; (2) standard mechanical (including common use HVAC), electrical, plumbing and fire/life safety systems serving the Building generally; (3) Common Areas; (4) the roof of the Building; (5) exterior windows of the Building; and (6) elevators serving the Building. Landlord shall promptly make repairs (taking into account the nature and urgency of the repair) for which Landlord is responsible. If any of the foregoing maintenance or repair is necessitated due to the acts or omissions of any Tenant Party (defined in Section 13), Tenant shall pay the costs of such repairs or maintenance to Landlord within 30 days after receipt of an invoice, together with an administrative charge in an amount equal to 15% of the cost of the repairs.

 

Bent Tree Office Lease-12- 

 

 

C. Alterations.

 

(1) When Consent Is Required. Tenant shall not make alterations, additions or improvements to the Premises or install any Cable in the Premises or other portions of the Building (collectively, “Alterations”) without first obtaining the written consent of Landlord in each instance. However, Landlord’s consent shall not be required for any Alteration that satisfies all of the following criteria (a “Minor Alteration”): (a) is of a cosmetic nature such as painting, wallpapering, hanging pictures and installing carpeting; (b) is not visible from outside the Premises or Building; (c) will not affect the systems or structure of the Building; and (d) does not require work to be performed inside the walls or above the ceiling of the Premises.

 

(2) Requirements For All Alterations, Including Minor Alterations. Prior to starting work on any Alteration, Tenant shall furnish to Landlord for review and approval: plans and specifications; names of proposed contractors (provided that Landlord may designate specific contractors with respect to Building systems); copies of contracts; necessary permits and approvals; evidence of contractors’ and subcontractors’ insurance; and Tenant’s security for performance of the Alteration. Changes to the plans and specifications must also be submitted to Landlord for its approval. Some of the foregoing requirements may be waived by Landlord for the performance of specific Minor Alterations; provided that such waiver is obtained in writing prior to the commencement of such Minor Alterations. Landlord’s waiver on one occasion shall not waive Landlord’s right to enforce such requirements on any other occasion. Alterations shall be constructed in a good and workmanlike manner using materials of a quality that is at least equal to the quality designated by Landlord as the minimum standard for the Building. Landlord may designate reasonable rules, regulations and procedures for the performance of Alterations in the Building and, to the extent reasonably necessary to avoid disruption to the occupants of the Building, shall have the right to designate the time when Alterations may be performed. Tenant shall reimburse Landlord within 30 days after receipt of an invoice for out-of-pocket sums paid by Landlord for third party examination of Tenant’s plans for Alterations. In addition, within 30 days after receipt of an invoice from Landlord, Tenant shall pay to Landlord a fee equal to 15% of the total cost of such Alterations for Landlord’s oversight and coordination of any Alterations. No later than 30 days after completion of the Alterations, Tenant shall furnish “as-built” plans (which shall not be required for Minor Alterations), completion affidavits, full and final waivers of liens, receipts and bills covering all labor and materials. Tenant shall assure that the Alterations comply with all insurance requirements and Laws.

 

(3) Landlord’s Liability For Alterations. Landlord’s approval of an Alteration shall not be a representation by Landlord that the Alteration complies with applicable Laws or will be adequate for Tenant’s use. Tenant acknowledges that Landlord is not an architect or engineer, and that the Alterations will be designed and/or constructed using independent architects, engineers and contractors. Accordingly, Landlord does not guarantee or warrant that the applicable construction documents will comply with Laws or be free from errors or omissions, or that the Alterations will be free from defects, and Landlord will have no liability therefor.

 

Bent Tree Office Lease-13- 

 

 

10. Entry by Landlord. Landlord, its agents, contractors and representatives may enter the Premises to inspect or show the Premises, to clean and make repairs, alterations or additions to the Premises, and to conduct or facilitate repairs, alterations or additions to any portion of the Building, including other tenants’ premises. Except in emergencies or to provide janitorial and other Building services after Normal Business Hours, Landlord shall provide Tenant with reasonable prior notice of entry into the Premises, which may be given orally. Landlord shall have the right to temporarily close all or a portion of the Premises to perform repairs, alterations and additions, if reasonably necessary for the protection and safety of Tenant and its employees. Except in emergencies, Landlord will not close the Premises if the work can reasonably be completed on weekends and after Normal Business Hours; provided, however, that Landlord is not required to conduct work on weekends or after Normal Business Hours if such work can be conducted without closing the Premises. Entry by Landlord for any such purposes shall not constitute a constructive eviction or entitle Tenant to an abatement or reduction of Rent.

 

11. Assignment and Subletting.

 

A. Landlord’s Consent Required. Subject to the remaining provisions of this Article 11, but notwithstanding anything to the contrary contained elsewhere in this Lease, Tenant shall not assign, transfer or encumber any interest in this Lease (either absolutely or collaterally) or sublease or allow any third party to use any portion of the Premises (collectively or individually, a “Transfer”) without the prior written consent of Landlord, which consent shall not be unreasonably withheld. Without limitation, Tenant agrees that Landlord’s consent shall not be considered unreasonably withheld if: (1) the proposed transferee’s financial condition does not meet the criteria Landlord uses to select Building tenants having similar leasehold obligations; (2) the proposed transferee is a governmental organization or present occupant of the Property, or Landlord is otherwise engaged in lease negotiations with the proposed transferee for other premises in the Property; (3) any uncured event of default exists under this Lease (or a condition exists which, with the passage of time or giving of notice, would become an event of default); (4) any portion of the Building or Premises would likely become subject to additional or different Laws as a consequence of the proposed Transfer; (5) the proposed transferee’s use of the Premises conflicts with the Permitted Use or any exclusive usage rights granted to any other tenant in the Building; (6) the use, nature, business, activities or reputation in the business community of the proposed transferee (or its principals, employees or invitees) does not meet Landlord’s standards for Building tenants; (7) either the Transfer or any consideration payable to Landlord in connection therewith adversely affects the real estate investment trust (or pension fund) qualification tests applicable to Landlord or its Affiliates; or (8) the proposed transferee is or has been involved in litigation with Landlord or any of its Affiliates. Tenant shall not be entitled to receive monetary damages based upon a claim that Landlord unreasonably withheld its consent to a proposed Transfer and Tenant’s sole remedy shall be an action to enforce any such provision through specific performance or declaratory judgment. Any attempted Transfer in violation of this Article is voidable at Landlord’s option.

 

Bent Tree Office Lease-14- 

 

 

B. Consent Parameters/Requirements. As part of Tenant’s request for, and as a condition to, Landlord’s consent to a Transfer, Tenant shall provide Landlord with financial statements for the proposed transferee, a complete copy (unexecuted) of the proposed assignment or sublease and other contractual documents, and such other information as Landlord may reasonably request. Landlord shall then have the right (but not the obligation) to terminate this Lease as of the date the Transfer would have been effective (“Landlord Termination Date”) with respect to the portion of the Premises which Tenant desires to Transfer. In such event, Tenant shall vacate such portion of the Premises by the Landlord Termination Date and upon Tenant’s vacating such portion of the Premises, the Rent and other charges payable shall be proportionately reduced. Consent by Landlord to one or more Transfer(s) shall not operate as a waiver of Landlord’s rights to approve any subsequent Transfers. In no event shall any Transfer release or relieve Tenant or its Guarantor from any obligation under this Lease, nor shall the acceptance of Rent from any assignee, subtenant or occupant constitute a waiver or release of Tenant from any of its obligations or liabilities under this Lease. Tenant’s net worth at the date of this Lease or Tenant’s net worth as of the day prior to the proposed purchase, merger, consolidation or reorganization. Tenant shall pay Landlord a review fee of $2,500.00 for Landlord’s review of any requested Transfer, provided if Landlord’s actual reasonable costs and expenses (including reasonable attorney’s fees) exceed $2,500.00, Tenant shall reimburse Landlord for its actual reasonable costs and expenses in lieu of a fixed review fee.

 

C. Payment to Landlord. If the aggregate consideration paid to a Tenant Party for a Transfer exceeds that payable by Tenant under this Lease (prorated according to the transferred interest), Tenant shall pay Landlord 50% of such excess (after deducting therefrom reasonable leasing commissions and reasonable costs of tenant improvements paid to unaffiliated third parties in connection with the Transfer, with proof of same provided to Landlord). Tenant shall pay Landlord for Landlord’s share of any excess within 30 days after Tenant’s receipt of such excess consideration. If any uncured event of default exists under this Lease (or a condition exists which, with the passage of time or giving of notice, would become an event of default), Landlord may require that all sublease payments be made directly to Landlord, in which case Tenant shall receive a credit against Rent in the amount of any payments received, but not to exceed the amount payable by Tenant under this Lease.

 

D. Change in Control of Tenant. If Tenant is a corporation, limited liability company, partnership, or similar entity, and if the entity which owns or controls a majority of the voting shares/rights in Tenant at any time sells or disposes of such majority of voting shares/rights, or changes its identity for any reason (including a merger, consolidation or reorganization), such change of ownership or control shall constitute a Transfer. The foregoing shall not apply so long as, both before and after the Transfer, Tenant is an entity whose outstanding stock is listed on a recognized U.S. securities exchange; provided, however, that Tenant shall give Landlord written notice at least 30 days prior to the effective date of such change in ownership or control. The term “Affiliate” means any person or entity controlling, controlled by or under common control with Tenant or Landlord, as applicable. If requested by Landlord, the Affiliate or successor shall sign a commercially reasonable form of assumption agreement.

 

E. Options. The options, if any, herein granted to Tenant are not assignable separate and apart from this Lease, nor may any option be separated from this Lease in any manner, either by reservation or otherwise.

 

Bent Tree Office Lease-15- 

 

 

12. Liens. Tenant shall not permit mechanic’s or other liens to be placed upon the Property, Premises or Tenant’s leasehold interest in connection with any work or service done or purportedly done by or for the benefit of Tenant. If a lien is so placed, Tenant shall, within 10 days of notice from Landlord of the filing of the lien, fully discharge the lien by settling the claim which resulted in the lien or by bonding or insuring over the lien in the manner prescribed by the applicable lien Law. If Tenant fails to discharge the lien, then, in addition to any other right or remedy of Landlord, Landlord may bond or insure over the lien or otherwise discharge the lien. Tenant shall, within 10 days after receipt of an invoice from Landlord, reimburse Landlord for any amount paid by Landlord, including reasonable attorneys’ fees, to bond or insure over the lien or discharge the lien.

 

13. Indemnity. Subject to Article 15 Tenant shall hold Landlord, its trustees, Affiliates, subsidiaries, members, principals, beneficiaries, partners, officers, directors, shareholders, employees, Mortgagee(s) (defined in Article 25) and agents (including the manager of the Property) (collectively, “Landlord Parties”) harmless from, and indemnify and defend such parties against, all liabilities, obligations, damages, penalties, claims, actions, costs, charges and expenses, including reasonable attorneys’ fees and other professional fees that may be imposed upon, incurred by or asserted against any of such indemnified parties (each a “Claim” and collectively “Claims”) that arise out of or in connection with any damage or injury occurring in the Premises.

 

14. Insurance.

 

A. Tenant’s Insurance. Tenant shall maintain the following insurance (“Tenant’s Insurance”), at its sole cost and expense: (1) commercial general liability insurance applicable to the Premises and its appurtenances providing, on an occurrence basis, a per occurrence limit of no less than $1,000,000 with $2,000,000 in aggregate; (2) causes of loss-special form (formerly “all risk”) property insurance, including flood and earthquake, covering all above building standard leasehold improvements and Tenant’s trade fixtures, equipment, furniture and other personal property within the Premises (“Tenant’s Property”) in the amount of the full replacement cost thereof; (3) business income (formerly “business interruption”) insurance written on an actual loss sustained form or with sufficient limits to address reasonably anticipated business interruption losses; (4) business automobile liability insurance to cover all owned, hired and non-owned automobiles owned or operated by Tenant providing a minimum combined single limit of $1,000,000; (5) workers’ compensation insurance as required by the state in which the Premises is located and in amounts as may be required by applicable statute (provided, however, if no workers’ compensation insurance is statutorily required, Tenant shall carry workers’ compensation insurance in a minimum amount of $500,000); (6) employer’s liability insurance in an amount of at least $500,000 per occurrence; and (7) umbrella liability insurance that follows form in excess of the limits specified in (1), (4) and (6) above, of no less than $2,000,000 per occurrence and in the aggregate. Any company underwriting any of Tenant’s Insurance shall have, according to A.M. Best Insurance Guide, a Best’s rating of not less than A- and a Financial Size Category of not less than VIII. All commercial general liability, business automobile liability and umbrella liability insurance policies shall name Landlord (or any successor), Landlord’s property manager, Landlord’s Mortgagee (if any), and their respective members, principals, beneficiaries, partners, officers, directors, employees, and agents, and other designees of Landlord as the interest of such designees shall appear, as “additional insureds” and shall be primary with Landlord’s policy being secondary and noncontributory. If any aggregate limit is reduced because of losses paid to below 75% of the limit required by this Lease, Tenant will notify Landlord in writing within 10 days of the date of reduction. All policies of Tenant’s Insurance shall contain endorsements that the insurer(s) shall give Landlord and its designees at least 30 days’ advance written notice of any change, cancellation, termination or lapse of insurance. Tenant shall provide Landlord with a certificate of insurance and all required endorsements evidencing Tenant’s Insurance prior to the earlier to occur of the Commencement Date or the date Tenant is provided access to the Premises for any reason, and upon renewals at least 10 days prior to the expiration of the insurance coverage. All of Tenant’s Insurance policies, endorsements and certificates will be on forms and with deductibles and self-insured retention, if any, reasonably acceptable to Landlord. The limits of Tenant’s insurance shall not limit Tenant’s liability under this Lease.

 

Bent Tree Office Lease-16- 

 

 

B. Landlord’s Insurance. Landlord shall maintain: (1) commercial general liability insurance applicable to the Property which provides, on an occurrence basis, a minimum combined single limit of no less than $2,000,000 (coverage in excess of $1,000,000 may be provided by way of an umbrella/excess liability policy); and (2) causes of loss-special form (formerly “all risk”) property insurance on the Building in the amount of the replacement cost thereof, as reasonably estimated by Landlord. The foregoing insurance and any other insurance carried by Landlord may be affected by a policy or policies of blanket insurance and shall be for the sole benefit of Landlord and under Landlord’s sole control. Consequently, Tenant shall have no right or claim to any proceeds thereof or any other rights thereunder.

 

15. Mutual Waiver of Subrogation. Notwithstanding anything in this Lease to the contrary, Tenant waives, and shall cause its insurance carrier(s) and any other party claiming through or under such carrier(s), by way of subrogation or otherwise, to waive any and all rights of recovery, Claim, action or causes of action against all Landlord Parties for any loss or damage to Tenant’s business, any loss of use of the Premises, and any loss, theft or damage to Tenant’s Property (including Tenant’s automobiles or the contents thereof), including all rights (by way of subrogation or otherwise) of recovery, Claims, actions or causes of action arising out of the negligence of any Landlord Party, which loss or damage is (or would have been, had the insurance required by this Lease been maintained) covered by insurance. In addition, Landlord shall cause its insurance carrier(s) and any other party claiming through or under such carrier(s), by way of subrogation or otherwise, to waive any and all rights of recovery, Claim, action or causes of action against all Tenant Parties for any loss of or damage to or loss of use of the Building, any additions or improvements to the Building, or any contents thereof, including all rights (by way of subrogation or otherwise) of recovery, Claims, actions or causes of action arising out of the negligence of any Tenant Party, which loss or damage is (or would have been, had the insurance required by this Lease been maintained) covered by insurance.

 

16. Casualty Damage.

 

A. Repair or Termination by Landlord. If all or any part of the Premises are damaged by fire or other casualty, Tenant shall immediately notify Landlord in writing. Landlord shall have the right to terminate this Lease if: (1) the Building shall be damaged so that, in Landlord’s judgment, substantial alteration or reconstruction of the Building shall be required (whether or not the Premises have been damaged); (2) Landlord is not permitted by Law to rebuild the Building in substantially the same form as existed before the fire or casualty; (3) the Premises have been materially damaged and there is less than 2 years of the Term remaining on the date of the casualty; (4) any Mortgagee requires that the insurance proceeds be applied to the payment of the mortgage debt; or (5) an uninsured loss of the Building occurs notwithstanding Landlord’s compliance with Section 14.B above. Landlord may exercise its right to terminate this Lease by notifying Tenant in writing within 90 days after the date of the casualty. If Landlord does not terminate this Lease under this Section 16.A, Landlord shall commence and proceed with reasonable diligence to repair and restore the Building and/or the Premises to substantially the same condition as existed immediately prior to the date of damage; provided, however, that Landlord shall only be required to reconstruct building standard leasehold improvements existing in the Premises as of the date of damage, and Tenant shall be required to pay the cost for restoring any other leasehold improvements. However, in no event shall Landlord be required to spend more than the insurance proceeds received by Landlord.

 

Bent Tree Office Lease-17- 

 

 

B. Timing for Repair; Termination by Either Party. If all or any portion of the Premises is damaged as a result of fire or other casualty, Landlord shall, with reasonable promptness, cause an architect or general contractor selected by Landlord to provide Landlord and Tenant with a written estimate of the amount of time required to substantially complete the repair and restoration of the Premises, using standard working methods (“Completion Estimate”). If the Completion Estimate indicates that the Premises cannot be made tenantable within 270 days from the date of damage, then regardless of anything in Section 16.A above to the contrary, either party shall have the right to terminate this Lease by giving written notice to the other of such election within 10 days after receipt of the Completion Estimate. Tenant, however, shall not have the right to terminate this Lease if the fire or casualty was caused by the negligence or intentional misconduct of any of the Tenant Parties. If neither party terminates this Lease under this Section 16.B, then Landlord shall repair and restore the Premises in accordance with, and subject to the limitations of, Section 16.A.

 

C. Abatement. In the event a material portion of the Premises is damaged such that Tenant cannot reasonably use the Premises for the Permitted Use as a result of a fire or other casualty, the Base Rent shall abate until substantial completion of the repairs and restoration required to be made by Landlord pursuant to Section 16.A. Tenant, however, shall not be entitled to such abatement if the fire or other casualty was caused by the negligence or intentional misconduct of any of the Tenant Parties. Landlord shall not be liable for any loss or damage to Tenant’s Property or to the business of Tenant resulting in any way from the fire or other casualty or from the repair and restoration of the damage. Landlord and Tenant hereby waive the provisions of any Law relating to the matters addressed in this Article, and agree that their respective rights for damage to or destruction of the Premises shall be those specifically provided in this Lease.

 

17. Condemnation. Either party may terminate this Lease if the whole or any material part of the Premises are taken or condemned for any public or quasi-public use under Law, by eminent domain or private purchase in lieu thereof (a “Taking”). Landlord shall also have the right to terminate this Lease if there is a Taking of any portion of the Building or Property which would leave the remainder of the Building unsuitable for use in a manner comparable to the Building’s use immediately prior to the Taking. In order to exercise its right to terminate this Lease under this Article 17, Landlord or Tenant, as the case may be, must provide written notice of termination to the other within 30 days after the terminating party first receives notice of the Taking. Any such termination shall be effective as of the date the physical taking of the Premises or the portion of the Building or Property occurs. If this Lease is not terminated, the Rentable Square Footage of the Building, the Rentable Square Footage of the Premises and Tenant’s Pro Rata Share shall, if applicable, be appropriately adjusted by Landlord. In addition, Base Rent for any portion of the Premises taken or condemned shall be abated during the unexpired Term effective when the physical taking of the portion of the Premises occurs. All compensation awarded for a Taking, or sale proceeds, shall be the property of Landlord, any right to receive compensation or proceeds being expressly waived by Tenant. However, Tenant may file a separate claim at its sole cost and expense for Tenant’s Property (excluding above building standard leasehold improvements) and Tenant’s reasonable relocation expenses, provided the filing of such claim does not diminish the award which would otherwise be receivable by Landlord.

 

Bent Tree Office Lease-18- 

 

 

18. Events of Default. Tenant shall be considered to be in default under this Lease upon the occurrence of any of the following events of default:

 

A. Tenant’s failure to pay when due all or any portion of the Rent (“Monetary Default”).

 

B. Tenant’s failure to perform any of the obligations of Tenant in the manner set forth in Articles 14, 23, 24 or 25 (a “Time Sensitive Default”).

 

C. Tenant’s failure (other than a Monetary Default or a Time Sensitive Default) to comply with any term, provision or covenant of this Lease, if the failure is not cured within 10 days after written notice to Tenant. However, if Tenant’s failure to comply cannot reasonably be cured within 10 days, Tenant shall be allowed additional time (not to exceed an additional 10 days) as is reasonably necessary to cure the failure so long as: (1) Tenant commences to cure the failure within the 10 day period following Landlord’s initial written notice, and (2) Tenant diligently pursues a course of action that will cure the failure and bring Tenant back into compliance with this Lease. However, if Tenant’s failure to comply creates a hazardous condition, the failure must be cured immediately upon notice to Tenant. In addition, if Landlord provides Tenant with notice of Tenant’s failure to comply with the same specific term, provision or covenant of this Lease on more than two (2) occasions during any 12-month period, Tenant’s subsequent violation of the same term, provision or covenant shall, at Landlord’s option, be deemed an incurable event of default by Tenant.

 

D. Tenant or any Guarantor becomes insolvent, files a petition for protection under the U.S. Bankruptcy Code (or similar Law) or a petition is filed against Tenant or any Guarantor under such Laws and is not dismissed within 45 days after the date of such filing, makes a transfer in fraud of creditors or makes an assignment for the benefit of creditors, or admits in writing its inability to pay its debts when due.

 

E. The leasehold estate is taken by process or operation of Law.

 

F. In the case of any ground floor or retail tenant, or any other tenant whose space is visible from the Common Areas or elevator lobby areas of the Building, Tenant does not take possession of, or abandons (excluding temporary closures for the principal operator of Tenant’s illness or vacation, provided any such closure does not exceed 3 months) or vacates all or a substantial portion of the Premises.

 

Bent Tree Office Lease-19- 

 

 

G. Tenant is in default beyond any notice and cure period under any other lease or agreement with Landlord, including any lease or agreement for parking.

 

19. Remedies.

 

A. Landlord’s Remedies. Upon any default, Landlord shall have the right without notice or demand (except as provided in Article 18) to pursue any of its rights and remedies at Law or in equity, including any one or more of the following remedies:

 

(1) Terminate this Lease;

 

(2) Re-enter the Premises, change locks, alter security devices and lock out Tenant or terminate Tenant’s right of possession of the Premises without terminating this Lease, and without complying with applicable Law, the benefits of which are waived by Tenant to the fullest extent permitted by applicable Law;

 

(3) Remove and store, at Tenant’s expense, all the property in the Premises using such lawful force as may be necessary;

 

(4) Cure such event of default for Tenant at Tenant’s expense (plus a 15% administrative fee);

 

(5) Withhold or suspend payment of sums Landlord would otherwise be obligated to pay to Tenant under this Lease or any other agreement;

 

(6) Require all future payments to be made by cashier’s check, money order or wire transfer after the first time any check is returned for insufficient funds, or the second time any sum due hereunder is more than five (5) days late;

 

(7) Apply any Security Deposit as permitted under this Lease; and/or

 

(8) Recover such other amounts in addition to or in lieu of the foregoing as may be permitted from time to time by applicable Law, including any other amount necessary to compensate Landlord for all the detriment proximately caused by Tenant’s failure to perform its obligations under this Lease or which in the ordinary course of events would be likely to result therefrom.

 

B. Measure of Damages.

 

(1) Calculation. If Landlord either terminates this Lease or terminates Tenant’s right to possession of the Premises, Tenant shall immediately surrender and vacate the Premises and pay Landlord on demand: (a) all Rent accrued through the end of the month in which the termination becomes effective; (b) interest on all unpaid Rent from the date due at a rate equal to the lesser of 18% per annum or the highest interest rate permitted by applicable Law; (c) all expenses reasonably incurred by Landlord in enforcing its rights and remedies under this Lease, including all reasonable legal expenses; (d) Costs of Reletting (defined below); and (e) all Landlord’s Rental Damages (defined below). In the event that Landlord relets the Premises for an amount greater than the Rent due during the Term, Tenant shall not receive a credit for any such excess.

 

Bent Tree Office Lease-20- 

 

 

(2) Definitions. “Costs of Reletting” shall include commercially reasonable costs, losses and expenses incurred by Landlord in reletting all or any portion of the Premises including, without limitation, the cost of removing and storing Tenant’s furniture, trade fixtures, equipment, inventory or other property, repairing and/or demolishing the Premises, removing and/or replacing Tenant’s signage and other fixtures, making the Premises ready for a new tenant, including the cost of advertising, commissions, architectural fees, legal fees and leasehold improvements, and any allowances and/or concessions provided by Landlord. “Landlord’s Rental Damages” shall mean the total Rent which Landlord would have received under this Lease (had Tenant made all such Lease payments as required) for the remainder of the Term minus the fair rental value of the Premises for the same period, or, if the Premises are relet, the actual rental value (not to exceed the Rent due during the Term), both discounted to present value at the Prime Rate (defined below) in effect upon the date of determination. For purposes hereof, the “Prime Rate” shall be the per annum interest rate publicly announced by a federally insured bank selected by Landlord in the state in which the Building is located as such bank’s prime or base rate.

 

(3) Landlord’s Alternative Calculation. Because future market rental rates, and the costs or time involved in reletting may be uncertain and difficult to determine at the time of Tenant’s default, the parties agree that Landlord may in its sole discretion elect to recover, in lieu of calculating damages under Section 19.B(1)(d) and (e) above (but without limiting damages under Section 19.B(1)(a) and (b) above), the sum of (a) the unamortized portion of all costs, losses and expenses incurred by Landlord as a result of entering into the Lease, and (b) fifty percent (50%) of the total nominal Rent which Landlord would have received under this Lease (had Tenant made all such Rent payments as required) for the remainder of the Term, which the parties agree is a fair and reasonable estimate of Landlord’s Rental Damages and the Costs of Reletting.

 

C. Tenant Not Relieved from Liabilities. Unless expressly provided in this Lease, the repossession or re-entering of all or any part of the Premises shall not relieve Tenant of its liabilities and obligations under this Lease. In addition, Tenant shall not be relieved of its liabilities under this Lease, nor be entitled to any damages hereunder, based upon minor or immaterial errors in the exercise of Landlord’s remedies. No right or remedy of Landlord shall be exclusive of any other right or remedy. Each right and remedy shall be cumulative and in addition to any other right and remedy now or subsequently available to Landlord at Law or in equity. If Tenant fails to pay any amount when due hereunder (after the expiration of any applicable cure period), Landlord shall be entitled to receive interest on any unpaid item of Rent from the date initially due (without regard to any applicable grace period) at a rate equal to the lesser of 18% per annum or the highest rate permitted by Law. In addition, if Tenant fails to pay any item or installment of Rent when due (after the expiration of any applicable cure period), Tenant shall pay Landlord an administrative fee equal to 5% of the past due Rent. However, in no event shall the charges permitted under this Section 19.C or elsewhere in this Lease, to the extent they are considered interest under applicable Law, exceed the maximum lawful rate of interest. If any payment by Tenant of an amount deemed to be interest results in Tenant having paid any interest in excess of that permitted by Law, then it is the express intent of Landlord and Tenant that all such excess amounts theretofore collected by Landlord be credited against the other amounts owing by Tenant under this Lease. Receipt by Landlord of Tenant’s keys to the Premises shall not constitute an acceptance or surrender of the Premises. Notwithstanding any other provision of this Lease to the contrary, Tenant shall hold Landlord Parties harmless from and indemnify and defend such parties against, all Claims that arise out of or in connection with a breach of this Lease, specifically including any violation of applicable Laws or Contamination (defined in Article 30) caused by a Tenant Party.

 

Bent Tree Office Lease-21- 

 

 

D. Mitigation of Damages. Upon termination of Tenant’s right to possess the Premises, Landlord shall, only to the extent required by Law, use objectively reasonable efforts to mitigate damages by reletting the Premises. Landlord shall not be deemed to have failed to do so if Landlord refuses to lease the Premises to a prospective new tenant with respect to whom Landlord would be entitled to withhold its consent pursuant to Section 11.A, or who (1) is an Affiliate, parent or subsidiary of Tenant; (2) is not acceptable to any Mortgagee of Landlord; (3) requires improvements to the Premises to be made at Landlord’s expense; or (4) is unwilling to accept lease terms then proposed by Landlord, including: (a) leasing for a shorter or longer term than remains under this Lease; (b) re-configuring or combining the Premises with other space, (c) taking all or only a part of the Premises; and/or (d) changing the use of the Premises. Notwithstanding Landlord’s duty to mitigate its damages as provided herein, Landlord shall not be obligated (i) to give any priority to reletting Tenant’s space in connection with its leasing of space in the Building or any complex of which the Building is a part, or (ii) to accept below market rental rates for the Premises or any rate that would negatively impact the market rates for the Building. To the extent that Landlord is required by applicable Law to mitigate damages, Tenant must plead and prove by clear and convincing evidence that Landlord failed to so mitigate in accordance with the provisions of this Section 19.D, and that such failure resulted in an avoidable and quantifiable detriment to Tenant.

 

E. Landlord’s Lien. To secure Tenant’s obligations under this Lease, Tenant grants Landlord a contractual security interest on all of Tenant’s inventory, goods, consumer goods and equipment now or hereafter situated in the Premises and all proceeds therefrom, including insurance proceeds (collectively, “Collateral”). No Collateral shall be removed from the Premises without Landlord’s prior written consent until all of Tenant’s obligations are fully satisfied (except in the ordinary course of business and then only if replaced with items of same or greater value and quality). Upon any event of default, Landlord may, to the fullest extent permitted by Law and in addition to any other remedies provided herein, enter upon the Premises and take possession of any Collateral without being held liable for trespass or conversion, and sell the same at public or private sale, after giving Tenant at least 10 days written notice (or more if required by Law) of the time and place of such sale. Such notice may be sent with or without return receipt requested. Unless prohibited by Law, any Landlord Party may purchase any Collateral at such sale. Subject to applicable Law, the proceeds from such sale, less Landlord’s expenses, including reasonable attorneys’ fees and other expenses, shall be credited against Tenant’s obligations. Any surplus shall be paid to Tenant (or as otherwise required by Law) and any deficiency shall be paid by Tenant to Landlord upon demand. Tenant hereby authorizes Landlord to file a financing statement sufficient to perfect the foregoing security interest, or to file a copy of this Lease as a financing statement, as permitted under Law. Landlord agrees to subordinate its foregoing contractual lien rights to a third party providing furniture, fixtures and/or equipment for Tenant’s use in the Premises during the Term (or providing funds for the acquisition of same), provided that (i) there is no uncured event of default by Tenant under the Lease at the time of such subordination; (ii) such subordination shall be limited to the specified items, amount and time stated in the subordinating instrument; and (iii) such subordination shall be in writing, signed by all parties and in a form acceptable to Landlord.

 

Bent Tree Office Lease-22- 

 

 

20. Limitation of Liability. Notwithstanding anything to the contrary contained in this Lease, the liability of Landlord (and of any successor Landlord) to Tenant (or any person or entity claiming by, through or under Tenant) shall be limited to the interest of Landlord in the Property. Tenant shall look solely to Landlord’s interest in the Property for the recovery of any judgment or award against Landlord. No Landlord Party shall be personally liable for any judgment or deficiency. Before filing suit for an alleged default by Landlord, Tenant shall give Landlord and the Mortgagee(s) (defined in Article 25) whom Tenant has been notified hold Mortgages (defined in Article 25) on the Property, Building or Premises, notice and reasonable time to cure the alleged default. Tenant hereby waives all claims against all Landlord Parties for consequential, special or punitive damages allegedly suffered by any Tenant Parties, including lost profits and business interruption.

 

21. No Waiver. Neither party’s failure to declare a default immediately upon its occurrence or delay in taking action for a default shall constitute a waiver of the default, nor shall it constitute an estoppel. Neither party’s failure to enforce its rights for a default shall constitute a waiver of that party’s rights regarding any subsequent default.

 

22. Tenant’s Right to Possession. Provided Tenant pays the Rent and fully performs all of its other covenants and agreements under this Lease, Tenant shall have the right to occupy the Premises without hindrance from Landlord or any person lawfully claiming through Landlord, subject to the terms of this Lease, all Mortgages, insurance requirements and applicable Law. This covenant and all other covenants of Landlord shall be binding upon Landlord and its successors only during its or their respective periods of ownership of the Building, and shall not be a personal covenant of any Landlord Parties.

 

23. Relocation. Commencing after the Commencement Date and throughout the Term, Landlord shall have the right to relocate Tenant to another location within the Building, provided that (a) Landlord deliver comparable space substantially the same in size as the Premises within the Building to Tenant, on the same terms and conditions as those contained in this Lease for the balance of the remaining Term, and (b) Landlord deliver to Tenant a minimum of sixty (60) days’ written notice of such relocation. Notwithstanding the foregoing, Tenant acknowledges that its location within the Building prior to Commencement Date shall be subject to relocation in Landlord’s sole discretion provided that the conditions of only subsection (a) above are met.

 

Bent Tree Office Lease-23- 

 

 

24. Holding Over. Except for any permitted occupancy by Tenant under Article 29, if Tenant or any party claiming by, through or under Tenant fails to surrender the Premises at the expiration or earlier termination of this Lease, the continued occupancy of the Premises shall be that of a tenancy at sufferance. Tenant shall pay an amount (on a per month basis without reduction for partial months during the holdover) equal to 150% of the sum of the Base Rent, Tenant’s Pro Rata Share of Operating Expenses, and the Electrical Costs Payment due for the period immediately preceding the holdover; provided, however, such amount shall not be less than the then-current fair market gross rental for the Premises. Tenant shall otherwise continue to be subject to all of Tenant’s obligations under this Lease. No holdover by Tenant or payment by Tenant after the expiration or early termination of this Lease shall be construed to extend the Term or prevent Landlord from immediate recovery of possession of the Premises by summary proceedings or otherwise. In addition to the payment of the amounts provided above, if Landlord is unable to deliver possession of the Premises to a new tenant, or to perform improvements for a new tenant, as a result of Tenant’s holdover and Tenant fails to vacate the Premises within 15 days after Landlord notifies Tenant of Landlord’s inability to deliver possession, or perform improvements, such failure shall constitute a Time Sensitive Default hereunder; and notwithstanding any other provision of this Lease to the contrary, Tenant shall be liable to Landlord for, and shall protect Landlord from and indemnify and defend Landlord against, all losses and damages, including any claims made by any succeeding tenant resulting from such failure to vacate, and any consequential damages that Landlord suffers from the holdover.

 

25. Subordination to Mortgages; Estoppel Certificate. Tenant accepts this Lease subject and subordinate to any mortgage(s), deed(s) of trust, ground lease(s) or other lien(s) now or subsequently affecting the Premises, the Building or the Property, and to renewals, modifications, refinancings and extensions thereof (collectively, a “Mortgage”). The party having the benefit of a Mortgage shall be referred to as a “Mortgagee.” This clause shall be self-operative, but upon request from a Mortgagee, Tenant shall execute a commercially reasonable subordination agreement in favor of the Mortgagee. In lieu of having the Mortgage be superior to this Lease, a Mortgagee shall have the right at any time to subordinate its Mortgage to this Lease. If requested by a successor-in-interest to all or a part of Landlord’s interest in this Lease, Tenant shall, without charge, attorn to the successor-in-interest. Tenant shall, within 5 days after receipt of a written request from Landlord, execute and deliver an estoppel certificate to those parties as are reasonably requested by Landlord (including a Mortgagee or prospective purchaser). The estoppel certificate shall include a statement certifying that this Lease is unmodified (except as identified in the estoppel certificate) and in full force and effect, describing the dates to which Rent and other charges have been paid, representing that, to the best of Tenant’s knowledge, there is no default (or stating with specificity the nature of the alleged default) and certifying other matters with respect to this Lease that may reasonably be requested. Tenant’s failure to provide any estoppel certificate within the 5 day period specified above, and the continuation of such failure for a period of 5 days after Landlord delivers a second written notice requesting same, shall constitute a Time Sensitive Default under this Lease. If requested by Tenant, Landlord shall use reasonable efforts, at Tenant’s costs, to obtain Landlord’s Mortgagee’s then-current form of non-disturbance agreement for the benefit of Tenant.

 

Bent Tree Office Lease-24- 

 

 

26. Attorneys’ Fees. If either party institutes a suit against the other for violation of or to enforce any covenant or condition of this Lease, or if either party intervenes in any suit in which the other is a party to enforce or protect its interest or rights, the prevailing party shall be entitled to all of its costs and expenses, including reasonable attorneys’ fees.

 

27. Notice. If a demand, request, approval, consent or notice (collectively, a “notice”) shall or may be given to either party by the other, the notice shall be in writing and delivered by hand or sent by registered or certified mail with return receipt requested, or sent by overnight or same day courier service, or sent by facsimile, at the party’s respective Notice Address(es) set forth in Article 1, except that if Tenant has vacated the Premises (or if the Notice Address for Tenant is other than the Premises, and Tenant has vacated such address) without providing Landlord a new Notice Address, Landlord may serve notice in any manner described in this Article or in any other manner permitted by Law. Each notice shall be deemed to have been received or given on the earlier to occur of actual delivery (which, in the case of delivery by facsimile, shall be deemed to occur at the time of delivery indicated on the electronic confirmation of the facsimile) or the date on which delivery is first refused, or, if Tenant has vacated the Premises or the other Notice Address of Tenant without providing a new Notice Address, three (3) days after notice is deposited in the U.S. mail or with a courier service in the manner described above. Either party may, at any time, change its Notice Address by giving the other party written notice of the new address in the manner described in this Article.

 

28. Reserved Rights. This Lease does not grant any rights to light or air over or about the Building. Landlord excepts and reserves exclusively to itself the use of: (A) roofs, (B) telephone, electrical and janitorial closets, (C) equipment rooms, Building risers or similar areas that are used by Landlord for the provision of Building services, (D) rights to the land and improvements below the floor of the Premises, (E) the improvements and air rights above the Premises, (F) the improvements and air rights outside the demising walls of the Premises, (G) the areas within the Premises used for the installation of utility lines and other installations serving occupants of the Building, and (H) any other areas designated from time to time by Landlord as service areas of the Building. Tenant shall not have the right to install or operate any equipment producing radio frequencies, electrical or electromagnetic output or other signals, noise or emissions in or from the Building without the prior written consent of Landlord. To the extent permitted by applicable Law, Landlord reserves the right to restrict and control the use of such equipment. Landlord has the right to change the Building’s name or address. Landlord also has the right to make such other changes to the Property and Building as Landlord deems appropriate, provided the changes do not materially affect Tenant’s ability to use the Premises for the Permitted Use. Landlord shall also have the right (but not the obligation) to temporarily close the Building if Landlord reasonably determines that there is an imminent danger of significant damage to the Building or of personal injury to Landlord’s employees or the occupants of the Building. The circumstances under which Landlord may temporarily close the Building shall include, without limitation, electrical interruptions, hurricanes and civil disturbances. A closure of the Building under such circumstances shall not constitute a constructive eviction nor entitle Tenant to an abatement or reduction of Rent.

 

Bent Tree Office Lease-25- 

 

 

29. Surrender of Premises. All improvements to the Premises (collectively, “Leasehold Improvements”) shall be owned by Landlord and shall remain upon the Premises without compensation to Tenant. At the expiration or earlier termination of this Lease or Tenant’s right of possession, Tenant shall remove Tenant’s Removable Property (defined below) from the Premises, and quit and surrender the Premises to Landlord, broom clean, and in good order, condition and repair, ordinary wear and tear excepted. As used herein, the term “Tenant’s Removable Property” shall mean: (A) Cable installed by or for the benefit of Tenant and located in the Premises or other portions of the Building; (B) any Leasehold Improvements that are installed by or for the benefit of Tenant and, in Landlord’s reasonable judgment, are of a nature that would require removal and repair costs that are materially in excess of the removal and repair costs associated with typical Building improvements (“Special Installations”); and (C) Tenant’s personal property. Notwithstanding the foregoing, Landlord may, in Landlord’s sole discretion and at no cost to Landlord, require Tenant to leave any of its Special Installations in the Premises. If Tenant fails to remove any of Tenant’s Removable Property (other than Special Installations which Landlord has designated to remain in the Premises) within 2 days after the termination of this Lease or of Tenant’s right to possession, Landlord, at Tenant’s sole cost and expense, shall be entitled (but not obligated) to remove and store Tenant’s Removable Property. Landlord shall not be responsible for the value, preservation or safekeeping of Tenant’s Removable Property. Tenant shall pay Landlord, upon demand, the expenses and storage charges incurred for Tenant’s Removable Property. To the fullest extent permitted by applicable Law, any unused portion of Tenant’s Security Deposit may be applied to offset Landlord’s costs set forth in the preceding sentence. In addition, if Tenant fails to remove Tenant’s Removable Property from the Premises or storage, as the case may be, within 30 days after written notice, Landlord may deem all or any part of Tenant’s Removable Property to be abandoned, and title to Tenant’s Removable Property (except with respect to any Hazardous Material [defined in Article 30]) shall be deemed to be immediately vested in Landlord. Except for Special Installations designated by Landlord to remain in the Premises, Tenant’s Removable Property shall be removed by Tenant before the Expiration Date; provided that upon Landlord’s prior written consent (which must be requested by Tenant at least 30 days in advance of the Expiration Date and which shall not be unreasonably withheld), Tenant may remain in the Premises for up to 5 days after the Expiration Date for the sole purpose of removing Tenant’s Removable Property. Tenant’s possession of the Premises for such purpose shall be subject to all of the terms and conditions of this Lease, including the obligation to pay Base Rent, Tenant’s Pro Rata Share of Operating Expenses, and the Electrical Costs Payment on a per diem basis at the rate in effect for the last month of the Term. In the event this Lease is terminated prior to the Expiration Date, Tenant’s Removable Property (except for Special Installations designated by Landlord to remain in the Premises) shall be removed by Tenant on or before such earlier date of termination. Tenant shall repair damage caused by the installation or removal of Tenant’s Removable Property.

 

30. Hazardous Materials.

 

A. Restrictions. No Hazardous Material (defined below) (except for de minimis quantities of household cleaning products and office supplies used in the ordinary course of Tenant’s business at the Premises and that are used, kept and disposed of in compliance with Laws) shall be brought upon, used, kept or disposed of in or about the Premises or the Property by any Tenant Parties or any of Tenant’s transferees, contractors or licensees without Landlord’s prior written consent, which consent may be withheld in Landlord’s sole and absolute discretion. Tenant’s request for such consent shall include a representation and warranty by Tenant that the Hazardous Material in question (1) is necessary in the ordinary course of Tenant’s business, and (2) shall be used, kept and disposed of in compliance with all Laws.

 

Bent Tree Office Lease-26- 

 

 

B. Remediation. Tenant shall, at its expense, monitor the Premises for the presence of Hazardous Materials or conditions which may reasonably give rise to Contamination (defined below) and promptly notify Landlord if it suspects Contamination in the Premises. Any remediation of Contamination caused by a Tenant Party or its contractors or invitees which is required by Law or which is deemed necessary by Landlord, in Landlord’s opinion, shall be performed by Landlord and Tenant shall reimburse Landlord for the cost thereof, plus a 15% administrative fee.

 

C. Definitions. For purposes of this Article 30, a “Hazardous Material” is any substance the presence of which requires, or may hereafter require, notification, investigation or remediation under any Laws or which is now or hereafter defined, listed or regulated by any governmental authority as a “hazardous waste”, “extremely hazardous waste”, “solid waste”, “toxic substance”, “hazardous substance”, “hazardous material” or “regulated substance”, or otherwise regulated under any Laws. “Contamination” means the existence or any release or disposal of a Hazardous Material or biological or organic contaminant, including any such contaminant which could adversely impact air quality, such as mold, fungi or other bacterial agents, in, on, under, at or from the Premises, the Building or the Property which may result in any liability, fine, use restriction, cost recovery lien, remediation requirement, or other government or private party action or imposition affecting any Landlord Party. For purposes of this Lease, claims arising from Contamination shall include diminution in value, restrictions on use, adverse impact on leasing space, and all costs of site investigation, remediation, removal and restoration work, including response costs under CERCLA and similar statutes.

 

D. Reports, Surveys and Acceptance of Premises. All current surveys or reports prepared for the Property regarding the presence of Hazardous Materials (if any) in the Building are available for inspection by Tenant in the office of the Landlord’s property manager. With respect to Hazardous Materials, Tenant hereby (1) accepts full responsibility for reviewing any such surveys and reports and satisfying itself prior to the execution of this Lease as to the acceptability of the Premises under Section 3.B above, and (2) acknowledges and agrees that this provision satisfies all notice requirements under applicable Law. In the event Tenant performs or causes to be performed any test on or within the Premises for the purpose of determining the presence of a Hazardous Material, Tenant shall obtain Landlord’s prior written consent and use a vendor approved by Landlord for such testing. In addition, Tenant shall provide to Landlord a copy of such test within 10 days of Tenant’s receipt.

 

31. Miscellaneous.

 

A. Governing Law; Jurisdiction and Venue; Severability; Paragraph Headings. This Lease and the rights and obligations of the parties shall be interpreted, construed and enforced in accordance with the Laws of the state in which the Property is located. All obligations under this Lease are performable in the county or other jurisdiction where the Property is located, which shall be venue for all legal actions. If any term or provision of this Lease shall be invalid or unenforceable, then such term or provision shall be automatically reformed to the extent necessary to render such term or provision enforceable, without the necessity of execution of any amendment or new document. The remainder of this Lease shall not be affected, and each remaining and reformed provision of this Lease shall be valid and enforced to the fullest extent permitted by Law. The headings and titles to the Articles and Sections of this Lease are for convenience only and shall have no effect on the interpretation of any part of this Lease. The words “include”, “including” and similar words will not be construed restrictively to limit or exclude other items not listed.

 

Bent Tree Office Lease-27- 

 

 

B. Recording. Tenant shall not record this Lease or any memorandum without Landlord’s prior written consent.

 

C. Force Majeure. Whenever a period of time is prescribed for the taking of an action by Landlord or Tenant, the period of time for the performance of such action shall be extended by the number of days that the performance is actually delayed due to strikes, acts of God, shortages of labor or materials, war, terrorist attacks (including bio-chemical attacks), civil disturbances and other causes beyond the reasonable control of the performing party (“Force Majeure”). However, events of Force Majeure shall not extend any period of time for the payment of Rent or other sums payable by either party or any period of time for the written exercise of an option or right by either party.

 

D. Transferability; Release of Landlord. Landlord shall have the right to transfer and assign, in whole or in part, all of its rights and obligations under this Lease and in the Building and/or Property, and upon such transfer Landlord shall be released from any further obligations hereunder, and Tenant agrees to look solely to the successor in interest of Landlord for the performance of such obligations.

 

E. Brokers. Tenant represents that it has dealt directly with and only with the Tenant’s Broker (if any) identified in Article 1 in connection with this Lease. Landlord has agreed to pay the fees of the Tenant’s Broker (if any) identified in Article 1 to the extent that Landlord has agreed to do so pursuant to the terms and provisions of a commission agreement executed by and between Landlord and Tenant’s Broker on or before the effective date hereof, which agreement (if any) is incorporated herein by reference for the specific purposes set forth in Section 62.022(b) of the Texas Property Code.. Tenant and Landlord shall each indemnify the other against all costs, expenses, attorneys’ fees, liens and other liability for commissions or other compensation claimed by any broker or agent claiming the same by, through or under the indemnifying party, other than Tenant’s Broker.

 

F. Authority; Joint and Several Liability. Tenant covenants, warrants and represents that each individual executing, attesting and/or delivering this Lease on behalf of Tenant is authorized to do so on behalf of Tenant, this Lease is binding upon and enforceable against Tenant; and Tenant is duly organized and legally existing in the state of its organization and is qualified to do business in the state in which the Premises are located. If there is more than one Tenant, or if Tenant is comprised of more than one party or entity, the obligations imposed upon Tenant shall be joint and several obligations of all the parties and entities. Notices, payments and agreements given or made by, with or to any one person or entity shall be deemed to have been given or made by, with and to all of them.

 

Bent Tree Office Lease-28- 

 

 

G. Time is of the Essence; Relationship; Successors and Assigns. Time is of the essence with respect to Tenant’s performance of its obligations and the exercise of any expansion, renewal or extension rights or other options granted to Tenant. This Lease shall create only the relationship of landlord and tenant between the parties, and not a partnership, joint venture or any other relationship. This Lease and the covenants and conditions in this Lease shall inure only to the benefit of and be binding only upon Landlord and Tenant and their permitted successors and assigns.

 

H. Survival of Obligations. The expiration of the Term, whether by lapse of time or otherwise, shall not relieve either party of any obligations which accrued prior to or which may continue to accrue after the expiration or early termination of this Lease. Without limiting the scope of the prior sentence, it is agreed that Tenant’s obligations under Sections 4.A, 4.B, and 4.C, and under Articles 6, 8, 12, 13, 19, 24, 29 and 30 shall survive the expiration or early termination of this Lease.

 

I. Binding Effect. Landlord has delivered a copy of this Lease to Tenant for Tenant’s review only, and the delivery of it does not constitute an offer to Tenant or an option. This Lease shall not be effective against any party hereto until an original copy of this Lease has been signed by such party and delivered to the other party.

 

J. Full Agreement; Amendments. This Lease contains the parties’ entire agreement regarding the subject matter hereof. All understandings, discussions, and agreements previously made between the parties, written or oral, are superseded by this Lease, and neither party is relying upon any warranty, statement or representation not contained in this Lease. This Lease may be modified only by a written agreement signed by Landlord and Tenant. The exhibits and riders attached hereto are incorporated herein and made a part of this Lease for all purposes.

 

K. Tax Waiver. Tenant waives all rights pursuant to all Laws to contest any taxes or other levies or protest appraised values or receive notice of reappraisal regarding the Property (including Landlord’s personalty), irrespective of whether Landlord contests same.

 

L. Method of Calculation. Tenant is knowledgeable and experienced in commercial transactions and does hereby acknowledge and agree that the provisions of this Lease for determining charges and amounts payable by Tenant are commercially reasonable and valid and constitute satisfactory methods for determining such charges and amounts as required by Section 93.012 of the Texas Property Code. Tenant further voluntarily and knowingly waives (to the fullest extent permitted by applicable Law) all rights and benefits of Tenant under such section, as it now exists or as it may be hereafter amended or succeeded.

 

M. Waiver of Consumer Rights. Tenant hereby waives all its rights under the Texas Deceptive Trade Practices - Consumer Protection Act, Section 17.41 et seq. of the Texas Business and Commerce Code, a law that gives consumers special rights and protections. After consultation with an attorney of Tenant’s own selection, Tenant voluntarily adopts this waiver.

 

Bent Tree Office Lease-29- 

 

 

N. OFAC List Representation. Tenant hereby represents and warrants to Landlord that neither Tenant nor any of its respective officers, directors, shareholders, partners, members or affiliates is or will be an entity or person: (i) that is listed in the annex to, or is otherwise subject to the provisions of, Executive Order 13224 issued on September 24, 2001 (“EO 13224”); (ii) whose name appears on the United States Treasury Department’s Office of Foreign Assets Control (“OFAC”) most current list of “Specifically Designated National and Blocked Persons” (which list may be published from time to time in various mediums including, but not limited to, the OFAC website, http:www.treas.gov/ofac/t11sdn.pdf); (iii) who commits, threatens to commit or supports “terrorism,” as that term is defined in EO 13224; or (iv) who is otherwise affiliated with any entity or person listed above.

 

O. Building Directory; Signage. If available, Landlord agrees to list Tenant’s tradename on the directory located in the ground floor lobby of the Building at Tenant’s expense. Upon request by Tenant and at Tenant’s expense, Landlord shall place building standard signage displaying Tenant’s tradename at or near the entrance to the Premises. In the event that Landlord completes construction of a monument sign for the Building, Tenant shall be permitted to install a panel in the top right position on the monument sign, at Tenant’s sole cost and expense and subject to Landlord’s prior approval of the design and content. Landlord may, at a future date, offer additional building signage to Tenant at Landlord’s discretion.

 

P. Right of First Refusal. Landlord grants Tenant a one-time right of first refusal to purchase only the Exclusive Area (Suite 245) of the Premises on the same terms and conditions as those offered to any bona fide third-party purchaser (the “Right of First Refusal”). If, during the Term of this Lease, Landlord receives a written offer from a third party to purchase the Exclusive Area, Landlord shall promptly provide Tenant with a copy of such written offer (the “Offer Notice”), together with all material terms and conditions. Tenant shall have ten (10) business days from receipt of the Offer Notice to deliver written notice to Landlord of its election to purchase the Exclusive Area on the same terms. If Tenant fails to timely exercise this right, Landlord shall be free to sell the Exclusive Area to the third party on terms no more favorable than those set forth in the Offer Notice. Any sale to Tenant pursuant to this Right of First Refusal shall be on the same terms as set forth in the Offer Notice, subject to customary adjustments and approvals required by law. For the avoidance of doubt, this Right of First Refusal applies solely to the Exclusive Area and shall not apply to the Shared Area or any other portion of the Building.

 

[Remainder of page intentionally left blank]

 

Bent Tree Office Lease-30- 

 

 

Landlord and Tenant have executed this Lease as of the Effective Date specified below Landlord’s signature.

 

  LANDLORD:
     
  SVHQ, LLC,
  a Texas limited liability company
     
  By: /s/ Kris Ramji
  Name: Kris Ramji
  Title: President and CEO

 

  Effective Date: October 27, 2025

 

  TENANT:
   
  MANGOCEUTICALS, INC.
  a Texas corporation
     
  By:

/s/ Jacob Cohen         

  Name: Jacob Cohen
  Title: CEO   

 

EXHIBITS AND RIDERS:

 

EXHIBIT A-1   OUTLINE AND LOCATION OF PREMISES
EXHIBIT A-2   LEGAL DESCRIPTION OF PROPERTY
EXHIBIT B   RULES AND REGULATIONS
EXHIBIT C   COMMENCEMENT LETTER
EXHIBIT D   WORK LETTER
EXHIBIT E   PARKING AGREEMENT

 

Bent Tree Office Lease-31- 

 

 

EXHIBIT A-1

 

Outline and Location of Premises

 

 

Exhibits – Bent Tree

 

 

 

 

EXHIBIT A-2

 

Legal Description of Property

 

A 1.359 acre tract, of land situated in the Eli Shepard Survey, Abstract No. 1361, Dallas County, Texas; said tract of land being All of Lot 2, Block A/8228, of a tract of land commonly known as SUNCHILD JOINT VENTURE NO. 1, an addition to the City of Dallas, Texas as recorded in Volume 78221, Page 3617, of the Deed Records, Dallas County, Texas; said tract of land being that particular tract of land described in a substitute trustee’s deed recorded in Volume 93002, Page 3773, of the Deed Records, Dallas County, Texas; said 1.359 acre tract being more particularly described as follows:

 

BEGINNING, at a 3/8-inch iron rod found in the east right-of-way line of Dallas Parkway (a 200 foot wide right-of-way); said point being the southwest corner of said Sunchild Joint Venture No. 1 and being the northwest corner of the Tanner Stiles Addition, an addition to the City of Dallas, Texas as recorded in Volume 79010, Page 2432, of the Deed Records, Dallas County, Texas;

 

THENCE, North 01 degrees, 58 minutes, 00 seconds East, along said east right-of-way line of Dallas Parkway, a distance of 160.00 feet to a 3/8-inch iron rod found for corner; said point being the Southwest corner of a tract of land described in deed to Vartec Properties etal recorded in Volume 96205, Page 1496 of Deed Records of Dallas County, Texas;

 

THENCE, South 88 degrees, 02 minutes, 00 seconds East, departing the said east line of Dallas Parkway and along the south line of the Vartec Properties tract a distance of 370.00 feet to a 1/2-inch iron rod found for corner; said point being in the west line of Knoll Trail (a 60 foot wide right-of-way);

 

THENCE, South 01 degrees, 58 minutes, 00 seconds West, along said west right-of-way line of Knoll Trail, a distance of 160.00 feet to a 3/8-inch iron rod found for corner; said point being the northeast corner of the said Tanner Stiles Addition;

 

THENCE, North 88 degrees, 02 minutes 00 seconds West, departing the said west line of Knoll Trail Drive along the north line of said Tanner Stiles Addition, a distance of 370.00 feet to the POINT OF BEGINNING;

 

CONTAINING, 59,200 square feet or 1.359 acres of land, more or less.

 

Exhibits – Bent Tree

 

 

 

 

EXHIBIT B

 

Rules and Regulations

 

In the event of a conflict between the following Rules and Regulations and the terms of the Lease to which this Exhibit is attached, the terms of the Lease shall control.

 

1. The sidewalk, entries, and driveways of the Property shall not be obstructed by Tenant, or its agents, or used by them for any purpose other than ingress and egress to and from the Premises.

 

2. Tenant shall not place any objects, including antennas, outdoor furniture, etc., in the parking areas, landscaped areas or other areas outside of its Premises, or on the roof of the Property.

 

3. Except for service animals assisting the handicapped, no animals shall be allowed in the Premises or elsewhere on the Property.

 

4. Tenant shall not disturb the occupants of the Property or adjoining buildings by the use of any radio or musical instrument or by the making of loud or improper noises.

 

5. If Tenant desires telegraphic, telephonic or other electric connections in the Premises, Landlord or its agent will direct the electrician as to where and how the wires may be introduced; and, without such direction, no boring or cutting of wires will be permitted. Any such installation or connection shall be made at Tenant’s expense.

 

6. Tenant shall not install or operate any steam or gas engine, or other mechanical apparatus in the Premises. The use of oil, gas or inflammable liquids for heating, lighting or any other purpose is expressly prohibited. Explosives or other articles deemed extra hazardous shall not be brought into the Property.

 

7. Parking any type of recreational vehicles is specifically prohibited on or about the Property. No vehicle of any type shall be stored in the parking areas at any time. In the event that a vehicle is disabled, it shall be removed within 48 hours. There shall be no “For Sale” or other advertising signs on or about any parked vehicle. All vehicles shall be parked in the designated parking areas in conformity with all signs and other markings. All parking will be open parking, and no reserved parking, numbering or lettering of individual spaces will be permitted except as specified by Landlord or otherwise set forth in a Tenant’s Lease.

 

8. Tenant shall maintain the Premises free from rodents, insects and other pests.

 

9. Landlord reserves the right to exclude or expel from the Property any person who, in the judgment of Landlord, is intoxicated or under the influence of liquor or drugs or who shall in any manner do any act in violation of the Rules and Regulations of the Property.

 

10. Tenant shall not cause any unnecessary labor by reason of Tenant’s carelessness or indifference in the preservation of good order and cleanliness of the Premises, Building and/or Property. Landlord shall not be responsible to Tenant for any loss of property on the Premises, however occurring, or for any damage done to the effects of Tenant by the janitors or any other employee or person.

 

Exhibits – Bent Tree

 

 

 

 

11. Tenant shall give Landlord prompt notice of any actually known defects in the water, lawn sprinkler, sewage, gas pipes, electrical lights and fixtures, heating apparatus, or any other service equipment affecting the Premises.

 

12. Tenant shall not permit storage outside the Premises or dumping of waste or refuse, or permit any harmful materials to be placed in any drainage system or sanitary system in or about the Premises.

 

13. All movable trash receptacles provided by the trash disposal firm for the Premises must be kept in the trash enclosure areas, if any, provided for that purpose.

 

14. No auction, public or private, will be permitted on the Premises or the Property.

 

15. No awnings shall be placed over the windows in the Premises except with the prior written consent of Landlord.

 

16. The Premises shall not be used for lodging, sleeping, or for any immoral or illegal purposes or for any purpose other than that specified in the Lease. No gaming devices shall be operated in the Premises.

 

17. Tenant shall ascertain from Landlord the maximum amount of electrical current which can safely be used in the Premises, taking into account the capacity of the electrical wiring in the Property and the Premises and the needs of other tenants, and shall not use more than such safe capacity. Landlord’s consent to the installation of electric equipment shall not relieve Tenant from the obligation not to use more electricity than such safe capacity.

 

18. Tenant assumes full responsibility for protecting the Premises from theft, robbery and pilferage.

 

19. Tenant shall not install or operate on the Premises any machinery or mechanical devices of a nature not directly related to Tenant’s ordinary use of the Premises and shall keep all such machinery free of vibration, noise and air waves which may be transmitted beyond the Premises.

 

20. Tenant shall not introduce, disturb or release asbestos or PCBs onto or from the Premises.

 

21. Tenant shall at all times conduct its operations in a good and workmanlike manner, employing best management practices to minimize the threat of any violation of Environmental Requirements.

 

22. Tenant shall not install any window shades, blinds or interior covering to windows without first obtaining Landlord’s prior written consent.

 

Exhibits – Bent Tree

 

 

 

 

23. Tenant shall not, without the Landlord’s prior written consent, place or maintain any merchandise or other articles in any vestibule, sidewalks, passages, courts, corridors, halls, elevators and stairways or entry of the Premises or elsewhere on the exterior thereof.

 

24. Tenant shall not use or permit the use of any apparatus, or sound reproduction or transmission, or any musical instrument in such manner that the sound so reproduced, transmitted or produced shall be audible beyond the confines of the Premises, and will not use any other advertising medium, including without limitation flashing lights or search lights, which may be heard, seen, or otherwise experienced outside of the Premises other than normal canopy signs as approved by Landlord.

 

25. Tenant shall keep all mechanical apparatus free of vibration and noise which may be transmitted beyond the confines of the Premises.

 

26. Tenant shall not cause or permit objectionable odors to emanate or be dispelled from the Premises.

 

27. Tenant shall not solicit business handbills or other advertising matter or hold demonstrations in the parking areas or other Common Area.

 

28. Tenant shall not permit the parking of delivery vehicles so as to interfere with the use of any driveway, walk, parking areas, or other Common Areas in the Property.

 

29. Tenant shall refer to the name of the Property in all advertising done within the geographical area in which the Property is located.

 

30. Tenant shall not use the plumbing facilities for any other purpose than that for which they are constructed and will not permit any foreign substance of any kind to be thrown therein, and the expense of repairing any breakage, stoppage, seepage or damage, whether occurring on or off the Premises, resulting from a violation of this provision by Tenant or Tenant’s employees, agents or invitees shall be borne by Tenant. All grease traps and other plumbing traps shall be kept clean and operable by Tenant at Tenant’s own cost and expense.

 

31. Tenant shall not place or cause or permit to be placed within the Premises, pay telephones, vending machines or amusement devices of any kind without the prior written consent of Landlord.

 

Exhibits – Bent Tree

 

 

 

 

EXHIBIT C

 

Commencement Letter

 

Re: Lease dated _____________, 2025 (the “Lease”) between SVHQ, LLC (“Landlord”) and _____________, (“Tenant”) for the Premises located on the second floor of Bent Tree Gardens. Unless otherwise specified, all capitalized terms used herein shall have the same meanings as in the Lease.

 

Landlord and Tenant agree that:

 

1. Landlord has fully completed all Landlord Work required under the terms of the Lease, if any.

 

2. Tenant has accepted possession of the Premises. The Premises are usable by Tenant as intended; Landlord has no further obligation to perform any Landlord Work or other construction, and Tenant acknowledges that both the Building and the Premises are satisfactory in all respects.

 

3. The Commencement Date of the Lease is November 1, 2025.

 

4. The Expiration Date of the Lease is the last day of October 31, 2030.

 

5. Tenant’s Address at the Premises after the Commencement Date is:

 

______________________________________________

______________________________________________

______________________________________________

Attention:______________________________________

Phone:_________________________________________

Email:__________________________________________

 

All other terms and conditions of the Lease are ratified and acknowledged to be unchanged.

 

EXECUTED as of ______________, 2025.

 

  {ATTACH APPROPRIATE SIGNATURES}

 

Exhibits – Bent Tree

 

 

 

 

EXHIBIT D

 

WoRK Letter

 

Landlord to deliver the Exclusive Area with fresh paint, carpet, replacement of two wood doors with glass doors, new window coverings and new LED lighting.

 

Exhibits – Bent Tree

 

 

 

 

EXHIBIT E

 

Parking Agreement

 

1. As of the Commencement Date of the Lease, Tenant shall be provided (i) non-exclusive access to unreserved spaces in parking facilities which Landlord provides for the use of tenants and occupants of the Building (the “Parking Facilities”), and (ii) at locations to be determined by Landlord, up to six (6) permits allowing access to reserved spaces in the Parking Facilities (such reserved and unreserved parking spaces collectively, the “Contract Parking Spaces”).

 

2. The rent for the reserved Contract Parking Spaces shall be at no charge to Tenant for the first full Lease Year. Commencing on the first anniversary of the Commencement Date, the rent for the reserved Contract Parking Spaces shall be $50.00 per month per space (plus applicable sales tax) for the reserved spaces; the unreserved Contract Parking Spaces shall be made available free of charge. All payments of rent for the Contract Parking Spaces shall be made (i) at the same time as monthly Base Rent is due under the Lease, and (ii) to Landlord or to such persons as Landlord may otherwise direct from time to time.

 

3. Tenant shall at all times comply with all Laws respecting the use of the Parking Facilities. Landlord reserves the right to adopt, modify, and enforce reasonable rules and regulations governing the use of the Parking Facilities or the Property, from time to time, including any key-card, sticker, or other identification or entrance systems and hours of operations. Landlord may refuse to permit any person who violates such rules and regulations to park in the Parking Facilities, and any violation of the rules and regulations shall subject the automobile in question to removal from the Parking Facilities.

 

4. Unless specified to the contrary above, the non-permit parking spaces provided hereunder shall be provided on an unreserved, “first-come, first-served” basis. Landlord shall have no liability whatsoever for any damage to vehicles or any other items located in or about the Parking Facilities, and in all events, Tenant agrees to seek recovery from its insurance carrier and to require Tenant’s employees to seek recovery from their respective insurance carriers for payment of any property damage sustained in connection with any use of the Parking Facilities. Landlord reserves the right to assign specific parking spaces, and to reserve parking spaces for visitors, small cars, handicapped persons and for other tenants, guests of tenants or other parties, with assigned and/or reserved spaces. Such reserved spaces may be relocated as determined by Landlord from time to time, and Tenant and persons designated by Tenant hereunder shall not park in any such assigned or reserved parking spaces. Landlord also reserves the right to close all or any portion of the Parking Facilities, at its discretion or if required by casualty, strike, condemnation, repair, alteration, act of God, Laws, or other reason beyond Landlord’s reasonable control; provided, however, that except for matters beyond Landlord’s reasonable control, any such closure shall be temporary in nature. If Tenant’s use of any parking permit is precluded for any reason, Tenant’s sole remedy for any period during which Tenant’s use of any parking permit is precluded shall be abatement of parking charges for such precluded permits. Tenant shall not assign its rights under this Agreement.

 

5. Tenant’s failure to pay for any of the above-referenced parking permits or to otherwise comply with any provision of this Agreement shall constitute an event of default under the Lease. In addition to any rights or remedies available to Landlord in the event of a Monetary Default under the Lease, Landlord shall have the right to cancel this Agreement and/or remove any vehicles from the Parking Facilities.

 

Exhibits – Bent Tree